Architecture Faculty Building Extension

Page 1

Architecture Faculty Building Extension

F19537012 AKINTOYE KOLADE ISRAEL

The project is an architecture faculty building extension to be used by all the teachers and students of Architecture design faculty. The most important problem to be solved at present is Creating a relationship between an extended part of a building and the old building because it is important to maintain the integrity of the overall design and ensuring that the new addition complements the existing building.

Site Base Extrusion 1 Setting back from the river Subtraction to create Parking spaces & Access River Subtraction to provide access from existing building 2 Façade segment for entrance Facade Segments 3 Extruded for Diversification and shelter for Ground floor Terraces Added to break up form rigidity and diversify 4 Subtracted for Natural lighting pened to allo access from Existing Building Extruded for more interior Space Terraces Concept Sun Path

Architecture Faculty Building Extension

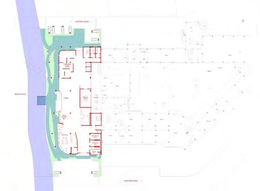
Site 0 10 20 50m N Teaching Buildings River Site Old Faculty building 2F 4F 6F 2F Site Plan 0 5 10 25m N Down Down P P X X 0 5 10 25m N 1st Floor Plan P P X X 2nd Floor Plan P up P Ground Floor Plan N
02/04

Architecture Faculty Building Extension

Spatial

0 5m Section P - P Section X - X N Sections Concrete column structure Roof 3rd Floor Drawing Class Teacher’s Office Multimedia Room Terrace Stair Hall Elevator Atrium Toilets 2nd Floor Drawing Class Teacher’s Office Multimedia Room Model Making Class Review Classroom Meeting Room Stair Hall Elevator Terrace Toilets 1st Floor Drawing Class Teacher’s Office Multimedia Room Computer Class Review Classroom Sitting/Interaction Space Stair Hall Elevator Terrace Toilets Ground Floor Drawing Class Coffee Area Lobby Mechanical Room Distribution Room Exhibition Space Fire Control Room/Guard Room Meeting Room Stair Hall Elevator Toilets
Axonometric
03/04 Model Bridge to provide access from west side Parking space Spot for sight seeing Pathway Ramps for Special access Landscape design Coffee Space Exterior View Outdoor Existing Roof terrace

Architecture Faculty Building Extension

Approach View View from South
04/04 Gallery Night View View from West Access Façade Detail Outdoor Roof Terrace Entrance View Lobby Meeting Room Coffee Area Interaction Space - 1F Interaction Space - 1F Model Making Class - 2F Drawing Classroom - 2F Drawing Classroom - 2F Sitting Space - 2F

Turn static files into dynamic content formats.

Create a flipbook
Issuu converts static files into: digital portfolios, online yearbooks, online catalogs, digital photo albums and more. Sign up and create your flipbook.