Natalie Perez Architecture Portfolio 2025

Page 1


Natalie Perez Architecture Portfolio

My goal as a future architect is to create spaces that inspire, empower, and transform the lives of those who inhabit them. As a fourth-year architecture student, I am motivated to push design beyond aesthetics, focusing on how it can actively shape communities for the better. I aspire to contribute to projects that address urban renewal, integrate sustainable practices, and celebrate cultural diversity. Ensuring that architecture becomes a bridge between people and their environments. As a minority in the field, I aim to use design as a platform for inclusion and equity, working toward a built environment that not only reflects but also uplifts the voices of underrepresented communities. My ultimate goal is to leave a lasting impact on both architecture and society by designing spaces that foster connection, belonging, and opportunity.

Natalie Perez, AIAS

Ndperez645@gmail.com 913.645.3760

EDUCATION

University of Kansas

Master of Architecture

2022-2027

Shawnee Mission South High School

Graduated in 2022

INVOLEMENT

KU AIAS

Member | 2023-Present NOMAS

Member | 2023-Present

AWARDS

Kansas Seal of Biliteracy in Spanish

KU Crimson & Blue Scholarship

LANGUAGES

English, Spanish (Fluent)

HOBBIES

Crochet Painting

Cooking Sewing

Music Quilting

Drawing Welding

REFERENCES

Nils Gore | Professor University of Kansas | Lawerence, KS

Ngore@ku.edu

Bryan Gross | Professor

University of Kansas | Lawerence, KS

bjgross@ku.edu

EXPERIENCE

International Experience| Study Abroad | Finland, Sweden, Denmark |

University of Kansas | Summer 2025

-Explored & analyzed Architecture across these three Nordic countries with on site visits to design studios, firms, government buildings, cathedrals, museums.

-Observed & documented spatial relationships, architectural details, & Urban density | All of this information was taken by field sketching & reflective writing

-Studied Scandinavian design principles & how Nordic architecture reflects its cultural values with the material choices, detailing, sustainable choices that flow seamlessly throughout spaces from public to private.

-Analyzed & documented how public spaces foster social interaction, and how the human scale design strategies follow certain pedestrian patterns like in the city of Helsinki, and Copenhagen.

-Engaged & Explored sustainable design solutions & material innovations through studio visits and discussion with practicing architects in Finland, Sweden, and Denmark.

KC Forged Ornamental LLC.

Business Assistant | 2021-Present

- Biliingual Skills | Worked closely with Spanish-speaking customers - Organization | invoices, project estimates, and budgets, helping clients understand costs.

- Communication | Helped build strong client relationships by providing personalized support and efficient solutions.

Ministerios Un Nuevo Pacto

Volunteer Work | 2021-Present

-Operated the church’s audio | ensured seamless services and events. -Photography | Captured Meaningful moments -Outreach | Assisted With Organization and Distribution of Meals

SKILLS

TECHNICAL SKILLS

- Sketchup, Enscape, Lumion, Twinmotion, Illustrator, Photoshop, Indesign, Microsoft Office, Autocad, AutodeskRevit

- Model-Making, Drafting, Woodworking, Welding, Painting

SOFT SKILLS

Time management , Flexibility, Reliability

LEARNING

Rhino, Grasshopper

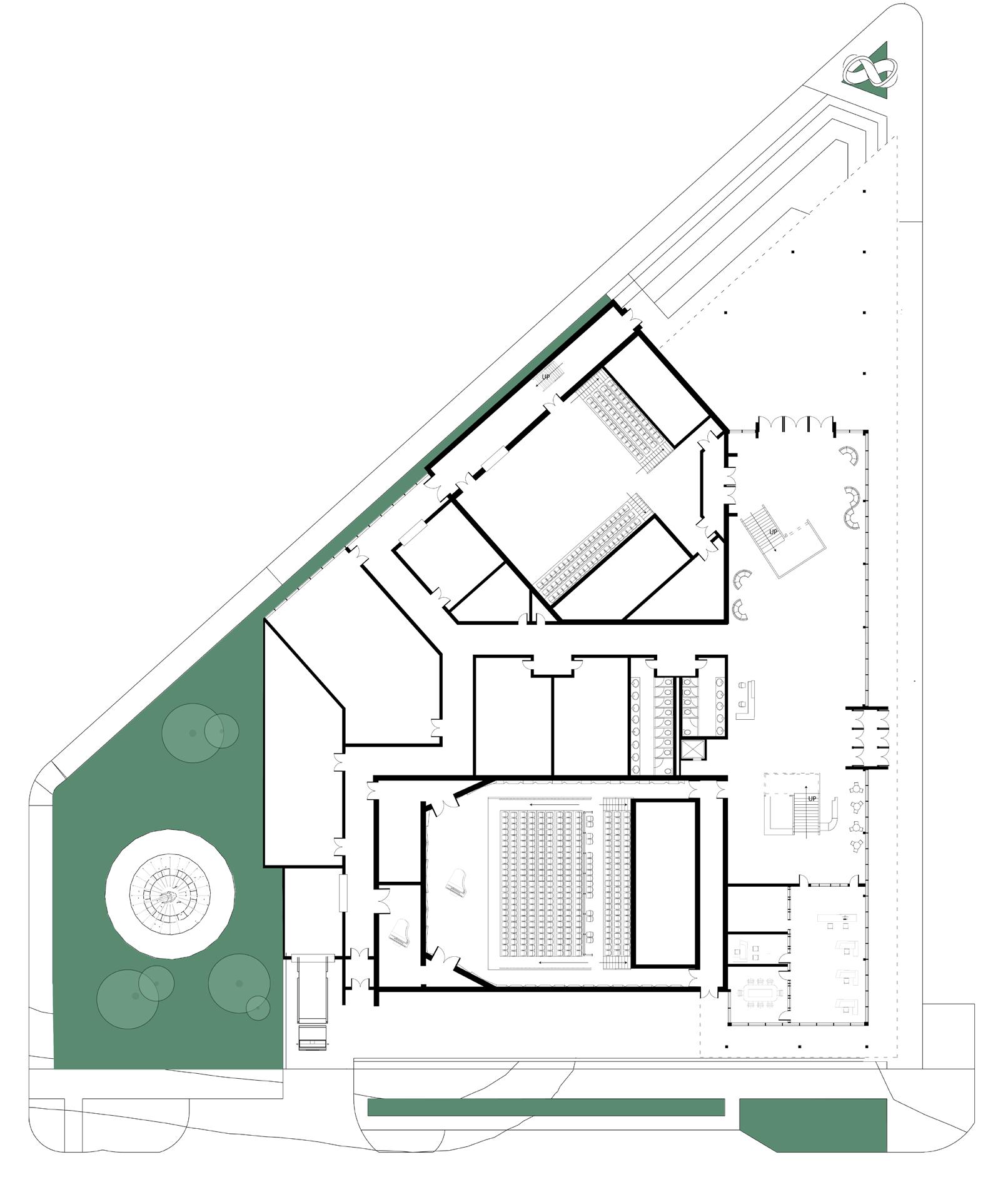
01 AXIS PERFORMING CENTER ARTS CENTER

05 STUDIO 509 | DESIGN BUILD

GENESIS

EXPERIENCES ABROAD

PROJECT BRIEF

Experiential Performing Arts Center | 45,320 sqft

Professor Bryan Gross | 3rd Year

Individual Studio Project

125 Southwest Blvd, KCMO

PROGRAMS USED

Arts Center is conceived as an open, community rooted cultural anchor. The design integrates a recital hall and a black box theater each acoustically optimized and spatially distinct to support both classical and experimental performance types. Interwoven throughout the building are informal performance zones and flexible use spaces that dissolve the boundary between performer and audience. An outdoor performance area, framed by landscaped green space, activates the street edge and extends the building’s public presence. The architecture prioritizes material warmth, acoustic precision, and spatial fluidity. Transparent thresholds, layered volumes, and softened circulation paths create an environment that invites gathering, fosters artistic exchange, and strengthens the cultural fabric of the Crossroads.

Southwest Blvd. W 20th St.

Winter wind Summer wind Main St. Sun Path

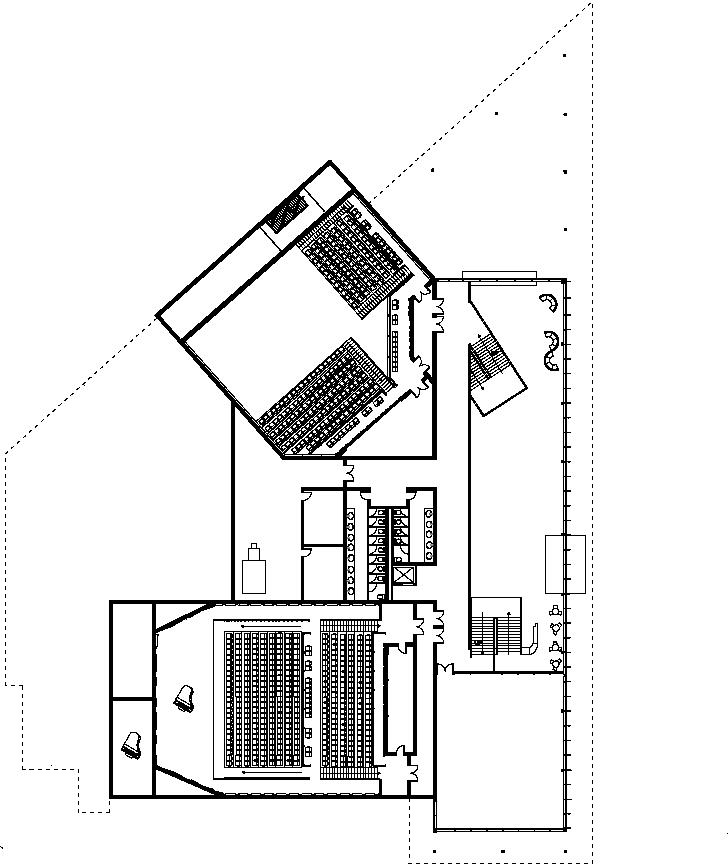
SECOND FLOOR PLAN

FIRST FLOOR SITE PLAN

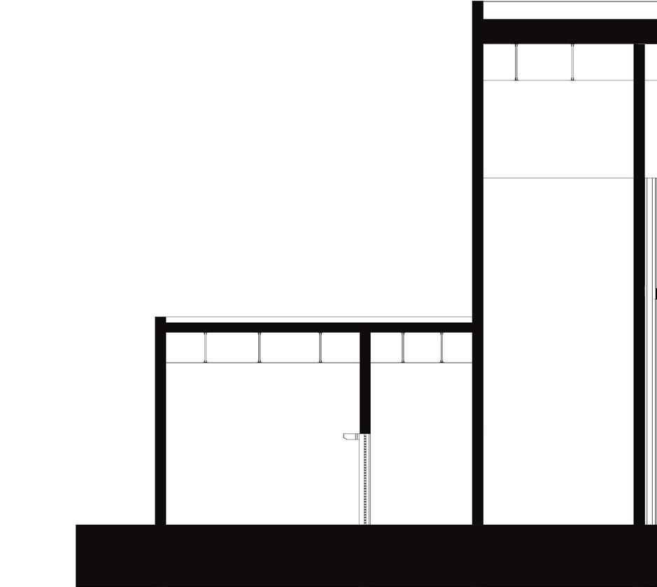
SOUTH SECTION

NORTH SECTION

LOBBY VIEW

EXPERIMENTAL BLACK BOX THEATER

KU WELCOME HERTIAGE CENTER

PROJECT BRIEF

Welcome Center | 16,400 sqft

Professor Hugo Sheward | 2nd Year

Collaboritve | Individual Studio Project Lawerence, Kansas

PROGRAMS USED

Sketchup

Enscape

Adobe Photoshop

Adobe Illustrator

PROJECT DESCRIPTION

There was a required design development for a KU Welcome Heritage Center building. This building is to be perceived as the entry point to KU Lawerence Campus. For this design, the landscape was created first and a site analysis was conducted. Then the KU Welcome Heritage Center building was adapted to the landscape to further enhance the new entry point to KU Lawerence Campus. The KU Welcome Heritcage Center building is a place where it provides a space to receive visitors and community. It should also inform the history and the future of KU. The external and internal space should have a connection to the site and its surroundings.

THE THEORY OF KU CAMPUS

In this project, I embarked on a journey to identify an entrance for the University of Kansas that would truly capture the essence of the campus.

Jayhawk Blvd serves as a magnificent spine for KU, and my goal was to pinpoint the heart of KU a place that symbolizes discovery, connection, and pride for alumni and students worldwide.

Exploring the Heart of KU:

Jayhawk Blvd, with its historical significance, inspired me. However, I sought a location that would transcend mere physical pathways and resonate with the spirit of KU.

The heart of KU, I believed, should be more than just a thoroughfare it should encapsulate the university’s essence.

Identifying Landmarks:

My first task involved mapping out the significant landmarks that intersected with my chosen site.

Many of these landmarks were integral to KU’s identity, and their proximity to my site intrigued me.

The Majestic Campanile:

Among these landmarks, the Campanile stood out. For countless Jayhawkers, passing under its arches marked a momentous achievement the completion of their degree.

I focused on my site’s relationship with surrounding landmarks, emphasizing the Campanile’s role as a beacon of accomplishment.

Memorial Carillon and Campanile
Jayhawk Blvd.
Fraser Hall

FORM PROGRESSION

Entrance and Perspective:

My site analysis extended beyond the Campanile, considering how my chosen building would interact with the surrounding landmarks and KU’s broader campus fabric. I focused on the entrance from Naismith Drive a gateway designed to welcome visitors, students, and alumni alike, creating a seamless transition between the vibrant energy of the university and the architectural experience within.

The approach to the building was not just a passage but an intentional procession one that framed key sightlines, encouraged engagement, and evoked a sense of belonging. The interplay of materiality, scale, and movement guided users inward, reinforcing the significance of the space as a connector between past and future.

A key part of my design process was studying how perspective fields influenced the form of the building. Through a series of diagrams, I explored how views from the Campanile and the surrounding site informed shifts in massing, orientation, and spatial organization. The form evolved in response to these viewpoints, strategically opening toward significant sightlines and framing moments of interaction between the structure, its users, and the campus beyond. This iterative process ensured that the architecture not only fit within its context but actively engaged with it, reinforcing KU’s identity and the experience of those moving through the space.

From the Campanile, I envisioned a framed perspective that captured more than just a building it encapsulated KU’s enduring legacy and aspirations. This vantage point allowed the structure to exist as both a landmark and a bridge, symbolizing continuity, innovation, and the ever-evolving spirit of the university.

In summary, my project sought to craft an unforgettable entrancea gateway that honored KU’s rich history while fostering a dynamic sense of connection. It stood as an open invitation, encouraging all who passed through to explore, engage, and immerse themselves in the boundless opportunities within.

First Floor

1) Entrance

2) Lobby

3) Conference Room Entrance

4) Conference Room

5) Cafe/store

6) Restrooms

7) Private Bathroom

8) Private Office

9) Janitorial/Storage Room

10) Elevator

11) Elevator

12) Exit

Second Floor

13) Past “Room”

14) Location “Room”

15) Future “Room”

16) Study/Meeting “Room”

17) Exit- second floor

Section looking West

SCALE 1/8” = 5’0

0’ 5’ 10’ 15’

COLUMBARIA & MEDITATION CHAPEL

PROJECT BRIEF

Chapel | 75 People /1400 Columbaria

Vaults

Professor Todd Achelpohl | 2nd Year

Individual Studio Project

Lawerence, Kansas

PROGRAMS USED

Sketchup

Enscape

Adobe Photoshop

DESCRIPTION

The Non-Denominational Meditation Chapel and Columbarium is designed as a place for both remembrance and reflection, closely connected to Pioneer Cemetery, where many influential figures from the University of Kansas are laid to rest. This site holds historical and emotional significance, making it an ideal setting for a space dedicated to both celebration and meditation.

The chapel will provide a peaceful retreat for visitors, offering a small meeting area for quiet reflection alongside spaces for inurnment. Designed with the future in mind, it will blend with the cemetery’s setting while creating an inclusive and timeless space for those seeking solace, remembrance, and contemplation.

PIONEER CEMENTARY

THE SITE

IRVING HILL RD.

CONSTANT AVE.

IOWA ST

The Non-Denominational Meditation Chapel and Columbarium is designed as a space of remembrance and reflection, closely tied to the historical significance of Pioneer Cemetery, where many influential figures from the University of Kansas are laid to rest. Recognizing the cemetery’s sacred nature, the chapel is intentionally designed without access to HVAC, reinforcing its role as a simple, contemplative retreat rather than a conventional gathering space. This absence of modern utilities encourages visitors to disconnect from distractions, fostering a more intimate and spiritual experience with the site and its history.

The placement of the chapel in the bottom corner of the site was a deliberate decision, shaping the visitor’s journey through the cemetery. As individuals walk through the burial grounds, they are encouraged to contemplate the significance of those laid to rest, gradually arriving at the chapel as a place of stillness and reflection. This positioning also serves a practical and symbolic purpose it creates a moment of impact, emphasizing the sacredness of the space while responding to nearby noise pollution, reinforcing the need for respect and tranquility. The chapel stands as a quiet sanctuary, offering a place to pause, reflect, and honor both the past and the present within this deeply meaningful landscape.

0’ 5’ 10’ 15’
SCALE
= 5’0

Section

0’ 5’ 10’ 15’

DESIGN BUILD

GREENHOUSE

PROJECT BRIEF

HomeWorks USA | GreenHouse

Professor Nils Gore| 3rd Year

Group Studio Project Lawrence, Kansas

PROGRAMS USED

Sketchup | Enscape | Fusion 360

SKILLS LEARNED

Woodworking | Metal Smithing | Group Collaboration

DESCRIPTION

There was a required process of combining design, fabrication, and teamwork in architecture. We were tasked with creating a water collection system and metal racks, requiring us to brainstorm, prototype, and refine our designs while working with material and fabrication constraints.

Hands-on experience with CNC machining, welding, and precision measuring helped us bring our ideas to life. These tools taught us how design decisions directly impact construction, reinforcing the connection between concept and fabrication.

Collaboration was essential, as we worked closely to solve challenges and improve our designs. Each team member’s input shaped the final outcome, highlighting

DESCRIPTION

This semester has been a pivotal point in my architectural education, allowing me to grow both technically and professionally. One of the most rewarding aspects was working alongside my peers on various group projects. These tasks required us to brainstorm, problem-solve, and communicate effectively, which strengthened my ability to collaborate as part of a team. Collaborating on projects like the water collection system and metal racks showed me how much I value learning from others’ perspectives, which ultimately shaped our collective success. It became clear that teamwork is a vital skill in architecture, as multiple minds can offer innovative solutions that one person might not have thought of alone.

Throughout the semester, I also developed a deeper understanding of the practical side of architecture, especially the role of machinery in bringing ideas to life. The hands-on experience with tools like the CNC machine and welding equipment in the studio was both challenging and exciting. I loved learning how these machines can transform raw materials into functional components that fit perfectly into our designs. Working with the machinery opened my eyes to the technical processes behind architectural construction and helped me understand how design decisions influence the building process.

The challenges we faced when working with materials and machinery also taught me the importance of precision and patience in architecture. Learning how to measure accurately, adjust for mistakes, and work with different materials gave me valuable insights into the realities of construction. It also made me realize how architectural design and fabrication are deeply interconnected. Each decision we made during the design phase had real-world implications, and seeing those designs come to life in the metal shop and through the water collection rack system reinforced how much I value the hands-on aspect of architecture.

Overall, this semester was not only a time for technical growth but also for personal development as a team member. I learned how to navigate challenges, communicate effectively with my peers, and contribute to a collective effort. The experience of working in a collaborative environment alongside talented individuals has given me a newfound appreciation for the group dynamics in architecture. I feel more confident in my ability to contribute to a team, tackle challenges with others, and find solutions that lead to successful outcomes.

HOME WORKS USA

OUR CLIENT: FRANKIE FOSTER-DAVIS

HOME WORKS USA : WHAT IS IT’S PURPOSE?

Home Works USA Community is designed to help emerging adults confidently transition from foster care into thriving adulthood. According to the National Foster Youth Institute, nearly 20% of young adults in foster care become homeless the moment they turn 18; moreover 50% of America’s homeless population has spent time in foster care. Given these statistics, Home Works USA is on a mission to create new pathways to affordable housing and independent living.

HOME WORKS USA : THE VISION

Home Works USA is developing a replicable model community to provide safe, stable, and affordable housing for emerging adults who have aged out of foster care. We believe “Home Works, Nature Helps, and Services Matter.” In addition to stable and affordable housing, we add the right supports, and the healing impact of nature to enhance our residents’ well-being as they prepare for their lives ahead.

HOME WORKS USA : NEEDS FOR THE PROJECT

1.

2.

3.

4.

CREATIVE GENESIS CREATIVE GENESIS

EXPERIENCES ABROAD

SUMMER 2025

I had the incredible opportunity to study abroad in Northern Europe through the University of Kansas. The program took me to Finland, Sweden, and Denmark, where I was immersed in a rich architectural and cultural journey. Each country offered unique lessons in design, urbanism, and community, broadening my perspective on how architecture responds to culture, history, and environment.

From Finland’s thoughtful integration of nature into everyday spaces, to Sweden’s emphasis on social inclusivity in design, to Denmark’s innovative approaches to sustainability and urban life, I gained valuable insight into how architecture can shape and reflect society. The experience was both eye opening and inspiring, pushing me to think beyond traditional approaches and to appreciate the subtle yet powerful ways culture informs architecture.

I am grateful to the University of Kansas for making this experience possible.

ndperez654@gmail.com

913.645.3760

www.linkedin.com/in/ndperez645

https://issuu.com/ndperez.com

Turn static files into dynamic content formats.

Create a flipbook
Issuu converts static files into: digital portfolios, online yearbooks, online catalogs, digital photo albums and more. Sign up and create your flipbook.