Natalie Perez Architecture Portfolio 2024

Page 1


NATALIE PEREZ

ARCHITECTURE PORTFOLIO

Hello, My name is Natalie Perez. Thank you so much for taking the time to look at my architecture portfolio. I truly appreciate your effort in reviewing my work and providing valuable feedback. Your insights are incredibly important to me as I continue to grow and develop my skills in this field. I am grateful for your support and encouragement, and I look forward to incorporating your suggestions into my future projects. Thank you once again for your time and attention!

NATALIE PEREZ

CONTACT

Ndperez645@ku.edu

Ndperez645@gmail.com 913.645.3760

EDUCATION

University of Kansas

Seeking Masters of Architecture ( M.Arch)

August 2022 - Current | Anticipated Graduation 2027

Shawnee Mission South High School

Overland Park, Kansas | 2022 Graduate

INVOLVMENT

KU AIAS

Member | 2023-Present

EXPERIENCE

KC Forged & Custom Iron Works

Kansas City, Kansas | Oct. 2019-Current

Contact: Juan Pablo

Ministerios Un Nuevo Pacto Kansas City, MO | May 2021- Current Volunteer Work | Contact: Head Pastor

REFERENCES

Todd Achelpohl | Professor

University of Kansas | Lawerence, Ks 816.213.0587

Juan Pablo | Owner

KC Forged & Custom Iron Works | KCMO 913.645.4713

SKILLS

TECHNICAL SKILLS

Microsoft office, Sketchup, Enscape, Adobe photoshop, Adobe indesign, Adobe illustrator, hand drawing, painting, modeling

LEARNING

Autodesk Revit, Autocad

SOFT SKILLS

Time management , Flexibility, Reliability

SECOND YEAR

WETLANDS BIRDHIDE

SECOND YEAR

COLUMBARIA & MEDITATION CHAPEL

SECOND YEAR

PERSONAL WORKS

SECOND YEAR

01 KU WELCOME HERTIAGE CENTER

PROJECT BRIEF

Welcome Center | 16,400 sqft

Professor Hugo Sheward | Spring 2024

Collaboritve / Individual Studio Project

Lawerence, Kansas

PROGRAMS

USED

Sketchup

Enscape

Adobe Photoshop

Adobe Illustrator

DESCRIPTION

There was a required design development for a KU Welcome Heritage Center building. This building is to be perceived as the entry point to KU Lawerence Campus. For this design, the landscape was created first and a site analysis was conducted. Then the KU Welcome Heritage Center building was adapted to the landscape to further enhance the new entry point to KU Lawerence Campus. The KU Welcome Heritcage Center building is a place where it provides a space to receive visitors and community. It should also inform the history and the future of KU. The external and internal space should have a connection to the site and its surroundings.

THE THEORY OF KU CAMPUS

In this project, I embarked on a journey to identify an entrance for the University of Kansas that would truly capture the essence of the campus. Jayhawk Blvd serves as a magnificent spine for KU, and my goal was to pinpoint the heart of KU a place that symbolizes discovery, connection, and pride for alumni and students worldwide.

Exploring the Heart of KU:

Jayhawk Blvd, with its historical significance, inspired me. However, I sought a location that would transcend mere physical pathways and resonate with the spirit of KU. The heart of KU, I believed, should be more than just a thoroughfare it should encapsulate the university’s essence.

Identifying Landmarks:

My first task involved mapping out the significant landmarks that intersected with my chosen site.

Many of these landmarks were integral to KU’s identity, and their proximity to my site intrigued me.

The Majestic Campanile: Among these landmarks, the Campanile stood out. For countless Jayhawkers, passing under its arches marked a momentous achievement the completion of their degree. I focused on my site’s relationship with surrounding landmarks, emphasizing the Campanile’s role as a beacon of accomplishment.

Entrance and Perspective:

My site analysis extended beyond the Campanile. I considered how my chosen building would interact with the surrounding landmarks. Specifically, focusing in on the entrance from Naismith Drive a gateway that would welcome visitors, students, and alumni alike. Finally, I envisioned a view from the Campanile, gazing into the distance a perspective that encapsulated KU’s legacy and future.

In summary, my project aimed to create an unforgettable entrance a gateway that celebrated KU’s rich history, connected its community, and beckoned all to explore the boundless opportunities within.

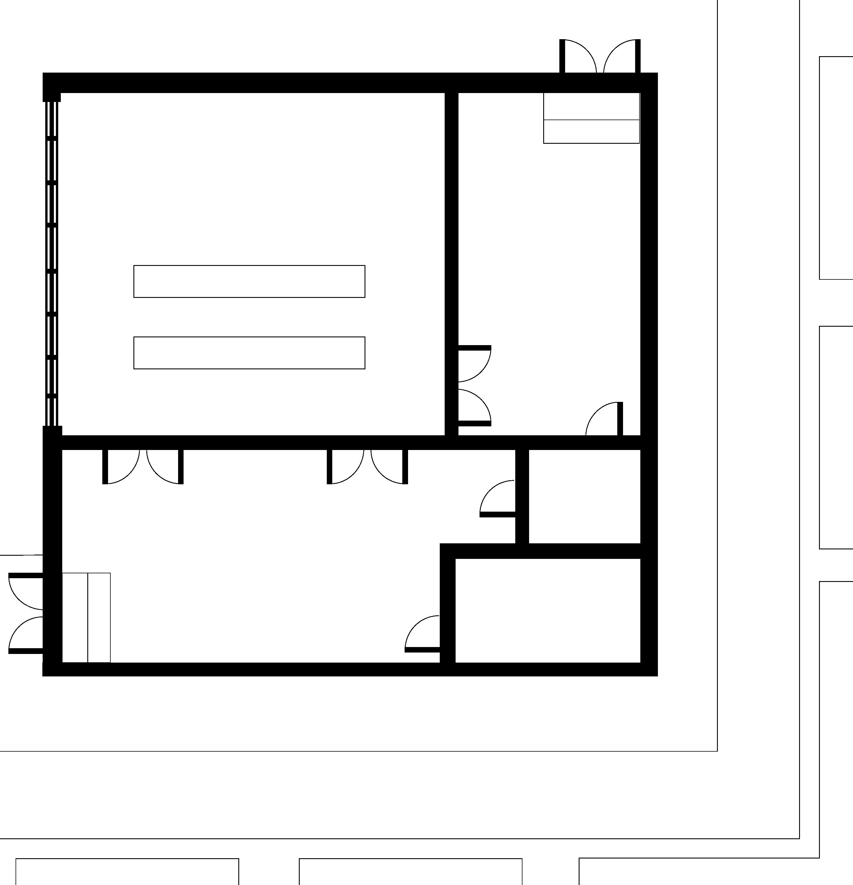
First Floor

1) Entrance

2) Lobby

3) Conference Room Entrance

4) Conference Room

5) Cafe/store

6) Restrooms

7) Private Bathroom

8) Private Office

9) Janitorial/Storage Room

10) Elevator

11) Elevator

12) Exit

Second Floor

13) Past “Room”

14) Location “Room”

15) Future “Room”

16) Study/Meeting “Room”

17) Exit- second floor

SCALE 3/32” = 5’0

SCALE 1/8” = 5’0

02 BAKER WETLANDS BIRDHIDE

PROJECT BRIEF

Bird Hide | 6-26 wildlife observers

Professor Todd Achelpohl | Fall 2023

Individual Studio Project

Lawerence,Kansas

SKILLS USED

Handmade Architecture Model

Conceptual thinking and Diagramming

Adobe Illustrator

DESCRIPTION

There was a required process of beginning to conceptually think as an architect. We were given the task of creating a space that would connect to the Baker Wetlands and create it as a bird hide for observing using natural and local material in the area. The design also needed to accommodate all types of observers and have ADA-acommodated (Americans with Disabilities Act) entrances. The area and given space were up to us to choose. Having designated the area that would benefit the site the most to create a space of interaction for people that come to the wetlands to interact with nature that occurs there and to create a space of sight seeing that disguises a person from the animal’s nearby, but still creating an interaction with the hide and the habitat around it.

CONCEPTS

During the process of brainstorming, there was a focus on creating the hide to benefit any birdwatchers in the hide. Since that was the objective, there was the initial idea of making the hide to become duel use for people inside. So they could have the ability to look at the habitat that surrounds them within the hide.

03 WALL SYSTEM

PROJECT BRIEF

Wall System | 1st year

Professor Anne Patterson| Fall 2022

Individual Studio Project Phoenix, Arizona

PROGRAMS USED

Architecture Hand modeling

Adobe Photoshop

DESCRIPTION

For the wall system, we had to conduct study on a building that we were allowed to utilize before making a single sheet model. Following the modeling and finalization of the single sheet’s given form, the wall system was formed, with an emphasis on lighting, rhythm and creating a cohesive whole as a structure.

BIOMEDICAL SCIENCES PARTNERSHIP BUILDING

UNIVERSITY OF ARIZONA

FINAL MODEL

The final model was created using a single sheet and concentrated on the original building. Next, the wall system concept was used, and a pattern was used to determine the outcome of the rhyme used for the wall system model.

04

COLUMBARIA AND MEDITATION CHAPEL

PROJECT BRIEF

Chapel | 75 People /1400 Columbaria Vaults

Professor Todd Achelpohl | Fall 2023

Individual Studio Project Lawerence, Kansas

PROGRAMS USED

Sketchup

Enscape

Adobe Photoshop

Adobe Illustrator

DESCRIPTION

The Non-Denominational Meditation Chapel and Columbarium must be designed close to and in agreement with Pioneer Cementary. It must be designed with the future in mind, with plans for inurnment and a small meeting area for meditation and reflection in addition to vaults.

05 PERSONAL WORKS

OIL PASTEL PORTRAIT

WATERCOLOR TURTLE PORTRAIT

SKETCHES

ndperez454@gmail.com 913.645.3760

www.linkedin.com/in/ndperez645 https://issuu.com/ndperez.com

Turn static files into dynamic content formats.

Create a flipbook
Issuu converts static files into: digital portfolios, online yearbooks, online catalogs, digital photo albums and more. Sign up and create your flipbook.
Natalie Perez Architecture Portfolio 2024 by ndperez.com - Issuu