E PORTFOLIO OF DWD BY NANDITA KINANTHY

Page 1

MARCH
NANDITA KINANTHY DWD PORTFOLIO
2023

REVISIONTRACKING

DRAWINGLIST SHEETNAME REV DATE DESCRIPTION ISSUE DWD_NK_FLP_01 FURNITURELAYOUTPLAN 6 28-May-23NO DWD_NK_SOP_02 SETTINGOUTPLAN 5 28-May-23NO DWD_NK_RCP_03 REFLECTEDCEILINGPLAN 5 28-May-23NO DWD_NK_LLP_04 LIGHTINGLOOPINGPLAN 5 12-Jun-23NO DWD_NK_FFP_05 FLOORFINISHESPLAN 2 11-Jun-23NO DWD_NK_SOA_06 SCHOOLOFACCOMODATION 2 28-May-23NO DWD_NK_SCA_07 SECTIONA-A 3 18-Jun-23NO DWD_NK_BES_08 BESPOKEPLANSECTIONANDELEVATION 1 02-Jul-23NO - SCHEDULEOFFINISHES - 09-Jul-23 - NO - SCHEDULEOFFIXTURES,FITINGS&EQUIPMENT - 09-Jul-23NO - BILLOFQUANTITIES 1 03-Jul-23NO

SCHEDULEOFACCOMMODATION

AREA NO.OF OCCUPANTS NO.OF ROOM AREAOFONEROOM(M²)TOTALAREAOFROOM(M²) 1.HOTTALKAREA 2.KITCHENAREA 3.VENDINGMACHINEAREA 4.MESSTODRESSAREA 5.MANIACTROOM 6.D/B 44 6 6 6 32 4 1 1 1 1 145.90 78.20 145.90 50.10 50.10 14.5 78.20 50.10 50.10 58 28MAY2023 NOTE CLIENT ARCHITECT INTERIOR DESIGN CONSULTANT QUANTITY SURVEYOR PROJECT NAME DRAWINGTITLE: SCALE:CHECKEDBY: DRAWINGNO: DATE: DRAWNBY:NANDITAKINANTHY MS.SINAI SCHEDULEOFACCOMODATION PROPOSEDINTERIOR RENOVATIONOF1-NITA BANGCHAN BESTLEADERSDN.BHD MANIACSDN.BHD NANDITAKINANTHYSDN.BHD HADEURRSDN.BHD DWD_NK_SOA_06 REVNO: 02 1 1 5.06 5.06

CLIENT ARCHITECT INTERIOR DESIGN CONSULTANT

QUANTITY SURVEYOR

PROJECT NAME

WALLLEGEND

LOGO DESCRIPTION

BRICKWALLNIPPONPAINTEASYWASHINTERIOR COLLECTIONCODE:OW1002P(SNOWWHITE) CONTAINERPANELWALL

DOORLEGEND

LOGO DESCRIPTION QUANTITY

2090MMX2100MMDOUBLEPANELWOODENDOOR 1

1600MMX2100MMDOUBLEPANELWOODENDOOR 1

1750MMX2100MMDOUBLEPANELWOODENDOOR 1

1960MMX2100MMDOUBLEPANELGLASSDOOR 4

SETINGOUTLEGEND

LOGO DESCRIPTION QUANTITY EXISTINGWALLTOBEDEMOLISHED WALLTOBEPROPOSED EXISTINGWALL

DRAWINGTITLE:

SETTINGOUTPLAN

SCALE:

PROPOSEDINTERIOR RENOVATIONOF1-NITA DWD_NK_SOP_02

SCALE:ASSHOWN MS.SINAI

CHECKEDBY:

DATE: DRAWNBY:NANDITAKINANTHY

NOTE
DRAWINGNO: REVNO:
BANGCHAN BESTLEADERSDN.BHD MANIACSDN.BHD NANDITAKINANTHYSDN.BHD HADEURRSDN.BHD
28MAY2023
05
37002 4000 1800 15200 16002

PROPOSEDINTERIOR RENOVATIONOF1-NITA

FIXEDFURNITURELEGEND

LOGO DESCRIPTION QUANTITY

1600MM(DIA)X2150MM(H)STAINLESSSTEELDRINK DISPENSER 1

150MM(R)X300MM(W)ALUMINUMFOODLOCKER 8

1800MM(DIA)6WOODENSEATING 2

1360MM(L)X40MMTHK5METALLAMPSETINPAINT COATED 2

1150MM(DIA)X50MMTHKX850MM(H)WOODENTABLE INVINYLFINISH 4

300MM(W)X442MM(L)3SETWOODENFOOD DRAWERWVINYLFINISH 1

930MM(R)X60MMTHKROUNDWOODENTABLE 1

284MM(R)X60MMTHKLEVELEDWOODENSHELF 1

560MM(DIA)X3100MM(H)ALUMINIUMLAVALAMP 1

300MM(DIA)XROUNDUPHOLSTERYCOUCH 1

815MM(W)X150MM(L)WOODENMAKEUPTABLE 4

40MM(DIA)X2000MM(H)PAINTEDALUMINUMLAMP ANDHANGER 4

LOOSEFURNITURELEGEND

LOGO DESCRIPTION QUANTITY

576MM(DIA)X40MMTHKX500MM(H)MAPLEWOOD CHAIRWVARNISHFINISH 32 2470MMX500MMROUNDEDGESOFAINVELVET FINISH 1

1510MMX500MMROUNDEDGESOFAINVELVET FINISH 1

340MM(DIA)X40MMTHKX60MM(H)WOODENCHAIR 4

508MM(DIA)X60MMTHKX900MM(H)CHERRYWOOD TABLEINVARNISHFINISH 12

1230MM(DIA)X50MMTHKX820MM(H)OAKWOOD

TABLEWITHVARNISHFINISHW100MM(DIA) ALUMINUMROUNDLEG 1

DOORLEGEND

LOGO DESCRIPTION QUANTITY

2090MMX2100MMDOUBLEPANELWOODENDOOR 1

1600MMX2100MMDOUBLEPANELWOODENDOOR 2

1750MMX2100MMDOUBLEPANELWOODENDOOR 1

1960MMX2100MMDOUBLEPANELGLASSDOOR 4

DRAWINGTITLE:

FURNITURELAYOUTPLAN

SCALE:ASSHOWN

CHECKEDBY:

DRAWINGNO:

DATE:

DRAWNBY:NANDITAKINANTHY MS.SINAI

28MAY2023 NOTE CLIENT ARCHITECT INTERIOR DESIGN CONSULTANT QUANTITY SURVEYOR PROJECT NAME
BANGCHAN BESTLEADERSDN.BHD MANIACSDN.BHD NANDITAKINANTHYSDN.BHD HADEURRSDN.BHD DWD_NK_FLP_01 REVNO: 06 37002 4000 1800
23350 640 5125 4048 7197

NOTE CLIENT ARCHITECT INTERIOR DESIGN CONSULTANT

QUANTITY SURVEYOR

PROJECT NAME

PROPOSEDINTERIOR RENOVATIONOF1-NITA

CEIILINGMATERIALLEGEND

DRAWINGTITLE:

REFLECTEDCEILINGPLAN

SCALE:ASSHOWN

CHECKEDBY:

DRAWINGNO:

DATE:

DRAWNBY:NANDITAKINANTHY MS.SINAI

28MAY2023
BANGCHAN BESTLEADERSDN.BHD MANIACSDN.BHD NANDITAKINANTHYSDN.BHD HADEURRSDN.BHD DWD_NK_RCP_03 REVNO: 05 37002 4000 1800
LOGO DESCRIPTION METALCOATEDINPAINT PLASTERCEILING M&ELEGEND LOGO DESCRIPTION QUANTITY AIRCONDITIONERWALLMOUNTED 7 EMERGENCYLIGHT 9 FIREDETECTOR 14 WIFI 1 LIGHTINGLEGEND LOGO DESCRIPTION QUANTITY 290MM(DIA)DOWNLIGHT 48 1085MM(DIA)HANGINGLIGHT 6 23350 7197 LIGHTINGCODELEGEND LOGO DESCRIPTION QUANTITY 290MM(DIA)DOWNLIGHT 48 1085MM(DIA)HANGINGLIGHT 6 560MM(DIA)LAVALAMP 1

LIGHTINGLEGEND

CLIENT ARCHITECT INTERIOR DESIGN CONSULTANT

QUANTITY SURVEYOR

PROJECT NAME

PROPOSEDINTERIOR RENOVATIONOF1-NITA

LIGHTINGCODELEGEND

DRAWINGTITLE:

LIGHTINGLOOPINGPLAN

SCALE:ASSHOWN

CHECKEDBY:

DRAWINGNO:

DATE:

DRAWNBY:NANDITAKINANTHY MS.SINAI

28MAY2023
NOTE
BANGCHAN BESTLEADERSDN.BHD MANIACSDN.BHD NANDITAKINANTHYSDN.BHD HADEURRSDN.BHD DWD_NK_RCP_03 REVNO: 05
LOGO DESCRIPTION QUANTITY 290MM(DIA)DOWNLIGHT 48 1085MM(DIA)HANGINGLIGHT 6 LIGHTINGLOOPING 560MM(DIA)LAVALAMP 1 SINGLEGANGSWITCH 3 DOUBLEGANGSWITCH 3 TRIPLEGANGSWITCH 1 23350 37002 4000 1800 7197
LOGO DESCRIPTION QUANTITY 290MM(DIA)DOWNLIGHT 48 1085MM(DIA)HANGINGLIGHT 6 560MM(DIA)LAVALAMP 1

NOTE CLIENT ARCHITECT INTERIOR DESIGN CONSULTANT

QUANTITY SURVEYOR

PROJECT NAME

PROPOSEDINTERIOR RENOVATIONOF1-NITA

FLOORFINISHESLEGEND LOGO DESCRIPTION

CONCRETEWITHEPOXYFINISH

750MMX750MMX10MMTHKCERAMICTILEWITH MATTEFINISH

800MMX400MMX10MMTHKPVCSTICKEDBOARDIN WOODMOTIVE

DRAWINGTITLE:

FLOORFINISHESPLAN

SCALE:ASSHOWN

CHECKEDBY:

DRAWINGNO:

DATE:

DRAWNBY:NANDITAKINANTHY MS.SINAI

11JUNE2023
BANGCHAN BESTLEADERSDN.BHD MANIACSDN.BHD NANDITAKINANTHYSDN.BHD HADEURRSDN.BHD DWD_NK_FFP_05 REVNO: 02 23350 37002 4000 1800
7197

CEIILINGMATERIALLEGEND

LOGO DESCRIPTION

METALCOATEDINPAINT

PLASTERCEILING

WALLLEGEND

LOGO DESCRIPTION

BRICKWALL

CONTAINERPANELWALL

NOTE CLIENT ARCHITECT INTERIOR DESIGN CONSULTANT

LOOSEFURNITURELEGEND

576MM(DIA)X40MMTHKX500MM(H)MAPLEWOOD CHAIRWVARNISHFINISH 32

508MM(DIA)X60MMTHKX900MM(H)CHERRYWOOD TABLEINVARNISHFINISH 12

FLOORFINISHESLEGEND

LOGO DESCRIPTION

750MMX750MMX10MMTHKCERAMICTILEWITHMATTEFINISH

FIXEDFURNITURELEGEND

1800MM(DIA)6WOODENSEATING 2

1360MM(L)X40MMTHK5METALLAMPSETINPAINT COATED 2

1150MM(DIA)X50MMTHKX850MM(H)WOODENTABLE INVINYLFINISH 4

300MM(W)X442MM(L)3SETWOODENFOOD DRAWERWVINYLFINISH 1

930MM(R)X60MMTHKROUNDWOODENTABLE 1

284MM(R)X60MMTHKLEVELEDWOODENSHELF 1

QUANTITY SURVEYOR

PROJECT NAME

PROPOSEDINTERIOR RENOVATIONOF1-NITA

DRAWINGTITLE:

SECTIONA-A

SCALE:ASSHOWN

CHECKEDBY:

DRAWINGNO:

DATE:

DRAWNBY:NANDITAKINANTHY MS.SINAI

18JUNE2023
BANGCHAN BESTLEADERSDN.BHD MANIACSDN.BHD NANDITAKINANTHYSDN.BHD HADEURRSDN.BHD DWD_NK_SCA_07 REVNO: 03 16002 8003 24003 3425
LOGO DESCRIPTION QUANTITY
QUANTITY
LOGO DESCRIPTION
NOTE CLIENT ARCHITECT INTERIOR DESIGN CONSULTANT QUANTITY SURVEYOR PROJECT NAME
DRAWNBY: REVNO:
DRAWINGTITLE: CHECKEDBY: DRAWINGNO: DATE:

ADDRESS:

73,JalanPJS11/7,BandarSunway, 46150PetalingJaya,Selangor

Tel:0145377019

Email: nanditakinan@gmail.com

QUOTATION

DATE:2JUly2023

QUOTATION

CUSTOMERID:12345

BILLOFQUANTITIES

QUOTATIONTO:

BANGCHANBESTLEADERSDN

BHD

44,JalanSS15/4b,Ss15,47500

SubangJaya,Selangor Tel:0145377018Email: aussiecb97@gmail.com

ATTENTION:RENOVATIONFORNANDITAKINANTHYSDN.BHD

GROUNDFLOORZONE3

ADDRESS:

73,JalanPJS11/7,BandarSunway, 46150PetalingJaya,Selangor

Tel0145377019

Email: nanditakinan@gmail.com

QUOTATION

DATE:2JUly2023

QUOTATION:

CUSTOMERID12345

TERMSANDCONDITIONS

1.Validity:14Days

2.Periodofcompletion:60days(refertodownpaymentuponconfirmationoforder).

3.Alldimensionsaresubjectedtofinalsitemeasurement.

4.Variationorder:AnyalternationnotspecifiedinthequotationwillbeissuedunderVariationOrder(VO)invoice.

5.PaymentTerms:

- TheCONTRACTSUMRM

StageIUponconfirmationofproject/service

StageIIProgressClain(Installationoffixtures&fittings).

StageIIIProgressClaim(Completionoffixtures&fittings)

StageIVFinalPayment(Fullcompletionofallworks)

- Services/worksshallcommerceuponreceiptofpaymentofeachphaseexceptoffinalphase.Timeframeofworkhasbeenagreedbyboth.

- AlloutstandingamountsmustbepaidwithinTEN(10)workingdaysafterthehandoverofsite(excludeV.Operiod).ShalltherebeanydelayoftheClient andNANDITAKINANTHYSDN.BHD.

- NANDITAKINANTHYSDN.BHDdonotholdanyresponsibilitiesindelayofworkfromtheagreedtimeframethatisresultedbypaymentissues.

- Paymentnotmadewithinabovethementionedtimeframewillcaryinterestattherateof2%permonth(30days)untilfullpaymentismade.

- Chequeshouldbecrossed"A/CPayee"andmadepayabletoNANDITAKINANTHYSDN.BHD.

- NANDITAKINANTHYSDN.BHDshallnotinanycircumstancesorforanyreasonwhatsoeverbeliableforanylosses,damages,cost,expenses,including withoutlimitations,direct,indirect,specialorconsequentialdamagesoreconomiclossesarisingfromanysuchfailuretoperform.

6.Design/Works/ServiceDisclaimer

- NANDITAKINANTHYSDN.BHDcannotbeheldresponsiblefordesigns/works/servicethatmaylaterbeundesirableorcauseinconvenience.TheClient understandthatalldesigners/contractorInterpretstheClient'srwquirementandwishes. Howeveranydesigns/worksthatarenotdoneaccordingtoagreedasperquotedshallberectifiedaccordingbyNANDITAKINANTHYSDN.BHD.

7.ProjectAcess

tosupplyexistingandlabourtolaySELECTED 750MMX750MMX10MMTHKCERAMICTILEWITH MATTEFINISH(CODE:NT18-028FLBRAND: NATIONALTILES)

tosupplyallmaterialsandlabourtolaySELECTED 800MMX400MMX10MMTHKPVCSTICKEDBOARD INWOOD(CODE:BW005BRAND: KARPETVELVETMURAH)

W1 tosupplyallmaterialsandpaintNIPPONPAINT EASYWASHINTERIORCOLLECTIONCODE:OW 1002P(SNOWWHITE) 232.5000 m2

LOOSEFURNITUREWORKS

LF1 TOSUPPLYANDINSTALL 576MM(DIA)X40MMTHKX500MM(H)MAPLEWOOD CHAIRWVARNISHFINISH 32 m2

LF2 TOCUSTOMISEDESIGNEDROUNDEDGESOFA SEAT2470MMX500MMINVELVETFINISH 1 m2

LF5 LF5:SELECTED508MM(DIA)X60MMTHKX900MM(H) CHERRYWOODTABLEINVARNISH 12 m2

LF6

LF6:SELECTED1230MM(DIA)X50MMTHKX820MM (H)OAKWOODTABLEWITHVARNISHFINISHW 100MM(DIA)ALUMINUMROUNDLEG 1 m2

LIGHTINGWORKS

L1 tosupplymaterialsandlabourtoinstall290MM(DIA) DOWNLIGHT(CODE:911401803080BRAND: PHILIPS) 48 nos

L2 tosupplymaterialsandlabourtoinstall1085MM(DIA) HANGINGLIGHT(CODE:104.900.84BRAND:IKEA) 6 nos

- ClientwilprovideNANDITAKINANTHYSDN.BHDwithaccesstotheprojectsandallinformationthatmayberequiredtocompletetheproject.Failureto dosobytheClientprovidesNANDITAKINANTHYSDN.BHDtherighttoterminateservice(withawrittennotice)andcollectoutstandingbalances.

8.TerminationofService

- NANDITAKINANTHYSDN.BHDhastherighttotermiateorsuspendallworks/services,uponwrittennotice,iftheClientfailstomakepayment/defaultin accordancewiththementionedtermsandconditionsherin.

- TerminationshallbewithoutprejudicetoanyandallotherrightsandremediesofwhatsoeverandClientshallremainliableforall.

- WithinFIVE(5)workingdaysofterminationofourservicesforanyreason,NANDITAKINANTHYSDN.BHDshallsubmitClientanitemizedinvoiceliability orobligationstowhatsoeverforanyfurtherfeesorexpensesarisinghereunser.

9.ProjectTImeFrame&FeesforExtraService

- Reasonabletimefromfordrawingsaretobediscussedandagreedbybothparty.

- ACTopviewInteriorDesignandVeritasDesignGroup

- Estimatedtimeframefortheentireproject'stimeframeinclusiveofrevisionperiodwillbeamaximumofTWO(2)MONTHSstartsfromappointment.

- Ifprojectexceedtheestimatedtimeframe,anadditionalminimumfeeofRM50permonthwillbechargedasconsultationfeesonlyexcluded reimbursement,claimandsitevisitcharges.Subjecttotheproject&remainingjobscope.

10.SiteVisit,Inspection,&Travelling.

- SiteVisitorinspectionservicesthatrequiresNANDITAKINANTHYSDN.BHDtotravelbyair(overseas,Sabah&Sarawak)aresubjectedtoclaimall.

11.AcknowledgementofQuotedFees,Terms&Conditions

- Uponreceivingpaymentaccordingtothepercentagestatedabovewillacknowledgementthatyouhaveread&agreedonoutjobscopeofdesign/work services,fees,terms&conditions.THisquotationshallbetreatedasaconractlegallybindingoncebeingsigned.

- Englishlanguage/wordingsshallprevailandbeusedascontracttermsshallanydiscrepanciesariseduetothetranslation.

ISSUEBY:

ACKNOWLEDGEDANDAGREEDBY:

NANDITAKINANTHYSDN.

SIGNATUREWITHICNUMBER

BHDDIRECTOR
NO CODE DESCRIPTION QTY UNIT RATE(RM) TOTAL(RM) 1 CEILINGWORKS CM1 tosupplymaterialsandlabourtostructuretheplaster ceilingc/wwhiteemulsionpaint 556.0700 m2 -2 TILINGWORKS FL1 tosupplyandtopaintepoxyfinishtoconcreteflooring 145.9000 m2 - -
FL2
366.5700 m2 -FL3
78.2000 m2 -3 PAINTINGWORKS
-4
- -
- -
5

FLOORFINISH

SCHEDULEOFFINISHES

ROOM ANVIL

750MMX750MMX10MMTHKCERAMICTILE WITHMATTEFINISH 366.5700

NEWKITCHENAND HOTTALKAREA NATIONALTILES

WALLFINISH

800MMX400MMX10MMTHKPVCSTICKED BOARDINWOODMOTIVE 12-Jun-23

NEWMESSTO DRESSAREA KARPETVELVETMU RAH

BRICKWALLNIPPONPAINTEASYWASH INTERIORCOLLECTIONCODE:OW1002 P(SNOWWHITE)

NEWMESSTO DRESSAREA,NEW KITCHENAREA ANDNEWMANIACT ROOM

NIPPONPAINT

CONTAINERPANELWALL 231.3000

NEWHOTTALK AREAANDNEW VENDINGMACHINE AREA ANCDISTRIBUTION

CEILINGFINISH

NEWKITCHEN AREA,NEWHOT TALKAREAAND NEWVENDING MACHINEAREA

CROWN

CODE IMAGE DESCRIPTION AREA(m2) LOCATION SUPPLIER
NEWMANIACT
CONCRETEWITHEPOXYFINISH 145.9000
CODE IMAGE DESCRIPTION AREA(m2) LOCATION SUPPLIER
232.5000
CODE IMAGE DESCRIPTION AREA(m2) LOCATION SUPPLIER
556.0700
PLASTERCEILINGC/WWHITEEMULSION PAINT

SCHEDULEOFFURNITURE,FIXTURESANDEQUIPMENT

SINGLEGANGSWITCH 3

DOUBLEGANGSWITCH 3

NEWKITCHEN AREA,NEWHOT TALKAREAAND NEWVENDING MACHINEAREA

TRIPLEGANGSWITCH 1

NEWKITCHEN AREA,NEWHOT TALKAREAAND NEWVENDING MACHINEAREA

CODE IMAGE DESCRIPTION QTY LOCATION SUPPLIER PRICE 290MM(DIA)DOWNLIGHT 48 ALLAREAS PHILLIPS RM23.90
NEWKITCHEN AREA,NEWHOT TALKAREAAND NEWVENDING MACHINEAREA ETSY RM315.17 560MM(DIA)LAVALAMP 1 NEWMANIACT ROOM ALIBABA $514 DAIKINFTV28PAIRCONDITIONERWALL MOUNTED 7 ALLAREAS DAIKIN RM950 EMERGENCYLIGHT 9 ALLAREAS DOUBLE.CLICK RM62 FIREDETECTOR 14 ALLAREAS DAYTECH RM47
1085MM(DIA)HANGINGLIGHT 6
TOTOLINK RM510.75
NEWTOTOLINKA7000RAC2600GIGABIT DUALBAND2.4Ghz5GhzWIRELESSWIFI UNIFIROUTER 1 NEWKITCHEN AREA,NEWHOT TALKAREAAND NEWVENDING MACHINEAREA
NEWMANIACT
EZYELECTRICAL HARDWARE RM5.40
ROOMANDNEW MESSTODRESS AREA
EZYELECTRICAL
HARDWARE RM5.40
EZYELECTRICAL
HARDWARE RM7.60

INDIVIDUAL REFLECTION

In this module, I improved a lot on my knowledge on technical drawing. I realized as I am drawing that little details matters as the revision has been done multiple times. The UBBL really helps me on the right track for drawing and guided me as well.

UBBL Usage: In UBBL 225. Detecting and extinguishing fire, it is stated that ‘Every building shall be provided with means of detecting and extinguishing fire and with alarms together with illuminated exit signs in accordance with the requirements as specified in the Tenth Schedule to these By-laws.’

I have put up a fire detector in every space and also an emergency light. I put it in a position where it might cause a fire especially like the kitchen the surroundings such as the furniture are loose so therefore it is easy for the user to evacuate when there is an emergency.

Material Selection and Application: I realized that the materials we chose reflects the ambience such as a lot of my space use steel material so therefore it looks like its glistening as it is reflective. The colors are also bold so the interior makes it feel to be motivated.

Sustainability, Green Design and Efficiency: Since our design was locked even though in our IAD module have improved, my space is lacking green design because there are no windows (in IAD have windows now) it would be better to let the natural light in meaning less use of artificial lights. But the lights are all LED which saves power more than regular lighting.

ASSIGNMENT 2 : SUSTAINABLE WORK HUB

NAME : NANDITA KINANTHY

ID : 0344836

TUTOR : MS. FATIMA

PROGRAMME : DETAILINGS + WORKING DRAWINGS

SEMESTER : MARCH - AUGUST 2023

REVISIONTRACKING

DRAWINGLIST SHEETNAME REV DATE DESCRIPTION ISSUEINDIVIDUALPRECEDENTSTUDIES 0 03-May-23 - NO WFH_DWD_NK_FFP_01 FIRSTFLOORLAYOUTPLAN 3 03-May-23 - NO WFH_DWD_NK_SC_02 SECTIONC-C 3 03-May-23 - NO WFH_DWD_NK_EL_03 INTERNALELEVATION3 0 20-May-23 - NO WFH_DWD_NK_BS3_04 BESPOKEPLAN,SECTIONANDELEVATION 3 03-May-23 - NO - INDIVIDUALUBBLANDFIREREQUIREMENT 0 20-May-23 - NO - SCHOOLOFACCOMODATION 0 20-May-23 - NO DWD_FYF_DS_06 DOORSCHEDULE 0 20-May-23 - NO DWD_HSJ_DD_07 WINDOWSCHEDULE 0 22-May-23 - NO - SCHEDULEOFFINISHES 0 20-May-23 - NO - FURNITURE,FITTINGSANDEQUIPMENTSCHEDULE 0 21-May-23 - NO - INDIVIDUALRFLECTION 0 21-May-23 - NO

MENARA MESINIAGA

PETALINGJAYA,MALAYSIA

AREA:6503SQM

YEAR STARTED AND COMPLETED : 1989-1992

ARCHITECTS : T. R. HAMZAH & YEANG SDN. BHD

MATERIALS

The Menara Mesiniaga is the headquarters for IBM in Subang Jaya near Kuala Lumpur. IBM asked the office of T.R. Hamzah & Yeang for a building which was a high-tech corpo rate showcase for their highly visible site and high-technology industry. Also, Ken Yeang designed this building as an example of his bioclimatic skyscraper practices and principles.

The building is equipped with 6 classrooms, a demo center, a 130seat au ditorium, lounge, cafeteria, and prayer rooms. The building boasts an excellent audiovisual system, complete lighting equipment, administrative and catering services and a large entry foyer for prod uct display and demonstration. It is wired for communications within itself and with its technology partners. They boast a “commitment to creating a facility that would be sensitive to and in harmony with the local environ ment, as well as one that reflected the company’s aspirations to be an industry leader.

SECTION PLAN
TUBE STEEL GLASS TILES

Mantab Workplace / S/LAB10

Kuala Lumpur, Malaysia

Architects: S/LAB10

Manufacturers : fr-one

SPACE PROGRAM: Reception, meeting area, Private Office, pantry ,Toilet, Rest room, Event Space, Display Gallery

MATERIALS

Mantab Workplace is one of S/LAB10’s latest endeavours. Comprising a complete internal overhaul of an existing bungalow the team was required to re-examine the office/workspace typology in a Southeast Asian climate and locality for a local property development company in Kuala Lumpur Malaysia in producing the final design scheme. The firm required not just a workspace for its growing team, but also a series of spaces for hosting and entertaining their clients. As such, the existing single unit, multi-storey former residence was transformed into a gleaming corporate hub for a private entity that seamlessly integrates business and leisure.

The design brief was unusual: to create a series of spaces within the building to suit a variety of purposes that ranged from business to social. Thus, S/LAB10 was tasked to revise and challenge the norms of an office typology. The new programme was to include offices for the company’s three directors as well a display gallery and numerous leisure spaces for hosting clients.

FLOOR PLAN

Acrylic Glass Wallpaper Oak Wood Wood Strip

NOTE:

LEGEND

CB1

1:10001

CLIENT: ARCHITECT: INTERIORDESIGNCONSULTANT: QUANTITYSURVEYOR:

PROJECTNAME:

PROPOSEDINTERIOR RENOVATIONWORKOFFIRST FLOOROFFICEAREAFOR MARK.

MARK 49JalanDedap18TamanJaya, JohorBahru,81100,Malaysia (607)3510817

MarkArber 301Jalan1/149DTamanSeri Petaling,KualaLumpur,57000, Malaysia 0390593857

COVENTGARDEN COLLECTION 1A12Jalan3/1ATamanKepong Indah,KualaLumpur,55100, Malaysia (603)21487294

Bud 31Jalan3KAW16Taman INTAN,Klang,Selangor,41300, Malaysia 0333442191

SIZE:600MMX200MMCERAMICFLOOR

TILE(BRAND:WHITEHORSE,Fog-W63009)

BIFOLDONTRACKW/GOLD-COPPER ALLOYCLADFINISH SIZE:8970MM(L)*9000MM(H)

D2

HEAVYDUTYALUMINIUMSLIDINGDOOR (SIZE:2985MM(L)*2300MM*H)

GREYEXPOXYFLOORINGWITHBLACK DOTTEXTURE 600MMX900MMPORCELAINGREYTILEW/ D4

D6 D7

OBSCURECLEARGLASSDOOR (SIZE:1300MM(L)*2300MM(H)

SINGLESLIDINGDOORW/MATEBLACK MARBLELAMINATEFINISH (SIZE:1630MM(L)*2300MM(H)

ALUMINIUMONTRACKBIFOLDDOOR (SIZE:3340MM(L)*2300MM(H)

OBSCURECLEARGLASSDOOR (SIZE:900MM(L)*2300MM(H)

STANDARDHINGEDWOODENDOOR (SIZE:850MM(L)*2300MM(H))

PREMIUMTHICKNESSTEMPEREDGLAZING

PREMIUMTHICKNESSTEMPEREDGLAZING

PREMIUMTHICKNESSTEMPEREDGLAZING &CASEMENTWINDOWW/WHITECOATED

PREMIUMTHICKNESSTEMPEREDGLAZING

PREMIUMTHICKNESSTEMPEREDGLAZING

PREMIUMTHICKNESSTEMPEREDGLAZING

PREMIUMTHICKNESSTEMPEREDGLAZING

PREMIUMTHICKNESSTEMPEREDGLAZING

PREMIUMTHICKNESSTEMPEREDGLAZING

D1 D3 D5 2 W1 W2 W3 W4 W5 W6 W7 W8 W9 W10

-----6

DRAWINGTITLE:

FIRSTFLOORLAYOUTPLAN

SCALE1:100

CHECKBY:MS.FATIMAH

DATE:03/MAY/2023

DRAWNBY:NANDITA KINANTHY

DRAWINGNO:WFH_DWD_NK_FFP_01

REVNO: 03 No. Date Description FPFIRSTFLOORPLAN
BACKYARD FOYER 7.36sqm POOL&DART AREA 16.30sqm VIP1/ ENTERTAINMENT 12.17sqm KITCHEN 7.40sqm DRIVER'S ROOM 5.33sqm POWDER ROOM 5.03sqm CONFERENCE 15.12sqm RECEPTION 15.99sqm OPEN LOUNGE 59.14sqm BAR AREA 15.14sqm BACKYARD BATH1 4.87sqm VIP2ROOM 10.35sqm HOUSEKEEPER'S ROOM 5.88sqm BACKYARD GARDEN/ ATRIUM 6.01sqm AB C D E 1 2 3 4 5 6 24086 16785 1395 874 2519 SEC A SEC A F 3539 REFERTODRAWING WFH_DWD_NK_BS3_04 3EL VOID VOID DN DN G H 886 2355 3740 1870 4860 5335 5040 7 8 9 1947 2851 700 2960 FL2 T4 T3 T2 T1 T5 T6 T3 T3 T7 T8 T9 T10 T11 T13 T14 T15 T25 T17 T16 T12 S1 S2 S2 S3 S3 S4 S4 S4 S5 S2 S6 S7 S3 S3 S3 S3 S8 S8 S8 S8 S8 S8 S8 S8 S8 S8 S2 S2 S9 S9 S11 S10 S10 S12 S6 S2 L4 L3 B1 B1 A2 A4 A6 A8 A7 A7 A11 A12 A1 A5 A3 A9 A10 L2 L5 L5 IP3 IP2 IP1 IP4 IP5 W1 W2 W3 W4 W5 W6 W7 W8 W10 W10 D1 D2 D4 D5 D6 D7 D7 D7 D7 D6 D3 FL2 FL1 FL4 FL3 FL5 FL2 FL1 FL1 FL1 FL1 FL1 FL1 FL1 FL2 FL3 FL4 S10 DESCRIPTION
SYMBOL NO FL2 FL1 FL4 FL3 FL5 1 1 1 1 1 PUREWHITEMETALLICEPOXYFLOORING
TIMBERSTAIRCASEFLOORINGW/Y-AXIS SURFACEW/GOLD-COPPERALLOYCLAD MATESURFACE 1 1 1 1 1
PREMIUMTHICKNESSTEMPEREDGLAZING

WL1 WL1 WL3 W2 CB1 D7

S4 S4 S4 S4

D2 S3 S3 S3 S3 S3

T4 T3

D7 T3

S12 B1 IP3

T14 S7 S3

NOTE: CLIENT: ARCHITECT: INTERIORDESIGNCONSULTANT: QUANTITYSURVEYOR:

PROJECTNAME: DRAWINGTITLE: SCALE1:75

FIRSTFLOORSECTION No. Date Description

COVENTGARDEN COLLECTION 1A12Jalan3/1ATamanKepong Indah,KualaLumpur,55100, Malaysia (603)21487294

CHECKBY:MS.FATIMAH

DATE:03/MAY/2023

DRAWNBY:NANDITA

SECFIRSTFLOORSECTIONC-C 1:75C 3000 24086 5040 886 18160 FFL3.0 BA G H
KINANTHY
MARK
DRAWINGNO:WFH_DWD_NK_SC_02
49JalanDedap18TamanJaya, JohorBahru,81100,Malaysia (607)3510817 MarkArber 301Jalan1/149DTamanSeri Petaling,KualaLumpur,57000, Malaysia 0390593857
Bud
31Jalan3KAW16Taman INTAN,Klang,Selangor,41300, Malaysia 0333442191
PROPOSEDINTERIOR RENOVATIONWORKOFFIRST FLOOROFFICEAREAFOR MARK. REVNO: 03

NOTE:

CLIENT: ARCHITECT: INTERIORDESIGNCONSULTANT: QUANTITYSURVEYOR:

PROJECTNAME:

PROPOSEDINTERIOR RENOVATIONWORKOFFIRST FLOOROFFICEAREAFOR MARK.

DRAWINGTITLE:

FIRSTFLOORINTERNALELEVATION

SCALE1:25

DATE:20/MAY/2023

MARK

49JalanDedap18TamanJaya, JohorBahru,81100,Malaysia (607)3510817

MarkArber 301Jalan1/149DTamanSeri Petaling,KualaLumpur,57000, Malaysia 0390593857

COVENTGARDEN COLLECTION 1A12Jalan3/1ATamanKepong Indah,KualaLumpur,55100, Malaysia (603)21487294

Bud 31Jalan3KAW16Taman INTAN,Klang,Selangor,41300, Malaysia 0333442191

CHECKBY:MS.FATIMAH

DRAWNBY:NANDITA KINANTHY

DRAWINGNO:WFH_DWD_NK_EL_03

REVNO: 00 No. Date Description FFL3.0 INTERNALELEVATION3 EL 1:25 3 T5 T6 S6 S7 S3 L3 T3 IP4 WL1 WL1
10MMTHKTWOTONEDTINTEDGLASS 1900 BPBESPOKEPLAN BESPOKEELEVATION BESPOKESECTIOND 1:25 1:25 1:2525 NOTE: CLIENT: ARCHITECT: INTERIORDESIGNCONSULTANT: QUANTITYSURVEYOR: PROJECTNAME: DRAWINGTITLE: SCALE:1:25
KINANTHY DRAWINGNO:WFH_DWD_NK_BS3_04 MARK 49JalanDedap18TamanJaya, JohorBahru,81100,Malaysia (607)3510817 MarkArber 301Jalan1/149DTamanSeri Petaling,KualaLumpur,57000, Malaysia 0390593857 COVENTGARDEN COLLECTION 1A12Jalan3/1ATamanKepong Indah,KualaLumpur,55100, Malaysia (603)21487294 Bud 31Jalan3KAW16Taman INTAN,Klang,Selangor,41300, Malaysia 0333442191 PROPOSEDINTERIOR RENOVATIONWORKOFFIRST FLOOROFFICEAREAFOR MARK. BESPOKEPLAN,SECTIONANDELEVATION REVNO: 03 No. Date Description 2100 350 20 ACRYLICFRAMEINBLACK 180MMX3850MMACRYLICINBLACK 10MMTHKTWOTONEDTINTEDGLASS 4300 180 1230 1040 SECB EL 2 SECB ACRYLICFRAMEINBLACK 180MMX4300MMACRYLICINBLACK 10MMTHKTWOTONEDTINTEDGLASS SEC D FFL0.0 21001900 350 20 r=400 r=350 22° 159° FFL0.0 EL 4
ACRYLICFRAMEINBLACK 180MMX3850MMACRYLICSHELFINBLACK
CHECKBY:MS.FATIMAH DATE:03/MAY/2023 DRAWNBY:NANDITA

FOREMERGENCYEXIT,IT SHOULDBEATTHEOTHER WAYFORTHEDOORSWINGS, ATLEASTSWINGSBOTHWAYS.

FORTHESTAIRCASE,THEY APPLYTHETREADMORETHAN 255MM,WHICHISTHE REQUIREMENTSFROMTHE UBBL.

(1)Inanystaircase,theriseof anystaircaseshallbenotmore than180millimetresandthetread shallbenotlessthan255 millimetresandthedimensionsof theriseandthetreadofthe staircasesochosenshallbe uniformandconsistentthroughout.

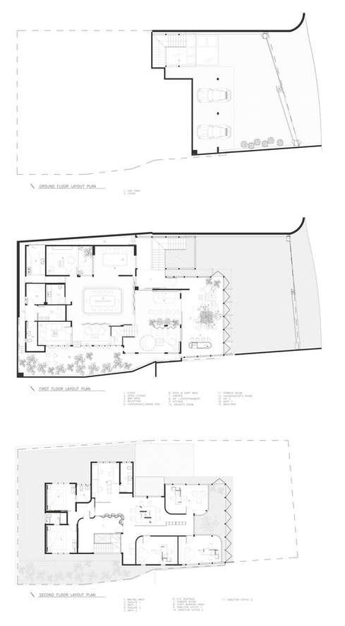
FPFIRSTFLOORPLAN 1:10001 BACKYARD FOYER 7.36sqm POOL&DART AREA 16.30sqm VIP1/ ENTERTAINMENT 12.17sqm KITCHEN 7.40sqm DRIVER'S ROOM 5.33sqm POWDER ROOM 5.03sqm CONFERENCE 15.12sqm RECEPTION 15.99sqm OPEN LOUNGE 59.14sqm BAR AREA 15.14sqm BACKYARD BATH1 4.87sqm VIP2ROOM 10.35sqm HOUSEKEEPER'S ROOM 5.88sqm BACKYARD GARDEN/ ATRIUM 6.01sqm AB C D E 1 2 3 4 5 6 24086 16785 1395 874 2519 SEC A SEC A F 3539 REFERTODRAWING WFH_DWD_NK_BS3_04 3EL VOID VOID DN DN G H 886 2355 3740 1870 4860 5335 5040 7 8 9 1947 2851 700 2960 FL2 T4 T3 T2 T1 T5 T6 T3 T3 T7 T8 T9 T10 T11 T13 T14 T15 T18 T17 T16 T12 S1 S2 S2 S3 S3 S4 S4 S4 S5 S2 S6 S7 S3 S3 S3 S3 S8 S8 S8 S8 S8 S8 S8 S8 S8 S8 S2 S2 S9 S9 S11 S10 S10 S12 S6 S2 L4 L3 B1 B1 A2 A4 A6 A8 A7 A7 A11 A12 A1 A5 A3 A9 A10 L2 L5 L5 IP3 IP2 IP1 IP4 IP5 W1 W2 W3 W4 W5 W6 W7 W8 W10 W10 D1 D2 D4 D5 D6 D7 D7 D7 D7 D6 D3 FL2 FL1 FL4 FL3 FL5 FL2 FL1 FL1 FL1 FL1 FL1 FL1 FL1 FL2 FL3 FL4 S10

SCHEDULEOFACCOMMODATION

AREA NO.OF OCCUPANTS NO.OF ROOM AREAOFONEROOM(M²)TOTALAREAOFROOM(M²) FIRSTFLOOR
FOYER
1.
OPENLOUNGE
2.
BARAREA
3.
RECEPTION
4.
CONFERENCE
5.
POOL&DARTAREA
6.
GARDEN/ATRIUM
7.
VIP1/ENTERTAINMENT
8.
KITCHEN
11.POWDERROOM 12.HOUSEKEEPERSROOM 13.VIP2ROOM 14.BATH1 1 SECONDFLOOR 17 5 5 10 4 1 5 1 1 1 1 1 1 1 1 6.01 16.30 15.12 15.99 15.14 7.36 12.17 6.01 16.30 15.12 15.99 15.14 7.36 12.17 1 1 1 1 1 1 2 1 1 1 7 1 7.40 5.33 5.03 5.88 10.35 4.87 7.40 5.88 5.03 5.33 10.35 4.87 59.14 59.14
9.
10.DRIVER'SROOM
1.
WAITINGAREA
2.ENSUITE1 3.BATH1 4.ENSUITE2 5.BATH2 6.P.A.SEATINGS 7.POWDERROOM 8.
STAFFWORKINGAREA
11.DIRECTOROFFICE3 1 1 1 1 1 1 1 1 1 1 1 2 2 1 1 1 3 2 2 2 4 4 15.03 11.97 3.05 10.52 3.02 13.04 16 15.41 4.9 15.46 40.66 15.03 11.97 3.05 10.52 3.02 13.04 16 15.41 4.9 15.46 40.66
9.
DIRECTOROFFICE1 10.DIRECTOROFFICE2

SINGLESLIDINGDOORW/ALUMINIUMFRAME

1630MM(L)*2300MM(H)SINGLESLIDINGDOORW/MATE BLACKMARBLELAMINATEFINISH

20MMTHKTIMBERWOODPANEL STAINLESSSTEELSLIDINGHINGE

DOORSCHEDULES

3340MM(L)X2300MM(H)ALUMINIUMW/WHITEPOWDERCOATINGFINISHES

12MMTEMPEREDGLASSFIXEDPANEL

STANDARDBEATINGROLLER

STANDARDOFFSETFLUSHBOLT ALUMINIUMBUTTERFLYLOCK

FIRSTFLOOR SECONDFLOOR DIRECTOROFFICE1-3

STAINLESSSTEELBUTTHINGE

NOTE: CLIENT:

DRIVER'SROOM,BATH1,HOUSEKEEPER'SROOM,POWDERROOM,WALKWAYTOKITCHENX2

FIRSTFLOOR SECONDFLOOR ENSUITE1,BATH1,POWDERROOM

100MMTHKWOODPANEL

40MMTHKWOODPANEL

STAINLESSSTEELBUTTHINGE

KEYEDDEADBOLTLOCK

ALUMINIUM

ARCHITECT: INTERIORDESIGNCONSULTANT: QUANTITYSURVEYOR:

PROJECTNAME: DRAWINGTITLE:

PROPOSEDINTERIOR RENOVATIONWORKOF SECONDFLOOROFFICEAREA FORMARK.

DOORSCHDULES

SCALE:1:50

DATE:20/MAY/2023

MARK

49JalanDedap18TamanJaya, JohorBahru,81100,Malaysia (607)3510817

MarkArber

301Jalan1/149DTamanSeri Petaling,KualaLumpur,57000, Malaysia 0390593857

COVENTGARDEN COLLECTION

1A12Jalan3/1ATamanKepong Indah,KualaLumpur,55100, Malaysia (603)21487294

Bud 31Jalan3KAW16Taman INTAN,Klang,Selangor,41300, Malaysia 0333442191

CHECKBY:MS.FATIMAH

DRAWNBY:FENGYUFAN

DRAWINGNO:DWD_FYF_DS_06

REVNO: 0

D6 FFL 950 900 FFL 2300 850 2300 FFL FFL D5 SLIDINGDOOR D6 DOORNO LOCATION DESCRIPTION TYPE FRAME DOORLEAF IRONMONGERY HINGES LOCKBLOTS STOPPULLS VIP1/ENTERTAINMENT,VIP2 OBSCURECLEARGLASSSWINGDOOR 20MMTHKCLEARCLASSPANEL KEYEDDEADBOLTLOCK D7 D7 DOORNO LOCATION DESCRIPTION TYPE FRAME DOORLEAF IRONMONGERY HINGES LOCKBLOTS STOPPULLS SINGLEWOODENSWINGDOOR D6 DOORNO LOCATION DESCRIPTION TYPE FRAME DOORLEAF IRONMONGERY HINGES LOCKBLOTS STOPPULLS GARDEN,FIRSTFLOOR 4-DOORBI-FOLDINGDOORW/WHITEPOWDERCOATINGFINISHES
D6 DOORNO LOCATION DESCRIPTION TYPE FRAME DOORLEAF IRONMONGERY HINGES LOCKBLOTS STOPPULLS RECEPTION,FIRSTFLOOR
ALUMINIUMFLUSHPULL D4 GLASS GLASS GLASS GLASS
ALUMINIUM GLASS
2300 1000 1630
100MMTHKWOODPANEL
2300 3340
-
No. Date Description

SCHEDULEOFWINDOWS

NOTE: CLIENT: ARCHITECT: INTERIORDESIGNCONSULTANT: QUANTITYSURVEYOR:

PROJECTNAME: DRAWINGTITLE:

PROPOSEDINTERIOR RENOVATIONWORKOF

SCALE:REFERTO DRAWING

DATE:22/MAY/2023

COVENTGARDEN

CHECKBY:MS.FATIMAH

DRAWNBY:HSJ

DRAWINGNO:DWD_HSJ_DD_07

WINDOWNO. DESCRIPTION TYPE FRAME LEAF HINGES LOCK,BOLTS STOP,PULLS LOCATION SECONDFLOOR,WAITINGAREA NA NA NA 6MMTHK.CLEARSINGLEGLAZINGTEMPEREDGLASS 40MMTHK.ALUMINUMFRAME SINGLEGLAZEDFIXEDPANELWINDOW W20 IRONMONGERY FFL EXISTINGCEILINGLEVEL FFL EXISTINGCEILINGLEVEL WINDOWNO. DESCRIPTION TYPE FRAME LEAF HINGES LOCK,BOLTS STOP,PULLS LOCATION SECONDFLOOR,STAFFWORKINGAREA NA NA NA 12MMTHK.CLEARSINGLEGLAZINGTEMPEREDGLASS FIXEDSTRUCTURALGLASSWALLSEALEDWITHSILICONEJOINTS SINGLEGLAZEDFIXEDPANELWINDOW W17 IRONMONGERY 2700 360 2200 60 40 40 550 2170 2700 40 40 360 60 FIXED FIXED FIXED FIXED FFL EXISTINGCEILINGLEVEL WINDOWNO. DESCRIPTION TYPE FRAME LEAF HINGES LOCK,BOLTS STOP,PULLS LOCATION FIRSTFLOOR,OPENLOUNGE NA STAINLESSSTEELLOCKINGCASEMENTWINDOWHANDLE 2.0MMTHK.STAINLESSSTEELCASEMENTWINDOW4BARHINGES
DOUBLEGLAZEDCASEMENTWINDOWW/WHITECOATED W4 IRONMONGERY 1330 11201200 40 60 605 40 605 40 40 +36.50 +63.50 900
6MMTHK.CLEARSINGLEGLAZINGTEMPEREDGLASS 40MMTHK.ALUMINUMFRAME
MARK
49JalanDedap18TamanJaya, JohorBahru,81100,Malaysia (607)3510817
MarkArber
301Jalan1/149DTamanSeri Petaling,KualaLumpur,57000, Malaysia 0390593857 COLLECTION 1A12Jalan3/1ATamanKepong Indah,KualaLumpur,55100, Malaysia (603)21487294 Bud 31Jalan3KAW16Taman INTAN,Klang,Selangor,41300, Malaysia 0333442191 SECONDFLOOROFFICEAREA FORMARK.
0 No. Date Description
SCHEDULEOFWINDOWS REVNO:

FLOORFINISH

CODE IMAGE DESCRIPTION SPECIFICATION LEVEL AREA BRAND

F1 EXPOXY FLOORING

PURE WHITE METALLIC EPOXY FLOORING

FIRST & SECOND FLOOR

F2 EXPOCY FLOORING GREY EXPOXY FLOORING WITH TEXTURING

ALL,EXCEPT BATH ROOM & OPEN LOUNGE Miracon (M) Sdn Bhd

FIRST FLOOR OPEN LOUNGE Miracon (M) Sdn Bhd

F3

CERAMIC TILE

SIZE: 600MMX200MM CERAMIC FLOOR TILE WITH HIGH-GLOSS FINISH (BRAND: WHITE HORSE, FogW63009)

FIRST & SECOND FLOOR ALL BATHROOM AND PODWER ROOM White Horse

F4 TIMBER STAIRCASE

F5

PORCELAIN TILE

WL1 WHITE WALL

TIMBER STAIRCASE FLOORING W/ YAXIS SURFACE W/ GOLD-COPPER ALLOY CLAD

FIRST & SECOND FLOOR STAIRCASE Miracon (M) Sdn Bhd

WL WALLPAPER

600MMX900MM GREY TILE W/ MATE SURFACE

FIRST FLOOR FOYER, BACKYARD White Horse

NIPPON PAINT- Super Matex Brilliant White 145

CUSTOMIZE GEOMETRIC DESIGN PATTERN IN BLUE COLOR SCHEME

WL TEXTURE PAINT

GRANITE MATCH 1 WITH SGM COATING SYSTEM

FIRST & SECOND FLOOR ALL,EXCEPT OPEN LOUNGE AREA NIPPON PAINT

FIRST & SECOND FLOOR VIP &ENTERTAINMENT, DIRECTOR OFFICE 1&2&3 Waltex Corporation (M) Sdn Bhd

FIRST FLOOR OPEN LOUNGE SUZUKA

WALLFINISHES

WL4

WALLPAPER

C1

CUSTOMIZESTRIP WOOD PATTERN WITH TEXTURE FINISH

PLASTER CEILING WITH WHITE PAINT FNISH 9MM THICK 600 X 1200MM GYPSUM PLASTERBOARD

FIRST&SECOND FLOOR

FOYER, P.A SEATING WAITING AREA, POOL&DART AREA, DIRECTOR OFFICE1&2

Waltex Corporation (M) Sdn Bhd

ALL ALL JOTAPLAST MAX

C2

COMPOSITE WOOD CEILING 13MM THK Rustic Walnut FIRST FLOOR CONFERENCE AREA PRIMA LAGUNA

SPECIFICATION LEVEL AREA BRAND
CODE IMAGE DESCRIPTION

INDIVIDUAL REFLECTION

This second assignment consist both of group and individual work. It is about understanding a site we chose (the group members propose each one) and draw it from there. The plan we draw it ourselves, trace it from the original plan from that existing site, draw our own section and bespoke. After that, we also need to do our schedule, and also pay attention to the UBBL and fire requirements.

At first when drawing the plan, I thought that tracing was just the process, but we also need to pay attention and study the spaces. As I drew the plan, I started to imagine the actual space in my head. So as an interior student, I think this will be a practice for myself in the working world. Also, we need to pay attention and study the UBBL and fire requirements. Doing this architectural drawing as we do for group assignment, made me realize that we can do it without having a site visit, as long as every picture is provided. It is a new thing for me as I always thought that site visit was the most important first step.

After drawing all this, I realized that I need to be detailed about what I will be presenting, what I designed and draw (for later in the working practice), this really does helps me on having a brief picture on what an architect or interior designers job would look like. I know so much more about the schedules, I think that this drawing practice is so organize and clear. I think doing this helps us to read it easier. I want to improve myself on knowing instantly how the lineweight goes, which one is supposed to be dashline and not, even the grid lines on where to put it.

PROJECT NAME

DRAWINGTITLE:

SCALE:

CHECKEDBY:

DRAWINGNO:

NOTE CLIENT ARCHITECT
INTERIORDESIGN CONSULTANT QUANTITYSURVEYOR
REVNO:
DATE: DRAWNBY:
NOTE CLIENT ARCHITECT INTERIOR DESIGN CONSULTANT QUANTITY SURVEYOR PROJECT NAME
REVNO:
DRAWNBY:
DRAWINGTITLE: SCALE: CHECKEDBY: DRAWINGNO:
DATE:

NOTE CLIENT ARCHITECT INTERIOR DESIGN CONSULTANT

QUANTITY SURVEYOR PROJECT NAME

DRAWINGTITLE:

SCALE:

CHECKEDBY:

DATE: DRAWNBY:

DRAWINGNO: REVNO

PROJECT NAME

DRAWINGTITLE:

SCALE:

CHECKEDBY:

DRAWINGNO:

DATE:

DRAWNBY:

NOTE CLIENT ARCHITECT
INTERIOR DESIGN CONSULTANT QUANTITY SURVEYOR
REVNO:
NOTE CLIENT ARCHITECT INTERIOR DESIGN CONSULTANT QUANTITY SURVEYOR
NAME
REVNO:
DRAWNBY:
PROJECT
DRAWINGTITLE: SCALE: CHECKEDBY: DRAWINGNO:
DATE:

OVERALL REFLECTION

In this module, I really improved a lot on technical drawings. I now know deeper about little details and not just drawing on AutoCAD, but also figure out what is the best option for the user later when the site is build. This really opened my eyes on technical drawings is really important and revision is normal to happen.

As I said every details matters, now I have a habit to have dimensions, gridline, section line ready. Because of this module I get to know what a linewight is and what is to be dashline and not. Now that I knew that, the drawings I drew became more clear and even easy to read.

This module really does helps me for the drawing knowledge and I'm sure this will carries to the working life later in the future.

I would also thank the lecturers for helping me to revise my drawings. Because of that I learn from my mistakes and know more from it.

Turn static files into dynamic content formats.

Create a flipbook
Issuu converts static files into: digital portfolios, online yearbooks, online catalogs, digital photo albums and more. Sign up and create your flipbook.