Discover the Future of Haikou: A Tour of the Dayingshan New City Center

Page 1

2021-03-30
2021 - 02 - 30 | HAIKOU DAYINGSHAN NEW CITY CENTER PROJECT 海口市大英山新城市中心区D01、D09地块项目 BIRD’S EYE VIEW 鸟瞰效果图

第一部分 项目背景

SECTION 1 PROJECT BACKGROUND

区位分析

ZONING ANALYSIS

气候分析

CLIMATE ANALYSIS

场地分析 SITE ANALYSIS

SECTION 2 DESIGN INTENT

设计理念

DESIGN CONCEPT

设计感语

第三部分 总图设计及规划分析

SECTION 3 SITE DESIGN & ANALYSIS

周边分析图

URBAN CONTEXT ANALYSIS

建筑高度与体量分析图

MASSING & HEIGHT ANALYSIS

分期建设分析图

第四部分

SECTION 4 BUILDING DESIGN 总平面 SITE PLAN 平面图 PLANS

设计内容说明

PHASING ANALYSIS

交通流线分析图 TRAFFIC ANALYSIS

项目投资估算表

经济技术指标

PROJECT SUMMARY

总平面分析 SITE PLAN ANALYSIS 公共空间分析图 DENSITY ANALYSIS 绿地景观系统分析图 GREEN RATIO ANALYSIS

消防设计分析图

FIREFIGHTING ANALYSIS

绿色建筑设计分析图

SUSTAINABLE DESIGN ANALYSIS

功能分析图 PROGRAM ANALYSIS

剖面图 SECTION

立面图 ELEVATIONS

夜景效果图

NIGHT VIEW RENDERING

日景效果图

2021 - 03 - 30 | HAIKOU DAYINGSHAN NEW CITY CENTER PROJECT 海口市大英山新城市中心区D01、D09地块项目 INDEX 目录
标志性节点设计图
NODES PLANNING ANALYSIS 建筑设计
第二部分 设计意向
鸟瞰效果图 BIRD’S EYE VIEW RENDERING
DAY VIEW RENDERING
DESIGN SENTIMENT
项目名称建议
DESIGN NARRATIVE
SUGGESTED PROJECT TITLE
COST ESTIMATES
2021 - 03 - 30 | HAIKOU DAYINGSHAN NEW CITY CENTER PROJECT 海口市大英山新城市中心区D01、D09地块项目
第一部分 项目背景
SECTION 1 PROJECT BACKGROUND

海口,别称“椰城”,海南省省会,国家“一带一路” 战略支点城市,北部湾城市群中心城市,位于北纬 19°32′~20°05′,东经110°10′~110°41′之 间,地处海南岛北部,东邻文昌,西接澄迈,南毗定 安,北濒琼州海峡,是海南省政治、经济、科技、文化

Haikou is the capital and most populous city of Hainan province, China. It is situated on the northern coast of Hainan, by the mouth of the Nandu River. The northern part of the city is the district of Haidian Island, which is separated from the main part of Haikou by the Haidian River, a branch of the Nandu. Administratively, Haikou is a prefecture-level city, comprising four districts, and covering 2,280 square kilometres (880 sq mi). There are 2,046,189 inhabitants in the built up area all living within the 4 urban districts of the city. Haikou was originally a port city. Today, more than half of the island’s total trade still goes through its ports.

1677 KM 2768 KM
2151KM
中心和最大的交通枢纽。
2021 - 03 - 30 | HAIKOU DAYINGSHAN NEW CITY CENTER PROJECT 海口市大英山新城市中心区D01、D09地块项目 ZONING ANALYSIS 区位分析

在中共中央支持海南全面深化改革开放的指导意见里,把海南省定位为:

1.全面深化改革开放试验区:把海南打造成为我国面向太平洋和印度洋的重要对外开放门户。

2.国家生态文明试验区:推动形成人与自然和谐发展的现代化建设新格局。

3.国际旅游消费中心:打造业态丰富、品牌集聚、环境舒适、特色鲜明的国际旅游消费胜地。

In the guiding opinions of the CPC Central Committee supporting Hainan to comprehensively reform, Hainan Province is positioned as:

1. Pilot zone for comprehensive reform: to build Hainan into an important gateway for the country to open up to the Pacific and Indian Oceans.

2. National Ecological Civilization Experimental Zone: Promote the formation of a new pattern of modernization in which developments are done through sustainable design.

3. International tourism consumption center: to create an international tourism consumption resort with diverse businesses, brand clustering, comfortable environment and distinctive characteristics.

自贸港

在海南建设自由贸易港,是快速实现以上定位的重大手段。通过推进一系列创新和开放体制,包 括科技,人才,金融和商贸等,聚焦发展旅游业、现代服务业和高新技术产业,让海南成为中国 特有的又深度融入全球经济体系的最前沿地带。是支持经济全球化,构建人类命运共同体的实际 行动,为此,必须要建设一流营商环境, 让人民群众,旅游者和商务人员有幸福感。这包括以下 几方面:

生态海南:生态环境是海南发展的最强优势和最大本钱。要坚持绿色发展理念,确保生态环境质 量只能更好、不能变差。

智慧海南:加大对科技创新产业的投入,要在新一轮“五网”基础设施建设中,注入更多集约、 绿色、智能、融合的内涵。

服务海南:为人们的生活和工作提供不同设施需求和选择。整合推出科创,商务,旅游、航空、 文娱、免税购物等组合营销套餐。

It is necessary to build a first-class business environment. This includes the following aspects:

Ecological Hainan: The ecological environment is the strongest advantage and biggest capital of Hainan’s development. We must adhere to the concept of green development and ensure that the quality of the ecological environment can only be better, not worse.

Smart Hainan: To increase investment in technological innovation industries, we must inject more intensive, green, intelligent, and integrated connotations into the new round of “five networks” infrastructure construction.

Serve Hainan: Provide people with different facilities needs and choices for life and work. Integrated and launched a combination of marketing packages for science and technology, business, tourism, aviation, entertainment, and duty-free shopping.

2021 - 03 - 30 | HAIKOU DAYINGSHAN NEW CITY CENTER PROJECT 海口市大英山新城市中心区D01、D09地块项目 ZONING ANALYSIS 区位分析 海南省

高低气温 HIGH/LOW TEMPERATURE

气候概况 CLIMATE INTRODUCTION

海口, 海南 Haikou, Hainan

位置: E 110°10‘ - 110°41’, N 19°32‘-20°05’

Location: E 110°10‘ - 110°41’, N 19°32‘-20°05’

气候带: 热带季风气候

ASHRAE Climate Zone: Tropical Monsoon Climate

温度: 年平均温度为24.3 °C

The average temperature in Haikou is 24.3 °C.

降雨量: 年平均降雨量为2067 mm

Haikou receives on average 2067 mm of precipitation per year.

平均每年有2000个日照小时以上

On average there are over 2000 daylight hours per year in Haikou.

平均降雨 AVERAGE PRECIPITATION

海口市地处低纬度热带北缘,属于热带季风气候。这里冬无严寒,夏无酷暑,四 季常青,温暖舒适。全年日照时间长,辐射能量大,年平均日照时数2000小时以 上,太阳辐射量可达11~12万卡。年平均气温24.3℃,最高平均气温28℃左右, 最低平均气温18℃左右。年平均降水量2067毫米,年平均蒸发量1834毫米,常年 风向以东南风和东北风为主,年平均风速3.4米/秒

Haikou City is located in the northern rim of the low latitude and belongs to the tropical monsoon climate. There is no cold in winter, no heat in summer, evergreen in all seasons, warm and comfortable. The annual sunshine time is long, the radiation energy is large, the annual average sunshine hours are more than 2000 hours, and the solar radiation amount can reach 11 to 120,000 cards. The annual average temperature is 24.3 °C, the highest average temperature is about 28 °C, and the lowest average temperature is about 18 °C. The annual average precipitation is 2067 mm, and the annual average evaporation is 1834 mm. The annual wind direction is mainly southeast wind and northeast wind, and the annual average wind speed is 3.4 m/s.

2021 - 03 - 30 | HAIKOU DAYINGSHAN NEW CITY CENTER PROJECT 海口市大英山新城市中心区D01、D09地块项目 CLIMATE ANALYSIS 气候分析

BEST

舒适区 日照得热 自然通风 遮阳系统 机械制冷 减少湿度 日照得热 最佳设计策略
DESIGN STRATEGIES 被动式节能设计策略
PASSIVE DESIGN STRATEGIES 自然通风 Natural Ventilation Internal Heat Gain Shading System 日照得热 遮阳系统 2021 - 03 - 30 | HAIKOU DAYINGSHAN NEW CITY CENTER PROJECT 海口市大英山新城市中心区D01、D09地块项目 CLIMATE ANALYSIS 气候分析
BEST
夏季风向图 WINDROSE - SUMMER 冬季风向图 WINDROSE - WINTER D01 D01 D09 D09 2021 - 03 - 30 | HAIKOU DAYINGSHAN NEW CITY CENTER PROJECT 海口市大英山新城市中心区D01、D09地块项目 CLIMATE ANALYSIS 气候分析
SITE 场地 JINNIULING PARK 金牛岭公园 1KM 2KM 3KM 4KM MUSEUM 省博物馆 HAINAN PROVINCIAL GOVERNMENT 省政府 HONGCHENG LAKE 红城湖 WANLU PARK 万绿园 HAIKOU ARCHADED STREET 海口骑楼老街 HAIKOU PORT 海口港 HAIKOU STATION 海口站方向 19.6KM AIRPORT 美兰机场 15KM 2021 - 03 - 30 | HAIKOU DAYINGSHAN NEW CITY CENTER PROJECT 海口市大英山新城市中心区D01、D09地块项目 SITE ANALYSIS 场地分析
国兴大道 规划六路 勋 亭 路 五 指 山 南 路 规 划 十 九 路 省政府 日月广场
GOVERNMENT RIYUE PLAZA 2021 - 03 - 30 | HAIKOU DAYINGSHAN NEW CITY CENTER PROJECT 海口市大英山新城市中心区D01、D09地块项目 SITE ANALYSIS 场地分析
PROVINCIAL
国兴大道 规划六路 勋 亭 路 五 指 山 南 路 规 划 十 九 路 SITE VIEW 7 SITE VIEW 3 9 SITE VIEW 6 SITE VIEW 4 3 1 2 3 2 1 4 5 5 4 2021 - 03 - 30 | HAIKOU DAYINGSHAN NEW CITY CENTER PROJECT 海口市大英山新城市中心区D01、D09地块项目 SITE ANALYSIS 场地分析 景观分析 VIEW ANALYSIS
2021 - 03 - 30 | HAIKOU DAYINGSHAN NEW CITY CENTER PROJECT 海口市大英山新城市中心区D01、D09地块项目 SECTION 2 DESIGN INTENT 第二部分 设计意向

To create destination for culture, retail, entertainment, office, and living; to integrete culture and art into both indoor and outdoor different activities.

幸福港湾

DESIGN CONCEPT 设计理念

HAPPY HARBOR

充满激情的文化,购物,娱乐,办公, 居住和消费终极

地, 把艺术和文化设施融汇到室内外各其他功能之中

2021 - 03 - 30 | HAIKOU DAYINGSHAN NEW CITY CENTER PROJECT 海口市大英山新城市中心区D01、D09地块项目
开放活力 ENERGETIC
地标之门
多元国际 INTERNATIONAL 联系海口和世界之门, 连接山与海,城市与自然 Connect the world to Haikou, ocean to mountain, and nature to city. 2021 - 03 - 30 | HAIKOU DAYINGSHAN NEW CITY CENTER PROJECT 海口市大英山新城市中心区D01、D09地块项目 DESIGN CONCEPT 设计理念
GRAND GATEWAY

共享协作 COLLABORATIVE

通过人性化设计,提高生产率、创造力、舒 适性和连通性,例如为建筑和周边社区提供 环境优美舒适区极佳的公共区域,以及公共 配套文化、艺术、环境等设施。

Improve productivity, creativity, comfortability and connectivity via humanistic design, such as provide a graceful surrounding public space, at the same time perfectly leading the circulation match with our unique builldings.

健康有趣 HEALTHY AND FUN

作为最具前瞻性的世界领导产业,不仅仅考虑到 到各种以“智慧”为核心的可能性,更是在设计理 念里将“健康”和“有趣”作为首要设计元素。

To be one of the world leading compuny with the most forward-looking ability, Considering using ”Intelligent” as the key elements, but also put “Healthy“ and “Intriguing“ as subsidiary.

DESIGN CONCEPT 设计理念

灵活性 FLEXIBLE

灵活性是设计和规划的关键,充分考虑未来市场变化,以适应不同的业态要求;可以适应不同大中小产 业的办公和研发需求。而塔楼可以作为产业总部,也可以分给其他公司灵活组合。。衔接两个塔楼的天 桥则为共享绿色空间,为人们提供优美舒适的公共环境。

Flexibility is a key in the design and program. Full consideration of future market changes and accommodate different usage. Two connected towers having different scale located on east and west side, could provide different firm with variety of possibility of using the space. At the same time, skybridge between two building are green sharing space connecting two towers. At the same time, providing graceful public area with beautiful views for people.

绿色环保 SUSTAINABLE & GREEN

作为设计中的一个要素,从内涵到形式 都充分体现出绿色可持续性。

Design and Express out Sustainability.

海南风情 HAINAN STYLE

智能智创 INTELLIGENT AND CREATIVE 延续传统海口骑楼老街开放式的热带风 情,以新颖的设计阐述海南不变的热情。

通过内外的创新设计提升人类的体验; 尊重海控的企业文化和地域特征,表达出其特有的 秉性:以人为本,持续创新,激情,协同。

Elevating human experience through exciting design both inside and outside.

海口市大英山新城市中心区D01、D09地块项目

Continuing the traditional open tropical style of Haikou’s old arcade street, and expressing Hainan’s unchanging hospitality with novel designs

2021 - 03 - 30 | HAIKOU DAYINGSHAN NEW CITY CENTER PROJECT
2021 - 03 - 30 | HAIKOU DAYINGSHAN NEW CITY CENTER PROJECT 海口市大英山新城市中心区D01、D09地块项目 DESIGN SENTIMENT 设计感语 如 果 说 海 口 是 南 海 上 的 一 颗 翡 翠 , 那 么 “ 国 兴 大 厦 ” 便 是 镶 嵌 在 这 颗 翡 翠 上 的 明 珠 , 闪 耀 在 蓝 天 碧 海 之 间 。 在 这 里 , 你 既 能 执 手 相 伴 , 游 走 在 骑 楼 老 街 之 间 , 抚 摸 城 市 年 轮 ; 又 可 登 高 远 眺 , 尽 享 山 水 一 色 , 感 受 都 市 奢 华 。 一 缕 江 风 , 婆 娑 港 湾 ; 摇 弋 那 点 点 白 帆 。 古 琴 梵 音 , 清 歌 燕 舞 ; 曲 终 了 韵 意 尤 存 。 椰 城 好 , 最 美 在 国 兴 !

设计构思说明

海口,别称“椰城”,是一座风光旖旎的热带海岛城市,是最佳的居住,旅游,生态之城,是通向太平洋和印度洋的海上门户。是国家级自 由贸易港及“一带一路”战略支点城市。本项目位于CBD中心二地块,东为勋亭路;西为五指山南路;北为城市主干道国兴大道,与海南省 政府一街之隔,远眺城市和海洋;南为一条主要机动车出入基地的道路,远眺山体湖泊和中央公园。是山水相间,自然风光和城市景观 的绝妙交会地。 如何利用其优越的地理位置,丰富的综合功能,打造一个以人为本,开放创新,绿色生态和与城市共融的总部办公,高 级酒店及酒店式公寓,免税购物,娱乐以及和艺术,文旅相结合的幸福目的地是我们的设计目标。作为重要的海港城市,打造幸福港湾 和通向世界之门便是我们的设计构思启迪。

规划布局:“因地制宜,一心二轴”

对商业,办公,酒店和公寓四个主要功能进行合理布局使其各自有最佳城市位置和景观,便于顾客员工和市民的到达,减少对城市交通的影 响,打造国兴大道重要城市节点,使其成为CBD新地标和商业及公共文旅活动中心是此项目规划的重要考虑。

为此我们把二栋塔楼位于基地南面布置,相互间在满足后退红线后保持较近距离,以中间街道为南北向主要轴线,易于形成门户及地标 效应。主要机动车由三条南北相的道路进入,各主要功能的入口沿大厦南面和侧面分开布置,即有最短机动车流路线,交通直接,又减 少对国兴大道上的商业中心的空间占用。尤其是利用二块基地之间的中央道路打造城市立体文化广场,即为一心。一条弧形人行坡道环抱 文化广场,让地下地上各层在此自然连接。

为了加强二块地之间地上地下的连通性,一条横贯二地块的东西向Mall 主动线以及下沉广场将二地块商业功能以及城市公共交通体系相 连。保证商业和文化设施的整体性和方便使用。此为东西向主轴。

另外交通规划充分考虑在中间和南面道路没有形成,在商业裙房没有建造之前的一期可行性。

城市设计:“文化港湾,立体花园”

建筑与城市的关系不可分割。如何在解决自身功能的同时,打造更多的城市开放空间?如何通过对建筑空间的编织,从城市肌理中为本 项目注入持续永盛的活力?结合海口气候,打造亲近自然,健康生态的环境是我们的一个重要设计考量。为此我们结合餐饮,健身和文 化艺术功能,打造众多的绿色露台和屋顶花园,创造CBD 立体城市花园。以中央文化广场为例:流动的裙楼如同海浪,如织的游人如同 点点白帆,点缀在绿色“港湾”之上,层层后跌的景观露台即是商业空间的户外延展,又是观赏文化广场活动和城市空间的互动处。另在基 地西北和东北角各打造一个城市广场,并设置下沉式广场与基地西北角的地铁站以及日月广场相连通。对沿国兴大道宽阔的绿化带和广 场整体设计,打造城市与自然之有机过渡。

尤其是D-09地块的步行人流从基地东北角地广场可以沿着裙房的外部大楼梯直到裙楼各屋顶花园。给消费者和市民更多的流线选择和城 市开放空间。

开放式的设计处处感受到大自然,海南岛和海南发展控股有限公司文化的魅力。这个完全对市民和游客开放的中心是幸福海口的重要一 笔。它极大地提高了公众的生活质量和对城市的热爱。即体现海控的价值观,又为项目带来许多潜在客户和品牌形象的宣传大使。

2021 - 03 - 30 | HAIKOU DAYINGSHAN NEW CITY CENTER PROJECT 海口市大英山新城市中心区D01、D09地块项目
DESIGN NARRATIVE 设计内容说明

建筑设计:“以人为本,打造海口通往世界的港湾和门户”

我们的建筑设计构思深受海口这个中国最南端的港口和门户城市的启示,是“自由贸易港”其开放,活力和前瞻性的表达。也寓意海控公司 以及此项目在海口的领航地位。在城市最核心区打造引领海口从旅游岛到世界级核心经济体战略转型的重要一笔。是海口通向世界的港 湾和门户。

如果说中央广场和沿国兴大道上的开放空间如同港湾和大海,那么商业裙房就如同一个个集装箱,交错叠加。而二座高楼如同码头上的 塔吊矗立在港湾之上。一幅繁忙活泼的城市“港湾”之景色。一个开放,快乐,生态,健康的工作,消费和居住地。尤其是简洁大气,端庄 挺拔的双塔再由连贯双塔的空中客厅和绿色中庭空间相连形成独特且强烈的整体效应,充分表达海口朝气蓬勃,自由开放的国际品牌形 象,打造城市新地标。

首先发挥地理位置的优势,在二个地块上不对称地布置二栋同风格的塔楼。其布局充分考虑把城市各方向的无敌山景,水景和园景尽收 眼底,同时减少双塔之间的视线和日照干扰。建筑造型结合热带气候特点,通过垂直的金属遮阳板来表达,即有效地起到节能环保的效 应,比普通幕墙减少30%以上的得热率,又避免了对城市的光污染,尤其是对国兴大道以及省政府大楼的影响。简洁规整的塔楼平面最 高效地满足办公和酒店居住的功能布局。中央单走廊的酒店平面便于最高效的得房率;大进深,大平面的办公层,充分考虑现代办公建 筑的灵活多变和高效的发展趋势,尤其是科技行业的需求。位于写字楼顶部为海控的自有办公空间,恢弘的空中花园是VIP以及员工休 闲交流,大脑风暴和加强团队建设的的理想场所;此始于酒店,横跨空中客厅而终于办公塔楼顶部的生态绿色中庭空间,无论白天和夜 晚,如同一条流动的彩虹,点亮和激活城市的天际线。同时提升了室内空气质量和竖井效应以保证热风的快速排出。 其次是商业裙房通过简洁现代的体块穿插和叠加组成,便于品牌旗舰店的门面表达,同时形成众多户外平台和屋顶花园用于社交与休闲. 户外的咖啡坐与用餐服务。其布局在主要沿街和入口处拥有大面积广告展示面。外立面由透明玻璃,镀丝玻璃,不同金属板组成,便于 各品牌店的二次外装修。商业内部围绕不同大小和形态的中庭空间布局,它们不仅给各层带来充足的自然光,更是各种商业娱乐和文化 展式的平台,结合绿化景观,打造自然生态的现代园林式购物体验。

整体建筑构思通过一个富有强烈导向性的构建形成连续的语言。人们,绿化以及建筑形体从D9地块的东北角城市广场沿建筑外轮廓逐步 上升,再由酒店塔楼穿越空中长廊连贯高耸的办公塔楼。一气呵成。即和周边建筑与环境保持和谐,又在自身的对比中产生独特的地标 属性。

2021 - 03 - 30 | HAIKOU DAYINGSHAN NEW CITY CENTER PROJECT 海口市大英山新城市中心区D01、D09地块项目 DESIGN
NARRATIVE 设计内容说明

DESIGN NARRATIVE 设计内容说明

建筑功能及流线组织:

作为一个集办公和酒店,公寓,文化,商业为一体的城市综合体,组织好其错综复杂的流线是我们设计的一个重要考虑:首先是主体办 公塔楼的流线:它包括海控公司和市场出租办公的二个不同流线:二者的门厅大堂分开布置,位于基地南侧。而作为最重要的海控自己 的办公楼层位于建筑的最高区,又分为三种人流:第一是员工,用智能电梯卡直达位于大楼顶部的各层办公。第二是VIP和公司高层领导 人流,他们在首层前台得到迎候后再由特定的电梯抵达大楼顶层的休息厅。而作为第三种的一般访客,通过访客验证区二维码验证后再 进入一楼的等待区,同时观赏公司的展示区,以加强对公司的了解。其后在员工的陪同下或进入指定楼层。

对外出租办公人流打卡乘坐低区和中区8部电梯进入各层。

三层高的大堂气势恢宏,有助于提升办公大楼的档次和标准。

其次是酒店和公寓的流线:酒店的人流都由南面东侧的主入口进入大堂,酒店的有关主要配套设施位于裙楼,尤其是对消防疏散有大量 要求的宴会厅位于首层,避免了大量疏散楼梯的问题,并有即连通又独立的出入口。客房层位于塔楼的低区,以便于和底部配套设施的 直接联系。公寓人流由基地的南面西侧进入用户大厅。公寓单元位于塔楼的高区,因为最大最好城市景观,从而提升其市场价值。尤其 是位于100米高的空中连廊,公寓的主要配套设施均位于此部位,包括居民会所,健身房,游泳池,餐厅和酒吧等。并供办公塔楼的人们使 用,是最佳会客,交流的城市空中“客厅”。

办公和酒店公寓人流可以从一,二楼等楼层直接连通商业中心。

商业娱乐占据二地块的最底部5到6层。并由空中连廊连通,形成整体的商业中心。同时在D-9裙楼的最不适合布置商业的3-5层之间设置 一定的停车设施,即减少对地下室的开挖,同时也发挥政府不计容积率的优势。建议D1 地块在三楼用一天桥连贯西面的日月广场,这些 措施即方便客户的使用,又增加各家的商业价值。沿主街设置二层高的各大国际品牌的专卖店。顾客从大街和Mall内部均可进入,Mall的 首层沿各条街道均设置主入口以方便各方人流的进入;整个商业中心规划即可以完全全气候的室内空间(加上天窗和玻璃门窗后),又 可以局部敞开式布局,发挥热带气候优势,保证自然通风和采光。在基地的西北角,东北角以及中央结合下沉式广场和从地面延伸至二 层的室外大台阶,让地下一层,一层和二层均为首层的商业概念,极大提升各层店面的商业价值。

每块基地各有二个汽车坡道联系地上和地下的停车库。货运集中位于地下一层中央地段,高效服务各功能区。

结语:

该项目为CBD区打造了一个开放多元和富有文化艺术特质的垂直综合社区。 从地理,文化,自然, 社区,公司文化和建筑中寻找互补优 势,把一个传统意义上的普通商业地块有秩序地打开并与城市资源及甲方的核心价值观完整地联系成一体。消费者在充满自然和绿色的 各种室内外环境中休闲,购物,餐饮,娱乐,办公,居住和文化艺术参与。处处有景,步步如画。整个建筑群如同一个立体的自由贸易 港,用开放和激情点燃海口的城市天际线和欢迎来自五湖四海的贵客。是幸福海口,开放海口,绿色海口,创新海口的重要一笔!必将 成为海口的喜闻乐见的商业娱乐,文化艺术和商务旅游的终极地标。

2021 - 03 - 30 | HAIKOU DAYINGSHAN NEW CITY CENTER PROJECT 海口市大英山新城市中心区D01、D09地块项目

Haikou, also known as “Coconut City” , is an island city with beautiful scenery and tropical monsoon climate. Advantaged in ocean, climate, tourism and other resources, it is the best living, tourism and ecological city, and the sea gateway to the Pacific Ocean and the Indian Ocean. As the capital of Hainan province, state-level free trade port and “the Belt and Road” strategic fulcrum city, how to promote a series of innovative and open systems, including technology, talent, finance and commerce, etc., focus on developing tourism, modern service industry and high-tech industries, and let Hainan become the frontier zone that is unique to China and deeply integrated into the global economic system. Therefore, how to combine the above characteristics, create a first-class environment, so that the people, tourists and business personnel have a high sense of happiness, is our design goal. As an important port city, building a happy harbor and gateway toward the world is the inspiration of our design concept.

The project is located in the two most central plots of CBD, Xunting Road in the East, South Wuzhishan Road in the West, one street away from the Sun and Moon Plaza; North is the Guoxing Avenue, the main road of the city, one street away from Hainan provincial government, overlooking the city and the ocean; South is the main road for motor vehicles to enter and leave the site, overlooking the mountains and the Central Park. It is a wonderful intersection of mountain and sea, natural scenery and urban landscape. How to make use of its superior geographical location and rich comprehensive functions to create a people-oriented, open and innovative, green and ecological, urban integrated headquarters, high-grade hotel and serviced apartment, duty-free shopping, entertainment and happy destination with the combination of art, culture and tourism is our design goal.

Planning : “Respect the context, one heart and two axises.”

Reasonable layout of the four main functions of retail, office, hotel and service apartment, so they have the best urban orientation and views. convenient arriving expereicnes for employees and customers ,reducing the impact on urban traffic, and form an important CBD landmark, public cultural activity center are the important considerations of this project planning.

We set the two towers in the south of the site, keep the closest distance between them after meeting the setback red line , take the middle street as the main south north axis, to form the gateway effect. The main motor vehicles enter through three north-south roads, and the entrances of each main function are arranged separately along the South and side of the building, which not only has the shortest vehicle flow, but also reduce the occupation of the commercial space along the Guoxing Avenue. In particular, the central road between the two sites is used to build an urban threedimensional cultural square which is the “one heart”. One pedestrian ramp surround the cultural square and lead customers directly to the second floor.

In order to strengthen the above ground and underground connectivity between the two sites, a number of air walks, connectors and sunken squares connect the retails of the two sites. Ensure the integrity and convenience of commercial and cultural facilities. This forms the East/West axis.

DESIGN NARRATIVE 设计内容说明
2021 - 03 - 30 | HAIKOU DAYINGSHAN NEW CITY CENTER PROJECT 海口市大英山新城市中心区D01、D09地块项目

Urban design: “ Cultural Harbor,3D Garden”

The relationship between architecture and city is inseparable. How to solve its own function while contribute to the Urban design? How to open the site more to the public? How to build more creative urban open space? How to inject lasting vitality urban texture through the weaving of architectural space? Therefore, we design an urban three-dimensional cultural square along the middle road , like an harbor. It gathers people, commercial space, and landscape to form an organic center. Surrounding it are different terrences. In addition, a plaza and sunken plaza is formed at the northwest and northeast corner of the site, it is set to connect with the subway station and the Sun and Moon Plaza in the northwest corner of the site. The integration of the City green belt and plaza making the shopping experiences more serene.

At the NE corner of D-09 site, a plaza and green space arise all the way to 6th Floor roof deck without interference with the interior space, providing people with more choices to different levels and vertical urban open spaces.

Bring the indoor commercial to the outdoor decks, where people can enjoy the beautiful scenery, food, fitness, music, dance and performance, and get together with friends. The central plaza is like a green harbor, The flowing podium is like wave, and the moving circulations are like the boats. The free and open design is well fit the nature of Hainan Island and Hainan Development Holding Co.’s culture. It is an important part of Happy Haikou by greatly improving the quality of life. It not only reflects the values of Haikong, but also brings many potential customers and brand image ambassadors to the project.

Architectural design: “People oriented, building Haikou as a Vivid harbor and gateway to the world.”

Our architectural design concept is deeply inspired by Haikou, the southernmost gateway city in China and its harbor. It not only expresses the characteristics of the city, but also implies the leading position of the Haikong company and the project in Haikou. Built in CBD, the core area of the city, it is an important stroke to lead Haikou’s strategic transformation from a tourism island to a world-class core economy, building Haikou as a harbor and gateway to the world.

If the central plaza and the open green belt along he Guoxing Ave are harbor and ocean shore, then the retail podium is like those cargo containers, and the two towers are the cranes standing at the harbor. A bustling urban Harbor, an open, happy, ecological and healthy place that for working, shopping and living.

First the tower design respects and takes advantage of geographical location as well as their functions: the un-symmetrically orientation allow both towers have the max. SW mountain ,lake and central park view, while maintain min. view and daylighting interruption between the two towers. The vertical composition creates a strong and simple architecture expression yet reduce over 30% of the heat gain comparing with a normal smooth skin tower; not to mention the reduction of the lighting pollution created by a normal curtain wall. Simple and rectangular twoer floor plans are the reflection of the highest effciecny: the double loaded hotel as well as deep span large office floor plate, promising the highest flexibility and efficiency. A dynamic sky garden system continues from the bottom of the hotel tower, sopan over the sky bridge and end at the top of the office twoer. It is like a dynamic rainbow that form a new city skyline. They are the idea space for team work and socal meetings, as well as acting as natural ventilation shafts.

Second is the overlapped retail podium design forms many outdoor platforms and roof gardens for social and leisure, outdoor food and beverage services. In particular, the central sunken plaza acting as an harbor, surrounded by fluid retail facades as wave, people as sailing boats , attracts all kind of activies: from shops to food, from luxury goods exhibition to music and art performance, it strengthens the cultural connotation of Guoxing Avenue, the most important avenue in the city. It will be an important parts of creating Happy Haikou.

A continuous pedestrian walkway and landscape belt starting from the NE corner of D9 site plaza, step up all the way to the 6th roof top, then extend inside of the hotel atrium space , span across the sky bridge and all the way to the top of the office tower. It tied the whole project together and creates a unique icon.

DESIGN NARRATIVE 设计内容说明 2021 - 03 - 30 | HAIKOU DAYINGSHAN NEW CITY CENTER PROJECT 海口市大英山新城市中心区D01、D09地块项目

Building functions and circulation organization:

As an urban Mixed-use building integrating office, hotel, apartment, retail and culture, it is critical to organize it’s circulation well. First is the main office tower: it includes two different types: one is for Haikong company itself and the other one is for market lease office users. They both arranged along the main drop off at south but in separate lobbies: the former lobby is also organized into three types of circulations: first one is it’s employees, they will pass the security gate and directly go to their floors using the security cards; the second one is the VIP circulation: they will be greeted at the front desk, and taking to a private elevator all the way to the top of the building lounge. Third one is the visitors: they first need to go through a separate visitor verification area, and then enter the waiting area. There they can watch the company’s exhibition to get a better understand of the company. Then, accompanied by the staff or enter the designated floor. The three-floor tall grand lobby space will elevate the office tower luxury standard.

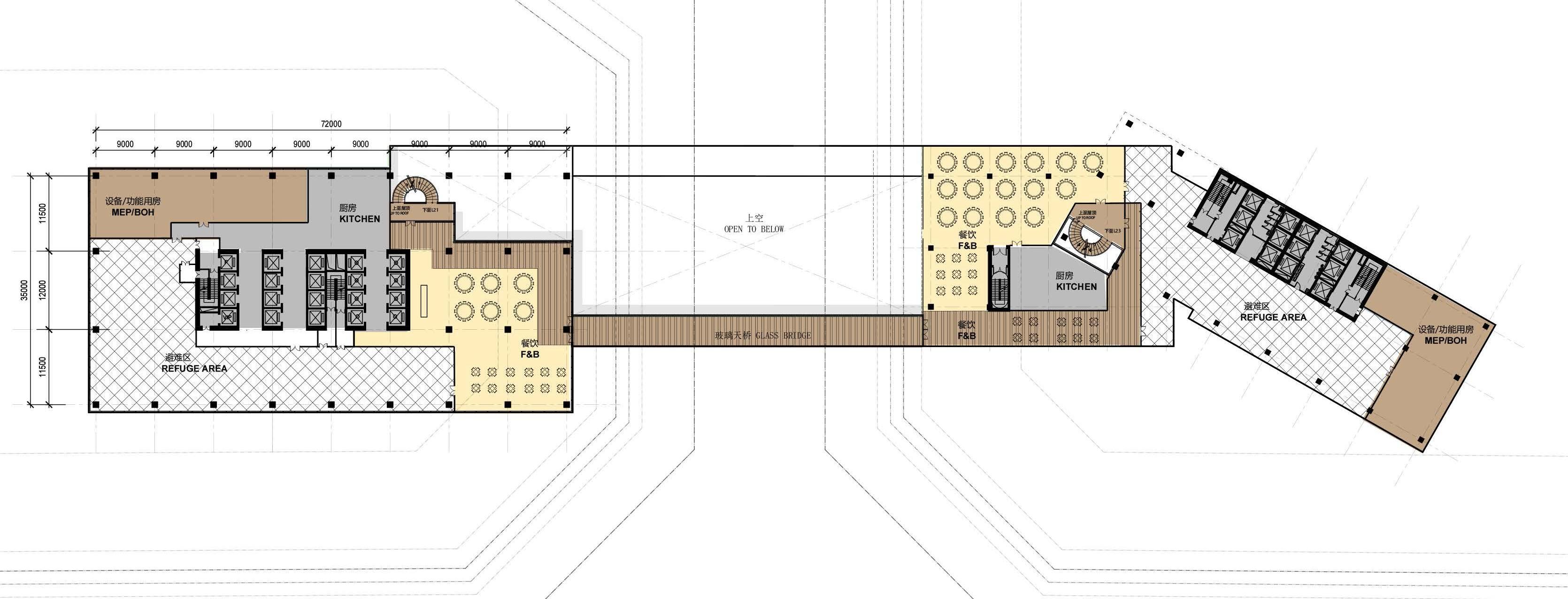
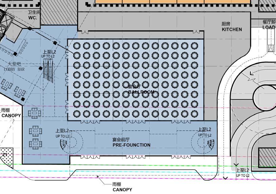
Next is the circulations of the luxury hotel and apartment: they both enter the different lobby along the south side of the main drop-off area. The hotel main facilities also located at the podium area due to it’s large sizes, especially the Grand Ballroom is located at the first floor, to reduce major exit stairway needs and have directly access to the street. The guest room floors are located in the lower bank of the tower to better connected with the amenities. The flow of people for the service apartment enters from the west side of the two lobbies. The apartment unit is located in the upper part of the tower to take advantage of the best city views, therefore have more market value. The main amenities for Apartment is located at the 100 meter high sky bridge, including residence club, lounge, dinning, coffee or tea and meeting spaces. A gym is also located here with a glassbottom swimming pool, the only one in the city. They can be shared by the office people and public, will become one of the most popular spot in town.

Commercial entertainment occupies the bottom 5 to 6 floors of the two sites . It is connected by sky bridges and underground to form an wholistic retail/entertainment center. Above ground parking facilities have been arranged between the 3-5 floors of the D9 site podium, that will reduce the construction cost caused by a large number of parking in the basement, and take advantage of the zero FAR area per government zoning. It is suggested to use an overpass on the second floor to connect the Sun and Moon Plaza in the West. These will not only providing convenience for customers, but also increase their respective commercial value. The first two floors of the retail space along the main streets are dedicated to international brand name retailers, customers can enter from both street directly or from inside of the mall.The whole retaill center can be fully enclosed with glasses or partial open to take advantage of the natural ventilation and warm weather of Haikou. The sunken plazas at the northwest, northeast and central connected B1 retail directly to ground, fully of daylight. Plus the grand outdoor walkway and stairways connect directly to the second floor really creates multiple first retail floor concet ommercial concept which will greatly enhance the retai values.

Each site has two car ramps to connect the above and underground parking garages. The loading zone is concentrated in the central section of the first underground, which efficiently serves all functional areas.

DESIGN NARRATIVE 设计内容说明 2021 - 03 - 30 | HAIKOU DAYINGSHAN NEW CITY CENTER PROJECT 海口市大英山新城市中心区D01、D09地块项目
2021 - 03 - 30 | HAIKOU DAYINGSHAN NEW CITY CENTER PROJECT 海口市大英山新城市中心区D01、D09地块项目
SUGGESTED PROJECT TITLE 项目名称建议 海口自贸广场
海口国兴大厦 Haikou Guxin
海口世贸中心
FTP - Haikou (Free Trade Plaza)
Plaza
Haikou World Trade Center
2021 - 03 - 30 | HAIKOU DAYINGSHAN NEW CITY CENTER PROJECT 海口市大英山新城市中心区D01、D09地块项目 SUGGESTED PROJECT TITLE 项目名称建议
海口自贸港
海口自贸中心
FTH - Haikou (Free Trade Harbor) FTC - Haikou (Free Trade Center)

海南自贸之门

Hainan Free Trade Gateway

呼应北侧办公楼

“全球贸易之窗”

Corresponds to the “World Trade Window” office towers North of site.

2021 - 03 - 30 | HAIKOU DAYINGSHAN NEW CITY CENTER PROJECT 海口市大英山新城市中心区D01、D09地块项目 SUGGESTED PROJECT
项目名称建议
TITLE
2021 - 03 - 30 | HAIKOU DAYINGSHAN NEW CITY CENTER PROJECT 海口市大英山新城市中心区D01、D09地块项目 SUGGESTED PROJECT TITLE 项目名称建议
代表海南(Hainan)、海口(Haikou)、快乐(Happy)、港湾(Harbor) 、枢纽(Hub),以 及项目的整体建筑造型。 The TH E
The H

COST ESTIMATE 项目投资估算表

本估算为建筑建设投资估算,下述费用不包括:

1)土地费用

2)财务费用

3)开业开办费

4)可移动办公家具、装饰品、艺术品等租户自身的装修

6)出资方管理费

7)营销费用

8)广告费

至本估算编制时点2021年1季度后之通货膨胀(材料人工市场价波动)。

2021 - 03 - 30 | HAIKOU DAYINGSHAN NEW CITY CENTER PROJECT 海口市大英山新城市中心区D01、D09地块项目
海 南 省 海 口 市 海 口 市 大 英 山 新 城 市 中 心 D 0 1 、 D 0 9 地 块 项 目 概 念 方 案 面 积 ( ㎡ ) 单 方 造 价 ( 元 / ㎡ ) 金 额 ( 元 ) 、 建 安 费 494,982 7,2353,581,221,200 1.1 办公 70,210 9,000 631,890,000 1.2 商业裙房 106,866 8,600 919,047,600 1.3 酒店 37,190 14,000 520,660,000 1.4 公寓 44,445 8,800 391,116,000 1.5 停车楼 15,600 4,100 63,960,000 1.6 地下商业 21,000 7,000 147,000,000 1.7 地下停车库 122,642 4,300 527,360,600 1.8 桩基础和围护工程 49,700 6,000 298,200,000 1.9 室外工程 27,329 3,000 81,987,000 二、 二 类 费 494,982 1,400 692,974,800 三 、 预 备 费 1 0 % 494,982 864 427,419,600 四 、 总 投 资 额 494,982 9,4994,701,615,600 投 资 估 算 序 号 项 目
投 资 估 算 汇 总
2021 - 03 - 30 | HAIKOU DAYINGSHAN NEW CITY CENTER PROJECT 海口市大英山新城市中心区D01、D09地块项目
单 位 : 元 单 位 数 量 指 标 、 建 筑 工 程 费 2,667,413,200 0 913,808,000 0 3,581,221,200 ㎡ 494,982 7,235 1 办 公 456,365 000 0 175,525,000 0 631,890 000 ㎡ 70,210 9,000 1.1 结构 175,525,000 0 0 0 175,525 000 ㎡ 70,210 2,500 1.2 建筑工程 70,210,000 0 0 0 70,210,000 ㎡ 70,210 1,000 1.3 机电工程 0 0 175,525,000 0 175,525 000 ㎡ 70,210 2,500 1.4 外墙工程 105,315,000 0 0 0 105,315 000 ㎡ 70,210 1,500 1.5精装修工程 105,315,000 0 0 0 105,315 000 ㎡ 70,210 1,500 2 商 业 裙 房 651,882 600 0 267,165,000 0 919,047 600 ㎡ 106,866 8,600 2.1 结构 213,732,000 0 0 0 213,732 000 ㎡ 106,866 2,000 2.2 建筑工程 106,866,000 0 0 0 106,866 000 ㎡ 106,866 1,000 2.3 机电工程 0 0 267,165,000 0 267,165 000 ㎡ 106,866 2,500 2.4 外墙工程 170,985,600 0 0 0 170,985 600 ㎡ 106,866 1,600 2.5精装修工程 160,299,000 0 0 0 160,299 000 ㎡ 106,866 1,500 店铺内毛坯 3 酒 店 390,495 000 0 130,165,000 0 520,660,000 ㎡ 37,190 14,000 3.1 结构 92,975,000 0 0 0 92,975,000 ㎡ 37,190 2,500 3.2 建筑工程 55,785,000 0 0 0 55,785,000 ㎡ 37,190 1,500 3.3 机电工程 0 0 130,165,000 0 130,165 000 ㎡ 37,190 3,500 3.4 外墙工程 55,785,000 0 0 0 55,785,000 ㎡ 37,190 1,500 3.5精装修工程 185,950,000 0 0 0 185,950 000 ㎡ 37,190 5,000 4 公 寓 302,226 000 0 88,890,000 0 391,116,000 ㎡ 44 445 8,800 4.1 结构 111,112,500 0 0 0 111,112,500 ㎡ 44,445 2,500 4.2 建筑工程 57,778,500 0 0 0 57,778,500 ㎡ 44,445 1,300 4.3 机电工程 0 0 88,890,000 0 88,890,000 ㎡ 44,445 2,000 4.4 外墙工程 66,667,500 0 0 0 66,667,500 ㎡ 44,445 1,500 4.5精装修工程 66,667,500 0 0 0 66,667,500 ㎡ 44,445 1,500 户内毛坯 5 停 车 楼 48,360,000 0 15 600,000 0 63,960,000 ㎡ 15,600 4 100 5.1 结构 23,400,000 0 0 0 23,400,000 ㎡ 15,600 1,500 5.2 建筑工程 9,360,000 0 0 0 9,360,000 ㎡ 15,600 600 5.3 机电工程 0 0 15,600,000 0 15,600,000 ㎡ 15,600 1,000 5.4 外墙工程 12,480,000 0 0 0 12,480,000 ㎡ 15,600 800 5.5精装修工程 3,120,000 0 0 0 3,120,000 ㎡ 15,600 200 6 地 下 商 业 94,500,000 0 52,500,000 0 147,000 000 ㎡ 21,000 7,000 6.1 结构 42,000,000 0 0 0 42,000,000 ㎡ 21,000 2,000 6.2 建筑工程 21,000,000 0 0 0 21,000,000 ㎡ 21,000 1,000 6.3 机电工程 0 0 52,500,000 0 52,500,000 ㎡ 21,000 2,500 6.4 外墙工程 0 0 0 0 0 ㎡ 21,000 0 6.5精装修工程 31,500,000 0 0 0 31,500,000 ㎡ 21,000 1,500 店铺内毛坯 7 地 下 停 车 库 343,397 600 0 183,963,000 0 527,360,600 ㎡ 122,642 4,300 7.1 结构 245,284,000 0 0 0 245,284,000 ㎡ 122,642 2,000 7.2 建筑工程 73,585,200 0 0 0 73,585,200 ㎡ 122,642 600 7.3 机电工程 0 0 183,963,000 0 183,963 000 ㎡ 122,642 1,500 7.4 外墙工程 0 0 0 0 0 ㎡ 122,642 0 7.5精装修工程 24,528,400 0 0 0 24,528,400 ㎡ 122,642 200 8 桩 基 础 和 围 护 工 程 298,200 000 0 0 0 298,200,000 ㎡ 49,700 6,000 9 室 外 工 程 81,987,000 0 0 0 81,987,000 ㎡ 27 329 3,000 二 、 工 程 建 设 其 他 费 用 0 0 0 692,974,800 692,974,800 ㎡ 494,982 1,400 不含土地费 三 、 预 备 费 ( 1 +2 ) 1 0 % 0 0 0 427,419 600 427,419 600 ㎡ 494,982 864 四 、 ¥4,701,615,600 ㎡ 494,982 9,499 项 目 总 投 资 ( +二 +三 ) 备 注 技 术 经 济 指 标 项 目 名 称 : 海 口 市 大 英 山 新 城 市 中 心 D 0 1 、 D 0 9 地 块 项 目 概 念 方 案 序 号 工 程 和 费 用 名 称 建 筑 工 程 费 设 备 购 置 费 安 装 工 程 费 其 他 费 用 合 计
COST ESTIMATE 项目投资估算表

PROJECT SUMMARY TABULATION 经济技术指标

HEADQUARTER OFFICE 总部办公 LEASED OFFICE 入驻企业办公 CULTURAL CENTER 文化艺术中心 ABOVE GROUND PARKING 地上停车楼 UPSCALE APARTMENT 高端公寓 5- STAR HOTEL 五星级酒店 HIGH-END RETAIL 精品商业 CONNECTING RIYUE PLAZA 连接日月广场 SHARED SKY LOBBY AMENITY 共用空中大堂配套 D01 要求 Requirement 单位 Unit 26,100 m 2 119,538 m 2 9,817 8000~12000 59,632 56000~60000 45,3003,000 110,750 m 2 12,250 24500 74000 218000 m 2 13050 m 2 50% % 4.58 <200 m 5220 m 2 20% %层 Level 1207 辆 Stall1307 2539 辆 Stall 503 2036 海口市大英山新城市中心区D01地块项目方案设计经济技术指标 Haikou Dayingshan New Urban Center of Plot D01 Area Summary 199.5 11254 185,007 总建筑面积 Total Building Area 建筑基底面积 Building Footprint 建筑密度 Density 免税精品商城 Duty Free Store (Retail) 容积率 FAR 4.58 避难层及配套设施 Refuge Floor & Amenity 43.1% 其中 Within 地上 Above GoundTBD 26,100 办公楼 Office 其中 Within 非机动⻋停⻋位数量 Bike Parking 项目 Item 方案指标 Current 47,753 地下室层数 Underground Level 1330 2.5 31% 8086 机动⻋停⻋数量 Vehicle Parking 绿地率 Green Ratio 绿地面积 Green Area 其中 地上计容建筑面积 Above Ground Area 119,471 建筑高度 Building Height 规划用地面积 Site Area 地下停⻋ Parking 46387 m2
4,015 入驻企业办公
总部办公
8,649 辆 Stall 地下 UndergroundTBD 地上
20 辆 Stall 地下
1310 4775 m2 2021 - 03 - 30 | HAIKOU DAYINGSHAN NEW CITY CENTER PROJECT 海口市大英山新城市中心区D01、D09地块项目
地下不计容面积 Underground Area 65536 物业管理&后勤用房 BOH
Rent Office 文化体验中心 Culture Center 390
Headquater 免税精品商城 Duty Free Store (Retail) 10,500
Above Gound
Underground

PROJECT SUMMARY TABULATION 经济技术指标

海口市大英山新城市中心区D09地块项目方案设计经济技术指标

D09 要求 Requirement 单位 Unit 26,600 m 2 128,212 m 2 37,471 38,200 25,480 12,925 22,650 26,000 3,000 m 2 111,250 m 2 12,250 0 74500 251,700 m 2 14630 m 2 55% % 4.82 <200 m 5320 m 2 20% %层 Level 1207 辆 Stall 377 830 2936 辆 Stall 300 2636 酒店裙房 Hotel Podium 避难层及配套设施 Refuge Floor & Amenity 3,400 31820 免税精品商城 Duty Free Store (Retail) 10,600 物业管理&后勤用房 BOH 8,649 容面积 Underground Area
Haikou Dayingshan New Urban Center of Plot D09 Area Summary 方案指标 Current 26,600 128,250 m 2 16,429 酒店公寓楼 Hotel/Apt Tower 文化体验中心 Culture Center 项目 积 容建筑面积 Above Ground Area 酒店 Hotel 公寓 Apt 免税精品商城 Duty
Store (Retail) 酒店会议中心 Hotel
Center/ L7 amenities 积 Building Footprint 14058 52.8% Total Building Area 194,325 停⻋ Parking 46826 25% Underground Level 199.5 6625 Building Height 4.82 机动⻋停⻋数量 Vehicle Parking 1196 其中 Within 地上 Above Gound413 3300 其中 Within 地上 Above Gound300 辆 Stall 地下 Underground3000 非机动⻋停⻋位数量 Bike Parking 3,800 辆 Stall 地下 Underground783 m 2 66075 2.5 HEADQUARTER OFFICE 总部办公 LEASED OFFICE 入驻企业办公 CULTURAL CENTER 文化艺术中心 ABOVE GROUND PARKING 地上停车楼 UPSCALE APARTMENT 高端公寓 5- STAR HOTEL 五星级酒店 HIGH-END RETAIL 精品商业 CONNECTING RIYUE PLAZA 连接日月广场 SHARED SKY LOBBY AMENITY 共用空中大堂配套 2021 - 03 - 30 | HAIKOU DAYINGSHAN NEW CITY CENTER PROJECT 海口市大英山新城市中心区D01、D09地块项目
Free
Conference

PROJECT SUMMARY TABULATION 经济技术指标

单位 Unit m 2 海口市大英山新城市中心区地块项目方案设计经济技术指标 Haikou Dayingshan New Urban Center Area Summary 地上不计容建筑面积 Not counted into FAR 廊与裙房连接 Sky bridge and podium connection 4,912 HEADQUARTER OFFICE 总部办公 LEASED OFFICE 入驻企业办公 CULTURAL CENTER 文化艺术中心 ABOVE GROUND PARKING 地上停车楼 UPSCALE APARTMENT 高端公寓 5- STAR HOTEL 五星级酒店 HIGH-END RETAIL 精品商业 CONNECTING RIYUE PLAZA 连接日月广场 SHARED SKY LOBBY AMENITY 共用空中大堂配套 2021 - 03 - 30 | HAIKOU DAYINGSHAN NEW CITY CENTER PROJECT 海口市大英山新城市中心区D01、D09地块项目

SECTION 3 SITE DESIGN & ANALYSIS

2021 - 03 - 30 | HAIKOU DAYINGSHAN NEW CITY CENTER PROJECT 海口市大英山新城市中心区D01、D09地块项目
第三部分 总图设计及规划分析
省政府 PROVINCIAL GOVERNMENT 200200 250450 1550 80 8020 220 250 150 80 50 50 100 100 80150 50 50 160 HONGCHENG LAKE 红城湖 越过100米视野 67.5˚ 越过50米视野 42.5˚ 越过50米视野 12.5˚ 越过80米视野 25˚ 2021 - 03 - 30 | HAIKOU DAYINGSHAN NEW CITY CENTER PROJECT 海口市大英山新城市中心区D01、D09地块项目 URBAN CONTEXT ANALYSIS 周边分析图 N

GUARANTEE VIEWS TO LAKE AND PARK

中心下沉广场(一心)

TOWERS PLACES NEAR CENTER OF SITE TO MINIMIZE DISRUPTIONS WITH SURROUNDING BUILDINGS

确保湖景公园视野
CENTRAL SUNKEN PLAZA (ONE HEARTH) 位于基地中央的双塔, 减少和周边建筑的相互干扰
省政府 PROVINCIAL GOVERNMENT MAX.460M CITY AXIS 城市主轴线 PROJECT CENTRAL AXIS 项目轴线 RIYUE PLAZA HAIKOU TWIN TOWERS 日月广场 HNA HAOTING 海航豪庭 D01地块 PLOT D01PLOT D09 D09地块 海口双子塔 2021 - 03 - 30 | HAIKOU DAYINGSHAN NEW CITY CENTER PROJECT 海口市大英山新城市中心区D01、D09地块项目 URBAN CONTEXT ANALYSIS 周边分析图 N
2021 - 03 - 30 | HAIKOU DAYINGSHAN NEW CITY CENTER PROJECT 海口市大英山新城市中心区D01、D09地块项目 MASSING AND SETBACK ANALYSIS 建筑量体与退线分析

MASSING & HEIGHT ANALYSIS 建筑高度与体量分析图

CITY AXIS 城市主轴线 PROJECT CENTRAL AXIS 项目轴线 RIYUE PLAZA HAIKOU TWIN TOWERS 日月广场 HNA HAOTING 海航豪庭 D01地块 PLOT D01PLOT D09 D09地块 海口双子塔 2021 - 03 - 30 | HAIKOU DAYINGSHAN NEW CITY CENTER PROJECT 海口市大英山新城市中心区D01、D09地块项目

DEFAULT PLACEMENT OF TOWERS ON THE SIDES, AS TWO SEPARATE PROJECTS

MASSING & HEIGHT ANALYSIS 建筑高度与体量分析图

BRING BOTH TOWERS AND PODIUMS CLOSER

HARBOR

STRENGTHEN CONNECTION IN BETWEEN

ROTATE HOTEL TOWER FOR VIEWS TO LAKE; CUT OUT RETAIL BOULEVARD FROM PODIUM

EXTEND PUBLIC GREEN SPACE FROM GROUND TO SKY TO BECOME ICONIC LANDMARK

塔楼以分开的位置座落于地块上,
各自为政,如同两个项目
将塔楼及裙房集中,产生 1+1>2
以中心为项目核心、打造文化港湾
旋转建筑量体面向红城湖, 裙房切割出购物步道
CREATE THE CENTRAL
加强塔楼及裙房联系
延展视线,创造地标
2021 - 03 - 30 | HAIKOU DAYINGSHAN NEW CITY CENTER PROJECT 海口市大英山新城市中心区D01、D09地块项目

SITE PLAN ANALYSIS

国兴大道 规划六路 规 划 十 九 路 勋 亭 路 五 指 山 南 路 O 上空 OPEN TO BELOW DN TO B1 下沉广场 SUNKEN PLAZA 酒店大堂 HOTEL LOBBY 公寓大堂 SERVICE APT. LOBBY RETAIL UP TO L2 上空 OPEN TO BELOW UP TO L2 RETAIL RETAIL FIRE CON. RETAIL RETAIL RETAIL CORE FIRE RESCUE AREA RETAIL FIRE CON. RETAIL RETAIL RETAIL RETAIL 总部办公大堂 HQ. OFFICE LOBBY 总部办公下客区 OFFICE DROP-OFF 出租办公大堂 LEASING OFFICE LOBBY 出租办公下客区 LEASE OFFICE DROP-OFF RETAIL RETAIL FIRE RESCUE AREA RETAIL UP TO L2 UP TO L2 DN TO B1 上空 OPEN TO BELOW DN TO B1 下沉广场 SUNKEN PLAZA 下沉广场 SUNKEN PLAZA 下沉广场 SUNKEN PLAZA UP TO L2 DN TO B1 UP TO L2 DN TO B1 RETAIL RETAIL RETAIL 上 DN TO B1 DN TO B1 UP TO L2 UP TO L2 RETAIL 上空 OPEN TO BELOW UP TO L2 SERVICE RAMP RETAIL RETAIL RETAIL RETAIL RETAIL RETAIL BALLROOM PRE-FOUNCTION KITCHEN RETAIL RETAIL RETAIL RETAIL RETAIL RETAIL RETAIL RETAIL RETAIL RETAIL RETAIL RETAIL RETAIL RETAIL F&B F&B 登记 REGIST. ADMIN. 大堂吧 LOBBY BAR MAIL BOX DN TO B1 RESTAURANT 上空 OPEN TO BELOW F&B RETAIL RETAIL RETAIL RETAIL WC. DN TO B1 LOADING RETAIL 上空 OPEN TO BELOW 上空 OPEN TO BELOW RETAIL UP TO L2 UP TO L2 JUNIOR ANCHOR DUTY FREE ANCHOR RETAIL JUNIOR ANCHOR F&B F&B F&B DUTY FREE ANCHOR JUNIOR ANCHOR JUNIOR ANCHOR JUNIOR ANCHOR RETAIL WC. WC. MEP MEP RETAIL JUNIOR ANCHOR PASSENGER ELEV. PASSENGER ELEV. STORAGE CANOPY CANOPY CANOPY 上空 OPEN TO BELOW 上空 OPEN TO BELOW 上空 OPEN TO BELOW 152 398 62 216 322 232 147 496 33 804 161 CANOPY 21 BIKE ENTRY BIKE ENTRY BIKE ENTRY BIKE ENTRY SCALE: 1 600 1 L1 Plan DN DN DN DN UP 购物中心入口 RETAIL ENTRANCE 入驻企业入口 LEASED OFFICE ENTRANCE 公寓入口 APARTMENT ENTRANCE 酒店入口 HOTEL ENTRANCE 总部办公入口 HEADQUARTER ENTRANCE 宴会厅入口 GRAND BALL ROOM ENTRANCE 下沉广场商业 SUNKEN PLAZA RETAIL 2021 - 03 - 30 | HAIKOU DAYINGSHAN NEW CITY CENTER PROJECT 海口市大英山新城市中心区D01、D09地块项目
总平面分析

SITE PLAN ANALYSIS 总平面分析

国兴大道 规划六路 规 划 十 九 路 勋 亭 路 五 指 山 南 路 O 上空 OPEN TO BELOW DN TO B1 下沉广场 SUNKEN PLAZA 酒店大堂 HOTEL LOBBY 公寓大堂 SERVICE APT. LOBBY RETAIL UP TO L2 上空 OPEN TO BELOW UP TO L2 RETAIL RETAIL FIRE CON. RETAIL RETAIL RETAIL CORE FIRE RESCUE AREA RETAIL FIRE CON. RETAIL RETAIL RETAIL RETAIL 总部办公大堂 HQ. OFFICE LOBBY 总部办公下客区 OFFICE DROP-OFF 出租办公大堂 LEASING OFFICE LOBBY 出租办公下客区 LEASE OFFICE DROP-OFF RETAIL RETAIL FIRE RESCUE AREA RETAIL UP TO L2 UP TO L2 DN TO B1 上空 OPEN TO BELOW DN TO B1 下沉广场 SUNKEN PLAZA 下沉广场 SUNKEN PLAZA 下沉广场 SUNKEN PLAZA UP TO L2 DN TO B1 UP TO L2 DN TO B1 RETAIL RETAIL RETAIL 上 DN TO B1 DN TO B1 UP TO L2 UP TO L2 RETAIL 上空 OPEN TO BELOW UP TO L2 SERVICE RAMP RETAIL RETAIL RETAIL RETAIL RETAIL RETAIL BALLROOM PRE-FOUNCTION KITCHEN RETAIL RETAIL RETAIL RETAIL RETAIL RETAIL RETAIL RETAIL RETAIL RETAIL RETAIL RETAIL RETAIL RETAIL F&B F&B 登记 REGIST. ADMIN. 大堂吧 LOBBY BAR MAIL BOX DN TO B1 RESTAURANT 上空 OPEN TO BELOW F&B RETAIL RETAIL RETAIL RETAIL WC. DN TO B1 LOADING RETAIL 上空 OPEN TO BELOW 上空 OPEN TO BELOW RETAIL UP TO L2 UP TO L2 JUNIOR ANCHOR DUTY FREE ANCHOR RETAIL JUNIOR ANCHOR F&B F&B F&B DUTY FREE ANCHOR JUNIOR ANCHOR JUNIOR ANCHOR JUNIOR ANCHOR RETAIL WC. WC. MEP MEP RETAIL JUNIOR ANCHOR PASSENGER ELEV. PASSENGER ELEV. STORAGE CANOPY CANOPY CANOPY 上空 OPEN TO BELOW 上空 OPEN TO BELOW 上空 OPEN TO BELOW 152 398 62 216 322 232 147 496 33 804 161 CANOPY 21 BIKE ENTRY BIKE ENTRY BIKE ENTRY BIKE ENTRY SCALE: 1 600 1 L1 Plan 宴会厅落客区 GRAND
公寓落客区 APT DROP-OFF 商业落客区 RETAIL
总部/出租办公落客区 HQ/LEASED
机场大巴乘车区 TOUR
出租车乘车区 TAXI
出租车乘车区 TAXI DROP-OFF 酒店落客区 HOTEL DROP-OFF 2021 - 03 - 30 | HAIKOU DAYINGSHAN NEW CITY CENTER PROJECT 海口市大英山新城市中心区D01、D09地块项目
BALLROOM DROP-OFF
DROP-OFF
OFFICE DROP-OFF
BUS DROP-OFF
DROP-OFF

PEDESTRIAN TRAFFIC ANALYSIS

国兴大道 规划六路 规 划 十 九 路 勋 亭 路 五 指 山 南 路 O 上空 OPEN TO BELOW DN TO B1 下沉广场 SUNKEN PLAZA 酒店大堂 HOTEL LOBBY 公寓大堂 SERVICE APT. LOBBY RETAIL UP TO L2 上空 OPEN TO BELOW UP TO L2 RETAIL RETAIL FIRE CON. RETAIL RETAIL RETAIL CORE FIRE RESCUE AREA RETAIL FIRE CON. RETAIL RETAIL RETAIL RETAIL 总部办公大堂 HQ. OFFICE LOBBY 总部办公下客区 OFFICE DROP-OFF 出租办公大堂 LEASING OFFICE LOBBY 出租办公下客区 LEASE OFFICE DROP-OFF RETAIL RETAIL FIRE RESCUE AREA RETAIL UP TO L2 UP TO L2 DN TO B1 上空 OPEN TO BELOW DN TO B1 下沉广场 SUNKEN PLAZA 下沉广场 SUNKEN PLAZA 下沉广场 SUNKEN PLAZA UP TO L2 DN TO B1 UP TO L2 DN TO B1 RETAIL RETAIL RETAIL 上 DN TO B1 DN TO B1 UP TO L2 UP TO L2 RETAIL 上空 OPEN TO BELOW UP TO L2 SERVICE RAMP RETAIL RETAIL RETAIL RETAIL RETAIL RETAIL BALLROOM PRE-FOUNCTION KITCHEN RETAIL RETAIL RETAIL RETAIL RETAIL RETAIL RETAIL RETAIL RETAIL RETAIL RETAIL RETAIL RETAIL RETAIL F&B F&B 登记 REGIST. ADMIN. 大堂吧 LOBBY BAR MAIL BOX DN TO B1 RESTAURANT 上空 OPEN TO BELOW F&B RETAIL RETAIL RETAIL RETAIL WC. DN TO B1 LOADING RETAIL 上空 OPEN TO BELOW 上空 OPEN TO BELOW RETAIL UP TO L2 UP TO L2 JUNIOR ANCHOR DUTY FREE ANCHOR RETAIL JUNIOR ANCHOR F&B F&B F&B DUTY FREE ANCHOR JUNIOR ANCHOR JUNIOR ANCHOR JUNIOR ANCHOR RETAIL WC. WC. MEP MEP RETAIL JUNIOR ANCHOR PASSENGER ELEV. PASSENGER ELEV. STORAGE CANOPY CANOPY CANOPY 上空 OPEN TO BELOW 上空 OPEN TO BELOW 上空 OPEN TO BELOW 152 398 62 216 322 232 147 496 33 804 161 CANOPY 21 BIKE ENTRY BIKE ENTRY BIKE ENTRY BIKE ENTRY SCALE: 1 600 1 L1 Plan 2021 - 03 - 30 | HAIKOU DAYINGSHAN NEW CITY CENTER PROJECT 海口市大英山新城市中心区D01、D09地块项目
人行流线分析图

VEHICULAR TRAFFIC ANALYSIS 车行流线分析图

国兴大道 规划六路 规 划 十 九 路 勋 亭 路 五 指 山 南 路 O 上空 OPEN TO BELOW DN TO B1 下沉广场 SUNKEN PLAZA 酒店大堂 HOTEL LOBBY 公寓大堂 SERVICE APT. LOBBY RETAIL UP TO L2 上空 OPEN TO BELOW UP TO L2 RETAIL RETAIL FIRE CON. RETAIL RETAIL RETAIL CORE FIRE RESCUE AREA RETAIL FIRE CON. RETAIL RETAIL RETAIL RETAIL 总部办公大堂 HQ. OFFICE LOBBY 总部办公下客区 OFFICE DROP-OFF 出租办公大堂 LEASING OFFICE LOBBY 出租办公下客区 LEASE OFFICE DROP-OFF RETAIL RETAIL FIRE RESCUE AREA RETAIL UP TO L2 UP TO L2 DN TO B1 上空 OPEN TO BELOW DN TO B1 下沉广场 SUNKEN PLAZA 下沉广场 SUNKEN PLAZA 下沉广场 SUNKEN PLAZA UP TO L2 DN TO B1 UP TO L2 DN TO B1 RETAIL RETAIL RETAIL 上 DN TO B1 DN TO B1 UP TO L2 UP TO L2 RETAIL 上空 OPEN TO BELOW UP TO L2 SERVICE RAMP RETAIL RETAIL RETAIL RETAIL RETAIL RETAIL BALLROOM PRE-FOUNCTION KITCHEN RETAIL RETAIL RETAIL RETAIL RETAIL RETAIL RETAIL RETAIL RETAIL RETAIL RETAIL RETAIL RETAIL RETAIL F&B F&B 登记 REGIST. ADMIN. 大堂吧 LOBBY BAR MAIL BOX DN TO B1 RESTAURANT 上空 OPEN TO BELOW F&B RETAIL RETAIL RETAIL RETAIL WC. DN TO B1 LOADING RETAIL 上空 OPEN TO BELOW 上空 OPEN TO BELOW RETAIL UP TO L2 UP TO L2 JUNIOR ANCHOR DUTY FREE ANCHOR RETAIL JUNIOR ANCHOR F&B F&B F&B DUTY FREE ANCHOR JUNIOR ANCHOR JUNIOR ANCHOR JUNIOR ANCHOR RETAIL WC. WC. MEP MEP RETAIL JUNIOR ANCHOR PASSENGER ELEV. PASSENGER ELEV. STORAGE CANOPY CANOPY CANOPY 上空 OPEN TO BELOW 上空 OPEN TO BELOW 上空 OPEN TO BELOW 152 398 62 216 322 232 147 496 33 804 161 CANOPY 21 BIKE ENTRY BIKE ENTRY BIKE ENTRY BIKE ENTRY SCALE: 1 600 1 L1 Plan 2021 - 03 - 30 | HAIKOU DAYINGSHAN NEW CITY CENTER PROJECT 海口市大英山新城市中心区D01、D09地块项目
国兴大道 规划六路 规 划 十 九 路 勋 亭 路 五 指 山 南 路 进入地下停车
进入地下停车
进入地下停车
进入地下停车 ENTER UNDERGROUND PARKING O 上空 OPEN TO BELOW DN TO B1 下沉广场 SUNKEN PLAZA 酒店大堂 HOTEL LOBBY 公寓大堂 SERVICE APT. LOBBY RETAIL UP TO L2 上空 OPEN TO BELOW UP TO L2 RETAIL RETAIL FIRE CON. RETAIL RETAIL RETAIL CORE FIRE RESCUE AREA RETAIL FIRE CON. RETAIL RETAIL RETAIL RETAIL 总部办公大堂 HQ. OFFICE LOBBY 总部办公下客区 OFFICE DROP-OFF 出租办公大堂 LEASING OFFICE LOBBY 出租办公下客区 LEASE OFFICE DROP-OFF RETAIL RETAIL FIRE RESCUE AREA RETAIL UP TO L2 UP TO L2 DN TO B1 上空 OPEN TO BELOW DN TO B1 下沉广场 SUNKEN PLAZA 下沉广场 SUNKEN PLAZA 下沉广场 SUNKEN PLAZA UP TO L2 DN TO B1 UP TO L2 DN TO B1 RETAIL RETAIL RETAIL 上 DN TO B1 DN TO B1 UP TO L2 UP TO L2 RETAIL 上空 OPEN TO BELOW UP TO L2 SERVICE RAMP RETAIL RETAIL RETAIL RETAIL RETAIL RETAIL BALLROOM PRE-FOUNCTION KITCHEN RETAIL RETAIL RETAIL RETAIL RETAIL RETAIL RETAIL RETAIL RETAIL RETAIL RETAIL RETAIL RETAIL RETAIL F&B F&B 登记 REGIST. ADMIN. 大堂吧 LOBBY BAR MAIL BOX DN TO B1 RESTAURANT 上空 OPEN TO BELOW F&B RETAIL RETAIL RETAIL RETAIL WC. DN TO B1 LOADING RETAIL 上空 OPEN TO BELOW 上空 OPEN TO BELOW RETAIL UP TO L2 UP TO L2 JUNIOR ANCHOR DUTY FREE ANCHOR RETAIL JUNIOR ANCHOR F&B F&B F&B DUTY FREE ANCHOR JUNIOR ANCHOR JUNIOR ANCHOR JUNIOR ANCHOR RETAIL WC. WC. MEP MEP RETAIL JUNIOR ANCHOR PASSENGER ELEV. PASSENGER ELEV. STORAGE CANOPY CANOPY CANOPY 上空 OPEN TO BELOW 上空 OPEN TO BELOW 上空 OPEN TO BELOW 152 398 62 216 322 232 147 496 33 804 161 CANOPY 21 BIKE ENTRY BIKE ENTRY BIKE ENTRY BIKE ENTRY SCALE: 1 600 1 L1 Plan 2021 - 03 - 30 | HAIKOU DAYINGSHAN NEW CITY CENTER PROJECT 海口市大英山新城市中心区D01、D09地块项目 BIKE TRAFFIC ANALYSIS 非机动车流线分析图
ENTER UNDERGROUND PARKING
ENTER UNDERGROUND PARKING
ENTER UNDERGROUND PARKING

SERVICE VEHICLE TRAFFIC ANALYSIS 货车流线分析图

国兴大道 规划六路 规 划 十 九 路 勋 亭 路 五 指 山 南 路 进入地下一层卸货区
O 上空 OPEN TO BELOW DN TO B1 下沉广场 SUNKEN PLAZA 酒店大堂 HOTEL LOBBY 公寓大堂 SERVICE APT. LOBBY RETAIL UP TO L2 上空 OPEN TO BELOW UP TO L2 RETAIL RETAIL FIRE CON. RETAIL RETAIL RETAIL CORE FIRE RESCUE AREA RETAIL FIRE CON. RETAIL RETAIL RETAIL RETAIL 总部办公大堂 HQ. OFFICE LOBBY 总部办公下客区 OFFICE DROP-OFF 出租办公大堂 LEASING OFFICE LOBBY 出租办公下客区 LEASE OFFICE DROP-OFF RETAIL RETAIL FIRE RESCUE AREA RETAIL UP TO L2 UP TO L2 DN TO B1 上空 OPEN TO BELOW DN TO B1 下沉广场 SUNKEN PLAZA 下沉广场 SUNKEN PLAZA 下沉广场 SUNKEN PLAZA UP TO L2 DN TO B1 UP TO L2 DN TO B1 RETAIL RETAIL RETAIL 上 DN TO B1 DN TO B1 UP TO L2 UP TO L2 RETAIL 上空 OPEN TO BELOW UP TO L2 SERVICE RAMP RETAIL RETAIL RETAIL RETAIL RETAIL RETAIL BALLROOM PRE-FOUNCTION KITCHEN RETAIL RETAIL RETAIL RETAIL RETAIL RETAIL RETAIL RETAIL RETAIL RETAIL RETAIL RETAIL RETAIL RETAIL F&B F&B 登记 REGIST. ADMIN. 大堂吧 LOBBY BAR MAIL BOX DN TO B1 RESTAURANT 上空 OPEN TO BELOW F&B RETAIL RETAIL RETAIL RETAIL WC. DN TO B1 LOADING RETAIL 上空 OPEN TO BELOW 上空 OPEN TO BELOW RETAIL UP TO L2 UP TO L2 JUNIOR ANCHOR DUTY FREE ANCHOR RETAIL JUNIOR ANCHOR F&B F&B F&B DUTY FREE ANCHOR JUNIOR ANCHOR JUNIOR ANCHOR JUNIOR ANCHOR RETAIL WC. WC. MEP MEP RETAIL JUNIOR ANCHOR PASSENGER ELEV. PASSENGER ELEV. STORAGE CANOPY CANOPY CANOPY 上空 OPEN TO BELOW 上空 OPEN TO BELOW 上空 OPEN TO BELOW 152 398 62 216 322 232 147 496 33 804 161 CANOPY 21 BIKE ENTRY BIKE ENTRY BIKE ENTRY BIKE ENTRY SCALE: 1 600 1 L1 Plan 2021 - 03 - 30 | HAIKOU DAYINGSHAN NEW CITY CENTER PROJECT 海口市大英山新城市中心区D01、D09地块项目
ENTER UNDERGROUND PARKING

SERVICE VEHICLE B1 LOADING ANALYSIS 地下ㄧ层卸货流线分析图

商业卸货区 RETAIL LOADING 商业卸货区 RETAIL LOADING 商业卸货区 RETAIL LOADING 办公卸货区 OFFICE LOADING 公寓/酒店卸货区 APT/HOTEL LOADING 超市卸货区 SUPERMARKET LOADING 商业卸货区 RETAIL LOADING -7.00m CONNECT TO SUBWAY AND SHOPPING CENTER
SUPER MARKET L1 UP TO L1 TRUCK LANE RETAIL B2 DN TO B2 L1 UP TO L1 B2 DN TO B2 VIP O RETAIL DN DN F&B DN UP TO L1 UP TO L1 DN L1 UP TO L1 BOH. MEP. F&B F&B F&B F&B F&B F&B F&B L1 UP TO L1 L1 UP TO L1 L1 UP TO L1 L1 UP TO L1 F&B BOH. MEP. MEP. MEP. F&B F&B F&B F&B F&B F&B HOTEL BOH. WC. WC. WC. WC. RETAIL RETAIL MEP. 3000 平方米 HOTEL BOH. MEP. F&B F&B RETAIL BOH. F&B B2 DN TO B2 -7.00m MEP. F&B F&B RETAIL RETAIL RETAIL RETAIL RETAIL RETAIL RETAIL RETAIL RETAIL RETAIL RETAIL RETAIL RETAIL F&B RETAIL RETAIL RETAIL RETAIL RETAIL RETAIL RETAIL RETAIL RETAIL RETAIL UP TO L1 MEP. RETAIL RETAIL RETAIL RETAIL RETAIL RETAIL F&B UP TO L1 PASSENGER ELEV. PASSENGER ELEV. B B F&B DISPLAY PLATE FORM SERVICE RAMP DISPLAY PLATE FORM SCALE: 1 600 1 B1 Plan 2021 - 03 - 30 | HAIKOU DAYINGSHAN NEW CITY CENTER PROJECT 海口市大英山新城市中心区D01、D09地块项目
B1 PLAN

PARKING TRAFFIC ANALYSIS 停车流线分析图

国兴大道 规划六路 规 划 十 九 路 勋 亭 路 五 指 山 南 路 地上三层停车楼 ABOVE GROUND
前往地下停车
O 上空 OPEN TO BELOW DN TO B1 下沉广场 SUNKEN PLAZA 酒店大堂 HOTEL LOBBY 公寓大堂 SERVICE APT. LOBBY RETAIL UP TO L2 上空 OPEN TO BELOW UP TO L2 RETAIL RETAIL FIRE CON. RETAIL RETAIL RETAIL CORE FIRE RESCUE AREA RETAIL FIRE CON. RETAIL RETAIL RETAIL RETAIL 总部办公大堂 HQ. OFFICE LOBBY 总部办公下客区 OFFICE DROP-OFF 出租办公大堂 LEASING OFFICE LOBBY 出租办公下客区 LEASE OFFICE DROP-OFF RETAIL RETAIL FIRE RESCUE AREA RETAIL UP TO L2 UP TO L2 DN TO B1 上空 OPEN TO BELOW DN TO B1 下沉广场 SUNKEN PLAZA 下沉广场 SUNKEN PLAZA 下沉广场 SUNKEN PLAZA UP TO L2 DN TO B1 UP TO L2 DN TO B1 RETAIL RETAIL RETAIL 上 DN TO B1 DN TO B1 UP TO L2 UP TO L2 RETAIL 上空 OPEN TO BELOW UP TO L2 SERVICE RAMP RETAIL RETAIL RETAIL RETAIL RETAIL RETAIL BALLROOM PRE-FOUNCTION KITCHEN RETAIL RETAIL RETAIL RETAIL RETAIL RETAIL RETAIL RETAIL RETAIL RETAIL RETAIL RETAIL RETAIL RETAIL F&B F&B 登记 REGIST. ADMIN. 大堂吧 LOBBY BAR MAIL BOX DN TO B1 RESTAURANT 上空 OPEN TO BELOW F&B RETAIL RETAIL RETAIL RETAIL WC. DN TO B1 LOADING RETAIL 上空 OPEN TO BELOW 上空 OPEN TO BELOW RETAIL UP TO L2 UP TO L2 JUNIOR ANCHOR DUTY FREE ANCHOR RETAIL JUNIOR ANCHOR F&B F&B F&B DUTY FREE ANCHOR JUNIOR ANCHOR JUNIOR ANCHOR JUNIOR ANCHOR RETAIL WC. WC. MEP MEP RETAIL JUNIOR ANCHOR PASSENGER ELEV. PASSENGER ELEV. STORAGE CANOPY CANOPY CANOPY 上空 OPEN TO BELOW 上空 OPEN TO BELOW 上空 OPEN TO BELOW 152 398 62 216 322 232 147 496 33 804 161 CANOPY 21 BIKE ENTRY BIKE ENTRY BIKE ENTRY BIKE ENTRY SCALE: 1 600 1 L1 Plan 2021 - 03 - 30 | HAIKOU DAYINGSHAN NEW CITY CENTER PROJECT 海口市大英山新城市中心区D01、D09地块项目
PARKING
UNDERGROUND PARKING
车流 前往地下停车 VEHICULAR TRAFFIC 未开发道路 UNDEVELOPED ROAD ENTER UNDERGROUND PARKING 货运车流
ROUTE
FREIGHT
一期 地下停车层
PARKING LEVELS 地下商业与下沉广场
RETAIL
SUNKEN PLAZA
AND HOTEL TOWERS 办公及酒店塔楼 SKYBRIDGE 天桥 PODIUM SKYBRIDGE 裙房天桥 2021 - 03 - 30 | HAIKOU DAYINGSHAN NEW CITY CENTER PROJECT 海口市大英山新城市中心区D01、D09地块项目
分期建设分析图
PHASE 1
UNDERGROUND
UNDERGROUND
AND
OFFICE
PHASING ANALYSIS

PHASING ANALYSIS

国兴大道 规划六路 (未建) 规 划 十 九 路 未 建 勋 亭 路 五 指 山 南 路 ( ( VIP O 上空 OPEN TO BELOW DN TO B1 下沉广场 SUNKEN PLAZA 酒店大堂 HOTEL LOBBY 公寓大堂 SERVICE APT. LOBBY RETAIL UP TO L2 上空 OPEN TO BELOW UP TO L2 RETAIL RETAIL FIRE CON. RETAIL RETAIL RETAIL CORE FIRE RESCUE AREA RETAIL FIRE CON. RETAIL RETAIL RETAIL RETAIL 总部办公大堂 HQ. OFFICE LOBBY 总部办公下客区 OFFICE DROP-OFF 出租办公大堂 LEASING OFFICE LOBBY 出租办公下客区 LEASE OFFICE DROP-OFF RETAIL RETAIL FIRE RESCUE AREA RETAIL UP TO L2 UP TO L2 DN TO B1 上空 OPEN TO BELOW DN TO B1 下沉广场 SUNKEN PLAZA 下沉广场 SUNKEN PLAZA 下沉广场 SUNKEN PLAZA UP TO L2 DN TO B1 UP TO L2 DN TO B1 RETAIL RETAIL RETAIL 上 DN TO B1 DN TO B1 UP TO L2 UP TO L2 RETAIL 上空 OPEN TO BELOW UP TO L2 SERVICE RAMP RETAIL RETAIL RETAIL RETAIL RETAIL RETAIL BALLROOM PRE-FOUNCTION KITCHEN RETAIL RETAIL RETAIL RETAIL RETAIL RETAIL RETAIL RETAIL RETAIL RETAIL RETAIL RETAIL RETAIL RETAIL F&B F&B 登记 REGIST. ADMIN. 大堂吧 LOBBY BAR MAIL BOX DN TO B1 RESTAURANT 上空 OPEN TO BELOW F&B RETAIL RETAIL RETAIL RETAIL WC. DN TO B1 LOADING RETAIL 上空 OPEN TO BELOW 上空 OPEN TO BELOW RETAIL UP TO L2 UP TO L2 JUNIOR ANCHOR DUTY FREE ANCHOR RETAIL JUNIOR ANCHOR F&B F&B F&B DUTY FREE ANCHOR JUNIOR ANCHOR JUNIOR ANCHOR JUNIOR ANCHOR RETAIL WC. WC. MEP MEP RETAIL JUNIOR ANCHOR PASSENGER ELEV. PASSENGER ELEV. STORAGE CANOPY CANOPY CANOPY 上空 OPEN TO BELOW 上空 OPEN TO BELOW 上空 OPEN TO BELOW 152 398 62 216 322 232 147 496 33 804 161 CANOPY 21 BIKE ENTRY BIKE ENTRY BIKE ENTRY BIKE ENTRY SCALE: 1 600 1 L1 Plan 一期 PHASE 1 一期 PHASE 1 车流 前往地下停车 VEHICULAR TRAFFIC ENTER UNDERGROUND PARKING 货运车流 FREIGHT ROUTE 快速道路 支路/未开发道路 EXPRESS WAY BRANCH ROAD/UNDEVELOPED ROAD 主要道路 MAIN ROAD 2021 - 03 - 30 | HAIKOU DAYINGSHAN NEW CITY CENTER PROJECT 海口市大英山新城市中心区D01、D09地块项目
分期建设分析图 PHASE I 一期

PHASING ANALYSIS

OFFICE AND HOTEL TOWERS

前往三层停车
PARKING 人流 PEDESTRIAN TRAFFIC 车流 前往地下停车
TRAFFIC UNDERGROUND PARKING ROUTE 货运车流 TRUCK ROUTE
1 一期
2 二期 地下停车层 UNDERGROUND
地下商业与下沉广场
ABOVE GROUND
VEHICULAR
PHASE
PHASE
PARKING LEVELS
UNDERGROUND RETAIL AND SUNKEN PLAZA
办公及酒店塔楼 SKYBRIDGE 天桥 PODIUM SKYBRIDGE 裙房天桥 PODIUM LEVELS 裙房 2021 - 03 - 30 | HAIKOU DAYINGSHAN NEW CITY CENTER PROJECT 海口市大英山新城市中心区D01、D09地块项目
分期建设分析图

PHASING ANALYSIS 分期建设分析图

国兴大道 规划六路 规 划 十 九 路 勋 亭 路 五 指 山 南 路 前往三层停车 ABOVE GROUND PARKING 人流 PEDESTRIAN TRAFFIC 非机动车流 BIKE TRAFFIC 停车坡道 PARKING RAMP 落客区 DROP-OFF 车流 前往地下停车 VEHICULAR TRAFFIC UNDERGROUND PARKING ROUTE 货运车流 TRUCK ROUTE 快速道路 支路 EXPRESS WAY BRANCH ROAD 主要道路 MAIN
O 上空 OPEN TO BELOW DN TO B1 下沉广场 SUNKEN PLAZA 酒店大堂 HOTEL LOBBY 公寓大堂 SERVICE APT. LOBBY RETAIL UP TO L2 上空 OPEN TO BELOW UP TO L2 RETAIL RETAIL FIRE CON. RETAIL RETAIL RETAIL CORE FIRE RESCUE AREA RETAIL FIRE CON. RETAIL RETAIL RETAIL RETAIL 总部办公大堂 HQ. OFFICE LOBBY 总部办公下客区 OFFICE DROP-OFF 出租办公大堂 LEASING OFFICE LOBBY 出租办公下客区 LEASE OFFICE DROP-OFF RETAIL RETAIL FIRE RESCUE AREA RETAIL UP TO L2 UP TO L2 DN TO B1 上空 OPEN TO BELOW DN TO B1 下沉广场 SUNKEN PLAZA 下沉广场 SUNKEN PLAZA 下沉广场 SUNKEN PLAZA UP TO L2 DN TO B1 UP TO L2 DN TO B1 RETAIL RETAIL RETAIL 上 DN TO B1 DN TO B1 UP TO L2 UP TO L2 RETAIL 上空 OPEN TO BELOW UP TO L2 SERVICE RAMP RETAIL RETAIL RETAIL RETAIL RETAIL RETAIL BALLROOM PRE-FOUNCTION KITCHEN RETAIL RETAIL RETAIL RETAIL RETAIL RETAIL RETAIL RETAIL RETAIL RETAIL RETAIL RETAIL RETAIL RETAIL F&B F&B 登记 REGIST. ADMIN. 大堂吧 LOBBY BAR MAIL BOX DN TO B1 RESTAURANT 上空 OPEN TO BELOW F&B RETAIL RETAIL RETAIL RETAIL WC. DN TO B1 LOADING RETAIL 上空 OPEN TO BELOW 上空 OPEN TO BELOW RETAIL UP TO L2 UP TO L2 JUNIOR ANCHOR DUTY FREE ANCHOR RETAIL JUNIOR ANCHOR F&B F&B F&B DUTY FREE ANCHOR JUNIOR ANCHOR JUNIOR ANCHOR JUNIOR ANCHOR RETAIL WC. WC. MEP MEP RETAIL JUNIOR ANCHOR PASSENGER ELEV. PASSENGER ELEV. STORAGE CANOPY CANOPY CANOPY 上空 OPEN TO BELOW 上空 OPEN TO BELOW 上空 OPEN TO BELOW 152 398 62 216 322 232 147 496 33 804 161 CANOPY 21 BIKE ENTRY BIKE ENTRY BIKE ENTRY BIKE ENTRY SCALE: 1 600 1 L1 Plan 2021 - 03 - 30 | HAIKOU DAYINGSHAN NEW CITY CENTER PROJECT 海口市大英山新城市中心区D01、D09地块项目
二期
ROAD
PHASE II

PROVINCIAL GOVERNMENT

L3 SKYBRIDGE CONNECTION TO RIYUE PLAZA

规划公交站(二期)

PLANNED BUS STOP (PHASE II)

省政府
RIYUE PLAZA 日月广场 连接地下商业
B1 RETAIL 天桥连接日月广场
CONNECTION OF
B2地铁一号线省政府站 B2 SUBWAY STATION B3地铁一号线省政府站 B3 SUBWAY STATION 2021 - 03 - 30 | HAIKOU DAYINGSHAN NEW CITY CENTER PROJECT 海口市大英山新城市中心区D01、D09地块项目
CONTEXTUAL TRAFFIC ANALYSIS 周边交通分析

OPEN SPACE/DENSITY ANALYSIS 公共空间/建筑密度分析

O 上空 OPEN TO BELOW DN TO B1 下沉广场 SUNKEN PLAZA 酒店大堂 HOTEL LOBBY 公寓大堂 SERVICE APT. LOBBY RETAIL UP TO L2 上空 OPEN TO BELOW UP TO L2 RETAIL RETAIL FIRE CON. RETAIL RETAIL RETAIL CORE FIRE RESCUE AREA RETAIL FIRE CON. RETAIL RETAIL RETAIL RETAIL 总部办公大堂 HQ. OFFICE LOBBY 总部办公下客区 OFFICE DROP-OFF 出租办公大堂 LEASING OFFICE LOBBY 出租办公下客区 LEASE OFFICE DROP-OFF RETAIL RETAIL FIRE RESCUE AREA RETAIL UP TO L2 UP TO L2 DN TO B1 上空 OPEN TO BELOW DN TO B1 下沉广场 SUNKEN PLAZA 下沉广场 SUNKEN PLAZA 下沉广场 SUNKEN PLAZA UP TO L2 DN TO B1 UP TO L2 DN TO B1 RETAIL RETAIL RETAIL 上 DN TO B1 DN TO B1 UP TO L2 UP TO L2 RETAIL 上空 OPEN TO BELOW UP TO L2 SERVICE RAMP RETAIL RETAIL RETAIL RETAIL RETAIL RETAIL BALLROOM PRE-FOUNCTION KITCHEN RETAIL RETAIL RETAIL RETAIL RETAIL RETAIL RETAIL RETAIL RETAIL RETAIL RETAIL RETAIL RETAIL RETAIL F&B F&B 登记 REGIST. ADMIN. 大堂吧 LOBBY BAR MAIL BOX DN TO B1 RESTAURANT 上空 OPEN TO BELOW F&B RETAIL RETAIL RETAIL RETAIL WC. DN TO B1 LOADING RETAIL 上空 OPEN TO BELOW 上空 OPEN TO BELOW RETAIL UP TO L2 UP TO L2 JUNIOR ANCHOR DUTY FREE ANCHOR RETAIL JUNIOR ANCHOR F&B F&B F&B DUTY FREE ANCHOR JUNIOR ANCHOR JUNIOR ANCHOR JUNIOR ANCHOR RETAIL WC. WC. MEP MEP RETAIL JUNIOR ANCHOR PASSENGER ELEV. PASSENGER ELEV. STORAGE CANOPY CANOPY CANOPY 上空 OPEN TO BELOW 上空 OPEN TO BELOW 上空 OPEN TO BELOW 152 398 62 216 322 232 147 496 33 804 161 CANOPY 21 BIKE ENTRY BIKE ENTRY BIKE ENTRY BIKE ENTRY SCALE: 1 600 1 L1 Plan 规划用地面积 SITE AREA 26,100m2 11,296m2 建筑基地总面积 BUILDING COVERAGE 建筑密度 BUILDING DENSITY 43% 建筑密度 BUILDING DENSITY 53% 规划用地面积 SITE AREA 26,600m2 14,075m2 建筑基地总面积 BUILDING COVERAGE 规划要求 MAXIMUM DENSITY 50% 规划要求 MAXIMUM DENSITY 55% 2021 - 03 - 30 | HAIKOU DAYINGSHAN NEW CITY CENTER PROJECT 海口市大英山新城市中心区D01、D09地块项目
VIP M 上空 OPEN TO BELOW DN TO B1 下沉广场 SUNKEN PLAZA 酒店大堂 HOTEL LOBBY 公寓大堂 SERVICE APT. LOBBY RETAIL UP TO L2 上空 OPEN TO BELOW UP TO L2 RETAIL RETAIL FIRE CON. RETAIL RETAIL RETAIL CORE FIRE RESCUE AREA RETAIL FIRE CON. RETAIL RETAIL RETAIL RETAIL 总部办公大堂 HQ. OFFICE LOBBY 总部办公下客区 OFFICE DROP-OFF 出租办公大堂 LEASING OFFICE LOBBY 出租办公下客区 LEASE OFFICE DROP-OFF RETAIL RETAIL FIRE RESCUE AREA RETAIL UP TO L2 UP TO L2 DN TO B1 上空 OPEN TO BELOW DN TO B1 下沉广场 SUNKEN PLAZA 下沉广场 SUNKEN PLAZA 下沉广场 SUNKEN PLAZA UP TO L2 DN TO B1 UP TO L2 DN TO B1 RETAIL RETAIL RETAIL 上 DN TO B1 DN TO B1 UP TO L2 UP TO L2 RETAIL 上空 OPEN TO BELOW UP TO L2 SERVICE RAMP RETAIL RETAIL RETAIL RETAIL RETAIL RETAIL BALLROOM PRE-FOUNCTION KITCHEN RETAIL RETAIL RETAIL RETAIL RETAIL RETAIL RETAIL RETAIL RETAIL RETAIL RETAIL RETAIL RETAIL RETAIL F&B F&B 登记 REGIST. ADMIN. 大堂吧 LOBBY BAR MAIL BOX DN TO B1 RESTAURANT 上空 OPEN TO BELOW F&B RETAIL RETAIL RETAIL RETAIL WC. DN TO B1 LOADING RETAIL 上空 OPEN TO BELOW 上空 OPEN TO BELOW RETAIL UP TO L2 UP TO L2 JUNIOR ANCHOR DUTY FREE ANCHOR RETAIL JUNIOR ANCHOR F&B F&B F&B DUTY FREE ANCHOR JUNIOR ANCHOR JUNIOR ANCHOR JUNIOR ANCHOR RETAIL WC. WC. MEP MEP RETAIL JUNIOR ANCHOR PASSENGER ELEV. PASSENGER ELEV. STORAGE CANOPY CANOPY CANOPY 上空 OPEN TO BELOW 上空 OPEN TO BELOW 上空 OPEN TO BELOW 152 398 62 216 322 232 147 496 33 804 161 CANOPY 21 BIKE ENTRY BIKE ENTRY BIKE ENTRY BIKE ENTRY SCALE: 1 600 1 L1 Plan 规划用地面积 SITE AREA 26,100m2 8,091m2 绿地面积 GREEN SOFTSCAPE 绿地率 GREEN RATIO 31% 11,310m2 硬质景观 HARDSCAPE 规划用地面积 SITE AREA 26,600m2 6,650m2 绿地面积 GREEN SOFTSCAPE 绿地率 GREEN RATIO 25% 12,810m2 硬质景观 HARDSCAPE 规划要求 MAXIMUM DENSITY 20% 规划要求 MAXIMUM DENSITY 20% 2021 - 03 - 30 | HAIKOU DAYINGSHAN NEW CITY CENTER PROJECT 海口市大英山新城市中心区D01、D09地块项目
绿地景观系统分析图
GREEN RATIO ANALYSIS

FIREFIGHTING ANALYSIS 消防分析图

规划六路 规 划 十 九 路 勋 亭 路 五 指 山 南 路 VIP M 上空 OPEN TO BELOW DN TO B1 下沉广场 SUNKEN PLAZA 酒店大堂 HOTEL LOBBY 公寓大堂 SERVICE APT. LOBBY RETAIL UP TO L2 上空 OPEN TO BELOW UP TO L2 RETAIL RETAIL FIRE CON. RETAIL RETAIL RETAIL CORE FIRE RESCUE AREA RETAIL FIRE CON. RETAIL RETAIL RETAIL RETAIL 总部办公大堂 HQ. OFFICE LOBBY 总部办公下客区 OFFICE DROP-OFF 出租办公大堂 LEASING OFFICE LOBBY 出租办公下客区 LEASE OFFICE DROP-OFF RETAIL RETAIL FIRE RESCUE AREA RETAIL UP TO L2 UP TO L2 DN TO B1 上空 OPEN TO BELOW DN TO B1 下沉广场 SUNKEN PLAZA 下沉广场 SUNKEN PLAZA 下沉广场 SUNKEN PLAZA UP TO L2 DN TO B1 UP TO L2 DN TO B1 RETAIL RETAIL RETAIL 上 DN TO B1 DN TO B1 UP TO L2 UP TO L2 RETAIL 上空 OPEN TO BELOW UP TO L2 SERVICE RAMP RETAIL RETAIL RETAIL RETAIL RETAIL RETAIL BALLROOM PRE-FOUNCTION KITCHEN RETAIL RETAIL RETAIL RETAIL RETAIL RETAIL RETAIL RETAIL RETAIL RETAIL RETAIL RETAIL RETAIL RETAIL F&B F&B 登记 REGIST. ADMIN. 大堂吧 LOBBY BAR MAIL BOX DN TO B1 RESTAURANT 上空 OPEN TO BELOW F&B RETAIL RETAIL RETAIL RETAIL WC. DN TO B1 LOADING RETAIL 上空 OPEN TO BELOW 上空 OPEN TO BELOW RETAIL UP TO L2 UP TO L2 JUNIOR ANCHOR DUTY FREE ANCHOR RETAIL JUNIOR ANCHOR F&B F&B F&B DUTY FREE ANCHOR JUNIOR ANCHOR JUNIOR ANCHOR JUNIOR ANCHOR RETAIL WC. WC. MEP MEP RETAIL JUNIOR ANCHOR PASSENGER ELEV. PASSENGER ELEV. STORAGE CANOPY CANOPY CANOPY 上空 OPEN TO BELOW 上空 OPEN TO BELOW 上空 OPEN TO BELOW 152 398 62 216 322 232 147 496 33 804 161 CANOPY 21 BIKE ENTRY BIKE ENTRY BIKE ENTRY BIKE ENTRY SCALE: 1 600 1 L1 Plan 消防救援区域 FIRE RESCUE AREA 消防车流线 FIRETRUCK ROUTE 2021 - 03 - 30 | HAIKOU DAYINGSHAN NEW CITY CENTER PROJECT 海口市大英山新城市中心区D01、D09地块项目
国兴大道

雨水收集

RAINWATER COLLECTION

在多雨的海口充分回收

并利用水资源

RECYCLE AND REUSE

RAINWATER IN THE RAINY CLIMATE OF HAIKOU

SUSTAINABLE DESIGN ANALYSIS 绿色建筑设计分析

SAWTOOTH SHAPE MAY EFFICIENTLY BLOCK SUNLIGHT FROM SOUTHWEST DIRECTION IN THE AFTERNOON.

自然通风 NATURAL VENTILATION

中庭为垂直风井效应

VERTICAL ATRIUM SPACE DRAWS AIR THAT ENTERS FROM BELOW, COOLS DOWN THE BUILDING, THEN EXITS FROM TOP

屋顶花园 GREEN ROOF

自然的隔热材料使室内冬暖夏凉

NATURAL THERMAL MASS TO ENSURE WARMTH IN WINTER AND COOLNESS IN SUMMER

2021 - 03 - 30 | HAIKOU DAYINGSHAN NEW CITY CENTER PROJECT 海口市大英山新城市中心区D01、D09地块项目
2021 - 03 - 02 | HAIKOU DAYINGSHAN NEW CITY CENTER PROJECT 海口市大英山新城市中心区D01、D09地块项目 HEAT GAIN ANALYSIS 建筑得热 WITHOUT VERTICAL FIN VERTICAL FINS-250MM 250MM 500MM VERTICAL FINS-500MM 无竖向遮阳 竖向遮阳- 250mm 竖向遮阳- 500mm 办公塔楼西立面得热 140KWh/㎡ 120KWh/㎡ 90KWh/㎡ 35% 2021 - 03 - 30 | HAIKOU DAYINGSHAN NEW CITY CENTER PROJECT 海口市大英山新城市中心区D01、D09地块项目
2021 - 03 - 02 | HAIKOU DAYINGSHAN NEW CITY CENTER PROJECT 海口市大英山新城市中心区D01、D09地块项目 办公塔楼南立面得热 HEAT GAIN ANALYSIS 建筑得热 WITHOUT VERTICAL FIN VERTICAL FINS-250MM 250MM 500MM VERTICAL FINS-500MM 无竖向遮阳 竖向遮阳- 250mm 竖向遮阳- 500mm 140KWh/㎡ 120KWh/㎡ 110KWh/㎡ 21% 03
HEADQUARTER OFFICE 总部办公 LEASED OFFICE 入驻企业办公 CULTURAL CENTER 文化艺术中心 ABOVE GROUND PARKING 地上停车楼 UPSCALE APARTMENT 高端公寓 5- STAR HOTEL 五星级酒店 HIGH-END RETAIL 精品商业 CONNECTING RIYUE PLAZA 连接日月广场
LOBBY AMENITY 共用空中大堂配套 2021 - 03 - 30 | HAIKOU DAYINGSHAN NEW CITY CENTER PROJECT 海口市大英山新城市中心区D01、D09地块项目 PROGRAM ANALYSIS
SHARED SKY
功能分析图
2021 - 03 - 30 | HAIKOU DAYINGSHAN NEW CITY CENTER PROJECT 海口市大英山新城市中心区D01、D09地块项目 SECTION 4 BUILDING DESIGN 第四部分 建筑设计
2021 - 03 - 30 | HAIKOU DAYINGSHAN NEW CITY CENTER PROJECT 海口市大英山新城市中心区D01、D09地块项目 SITE PLAN 总平面 日月广场 RIYUE PLAZA 五 指 山 南 路 国 兴 大 道 规 划 六 路 酒店公寓 HOTEL/APT TOWER 50 LEVELS 办公 OFFICE 38 LEVELS 勋 亭 路 N
2021 - 03 - 30 | HAIKOU DAYINGSHAN NEW CITY CENTER PROJECT 海口市大英山新城市中心区D01、D09地块项目 PODIUM LEVELS 裙房平面
2021 - 03 - 30 | HAIKOU DAYINGSHAN NEW CITY CENTER PROJECT 海口市大英山新城市中心区D01、D09地块项目 LEVEL 1 PLAN 一层平面 SCALE = 1:1200 餐饮 F&B 主力店 ANCHOR STORES 商业 RETAIL 文化相关商业 CULTURAL RETAIL 服务式公寓 SERVICED APT. 后勤/核心筒/停车 BOH/CORE/PARKING 酒店 HOTEL 设备房 MEP 总部办公 HQ OFFICE 出租办公 LEASED OFFICE 餐饮 F&B 主力店 ANCHOR STORES RETAIL 文化相关商业 CULTURAL RETAIL 服务式公寓 SERVICED APT. 后勤/核心筒/停车 BOH/CORE/PARKING 酒店 HOTEL 设备房 MEP 总部办公 OFFICE 出租办公 LEASED OFFICE 餐饮 F&B 主力店 ANCHOR STORES 商业 RETAIL 文化相关商业 CULTURAL RETAIL 服务式公寓 SERVICED APT. 后勤/核心筒/停车 BOH/CORE/PARKING 酒店 HOTEL 设备房 MEP 总部办公 HQ OFFICE 出租办公 LEASED OFFICE
2021 - 03 - 30 | HAIKOU DAYINGSHAN NEW CITY CENTER PROJECT 海口市大英山新城市中心区D01、D09地块项目 LEVEL 2 PLAN 二层平面 SCALE = 1:1200 餐饮 F&B 主力店 ANCHOR STORES 商业 RETAIL 文化相关商业 CULTURAL RETAIL 服务式公寓 SERVICED APT. 后勤/核心筒/停车 BOH/CORE/PARKING 酒店 HOTEL 设备房 MEP 总部办公 HQ OFFICE 出租办公 LEASED OFFICE 餐饮 F&B 主力店 ANCHOR STORES 商业 RETAIL 文化相关商业 CULTURAL RETAIL 服务式公寓 SERVICED APT. 后勤/核心筒/停车 BOH/CORE/PARKING 酒店 HOTEL 设备房 MEP 总部办公 HQ OFFICE 出租办公 LEASED OFFICE 餐饮 F&B 主力店 ANCHOR STORES 文化相关商业 CULTURAL RETAIL 服务式公寓 SERVICED APT. 后勤/核心筒/停车 BOH/CORE/PARKING 酒店 HOTEL 设备房 MEP 出租办公 LEASED OFFICE 餐饮 F&B 主力店 ANCHOR STORES 商业 RETAIL 文化相关商业 CULTURAL RETAIL 服务式公寓 SERVICED APT. 后勤/核心筒/停车 BOH/CORE/PARKING 酒店 HOTEL 设备房 MEP 总部办公 HQ OFFICE 出租办公 LEASED OFFICE
2021 - 03 - 30 | HAIKOU DAYINGSHAN NEW CITY CENTER PROJECT 海口市大英山新城市中心区D01、D09地块项目 LEVEL 3 PLAN 三层平面 SCALE = 1:1200 餐饮 F&B 主力店 ANCHOR STORES 商业 RETAIL 文化相关商业 CULTURAL RETAIL 服务式公寓 SERVICED APT. 后勤/核心筒/停车 BOH/CORE/PARKING 酒店 HOTEL 设备房 MEP 总部办公 HQ OFFICE 出租办公 LEASED OFFICE 主力店 ANCHOR STORES 文化相关商业 CULTURAL RETAIL 服务式公寓 SERVICED APT. 后勤/核心筒/停车 BOH/CORE/PARKING 酒店 HOTEL 设备房 MEP 餐饮 F&B 主力店 ANCHOR STORES 商业 RETAIL 文化相关商业 CULTURAL RETAIL 服务式公寓 SERVICED APT. 后勤/核心筒/停车 BOH/CORE/PARKING 酒店 HOTEL 设备房 MEP 总部办公 HQ OFFICE 出租办公 LEASED OFFICE
2021 - 03 - 30 | HAIKOU DAYINGSHAN NEW CITY CENTER PROJECT 海口市大英山新城市中心区D01、D09地块项目 LEVEL 4 PLAN 四层平面 SCALE = 1:1200 餐饮 F&B 主力店 ANCHOR STORES 商业 RETAIL 文化相关商业 CULTURAL RETAIL 服务式公寓 SERVICED APT. 后勤/核心筒/停车 BOH/CORE/PARKING 酒店 HOTEL 设备房 MEP 总部办公 HQ OFFICE 出租办公 LEASED OFFICE 主力店 ANCHOR STORES 文化相关商业 CULTURAL RETAIL 服务式公寓 SERVICED APT. 后勤/核心筒/停车 BOH/CORE/PARKING 酒店 HOTEL 设备房 MEP 餐饮 F&B 主力店 ANCHOR STORES 商业 RETAIL 文化相关商业 CULTURAL RETAIL 服务式公寓 SERVICED APT. 后勤/核心筒/停车 BOH/CORE/PARKING 酒店 HOTEL 设备房 MEP 总部办公 HQ OFFICE 出租办公 LEASED OFFICE
2021 - 03 - 30 | HAIKOU DAYINGSHAN NEW CITY CENTER PROJECT 海口市大英山新城市中心区D01、D09地块项目 LEVEL 5 PLAN 五层平面 SCALE = 1:1200 餐饮 F&B 主力店 ANCHOR STORES 商业 RETAIL 文化相关商业 CULTURAL RETAIL 服务式公寓 SERVICED APT. 后勤/核心筒/停车 BOH/CORE/PARKING 酒店 HOTEL 设备房 MEP 总部办公 HQ OFFICE 出租办公 LEASED OFFICE 主力店 ANCHOR STORES 文化相关商业 CULTURAL RETAIL 服务式公寓 SERVICED APT. 后勤/核心筒/停车 BOH/CORE/PARKING 酒店 HOTEL 设备房 MEP 餐饮 F&B 主力店 ANCHOR STORES 商业 RETAIL 文化相关商业 CULTURAL RETAIL 服务式公寓 SERVICED APT. 后勤/核心筒/停车 BOH/CORE/PARKING 酒店 HOTEL 设备房 MEP 总部办公 HQ OFFICE 出租办公 LEASED OFFICE
2021 - 03 - 30 | HAIKOU DAYINGSHAN NEW CITY CENTER PROJECT 海口市大英山新城市中心区D01、D09地块项目 LEVEL 6 PLAN 六层平面 SCALE = 1:1200 餐饮 F&B 主力店 ANCHOR STORES 商业 RETAIL 文化相关商业 CULTURAL RETAIL 服务式公寓 SERVICED APT. 后勤/核心筒/停车 BOH/CORE/PARKING 酒店 HOTEL 设备房 MEP 总部办公 HQ OFFICE 出租办公 LEASED OFFICE 主力店 ANCHOR STORES 文化相关商业 CULTURAL RETAIL 服务式公寓 SERVICED APT. 后勤/核心筒/停车 BOH/CORE/PARKING 酒店 HOTEL 设备房 MEP OFFICE 餐饮 F&B 主力店 ANCHOR STORES 商业 RETAIL 文化相关商业 CULTURAL RETAIL 服务式公寓 SERVICED APT. 后勤/核心筒/停车 BOH/CORE/PARKING 酒店 HOTEL 设备房 MEP 总部办公 HQ OFFICE 出租办公 LEASED OFFICE
2021 - 03 - 30 | HAIKOU DAYINGSHAN NEW CITY CENTER PROJECT 海口市大英山新城市中心区D01、D09地块项目 LEVEL 7 PLAN 七层平面 SCALE = 1:1200 餐饮 F&B 主力店 ANCHOR STORES 商业 RETAIL 文化相关商业 CULTURAL RETAIL 服务式公寓 SERVICED APT. 后勤/核心筒/停车 BOH/CORE/PARKING 酒店 HOTEL 设备房 MEP 总部办公 HQ OFFICE 出租办公 LEASED OFFICE 主力店 ANCHOR STORES 文化相关商业 CULTURAL RETAIL 服务式公寓 SERVICED APT. 后勤/核心筒/停车 BOH/CORE/PARKING 酒店 HOTEL 设备房 MEP OFFICE 餐饮 F&B 主力店 ANCHOR STORES 商业 RETAIL 文化相关商业 CULTURAL RETAIL 服务式公寓 SERVICED APT. 后勤/核心筒/停车 BOH/CORE/PARKING 酒店 HOTEL 设备房 MEP 总部办公 HQ OFFICE 出租办公 LEASED OFFICE 餐饮 F&B 主力店 ANCHOR STORES 商业 RETAIL 文化相关商业 CULTURAL RETAIL 服务式公寓 SERVICED APT. 后勤/核心筒/停车 BOH/CORE/PARKING 酒店 HOTEL 设备房 MEP 总部办公 HQ OFFICE 出租办公 LEASED OFFICE
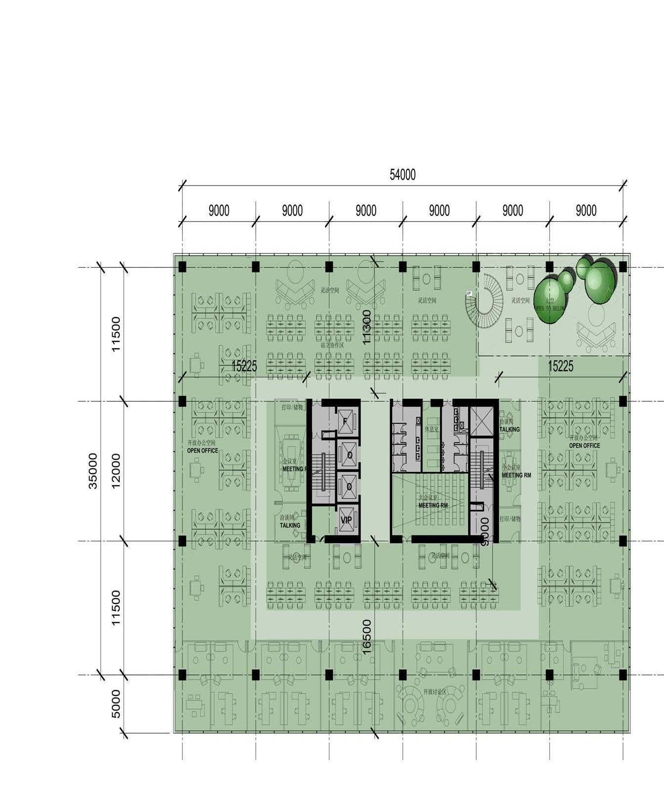
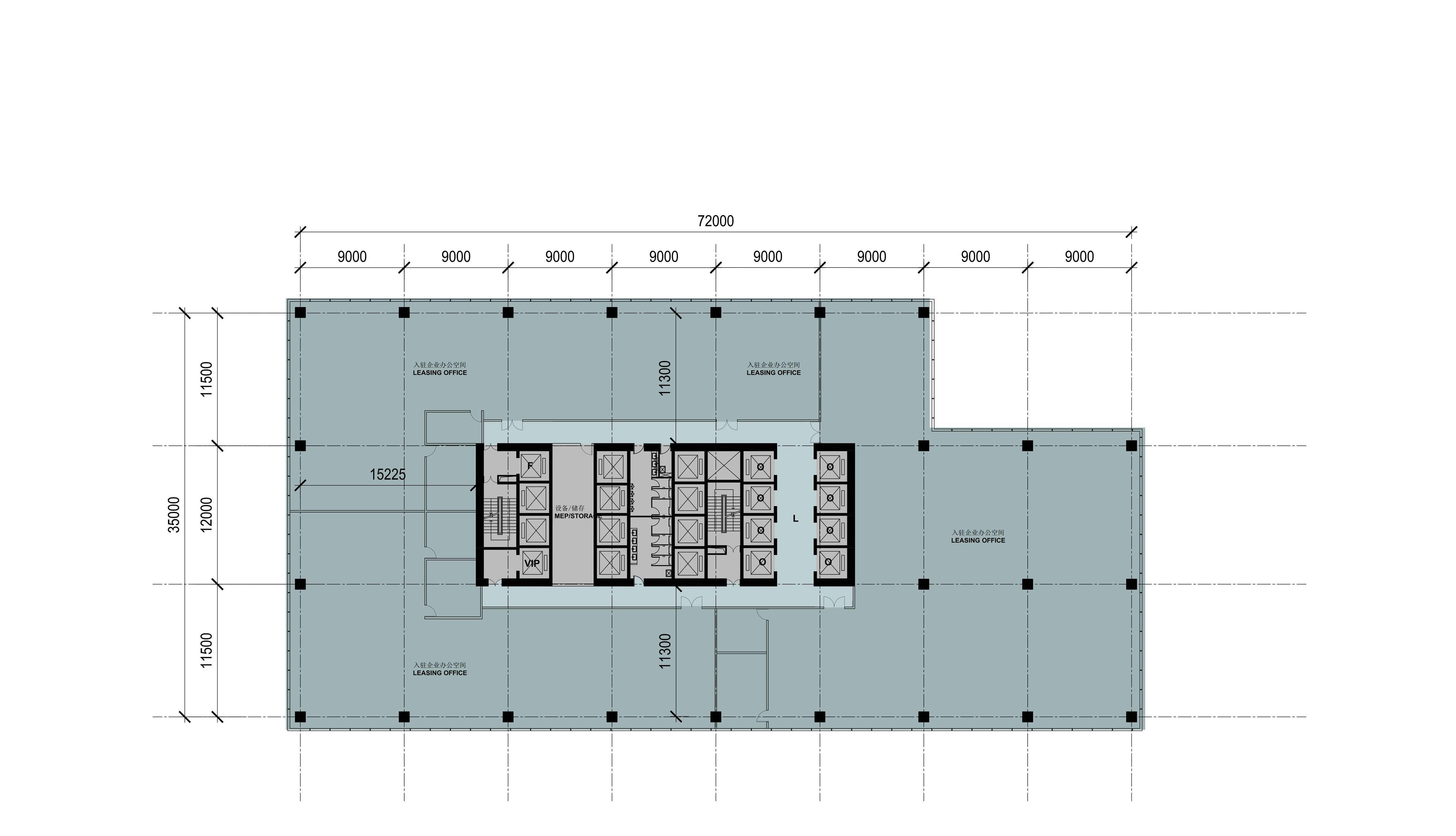
2021 - 03 - 30 | HAIKOU DAYINGSHAN NEW CITY CENTER PROJECT 海口市大英山新城市中心区D01、D09地块项目 OFFICE TOWER LEVELS 办公楼平面
2021 - 03 - 30 | HAIKOU DAYINGSHAN NEW CITY CENTER PROJECT 海口市大英山新城市中心区D01、D09地块项目 OFFICE TOWER 办公楼 7-9, 11-20层平面 LEVEL 7-9, 11-20 PLAN SCALE = 1:300 入驻企业办公 LEASED OFFICE 餐饮 F&B 主力店 ANCHOR STORES 商业 RETAIL 文化相关商业 CULTURAL RETAIL 服务式公寓 SERVICED APT. 后勤/核心筒/停车 BOH/CORE/PARKING 酒店 HOTEL 设备房 MEP 总部办公 HQ OFFICE 出租办公 LEASED OFFICE 餐饮 F&B 主力店 ANCHOR STORES 文化相关商业 CULTURAL RETAIL 服务式公寓 SERVICED APT. 后勤/核心筒/停车 BOH/CORE/PARKING 酒店 HOTEL 设备房 MEP 出租办公 LEASED OFFICE D01 D09
D01 D09 72000 9000 9000 9000 9000 9000 9000 35000 11500 12000 11500 9000 9000 设备/功能用房 MEP/BOH VIP F O O O O O O O O 避难区 REFUGE AREA 设备/功能用房 MEP/BOH 786 SCALE: 1:150 1 OFFICE L10 REFUGE PLAN 十层办公避难层平 面 图 2021 - 03 - 30 | HAIKOU DAYINGSHAN NEW CITY CENTER PROJECT 海口市大英山新城市中心区D01、D09地块项目 OFFICE TOWER 办公楼 入驻企业办公 LEASED OFFICE 10避难层平面 LEVEL 10 REFUGE FLOOR PLAN
2021 - 03 - 30 | HAIKOU DAYINGSHAN NEW CITY CENTER PROJECT 海口市大英山新城市中心区D01、D09地块项目 OFFICE TOWER 办公楼 SCALE = 1:300 入驻企业办公 LEASED OFFICE 22-30层平面 LEVEL 22-30 PLAN 餐饮 F&B 主力店 ANCHOR STORES 商业 RETAIL 文化相关商业 CULTURAL RETAIL 服务式公寓 SERVICED APT. 后勤/核心筒/停车 BOH/CORE/PARKING 酒店 HOTEL 设备房 MEP 总部办公 HQ OFFICE 出租办公 LEASED OFFICE 餐饮 F&B 主力店 ANCHOR STORES 文化相关商业 CULTURAL RETAIL 服务式公寓 SERVICED APT. 后勤/核心筒/停车 BOH/CORE/PARKING 酒店 HOTEL 设备房 MEP 出租办公 LEASED OFFICE D01 D09
2021 - 03 - 30 | HAIKOU DAYINGSHAN NEW CITY CENTER PROJECT 海口市大英山新城市中心区D01、D09地块项目 OFFICE TOWER 办公楼 SCALE = 1:300 入驻企业办公 LEASED OFFICE 32-34层平面 LEVEL 32-34 PLAN 餐饮 F&B 主力店 ANCHOR STORES 商业 RETAIL 文化相关商业 CULTURAL RETAIL 服务式公寓 SERVICED APT. 后勤/核心筒/停车 BOH/CORE/PARKING 酒店 HOTEL 设备房 MEP 总部办公 HQ OFFICE 出租办公 LEASED OFFICE 餐饮 F&B 主力店 ANCHOR STORES 文化相关商业 CULTURAL RETAIL 服务式公寓 SERVICED APT. 后勤/核心筒/停车 BOH/CORE/PARKING 酒店 HOTEL 设备房 MEP 出租办公 LEASED OFFICE D01 D09
2021 - 03 - 30 | HAIKOU DAYINGSHAN NEW CITY CENTER PROJECT 海口市大英山新城市中心区D01、D09地块项目 OFFICE TOWER 办公楼 35-39层平面 LEVEL 35-39 PLAN SCALE = 1:300 总部办公 HQ OFFICE 餐饮 F&B 主力店 ANCHOR STORES 商业 RETAIL 文化相关商业 CULTURAL RETAIL 服务式公寓 SERVICED APT. 后勤/核心筒/停车 BOH/CORE/PARKING 酒店 HOTEL 设备房 MEP 总部办公 HQ OFFICE 出租办公 LEASED OFFICE 主力店 ANCHOR STORES 文化相关商业 CULTURAL RETAIL 服务式公寓 SERVICED APT. 后勤/核心筒/停车 BOH/CORE/PARKING 酒店 HOTEL 设备房 MEP 出租办公 LEASED OFFICE D01 D09
54000 35000 11500 12000 11500 9000 9000 9000 9000 9000 9000 VIP F O O 前室 前室 前室 前室 避难区 REFUGE AREA 设备/功能用房 MEP/BOH 869 设备/功能用房 MEP/BOH 2021 - 03 - 30 | HAIKOU DAYINGSHAN NEW CITY CENTER PROJECT 海口市大英山新城市中心区D01、D09地块项目 OFFICE TOWER 办公楼 31避难层平面 LEVEL 31 REFUGE FLOOR PLAN D01 D09
2021 - 03 - 30 | HAIKOU DAYINGSHAN NEW CITY CENTER PROJECT 海口市大英山新城市中心区D01、D09地块项目 HOTEL/APARTMENT TOWER PLANS 酒店公寓楼平面
2021 - 03 - 30 | HAIKOU DAYINGSHAN NEW CITY CENTER PROJECT 海口市大英山新城市中心区D01、D09地块项目 酒店标准层 HOTEL TYPICAL LEVEL HOTEL/APARTMENT TOWER 酒店公寓楼 8-10,12-18层平面 LEVEL 8-10,12-18 PLAN 文化相关商业 CULTURAL RETAIL 后勤/核心筒/停车 BOH/CORE/PARKING 酒店 HOTEL 设备房 MEP 主力店 ANCHOR STORES 文化相关商业 CULTURAL RETAIL 服务式公寓 SERVICED APT. 后勤/核心筒/停车 BOH/CORE/PARKING 酒店 HOTEL 设备房 MEP 出租办公 OFFICE D01 D09
D01 D09 36000 45000 9000 9000 9000 9000 9000 9000 9000 9000 9000 11000 9000 设备/功能用房 MEP/BOH 避难区 REFUGE AREA 915 设备/功能用房 MEP/BOH SCALE: 1 150 1 L11 HOTEL REFUGE PLAN L11 酒店避难层平 面 2021 - 03 - 30 | HAIKOU DAYINGSHAN NEW CITY CENTER PROJECT 海口市大英山新城市中心区D01、D09地块项目 HOTEL/APARTMENT TOWER 酒店公寓楼 11层避难层平面 LEVEL 11 REFUGE PLAN
二房 TWO BEDROOM 一居室 STUDIO 一房 ONE BEDROOM 三房 THREE BEDROOM 2021 - 03 - 30 | HAIKOU DAYINGSHAN NEW CITY CENTER PROJECT 海口市大英山新城市中心区D01、D09地块项目 HOTEL/APARTMENT TOWER 酒店公寓楼 SCALE = 1:300 25-37, 39-50层平面 LEVEL 25-37, 39-50 PLAN 公寓标准层 APARTMENT TYPICAL LEVEL D01 D09
63000 9000 9000 9000 9000 9000 9000 9000 9000 20000 11000 设备/功能用房 MEP/BOH 避难区 REFUGE AREA 2021 - 03 - 30 | HAIKOU DAYINGSHAN NEW CITY CENTER PROJECT 海口市大英山新城市中心区D01、D09地块项目 HOTEL/APARTMENT TOWER 酒店公寓楼 38层避难层平面 LEVEL 38 REFUGE PLAN D01 D09
2021 - 03 - 30 | HAIKOU DAYINGSHAN NEW CITY CENTER PROJECT 海口市大英山新城市中心区D01、D09地块项目 HOTEL/APARTMENT TOWER 酒店公寓楼 酒店单元平面 HOTEL UNIT PLAN
2021 - 03 - 30 | HAIKOU DAYINGSHAN NEW CITY CENTER PROJECT 海口市大英山新城市中心区D01、D09地块项目 HOTEL/APARTMENT TOWER 酒店公寓楼 公寓单元平面 APT UNIT PLAN
2021 - 03 - 30 | HAIKOU DAYINGSHAN NEW CITY CENTER PROJECT 海口市大英山新城市中心区D01、D09地块项目 SKY LOBBY PLAN 空中大堂平面
2021 - 03 - 30 | HAIKOU DAYINGSHAN NEW CITY CENTER PROJECT 海口市大英山新城市中心区D01、D09地块项目 SKY LOBBY PLAN 空中大堂平面 餐饮 F&B 主力店 ANCHOR STORES 文化相关商业 CULTURAL RETAIL 服务式公寓 SERVICED APT. 后勤/核心筒/停车 BOH/CORE/PARKING 酒店 HOTEL 设备房 MEP 出租办公 LEASED OFFICE 共用配套 SHARED AMENITY
2021 - 03 - 30 | HAIKOU DAYINGSHAN NEW CITY CENTER PROJECT 海口市大英山新城市中心区D01、D09地块项目
主力店 ANCHOR STORES 文化相关商业 CULTURAL RETAIL 服务式公寓 SERVICED APT. 后勤/核心筒/停车 BOH/CORE/PARKING 酒店 HOTEL 设备房 MEP OFFICE 餐饮 F&B 主力店 ANCHOR STORES 商业 RETAIL 文化相关商业 CULTURAL RETAIL 服务式公寓 SERVICED APT. 后勤/核心筒/停车 BOH/CORE/PARKING 酒店 HOTEL 设备房 MEP 总部办公 HQ OFFICE 出租办公 LEASED OFFICE D01 D09
SKY LOBBY MEZZANINE PLAN 空中大堂夹层平面
2021 - 03 - 30 | HAIKOU DAYINGSHAN NEW CITY CENTER PROJECT 海口市大英山新城市中心区D01、D09地块项目 SKY
餐饮 F&B 主力店 ANCHOR STORES 商业 RETAIL 文化相关商业 CULTURAL RETAIL 服务式公寓 SERVICED APT. 后勤/核心筒/停车 BOH/CORE/PARKING 酒店 HOTEL 设备房 MEP 总部办公 HQ OFFICE 出租办公 LEASED OFFICE 餐饮 F&B 主力店 ANCHOR STORES 商业 RETAIL 文化相关商业 CULTURAL RETAIL 服务式公寓 SERVICED APT. 后勤/核心筒/停车 BOH/CORE/PARKING 酒店 HOTEL 设备房 MEP 总部办公 HQ OFFICE 出租办公 LEASED OFFICE D01 D09
LOBBY ROOF PLAN 空中大堂屋顶平面
2021 - 03 - 30 | HAIKOU DAYINGSHAN NEW CITY CENTER PROJECT 海口市大英山新城市中心区D01、D09地块项目 UNDERGROUND PLAN 地下平面
2021 - 03 - 30 | HAIKOU DAYINGSHAN NEW CITY CENTER PROJECT 海口市大英山新城市中心区D01、D09地块项目 B2 PLAN 地下二层平面 SCALE = 1:1200 主力店 ANCHOR STORES 文化相关商业 CULTURAL RETAIL 服务式公寓 SERVICED APT. 后勤/核心筒/停车 BOH/CORE/PARKING 酒店 HOTEL 设备房 MEP
2021 - 03 - 30 | HAIKOU DAYINGSHAN NEW CITY CENTER PROJECT 海口市大英山新城市中心区D01、D09地块项目 B1 PLAN 地下一层平面 SCALE = 1:1200 餐饮 F&B 主力店 ANCHOR STORES 商业 RETAIL 文化相关商业 CULTURAL RETAIL 服务式公寓 SERVICED APT. 后勤/核心筒/停车 BOH/CORE/PARKING 酒店 HOTEL 设备房 MEP 总部办公 HQ OFFICE 出租办公 LEASED OFFICE 餐饮 F&B 主力店 ANCHOR STORES 文化相关商业 CULTURAL RETAIL 服务式公寓 SERVICED APT. 后勤/核心筒/停车 BOH/CORE/PARKING 酒店 HOTEL 设备房 MEP 出租办公 LEASED OFFICE
2021 - 03 - 30 | HAIKOU DAYINGSHAN NEW CITY CENTER PROJECT 海口市大英山新城市中心区D01、D09地块项目 B1M PLAN 地下夹层平面 SCALE = 1:1200 主力店 ANCHOR STORES 文化相关商业 CULTURAL RETAIL 服务式公寓 SERVICED APT. 后勤/核心筒/停车 BOH/CORE/PARKING 酒店 HOTEL 设备房 MEP
SCALE = 1:1000 2021 - 03 - 30 | HAIKOU DAYINGSHAN NEW CITY CENTER PROJECT 海口市大英山新城市中心区D01、D09地块项目
剖面图 餐饮 F&B 主力店 ANCHOR STORES 商业 RETAIL 文化相关商业 CULTURAL RETAIL 服务式公寓 SERVICED APT. 后勤/核心筒/停车 BOH/CORE/PARKING 酒店 HOTEL 设备房 MEP 总部办公 HQ OFFICE 出租办公 LEASED OFFICE 主力店 ANCHOR STORES 文化相关商业 CULTURAL RETAIL 服务式公寓 SERVICED APT. 后勤/核心筒/停车 BOH/CORE/PARKING 酒店 HOTEL 设备房 MEP OFFICE 餐饮 F&B 主力店 ANCHOR STORES 商业 RETAIL 文化相关商业 CULTURAL RETAIL 服务式公寓 SERVICED APT. 后勤/核心筒/停车 BOH/CORE/PARKING 酒店 HOTEL 设备房 MEP 总部办公 HQ OFFICE 出租办公 LEASED OFFICE D01 D09
OVERALL SECTION

SCALE = 1:1000

L1 L4 L6 L7 L2 L3 L5 B1 B2 4000 7000 5500 5500 5500 5500 5500 4500 6000 6.0m 17.0m 22.5m 28.0m 33.5m ±0.00m 11.5m -7.0m -11.0m -3.6m L8 38.0m 4500 4500 4500 4500 4500 4500 4500 4500 4500 6100 L9 43.5m 47.0m L11 53.3m L12 57.8m L13 62.3m L14 66.8m L15 71.3m L16 75.8m L17 80.3m L18 84.8m L19 89.3m L20 95.4m L23 111.1m ROOF H* HQ .办公室 入驻企业办公室 免税精品商城 B1M 停车场 停车场 停车场 GROUND -0.5m L21 R* L10 R* L31 R* 机房/设备 100.0m 6300 L24 115.6m L25 120.1m L26 124.6m L27 129.1m L28 133.6m L29 138.1m L30 142.6m L34 164.2m 169.6m L35 175.0m L36 180.4m L37 185.8m L38 4800 4500 4500 4500 4500 4500 L1 L2* 6.0m L4 17.0m 22.5m L6 28.0m L7 33.5m L8 38.9m L11 R* GROUND -0.5m B1 -7.0m B2 -11.0m -3.6m ±0.00m L3* 11.5m L9 42.6m 100.0m L28 119.5m L29 122.8m L30 126.1m L31 129.4m L32 132.7m L23 R* 4000 7000 停车场 5500 5500 5500 5500 5500 5400 L5 3700 50.0m L12 56.3m L13 60.0m L14 63.7m L15 67.4m L16 71.1m L17 74.8m L18 78.5m L19 82.2m L24 106.3m L25 109.6m L26 112.9m L27 116.2m 136.0m L33 6000 L10 46.3m 139.3m L34 142.6m L35 149.2m 酒店会议厅 B1M RF* 155.5m L38 158.8m L39 162.1m L40 165.4m L41 168.7m L42 172.0m L43 175.3m L44 178.6m L45 181.9m L46 185.2m L47 188.5m L48 避难层 L37 R* 自行车停车场 酒店餐厅 3700 3700 6300 3700 3700 3700 3700 3700 3700 3700 3300 3300 3300 3300 3300 3300 3300 3300 3300 3300 3300 3300 6300 3300 3300 3300 3300 3300 3300 3300 3300 3300 3300 3300 3300 191.8m L49 195.1m 4600 6300 4400 4400 4400 3300 145.9m L36 L22 106.3m 4500 6300 L33 158.8m 4600 147.1m 4500 4500 4500 6300 5400 5400 5400 5400 5400 5400 194.6m HQ.办公室 HQ.办公室 HQ.办公室 商业 HQ.办公室 HQ.办公室 HQ.办公室 L32 153.4m RECEPTION HALL 接待厅 LOUNGE 休息厅 MEP 设备 MEP/BOH MEP/BOH ARTS STUDIO OFFICE OFFICE OFFICE OFFICE OFFICE OFFICE OFFICE OFFICE OFFICE OFFICE OFFICE OFFICE OFFICE OFFICE OFFICE OFFICE OFFICE OFFICE OFFICE OFFICE REFUGE REFUGE GLASS BRIDGE LIBRARY FITNESS TRAINING ROOF GARDEN GLASS BOTTOM POOL SANNA 大会议室 MEETING RM 大会议室 大会议室 MEETING RM 停车场 停车场 停车场 停车场 停车场 商业 商业 商业 商业 商业 REFUGE OFFICE OFFICE OFFICE OFFICE OFFICE OFFICE OFFICE OFFICE OFFICE OFFICE OFFICE OFFICE OFFICE OFFICE OFFICE OFFICE OFFICE OFFICE OFFICE OFFICE OFFICE OFFICE OFFICE OFFICE F&B LOCKER M. GIFT SHOP BALLROOM KITCHEN 公寓大堂 大堂吧 LOBBY BAR SUPER MARKET F&B RETAIL RETAIL RETAIL RETAIL RETAIL OUT DOOR RESTAURANT GYM ROOF KITCHEN KITCHEN 酒店会议厅 酒店会议厅 MEP 设备 MEP 设备 ROOF SERVICEAPT. SERVICEAPT. SERVICEAPT. SERVICEAPT. SERVICEAPT. SERVICEAPT. SERVICEAPT. SERVICEAPT. SERVICEAPT. SERVICEAPT. SERVICEAPT. SERVICEAPT. SERVICEAPT. SERVICEAPT. SERVICEAPT. SERVICEAPT. SERVICEAPT. SERVICEAPT. SERVICEAPT. SERVICEAPT. SERVICEAPT. SERVICEAPT. SERVICEAPT. SERVICEAPT. HOTEL HOTEL HOTEL HOTEL HOTEL HOTEL HOTEL HOTEL HOTEL HOTEL REFUGE REFUGE MEP/BOH MEP/BOH 19 ST. 3300 198.4m 3300 3300 3300 3300 3300 SERVICEAPT. L50 LOCKER M. RETAIL F&B F&B L20 86.6m L21 91.0m L22 95.4m HOTEL F&B 酒店餐厅 HOTEL F&B 酒店餐厅 HOTEL F&B WEST REST. CHINESE REST. ALL DAY F&B 入驻企业办公室 RETAIL RETAIL RETAIL RETAIL RETAIL RETAIL RETAIL RETAIL RETAIL RETAIL F&B 酒店大堂 HOTEL MEETING HOTEL MEETING HOTEL MEETING SERVICEAPT. SERVICEAPT. HOTEL CULTURE CENTER/RETAIL LEASING OFFICE HQ. OFFICE LEASING OFFICE DUTY FREE RETAIL MALL HOTEL SERVICEAPT. 8800 HQ.办公室 HQ.办公室 大会议室 OFFICE OFFICE OFFICE OFFICE 机房/设备 SCALE: 1 500 1 SECTION HIGH ZONE: HQ OFFICE 上层:HQ办公 VIP ELEVATOR VIP专用电梯 SERVICE ELEVATOR 货运电梯 MID ZONE: LEASED OFFICE 中层:出租办公 SERVICED APARTMENT 公寓 HOTEL & AMENITY 酒店及配套 LOW ZONE: LEASED OFFICE 低层:出租办公 2021 - 03 - 30 | HAIKOU DAYINGSHAN NEW CITY CENTER PROJECT 海口市大英山新城市中心区D01、D09地块项目
VERTICAL CIRCULATION 办公楼竖向流线分析
2021 - 03 - 30 | HAIKOU DAYINGSHAN NEW CITY CENTER PROJECT 海口市大英山新城市中心区D01、D09地块项目 STRUCTURAL
CONCEPT DIAGRAM 结构概念示意图
2021 - 03 - 30 | HAIKOU DAYINGSHAN NEW CITY CENTER PROJECT 海口市大英山新城市中心区D01、D09地块项目 ELEVATION 立面 北 NORTH 东 EAST 北 NORTH 东 EAST D01 D09
2021 - 03 - 30 | HAIKOU DAYINGSHAN NEW CITY CENTER PROJECT 海口市大英山新城市中心区D01、D09地块项目 ELEVATION 立面 南 SOUTH 西 WEST 南 SOUTH 西 WEST D01 D09
2021 - 03 - 30 | HAIKOU DAYINGSHAN NEW CITY CENTER PROJECT 海口市大英山新城市中心区D01、D09地块项目 DESIGN FEATURES 设计特色

宴会厅落客区 GRAND BALLROOM DROP-OFF

圆桌数 ROUND TABLE COUNT: 104

宴会厅面积 AREA: 1058.4 m2

1. 位于一层出入口连间落客区,与酒店分开,提供奢华的红地毯氛围

1. Grand balloom located at ground level provide guests direct access to banquet hall. Banquet guests' vehicle arrival is separated from Hotel's porte-cochere, thus provide a high level, "red carpet" prestige.

2. 消防出口于一层直接连接室外,无需消防梯等设施,减少开销

2. Fire egress is direct and simple with no fire stairs needed to meet code.

3. 厨房等后勤空间有效地直接连接至卸货区

3. Back-of-house functions such as kitchen and loading are efficient with dedicated dock adjacent to the facility.

BALL/CONFERENCE ROOM DESIGN 宴会厅设计研究

42m 25.2m
2021 - 03 - 30 | HAIKOU DAYINGSHAN NEW CITY CENTER PROJECT 海口市大英山新城市中心区D01、D09地块项目

VERTICAL LINEARITY THAT REDUCES LIGHT POLUTION, HEAT GAIN, AND GIVES TOWERS EXTENDED HEIGHT EFFECT

EXTERIOR DESIGN FEATURES

垂直线条感,不仅减少得热及城市光 害,更能让塔楼有向上延伸的效果
2021 - 03 - 30 | HAIKOU DAYINGSHAN NEW CITY CENTER PROJECT 海口市大英山新城市中心区D01、D09地块项目
立面设计

SKY GARDEN DESIGN 空中花园设计研究

健康,纾压的工作环境为现代设计的国际 趋势,室内的空中花园为最佳休息空间

HEALTHY, RELAXING WORKING ENVIRONMENT WITH SKY GARDENS INTEGRATED INTO DESIGN

GROUND LEVEL TO THE ROOF 2021 - 03 - 30 | HAIKOU DAYINGSHAN NEW CITY CENTER PROJECT 海口市大英山新城市中心区D01、D09地块项目
CLOSER 以中心为项目核心、打造文化港湾 CREATE THE CENTRAL HARBOR BETWEEN 延展视线,创造地标 EXTEND PUBLIC GREEN SPACE FROM GROUND TO SKY TO BECOME ICONIC LANDMARK

GLASS BOTTOM POOL DESIGN 空中泳池设计研究

玻璃底设计提供人们打卡的网红景点, 并给使用者难忘的体验

GLASS BOTTOM DESIGN PROVIDES A TOURIST ATTRACTION WHILE GIVING UNFORGETTABLE EXPERIENCE TO USERS

2021 - 03 - 30 | HAIKOU DAYINGSHAN NEW CITY CENTER PROJECT 海口市大英山新城市中心区D01、D09地块项目

SKY BRIDGE DESIGN 空中连廊设计研究

SHARED AMENITY IN THE SKY LOUNGE THAT ALSO OFFERS STUNNING VIEWS

2021 - 03 - 30 | HAIKOU DAYINGSHAN NEW CITY CENTER PROJECT 海口市大英山新城市中心区D01、D09地块项目
使用者共享的空中客厅,除了完善配套设施, 更提供绝佳景致

MULTI-STORY STOREFRONT PROVIDES HIGH-END BRANDS THE LIBERTY OF SIGNATURE DESIGNS

2021 - 03 - 30 | HAIKOU DAYINGSHAN NEW CITY CENTER PROJECT 海口市大英山新城市中心区D01、D09地块项目 ANCHOR STORE
高楼层立面,给主力店提供符合
IDENTITY DESIGN 主力店设计研究
品牌的店面设计空间

直接连接至B1商业,并于B1 形成中央休憩空间

DIRECT CONNECTION TO B1 RETAIL, WHILE CREATING CENTRAL COURT UNDERGROUND

SUNKEN PLAZA DESIGN 下沉广场设计研究

SEPARATING PEDESTRIAN AND VEHICULAR CIRCULATIONS, WHILE MAINTANING TRAFFIC PATTERN

2021 - 03 - 30 | HAIKOU DAYINGSHAN NEW CITY CENTER PROJECT 海口市大英山新城市中心区D01、D09地块项目
人流与车流分开,并保留规划道路
2021 - 03 - 30 | HAIKOU DAYINGSHAN NEW CITY CENTER PROJECT 海口市大英山新城市中心区D01、D09地块项目 BIRD’S EYE VIEW 鸟瞰效果图
2021 - 03 - 30 | HAIKOU DAYINGSHAN NEW CITY CENTER PROJECT 海口市大英山新城市中心区D01、D09地块项目 NIGHT VIEW 夜景效果图
2021 - 03 - 30 | HAIKOU DAYINGSHAN NEW CITY CENTER PROJECT 海口市大英山新城市中心区D01、D09地块项目 NIGHT VIEW 夜景效果图
2021 - 03 - 30 | HAIKOU DAYINGSHAN NEW CITY CENTER PROJECT 海口市大英山新城市中心区D01、D09地块项目 NIGHT VIEW 夜景效果图
2021 - 03 - 30 | HAIKOU DAYINGSHAN NEW CITY CENTER PROJECT 海口市大英山新城市中心区D01、D09地块项目 DAY VIEW 日景效果图
2021 - 03 - 30 | HAIKOU DAYINGSHAN NEW CITY CENTER PROJECT 海口市大英山新城市中心区D01、D09地块项目 DAY VIEW 日景效果图
2021 - 03 - 30 | HAIKOU DAYINGSHAN NEW CITY CENTER PROJECT 海口市大英山新城市中心区D01、D09地块项目 NIGHT VIEW 夜景效果图
2021 - 03 - 30 | HAIKOU DAYINGSHAN NEW CITY CENTER PROJECT 海口市大英山新城市中心区D01、D09地块项目 DUSK VIEW 黄昏效果图
2021 - 03 - 30 | HAIKOU DAYINGSHAN NEW CITY CENTER PROJECT 海口市大英山新城市中心区D01、D09地块项目 DUSK VIEW 黄昏效果图
2021 - 03 - 30 | HAIKOU DAYINGSHAN NEW CITY CENTER PROJECT 海口市大英山新城市中心区D01、D09地块项目 BIRD'S EYE VIEW 鸟瞰效果图
2021 - 03 - 30 | HAIKOU DAYINGSHAN NEW CITY CENTER PROJECT 海口市大英山新城市中心区D01、D09地块项目 BIRD'S EYE VIEW 鸟瞰效果图
2021 - 03 - 30 | HAIKOU DAYINGSHAN NEW CITY CENTER PROJECT 海口市大英山新城市中心区D01、D09地块项目 BIRD'S EYE VIEW 鸟瞰效果图
2021 - 03 - 30 | HAIKOU DAYINGSHAN NEW CITY CENTER PROJECT 海口市大英山新城市中心区D01、D09地块项目 SKY GARDEN INTERIOR VIEW 空中花园效果图
2021 - 03 - 30 | HAIKOU DAYINGSHAN NEW CITY CENTER PROJECT 海口市大英山新城市中心区D01、D09地块项目 INTERIOR VIEW 室内效果图
2021 - 03 - 30 | HAIKOU DAYINGSHAN NEW CITY CENTER PROJECT 海口市大英山新城市中心区D01、D09地块项目 GUOXING ROAD PERSPECTIVE VIEW 国兴大道视角效果图
2021 - 03 - 30 | HAIKOU DAYINGSHAN NEW CITY CENTER PROJECT 海口市大英山新城市中心区D01、D09地块项目 GUOXING ROAD PERSPECTIVE VIEW 国兴大道视角效果图
SKY BRIDGE SCHEME COMPARISON 空中连廊方案比较 2021 - 03 - 30 | HAIKOU DAYINGSHAN NEW CITY CENTER PROJECT 海口市大英山新城市中心区D01、D09地块项目
2021 - 03 - 30 | HAIKOU DAYINGSHAN NEW CITY CENTER PROJECT 海口市大英山新城市中心区D01、D09地块项目 DESIGN FEATURES 设计特色 以中心为项目核心、打造文化港湾 CREATE THE CENTRAL HARBOR 延展视线,创造地标 EXTEND PUBLIC GREEN SPACE 办公最高平面使用率达 92.5% 一心二轴 端庄气势,充满活力 1+1>2 群体效应和地标属性 千人宴会厅位于一层 保障消防安全 提高酒店质感 人流与车流使用者 流线分开 亚洲第一个空中跨塔 玻璃底透视泳池 连接项目/城市/商务的 文化港湾 仅需二层地下车库 控制造价 屋顶花园 园林式购物体验

Turn static files into dynamic content formats.

Create a flipbook
Issuu converts static files into: digital portfolios, online yearbooks, online catalogs, digital photo albums and more. Sign up and create your flipbook.
Discover the Future of Haikou: A Tour of the Dayingshan New City Center by mza-us - Issuu