23551 County Road 5, Loveland, CO - Presented by: John Simmons & Dave Trujillo

Page 1

23551 COUNTY ROAD 5 LOVELAND, COLORADO Offered at $1,750,000 FA RM & RA NC H

LOCATION LOCATION LOCATION

• Split between Berthoud, Loveland, Mead and Johnstown

• Minutes to I-25, shopping, dining and recreation

Million-dollar views of the Rocky Mountains

County: Weld

Zoning: AGR-NEC

Lake: Nearly 7 acres of the lake is deeded with the property. Surface rights for fishing, paddle boarding, canoeing, kayaking, etc. No deeded water rights for irrigation however land is lush. Build a personal dock or a pier. Incredible water fowl for hunting or viewing enjoyment. This is one of the best bird watching lakes in Northern Colorado.

Acreage: 16.076

NO Metro Tax and NO HOA

PRIMARY RESIDENCE

• Built in 1971

• 3082 square foot split level home

• New siding, windows, interior paint…

• Large backyard deck overlooking the entire ranch and the Rocky Mountains

• Hot tub included

• Upstairs features an open living room, dining room, spacious kitchen with plenty of cabinets and counterspace plus 3 large bedrooms and a four-piece bath

• Lower level features a spacious family room with wood burning fireplace, a spacious 4th bedroom, ¾ bath, mechanical room and laundry. Attached 2 car garage was finished into additional living space which can easily be re-converted back to a garage

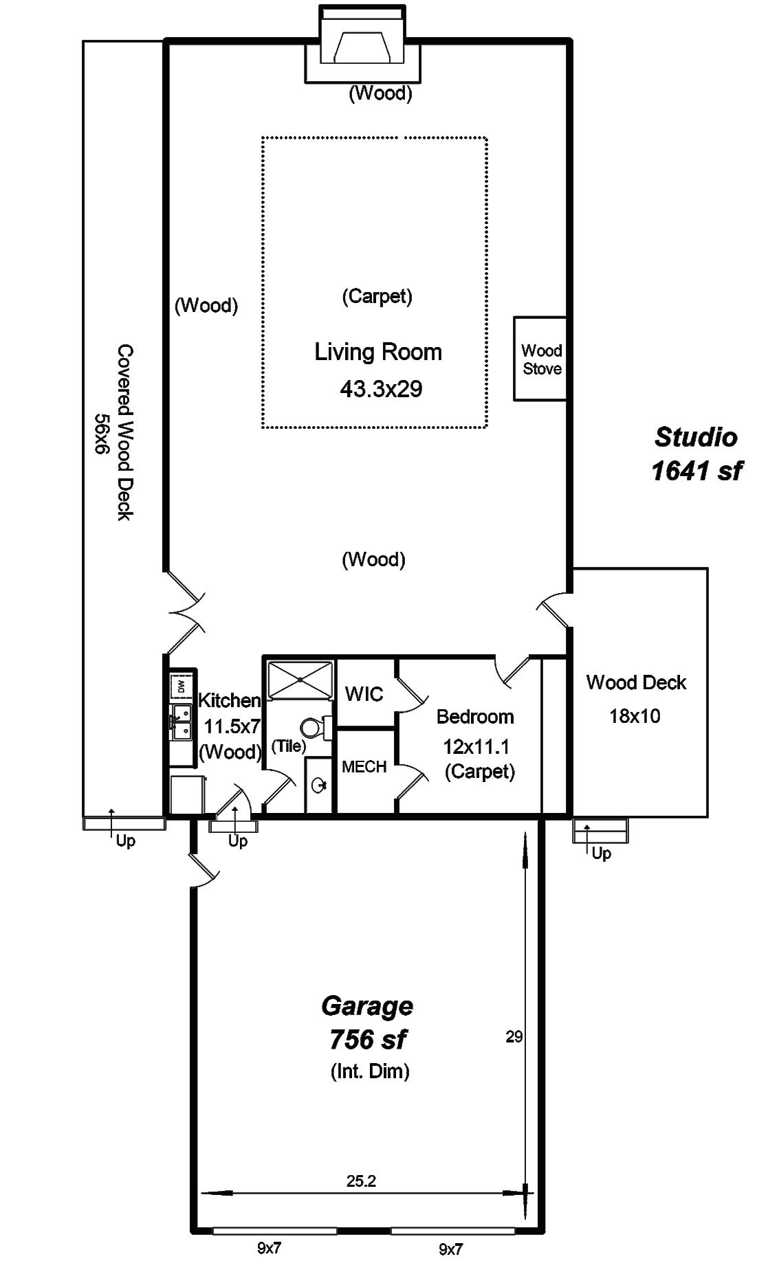
Rustic Studio

• Seller is a worldrenowned painter and music artist

• Massive 56 X 6 square foot front covered patio

• Private yard and koi pond with water fall

• 1641 square feet of living space

• Moss rock wood burning fireplace with mantel

• Hardwood floors

• Vaulted ceilings

• New windows and siding. Seller prefers

the natural gray look on the siding which can easily be power washed and restained

• Bedroom with walkin closet

• Galley kitchen with all appliances included

• ¾ bath

• 756 square foot attached garage with 2 overhead doors

• Backyard deck overlooking the pond

Tiny House

• 432 square feet

• 12X11 living room

• Open kitchen

• Full bath

• 11.3X9.6 bedroom

• Laundry

• Incredible Rocky Mountain views

• Backyard wood burning firepit

• 260 X 130 turn-key riding/roping arena with observation platform and cattle/roping chutes. Arena is wide enough for barrel racing

• Detached 3 car garage measuring 891.52 square feet with 3 9X7 overhead doors

• 546 square foot workshop attached to the 3-car garage

• 562.86 square foot shelter or 50 ton hay storage

• 684 square foot open garage for tractor/car/ equipment storage

• Silo

• 10X8 storage shed

• 2 loafing sheds (SW Corner loafing shed 17X12. NE Corner loafing shed 12X12)

• Barn with 4 12X12 Stalls plus 2 storage bays (feed and tack room)

• Round pen

• 4.5+/- acres of pasture

• State hunting unit 20. Small game, predator, varmint and incredible waterfowl

• 2 1000-gallon propane tanks are both owned

Additional Features:

• 16.076 acres

• 60 X 30 Tennis court or pickleball court

• Horseshoe pits

• Numerous dog kennels and dog runs

• Numerous sodded areas irrigated by sprinkler and drip system

• 5 additional water hydrants throughout property

• Over 2000 feet of white vinal fencing

• Mature landscaping with numerous species of trees including Aspens, Blue Spruce, Junipers…

• Near 2 RV dump stations

GENERAL INFORMATION

Lot Size: 16.076 Acres

Square Feet: 5,160

Finished Square Feet: 5,160

Bedrooms: 6

Bathrooms: 4

Heating: Forced Air, Baseboard, Wood Stove

Cooling: Central A/C, Room A/C

Garage: 10 Car Attached

Construction: Wood/Frame, Brick/

Brick Veneer

Style: Ranch, Bi-Level & 2 Story

Year Built: 1971

TAXES HOA FEES

Taxes/Year: $6,106/2022

Subdivision: None

HOA: None

SCHOOLS

Elementary: Winona

Middle School: Ball (Conrad)

High School: Mountain View

District: Thompson R2-J

Dave Trujillo Realtor® at The Group, Inc. 970-222-0340 dmtrealty@comcast.net www.TheGroupInc.com John Simmons Realtor® at C3 Real Estate Solutions 970-481-1250 jsimmons@c3-re.com www.JohnSimmonsRealEstate.com LENDING LL C NW ay REAL ESTATE TITLE & ESCROW N Way Information is deemed reliable, but not guaranteed. © 2023 C3 Real Estate Solutions, LLC. inc. Brochure design by: www.graficstudios.com
Enjoy Colorado and its beautiful Holidays and Seasons!

Turn static files into dynamic content formats.

Create a flipbook
Issuu converts static files into: digital portfolios, online yearbooks, online catalogs, digital photo albums and more. Sign up and create your flipbook.