

SANTA MONICA HIGH SCHOOL
Santa Monica-Malibu Unified School District

Redefining Education for the Next Generation



160’ 80’ 0
Santa Monica High School Campus, 2025
A Campus Transformed for 21st-Century Learning
In response to the rapidly evolving demands of K–12 education, the Santa Monica-Malibu Unified School District (SMMUSD) has embarked on a bold, multiphase transformation of the 100-year-old Santa Monica High School (Samohi) campus—reimagining it for the next century of learning, wellness, and community, maximizing the value of these public investments.
OUR ROLE & PROCESS
Moore Ruble Yudell has been deeply engaged as a long-term partner in this campus evolution, leading the two largest phases of redevelopment—Phase 1 (Discovery Building) and Phase 3 (Exploration Building and Gold Gym)—and guiding the campus vision forward through Phases 4 and 5 of planning. Our work has helped the District reshape a historic campus into a future-ready model for interdisciplinary learning, student wellbeing, and community engagement.
Our approach places adaptability, resilience, and long-term value at the forefront. At Samohi, this has meant designing environments that elevate student experience today while anticipating tomorrow’s needs—from emerging career pathways and handson learning to flexible technology, shared spaces, and wellness-centered design. Each project is conceived not as a stand-alone building, but as part of a cohesive, enduring campus framework.

CAMPUS OPPORTUNITIES & VISION
Public education is a community endeavor, and our process organically integrates community and staff engagement, under the direction of each school and district’s leadership. Students are always at the center, but we also embrace the perspectives of parents, teachers, administrators, and community members. Through deep engagement with District leadership and stakeholders, we built consensus and translated shared goals into innovative learning environments. This inclusive approach has been critical to the success of Samohi’s transformation, translating into spaces that embody the aspirations of the entire Santa Monica community.
Serving 2,800 students in a dense urban setting, the campus required a long-term, phased strategy that could:
• Replace aging facilities with modern, flexible learning environments.
• Support 21st-century pedagogy—from collaborative commons to hands-on, projectbased learning
• Expand Career Technical Education (CTE) programs to prepare students for college, careers, and real-world application
• Enhance athletics, arts, wellness, and student life through new inclusive facilities
• Create a cohesive, sustainable campus vision adaptable for decades to come.

Santa Monica High School Campus, 1926

“This building was in many ways a test case. As I walk through and experience this building, I see this building as not only a model for Santa Monica – Malibu, but it becomes a great model for all educational buildings.”
Carey Upton, Chief Operations Officer, Santa Monica-Malibu Unified School District

Discovery Building & Aquatic Center
Discovery redefined Samohi’s learning environment—flexible, interdisciplinary, wellnessfocused, and community-serving.
Completed: 2021 | 280,000 SF | Academic, CTE, Aquatics | Moore Ruble Yudell was Co-Design Architect with HED as Executive Architect
The Discovery Building marked the transformative first step in Samohi’s campus redevelopment. Designed as an open, flexible learning environment, Discovery replaces outdated facilities with a futureready academic center supporting next-generation teaching and learning.
Discovery brings together classrooms, science labs, makerspaces, student support, dining, and athletic spaces under one roof—including a collegiatelevel Aquatic Center featuring a 50m Olympic swimming pool that serves both student athletes and the broader Santa Monica community. Its “open building” concept supports evolving pedagogy by enabling interior spaces to adapt over time as programs change.
Impact:
• Phase 1 of campus redevelopment plan
• Consolidated academic, athletic, and student life spaces to create a lively campus hub
• Integrated CTE and STEM-oriented learning environments with hands-on exploration
• Established a new campus heart that sets the standard for future phases
• First U.S. education project designed with Open Building principles
• 31 classrooms, labs, technology-enhanced teaching spaces, student commons, administrative suites, a suite for medically fragile students, 50m Olympic-length outdoor pool and support spaces, two-level parking garage, lounge-like common areas, open learning areas, multi-use dining hall.













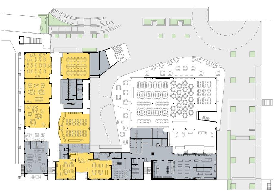
Knitting the Campus Together: Word Wall and Bleacher Seats

Learning Happens Everywhere
Following the principle that “learning happens everywhere” every area within its large floor plates is seen as a learning space. Hallways are replaced with freeflowing, media-rich Student Commons areas for student-led activity and interaction. Classrooms are scaled up to simultaneously allow multiple modes of hands-on learning, and connected to the Commons by generous folding glass doors. Access to upper floors brings students together in a grand series of habitable welcome-stairs. Administrative functions for students are placed at the center of student life on each floor.
Classroom
Common Space
Lab
Dining
Kitchen
Meeting & Conference
Administration
Pool
Pool Support
Building Support/Bathroom
Elevator


Short-Term Flexibility/Long-Term Adaptability: Rooftop outdoor learning environment
Permeable, Approachable Campus Hub: Courtyard Bridge and Stairs

Community Connection & Resilience: Aquatic Center with Olympic-size swimming pool, supported by state-of-the-art team changing rooms, departmental offices, equipment spaces, shade structures and digital signage.



“This building is more than just walls and windows—it is a sanctuary for endless opportunity and creativity.”
— Samohi Student SCAN TO WATCH THE EXPLORATION & GOLD OPENING

Exploration Building
Exploration inspires connection, creativity, and growth— empowering every student to thrive in a modern, future-ready high school environment.
Completed: 2024 | 54,000 GSF | Academic, CTE, STEM | Moore Ruble Yudell was Design Architect with HED as Executive Architect
Exploration advances 21st-century public education through a flexible, interdisciplinary platform that nurture collaboration, well-being, and student success. The Exploration Building embodies Samohi’s highly progressive approach to education with a Career Technical Education (CTE) program that supports hands-on learning in engineering, health, law, media, and visual arts. It sets a new benchmark for adaptable, future-ready high school design rooted in community and lifelong learning.
The flexible “open building” design allows for longterm adaptability, with modular labs, collaborative studios, and a dramatic two-story pitch space that serves as student commons and exhibition hall. Outdoor rooftop classrooms, shaded by photovoltaic structures, offer spectacular panoramic views of the coastline and mountain ranges.
Impact:
• Phase 3 of campus redevelopment plan
• New clearly defined circulation spine with open spaces knit together academic and athletic zones across multiple grade levels.
• Innovative building systems designed with Open Building principles to adapt to changing pedagogy
• Offers sequential coursework and activities aligned with local Silicon Beach industry demands.
• Learning labs for CTE programs, Media and Visual Arts studios, mock courtroom; studios for art, photography and digital media; and a large, multi-functional event space.


“It’s genuinely a space where students feel at home any time of day... The walls are open as students are flowing between rooms inside and outside of classrooms, within the commons, and outdoor learning spaces—actively engaging and learning and instruction. The energy is electrifying within this building, and it provides space for the spirit of collaboration and community.”
—Marae Cruce, Principal, Santa Monica High School Exploration Building and Gold Gym




Group Study/Commons


Media Lab overlooking Pitch Space and Commons Engineering Lab and Makerspace


Anatomy Lab
Art Studio with access to outdoor area
Mock Trial Lab
Digital Media Sound Stage
Ceramics Studio

Redefining Public Education
The Exploration Building engages Santa Monica’s diverse student population with rapidly evolving pedagogy to prepare students for a dynamic future. Incorporating new technologies, nurturing creative thinking, focusing on career pathways, and providing flexible learning spaces are ways in which schools are redefining public education. Learning calls for the architecture to be less about a building and more about an operable, adaptable platform.
Pitch Space
Outdoor Classroom
Art Studio
Law
Health/ Wellness
Think Tank
PLTW/Engineering
Media
Group Study
Building Support
Landscape
Designed according to Open Building principles, these structures prioritize long-term use and adaptability of buildings and are inherently more sustainable. Prefabricated moment-frame structure, independent air systems, and exterior perimeter stairways allow for reconfiguration over time while maintaining full operation. Inside, large-format class labs with ceiling-mounted power grids provide maximum flexibility for evolving pedagogy.

Sustainability as a Teaching Tool
Guided by CHPS and WELL Building Standards, the design team aligned educational, social, and environmental goals to create a building that merges learning, wellness, and sustainability. Natural daylight, ventilation, and optimized orientation reduce energy use, while open ceilings expose mechanical systems—turning building infrastructure into a learning tool. With an average EUI of 31.85 kBtu/sf/yr, 60% below ASHRAE 90.1-2016, the design achieves exceptional efficiency. A rooftop photovoltaic array generates up to 20% of the building’s energy, and durable, low-carbon materials extend longevity, ensuring that sustainability is both visible and educational daily.
A HEALTH AND WELLNESS
• Abundant fenestration optimizes daylight, views & outdoor connection
• Planning maximizes north & south daylight with east-west plan orientation
• Generous commons areas promote increased activity & social interaction
• Outdoor circulation supports wellness & reduces climate-controlled interior spaces
B ROOF GARDEN
• Absorbs solar radiation & reduces cooling loads
• Provides demonstration hydroponic gardening for Health / Nutrition Program
• Reduces storm water run-off
C B

C PHOTOVOLTAIC PANELS
D
• Estimated power generation offsets 10-20% of the building’s power usage
• Provides shade structure for outdoor rooftop classrooms
D ADAPTABLE MULTI-UNIT HVAC
• Side-mounted towers house 12 independent air supply systems for adaptable reconfiguration while maintaining operations
E MOMENT FRAME STRUCTURE
• Steel moment frame & demountable partitions maximize long-term adaptability
• Mitigates construction impact on the surrounding neighborhood by reducing onsite welding & construction time


“These specialized spaces give our teachers a strong foundation to build exceptional programs that Santa Monica High School is known for—whether it’s preparing for a competition with JPL through the Engineering Academy or supporting our athletic teams with facilities that elevate their performance. Having spaces that meet the needs of these programs makes all the difference in how students prepare for their futures.”
—Marae Cruce, Principal, Santa Monica High School Exploration Building and Gold Gym

Gold Gymnasium
A new vibrant gateway and anchor for the Samohi campus.
Completed: 2024 | 57,000 SF | Athletics, Wellness | Moore Ruble Yudell was Design Architect with HED as Executive Architect
Strategically positioned at the intersection of the main campus axes, it establishes a strong public presence while seamlessly connecting academic and athletic zones. The design steps gracefully up a 29-foot hillside, creating a dynamic series of cascading volumes that interlock to form diverse, flexible spaces. These levels accommodate a wide range of programs—from athletics and wellness to large school assemblies—while offering seating for up to 800 spectators. A useable, accessible network of interconnected landscape at the center and along the perimeter replaces formerly inaccessible slopes fronting an empty boulevard, creating safer spaces for the campus and community.
Beyond its athletic purpose, Gold Gym is a vital community asset. It provides venues for dance, yoga, fitness, and district-wide events while supporting the historic campus amphitheater at the heart of student life. As a daily hub of energy and pride, the Gold Gym stands as a dynamic intersection between education and civic life—an enduring space where students and residents alike gather, move, and celebrate together.
Impact
• Phase 3 of campus redevelopment plan
• Consolidates physical education, athletics, and recreation into one cohesive, state-of-the-art facility supporting students and community.
• Functions as a shared resource for Santa Monica, hosting public events and strengthening civic and school partnerships.
• Presents a series of outdoor rooms along a meandering accessible path connecting Centennial Quad to the center of campus.
• Provides a new student-facing focal point on campus as well as a welcoming new face of campus to the greater community.
• Program: Competition gym, auxiliary gym, dance and yoga studios, fitness room, weight training facility, locker rooms, training support spaces, outdoor areas, administration spaces.
Flexible Athletic Spaces for Diverse Programming



Competition Gymnasium
Fitness Room
Auxiliary



Weight Training Room with access to outdoor area
Competition Gym with telescoping seating for 800 spectators
Yoga Studio
Dance Studio
Auxiliary Gymnasium
Locker Room Administration


Serving Athletics and Student Wellness: Auxiliary Gym
Building School Spirit: Dance and Pep Studio overlooks the Auxiliary Gym



















































































































Dance Studio
Yoga/Fitness
Classroom
Concessions
Administration
Building Support








Multi-Purpose and Multi-Level Facility For Athletics
The Gold Gymnasium building is built on a steep hillside along Pico Blvd, gracefully stepping up the grade of the existing hill rising twenty-nine feet from west to east. The Competition Gymnasium, the Auxiliary Gymnasium, and the Dance Studio are the three main spaces, connected with a dramatic curved roof and telescoping views throughout the entire building. Each main space is coupled with
adjacent support program to provide direct access for occupants. The two-court configuration allows for multiple uses from practice games, competitions to multi-purpose assemblies, supported by 800-seats of telescoping bleachers. The building also contains inclusive locker rooms, supports dance classes, pep squad, health classes, a fully-equipped fitness studio, and yoga studio.
Building Support
Pla
Paseo

Future Student Center

Phase 4 & 5 Campus Plan
Creating the Heart of a Connected Campus.
Completed: 2024 | 26 acres | Academic, Student Life | Moore Ruble Yudell was Master Planner
The Phase 4 and 5 Campus plan envisions a new 47,000 SF hub for student wellness, services, and civic use—all connected by universal design principles and panoramic views of the Bay. The plan resolves decades of campus circulation challenges, introduces a welcoming 7th St entrance and gateway plaza, and creates strong visual and physical connections between the upper and lower campus. Together, these phases transform Samohi into a vibrant, future-ready learning environment that celebrates inclusivity, creativity, and community engagement for generations to come.
Impact:
• Phase 4 & 5 of campus redevelopment plan
• Establishes a Central Quad connecting all major academic, arts, and athletic facilities
• Addresses the campus’s 53-foot elevation change through ramps, elevators, and promenades designed for universal access.
• Cultural & Creative Hub: Includes a new Black Box Theater, campus gallery, library, and multiuse humanities spaces.
• Reimagines the entry experience by creating a new welcoming gateway and drop-off along 7th Street with improved visibility and flow.
• Sustainable, Future-Ready Design: Adaptability, multi-use spaces, and long-term flexibility for evolving educational programs.



AWARDS FOR DESIGN EXCELLENCE
Exploration and Gold Gym
• 2025 Chicago Athenaeum American Architecture Award
• 2025 Westside Urban Forum Merit Award, Schools Category
• 2021 Westside Urban Forum Merit Award, Unbuilt Category
Discovery Building
• 2025 Structural Engineers Association of Southern California (SEAOSC) Structural Engineering Excellence Award
• 2024 Green Good Design® Award
• 2023 Chicago Athenaeum American Architecture Award Honorable Mention
• 2023 Coalition for Adequate School Housing (CASH)-Merit Award
• 2022 A4LE Planning & Design Award, Juror’s Choice Award
• 2022 Chicago Athenaeum International Architecture Award, Honorable Mention
• 2022 ENR Southern California Best K-12 Education Project
• 2022 Los Angeles Business Council 52nd Annual Architectural Award Winner
• 2022 The Plan, Shortlisted Best Educational Building of the Year
• 2022 Westside Urban Forum Honor Award
• 2022 World Architecture Festival, Shortlisted for Best School of the Year-Presented in Lisbon, Portugal
• 2022 World Architecture Festival, Shortlist
• 2021 Green California Schools Summit Leadership Award
• 2020 Southern California Development Forum Design Award - Unbuilt Category
• 2019 AIA San Fernando Valley Design Awards Citation




