CONJUNTO HABITACIONAL PEONZA

Page 1

CONJUNTO HABITACIONAL PEONZA

INTEGRANTES

R. MIROSLAVA MÉNDEZ MONSERRAT GÓMEZ H.

ÍNDICE
47 57
ANÁLISIS DESARROLLO PROYECTO PLANOS BIOCLIMÁTICO ESPACIALIDAD 4 18 24
60
ANÁLISIS
UBICACIÓN
TIPOLOGÍA
TOPOGRAFÍA
ENTORNO CIUDAD NATURALEZA
CLIMA
TERRENO
EQUIPAMIENTO

CENTRO FOTOVOLTAICO GRIETA BARRANCO ÁREA NATURAL PROTEGIDA CENTROS DE ENERGÍA

COLINDANCIAS

Dentro de lo social, identificamos que en Puerto Ayora, los habitantes en su mayoría son familias locales (30 mil habitantes permanentes) dedicadas a actividades como la pesca, de igual manera hay familias que se dedican al área de turismo ya que reciben 300 mil turistas al año, por lo que le dan la oportunidad a las familias locales de llevar a cabo un arrendamiento de casas y departamentos en la zona alta.

Identificamos que hay una interacción humana aproximadamente de 8 mil km2 abarcando tierra y mar, por otro lado de igual manera pudimos percataros de que el puerto es el sitio donde principalmente se llevan a cabo las relaciones.

SOCIAL
PAISAJES
DESARROLLO

1 2 3 4

forma inicial separación por bloques unión de bloques curva en vez de esquina

PERMANENTE
EVOLUCIÓN DE FORMA

forma inicial división ying yang separación por bloque unión por tercer bloque fusión

TEMPORAL 1 2 3
4 5
PROYECTO
USUARIO temporal local

módulo permanente circulación módulo temporal áreas públicas

DISTRIBUCIÓN

Módulo permanente

18 módulos de 1 vivienda en terreno 1198.44 m2

área de circulación 1940 m2

9.6%

Módulo temporal

áreas públicas ( parques ) 771.3 m2

15.51%

4 módulos de 6 viviendas en terreno 562 m2

6.2%

espacio sin ocupar 8032 m2

4.5%

64.2%

TIPOLOGÍAS Y USOS

habitación

baño living

A= 11.55 m2

comedor

A= 2.89 m2

A= 8.83 m2

A= 12.45 m2

habitación 1

A= 11.55m2

habitación 2 A= 2.89 m2

baño

A= 10.13 m2

PROGRAMA

habitación

baño living

A= 12.60 m2

comedor comunitario

A= 7.15 m2

A= 8.81 m2

A= 52.10 m2

habitación baño living

A= 12.60 m2

A= 7.15 m2

A= 8.81 m2

PROGRAMA
CIRCULACIÓN
directa indirecta
CIRCULACIÓN
directa indirecta
RELACIONES público semipúblico privado
RELACIONES público semipúblico privado

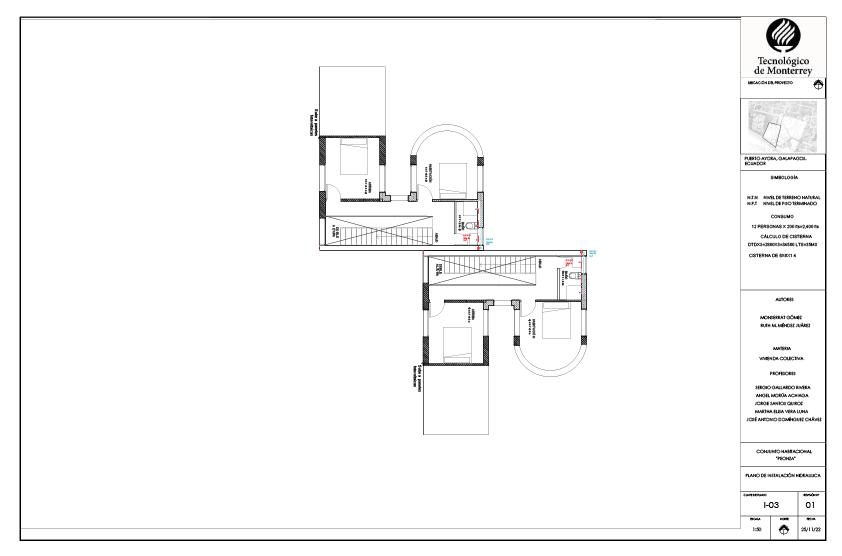
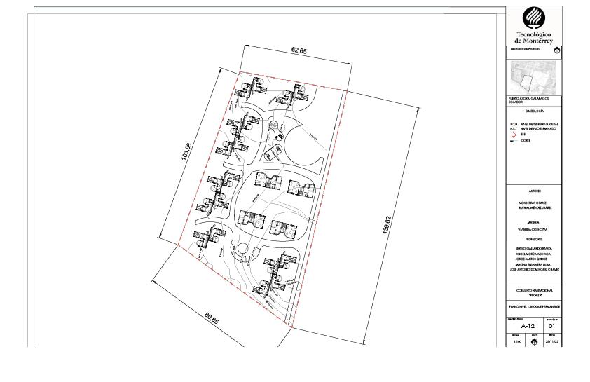
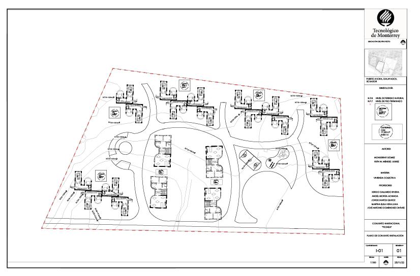
PLANOS ARQUITECTÓNICOS

PLANTA CONJUNTO

ACCESO

EXPLANADA VIVIENDA PARQUE DE DEPORTE URBANO CICLOVÍA
PLANTA CONJUNTO

PLANOS

ESTRUCTURALES

DETALLES
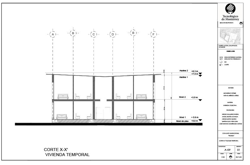
CORTE POR FACHADA
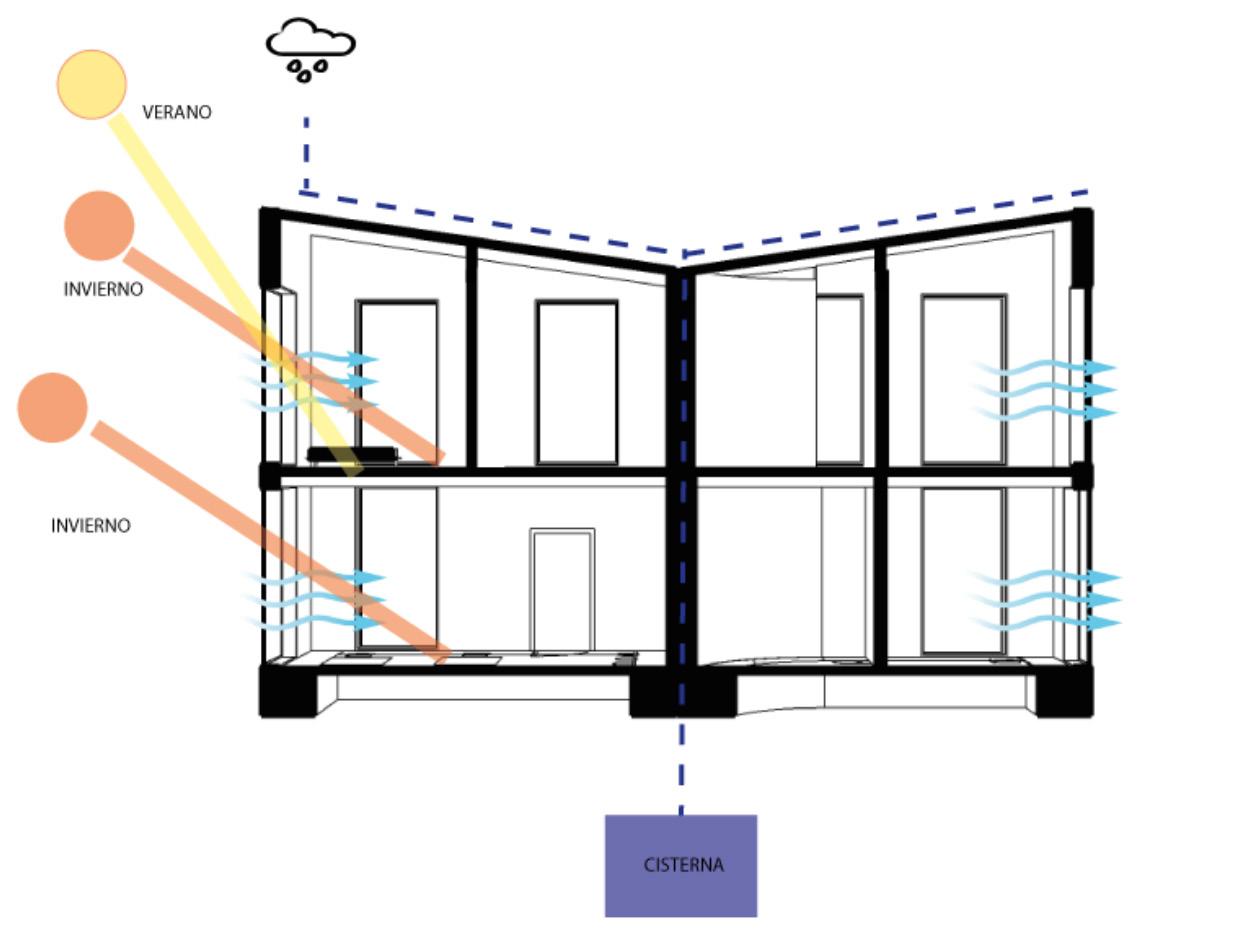
DIAGRAMA BIOCLIMÁTICO
BIOCLIMÁTICO
BIOCLIMÁTICO
ESPACIALIDAD
MAQUETA 1:200
MAQUETA 1:200
MAQUETA 1:200
MAQUETA 1:200
MAQUETA 1:50
MAQUETA 1:50
MAQUETA 1:50
MAQUETA 1:50
TABLA

Turn static files into dynamic content formats.

Create a flipbook
Issuu converts static files into: digital portfolios, online yearbooks, online catalogs, digital photo albums and more. Sign up and create your flipbook.