Casa ILDFLYE - Vivienda unifamiliar

Page 1

c a s a ildflye

Índice contexto usuario intenciones exploración proyecto 17 27 40 43 Caso análogo 4 23

Caso análogo

VIVIENDA MÌNIMA DE FIN DE SEMANA Área Ubicación Construcción Arquitectos Colaboradores 90 m2 Año 2015 San Bernardino, Paraguay Biocons Arquitectos Arq. Nicolás Morales Yolanda Hermosa

Usuario alimento vivienda seguridad comodidad Esta vivienda fue construida para una familia de clase media para hacer un uso de la casa en verano. Necesidades básicas:

Programa arquitectónico 2 habitaciones 1 Baño Comedor Cocina Sala Lavadora Galería

Materiales: Es una vivienda que responde al clima de la ubicación con materiales de bajo costo, cuenta con una ventilación cruzada que se logra en el espacio social principal. Características:

Ladrillo común Cimientos de piedra del lugar

Aberturas reutilizadas Coberturas horizontales losa alivianada techo de chapa bovedilla de tirantes de madera y tejuelón cerámico reutilizados.

Interior Exterior

c a s a ildflye

Contexto

Casa Ildflye está ubicada en el municipio de Nanacamilpa, Tlaxcala, cerca del santuario de las luciérnagas, de interés turístico Se decide realizar una construcción innovadora en el proceso y diseño, con el propósito de tener un acercamiento con las especies y el contexto local.

Nanacamilpa Ciudad deNanacamilpa

Distancia de la ciudad al terreno seleccionado

Nanacamilpa Existen diversas atracciones turísticas que están relacionadas con la naturaleza, lo cual favorece a nuestros usuario grscias a sus profesiones

Nanacamilpa

Nanacamilpa

Nuestro usuario VIVIAN Ocupación : Bióloga MÓNICA Edad: 28 años Ocupación : Fotógrafa Edad: 30 años

un espacio cerca a la naturaleza donde pueda continuar con su investigación para poder salvar a la especie de las luciérnagas.

INTERESES DESEOS

una vivienda que le pueda brindar comodidad y a su vez cercanía a su espacio de investigación donde pueda disfrutar de la compañia de su pareja y tengan su privacidad.

VIVIAN Nuestro usuario

INTERESES DESEOS una vivienda que tenga un espacio para su estudio de fotografía que se encuentre en la misma vivienda pero separado para mantener privacidad, donde este estudio tenga la flexibilidad de brindar un espacio tanto público como privado. un espacio preferentemente en la naturaleza donde pueda fotografiar espacios montañosos y bosques para su portafolio.

MÓNICA Nuestro usuario

VIVIAN MÓNICA Nuestro usuario

INTENCIONES proyectuales

Sketches Sophi

Sketches Sophi

Sketches Sophi

Sketches Monse

Sketches Monse

Sketches Chava

Sketches Chava

ceso e eño

P a l e t a d e v e g e t a c i ó n Pino Alto Oyamel Encino Árboles predominates

P a l e t a d e v e g e t a c i ó n CAMPANITAROSA MILENRAMAEURASIÁTICA MANZANILLADELLANO MARIHUANA NOPALCAMUESO ESPÁRRRAGO FRIJOL PINOAYACA PINOAYACAHUITE MAGUEYPULQUERO GOVENIALILIACEA AZUCENAAMARILLA NOCHEBUENA RAIZDETABACO NUBEDECAMPO

Paleta cromática y de texturas

Madera Vidrio PTR

PALETA DE MATERIALES

EXPLORACIÓN VOLUMÉTRICA

PROGRAMA ARQUITECTÓNICO DEFINIDO

DIAGRAMA RELACIONES FUNCIONALES

ZONI FICA CIÓN

c i r c u l a c i o n e s

Privado Semi-privado Público 3 módulos

CAMBIO DE FORMAS MODIFICACIÓN DE DISTRIBUCIÓN 1.- colocar armario de blancos en vez de la ducha 2.- girar lavamanos para mayor comodidad al usar 3.- colocar la ducha después del inodoro 4.- jalar un muro en el que se apoya la cama para montar una cama abatible y que se esconda cuando no se use para liberar espacio

REPLANTEAMIENTO DE LA PLANTA

REPLANTEAMIENTO DE LA PLANTA

Área de trabajo (estudio) almacenamiento recámara baño Cocina/ sala / comedor

DISTRIBUCIÓN DE LOS ESPACIOS Área de trabajo (estudio) Baños Recámara Cocina / Comedor Almacenamiento

Proceso de distribución

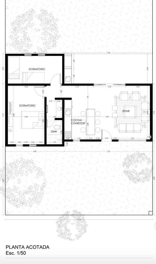
PLANTA FINAL

Plantas arquitectónicas

P l a n t a d e c o n j u n t o

P l a n t a b a j a

+0.25N.P.Tm Cocina/comedor Dormitorio Baño Estudio Entrada Principal0.0N.P.m A C 1 3 4 6 BDE 6.7 1.9 2.3 0.5 1.6 5.53 1.8 0.9 2.5 1 5 6 2 5.53 1 2.1 2.1 A D E 6.7 4.9 1.6 Y Y´ X X´ PlantaBaja Escala1:25 Nombredelproyecto CasaIldfly Recámara 6.125m2 Cocina/comedor 6.00m2 Baño 4.62m2 Estudio 4.14m2 Autores MonserratSophiaAnellJuárezGómezHernández SalvadorCuatetlChiquito Materia:Viviendaunifamiliar Fecha Escala 08/09/2022 1:25 Plano Clave PlantaBajaNanacamilpa,PA-04TlaxcalaCoordenadas:19.476022, -98.596785 N N.P.TB.A.P.BajadadeaguapluvialNiveldepisoterminado LíneaLíneadeejesdecorte

A C 1 3 4 6 BE 6.7 1.9 2.3 2.2 5.53 1.8 0.9 2.5 A D E 6.7 4.9 1.6 1 5 6 2 5.53 1 2.1 2.1 B.A.P. B.A.P. Y Y´ X X´ 0 0.5m 1m 2m FachadaOeste Escala1:25 Nombredelproyecto CasaIldfly Recámara 6.125m2 Cocina/comedor 6.00m2 Baño 4.62m2 Estudio 4.14m2 Autores MonserratSophiaAnellJuárezGómezHernández SalvadorCuatetlChiquito Materia:Viviendaunifamiliar Fecha Escala 08/09/2022 1:25 Plano Clave FachadaoesteNanacamilpa,PA-04TlaxcalaCoordenadas:19.476022, -98.596785 N N.P.TB.A.P.BajadadeaguapluvialNiveldepisoterminado LíneaLíneadeejesdecorte

cortes y fachadas

Fachada Norte

Fachada Este

Fachada Sur

1 3 4 6 1.90 1.00 2.58 1.80 0.90 2.45 N.P.TN.P.TN.P.T+0.15m+3.00m+3.50m 0 0.5m 1m 2m FachadaOeste Escala1:25 Nombredelproyecto CasaIldfly Simbología Áreas Cocina/comedor 6.00m2 Estudio 4.14m2 Autores SalvadorCuatetlChiquito Materia:Viviendaunifamiliar Fecha Escala 08/09/2022 1:25 Plano Clave FachadaoestePA-04 Ubicación:Nanacamilpa,Tlaxcala Coordenadas:19.476022, -98.596785 N N.P.TB.A.P.BajadadeaguapluvialNiveldepisoterminado

A D E 6.70 4.90 1.60 N.P.TN.P.TN.P.T+0.15m+3.00m+3.50m 0 0.5m 1m 2m FachadaSur Escala1:25 Nombredelproyecto CasaIldfly Simbología Áreas Cocina/comedor 6.00m2 Estudio 4.14m2 Autores SalvadorCuatetlChiquito Materia:Viviendaunifamiliar Fecha Escala 08/09/2022 1:25 Plano Clave FachadaSur PA-04 Ubicación:Nanacamilpa,Tlaxcala Coordenadas:19.476022, -98.596785 N N.P.TB.A.P.BajadadeaguapluvialNiveldepisoterminado

C BE 4.70 2.30 2.20 N.P.TN.P.TN.P.T+0.15m+3.50m+3.00m N.P.TN.P.T+0.15m+2.50m 0 0.5m 1m 2m CorteX-X´ Escala1:25 Nombredelproyecto CasaIldfly Simbología Áreas Cocina/comedor 6.00m2 Estudio 4.14m2 Autores SalvadorCuatetlChiquito Materia:Viviendaunifamiliar Fecha Escala 08/09/2022 1:25 Plano Clave Ubicación:Nanacamilpa,Tlaxcala Coordenadas:19.476022, -98.596785 N N.P.TB.A.P.BajadadeaguapluvialNiveldepisoterminado

1 3 4 6 1.90 1.00 2.58 1.80 0.90 2.45 N.P.TN.P.T+0.15m+3.34m 0 0.5m 1m 2m CorteY-Y´ Escala1:25 Nombredelproyecto CasaIldfly Simbología Áreas Cocina/comedor 6.00m2 Estudio 4.14m2 Autores SalvadorCuatetlChiquito Materia:Viviendaunifamiliar Fecha Escala 08/09/2022 1:25 Plano Clave Ubicación:Nanacamilpa,Tlaxcala Coordenadas:19.476022, -98.596785 N N.P.TB.A.P.BajadadeaguapluvialNiveldepisoterminado

criterios estructurales

CT-1 CT-1 CT-1 CT-1 CT-1 CT-1 1 5 6 2 5.53 1 3 4 6 5.53 A C BE 6.7 A D E 6.7 2.2 1.82.1 0.9 2 2.03 4.81.5 2.43 0.8 1.7 Y Y´ X X´ 0 0.5m 1m 2m Cimentación Escala1:25 Nombredelproyecto CasaIldfly SimbologíaÁreas Recámara 6.125m2 Cocina/comedor 6.00m2 Baño 4.62m2 Estudio 4.14m2 Autores MonserratSophiaAnellJuárezGómezHernándezSalvadorCuatetlChiquito Materia:Viviendaunifamiliar Fecha Escala 08/09/2022 1:25 Plano Clave Cimentación PA-04 Ubicación:Nanacamilpa,Tlaxcala Coordenadas:19.476022, -98.596785 N LíneaLíneadeejesdecorte CT-1 Contratrabe

perspectivas

maqueta física

Mobiliario

Alzados y diseño Perspectiva 1 Closet Cocina integral

Alzados y diseño Perspectiva 2 Almacenamiento para blancos Escritorio / almacenamiento Estudio

Alzados y diseño detalle

Sistema extensible Medidas

Lavadora "escondida" Medidas

Alzados y diseño detalle

Mueble para blancos

Alzados y diseño detalle Medidas

Alzados y diseño detalle Medidas

diseño bioclimático

PREDIMENSIONAMIENTO

ENERGÉTICO

C á l c u l o d e p a n e l e s s o l a r e s

Planta de presentación

Madera Vidrio PTR

Catálogo de conceptos

ML 24.86 1.00$ 24.86$

TRA_01 Trazo y nivelación con equipo de topografía, planimetria y altimetria de las areas por construir, estableciendo ejes y niveles a cualquier altura. Incluye: material, mano de obra, herramienta, equipo (el cual debera permanecer en obra el tiempo que sea necesario), miscelaneos, acarreos horizontales y verticales, protecciones de seguridad y limpieza del área de trabajo. P.U.O.T. M2 1.00 3,500.00$ 3,500.00$

PZA 4.00 1.00$ 4.00$ CIM-05 Suministro y colocación de Placas Base PB-1 de 1/2" de espesor, de 0.20x0.20 mts., para recibir postes de ptr PTR-1, sobre losa de cimentación. P.U.O.T. PZA 2.00 1.00$ 2.00$

M3 187.89 1.00$ 187.89$ CIM-03 Suministro, colado y colocado de plantilla de desplante de concreto simple f'c= 100 kg/cm2, agregado maximo de 19 mm., hecho en obra, de 5 cms de espesor. Para base de contratrabes. P.U.O.T.

M2 1.00 1.00$ 1.00$ TOTAL PRELIMINARES 1.00$ CIM CIMENTACIÓN CIM-01 Excavación de terreno natural, por medios manuales y/o mecanicos, en cepas para la construcción de contratrabes, hasta una profundidad de 1.00 mts. Incluye acarreos de material de excavación dentro de la obra, protecciones de seguridad. P.U.O.T.

PRE PRELIMINARES

CIM-12 Suministro y fabricación Contratrabe CT-1 en zona de muros de 0.20 mts de ancho x 0.60 mts. de peralte, armada con 6 varillas corridas del No.4 (1/2") y estribos del No.3 @ 20 cms. con Concreto Estructural Premezclado f'c= 200 kg/cm2 clase 1 R.N., T.M.A. 19 mm. revenimiento de 12 cms. Incluye: bombeo, concreto, vibrado y curado, cimbra comun, descimbra, alambre recocido, acarreos, materiales, equipo, herramienta, mano de obra, pruebas de calidad resistencia a la compresión. P.U.O.T.

M2 23.71 1.00$ 23.71$ CIM-14 TOTAL DE CIMENTACION 442.09$ EST Estructura metálica EST-01 Colocación de poste metálico PTR-1 vertical de 4x4" pulgadas, calibre 12 mm, soldado a placa base PB-1 en area de muros, altura y distancia entre poste según lo indique el proyecto. Acabado con primer anticorrosivo y pintura de esmalte. Incluye: trazo, soldadura, materiales, equipo, herramienta, mano de obra, fabricación, aplicación de primer anticorrosivo, aplicación con pintura de esmalte, mano de obra que intervenga, trasporte hasta el sitio de su colocación, limpieza gruesa diaria de trabajo y retiro de material sobrante fuera de la obra. 1,297.47 $1.00 $1,297.47

C A T Á L O G O D E C O N C E P T O S CASA ILDFLY CASA 19.476022,ILDFLY-98.596785

PRE_01 Limpieza y desenraicé de terreno de forma manual, incluye: materiales, mano de obra, equipo de seguridad, herramienta, equipo, y todo lo necesario para su correcta ejecución. P.U.O.T.

TRA TRAZO Y NIVELACIÓN

M3 73.69 1.00$ 73.69$ CIM-02 Relleno de terreno con material de banco (tepetate), compactado de forma mecanica (bailarina) en capas no mayores a 20 cms., compactado hasta obtener el 95% de la prueba proctor estandar. Incluye: pruebas, paleos, traspaleos, acarreos, abundamientos, mano de obra, material, herramienta, desperdicios, equipo, protecciones de seguridad. P.U.O.T.

M

Página 1 de 3 UBICACIÓN:OBRA: FECHA: SEPTIEMBRE 2022 CLAVE DESCRIPCIÓN UNIDAD CANTIDAD P.U. IMPORTE

M2 125.94 1.00$ 125.94$ CIM-04 Colocación de Anclas AN-1 de 1/2" espesor, en forma de "U", de 0.10 X 0.15 mts, en Contratrabe CT-1, soldadas a placas. P.U.O.T.

CIM-13 Suministro y fabricación de Losa de Cimentacion de 0.15 mts de espesor enarmada con Doble Parrilla del No.4 (1/2") @ 20 cms., con acabado pulído integral, con Concreto Estructural Premezclado f'c= 200 kg/cm2 clase 1 R.N., T.M.A. 19 mm. revenimiento de 12 cms. Incluye: bombeo, concreto, vibrado y curado, cimbra comun, descimbra, alambre recocido, acarreos, materiales, equipo, herramienta, mano de obra, pruebas de calidad resistencia a la compresión. P.U.O.T.

TOTAL TRAZO Y NIVELACIÓN 3,500.00$

M2 1.00 1.00$ 1.00$ PRE_02 Despalme de terreno de hasta 1.00 metro de espesor por medios manuales, siguiendo el proceso indicado en la normatividad aplicable en la materia. Incluye: retiro de tierra negra, mano de obra, herramienta y equipo especializados, protecciones, excavación, retiro de raíces, desramaje, retiro de material de excavación fuera de la obra y todo lo necesario para su correcta ejecución. P.U.O.T.

M EST-05 Colocación de poste metálico vertical PTR-3 de 2x4" pulgadas, calibre 14, centrado y soldado a PTR-2, altura según lo indique el proyecto. Acabado con primer anticorrosivo y pintura de esmalte. Incluye: trazo, soldadura, materiales, equipo, herramienta, mano de obra, fabricación, aplicación de primer anticorrosivo, aplicación con pintura de esmalte, mano de obra que intervenga, trasporte hasta el sitio de su colocación, limpieza gruesa diaria de trabajo y retiro de material sobrante fuera de la obra.

M EST-04 Colocación de poste metálico PTR-1 de 4x4" pulgadas, calibre 12, montado y soldado sobre PTR-1 y PTR-2, largo según lo indique el proyecto. Acabado con primer anticorrosivo y pintura de esmalte. Incluye: trazo, soldadura, materiales, equipo, herramienta, mano de obra, fabricación, aplicación de primer anticorrosivo, aplicación con pintura de esmalte, mano de obra que intervenga, trasporte hasta el sitio de su colocación, limpieza gruesa diaria de trabajo y retiro de material sobrante fuera de la obra.

M EST-03 Colocación de poste metálico PTR-1 horizonal montado y soldado a postes verticales según proyecto de 4x4" pulgadas, calibre 12. Distancia y altura entre cada uno según lo indique el proyecto. Acabado con primer anticorrosivo y pintura de esmalte. Incluye: trazo, soldadura, materiales, equipo, herramienta, mano de obra, fabricación, aplicación de primer anticorrosivo, aplicación con pintura de esmalte, mano de obra que intervenga, trasporte hasta el sitio de su colocación, limpieza gruesa diaria de trabajo y retiro de material sobrante fuera de la obra.

PZA 874.00 1.00$ 874.00$

Página 2 de 3 UBICACIÓN:OBRA: FECHA: SEPTIEMBRE 2022 CLAVE DESCRIPCIÓN UNIDAD CANTIDAD P.U. IMPORTE C A T Á L O G O D E C O N C E P T O S CASA ILDFLY CASA 19.476022,ILDFLY-98.596785

EST-02 Colocación de poste metálico PTR-2 vertical de 4x6" pulgadas, calibre 12 mm, soldado a placa base PB-1 en área de fachada cocina/comedor (sur), altura y distancia entre poste según lo indique el proyecto. Acabado con primer anticorrosivo y pintura de esmalte. Incluye: trazo, soldadura, materiales, equipo, herramienta, mano de obra, fabricación, aplicación de primer anticorrosivo, aplicación con pintura de esmalte, mano de obra que intervenga, trasporte hasta el sitio de su colocación, limpieza gruesa diaria de trabajo y retiro de material sobrante fuera de la obra.

M EST-06 Colocación de poste metálico horizontal PTR-4 de 2x6" pulgadas, calibre 14, centrado y soldado a PTR-2, altura según lo indique el proyecto. Acabado con primer anticorrosivo y pintura de esmalte. Incluye: trazo, soldadura, materiales, equipo, herramienta, mano de obra, fabricación, aplicación de primer anticorrosivo, aplicación con pintura de esmalte, mano de obra que intervenga, trasporte hasta el sitio de su colocación, limpieza gruesa diaria de trabajo y retiro de material sobrante fuera de la obra.

PV-01 Puerta de cristal de dimensiones: 2.20m de alto, 0.80 de ancho de 6mm con marcos de aluminio de 1"x2" atornillados a poste metálico PTR-1. Acabado marcos de aluminio con primer anticorrosivo y pintura de esmalte, parte superior de vidrio fijada a ángulo perimetral de aluminio de 3/4" con cinta doble adhesivo Norton y silicón negro, de acuerdo a detalle de proyecto. Con herrajes y cerrajería según proyecto. Incluye fabricación, aplicación de primer anticorrosivo, aplicación con pintura de esmalte manual, fijación sellados, tornillería, pegamento, montaje de vidrio, mano de obra que intervenga, acarreos horizontales y verticales hasta el sitio de su colocación, equipo, herramienta y limpieza gruesa del lugar de trabajo.

M ACB-MU Acabados muros ACB-MU-01 Muros cubiertos con placas de madera Triplay BC de 0.61x1.22m de 18 mm de ambos lados, pijados con pijas de 3/8" en poste metálico PTR-1 según indique el proyecto, rellenos con mineral de roca de 4". Con tratamiento de madera OZ y CWF con indicaciones según indique el fabricante. Incluye preparación de la superficie, herramientas, equipo, material, mano de obra, limpieza gruesa diaria de trabajo y retiro de material sobrante fuera de la obra. M2 841.50 1.00$ 841.50$ PV Puertas y ventanas

Página 3 de 3 UBICACIÓN:OBRA: FECHA: SEPTIEMBRE 2022 CLAVE DESCRIPCIÓN UNIDAD CANTIDAD P.U. IMPORTE C A T Á L O G O D E C O N C E P T O S CASA ILDFLY CASA 19.476022,ILDFLY-98.596785 PV-02 Puerta interior-1 de baño, hoja a base de marco perimetral HOJA A BASE DE MARCO PERIMETRAL DE MADERA DE PINO DE 4" X 1-1/2", FORRO A BASE DE DUELAS DE MADERA DE PINO DE 4" X 1", CON TRATAMIENTO DE PRESERVADOR OZ Y CWF. CON HERRAJES Y CERRAJERÍA SEGÚN PROYECTO. INCLUYE: SUMINISTRO DE MATERIALES, TRAZO, FABRICACIÓN, CORTE, SOLDADURA, LIJADO DE ACERO, APLICACIÓN DE PRIMARIO ANTICORROSIVO, APLICACIÓN DE PINTURA DE ESMALTE CON EQUIPO DE ASPERSIÓN, FIJACIÓN, RESANADOR DE MADERA, SELLADOR, LIJADO PARA ASENTAR LA MADERA PARA RECIBIR BARNIZ O ACEITE, TORNILLERIA, PEGAMENTO, MONTAJE DE VIDRIO, SELLADO CON SILICÓN, PROTECCION DE ÁREAS CIRCUNDANTES CON PLÁSTICO, MANO DE OBRA QUE INTERVENGA, ACARREOS HORIZONTALES Y VERTICALES HASTA EL SITIO DE SU COLOCACIÓN, EQUIPO, HERRAMIENTA, LIMPIEZA GRUESA DIARIA DEL LUGAR DE TRABAJO Y RETIRO DEL VOLUMEN GENERADO FUERA DE LA OBRA A TIRO LIBRE M2 625.90 1.00$ 625.90$ MOB Mobiliario MOB-01 CLOSET DE MADERA, DIMENSIONES: 2.20 M DE ALTO, 1.9 M DE ANCHO, 0.60 M DE FONDO (+/- 5 CM). A BASE DE ESTRUCTURA DE 2 PANELES LATERALES Y 1 PANEL INTERMEDIO, 6 ENTREPAÑOS DE 43 CM DE ANCHO X 60 CM DE FONDO, ENTREPAÑO SUPERIOR DE REMATE DE 93 CM DE ANCHO X 60 CM DE FONDO, SIN FONDO. TODO EN MDF DE 3/4" CON CHAPA DE CEDRO BLANCO CON TRATAMIENTO DE PRESERVADOR OZ Y CWF. TUBO CROMADO PARA COLGADO DE 46 CM DE LARGO. INCLUYE: SUMINISTRO DE MATERIALES, TRAZO, FABRICACIÓN, CORTE, FIJACIÓN, RESANADOR DE MADERA, SELLADOR, LIJADO PARA ASENTAR LA MADERA PARA RECIBIR BARNIZ O ACEITE, TORNILLERIA, PEGAMENTO, PROTECCION DE ÁREAS CIRCUNDANTES CON PLÁSTICO, MANO DE OBRA QUE INTERVENGA, ACARREOS HORIZONTALES Y VERTICALES HASTA EL SITIO DE SU COLOCACIÓN, EQUIPO, HERRAMIENTA, LIMPIEZA GRUESA DIARIA DEL LUGAR DE TRABAJO Y RETIRO DEL VOLUMEN GENERADO FUERA DE LA OBRA A TIRO LIBRE PZA 2.00 1.00$ 2.00$ Cu Cubierta CU-01 CANALÓN DE LÁMINA GALVANIZADA CAL. 20, 64 CM DE DESARROLLO, DOBLECES SEGÚN DETALLE, PARA COLECTOR DE AGUA PLUVIAL DE CUBIERTA, FIJADO A BASTIDOR DE PTR MEDIANTE PIJAS Y RONDANAS GALVANIZADAS CON ARANDELA DE NEOPRENO. INCLUYE: SUMINISTRO, FLETES, TRAZO, FABRICACIÓN, COLOCACIÓN, ELEMENTOS DE FIJACIÓN, BARRENOS, FIJACIÓN, SUMINISTRO Y COLOCACIÓN DE LÁMINA, PLOMEO, NIVELACIÓN PARA PENDIENTE, SELLADO CON SILICON TRANSPARENTE EN LAS JUNTAS, ACARREOS HORIZONTALES Y VERTICALES A CUALQUIER NIVEL, CORTES, AJUSTES, MANO DE OBRA ESPECIALIZADA QUE INTERVENGAN, DESPERDICIOS, EQUIPO, HERRAMIENTA, LIMPIEZA GRUESA DIARIA DEL LUGAR DE TRABAJO Y RETIRO DEL VOLUMEN GENERADO FUERA DE LA OBRA A TIRO LIBRE ML 50.40 MOB-San Mobiliario Sanitario MOB-SAN-1 CUBIERTA DE MADERA PARA LAVABO. DIMENSIONES: 0.60 M X 1.31 M X 2.5 CM DE ESPESOR, A BASE DE TABLONES DE 12" X 1" DE MADERA DE CEDRO BLANCO, CON TRATAMIENTO DE BARNIZ BONA TRAFFIC NATURAL, CON FALDÓN AL FRENTE Y ZOCLO SUPERIOR, CON ORIFICIOS PARA DRENAJE Y MEZCLADORA. SOBRE BASTIDOR METÁLICO A BASE DE PTR DE 2" X 3" X 3/16" @30 CM, FIJADA A MURO CON TAQUETES EXPANSIVOS @ 30 CM ACABADO CON PRIMER Y ESMALTE ANTICORROSIVO. INCLUYE: SUMINISTRO DE MATERIALES, COLOCACION, PREPARACIÓN DE LA SUPERFICIE, ACARREOS HORIZONTALES Y VERTICALES A CUALQUIER NIVEL, ADHESIVO, MANO DE OBRA, HERRAMIENTA, EQUIPO, CORTES, AJUSTES, DESPERDICIOS, LIMPIEZA GRUESA DIARIA DEL ÁREA DE TRABAJO Y RETIRO DEL VOLUMEN GENERADO FUERA DE LA OBRA A TIRO LIBRE PZA 2.00 1.00$ 2.00$ MOB-SAN-2 LAVABO DE SOBREPONER RECTANGULAR, MOD. LUCERNA3, MCA. HELVEX, COLOR BLANCO, 3 PERFORACIONES PZA 6.00 1.00$ 6.00$ MOB-SAN-3 INODORO MOD. BOLMEN2, MCA. HELVEX, COLOR BLANCO, DOBLE DESCARGA, CON ASIENTO ELONGADO PZA 6.00 1.00$ 6.00$ MOB-SAN-4 LLAVE MEZCLADORA PARA LAVABO 8", MOD. BENNU M-1007, MCA. HELVEX, ACABADO CROMADO PZA 6.00 1.00$ 6.00$ MOB-SAN-5 REGADERA H-3300, ACABADO CROMADO, MCA. HELVEX PZA 6.00 1.00$ 6.00$ MOB-SAN-6 MONOMANDO PARA REGADERA E-45, ACABADO CROMADO, MCA. HELVEX PZA 6.00 1.00$ 6.00$

Sophia Anell Juárez Salvador Cuatetl Chiquito Monserrat Gómez Hernández

c a s a ildflye

Turn static files into dynamic content formats.

Create a flipbook
Issuu converts static files into: digital portfolios, online yearbooks, online catalogs, digital photo albums and more. Sign up and create your flipbook.