The Importance of Creating Liveable Neighbourhoods

Page 1


THEORIES OF ARCHITECTURE AND DESIGN

UBLMYV-15-3 2022/2023

Miroslaw Kusz 19022502

BA (Hons) Architecture and Planning

THE IMPORTANCE OF CREATING LIVEABLE NEIGHBOURHOODS

An Illustrated Essay

2. THEORETICAL ANALYSIS

2.1 ANCIENT AGORA+ HORTI

2.2 SOCIAL STUDIES MOVEMENT (JACOBS, GEHL, KOSTOF)

2.3 CASE STUDY - COAL DROPS YARD

3. CRITICAL CONCLUSION

4. REFERENCES + LIST OF FIGURES 5. APPENDIX

1. INTRODUCTION

The project brief for Studio 4.0 was based in Weston-super-Mare focussing on the central area of the town, its High Street and the surrounding communities. It asked us to design a building(s) for the Community (Culture, Career and Social Capital).

Social capital is defined by OFNS (2020) as “the extent and nature of our connections with others and the collective attitudes and behaviours between people that support a well-functioning, close-knit society”. There are 25 indicators of social capital, amongst them trust in the government, which fell in the UK by 11 % points in the year to Autumn 2019. Furthermore, people are interacting less with their neighbours. Feelings of belonging to one’s neighbourhood have also fallen over recent years. (Fig. 1).

Sustainable communities prioritise health, safety and equity among residents and planning decisions have the capacity to affect social capital. The Covid-19 crisis had a measurable impact on how we think urban areas should work. (Frost, 2020).

Many cities today are trying to reduce cars and create more human-centred environment to improve urban life quality (Yu, 2017). A large body of research has been focused on urban street planning, particularly on liveable streets. But what makes a street liveable? And what creates a good neighbourhood?

This essay will try to answer these two questions. I will start by briefly analysing the ancient design of Roman cities, focusing on agora and horti. Then I will review the writing from some of the leading figures in the field of urban design, including Spiro Kostof, Jane Jacobs, and Jan Gehl. They have all focused on the human experience of cities and how design can shape and influence this experience. They also advocated for a people-centred approach to urban planning and design, emphasizing the importance of community engagement and participation in shaping urban environments. Finally, I will critically analyse Coal Drops Yard development, one of my main studio precedents.

The main inspiration for this essay was a short video on YouTube: “How to build neighbourhoods we actually like?“ (2022), and a talk from Allison Dutoit, a Senior Lecturer at the University of the West of England called “Paving the way for city change“ (2016).

Fig. 1 Social Capital Indicators: Top: Diagram showing trust in national government in the UK, 2004 to 2019. Bottom: Diagram showing proportion of people that regularly stop and talk to their neighbours.

2. THEORETICAL ANALYSIS

2.1 ANCIENT AGORA + HORTI

During “The Pre-Modern Theories” lecture (on 10.10.2022) Dr. Ch. Drozynski discussed the role of Athenian Agora (Fazio, M., Et al., 2014) which inspired me to take another look at public space design in Ancient Greece and Rome.

2.1.1 LIVEABLE STREETS

Fifth-century BCE Athens bequeathed the idea of democracy to the modern world after the Athenian ‘tyrants’ were deposed and democratic institutions were established at the end of the sixth century BCE (Brown, 2020).

The people of Ancient Athens used amphitheatres and the town square (agora) to discuss, make decisions, and participate in public life. Classical urbanism envisioned two different types of spaces where this interaction could take place. One was the Pnyx, which was an amphitheatre where citizens listened to debates and made decisions together. The other was the agora, which was the town square where people were exposed to different ideas in a more direct and unfiltered way. The agora was also a place where various activities took place simultaneously, such as commerce, religious rituals, and socializing. Additionally, there was a rectangular law court in the open space of the agora that was surrounded by a low wall, allowing citizens to both conduct their daily business and observe the proceedings of the justice system (Sennet, 2016).

Imperial fora were a multi-purpose blend of urban beautification, propaganda, cultural enrichment, and civic and imperial administration. Certain kinds of neighbourhood -centred activities, such as art exhibitions, research, storage, government, and law function well in clusters. Compounded and concentrated over time they offered an enduring urban improvement (Taylor, p. 81).

2.1.2 GREEN SPACES

One of the greatest urban investments in ancient Rome was not in its streets and buildings but in its cultivated green space, with two main types: the formal peristyle garden and the more sprawling, horti (Taylor, p. 103), The most famous peristyle garden was the late-republican portico-theatre complex of Pompey (Fig.3). It was inspired by the hillside theatre-sanctuaries at Gabii, Palestrina, and Tivoli. It was characterized by a temple perched on a top, with symmetrical rows of plane trees and water features. The prevailing taste for symmetry, rectilinearity, and orthogonality persisted over time. On the other hand, the idea of horti, arrived from the East in 163 BCE with their evocative tomb gardens and cultural centres along major approaches. For all their amenities gardens and parks was a potential source of mischief. Their greenery was punctuated by pavilions, water features, art galleries, tombs, and the occasional temple. The main purpose was to furnish pleasure and delight (Beard, Chapter 10). The normative aesthetic of nature relied on an ethos of regulation, cultivation, and artifice.

The gardens were often owned by wealthy families, but were open to the public and served as important gathering places for social and cultural events. They were also used as venues for public speeches and political meetings.

Both the agora and horti were important public spaces that played significant roles in the social and political life of their respective societies. They provided a forum for citizens to engage in civic activities and connect with one another, fostering a sense of community and shared identity. In addition, they served as venues for cultural events and artistic expression, promoting the development and spread of culture and learning.

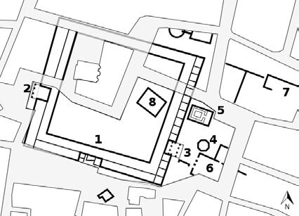
Legend:
1. Columned agora
2. Gate of Athena Archegetis
3. East Propylon
4. Tower of the Winds
5. Vespasianae
6. Agoranomeion
7. Pantheon
8. Fethiye Mosque
Fig. 2 Plan Roman Agora at Athens
Fig. 3 Reconstruction view of Theater of Pompey from portico gardens as they may have appeared in late republic.

2. THEORETICAL ANALYSIS

2.2

SOCIAL STUDIES MOVEMENT

My design process was influenced by the social studies conducted by Spiro Kostof, Jan Gehl, and Jane Jacobs, especially the question of how to create a community with a distinct sense of place valued for its high standards of sustainability and quality of life.

In his article “The Design of Cities” Spiro Kostof divides cities into two types, one that grew naturally, and the other one that was based on a conscious design. The conclusion from the article is that no city however random it may seem can’t be called “unplanned”. The network of streets is a coherent social structure of inward-looking neighbourhood clusters. They are based on the extended family and on ethnic or occupational identity.

The first sketches of my design were taken into consideration of the historic maps to establish boundaries of the site; focused on the retention of history and authenticity. The proposed series of buildings will help in providing holistic legibility to the seafront and will become a focal point when viewed along the important urban corridor running from Regent Street to The Grand Pier, as well as approaching the city centre from the South on Marine Parade.

The goal for my proposal was to activate the edges and create a provision of inclusive green space (Fig. 4). Jane Jacobs emphasized the importance of diverse, mixed-use development, where people of different ages, incomes, and cultures interact in the same area. In her pioneering research J. Jacobs (1961, p.141) noted: “Commercial diversity is immensely important for cities, socially as well as economically“ including “variety of cultural opportunities, variety of scenes, and a great variety in its population and other users“.

Ample space in this zone gives you a chance to provide places for cafe seating, bike parking, and other elements that connect the building and its occupants to the neighbourhood.

The main concept behind the design is liveability, as noted by Gehl, J. (2001, p.33): “living city, (is) one in which spaces inside the buildings are supplemented with usable outdoor areas, and where public spaces are allowed to function”. Gehl’s work highlights the importance of designing urban spaces that are accessible and attractive to all people, including children, the elderly, and people with disabilities (Fig. 5).

Green areas on the ground level are a perfect spot for people to gather, sit down, and enjoy the weather. The master plan proposes 21 new trees within the area, as well as full pedestrianization of Princess Royal Square. This will allow for a safer space for children to play around, as well as increased air quality (Fig. 4). If the environment is attractive, people will linger and engage in optional activities, which leads to sociability: people meeting accidentally or striking up a conversation with strangers. Research indicates that most people today will walk for no more than 5 or 10 minutes, which tells us how big networks of successful public places can be (Barnett, 2002).

2. THEORETICAL ANALYSIS

2.3 CASE STUDY - COAL

DROPS YARD

COAL DROPS YARD, in KING’S CROSS / LONDON by

(2014-2018)

Coal Drops Yard was built in the 1800s for the distribution of coal, and it stood derelict and was severely overgrown by vegetation for the last 50 years. Today it is a popular shopping destination and foodie hotspot, thanks to Heatherwick and Arup.

Victorian brick viaducts are home to modern retail brands and restaurants, with public space in between for events, art installations, and markets (Arup, 2023). The planting and landscaping soften the brown brick considerably; a wildflower and native-grass meadow unfolds between cascading dining terraces and the sparkling canal (Self, 2019).

Following the principles set out by Jan Gehl in his book “Life Between Buildings“, the Coal Drops Yard ticks a lot of boxes. It is a pedestrian-friendly space that combines the restoration of historic buildings with contemporary design. It features a network of pedestrian routes that are accessible to all, with ample seating, planting, and public art. The development’s design encourages people to linger, interact, and enjoy the space, making it a popular destination for locals and tourists alike (Fig. 7).

Coal Drops Yard became my main precedent for the design of the new public plaza. Analyzing this case study helped me to understand which elements worked well and which mistakes could be avoided in the future. I really enjoyed visiting the site in December 2022. I walked alongside an elevated linear park, that provides plenty of green space echoing the High Line in New York, offering great views over the water canals nearby.

However, as noted by Jack Self in his Architectural Review (2019), it is a shopping mall, now “do your bit, and go and buy an ethical sandwich or an organic smoothie”. While Coals Drop Yard provides a pleasant and engaging environment, it does not offer some of the elements that make a street truly liveable, such as affordable housing, social services, and public spaces that cater to a diverse range of needs and interests (The Built Environment Review, 2020).

Additionally, the development’s focus on high-end retail may limit its accessibility and inclusivity for some members of the community. The Coal Drops Yard text tries to build on the success of woke, alternative, and disruptive business branding (like Apple and Pret a Manger did before).

The cultural events are a subset of a massive nine-year-long arts programme called RELAY. There is an even-handed, unexciting mélange of photography exhibitions, pottery workshops, free music gigs and temporary art installations. Its cultural programming is intended as a form of social mobility. Unfortunately, poor people can’t spend at their shops. “The ultimate message is not altruistic or anti-capitalistic at all, but one that Dickens or the Medicis might have recognised (and Machiavelli certainly wrote about): culture belongs to the rich” (Self, 2019).

The goal for my proposal was to activate the edges and create a provision of inclusive green space (Fig. 4).

Fig. 6 Diagram exploring the Palace of Knossos in Heraklion/Greece. It is a clear example of the Mycenaean design, with a central space in the covered palace and the rest of the palace wraps around it organically. This idea of many smaller spaces gathered around the main square was later used by the Heatherwick Studio when renovating the Coal Drop’s Yard in London.
Fig. 7 The diagram explores the similarities in design between Coal Drop’s Yard and the Palace of Knossos (above). The shopping centre becomes an excuse for people to gather, the way the church used to play that function in Middle Ages. There is a strong resemblance between the floor plan of the cathedral and the Coal Drop’s Yard.

3. SUMMARY

The aesthetic vision of how cities will look will always be supplied by professional designers. It is perfectly appropriate for the citizens to decide the limits of that vision. If we still believe that the city is a cumulative, generational artefact which harbours our values as a community and supplies the setting where we can learn to live together, then it is our collective responsibility to oversee its design. According to urban designers, such as J. Gehl and J. Jacobs, the perfect neighbourhood combines the best of human civilization, culture, and creativity.

Coal Drops Yard is a good example of a design that is clean, prosperous, safe and exclusive. The liveable street succeeds only if it is created for everyone. Moving forward, it’s important to engage with the public and get their views on how they want to use the space. People can see through vague mission statements dressed up in marketing jargon, so the two-way dialogue must be genuine. If the full range of amenities on offer isn’t drawing enough footfall, then a re-evaluation of how that needs to change is required.

Fig. 8 Coal’s Drop Yard with highlighted historic arches, now retail units.

4.

BIBLIOGRAPHY

+ LIST OF FIGURES

Arup (2023) Transforming Coal Drops Yard from a derelict industrial site into a new shopping district for London. (online). Available from: https://www.arup.com/projects/coal-drops-yard [Accessed 24 APril 2023].

Barnett, J. (2002) Urban Places, Planning for the Use of: Design Guide. In: International Encyclopedia of the Social and Behavioral Sciences. Pages 16031-16035.

Beard, M. (2015) SPQR. A History of Ancient Rome. London: Profile Books LTD.

Brown, T. (2022) Democracy. Ancient Greece (online). Available from: https://education.nationalgeographic.org/resource/democracy-ancient-greece/[Accessed 17 January 2023] .

Fazio, M., Moffett, M. and Wodehouse, L. (2014) A World History of Architecture (ed. 3) Lawrence King Publishing: London.

Frost, R. (2020) What is a ‘Liveable Street’ and Does It Mean Giving Up Our Cars for Good? (online). Available from: https://www. euronews.com/green/2020/07/08/what-is-a-liveable-streetand-does-it-mean-giving-up-our-cars-for-good [Accessed 23 April 2023].

Gehl, J. (2001) Life Between Building Using Public Space. Arkitekstems Forlag, The Danish Architectural Press. Pp.64-74. Heatherwick (2022) Projects. Available from: https://www. heatherwick.com/projects/buildings/coal-drops-yard/ [Accessed 30 March 2023].

Jacobs, J. (1961) The Death and Life of Great American Cities. Vintage Books. (online). Available at: http://www.petkovstudio.com/bg/ wp-content/uploads/2017/03/The-Death-and-Life-of-GreatAmerican-Cities_Jane-Jacobs-Complete-book.pdf [Accessed 22 December 2022].

Kostof, S. (1989) The Design of Cities. In: Places Journal. 5(4). The Mayors Institute on City Design.

Office For National Statistics (2020) Social Capital In the UK: 2020 (online). Available from: https://www.ons.gov.uk/peoplepopulationandcommunity/wellbeing/bulletins/socialcapitalintheuk/2020 [Accessed 23 April 2023].

Self, J. (2019) The experience is everything: Coal Drops Yard, London, by Heatherwick Studio. In: The Architectural Review Sennet, R. (2016) Concentrating Minds: How the Greeks Designed Spaces for Public Debate. (online) Available from: https://www. democraticaudit.com/2016/11/01/concentrating-minds-how-thegreeks-designed-spaces-for-public-debate/ [Accessed 17 January 2023].

Taylor, R., Rinne, K., & Kostof, S. (2016) Remaking Rome’s Public Core: II. Cambridge: Cambridge University Press.

Yu, H. (2017) Possibilities and challenges of creating a livable street with street tree: A literature review (online). Available from: https:// www.ntnu.edu/documents/139799/1279149990/35+Article+Final_huiyangy_fors%C3%B8k_2017-12-07-23-50-02_Article_Street+tree_HuiyangYU.pdf/ed0a2a34-a8bd-4186-97a8584d3ad68c99#:~:text=In%20livable%20street%2C%20 pedestrians%20can,Comparison%20with%20complete%20 street%20concept.[Accessed 23 April 2023].

YouTube Videos:

1) How to build neighbourhoods we actually like? (2022) [online]. Directed by Freethink. USA. Available from: https://www.youtube.com/watch?v=y_oZVVS2nVk [Accessed 17 January 2023].

2) Paving the way for city change. (2016) [online]. Directed by UWE Bristol Architecture. Available from: https://www.youtube. com/watch?v=g82ds9Lv6J4&list=PLH1LjB-bEnsuv1lYaXMtZhRUxAs8AciPY&index=48 [Accessed 17 January 2023].

Cover - Heatherwick (2022) Projects. Available from: https:// www.heatherwick.com/projects/buildings/coal-drops-yard/ [Accessed 30 March 2023].

Fig. 1 Office For National Statistics (2020) Social Capital In the UK: 2020 (online). Available from: https://www.ons.gov.uk/ peoplepopulationandcommunity/wellbeing/bulletins/socialcapitalintheuk/2020 [Accessed 23 April 2023].

Fig.2 WikiMedia Commons (2020) Site plan of the Roman Agora at Athens. Available from: https://commons.wikimedia.org/wiki/ File:Plan_Roman_Agora_at_Athens.svg [Accessed 23 April 2023].

Fig. 3 Stow, K. (2012) Rome, Pollution and Property. Dirt, Disease and Hygiene in the Eternal City from Antiquity to Modernity. Pp. 41 - 136 Available from: https://www.cambridge.org/core/ books/rome-pollution-and-propriety/antiquity/ECFFFE47B2CD16E140766089BED098C9 [Accessed 17 January 2023].

Fig. 4 Landscape Design - Author’s Own.

Fig. 5 Main principles of a liveable design, based on J. GehlAuthor’s Own.

Fig. 6 JR Kassals (2022) Palace of Knossos Available from: https://www.behance.net/gallery/62670487/Knossos-palace-1350-BC[Accessed 22 December 2023].

Diagram - Author’s own.

Fig. 7 Heatherwick (2022) Projects Available from: https://www. heatherwick.com/projects/buildings/coal-drops-yard/ [Accessed 30 March 2023].

Diagram - Author’s Own.

Fig. 8 Heatherwick (2022) Projects. Available from: https://www. heatherwick.com/projects/buildings/coal-drops-yard/ [Accessed 30 March 2023].

Appendix - All photographs by Kusz, M. (2022)

5. APPENDIX - Images from a site visit.

Turn static files into dynamic content formats.

Create a flipbook
Issuu converts static files into: digital portfolios, online yearbooks, online catalogs, digital photo albums and more. Sign up and create your flipbook.
The Importance of Creating Liveable Neighbourhoods by Miroslaw Kusz - Issuu