PORTFOLIO
MIHAI IONUT VASILESCU

![]()

Role: Design Assistant & Lead Visualizer
Team project
Location: Craiova, Romania
I was responsible for developing the visual identity of the equestrian centre proposal, using Unreal Engine 5 to create real-time visualizations that guided design decisions and client presentations. My work explored lighting, materials, and environmental context to communicate the project’s spatial and atmospheric qualities.
Alongside assisting in the architectural design, I helped refine the layout and circulation between the stables, arenas, and visitor areas. The final proposal balanced functionality and aesthetic clarity, reflecting a contemporary yet context-sensitive approach to rural architecture.









































Role: Lead Visualiser & Architectural Assistant
Location: Bucharest, Romania
Team: Independent group of architects (Bucharestbased)
Result: 9th Place (international competition)
I was responsible for the visual development and representation of our proposal for the Tei Lake International Competition in Bucharest. Working closely with a small team of architects, I produced the architectural visualizations and presentation material that communicated the project’s vision of transforming the lakefront into an accessible and ecologically balanced public landscape.
Our entry proposed a network of walkable bridges, cultural pavilions, and restored green corridors that reconnect the city to the lake. Despite being an independent submission competing against established international practices, our team achieved 9th place, recognised for the project’s conceptual clarity and visual coherence.













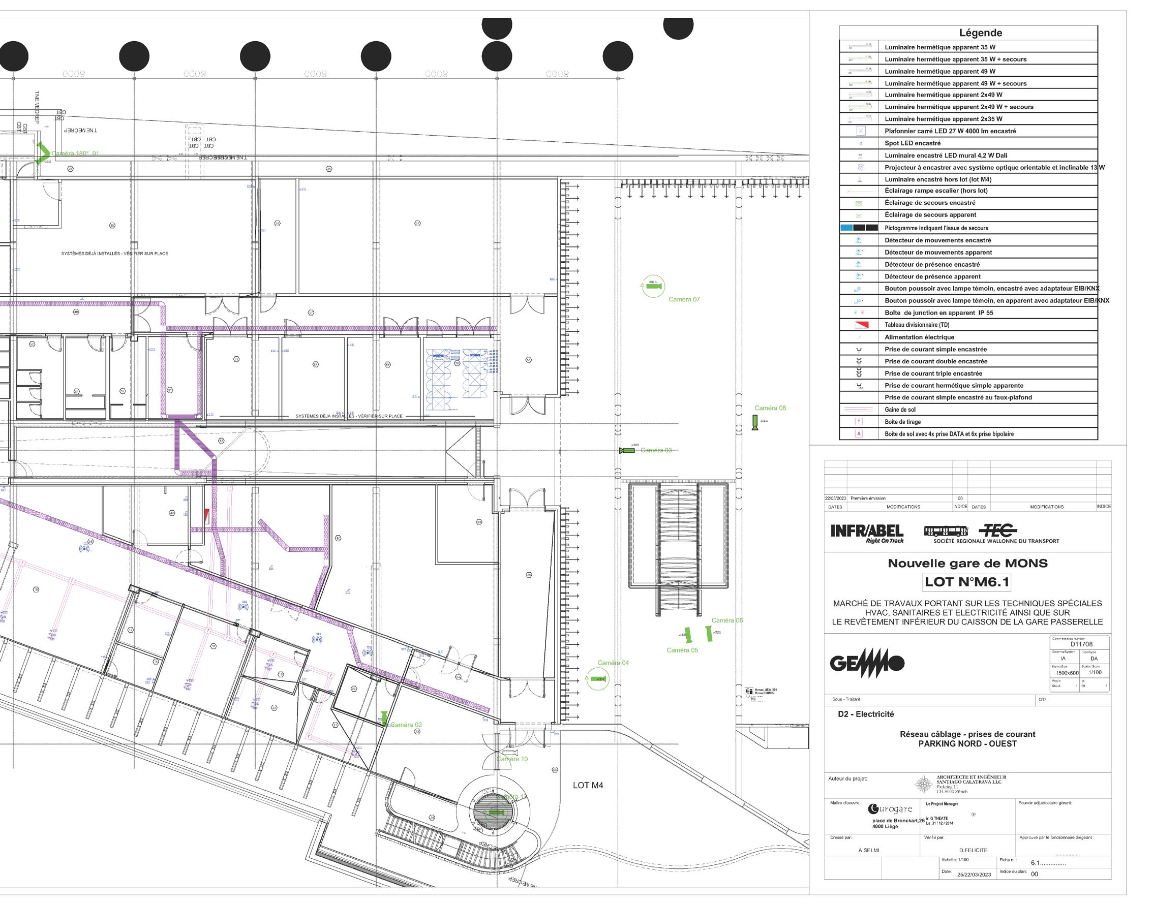
Role: CAD Technician - Delivery Drawings Support Firm: RoSoftwareHouse S.R.L contracted by Gemmo S.p.A. (collaboration with Santiago Calatrava Architects) Location: Mons, Belgium
I assisted Gemmo S.p.A. in redrawing and updating the electrical delivery drawings for Santiago Calatrava’s Gare du Mons, after the documentation had remained outdated for over two years. My work involved revising complete floor plans and producing detailed drawings for lighting, CCTV, data systems, cable trays, and power outlets, including the routing and coding of individual sockets. Working closely with a team of electricians, I
coordinated on-site changes and integrated technical feedback to ensure precision and consistency across all systems.
This experience strengthened my understanding of large-scale infrastructure coordination and technical documentation standards.






































































































































































































































































































































































































Role: Lead Visualiser & Architectural Assistant
Location: Brasov, Romania
Team: Independent group of architects (Bucharestbased)
I collaborated with the same team from the Tei Lake competition on this public design competition organised by the Bra�ov City Council, which aimed to regenerate the historic Rulmentul industrial site. Once home to large metalworking hangars from the 1920s, the area was reimagined as a new cultural and residential quarter for the city.
I was responsible for reconstructing the existing site in 3D, developing early design concepts, and leading the visualisation process. My work focused on
conveying the atmosphere and spatial relationships between the repurposed hangars, new pedestrian bridges, and the surrounding landscape. The proposal included art galleries, gardens, performance venues, markets, and artist studios, with a limited number of residential units for the creative community.
Through extensive historical and contextual research, the project sought to preserve the industrial heritage of Bra�ov while introducing new public functions that reconnect the site with the city’s contemporary identity.

Role: Team Representative
Location: London, United Kingdom Team: Independent group of architects (Bucharest-based)
This competition was developed in collaboration with Make Architects, where our team represented the University of Greenwich. The site, located along the Thames, challenged us to respond to London’s dense urban fabric by introducing new forms of public space directly on the river.
Our proposal imagined a chain of floating islands, each dedicated to a different tea culture from around the world. The idea of tea became a way to link generations, traditions, and communities, forming spaces for social exchange and contemplation. Every island hosted a specific activity, from tea ceremonies and markets to gardens and performance areas, connected as modules.
Beyond the cultural narrative, the project also integrated ecological systems, using aquatic plants to naturally filter the river water and create small micro-habitats for insects and wildlife. The result was a calm, self-sustaining landscape that celebrated both cultural continuity and environmental renewal.

























































































MArch Thesis 2025
Romania’s architectural heritage has been deeply shaped by political and economic change, resulting in the gradual loss of vernacular and Neo-Romanian buildings, traditional craftsmanship, and collective memory.
This research explores photogrammetry as a method for documenting and preserving endangered architecture through high-precision 3D models of vernacular houses, fortified farmsteads, Romani carriages, and Romanian Renaissance dwellings.
Combining drone-based and DSLR scanning techniques, the study produces accurate records that can support conservation and potential reconstruction. Beyond its technical outcomes, the project reflects on how architectural loss often stems from shifting social and political values, where globalized aesthetics replace locally rooted forms. It calls for a renewed commitment to digital preservation as a means of safeguarding Romania’s architectural identity for future generations.








Proposed Concept
Proposed Extension
The proposed conceptual extension is a practical and efficient solution to modernize the house while preserving its historic character. Designed for easy implementation , it adds an electric kitchen and a bathroom , addressing key shortcomings that make such homes inconvenient for contemporary living.
By extruding from one of the facades, the extension maintains a clear distinction from the original



Proposed Extension

The proposed conceptual extension is a practical and efficient solution to modernize the house
structure , ensuring minimal disruption. Using lightweight and adaptable materials , the design is straightforward to construct.
This approach demonstrates how targeted interventions can enhance functionality while respecting tradition , offering a compelling alternative to abandonment or full-scale reconstruction. Further research needs to be conducted in order to find fully suitable solutions in regards with local building regulations.
structure , ensuring disruption. Using adaptable materials straightforward
This approach how targeted enhance functionality respecting tradition a compelling alternative abandonment reconstruction. needs to be conducted to find fully suitable in regards with


















I documented Colt Fortress using a combination of DSLR photography and drone imaging to produce an 8K photogrammetry model. This process captured the site’s surfaces, textures, and irregularities in high detail, creating a precise digital record of the current state of the ruin.
The scans serve multiple purposes: they provide an accurate reference for conservation, support future restoration efforts, and form the foundation for designing new interventions, such as temporary festival structures, without disturbing the historic fabric. By digitally reconstructing the fortress, I was able to explore spatial relationships, circulation, and visual impact in a virtual environment, ensuring that any proposals remain sensitive to the site’s heritage. This method also allows for a deeper understanding of the fortress’s original form, scale, and context, informed by archival drawings and on-site observation.













This project envisions a winter-themed folkloric festival set on a mountaintop overlooking Colt Fortress. Archival drawings from Ion Mincu’s collection show the fortress in far better condition than today, emphasizing its historical and cultural importance. To document its current state, I created an 8K photogrammetry model using DSLR and drone scans, capturing every surface and irregularity. This digital reconstruction forms the foundation for design interventions that are fully respectful of the historic structure.
Visitors arrive via cable car from the nearby village of Suseni, which offers accommodations



such as B&B and small hotels. The festival is a temporary, seasonal event that combines performances, markets, and quiet retreat spaces without altering the fortress itself. Accommodation is provided through relocated vernacular houses, inspired by the ASTRA Village Museum in Sibiu, enhanced with modular extensions to provide contemporary comfort while maintaining traditional character.



The central stage is constructed using scaffolding beneath a pitched glulam roof, while recycled plastic boxes with RGB lighting create atmospheric illumination. A timber-clad coffee shop serves as a permanent space for rest and reflection. The project emphasizes ephemerality, sustainability, and cultural engagement, activating the landscape in a way that honors both heritage and community while leaving no lasting impact.

































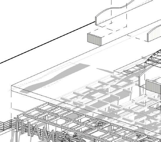
This project envisions a cinematic 3D cityscape set in the year 2100, exploring a world shaped by the aftermath of climate change. Humanity managed to fix the planet; but only after catastrophic events left deep scars. In this era, humans exercise near-total disregard for nature and the consequences of their actions, creating a society of excess and hierarchy, unaware that a new existential challenge looms, threatening life itself.
The visualization draws inspiration from Blade Runner’s cyberpunk aesthetic, combining dystopian urban density with futuristic architecture. The “New Line” was modeled and placed within
real-world contexts like Thames Barrier Park, while conceptual influences from The Line in Saudi Arabia informed the depiction of social stratification.

Blender and free assets accelerated modeling and retexturing, while Unreal Engine optimized assets, fine-tuned materials, and simulated dynamic LED displays using RGB layering and panner functions. Georeferenced sequences, powered by Cesium and Google Maps APIs, highlighted challenges in streaming and performance.



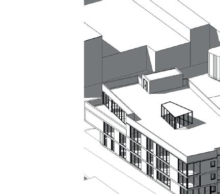
The Thames Barrier Market project reimagines an underutilized section of the park as a vibrant, multifunctional public space. It is a continuation of the New Dark Age project animation, using the same site but changing the narative, turning it into a design project.
The design features modular spaces that can host food vendors, retail, art galleries, cinemas, and entertainment areas, allowing the market to adapt to
evolving community and cultural needs. Sustainable strategies, such as a green roof, passive ventilation, and solar panels, improve energy efficiency while visually and physically connecting both sides of the park. The project is accompanied by an animation that illustrates the market’s flexible layout, circulation, and interaction with the surrounding environment, helping to communicate the spatial experience and the dynamic use of modular elements.
Overall, the Thames Barrier Market combines social, cultural, and environmental value, enhancing the park’s appeal and creating a destination that attracts both locals and tourists.






















The market repurposes the previously unused garden, bridging the two sides in the harmonious connection they meant to have from the start.

By utilizing the existing retaining walls, the roof easily atop them, offering a new purpose while preserving the integrity.
The roof garden acts as a natural extension of the market, featuring skylights that fill the space with sunlight and additional entry and exit points, doubling as fire escapes mimicing the original award winning design of the garden.
This practical design not only optimizes space but also enhances functionality and aesthetics, creating a welcoming environment for visitors to explore and enjoy.





















Observations:







Suspended
Covering








Location: London, United Kingdom
This project explored the theme of Belonging through a civic engagement app that empowers residents to shape their neighborhoods. While the primary users are designers, regular citizens can submit requests for accessible needs, such as adding street lamps, closing streets for events, or installing playgrounds and street furniture. The community votes on proposals, with each vote acting as a small donation to help councils crowdfund improvements directly from citizens.
An integrated AR function allows users to visualize proposals in situ, helping them understand how changes would impact their surroundings. We also designed examples of street furniture, playgrounds, and other installations to demonstrate the app’s potential. A QR code included in the project links to a demo accessible on iPhone, offering an interactive glimpse into the concept.
The project placed second in the competition but was still showcased at the latest edition, highlighting its innovative approach to participatory urban design.











9:00AM:














































































































Appointed to design the new masterplan of the estate; designing a series of food-production related buildings, also suitable for visitors to showcase to their brand.
My role was to develop, revise and design multiple structures at multiple stages from 1 to 6. During this project, I have assisted or designed the following:-Butchery (Stage 5 - 6) - Rendering CGIs and conforming the project with building control. My role was to develop multiple options for the butchery visitor’s area, considering all the amendments required.
- Food Factory (Stage 5) - This project heavily relied on multiple consultants due to its complex mechanical and electrical requirements. My role was checking the M&E clashes between consultants’ received information, producing quality details and issuing drawings for construction. Designing was also a part of my role, as reissuing a series of options for the first floor’s rearrangement was entirely my responsibility.
- Juicing Facility (Stage 2) - Proposed multiple design options to the client for repurposing a storage hanger that was rarely in use. This project has its design planned and developed by myself with feedback from colleagues and my mentor.
- Salad Preparation (Stage 5) - site visits, design amendments, revisions in detailing and scheduling.
Option Studies:
















Design Proposal:

























































�e brief implied reusing one of the storage hangers on site and repurposing it into a hyperbaric chamber for smoothies and juice production. �is project was assigned to me from stage two a�ter receiving surveys and equipment specialists’ requirements.
�is is proposal showcase is one of the 5 options the client received, but it became one of the highly anticipated designs to be used.
�e client is well known for appreciating curtain-glazed walls, but one of the design challenges was the low temperatures in which the building had to operate. For this requirement, Cor-ten steel sheets are being used as shades for the the visitor’s gantry.



































































Brief:


































While in stage 5 construction, building control has assessed that the butchery cannot operate without having a connection between two meat processing stations isolated from the visitor’s area.
�ese changes were suggested months before the completion of the construction, so careful detailing and approaches have been made for the contractors. �e client ultimately chose the showcased option, but it has additional challenges as the glass corridor uses laminated heated panels to avoid condensation.
Further meetings with the glazing specialist were held to be able to cra�t details for construction issuing having a superficial loss of material, low costs and an easy to-build approach.











Completed visitors’ area

Outside view to the visitors’ area

Design Proposal:
Its brief implied reusing one of the storage hangers on site and repurposing it into a hyperbaric chamber for smoothies and juice production.
�is project was assigned to me from stage two a�ter receiving surveys and equipment specialists’ requirements.
�is is only one of the 5 options the client received, but it became one of the highly anticipated designs to be used.
�e client is well known for appreciating curtain-glazed walls, but one of the design challenges was the low temperatures in which the building had to operate.
For this requirement, Corten steel sheets are used as shades for the massive glazing attributed to the visitor’s gantry.














































































My Role:


ADP has been commissioned by the University of Hertfordshire as delivery architects for Stage 4 Technical Development and Stage 5 Construction.
�e concept design has been delivered to BDP Architects and NHA Architects’ interior design team.
ADP has to take a sensible approach to the proposed design, delivering highquality details and strategies.





Rendering a range of details where the feasibility would be questioned, contractors demand specific information or building regulations to be achieved and proven. Such details include column and beam casings (firerated and acoustic insulated), fire stops and movement joints, interior walls buildup and fire lining, finishes and contractor coordination.
Brief:
ADP has been commissioned to redesign the University of Bristol’s veterinary Campus Masterplan.
�e highlighted Magenta building has been recently given to a private veterinary practice, putting into question the previous masterplan �low and use.
Role:
�e task of redesigning the area around the vet practice has been given to me, rendering several options for the clients.
Design Proposal:
�e First option consists of a new building and an extension of the student union’s building. �is option improves the overall �low between the two buildings improving the social space.
�e second option consists of two new buildings with a sensible and cursive approach to the site’s �low.
Outcome:
�is exercise gave me essential experience in master planning by exploring options and site research on current use and biodiversity and how to improve them.




PROS:
A. -Instinctive Circulation -Large Teaching Area -Social Space



B. -Temporarily shutting down an existing building for construction work Option 1:
B. -Private outside social area -Re-purposing and renovating existing building -Undisrupted dog walking area -Can be completed in multiple phases



CONS: A. -Confusing plan -Limited social area



PROS: C. -Improving circulation Fluid Plan -Great purposeful social atrium area -Multi Purpose

-Ease of access -Standalone new building





CONS: D. - Reduces open social area






Valley garden 3D printing
The project is focused on a large scale in Valley Garden, Southampton. The proposal is a fictional multi-step advancement of 3D printing technology in the city that uses recycled waste to generate structure while rewarding the community.




3D printers are versatile pieces of technology, shaping almost any type of material with no need for personnel. The idea focuses on the community giving away their plastic waste in return for 3D printed items based on the quantity of material they brought in. The rubbish will be processed into recycled filament, giving it a new purpose in the future. The concept revolves around expansion, from small items printed at popups to new types of recycled materials used for building construction. This fictional proposal focuses on ways to reduce waste from a realistic point of view to utopian/dystopian urban strategies.
































The project takes three steps:
-Step 1
Introducing people to the topic: Organising workshops into small pop-up pavilions to generate attraction. (limited production)
-Step 2
Expanding the proposal: Adding collection points throughout the city and expanding by opening more pavilions and production centres
-Step 3
Making it part of the city
This stage of the project is fictional and focuses mainly on storytelling. The next stage of the project is the “Brighton 3D Printing community centre” project
































3D Printing community centre





















Designing a large scale hybrid building in the hearth of Brighton, Valley Gardens. The structure should be benneficial to the community and taking in consideration UK building regulation and sustainable design strategies.
The featured axonometric is part of the facade. A 3D printed Gyroid out of PLA will allow ivy and other hanging species of plants to grow. The Gyroid was designed using Grasshopper for an accurate representation of organic shapes. The facade must be prefabricated and then attached to the wall to achieve printable angles. All possible failed components can be molten and extruded back into filament with no waste.





















































(Exploded axonometric view)




3D printing for comunities:

3D printing has been seen recently as a cheap and easy solution for many industries, but never for personal use. By building cheap pop-ups around Brighton featuring 3D printers and recycling spots, the residents would be able to trade in their recyclables in exchange for 3D printed goods they desire. The plastic collected gets turned back into filament, ready to be used for the 3d printers, giving back a new purpose to it.
To fulfil such a demand, a large production centre would be needed. Although the task of recycling is the main aim, the centre has to evolve to be part of the community. To achieve the task, a hybrid building design has to be considered.
3D printing for the city:
Besides small-scale printing, the bigger target is the architectural side of 3D printing by tackling housing and environmental issues.
Printing homes comes with challenges, but overall, the lack of material waste and almost no workforce needed offers a unique take when designing.
Another benefit of 3d printing is the portfolio of materials that can be used, such as recyclable or recycled plastic, concrete, insulation, metal and anything that can be “extruded.”
The following design was my final year major project and as means of presentation, I directed an open exhibition with my faculty studio to showcase our work. The project was presented breefly within an A2 sheet, physical model of the site and model and in VR representation using enscape.


Production / industrial area activities:
-Production centre for 3D printi ng construction using concrete and recycled plastic
-Recycling centre (to upcycle plasti c into 3D printing filament
-Laboratories (For researching diff erent purposes of the materials recycled and different uses o of the 3D printers)
-Boutique for public 3D printing using recyclables

































The model is a hybrid of laser cutting and 3d printing techniques on a 1:500 scale, fitting the entire site within an A3 while maintaining a high level of detail.
The 3d printed houses are a diagrammatic representation of volumetric possibilities that could take place on the rooftop, as the concept of experimental and cheap 3D printed homes would imply relocation and redesigning at all times.


Street Market:
-Behind the building, situated within the retaining wall under the connecting bridges.
-Provides easy access to collection of rubbish, fire escape routes and a smart way to blend all the uses of the building.
-Promotes local businesses and recycling Residenti al area:
-Block of 25 fl ats
-Single Studios and hotel oriented double rooms for delegates -Access to the experimental rooft op area
Experimental Rooftop:
-Fully 3D printed experimental houses made out of concrete and plastic cladding.
-Accesible routes to exit the site (bridges over the retaining wall and fire escape staircases)

Common area / Restaurant: -Restaurant -Reception -Terace




PLA






















3D Printed Micro Homes
(Dissertation Topic)







Micro-homes have been a trend over the past decade due to affordability, longer commutes, and smaller families. This new trend got traction worldwide through social media and various blogs, raising interest in a new way of living in a short amount of time.
The featured design concept is a one-bedroom micro-home using traditional and conceptual construction.
The substance of the design and reasoning is experimenting with the structure of the design and generating a cost-effective












and energy-efficient construction method.
Additional elements (roofing system) have a traditional method of construction using timber to accommodate building regulations and material specifications and comprehensively present the project due to current 3D printing limitations.
The dissertation covers the method, materials and resource use of 3D printing technology as a construction method.








Design a small volume kindergarten given Foxes Forest in Portsmouth as an open site.
The attention to detail came first when rendering the final images. After that, all additional steps to ensure the quality of the project are taken from planning integrity to the environment, resulting in a solid and clear design idea.
“One of the most important and joyful parts of your life should be your childhood, so why not make it the best for today’s children?”
The design is heavily driven by the site’s history, a bastion from the second World War from “The Home of the Navy” situated next to the site. The fluent stacked boat shape reminds heritage and tradition and is a creativity booster for the youth.

















Two-storey buildings perforated by the metal frame* all under a green roof. The structure is situated a few meters under the ground level, so the oval staircase could achieve an atrium effect. The functions are separated by the levels. Food area on the ground floor, activities on the second and outdoor activities on the third.

*Metal frame tube made with Grasshopper

Restoration Proposal -2019-
I chose the site in Craiova, Romania, on “Horia Street” is an old house that I decided to restore. The function of the building was established after surveying the area (between a park and the local school) The surveying was done by retrieving the original plans from the house owner.


My design principle stands on using the material; timber for the frames and the original masonry exposed to the public. The house’s interior has been wholly repurposed, the ground floor removed (keeping the entrance area), and the basement extended so an extra floor could be added, almost doubling the usable space.








-PLANS - SECTIONS-ELEVATIONS-



Design an accessible pavilion on Albert Road, Portsmouth.
The proposal showcases a public space for the community with easy access for bicycles.
The concept is wrapped around a tranquil space surrounded by greenery.
The design is driven by 3 modules connected through a colourful corridor used as a small exhibition for locals.






The corridors connect the 3 modules. The middle module is an open garden, and the other two are for the sitting area. The site is on Alber Road, Portsmouth, surrounded by local shops, so the module’s primary purpose is leisure, either a peaceful place to drink your coffee or simply enjoy the surroundings.

shingles 10 mm Rigid
Consulted with the client to determine interior preferences to meet the overall design goals. Also managed the client’s budget and kept track of the project’s costs.
studs
Timber collumn Textile blind roll attached between collumns


Designed furniture and manufactured it with a CNC machine for individual clients and offered interior design consultation for the firm that hired my services.
My tasks were to design the furniture for the manufacturing team and generate detailed renders for the clients.
Sophisticated tech was being used in the work environment, such as CNC machines, laser cutters and 3D printers.


Technical drawings and detailing bridge inspiration and reality because strong ideas come with proof and explanation. Having detailing skills, studying materiality became a hobby as I always wondered how to better design and blend materiality and technology into my structures in a symbiotic


