Fase 4. Carla Alexia Coscolín, Miguel Botella

Page 1

FASE 4

Miguel Botella Perez

Carla Alexia Coscolin Bielsa

PROYECTOS 7 2024

1

EC 4: Housing and nursery school (Ginebra) /Bonhôte Zapata Architectes

La cuarta fase del curso, se centra en primer lugar en el estudio del complejo residencial de Ginebra del estudio Bonhôte Zapata Architectes.

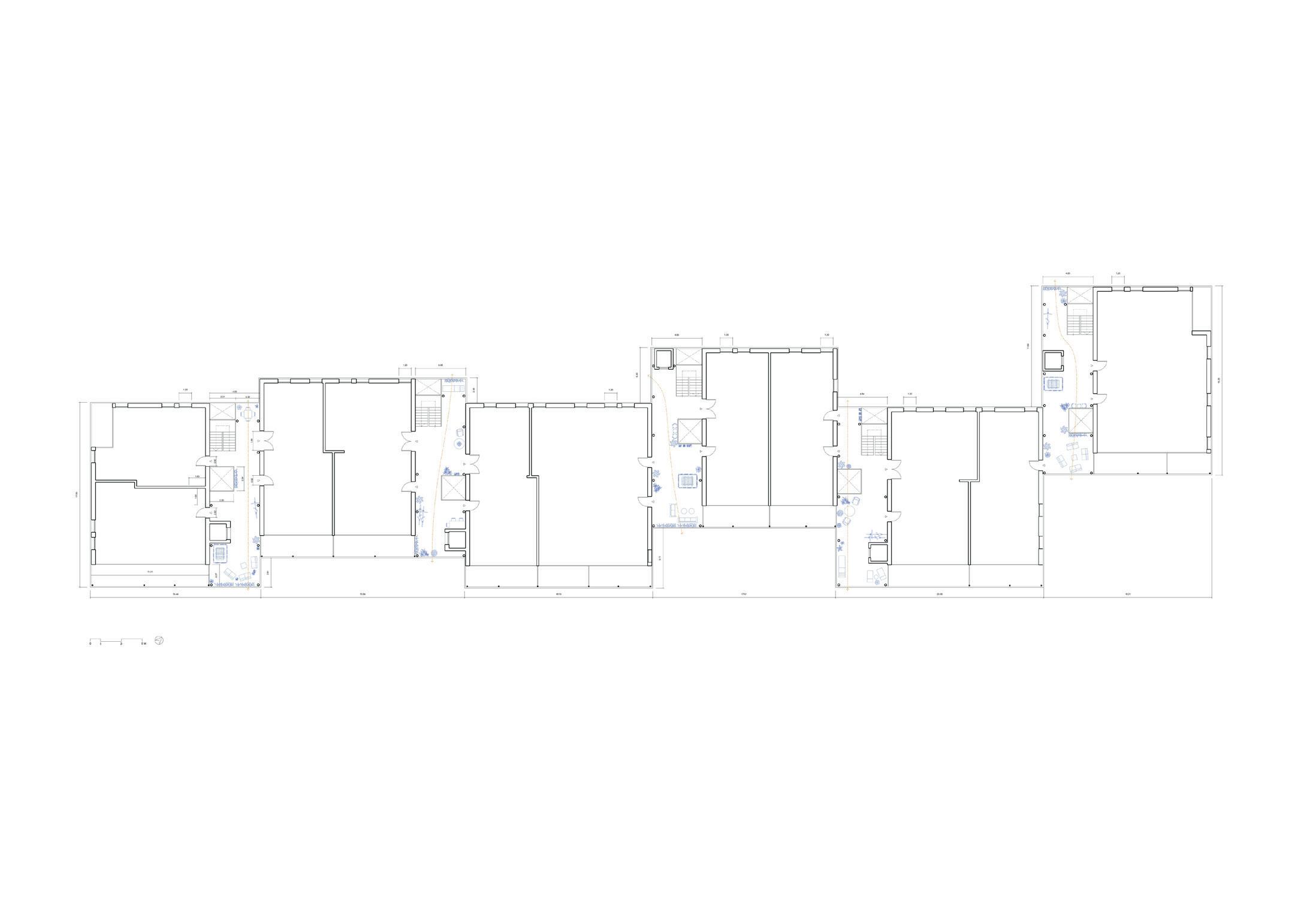
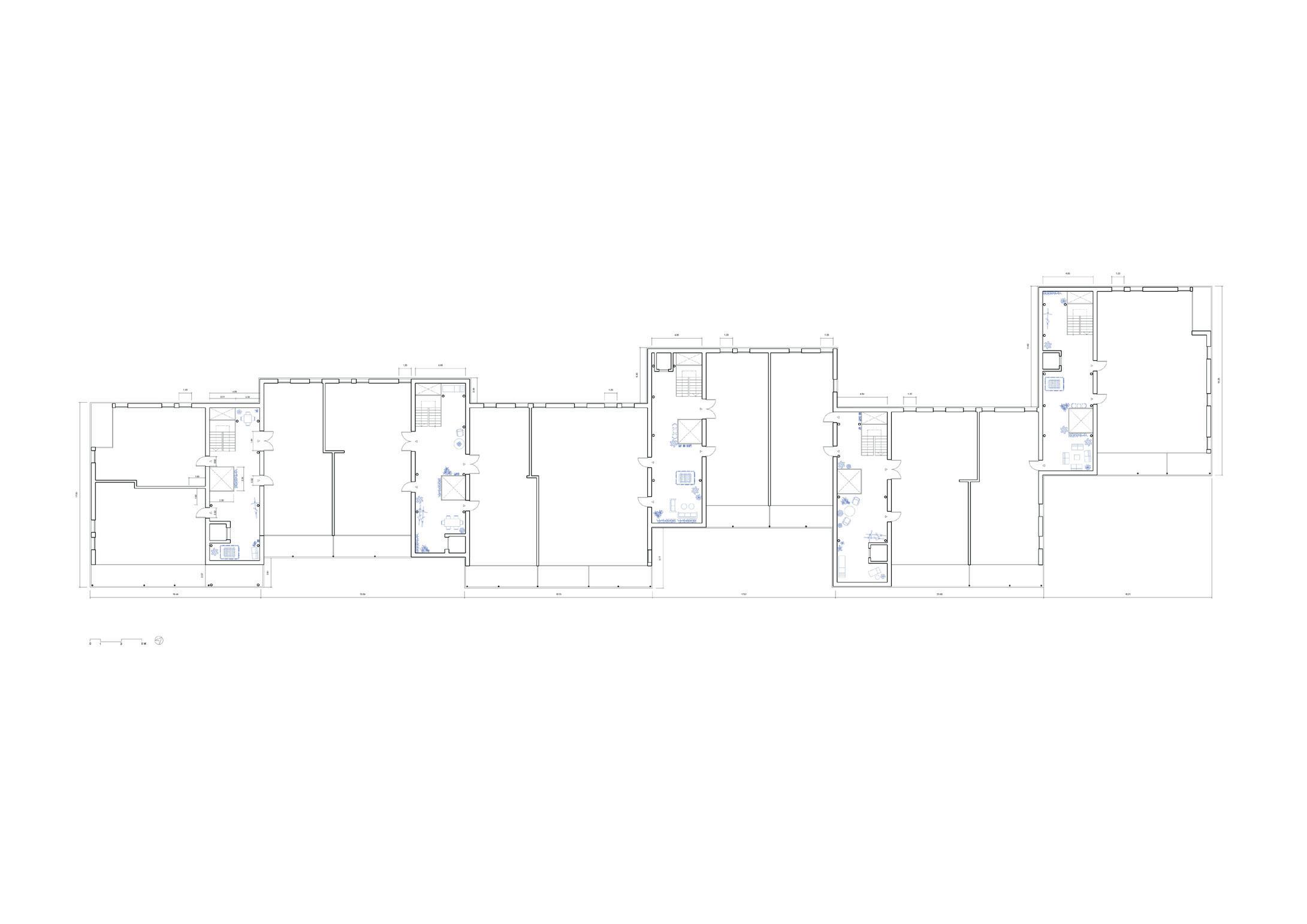
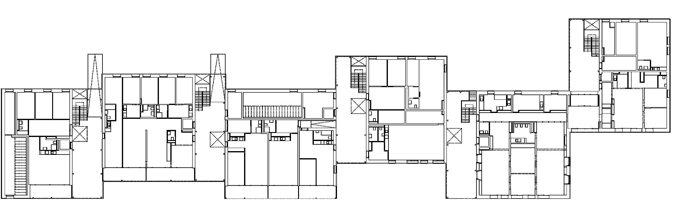
El conjunto se ubica en una zona residencial en la periferia de Ginebra. Las viviendas se distribuyen en 6 bloques yuxtapuestos, que se deslizan entre sí creando un escalonamiento.

Se crean pequeñas plazas conectadas por un camino pavimentado, que conecta con áreas ajardinadas y con mobiliario urbano que fomenta su uso, favoreciendo la interacción social entre vecinos

El proyecto ofrece una gran variedad de tipologías de viviendas que contienen desde uno a cuatro dormitorios.

FUENTES:

1-55 RIGAUD | Bonhôte Zapata | Archello. (s. f.). Archello. https://archello.com/project/55-rigaud

2-49 apartamentos y guardería en Chêne-Bougeries, Bonhôte Zapata. (2022b, mayo 2). Arquitectura. https://arquitecturayempresa. es/noticia/49-apartamentos-y-guarderia-en-chene-bougeries-bonhote-zapata-architects

3-Museo ICO. (2022b, noviembre 10). Housing and nursery school - Bonhôte Zapata Architectes | Amaneceres Domésticos [Vídeo]. YouTube. https://www.youtube.com/watch?v=f9sUQOfh0iw

4-Archiadmin, P. B. (2021b, mayo 20). Rigaud 55 by Bonhôte Zapata architects. https://www.archi-europe.com/rigaud-55-by-bonhote-zapata-architects-2/

5-Bonhôte Zapata. (s. f.-b). https://bonhotezapata.ch/en/projects/rigaud-cooperative-housing-and-nursery

ESTUDIO DE CASO 2
ESTUDIO DE CASO 3
ESTUDIO DE CASO 4
ESTUDIO DE CASO 5
FOTOGRAFÍA 6
FOTOGRAFÍA 7
AMANECERES DOMÉSTICOS 8
9

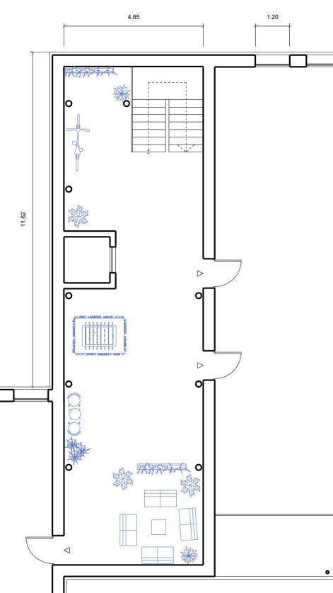
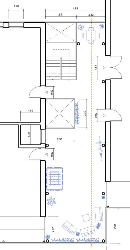
Nuestro estudio de caso se basa en cómo se puede adaptar un edificio para fomentar la cohesión social. En concreto, en el edificio de Ginebra, aparece una situación muy particular en las zonas comunes que dan acceso a las viviendas.

Estas se suelen destinar a albergar las escaleras y el ascensor y a ser meramente una zona de paso. Sin embargo, en este caso detectamos unos elementos clave muy interesantes que permiten generar situaciones que fomentan la relación y conviviencia entre vecinos formando una comunidad.

Esos cuatro elementos clave son: el ascensor (situado hacia el interior de las viendas para no ser un obstáculo visual o espacial), las escaleras (que cuentan con su propio patio de luz que permite la conexión y ventilación entre distintas plantas), la fachada permeable (permitendo la ventilación cruzada) y el patio (que genera visuales cruzadas entre plantas y genera situaciones a su alrededor que no se darían sin la existencia de este).

De esta forma, comenzaremos dibujando la planta existente y a partir de esta ,haremos ciertas modificaciones para entender por qué se ha diseñado de esa forma y no de otra. Es decir, por qué esa es la más eficaz para lograr los objetivos mencionados anteriormente.

Fuente: https://www.morethangreen.es/

ESTUDIO DE CASO 10
Cohesión social

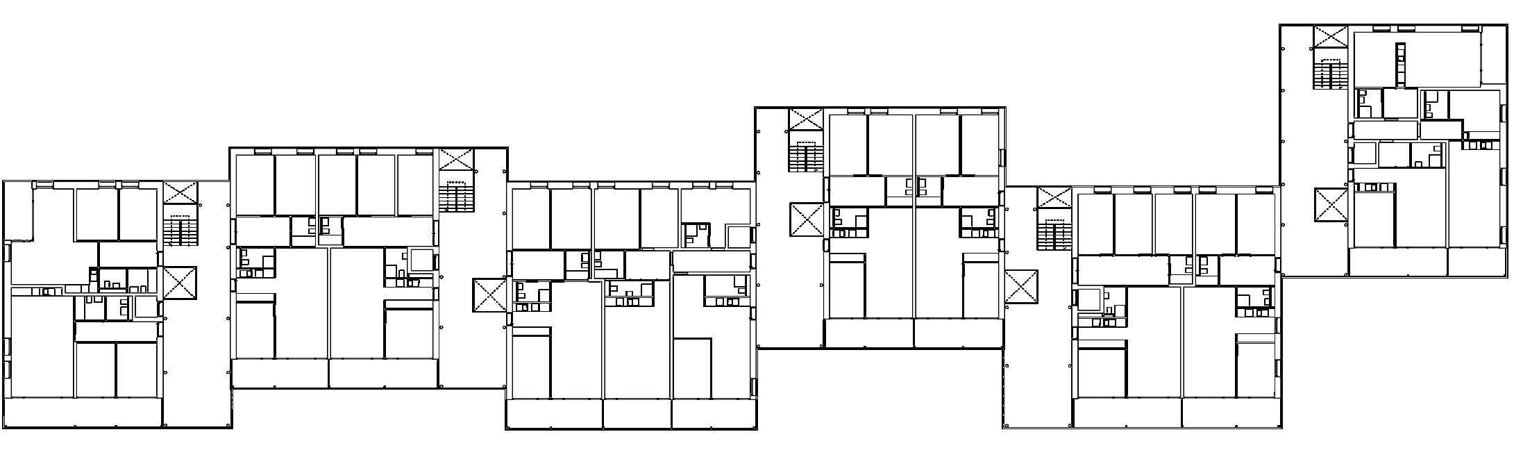
El dibujo anterior se corresponde con la primera planta existente. Como se ha mencionado anteriormente, a partir de aquí se van a producir pequeñas modificaciones sucesivamente.

En primer lugar se trasladará el ascensor al interior de la zona común de acceso a viviendas. De esta forma, detectamos cómo el ascensor se convierte en un obstáculo visual que interrumpe la ventilación cruzada, el paso de luz y que además de ocupar una superficie que se podría destinar a otros usos, no invita a generar nuevos a sus costados. Como consecuencia, algunas situaciones desaparecen.

En segundo lugar, se generar la típica caja de escaleras y ascensor cerrada, eliminando la ventilación cruzada en el plano horizontal al eliminar la permeabilidad de fachada. Se transforma radicalmente el espacio.

En tercer lugar, se elimina el pequeño patio situado junto a la escalera, entre esta y la fachada. Al eliminar este, en conjunto con el cerramiento de fachada se reduce nuevamente la ventilación.

Por último, se elimina el patio que conecta distyintas plantas. En consecuencia, no solo se elimina por completo todo tipo de ventilacición o entrada de luz natural, sino que desaparecen las distintas actividades que se producían a su alrededor.

11 DIBUJOS PROPIOS
12 DIBUJOS PROPIOS
13 DIBUJOS PROPIOS
14 DIBUJOS PROPIOS
15 DIBUJOS PROPIOS

DS 3: Aries y Géminis

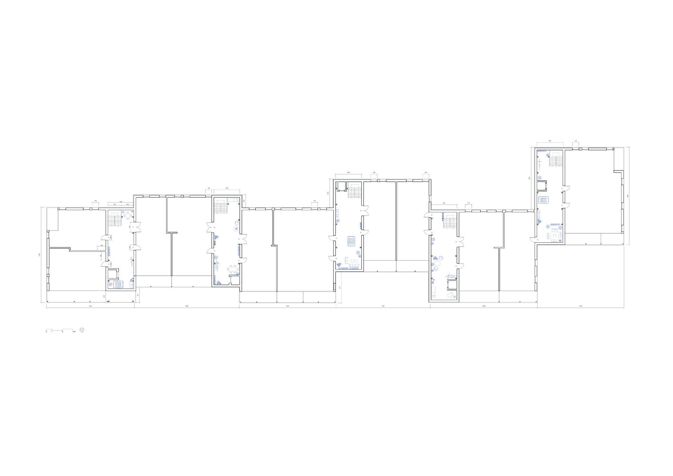
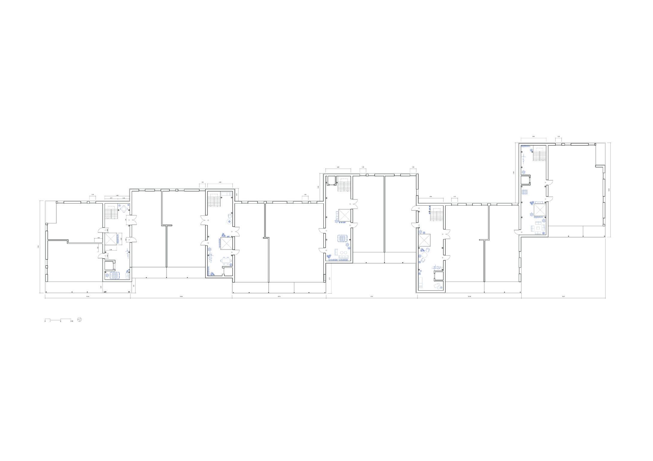
Tras haber estudiado el edificio de referencia, nos quedamos con los conceptos clave para llevarlos a nuestra propuesta de vivienda colaborativa en Alicante.

En primer lugar, nos quedaremos con el concepto de crear un espacio común de acceso a las viviendas, que sirva como lugar de estancia e interacción vecinal. De este modo, se han eliminado las estancias entre viviendas para crear un espacio abierto entre ellas dichas viviendas. Los usos que se localizaban en estas estancias han tenido que ser movidos a otras zonas, por lo tanto ha cambiado la planta de distribución de muchas viviendas.

En la referencia, las zonas comunes de acceso daban a varias viviendas; pero en Géminis, si se utiliza el concepto sin replatearlo, quedaban dos zonas comunes con acceso a una sola vivienda. Además, si separamos las viviendas, se pierde el planteamiento de la fase dos, extraido de la referencia de MAIO, de poder ceder estancias entre viviendas, en la mayoría de casos. Aprovechando todo esto, hemos dividido una de las viviendas de forma que ahora la zona común tenga accesos a varias viviendas. De este modo, se utiliza una previa desventaja como una oportunidad para crear diversidad tipológica.

17 DISEÑO DE VIVIENDA
18 PLANTA TIPO
19 PLANTA TIPO
20 DETALLES ZONAS COMUNES 12.50 2.20 0.70 3.82 1.50 3.03 12.77 3.03 12.77
3.82
12.50

A través del estudio de caso, en el que hemos particularizado los elementos esenciales de la zona común de la referencia, se ha tratado de llevarlo a cabo en Géminis. Por lo tanto, se ha situado el patio y las entradas de la viviendas de forma que quede un espacio de estancia con cierta intimidad. Añadido a esto, el ascensor queda embebido en una de las viviendas y se fomenta la ventilación cruzada e iluminación natural. La escalera en Géminis estaba ya exenta de la planta de vivienda, así que se ha mantenido igual.

En lo que respecta al patio, este supone un foco en torno al cual se situa el mobiliario, como ocurre en la referencia. Podría parecer que resta superficie de la zona común, pero realmente no se podría entender este espacio sin él. El patio, en este caso actua, como un punto clave para iluminar, ventilar, conectar entre plantas, ordenar el mobiliario y separar por zonas el pasaje común.

En lo que respecta a la planta baja, trabajada en la fase tres, dos de los cuatro patios llegan a comunicar con la zona de acceso de esta. Además, se ha apostado por añadir más aparcabicis, para aopostar por la movilidad sostenibles. En las zonas comunes también queda espacio para dejar vehículos de movilidad personal como bicicletas y patinetes, sobre todo para niños que los pueden utilizar para jugar en esa zona.

21 PLANTA BAJA
22 DETALLE 12.50 2.20 0.70 3.82 1.50
23 DETALLE 3.03 12.77
24 DETALLE 3.03 12.77
25 DETALLE 12.50 3.82
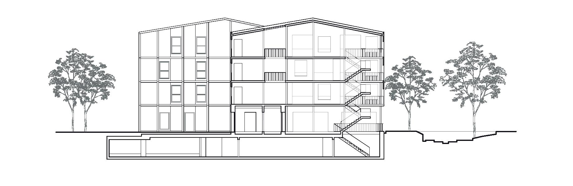
26 ALZADO

En cuanto al alzado y la sección, se puede ver como se crea una fachada verde en la cual se genera una infraestructura de lamas y barandillas para sustentar la vida vegetal.

En este sentido, podría entenderse esta incorporación como una continuación de la fase uno, que continuaremos replanteando a lo largo del curso. Añadido a lo anterior, se ha creado un pasillo que, con una dimensión mínima, se pueda acceder para cuidar las plantas, entendiendo la fachada verde como un organismo común y un bien a mantener por los vecinos. Sin embargo, cada cual sería el encargado de las macetas más cercanas a su vivienda, ya que según se descubrió en referencias previas, cuando algo es de todos, nadie siente la necesidad de cuidarlo. Además, se establecen una serie de carpinterías plegables que permiten abrir y cerrar todo el espacio de la terraza en caso de que sea necesario.

Esta idea surge con la voluntad de conectar los dos núcleos de escalera, que aparecen incomunicados. No obstante, en próximas reelaboraciones se intentará replantear este pasillo que conecta todo el frente de fachada, ya que genera situaciones un tanto contradictorias con la intimidad de las terrazas de cada vivienda.

27 DETALLE DE ALZADO
28 SECCIÓN
29 SECCIÓN

Turn static files into dynamic content formats.

Create a flipbook
Issuu converts static files into: digital portfolios, online yearbooks, online catalogs, digital photo albums and more. Sign up and create your flipbook.