Fase 3. Carla Alexia Coscolín, Miguel Botella

Page 1

FASE 3

Miguel Botella Perez

Carla Alexia Coscolin Bielsa

PROYECTOS 7 2024

1

EC 3: Complejo Residencial Mistral (Marsella) / Herreros

La tercera fase del curso, se centra en primer lugar en el estudio del complejo residencial Mistral en Marsella del estudio Herreros.

Al principio de este documento aparecen imágenes de Google Earth, planos originales del estudio y diversas fuentes que aparecen citadas en estsa página, que sirven de presentación del edificio.

Los bloques de edificios constan de una planta baja que explora las posibilidades de generar espacios comunes o comerciales, gracias a la diversidad tipológica y a una mayor o menor permeabilidad.

FUENTES:

1-Arquine. (2022, 8 julio). Marsella Ecocité | EstudioHerreros | Arquine. https://arquine.com/obra/complejo-residencial-en-marsella-estudioherreros/

2-Viva, A. (2021, 16 noviembre). Complejo residencial Mistral, Marsella - estudioHerreros  Arquitectura Viva. https://arquitecturaviva.com/obras/complejo-residencial-mistral-marsella

3-estudio Herreros. (2023, 26 septiembre). estudio Herreros. Estudio Herreros. https://estudioherreros.com/

4-Toutes les annonces immobilières dans le neuf et l’ancien - Bien’ici. (s. f.). Bien’ici. https://www.bienici.com/

5-On diseño. (s. f.). http://www.ondiseno.com/

ESTUDIO DE CASO 2
ESTUDIO DE CASO 3
ESTUDIO DE CASO 4
ESTUDIO DE CASO 5

Elaboración propia (posproducción)

ESTUDIO DE CASO 6
ESTUDIO DE CASO 7
FOTOGRAFÍA 8
FOTOGRAFÍA 9
FOTOGRAFÍA 10
FOTOGRAFÍA 11
ESTUDIO DE CASO 12
ESTUDIO DE CASO 13

Cohesión social

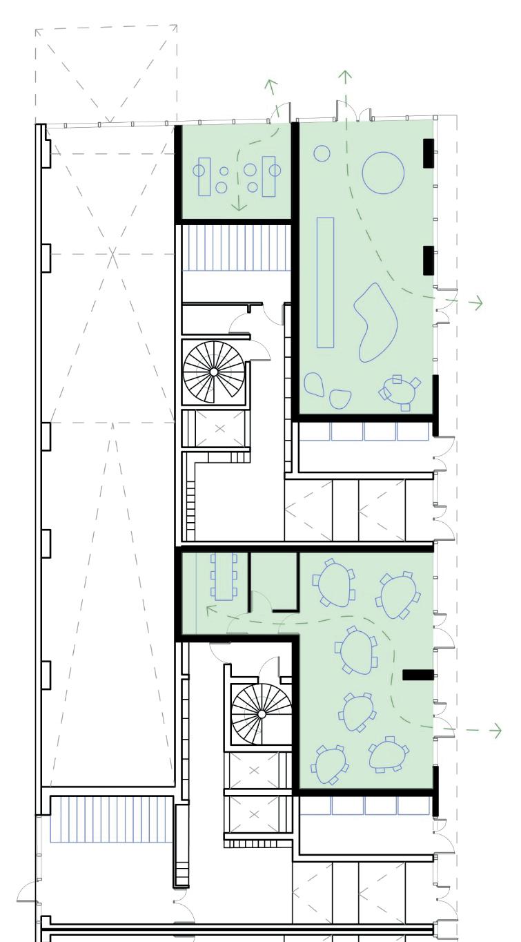
Nuestro estudio de caso se basa en cómo se puede adaptar un edificio para fomentar la cohesión social. En el edificio Mistral, la planta baja se compone de una serie de espacios que, según su permeabilidad con el interior de la manzana o con las zonas de tránsito, las entendemos como zonas comerciales o espacios comunes. Queremos estudiar la forma en la que, a través de la diversificación de usos, se fomenta la interacción entre todo tipo de personas.

Además, en lo que se refiere a las viviendas, se mezclan las de libre mercado y de protección oficial.De esta forma, se consiguen promover las áreas multifuncionales y la relación entre habitantes muy distintos.

En este sentido, trataremos de dibujar como los accesos, la permeabilidad y las visuales desde la calle al interior y viceversa pueden influir en una planta baja dinámica. En este edificio, además se proponen espacios comunes en terrazas verdes, pero, para que nuestro objeto de estudio sea de interés para la posterior aplicación en Aries y Géminis, nos centraremos en la planta baja.

ESTUDIO DE CASO 14
Fuente: https://www.morethangreen.es/
15 DIBUJOS PROPIOS
16 DIBUJOS PROPIOS
17 DIBUJOS PROPIOS
18 DIBUJOS PROPIOS

DS 3: Aries y Géminis

Tras haber estudiado el edificio de referencia, nos quedamos con los conceptos clave para llevarlos a nuestra propuesta de vivienda colaborativa en Alicante.

En primer lugar, nos quedaremos con el concepto de cómo distribuir una planta baja dinámica en la que las zonas de paso articulen entre sí espacios de interés. De este modo, para pasar del concepto al diseño, hemos tratado de adaptar los cerramientos y distribuciones del edificio de referencia a nuestro edificio. Los espacios que comunican directamente con el interior de la urbanización se dibujan en amarillo, como en el estudio de caso, y los que solo dan al exterior se marcan en verde, representando las zonas comerciales.

Partíamos de una planta diáfana en el proyecto, con una cota bastante más elevada que el nivel de la calle, a la cual se accedía a través de unas escaleras. Sin embargo, como se puede observar en la imagen, se han cerrado partes de la planta baja. En estos cerramientos las aperturas son mínimas y están situados a una altura alejada a la del ojo humano, por lo tanto, en nuestra propuesta tratamos de conectar la planta baja con el exterior.

19 DISEÑO DE VIVIENDA
20 PLANTA DE URBANIZACIÓN PREVIA
21 PLANTA DE URBANIZACIÓN PROPUESTA
22 ZOOM CAMINO PEATONAL

Para fomentar una planta baja viva, se ha decidido abrir la manzana y dejar la zona de aparcamientos como un lugar abierto al público, aunque las plazas quedarían reservadas para los residentes. La vía rodada adquiere un carácter más peatonal, de forma que fomentamos que sea atravesada por los peatones en lugar de dar la vuelta a toda la manzana. De este modo, los espacios comerciales estarán mejor conectados con el exterior. Además, verdificamos toda la zona de aparcamientos para darle un aspecto más caminable y como zona de estancia.

En todas las zonas costeras, en general, y en San Juan Playa, en particular, se da prioridad a la fachada orientada al mar y la fachada trasera alberga todos los aspectos negativos o difíciles de colocar como los aparcamientos o núcleos de escaleras. Con esta intervención, pretendemos reivindicar esta segunda fachada como un lugar que, pese a sus inconvenientes, puede ser espacio de reunión y disfrute.

Si nos centramos en el diseño de la planta baja, en cuanto a la urbanización, se ha modificado de forma que cambian los límites para ceder espacio a la zona peatonal pública. Como el cambio de cota entre el exterior y el interior del edificio es muy grande, se ha optado por establecer accesos independientes para permitir la entrada de biciletas a la urbanización sin tener que subir escaleras. Sumado a ello y tomando en cuenta nuestro estudio de caso, se han creado en la planta baja unas zonas de aparcamiento de bicicletas cercanas a las entradas mencionadas previamente.

Por otro lado, en la zona que tiene orientación sur se ha dejado un retranqueo de tres a cuatro metros libres para crear una zona de interacción vecinal exterior que esté protegida del sol durante el verano.

23 DISEÑO DE VIVIENDA
24 ARIES Y GÉMINIS
25 ARIES Y GÉMINIS

Turn static files into dynamic content formats.

Create a flipbook
Issuu converts static files into: digital portfolios, online yearbooks, online catalogs, digital photo albums and more. Sign up and create your flipbook.