Guide-GlenstoneGardens-LuxuryRetreats

Page 1


LUXURY RETREATS

WELCOME TO

EUROPEAN ELEGANCE IN THE VIRGINIA PIEDMONT

Tucked under the Eastern slope of the Bull Run Mountains lies Glenstone Gardens, a meticulously manicured Virginia estate ideally suited for hosting sophisticated celebrations synonymous with Middleburg’s grandeur and elegance. Located less than forty-five miles from our nation’s capital, Glenstone Gardens’ centuries old grounds, sweeping views and English inspired gardens stand in stark contrast to the bright lights, hustle and bustle of the nearby city.

This magnificent property is one of the most exclusive in the area and provides a true taste of the serenity and natural beauty that only the Virginia countryside can offer. From intimate indoor soirées to elaborate tented affairs, Glenstone Gardens provides a refined setting and sophisticated backdrop for inspired entertaining in the Virginia Piedmont.

A LUXURY RETREAT

EXPERIENCE

Escape to the country for a retreat with unmatched tranquility and bespoke hospitality. With unique indoor and outdoor spaces ideal for both meeting and relaxing, Glenstone Gardens is the perfect location for productive retreats with team building and socializing beyond the comfort of the meeting room.

Our luxury property can be customized in a variety of ways to best accommodate your group’s agenda. From meetings in the historic Farmhouse to yoga in The Gardens, we invite your group to admire the past around you while planning the future ahead of you.

THE DETAILS

A GLENSTONE RETREAT

SAMPLE AGENDA

BREAKFAST BUFFET

Set the tone for success with a gourmet breakfast buffet in The Gallery as guests arrive.

MORNING SESSION I

Garden Tour | Opening Meeting

SPECIALTY BREAK

Refuel with one of our specialty breaks in The Gardens.

MORNING SESSION II

Guest Speaker | Breakout Sessions

LUNCH BUFFET

Gather on The Terrace as a group for a leisurely lunch before the afternoon sessions begin.

AFTERNOON SESSION I

Team Presentations | Q & A Session

SPECIALTY BREAK

Enjoy a juice bar and snacks in The Library before the final afternoon session begins.

AFTERNOON SESSION II

Closing Presentations | Wine Tasting with a Local Vintner

RETREAT INCLUSIONS

EXCLUSIVE PROPERTY ACCESS

Exclusive use of Glenstone Gardens during the rental period for an eight hour event. Retreats may begin at 8:00am and must conclude by 6:00pm.

VALET PARKING

Valet parking attendants are provided for your guests during the times of your event.

RETREAT COMPLEMENTARIES

All the necessary details for successful retreat: FiOS High Speed Wireless and Hard-Wired Internet

Note Pads & Pens

Rolling 55” TV

Flipcharts & Markers

Sonos Surround Sound System

Conference Phone

SEASONAL CUISINE

Set the tone for success with a hot breakfast, morning and afternoon snacks along with a specialty lunch buffet prepared by Glenstone Gardens’ private chef.

BEVERAGE STATION

Regular and Decaffeinated Coffee with Condiments Coke, Diet Coke, Sprite, Ginger Ale, Bottled Water Local Teas with Wildflower Honey

PRE-EVENT PLANNING

Dedicated Event Manager trained to design your event layout, timeline, and event rental equipment.

SEASONED PROPERTY MANAGER

A dedicated and expertly trained on-site Property Manager is provided to ensure all property logistics are taken care of before, during, and after your event. Our Property Manager will help you and your events team navigate Glenstone Gardens and answer any property questions that arise throughout the event.

INVESTMENT

- 10 Guests -

MONDAY – FRIDAY

$9,500

For each additional attendee up to 36, add $345 per person.

THE PROPERTY

LUXURY COUNTRY ESTATE

Glenstone Gardens is a meticulously manicured country estate offering refined indoor and outdoor spaces, perfectly suited for timeless gatherings in the heart of Virginia. Nestled within the scenic Virginia Piedmont and enriched by a storied past, a Farmhouse gathering at Glenstone provides a setting where history, elegance and natural beauty converge—creating an unforgettable experience for even the most discerning guests.

TIMELESS VIRGINIA FARMHOUSE

At the center of the estate, surrounded by majestic boxwood hedges, stands the circa-1800s Farmhouse. This beautifully restored country house blends classic Virginian charm with contemporary sophistication. Featuring four distinctive entertaining rooms, two wood-burning fireplaces, a wraparound stone terrace and a chef’s kitchen, The Farmhouse offers a versatile and elevated backdrop for any occasion.

BESPOKE FORMAL GARDENS

Through the property, splendid formal gardens, tucked away secret gardens, ancient trees, heirloom blooms and picturesque views delight at every turn. Upon arrival, guests are invited to take a stroll through the magnificent grounds, with a coffee in hand before moving into The Farmhouse for an elegant retreat experience to be remembered.

EXPLORE THE PROPERTY

At Glenstone Gardens, thoughtfully restored farmhouses and beautifully curated formal gardens offer moments of discovery at every turn. Guests are invited to wander the grounds, taking in the sweeping vistas, tranquil pathways and timeless elegance of this magnificent estate.

RETREAT SPACES

THE GREAT ROOM

The largest entertaining space in The Farmhouse, The Great Room features a native Bull Run Mountain stone fireplace, chestnut colored pine floors, and floor to ceiling sliding glass doors looking out to the surrounding lawns and gardens. This space is ideal for large groups.

seated capacity

36 guests

THE GALLERY

With Spanish terracotta tile floors and oversized arched windows overlooking The Terrace, The Gallery provides an effortlessly chic gathering space. This light-filled room adjoins to The Great Room, and can be used for mingling and buffet setups.

reception capacity

36 guests

THE TERRACE

Comprised of native Bull Run Mountain stone and surrounded by statement trees and gardens, The Terrace can be accessed from both The Gallery and The Great Room. This space is ideal for an outdoor meals and breakout sessions.

seated capacity

24 guests

reception capacity

36 guests

THE ENGLISH GARDENS

Inspired by the great gardens of Europe, Glenstone’s English Gardens are truly one of a kind. Enter through centuries-old iron gates to discover an octagonal lily pool and fountain, weathered brick and flagstone paths and a central walkway framed by an antique rose-covered cedar pergola. Twin viewing platforms offer a birds-eye perspective of the interconnected garden rooms, while bronze sculptures, tucked-away benches and storybook vistas create an ideal setting for bespoke gatherings.

ideal for

WELCOME GATHERING

THE EASTERN GARDEN

Serene and expansive, The Eastern Garden draws inspiration from the tranquil spirit of the East. Flanked by two unique structures—The Ting, evoking balance and reflection, and The Moon Gate, a circular passage believed to bring good fortune—this space offers a moment of quiet beauty and contemplation amid the surrounding landscape.

ideal for COCKTAIL HOUR

FIRESIDE NIGHTCAP

MENUS

BREAKFAST BUFFETS

choose one

THE VIRGINIAN

COTTAGE CHEESE PANCAKES

Classic Maple Syrup

SOFT SCRAMBLED EGGS

Crème Fraîche and Chives

APPLEWOOD SMOKED BACON

description

TOASTED SOURDOUGH LOAF

Local Jam

THE SOUTHERN

SAUSAGE SKILLET GRAVY

description

BUTTERMILK BLACK PEPPER BISCUITS

description

POACHED EGGS

description

BREAKFAST POTATOES

description

THE HUNT COUNTRY

BOURBON PECAN BUTTERMILK WAFFLES

description

CINNAMON SUGAR SAUTÉED APPLES

description

SEASONAL VEGETABLE FRITTATA

description

BREAKFAST SAUSAGE

description

THE NORTHERN

LOX BOARD

Cream Cheese, Red Onion, Capers, Toasts, Bagels

ROASTED VEGETABLE QUICHE

Cheddar, Caramelized Onions, Chives

BROWN SUGAR BACON

description

BLUEBERRY PARFAIT

Greek Yogurt, Blueberry and Granola Parfait Cups

All served with fresh baked pastries, muffins, fresh fruit skewers, grapefruit and orange juices.

SPECIALTY BREAKS

choose one for morning break and one for afternoon break

MORNING GLORY

Fruit Filled Granola Bars

Mixed Berry Salad

Blueberry and Granola Greek Yogurt Parfait Cups

Fruit and Greens Smoothies

HIT THE TRAIL

Trail Mix with Nuts, Seeds, Dried Fruit and Chocolate

Local Cheese and Cracker Board

Dark and Milk Chocolate Bark

Flavored Sparkling Waters

S w EET & SALTY

Parmesan Herb Chex Mix

Hummus and Roasted Vegetable Board

Trio of Signature Cookies

Gourmet Sodas

ENERGY PACKED

Chocolate Covered Almonds, Peanuts and Pecans

Hard Boiled Eggs

Roasted Vegetable Chips

Local Kombucha

LUNCH BUFFETS

choose one

SAND w ICH BAR

SPINACH SALAD

Spiced Nuts, Seasonal Berries, Goat Cheese, Red Wine Vinaigrette

TRI COLOR POTATO SALAD

Scallion, Bacon, Whole Grain Mustard Aioli

SLICED TENDERLOIN & CHEDDAR ON BAGUETTE with Pickled Red Onion and Horseradish Cream

BLT ON SOURDOUGH with Lemon and Garlic Aioli

TARRAGON EGG SALAD ON CROISSANT description

SEASONAL OAT AND BROWN SUGAR CRUMBLE description

THE CAROLINA

CABBAGE SLAW

Smoked Almonds, Creamy Dill Vinaigrette

PESTO PASTA SALAD

COWBOY CAVIAR

Beans, Black Eyed Peas, Feta, Scallion, Vinaigrette

PULLED PORK BBQ Brioche Buns

BROWN BUTTER BLONDIES description

LATIN INSPIRED FAVORITES

CAESAR SALAD

Romaine, Rubbled Kale, Black Beans, Creamy Dressing and Cotija Cheese

BAKED CUMIN SCENTED RICE

Tomatoes, Scallions, Garlic, Lime Butter

ENCHILADAS

Savory Red Sauce, Peppers, Charred Onion, Queso Fresco, Lime Crema

BIRRIA TACOS

Seasoned and Slow Cooked Beef, Soft Tortilla, Fixings

CHURRO CHEESECAKE BARS description

LAYOUTS

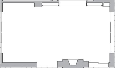
THE FARMHOUSE

FIRST FLOOR

STUDY 13’ x 12’ 162sq ft

CATERING

23’ x 21’

483sq ft

GREENHOUSE 15’ x 9’ 135sq ft

VALET CIRCLE

KITCHEN

21’ x 11’ 231sq ft

DINING ROOM

24’ x 15’ 353sq ft

ENTRY

GALLERY

12’ x 7’ 84sq ft EASTERN GARDENS

12’ x 25’ 300sq ft

LIBRARY

16’ x 13’ 208sq ft

THE TEA HOUSE

GREAT ROOM

31’ x 16’ 496sq ft

SOUTH TERRACE

38’ x 13’ 494sq ft

SOUTH LAWN

EAST

TERRACE 15’ x 29’ 435sq ft

TERRACE

LAYOUT OPTIONS

a

layout b

layout c

Seated Capacity: 36

LAYOUT OPTIONS

layout a

Seated Capacity: 24

layout c

Seated Capacity: 24

layout b

Seated Capacity: 24

layout d

Reception Capacity: 36

The tranquil beauty of Glenstone Gardens will delight and inspire growth; personally, professionally, and as a collective group. Allow your team the time and attention to come together and enjoy life off the beaten path and return refreshed and ready to succeed at any task at hand.

Turn static files into dynamic content formats.

Create a flipbook
Issuu converts static files into: digital portfolios, online yearbooks, online catalogs, digital photo albums and more. Sign up and create your flipbook.