PORTFOLIO - MELINA FRANCO - MD2 2022

Page 1

MD1 INT 20 22 MELINAFRANCO PORTFORLIO MODELIZACIONDIGITALII 2022 Lic.enDiseñodeInteriores|Arquitectura Facultaddearquitectura Profesortitularacargo: GabrielHolzel PORT FO LIO MelinaFranco|Portfolio2022

MODELADODEESCRITORIO

Seexploraroncatálogosdigitalesy/ositioswebdeempresaslocalesproveedorasque ofrezcansistemasdeequipamientooconstrucciónamedida.Sepropondráunconjunto quecumplaconlosrequisitosquedictolacatedra,basándoseenlabúsquedarealizaday losaportesdesupropiopensamientocreativo.

Setendránencuentalosaspectosconstructivosdelosobjetos,modelandopartes componentescomopuertas,estantes,patas,etc.conprecisiónmorfológica,agregando detallescomotiradores,bisagrasuotrosherrajesdemecanización,cuandosean necesariosparacomprendersuslógicasfuncionales,ocuandosuausenciaperjudiquela esenciaestéticaylaapariencia.Tambiénsetendránencuentalosmaterialesde construcción,asignandolassuperficiesconelniveldeprecisiónnecesarioparaacompañar elgradodedetalledelmodelado3D.

ITINERARION°1
2 3 1 4 5 CORREDERAS TELESCOPICAS MADERA CONTRACHAPADA FLEXIBLE PLACAS DE ACERO INOXIDABLE 6 MELAMINA NEGRA CON PAPEL MELAMINICO NEGRO VIDRIO FLOAT GRIS PANEL DE CHAPA PERFORADO

ITINERARION°2

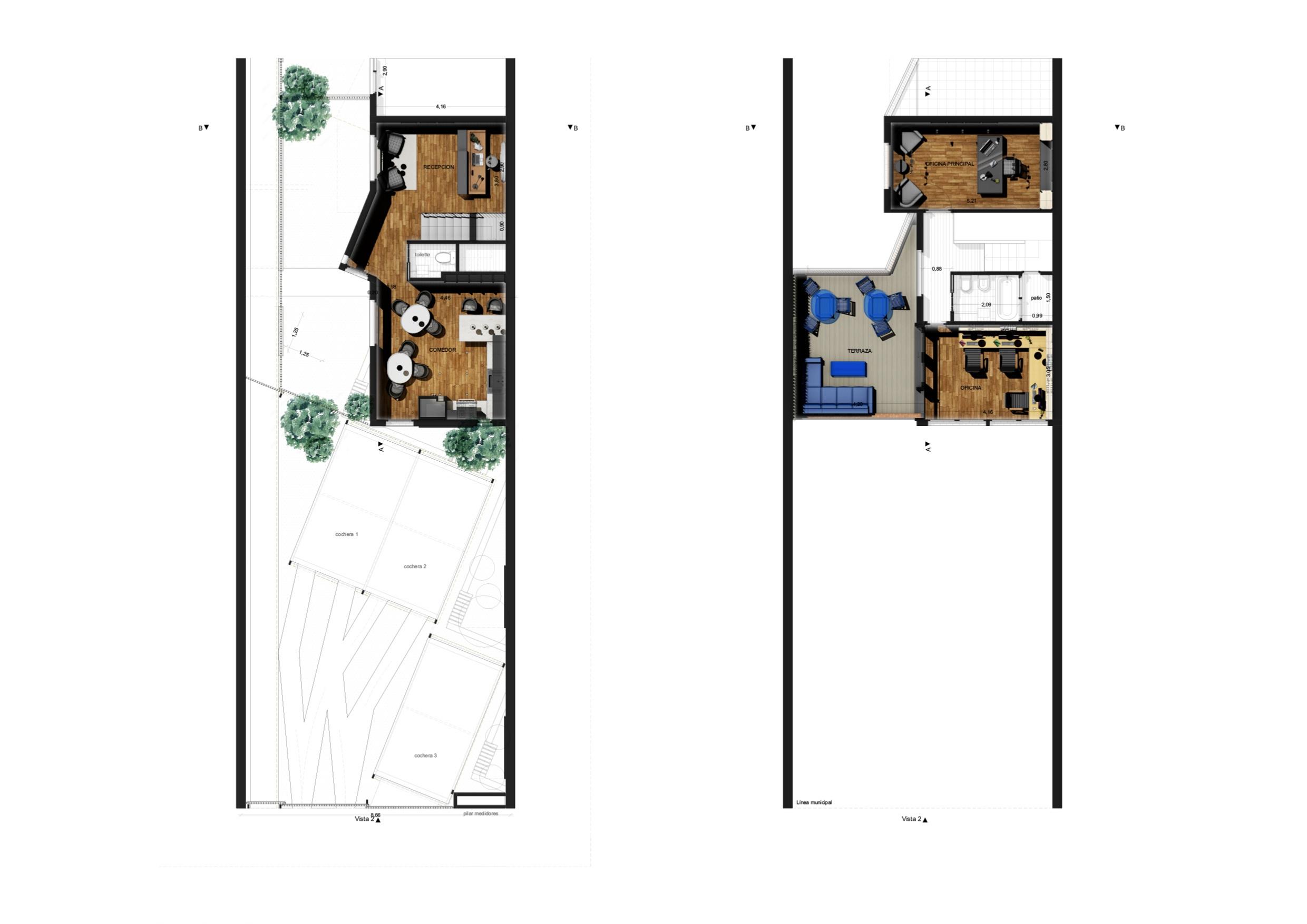
ESPACIOSDETRABAJO

Elequipamientomodelado,documentadoycomunicadoenelitinerarioanteriorserá incluidoenunapropuestadeintervenciónsobreelmodelodigital3Ddeunespaciode desempeñolaboralflexible,siguiendolatendenciadelco-working,complementándolocon otrosequipamientosyaccesorios.Lapropuestaserámodelada,documentaday comunicada,poniendoénfasisenlosplanostécnicosen2Dproducidosapartirdelmodelo 3DBIM,suhumanizaciónapartirderetoquefotográfico,ylaprofundizacióndelos recursosapropiadosenModelizaciónDigital1paraobtenerimágenessintéticasorenders.

PLANTABAJA

RECEPCION

COMEDOR

PRIMERPISO

OFICINA TERRAZA

OFICINAPRINCIPAL

DESARROLLODEUNPORTFOLIODIGITAL ENLÍNEA

Enelportfoliodigitalsevolcarán libremente,siguiendoloscriteriosde lapublicacióndereferencia,las imágenesdesarrolladasentodoslos ejerciciosdelacursada;elestudiante expondrátodasuproduccióngráfica, pudiéndoseagregarlostextosdelas consignasdecadatrabajopráctico acompañandoalasimágenes Los elementosvolcadosoportunamente enlasláminasseránredistribuidos paraadaptarlosaesteformatode presentación

SedesarrollaránenPhotoshop2(dos) imágenespreparadasparacompartir enInstagram Unadeellasserá formateadaparaunpostregular cuadrado(1080x1080píxelesa72 dpi)ylaotraparaunahistoria(750x 1334píxelesa72dpi) Elcontenidode estasimágenesseráelegido librementeacriteriodelestudiante, entresuproduccióndeimágenespara losejerciciosrealizadosdurantela cursada

ITINERARION°3

PUBLICACION

HISTORIA

UniversidadAbiertaInteramericana Alumna:MelinaFranco MODELIZACIONDIGITALII 2022 Lic enDiseñodeInteriores|Arquitectura Facultaddearquitectura Profesortitularacargo: GabrielHolzel

Turn static files into dynamic content formats.

Create a flipbook
Issuu converts static files into: digital portfolios, online yearbooks, online catalogs, digital photo albums and more. Sign up and create your flipbook.