PORTFOLIO - MELINA FRANCO - MD2_2022

Page 1

MD1 INT 20 22 MELINAFRANCO PORTFORLIO MODELIZACIONDIGITALII 2022 Lic.enDiseñodeInteriores|Arquitectura Facultaddearquitectura Profesortitularacargo: GabrielHolzel PORT FO LIO MelinaFranco|Portfolio2022

ITINERARION°1

MODELADODEESCRITORIO

Seexploraroncatálogosdigitalesy/ositioswebdeempresaslocalesproveedorasqueofrezcansistemas deequipamientooconstrucciónamedida Sepropondráunconjuntoquecumplaconlosrequisitosque dictolacatedra,basándoseenlabúsquedarealizadaylosaportesdesupropiopensamientocreativo

Setendránencuentalosaspectosconstructivosdelosobjetos,modelandopartescomponentescomo puertas,estantes,patas,etc conprecisiónmorfológica,agregandodetallescomotiradores,bisagrasu otrosherrajesdemecanización,cuandoseannecesariosparacomprendersuslógicasfuncionales,o cuandosuausenciaperjudiquelaesenciaestéticaylaapariencia Tambiénsetendránencuentalos materialesdeconstrucción,asignandolassuperficiesconelniveldeprecisiónnecesarioparaacompañar elgradodedetalledelmodelado3D

2 3 1 4 5
MADERA CONTRACHAPADA
PLACAS DE ACERO INOXIDABLE 6 MELAMINA NEGRA CON PAPEL MELAMINICO NEGRO
FLOAT GRIS PANEL DE CHAPA PERFORADO
CORREDERAS TELESCOPICAS
FLEXIBLE
VIDRIO

ITINERARION°2

ESPACIOSDETRABAJO

Elequipamientomodelado,documentadoycomunicadoenelitinerarioanteriorseráincluidoenuna propuestadeintervenciónsobreelmodelodigital3Ddeunespaciodedesempeñolaboralflexible, siguiendolatendenciadelcoworking,complementándoloconotrosequipamientosyaccesorios.La propuestaserámodelada,documentadaycomunicada,poniendoénfasisenlosplanostécnicosen2D producidosapartirdelmodelo3DBIM,suhumanizaciónapartirderetoquefotográfico,yla profundizacióndelosrecursosapropiadosenModelizaciónDigital1paraobtenerimágenessintéticaso renders.

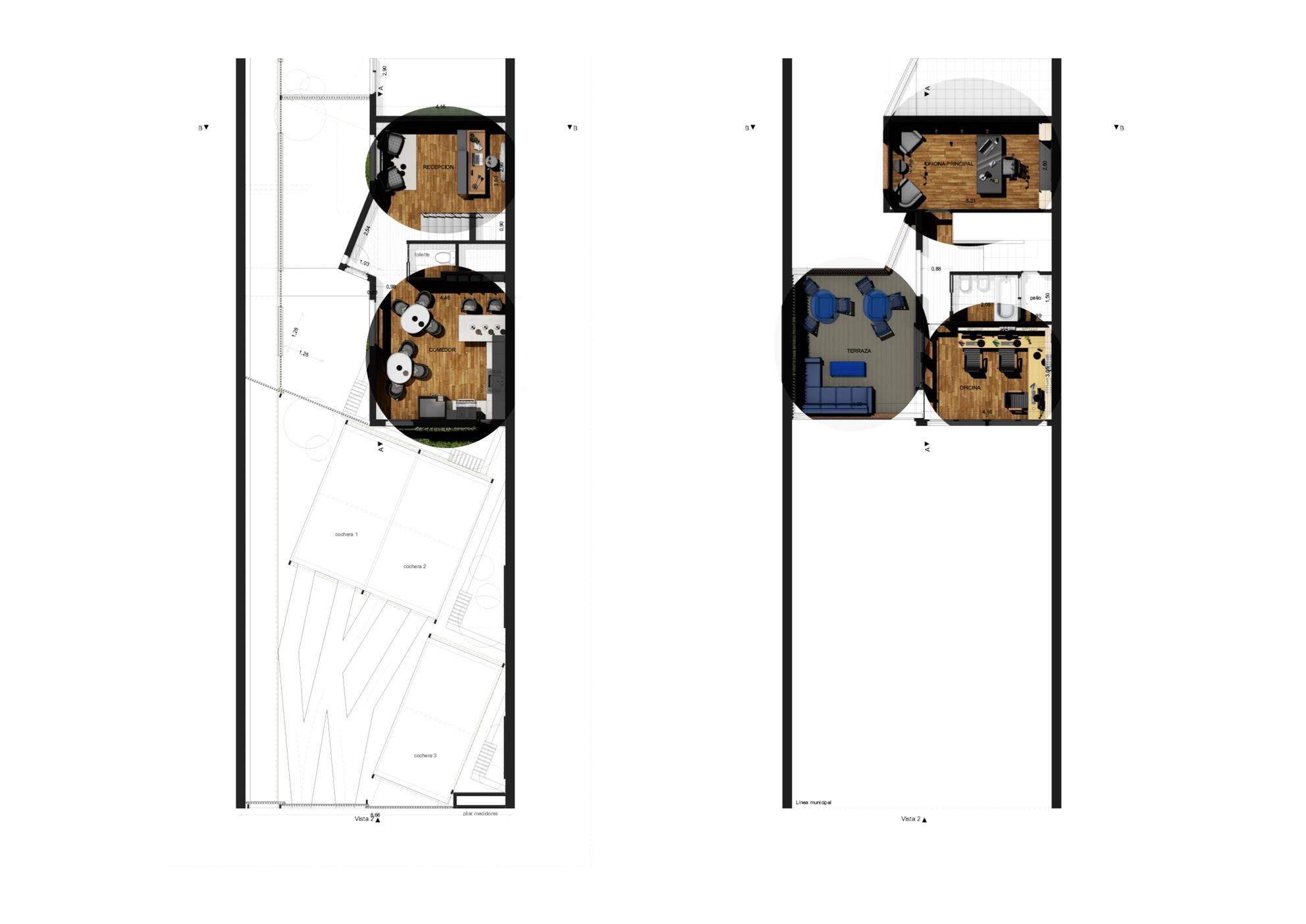
PLANTABAJA
PRIMERPISO

ITINERARION°3

PUBLICACION

HISTORIA

DESARROLLODEUNPORTFOLIODIGITAL ENLÍNEA

Enelportfoliodigitalsevolcarán libremente,siguiendoloscriteriosde lapublicacióndereferencia,las imágenesdesarrolladasentodoslos ejerciciosdelacursada;elestudiante expondrátodasuproduccióngráfica, pudiéndoseagregarlostextosdelas consignasdecadatrabajopráctico acompañandoalasimágenes.Los elementosvolcadosoportunamente enlasláminasseránredistribuidos paraadaptarlosaesteformatode presentación.

SedesarrollaránenPhotoshop2(dos) imágenespreparadasparacompartir enInstagram.Unadeellasserá formateadaparaunpostregular cuadrado(1080x1080píxelesa72 dpi)ylaotraparaunahistoria(750x 1334píxelesa72dpi).Elcontenido deestasimágenesseráelegido librementeacriteriodelestudiante, entresuproduccióndeimágenespara losejerciciosrealizadosdurantela cursada.

MODELIZACIONDIGITALII 2022

UniversidadAbiertaInteramericana

MD1 INT 20 22
Profesortitularacargo: GabrielHolzel Alumna:MelinaFranco

Turn static files into dynamic content formats.

Create a flipbook
Issuu converts static files into: digital portfolios, online yearbooks, online catalogs, digital photo albums and more. Sign up and create your flipbook.