Architectural Technician Portfolio

Page 1

Technical Portfolio
Meisam Zarei

The complete executive management of all construction operations (building structures, mechanical installations, and electrical systems) involves the executive management of all foundation construction operations, the execution of cladding for sandwich panels around the warehouse, and the construction of administrative buildings inside the warehouse, along with their associated facilities.

Responsibilities include overseeing all construction execution operations.

Determining contractors for each part of the building, and entering into contracts with them.

Procuring and purchasing all materials and acquiring or leasing the necessary equipment and machinery. Taking action to obtain utility connections such as water, electricity, gas, etc.

Providing thorough and precise supervision and establishing necessary coordination for timely and accurate construction implementation. Preparing cost statements for the work performed.

TYPICAL FRAME ROWS ‹1› TO ‹4›

TYPICAL FRAME ROWS ‹9› , ‹5›

TYPICAL FRAME ROW ‹6›

TYPICAL FRAME ROWS ‹8› , ‹7›

Technical, executive, and financial management are required for the complete executive management of all construction operations, including building structures, mechanical installations, electrical systems, ironwork, landscaping, fencing, and all construction operations until project commissioning and final delivery.

Responsibilities include:

Overseeing all executive operations of the building, determining contractors for each part of the construction, and entering into contracts with them.

Procuring and purchasing all materials, as well as acquiring or leasing the necessary equipment, tools, and machinery.

Providing thorough and precise supervision and creating necessary coordination for timely and accurate construction implementation.

Preparing cost statements for the work performed.

All payments to contractors must be made based on progress percentages of the work.

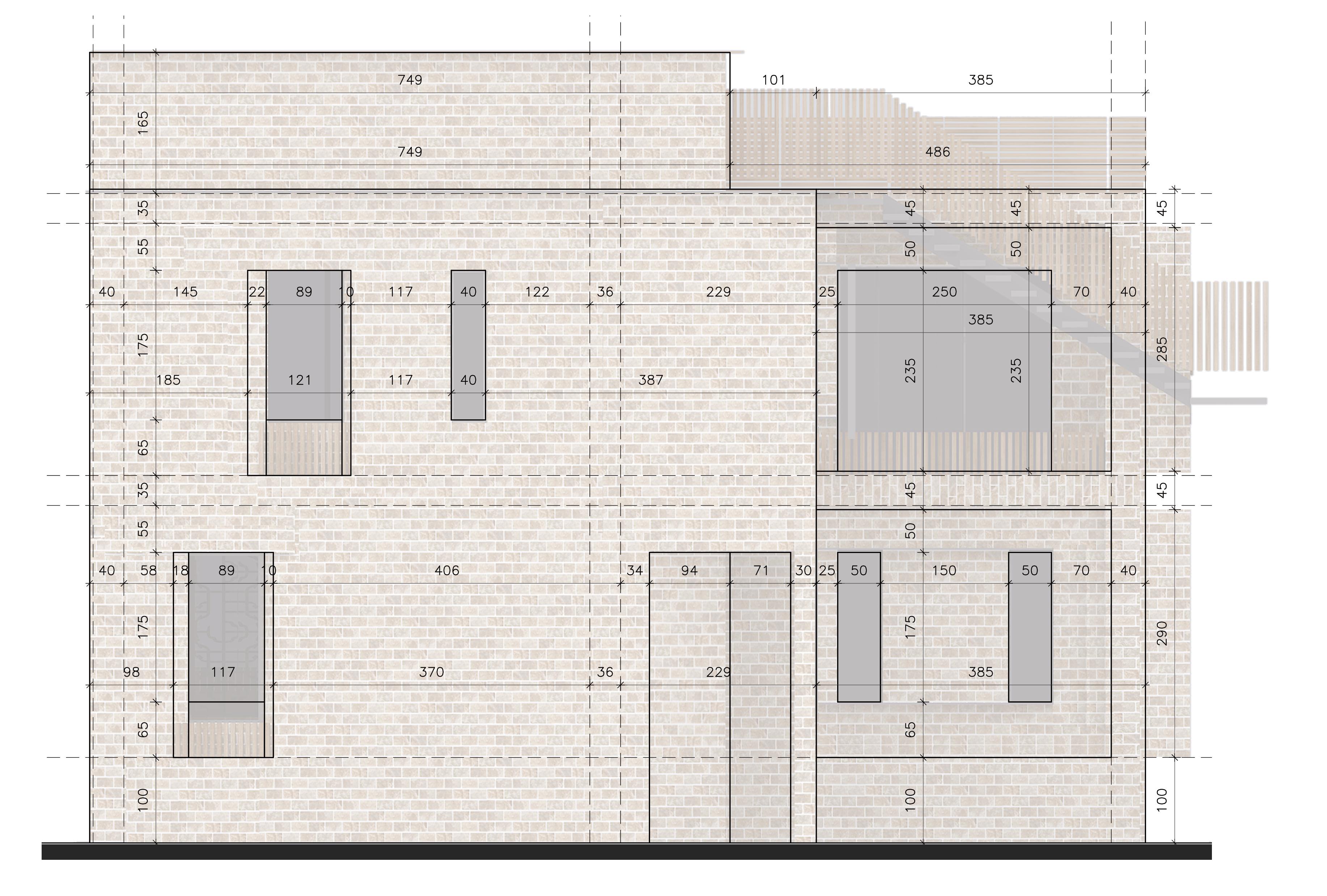
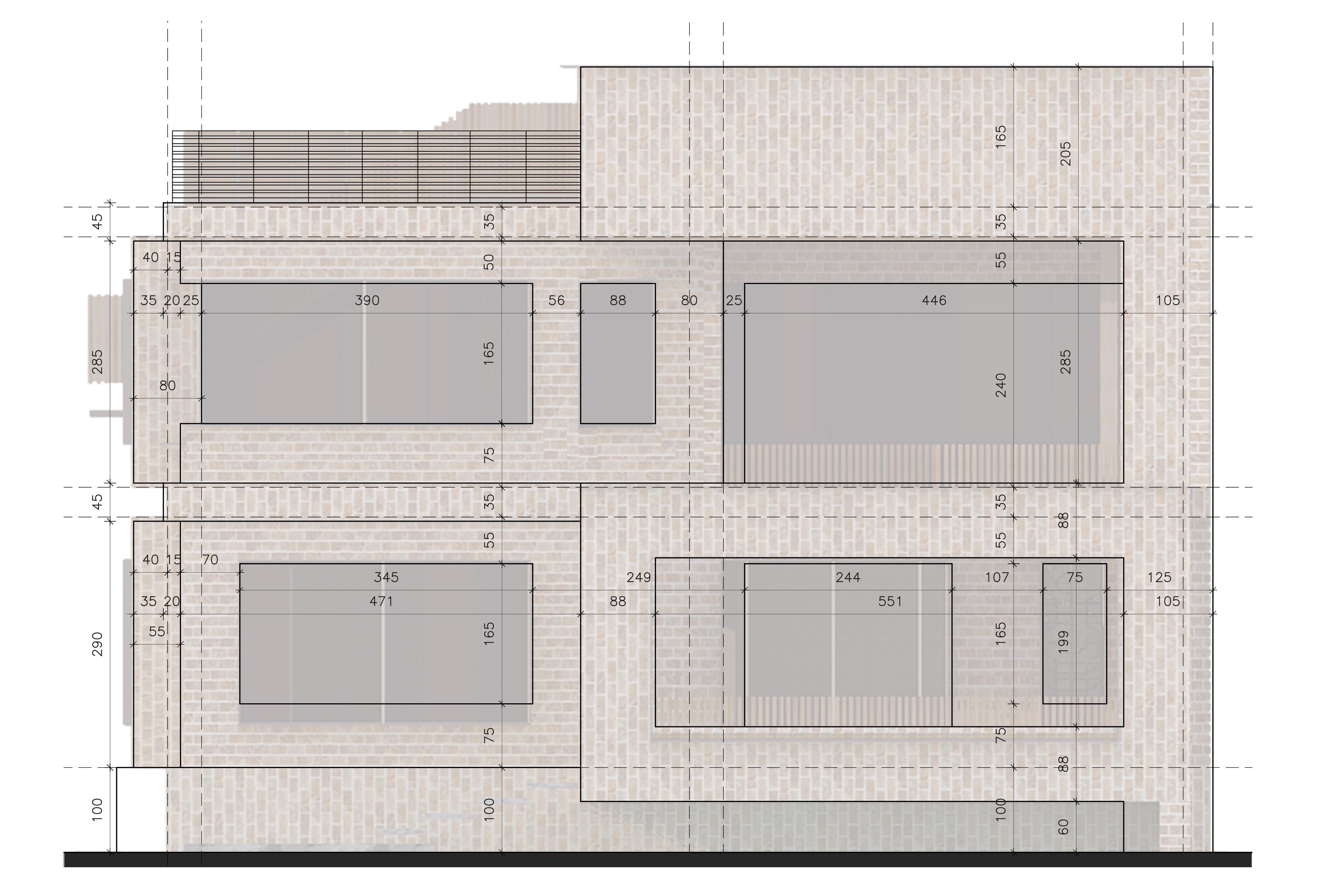
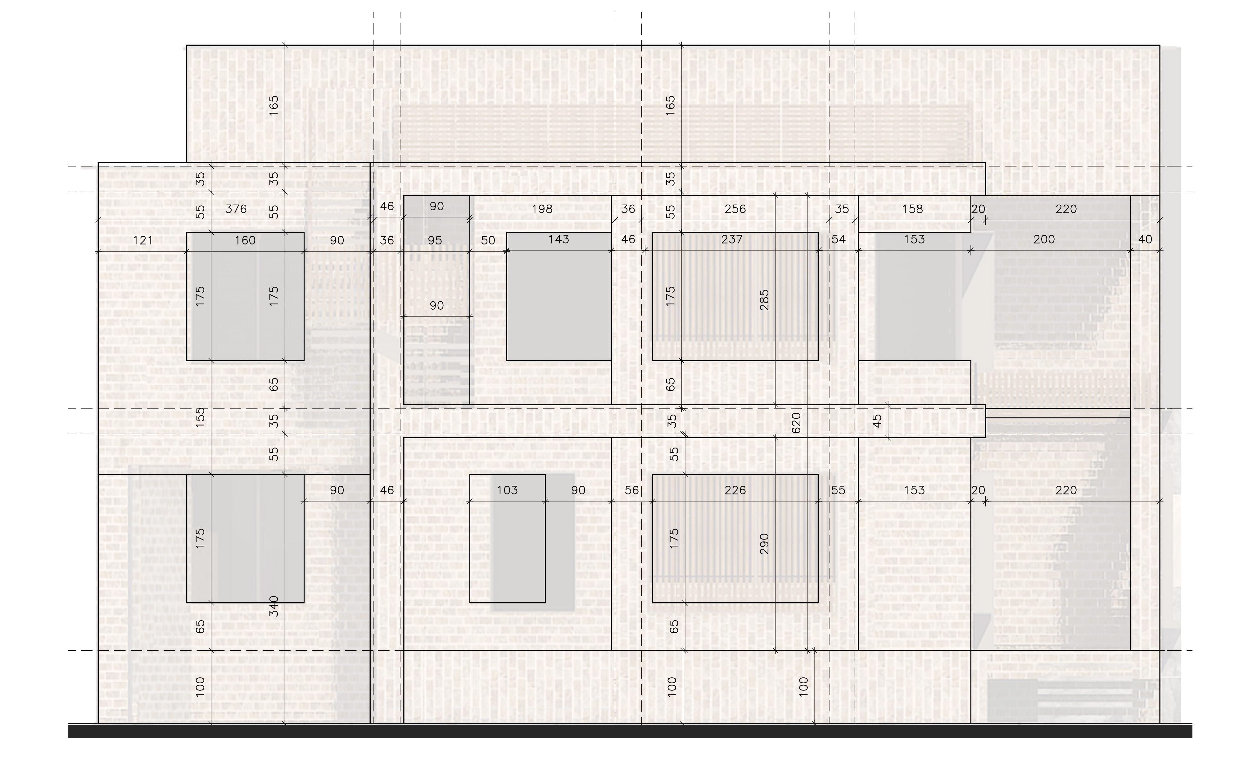
South Elavation South Elavation
West Elavation West Elavation
North Elevation North Elevation
SHEAR CONNECTOR CAVITY WALL BLOCK DETAIL AT FOUNDATION

DETAIL AT SLAB EDGE

BRICK VENEER/CONCRETE BLOCK
MEMBRANE (AIR BARRIER) DETAIL AT MOVEMENT JOINT

BRICK VENEER/CONCRETE BLOCK/DETAIL OF LOW PARAPET W PROTECTED MEMBRANE ROOF

BRICK VENEER/CONCRETE

BLOCKEXHAUST VENT DETAIL

BRICK VENEER / CONCRETE BLOCKWINDOW HEAD & SILL DETAIL

The End Meisam.za@gmail.com +1-647-575-4652

Turn static files into dynamic content formats.

Create a flipbook
Issuu converts static files into: digital portfolios, online yearbooks, online catalogs, digital photo albums and more. Sign up and create your flipbook.
Architectural Technician Portfolio by meisam zarei - Issuu