






![]()







BY MEISAM ZAREI

Building Information Modeling, Post-Graduate Sep 2024-Aug 2025
George Brown College, Toronto, Canada
Master of Construction and Project Management Sep 2015-Feb 2020
Islamic Azad University, Isfahan, Iran
Bachelor of Architectural Technology Engineering
Jan 2010-Jan 2013
Islamic Azad University, Isfahan, Iran












http://linkedin.com/in/meisam-zarei

6475754652

Toronto, Ontario,Canada

Meisam.Zarei@georgebrown.ca
BIM -EDUCATIONAL



NAVISWORK REVIT ARCHITECTURE REVIT STRUCTURE/MEP CIVIL 3D
ARCHITECTURE-PROFESSIONAL








SUBJECT : Quantity Takeoff in Revit
INSTRUCTOR : Joris Raaijmaakers
COURSE NAME: BIM Pre-Construction Visualization BIM1006
TIME: Fall 2024
SOFTWARE USED :



LEARNING OUTCOME:
Developed Navisworks quantification




Exported estimates to Excel
Created Revit 3D views
Generated Revit schedules
Delivered professional presentation sheets



















EXPLANATION:







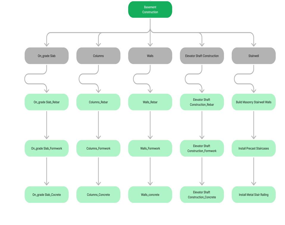
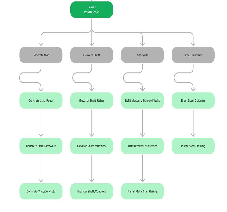
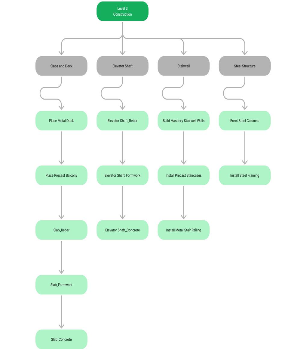
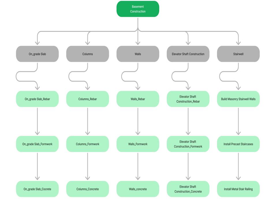
In this project, the challenge of performing accurate cost estimation and quantity takeoff for a structural model was addressed using Navisworks and Revit. A Quantification Workbook was set up in Navisworks based on Masterformat, and quantities for items such as rebar and formwork were calculated and exported to create a custom Excel-based estimate.
Color-coded 3D views and schedules were created in Revit to validate coding, and totals were calculated using Masterformat and Uniformat classifications. Ensuring that all elements were accurately quantified and professionally presented required meticulous attention to detail and effective problem-solving.
ESTIMATE IN NAVISWORK

GANTT CHART FOR 4D SIMULATION



ARCHITECTURAL MODEL




STRUCTURAL MODEL

MECHANICAL MODEL


Performed visual clash checks
Created redlines, tags, and dimensions in Navisworks
Conducted structured clash tests by floor
Grouped, named, and assigned clashes by discipline
Generated organized Clash Reports and viewpoint















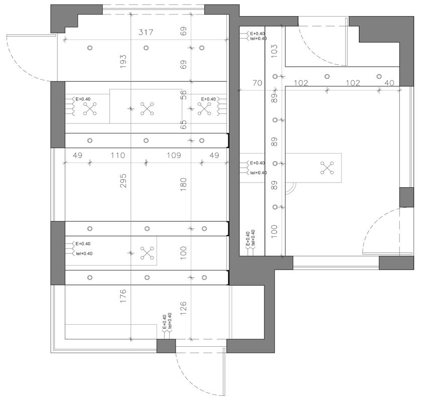
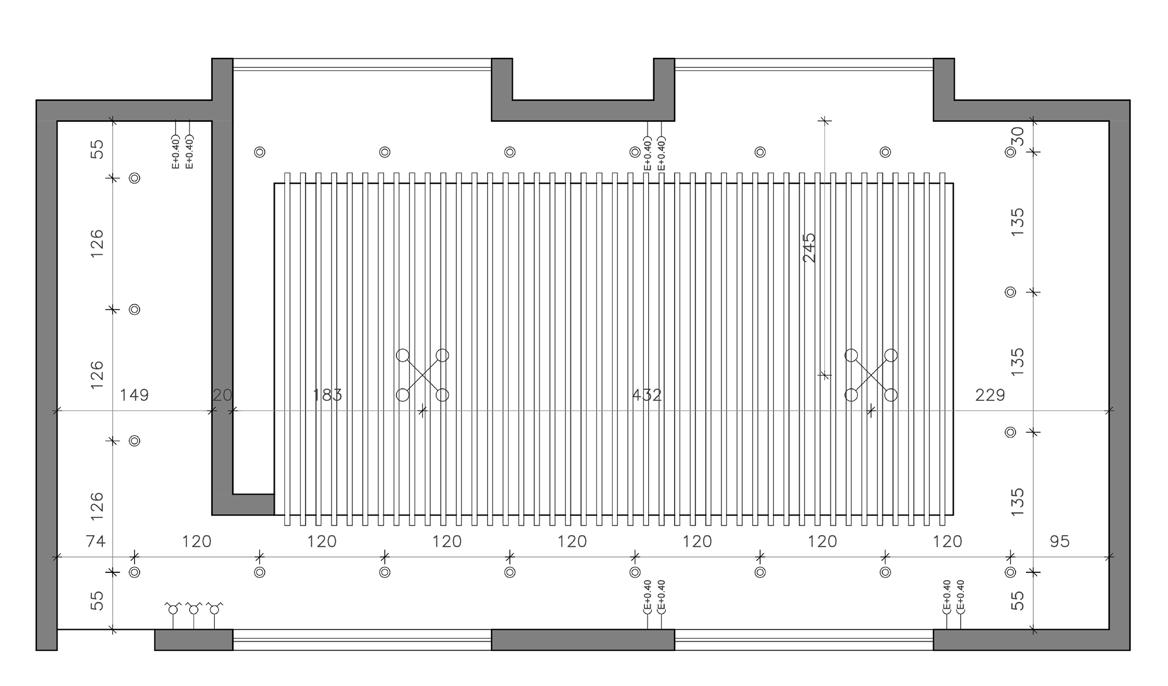
SUBJECT : REVIT ARCHITECTURE
INSTRUCTOR : Amal Madanat
COURSE NAME: REVIT
ARCHITECTURE-BIM1007
LEARNING OUTCOME:
Foundation walls and ramps were modeled
Parking spots and elevators were added
Rooms with color schemes were created
Exterior 3D views were produced
Wall sections on sheets were presented
Interior layouts and partitions were modeled
Area plans and schedules were created
Furniture and ceiling plans were completed
Topography and landscapes were developed
Site sections and landscape were presented
SOFTWARE USED :




SCL: 1/10

LEVEL 8
SCL: 1/100
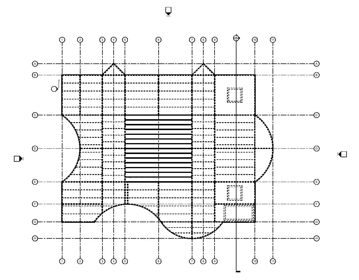
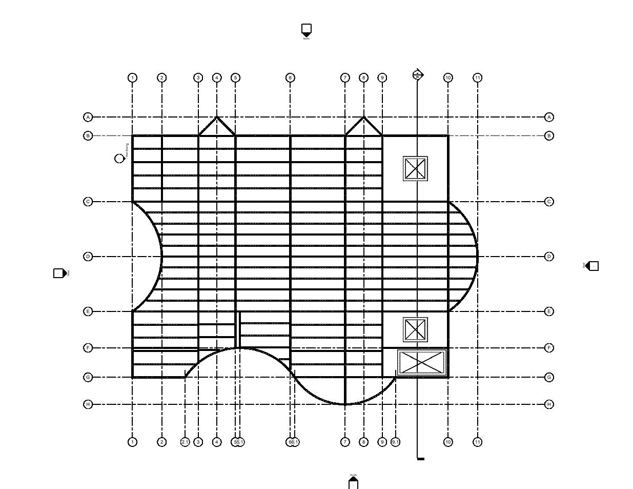
Detailed 3D models were created in Revit 2024 for various project aspects as part of a team effort. For the below-grade structure, foundation walls, partitions, parking, ramps, and mechanical shafts were modeled, along with room layouts and color schemes. The building envelope was modeled with 3D exterior views and wall sections, ensuring accuracy and presentation quality. For the interior, partitions, area plans, furniture layouts, and schedules for doors, finishes, and furniture were completed. Finally, the site was modeled, including topography, landscapes, and site sections. Each project was delivered with polished Revit sheets, demonstrating teamwork and technical expertise.
SCL: 1/10

SCL: 1/10
SCL: 1/10
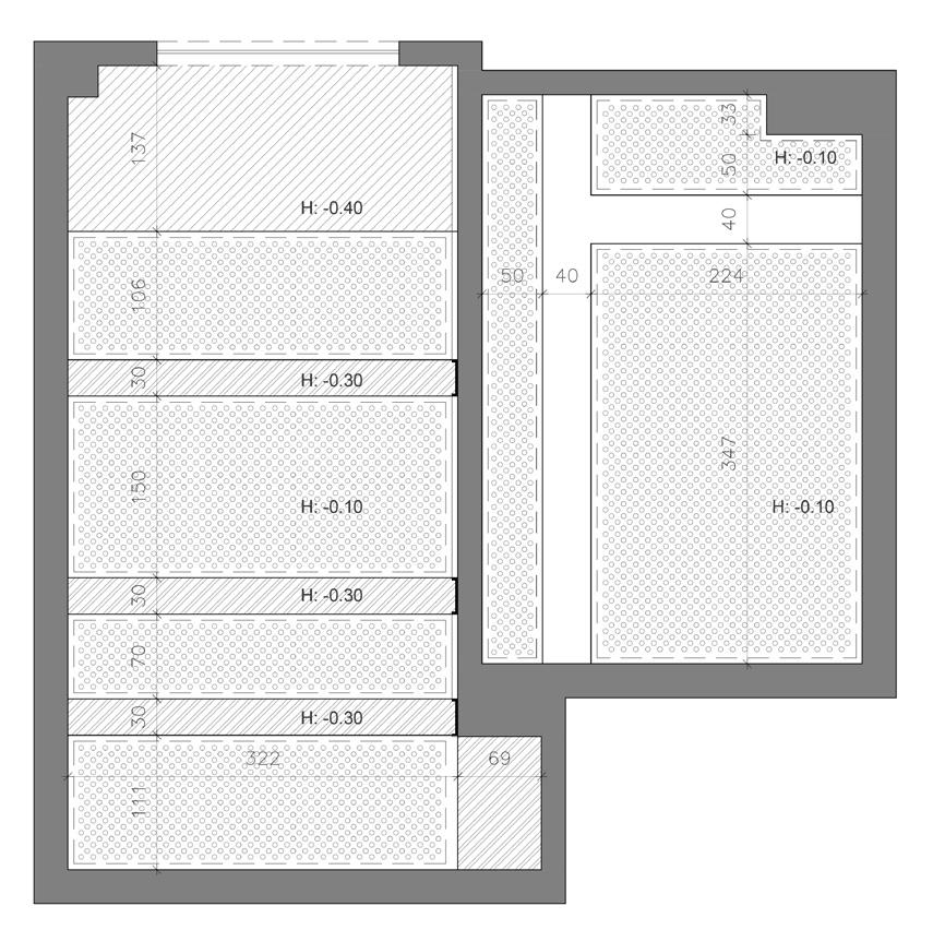
SUBJECT : Revit Structure
INSTRUCTOR : Magdalena Ordyniec
COURSE NAME: Revit – Structures and MEP-BIM1008
TIME: Fall 2024
SOFTWARE USED :

Added structural columns and monitored linked models
Modeled foundation walls and footings
Designed beams, bracing, and trusses
Implemented beam systems for efficient framing
Prepared construction documents with plans and sections
Placed isolated footings under columns




TOS-14 ROOF
1/8’’=1’-0’’

T.O. FOOTING
1/8’’=1’-0’’

TOS-13 FLOOR
1/8’’=1’-0’’
During the Revit Structure Assignment, challenges were encountered with aligning isolated footings to linked CAD files due to inconsistent dimensions. The issue was resolved by cross-checking project drawings and adjusting levels and grids, improving model accuracy. Beam systems and bracing for open spaces were designed with adjustments required to meet project requirements. Experimentation with Revit tools allowed an efficient and structurally sound system to be implemented. Despite these challenges, the 3D model was completed, detailed views were generated, and construction documents were prepared, showcasing strengthened problem-solving and modeling skills.




































SUBJECT : Revit MEP
INSTRUCTOR : Magdalena Ordyniec
COURSE NAME: Revit – Structures and
TIME: Fall 2024
SOFTWARE USED :

LEARNING OUTCOME:
Mastered pipe systems in Revit
Designed plumbing and hydronic systems
Connected fixtures to mechanical equip-
Modified pipe layouts and fittings
Integrated fire protection sprinkler systems
Completed HVAC-related Revit exercises
















































































































































































































































































SUBJECT : Civil 3D
INSTRUCTOR : Shahram Sattar
COURSE NAME: BIM-Civil 3D
TIME: Fall 2024
SOFTWARE USED :

Road corridors were designed and refined Surfaces and grading plans were analyzed
Alignments and profiles were developed
Utility networks were precisely modeled
Material quantities were accurately generated



A full Civil 3D project was successfully completed, showcasing skills in corridor design, grading analysis, and utility network modeling. Alignment inconsistencies were resolved through precise adjustments and collaborative problem-solving. Conflicts in utility networks were addressed using advanced Civil 3D tools, ensuring a seamless design process. Material quantities and construction documentation were generated accurately, highlighting proficiency in Civil 3D workflows.
ELEVATION AT KEY POINT






The project was commissioned by Dr. and Mrs. Behrouzian, with Dr. Behrouzian being our family physician. They chose to spend their retirement in Natanz, where they had completed their medical internship and met. A previous engineer had designed the building’s skeleton, but the interior layout failed to capture the stunning historic views of the city, featuring minimal openings and inadequate spatial flow. Our challenge was to address their concerns by enhancing the interior design to establish a stronger connection with the exterior and optimize the building’s views.


Roof or rooftop in traditional Iranian architecture is part of the living space and in addition to the complex and beautiful volumes, it has been used as a yard. In cities such as Naeen, Natanz in some buildings with porcelain crowned walls, raised the roof to about a meter and a half, creating a kind of roof yard that was used for sleeping in the summer nights. They also have a secondary climatic effect by shading part of the roof at different times of the day. In this design the roof was divided into three different spaces:
1. Allocating a canopy space for embedding and locating the water source and the adjacent space.
2. Allocate space to watch the beautiful starry sky of Natanz at night called Spring Sleep (terrace).
3. Space allocation on the southwest front of the building as an open family living space.
Natanz, the capital of Natanz county, is one of the historic and central garden cities of Iran, located in Isfahan province and in the middle of Kashan to Isfahan, in the vicinity of Karkas Mountain and northwest of Ardestan. Access to the city of Natanz is accessible via the old Kashan-Natanz and Isfahan-Natanz roads as well as the Tehran-Natanz-Isfahan freeway and the Tehran Transit Road.


After all, we continue with Natanz’s pleasant climate that indicates greenery and vitality, and we see trees that spread like a rug on a carpet on the ground, making life green and vibrant. The trees, some of which have an ancient history, are honored with the same plaque as the homes of people in the city of Natanz and respected by the people of the city of Natanz.



Defining the site location and its border line

Analysing existing condition and the possibilities for new design


Inspiring from persian architecture Adding required details to the facade and the villa environment
In the first step, I went to the semi-finished building and photographed the status quo, and then decided to go with the native design. Three trees are laid out in front of the house to indicate the main family members.

Studies were conducted on the city of Natanz and the site neighborhood. The status quo and as built maps were taken. After all the building angles on each floor were photographed outdoors (in human form( Layout of spaces according to visibility and accessibility. At this point after meeting with the client, the project needs were identified and then I started sketching and initializing all the above. Because it was my first professional project, I was working with two of my best university professors during design.
“Two elements of porch and Astana which are important elements of Iranian architecture are designed at the entrance of the house.”


The astana in the architecture of each entry is achievable based on some expectations. A person comes from another place, passes a long way, and in this way prepares himself to confront a new place. Arriving in the sense of “passage” occurs when a person crosses the lane of a place. This relationship inside and outside is a fact that is essential to identifying any place.

Porch is one of the most important living spaces in Iranian homes, especially in the long and hot seasons. It is one of the semi-open spaces, which in turn is justified by climate issues and sometimes even hierarchies.

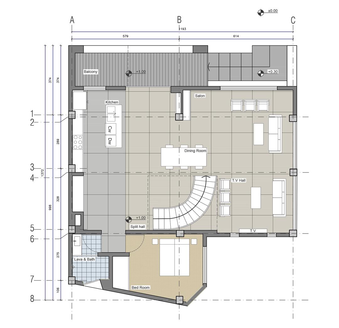
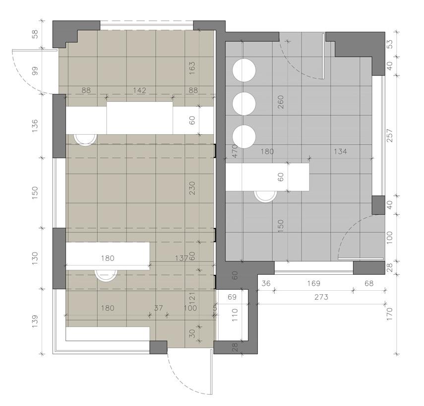
Floor Plan

Floor Plan






‘Sense of Place’ are some concepts that could describe the quality of people’s relationships with a place. At all stages of interior design, the sense of place has been taken into consideration. +1.20







Title:
Isfahan Pegah Dairy Office
Subject:
Office Interior Design
Type: Professional
Client: Pegah Milk Isfahan Company
Location: Isfahan, Iran






Upon receiving requirements from Shir Pegah Company, we designed the interior of their administrative section, focusing on minimal disruption during the renovation. Collaborating closely with employees, we developed a functional plan aligned with the company’s vision. The final design featured efficient space utilization, ergonomic furniture, optimal lighting, and stylish decor, creating a workspace that enhances productivity and embodies the company’s values




Title:
Nikeghbal Residential
Subject: Residentital
Project Type: Professional
Location: Yasouj, Iran
SOFTWARE USED :





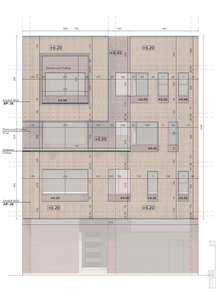
This project is situated in Yasouj city, characterized by a chilly mountainous climate. During the winter season, the area experiences intense rainfall, heavy snowfall, and strong winds. The primary obstacle we encountered was the preexisting implementation of the roof and column structure, which required us to undertake the design of the facade and interior. In the initial phase, we faced the challenge of working with the architectural plans of a partially completed building, imposing limitations on our design possibilities. Nevertheless, we embraced this constraint as an opportunity, leveraging it to conceive a unique facade design concept.














Title:
Qeysarie Ice Cream
Subject: Commercial
Project Type: Professional Location: Esfahan, Iran






is a
of
buildings and
space that resides
is uncommon for Iranian architecture and is just one
















Title: Lobby Design
Subject:
Office Interior Design
Type: Professional
Client: Mr Saghaei














Title: Kitchen Design
Subject: Residential Interior Design
Type: Professional



Title:
Kitchen Design
Subject:
Residential Interior Design Type: Professional
Client: Mrs Andalib


THANK YOU
MEISAM ZAREI