Megan Dang Spring 2023 Portfolio

Page 1

Table of Contents

In the Design Studio

Mission District Art Incubator

UCSB Performance/Lecture Hall

The Urban Institute

Oakland Community Center

Two Family Duplex

Orthographic Drawings

Other Schoolwork

Cantilivered Camping Structure

Wooden Hall Organizer

Design Proposal: Walk/Bikeable Streets

A Greener City: Graphic Storyboard PSA

Professional Work

Architectural Designer

Gelfand Partner Architects

Multimedia Associate

Othering and Belonging Institute

Berkeley Law School

UC Berkeley College of L&S

Personal Work

YouTube and Blog

Hand Drafting Sketches

Object Sketches

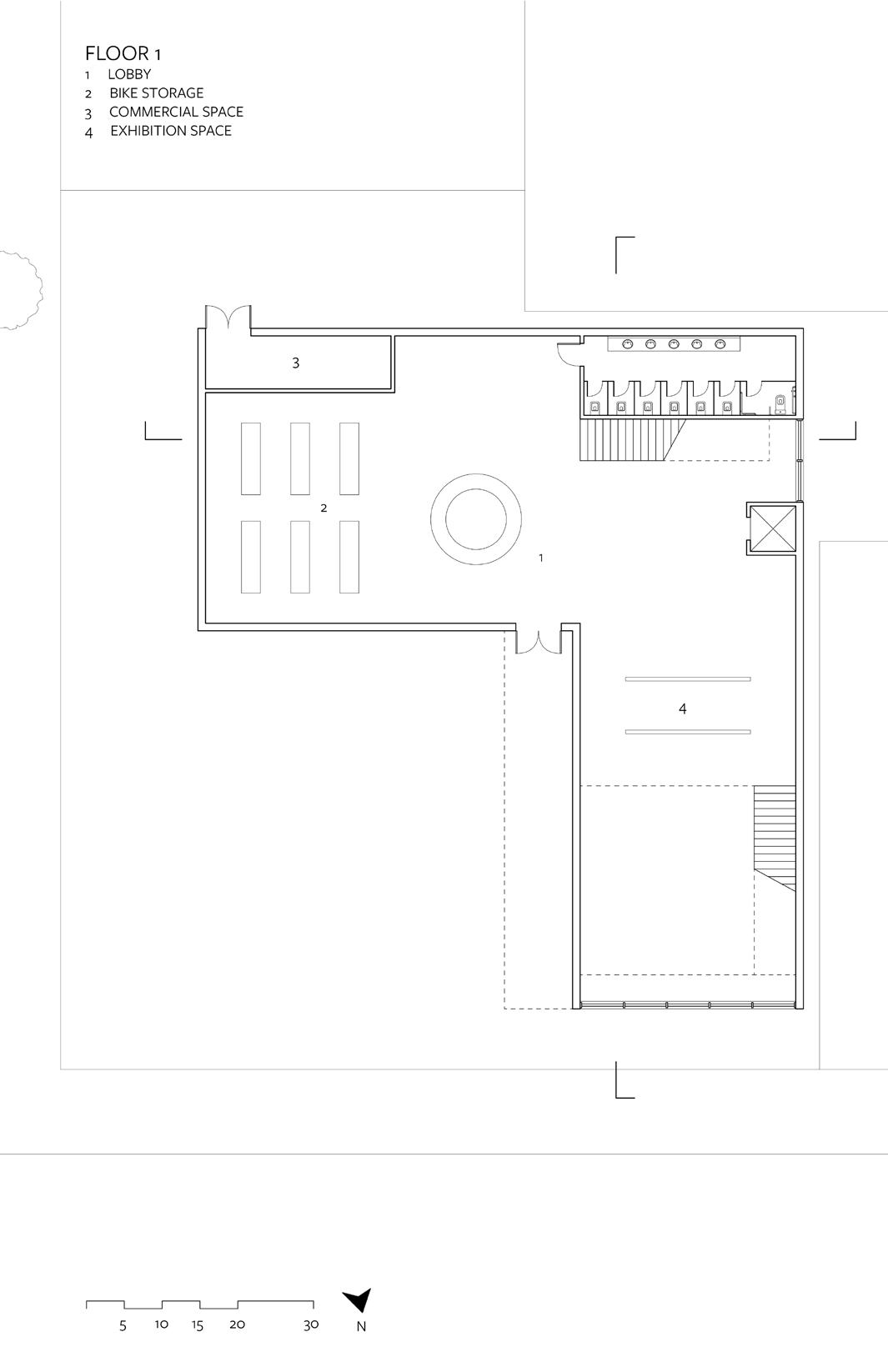
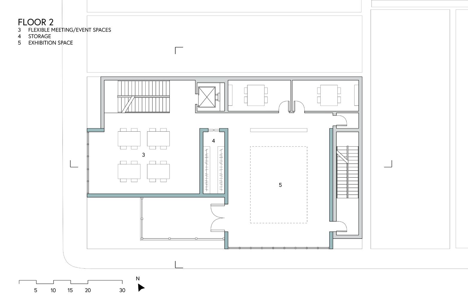
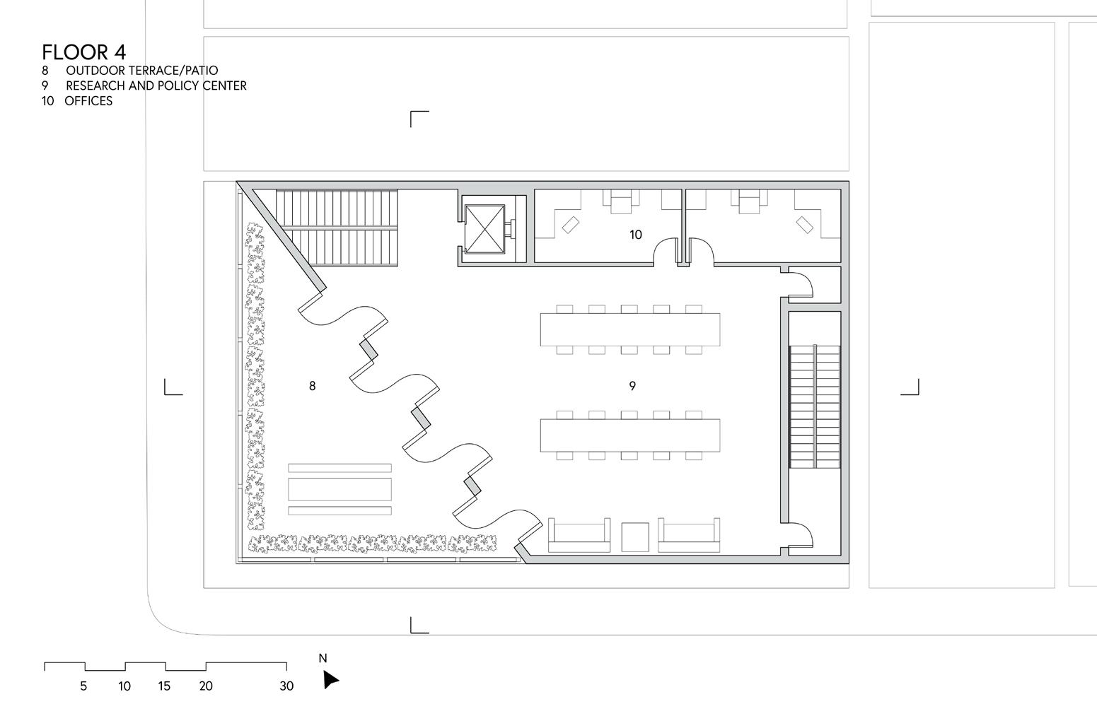
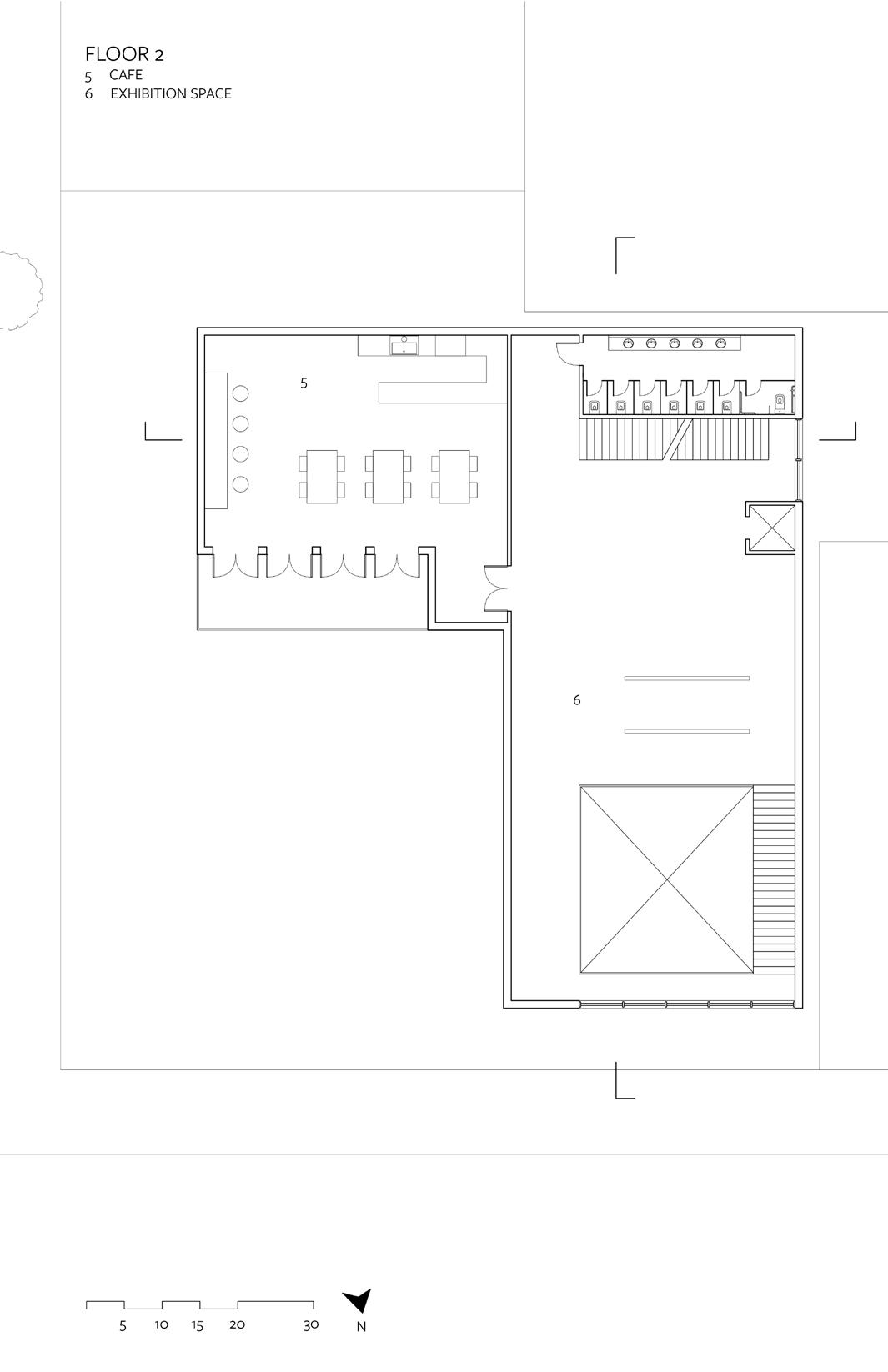
Mission District Art Incubator and Community Based Collaboration Space

This class project focuses on creating an art incubator and community-based collaboration space in the Mission District of San Francisco, with the aim to support diverse artist communities who have been impacted by the rising cost of living in the Bay Area. The art incubator will provide a place for artists to create, showcase, and sell their work while living within a community of like-minded individuals and utilizing common and shared resources, recognizing the importance of art and creativity in our cities.

My project specifically focuses on a museum building that embraces impermanence and uses the technique of collaging to redefine its spaces. By building with randomness, diversity of design, versatility, and variation, the museum blends into the current skyline of Mission District and allows itself to disappear in a sense. The project is based on the fact that nothing is permanent in Mission District, and the museum’s design reflects this truth.

Above: Perspective cut through alleyway
Right: Alleyway renders: (Top) third floor, (Middle) second floor, (Bottom) ground floor Top: Entrance renderings: (Left) Treat Avenue entrance, (Right) 22nd St. entrance Bottom: Plans Top: Circulation diagram, (Right) final physical model Right: Elevations

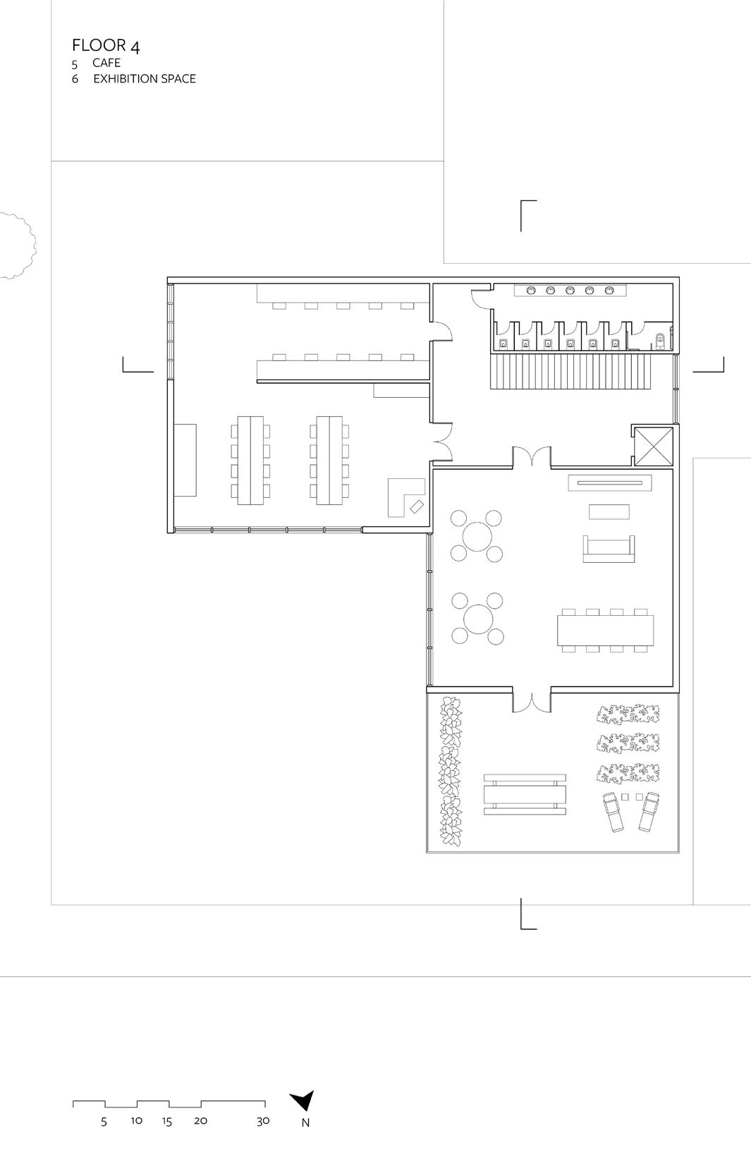
University of California, Santa Barbara Performance Venue and Lecture Hall

Barbara, CA | Ryan

Architectural Design IV | Spring 2023

In the class, (per)forming arts: order and uncertainty, I developed a catalog of figures, seams, and patterns that create a tension between the standard and the specific / the stable and the unstable in art practices.

For the project iself, I was tasked to design a new 850 seat performing arts and lecture venue on a gateway site to the University of California, Santa Barbara campus, utilizing the catalog of affects developed in the first part of the studio. The learning objectives of the studio include developing logics for the flow of people, institutional identity, complex spatial experience, natural daylighting, and exploring novel drawing techniques to see and evaluate the work differently.

Above: Plan subdivision diagram Right: (Top) Ariel exterior render, (Bottom) approach exterior render Top: Interior renders Bottom: (Left) Plan oblique massing wireframe, (Middle) plan subdivision diagram, (Right) section

The Urban Institute

San Francisco, CA | Keith Plymale

Fundementals of Architectural Design | Spring 2022

The Urban Institute is a building constructed by programs with a common set of interests: improving architecture and urban design in the Bay Area. Through interwoven tracks of research, education, and advocacy, the premise of this project is that a better quality of urban life can be supported through design. The institute relies an economic model that is an increasingly popular and necessary tool to support non-profit ventures, which is to use various parts of the building as flexible rental space for social events and business purposes, both creating and celebrating an urban tableau of continually varied users, constituencies, needs and expectations.

The productive merger and interaction of different programs and their particular spatial conditions was a central agenda for the project. The precedent I studied for this project - the Shanghai Modern Art Museum in China - heavily influences and inspired my building design which was to draw users’ focus toward the street corner. The interlocking shapes created a dynamic design which provides outdoor spaces and shade.

Above: Corner exterior render Right: interior render, (Bottom) bird’s eye view Left and Middle: Plans Right: Section cut elevations Top: Final physical model Right: (Top) Conceptural premise/primary intent diagram, (Bottom) programmatic strategy of the project

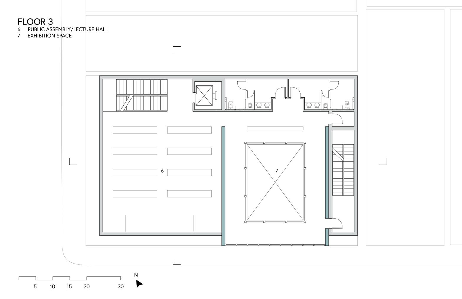
Oakland Community Center

Oakland, CA | Jasmit

Fundementals of Architectural Design | Fall 2021

This project was my first attempt at designing a museum, attempting to incorporate design concepts at the intersection of material, program and form while introducing issues of site, order, color, and circulation. I also had to consider questions such as: what is a museum? What should a museum be? What does “part museum” mean? What about “part something else”?

Top: Corner render Right: (Top) interior render, (Bottom) exterior render

Top:

Plans Bottom: Site plan, (Right) Section cut elevations Top: Final physical model Right: Circulation diagram

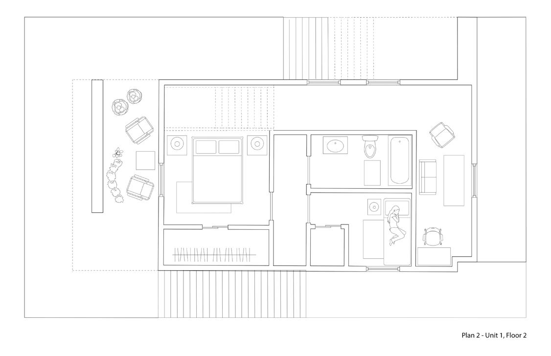
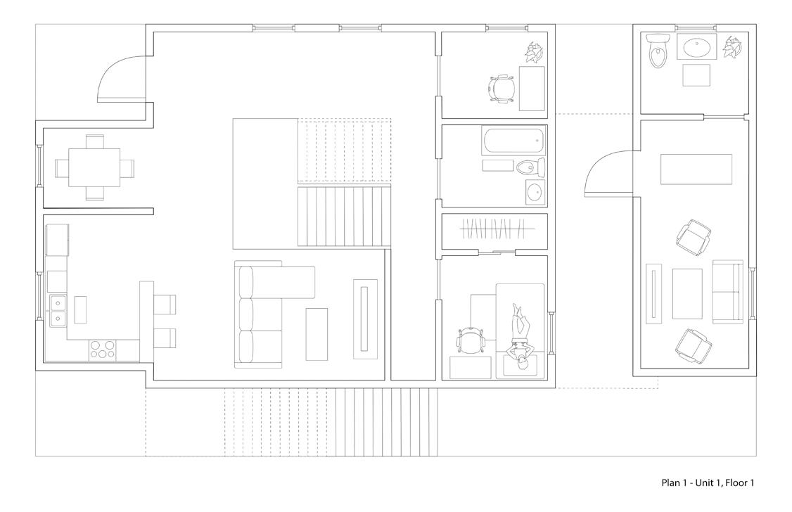
Two Family Duplex

Los Angeles, CA | Maria

Introduction to Design | Spring 2021

The requirements of this duplex included a duplex to accomodate two seperate units for two different families: Unit 1 is for a young couple with two young children and Unit 2 is for a couple and one older relative. This was my first studio course creating a space with given space and program requirements. The main focus of my design was to create an exterior circulation so that the different families would be able to move around the duplex without bothering one another to maintain privacy for themselves. I also wanted to work within the context of the site - Los Angeles - and create a sleek and modern design.

Top right: Section elevation Middle: Plans Bottom: Model

Orthographic Drawings

Berkeley, CA | Maria Paz Gutierrez

Introduction to Visualization & Architectural Representation | Fall 2020

For my first studio, I learned how to rigorously describe and analyze spaces through architectural orthographic representation. The lessons learned from this course helped me better understand how to critically calibrate the hierarchies and time-based donations within a given representational media. Above: Surveying of intricate geometry in the form of a body fragment and its transcription

Right: Drawing of an unfolded mechnical object (bike lock) and its movement

Cantilivered Camping Structure

Berkeley, CA | Andrew Rastetter

Introduction to Structures | Fall 2022

The purpose of this project was to create a structure to support a luxury adventure camping experience on a cliff face. The structure must enclose a sleeping space large enough for a queen bed (80” x 60”), a bathroom space to accommodate a dry toilet and water basin, and a space to store backpacks, safety gear and other supplies. The top of the structure must accommodate a 8’ x 8’ observation deck. The physical model was to be made at a 1½” = 1’ scale.

Through this prohect, I gained a better understanding of structural behavior through a combination of digital and physical modeling and testing and to investigate relationships between architectural design and structure. Through the design of a camping pod cantilevered from the side of a cliff, I learned to translate an architectural concept into a structural model which can be manipulated to meet programmatic and structural performance criteria.

Above: Testing of structure (held 65 pounds)

Right: Final structure. This structure was porduced as a group project of three students.

Wooden Hall Organizer

Berkeley, CA | Dana Buntrock

Introduction to Construction | Spring 2022

For this assignment, students were asked to build a simple, elegant, free-standing structure in wood, one that is both an entrance hall organizer or coatrack. The organizer was to be made to be able to hold at least one coat, a hat, and a pair of shoes.

My partner and I first modeled the structure out in Rhino. We used dowel joints and half lap joints to join the pieces together as we found that was the most efficient and effective way to do so with our wooden long pieces. Throgh the construction of this hall organizer, I learned more about how to make strong connections and work with wood.

Above: Final project being displayed with materials, (Right) construction of structure in woodshop Right: Close up images of joints

Design Proposal: Walkable/Bikeable Cities

Berkeley, CA | Kimberlee Stryker

Sustainable Landscapes and Cities | Spring 2021

Walking and biking are popular modes of transportation in Berkeley. In fact, almost fifteen percent of employed Berkeley residents commute by foot and roughly ten percent by bicycle. Nevertheless, there are a plethora of safety problems for those who travel these ways in Berkeley. For that reason, it is important to start designing safer streets and making significant improvements to existing street access for those who walk and bike in Berkeley. By doing so, we can create a culture that makes biking and walking easier, more accessible, and a part of everyday life.

For this project, my group and I selected the intersection of Shattuck and University to focus on, where many accidents occur. Through our research and design, we proposed a design solution to make this intersection of Berkeley more walkable and bikeable, helping pedestrians and cyclists feel safer, and encouraging more people to choose to walk and bike.

Above: Final production image of idealized intersection Right: Renders and drawings to showcase proposed intersection

A Greener City: Graphic Storyboard PSA

Berkeley, CA | Greg Castillo

Design and Activism | Fall 2020

America’s rapidly growing population and overcrowding has led to a decrease of green space in many cities. The Garden City Movement responded to the problem of overcrowding and congestion. This new design methodology fought to bring greenery into cities, fostering a healthier and more humane urban environment. For this project, I was asked to create a storyboard urging public action - I contrasted images of New York City with and without added green space to show how they can improve the city for its residents to convey the importance and necessity of green spaces in the city, motivating viewers to push officials to support green space initiatives.

Above: Storybaord pages 1-4 Right: Storyboard pages 5-10 1: New York city is currently failing to provide its residents with adequate green spaces. 2: Apartments are desperately close. 3: Residents are seriously deprived of outdoor space. 4: And children are sadly forced to play inside.

5: The Garden City movement is a method of design with the purpose to improve quality of life by incorporating green spaces into cities. It is time for NYC adopts this design.

6: This is what present day NYC could be with the proper incorporation of green space...

7: Residents are now able to go outside to complete their activities while connecting with nature.

8: And kids can actually play and congregate outdoors.

9: Petition, protest, and plant to build a greener, clearer New York City.

10: Fight for your green city.

Architectural Designer

San Francisco, CA | Gelfand Partners Architect

May 2022 - Present

In May 2021, I was hired as an Architectural Intern to work at Gelfand Partner Architects. After the summer, I was brought on to continue working as an Architectural Designer at the firm. I am invovled with projects for public and nonprofit clients in the Bay Area (TIs and K-12 schools rehabilitations). Additionally, I am part of marketing efforts, branding, social media, and qualification packaages for RFQs and clients, as well as community outreach initiatives and workshops.

Above: Client workshop design feedback presentation boards Right: RFQ proposal pages

Multimedia Associate

Berkeley, CA | Othering and Belonging Institute, Berkeley Law School, UC Berkeley College of L&S

February 2020 - August 2022

With my roles as the Digital Content Manager at UC Berkeley Law School, Multimedia Associate at the Othering and Belonging Institute, and Digital Content Strategist for UC berkeley Letters & Science Media Studies Department, I design and layout many promotional materials. This includes marketing flyers, event programs, and informational guides. The graphic programs I use to create these matrials include Photoshop and Illustrator.

Above: Berkeley Law flyers

Right:

Othering and Belonging Institute flyers

YouTube and Blog

YouTube: youtube.com/c/MeganDang Blog: type1mind.blogspot.com

Diagnosed at age three, diabetes has always been a big part of my life. Diabetes opened my eyes to new possibilities, new friends, and new experiences. Nevertheless, it has also shown me the bad that can come from an unwanted and undeserved disease - from causing me to go low during an important soccer game, to shooting up my blood sugar during an important test! As a diabetic of seventeen years, I feel that I have a lot of experience with this disease and want to share my story with non-diabetics, as well as connect with my fellow diabetics out there. Dealing with a 24/7 condition that occupies the most part of my life, I found that one of my main goals is to help other like me, as well as educate others willing to learn more about it!.

Since high school, I have managed and produced diabetic content for my personal YouTube and blog. On these platforms, I share informational guides, tutorials, and advice to fellow diabetics to help them with any concerns and obstacles they come across dealing with this disease. Above:

Blog Right: YouTube channel

Hand Drafting Sketches

Object Sketches

Turn static files into dynamic content formats.

Create a flipbook
Issuu converts static files into: digital portfolios, online yearbooks, online catalogs, digital photo albums and more. Sign up and create your flipbook.