Undergraduate Portfolio

Page 1

UNDERGRADUATE PORTFOLIO

M E G A N P A V L O W S K I

R E S U M E

Megan Pavlowski

941 Throop Street

Dunmore, PA 18512

mmpavlowski@m.marywood.edu

(570)815-2475

Education

Marywood University / August 2019 - May 2024

Bachelor of Architecture / GPA 3.85

Relevant Courses: Design Studio, Environmental Systems

I & II, Global Urban Ecologies, History of Architecture I & II, Structures I & II, and Building Assemblies

ISI Florence / September 2021 - December 2021

Study Abroad in Florence, Italy

Dunmore High School / August 2015 - June 2019

Architecture Experience

Ambitious and dedicated architecture student with a desire to create detailed 2D and 3D technical images while solving complex design and sustainability issues. Passion and talent for contributing to a team by effectively expressing individual creativity. Eager to grow professionally utilizing the excellent educational foundation obtained and collaborate with colleagues and higher-level decision-makers.

Key Skills

Adobe Suite

AutoCAD

Enscape

Microsoft Office

Revit

Rhino

SketchUP

Problem-solving and critical thinking

Knowledge of building codes and regulations

Strong written and verbal communicator

DX Dempsey Architecture

Student Shadow / April 2018 - August 2018

Analyzed and examined the daily routine of an Architect Shadowed over 40 hours

Living City Lab Ambassador

Student Ambassador / January 2023 - Current

Address global challenges at a local scale, through an open ecosystem of exploration and innovative research Utilizes the lab’s three key components; education, projects, and networking, to extend knowledge to the greater community

Solar Decathlon Associate

Student Associate / January 2023 - Current

Assemble and contribute to the decathlon’s exposition for the Board of Trustees at Marywood University

Community Design Build Member

Student Member / January 2023 - Current

Design and implement a functional piece into the newly established Garden of Cedar in Scranton, PA

Honors and Activities

Delta Epsilon Sigma: National Scholastic Honor Society

Tau Sigma Delta National Honor Society in Architecture and Allied Arts

Deans List 2019 - 2023

Tau Sigma Delta Mentor

AIAS Member

Jacobsian Scholar

T A B L E O F C O N T E N T S
03 04 05 OTTICA ILLUSION ISI FLORENCE MARYSTUDIO / FALL 2021 DWELLING ON THE ELEMENTAL DESIGN STUDIO IV / SPRING 2021 PHYSICAL MODELING COLLECTIVE / 2019 - 2022 02 01 THE LAWN ON SPRUCE STREET DESIGN STUDIO VI / SPRING 2022 ROYAL HALL DESIGN STUDIO VII / FALL 2022

ROYAL

HALL DESIGN STUDIO VII / FALL 2022

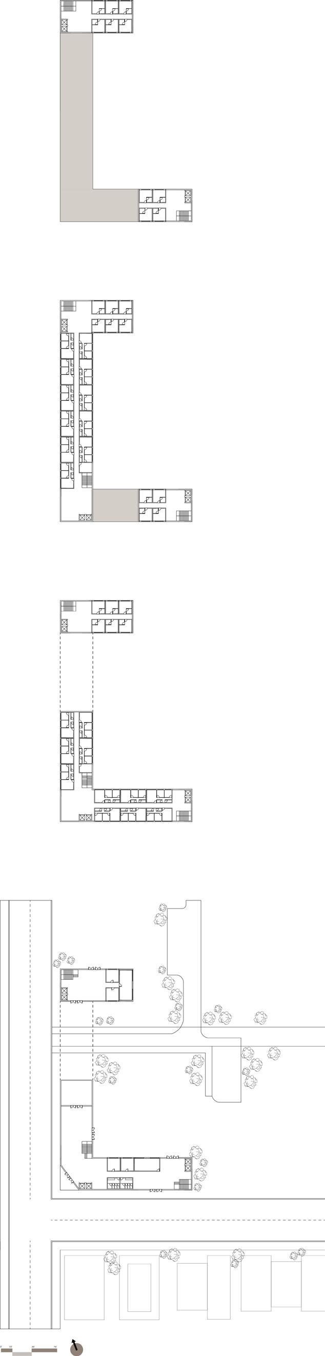
University of Scranton / Scranton, PA

This dormitory is intended for the University of Scranton students, and can house a total of 257 students. It contains a total of 73 living units from the second floor to the ninth floor. The first floor is open to the public of the University and consists of a cafe, dining area, private study rooms, public restrooms, and two laundry facilities containing 30 washers and 30 dryers, in each, for the students residing in Royal Hall. The “lookout” spaces on floors seven and ten are intended lounge and study areas for residents to utilize, while also being able to view the city from a new perspective. The courtyard space is designed for the students’ use, and to have full reign of the space for dining, studying, relaxing, etc. All room typologies include many amenities including private bedrooms, bathrooms, kitchenette, dining table, and living room. The individual bedrooms house twin xl beds, a desk, and a closet for the students personal use. The kitchenette consists of a refrigerator, microwave, stove, oven, and plenty of cabinets and drawers.

01
Floor 01 Floor 02 & 03 Floor 05 & 06 Floor 09

The “cutouts” to the structure are intended to allow for natural light and ventilation to occur throughout the dormitory. The “stacked” concept of the structure allows for sun shading throughout particular seasons. This allows for passive design strategies to be implemented ensuring the reduction of artificial heating and cooling.

The ground floor possesses a glass exterior, to give a “floating” effect on the nine floors above. The facade of the upper levels consists of a brick exterior with metal studs to allow for a connection to the many other structures on the University’s campus. The facades facing the courtyard are glass to allow for students to have a connection to the outdoors, while remaining indoors.

THE LAWN ON SPRUCE STREET

DESIGN STUDIO VI / SPRING 2022

University of Pennsylvania / Philadelphia, PA

Located on the corner of Spruce and South 40th Street, The Lawn is a dormitory for University of Pennsylvania students. It can house up to 182 students, with their choice of one or two bedroom typologies. It contains 144 living units for students, 5 study lounges, 1 public restroom, and one grand gathering space. It is a total of 17,520 square feet. The “cut out” through the building grants access to the street that was previously on the site. The structure has an aluminum ventilated exterior facade and heat - strengthened glass to allow for retention and insulation of heat. The Lawn grants students the ability to live in a place where they can call it their “home.”

02
Structural diagram showcasing the proposed structure of the dormitory Program diagram analyzing living units, communal spaces, circulation, and public spaces Sun exposure diagram illustrating the proposed dormitory’s shadows in relation to Philadelphia’s sun exposure throughout the seasons

OTTICA ILLUSION

ISI FLORENCE MARYSTUDIO / FALL 2021

Palazzo delle Assicurazioni Giovanni / Florence, Italy

Piazza della Signoria, history rich with landmarks, palazzos, and culture, was the location of this project. In pairs of two, students designed a newly re-imagined Palazzo for the city of Florence. The Palazzo delle Assicurazioni Giovanni resides in the piazza and has been adapted and re-purposed into an institution for college students to explore the fundamentals of optics. The client, Leonardo Del Vecchio, createdthe multi-million dollar company Luxottica. This company creates well known eye wear from Chanel, Ray-Ban, Oakley, and more. The institution allows for students to study both optics and the growth from the brains behind the eye wear empire Luxottica. The building itself was designed to allow for work areas, classrooms, gathering spaces, and much more.

03
0 10 20 0 10 20 0 10 20 0 10 20 Floor 01
03
07
Floor
Floor
Scale: 1:2000
0 2 4

Circulation Diagram showcasing the series of ramps wrapping around the exterior of the structure. They allow for visitors of the piazza and the institution to journey to the top for an incredible view.

0 2 4

DWELLING ON THE ELEMENTAL DESIGN STUDIO IV

/ SPRING 2021

Hector Vineyard / Hector, NY

This dwelling located in Hector, New York was derived from the precedent, The Keenan Tower House. From extensive research, modeling, diagramming, and drawing the Tower House allowed for the design elements of the dwelling to prosper. This house is a total of 400 square feet with one bedroom, one bathroom, kitchen, living room, dining room, and a storage area. The wooden slat facade was a precedent element taken from the Tower House. This element allows for privacy and shading from the elements throughout the area. However, it grants the opportunity to radiate the feeling of being among the trees. The dwelling interacts with the site and surrounding context to not remove the client from its beauty.

04

Scale: 1:100

05

PHYSICAL MODELING

The Lawn of Spruce Street Design Studio VI / Spring 2022

The model was crafted utilizing chipboard and cardboard. It is a scaled model of the dormitory designed for the University of Pennsylvania.

Detailed Model Design Studio I / Fall 2019

The model was created while manipulating wood, cardboard, and paper. The design of the model is derived from a series of models and diagrams created from the beginning of the semester.

Comprehensive Model Design Studio I / Fall 2019

The model was assembled with concrete, wood, cardboard, and paper. The design of this particular model was developed from a series of diagrams, models, and drawings from the analysis of the song “Lose Yourself” by Eminem.

Shadow Box Design Studio II / Spring 2020

The shadow box was constructed while utilizing cardboard, wood, foam, chipboard, and corrugated plastic. The intent of this project was to help with the understanding of primary, secondary, and tertiary spaces throughout space.

M E G A N P A V L O W S K I UNDERGRADUATE PORTFOLIO

Turn static files into dynamic content formats.

Create a flipbook
Issuu converts static files into: digital portfolios, online yearbooks, online catalogs, digital photo albums and more. Sign up and create your flipbook.