BEFORE & AFTER | AUTUMN 2024 | VERNON OLDER/HISTORIC HOUSE REMODEL

Page 1


Master Remodelers has been breathing new life into Pittsburgh’s unique landscape of homes since 1988. From that extensive experience we have honed our six stage design+build process into a holistic and efficient method, delivering home design and remodeling with exceptional quality, style and sustainability.

“My Pittsburgh Dutch Colonial-style home required an update that would stay true to its architectural integrity. Working with Master Remodelers was the right choice. Their team expertly addressed complex mechanical and structural issues while designing and curating a warm, vibrant, and functional space that enhanced our lifestyle.”

VISION

First Floor Client Objectives:

Design an inspiring, elegant, and cohesive aesthetic that seamlessly connects the existing living room with the adjoining step-down threeseason room.

Enhance the space to facilitate entertaining, particularly during football season.

Incorporate the colors of our cherished Steelers football and Pittsburgh sports teams.

Highlight the charm of the adjacent, quaint, and private patio.

“Rawness and refinement are not opposite ends of a luxurious spectrum. They are two complementary features with which to populate a luxe environment.”

Our Strategy to Meet Client Objectives:

Elevate the three-season room floor level to align with the existing living room floor

Install hardwood flooring in the three-season room and refinish each room to ensure a cohesive and seamless appearance

Remove the wall on the left side of the fireplace and widen the existing opening on the right to create balance, enhancing the fireplace wall's symmetry and promoting natural flow between the rooms.

Design Challenges:

Correct existing engineering issues on the first and second floors to allow for a new fireplace. Use black and gold sports themes colors in a way that is classy and timeless. Repurpose the existing windows by darkening the

A WELL-CRAFTED PLAN

stain to make them look more architecturally congruent with a new French terrace door.

Incorporate a fireplace with a smart TV on one side of the central wall, while the opposite side features a wet bar, LED backlit onyx wall, black granite wall, mini-fridge, dishwasher, and storage.

Custom design a high-top table that complements the specialty lighting fixtures.

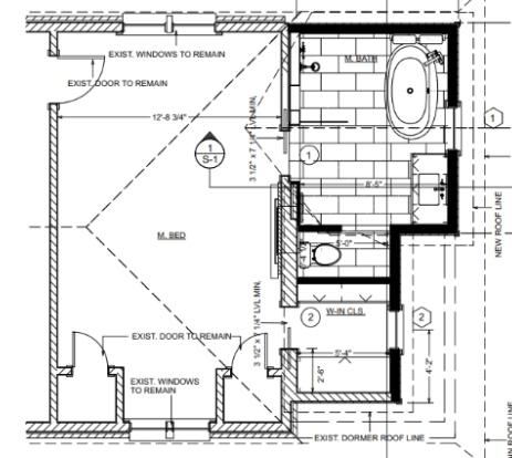
Client Objectives for the Second Floor:

Expand the bathroom footprint.

Design an inspiring space filled with natural light.

Incorporate a soaking tub and shower alongside a sink and toilet.

Our Strategy to Achieve Client Objectives:

Develop a protruding yet harmonious gable roof addition that complements the strong architectural symmetry of the home’s front view, ensuring the new structure feels original to the house.

Source additional roof tiles that match the existing ones for a cohesive appearance.

Design a seamless walk-in shower to maximize functionality and enhance the openness of the space.

Create a discreet separation for toilet privacy.

Custom-build cabinetry to optimize storage efficiency. Electric radiant heat for tile floor comfort.

Design Challenges:

Implement structural support to accommodate the weight of the tub and porcelain tile flooring. Address engineering issues stemming from the stacked fireplaces, ensuring proper flue functionality between the first and second floors.

Execute the project while adhering to health guidelines related to the Covid pandemic.

EXECUTED PRECISELY

According to Regis McQuaide, owner of Master Remodelers, “Nothing is mass-produced. Every day is different. Everything we do is customized.”

SEE FOR YOURSELF

TAKE THE TOUR

BEAUTIFUL DETAILS

“Some people look for a beautiful place, others make a place beautiful”

Unknown

WHAT’S YOUR VISION

Once you have decided a remodel is the best choice for your home and family, and you have created your list of challenges and must-haves, you can indulge in more specific design choices.

You can start by searching style types then working your way down to the details within that style. Modern farmhouse, craftsman, mid-century modern, transitional, or traditional designs are popular with plenty of ideas to explore.

We can help you create a unique balance that suits your personal tastes.

LET’S GET STARTED

Use the form to provide the details of your renovation and we will be in contact to go over the specifics of your project.

Questions?

Not ready to start your renovation or just have questions? Call or email us.

412-341-6586 admin@masterremodelersinc.com

Turn static files into dynamic content formats.

Create a flipbook
Issuu converts static files into: digital portfolios, online yearbooks, online catalogs, digital photo albums and more. Sign up and create your flipbook.
BEFORE & AFTER | AUTUMN 2024 | VERNON OLDER/HISTORIC HOUSE REMODEL by masterremodelersinc.com - Issuu