BEFORE & AFTER | WINTER2024 | WHITE OAK PITTSBURGH WHOLE HOME REMODEL

Page 1


FEATURING WHITE OAK WHOLE HOUSE REMODEL TRANSFORMATION.

PROOF THAT OUR DESIGN+BUILD SIX STEPS FOR SUCCESS WORKS

byMasterRemodelers A WELL-CRAFTED PLAN ALWAYS WORKS

. WINTER 2024

Master Remodelers has been breathing new life into Pittsburgh’s unique landscape of homes since 1988. From that extensive experience we have honed our six stage design+build process into a holistic and efficient method, delivering home design and remodeling with exceptional quality, style and sustainability.

“Looking to take our mid-century modern style ranch to the next level of livability, function and efficiency, we turned to the experts, Master Remodelers for Energy Star certification, timeless design, state-of-theart products and sustainable construction.”

–Helene

VISION

DESIGN OBJECTIVES

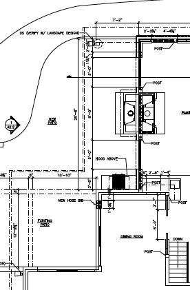
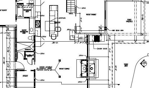
• Design an addition to the home that features a family TV room, electric fireplace, wet bar, entertainment appliances, a guest bathroom, and a cozy home office.

• Create an open floor plan that facilitates seamless entertaining, while incorporating music technologies into common areas and the patio. Use materials that ensure acoustic comfort, balancing music, TV, and crowd noise.

• Replace the hardwood floors with radiant-heated porcelain tile and upgrade the heating system from forced air to a hot water boiler system.

• Incorporate a state-of-the-art

kitchen and smart home lighting, while maximizing natural light openings to enhance the connection with the surrounding garden ambience.

Make it simple but significant.

–DonDraper

A WELL-CRAFTED PLAN

DESIGN CHALLENGES

• Maintain the architectural integrity of the mid-century home while adding modern conveniences and spacial changes.

• Enhance the building energy efficiency and achieve an Energy Star rating, cover the existing roof with SIPs (Structural Insulated Panels).

• Begin by removing all roof tiles; once the SIPs are securely in place, return the tiles to cover the roof.

• Additionally, raise the interior kitchen ceiling to harmonize with the cathedral ceiling in the room addition.

• Incorporate Universal Design principles to ensure accessibility for guests and homeowners as they age, which includes elevating the patio and adding spacious bathrooms featuring zero-threshold showers.

DESIGN SOLUTIONS

Incorporate quarter-sawn oak veneers on cabinetry and both fireplace paneled walls to evoke the horizontal lines characteristic of the mid-century design era.

Select a lighter stain for the kitchen island and Cambria countertops in both the kitchen and bathrooms to achieve a clean, modern finish.

Install fabric panels on the ceilings of the kitchen and family room to enhance acoustical comfort.

Create a seamless aesthetic throughout each room by using porcelain tile that matches the shade of the patio stamped concrete, fostering a sense of infinite spatial flow.

Design a wet bar complete with an ice machine, beverage/wine fridge, and sink, and include a countertop passthrough sliding door connecting the bar to the dining room.

Utilize a recycled glass countertop made from blue glass to introduce a vibrant pop of color and nod to sustainability.

Extend the wet bar countertop outdoors with poured concrete tinted brown, and cantilever the house roof to form a covered area for sitting, dining, and grilling.

Incorporate large architectural windows, seamless corner windows and full-view doors with sliding screens, featuring amenities like a waterfall, fire pit, outdoor TV, and sound system for entertainment and a connection to nature.

“Styles come and go. Good design is a language, not a style.”
–MassimoVignelli
*Interior design and furnishings in collaboration with Rachel Pavilack Design.

EXECUTED PRECISELY

Good interior design hinges on key elements such as space, line, form, color, texture, light, and pattern. When these elements are skillfully combined, they contribute to the overall design and ambiance of a room, fostering a harmonious environment. The design-build process offers a flexible and cohesive approach to navigating these essential characteristics.

“A room is not a room without natural light.”
–LouisKahn

SEE FOR YOURSELF

& AFTER BEFORE

TAKE THE TOUR

BEAUTIFUL DETAILS

“The details are not the details. They make the design.”
–CharlesEames

WHAT’S YOUR VISION

Once you’ve determined that a remodel is the right choice for your home and family, and you’ve compiled your list of challenges and essentials, you can delve into more specific design options. Begin by exploring various style types. Popular choices like modern farmhouse, craftsman, mid-century modern, transitional, and traditional designs offer a wealth of inspiration to discover. We are here to help you achieve a unique balance that reflects your personal tastes.

Regis Founder and Chief Quality Officer

Junko Chief Architectural Designer Bridgette Senior Director of Customer Experience

CLOCKWISE

LET’S GET STARTED

Use the form to provide the details of your renovation and we will be in contact to go over the specifics of your project.

Questions?

Not ready to start your renovation or just have questions? Call or email us.

412-341-6586 admin@masterremodelersinc.com

Turn static files into dynamic content formats.

Create a flipbook
Issuu converts static files into: digital portfolios, online yearbooks, online catalogs, digital photo albums and more. Sign up and create your flipbook.