The Heights at Blue Mountain Beach

Page 1

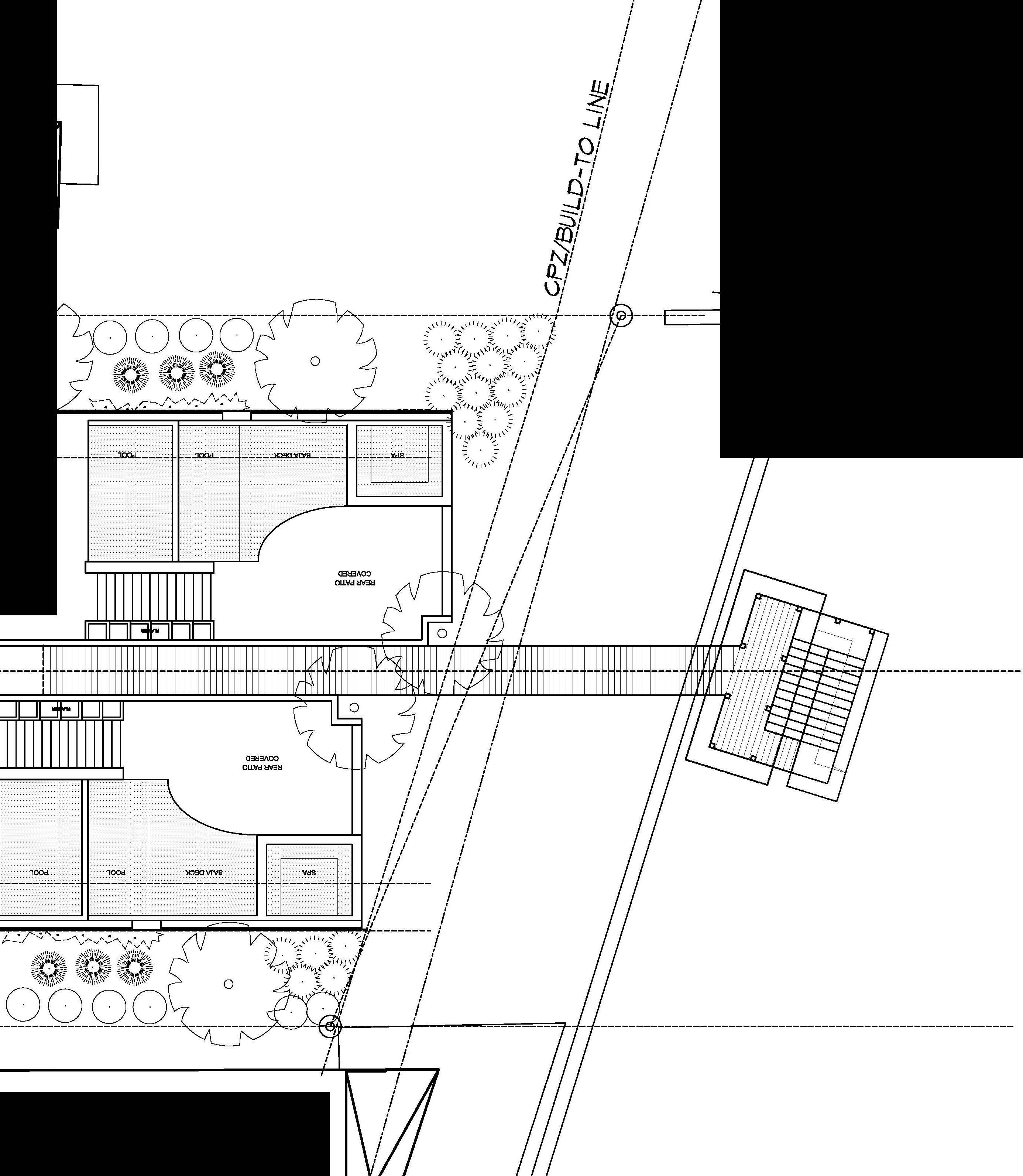
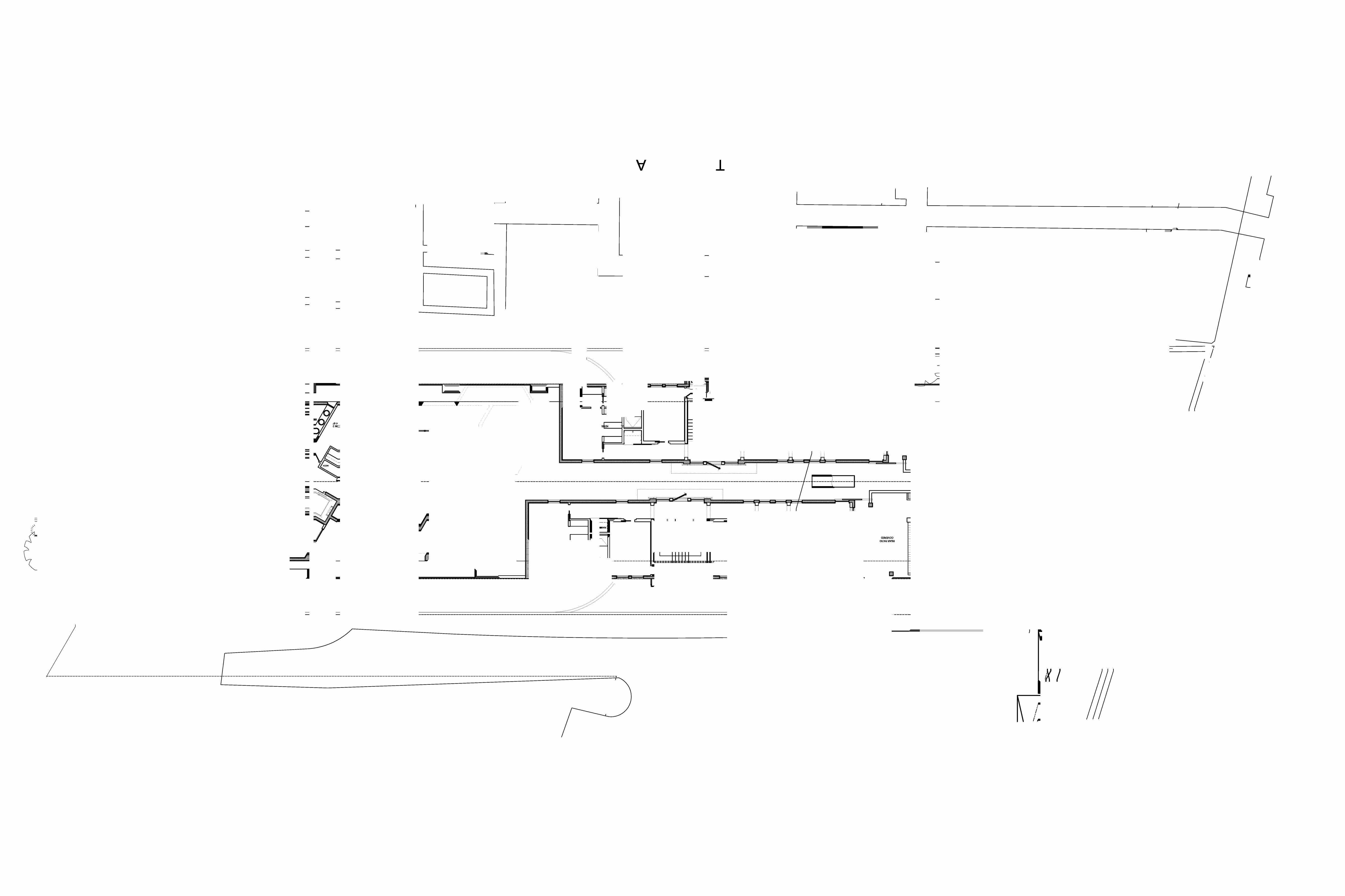
The Heights at Blue Mountain is a unique, private Gulf-front development offering the opportunity to develop three ultra-luxury residences. Poised on one of the highest elevations of 30A's west end in Blue Mountain Beach, The Heights will offer fully approved plans designed by Archiscapes architect, Chris Stoyles - with two 6,499 sq/ft Gulf-front residences each with 40.5 ft of Gulf frontage, and one 7,642 sq/ft Gulfview residence. This is an incredible developer opportunity with almost an acre site, situated in the heart of Blue Mountain Beach on the pristine emerald green waters of the Gulf of Mexico. All fully approved plans, permits, and development orders will convey with the purchase of this site. Buyer to verify all documentation and dimensions. All permits will be fully approved on or before November 30, 2022.

rental projections by royal destinations

gulf front and high end $3m+ market statistics year-end 2022

SITE PLAN

-------------en - m "'U r z • � -----7,7 "?J..t v;;;s II 0 •" ----1 � D �I,, O ' 0 0 ·�ij�s. .,��---.. _ ... __ ... __----II II II I �� � ���g 1, 'f'!l: �cj�i � '-------...-iq ffl��<'1;�,. ;��g••,. ; • � u�� 0 � • � �

BUILDING AND ARCHITECTURAL PLANS

DESIGNED BY ARCHISCAPES

ARCHITECT, CHRIS STOYLES

second tier gulf-view residence

\ I OUTDOOR STORAGE POOL EQUIPMENT POOL ABOVE //, / II /-/// \.... DECK 0 • I _._ DEN 22'-IO"X33'-l" • BALCONY
KING BEDROOM
BEDROOM 1 13'-0"Xl4'-8"
b 2'-8"Xl3'-0"

Turn static files into dynamic content formats.

Create a flipbook
Issuu converts static files into: digital portfolios, online yearbooks, online catalogs, digital photo albums and more. Sign up and create your flipbook.