


![]()



Dear seafarers,
Several of the articles in this issue of Wavelength are unsurprisingly based on situations that have compounded the challenges faced by seafarers across the globe. Therefore, it would not be unreasonable for readers to expect these articles to trigger thoughts of doom and gloom scenarios. While this expectation may be met to some extent, readers will also be able to identify the potential positives that can be taken from our confrontation with the pandemic and the fallout it has created. In the Safety First submission, there is a methodical guide to the strategies that should be adopted to combat adversity. These ultimately lead to the very pinnacle of resilience: recognising the opportunities arising from difficult situations. In a similar vein, the Manning and Training section leaves the reader in no doubt about how support systems that offer genuine empathy, gratitude and love can see seafarers through the most dire of situations.
Apart from the dangers posed by COVID-19, two other very important issues have been highlighted by Natassa Sakellariou of the Technical department and Georgina Verropoulou together with Fivos Christopoulos from Marine Operations. The former contribution covers hazardous materials and how their potential threats are mitigated through regulations. The latter tackles the long-standing threat of piracy and reveals how the practices adopted by seafarers working off the West African coast have enhanced their safety. These two issues are a further reminder of the industry’s ability to formulate and implement effective responses to threats that may compromise its integrity.

We should all, therefore, have confidence in those who have previously guided us through difficult periods to lead us safely through these trying times. We should ensure that all the respect, commitment and support we have shown in the past is not swept away by the tide of negativity brought on by the pandemic. We should also realise that we are in this together, and that by standing together with our families, friends and colleagues, we will eventually be able to look back on the trials and tribulations COVID-19 has cast upon us as individuals with a greater appreciation of who we are and the values we share.
I sincerely hope you enjoy this issue of Wavelength. If you have comments, suggestions or questions regarding the content, please do not hesitate to contact me at comment@ wavelength.gr.
Best wishes, Nick Seaman

Based on his experience and the feedback collected from his crew, Cpt. Oleksandr Andreiev suggested a number of modifications to improve the quality and convenience of use of coveralls while serving on M/V Nilos on 07/10/19. All the suggestions were implemented and new coveralls have been sent to fleet vessels.
Modifications included:
• zippers instead of velcro in the pockets • better quality zippers • elastic rubber on the back instead of velcro • a pen pocket on the sleeve • buttons instead of velcro on the sleeves
The Company wants to thank Cpt. Oleksandr for his initiative in providing such valuable feedback on the modifications of the coveralls, the most valuable Protective Equipment used by crew members.
As we all know, there is always room for improvement in safety issues and as per TMSA 9A 3.1, crew onboard is strongly encouraged to report safety best practices.
Please keep a sharp eye out for safety practices that could be adopted by the Company and submit any safety related ideas to the SQE Dept.

Disclaimer: The contents provided herewith are for general information purposes only and are not intended to replace or otherwise contradict the detailed instructions and procedures issued by the owners, managers, flag etc. The articles presented and the views expressed in the bulletin do not necessarily reflect those of the publishers. Editor: Nicholas Seaman • Email: contact@wavelength.gr



The pictures above show M/V Nilos being loaded with wheat at Kavkaz. Thanks are due to those who took the photos and submitted them for this edition of Wavelength.
To some, these photos may seem somewhat unremarkable but they are, in fact, a poignant reminder of how fundamental the shipping industry is to our current way of life. This is particularly the case for those who are literally on the breadline and in danger of going hungry more often due to the current pandemic.
A total of 29 officers and ratings gained a promotion in the first quarter of 2020. The list of seamen, one of whom appears on the list for the second time since its inclusion in Wavelength, together with their vessels and promotion details is shown in the table. This quarter was the one in which the Covid-19 outbreak was declared a pandemic. It was an announcement that invariably compounded the challenges faced by our Seafarers, who as evidenced by the promotions and the way they came together to send a message to the rest of us not to venture out unnecessarily (in the collage that appears in the message from the DPA), rose to the occasion. Moreover, their cooperation indicated that the concept of family has been embraced and that bonds have been reinforced with colleagues on other vessels. This response to the invisible threat is a noteworthy reminder of how resilience can be built up through connections that are strengthened in times of adversity.
So, congratulations are due not only to those on the list on their well-deserved promotions but also to all our Seafarers who have maintained a stoic attitude despite the additional pressures they have had to endure.

In view of an increased concern about various environmental issues, the focus on the use of non-hazardous materials in ship design, building and operation is also increasing. Two regulations presently govern these issues:
• Regulation (EU) No. 1257/2013 of the European Parliament and of the Council of 20 November 2013 on Ship Recycling (EU SRR)
• The Hong Kong International Convention for the Safe and Environmentally Sound Recycling of Ships, 2009 SR/CONF/45 (HKC)
The EU SRR and the HKC place responsibility on ship owners, ship builders, suppliers, recycling facilities and national authorities to ensure the safe and environmentally viable management of hazardous materials as well as the sustainable recycling of ships. A fundamental requirement of these regulations on board ships is the Inventory of Hazardous Materials (IHM), and the authorization of ship recycling facilities.

b. Regulations
Keeping an up-to-date Inventory on board a ship throughout its lifecycle is a key requirement laid down in both the Hong Kong Convention and the EU Regulation. The EU Regulation’s requirements for the development of the Inventory are in fact almost entirely based on the respective requirements of the Convention. Nevertheless, EU legislation sets a few more requirements for the Inventory than the Convention does.
The Hong Kong Convention was adopted at a conference held in Hong Kong in May 2009, but has not yet been ratified. It will apply to ships operating in the marine environment, which are equal to or above 500 GT. Navy ships and domestic ships are excluded from the scope. The HKC has two key issues:
• The inventory of Hazardous Materials (IHM)
• The authorization of ship recycling facilities
The Convention is aimed at ensuring that ships, when being recycled after reaching the end of their operational lives, do not pose any unnecessary risk to human health and safety or to the environment with hazardous substances such as asbestos, heavy metals, hydrocarbons and ozone depleting substances.
Ship recycling yards will be required to provide a Ship Recycling
Plan to specify the manner in which each individual ship will be recycled, depending on its particulars and its inventory.
The EU Regulation entered into force in 2013 and its general application started at the end of 2018. As with the HKC, the EU SRR is applicable to ships operating in the marine environment which are equal to or above 500 GT. Navy ships and domestic ships are excluded from the scope. The EU SRR has two key issues:
• The inventory of Hazardous Materials (IHM)
• An EU List of approved ship recycling facilities
According to the EU SRR,

By Natassa Sakellariou
a) new ships flying the flag of an EU member state shall be delivered with a valid IHM which is certified.
b) end-of-life EU member state flagged ships to be recycled shall have a valid and certified IHM and shall be sent to one of the recycling facilities in the EU List of approved ship recycling facilities.
c) from 31 December 2020 existing ships flying the flag of an EU member state and third-party ships visiting EU ports or anchorages shall have a valid and certified IHM on board
Entry into force
Certification done by
Dec 2018
for EU flagged new ships
for EU flagged ships to be recycled
Dec 2020 for all EU flagged ships and third party ships visiting EU ports and anchorages.
- EU flagged ships ≥ 500 GT
Ships ≥ 500 GT calling at any EU ports/anchorages - Ship Recycling Facilities (European List)
Ships less than 500 GT - Any warships or other ships operating only on government non-commercial service
Domestic ships
Part I investigates 15 hazardous materials listed in Annexes I & II
Flag states or ROs
IHM Certificate for EU/EEA flagged ships
Statement of compliance for third party flagged ships
ratified
Ships ≥ 500 GT - Ship Recycling Facilities
Ships less than 500 GT - Any warships or other ships operating only on government non-commercial service - Domestic ships
Part I investigates 13 hazardous materials listed in Appendices I & II
Flag states or ROs - International Certificate on IHM

The objectives of the Inventory are to provide ship-specific information on the actual hazardous materials present on board, their location and approximate quantities in order to protect health and safety and to prevent environmental pollution at ship recycling facilities. This information will be used by the ship recycling facilities in order to decide how to manage the types and amounts of materials identified in the Inventory of Hazardous Materials
d. Requirements for the Inventory
The Inventory has the following parts:
Part I: Materials contained in the ship’s structure or equipment
Part II: Operationally generated wastes and Part III: Stores
The IHM Part I shall be prepared and certified for new ships and ships in operation and shall be maintained and kept up to date during the operational life of the ship, while the IHM Parts II & III are only required to be prepared when it has been decided that the ship is to be sent for recycling. For the preparation of the IHM Part I, the hazardous materials set out in Appendices 1 and 2 of the HKC or Annexes I and II of the EU SRR shall be investigated.
For new ships all the hazardous materials listed in Appendices 1 & 2 or Annexes I & II shall be investigated, while for ships in operation Appendix 1 / Annex I is a must and Appendix 2 / Annex II is to be investigated as far as practicable.
Table 2: Hazardous Materials / Annex I to EU SRR
Table 3: Hazardous Materials / Annex II to EU SRR and Appendix 2 to HKC Hazardous Material
1. Cadmium and Cadmium Compounds
Annex II to the EU SRR Appendix 2 to the HKC Table B of Res. MEPC 269(68)
2. Hexavalent Chromium and Hexavalent Chromium Compounds
3. Lead and Lead Compounds
4. Mercury and Mercury Compounds
5. Polybrominated Biphenyl (PBBs)
6. Polybrominated Diphenyl Ethers (PBDEs)
7. Polychlorinated Naphthalenes (more than 3 chlorine atoms)
8. Radioactive Substances
9. Certain Short chain Chlorinated Paraffin (Alkanes, C10-C13, chloro)
% 10. Brominated Flame Retardant (HBCDD)
mg/kg
mg/kg
mg/kg
Annex I to the EU SRR Appendix 1 to the HKC Table A of Res. MEPC 269(68)
Asbestos Clean the filter. For all ships, any new installation of materials which contain asbestos shall be prohibited. When asbestos is detected onboard, removal by an expert company should take place within 3 years from the date of contravention in harmony with the respective flag State concerned.
Ozonedepleting substances (ODS)
Increase the pressure.
Polychlorinated biphenyls (PCB) Check the suction valve and puncture valve in the fuel pump.
Anti-fouling compounds and systems Check the individual index. If there is no index, check the rod connections and the safety shut-down system.
Perfluorooctane sulfonic acid (PFOS)
If no fault is found, change the fuel valves.
New installations which contain ozone-depleting substances shall be prohibited on all ships.
New installations of materials which contain Polychlorinated biphenyls shall be prohibited.
No ship may apply antifouling systems containing organotic compounds such as a biocide or any other anti-fouling system whose application or use is prohibited by the AFS Convention.
New installations which contain PFOS and its derivatives shall be prohibited in accordance with Regulation (EC) No 850/2004 of the European Parliament and of the Council.
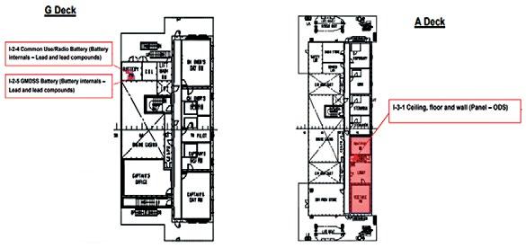
Hazardous substances checked and most commonly found on board ships are presented in the diagram below:

For the development of Part I of the Inventory in existing ships the following steps should be taken:
1. Collect necessary information such as certificates, manuals, ship’s plans, painting schedule, lubrication oil charts and battery logs etc. related to high risk areas to establish the existence of hazardous materials.
2. Assess the information collected in step 1. The assessment should cover all the materials listed in Annex I; materials listed in Annex II should be assessed as far as practicable. The results of the assessment should be reflected in the visual/ sampling check plan.
3. Prepare a visual/sampling check plan (VSCP)
• A VSCP is to be prepared before the visual/sampling check on board the vessel.
• Based on the collected information in Step 1 all equipment, systems and areas on board assumed to contain hazardous material in Annex I and Annex II are to be entered on the checklist.
• Each listed piece of equipment, system and area on board should be analyzed and judged based on the document analysis whether hazardous materials are contained, not contained or unknown.
• Any item classified as “Contained” or “Not contained” should be subject to a Visual check,

• Any item classified as “Unknown” has to be checked visually and be part of a sampling check.
• “Unknown” can also refer to any assumption made and classified as Potentially Containing Hazardous Material (PCHM). For example, non-accessible locations, or locations/items where the ship’s safety considerations do not allow sample taking (i.e. electronic or navigational equipment) are classified as PCHM.
4:


• There should be an onboard opening meeting with the crew before starting any visual/sampling check in accordance with the VSCP.
• When a sampling check is carried out, samples should be taken and the sample points should be clearly marked on the ship plan.
• Non-accessible areas for a visual or sampling check are to be classified as PCHM. Any equipment, system and/or area classed as "Potentially Containing Hazardous Material" may be investigated or subjected to a sampling check at the request of the shipowner during a later survey e.g. during repair, refit or conversion.


• Samples taken are to be tested in suitable accredited laboratories, working to international standards (i.e. ISO 17025), which will provide a written report with results of the analysis.
• If any equipment, system and/or area is classed as either "containing hazardous material" or "potentially containing hazardous material", the approximate quantity and location should be listed in VSCP and Part I of the Inventory. These two categories should be indicated separately in the "Remarks" column of the Inventory.


• A diagram showing the location of the materials listed in Annex I should be prepared in order to help gain a visual understanding of the Inventory.



Once the Inventory preparation is completed, it is submitted to Class for approval. Then a surveyor undertakes onboard verification and a Certificate against EU SSR (for EU flagged ships) or Statement of Compliance (for non-EU flagged ships) is issued. The IHM is subject to a 5-yearly Renewal Survey and is harmonized with the rest of the Class and Statutory Surveys. The Final documents that are required onboard and requested by authorities are the Certificate of Hazardous Materials and the relevant Inventory.


5 - 6: Final documents required onboard Certificate of Hazardous Materials and IHM
An IHM report is a living document. To ensure the sustainability of maintaining and updating it, it is very important to establish a strong cooperation among the master, vessel superintendent, procurement department and the office designated person.
Part I of the Inventory should be appropriately maintained and updated, especially after any repair, conversion or sale of a ship. If any machinery or equipment is added to, removed or replaced or the hull coating is renewed, Part I of the Inventory should be updated.
Materials Declarations (MDs) and Suppliers Declarations of Conformity (SDoCs), both of which are provided by suppliers give information on the presence of Hazardous Materials in newly supplied components and facilitate the proper maintenance of the IHM.
The diagram below illustrates how the IHM follows the ship throughout its lifetime:

To sum up, the parties listed below are involved from the preparation of the Inventory of Hazardous Materials up to any third party inspection:
Shipowner:
• Assumes responsibility for the preparation and maintenance of Part I of the IHM
• Involves the “Hazardous Material (HazMat) Expert”
• Assumes responsibility for designating a person for the maintenance of the IHM
HazMat Expert:
• Investigates and collects information (plans, manuals, sister ship IHMs)
• Prepares the Visual and Sampling Check Plan (VSCP)
• Conducts onboard checking according to the VSCP while taking into consideration local conditions
• Prepares Part I of the IHM and respective Report which are submitted to the RO
Flag State / RO:
• Approves the IHM, onboard verification and Certification
• Undertakes the 5-Yearly Renewal Survey
Port State Control / Flag State:
• Assumes control of Part I of the IHM
j. The Company’s preparation of the Inventory of Hazardous Materials
Class approved and competent HazMat experts located in main port stations worldwide (ARA area, Greece, Singapore and China) were contacted with a view to their providing an IHM service. After reviewing offers and services provided, two reputable and approved Haz-Mat expert companies were selected to undertake the IHM preparation.
As regards the Classification society, the IHM services do not necessarily need to be obtained from the same Classification Society under which the ship is classed. Therefore, it was decided that Lloyds’ Register (LR) should be appointed for all fleet vessels.
Each vessel’s schedule is monitored daily and the HazMat expert’s attendance onboard will be arranged at the first convenient port so that the development of the Inventory of Hazardous Materials progresses smoothly and is completed in a timely fashion.




Anew maritime security guidance, 'Best Management Practices: West Africa', has been published by various shipping industry associations along with the support of governments and military organizations. This valuable and comprehensive guidance was formulated to provide assistance for companies and seafarers to avoid, deter, report and assess the risks of direct piracy threats.
This additional security publication has been developed specifically for vessels operating and trading in West Africa and the Gulf of Guinea. This area is presently the world's piracy hotspot. During the first quarter of 2020 (1 January - 31 March), the IMB has reported that 37 vessels were boarded, 4 vessels were fired upon and 6 attempted attacks took place in this area. Piracy activity continued through the following months as shown on the map below.




The five fundamental requirements included in BMP are as follows: Understanding the threat.
Vessels are more likely to be attacked close to shore, on rivers and in ports. Additionally, it has been established that ships are at their most vulnerable when at anchor, while carrying out an STS transfer or drifting. While attacks on vessels predominantly occur at night, the risk of falling victim to pirates out at sea is particularly high both during the day and at night.
Boarding the ship is usually achieved with lightweight ladders, long hooked poles or knotted climbing ropes.
Pirate attacks involve three criminal activities: armed robbery, cargo theft and kidnapping. The pirates’ weaponry includes small arms like the AK47 and rocket propelled grenades (RPG).
These attacks vary in their form. For instance, perpetrators who plan to steal cargo or valuables tend to attack in small groups, while kidnappers are organized into larger teams and carry heavier weapons.


Other maritime security threats include unlicensed and unregulated fishing, human smuggling, human trafficking, stowaways and the trade of illegal drugs.

Given the fact that maritime threats have become more and more dynamic, companies must conduct and review risk assessments in order to be prepared to identify and implement suitable ship protection measures. Ship operators may resort to the hiring of Private Maritime Security Companies (PMSC), including Security Escort Vessels to accompany their ships. A detailed and completed risk assessment for each voyage and operation in the Gulf of Guinea region is a key factor in the protection of the ship.
The implementation of Ship Protection Measures (SPM) minimizes the risk of an attack, provides layered protection, deters piracy and enhances maritime security. SPM, which are included in the Vessel’s Hardening Plan, should be identified during the voyage planning process. According to the BMP guide, these are:
• a primary layer of defense such as raising vigilance on board, increasing lookout efficiency engaging in evasive maneuvers away from the approaching crafts while maintaining the best possible speed and installing physical barriers like good quality razor wire.
• the use of a well-constructed and fully equipped muster station/citadel along with an available lockdown plan. The Master should decide when it is the proper time for the crew to enter and exit the citadel.
• water spray and foam monitors, which delay or even deter any attempt to board the vessel illegally.
• enhancing bridge protection with the application of antiblast film in bridge windows, which is considered essential as a large number of attackers plan to fire their weapons at the bridge first in order to compromise navigation.
• barricading the access to accommodation and machinery spaces so as to delay pirates and allow crew valuable time to reach the safe muster station.

A proper lookout system is the most effective method of ship protection. It can help identify a suspicious approach or attack early on, which allows defences to be deployed. Night vision instruments are essential for spotting small skiffs which cannot be detected by the ship’s radar.
incidents, suspicious or irregular
Vessels and operators are submitting vessel position reporting forms to the Maritime Domain Awareness for Trade-Gulf of Guinea (MDAT-GoG), a vital organization that is contributing greatly to the safe operation of ships in the piracy-infested region of West Africa. It is of the utmost importance to report irregular activities and movements along with the other routine reporting (the daily vessel’s daily position, speed and course prior to entering the Voluntary Reporting Area as well as upon departure from the VRA or arrival in port).
The proper reporting of all suspicious activities MDAT-GoG and sending distress signals are essential even if the crimes committed do not directly affect or endanger seafarers. Such activities may include a mother vessel towing multiple skiffs, a mother vessel laden with skiffs, skiffs or small ships appearing to be unmanned, vessels fishing outside fishing zones, boxes/packages hanging outboard, excessive communication antennas, skiffs operating far from coast, small boats navigating at high speeds and boats without navigation lights.
According to the BMP guide, operators should collaborate with security forces in order to prevent, avoid or effectively face the crisis. Similarly, in the case of a military intervention the crew should cooperate fully with the maritime forces, not engage in any of their activities unless instructed to do so and not make movements that could be misinterpreted.
In most cases, perpetrators tend to be aggressive and even under the influence of drugs or alcohol. Therefore, if control of the ship is lost, reducing the risk of violence perpetrated by pirates should be highly prioritized. In the unfortunate event that the pirates attempt to take one seafarer or even the entire crew ashore for ransom, it is crucial to follow certain principles that serve as guidelines such as not showing resistance or not being confrontational.
Rules to remember in the unlikely event of being captured:
• DO be patient.
• DO keep mentally active/occupied.
• DO keep track of time.
• DO reduce stress where possible by remaining physically active.
• DO remain calm and retain dignity.
• DO be positive (remember, authorities are working tirelessly to release you).
• DO remember to leave any CCTV or video/audio recording devices running.
• DO exactly what the attackers ask and comply with their instructions.
• DO eat and drink when allowed to do so.
• DO take essential medical supplies if moved ashore.
Please note that the provisions of the BMP guide for West Africa have been incorporated in the Anti-Piracy Plan.
All mariners should consult the Anti- Piracy Plan and the Ship Security Plan prior to entering any high risk areas and comply fully with the requirements at all times. They must familiarize themselves with the required safety precautions in order to be able to demonstrate resilience, act swiftly and deter any potential attacks.
A vigilant and well-prepared ship is less likely to be attacked by pirates.
Wishing you fair seas and hoping for the eradication of piracy in all parts of the world!

“And once the storm is over, you won’t remember how you made it through, how you managed to survive. You won’t even be sure, whether the storm is really over. But one thing is certain. When you come out of the storm, you won’t be the same person who walked in. That’s what this storm’s all about.”
Haruki Murakami

By Chara Markatzinou, Training Coordinator
They say that when the storm is over, you will be a completely different person. And all of you are still coping, fighting against an invisible storm, which is called COVID-19 with patience, bravery and resilience. When the world froze in the face of this pandemic, you were the ones that remained in the front line carrying goods, offering your services around the clock. Despite the uncertainty that was spreading across the globe, you managed to remain mindful, courageous, supportive to your shipmates and inspiring to us all with the example you set. You are truly the unsung heroes at this time of distress.
It is true that this pandemic has changed our lives. Most consider this has been a blessing in disguise. It may be the case that COVID-19 has offered us an unwrapped present of sincerity, patience and teamwork, which will eventually lead to connection and love. We have come to appreciate the simple things in our everyday lives that had previously gone unnoticed. We worked together as a team, and in the process built stronger bonds.
Spiritual teachers believe that life will give us the experience that is most helpful for our evolution, for the evolution of our consciousness. Try to think for a minute what is different for you now during this period. Try to discover your blessing during the COVID-19 era. Notwithstanding, we could not agree more that staying away from home longer, away from your loved ones only made things more difficult. Waiting for your disembarkation, for the “good news” from the agent that crew changes are allowed to take place at a specific port, can be rather stressful. Therefore, we decided to contact your families and ask them to boost your morale by preparing a message of support, a message of love, a message to accompany you until such time that you would be reunited with them.
When we initiated a request to our manning offices to collect messages of support from the Seafarers' families and/or other Seamen ashore, we could never have imagined how many messages that are full of love, support, hope and inspiration would be sent. We could not be more grateful for that!
Nowadays, technology makes communication so easy and fast that these messages could have been delivered to each and every one of you directly through your families. Nonetheless, we preferred to engage all our Seamen's families in this effort to provide you with a kind word of support, acknowledgement of your important work, patience, hope and love. All the messages are sprinkled
with positive energy, care and gratitude to all of you for remaining on board and performing your duty with care during this unprecedented era.
We enjoyed working as a team to prepare these messages with your families. Most of the messages received were personalized ones, and therefore, were forwarded to their addressees. Still, we have collected some of them which were addressed to all Seamen on board and prepared this colourful collage.

Ultimately, the greatest lesson that COVID-19 can teach humanity is that we are all in this together. Remember, “Life’s roughest storms prove the strength of our anchors”.
Our thoughts and prayers remain with you, while our gratitude to all our Seamen grows bigger day by day.
The messages received were all very inspiring and touching. For this, we cannot thank you more. To close, we would like to share with you a “mantra” that was communicated to us by one of our Trainee Officers, Mr. Arun KUMAR. It is a short prayer to start your day, one that will give you strength and patience; one that will empower you.
“I am happy I am a divine soul I am a peaceful soul I am healthy
My family is united and healthy”
Keep walking through the storm. Your rainbow is waiting on the other side.

Around twenty-one centuries ago, a Roman ship was voyaging along a well-established maritime route from Asia Minor to Italy via Rhodes. After leaving Rhodes, the vessel entered a treacherous stretch of water near the island of Antikythera, which became the ship’s final resting place. There she lay for almost two millennia before being discovered by sponge divers in 1900.
Within a few years of the discovery, the majority of the artefacts brought to the surface were, in general, significant yet not unexpected finds. One item, though, was completely different from the rest. It was nothing like any other artefact recovered from a wreck before. The main bronze component that was still intact resembled a mouldy green rock. It was accompanied by smaller pieces and on closer inspection, seen to possess gears with triangular teeth along with a ring divided into degrees.

The Antikythera mechanism (Fragment A – front); visible is the largest gear in the mechanism, approximately 14 centimetres (5.5 in) in diameter. Source: Wikipedia.org

For decades the function of the recovered device remained a mystery. Although mechanisms comprising gears had been mentioned in the writings of such historical figures as Cicero, not one seemed to have survived, so there was no reference point for experts to work from. What is more, the technology implicit in the observations made of the mechanism did not become available until sixteen centuries after the sinking of the ship off Antikythera. These facts became a stumbling block for researchers until the late 1950s, when scientists at Princeton deduced that the discovery was an early computer based on mathematical gear ratios that had been purposely made to predict the positions of celestial bodies. It was a remarkable deduction and one that provided a foundation for later research into the Antikythera mechanism.
From the 1970s to the 1990s, X-rays were used to provide more information about the inner components of the mechanism. The images produced indicated that the Princeton researchers had been on the right track, but the resolution of these images was not good enough for mainstream historians to commit fully to the theory of the mechanism being an “ancient Greek computer”. On the other hand, sci-fi writers like Erich von Daniken did not hesitate to embrace the notion that it could well have come from an alien spacecraft.
In the first decade of the millennium, advances in X-ray imaging, 3D mapping technology and CT scanning techniques allowed
further, clearer penetration of the corroded exterior of the mechanism to be achieved. These improved images prompted scientists and researchers in industry to delve further into the mystery of the Antikythera mechanism. Firstly, it was determined from a metallurgical analysis and an examination of the language used (ancient Greek) on a set of instructions within the mechanism that it had been made in the first century BC. Secondly, since the writing was in two different hands, it was believed that the mechanism was most likely constructed in a workshop, perhaps in Rhodes, where Posidonius had such a facility at the time. Thirdly, despite some heated debate, it was agreed that the find was multifunctional, had been housed in a wooden box (fragments of wood had been found at the dive site) and had been worked by turning a handle at the side.
This functions identified included predicting the positions of the Sun and moon relative to the constellations of the zodiac, determining the dates at times of future lunar and solar eclipses, forecasting planetary movement and counting down the days to sporting events like the Olympics. This information was displayed on dials positioned on both the front and back of the mechanism, whose workings have been replicated on models constructed by museum curators and others, one of which is on display at the National Archaeological Museum in Athens along with the original and all the other recovered objects from the Roman ship.
As regards the watch industry’s interest in the mechanism, the research and development department at Hublot has constructed a wristwatch-size replica of the original 20cm tall device. Their replica revealed ingenious features that have not been utilized in modern watches. Lego, too, have constructed models that show how the mechanism functioned and what complex calculations it was able to perform.
The heightened interest that followed the dissemination of the mechanism’s enhanced images has led to a greater understanding of the workings of the incredible find made over a century ago. However, so many questions remain unanswered of the Antikythera mechanism, which not only had the ability to predict the future positions of several planets but also to identify these positions to an accuracy of around 2o per millennium.
Sources: www.smithsonianmag.com, www.vox.com, www.youtube.com, www.mentalfloss.com
Dear seafarers,
This is my first message to you under my new job title although it seems to me nothing has really changed in my feelings of commitment and responsibility towards you and our organization’s Safety Culture. What is very different, though, at the time I am writing this message to you are the difficulties we are all facing during this strange COVID-19 era.
In my opinion, the most unusual and serious side effect caused by this unprecedented crisis for the shipping industry has been the fact that so many seafarers onboard vessels worldwide have completed their tour of duty, but have not been able to return home.


As travel restrictions hit global economies, trade has continued thanks mostly to 1.2 million seafarers on board ships across the world. This commitment to keeping supplies of food, fuel, goods and vital medical supplies has enabled nations to focus on how to overcome the COVID-19 pandemic. Conversely, these same nations could not allow crews to safely rotate on and off ships and return home to their countries.
Since the beginning of the crisis, the well-being and safety of our seafarers has been our number one priority. At first, the fact that seafarers could not travel in order to avoid contamination seemed the safer option for them. This collage of photos from our fleet vessels shows exactly that!
However, as time passed what worried me the most were the adverse effects on the seafarers’ mental health that could
result in a reduced ability to safely perform their duties due to increasing fatigue.
Soon, that became a common realization. After 2 months of worldwide lockdown, the UN Secretary General was urged by global industrial and shipping leaders to persuade the 193 member states to act urgently so as to avoid a “humanitarian crisis” involving over 200,000 seafarers working on vessels across the globe who were unable to be relieved.
Finally, the time came for governments to gradually open their borders (and their hearts), to the world’s seafarers. More than 80% of global trade by volume is moved by maritime transport. As such, keeping the global economy alive depends on the seafarers who operate the world’s merchant fleet. For this reason, people ashore should not neglect to recognize the sacrifice made by seafarers for them.
Hopefully, by the time this new issue of Wavelength reaches our vessels, this disruption of our normality will be well on the way to becoming just a memory of an unpleasant situation never to return
Personally, I wish to thank you for your patience, courage and strength during these trying times, and for continuing to prove that seafaring is a superhero ability!
I wish you calm seas and safe voyages!


• In this industry, we spend time away from home, which puts strain on ourselves and our families.
• Building strong supportive networks helps us and our families manage when we are away and when we may need support and assistance to help us deal with difficulties.
• Accepting support from those who care about you, and will listen to you, strengthens your ability to get through life’s challenges
Dealing with a Crisis
• Be prepared and accept that all of us will experience crises or difficult circumstances of varying degrees throughout our lives.
• You can’t change the crises, but you can have an influence on how you react to them and the choices you make.
• Recognising your own reactions and asking for support from others will help you make better choices and safer decisions. When we are making decisions, we react using the two thought processes seen below:

In times of crisis, our emotional brain is the first to act: sensing danger, causing our heart rate to increase and release hormones to prepare our muscles and get us ready to run away or to fight. In some circumstances, this can be very helpful (e.g. a fire on board), but it can also block the thinking brain from working efficiently and getting perspective on the situation. It is important for us to recognize how our body makes us feel at these times and how it can affect our thinking.
• When a crisis occurs and we have to endure difficult circumstances, we can feel overwhelmed. Everyone feels this way; it is a normal reaction.
• We have to draw on experience, knowledge and support from others; we learn and grow through this.
• We cannot choose the crisis we experience, but we can choose how we react to it and the choices we make.
HOW THE 3 STATEMENTS ABOVE ARE LINKED TO SAFETY: Going through a crisis can feel overwhelming and this can have a negative effect on board.
During times of crisis, critical decisions and choices often need to be made; we have a choice as to how we react.

Using each other’s knowledge, skills and support will help you to make safe choices and get you through the crisis.
We all go through crises in our lives and they can feel overwhelming. We may not have a choice with regard to the crisis we face but we do have a choice as to how we react and the choices we make. It is important to recognize that we need to be aware of how we react and how we can draw on the support of others to make good and safe choices.

• Maintaining a hopeful outlook improves your quality of life.
• Maintaining a hopeful outlook is something that you can control by yourself with some practice.
HOW THE 2 STATEMENTS ABOVE ARE LINKED TO SAFETY:
When we encounter difficult situations, having a positive outlook helps us to look for the best solution and can protect us, our team and our vessel from damage.
Maintaining a positive attitude is about looking for solutions from different angles instead of focusing on the things that don’t go well.
During a crisis, you have a choice:
✖ You can see a problem as impossible to solve and get stuck in feelings and thoughts about negative consequences.
✔ Break the problem down, see the opportunities it presents and start working to improve the situation.
Through crises we learn and grow - “In the worst of times we can find our best selves”.
As humans, we tend to make negative assumptions. However, things may not be as bad as they look.

Welcome to the second installment of “Nostalgia”! We hope you enjoyed the first article and we are looking forward to more fascinating photos from the past that will not only bring back memories and emotions from a different era but also allow you to acknowledge the impressive progress made in all sectors of shipping with the help of technology and with the growth of the Company’s management system.
This is a special edition dedicated to our seafarers on board the vessels as this year is the 10th anniversary of the International Day of the Seafarer! It is also special because the Company is proud of a history that now spans four decades of operation. We could not have made it without you, our Seafarers who strive tirelessly to keep up the quality of work on board and maintain the high standards that the Company adheres to!
Let’s begin our trip down memory lane with the photo of this young Captain. I am sure you can recognise him. Yes, it is Captain Michail Michail on board the m/t Leni in January 1996. Leni is carrying out a standard voyage for a vessel of this size: loading gasoline and gasoil from Buenaventura to Cartagena, Colombia (for Charterers Ecopetrol). In this photo she is passing through the Panama Canal in the year Capt.
daughter was born.



The next two photos were taken in the Engine Control Room. The first (left to right) of Mr. Stratos Palaiologos, Mr. Yannis Tsiachristos and Mr Yannis Vakkas was taken aboard Panagia Armata during a drydocking in Constanta, Romania in September 2013. This photo depicts a normal drydocking day in the Engine Control Room. The second shows Mr. Stratos Palaiologos and Mr. Yannis Tsiachristos studying the machinery and electrical sections of the manuals respectively in order to deal with an issue on board Mikela P. that occurred during sea trials following drydocking at Constanta, Romania in December 2014. The photos illustrate how cooperation and brainstorming are the key to the efficient operation of the vessel!



Now, can you guess who the two young Centrofin girls on board the m/t Apanemo at Piraeus in 2003 are?
The Apanemo was a 115k coated aframax / LR2 products tanker.
The ship was built to a very high standard specification at DSME, Korea and was the company’s fourth newbuilding project at this shipyard. The ship was delivered in 2003 and was operated successfully by the Company until 2006.
Find the answer on page 19.

So, another Nostalgia section has come an end. At this point, I would like to remind you to keep sending in your photos of life on board from the old days and general oldies from around the office and other work environments to see if readers can guess who is in the photo. Please send by e-mail to contact@wavelength.gr. And please remember to include the name of the ship, the date, location and the names of any seafarers in the photo (as far as your memory allows you to do so) in order for us to use them for upcoming editions of Wavelength. Finally, I would like to thank all Seafarers on behalf of the Company for their hard work and sustained effort that has helped the Company successfully achieve so many years of operation. I would also like to encourage you to keep up the good work to ensure that our operations continue at the highest standard for many years to come!
Calm seas and safe travels,

The vast majority of stories relating to wildlife reclaiming land during the COVID-19 lockdowns have been debunked, and consequently the title above might seem to be rather far-fetched. However, this particular tale has more than a grain of truth as a leopard did indeed choose a partially dismantled tanker as a site for its lair.
The ship in question is the King Kong I, a former floating production, storage and offloading unit that operated in the Democratic Republic of the Congo for the oil and gas producer, Perenco. The big cat was able to gain access to the vessel via the gangway and selected a small, dark, enclosed space for its lair, in which the remains of dogs that the animal preyed on were discovered. Normally, the Navyug yard in Alang, Gujarat is teeming with workers, but due to the lockdown across India, the area was almost silent when the feline arrived, leaving it free to board the ship unnoticed. After around three weeks, though, a sharp-eyed watchman spotted the cat and alerted the authorities. Their response was to set a baited trap on the gangway as entering the animal’s dark lair was deemed far too risky. This plan failed because the big cat ignored the bait, preferring instead to continue hunting local canines.
Plan B was, therefore, initiated. This alternative involved darting the animal, placing it under observation and offering it the necessary treatment before releasing it back into the wild. The Rajkot forestry officials’ back-up plan went like clockwork which
Alist of possible ingredients in Ukrainian golubtsi is as follows: cabbage leaves, beef, lamb, pork, turkey, eggs, carrots, mushrooms, olive oil, butter, rice, breadcrumbs barley, dried fruit, nuts, tomatoes, sour cream, legumes, salt, garlic, vinegar and seasoning. Although this list is extensive yet probably not exhaustive, it can allow us to make three conclusions about this wonderful dish. Firstly, it is highly unlikely that no two Ukrainian families who lovingly prepare and cook it share exactly the same recipe. Secondly, the wide variety of fillings indicates that golubtsi was once a means of making use of leftovers during times of hardship. Thirdly, the number of ingredients permits a vegetarian golubtsi to be served.
One thing that the list cannot give a clue about, though, is the origins of the dish. These roots of cabbage rolls are widely believed to lie in the Middle East, from where they were taken to Eastern Europe by migrants and traders around 1500 years ago. Since then, this humble cabbage roll dish has found its way into nearly all, if not all, Ukrainian cuisine with a tomato/mushroom broth or sour cream based sauce.
As golubtsi has one of the most extensive lists of ingredients of any dish, it can both be adapted to satisfy the most discerning of palates and provide the nutrients necessary for a healthy diet. As such, cooks can prepare the tastiest fillings and sauces comprising all five food groups. What is more, even the humble

ultimately resulted in the leopard being back to roam freely further away from humans. While rescues this extreme are uncommon, human-leopard encounters are not that rare in this region as there are, according to the Gujarat forestry department, around 1400 leopards living in the state.
Unfortunately, not all encounters end without casualties. On this occasion, though, the authorities dealt with this situation efficiently and effectively by showing tolerance for the leopard, keeping humans safe from the big cat and preventing further losses to the local canine population.
Sources: www.youtube.com, www.tradewinds.com

Golubtsi showing delicious filling.
Source: www.ukrainian-recipes.com
cabbage leaves provide antioxidants together with vitamins that boost energy.
It has been said that a nation’s dish proudly reflects the character of that nation. If this holds true, and there is no evidence to the contrary in this case, then golubtsi surely bears testament to the resilience, flexibility and versatility of the Ukrainian people.
Source: www.natashakitchen.com, www.onceuponaparadigm.wordpress.com www.lajollalight.com, www.pearsoned.com
The ama or ama-san, translated as “sea women”, who number around 2000 today have a long history in Japan. First officially recorded during the Heian Period in 927 AD, the ama were mentioned in an anthology of 750 AD called the ‘Man’yoshi’. Since they have not only gained status in a patriarchal society but they have also been deemed responsible for the survival of several coastal towns and villages in Japan.
Why freediving was assigned to women is not entirely certain. One theory states that their subcutaneous fat gave them more protection against the cold than men. This may be correct, but this simple explanation detracts from the ama’s resilience and skill as they are able to hold their breath for up to two minutes while gathering seaweed and shellfish even into their 70s, 80s, and in rare cases 90s.
Once the seafaring gypsies of the Asian seas, the ancestors of the present-day ama eventually settled on specific islands and adapted their diving to the seasons. As the techniques used and the understanding of the sea’s terrain required specialist knowledge, mothers trained their daughters from when they were as young as ten. There was also support at the “amagoya”, or “ama huts”, where the divers assembled and exchanged ideas during rest periods.
An ama’s day begins early. Preparation begins at around 5 am and diving usually begins before 8 am following a request for a good catch and protection from danger. Their white suits and headscarves are also part of their ‘armoury’ against potential risk. The former are believed to keep sharks at bay, while the latter are often adorned with images that are thought to bring luck and ward off any lurking danger.
It is not unusual for a mother to dive with her daughter from a fishing boat piloted by her husband. This setup allows the two ama divers to harvest food while the patriarch fishes from the boat, making the whole operation more efficient. An ama dive session lasts for up to 1½ hours, during which time skills are tested to the limit. It is that limit which determines how fruitful the hunt will be.
In the abalone season, which lasts from April to mid-September, for example, an experienced diver can make between $400 and $600 in a 90-minute spell. However, no matter how good the ama diver is in harvesting abalone, sea cucumber, wakami seaweed or other marine bounties, it is ultimately the weather that is the deciding factor in how successful the divers are.
Although the ama are mainly known for their harvesting of seafood like their South Korean counterparts, they have been linked with pearls since the 1890s. In that decade, Kokichi Mikimoto, who was the first to cultivate pearls, bought oysters from the ama and immediately recognised their potential in the pearl business. He, therefore, set up a team of divers in Toba whose job it was to guard the area where pearls where being cultivated, to assume responsibility for the safekeeping of the oysters once the grain of sand had been seeded in them and to bring the oysters to the surface in order to harvest the pearls. Despite their contribution to Mikimoto’s lucrative global business being well documented, the ama are perhaps not given the credit they deserve for the role they played in the development of the pearl industry.
Given the ama’s long history, there have been relatively few changes in their attire. The white suits and goggles were adopted in the 19th century, while neoprene dive suits offering greater thermal protection and scuba masks have been much more recent additions. Other differences concern their emergence as a tourist




attraction and their numbers, which have dwindled from 20000 after WWII. Armed with their sharp tools called “isonomi”, they dive for a paying audience that never fails to be captivated by the ama divers’ loud whistle as they exhale then inhale at great speed when they break the surface.
The decline in ama numbers has led some to believe that the Japanese women freedivers may soon only exist for the tourist trade. Others, however, take the view that fewer divers equates to less competition and, therefore, a greater chance of securing a decent catch weather permitting. Indeed, there have been signs of a reversal in the trend to move to the city in search of alternative employment with disgruntled migrants returning to coastal settlements in order to reconnect with their ama heritage. Whatever the future holds, it appears that the cultural status of the ama is as resilient as the divers themselves.
Source: www.bbc.com/reel, www.medium.com, www.forbes.com, www.ourworld.unu.edu, www.youtube.com, en.wikipedia.org
The Sea of Japan, which is also called the East Sea, occupies an area of 377,600 square miles (978,000 sq km) off the western Pacific Ocean. The body of water, with a mean depth of 5,784 ft (1572 m) and a maximum depth of 12,276 (3742m), is located in a demi-enclosed basin that is separated from surrounding bodies by narrow straits. There are a number of ridges made up of granite, rhyolite, basalt and volcanic rock on the sea bed. These are complemented by sediments of blue mud rich in nutrients in shallower areas and red mud in deeper parts. As for the straits, these have been formed relatively recently in geological terms. The most recent of them is the Le Perouse Strait that appeared between 6000 and 11000 years ago, when it closed the route used by mammoths as evidenced by fossils found in Hokkaido.

As the waters in the Sea of Japan are relatively warm, they have an effect on climate. The above average evaporation brings in snow along the mountains on the Japanese west coast between December and March, while during the summer, the Sea of Japan is responsible for dense fog being blown in by monsoon winds. In contrast, the northern part of the Sea of Japan located off the Siberian coast is frozen in the winter months. As regards hydrology, the currents predominantly flow anti-clockwise, leading to the formation of distinct water masses. In turn, these influence the dissolved oxygen concentration, which is high and contributes to the healthy environment for fish in this body of water.
Due to the favourable conditions for aquatic life in the Sea of Japan, 900 species of crustaceans, 1000 species of fish and 26 mammalian species make it their home. It is little wonder, therefore, that fisheries are one of the main economic resources for Japan, North Korea, South Korea and Russia. Fleets from these countries have fished the waters heavily, causing a gradual depletion in fish stocks. Among the main species caught commercially are mackerel, herring, anchovies, squid, cod, shrimps, bluefin tuna, crabs and sardines. Fortunately, the rate of depletion has prompted those nations bordering the Sea of Japan to review their fishing policies. For instance, in December 2018, the Japanese made their first reform to fisheries law in 70 years with the aim of promoting long-term sustainability by imposing quota systems. The other main economic resource is mineral deposits. These include magnetite sands as well as natural gas and petroleum deposits off the Japanese coast and Sakhalin Island. One commercial activity that might be expected in the Sea of Japan is the transportation of cargoes among three of the world’s largest economies. This, however, is not the case as the vast majority of trade conducted by Japan, South Korea and Russia is with countries that do not border the Sea of Japan. For example, the primary Russian ports off Vladivostok and Nakhodka are on trade routes with other Russian ports and non-Korean or Japanese international destinations respectively. As a result, the volume of cargo traffic is relatively low in comparison to the production capacities in the region.


Source: www.jamstec.go.jp
Another interesting point regarding the Sea of Japan is the degree of research conducted there. Japanese, Russian, American and British scientists have been involved in studying such phenomena as seismic activity, tidal flows and surface temperature changes, all of which have served to further our oceanographic knowledge.
Sources: www.britannica.com, www.spf.org, www.nippon.com, www.wikipedia.org
1. Make the names of two countries using all the letters in the following sentence: ALI TAUNTS MIA
2. The chemical symbols for argon, bromine, calcium and neon can be rearranged to form the name of a capital city. What is the name of the city?
3. My name rhymes with part of a tree, but on a ship is where you’ll find me. My name is what the Japanese do when they meet, and I’m spelt like something that keeps hair neat. What am I?
4. Which four-letter word can be used to complete the following words?
AD _ _ _ _, E _ _ _ _UAL, _ _ _ _ URE and PRE _ _ _ _ ION.
5. A man has three times as much money as his daughter. He gives her €30 and now she has seven times as much as he does. How much money did they have at first?
1. What was the fifth SS Rotterdam renamed after being purchased by Premier Cruises in 1997?
A. Bosch B. Van Gogh C. Rembrandt D. Vermeer
6. Which five-letter word can be placed after the words to the left and before the words to the right? GOLD GANG BLOCK _ _ _ _ _ REACTION SUPPLY LINK
7. In 5 steps, change the word SHOT to GOAL by changing one letter at a time to form intermediate words.
8. A car has travelled 90 miles at 60 miles per hour. The tank holds 14 gallons of fuel and the car does 45 miles per gallon. Unfortunately, there is a leak in the tank and at the end of the journey the tank has only 2 gallons left. How much fuel has the tank leaked per hour if the driver started out with half a tank of fuel?

2. Which marine species is a significant export crop in the Bay of Bengal?
A. mackerel B. tuna C. lobster D. snapper
3. Off the coast of which country was the wreck of HMS Urge discovered in 2019?
A. Lebanon B. Cyprus C. Libya D. Malta
4. Which of the following can cause an increase in the viscosity of lubricating oil?
A. distillate fuel contamination B. oil oxidation
C. coolant ingress D. light grade oil contamination
5. Radar is an acronym. What does the ‘d’ in radar stand for?
A. detection B. determining C. distance D. direction
6. Which of the following vessels accompanied the Santa Maria on her 1492 transatlantic voyage?
A. Pinta B. Julia C. Augusta D. La Manuela
7. What colour is crystalline sulphur at room temperature?
A. green B. blue C. black D. yellow
8. On what day of the week is World Maritime Day observed?
A. Tuesday B. Wednesday C. Thursday D. Friday
9. Which of the following is the southernmost port?
A. Wellington, NZ B. Port Elizabeth, SA C. Punta Arenas, Chile D. Ushuaia, Argentina
10. Copper is used electrolytically to prevent biofouling on ships. What is the chemical symbol for copper?
A. Co B. Cu C. Cr D. Ce
Find a keyword associated with at least one article in this issue by solving the clues and rearranging the letters in the boxes with black borders.
1. Name of strait in Sea of Japan (2,7)
2. Piracy hotspot (4,2,6)
3. Historic vessel now in Victoria BC (7)
4. Hazardous material (8)
5. He had a workshop on Rhodes
6. Part of brain that reacts to a crisis first (9)
7. Energy gained from messages to our Seafarers (8)
Hint: a prerequisite for resilience

The discovery of Gokstad, a ninth-century Viking ship, prompted the construction of a replica with the aim of showing that European visitors could have reached America well before Colombus did. More specifically, a 78ft (24m) long 17ft (5.2m) wide vessel to be called Viking was built at R ødsvernen ship yard in Sandefjord to lend weight to the theory of Lief Ericsson having discovered the New World. What is more, Viking’s voyage was timed to coincide with the commemoration of the discovery of America by Columbus at the World’s Columbian Exposition in Chicago in 1893.

The Viking at the World's Columbian Exposition in Chicago, 1893. Source: www.wikipedia.org
Under the command of Captain Magnus Andersen, whose crew was from Bergen, Viking sailed up the Norwegian coast before crossing to America. The dramatic voyage saw the ship
In 1901, John Voss purchased a 38-foot red cedar Nootkan war canoe for $80 worth of silver. Together with his partner, Norman Luxton, in their proposed maritime venture, Voss had the dugout converted into a schooner with 230sq ft (21m2) of sail. Once the conversion had been completed, Captain Voss left Oak Bay harbour in British Columbia with Luxton and his crew bound for the Indian Ocean via Australia. After five months at sea, Tilikum hit a reef and Norman Luxton was thrown overboard. Although he suffered lacerations, he was able to resume his duties as master until Suva, Fiji, where he was forced to leave the expedition. On the next leg of the voyage to Australia, the
While doing research in the Marquesas Islands in 1937, Thor Heyerdal developed an ethnological theory that the first settlers in Polynesia came from pre-Incan Peru via Easter Island on rafts around 500 AD. Although such a voyage was deemed impossible, Heyerdal was spurred on to test his theory by both his belief in it and the inspiration he got from the voyages of Viking and Tilikum.
being lifted clear of the waves on several occasions. After reaching Newfoundland, Andersen sailed up the Hudson River, and then on to Chicago via the Erie Canal and the Great Lakes. On the day Viking reached the windy city, attendance at the Exposition doubled.
Following a successful appearance in Chicago, Viking sailed to New Orleans, where she spent a winter. In 1920, back in Chicago restoration work was carried out. However, there followed a long period of neglect. Fortunately, a non-profit organisation called Friends of the Viking Ship has stepped in and now Viking stands at Good Templar Park in Illinois with a brighter future.
Sources: www.vikingship.us, www.oldsaltblog.com

binnacle and compass were lost, leaving Voss to navigate by ancient methods. Tilikum arrived in Melbourne on 13th March 1902. With the help of Australian yachtsmen, Voss made repairs and fitted new sails so as to be able to reach England.
In September 1904, Tilikum beached in the River Thames. The converted schooner changed hands several times in the English capital prior to being taken to Victoria, British Columbia, where she was restored in 1936. Today, Tilikum can be seen at the Ogden Point cruise ship terminal in Victoria BC.
Source: en.wikipedia.org

Heyerdal’s raft comprised 9 balsawood logs lashed together with hemp ropes and a bamboo cabin covered with banana leaves. The 30ft x 15 (9m x 4.5m) craft was christened Kon-Tiki after the Peruvian sun god prior to leaving Callao on 25th April 1947 with six men and a talking green parrot aboard.
Expedition across the Pacific 1947
Sources: www.kon-tiki.no, www.history.com, www.youtube.com
deck together with other species of fish attracted by the seaweed and shellfish growing under Kon-Tiki provided most of the sustenance required. However, not all fish were welcome as visitors like the great white sharks that caused the crew to become extremely anxious.
On the 93rd day, palm trees were sighted but the prevailing winds and currents made it impossible to reach land. A week later, a reef was spotted, but the weather caused chaos, snapping the mast and forcing the crew to hold on for dear life. Eventually, after 101 days at sea, Kon-Tiki arrived at Roroia atoll in the Tuamoto Archipelago near Tahiti, 4300 miles from Callao.
The relatively large sail helped trade winds push the raft across the water. A sail paddle and steering oar allowed the crew to manoeuvre the craft through waves that often dwarfed the small vessel, while the sun, stars, currents and winds provided navigational data. As for food, flying fish that landed on the
Just as Thor Heyerdal had been inspired by earlier voyages, he inspired others to replicate his voyage, which was recorded in a best-selling book and two films shot in 1951 and 2012. Today, the world famous raft is on display at the Kon-Tiki Musuem in Oslo.
Sources: www.kon-tiki.no, www.history.com, www.youtube.com