Work Samples 2024_Condensed

Page 1


“‘Secret Sky’ is the structural reworking of a barn to allow the sky to enter and pass through the building. By day, the barn is noticeable for its patterning and intricacy and a massive cut with light pouring through it. At night, the work glows from within acting as a lantern in the landscape and casting long shadows on the ground that surrounds it, giving it back to the sky.” (Catie Newell)

This project was completed while working for Alibi Studio. Entering the project as most of the structural work was completed, I worked in a team with Catie Newell, Charlie O’Geen, and Julia Jeffs

to help push this project to completion. Some of my responsibilities included working through the design of the exterior/interior salvaged wood cladding, material selection, detailing, and construction.

‘Secret Sky’ is located in Kinde, Michigan and is the third installment in an ongoing project that aims to preserve and transform old barns in the Port Austin area into large scale works of architecture and art.

Alibi Studio
Newell
2019
Detailing, Construction

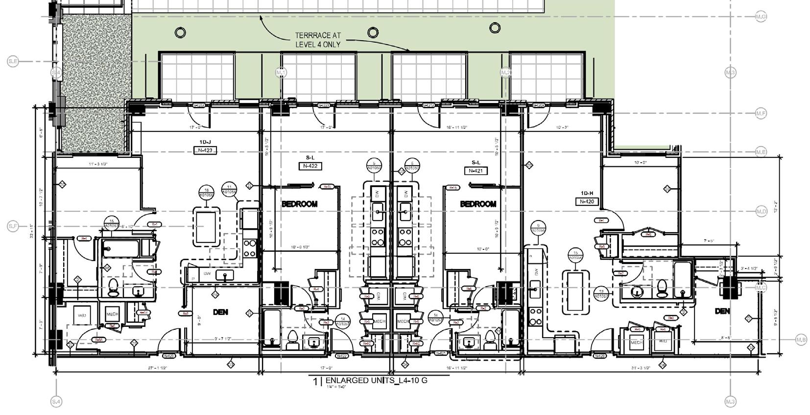
Parcel B - Mixed Use

Parcel B is a mixed use, multifamily, development located in a rapidly growing neighborhood in South-West DC. The name Parcel B comes from a remaining parcel of land previously owned by the adjacent DC United soccer stadium (Audi Field).

The 508,000 SF development is designed to achieve LEED Gold and includes 334 market rate units (including 10% affordable), 111 affordable senior housing units, Veterans of America headquarters office, ground level retail, a bowling alley / concert venue, and 1 acre public park space.

Coming onto the project just before the design development phase officially kicked off and seeing it through Issue for Construction, I was responsible for design and coordination efforts alongside a large team of consultants and collaborators.

My contributions included MEP coordination, Market Rate Interiors coordination, unit design (Type A, Type B, Accessible), structural coordination, exterior penthouse amenity design, details, and construction documents.

Buzzard Point, Washington DC

STUDIOS, MKSK, Hickok Cole 2025 Anticipated Construction Unit Design, Client & Consultant Coordination, Construction Documents

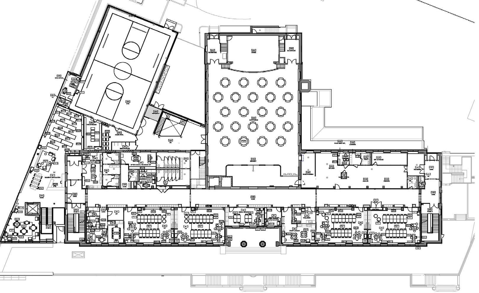
Oyster Adams Middle School & Elementary

The modernization and addition to an existing, historic, 4-8-grade DC Public School presented unconventional challenges including a total site-grade difference of 27’ between the new entry and rear of the site in addition to a cavernous basement which at one time served as a cold war bomb shelter.

The project included a gut renovation of the original historic building and a program requiring a 30% increase in classroom/admin space, a new accessible entry, library, and gym, while maintaining existing elements important to the parent/student community, such as the outdoor track and soccer field.

The design of the school was conducted through an iterative process using study models and diagrams which also served to convey the design to multiple

stake-holders including parents, teachers, Advisory Neighborhood Commission, Historic Preservation Office, the Commission of Fine Arts, and DCPS.

The program and site constraints presented challenging structural design coordination and waterproofing strategies. Existing walls and columns required extensive underpinning. Lagging was added at the perimeter of the addition in order to lay back earth from the adjacent site. An additional floor and dormer was added to the original 3-story building making use of previously unused space in the attic.

My role on the project included design, graphic & presentation support, consultant coordination, wall section, detail, and envelope development.

Circle, Washington DC

2023 - 2025 (Currently Under Construction)

Design, Physical Models, Presentation, Coordination, Construction Documents

Renderings By Francis Prado

Kenilworth Swing School Addition

The Kenilworth Swing School Addition is a upgrade and addition to an existing DCPS site. Originally built in 1932 the school 3 additional significant phases and modifications over the course of its lifetime. In the previous itteration of it’s use the school was decommissioned and annexed for an adaptive reuse community center and pool.

Choosing to renew the buildings purpose as swing school, DCPS engaged Studio MB to update the school’s lobby/welcome center and design the addition of a permanent multi-use Gymnasium/ Cafeteria.

The logistical challenges on this project included working with an arborist to preserve 3 heritage trees in close proximity to the addition, the relocation of a school playground, phasing stages of construction including the demolition of temporary cafeteria structure, and coordinating necessary electrical upgrades without disturbing normal school operations.

2022 - 2025 (Currently Under Construction)

Design Development, Consultant Coordination, Permit Drawings

Context Plan
Phasing plan
Site Plan

Village Innovation & Incubation Lab

‘The Village Innovation and Incubation Lab (ViiL) is designed to provide marginalized children in Puducherry, India with programming that incorporates both emerging technology and human rights. This includes those from the indigenous communities and surrounding tribes. This project provides a safe, inclusive, and participative space for young people and their allies to realize their full potential through innovative leadership models in alignment with TYCL International’s mission.

Surrounding the central shared space are technology rooms that are equipped with state-of-the-art modern technology for experimental learning, a

multi-purpose meeting hall with a kitchen, staff offices, and support spaces. The space is designed to provide 100 children access to a variety of learning environments.’ - ACU

Delivered up to the end of Schematic Design, this project was intended to produce plans, renderings, and building strategy to help the client approach potential donors for funding.

Mzuzu International Academy Sports Hall

‘Located in Northern Malawi, Mzuzu International Academy is an internationally-accredited secondary school that provides a private co-educational day school and boarding school for students aged 4 to 16 for families in the region.

The new Sports Hall will provide the Academy the ability to host large events of 500 people by the UN and African Union in the Northern Provence of the country while on a day-to-day basis providing students a variety of sports activities, and indoor meeting and classroom spaces.

The building is designed primarily using local materials with pre-fabricated portions providing cost-efficient design. The structure is naturally ventilated and includes overhangs and passive shading to provide relief in both the rainy season and its hot dry summers.’ - ACU

In addition to the sports hall program, outdoor gathering spaces and arts education spaces were built into the program as well. Delivered through Design Development, the project was handed over to a partnered Architect of record local to the region.

Catholic Charities Education Center

‘The new 35,000 sf education center in Washington, DC co-locates a non-public day school for children with disabilities (ages 6 – 22) and a child development center for young children with and without developmental disabilities.

With a total capacity of 120 students and 34 faculty members, the new structure which replaces an antiquated 1950’s era facility locates the CDC and shared spaces on the ground floor and a nonpublic day school on the second floor. Type

Professional Fort Totten, Washington DC

A Complete Unknown 2021-2025

The design provides children with a state-of-theart therapeutic learning environment centered around a protected courtyard. An internal ramp connecting the ground and second floors acts as a strong architectural statement while also providing an inclusive way for students and faculty to move through the space.’ - ACU

Schematic Design, Design Development

Involvement

Schematic Design, Design Development

During the Jewish Holiday of Sukkot traditional Sukkahs act as temporary shelters for human inhabitants to rest, share meals, and sleep. ‘Thank U, Nest’ extends this space to our local and migrating avian friends.

Centered around the theme of welcoming the stranger, ‘Thank U, Nest’ encourages visitors to consider how we can begin to undo the harm caused by urban development to local animal habitats.

Our intention was to educate visitors about the damage caused to animal habitats by human

activity and encourage them to play a role in creating more opportunities for human/animal cohabitation in their own lives.

My role in this project included research, design, project management, shop drawings, fabrication, and installation.

‘Thank U, Nest’ was designed and built for Sukkah City x DC in partnership with the National Building Museum and the Capital Jewish Museum. On display on the National Building Museum’s West Lawn from 9/19/21 to 10/12/21.

Turn static files into dynamic content formats.

Create a flipbook
Issuu converts static files into: digital portfolios, online yearbooks, online catalogs, digital photo albums and more. Sign up and create your flipbook.
Work Samples 2024_Condensed by maksimdrapey - Issuu