Work Samples 2024_Full

Page 1


“‘Secret Sky’ is the structural reworking of a barn to allow the sky to enter and pass through the building. By day, the barn is noticeable for its patterning and intricacy and a massive cut with light pouring through it. At night, the work glows from within acting as a lantern in the landscape and casting long shadows on the ground that surrounds it, giving it back to the sky.” (Catie Newell)

This project was completed while working for Alibi Studio. Entering the project as most of the structural work was completed, I worked in a team with Catie Newell, Charlie O’Geen, and Julia Jeffs

to help push this project to completion. Some of my responsibilities included working through the design of the exterior/interior salvaged wood cladding, material selection, detailing, and construction.

‘Secret Sky’ is located in Kinde, Michigan and is the third installment in an ongoing project that aims to preserve and transform old barns in the Port Austin area into large scale works of architecture and art.

Alibi Studio
Newell
2019
Detailing, Construction

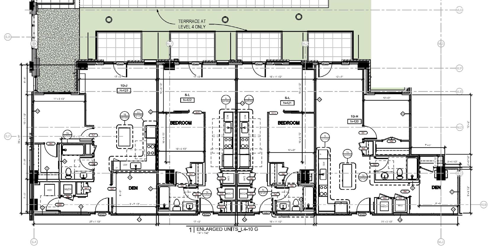
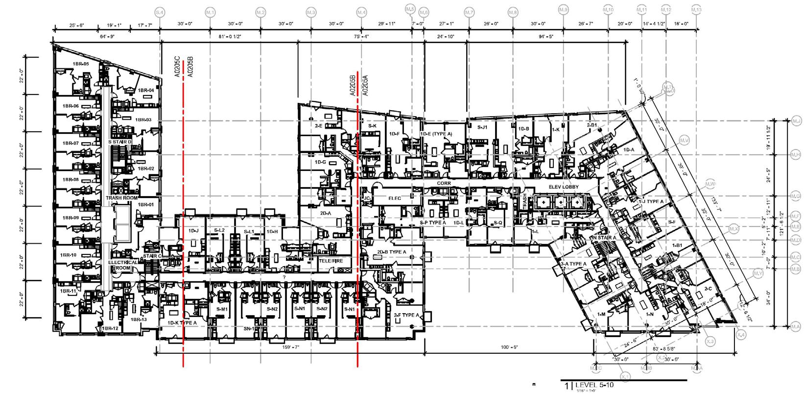
Parcel B - Mixed Use

Parcel B is a mixed use, multifamily, development located in a rapidly growing neighborhood in South-West DC. The name Parcel B comes from a remaining parcel of land previously owned by the adjacent DC United soccer stadium (Audi Field).

The 508,000 SF development is designed to achieve LEED Gold and includes 334 market rate units (including 10% affordable), 111 affordable senior housing units, Veterans of America headquarters office, ground level retail, a bowling alley / concert venue, and 1 acre public park space.

Coming onto the project just before the design development phase officially kicked off and seeing it through Issue for Construction, I was responsible for design and coordination efforts alongside a large team of consultants and collaborators.

My contributions included MEP coordination, Market Rate Interiors coordination, unit design (Type A, Type B, Accessible), structural coordination, exterior penthouse amenity design, details, and construction documents.

Point, Washington DC

STUDIOS, MKSK, Hickok Cole 2025 Anticipated Construction Unit Design, Client & Consultant Coordination, Construction Documents

Enlarged
Reference Plan - Typical Floor Plan Market Rate and Senior Affordable Units
Enlarged Unit Plan Market Rate Penthouse Units

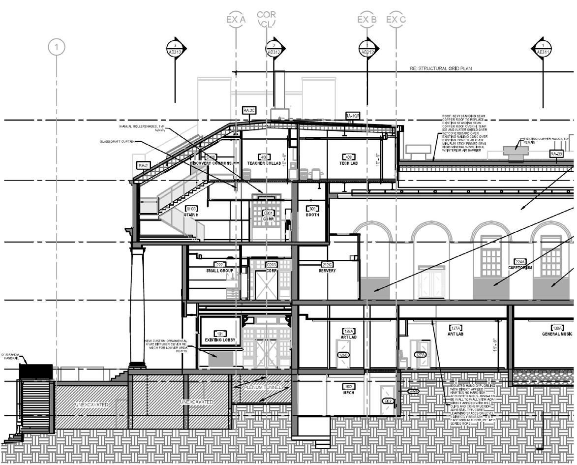
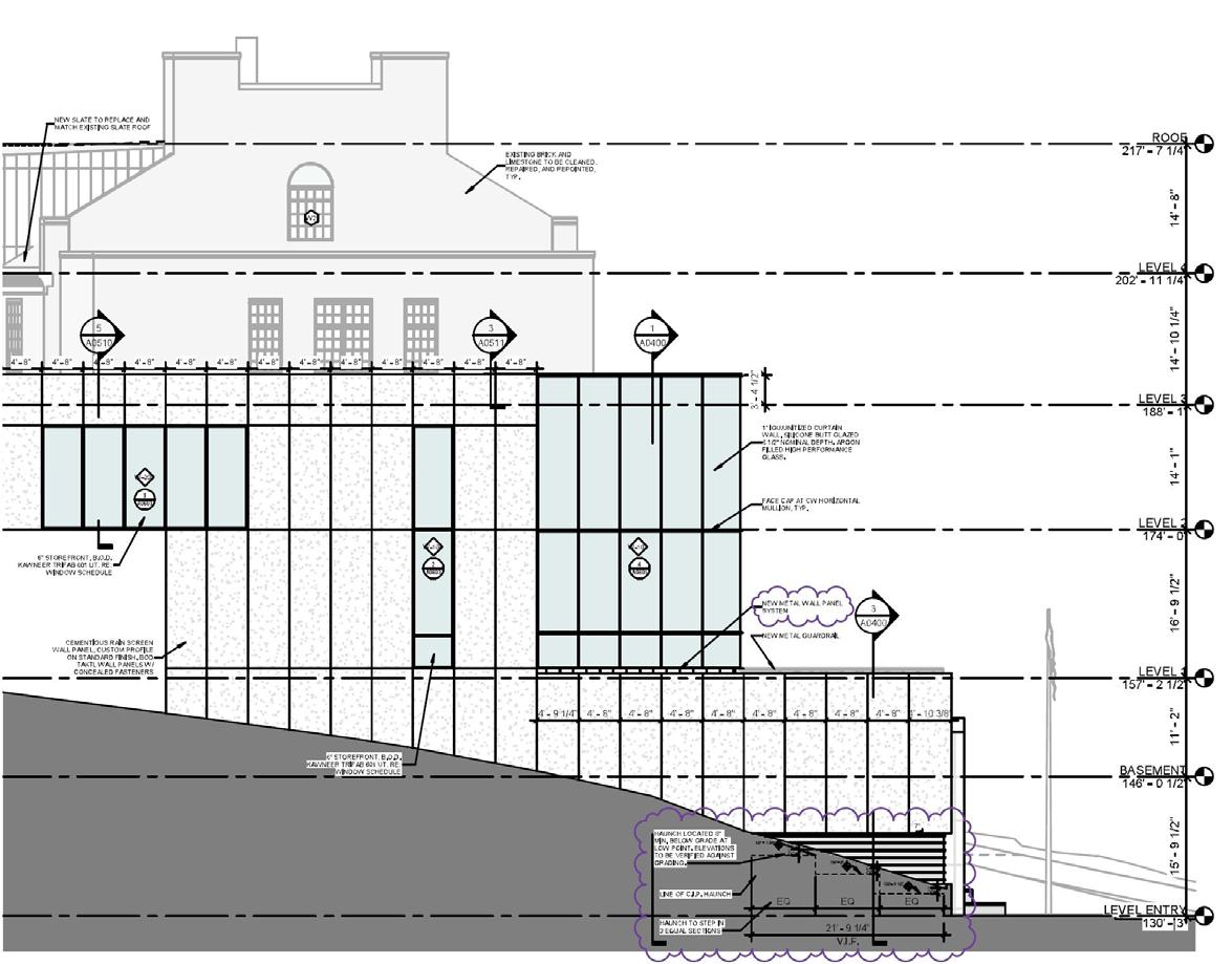
Oyster Adams Middle School & Elementary

The modernization and addition to an existing, historic, 4-8-grade DC Public School presented unconventional challenges including a total site-grade difference of 27’ between the new entry and rear of the site in addition to a cavernous basement which at one time served as a cold war bomb shelter.

The project included a gut renovation of the original historic building and a program requiring a 30% increase in classroom/admin space, a new accessible entry, library, and gym, while maintaining existing elements important to the parent/student community, such as the outdoor track and soccer field.

The design of the school was conducted through an iterative process using study models and diagrams which also served to convey the design to multiple

stake-holders including parents, teachers, Advisory Neighborhood Commission, Historic Preservation Office, the Commission of Fine Arts, and DCPS.

The program and site constraints presented challenging structural design coordination and waterproofing strategies. Existing walls and columns required extensive underpinning. Lagging was added at the perimeter of the addition in order to lay back earth from the adjacent site. An additional floor and dormer was added to the original 3-story building making use of previously unused space in the attic.

My role on the project included design, graphic & presentation support, consultant coordination, wall section, detail, and envelope development.

Circle, Washington DC

MB

2023 - 2025 (Currently Under Construction)

Design, Physical Models, Presentation, Coordination, Construction Documents

Renderings By Francis Prado
Oyster Adams
Elevation + Wall Section Library addition and terrace
Building Section + Wall Section Through Original Historic Building

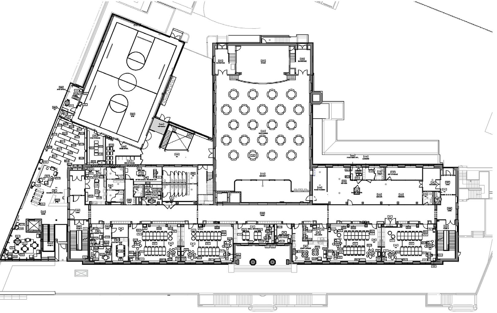
Kenilworth Swing School Addition

The Kenilworth Swing School Addition is a upgrade and addition to an existing DCPS site. Originally built in 1932 the school 3 additional significant phases and modifications over the course of its lifetime. In the previous itteration of it’s use the school was decommissioned and annexed for an adaptive reuse community center and pool.

Choosing to renew the buildings purpose as swing school, DCPS engaged Studio MB to update the school’s lobby/welcome center and design the addition of a permanent multi-use Gymnasium/ Cafeteria.

The logistical challenges on this project included working with an arborist to preserve 3 heritage trees in close proximity to the addition, the relocation of a school playground, phasing stages of construction including the demolition of temporary cafeteria structure, and coordinating necessary electrical upgrades without disturbing normal school operations.

2022 - 2025 (Currently Under Construction)

Design Development, Consultant Coordination, Permit Drawings

Context Plan
Phasing plan
Site Plan

Village Innovation & Incubation Lab

‘The Village Innovation and Incubation Lab (ViiL) is designed to provide marginalized children in Puducherry, India with programming that incorporates both emerging technology and human rights. This includes those from the indigenous communities and surrounding tribes. This project provides a safe, inclusive, and participative space for young people and their allies to realize their full potential through innovative leadership models in alignment with TYCL International’s mission.

Surrounding the central shared space are technology rooms that are equipped with state-of-the-art modern technology for experimental learning, a

multi-purpose meeting hall with a kitchen, staff offices, and support spaces. The space is designed to provide 100 children access to a variety of learning environments.’ - ACU

Delivered up to the end of Schematic Design, this project was intended to produce plans, renderings, and building strategy to help the client approach potential donors for funding.

Mzuzu International Academy Sports Hall

‘Located in Northern Malawi, Mzuzu International Academy is an internationally-accredited secondary school that provides a private co-educational day school and boarding school for students aged 4 to 16 for families in the region.

The new Sports Hall will provide the Academy the ability to host large events of 500 people by the UN and African Union in the Northern Provence of the country while on a day-to-day basis providing students a variety of sports activities, and indoor meeting and classroom spaces.

The building is designed primarily using local materials with pre-fabricated portions providing cost-efficient design. The structure is naturally ventilated and includes overhangs and passive shading to provide relief in both the rainy season and its hot dry summers.’ - ACU

In addition to the sports hall program, outdoor gathering spaces and arts education spaces were built into the program as well. Delivered through Design Development, the project was handed over to a partnered Architect of record local to the region.

Catholic Charities Education Center

‘The new 35,000 sf education center in Washington, DC co-locates a non-public day school for children with disabilities (ages 6 – 22) and a child development center for young children with and without developmental disabilities.

With a total capacity of 120 students and 34 faculty members, the new structure which replaces an antiquated 1950’s era facility locates the CDC and shared spaces on the ground floor and a nonpublic day school on the second floor. Type

Professional Fort Totten, Washington DC

A Complete Unknown 2021-2025

The design provides children with a state-of-theart therapeutic learning environment centered around a protected courtyard. An internal ramp connecting the ground and second floors acts as a strong architectural statement while also providing an inclusive way for students and faculty to move through the space.’ - ACU

Schematic Design, Design Development

Involvement

Schematic Design, Design Development

Party Animals!

‘Party Animals!’ explores the intersection between co-housing, permaculture, and a diversity of community players’ needs. Located on a site directly adjacent to the Dequindre Cut: a park in Detroit, MI.

The massing for the project is based on decentralized co-housing. This model allowed us to accommodate dwellings for humans, a variety of gardening typologies, and dwellings for animals in clusters gathered around steel and glass winter garden structures which serve as central vertical circulation. These vertical circulation towers

Type

Team

Course

Title

Instructor

Date

offer communal places in which residents can intermingle, tend to plants, and let their pets spend time outside their units during the colder months.

Featured in the 2020 Taubman College Student Show.

My responsibilities for this project included research specifically related to site design and agriculture, as well as preparation of plans, sections, elevations, and perspectives.

Group/Academic

Maksim Drapey, Maggie Cochrane, Valeria De Jong Systems Studio

Jonathan Rule + Kathie Velakov

Fall 2019

Adaptive Acoustic

‘Adaptive Acoustic’ is a collaborative project aimed at exploring the cross disciplinary possibilities between architecture and artificial intelligence. This project specifically focuses on the sound qualities and architectural design of concert halls.

We began by considering how visual appeal in architectural design may overshadow other qualities through which architecture may be experienced. One such undervalued and often overlooked quality is sound. With this project, we sought to explore the power of sound within the spaces we design.

Still in its early stages in terms of devising a complete acoustic/architectural solution for concert halls and acoustic music spaces, we found our AIdriven platform to be particularly intriguing for early stages of concert hall design.

The project exposed us to a series of unexpected acoustic forms that we may never have considered otherwise. The possible sounds and qualities of these spaces captivate, inspire us, and have the potential to further connect architecture to an evolving culture of music, musical performance, and audience experience.

Yubei Song, Yiying Tang, Alexa Carlson (Programmer)

Thesis - Architecture + Artificial Intelligence

Matias del Campo + Sandra Maninger Spring 2020 www.adaptiveacoustic.com

Our goal was to create a platform for architectural/ acoustic experimentation. Based on an initial data set of 2000 concert hall interiors, we trained a custom neural network to generate its own interpretation of acoustic spaces by adapting simple 3D volumes into acoustic forms.

Choices

Our site selection intentionally deals with different volumetric constraints in order to see how the neural network will perform in the creation of acoustic forms in unusual or difficult spaces.

Result Matrix 44 selected result models from the Graph Convolutional Neural Network. 22 of which are generated from the

and

Parameter Diagram

14 influencing factor for our Graph CNN. This diagram shows different influences and experiment results.

Parameter Diagram Using a control variate method we rank the factors impacting the results of our Graph CNN: Mesh form, mesh count and volume have the greatest influences. Silhouette image, height, width, length to width ratio, and height to width ratio have the second greatest impact. Camera angle also affects the outcome to some extent. Seat count, reverberation time, acoustical absorption area, volume per seat and absorption coefficient have the smallest influence on the output mesh, as the slight differences are difficult to pick up right away.

Simulation Matrix 44 results from Ecotect’s acoustic simulation software. The performance of sound waves is visualized through simulated particles. A range of successful and unsuccessful results can be seen, demonstrating how sound travels within the forms generated by our Graph Convolutional Neural Network.

Style Transfer We used an AI-driven style transfer technique to combine sections from existing concert halls with sections from our AI-generated forms to project an additional layer of information that would help us imagine what the interiors of our newly generated concert halls may begin to look like.

Interior Rendering An interior visualization of a selected result from our large site.
Interior Rendering An interior visualization of a selected result from our small site.

During the Jewish Holiday of Sukkot traditional Sukkahs act as temporary shelters for human inhabitants to rest, share meals, and sleep. ‘Thank U, Nest’ extends this space to our local and migrating avian friends.

Centered around the theme of welcoming the stranger, ‘Thank U, Nest’ encourages visitors to consider how we can begin to undo the harm caused by urban development to local animal habitats.

Our intention was to educate visitors about the damage caused to animal habitats by human

activity and encourage them to play a role in creating more opportunities for human/animal cohabitation in their own lives.

My role in this project included research, design, project management, shop drawings, fabrication, and installation.

‘Thank U, Nest’ was designed and built for Sukkah City x DC in partnership with the National Building Museum and the Capital Jewish Museum. On display on the National Building Museum’s West Lawn from 9/19/21 to 10/12/21.

The ‘Thin Series’ is a collection of tables and chairs so spare that they look as though they might collapse - but don’t.

At first glance, the furniture looks so delicate that you may be apprehensive of breaking it. The pieces ask participants for a little bit of trust; that something won’t bend, break, or collapse under a persons weight. Once planted, you find the material to be surprisingly strong!

Part of the intention behind the ‘Thin Series’ was to push the limits of the material while exploring surreal and playful anthropomorphic forms.

Design, Fabrication

Final products included a variety of different colors and finishes - delving into experiments with tempering metal, patina processes, as well as mirrorizing, and powder coating.

Exhibited for Sight Unseen during NYCxDESIGN 2017

My role in the project included material testing, fabrication, finish work, as well as assisting with prototyping and design.

Composed and Photographed by Grace Hartnett
Patina Process From top left to right and bottom left to right, the different stages of patina used on a steel circular cut-out for the ‘Thin Chair’. A chemical process etches patina into the material allowing for a different quality of finish at different intervals in the process.

Turn static files into dynamic content formats.

Create a flipbook
Issuu converts static files into: digital portfolios, online yearbooks, online catalogs, digital photo albums and more. Sign up and create your flipbook.
Work Samples 2024_Full by maksimdrapey - Issuu