Skip to main content

ICONIC HOUSE m.kassab

Page 1

MOHAMED KASSAB PORTFOLIO

Mohamed Kassab-@00672327 ARCHITECTURE

ICONIC HOUSE

ICONIC HOUSE

PAGE 6- SKETCHES

PAGE 9- ELEVATIONS

PAGE 12 AXONAMETRIC

PAGE 17- COLLAGES

PAGE 20- MODELS

PAGE 22- HOUSE DESIGN PROPOSAL

PAGE 26- PRECEDENCE

PAGE 30- SITE ANALYSIS

CONTENTS PAGE

Location:

The house is located at 470 West Vista Chino, Palm Springs, California.

Concept:

This vacation home was designed to emphasize the desert landscape and its harsh climate.

Space/design:

The Kaufmann House distils space in the silver-plated horizontal planes that rest atop transparent glass panes.

The unique sharp vertical feature is the chimney located next to the “public square”, as Neutra called it.

one wing of the house sits on an east-west axis, and the other sits perpendicular or to the cardinal directions to expand the areas of residence.

SKETCHES

ELEVATIONS

CAD PLAN

AXONOMETRIC

SKETCH
CAD

SECTION

SECTIONAL PERSPECTIVE

COLLAGES

MODEL

HOUSE DESIGN PROPOSAL

PRECEDENCE

Edgar J. Kaufmann Sr. created Kaufmann House as a getaway. This home's architecture is unique since the architect used glass and metal to make it feel airy and cosy. It is divided into five sections, however only one of them has a second floor. Views of Palm Springs' surrounds are made possible by the glass windows and open rooms. To access the second floor, the architect placed stairs on the exterior which is rarely seen as usually to access the second floor of any house the stairs are always placed on the inside. The owner wanted to build a house that could withstand the hot temperature and keep it from entering the house, thus the colours work well together because they make the house feel cool. The way the stairs are set and designed to access the second floor is different and it would make any design stand out. Glass windows in the bedroom allow the owner to wake to the view of palm springs while keeping out the heat of the desert.

CAD Architect: Richard Neutra
Palm Springs California Kaufmann House

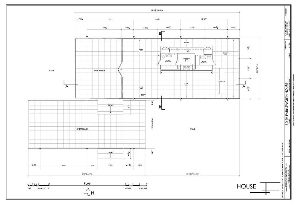
Plano, Illinois Farnworth House

Architect: Ludwig Mies van der Rohe

It was developed as a result of the client's modern architecture and her need for a calm setting surrounded by nature. It was created in the years 1945 and 1951. It was built as a one-room getaway for weekends in a scenic setting; it is in Plano, Illinois. Its 140 square metre building is acknowledged as having an international architectural style. The structure features a central core that houses two bathrooms and, on the north side, a kitchen with a stainlesssteel countertop. On the south side, it has a fireplace as well. The house was constructed with glass walls that welcome nature in and are delicately attached to the forest floor. In a sea of midcentury modernism, this structure stood out because of its simplicity, attention to detail, and careful selection of materials. The simplicity is what makes this house special as the architect used simple colours also the size of the house is suitable for someone who travels a lot as its easy to move around in and the rooms are not far apart.

Le Corbusier built the Villa Savoye in 1931. It was constructed as a weekend home for the Savoye family. It was built as an international modernist villa. It is one of the most significant buildings of the 20th century since it significantly influenced the global modernism movement. The Savoye family abandoned Villa Savoye because they could no longer afford it after spending too much money on its construction. Le Corbusier painted the exterior of the house white in order to accomplish his goal of a machine-like design. It uses reinforced concrete, which at the time was unusual because it was often utilised for bridges, factories, warehouses, and highways. The design of Villa Savoye is simple as it uses blocks and round shapes to make it stand out. The roof can be used to design an extra room.

Architect: Le Corbusier Poissy, France Villa Savoye

SITE ANALYSIS

= WATER

=VEGETATION

= HOUSING

=PAVEMENT/ ACCESS TO THE HOUSE

= ROADS/ACCESS TO THE HOUSE

= COMMERCIAL HOUSING

Sunlight In the spring 10 March 2023

Sunlight In the Summer 17 June

Sunlight In the Autumn 13 September 2023

Sunlight In the Winter 13 December 2024

2.7 miles

1 2 3 4 5
Site Pictures
1 2 3 4 5
ACTIVITIES NEAR THE SITE
SOUND

THANK YOU

Turn static files into dynamic content formats.

Create a flipbook