TALLER 5B-ENTREGA 30 NOV-GRUPO 1.2

Page 1

APA107B DISEÑO ARQUITECTÓNICO 5B PRIMERA ETAPA:INVESTIGACIÓN PAMPA DE LOS PERROS GRUPO 1 Aguilar Aymachoque Rosario Aquise Luque Luz Deysi Cochachin Florecin Jhon Brandon Cuadros Claro Marko Padilla Suazo Virginia Pozada Ramirez Otto Alexander Quispe Palomino Adiel Ramos de la Cruz Bryan Alexander Venero Lobatón Irving Vidal Chávez Esther INTEGRANTES CÁTEDRA Msc. Arq. Robinson C. Ortiz Agama Arq. Carmen Florelí Cárdenas Flores Arq. Juan Luis Palacios Rojas Arq. Luis Enrique Morales Delgado Arq. Alexey Carrasco Escárcena VENTANILLA, CALLAO,PERÚ
APA107B TALLER DE DISEÑO 5B 2022-2 L2 PAMPA DE LOS PERROS DIAGNÓSTICO CÁTEDRA ●Msc. Arq. Robinson Ortiz Agama ● Arq. Alexey Carrasco ●Arq. Carmen Cárdenas Flores ●Arq. Luis Morales ●Arq. Juan Palacios Rojas ●Msc. Arq. Jorge Zaldívar Suárez ALUMNOS Aguilar Aymachoque Rosario Aquise Luque Luz Deysi Cochachin Florecin Jhon Brandon Cuadros Claro Marko Padilla Suazo Virginia Pozada Ramirez Otto Alexander Quispe Palomino Adiel Ramos de la Cruz Bryan Alexander Venero Lobatón Irving Vidal Chávez Esther G1 1.ESTUDIO TÉCNICO
APA107B TALLER DE DISEÑO 5B 2022-2 L3 PAMPA DE LOS PERROS DIAGNÓSTICO CÁTEDRA ●Msc. Arq. Robinson Ortiz Agama ● Arq. Alexey Carrasco ●Arq. Carmen Cárdenas Flores ●Arq. Luis Morales ●Arq. Juan Palacios Rojas ●Msc. Arq. Jorge Zaldívar Suárez ALUMNOS Aguilar Aymachoque Rosario Aquise Luque Luz Deysi Cochachin Florecin Jhon Brandon Cuadros Claro Marko Padilla Suazo Virginia Pozada Ramirez Otto Alexander Quispe Palomino Adiel Ramos de la Cruz Bryan Alexander Venero Lobatón Irving Vidal Chávez Esther G1 1.1 MARCO HISTÓRICO

CONTEXTO HISTÓRICO

PERIODO LÍTICO

CHIVATEROS

11000 a.C

Chivateros posee una antigüedad de11,000añosa.C.,porloquesele consideraelhombremásantiguo delacostaperuana.

Esconsiderado como el más grande taller lítico peruano, es decir, el lugar donde los hombres de esa zona elaborabansus herramientas.

PERIODO REPUBLICANO

PARQUE PORCINO

1969

ElProyectoParque

Porcino,seinicióen 1969. como parte deunproyectoque promueve la ejecución de proyectos de desarrollo. es asi que surge Parque porcino concebido para ser dedicado exclusivamenteala crianzadeganado porcino.

PERIODO ARCAICO

HUACA

ROSADA (PAMPA DE LOS PERROS)

4500 a.C - 2500 a.C

Huaca Rosada o Pampa de los Perros es un conjunto arqueológico con más de 4500 años de antigüedad, anterioralsurgimientodela Cultura Chavín y casi contemporáneo con la ciudaddeCaral

Su arquitectura era principalmenteceremonial

HUACA EL PARAISO

4000 a.C - 1400a.C

El Paraíso es uno de los mayores asentamientos de la fase final del periodo Pre-cerámico. Tenía arquitectura monumental y por las evidenciasencontradas,sesugiereque tuvounusopúblico,comunitarioy uso doméstico.

Paraterminarlaconstruccióndetodoel complejo se necesitó más o menos 100,000 toneladas de piedra, las que fueronsacadasdecanterasenloscerros vecinos.

G1

PAMPA DE LOS PERROS DIAGNÓSTICO

CÁTEDRA

●Msc. Arq. Robinson Ortiz Agama

●Arq. Carmen Cárdenas Flores

●Arq. Juan Palacios Rojas

● Arq. Alexey Carrasco

●Arq. Luis Morales

●Msc. Arq. Jorge Zaldívar Suárez

CERRO CULEBRAS

100 d.C - 450 d.C

El complejo arqueológico de cerro culebras perteneciente a la cultura Lima fue el núcleo de la población asentada ahí durante los años 250a650dC

ALUMNOS

Aguilar Aymachoque Rosario

Aquise Luque Luz Deysi

Pozada

Quispe Palomino Adiel

Venero Lobatón Irving Vidal Chávez Esther

APA107B TALLER DE
L4
DISEÑO 5B 2022-2
Cochachin Florecin Jhon Brandon
Cuadros Claro Marko Padilla Suazo Virginia
Ramirez Otto Alexander
Ramos de la Cruz Bryan Alexander
PERIODO INTERMEDIO TEMPRANO
APA107B TALLER DE DISEÑO 5B 2022-2 L5 PAMPA DE LOS PERROS DIAGNÓSTICO CÁTEDRA ●Msc. Arq. Robinson Ortiz Agama ● Arq. Alexey Carrasco ●Arq. Carmen Cárdenas Flores ●Arq. Luis Morales ●Arq. Juan Palacios Rojas ●Msc. Arq. Jorge Zaldívar Suárez ALUMNOS Aguilar Aymachoque Rosario Aquise Luque Luz Deysi Cochachin Florecin Jhon Brandon Cuadros Claro Marko Padilla Suazo Virginia Pozada Ramirez Otto Alexander Quispe Palomino Adiel Ramos de la Cruz Bryan Alexander Venero Lobatón Irving Vidal Chávez Esther G1 1.2 ANÁLISIS URBANO

PAMPA DE LOS PERROS DIAGNÓSTICO

CÁTEDRA

●Msc. Arq. Robinson Ortiz Agama

●Arq. Carmen Cárdenas Flores

●Arq. Juan Palacios Rojas

● Arq. Alexey Carrasco

●Arq. Luis Morales

●Msc. Arq. Jorge Zaldívar Suárez

ALUMNOS

Aguilar Aymachoque Rosario

Aquise Luque Luz Deysi

Cochachin Florecin Jhon Brandon

Cuadros Claro Marko

Padilla Suazo Virginia

Pozada Ramirez Otto Alexander

Quispe Palomino Adiel

Ramos de la Cruz Bryan Alexander

Venero Lobatón Irving

Vidal Chávez Esther

APA107B TALLER DE
5B
L6
DISEÑO
2022-2
NIVEL
G1
MACRO-URBANO
1 2 3 ÁREAS 1 Huaca Rosada 2 Huaca Culebras 3 Huaca El Paraiso 4 4 Huaca Capilla II RECREACIÓN Cancha deportiva Comisaría Policía ecológica NIVELLIMA 1 1 Estudio de Belleza 2 2 Almacén INDUSTRIA Terminal de contenedores Panta EQUIPAMIENTO Educación Restaurante de menú y chicharronerías 3 4 3 4 Botica Piñatería TIENDAS Bodegas Mercado CULTURA Chacras Parques REGIONAL DISTRITAL ZONAL VÍAS NIVEL MESO-URBANO NESTOR GAMBETA NESTOR GAMBETA AV.CHILLÓN AV.CHILLÓN AV.CENTRAL
APA107B TALLER DE DISEÑO 5B 2022-2 L8 PAMPA DE LOS PERROS DIAGNÓSTICO CÁTEDRA ●Msc. Arq. Robinson Ortiz Agama ● Arq. Alexey Carrasco ●Arq. Carmen Cárdenas Flores ●Arq. Luis Morales ●Arq. Juan Palacios Rojas ●Msc. Arq. Jorge Zaldívar Suárez ALUMNOS Aguilar Aymachoque Rosario Aquise Luque Luz Deysi Cochachin Florecin Jhon Brandon Cuadros Claro Marko Padilla Suazo Virginia Pozada Ramirez Otto Alexander Quispe Palomino Adiel Ramos de la Cruz Bryan Alexander Venero Lobatón Irving Vidal Chávez Esther G1 Av. Prolon. Naranjal Av.NestorGambeta Av.NestorGambeta Av. Chillon Av. Central Río Chillón 1.2.3.NIVEL MICRO-URBANO
DISEÑO ELEMENTOS URBANOS PRINCIPALES
Seobservaunadisociacióndelazonificaciónestablecidapor lamunicipalidad,yelusoqueseledaalasedificaciones. INDUSTRIA COMEDOR COLEGIO IGLESIA POZO DE AGUA PARQUE HUACA PAMPA DE LOS PERROS HUACA CULEBRA PARCELA A CENTRAL HIDROELÉCTRICA DIRPRAM PNP Ventanilla DIRECCION DE PROTECCION DEL MEDIO AMBIENTE CENTRO DE SALUD VENTANILLA ESTE CENTRO DE SALUD CENTRO POLICIAL COLEGIO ALCIDES CARRION Fuente : Municipalidad de Ventanilla Fuente : Municipalidad de Ventanilla USOS DE SUELOS N N VIVIENDA - TALLER COMERCIO RESIDENCIA ( RDM) CULTURAL
DE SUELO Y ZONIFICACIÓN
ZONIFICACIÓN
USOS

CONDICIONES CLIMÁTICAS

CÁTEDRA

●Msc. Arq. Robinson Ortiz Agama

●Arq. Carmen Cárdenas Flores

●Arq. Juan Palacios Rojas

● Arq. Alexey Carrasco

●Arq. Luis Morales

●Msc. Arq. Jorge Zaldívar Suárez

ALUMNOS

Aguilar Aymachoque Rosario

Aquise Luque Luz Deysi

Cochachin Florecin Jhon Brandon

Cuadros Claro Marko

Padilla Suazo Virginia

Pozada Ramirez Otto Alexander

Quispe Palomino Adiel

Ramos de la Cruz Bryan Alexander

Venero Lobatón Irving

Vidal Chávez Esther

APA107B TALLER DE DISEÑO 5B 2022-2 L10
PAMPA DE LOS PERROS DIAGNÓSTICO
G1

GRÁFICO PSICOMÉTRICO DE GIVONI

CARTAS BIOCLIMÁTICAS

ROSA DE VIENTOS

G1

LEYENDA INVIERNO VERANO

GRÁFICO DE CONFORT BIOCLIMÁTICO OLGYAY

CÁTEDRA

PAMPA DE LOS PERROS DIAGNÓSTICO

19.67

22.17 17.17

●Msc. Arq. Robinson Ortiz Agama

●Arq. Carmen Cárdenas Flores

●Arq. Juan Palacios Rojas

LEYENDA INVIERNO VERANO

● Arq. Alexey Carrasco

●Arq. Luis Morales

●Msc. Arq. Jorge Zaldívar Suárez

ALUMNOS

Aguilar Aymachoque Rosario

Aquise Luque Luz Deysi

Cochachin Florecin Jhon Brandon

Cuadros Claro Marko

Padilla Suazo Virginia

Pozada Ramirez Otto Alexander

Quispe Palomino Adiel

Ramos de la Cruz Bryan Alexander

Venero Lobatón Irving

Vidal Chávez Esther

APA107B TALLER
L11
DE DISEÑO 5B 2022-2

Zona I: Comprende la parte sur este y central del distrito, conformado por depósitos de suelos coluviales, provenientes de las laderas de los cerros circundante

Zona II: Abarca la parte noreste del distrito, el suelo es un estrato de arena que cubre las formaciones rocosas, con espesor variable

Zona III: comprende los depósitos de arenas eólicas de gran espesor y sueltas del sector noroeste del distrito. También se ha considerado a los depósitos marinos a lo largo de la costa conformada por arena saturada

Zona IV: está conformada por los suelos pantanosos y depósitos de arenas sueltas de gran espesor que se ubican en la parte litoral del distrito

●Msc. Arq. Robinson Ortiz Agama

●Arq. Carmen Cárdenas Flores

● Arq. Alexey Carrasco

●Arq. Luis Morales

Aguilar Aymachoque Rosario

Aquise Luque Luz Deysi

Cochachin Florecin Jhon Brandon

Cuadros Claro Marko

Padilla Suazo Virginia

Pozada Ramirez Otto Alexander

Quispe Palomino Adiel

Ramos de la Cruz Bryan Alexander

Venero Lobatón Irving

Vidal Chávez Esther

APA107B TALLER DE DISEÑO 5B 2022-2 L12
PAMPA DE LOS PERROS DIAGNÓSTICO CÁTEDRA
Arq. Juan Palacios Rojas
Msc. Arq. Jorge Zaldívar Suárez ALUMNOS
G1
Y
FUENTE: SIGRID ÁREA EXPUESTA A INUNDACIÓN FAJA MARGINAL DEL RÍO CHILLÓN RÍO CHILLÓN FORMACIONESROCOSAS RIESGO SÍSMICO : DAÑO MODERADO DAÑO SEVERO COLAPSO RIESGO TSUNAMI: ANTEEVENTO SÍSMICODE8.5 Mw ANTEEVENTO SÍSMICODE9Mw
HIDROGRAFÍA
ESTUDIOS DE SUELOS
FUENTE:Aguilar Z.Calderon D.Microzonificación Geotécnica Sísmica Del Distrito De Ventanilla Cerro Cucaracha Cerro La Cuchilla Cerro Respiro

El acceso a esta parte de la ciudad es mediante transporte privado o mototaxi se da principalmente desde la AV. Gambetta. Desde la Av. Nestor Gambeta hasta el cruce de AV. Chillón con Central el recorrido es aproximadamente 2 Km y se realizan en 6 minutos a moto, además la Av.Chillón se encuentra asfaltada hasta el cruce con Central.

APA107B TALLER DE DISEÑO 5B 2022-2 L13 PAMPA DE LOS PERROS DIAGNÓSTICO CÁTEDRA
Msc. Arq. Robinson Ortiz Agama
Arq. Alexey Carrasco
Arq. Carmen Cárdenas Flores
Arq. Luis Morales
Arq. Juan Palacios Rojas
Msc. Arq. Jorge Zaldívar Suárez ALUMNOS Aguilar Aymachoque Rosario Aquise Luque Luz Deysi Cochachin Florecin Jhon Brandon Cuadros Claro Marko Padilla Suazo Virginia Pozada Ramirez Otto Alexander Quispe Palomino Adiel Ramos de la Cruz Bryan Alexander Venero Lobatón Irving Vidal Chávez Esther G1 INFRAESTRUCTURA VIAL Y MOVILIDAD VÍA
AV.CHILLÓN CENTRAL CENTRAL AV.CHILLÓN AV. NESTOR CAMBETTA
ARTERIAL VÍACOLECTORA
PARADERO DE MOTOTAXIS
RUTADE TRANSPORTE PORCINO RUTADE TRANSPORTE LOGÍSTICO PUENTE PEATONAL

PRINCIPALES SENDAS SECUNDARIAS NODO HITOS BORDE

APA107B TALLER DE DISEÑO 5B 2022-2 L14 PAMPA DE LOS PERROS DIAGNÓSTICO CÁTEDRA ●Msc. Arq. Robinson Ortiz Agama ● Arq. Alexey Carrasco ●Arq. Carmen Cárdenas Flores ●Arq. Luis Morales ●Arq. Juan Palacios Rojas ●Msc. Arq. Jorge Zaldívar Suárez ALUMNOS Aguilar Aymachoque Rosario Aquise Luque Luz Deysi Cochachin Florecin Jhon Brandon Cuadros Claro Marko Padilla Suazo Virginia Pozada Ramirez Otto Alexander Quispe Palomino Adiel Ramos de la Cruz Bryan Alexander Venero Lobatón Irving Vidal Chávez Esther G1 FORMA URBANA -IMAGEN URBANA CENTRAL TÉRMICA VENTANILLA HUACA CULEBRAS HUACA PAMPA DE LOS PERROS AVENIDA CENTRAL CON AVENIDA CHILLON
Determinado por dos senderos fuertes y claramente definidos, la Avenida Central y la Avenida Chillon Son las distintas calles que convergen hacia las sendas principales Marcado por la intersección de las sendas principales las avenidas Central y Chillón Son los referentes de la zona las Huacas Culebras y Pampa de los Perros, además de la Central Térmica de Ventanilla El límite de la zona de estudio lo define el Rio Chillon
SENDAS

LÍMITE DE LOS CERROS RÍO CHILLÓN AV. PRINCIPALES

El asentamiento y crecimiento urbano del Parque porcino se genera con la entrega de terrenos en el año 1970, desde ese momento comienza una expansión que se detiene y es definida por elementos naturales y construidos como lo son principalmente los cerros que lo rodean, el río, las huacas y las avenidas.

APA107B TALLER DE DISEÑO 5B 2022-2 L15 PAMPA DE LOS PERROS DIAGNÓSTICO CÁTEDRA
Msc. Arq. Robinson Ortiz Agama
Arq. Alexey Carrasco
Arq. Carmen Cárdenas Flores
Arq. Luis Morales
Arq. Juan Palacios Rojas
Msc. Arq. Jorge Zaldívar Suárez ALUMNOS Aguilar Aymachoque Rosario Aquise Luque Luz Deysi Cochachin Florecin Jhon Brandon Cuadros Claro Marko Padilla Suazo Virginia Pozada Ramirez Otto Alexander Quispe Palomino Adiel Ramos de la Cruz Bryan Alexander Venero Lobatón Irving Vidal Chávez Esther G1 DINÁMICA URBANA
APA107B TALLER DE DISEÑO 5B 2022-2 L16 PAMPA DE LOS PERROS DIAGNÓSTICO CÁTEDRA ●Msc. Arq. Robinson Ortiz Agama ● Arq. Alexey Carrasco ●Arq. Carmen Cárdenas Flores ●Arq. Luis Morales ●Arq. Juan Palacios Rojas ●Msc. Arq. Jorge Zaldívar Suárez ALUMNOS Aguilar Aymachoque Rosario Aquise Luque Luz Deysi Cochachin Florecin Jhon Brandon Cuadros Claro Marko Padilla Suazo Virginia Pozada Ramirez Otto Alexander Quispe Palomino Adiel Ramos de la Cruz Bryan Alexander Venero Lobatón Irving Vidal Chávez Esther G1 HITOS HITO TANQUES DE LA PLANTA TERMOELÉCTRICA ANTENA DE ELECTRICIDAD ANTENA DE ELECTRICIDAD
APA107B TALLER DE DISEÑO 5B 2022-2 L17 PAMPA DE LOS PERROS DIAGNÓSTICO CÁTEDRA ●Msc. Arq. Robinson Ortiz Agama ● Arq. Alexey Carrasco ●Arq. Carmen Cárdenas Flores ●Arq. Luis Morales ●Arq. Juan Palacios Rojas ●Msc. Arq. Jorge Zaldívar Suárez ALUMNOS Aguilar Aymachoque Rosario Aquise Luque Luz Deysi Cochachin Florecin Jhon Brandon Cuadros Claro Marko Padilla Suazo Virginia Pozada Ramirez Otto Alexander Quispe Palomino Adiel Ramos de la Cruz Bryan Alexander Venero Lobatón Irving Vidal Chávez Esther G1 NODOS AVENIDA NESTOR GAMBETA Y AVENIDA CHILLÓN AVENIDA CENTRAL CON AVENIDA CHILLON NODO Marcado por la intersección de las sendas principales las avenidas Central y Chillón Marcado por la intersección de las sendas principales las avenidas Nestor Gambeta y Chillón NODO principales

APA107B TALLER DE DISEÑO 5B 2022-2 L18 PAMPA DE LOS PERROS DIAGNÓSTICO CÁTEDRA
Msc. Arq. Robinson Ortiz Agama
Arq. Alexey Carrasco
Arq. Carmen Cárdenas Flores
Arq. Luis Morales
Arq. Juan Palacios Rojas
Msc. Arq. Jorge Zaldívar Suárez ALUMNOS Aguilar Aymachoque Rosario Aquise Luque Luz Deysi Cochachin Florecin Jhon Brandon Cuadros Claro Marko Padilla Suazo Virginia
Ramirez Otto Alexander Quispe Palomino Adiel Ramos de la Cruz Bryan Alexander Venero Lobatón Irving Vidal Chávez Esther G1 CONTAMINACIÓN QUEMAN BOTAN ENTIERRAN Quema permanente de residuos en el Parque Porccino Disposición de residuos sólidos Contaminación en el río Chillón por desechos Contaminación por residuos sólidos Contaminación en el aire por dióxido de nitrógeno
Pozada

ZONAS VERDES

En el área demarcada no existe la presencia de parques actuales, pero al estar a la orillas de la cuenca del chillón hay presencia de zonas verdes. Pudiendo ser desde privadas a públicas, PRIVADO 1 2 3 PÚBLICO

CUENCABAJADELRÍO CHILLÓN

El río Chillón, es una zona con potencial agrícola; sin embargo muy deteriorado por la contaminación, inicialmente por minerales y por los desechos en la urbe. Sobre todo a la altura de la panamericana. Por los grandes desechos.

PRIVADO PRIVADO

Por lo que, existe un deterioro, y existe una vegetación escasa.

PRIVADO

Cabe resaltar que en la zona no existe agua tratada, se usa agua de una cisterna común que extrae el agua del subsuelo.

FLORA

MEANDROS DE LA

es un área donde naturalmente se da la vegetación En la planta, existen varias zonas de área verde

Al sur del del rio, existe tierras de cosecha

En el área hay 4 canchas; pertenecen a la planta, y una es parte de un club deportivo

EN VIVIENDAS

mapeo con el apoyo de google maps para visualizar los árboles

FAUNA

En la zona de diagnóstico existe presencia de flora y fauna en las orillas del río Chillón, pero en el resto de la zona es realmente escasa.

APA107B TALLER DE DISEÑO 5B 2022-2 L19 PAMPA DE LOS PERROS DIAGNÓSTICO CÁTEDRA ●Msc. Arq. Robinson Ortiz Agama ● Arq. Alexey Carrasco ●Arq. Carmen Cárdenas Flores ●Arq. Luis Morales
Arq. Juan Palacios Rojas
Msc. Arq. Jorge Zaldívar Suárez ALUMNOS Aguilar Aymachoque Rosario Aquise Luque Luz Deysi Cochachin Florecin Jhon Brandon Cuadros Claro Marko Padilla Suazo Virginia Pozada Ramirez Otto Alexander Quispe Palomino Adiel Ramos de la Cruz Bryan Alexander Venero Lobatón Irving Vidal Chávez Esther G1
Y PAISAJE
BIODIVERSIDAD
2 3 3 1 1 1
Gallinazo Perros Porcinos y Gallinas Eucalipto Árbol de la palta Cactus Molle serrano Ardea Cinerea

PAMPA DE LOS PERROS DIAGNÓSTICO

Alumbrado eléctrico

La zona referida es atendida por la sub - estación transformadora de EDELNOR de Ventanilla

Las cifras censales del 2007 señalan que en Ventanilla 83.90%, dispone de alumbrado eléctrico por red pública 16.09%, no dispone de alumbrado eléctrico

CÁTEDRA

●Msc. Arq. Robinson Ortiz Agama

●Arq. Carmen Cárdenas Flores

●Arq. Juan Palacios Rojas

0.62% 2.34%

5.69%

19.26%

Agua Potable

35.28% de las viviendas particulares cuentan con agua potable por red pública. 39.29% son abastecidas de agua por camión cisterna 19.07% reciben agua de pilón de uso público

2.53% se abastecen del vecino 2.17% se abastece de agua de red pública fuera de la vivienda 1.02% se abastece de pozo 0.07% se abastece de río, acequia, etc. 0.53% de otras fuentes

35.92% 36.14%

Servicios higiénicos

Las cifras censales del 2007 también indican que en Ventanilla 35.92% cuenta con conexión a red pública de desagüe dentro de la vivienda 36.14%, posee pozo ciego o negro/ letrina

19.26%, pozo séptico 5.69%, no tiene; 2.34%, conexión a red pública de desagüe fuera de la vivienda pero dentro de la edificación 0.62%, usa río, acequia o canal como servicio higiénico.

Las poblaciones que no cuentan con el servicio eléctrico se sitúan principalmente en el distrito de Ventanilla siendo el mayor el Parque Porcino.

ALUMNOS

Aguilar Aymachoque Rosario

Pozada Ramirez Otto Alexander

Quispe Palomino Adiel

● Arq. Alexey Carrasco

●Arq. Luis Morales

●Msc. Arq. Jorge Zaldívar Suárez

Aquise Luque Luz Deysi

Cochachin Florecin Jhon Brandon

Cuadros Claro Marko

Padilla Suazo Virginia

Ramos de la Cruz Bryan Alexander

Venero Lobatón Irving

Vidal Chávez Esther

APA107B TALLER DE DISEÑO 5B
L20
2022-2
https://www.inei.gob.pe/media/MenuRecursivo/publicaciones_digitales/Est/Lib1411/cap01_02.pdf
G1 Fuente:
DE AGUA POR RED PÚBLICA PORCENTAJE DE VIVIENDAS CON ABASTECIMIENTO DE AGUA POR RED PÚBLICA SEGÚN CENSO 2013 83.9% 16.09%
ABASTECIMIENTO
19.07% 2.53% 2.17% 1.02% 35.28% 39.29% 0.53% 0.07%
APA107B TALLER DE DISEÑO 5B 2022-2 L21 PAMPA DE LOS PERROS DIAGNÓSTICO CÁTEDRA ●Msc. Arq. Robinson Ortiz Agama ● Arq. Alexey Carrasco ●Arq. Carmen Cárdenas Flores ●Arq. Luis Morales ●Arq. Juan Palacios Rojas ●Msc. Arq. Jorge Zaldívar Suárez ALUMNOS Aguilar Aymachoque Rosario Aquise Luque Luz Deysi Cochachin Florecin Jhon Brandon Cuadros Claro Marko Padilla Suazo Virginia Pozada Ramirez Otto Alexander Quispe Palomino Adiel Ramos de la Cruz Bryan Alexander Venero Lobatón Irving Vidal Chávez Esther G1 INFRAESTRUCTURA URBANA HUACAPAMPADE LOS PERROS CENTRALHIDROELÉCTRICA DIRPRAM PNPVentanilla DIRECCION DE PROTECCION DELMEDIO AMBIENTE CENTRO DE SALUD VENTANILLAESTE COLEGIOALCIDES CARRION EDUCACIÓN SERVICIOS COMUNITARIOS SALUD INDUSTRIA CULTURA ELEMENTOS URBANOS RELEVANTES ASPECTO FORMAL ASPECTO FUNCIONAL PARÁMETROS URBANÍSTICO - SITIO ARQUEOLÓGICO PARÁMETROS URBANÍSTICO - INDUSTRIA PARÁMETROS URBANÍSTICO - RESIDENCIA Fuente : Plan de desarrollo Urbano Provincia constitucional del Callao Fuente : Plan de desarrollo Urbano Provincia constitucional del Callao
APA107B TALLER DE DISEÑO 5B 2022-2 L22 PAMPA DE LOS PERROS DIAGNÓSTICO CÁTEDRA ●Msc. Arq. Robinson Ortiz Agama ● Arq. Alexey Carrasco
Arq. Carmen Cárdenas Flores
Arq. Luis Morales
Arq. Juan Palacios Rojas
Msc. Arq. Jorge Zaldívar Suárez ALUMNOS Aguilar Aymachoque Rosario Aquise Luque Luz Deysi Cochachin Florecin Jhon Brandon Cuadros Claro Marko Padilla Suazo Virginia
Ramirez Otto Alexander
Palomino Adiel Ramos de la Cruz Bryan Alexander
Lobatón Irving Vidal Chávez Esther G1 INFRAESTRUCTURA SOCIOECONÓMICA ESPACIAL
Pozada
Quispe
Venero
APA107B TALLER DE DISEÑO 5B 2022-2 L23 PAMPA DE LOS PERROS DIAGNÓSTICO CÁTEDRA ●Msc. Arq. Robinson Ortiz Agama ● Arq. Alexey Carrasco
Arq. Carmen Cárdenas Flores
Arq. Luis Morales
Arq. Juan Palacios Rojas
Msc. Arq. Jorge Zaldívar Suárez ALUMNOS Aguilar Aymachoque Rosario Aquise Luque Luz Deysi Cochachin Florecin Jhon Brandon Cuadros Claro Marko Padilla Suazo Virginia Pozada Ramirez Otto Alexander Quispe Palomino Adiel Ramos de la Cruz Bryan Alexander Venero Lobatón Irving Vidal Chávez Esther G1 ESPACIO PÚBLICO - PLANO NOLLI RIO CHILLON N
APA107B TALLER DE DISEÑO 5B 2022-2 L24 PAMPA DE LOS PERROS DIAGNÓSTICO CÁTEDRA ●Msc. Arq. Robinson Ortiz Agama ● Arq. Alexey Carrasco ●Arq. Carmen Cárdenas Flores ●Arq. Luis Morales ●Arq. Juan Palacios Rojas ●Msc. Arq. Jorge Zaldívar Suárez ALUMNOS Aguilar Aymachoque Rosario Aquise Luque Luz Deysi Cochachin Florecin Jhon Brandon Cuadros Claro Marko Padilla Suazo Virginia Pozada Ramirez Otto Alexander Quispe Palomino Adiel Ramos de la Cruz Bryan Alexander Venero Lobatón Irving Vidal Chávez Esther G1 1.3 ANÁLISIS NORMATIVO

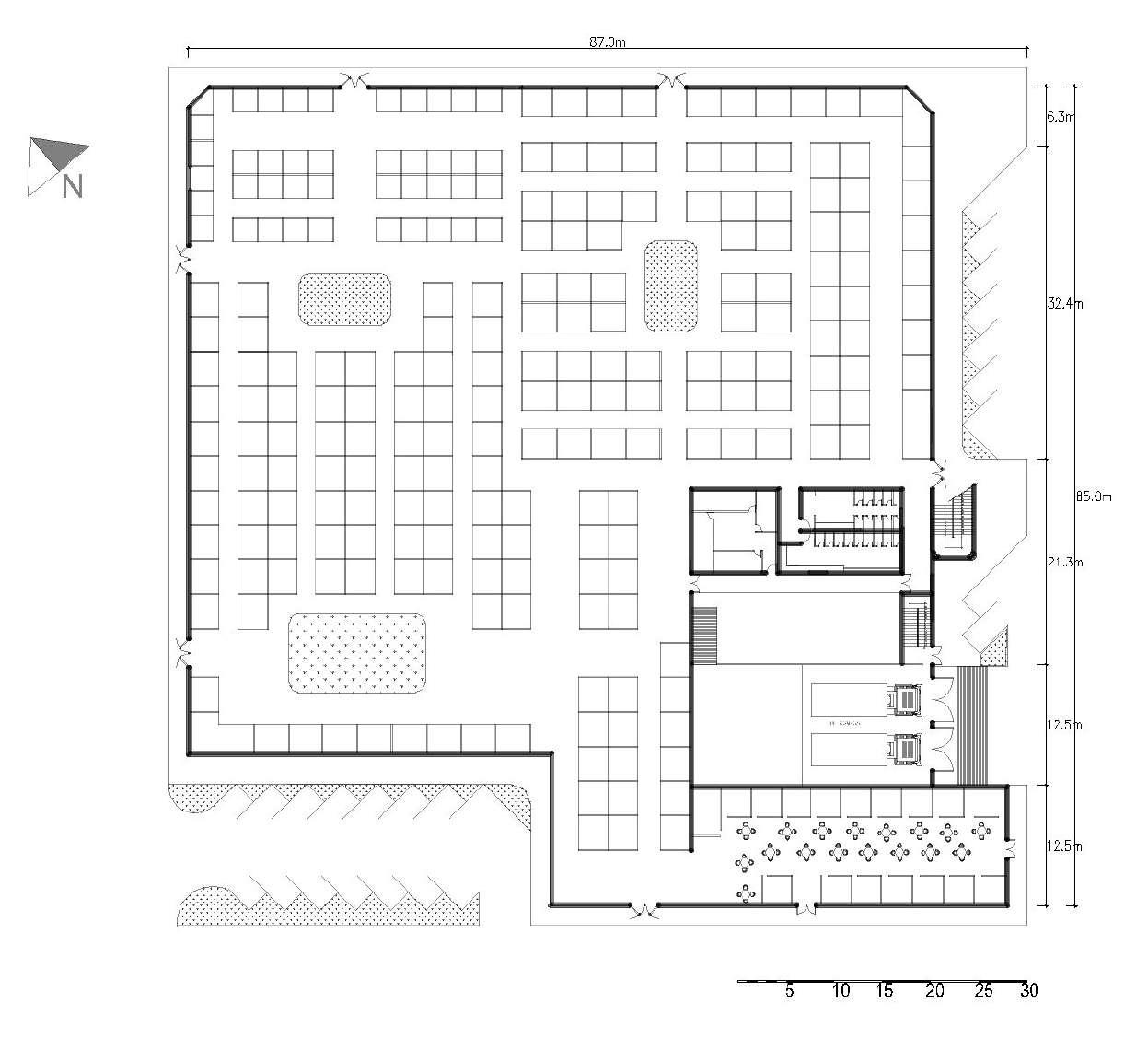
La zona está ubicada entre las coordenadas geográficas 11º 20´ y 12º 15’ de latitud sur y 76º 24’ y 77º 10’ de longitud oeste, limitando por el norte con la cuenca del río Chancay, por el sur con la cuenca del río Rímac, por el este con la cuenca del río Mantaro y por el oeste con el litoral peruano, formando parte del departamento de Lima (UNALM y ARC, 2005). Políticamente se localiza en el Distrito de Ventanilla de la Región CallaoProvincia Constitucional del Callao, sobre la margen derecha del río Chillón en forma paralela y a 2.0 km. de la Avenida Néstor Gambetta Su área total es de 845 ha y cuenta con una población estimada de 6100 habitantes

PATRIMONIO CULTURALDE LANACIÓN

La Zona Arqueológica Pampa de los Perros está ubicada en la margen derecha del rio Chillón, en la zona denominada Parque Porcino, en el distrito de Ventanilla, Callao. Tiene una extensión aproximada de 30,000 m2, y fue declarada Patrimonio Cultural de la Nación en enero del 2001. El sitio cuenta con una pirámide trunca y una plaza circular hundida, perteneciente al periodo arcaico tardío, también llamado pre cerámico.

1

NORMATH.050

HABILITACIONESENRIBERASYLADERAS

- El Ministerio de Agricultura, a través de sus órganos competentes establece los límites de la faja ribereña a ser respetada como área de uso público

Las áreas ribereñas deberán tener vías de acceso público a una distancia no mayor de 300 metros entre ellos.

Debe ejecutarse una red de desagüe general para la habilitación urbana, que se integre con las redes públicas existentes.

Podrán desarrollarse soluciones locales de abastecimiento de agua para consumo humano, mediante la captación de aguas subterráneas. Si no existiera una red pública

- Las habilitaciones en riberas, de acuerdo a las características urbanas de la localidad en que se ubican, podrán ser del tipo A al D, compatible con los sectores colindantes

NORMAA.140 BIENES

CULTURALES INMUEBLES

El RNE señala que no se puede construir en lugares considerados patrimonio .

PARQUE PORCINO

El Proyecto Parque Porcino, se inició el 6 de mayo de 1970 y cuenta con un área de más de 848 hectáreas. En la actualidad engloba a 1,200 predios, cuyos poseedores porcicultores se dedican a la crianza de unos 12 mil cerdos. La condición de vida de los pobladores del Parque Porcino es muy precaria, pues utilizan casas de cartones y de madera triplay, además de carecer de alcantarillado y del servicio de agua potable, ya que este último es facilitado sólo por algunas horas.

Que, el artículo 7 del Reglamento de Intervenciones Arqueológicas, aprobado por el Decreto Supremo N° 003-2014-MC y modificatorias, establece que los monumentos arqueológicos prehispánicos son los bienes inmuebles que constituyen evidencia de actividad humana de época prehispánica; con fines de registro, delimitación, investigación, conservación, protección y gestión; y se clasifican en sitio arqueológico, zona arqueológica monumental y paisaje arqueológico; 4

Parque Porcino, está conformado por cuatro organizaciones de base: Asociación de Porcicultores, Cooperativa 28 de Julio, Cooperativa 24 de Junio y la Asociación de Pequeños Industriales Pampa de los Perros. En total, existen más de 2, 200 comerciantes porcicultores.,

APA107B TALLER DE DISEÑO 5B 2022-2 L25 PAMPA DE LOS PERROS DIAGNÓSTICO CÁTEDRA
Msc. Arq. Robinson Ortiz Agama
Arq. Alexey Carrasco
Arq. Carmen Cárdenas Flores
Arq. Luis Morales
Arq. Juan Palacios Rojas
Msc. Arq. Jorge Zaldívar Suárez ALUMNOS Aguilar Aymachoque Rosario Aquise Luque Luz Deysi Cochachin Florecin Jhon Brandon Cuadros Claro Marko Padilla Suazo Virginia Pozada Ramirez Otto Alexander Quispe Palomino Adiel Ramos de la Cruz Bryan Alexander Venero Lobatón Irving Vidal Chávez Esther G1
2 3
Rio arreico repleto de basura Corrales porcinos a la ribera Carretera desnivelada Parque improvisado de futbol
APA107B TALLER DE DISEÑO 5B 2022-2 L26 PAMPA DE LOS PERROS DIAGNÓSTICO CÁTEDRA ●Msc. Arq. Robinson Ortiz Agama ● Arq. Alexey Carrasco ●Arq. Carmen Cárdenas Flores ●Arq. Luis Morales ●Arq. Juan Palacios Rojas ●Msc. Arq. Jorge Zaldívar Suárez ALUMNOS Aguilar Aymachoque Rosario Aquise Luque Luz Deysi Cochachin Florecin Jhon Brandon Cuadros Claro Marko Padilla Suazo Virginia Pozada Ramirez Otto Alexander Quispe Palomino Adiel Ramos de la Cruz Bryan Alexander Venero Lobatón Irving Vidal Chávez Esther G1 1.4 IDENTIFICACIÓN DEL TERRENO
APA107B TALLER DE DISEÑO 5B 2022-2 L27 PAMPA DE LOS PERROS DIAGNÓSTICO CÁTEDRA ●Msc. Arq. Robinson Ortiz Agama ● Arq. Alexey Carrasco ●Arq. Carmen Cárdenas Flores ●Arq. Luis Morales ●Arq. Juan Palacios Rojas ●Msc. Arq. Jorge Zaldívar Suárez ALUMNOS Aguilar Aymachoque Rosario Aquise Luque Luz Deysi Cochachin Florecin Jhon Brandon Cuadros Claro Marko Padilla Suazo Virginia Pozada Ramirez Otto Alexander Quispe Palomino Adiel Ramos de la Cruz Bryan Alexander Venero Lobatón Irving Vidal Chávez Esther G1 LINDEROS LÍNEATOPOGRÁFICA MANZANAS ÁREAS VERDES CORTE CORTETOPOGRÁFICO 1 CORTETOPOGRÁFICO 2 1 2 CERRO CULEBRA PAMPA DE LOS PERROS PARQUE COMUNAL RIOCHILLÓN IDENTIFICACIÓN DEL TERRENO
APA107B TALLER DE DISEÑO 5B 2022-2 L28 PAMPA DE LOS PERROS DIAGNÓSTICO CÁTEDRA ●Msc. Arq. Robinson Ortiz Agama ● Arq. Alexey Carrasco ●Arq. Carmen Cárdenas Flores ●Arq. Luis Morales ●Arq. Juan Palacios Rojas ●Msc. Arq. Jorge Zaldívar Suárez ALUMNOS Aguilar Aymachoque Rosario Aquise Luque Luz Deysi Cochachin Florecin Jhon Brandon Cuadros Claro Marko Padilla Suazo Virginia Pozada Ramirez Otto Alexander Quispe Palomino Adiel Ramos de la Cruz Bryan Alexander Venero Lobatón Irving Vidal Chávez Esther G1 1.5 MAQUETA VIRTUAL

APA107B TALLER DE DISEÑO 5B 2022-2 L29 PAMPA DE LOS PERROS DIAGNÓSTICO CÁTEDRA
Msc. Arq. Robinson Ortiz Agama
Arq. Alexey Carrasco
Arq. Carmen Cárdenas Flores
Arq. Luis Morales
Arq. Juan Palacios Rojas
Msc. Arq. Jorge Zaldívar Suárez ALUMNOS
Aymachoque Rosario Aquise Luque Luz Deysi Cochachin Florecin Jhon Brandon Cuadros Claro Marko Padilla Suazo Virginia
Ramirez Otto Alexander
Palomino Adiel
de la Cruz Bryan Alexander
Lobatón Irving
Chávez Esther G1
Aguilar
Pozada
Quispe
Ramos
Venero
Vidal

APA107B TALLER DE DISEÑO 5B 2022-2 L30 PAMPA DE LOS PERROS DIAGNÓSTICO CÁTEDRA
Msc. Arq. Robinson Ortiz Agama
Arq. Alexey Carrasco
Arq. Carmen Cárdenas Flores
Arq. Luis Morales
Arq. Juan Palacios Rojas
Msc. Arq. Jorge Zaldívar Suárez ALUMNOS Aguilar Aymachoque Rosario Aquise Luque Luz Deysi Cochachin Florecin Jhon Brandon Cuadros Claro Marko Padilla Suazo Virginia Pozada Ramirez Otto Alexander Quispe Palomino Adiel Ramos de la Cruz Bryan Alexander Venero Lobatón Irving Vidal Chávez Esther G1 G 2.ESTUDIO FENOMENOLÓGICO
APA107B TALLER DE DISEÑO 5B 2022-2 L31 PAMPA DE LOS PERROS DIAGNÓSTICO CÁTEDRA ●Msc. Arq. Robinson Ortiz Agama ● Arq. Alexey Carrasco ●Arq. Carmen Cárdenas Flores ●Arq. Luis Morales ●Arq. Juan Palacios Rojas ●Msc. Arq. Jorge Zaldívar Suárez ALUMNOS Aguilar Aymachoque Rosario Aquise Luque Luz Deysi Cochachin Florecin Jhon Brandon Cuadros Claro Marko Padilla Suazo Virginia Pozada Ramirez Otto Alexander Quispe Palomino Adiel Ramos de la Cruz Bryan Alexander Venero Lobatón Irving Vidal Chávez Esther G1 2.1 ANÁLISIS TOPOLÓGICO / COLLAGE

UN PARQUE OLVIDADO

Polvo y arena que eres ahora, ,Acaso no te acuerdas cuando naciste?... Entre verdes sueños y claras aguas, De bellas promesas de un futuro eterno y constante.

Hoy has dejado suspiros al viento, Como toda la calma perdida en tu centro. de tu rostro de arcilla parchado con madera y cemento. No queda historia ,sino sólo cuentos.

No me digas que el canto se ha vuelto lamento, Cuando los gallinazos alzan el vuelo y los perros ladran hambrientos. se construye ese futuro incierto donde se oyen los fuertes ecos

Tu río que está apagado por el paso del tiempo, Aún respira con verde de breve intento, Entre montañas de basura y resquebrajado pavimento, Aún anhela ser libre empujando sus escombros sedientos.

Dime qué tu gente no te ah olvidado!, que insiste con la semilla de surgir que hay en sus venas, Que trabaja de sol a sol bajo el calor extenuante , Yque ha convertido la basura ,en una moneda de oro muy bella .

Dime qué es difícil encontrar la alegría, Pero que lo intentas en esas aulas milagrosas.. Que recuperas la esperanza de vivir día tras día, Aunque te atormenten esas notas ruidosas.

Si supieras que irás aprendiendo Acrecer entre tanto ruido, Con el pasar de los inmensos camiones,y el zumbido de los gigantes de acero Hoy tendrías melódicos sueños de niño.

Confía en el aullido de la noche, Que reclama que sigas luchando , Aún sumergida entre la arena Como tesoro que aguarda ser descubierto ....0

ALUMNOS

Aguilar Aymachoque Rosario

●Msc. Arq. Robinson Ortiz Agama

●Arq. Carmen Cárdenas Flores

● Arq. Alexey Carrasco

●Arq. Luis Morales

●Msc. Arq. Jorge Zaldívar Suárez

Aquise Luque Luz Deysi

Cochachin Florecin Jhon Brandon

Cuadros Claro Marko

Padilla Suazo Virginia

Pozada Ramirez Otto Alexander

Quispe Palomino Adiel

Ramos de la Cruz Bryan Alexander

Venero Lobatón Irving

Vidal Chávez Esther

APA107B TALLER DE DISEÑO 5B 2022-2 L32
DE
DIAGNÓSTICO
PAMPA
LOS PERROS
CÁTEDRA
Arq. Juan Palacios Rojas
G1
CÓSMICO

APA107B TALLER DE DISEÑO 5B 2022-2 L33 PAMPA DE LOS PERROS DIAGNÓSTICO CÁTEDRA
Msc. Arq. Robinson Ortiz Agama
Arq. Alexey Carrasco
Arq. Carmen Cárdenas Flores
Arq. Luis Morales
Arq. Juan Palacios Rojas
Msc. Arq. Jorge Zaldívar Suárez ALUMNOS Aguilar Aymachoque Rosario Aquise Luque Luz Deysi Cochachin Florecin Jhon Brandon Cuadros Claro Marko Padilla Suazo Virginia
Ramirez Otto Alexander
Palomino Adiel Ramos de la Cruz Bryan Alexander Venero Lobatón Irving Vidal Chávez Esther G1 ALTURAS Y TIPOLOGÍAS DE VIVIENDAS VG VIVIENDA GRANJA VA VIVIENDA ALMACEN VT VIVIENDA TALLER AI ÁREA INDUSTRIAL VC VIVIENDA COMERCIO U VIV. UNIFAMILIAR 1 PISO 2 PISOS 3 PISOS Leyenda
Pozada
Quispe
APA107B TALLER DE DISEÑO 5B 2022-2 L34 PAMPA DE LOS PERROS DIAGNÓSTICO CÁTEDRA ●Msc. Arq. Robinson Ortiz Agama ● Arq. Alexey Carrasco ●Arq. Carmen Cárdenas Flores ●Arq. Luis Morales ●Arq. Juan Palacios Rojas ●Msc. Arq. Jorge Zaldívar Suárez ALUMNOS Aguilar Aymachoque Rosario Aquise Luque Luz Deysi Cochachin Florecin Jhon Brandon Cuadros Claro Marko Padilla Suazo Virginia Pozada Ramirez Otto Alexander Quispe Palomino Adiel Ramos de la Cruz Bryan Alexander Venero Lobatón Irving Vidal Chávez Esther G1 2.2 ANÁLISIS HISTÓRICO

HUACA ROSADA (PAMPA DE LOS PERROS)

HUACA PARAISO 2 4

CERRO CULEBRAS 1 3 4 PARQUE PORCINO

Luego de la creacion de Parqueporcino,la falta de planeamiento y asesoría de las autoridades, la tierras destinadas a la crianza de animales, fueron usadosparaotros fines

ALUMNOS

PAMPA DE LOS PERROS DIAGNÓSTICO

CÁTEDRA

●Msc. Arq. Robinson Ortiz Agama

●Arq. Carmen Cárdenas Flores

●Arq. Juan Palacios Rojas

● Arq. Alexey Carrasco

●Arq. Luis Morales

●Msc. Arq. Jorge Zaldívar Suárez

Aguilar Aymachoque Rosario

Pozada Ramirez Otto Alexander

Quispe

APA107B TALLER DE DISEÑO 5B
L35
2022-2
Aquise Luque Luz Deysi
Cochachin Florecin Jhon Brandon Cuadros Claro Marko Padilla Suazo Virginia
Palomino Adiel Ramos de la Cruz Bryan Alexander
Venero Lobatón Irving Vidal Chávez Esther G1
Debido al aumento de poblacion, las zonas arqueologicas han sufrido daños tanto físicos como paisajísticos 1 2 3
APA107B TALLER DE DISEÑO 5B 2022-2 L36 PAMPA DE LOS PERROS DIAGNÓSTICO CÁTEDRA ●Msc. Arq. Robinson Ortiz Agama ● Arq. Alexey Carrasco ●Arq. Carmen Cárdenas Flores ●Arq. Luis Morales ●Arq. Juan Palacios Rojas ●Msc. Arq. Jorge Zaldívar Suárez ALUMNOS Aguilar Aymachoque Rosario Aquise Luque Luz Deysi Cochachin Florecin Jhon Brandon Cuadros Claro Marko Padilla Suazo Virginia Pozada Ramirez Otto Alexander Quispe Palomino Adiel Ramos de la Cruz Bryan Alexander Venero Lobatón Irving Vidal Chávez Esther G1 2.3 ANÁLISIS PAISAJÍSTICO

Se evidencia un paisaje que se siente olvidado por el estado, pues no existe un ordenamiento territorial, ni control de fachadas, ni pistas ni veredas con algún tratamiento. Esta zona es una muestra de una comunidad que se enfrenta a la ciudad con ganas de salir. Esto se refleja en el hecho de hacer un área pública para jugar futbolito, y que los domingos recibe un gran uso de la población como área para recrearse y hacer comunidad.

INSTALACIÓN

APA107B TALLER DE DISEÑO 5B 2022-2 L37
DE LOS PERROS DIAGNÓSTICO
Msc. Arq. Robinson Ortiz Agama
Arq. Alexey Carrasco
PAMPA
Arq. Carmen
Flores
Arq. Luis Morales
Cárdenas
Arq. Juan Palacios Rojas
Arq. Jorge Zaldívar Suárez Aquise Luque Luz Deysi Cochachin Florecin Jhon Brandon Cuadros Claro Marko Padilla Suazo Virginia Quispe Palomino Adiel Ramos de la Cruz Bryan Alexander Venero Lobatón Irving Vidal Chávez Esther G1 UN DOMINGO EN COMUNIDAD
●Msc.
UNACOMUNIDAD FRENTEALACIUDAD
ELÉCTRICAS SOBRE RESTOSARQUEOLÓGICOS UNAPOBLACIÓNTRABAJADORAYENDOYVINIENDO
APA107B TALLER DE DISEÑO 5B 2022-2 L38 PAMPA DE LOS PERROS DIAGNÓSTICO CÁTEDRA ●Msc. Arq. Robinson Ortiz Agama ● Arq. Alexey Carrasco ●Arq. Carmen Cárdenas Flores ●Arq. Luis Morales ●Arq. Juan Palacios Rojas ●Msc. Arq. Jorge Zaldívar Suárez ALUMNOS Aguilar Aymachoque Rosario Aquise Luque Luz Deysi Cochachin Florecin Jhon Brandon Cuadros Claro Marko Padilla Suazo Virginia Pozada Ramirez Otto Alexander Quispe Palomino Adiel Ramos de la Cruz Bryan Alexander Venero Lobatón Irving Vidal Chávez Esther G1 2.4 ANÁLISIS ESPACIAL

1. Cuenca Chillón

El Río Chillón se origina en la laguna de Chonta (Cerro de Pasco) a 4.850 msnm, con un recorrido de 126 Km

limita por el norte con la cuenca del río Chancay, por el sur con la cuenca del río Rímac, por el este con la cuenca del río Mantaro y por el oeste con el litoral peruano, formando parte del departamento de Lima (UNALM y ARC, 2005

1

Huacas

Desde años atrás el territorio cuenta con edificaciones Prehispánicas, estas están ubicadas a pocos metros del Río, teniendo un paisaje cultural y paisajístico muy completo. Sin embargo , actualmente este paisaje viene siendo intimidado por los nuevos asentamientos de viviendas sin planificación urbana

Se puede observar que la parte a intervenir es el tramo final a 4 km de su desembocadura en el mar 4

Río Chillón y su entorno

CÁTEDRA

●Msc. Arq. Robinson Ortiz Agama

●Arq. Carmen Cárdenas Flores

●Arq. Juan Palacios Rojas

● Arq. Alexey Carrasco

●Arq. Luis Morales

●Msc. Arq. Jorge Zaldívar Suárez

Asoc. de Porcicultores

La quebrada donde se encuentra este barrios se forma por El inicio de Cerro Chivateros y Cerró el Respiro podemos observar que la calle va ascendiendo , mediante uno va adentrándose en ella

Áreas Agrícolas aledañas

Frente al área de intervención se encuentra el valle Chillón , donde se desarrolla agricultura local en los Huertos Ex Fundo Chuquitanta, esto es gracias al buen suelo fértil que brindan las pampas aluviales

ALUMNOS

Aguilar Aymachoque Rosario

Aquise Luque Luz Deysi

Cochachin Florecin Jhon Brandon

Cuadros Claro Marko

Padilla Suazo Virginia

Pozada Ramirez Otto Alexander

Quispe Palomino Adiel

Ramos de la Cruz Bryan Alexander

Venero Lobatón Irving

Vidal Chávez Esther

APA107B TALLER DE DISEÑO 5B
L39
2022-2
PAMPA DE LOS PERROS DIAGNÓSTICO
G1 2 3 1 2 3 4
APA107B TALLER DE DISEÑO 5B 2022-2 L40 PAMPA DE LOS PERROS DIAGNÓSTICO CÁTEDRA ●Msc. Arq. Robinson Ortiz Agama ● Arq. Alexey Carrasco ●Arq. Carmen Cárdenas Flores ●Arq. Luis Morales ●Arq. Juan Palacios Rojas ●Msc. Arq. Jorge Zaldívar Suárez ALUMNOS Aguilar Aymachoque Rosario Aquise Luque Luz Deysi Cochachin Florecin Jhon Brandon Cuadros Claro Marko Padilla Suazo Virginia Pozada Ramirez Otto Alexander Quispe Palomino Adiel Ramos de la Cruz Bryan Alexander Venero Lobatón Irving Vidal Chávez Esther G1 2.5 ELEMENTOS CONSTRUIDOS

Se sabe que los habitantes de Parque Porcino tienen viviendo más de 5O años en el lugar , y desde hace 30 años la Av. Chillón ha ido sufriendo cambios en su imagen, ya que los nuevos edificios frente a esta , fueron creciendo en altura rápidamente a diferencia de las viviendas agropecuarias, las cuales se mantienen en un nivel.

Vista peatonal frente al ColegioAlcides Carreon

Heterogeneidad

Contraste

Vista peatonal del ingreso a laAh. Mariano Melgar

Discontinuidad

Vista peatonal del ingreso a la Central Hidroelectrica

CÁTEDRA

G1

PAMPA DE LOS PERROS DIAGNÓSTICO

●Msc. Arq. Robinson Ortiz Agama

●Arq. Carmen Cárdenas Flores

●Arq. Juan Palacios Rojas

● Arq. Alexey Carrasco

●Arq. Luis Morales

●Msc. Arq. Jorge Zaldívar Suárez

ALUMNOS

Aguilar Aymachoque Rosario

Aquise Luque Luz Deysi

Cochachin Florecin Jhon Brandon

Cuadros Claro Marko

Padilla Suazo Virginia

Pozada Ramirez Otto Alexander

Quispe Palomino Adiel

Ramos de la Cruz Bryan Alexander

Venero Lobatón Irving

Vidal Chávez Esther

APA107B TALLER
L41
DE DISEÑO 5B 2022-2
APA107B TALLER DE DISEÑO 5B 2022-2 L42 PAMPA DE LOS PERROS DIAGNÓSTICO CÁTEDRA ●Msc. Arq. Robinson Ortiz Agama ● Arq. Alexey Carrasco ●Arq. Carmen Cárdenas Flores ●Arq. Luis Morales ●Arq. Juan Palacios Rojas ●Msc. Arq. Jorge Zaldívar Suárez ALUMNOS Aguilar Aymachoque Rosario Aquise Luque Luz Deysi Cochachin Florecin Jhon Brandon Cuadros Claro Marko Padilla Suazo Virginia Pozada Ramirez Otto Alexander Quispe Palomino Adiel Ramos de la Cruz Bryan Alexander Venero Lobatón Irving Vidal Chávez Esther G1 2.6 MOVILIDAD

El comienzo del camino.

En el Parque porcino el único medio de transporte disponible son las motos con ellas los habitantes se trasladan a lo largo de toda la Av, Chillón hasta llegar al paradero de motos ubicado en la Gambeta.

El recorrido desde el paradero hasta la Av.Central es de 6 minutos.

El tránsito fuera de escala.

4

La tranquilidad del paisaje.

En medio de este tránsito de grandes vehículos, podemos encontrar lugares con vistas muy tranquilas y relajantes, una de ellas es el río, con la naturaleza que se asoma y los cerros de fondo.

Nuevas granjas, nuevo futuro.

Estando en la Av.Chillón la principal imagen que se tiene, como nos comenta un vecino es el tránsito de trailers y camiones de carga que rompen con la escala de las Avenidas o las viviendas y comercios a su alrededor.

A lo largo de toda la vía paralela a la AV. central encontramos antiguas granjas y nuevas granjas que se van construyendo, las personas trabajando y camiones o camionetas que se mueven por las pequeñas industrias.

ALUMNOS

PAMPA DE LOS PERROS DIAGNÓSTICO

CÁTEDRA

●Msc. Arq. Robinson Ortiz Agama

●Arq. Carmen Cárdenas Flores

●Arq. Juan Palacios Rojas

● Arq. Alexey Carrasco

●Arq. Luis Morales

●Msc. Arq. Jorge Zaldívar Suárez

Aguilar Aymachoque Rosario

Aquise Luque Luz Deysi

Cochachin Florecin Jhon Brandon

Cuadros Claro Marko

Padilla Suazo Virginia

Pozada Ramirez Otto Alexander

Quispe Palomino Adiel

Ramos de la Cruz Bryan Alexander

Venero Lobatón Irving

Vidal Chávez Esther

APA107B TALLER DE
L43
DISEÑO 5B 2022-2
2
1
G1
3
3 2 1
4
APA107B TALLER DE DISEÑO 5B 2022-2 L44 PAMPA DE LOS PERROS DIAGNÓSTICO CÁTEDRA ●Msc. Arq. Robinson Ortiz Agama ● Arq. Alexey Carrasco ●Arq. Carmen Cárdenas Flores ●Arq. Luis Morales ●Arq. Juan Palacios Rojas ●Msc. Arq. Jorge Zaldívar Suárez ALUMNOS Aguilar Aymachoque Rosario Aquise Luque Luz Deysi Cochachin Florecin Jhon Brandon Cuadros Claro Marko Padilla Suazo Virginia Pozada Ramirez Otto Alexander Quispe Palomino Adiel Ramos de la Cruz Bryan Alexander Venero Lobatón Irving Vidal Chávez Esther G1 2.7 ANÁLISIS ETNOGRÁFICO

COSTUMBRES RELIGIOSAS

COSTUMBRES DEPORTIVAS

Festividad patronal en honor a la Santísima VirgendelasMercedes, esta celebración empieza en 1 de setiembre y se desarrollaalolargodel mes.

Lascelebraciones se dan en su mayor parte en la capilla VirgendelaMerced

2 Capilla Virgen de la Merced Campo deportivo

Losfinesdesemanayenfechasfestivasla poblacion se reune en un espacio en las riveras del rio Chillon para realizar actividadesdeportivas 1 2

G1

PAMPA DE LOS PERROS DIAGNÓSTICO

CÁTEDRA

●Msc. Arq. Robinson Ortiz Agama

●Arq. Carmen Cárdenas Flores

●Arq. Juan Palacios Rojas

● Arq. Alexey Carrasco

●Arq. Luis Morales

●Msc. Arq. Jorge Zaldívar Suárez

Aguilar Aymachoque Rosario

Aquise Luque Luz Deysi

Cochachin Florecin Jhon Brandon

Cuadros Claro Marko

Padilla Suazo Virginia

Pozada Ramirez Otto Alexander

Quispe Palomino Adiel

Ramos de la Cruz Bryan Alexander

Venero Lobatón Irving

Vidal Chávez Esther

APA107B TALLER DE
5B
L45
DISEÑO
2022-2
1
APA107B TALLER DE DISEÑO 5B 2022-2 L46 PAMPA DE LOS PERROS DIAGNÓSTICO CÁTEDRA ●Msc. Arq. Robinson Ortiz Agama ● Arq. Alexey Carrasco ●Arq. Carmen Cárdenas Flores ●Arq. Luis Morales ●Arq. Juan Palacios Rojas ●Msc. Arq. Jorge Zaldívar Suárez ALUMNOS Aguilar Aymachoque Rosario Aquise Luque Luz Deysi Cochachin Florecin Jhon Brandon Cuadros Claro Marko Padilla Suazo Virginia Pozada Ramirez Otto Alexander Quispe Palomino Adiel Ramos de la Cruz Bryan Alexander Venero Lobatón Irving Vidal Chávez Esther G1 2.6 FODA

FORTALEZAS

● -Se define un barrio, por la escala y por la unión para afrontar los problemas. Los vecinos se conocen

● -Se da la apropiación del área de recreación pública por los habitantes , los vecinos frecuentemente visitan la ribera del río chillón muchos se quedan contemplando el paisaje otros juegan en área verde aledaña y otros caminan.

O D A

OPORTUNIDADES

● -Espacios culturales, huacas

● -Elementos paisajísticos de gran impacto, ríos, cerros.

● -Zona pecuaria en proceso de crecimiento y organización. Industria porcina.

DISEÑO

DEBILIDADES

● Falta de planificación del territorio, en su crecimiento y organización.

● Falta de zona de actividades que refuercen el arraigo cultural

● Falta de servicios básicos como agua y desagüe.

AMENAZAS

Invasiones en espacios protegidos Contaminación del río y mala gestión de desechos por parte de las industrias.

APA107B TALLER DE
Pampas del río Chillón
F
F
S E N S I B L E
O D A S E N S I B L E
APA107B DISEÑO ARQUITECTÓNICO 5B PRIMERA ETAPA: REFERENTES PAMPA DE LOS PERROS GRUPO 1 Aguilar Aymachoque Rosario 100% Aquise Luque Luz Deysi 100% Cochachin Florecin Jhon Brandon 100% Cuadros Claro Marko 100% Padilla Suazo Virginia 100% Pozada Ramirez Otto Alexander 100% Quispe Palomino Adiel 100% Ramos de la Cruz Bryan Alexander 100% Venero Lobatón Irving 100% Vidal Chávez Esther 100% INTEGRANTES CÁTEDRA Msc. Arq. Robinson C. Ortiz Agama Arq. Carmen Florelí Cárdenas Flores Arq. Juan Luis Palacios Rojas Arq. Luis Enrique Morales Delgado Arq. Alexey Carrasco Escárcena VENTANILLA, CALLAO,PERÚ
1. CASOS PARADIGMÁTICO 1.1 TOPOFILICO 1.CENTRO DE INTERPRETACIÓN DE LATECNOLOGÍA 2.GRAN MALECÓN DE BARRANQUILLA 3.PLATAFORMAACTIVA 1.2TIPOLOGICO 1. CENTRO DETECNOLOGÍAYOFICIOS KAWARTHA. 2. CENTROTECNOLÓGICOYCULTURALDETONGHUA 3. CENTRO DE INTERPRETACIÓN DE LAAGRICULTURAYLAGANADERÍA/ALDAYJOVER 1.3 PARAMÉTRICO 1.FACHADABODEGA VIÑEDO GANTENBEIN 2.PUENTEATYRAU 3.CENTRO DE INVESTIGACIÓN EN LASELVA 1.4ARTÍSTICO 1. CENTRO PARALACULTURAMUNDIALREYABDULAZIZ 2. COMPANIADE SOSTENIBILIDADYGESTIONAMBIENTAL: BEE´AH 3. COLEGIO DAHOP 1.5 URBANO MORFOLOGICO 1. SOUTH DAGENHAM 2. CIUDAD DELDEPORTE EN VENTANILLA 3. RENOVACIÓN DELCENTRO HISTÓRICO DEAREQUIPA 1.6 HITOS DELSECTORYALREDEDORES 2. MATRIZ DE CASUÍSTICA 3. PROGRMAURBANA-ARQUITECTÓNICO ÍNDICE

1. CASOS PARADIGMÁTICOS

1.1TOPOFILICO 1. CENTRO DE INTERPRETACIÓN DE LA TECNOLOGÍA 2. GRAN MALECÓN DE BARRANQUILLA 3. PLATAFORMA ACTIVA

REFERENTE TOPOFÍLICO

FICHA TÉCNICA

Cliente:Parque TecnológicoSA Ciudad:Derio,Bizkaia País:España

UBICACIÓN

Arquitectos:IDOM;ACXT Área:2600m² Año:2009

CENTRO DE INTERPRETACIÓN DE LA TECNOLOGÍA

CONCEPTO

A10KmdelaciudaddeBilbao,tieneunrío(Asua)yun arroyo(Untza).

Elcentro,seplanteóparaserun hitoenarmoníaconelpaisaje.Se tienedosvolúmenesque emergendelmonte.Unvolumen tieneuncaracterpesadoalser negrometalico.Elotrovolumen contrariamenteesmásligeroya queutilizaelvidrioqueleotorga esatransparenciayacompañado porunacubiertadecésped concretalaidea.

RELACIÓN CON EL CONTEXTO

Conunpaisajede montesdebajaaltura tieneunGeniusLucci Clásico,puestiene asentamientos modernosconedificios delaépocamedieval.

Seobservaqueestáenelparquefrenteaotrosusos,sin embargoalposarsesobrelacolina,yusandoformas angularesdestacayseamarraalentorno.

Ambos volúmenes se unen debajo de la rasante por lo que la idea de excentricidad por encima de la monte se redondea,yaquenoperceptiblelaunión metiendosealterrenoatravesdeunarampa.

El BTECK, es un edificio que se acopla al entorno inmediato y de la ciudad. Pues responde morfológicamente y funcionalmente al contexto.Además que los arquitectos diseñaron el edificio como dos bloques que parecen emerger del monte levantado y otro Echado. Logrando resaltar del entorno. Sin embargo la forma del edificio complica el diseño en el interior se observa como los salones tienen espacios residuales,Así mismo, tienen un carácter lúdico que es en respuesta al objetivo que es incentivar el estudio de tecnología en los estudiantes.

G1

ANÁLISIS PARADIGMÁTICO

CÁTEDRA

●Msc. Arq. Robinson Ortiz Agama

●Arq. Carmen Cárdenas Flores

●Arq. Juan Palacios Rojas

APA107B TALLER DE DISEÑO
2022-2
5B
Cuentacon3salonesparalaenseñanzadetecnología.Estossalones sonmuydinámicosporloque inspiradinamismoyfacilitanla enseñanzadelatecnología

PARADIGMÁTICO

●Arq. Carmen Cárdenas Flores ●Arq. Luis Morales

●Arq. Juan Palacios Rojas

●Msc. Arq. Jorge Zaldívar Suárez

Cochachin Florecin Jhon Brandon Cuadros Claro Marko Padilla Suazo Virginia

Ramos de la Cruz Bryan Alexander Venero Lobatón Irving Vidal Chávez Esther

APA107B TALLER
L6
DE DISEÑO 5B 2022-2

G1

ANÁLISIS PARADIGMÁTICO

CÁTEDRA

●Msc. Arq. Robinson Ortiz Agama

●Arq. Carmen Cárdenas Flores

●Arq. Juan Palacios Rojas

● Arq. Alexey Carrasco

●Arq. Luis Morales

●Msc. Arq. Jorge Zaldívar Suárez

ALUMNOS

Aguilar Aymachoque Rosario

Aquise Luque Luz Deysi

Cochachin Florecin Jhon Brandon

Cuadros Claro Marko

Padilla Suazo Virginia

Pozada Ramirez Otto Alexander

Quispe Palomino Adiel

Ramos de la Cruz Bryan Alexander

Venero Lobatón Irving

Vidal Chávez Esther

APA107B TALLER
L7
DE DISEÑO 5B 2022-2

SECTOR CULTURAL

SECTOR DEPORTIVO - RECREATIVO

SECTOR PAISAJÍSTICO -TURÍSTICO

ALUMNOS

G1

ANÁLISIS PARADIGMÁTICO

CÁTEDRA

●Msc. Arq. Robinson Ortiz Agama

●Arq. Carmen Cárdenas Flores

●Arq. Juan Palacios Rojas

● Arq. Alexey Carrasco

●Arq. Luis Morales

●Msc. Arq. Jorge Zaldívar Suárez

Aguilar Aymachoque Rosario

Aquise Luque Luz Deysi

Cochachin Florecin Jhon Brandon

Cuadros Claro Marko

Padilla Suazo Virginia

Pozada Ramirez Otto Alexander

Quispe Palomino Adiel

Ramos de la Cruz Bryan Alexander

Venero Lobatón Irving

Vidal Chávez Esther

APA107B TALLER
L8
DE DISEÑO 5B 2022-2

REFERENTE TOPOFÍLICO

Arq:RicardoVivesGuerra(Líderdelproyecto)

Fecha:2019

Lugar:Barranquilla-Colombia

Este proyecto liderado por la Alcaldía de Barranquilla eselespaciopúblicomásvisitadodeColombia.

La Unidad Funcional 1 abarca la oferta gastronómica, enlaqueestáelCaimándelRíoyManglaresdelRío.

La Unidad Funcional 2 es el espacio recreativo que cuenta con parques infantiles, una plaza para eventos culturales,entreotrosespaciosdestinadosalocio.

En todo el diseño se tomaron en cuenta características típicas de Barranquilla, como la topografía, geografía, historia, vecinos y el clima, todo ello visto en elementos como materiales, colores y conceptos.

TOPOGRAFÍA

GRAN MALECÓN DE BARRANQUILLA

RELACIÓN

CON EL PAISAJE

SIMBOLOGÍA

La sensibilidad para diseñar este espacio ha brindado la posibilidad de encuentros, realizar deporte, paseos familiares y avistamiento de aves; recargar los teléfonos, ver un show de breakdance o contemplar el río.

PROGRAMA

G1

ANÁLISIS PARADIGMÁTICO

CÁTEDRA

●Msc. Arq. Robinson Ortiz Agama

●Arq. Carmen Cárdenas Flores

●Arq. Juan Palacios Rojas

● Arq. Alexey Carrasco

●Arq. Luis Morales

●Msc. Arq. Jorge Zaldívar Suárez

ALUMNOS

Aguilar Aymachoque Rosario

Aquise Luque Luz Deysi

Cochachin Florecin Jhon Brandon

Cuadros Claro Marko

Padilla Suazo Virginia

Pozada Ramirez Otto Alexander

Quispe Palomino Adiel

Ramos de la Cruz Bryan Alexander

Venero Lobatón Irving

Vidal Chávez Esther

APA107B TALLER DE DISEÑO
L9
5B 2022-2

TERMAS DE VALS

FICHA TÉCNICA

Cliente:Hotelund ThermalbadValsAG Ciudad:Graubunden Canton País:Suiza

UBICACIÓN

Poststrasse560,7132Vals,Suiza

Arquitectos:Peter Zhumtor Área:2000m² Año:1993-1996

CONCEPTO

El concepto utilizado por Zumthor para diseñar los baños y el spa, posteriores al hotel, fuecrearunaestructuraconformadecuevao cantera. Inspirado por los alrededores naturales, la sala de baños fue ubicada debajo de un techo de hierba, una estructura semienterradaenlaladera.

termales del cantón suizo de Los Girasoles, GraubundenCanton,Suiza.

Laconcepcióndelosespaciosserealizadesdeelinteriorhaciaelexterioryestáinspiradaenimágenessensiblesdela experienciafísica.Estasideas sontraducidasdirectamenteaarquitectura mediantedistintosrecursoscomolaluz,la continuidadointerrupcióndelespacio,cambiosdenivel,etc.

Vals es el último lugar en el valle, más adelante sólo hay montañas y cielo. Por otro lado está Ticino y entre ellos, los exuberantes prados alpinos, formaciones rocosas escarpadas, viaductos, y la cantera. Detrás, la elegante pirámide del Zervreilahorn.

Elplanteoespacial,determinadoapartirdelaexcavacióndelapendientebrindaunmarcosimpleyrefinadoparaelactodelbañoen comunidad,vistocomounritualdelimpiezadelcuerpoydelavidamundana.. […]“Yocreoquetodoedificioemiteunsonido…Encuentrohermosoconstruirunedificioeimaginarloensusilencio.Estoes,hacerdel edificiounlugarsosegado,algobastantedifícildelograrhoyendíaquenuestromundoestanruidoso”[…] Zhumtor, P.

ALUMNOS

Aguilar Aymachoque Rosario

Aquise Luque Luz Deysi

Cochachin Florecin Jhon Brandon

Arq. Juan Palacios Rojas Msc. Arq. Jorge Zaldívar Suárez

Cuadros Claro Marko Padilla Suazo Virginia

Pozada Ramirez Otto Alexander

Quispe Palomino Adiel

Ramos de la Cruz Bryan Alexander

Venero Lobatón Irving

Vidal Chávez Esther

APA107B TALLER DE
5B
L10
DISEÑO
2022-2
G1
REFERENTE TOPOFÍLICO

CONCLUSIONES

Cliente : Parque

Tecnológico SA

Ciudad : Derio, Bizkaia País : España

Arquitectos: IDOM ACXT

Área : 2600 m² Año 2009

GENIUS

LOCI DEL SITIO RESPUESTA TOPOGRÁFICA RESPUESTA PAISAJÍSTICA RELACIÓN CON LO EDIFICADO

CLÁSICO

sucontextoesunaciudad queseexpandióenla modernidad

● El río Magdalena

● El deporte

● Las fiestas

● Carnaval de Barranquilla

Arq: Ricardo Vives Guerra

(Líder del proyecto)

Fecha: 2019

Lugar: BarranquillaColombia

Todos estos se encuentran reflejados en el programa del proyecto.

● La tierra

● La vitalidad.

● La Paz

Arq. Peter Zhumtor

Fecha: 1996

Lugar: Graubunden Canton, Suiza

Se definirá un partido arquitectónico en base a los 3 referentes topofílicos analizados

El malecón respeta la topografía del terreno creando visuales hacia el río Magdalena.

HITO

Unboquesalesignificativamente m,as,ademasresaltaporquese usaronacabdosentonosnegros

DESTACA

En un contexto de bloques cuadrados o rectangulares, el CIT destaca sin ser completamente radical.

EMERGE DEL MONTE

Fuediseñadoparaserun hitoenelparque.Seusóla angularidadparadestacar

responde morfológicamente al contexto.Ya que, los arquitectos diseñaron el edificio como dos bloques que parecen emerger del monte levantado y otro Echado

El genius loci de los tres proyectos está ligado a la cultura y creencias de cada lugar.

Las termas de Vals responden a una pendiente pronunciada.

Detrás, la elegante pirámide del Zervreilahorn.

El diseño del malecón respeta la trama del paisaje urbano.

La forma del malecón responde a la topografía del lugar, la cual está conformada por el río y la ciudad.

La sensibilidad para diseñar este espacio ha brindado la posibilidad de encuentros, realizar deporte, paseos familiares y avistamiento de aves; recargar los teléfonos, ver un show de breakdance o contemplar el río.

El desarrollo de los 3 proyectos están definidos por la topografía del lugar.

CÁTEDRA

Los 3 referentes buscan relacionarse con el paisaje natural, a través de su forma y sus remates visuales.

Conecta los equipamientos con los nodos principales de la zona.

Crear una estructura con forma de cueva o cantera. Inspirado por los alrededores naturales,

El planteo espacial, determinado a partir de la excavación de la pendiente brinda un marco simple y refinado para el acto del baño en comunidad, visto como un ritual de limpieza del cuerpo y de la vida mundana..

Los 3 proyectos guardan relación con el entorno urbano, en materialidad, color y forma.

ANÁLISIS PARADIGMÁTICO

●Msc. Arq. Robinson Ortiz Agama

●Arq. Carmen Cárdenas Flores

●Arq. Juan Palacios Rojas

ALUMNOS

Aguilar Aymachoque Rosario

Muy aparte de mimetizarse con el entorno, los 3 referentes buscan adoptar la forma del lugar y su historia.

● Arq. Alexey Carrasco

●Arq. Luis Morales

●Msc. Arq. Jorge Zaldívar Suárez

Aquise Luque Luz Deysi

Cochachin Florecin Jhon Brandon

Cuadros Claro Marko

Padilla Suazo Virginia

Pozada Ramirez Otto Alexander

Quispe Palomino Adiel

Ramos de la Cruz Bryan Alexander

Venero Lobatón Irving

Vidal Chávez Esther

APA107B TALLER DE DISEÑO 5B 2022-2 L11
G1
REFERENTE TOPOFÍLICO REFERENTES FICHA
GRAN MALECÓN
TÉCNICA SIMBOLOGÍA
DE BARRANQUILLA
TERMAS DE VALS BTEK
CONCLUSIONES
TIPOLÓGICO 1. CENTRO DETECNOLOGÍAYOFICIOS KAWARTHA. 2. CENTROTECNOLÓGICOYCULTURALDETONGHUA 3. CENTRO DE INTERPRETACIÓN DE LAAGRICULTURAYLA GANADERÍA/ALDAYJOVER
1.2

Parte central de la universidad de Sir Arthur Fleming, utilizó un diseño innovador para aprovechar el interés del campus y la comunidad en los oficios especializados y los programas de capacitación.

Dos volúmenes que se insertan en el terreno para poder conectar el nivel del ingreso con la parte final hundida del terreno, además se superponen entre sí elevándose levemente el volumen más importante, un cubo que corresponde a la fábrica de aprendizaje.

PROGRAMA

Gestión de proyectos. 610 m2

INFERIOR

Recibo y envío de materiales y productos. 420 m2

Fábrica de aprendizaje - 1550m2

Talleres de producción. 3 - 1100 m2

Oficinas 220m2

Esparcimiento

ANÁLISIS PARADIGMÁTICO

CÁTEDRA

●Msc. Arq. Robinson Ortiz Agama

●Arq. Carmen Cárdenas Flores

●Arq. Juan Palacios Rojas

● Arq. Alexey Carrasco

●Arq. Luis Morales

●Msc. Arq. Jorge Zaldívar Suárez

ALUMNOS

Aguilar Aymachoque Rosario

Aquise Luque Luz Deysi

Cochachin Florecin Jhon Brandon

Cuadros Claro Marko

Padilla Suazo Virginia

Pozada Ramirez Otto Alexander

Quispe Palomino Adiel

Ramos de la Cruz Bryan Alexander

Venero Lobatón Irving

Vidal Chávez Esther

APA107B TALLER DE DISEÑO 5B
L13
2022-2
G1 REFERENTE TIPOLÓGICO 1: CENTRO
OFICIOS
DE TECNOLOGÍA Y
KAWARTHA
AÑO
UBICACIÓN:Peterborough, Canadá.
ARQUITECTOS
: Perkins + Will Toronto Office
: 2014
1 2 2 3 4 5 6 3 6 PRIMER NIVEL NIVELINFERIOR
Vestíbulo 240m2 NIVEL
Salones educativos. 825 m2
Oficinas 100 m2 Terraza 240 m2 Vestíbulo principal. 110 m2 PRIMER NIVEL
FICHA TÉCNICA CONCEPTO Y CONTEXTO ESPACIALIDAD FUNCIONAMIENTO Y FLUJOS INTERNOS VESTÍBULO DE INGRESO SALONES OFICINAS ÁREADE PROYECTOS VESTÍBULO INFERIOR OFICINAS FÁBRICADE APRENDIZAJE TALLERES DE PRODUCCIÓN TERRAZA RECIBOY ENVÍOS PRIMER NIVEL NIVEL INFERIOR ESPACIO DE ESPARCIMIENTO CAMPO DE APRENDIZAJE CUBO DE ENSEÑANZA

UBICACIÓNYEMPLAZAMIENTO

FORMA Y CONCEPTO

FUNCIONAMIENTO

SALA DE INVESTIGACIONES

PRIMER NIVEL

MUSEO NATURAL CIRCULACIÓN MUSEO DEARTE

SALADE INVESTIGACIONES

SEGUNDO NIVEL

SALADE INVESTIGACIONES

El proyecto se ubica cerca al río en la falda de la montañaTonghua.

El edificio es el remate de la trama urbana abriéndose a la calle central.

Fecha: 2016

Ubicación :Tonghua China

Arquitectos : CCTN Design

PRIMER NIVEL

Se pretende mediante la forma no alterar el paisaje natural, para ello se recrea en la cubierta la forma irregular de las montañas plasmando un arte tradicional como la papiroflexia.

Además se distinguen los tres principales bloques que lo componen.

PROGRAMA

SEGUNDO

INTERIOR

ANÁLISIS PARADIGMÁTICO

CÁTEDRA

●Msc. Arq. Robinson Ortiz Agama

●Arq. Carmen Cárdenas Flores

●Arq. Juan Palacios Rojas

MUSEO DE CIENCIAY TECNOLOGÍA

SALADE INVESTIGACIONES

MUSEO DEARTE CIRCULACIÓN

TERCER NIVEL

SALADE INVESTIGACIONES

MUSEO DE HISTORIA

MUSEO DEARTE CIRCULACIÓN

ESPACIALIDAD

ALUMNOS

● Arq. Alexey Carrasco

●Arq. Luis Morales

●Msc. Arq. Jorge Zaldívar Suárez

Pozada

Venero Lobatón Irving

Vidal Chávez Esther

APA107B TALLER DE DISEÑO 5B 2022-2 L14
Aguilar Aymachoque Rosario Aquise Luque Luz Deysi Cochachin Florecin Jhon Brandon Cuadros Claro Marko Padilla Suazo Virginia
Ramirez Otto Alexander
Quispe Palomino Adiel Ramos de la Cruz Bryan Alexander
G1 REFERENTE TIPOLÓGICO 2: CENTRO
CULTURAL
TONGHUA
TECNOLÓGICO Y
DE
SALAS DE INVESTIGACIÓNY AUDITORIOS
NIVEL
MUSEOSTEMÁTICOS MUSEO DEARTES
TERCER NIVEL

REFERENTE TIPOLÓGICO 3: Centro De Interpretación De La Agricultura Y La Ganadería / aldayjover

RELACIÓN CON ELCONTEXTO

Tipología: PaisajismoUrbanismo

Fecha: 2013- 2012

Ciudad: Pamplona País: España

Localizada en Pamplona, Navarra, provincia de España, es un proyecto diseñado por Alday-Jover Arquitectos. Esta propuesta busca fomentar y difundir el cultivo ecológico, así como recuperar la biodiversidad de las semillas locales de vegetales de la huerta de la zona.

CONCEPTOYFORMA

En el contexto cultural y social de Pamplona, el Parque público deAranzadi tiene la voluntad de mantener el carácter del paisaje agrícola conciliando con la funcionalidad hidráulica; en consecuencia, el edificio de la Fundación inserto en este paisaje se plantea con una sola planta cuya materialización está cerca de la configuración de los invernaderos. En este afán de integración, se utiliza una paleta material de policarbonato, vidrio, malla de sombra de invernaderos, estructura ligera y plantación de trepadoras.

FUNCIONALIDAD

PROGRAMA

Sala de reuniones, oficinas y despachos. Sala de exposición productos de calidad.

Tres largas naves separadas, articuladas a través de un vestíbulo, dan forma a un edificio colocado sobre un basamento de hormigón.

TECNOLOGÍAYCONSTRUCCIÓN

G1

INTERIOR

ANÁLISIS PARADIGMÁTICO

CÁTEDRA

●Msc. Arq. Robinson Ortiz Agama

●Arq. Carmen Cárdenas Flores

●Arq. Juan Palacios Rojas

● Arq. Alexey Carrasco

●Arq. Luis Morales

●Msc. Arq. Jorge Zaldívar Suárez

ALUMNOS

Aguilar Aymachoque Rosario

Aquise Luque Luz Deysi

Cochachin Florecin Jhon Brandon

Cuadros Claro Marko

Padilla Suazo Virginia

Pozada Ramirez Otto Alexander

Quispe Palomino Adiel

Ramos de la Cruz Bryan Alexander

Venero Lobatón Irving

Vidal Chávez Esther

APA107B TALLER DE
L15
DISEÑO 5B 2022-2
INTERIOR ACCESOYMUSEOGRAFÍA VESTÍBULO GENERALYRECEPCIÓN A1 RECONVERSIÓNANTIGUACASAGURBINDO A2 SALADE EXPOSICIÓN PRODUCTOS CALIDAD A3 SALADE VIDEO A4 FORMACIÓN SALAS DE FORMACIÓN F1 GASTRONOMÍA SALA G1 TALLER COCINA G2 OFICINAS SALADE REUNIONES. OFICINASY DESPACHOS F1 INSTALACIONES F10 EXTERIOR PÉRGOLADEACCESO E1 PORCHE PARAGRUPOSAULAEXTERIOR E2 PORCHE DEACCESO DE TRABAJADORES E3 PORCHE DE SALIDAA AULAEXTERIOR E4 RAMPADEACCESO E5 TERRAZAMIRADOR SOBRE LAHUERTA E6 ESTABLO EN RUINA RECUPERADA E7 HUERTAS EXPOSITIVAS E8 CEDRO CENTENARIO E9 CORTE EXTERIOR
Nave
Nave
Sala
1
2 Nave 3
TallerCocina Salas de Formación Vestíbulo general y recepción

UBICACIÓN:Peter borough, Canadá. ARQUITECTOS: Perkins + Will Toronto Office

AÑO: 2014

PROGRAMA CONTEXTO Y CONCEPTUALIZACIÓN

Dos volúmenes que se insertan en el terreno para poder conectar el nivel del ingreso con la parte final hundida del terreno. Además mediante la transparencia interior se busca conectar los diferentes espacios y actividades.

PRIMER NIVEL

Vestíbulo principal. 110 m2

Gestión de proyectos. 610 m2

Salones educativos. 825 m2

Oficinas 100 m2

Terraza 240 m2

NIVELINFERIOR

Recibo y envío 420 m2

Fábrica de aprendizaje 1550m2

Talleres de producción. 1100 m2

Oficinas 220m2 Vestíbulo 240m2

VESTÍBULO DE INGRESO

UBICACIÓN:

Tonghua China

ARQUITECTOS : CCTN Design

AÑO: 2016

Se pretende mediante la forma no alterar el paisaje natural, para ello se recrea en la cubierta la forma irregular de las montañas. Además se distinguen los tres principales bloques que lo componen.

SALAS DE INVESTIGACIÓNY AUDITORIOS

MUSEOSTEMÁTICOS

MUSEO DEARTES

Tres largas naves separadas, articuladas a través de un vestíbulo, dan forma a un edificio colocado sobre un basamento de hormigón.

Los edificios analizados se componen de volúmenes visiblemente separados debido a que tienen usos marcados, pero que interiormente se integran mediante visuales o áreas de estar.

En cada nivel de los proyectos tenemos un conjunto de actividades compatibles entre sí y que se relacionan mediante un espacio central el cual permite acceder a ellos y conectar con otros niveles.

ANÁLISIS PARADIGMÁTICO

SALONES

ESPACIO DE ESPARCIMIENTO

PRIMER NIVEL NIVEL INFERIOR

TALLERES DE PRODUCCIÓN

FÁBRICADE APRENDIZAJE

TERRAZA

OFICINAS ÁREADE PROYECTOS VESTÍBULO INFERIOR OFICINAS

El edificio cumple con la idea de relacionar funciones sin llegar a mezclarlas, lo hace mediante las visuales, las dobles alturas y las entradas.

CAMPO DE APRENDIZAJE

RECIBOY ENVÍOS

CUBO DE ENSEÑANZA Estructurado con pórticos de concreto, con un cubo interior de estructura metálica y una fachada de madera para armonizar con el paisaje

SALADE INVESTIGACIONES

MUSEO DE CIENCIAY TECNOLOGÍA

FUNCIONALIDAD Y FLUJOS CONCLUSIONES

SALADE INVESTIGACIONES

MUSEO DEARTE

Estructurado con pórticos y losas de concreto de concreto y una cubierta fachada de metal para realizar los pliegues.

Sistema de apertura de cubiertas para el intercambio de aire. Esquema geometría horizontal

Además mantiene el buen funcionamiento logrando entender los flujos peatonales existentes .

El edificio integra la cultura y la ciencia, creando en cada espacio de exposición un área de investigación. El espacio central de triple altura intenta relacionar visualmente espacios, pero la gran cantidad de escaleras perimetrales torna caótico el espacio.

La edificación está referida a preservar la agricultura del lugar, al estudio de mejores tecnologías que ayuden a mejorar la siembra de las plantas del lugar que son aptas también para la ganadería.

El vestíbulo como espacio de recepción e información además de mostrar visualmente los distintos espacios que aunque se encuentran muy bien marcados intentan conectarse visualmente.

El uso central está dedicado a la formación e investigación, pero no olvida incentivar a la comunidad sobre temas de importancia, como cultura.

ALUMNOS

CÁTEDRA

●Msc. Arq. Robinson Ortiz Agama

●Arq. Carmen Cárdenas Flores

●Arq. Juan Palacios Rojas

● Arq. Alexey Carrasco

●Arq. Luis Morales

●Msc. Arq. Jorge Zaldívar Suárez

En el centro de interpretación tenemos tecnologías de sistema de apertura de cubiertas para el intercambio de aire

Aguilar Aymachoque Rosario

Aquise Luque Luz Deysi

Cochachin Florecin Jhon Brandon

Cuadros Claro Marko

Padilla Suazo Virginia

Pozada Ramirez Otto Alexander

Quispe Palomino Adiel

Ramos de la Cruz Bryan Alexander

Venero Lobatón Irving

Vidal Chávez Esther

APA107B TALLER DE DISEÑO 5B
L16
2022-2
G1 REFERENTE TIPOLÓGICO REFERENTES
TECNOLOGÍA Y
Centro De Interpretación De La Agricultura Y La Ganadería / aldayjover
Alday-Jover
FICHA TÉCNICA
MATERIALIDAD
Arq.:
Arquitectos Fecha: 2013-2012 Lugar: Pamplona, Navarra, España
CONCLUSIÓN
DE TECNOLOGÍA Y OFICIOS KAWARTHA CENTRO TECNOLÓGICO Y CULTURAL DE TONGHUA
CENTRO

TOPOFÍLICO

CONCLUSIONES

CONTEXTO

PROGRAMA

Esquema geometría horizontal.

● La agricultura que se preserva en el lugar

Sistema de apertura de cubiertas para el intercambio de aire.

Se definirá un partido arquitectónico en base a los 3 referentes topofílicos analizados

El genius loci de los tres proyectos está ligado a la cultura y creencias de cada lugar.

G1

El desarrollo de los 3 proyectos están definidos por la topografía del lugar.

CÁTEDRA

Los 3 referentes buscan relacionarse con el paisaje natural, a través de su forma y sus remates visuales.

ANÁLISIS PARADIGMÁTICO

●Msc. Arq. Robinson Ortiz Agama

●Arq. Carmen Cárdenas Flores

●Arq. Juan Palacios Rojas

● Arq. Alexey Carrasco

●Arq. Luis Morales

●Msc. Arq. Jorge Zaldívar Suárez

ALUMNOS

Aguilar Aymachoque Rosario

Aquise Luque Luz Deysi

Cochachin Florecin Jhon Brandon

Cuadros Claro Marko Padilla Suazo Virginia

APA107B TALLER DE DISEÑO 5B 2022-2
REFERENTE
Venero Lobatón Irving Vidal Chávez Esther REFERENTES FICHA TÉCNICA TECNOLOGÍA
Centro De Interpretación De La Agricultura Y La Ganadería / aldayjover
Arq.: Alday-Jover
Arquitectos Fecha: 2013-2012 Lugar: Pamplona, Navarra, España
Y CONCEPTUALIZACIÓN
FUNCIONALIDAD MATERIALIDAD

Arq.: Alday-Jover Arquitectos Fecha: 2013-2012 Lugar: Pamplona, Navarra, España

●Msc. Arq. Robinson Ortiz Agama

●Arq. Carmen Cárdenas Flores

●Arq. Juan Palacios Rojas

ALUMNOS

● Arq. Alexey Carrasco

●Arq. Luis Morales

●Msc. Arq. Jorge Zaldívar Suárez

Pozada Ramirez Otto Alexander

Quispe Palomino Adiel Ramos de la Cruz Bryan Alexander

Venero Lobatón Irving Vidal Chávez Esther

APA107B TALLER DE DISEÑO 5B 2022-2 L18
ANÁLISIS PARADIGMÁTICO CÁTEDRA
Aguilar Aymachoque Rosario Aquise Luque Luz Deysi Cochachin Florecin Jhon Brandon Cuadros Claro Marko Padilla Suazo Virginia
G1 REFERENTE TIPOLÓGICO FICHA TÉCNICA TECNOLOGÍA Y MATERIALIDAD Centro De Interpretación De La Agricultura Y La Ganadería / aldayjover
PROGRAMA CONTEXTO Y CONCEPTUALIZACIÓN FUNCIONALIDAD Y FLUJOS CONCLUSIONES CONCLUSIÓN EJEMPLO DEL FORMATO DE LA LÁMINA. GUIARSE DE LA INFORMACIÓ N DE CADA PUNTO.
DE FLUJOS
LOS
DIAGRAMAS
PROGRAMA IRÍAUN LISTADO DE LAS ÁREASY USOSYSI ES POSIBLE UN DIAGRAMA CIRCULAR PARA SABER LOS PORCENTAJES.
DIAGRAMA
PODRÍAN IR
DOS
COMBINADOS PARAQUEALCANCE ELESPACIO, JERARQUIZAR LAS FLECHAS DONDE HAYMAYORES FLUJOSYPONER SI ELFLUJO ES DE AMBOS SENTIDOS. EN EL
1.3 PARAMÉTRICO 1.FACHADABODEGA VIÑEDO GANTENBEIN 2.PUENTEATYRAU 3.CENTRO DE INVESTIGACIÓN EN LASELVA

REFERENTE PARAMÉTRICO CUBIERTA CENTRO POMPIDOU METZ

MODULACIÓN

TECNOLOGÍA

UBICACIÓN: Metz, Francia ARQUITECTO: ShigeruBanArchitects

AÑO: 2010

FICHA TÉCNICA CONCEPTO

FORMA

Formadelacubierta

CARÁCTER

El Hexágono para los francesesesunsímbolode su país ya que es similar a la forma geográfica de Francia. Además contiene un patrón de triángulos equiláteros inspirados en los sombreros asiáticos de bambú.

SombreroChinode pajahexagonaltejido

Diseñarunacubiertade proteccióndetechosy voladizos,queseadaptea lascaracterísticas requeridas

SIMBOLISMO

Este sombrero simboliza la permanencia, flexibilidad y desmontabilidad que necesitaelproyecto

MATERIAL

Techo ondulado laminado de madera rodea estructura de metal encerrando el espacio del equipamiento. Membrana de vidrio traslúcido y textiles deteflón

MODELADO 3D PARAMÉTRICO: DYNAMO STUDIOS + REVIT

FUNCIÓN

Alavanzarporelpatioylosjardinesque unenelcentrodelaciudaddeMetzyla estación con el centro Pompidou, los visitantesdescubriránunequipamiento que les invita a tomar refugio bajo su techoprotector

Una arquitectura que refleja la apertura,mezcladeculturasybienestar enrelaciónalentorno.

CÁTEDRA

En este proyecto podemos concluir como la arquitectura paramétrica en este tipo de equipamientos nos permite realizar estructuras no convencionales sin la necesidad de ceñirnos aestructurasaporticadasincluyendoconceptosdelavidadiariaoautóctonosdel lugar que nos ayuden a cubrir las necesidades requeridas de un proyecto, así como la materialidadflexiblequenospermiteextraerlaluzdelosequipamientosymostrarlosal mundo.

ALUMNOS

Aguilar Aymachoque Rosario

ANÁLISIS PARADIGMÁTICO

●Msc. Arq. Robinson Ortiz Agama

●Arq. Carmen Cárdenas Flores

●Arq. Juan Palacios Rojas

● Arq. Alexey Carrasco

●Arq. Luis Morales

●Msc. Arq. Jorge Zaldívar Suárez

Pozada

Quispe

APA107B TALLER DE DISEÑO 5B 2022-2 L20
Aquise Luque Luz Deysi
Cochachin Florecin Jhon Brandon
Cuadros Claro Marko Padilla Suazo Virginia
Ramirez Otto Alexander
Palomino Adiel Ramos de la Cruz Bryan Alexander
G1
Venero Lobatón Irving Vidal Chávez Esther

REFERENTE PARAMÉTRICO PUENTE ATYRAU

FICHA TÉCNICA

LUGAR:Astaná,Kazajistán.

ARQUITECTOS: NewMoon Arquitects AÑO: 2018 MEDIDAS:314mdelongitud 10.5mdeancho

FORMA

IMAGEN Y CARÁCTER

Diseñadodemaneraparamétrica,dosmilquinientostrozosde

fachada individuales de su caparazón crean un refugio del espacio público y dan una sensación de lugar. Es verdaderamenteunodelosdestinosturísticosdondealagente leencantareunirseytraerasusinvitadosdevisita.

Su forma de diseño y fachada se refieren al símbolo de la región de Atyrau, un endémico único: el esturión delCaspio.

SIMBOLISMO

TECNOLOGÍA

MATERIAL

Esqueleto de acero con capas especiales de fibras orgánicas y UPVC (policloruro devinilo)

MODELADO 3D PARAMÉTRICO: DYNAMO STUDIOS + REVIT

APA107B TALLER DE DISEÑO 5B 2022-2 L21 ANÁLISIS PARADIGMÁTICO CÁTEDRA ●Msc. Arq. Robinson Ortiz Agama ● Arq. Alexey Carrasco ●Arq. Carmen Cárdenas Flores ●Arq. Luis Morales
Arq. Juan Palacios Rojas
Msc. Arq. Jorge Zaldívar Suárez ALUMNOS Aguilar Aymachoque Rosario Aquise Luque Luz Deysi Cochachin Florecin Jhon Brandon Cuadros Claro Marko Padilla Suazo Virginia Pozada Ramirez Otto Alexander Quispe Palomino Adiel Ramos de la Cruz Bryan Alexander Venero Lobatón Irving Vidal Chávez Esther G1
FUNCIÓN
CONCEPTO evocarelsímbolodelazonaen unhito Flujo principal Accesos

SIMBOLISMO

CONCEPTO

evocarelfrutotípicodelazona:

FORMA

La mampostería en la fachada del viñedosevecomounagrancanasta llena de uvas. Al verla de cerca, los contrastes generan un efecto pictórico, mostrando una suavidad de textiles entre los materiales. El observador se sorprende al ver que esta superficie tan suave está realmente hecha de algo tan duro comoladrillos.

TECNOLOGÍA

Elproyectoeslaextensiónaunpequeño pero exitoso viñedo. Los productores de vino querían un nuevo edificio de servicios, con una gran sala de fermentación para el procesamiento de las uvas, una bodega enterrada para el almacenamiento de los barriles de vino y una terraza en el techo para las recepcionesydegustaciones.

La mampostería actuaría como un filtro de temperatura e iluminación, especial paralasaladefermentación.Losladrillos seacomodandemodoquelaluzdedía penetreatravésdelosmuros.

MATERIAL

La luz directa del sol es excluida porque podría arruinar el proceso de fermentación. Paneles de policarbonato se montaron alinteriorparaprotegerlodel viento. En el nivel superior, losladrillosformanbarandas paralaterrazaeneltecho.

APA107B TALLER DE DISEÑO 5B 2022-2 L22 ANÁLISIS PARADIGMÁTICO CÁTEDRA ●Msc. Arq. Robinson Ortiz Agama ● Arq. Alexey Carrasco ●Arq. Carmen Cárdenas Flores ●Arq. Luis Morales ●Arq. Juan Palacios Rojas ●Msc. Arq. Jorge Zaldívar Suárez ALUMNOS Aguilar Aymachoque Rosario Aquise Luque Luz Deysi Cochachin Florecin Jhon Brandon Cuadros Claro Marko Padilla Suazo Virginia Pozada Ramirez Otto Alexander Quispe Palomino Adiel Ramos de la Cruz Bryan Alexander Venero Lobatón Irving Vidal Chávez Esther G1 REFERENTE PARAMÉTRICO FACHADA BODEGA GANTENBEIN UBICACIÓN: Fläsch,Suiza ARQUITECTO: Gramazio& Kohler,Bearth& Deplazes Architekten AÑO: 2006
MODELADO 3D PARAMÉTRICO: RHINOCEROS 3D + GRASSHOPPER
DO MEJORAR LAMINA URGENTE,ALAPLANTILLA
uva EN UNA ANTÍTESIS LADRILLO (DURO) FRUTO SUAVE
APROBA

REFERENTE PARAMÉTRICO CENTRO DE INVESTIGACIÓN EN LA SELVA

IMAGEN Y CARÁCTER

FICHA TÉCNICA

PROYECTO: Centro deInvestigaciónen Amazonas

ARQUITECTO: EstudioArkiz

UBICACIÓN: Amazonas,Brasil

EstudioarkizesundespachooriginadoenSao Paulo donde compartieron su concepto para unnuevoproyectoenladensaselvaamazónica

El complejo consta de dos plataformas flotantes, cada una de las cuales puede albergar hasta 12 personas y laboratorios móviles para la investigación en el campo de la biología, la geología, la meteorología y la zoología. Estas estructuras también se pueden convertir en unidadesmédicasmóviles.

Se propone que la comunicación del transporte entre las plataformas se realice mediante catamaranes. Equipada con una vela y paneles solares, la embarcación de aluminio se puede utilizar durante aproximadamente una semana sin volver a cargar combustible.

CONTEXTO

ubicado en un entorno de particulares características,unecosistema dondesepuede desarrollarinvestigacionesespecializadas

ANÁLISIS PARADIGMÁTICO

DE FIBRA NATURAL

TECNOLOGÍA

Diseño Mecánico Parametrizado

Prototipo proyectado a incrementar el número de unidades móvilesconeltiempo

CÁTEDRA

APA107B TALLER DE DISEÑO 5B 2022-2 L23
Msc. Arq. Robinson Ortiz Agama
Arq. Alexey Carrasco
Arq. Carmen Cárdenas Flores
Morales
Arq. Luis
Arq. Juan Palacios Rojas
ALUMNOS Aguilar Aymachoque Rosario Aquise Luque Luz Deysi Cochachin Florecin Jhon Brandon Cuadros Claro Marko Padilla Suazo Virginia Pozada Ramirez Otto Alexander Quispe Palomino Adiel Ramos de la Cruz Bryan Alexander Venero Lobatón Irving Vidal Chávez Esther G1
Msc. Arq. Jorge Zaldívar Suárez
CUBIERTA
PLANTA
PLANTA BIODIGESTORA
ALA DE INVESTIGACIÓN
FOTOVOLTAICAS MUELLES ESTACIÓN NIVEL 1 ESTACIÓN NIVEL 2 ESTACIÓN NIVEL 3 ALA DE INVESTIGACIÓN 2 ALAS DE INVESTIGACIÓN 3 ALAS DE INVESTIGACIÓN ESTACIÓN NIVEL 4 ESTACIÓN NIVEL 5 4 ALAS DE INVESTIGACIÓN 5 ALAS DE INVESTIGACIÓN 12 UNIDADES DE INVESTIGACIÓN 9 UNIDADES DE INVESTIGACIÓN 18 CÁPSULAS DE LABORATORIO 3 UNIDADES DE INVESTIGACIÓN 6 UNIDADES DE INVESTIGACIÓN 16 UNIDADES DE INVESTIGACIÓN 90 CÁPSULAS DE LABORATORIO 36 CÁPSULAS DE LABORATORIO 54 CÁPSULAS DE LABORATORIO 72 CÁPSULAS DE LABORATORIO PANEL FRONTAL DE ACCESO CÁPSULAS DE LABORATORIO SIMBOLISMO formas y líneas curvas que simbolizan la sinuosidaddelaselvaamazónica FORMA, FUNCIÓN Y MATERIALIDAD APROBA DO MEJORAR LAMINA URGENTE,ALAPLANTILLA
COBERTURA GIRATORIA DE VIENTO
ESTRUCTURA METÁLICA MODULAR ESTACIÓN PRINCIPAL -
ALTA: VIVIENDAS
UNIDADES DE INVESTIGACIÓN ESTACIÓN PRINCIPAL - PLANTA BAJA: INSTALACIONES DE INVESTIGACIÓN
CUBIERTA DE CÉLULAS

LUGAR:Astaná,Kazajistán. ARQUITECTOS: NewMoon Arquitects AÑO: 2018

MEDIDAS 314mdelongitud 10.5mdeancho

hormigónsonlasmimbres ylafachadareflejalas formasdelafruta.

El volumen remite tipológicamente a una construcciónruralformada por un esqueleto de hormigónyunacubiertaa dos aguas revestida con placas onduladas de fibrocemento. lafachadadelviñedose vecomoungrancanasta llenodeuvas.Alverlade cerca, los contrastes generan un efecto pictórico,mostrandouna suavidadtextilesentrelos materiales.

MODELADO 3D PARAMÉTRICO: RHINOCEROS 3D + GRASSHOPPER

Suformade diseño y fachada se refieren al símbolodela región de Atyrau.

Estereferentenossirveparaver que las modulaciones paramétricas se pueden apreciar desde cosas pequeñas nosoloequipamientosgrandes quenosayudaránenelcarácter de los posibles proyectos así comoverladiferenciaentrelos tipos de estructuras paramétricas

Estereferentenossirveparaver que las estructuras paramétricas no solo se muestran en equipamientos si no también en puentes o coberturas que nos ayudan a conectar los flujos que necesitan ser solucionados, estas soluciones nos apoyan a darle carácter mediante conceptos y materialidad que puede ser autóctona o conocidadelazonaatrabajar.

Funciona con la cooperación de dos componentes, las unidades de investigaciónmóvilesylasestaciones deacoplamiento

El diseño paramétrico le da un carácter versátil y sostenible en el tiempo

Gracias al diseño paramétrico se pueden lograr espacios únicos, que alcanzan proyectos versátiles como este centro, dondesetienelaposibilidad de ampliar la capacidad de sus dimensiones sin que esto signifique desvirtuar el conjunto original. De manera particular este complejoesitinerante,leda laposibilidaddecambiarde locación y no afectar el propósitodesusfunciones

REFERENTES
CONCLUSIÓN
PARAMÉTRICOS
FICHA TÉCNICA CONCEPTO FORMA Y SIMBOLISMO
Puente Atyrau Fachada BodegaViñedo Gantenbein
Fläsch, Suiza
Architekten
Centro de Investigación en la Selva
Centro deInvestigación enelríoAmazonas
Estudio Arkiz
Amazonas, Brasil formas y líneas curvas que simbolizan la sinuosidad de la selvaamazónica IMAGEN
COBERTURA GIRATORIA DE VIENTO MUELLES CUBIERTA DE FIBRA NATURAL ESTRUCTURA METÁLICA MODULAR ESTACIÓN PRINCIPAL - PLANTA ALTA: VIVIENDAS UNIDADES DE INVESTIGACIÓN ESTACIÓN PRINCIPAL - PLANTA BAJA: INSTALACIONES DE INVESTIGACIÓN ALA DE INVESTIGACIÓN CUBIERTA DE CÉLULAS FOTOVOLTAICAS
TECNOLOGÍA Y MATERIALIDAD
UBICACIÓN:
ARQUITECTO: Gramazio&Kohler, Bearth&Deplazes
AÑO: 2006
PROYECTO:
ARQUITECTO:
UBICACIÓN:
Y CARÁCTER
El esturión del Caspio
evocarelfrutotípicodela zona:uva
CONCLUCION POR VARIABLE, POR VARIABLES
1.4 ARTÍSTICO 1. CENTRO PARA LA CULTURA MUNDIAL REY ABDULAZIZ 2. COMPANIA DE SOSTENIBILIDAD Y GESTION AMBIENTAL : BEE´AH 3. Colegio DA HOP

REFERENTE ARTÍSTICO CENTRO PARA LA CULTURA MUNDIAL REY ABDULAZIZ

FICHA TÉCNICA

CONCEPTO

Volúmenesqueseapilanyse entierranenlasuperficie

CARÁCTER

La forma singular del edificio representa un hito reconociblefácilmente

SÍMBOLO Y SIGNIFICADO

La cultura surge del pasado, y se eleva hacia el futuro.

Pasado y futuro conviven en el presente

VALORES PLÁSTICOS

PROPORCIÓN MATERIALIDAD Y TEXTURA LUZ

El proyecto presenta proporciones áureas, tanto por “bloque” como a nivel deconjunto

La cubierta está hecha de tubos de acero pulido doblados según la forma querequiera

Debido al material reflectivo del material de recubrimiento, el edificio obtiene un aspectobrillante duranteeldía,durantela noche una cinta recorre el edificio y lo ilumina.

RELACIÓN CON EL CONTEXTO

La ciudad de Dammam es un centro importante de transporte marítimo, petróleo, comercio e industria.

USUARIO

Está hecho para promover el desarrollo cultural dentro del Reino, estará al servicio de la población local y se convertirá en un hito cultural a nivel regional, nacionalymundial

MEMORIA COLECTIVA

El entorno está hecho para evocarasombroy recordar la resistencia constante y el trabajo duro en condiciones severas en la pionera extraccióndepetróleo.

ANÁLISIS PARADIGMÁTICO

CÁTEDRA

●Msc. Arq. Robinson Ortiz Agama

●Arq. Carmen Cárdenas Flores

●Arq. Juan Palacios Rojas

● Arq. Alexey Carrasco

●Arq. Luis Morales

●Msc. Arq. Jorge Zaldívar Suárez

ALUMNOS

Aguilar Aymachoque Rosario

Aquise Luque Luz Deysi

Cochachin Florecin Jhon Brandon

Cuadros Claro Marko

Padilla Suazo Virginia

Pozada Ramirez Otto Alexander

Quispe Palomino Adiel

Ramos de la Cruz Bryan Alexander

Venero Lobatón Irving

Vidal Chávez Esther

APA107B TALLER DE DISEÑO 5B
L26
2022-2
G1
➢ VALORES SEMIÓTICOS
ARQUITECTO: Snøhetta UBICACIÓN: Damman,ArabiaSaudita AÑO: 2017
VALORES CONTEXTUALES

REFERENTE ARTÍSTICO COMPANIA DE SOSTENIBILIDAD Y GESTION AMBIENTAL : BEE´AH

FICHA TÉCNICA

ARQUITECTO: ZahaHadidArchitects

UBICACIÓN: Dubai,EAU

AÑO: 2022

➢ VALORES PLÁSTICOS

PROPORCIÓN

Existe una proporción áurea entre “dunas”, tantoendóndecomienzanyterminancomo dondeseinterponen

➢ VALORES SEMIÓTICOS

CONCEPTO

Curvascóncavasyconvexasdanformaa la silueta del edificio, inspiradas en las dunasdeldesierto

SÍMBOLO Y SIGNIFICADO

El edificio transmite un entorno de protección del los recursos naturales creando un ecosistema integrado para el futuro

IMAGEN Y CARÁCTER

El carácter de la obra es ser un edificio completamente suministrado de energías renovables en un área de claro dominiodelpetróleo

MATERIALIDAD Y TEXTURA

Losmaterialessonclarosporellolaestructura es de hormigón blanco y la textura se ve representadaporlaspanelesfotovoltaicos

El edificio posee un espectáculo de luces alimentado por energía renovable,dando vida a la arquitectura

LUZ

➢ VALORES CONTEXTUALES

RELACIÓN CON EL CONTEXTO

El diseño comulga perfectamente con el paisaje y la cultura árabe y el proyectocuentacon unagranaceptación social.

ANÁLISIS PARADIGMÁTICO

CÁTEDRA

●Msc. Arq. Robinson Ortiz Agama

●Arq. Carmen Cárdenas Flores

●Arq. Juan Palacios Rojas

● Arq. Alexey Carrasco

●Arq. Luis Morales

●Msc. Arq. Jorge Zaldívar Suárez

USUARIO

La empresa Bee'ha, cumple el rol del usuario , además es pionera en el campo delasostenibilidad

HISTORIA

Despuésdecrecergraciasalpetróleo,elsectorfinancierode Emiratos se comprometió con el desarrollo sostenible por elloayudaránalasempresasconfinanciacionesverdespara desarrollarunanuevaeconomíabasadaenlasostenibilidad ycomprometidaconelobjetivodeemitirceroemisionesde carbono

ALUMNOS

Aguilar Aymachoque Rosario

Aquise Luque Luz Deysi

Cochachin Florecin Jhon Brandon

Cuadros Claro Marko

Padilla Suazo Virginia

Pozada Ramirez Otto Alexander

Quispe Palomino Adiel

Ramos de la Cruz Bryan Alexander

Venero Lobatón Irving

Vidal Chávez Esther

APA107B TALLER DE
5B
L27
DISEÑO
2022-2
G1

REFERENTE ARTÍSTICO ESCUELA DE PRIMARIA DA HOP

FICHA TÉCNICA

ARQUITECTO: 1+1>2 arquitectos

UBICACIÓN: Hoabihn,Vietnam

AÑO: 2017

PROPORCIÓN

Se puede observar la variación de las dunas en diferentes proporciones, esto se da para generar movimiento en los

Tres bloques intercaladamente forman espacios exteriores e interioresdemaneradinámica

Serecogelamemoriacolectivaculturalyaque se abstrae los colores de su vestimenta tradicionalparalascubiertas

los quiebres de los techos son en referenciaalosjuegos tradicionales

RELACIÓN CON EL ENTORNO

El proyecto busca revalorar como unazonarecreativa lariberadelrío , por lo que se colocarán las losas campo

CONCEPTO

El concepto o idea principal es fortalecer la hombre , naturaleza y cultura desde la etapa de aprendizaje escolar

VALORES PLÁSTICOS

Dentro de sus valores plásticos se rescata el dinamismo en la forma y volumen ,y el contraste entre los materiales

VALOR SEMIÓTICO

El objeto arquitectónico demuestra una intención de diseño asociada al usuario y naturaleza del equipamiento

VALORES CONTEXTUALES

Es el aspecto más valorado , ya que relaciona la imagen del proyecto con la identificación de aspectos culturales

DISEÑO Padilla Suazo Virginia

CENTRO PARA LA CULTURA MUNDIAL REY ABDULAZIZ

ARQUITECTO: Snøhetta UBICACIÓN: Damman, Arabia Saudita AÑO: 2017

Elconceptosebasaen bloquesapiladosque conformanunasola unidad

La forma singular del edificio representa un hito reconocible fácilmente a nivel localymundial

La cultura surge del pasado, y se eleva hacia el futuro. Asimismo tanto pasado como futuroconvivenenelpresente

El proyecto presenta proporcionesáureas

La textura se compone por tubos de acero pulido doblados según laformaquerequiera

Funciona como hito para la ciudad, además que gracias a la materialidad esté resaltar tanto de día comodenoche

Tiene una agradable proporcionalidad, basado enlaproporciónáurea

COMPANIA DE SOSTENIBILID AD Y GESTIÓN

AMBIENTAL : BEE´AH

ARQUITECTO: Zaha Hadid Architects UBICACIÓN: Dubai, EAU AÑO: 2022

Curvascóncavasy convexasdanformaala siluetadeledificio, inspiradasenlasdunas

Elcarácterdelaobraes ser un edificio completamente suministrado de energías renovables en un área de claro dominiodelpetróleo

Proteje

Existe una proporción áureaentre“dunas”,tanto en dónde comienzan y terminan como donde se interponen

La textura se ve representada por los panelesfotovoltaicosen lasuperficiedeltecho

El proyecto se mimetiza en el paisaje y es amigableconelentorno

Daunfuertemensajepor su ubicación paradójica en un lugar que comulga conlocontrario

Tiene una agradable proporcionalidad

ARQUITECTOS: 1+1>2 arquitectos UBICACIÓN: ciudad de hoa binh, Vietnam AÑO 2019

AMISTAD

ARMONÍA

CULTURA

El concepto o idea principal es fortalecer la relación hombre naturaleza y cultura ,para crear un lugar acogedorestudiantil

La forma y dimensiones del proyecto lo hace un objeto reconocible y diferenciable en el barrio

Proteje

CONCLUSIONES

Los proyectos están concebidas e ideadas por inspiración de acuerdo al uso y el contexto

El carácter hace que las obras representan un objetoúnicoymuyfácil de reconocer por su formayfunción

El edificio genera un ambiente lleno de color y movimiento , esto es con la finalidad de representar y reintepretar el paisajeentremontañas

La textura se compone por celosías verticales y vidrio y concreto pulidos se colocan según las actividadesarealizar

Se puede observar la variación de las dunas en diferentes proporciones, esto se da para generar movimiento en los volúmenes

El proyecto genera un dinamismo visual que al mismo tiempo afianza la relación de hombreconlaculturay lanaturaleza

mayor claridad

La materialidad en los proyectosañadevalorala estética como a lo

Pozada Ramirez Otto Alexander

Quispe Palomino Adiel

Ramos de la Cruz Bryan Alexander

Venero Lobatón Irving Vidal Chávez Esther

APA107B TALLER DE DISEÑO 5B 2022-2 L29
ANÁLISIS PARADIGMÁTICO
G1 REFERENTE ARTÍSTICO REFERENTES FICHA TÉCNICA MATERIALIDAD
CONCEPTO CARÁCTER SÍMBOLO
Y TEXTURA ESCUELA DE PRIMARIA DA HOP
PROPORCIÓN
CONCLUSIONES
Brota Brota

APROBA DO

MEJORAR,AUMENTAR VARIABLES

En los 3 proyectos analizados, podemos observar que sus valores semióticos están estrechamente relacionados con la población y el tipo de edificio

En los 3 proyectos analizados,los valores plásticos se diferencian de acuerdo al tipo de materialidad , tipo de lenguaje y otros . Esto se debe a la diferencia de lugar , sin embargo en todos se toma como un punto de partida para generar sensaciones agradables

Los valores contextuales de los 3 proyectos refleja que fueron pensados en el tiempo y espacio correctos, de manera que no se ven como proyectos aterrizados al lugar

VALOR SEMIÓTICO

El objeto arquitectónico transmite un mensaje de atemporalidad, teniendo somo tema la cultura mundial

VALORES PLÁSTICOS

La forma del proyecto además de tener proporciones áureas, funciona como hito para la ciudad, además que gracias a la materialidad este resaltar tanto de día como de noche

VALORES CONTEXTUAL

La ubicación estratégica, convierte a la arquitectura no solo un hito local sino mubdial

VALOR SEMIÓTICO

El proyecto revalora la cultura tradicional y lo plasma en la ciudad

VALORES PLÁSTICOS

Las proporciones del proyecto otorgan un carácter moderno y poco convencional, que se adecua al entorno

VALORES CONTEXTUALES

El entorno montañoso, acerca la ciudad a la arquitectura por ende éste toma su forma

VALOR SEMIÓTICO

El objeto arquitectónico demuestra una intención de diseño asociada al usuario y naturaleza del equipamiento

VALORES PLÁSTICOS

Dentro de sus valores plásticos se rescata el dinamismo en la forma y volumen ,y el contraste entre los materiales

VALORES CONTEXTUALES

Es el aspecto más valorado , ya que relaciona la imagen del proyecto con la identificación de aspectos culturales

Se definirá un partido arquitectónico artístico , siguiendo los criterios de los 3 referentes artísticos analizados

APA107B TALLER DE DISEÑO 5B 2022-2 L30 ANÁLISIS PARADIGMÁTICO CÁTEDRA
Msc. Arq. Robinson Ortiz Agama
Arq. Alexey Carrasco
Arq. Carmen Cárdenas Flores
Arq. Luis Morales
Arq. Juan Palacios Rojas
Msc. Arq. Jorge Zaldívar Suárez
Ramirez Otto Alexander
Palomino Adiel Ramos de la Cruz Bryan Alexander Venero Lobatón Irving Vidal Chávez Esther G1 REFERENTES ARTISTICOS CONCLUSIÓN REFERENTES VALORES SEMIOTICOS CENTRO PARA LA CULTURA MUNDIAL REY ABDULAZIZ Colegio DA HOP CENTRO DE INVESTIGACIÓN DISEÑO Y PRODUCCION YANGSAN SI VALORES PLASTICOS VALORES CONTEXTUAL CONCLUSIONES Y /O APORTES AL CITP
Pozada
Quispe
AMISTAD ARMONÍA CULTURA
1.5 URBANO MORFOLOGICO 1. SOUTH DAGENHAM 2. CIUDAD DELDEPORTE EN VENTANILLA 3. RENOVACIÓN DELCENTRO HISTÓRICO DEAREQUIPA

SOUTH DAGENHAM

FICHA TÉCNICA

Ciudad : Londres

País : Inglaterra

Arquitectos: Maccreanor Lavignton Architects

Año : 2003

UBICACIÓN

South Dagenham West está situado al oeste de la planta deproducciónFordy limita al sur y al norte por las carreteras A13 y A1306. La mayoríadeSouth DagenhamWestespropiedad de AXA. La planta de producciónFord,ubicada entre Checkers Lane y Kent Avenue,sigueactualmenteen funcionamiento.

CONTEXTO

South Dagenham está compuesto por un suburbio residencial y una franja costera industrial en declive. Posee una carretera principal que lo atraviesa haciendo así que llegar a la zona de viviendas sea más accesible. Cerca a la zona industrial se encuentra el río Támesis, aunque la costa en netamente industrial,losmuellespertenecenalasfábricas

DESCRIPCIÓN Y PROPUESTA

Lazonaestácompuestaporunatramaregularenlazonaindustrial,peroenlazonaresidencial,latramasevuelvemásorgánica. Lacarretera transversalatraviesalazonaresidencialypartealazonaindustrialhastallegaralríoTámesis

ElproyectodetransformacióndeSouthDagenhamWestdebebuscarunusomixto,viviendasycomercios,aplicandoensusdeterminacionesun diseño ambiental de calidad y un uso integral de materiales sostenibles. Propuesta de intensificación urbana. Sustitución de viviendas unifamiliaresporotrasmásdensasydeusomixto

VIVIENDAS ZONA INDUSTRIAL RÍO

APA107B TALLER DE DISEÑO 5B 2022-2 L32 ANÁLISIS PARADIGMÁTICO CÁTEDRA ●Msc. Arq. Robinson Ortiz Agama ● Arq. Alexey Carrasco
Arq. Carmen Cárdenas Flores ●Arq. Luis Morales
Arq. Juan Palacios Rojas
Msc. Arq. Jorge Zaldívar Suárez ALUMNOS Aguilar Aymachoque Rosario Aquise Luque Luz Deysi Cochachin Florecin Jhon Brandon Cuadros Claro Marko Padilla Suazo Virginia Pozada Ramirez Otto Alexander Quispe Palomino Adiel Ramos de la Cruz Bryan Alexander Venero Lobatón Irving Vidal Chávez Esther G1 REFERENTE MORFOLÓGICO RELACIÓN CON ELCONTEXTO
FUENTE: Google Earth
SOUTHDAGENHAM

REFERENTE MORFOLÓGICO

FICHA TÉCNICA

Ciudad : Callao, Lima País : Perú

Arquitectos: Arquitectos J. Bentín, A. Montagne y A. Ortiz de Zevallos Año : 1985

UBICACIÓN

Se ubica al norte de la Provincia Constitucional del Callao en el distrito de Ventanilla, a 2256 m.s.n.m. Se accede a través de la Avenida interurbana Nestor Gambeta. Que ahora es llamada Antonia Moreno Caseres.

RELACIÓN CON EL CONTEXTO

El proyecto, se adapta al contexto físico y cultural del entorno pues se observa como hay hundimientos en los retranqueos de los cerros, sin ubicarse en las laderas. Así mismo la existencia de varias canchas como puntos de encuentrohacefactiblelasociabilización.

CIUDAD DEL DEPORTE

CONCEPTO

El eje central de la propuesta contiene las áreas libres de recreación y deporte, además en el centro de él se ubica el centrocívicocultural

TRAMA

Su respuesta con anillo octogonales que están ordenados de manera lineal y que el centro cambia la trama pues responde a otro equipamiento diferente a residencial. Esta forma además permite ser flexible en las faldas de los cerros.

Ejecentral,quecontieneáreas recreativasydeocioydeporte.Yenel centroseubicaelcentrocívicocultural Extraído

Ciudad del Deporte en Ventanilla Extraido de http://www.josebentinarquitectos.com/proyectos_2.php?id_ga=oJI=&id_sub=p5U=

G1

Enestazonasecelebranprocesiones,parrilladas,ferias.Osealasdinámicassocialesdelosvecinos

El proyecto se propone una regeneración urbana a partir de una remodelación del espacio público, para esto es importantelaintegraciónvecinal

La ciudad del deporte, es una respuesta de urbanización en el Perú de los 80. Cuando el centro ya era extremadamente poblado y las zonas lejanas ya requerían ser urbanizadas. Respecto a la propuesta es sumamente interesante, pues es evidente la comprensión que si bien los autos son importante para una ciudad no pueden ser el centro

.Al realizar estas vías colectoras angulares, favorecen al peatón o se configura un mejor espacio urbano. Por otro lado, al colocar en cada centro de los anillos espacios recreativos y deportivos se logra una mejor conexión social entre los residentes.Yrespecto al equipamiento, colocarlo en el centro es una respuesta clara para abastecer a la urbanización. El principal problema que le veo es su mayor aporte pues en caso de emergencia, el acceso del camión de bomberos es complicado.

ALUMNOS

ANÁLISIS PARADIGMÁTICO

CÁTEDRA

●Msc. Arq. Robinson Ortiz Agama

●Arq. Carmen Cárdenas Flores

●Arq. Juan Palacios Rojas

● Arq. Alexey Carrasco

●Arq. Luis Morales

●Msc. Arq. Jorge Zaldívar Suárez

Aguilar Aymachoque Rosario

Aquise Luque Luz Deysi

Cochachin Florecin Jhon Brandon

Cuadros Claro Marko

Padilla Suazo Virginia

Pozada Ramirez Otto Alexander

Quispe Palomino Adiel

Ramos de la Cruz Bryan Alexander

Venero Lobatón Irving

Vidal Chávez Esther

APA107B TALLER DE DISEÑO
L33
5B 2022-2
Son anillos que esta unidos con ejes dinámicos
PlanNacionaldeViviendaFernandoBelaúndeTerry
de: Símbolo
VÍA ARTERIAL VÍA COLECTORA VÍA ZONAL
Urbano para la Cohesión Social. https://www.construccionyvivienda.com/2021/03/10/concurso-parque-del-deporte-simbolo-urbano-para-la-cohesion-social/

RENOVACIÓN DEL CENTRO HISTÓRICO DE AREQUIPA

ElCentroHistóricodeArequipa,sehaidourbanizandoyrenovandoalpasardelosaños desdelaépocadondetodoerazonaagrícolayganadera,hastalacontemporánea.Aún así,nosehaperdidolazonaagrícolayganaderaquepresentaasusalrededores,yaque estomandoenpuestadevalorcomopatrimonioprincipalqueformapartedelahistoria.

En este aspecto se puede recalcar que la Cuenca del Río Chili, puede abastecer aún a zonasverdesymejoradasáreasagrícolasyganaderas,,asícomolohacerespectivamente elRíoChillónconrespectoalaszonasporcinasquesedesarrollanalrededoryala dePerros.

APA107B TALLER DE DISEÑO 5B 2022-2 L34 REFERENTE URBANO MORFOLÓGICO:

VIVIENDAS

ZONA INDUSTRIAL RÍO

Año : 2003

Ciudad : Arequipa

País : Perú

Renovación urbana a lo largo de los años del Centro Histórico de Arequipa.

Sehanbuscadoejemplosen contextossimilares.Yde proyectosyaejecutados puesayudaráaverel impactoenmedianoplazo

Seconcluyequela comprensióndelterreno realmenteesimportante, puesalserproyectosdegran magnitudnopueden impactarsignificativamente alentorno.

Seveunazonificaciónclara enlostresproyectos,así mismo,queestonoes condicionantealusode suelo.Tambiénseobserva unapreocupaciónporlas áreasverdesenlos3.

Mantiene una trama ortogonal regular en la zona residencial, sin embargo la trama industrial es más masiva

CLASIFICACIÓN DE VÍAS

EnelcasodelproyectoenArequipa, respondealatramacuadricularde sucontextohistórico.Mientrasque enelproyectodeLondreses ortogonalporCONPLETASAQUIy porúltimoenVentanillaesmás orgánicorespondiendoala topografía

Posee una vía longitudinal industrial u una vía transversal que conecta a las manzanas

Elreferentetienecierta similitudmorfológicavial respectoalazonade estudio,sinembargo algunasdelaspropuestas delreferentenosonviables enelterreno,comola densificacióndeviviendas, perosinsepuedecombinar usosylograrviviendastaller

Lostresreferentespresentanvías queatraviesanlazonaurbana, facilitandoelrecorrido.Lasvíasque secruzanpresentanjerarquíalo cualpermitelallegadadeusuarios quevienendelejos.

Pozada

Quispe

Alrealizarestasvías colectorasangulares, favorecenalpeatónose configuraunmejorespacio urbano.Porotrolado,al colocarencadacentrode losanillosespacios recreativosydeportivosse lograunamejorconexión socialentrelosresidentes.Y respectoalequipamiento, colocarloenelcentroesuna respuestaclarapara abasteceralaurbanización.

El gran cambio que se dio en el centro histórico de Arequipa, a lo largo del tiempo fue desde las campiñas. el agro y la pecuaria a una urbe organizada conservando las campiñas. Esta característica valiosa de recuperación de las campiñas y el agro favorecen mucho a su valor como patrimonio histórico, al igual que podría suceder en la zona de Pampa de Perros, y la zona pecuaria.

APA107B TALLER DE DISEÑO 5B 2022-2 L35 ANÁLISIS PARADIGMÁTICO CÁTEDRA
Msc. Arq. Robinson Ortiz Agama
Arq. Alexey Carrasco
Arq. Carmen Cárdenas Flores
Arq. Luis Morales
Arq. Juan Palacios Rojas
Msc. Arq. Jorge Zaldívar Suárez ALUMNOS
Aymachoque Rosario Aquise Luque Luz Deysi Cochachin Florecin Jhon Brandon
Claro Marko Padilla Suazo Virginia
Aguilar
Cuadros
Ramirez Otto Alexander
Palomino Adiel
de la Cruz Bryan Alexander
Lobatón Irving
Chávez Esther G1 REFERENTES FICHA TÉCNICA RESPUESTA TOPOGRÁFICA CONCLUSIONES South Dagenham Renovación del Centro Histórico de Arequipa USOS DE
Ramos
Venero
Vidal
SUELO TRAMA URBANA
observa como existen más viviendas en los retranqueos de los cerros, sin ubicarse en las laderas.
Se
VÍA ARTERIAL
VÍA COLECTORA VÍA ZONAL
conclusiones
Se observa un terreno llano, con un río ancho en una zona industrial Se observa a toda la zona industrial cerco al río y a las viviendas más alejadas
completas, no lo entendi

1.6 HITOS DEL SECTOR Y ALREDEDORES GENIUS LOCI

UN PARQUE OLVIDADO

Polvo y arena que eres ahora, ,Acaso no te acuerdas cuando naciste?... Entre verdes sueños y claras aguas, De bellas promesas de un futuro eterno y constante.

Hoy has dejado suspiros al viento, Como toda la calma perdida en tu centro. de tu rostro de arcilla parchado con madera y cemento. No queda historia ,sino sólo cuentos.

No me digas que el canto se ha vuelto lamento, Cuando los gallinazos alzan el vuelo y los perros ladran hambrientos. se construye ese futuro incierto donde se oyen los fuertes ecos

Tu río que está apagado por el paso del tiempo, Aún respira con verde de breve intento, Entre montañas de basura y resquebrajado pavimento, Aún anhela ser libre empujando sus escombros sedientos.

Dime qué tu gente no te ah olvidado!, que insiste con la semilla de surgir que hay en sus venas, Que trabaja de sol a sol bajo el calor extenuante , Yque ha convertido la basura ,en una moneda de oro muy bella .

Dime qué es difícil encontrar la alegría, Pero que lo intentas en esas aulas milagrosas.. Que recuperas la esperanza de vivir día tras día, Aunque te atormenten esas notas ruidosas.

Si supieras que irás aprendiendo Acrecer entre tanto ruido, Con el pasar de los inmensos camiones,y el zumbido de los gigantes de acero Hoy tendrías melódicos sueños de niño.

Confía en el aullido de la noche, Que reclama que sigas luchando , Aún sumergida entre la arena Como tesoro que aguarda ser descubierto ....

El Parque porcino de Ventanilla fue fundado el 6 de mayo de 1970 con la REFORMA AGRARIA del presidente JUAN VELASCO ALVARADO

Se encuentra en la margen derecha del Río Chillón que representa al menos el 10 por ciento del agua utilizada en la ciudad. Un río que nace en los Andes peruanos y fluye por más de cien kilómetros a través de Lima hasta el Océano Pacífico.El segundo río más importante de Lima es un nido de contaminación. El río Chillón ha servido durante años de desagüe natural alimentado por los desechos de urbanizaciones y viviendas cercanas a la ribera que no han dejado de crecer.

La central de energía termoeléctrica de ventanilla no solo es la central de mayor capacidad sino también la más moderna y eficiente del país. Además de marcar un hito como la primera central de ciclo combinado del Perú, tiene a lo largo de la avenida chillon mas de 12 torres de alta tension.

La Institución Educativa 4021,Daniel Alcides Carrión del distrito de Ventanilla –Callao.cuenta con 830 alumnos entre inicial y primaria Institucion Educativa Inicial n° 170 Señor de los milagros cuenta con clases en turno Mañana, con unas 3 secciones y tiene un total aproximado de 49 alumnos

Cerca se ubica La Huaca Pampa de los Perros que forma parte del Complejo Arqueológico El Paraíso y presenta una antigüedad de 2000 a 1500 años antes de nuestra era. además de un anterior enlucido de color rosado.

Es considerable el número de gallinazos y perros ubicados en la zona ,siendo este último topónimo de la misma.

CÁTEDRA

ANÁLISIS PARADIGMÁTICO

APA107B TALLER DE DISEÑO 5B 2022-2 L37
Msc. Arq. Robinson Ortiz Agama
Arq. Alexey Carrasco
Arq. Carmen Cárdenas Flores
Arq. Luis Morales
Arq. Juan Palacios Rojas
ALUMNOS Aguilar Aymachoque Rosario Aquise Luque Luz Deysi Cochachin Florecin Jhon Brandon Cuadros Claro Marko Padilla Suazo Virginia
Ramirez Otto Alexander Quispe Palomino Adiel Ramos de la Cruz Bryan Alexander Venero Lobatón Irving Vidal Chávez Esther
Msc. Arq. Jorge Zaldívar Suárez
Pozada
G1
HITOS

MODO DE ENTENDER ELMUNDO

La sociedad de Caral tuvo una cosmovisión del mundo en armonía con la preservación del medio geográfico y sus recursos, así como, también, con el orden observado en el espacio sideral.Teniendo en cuenta esas dimensiones, el ser humano ubicó su verdadera condición, de ser parte de la naturaleza y del universo.

IDEOLOGÍA

Todas las acciones de la vida social, en la política, religión, economía, ciencia, etc., estaban relacionadas entre sí. Los líderes religiosos eran, a la vez, líderes políticos especializados en astronomía o medicina, entre otros campos.

Los señores eran los mediadores entre el grupo social que representaban, y el poder sobrenatural de los ancestros y dioses. La religión era el instrumento de gran efectividad para la cohesión pero también la coerción de la población; aseguraba el poder político, la jerarquía y el orden social. La sociedad participaba en las ceremonias calendarizadas por las autoridades y trabajaba para servir a sus dioses y a las autoridades, que los representaban ante ellos.

H

U N

O

Dios Viracicha o Wiracocha: También conocida como el Señor o Maestro de del Mundo, el primer Dios de la CulturaTiahuanaco, es el Dios creador supremo de todo el Universo y todo lo que contiene la naturaleza adoptando varias partes.

ANÁLISIS PARADIGMÁTICO

Festividad patronal en honoralaSantísimaVirgen de las Mercedes, esta celebración empieza en 1 desetiembreysedesarrolla alolargodelmes. Lascelebraciones sedanensumayorparteen la capilla Virgen de la Merced

CÁTEDRA

●Msc. Arq. Robinson Ortiz Agama

●Arq. Carmen Cárdenas Flores

●Arq. Juan Palacios Rojas

● Arq. Alexey Carrasco

●Arq. Luis Morales

●Msc. Arq.

Zaldívar

Pozada

APA107B TALLER DE DISEÑO 5B
L38
2022-2
Jorge
Suárez ALUMNOS Aguilar Aymachoque Rosario Aquise Luque Luz Deysi Cochachin Florecin Jhon Brandon Cuadros Claro Marko Padilla Suazo Virginia
Ramirez Otto Alexander
Quispe Palomino Adiel Ramos de la Cruz Bryan Alexander
GENIUS LOCI
Venero Lobatón Irving Vidal Chávez Esther G1
E L
2 1 2 1
INCA

2. MATRIZ DE CASUÍSTICA

3. PROGRAMA URBANO-ARQUIT ECTÓNICO

APA107B TALLER DE DISEÑO 5B 2022-2 L41 ANÁLISIS PARADIGMÁTICO CÁTEDRA ●Msc. Arq. Robinson Ortiz Agama ● Arq. Alexey Carrasco ●Arq. Carmen Cárdenas Flores ●Arq. Luis Morales ●Arq. Juan Palacios Rojas ●Msc. Arq. Jorge Zaldívar Suárez ALUMNOS Aguilar Aymachoque Rosario Aquise Luque Luz Deysi Cochachin Florecin Jhon Brandon Cuadros Claro Marko Padilla Suazo Virginia Pozada Ramirez Otto Alexander Quispe Palomino Adiel Ramos de la Cruz Bryan Alexander Venero Lobatón Irving Vidal Chávez Esther G1 PAQARI LLAQTA PROYECTO

SE EMPLEAUNAFORMULACIÓN DEACUPUNTURAURBANAPARA REGENERAR LAZONAEN FORMARADIALALPRINCIPALNODO (CRUCE DE LASAVENIDAS CHILLONYCENTRAL),ASI MISMO DIRECCIONAR LOS EJES DEACCIÓN EN DICHASAVENIDAS DEAFLUENTE COMERCIAL,AISLANDO LAS ZONAS RESIDENCIALES DE LAS ZONAS PRODUCTIVAS PARAOBTENER UN MEJOR CONFORT

SE DISTINGUEN CINCO TIPOS DE ZONAS EN ELÁREAA REGENERAR:

ZONAINDUSTRIAL

ZONARESIDENCIAL

ZONACOMERCIAL

ZONARECREACIONAL

ZONACULTURAL

VIVIENDACOMERCIO VIVIENDAALMACEN

CITEC—- PLANTADE PROCESAMIENTO RESTAURANTS TIENDAS TALLERES

RIBERA MALECÓN

HUACA-MUSEO

ELFLUJO DE USUARIOS SOBRE LAPARTE SUPERIOR DE LAAV.CHILLÓN SE DESPLAZADE MANERARADIAL,MIENTRAS QUE EN LAPARTE INFERIOR ESTETRÁNSITO ES DE MANERALINEALTRANSVERSAL

LOS EQUIPAMIENTOSACTUAN EN FORMADE RADIOS DE ACCIÓN,PARAESTO ES NECESARIOTENER UNADISTRIBUCIÓN EQUITATIVADE LOS MISMOS

PARADIGMÁTICO

●Arq. Carmen Cárdenas Flores

●Arq. Juan Palacios Rojas

●Arq. Luis Morales

●Msc. Arq. Jorge Zaldívar Suárez

Cochachin Florecin Jhon Brandon Cuadros Claro Marko Padilla Suazo Virginia

Ramos de la Cruz Bryan Alexander Venero Lobatón Irving Vidal Chávez Esther

APA107B TALLER DE DISEÑO 5B
L43
2022-2
G1 PROGRAMAURBANO

APA107B TALLER DE DISEÑO 5B 2022-2 L44 ANÁLISIS PARADIGMÁTICO
CÁTEDRA
Msc. Arq. Robinson Ortiz Agama
Arq. Alexey Carrasco
Arq. Carmen Cárdenas Flores
Arq. Luis Morales
Arq. Juan Palacios Rojas
Msc. Arq. Jorge Zaldívar Suárez ALUMNOS Aguilar Aymachoque Rosario Aquise Luque Luz Deysi Cochachin Florecin Jhon Brandon Cuadros Claro Marko Padilla Suazo Virginia Pozada Ramirez Otto Alexander Quispe Palomino Adiel Ramos de la Cruz Bryan Alexander Venero Lobatón Irving Vidal Chávez Esther G1

CENTRO

CÁTEDRA

●Msc. Arq. Robinson Ortiz Agama

●Arq. Carmen Cárdenas Flores

●Arq. Juan Palacios Rojas

● Arq. Alexey Carrasco

●Arq. Luis Morales

●Msc. Arq. Jorge Zaldívar Suárez

ALUMNOS

Aguilar Aymachoque Rosario

Aquise Luque Luz Deysi

Cochachin Florecin Jhon Brandon

Cuadros Claro Marko

Padilla Suazo Virginia

Pozada Ramirez Otto Alexander

Quispe Palomino Adiel

Ramos de la Cruz Bryan Alexander

Venero Lobatón Irving

Vidal Chávez Esther

APA107B TALLER DE DISEÑO 5B
L45
2022-2
ANÁLISIS PARADIGMÁTICO
G1
PROGRAMA- CITP
DE INVESTIGACIONTECNOLOGICA PECUARIA PAQUETES FUNCIONALES ADICIONALESYSU RELACIÓN CON ELENTORNO TOTAL: 2400 m2

CÁTEDRA

●Msc. Arq. Robinson Ortiz Agama

●Arq. Carmen Cárdenas Flores

●Arq. Juan Palacios Rojas

● Arq. Alexey Carrasco

●Arq. Luis Morales

●Msc. Arq. Jorge Zaldívar Suárez

ALUMNOS

Aguilar Aymachoque Rosario

Aquise Luque Luz Deysi

Cochachin Florecin Jhon Brandon

Cuadros Claro Marko

Padilla Suazo Virginia

Pozada Ramirez Otto Alexander

Quispe Palomino Adiel

Ramos de la Cruz Bryan Alexander

Venero Lobatón Irving

Vidal Chávez Esther

APA107B TALLER DE DISEÑO 5B 2022-2 L46
ANÁLISIS PARADIGMÁTICO
G1
CITP
CULTURAL,EDUCATIVO DE INVESTIGACIÓN PRODUCTIVA PAQUETES FUNCIONALES
TOTAL:
CENTRO CULTURAL EDUCATIVO DE INVESTIGACIÓN PRODUCTIVA CARÁCTER PRODUCTIVO CARÁCTER EDUCATIVO CARÁCTER CULTURAL CAPACITACIÓN PRODUCTIVA TALLERES FERIAS MUSEO DE SITIO FALTADE CENTROS EDUCATIVOS FALTADE ESPACIOS DE INVESTIGACIÓN FALTADE ESPACIOS DE CAPACITACIÓN PRODUCTIVA FALTADE ESPACIOS CULTURALES
PROGRAMA-
CENTRO
ADICIONALESYSU RELACIÓN CON ELENTORNO
3600m2

ANÁLISIS PARADIGMÁTICO

CÁTEDRA

●Msc. Arq. Robinson Ortiz Agama

●Arq. Carmen Cárdenas Flores

●Arq. Juan Palacios Rojas

ROSARIOY BRAYAN

● Arq. Alexey Carrasco

●Arq. Luis Morales

●Msc. Arq. Jorge Zaldívar Suárez

ALUMNOS

Aguilar Aymachoque Rosario

Aquise Luque Luz Deysi

Cochachin Florecin Jhon Brandon

Cuadros Claro Marko

Padilla Suazo Virginia

Pozada Ramirez Otto Alexander

Quispe Palomino Adiel

Ramos de la Cruz Bryan Alexander

Venero Lobatón Irving

Vidal Chávez Esther

APA107B TALLER DE DISEÑO 5B
L47
2022-2
G1 PROGRAMAVIVIENDAS
ss.hh Local Local ➢
almacén
100 200
sala / comedor cocina ss.hh Local Local sala / comedor cocina
Vivienda comercio ➢ Vivienda- almacen ss.hh cocina sala / comedor taller ss.hh
dep dep

APA107B TALLER DE DISEÑO 5B 2022-2 L48 ANÁLISIS PARADIGMÁTICO CÁTEDRA
Msc. Arq. Robinson Ortiz Agama
Alexey Carrasco
● Arq.
Carmen
Flores
Luis Morales
●Arq.
Cárdenas
●Arq.
Arq. Juan Palacios Rojas
Jorge Zaldívar Suárez
Rosario
Luz
●Msc. Arq.
ALUMNOS Aguilar Aymachoque
Aquise Luque
Deysi Cochachin Florecin Jhon Brandon Cuadros Claro Marko Padilla Suazo Virginia
Pozada Ramirez Otto Alexander
Quispe Palomino Adiel Ramos de la Cruz Bryan Alexander
G1 PROGRAMAPLANTADE EMBUTIDOS PROGRAMA ARQUITECTÓNICO ● Camara(Recepción) ● TrozadoyCorte ● Curado ● Mezclayenfundado ● Oreo ● Escaldado ● Ahumado ● Enfriamiento ● Comercialización ● SaladeMáquinas ● Controldecalidad Administración ● SS.HH. ● Controldeproducción Depósito ● Caldera ● Almacén ● Playaestacionamiento ● Circulaciones 100 80 100 80 70 60 100 80 90 70 100 100 50 80 70 60 100 100 70 INSUMOS
Venero Lobatón Irving Vidal Chávez Esther

● UBICACIÓN

Intersección Calle Amazonas y Calle Ayacucho.

SELECCIÓN DEL TERRENO

● Predominantementeplano.

● Alejado de zonas sujetas a erosión de cualquiertipo.

● Libredefallasgeológicas.

● Susceptibleainundaciones.

● Prescindir de terrenos: Arenosos, pantanosos, arcillosos, limosos, rellenossanitarios,antiguoslechosde ríos.

● Evitar terrenos con aguas subterráneas.

● PROGRAMA ARQUITECTÓNICO

● SALADEESPERAYUSOSMÚLTIPLES

● TÓPICODEPROCEDIMIENTOS

● CONSULTORIO x2

● ADMISIÓN(caja,archivoybotiquín)

● SERVICIOHIGIÉNICOPÚBLICO

● BOTADERO

● CUARTODEMÁQUINAS

● REPOSO

● SERVICIOSHIGIÉNICOSENREPOSO

● ALMACÉN

● 30%Circulación-MurosyAleros

● FUNCIONES

● DEFINICIÓN

Según el MINSA un establecimiento de Salud Tipo I - 2 debe brindar una atención integral Ambulatoria Médica, con énfasis en la promoción de la salud y prevención de la enfermedad.

● CARACTERÍSTICAS

Pertenecealprimerniveldeatención

G1

42.00 m2 24.00 m2 26.00 m2 8.00 m2 18.00 m2 2.50 m2 4.00 m2 14.00 m2 2.50 m2 12.00 m2 45.90 m2

TOTAL: 198.90 m2

FUNCIONES

PROMOCIÓN PREVENCIÓN RECUPERACIÓN

REHABILITACIÓN

● PERSONAL MÍNIMO

ANÁLISIS PARADIGMÁTICO

PERSONALMÍNIMO MÉDICO GENERAL ENFERMERA OBSTETRIZ

TÉCNICOSY/OAUXILIAR DE ENFERMERIA

CÁTEDRA

●Msc. Arq. Robinson Ortiz Agama

●Arq. Carmen Cárdenas Flores

●Arq. Juan Palacios Rojas

● Arq. Alexey Carrasco

●Arq. Luis Morales

●Msc. Arq. Jorge Zaldívar Suárez

ALUMNOS

Aguilar Aymachoque Rosario

Aquise Luque Luz Deysi

Cochachin Florecin Jhon Brandon

Cuadros Claro Marko

Padilla Suazo Virginia

Pozada Ramirez Otto Alexander

Quispe Palomino Adiel

Ramos de la Cruz Bryan Alexander

Venero Lobatón Irving

APA107B TALLER DE
L49
DISEÑO 5B 2022-2
Vidal Chávez Esther PROGRAMA- ESTABLECIMIENTO DE SALUD TIPO I - 2
DISEÑO APA107B DISEÑO ARQUITECTÓNICO 5B PRIMERA ETAPA:INVESTIGACIÓN PAMPA DE LOS PERROS GRUPO 1 Aguilar Aymachoque Rosario Aquise Luque Luz Deysi Cochachin Florecin Jhon Brandon Cuadros Claro Marko Padilla Suazo Virginia Pozada Ramirez Otto Alexander Quispe Palomino Adiel Ramos de la Cruz Bryan Alexander Venero Lobatón Irving Vidal Chávez Esther INTEGRANTES CÁTEDRA Msc. Arq. Robinson C. Ortiz Agama Arq. Carmen Florelí Cárdenas Flores Arq. Juan Luis Palacios Rojas Arq. Luis Enrique Morales Delgado Arq. Alexey Carrasco Escárcena VENTANILLA, CALLAO,PERÚ

PROGRAMA URBANO

ZONA AREA BRUTA

AMBIENTE

RECEPCIÓN 40 35 15 1

SALADE INTERPRETACIÓN 70 49 21 10

SALADE INVESTIGACIÓN 70 49 21 10

AUDITORIO 150 105 45 3

CAFETERÍA 70 49 21 1

SUM 150 105 45 2

MIRADOR 140 98 42 1

ADMINISTRACIÓN 110 77 33 1

SERVICIOS 70 49 21 2 ALMACENES 70 49 21 3

ESTACIONAMIENTO 70 49 21 3

TERRAZA 70 49 21 1

AREADE MAQUINAS 700 490 210 1

VESTIDORES 140 98 42 1

OFICINA 30 21 9 7

CAFETERÍA 150 105 45 1

MEDICINADELDEPORTE 80 56 24 1

AUDITORIO 400 280 120 1

ZONA AREABRUTA AMBIENTE ÁREA TOTAL ÁREA ÚTIL CIRCULACIÓNY MUROS CANTIDAD

ÁREADEACOPIO 300 210 90 1

CENTRO DE RECICLAJEY COMPOSTAJE 1500

ÁREADE COMPOSTAJE 200 140 60 3 ÁREADE SEGREGADO 300 210 90 1 ÁREADE RECICLADO 300 210 90 1

ADMINISTRACIÓN 300 210 90 1

ZONADE INVESTIGACIÓN 700 490 210 1

ZONADE CAPACITACIÓN 300 210 90 1

ZONADE PRODUCCIÓN 1120 784 336 1

CITE 3730

ZONACULTURAL 200 140 60 1

ZONARECREATIVA 600 420 180 1 COMERCIAL 200 140 60 1

ESTACIONAMIENTO 310 217 93 1

ZONAHÚMEDA 500 350 150 1

ZONASEMI-HÚMEDA 500 350 150 1

MERCADO 1677

ZONASECA 170 119 51 1 SERVICIOS GENERALES 80 56 24 1

CENTRO DEPORTIVO 2580

DUCHAS 140 98 42 1 BAÑOS 80 56 24 1

PISCINA 300 210 90 1

ADMINISTRACIÓN 30 21 9 1

SERVICIOS 70 49 21 1

SKATEPARK 140 98 42 2

TEMPLO 600 420 180 1

CENTRO CÍVICO 1800

COMISARIA 600 420 180 1

ADMINISTRACIÓN 600 420 180 1

G1

PAMPA DE LOS PERROS DIAGNÓSTICO

PLANTADE PROCESAMIENT OY CONSERVACIÓN DE LACARNE DE CERDO

ZONA COMPLEMENTARIA 210 147 63 1 ESTACIONAMIENTO 217 147 70 1

ACOPIO 154 84 70 1

MATADERO 154 84 70 1 PRODUCCIÓN 219 149 70 1

1184

ZONADE EVAPORACIÓN 219 149 70 1

ZONADE CONGELACIÓN 219 149 70 1

ZONADE EMPAQUE 219 149 70 1

ALUMNOS

CÁTEDRA

●Msc. Arq. Robinson Ortiz Agama

●Arq. Carmen Cárdenas Flores

●Arq. Juan Palacios Rojas

● Arq. Alexey Carrasco

●Arq. Luis Morales

●Msc. Arq. Jorge Zaldívar Suárez

Aguilar Aymachoque Rosario

Aquise Luque Luz Deysi

Cochachin Florecin Jhon Brandon

Cuadros Claro Marko

Padilla Suazo Virginia

Pozada Ramirez Otto Alexander

Quispe Palomino Adiel

Ramos de la Cruz Bryan Alexander

Venero Lobatón Irving

Vidal Chávez Esther

APA107B TALLER
L2
DE DISEÑO 5B 2022-2
ÁREA
ÁREATOTAL15611M2 ÁREA ÚTIL CIRCULACIÓN
TOTAL
Y MUROS CANTIDAD
CENTRO DE INTERPRETACIÓN CULTURAL 3140

CÁTEDRA

●Msc. Arq. Robinson Ortiz Agama

●Arq. Carmen Cárdenas Flores

●Arq. Juan Palacios Rojas

● Arq. Alexey Carrasco

●Arq. Luis Morales

●Msc. Arq. Jorge Zaldívar Suárez

ALUMNOS

Aguilar Aymachoque Rosario

Aquise Luque Luz Deysi

Cochachin Florecin Jhon Brandon

Cuadros Claro Marko

Padilla Suazo Virginia

Pozada Ramirez Otto Alexander

Quispe Palomino Adiel

Ramos de la Cruz Bryan Alexander

Venero Lobatón Irving

Vidal Chávez Esther

APA107B TALLER DE DISEÑO 5B
L3
2022-2
PAMPA DE LOS PERROS DIAGNÓSTICO
G1
DEL EQUIPAMIENTO - CITE
PROGRAMA
CENTRO DE INVESTIGACIONTECNOLOGICA PECUARIA PAQUETES FUNCIONALES ADICIONALESYSU RELACIÓN CON ELENTORNO TOTAL: 3730m2
APA107B TALLER DE DISEÑO 5B 2022-2 L4 PAMPA DE LOS PERROS DIAGNÓSTICO CÁTEDRA ●Msc. Arq. Robinson Ortiz Agama ● Arq. Alexey Carrasco
Arq. Carmen Cárdenas Flores ●Arq. Luis Morales
Arq. Juan Palacios Rojas ●Msc. Arq. Jorge Zaldívar Suárez ALUMNOS Aguilar Aymachoque Rosario Aquise Luque Luz Deysi Cochachin Florecin Jhon Brandon Cuadros Claro Marko Padilla Suazo Virginia Pozada Ramirez Otto Alexander Quispe Palomino Adiel Ramos de la Cruz Bryan Alexander Venero Lobatón Irving Vidal Chávez Esther G1 PROPUESTA URBANA 02 ppi CICG CRYC CITC COL CC-BI BLIO CM ADMI NIS

Cumbre 4

CONCEPTO

Cumbre 1

Cumbre 3

PAMPA DE LOS PERROS DIAGNÓSTICO

Cumbre 6

Cumbre 2

El concepto de la morfología urbana que se propone a continuación, está inspirada con la orientaci{on de las partes más altas de los cerros de modo que la traza urbana se orienta bajo una línea imaginaria )belleza) que une los 3 cerros más importantes, tal como lo hicieron las culturas prehispánicas orientando sus emplazamientos en dirección al sol solsticio de verano. CERRO PARAISO

ALUMNOS

CÁTEDRA

●Msc. Arq. Robinson Ortiz Agama

●Arq. Carmen Cárdenas Flores

●Arq. Juan Palacios Rojas

● Arq. Alexey Carrasco

●Arq. Luis Morales

●Msc. Arq. Jorge Zaldívar Suárez

Aguilar Aymachoque Rosario

Aquise Luque Luz Deysi

Cochachin Florecin Jhon Brandon

Cuadros Claro Marko

Padilla Suazo Virginia

Pozada Ramirez Otto Alexander

Quispe Palomino Adiel

Ramos de la Cruz Bryan Alexander

Venero Lobatón Irving

Vidal Chávez Esther

APA107B TALLER DE
5B
L5
DISEÑO
2022-2
G1 CONCEPTO
Cumbre 7 Cumbre 8
CERRO CULEBRA CERRO X

Área No Urbanizable Ubicada En La Faja Margina

Clasificación de uso de suelos

Es un área normativa definida como intangible por ser parte de la faja marginal de ambos ríos Chillón y Rímac, esta categoría en definida por la Autoridad Nacional delAgua –ANA

Parque Fluvial Chillón

La propuesta busca una regeneración paisajística sobre la faja marginal y creación de parque fluvial innundable, que colinda con las áreas arqueológicas y urbanas de la zona de Pampas de los Perros, generando espacios para un recorrido patrimonial y ecológico de escala metropolitana y la protección de los habitantes ante la crecida de los ríos.

APA107B TALLER DE DISEÑO 5B 2022-2 L6
PAMPA DE LOS PERROS DIAGNÓSTICO CÁTEDRA
Msc.
Arq. Robinson Ortiz Agama
● Arq. Alexey Carrasco
●Arq. Carmen Cárdenas Flores
Morales
●Arq. Luis
Arq. Juan Palacios Rojas
Suárez ALUMNOS Aguilar Aymachoque Rosario Aquise Luque Luz Deysi Cochachin Florecin Jhon Brandon Cuadros Claro Marko Padilla Suazo Virginia Pozada Ramirez Otto Alexander Quispe Palomino Adiel Ramos de la Cruz Bryan Alexander Venero Lobatón Irving Vidal Chávez Esther
RIESGOS Y DESASTRES
●Msc. Arq. Jorge Zaldívar
G1

APA107B TALLER DE DISEÑO 5B 2022-2 L7 PAMPA DE LOS PERROS DIAGNÓSTICO CÁTEDRA
Msc. Arq. Robinson Ortiz Agama
Arq. Alexey Carrasco
Arq. Carmen Cárdenas Flores
Arq. Luis Morales
Arq. Juan Palacios Rojas
Msc. Arq. Jorge Zaldívar Suárez ALUMNOS Aguilar Aymachoque Rosario Aquise Luque Luz Deysi Cochachin Florecin Jhon Brandon Cuadros Claro Marko Padilla Suazo Virginia Pozada Ramirez Otto Alexander Quispe Palomino Adiel Ramos de la Cruz Bryan Alexander Venero Lobatón Irving Vidal Chávez Esther G1 CORTES A CORTEA B CORTE B CORTE C C 150m 150m

PROPUESTA URBANÍSTICA

La morfología de Pakari

Llacta atiende las necesidades humanas permitiendo la relación con el paisaje que lo rodea, por ello se plantean ejes que se orientan hacia sus colinas. La vía principal se convierte en una alameda comercial a la que llegan la mayoría de calles y en donde se genera el comercio principalmente gastronómico a través de sus nodos. Y para atender las necesidades del transporte se trazan dos calles laterales para el transporte pesado y público. Se respeta la faja marginal del río y se crea el malecón asociado a las actividades recreativas y deportivas.

Además para una mejor comprensión y el recorrido del espacio se genera una red de ciclovías que conectan los lugares más importantes.

Área gubernamental.

CITE.

Alameda peatonal.

Vías de tránsito pesado y público. Anillo de vivienda comercial. Viviendas corral.

Malecón.

Centro

Vías de tránsito pesado y tranporte público.

TALLER DE DISEÑO 2022-2 ●Arq.
Cuadros
Padilla
Venero
Irving Vidal Chávez Esther
Juan Palacios Rojas ●Msc. Arq. Jorge Zaldívar Suárez
Claro Marko
Suazo Virginia
Lobatón
Ciclovía
Centro deportivo
cultural.
Planta de procesamiento y conservación de carne de cerdo
Mercado.
Planta de compostaje y reciclaje.
APA107B TALLER DE DISEÑO 5B 2022-2 L9 PAMPA DE LOS PERROS DIAGNÓSTICO CÁTEDRA
Msc. Arq. Robinson Ortiz Agama
Arq. Alexey Carrasco
Arq. Carmen Cárdenas Flores
Arq. Luis Morales
Arq. Juan Palacios Rojas
Msc. Arq. Jorge Zaldívar Suárez ALUMNOS Aguilar Aymachoque Rosario Aquise Luque Luz Deysi Cochachin Florecin Jhon Brandon Cuadros Claro Marko Padilla Suazo Virginia Pozada Ramirez Otto Alexander Quispe Palomino Adiel Ramos de la Cruz Bryan Alexander Venero Lobatón Irving Vidal Chávez Esther G1 PROPUESTA URBANÍSTICA VIVIENDACORRAL VIVIENDATALLER VIVIENDACOMERCIO

ALUMNOS

Aguilar Aymachoque Rosario

Parte de lla propuesta urbana, es reubicar las torresdealtatensiónen Pakari Llacta, dado que éstas irrumpen con el paisaje urbano y generan problemas de contaminación acústica debidoalgranvoltaje.

●Msc. Arq. Robinson Ortiz Agama

●Arq. Carmen Cárdenas Flores

●Arq. Juan Palacios Rojas

● Arq. Alexey Carrasco

●Arq. Luis Morales

●Msc. Arq. Jorge Zaldívar Suárez

Estenuevapropuestade reordenamiento premito unflujomássostenible

Pozada Ramirez Otto Alexander

Quispe Palomino Adiel

Aquise Luque Luz Deysi

Cochachin Florecin Jhon Brandon

Cuadros Claro Marko

Padilla Suazo Virginia

Ramos de la Cruz Bryan Alexander

Venero Lobatón Irving

Vidal Chávez Esther

APA107B TALLER DE DISEÑO 5B 2022-2 L10
PAMPA DE LOS PERROS DIAGNÓSTICO CÁTEDRA
G1 REDES ELÉCTRICAS Y TELECOMUNICACIONES 0 400 800 ESCALAGRÁFICA CENTRO ARQUEOLÓGICO CENTRAL ELÉCTRICA
TALLER DE DISEÑO 2022-2 ●Arq. Juan Palacios Rojas ●Msc. Arq. Jorge Zaldívar Suárez Cuadros Claro Marko Padilla Suazo Virginia Venero Lobatón Irving Vidal Chávez Esther ZONA ARQUEOLÓGICA VIVIENDA CORRAL VIVIENDA DENSIDAD MEDIA VIVIENDA COMERCIO EQUIPAMIENTO VIVIENDA DENSIDAD BAJA VIVIENDA ALMACEN USO DE SUELOS

G1

PAMPA DE LOS PERROS DIAGNÓSTICO

CÁTEDRA

●Msc. Arq. Robinson Ortiz Agama

●Arq. Carmen Cárdenas Flores

●Arq. Juan Palacios Rojas

1PISO

● Arq. Alexey Carrasco

●Arq. Luis Morales

●Msc. Arq. Jorge Zaldívar Suárez

ALUMNOS

Aguilar Aymachoque Rosario

Aquise Luque Luz Deysi

Cochachin Florecin Jhon Brandon

Cuadros Claro Marko

Padilla Suazo Virginia

Pozada Ramirez Otto Alexander

Quispe Palomino Adiel

Ramos de la Cruz Bryan Alexander

Venero Lobatón Irving

APA107B TALLER
L12
DE DISEÑO 5B 2022-2
2
Vidal Chávez Esther 3PISO
PISO

PAMPA DE LOS PERROS DIAGNÓSTICO

El circuito turístico está proyectado para dar a conocer las bondades del sector, como lo son la cultura, el paisaje, equipamientos y la futura gastronomía, todo ello conectado mediante una red peatonal y de ciclovías que conectan los lugares más interesantes. Con ello se pretende potenciar la cultura, el paisaje y la producción propias del lugar, para así también tener nuevas fuentes de ingreso económico, que hagan sostenible el lugar.

Plaza central Circuito de huacas Planta de compostaje Mirador Planta eléctrica Recorrido CITE Centro gastronómico Mirador principal Planta de procesamiento Malecón.

CÁTEDRA

●Msc. Arq. Robinson Ortiz Agama

●Arq. Carmen Cárdenas Flores

●Arq. Juan Palacios Rojas

● Arq. Alexey Carrasco

●Arq. Luis Morales

●Msc. Arq. Jorge Zaldívar Suárez

ALUMNOS

Aguilar Aymachoque Rosario

Aquise Luque Luz Deysi

Cochachin Florecin Jhon Brandon

Cuadros Claro Marko

Padilla Suazo Virginia

Pozada Ramirez Otto Alexander

Quispe Palomino Adiel

Ramos de la Cruz Bryan Alexander

Venero Lobatón Irving

Vidal Chávez Esther

APA107B TALLER DE
5B
L13
DISEÑO
2022-2
CIRCUITO TURÍSTICO - CICLOVÍA
G1
APA107B TALLER DE DISEÑO 5B 2022-2 L14 PAMPA DE LOS PERROS DIAGNÓSTICO CÁTEDRA ●Msc. Arq. Robinson Ortiz Agama ●Arq. Carmen Cárdenas Flores ●Arq. Juan Palacios Rojas Msc. Arq. Jorge Zaldívar Suárez ALUMNOS Aguilar Aymachoque Rosario Aquise Luque Luz Deysi Cochachin Florecin Jhon Brandon Cuadros Claro Marko Padilla Suazo Virginia Pozada Ramirez Otto Alexander Quispe Palomino Adiel Ramos de la Cruz Bryan Alexander Venero Lobatón Irving Vidal Chávez Esther G1 Pendiente 7% Puente río Chillón Faja Marginal Huaca Vivienda Plaza cívica Vivienda comercio Vivienda comercio Parque Porcino Plaza Plaza Alameda central y viviendas comercio Puente río Chillón y Huaca NODO 1 NODO 2 NODO 3 NODO 1 NODO 2 NODO 3 PLAZACÍVICA VIVIENDAS VIVIENDAS COMERCIO INGRESOAPARQUE PORCINO VÍA ALAMEDA CENTRAL
TALLER DE DISEÑO 5B 2022-2 L15 DIAGNÓSTICO ●Arq. Carmen Cárdenas Flores ●Arq. Luis Morales ●Arq. Juan Palacios Rojas ●Msc. Arq. Jorge Zaldívar Suárez Cuadros Claro Marko Padilla Suazo Virginia Venero Lobatón Irving Vidal Chávez Esther MALECON RIO CHILLON SECTOR CULTURAL SECTOR RECREATIVO DEPORTIVO SECTOR ECOLÓGICA FRANJA MARGINAL HUACA CULEBRAS HUACADEPAMPA LOS PERROS HUACA E. CULTURAL E.DEPORTIVO Est. EQUIPAMIENTOS PLAZAS CIRCULACIÓN ÁREAVERDE RIBERADELRÍO RÍO
APA107B TALLER DE DISEÑO 5B 2022-2 L16 PAMPA DE LOS PERROS DIAGNÓSTICO CÁTEDRA
Msc. Arq. Robinson Ortiz Agama
Arq. Alexey Carrasco
Arq. Carmen Cárdenas Flores
Arq. Luis Morales
Arq. Juan Palacios Rojas
Msc. Arq. Jorge Zaldívar Suárez ALUMNOS Aguilar Aymachoque Rosario Aquise Luque Luz Deysi Cochachin Florecin Jhon Brandon Cuadros Claro Marko Padilla Suazo Virginia Pozada Ramirez Otto Alexander Quispe Palomino Adiel Ramos de la Cruz Bryan Alexander Venero Lobatón Irving Vidal Chávez Esther G1 MORFOGÉNESIS DE LA PROPUESTA 03

PAMPA DE LOS PERROS DIAGNÓSTICO

CÁTEDRA

●Msc. Arq. Robinson Ortiz Agama

●Arq. Carmen Cárdenas Flores

●Arq. Juan Palacios Rojas

● Arq. Alexey Carrasco

●Arq. Luis Morales

●Msc. Arq. Jorge Zaldívar Suárez

ALUMNOS

Aguilar Aymachoque Rosario

Aquise Luque Luz Deysi

Cochachin Florecin Jhon Brandon

Cuadros Claro Marko

Padilla Suazo Virginia

Pozada Ramirez Otto Alexander

Quispe Palomino Adiel

Ramos de la Cruz Bryan Alexander

Venero Lobatón Irving

Vidal Chávez Esther

APA107B TALLER DE
L17
DISEÑO 5B 2022-2
G1 APUNTES

APA107B TALLER DE DISEÑO 5B 2022-2 L18 PAMPA DE LOS PERROS DIAGNÓSTICO CÁTEDRA
Msc. Arq. Robinson Ortiz Agama
Arq. Alexey Carrasco
Arq. Carmen Cárdenas Flores
Arq. Luis Morales
Arq. Juan Palacios Rojas
Msc. Arq. Jorge Zaldívar Suárez ALUMNOS Aguilar Aymachoque Rosario Aquise Luque Luz Deysi Cochachin Florecin Jhon Brandon Cuadros Claro Marko Padilla Suazo Virginia
Ramirez Otto Alexander Quispe Palomino Adiel Ramos de la Cruz Bryan Alexander Venero Lobatón Irving Vidal Chávez Esther G1 MAQUETA VIRTUAL 04
Pozada

Pozada

Quispe

APA107B TALLER DE DISEÑO 5B 2022-2 L19 PAMPA DE LOS PERROS DIAGNÓSTICO
CÁTEDRA
Msc. Arq. Robinson Ortiz Agama
Arq. Alexey Carrasco
Flores
Arq. Carmen Cárdenas
Morales
Arq. Luis
Arq. Juan Palacios Rojas
Msc. Arq. Jorge Zaldívar Suárez ALUMNOS
Aguilar Aymachoque Rosario
Aquise Luque Luz Deysi
Cochachin Florecin Jhon Brandon
Cuadros Claro Marko Padilla Suazo Virginia
Ramirez Otto Alexander
Palomino Adiel Ramos de la Cruz Bryan Alexander
Venero Lobatón Irving
G1 MAQUETAFÍSICA 05
Vidal Chávez Esther

VENTANILLA, CALLAO,PERÚ

APA107B

DISEÑO ARQUITECTÓNICO 5B

PRIMERA ETAPA:INVESTIGACIÓN

“PAQARIQ LLACTA”

PAMPA LOS PERROS

GRUPO 1

CÁTEDRA

Msc. Arq. Robinson C. Ortiz Agama Arq. Carmen Florelí Cárdenas Flores Arq. Juan Luis Palacios Rojas Arq. Luis Enrique Morales Delgado Arq. Alexey Carrasco Escárcena

INTEGRANTES

Aguilar Aymachoque Rosario

Aquise Luque Luz Deysi Cochachin Florecin Jhon Brandon Cuadros Claro Marko Padilla Suazo Virginia

Pozada Ramirez Otto Alexander Quispe Palomino Adiel Ramos de la Cruz Bryan Alexander Venero Lobatón Irving Vidal Chávez Esther

DISEÑO

A. APROXIMACIÓNURBANÍSTICA

1. LOEXISTENTE

1.1Localizacionyubicacion 1.2PoemaGeniusLoci 1.3Ríochillón-Riesgosydesastres

2. PROPUESTADELPLANMAESTRO(esc.1/5000)

2.1.1. Localizacionyubicacion

2.1.2. Concepciónurbana

2.1.3. Programaurbano

2.1.4. Vialidadyflujos 2.1.5. Planimetría(esc.1/5000)

2.1.6. cortes,seccionesyaxonometrías, 2.1.7. Zonificación

2.1.8. Alturasdeedificaciones 2.1.9. Desarrollodeáreas 2.1.9.1. Residencial 2.1.9.2. Comercial 2.1.9.3. Equipamientourbano 2.1.9.4. Recorridoturistico 2.1.9.5. Redeseléctricasydetelecomunicaciones 2.1.9.6. Espaciospúblicos 2.1.9.6.1. Parques 2.1.9.6.2. Alamedas 2.1.9.6.3. Malecón

2.2. PlotPlan

2.2.1. Planodeconjunto1/1500

CÁTEDRA

2.4 ImagenObjetivo 2.4.1Vistasaéreas 2.4.2Vistaspeatonales

3. MAQUETA (esc1/1500)

3.1 Maquetavirtual 3.2 Maquetafísica

B. APROXIMACIÓNARQUITECTÓNICA

1.1 Concepciónarquitectónica

1.2Programaarquitectónico 1.3Definicióndeterreno 1.4ImagenObjetivo 1.4.1VIstasaéreas 1.4.2VistasPeatonales C.VIDEO(15’) D.ARCHIVOISSUUACUMULADO

G1

PAMPA DE LOS PERROS DIAGNÓSTICO

●Msc. Arq. Robinson Ortiz Agama

●Arq. Carmen Cárdenas Flores

●Arq. Juan Palacios Rojas

● Arq. Alexey Carrasco

●Arq. Luis Morales

●Msc. Arq. Jorge Zaldívar Suárez

ALUMNOS

Aguilar Aymachoque Rosario

Aquise Luque Luz Deysi

Cochachin Florecin Jhon Brandon

Cuadros Claro Marko

Padilla Suazo Virginia

Pozada Ramirez Otto Alexander

Quispe Palomino Adiel

Ramos de la Cruz Bryan Alexander

Venero Lobatón Irving

APA107B TALLER DE
L2
DISEÑO 5B 2022-2
Vidal Chávez Esther I N D I C E
APA107B TALLER DE DISEÑO 5B 2022-2 L3 PAMPA DE LOS PERROS DIAGNÓSTICO CÁTEDRA ●Msc. Arq. Robinson Ortiz Agama ● Arq. Alexey Carrasco ●Arq. Carmen Cárdenas Flores ●Arq. Luis Morales ●Arq. Juan Palacios Rojas ●Msc. Arq. Jorge Zaldívar Suárez ALUMNOS Aguilar Aymachoque Rosario Aquise Luque Luz Deysi Cochachin Florecin Jhon Brandon Cuadros Claro Marko Padilla Suazo Virginia Pozada Ramirez Otto Alexander Quispe Palomino Adiel Ramos de la Cruz Bryan Alexander Venero Lobatón Irving Vidal Chávez Esther G1 APROXIMACIÓN URBANÍSTICA A

CÁTEDRA

●Msc. Arq. Robinson Ortiz Agama

●Arq. Carmen Cárdenas Flores

●Arq. Juan Palacios Rojas

● Arq. Alexey Carrasco

●Arq. Luis Morales

●Msc. Arq. Jorge Zaldívar Suárez

ALUMNOS

Aguilar Aymachoque Rosario

Cuadros Claro Marko

Pozada Ramirez Otto Alexander

Quispe Palomino Adiel

Ramos de la Cruz Bryan Alexander

Venero Lobatón Irving

Vidal Chávez Esther

APA107B TALLER DE DISEÑO 5B 2022-2 L4
PAMPA DE LOS PERROS DIAGNÓSTICO
Aquise Luque Luz Deysi
Cochachin Florecin Jhon Brandon
Padilla Suazo Virginia
G1 PLAN MAESTRO
LO
PAQARI LLACTA
EXISTENTE

2022-2 L5 PAMPA DE LOS PERROS DIAGNÓSTICO CÁTEDRA
Msc. Arq. Robinson Ortiz Agama
Arq. Alexey Carrasco
Arq. Carmen Cárdenas Flores
Arq. Luis Morales
Arq. Juan Palacios Rojas
Msc. Arq. Jorge Zaldívar Suárez ALUMNOS Aguilar Aymachoque Rosario Aquise Luque Luz Deysi Cochachin Florecin Jhon Brandon Cuadros Claro Marko Padilla Suazo Virginia Pozada Ramirez Otto Alexander Quispe Palomino Adiel Ramos de la Cruz Bryan Alexander Venero Lobatón Irving Vidal Chávez Esther G1 LOCALIZACIÓN Y UBICACIÓN PLAN MAESTRO 0 100 200 600 m. PAIS: PERÚ DEPARTAMENTO: LIMA DISTRITO: VENTANILLA (CALLAO) Av.Chillón Av. Alameda Central
El área se encuentra en el distrito de Ventanilla, que pertenece a la provincia constitucional del Callao, en la intersección delasavenidasChillónyCentralubicadasen lariberadelRíoChillón

PAQARIQ LLACTA

Del pie al piso,del piso al paso , Y entre paso y paso lo tuyo con lo mío. De tu puerta a la calle, de tu calle a mi puerta, y entre puerta y puerta Acaso no se le escucha a la vecina que comenta? ¡Qué rico plato! un plato para tu boca y entre tu boca y mi boca lo nuestro se complementa…

Que nos vieron por el río,entre el río y el malecón, entre el malecón y la avenida ,que entre ida y venida yo cantaba y tú reías, Así entonaba mi canto,mientras los demás creaban cuento, que nos había visto juntos por el parque , el parque que está al frente del sargento, Yo no les hago caso querida,siempre digo que salgo del trabajo , no es por afán ni por relajo, pero me gusta ir a pie por la avenida.

Quítele cuidado a lo que digan y vamos este fin de semana a la campiña de paso aproveche en llevar a su hermana , o quizás ir con toda su familia. Yo le pido la mano para casarnos si usted está convencida, En la iglesia donde iba usted de niña , que ahora está en la plaza terminando la avenida.

Yo le diré a mi vecino Juan que nos lleve flores del vivero, a doña Teresa que cocine lechón para unos cincuenta o uno cientos, a mi primo Carlos que se encargue del evento, y de padrino el alcalde para que nos cierre la alameda y con su ¡Si! , seguro el resto es cuento. Que nos vean desde el mirador ,o de donde quieran mirarnos, total , saliendo del museo se escuchaba que ya se veía lo nuestro.

ALUMNOS

CÁTEDRA

●Msc. Arq. Robinson Ortiz Agama

●Arq. Carmen Cárdenas Flores

●Arq. Juan Palacios Rojas

● Arq. Alexey Carrasco

●Arq. Luis Morales

●Msc. Arq. Jorge Zaldívar Suárez

Aguilar Aymachoque Rosario

Aquise Luque Luz Deysi

Cochachin Florecin Jhon Brandon

Cuadros Claro Marko

Padilla Suazo Virginia

Pozada Ramirez Otto Alexander

Quispe Palomino Adiel

Ramos de la Cruz Bryan Alexander

Venero Lobatón Irving

Vidal Chávez Esther

APA107B TALLER DE DISEÑO 5B
L6
2022-2
PAMPA DE LOS PERROS DIAGNÓSTICO
G1 COMPOSICIÓN “ GENIUS
LOCI “

Área No Urbanizable Ubicada En La Faja Marginal

Clasificación de uso de suelos

Es un área normativa definida como intangible por ser parte de la faja marginal de ambos ríos Chillón y Rímac, esta categoría en definida por laAutoridad Nacional delAgua –ANA

Parque Fluvial Chillón

La propuesta busca una regeneración paisajística sobre la faja marginal y creación de parque fluvial innundable, que colinda con las áreas arqueológicas y urbanas de la zona de Pampas de los Perros, generando espacios para un recorrido patrimonial y ecológico de escala metropolitana y la protección de los habitantes ante la crecida de los ríos.

CÁTEDRA

●Msc. Arq. Robinson Ortiz Agama

●Arq. Carmen Cárdenas Flores

●Arq. Juan Palacios Rojas

● Arq. Alexey Carrasco

●Arq. Luis Morales

APA107B TALLER DE DISEÑO 5B
L7
2022-2
PAMPA DE LOS PERROS DIAGNÓSTICO
Msc. Arq. Jorge Zaldívar Suárez ALUMNOS Aguilar Aymachoque Rosario Aquise Luque Luz Deysi Cochachin Florecin Jhon Brandon Cuadros Claro Marko Padilla Suazo Virginia
G1 LO EXISTENTE
Pozada Ramirez Otto Alexander Quispe Palomino Adiel Ramos de la Cruz Bryan Alexander Venero Lobatón Irving Vidal Chávez Esther
RÍO CHILLÓN - RIESGOS Y DESASTRES

PAQARI LLACTA PROPUESTA

CÁTEDRA

●Msc. Arq. Robinson Ortiz Agama

●Arq. Carmen Cárdenas Flores

●Arq. Juan Palacios Rojas

● Arq. Alexey Carrasco

●Arq. Luis Morales

●Msc. Arq. Jorge Zaldívar Suárez

ALUMNOS

Aguilar Aymachoque Rosario

Aquise Luque Luz Deysi

Cochachin Florecin Jhon Brandon

Cuadros Claro Marko

Padilla Suazo Virginia

Pozada Ramirez Otto Alexander

Quispe Palomino Adiel

Ramos de la Cruz Bryan Alexander

Venero Lobatón Irving

Vidal Chávez Esther

APA107B TALLER DE DISEÑO 5B 2022-2 L8
PAMPA DE LOS PERROS DIAGNÓSTICO
G1 PLAN MAESTRO

●Arq. Carmen Cárdenas

● Arq. Alexey Carrasco

●Arq. Luis

Aguilar Aymachoque Rosario

Aquise Luque Luz Deysi

Cochachin Florecin Jhon Brandon

Cuadros Claro Marko

Padilla Suazo Virginia

CONCEPTO

El concepto de la morfologíaurbanaquese propone a continuación, está inspirada con la orientación de las partes másaltasdeloscerrosde modoquelatrazaurbana seorientabajounalínea imaginaria (belleza) que une los 3 cerros más importantes, tal como lo hicieron las culturas prehispánicas orientando sus emplazamientos en dirección al sol solsticio deverano.0

Pozada Ramirez Otto Alexander

Quispe Palomino Adiel

Ramos de la Cruz Bryan Alexander

Venero Lobatón Irving

Vidal Chávez Esther

APA107B TALLER DE DISEÑO 5B 2022-2 L9
DE
DIAGNÓSTICO
PAMPA
LOS PERROS
CÁTEDRA
Msc. Arq. Robinson Ortiz Agama
Flores
Morales
Arq. Juan Palacios Rojas
Msc. Arq. Jorge Zaldívar Suárez ALUMNOS
G1
URBANA
CONCEPCIÓN
CERRO PARAISO Cumbre 1 Cumbre 3 Cumbre 2 Cumbre 4 Cumbre 6 Cumbre 7 Cumbre 8 CERRO CULEBRA CERRO X 01 CONCEPCIÓN URBANA
APA107B TALLER DE DISEÑO 5B 2022-2 L10 PAMPA DE LOS PERROS DIAGNÓSTICO CÁTEDRA
Msc. Arq. Robinson Ortiz Agama ● Arq. Alexey Carrasco
Arq. Carmen Cárdenas Flores
Arq. Luis Morales
Arq. Juan Palacios Rojas
Msc. Arq. Jorge Zaldívar Suárez ALUMNOS Aguilar Aymachoque Rosario Aquise Luque Luz Deysi Cochachin Florecin Jhon Brandon Cuadros Claro Marko Padilla Suazo Virginia Pozada Ramirez Otto Alexander Quispe Palomino Adiel Ramos de la Cruz Bryan Alexander Venero Lobatón Irving Vidal Chávez Esther G1 PROGRAMA URBANO 02 PLAN MAESTRO SUB-ZONA AREA m2 ÁREADETERRENO 1572595 ÁREADE VIVIENDAMEDIANADENSIDAD 399825 ÁREADE VIVIENDABAJADENSIDA(CRIADEROS) 56522 EQUIPAMIENTO 142369 ALAMEDAS 67707 PARQUES 76174 MALECON 213281 ZONAINUNDABLE 364375 CIRCULACIÓN 252342 PASTELDE PORCENTAJE SEGÚN ÁREAPOR SUB ZONA PASTELDE PORCENTAJE SEGUNAREAPOR ZONA

Pozada

APA107B TALLER DE DISEÑO 5B 2022-2 L11 PAMPA DE LOS PERROS DIAGNÓSTICO
CÁTEDRA
Arq. Robinson Ortiz
Msc.
Agama
Carrasco
Arq. Alexey
Flores
Arq. Carmen Cárdenas
Morales
Arq. Luis
Juan Palacios Rojas
Arq.
Jorge
Suárez ALUMNOS
Aymachoque Rosario
Luque Luz Deysi
Florecin Jhon Brandon
Claro Marko
Suazo Virginia
Msc. Arq.
Zaldívar
Aguilar
Aquise
Cochachin
Cuadros
Padilla
Ramirez Otto Alexander
Adiel
la Cruz Bryan Alexander
Irving
Esther G1 PROGRAMA URBANO-EQUIPAMIENTOS 02 PLAN MAESTRO PASTELDE ÁREADETERRENO SEGÚN EQUIPAMIENTO RELACION DE LAHUELLAYÁREALIBRE SEGÚN ÁREADESTINADAA EQUIPAMIENTO ENTODO EL PROYECTO ES DE 142369 M2
Quispe Palomino
Ramos de
Venero Lobatón
Vidal Chávez
APA107B TALLER DE DISEÑO 5B 2022-2 L12 PAMPA DE LOS PERROS DIAGNÓSTICO CÁTEDRA ●Msc. Arq. Robinson Ortiz Agama ● Arq. Alexey Carrasco ●Arq. Carmen Cárdenas Flores ●Arq. Luis Morales ●Arq. Juan Palacios Rojas ●Msc. Arq. Jorge Zaldívar Suárez ALUMNOS Aguilar Aymachoque Rosario Aquise Luque Luz Deysi Cochachin Florecin Jhon Brandon Cuadros Claro Marko Padilla Suazo Virginia Pozada Ramirez Otto Alexander Quispe Palomino Adiel Ramos de la Cruz Bryan Alexander Venero Lobatón Irving Vidal Chávez Esther G1 PROGRAMA URBANO-EQUIPAMIENTO 02 PLAN MAESTRO ZONA TERRE NO HUELL A %DE AREA LIBRE AREA CONST RUIDA AMBIENTE ÁREA UNITA RIA ÁREA ÚTIL CIRCUL ACIÓN Y MURO S CANTI DAD AREA TOTAL 1 CITE 22912 9577 58% 11090 ADMINISTRACIÓN 300 210 90 1 300 ZONA DE INVESTIGACIÓN 700 490 210 5 3500 ZONA DE CAPACITACIÓN 300 210 90 5 1500 ZONA DE PRODUCCIÓN 1120 784 336 4 4480 ZONA CULTURAL 200 140 60 1 200 ZONA RECREATIVA 600 420 180 1 600 COMERCIAL 200 140 60 1 200 SERVICIOS GENERALES ESTACIONAMIENTO 310 217 93 1 310 2 PLANTA INDUST RIAL DE ALIMEN TOS 7225 2512 65% 3270 ADMINISTRACIÓN 90 63 27 1 90 ACOPIO 120 84 36 3 360 MATADERO 120 84 36 2 240 PRODUCCIÓN 210 147 63 2 420 ZONA DE EVAPORACIÓN 210 147 63 1 210 ZONA DE CONGELACIÓN 210 147 63 1 210 ZONA DE EMPAQUE 210 147 63 1 210 ALMACENAMIENTO 150 105 45 4 600 MAQUINAS 110 77 33 3 330 SERVICIOS GENERALES ESTACIONAMIENTO 600 420 180 1 600 3 MERCA DO 7570 3780 50% 3780 ADMINISTRACIÓN 90 63 27 1 90 ZONA HÚMEDA 1060 742 318 1 1060 ZONA SEMI-HÚMEDA 1060 742 318 1 1060 ZONA SECA 1060 742 318 1 1060 SERVICIOS GENERALES 80 56 24 1 80 ZONA COMPLEMENTARIA 210 147 63 1 210 ESTACIONAMIENTO 220 154 66 1 220 ZONA TERREN O HUELLA %DE AREA LIBRE AREA CONST RUIDA AMBIENTE ÁREA UNITAR IA ÁREA ÚTIL CIRCUL ACIÓN Y MUROS CANTID AD AREA TOTAL 4 PLANTA DE TRATA MIENTO DE RESIDU OS 12100 4670 61% 4670 ADMINISTRACIÓN 90 63 27 1 90 ÁREA DE ACOPIO 300 210 90 4 1200 ÁREA DE COMPOSTAJE 200 140 60 4 800 ÁREA DE SEGREGADO 300 210 90 4 1200 SERVICIOS GENERALES 90 63 27 1 90 ESTACIONAMIENTO 90 63 27 1 90 ÁREA DE RECICLADO 300 210 90 4 1200 5 CENTRO EDUCAT IVO OESTE 6750 2828 58% 5400 ADMINISTRACIÓN 90 63 27 1 90 SERVICIOS GENERALES 210 147 63 4 840 AREAS COMUNES 300 210 90 5 1500 SALONES 90 63 27 20 1800 ESTACIONAMIENTO 300 210 90 1 300 AUDITORIO 150 105 45 1 150 TALLERES 120 84 36 6 720 6 CENTRO EDUCAT IVO ESTE 7685 2512 67% 5520 ADMINISTRACIÓN 90 63 27 1 90 SERVICIOS GENERALES 210 147 63 4 840 AREAS COMUNES 300 210 90 5 1500 SALONES 90 63 27 20 1800 ESTACIONAMIENTO 300 210 90 1 300 AUDITORIO 150 105 45 1 150 TALLERES 120 84 36 7 840 7 BOSQUE 19110 1620 92% 2340 BONGALO 130 91 39 15 1950 SERVICIOS GENERALES 130 91 39 1 130 COCINA 130 91 39 1 130 ALMACENAMIENTO 130 91 39 1 130
APA107B TALLER DE DISEÑO 5B 2022-2 L13 PAMPA DE LOS PERROS DIAGNÓSTICO CÁTEDRA ●Msc. Arq. Robinson Ortiz Agama ● Arq. Alexey Carrasco ●Arq. Carmen Cárdenas Flores ●Arq. Luis Morales ●Arq. Juan Palacios Rojas ●Msc. Arq. Jorge Zaldívar Suárez ALUMNOS Aguilar Aymachoque Rosario Aquise Luque Luz Deysi Cochachin Florecin Jhon Brandon Cuadros Claro Marko Padilla Suazo Virginia Pozada Ramirez Otto Alexander Quispe Palomino Adiel Ramos de la Cruz Bryan Alexander Venero Lobatón Irving Vidal Chávez Esther G1 02 PLAN MAESTRO ZONA TERRE NO HUELL A %DE AREA LIBRE AREA CONST RUIDA AMBIENTE ÁREA UNITA RIA ÁREA ÚTIL CIRCUL ACIÓN Y MURO S CANTI DAD AREA TOTAL 8 CENTR O DE SALUD 6270 2130 66% 2130 ADMINISTRACIÓN 160 112 48 1 160 ATENCIÓN 160 112 48 1 160 SERVICIOS GENERALES 90 63 27 1 90 SERVICIOS COMPLEMENTARIOS 90 63 27 1 90 LABORATORIOS 70 49 21 6 420 SALAS 90 63 27 8 720 MAQUINAS 190 133 57 1 190 ESTACIONAMIENTO 300 210 90 1 300 9 CENTR O DE INTERP RETACI ÓN CULTUR AL 18995 3645 81% 6960 RECEPCIÓN 50 35 15 1 50 SALA DE INTERPRETACIÓN 70 49 21 12 840 SALA DE INVESTIGACIÓN 70 49 21 12 840 AUDITORIO 150 105 45 3 450 CAFETERÍA 70 49 21 1 70 SUM 150 105 45 2 300 MIRADOR 200 140 60 1 200 ADMINISTRACIÓN 110 77 33 1 110 SERVICIOS 70 49 21 2 140 ALMACENES 70 49 21 3 210 ESTACIONAMIENTO 600 420 180 3 1800 TERRAZA 350 245 105 1 350 ANFIETRO 800 560 240 2 1600 ZONA TERREN O HUELLA %DE AREA LIBRE AREA CONST RUIDA AMBIENTE ÁREA UNITAR IA ÁREA ÚTIL CIRCUL ACIÓN Y MUROS CANTID AD AREA TOTAL 10 CENTRO DEPORTI VO 31208 5922 81% 14130 ADMINISTRACIÓN 90 63 27 1 90 AREA DE MAQUINAS 700 490 210 1 700 VESTIDORES 140 98 42 1 140 OFICINA 30 21 9 7 210 CAFETERÍA 150 105 45 1 150 MEDICINA DEL DEPORTE 80 56 24 1 80 AUDITORIO 400 280 120 1 400 DUCHAS 140 98 42 1 140 BAÑOS 80 56 24 1 80 PISCINA 300 210 90 1 300 ESTADIO 30 21 9 1 30 SERVICIOS 70 49 21 1 70 SKATEPARK 140 98 42 2 280 ESTADIO 11460 8022 3438 1 11460 11 CENTRO COMUN AL 772 480 38% 480 ADMINISTRACIÓN 60 42 18 1 60 SUM 210 147 63 1 210 SERVICIOS 60 42 18 1 60 ESTACIONAMIENTO 150 105 45 1 150 12 CAPILLA 500 390 22% 390 ADMINISTRACIÓN 50 35 15 1 50 CAPILLA 210 147 63 1 210 SERVICIOS 50 35 15 1 50 ESTACIONAMIENTO 80 56 24 1 80 13 INSTITU TO 1272 682,5 46% 2730 ADMINISTRACIÓN 90 63 27 1 90 SERVICIOS GENERALES 90 63 27 4 360 AREAS COMUNES 300 210 90 1 300 SALONES 90 63 27 8 720 ESTACIONAMIENTO 150 105 45 1 150 AUDITORIO 150 105 45 1 150 LABORATORIOS 120 84 36 8 960 PROGRAMA URBANO-EQUIPAMIENTO

APA107B TALLER DE DISEÑO 5B 2022-2 L14
DE
DIAGNÓSTICO
PAMPA
LOS PERROS
CÁTEDRA
Msc. Arq. Robinson Ortiz Agama
Arq. Alexey Carrasco
Arq. Carmen Cárdenas Flores
Arq. Luis Morales
Arq. Juan Palacios Rojas
Florecin
Msc. Arq. Jorge Zaldívar Suárez ALUMNOS Aguilar Aymachoque Rosario Aquise Luque Luz Deysi Cochachin
Jhon Brandon Cuadros Claro Marko Padilla Suazo Virginia
Pozada Ramirez Otto Alexander
G1 03 VIALIDAD Y FLUJOS PLAN MAESTRO 3.0 1.8 4.5 14.0 4.5 1.8 3.0
transporte
Quispe Palomino Adiel Ramos de la Cruz Bryan Alexander Venero Lobatón Irving Vidal Chávez Esther
ALAMEDACENTRAL VÍAQIPIY- Para transporte de carga AVENIDACHILLÓN - Vía de
público. ALAMEDACENTRAL Paraderos de transporte público.

Av.Chillón

TALLER DE DISEÑO Arq. Juan
Msc. Arq. Jorge Zaldívar Suárez Padilla Suazo Virginia Vidal Chávez Esther 04 PLANIMETRÍA PLAN MAESTRO 0 100 200 600 m.
Palacios Rojas

APA107B TALLER DE DISEÑO 5B 2022-2 L16 PAMPA DE LOS PERROS DIAGNÓSTICO CÁTEDRA
Msc. Arq. Robinson Ortiz Agama
Arq. Alexey Carrasco
Arq. Carmen Cárdenas Flores
Arq. Luis Morales
Arq. Juan Palacios Rojas
Msc. Arq. Jorge Zaldívar Suárez ALUMNOS Aguilar Aymachoque Rosario Aquise Luque Luz Deysi Cochachin Florecin Jhon Brandon Cuadros Claro Marko Padilla Suazo Virginia Pozada Ramirez Otto Alexander Quispe Palomino Adiel Ramos de la Cruz Bryan Alexander Venero Lobatón Irving Vidal Chávez Esther G1 05 SECCIONES Y AXONOMETRÍA PLAN MAESTRO A CORTEA B CORTE B CORTE C C 150m 150m CORTESTRANSVERSALES CORTE LONGITUDINAL

Pozada

Quispe

APA107B TALLER DE DISEÑO 5B 2022-2 L17 PAMPA DE LOS PERROS DIAGNÓSTICO CÁTEDRA
Msc. Arq. Robinson Ortiz Agama
Arq. Alexey Carrasco
Arq. Carmen Cárdenas Flores
Arq. Luis Morales
Arq. Juan Palacios Rojas
Msc. Arq. Jorge Zaldívar Suárez
Aymachoque Rosario
Luque Luz Deysi
Florecin Jhon Brandon
Claro Marko
Suazo Virginia
ALUMNOS Aguilar
Aquise
Cochachin
Cuadros
Padilla
Ramirez Otto Alexander
Palomino Adiel
de la Cruz Bryan Alexander
Lobatón Irving
Chávez Esther G1 06 ZONIFICACIÓN PLAN MAESTRO
Ramos
Venero
Vidal

Aguilar Aymachoque Rosario

Pozada Ramirez Otto Alexander

Quispe Palomino Adiel

Venero Lobatón Irving

Vidal Chávez Esther

APA107B TALLER DE DISEÑO 5B 2022-2 L18
DE LOS PERROS DIAGNÓSTICO
PAMPA
CÁTEDRA
Msc. Arq. Robinson Ortiz Agama
Arq. Alexey Carrasco
Arq. Carmen Cárdenas Flores
Arq. Luis Morales
Arq. Juan Palacios Rojas
Msc. Arq. Jorge Zaldívar Suárez ALUMNOS
Aquise Luque Luz Deysi
Cochachin Florecin Jhon Brandon
Cuadros Claro Marko
Padilla Suazo Virginia
Ramos de la Cruz Bryan Alexander
G1 07 ALTURA DE EDIFICACIONES PLAN MAESTRO LEYENDA 1 PISO 2 PISO 3 PISO 4 PISO

APA107B TALLER DE DISEÑO 5B 2022-2 L19 PAMPA DE LOS PERROS DIAGNÓSTICO CÁTEDRA
Msc. Arq. Robinson Ortiz Agama
Arq. Alexey Carrasco
Arq. Carmen Cárdenas Flores
Arq. Luis Morales
Arq. Juan Palacios Rojas
Msc. Arq. Jorge Zaldívar Suárez ALUMNOS Aguilar Aymachoque Rosario Aquise Luque Luz Deysi Cochachin Florecin Jhon Brandon Cuadros Claro Marko Padilla Suazo Virginia
Ramirez Otto Alexander Quispe Palomino Adiel Ramos de la Cruz Bryan Alexander Venero Lobatón Irving Vidal Chávez Esther G1 RESIDENCIA - TIPOLOGÍA DE VIVIENDAS DESARROLLO DE ÁREAS 08 VIVIENDATIPOA 100 m2 VIVIENDATIPO B 85 m2 VIVIENDATIPO C 60 m2 c/u VIVIENDATIPO D 75 m2 CIRCULACIÓN HORIZONTAL CIRCULACIÓN VERTICAL DISTRIBUCIÓN BLOQUE 1
Pozada

DISTRIBUCIÓN

ALUMNOS

Aguilar Aymachoque Rosario

Aquise Luque Luz Deysi

Cochachin Florecin Jhon Brandon

Cuadros Claro Marko

Padilla Suazo Virginia

TIPO

Pozada Ramirez Otto Alexander

Quispe Palomino Adiel

Ramos de la Cruz Bryan Alexander

Venero Lobatón Irving

Vidal Chávez Esther

APA107B TALLER DE DISEÑO 5B 2022-2 L20 PAMPA DE LOS PERROS DIAGNÓSTICO
G1 RESIDENCIA - TIPOLOGÍA DE VIVIENDAS DESARROLLO DE ÁREAS 08
2
BLOQUE
VIVIENDA
A VIVIENDATIPO B VIVIENDATIPO C

Aguilar

Pozada

Quispe Palomino Adiel

Venero Lobatón Irving

APA107B TALLER DE DISEÑO 5B 2022-2 L21
DE LOS PERROS DIAGNÓSTICO
PAMPA
CÁTEDRA
Msc. Arq. Robinson Ortiz Agama
Arq. Alexey Carrasco
Arq. Carmen Cárdenas Flores
Arq. Luis Morales
Arq. Juan Palacios Rojas
Msc. Arq. Jorge Zaldívar Suárez ALUMNOS
Aymachoque Rosario
Aquise Luque Luz Deysi
Cochachin Florecin Jhon Brandon
Cuadros Claro Marko
Padilla Suazo Virginia
Ramirez Otto Alexander
Ramos de la Cruz Bryan Alexander
G1 COMERCIO - MERCADO DESARROLLO DE ÁREAS 09 VIVIENDATIPOA VIVIENDATIPO D VIVIENDATIPO C VIVIENDATIPO B PLANTA DISTRIBUCIÓN BLOQUE 4 MERCADO
Vidal Chávez Esther

APA107B TALLER DE DISEÑO 5B 2022-2 L22 PAMPA DE LOS PERROS DIAGNÓSTICO CÁTEDRA
Msc. Arq. Robinson Ortiz Agama
Arq. Alexey Carrasco
Arq. Carmen Cárdenas Flores
Arq. Luis Morales
Arq. Juan Palacios Rojas
Msc. Arq. Jorge Zaldívar Suárez ALUMNOS Aguilar Aymachoque Rosario Aquise Luque Luz Deysi Cochachin Florecin Jhon Brandon Cuadros Claro Marko Padilla Suazo Virginia Pozada Ramirez Otto Alexander Quispe Palomino Adiel Ramos de la Cruz Bryan Alexander Venero Lobatón Irving Vidal Chávez Esther G1 VIVIENDA GRANJA - PLANTA INDUSTRIAL DESARROLLO DE ÁREAS 10 PLANTAINDUSTRIALDEALIMENTO PORCINO VIVIENDAGRANJA INSPECCIÓNY SELECCIÓN ADECUACIÓN DE MATERIAPRIMA PREPARACIÓN DEL ALIMENTO REPOSOYEMPAQUE DISTRIBUCIÓN YVENTA ALMACÉN CARGAY DESCARGA OFICINAS MANTENIMIENTO DISTRIBUCIÓN PLANTA VIVIENDA GRANJA
APA107B TALLER DE DISEÑO 5B 2022-2 L23 PAMPA DE LOS PERROS DIAGNÓSTICO CÁTEDRA ●Msc. Arq. Robinson Ortiz Agama ● Arq. Alexey Carrasco ●Arq. Carmen Cárdenas Flores ●Arq. Luis Morales ●Arq. Juan Palacios Rojas ●Msc. Arq. Jorge Zaldívar Suárez ALUMNOS Aguilar Aymachoque Rosario Aquise Luque Luz Deysi Cochachin Florecin Jhon Brandon Cuadros Claro Marko Padilla Suazo Virginia Pozada Ramirez Otto Alexander Quispe Palomino Adiel Ramos de la Cruz Bryan Alexander Venero Lobatón Irving Vidal Chávez Esther G1 COMERCIO DESARROLLO DE ÁREAS 11 ZONAS DE COMERCIO VIVIENDA HALL- ENTRADAPEATONAL
APA107B TALLER DE DISEÑO 5B 2022-2 L24 PAMPA DE LOS PERROS DIAGNÓSTICO CÁTEDRA ●Msc. Arq. Robinson Ortiz Agama ● Arq. Alexey Carrasco ●Arq. Carmen Cárdenas Flores ●Arq. Luis Morales ●Arq. Juan Palacios Rojas ●Msc. Arq. Jorge Zaldívar Suárez ALUMNOS Aguilar Aymachoque Rosario Aquise Luque Luz Deysi Cochachin Florecin Jhon Brandon Cuadros Claro Marko Padilla Suazo Virginia Pozada Ramirez Otto Alexander Quispe Palomino Adiel Ramos de la Cruz Bryan Alexander Venero Lobatón Irving Vidal Chávez Esther G1 EQUIPAMIENTO URBANO DESARROLLO DE ÁREAS 12 1 2 3 4 7 6 8 5 9 10 11 12 13 1.CITE 2. PLANTAINDUSTRIALDEALIMENTOS 3. MERCADO 4. PLANTADETRATAMIENTO DE RESIDUOS 5. CENTRO EDUCATIVO OESTE 6. CENTRO EDUCATIVO ESTE 7. BOSQUE 8. CENTRO DE SALUD 9. CENTRO CULTURAL 10. CENTRO DEPORTIVO 11. CENTRO COMUNAL 12. IGLESIA 13. INSTITUTO

DESARROLLO DE ÁREAS

RECORRIDO TURÍSTICO

El circuito turístico está proyectado para dar a conocerlasbondadesdelsector,comolosonla cultura, el paisaje, equipamientos y la gastronomía, todo ello con la posibilidad de disfrutar de la zona de bungalows rodeado de unáreareforestada.

Estos lugares están conectados mediante una red peatonal y de ciclovías que permiten visitar loslugaresmásinteresantes.

Con ello se pretende potenciar la cultura, el paisaje y la producción propias del lugar, para así también tener nuevas fuentes de ingreso, quehagansostenibleellugar.

ALUMNOS

PAMPA DE LOS PERROS DIAGNÓSTICO

CÁTEDRA

●Msc. Arq. Robinson Ortiz Agama

●Arq. Carmen Cárdenas Flores

●Arq. Juan Palacios Rojas

● Arq. Alexey Carrasco

●Arq. Luis Morales

●Msc. Arq. Jorge Zaldívar Suárez

Aguilar Aymachoque Rosario

Aquise Luque Luz Deysi

Cochachin Florecin Jhon Brandon

Cuadros Claro Marko

Padilla Suazo Virginia

Plaza central Circuito de huacas Viviendas granja Mirador Planta eléctrica

Recorrido CITE Centro gastronómico

Zona forestal. Zona de bungalows Malecón.

Pozada Ramirez Otto Alexander

Quispe Palomino Adiel

Ramos de la Cruz Bryan Alexander

Venero Lobatón Irving

Vidal Chávez Esther

APA107B TALLER DE DISEÑO 5B
L25
2022-2
G1
13

Parte de la propuesta urbana,esreubicarlas torres de alta tensión en Pakari Llacta, dado queéstasirrumpencon el paisaje urbano y generan problemas de contaminación acústica debido a la actual ubicacióndeéstas.

Aguilar

Este nueva propuesta de reordenamiento permite un flujo más limpio en la avenida Chillón

Pozada

Quispe Palomino Adiel

Venero Lobatón Irving

APA107B TALLER DE DISEÑO 5B 2022-2 L26
DE LOS PERROS DIAGNÓSTICO
PAMPA
CÁTEDRA
Msc. Arq. Robinson Ortiz Agama
Arq. Alexey Carrasco
Arq. Carmen Cárdenas Flores
Morales
Arq. Luis
Arq. Juan Palacios Rojas
Msc. Arq. Jorge Zaldívar Suárez ALUMNOS
Aymachoque Rosario
Aquise Luque Luz Deysi
Cochachin Florecin Jhon Brandon
Cuadros Claro Marko Padilla Suazo Virginia
Ramirez Otto Alexander
Ramos de la Cruz Bryan Alexander
G1 REDES ELÉCTRICAS Y TELECOMUNICACIONES DESARROLLO DE ÁREAS 0 400 800 ESCALAGRÁFICA CENTRO ARQUEOLÓGICO CENTRAL ELÉCTRICA
Vidal Chávez Esther
14
APA107B TALLER DE DISEÑO 5B 2022-2 L27 PAMPA DE LOS PERROS DIAGNÓSTICO CÁTEDRA
Msc. Arq. Robinson Ortiz Agama
Arq. Alexey Carrasco
Arq. Carmen Cárdenas Flores
Arq. Luis Morales
Arq. Juan Palacios Rojas
Msc. Arq. Jorge Zaldívar Suárez ALUMNOS Aguilar Aymachoque Rosario Aquise Luque Luz Deysi Cochachin Florecin Jhon Brandon Cuadros Claro Marko Padilla Suazo Virginia Pozada Ramirez Otto Alexander Quispe Palomino Adiel Ramos de la Cruz Bryan Alexander Venero Lobatón Irving Vidal Chávez Esther G1 ALAMEDA CENTRAL ESPACIO PÚBLICO Pendiente 7% Puente río Chillón Faja Marginal Huaca Vivienda Plaza cívica Vivienda comerci o Vivienda comerci o Parque Porcino Plaza Plaza Alameda central y viviendas comercio Puente río Chillón y Huaca ANILLO 1 ANILLO 2 ANILLO 3 ANILLO 1 ANILLO 2 ANILLO 3 PLAZACÍVICAVIVIENDAS VIVIENDAS COMERCIO INGRESOAPARQUE PORCINO 15

Aguilar

Pozada

Quispe Palomino Adiel

Venero Lobatón Irving

APA107B TALLER DE DISEÑO 5B 2022-2 L28
DE LOS PERROS DIAGNÓSTICO
PAMPA
CÁTEDRA
Msc. Arq. Robinson Ortiz Agama
Arq. Alexey Carrasco
Arq. Carmen Cárdenas Flores
Arq. Luis Morales
Arq. Juan Palacios Rojas
Msc. Arq. Jorge Zaldívar Suárez ALUMNOS
Aymachoque Rosario
Aquise Luque Luz Deysi
Cochachin Florecin Jhon Brandon
Cuadros Claro Marko Padilla Suazo Virginia
Ramirez Otto Alexander
Ramos de la Cruz Bryan Alexander
G1 ALAMEDA CHILLÓN ESPACIO PÚBLICO 16 TALLERES asientos CICLISTAS-PARADERO CRUCE PEATONAL preferencia peatonal SEPARADORES En los ingresos MÓDULO BASE
Vidal Chávez Esther
APA107B TALLER DE DISEÑO 5B 2022-2 L29 PAMPA DE LOS PERROS DIAGNÓSTICO CÁTEDRA
Msc. Arq. Robinson Ortiz Agama
Arq. Alexey Carrasco
Arq. Carmen Cárdenas Flores
Arq. Luis Morales
Arq. Juan Palacios Rojas
Msc. Arq. Jorge Zaldívar Suárez ALUMNOS Aguilar Aymachoque Rosario Aquise Luque Luz Deysi Cochachin Florecin Jhon Brandon Cuadros Claro Marko Padilla Suazo Virginia Pozada Ramirez Otto Alexander Quispe Palomino Adiel Ramos de la Cruz Bryan Alexander Venero Lobatón Irving Vidal Chávez Esther G1 PARQUES ESPACIO PÚBLICO 17 70 m 70 m

El diseño del malecón brinda espacios para la recreación , el deporte y la cultura, en busca de crear espacios atractivos, con una variedad de actividades al aire libre.

Para le prevención de los deslizamientos e inundaciones se plantea el uso de muros gaviones, hechas de piedra de canto rodado.

DISEÑO ZONA CULTURAL ZONA DEPORTIVA RECREACIÓN Y TURISMO HUACA CULEBRAS HUACA PAMPA DE LOS PERROS HUACA SECTOR C Alameda Malecón y Miradores 1 2 3 4 5 6 6 6 6 6 6 6 6 1. Huacas 2. Anfiteatros 3. Pérgolas 4. Losas deportivas 5. Estadio 6. Miradores 4 LEYENDA

CÁTEDRA

●Msc. Arq. Robinson Ortiz Agama

●Arq. Carmen Cárdenas Flores

●Arq. Juan Palacios Rojas

● Arq. Alexey Carrasco

●Arq. Luis Morales

●Msc. Arq. Jorge Zaldívar Suárez

ALUMNOS

Aguilar Aymachoque Rosario

Pozada Ramirez Otto Alexander

Quispe Palomino Adiel

Ramos de la Cruz Bryan Alexander

Venero Lobatón Irving

Vidal Chávez Esther

APA107B TALLER DE DISEÑO 5B 2022-2 L31
PAMPA DE LOS PERROS DIAGNÓSTICO
Aquise Luque Luz Deysi
Cochachin Florecin Jhon Brandon
Cuadros Claro Marko Padilla Suazo Virginia
G1 PLAN MAESTRO
PLOT PLAN
PAQARI LLACTA
0 200
APA107B TALLER DE DISEÑO 5B 2022-2 L1 PAMPA DE LOS PERROS DIAGNÓSTICO CÁTEDRA
Msc. Arq. Robinson Ortiz Agama
Arq. Alexey Carrasco
Arq. Carmen Cárdenas Flores
Arq. Luis Morales
Arq. Juan Palacios Rojas
Msc. Arq. Jorge Zaldívar Suárez ALUMNOS Aguilar Aymachoque Rosario Aquise Luque Luz Deysi Cochachin Florecin Jhon Brandon Cuadros Claro Marko Padilla Suazo Virginia Pozada Ramirez Otto Alexander Quispe Palomino Adiel Ramos de la Cruz Bryan Alexander Venero Lobatón Irving Vidal Chávez Esther G1 APROXIMACIÓN ARQUITECTÓNICA B Centro de InvestigacionTecnologica PRODUCCIÓN INVESTIGACIÓN COMERCIALIZACIÓN

APA107B TALLER DE DISEÑO 5B 2022-2 L2
DE LOS PERROS DIAGNÓSTICO
PAMPA
CÁTEDRA
Msc. Arq. Robinson Ortiz Agama
Arq. Alexey Carrasco
Flores
Arq. Carmen Cárdenas
Morales
●Arq. Luis
Arq. Juan Palacios Rojas
Suárez
Rosario
Luque Luz
Florecin
Brandon
Marko
Virginia
Msc. Arq. Jorge Zaldívar
ALUMNOS Aguilar Aymachoque
Aquise
Deysi Cochachin
Jhon
Cuadros Claro
Padilla Suazo
Alexander
Pozada Ramirez Otto
Alexander
G1 CONCEPCIÓN ARQUITECTÓNICA CITEC APROXIMACIÓN ARQUITECTÓNICA 01 ESPACIO PÚBLICO ESPACIO PÚBLICO ESPACIO PÚBLICO PRODUCCIÓN COMERCIALIZACIÓN INVESTIGACIÓN DISTRIBUCIÓN AVENIDA CENTRAL
Quispe Palomino Adiel Ramos de la Cruz Bryan
Venero Lobatón Irving Vidal Chávez Esther

APA107B TALLER DE DISEÑO 5B 2022-2 L3 PAMPA DE LOS PERROS DIAGNÓSTICO CÁTEDRA
Msc. Arq. Robinson Ortiz Agama
Arq. Alexey Carrasco
Arq. Carmen Cárdenas Flores
Arq. Luis Morales
Arq. Juan Palacios Rojas
Msc. Arq. Jorge Zaldívar Suárez ALUMNOS Aguilar Aymachoque Rosario Aquise Luque Luz Deysi Cochachin Florecin Jhon Brandon Cuadros Claro Marko Padilla Suazo Virginia Pozada Ramirez Otto Alexander Quispe Palomino Adiel Ramos de la Cruz Bryan Alexander Venero Lobatón Irving Vidal Chávez Esther G1 PROGRAMA ARQUITECTÓNICO CITEC APROXIMACIÓN ARQUITECTÓNICA 02
APA107B TALLER DE DISEÑO 5B 2022-2 L4 PAMPA DE LOS PERROS DIAGNÓSTICO CÁTEDRA
Msc. Arq. Robinson Ortiz Agama
Arq. Alexey Carrasco
Arq. Carmen Cárdenas Flores
Arq. Luis Morales
Arq. Juan Palacios Rojas
Msc. Arq. Jorge Zaldívar Suárez ALUMNOS Aguilar Aymachoque Rosario Aquise Luque Luz Deysi Cochachin Florecin Jhon Brandon Cuadros Claro Marko Padilla Suazo Virginia Pozada Ramirez Otto Alexander Quispe Palomino Adiel Ramos de la Cruz Bryan Alexander Venero Lobatón Irving Vidal Chávez Esther G1 DEFINICIÓN DEL TERRENO CITEC APROXIMACIÓN ARQUITECTÓNICA 03

APA107B TALLER DE DISEÑO 5B 2022-2 L5 PAMPA DE LOS PERROS DIAGNÓSTICO CÁTEDRA
Msc. Arq. Robinson Ortiz Agama
Arq. Alexey Carrasco
Arq. Carmen Cárdenas Flores
Arq. Luis Morales
Arq. Juan Palacios Rojas
Msc. Arq. Jorge Zaldívar Suárez ALUMNOS
Aymachoque Rosario Aquise Luque Luz Deysi Cochachin Florecin Jhon Brandon Cuadros Claro Marko Padilla Suazo Virginia
Ramirez Otto Alexander
Palomino Adiel Ramos de la Cruz Bryan Alexander
Lobatón Irving Vidal Chávez Esther G1 IMAGEN OBJETIVO CITEC APROXIMACIÓN ARQUITECTÓNICA 04
Aguilar
Pozada
Quispe
Venero
APA107B TALLER DE DISEÑO 5B 2022-2 L6 PAMPA DE LOS PERROS DIAGNÓSTICO CÁTEDRA ●Msc. Arq. Robinson Ortiz Agama ● Arq. Alexey Carrasco ●Arq. Carmen Cárdenas Flores ●Arq. Luis Morales
Arq. Juan Palacios Rojas ●Msc. Arq. Jorge Zaldívar Suárez ALUMNOS Aguilar Aymachoque Rosario Aquise Luque Luz Deysi Cochachin Florecin Jhon Brandon Cuadros Claro Marko Padilla Suazo Virginia Pozada Ramirez Otto Alexander Quispe Palomino Adiel Ramos de la Cruz Bryan Alexander Venero Lobatón Irving Vidal Chávez Esther G1 APUNTES

Aguilar Aymachoque Rosario

Aquise

Cochachin

Cuadros Claro Marko

Padilla Suazo Virginia

Pozada Ramirez Otto Alexander

Quispe Palomino Adiel

Ramos de la Cruz Bryan Alexander

Venero Lobatón Irving

Vidal Chávez Esther

APA107B TALLER DE DISEÑO 5B 2022-2 L7
DE LOS PERROS DIAGNÓSTICO
PAMPA
CÁTEDRA
Msc. Arq. Robinson Ortiz Agama
Arq. Alexey Carrasco
Arq. Carmen Cárdenas Flores
Arq. Luis Morales
Arq. Juan Palacios Rojas
Msc. Arq. Jorge Zaldívar Suárez ALUMNOS
Luque Luz Deysi
Florecin Jhon Brandon
G1

APA107B TALLER DE DISEÑO 5B 2022-2 L8 PAMPA DE LOS PERROS DIAGNÓSTICO CÁTEDRA
Msc. Arq. Robinson Ortiz Agama
Arq. Alexey Carrasco
Arq. Carmen Cárdenas Flores
Arq. Luis Morales
Arq. Juan Palacios Rojas
Msc. Arq. Jorge Zaldívar Suárez ALUMNOS Aguilar Aymachoque Rosario Aquise Luque Luz Deysi Cochachin Florecin Jhon Brandon Cuadros Claro Marko Padilla Suazo Virginia Pozada Ramirez Otto Alexander Quispe Palomino Adiel Ramos de la Cruz Bryan Alexander Venero Lobatón Irving Vidal Chávez Esther G1

G1

PAMPA DE LOS PERROS DIAGNÓSTICO

CÁTEDRA

●Msc. Arq. Robinson Ortiz Agama

●Arq. Carmen Cárdenas Flores

●Arq. Juan Palacios Rojas

● Arq. Alexey Carrasco

●Arq. Luis Morales

●Msc. Arq. Jorge Zaldívar Suárez

ALUMNOS

Aguilar Aymachoque Rosario

Aquise Luque Luz Deysi

Cochachin Florecin Jhon Brandon

Cuadros Claro Marko

Padilla Suazo Virginia

Pozada Ramirez Otto Alexander

Quispe Palomino Adiel

Ramos de la Cruz Bryan Alexander

Venero Lobatón Irving

Vidal Chávez Esther

APA107B TALLER DE
5B
L9
DISEÑO
2022-2

CÁTEDRA

●Msc. Arq. Robinson Ortiz Agama

●Arq. Carmen Cárdenas Flores

●Arq. Juan Palacios Rojas

● Arq. Alexey Carrasco

●Arq. Luis Morales

●Msc. Arq. Jorge Zaldívar Suárez

ALUMNOS

Aguilar Aymachoque Rosario

Aquise Luque Luz Deysi

Cochachin Florecin Jhon Brandon

Cuadros Claro Marko

Padilla Suazo Virginia

Pozada Ramirez Otto Alexander

Quispe Palomino Adiel

Ramos de la Cruz Bryan Alexander

Venero Lobatón Irving

Vidal Chávez Esther

APA107B TALLER DE DISEÑO 5B
L10
2022-2
PAMPA DE LOS PERROS DIAGNÓSTICO
G1

● Arq. Alexey Carrasco

Aguilar Aymachoque Rosario

Aquise

Cochachin

Cuadros Claro Marko

Padilla

Pozada Ramirez Otto Alexander

Quispe Palomino Adiel

Ramos de la Cruz Bryan Alexander

Venero Lobatón Irving

Vidal Chávez Esther

APA107B TALLER DE DISEÑO 5B 2022-2 L11
DE LOS PERROS DIAGNÓSTICO
PAMPA
CÁTEDRA
Msc. Arq. Robinson Ortiz Agama
Arq. Carmen Cárdenas Flores
Arq. Luis Morales
Arq. Juan Palacios Rojas
Msc. Arq. Jorge Zaldívar Suárez ALUMNOS
Luque Luz Deysi
Florecin Jhon Brandon
Suazo Virginia
G1

CÁTEDRA

●Msc. Arq. Robinson Ortiz Agama

●Arq. Carmen Cárdenas Flores

●Arq. Juan Palacios Rojas

● Arq. Alexey Carrasco

●Arq. Luis Morales

●Msc. Arq. Jorge Zaldívar Suárez

ALUMNOS

Aguilar Aymachoque Rosario

Aquise Luque Luz Deysi

Cochachin Florecin Jhon Brandon

Cuadros Claro Marko

Padilla Suazo Virginia

Pozada Ramirez Otto Alexander

Quispe Palomino Adiel

Ramos de la Cruz Bryan Alexander

Venero Lobatón Irving

Vidal Chávez Esther

APA107B TALLER DE DISEÑO 5B
L12
2022-2
PAMPA DE LOS PERROS DIAGNÓSTICO
G1

VENTANILLA, CALLAO,PERÚ

DISEÑO ARQUITECTÓNICO 5B

APROXIMACIÓN AL DISEÑO ARQUITECTÓNICO

“PUSAQ”

PAMPA LOS PERROS

GRUPO 1.2

CÁTEDRA

Msc. Arq. Robinson C. Ortiz Agama

Arq. Carmen Florelí Cárdenas Flores

Arq. Juan Luis Palacios Rojas

Arq. Luis Enrique Morales Delgado Arq. Alexey Carrasco Escárcena

INTEGRANTES

Aquise Luque Luz Deysi Cuadros Claro Marko Padilla Suazo Virginia

Quispe Palomino Adiel Venero Lobatón Irving

APA107B

CÁTEDRA

●Msc. Arq. Robinson Ortiz Agama ● Arq. Alexey Carrasco

●Arq. Carmen Cárdenas Flores ●Arq. Luis Morales

APA107B TALLER DE DISEÑO 5B
L2
2022-2
APROXIMACIÓN CONCEPTUAL, CONTEXTUAL, FUNCIONAL Y VOLUMÉTRICA AL PROBLEMA
G1.2 PUSAQ CENTRO DE INTERPRETACIÓN CULTURAL EN PAMPA LOS PERROS
Arq. Juan Palacios Rojas ALUMNOS Aquise Luque Luz Deysi Cuadros Claro Marko Padilla Suazo Virginia Quispe Palomino Adiel Venero Lobatón Irving
PROPUESTA
DISEÑO 5B 2022-2 L3 APROXIMACIÓN CONCEPTUAL, CONTEXTUAL, FUNCIONAL Y VOLUMÉTRICA AL PROBLEMA
Msc. Arq. Robinson Ortiz Agama ● Arq. Alexey Carrasco
Arq. Carmen Cárdenas Flores ●Arq. Luis Morales
Arq. Juan Palacios Rojas ALUMNOS Aquise Luque Luz Deysi Cuadros Claro Marko Padilla Suazo Virginia Quispe Palomino Adiel Venero Lobatón Irving G1.2 PROGRAMAARQUITECTÓNICO CONCEPTUALIZACIÓN 2.1Definicióndeuncentrodeinterpretación 2.2Ideaprincipaldediseñodepartida-Abstracción CONDICIONANTESDEDISEÑO 3.1Unidadesdeespaciosfuncionales 3.2Condicionantessegúnelsitio A.Topografía B.Orientación C.Tamañoyforma D.Vegetaciónyclima 3.3Restricciones A.Carreteras B.R.N.E. C.Distribucióneléctrica,sanitariayestructural D.Otrasrestricciones A. FUNCIONALAPROXIMACIÓNCONCEPTUAL,CONTEXTUAL, YVOLUMÉTRICAALPROBLEMA 3.4Condicionantesculturales,históricosy sociales 4. MAQUETAVOLUMÉTRICA(1/500) 4.1Maquetavirtual 4.2Maquetafísica 5. PLANIMETRÍA(1/250) 6. APUNTES 7. ARCHIVOISSUUACUMULADO
CÁTEDRA ●
APROXIMACIÓN CONCEPTUAL, CONTEXTUAL, FUNCIONAL
AL PROBLEMA A
Y VOLUMÉTRICA

03 PROGRAMA ARQUITECTÓNICO

ADMINISTRACIÓN

TALLERES DE FORMACIÓN

ARQUITECTÓNICO

ZONA ACADEMICA

MUESTRAS DE TALLERES

SERVICIOS

ZONA DE DIFUSION CULTURAL

BIBLIOTECA

LIBRERÍA

MUSEO

SUM

SECRETARIA 9 1 9 2,7 11,7

ADMINISTRACIÓN 12 1 12 3,6 15,6

CONTABILIDAD 12 1 12 3,6 15,6

RECEPCIÓN 25 1 25 7,5 32,5 172,9 172,9

ARCHIVO 9 1 9 2,7 11,7

SH VARONES 18 1 18 5,4 23,4

SH MUJERES 18 1 18 5,4 23,4

SALA DE REUNIONES 30 1 30 9 39

AULA DE TEATRO 100 1 100 30 130

AULA DE DIBUJO 100 1 100 30 130

AULA DE DANZA 100 1 100 30 130 543,4

AULA DE CERAMICA 100 1 100 30 130

ALMACENES 9 2 18 5,4 23,4

OFICINA DE CONTROL 18 1 18 5,4 23,4 23,4 1033,5

DANZA 80 1 80 24 104 416

TEATRO 80 1 80 24 104

DIBUJO 80 1 80 24 104

CERAMICA 80 1 80 24 104

SSHH VARONES 18 1 18 5,4 23,4 50,7

SSHH MUJERES 18 1 18 5,4 23,4

CUARTO DE LIMPIEZA 6 1 3 0,9 3,9

FOYER 80 1 80 24 104

ESCENARIO 75 1 75 22,5 97,5

SALA DE BUTACAS 200 1 200 60 260

VESTUARIOS 24 2 48 14,4 62,4

ALMACENS 20 2 40 12 52

SSHH VARONES 18 1 18 5,4 23,4

SSHH MUJERES 18 1 18 5,4 23,4

CUARTO DE LIMPIEZA 2 1 2 0,6 2,6

CUARTO DE MAQUINAS 4 1 4 1,2 5,2

SALA DE LECTURA PARA ADULTOS 50 3 150 45 195

SALA DE LECTURA PARA NIÑOS 36 1 36 10,8 46,8

RECEPCION 15 1 15 4,5 19,5

ZONA DE MAQUINAS 36 1 36 10,8 46,8

OFICINA DE CONTROL 20 1 20 6 26 461,5

ALMACEN 30 2 60 18 78

SSHH VARONES 18 1 18 5,4 23,4

SSHH MUJERES 18 1 18 5,4 23,4

OFICINA DE CONTROL 15 1 15 4,5 19,5 650 2407,6

CUARTO DE LIMPIEZA 2 1 2 0,6 2,6

RECIBIDOR 6 1 6 1,8 7,8

CAJA 3 1 3 0,9 3,9 94,9

EXCIBIDOR 50 1 40 12 52

DEPOSITO 24 1 24 7,2 31,2

ZONA DE EXPOSICIÓN AL AIRE LIBRE 80 2 160 48 208

ZONA DE EXPOSICION AMBIENTE CERRADO 100 4 400 120 520

OFICINA DE CONTROL 21 1 21 6,3 27,3 959,4

ALMACEN 45 2 90 27 117

SSHH VARONES 21 1 21 6,3 27,3

SSHH MUJERES 21 1 21 6,3 27,3

CUARTO DE LIMPIEZA 4 1 4 1,2 5,2

OFICINA DE CONTROL 21 1 21 6,3 27,3

SSHH VARONES 18 1 18 5,4 23,4

SSHH MUJERES 18 1 18 5,4 23,4

SALON 100 1 100 30 130 241,8

CUARTO DE LIMPIEZA 2 1 2 0,6 2,6

ALMANCEN 24 2 48 14,4 62,4

APROXIMACIÓN CONCEPTUAL, CONTEXTUAL, FUNCIONAL Y VOLUMÉTRICA AL PROBLEMA

CÁTEDRA

ALUMNOS

Aquise Luque Luz Deysi

●Msc. Arq. Robinson Ortiz Agama ● Arq. Alexey Carrasco

Quispe Palomino Adiel Venero Lobatón Irving G1.2

Cuadros Claro Marko

●Arq. Carmen Cárdenas Flores ●Arq. Luis Morales

●Arq. Juan Palacios Rojas

L6
APA107B TALLER DE DISEÑO 5B 2022-2
01 PROGRAMA
SECTOR SUBSECTOR AMBIENTES AREA UNITARIA NUMERO DE AMBIENTES AREA UTIL PARCIAL CIRCULACIÓN Y
Padilla Suazo Virginia AREA PARCIAL AREA POR SUB ZONA AREA POR ZONA
MUROS
ZONA ADMINITRATIVA
OFICINA DE CONTROL AUDITORIO

INGRESO

ADMINISTRACIÓN

MÓDULOS DE INVESTIGACIÓN

SUM

ZONA DE INVESTIGACIÓN

CULTURAL

ZONA DE BIODIVERSIDAD

Recepción secretarial 10 1 10 3 13

Oficina coordinador 20 1 20 6 26

Área de exposiciones 50 1 50 15 65

SUSTENTABILIDAD

PATRIMONIO

SERVICIOS

CAFETERIA

SERVICIOS

ANFITEATRO

ESTACIONAMIENTO

RECREATIVO

Oficinas 30 1 30 9 39 45,5 S.S.H.H. 5 1 5 1,5 6,5

Módulo de historia 30 1 30 9 39 156

Módulo de cultura 30 1 30 9 39

Módulo de restauración y patrimonio 30 1 30 9 39

Módulo de ciencias 30 1 30 9 39

S.U.M. 100 1 100 30 130 156 Depósito 20 1 20 6 26

Boxes de investigación 10 3 30 9 39 Banco de genes 20 1 20 6 26

Hall y control 150 1 150 45 195 299 2249

Laboratorios 20 2 40 12 52 247

Invernadero 50 1 50 15 65 Centro de rescate 50 1 50 15 65

Boxes de investigación 10 3 30 9 39 143

Taller- laboratorio 60 1 60 18 78 Depósito 20 1 20 6 26

SALAS DE INTERPRETACIÓN 100 4 400 120 520 1131

SALAS DE INVESTIGACIÓN 100 4 400 120 520 Laboratorios 20 2 40 12 52

Boxes de investigación 10 3 30 9 39

Cuarto de limpieza 10 1 10 3 13

S.S.H.H 30 1 30 9 39 71,5

Cuarto de máquinas 15 1 15 4,5 19,5

CUARTO DE MAQUINAS 20 1 20 6 26 127,4 127,4 DEPOSITOS 40 1 40 12 52

CUARTO DE BASURA 20 1 20 6 26 SH BAÑOS 18 1 18 5,4 23,4

ZONA DE MESAS 150 1 150 45 195 260 310,7

COCINA 30 1 30 9 39 DEPOSITO 20 1 20 6 26

SSHH VARONES 18 1 18 5,4 23,4 50,7 SSHH MUJERES 18 1 18 5,4 23,4

CUARTO DE LIMPIEZA 3 1 3 0,9 3,9

ANFITEATRO 600 1 600 180 780

ESTACIONAMIENTO 1200 1 1200 360 1560 1560

PLAZOLETA 600 1 600 180 780 910

RECEPCION 25 1 25 7,5 32,5 812,5 15050

AREA DE REUNIONES 25 4 100 30 130 MIRADOR 600 1 600 180 780 780 AREA DE NIÑOS 50 1 50 15 65 65 AREA VERDE AREA VERDE 10922,5

APROXIMACIÓN CONCEPTUAL, CONTEXTUAL, FUNCIONAL Y VOLUMÉTRICA AL PROBLEMA

CÁTEDRA

ALUMNOS

Aquise Luque Luz Deysi

●Msc. Arq. Robinson Ortiz Agama ● Arq. Alexey Carrasco

Quispe Palomino Adiel Venero Lobatón Irving G1.2

●Arq. Carmen Cárdenas Flores ●Arq. Luis Morales

●Arq. Juan Palacios Rojas

Cuadros Claro Marko Padilla Suazo Virginia

L7
APA107B TALLER DE DISEÑO 5B 2022-2
01
PROGRAMA ARQUITECTÓNICO
SERVICIOS SERVICIOS DE MANTENIMIENTO ZONA DE ALIMENTOS
AREA LIBRE
SECTOR SUBSECTOR AMBIENTES AREA UNITARIA NUMERO DE AMBIENTES AREA UTIL PARCIAL CIRCULACIÓN Y MUROS AREA PARCIAL AREA POR SUB ZONA AREA POR ZONA ÁREA DE TERRENO 19172 HUELLA 4122 ÁREA LIBRE 15050 ÁREA TECHADA 6301,1 PUSAQ CENTRO DE INTERPRETACIÓN CULTURAL EN PAMPA LOS PERROS

03 CONCEPTUALIZACIÓN

APA107B TALLER DE DISEÑO 5B 2022-2 L9 APROXIMACIÓN CONCEPTUAL, CONTEXTUAL, FUNCIONAL Y VOLUMÉTRICA AL PROBLEMA CÁTEDRA ●Msc. Arq. Robinson Ortiz Agama ● Arq. Alexey Carrasco ●Arq. Carmen Cárdenas Flores ●Arq. Luis Morales ●Arq. Juan Palacios Rojas ALUMNOS Aquise Luque Luz Deysi Cuadros Claro Marko Padilla Suazo Virginia Quispe Palomino Adiel Venero Lobatón Irving G1.2 ACADÉMICO INVESTIGACIÓN ADMINISTRATIVO SERVICIOSYOTROS CULTURAL
TALLER DE DISEÑO 2022-2 PROBLEMA ●Arq. Juan Palacios Rojas 02 CONCEPTUALIZACIÓN 2.1 DEFINICIÓN

PUSAQ: En quechua significa el que acompaña, guía, líder, y también n° 8.

EL EDIFICIO PARTE DE UNA CONCEPCIÓN GEOMÉTRICA OCTOGONAL PARTIDA QUE CONCENTRA LA IDEA DE GENERAR UN ESPACIO CENTRAL DE RECIBO COMO PRIMER ESQUEMA,ASI MISMO ENFRENTAR LA MORFOLOGIA DEL TERRENO DE LO CURBO A LO RECTO PARA DESTACAR.

02 CONCEPTUALIZACIÓN 2.8 IDEA PRINCIPAL DE DISEÑO - ABSTRACCIÓN

DE LAFORMAALAENVOLTURA,la imagen geometrica se desvanece con una envoltura parametrica de condicion bioclimatica ,est dispone generar cobertura para el confort termico ,asi como darle una idea de fluides que acompaña al rio

..

LAFORMADE EMPLAZAR ELTERRENO ,Conceptual la idea de emerger de la tierra ,generando un perfil a manera de portada,este vacío condicionado,permite tener la visual de la huaca desde la plaza .asi mismo el techo se utiliza como quinta fachada,brindándole espacio público permeable al lugar. ..

APROXIMACIÓN CONCEPTUAL, CONTEXTUAL, FUNCIONAL Y VOLUMÉTRICA AL PROBLEMA

CÁTEDRA

ALUMNOS

Aquise Luque Luz Deysi

●Msc. Arq. Robinson Ortiz Agama ● Arq. Alexey Carrasco

Quispe Palomino Adiel Venero Lobatón Irving G1.2

●Arq. Carmen Cárdenas Flores ●Arq. Luis Morales

●Arq. Juan Palacios Rojas

Cuadros Claro Marko

Padilla Suazo Virginia

L14
APA107B TALLER DE DISEÑO 5B 2022-2

SE EMPALMACON ELTERRENO,,la idea de generar un patio hundido aprovechando la pendiente ,permite tener la conceptualización del uku pacha o mundo de abajo ,generando esta libre circulación desde la planta soterrada hasta la azotea a través de una rampa en el techo .

02 CONCEPTUALIZACIÓN 2.8 IDEA PRINCIPAL
DISEÑO - ABSTRACCIÓN
DE

LARELACION DEL VECTOR CON EL ENTORNO ,el edificio permite emplazar todas sus disposiciones laterales,este abre un espacio a la plaza ,a su vez permite la permeabilidad para el transito a la huaca,y la rampa logra un mirador en la azotea..

02 CONCEPTUALIZACIÓN 2.8 IDEA PRINCIPAL DE DISEÑO - ABSTRACCIÓN

ELESPACIO DE CONVIVENCIA,el edificio emplaza dos patios hunididos en la parte mas baja del edificio ,soterrando el terreno colindante al parque(uku pacha)asi mismo presenta un frente dispuesto al nivel de la plaza donde se muestran .(kay pacha),dos rampas que invitan a la parte mas alta del edificio como espacio publico,y visual tanto del rio como de la huaca…(hanan pacha).

03 CONDICIONES DE DISEÑO

SALASDEEXPOSICIÓN

3.1 UNIDADES DE ESPACIOS FUNCIONALES

El público debe contemplar las obras expuestas sin esfuerzo. Existen requerimientos mínimos del número de personas en espacios de exposición, según el RNE, la unidad espacio funcional es de 3m2. Se tiene contemplado agrupar el recorrido en un número de visitantes de 20 personas a la vez, más los 2 guías. Cada sala o módulo sería 80 m2, donde se incluyen los recursos tecnológicos que se adopten, diferentes en cadamódulo:pantallastáctiles,exposicióninteractiva,instalacionestecnológicas,etc.

CONDICIONES DE DISEÑO

Fuente:NeufertE.,pág.538

Usuario:Visitantesentreturistasylocales(máx.20)

Guíasderecorrido(máx.2) U.E.F.:3m2(R.N.E.)

Módulo:80m2 Altura:Min3.00m

Iluminación:Depreferenciaartificial

Fuente:NeufertE.,pág.538

03

SALADEUSOSMÚLTIPLES

CONDICIONES DE DISEÑO

Usuario: Visitantes entre turistas y locales (máx. 300) U.E.F.:1m2(R.N.E.)xnúmerodeasiento Módulo:4x100m2 Altura:Mín.5.00m. Iluminación:Depreferenciaartificial. SALÓN USO DE COMEDOR SALÓN DE BAILE SALONES ESPECIALES SALONES PRIVADOS SOLUCIONES DE DISPOSICIÓN DE SILLAS O BUTACAS EN SALONES

APROXIMACIÓN CONCEPTUAL, CONTEXTUAL, FUNCIONAL Y VOLUMÉTRICA AL PROBLEMA

CÁTEDRA

ALUMNOS

Aquise Luque Luz Deysi

●Msc. Arq. Robinson Ortiz Agama ● Arq. Alexey Carrasco

Quispe Palomino Adiel Venero Lobatón Irving G1.2

Cuadros Claro Marko

●Arq. Carmen Cárdenas Flores ●Arq. Luis Morales

●Arq. Juan Palacios Rojas

APA107B TALLER DE
5B
L20
DISEÑO
2022-2
Padilla Suazo Virginia 03
En el caso de las salas de usos múltiples, en el R.N.E. Se contempla un espacio de 1m2 según el número de asientos que se consideren. En un espaciode400m2comoelqueseestima,sedebe poder albergar a 300 personas sentadas. El resto del espacio será ocupado por el mobiliario eventual que se proyecte, como el caso de un escenario, pista de baile, etc. Se debe de tener en cuenta que este espacio estará subdividido en 4 módulos con la posibilidad de ser integrados en un solo espacio. Este cerramiento se llevará a cabo mediante tabiquesdeslizablesquepuedenestardesplegados o almacenados dentro del mismo espacio. Las funciones primarias que contempla este espacio son de sala de prensa, salas de convenciones, reunión,saladebaile,etc.

CONDICIONES DE DISEÑO

BIBLIOTECA

La biblioteca del Centro de Interpretación contará con las publicaciones realizadas por parte de la investigación, y a la vez, volúmenes complementarios referenciales de los temas que se desarrollan. La capacidad máxima será de 50 personas, se tomará en cuenta un área de estanterías con 10 m2 por persona, un área de lectura de 4.5 m2, y un módulo de atención del bibliotecario. Se debe tomar en cuenta los criterios de asolamiento y acústica.

Usuario: Visitantes entre turistas y locales(máx.50)

Bibliotecarioyasistente U.E.F.:4,5m2(R.N.E.)áreadelectura 10.0m2(R.N.E.)estanterías

Módulo:310m2

Altura:Mín3m. Iluminación: controldeasoleamiento

DATOS ANTROPOMÉTRICOS

DIMENSIONES MÍNIMAS

DIMENSIONES INTERMEDIAS

SOLUCIONES DE SALAS DE LECTURA

Fuente:PlazolaCisneros,Vol2,pág.454

ELEMENTOS QUE NORMAN EL ALMACENAJE DE LIBROS

Fuente:PlazolaCisneros,Vol2,pág.456

CÁTEDRA

ALUMNOS

APROXIMACIÓN CONCEPTUAL, CONTEXTUAL, FUNCIONAL Y VOLUMÉTRICA AL PROBLEMA

●Msc. Arq. Robinson Ortiz Agama ● Arq. Alexey Carrasco

●Arq. Carmen Cárdenas Flores ●Arq. Luis Morales

●Arq. Juan Palacios Rojas

Aquise Luque Luz Deysi

Quispe Palomino Adiel Venero Lobatón Irving G1.2

Cuadros Claro Marko

L21
APA107B TALLER DE DISEÑO 5B 2022-2
Padilla Suazo Virginia 03

CONDICIONES DE DISEÑO

RESTAURANTE

1.Aparato

Extraccióndeaires Controldeasoleamiento

APROXIMACIÓN CONCEPTUAL, CONTEXTUAL, FUNCIONAL Y VOLUMÉTRICA AL PROBLEMA

CÁTEDRA

ALUMNOS

Aquise Luque Luz Deysi

●Msc. Arq. Robinson Ortiz Agama ● Arq. Alexey Carrasco

Quispe Palomino Adiel Venero Lobatón Irving G1.2

Cuadros Claro Marko

●Arq. Carmen Cárdenas Flores ●Arq. Luis Morales

●Arq. Juan Palacios Rojas

APA107B
L22
TALLER DE DISEÑO 5B 2022-2
Padilla Suazo Virginia 03
3.
4.
5. FUNCIONES Y ORGANIZACIÓN DE UNA COCINA CALIENTE 6. ORGANIZACIÓN DE UNA COCINA FRÍA 2. EN NICHOS 1.MEDIDAS MÍNIMAS 3. DISPOSICIÓN
4. DISPOSICIÓN DE LAS
EN DIAGONAL 5.
El restaurante del Centro de Interpretación estará orientado a revalorizar la cocina ancestral inca y a la vez fusionarla con las nuevas técnicas. Esta contará con una capacidadpara100visitantesyuncoeficiente de 1,5 m2 por persona, lo que nos da un área aproximada de 150m2, aparte de contener una barra de 10 m2 para 10 personas. La cocina alberga un coeficiente de 10.00m2, donde se realizan las funciones de preparado, lavado, secado, refrigeración, depósito y conservación dealimentos. Usuario: Visitante entre turistas y locales (máx.110) Bibliotecarioyasistente U.E.F.:1.5m2(R.N.E.)áreademesas 10.0m2(R.N.E.)cocina Módulo:300m2 Altura:Mín3.00m. Iluminación:Naturalyartificial
de lavado 2.Recipiente de recogida 3.Mesa de limpieza posterior 4.Superficie auxiliar 5.Fregadero 6.Mesa de trabajo con armarios bajos 7.Tabla para cortar (80x40cm) 8.Aparato universal 9.Lavamanos Fuente:NeufertE.,pág.398
COCINA PARA UN RESTAURANTE DE 60 A 100 PLAZAS
COCINA DE RESTAURANTE PARA 150 A 200 COMIDAS
DE LAS MESAS EN PARALELO
MESAS
MEDIDAS MÍNIMAS PARA LA COLOCACIÓN DE LAS MESAS Fuente: NeufertE.,pág.397
1.Mesa de trabajo 2.Cortador universal 3.Congelador 4.Báscula de sobremesa 5.Tabla para cortar (80x40cm) 6.Aparato para amasar y batir 7.Lavamanos 8.Superficie auxiliar

CONDICIONES DE DISEÑO

TALLERESINTERPRETATIVOS

Los talleres interpretativos son parte del recorrido de exposiciones dentro del Centro de Interpretación. Estos espacios están dedicados a la demostración práctica de técnicas y procedimientos heredados por los antepasadosincasyqueaúnseutilizan. Cada módulo de taller interpretativo cuenta con 20m2, donde dos personas trabajan en las representaciones que son vistas a manera de galería (10m2xpersona, según R.N.E.) Entre estos se encuentran los talleres de textilería,artesanía,orfebrería,etc.

3.1 UNIDADES DE ESPACIOS FUNCIONALES

Usuario:Trabajadores2máx. U.E.F.:10.00m2(R.N.E.)

Módulo:20m2

Altura:Mín2.70m.

Iluminación:Artificial

APROXIMACIÓN CONCEPTUAL, CONTEXTUAL, FUNCIONAL Y VOLUMÉTRICA AL PROBLEMA

CÁTEDRA

ALUMNOS

Aquise Luque Luz Deysi

●Msc. Arq. Robinson Ortiz Agama ● Arq. Alexey Carrasco

Quispe Palomino Adiel Venero Lobatón Irving G1.2

●Arq. Carmen Cárdenas Flores ●Arq. Luis Morales

●Arq. Juan Palacios Rojas

Cuadros Claro Marko

Padilla Suazo Virginia

L23
APA107B TALLER DE DISEÑO 5B 2022-2
03

CONDICIONES DE DISEÑO

AUDITORIO

El auditorio está destinado para una cantidad de 300 personas, donde se incluye un foyer previo, ingreso, cuarto de proyección, escenario, ss.hh. de público e intérpretes, depósito y una pequeña cafetería. El área aproximada para estos servicios es de 850m2. Debe de existir un estudio de acústica interior para lograr una buena performance,lailuminaciónesartificial.

Fuente: PlazolaCisneros,vol2,pág.659

SECCIÓN LONGITUDINAL

SALA DE ESPECTADORES ÓPTIMA

Fuente: NeufertE.,pág.425

Usuario: Visitantes entre turistas y locales(máx.300) Intérpretesyservicio

U.E.F.: 0.85m2 (R.N.E.-) área de butacas Módulo:300m2 Altura:Mín6.00m.

Iluminación: Controlacústico

Fuente: PlazolaCisneros,vol2,pág.659

1. Según las ordenanzas que regulan los espectáculos públicos,todaslasplazas,aexcepcióndelospalcos,hande tener butacas fijas con el asiento abatible manualmente y unas medidas iguales o superiores a las expresadas en el dibujo.

2. Los asientos abatibles colocados en

diagonalpermitenlibertaddecodos. 3.Anchuradelasfilas,16plazas. 4. Anchura de las filas, 25 plazas; es

APROXIMACIÓN CONCEPTUAL, CONTEXTUAL, FUNCIONAL Y VOLUMÉTRICA AL PROBLEMA

CÁTEDRA

ALUMNOS

Aquise Luque Luz Deysi

●Msc. Arq. Robinson Ortiz Agama ● Arq. Alexey Carrasco

Quispe Palomino Adiel Venero Lobatón Irving G1.2

●Arq. Carmen Cárdenas Flores ●Arq. Luis Morales

●Arq. Juan Palacios Rojas

L24
APA107B TALLER DE DISEÑO 5B 2022-2
Cuadros Claro Marko Padilla Suazo Virginia 03
Fuente: NeufertE.,pág.425
Fuente: NeufertE.,pág.426
necesariounapuerta.

CONDICIONES DE DISEÑO

MÓDULOSDEINVESTIGACIÓN

Las principales fuentes de información son los módulos de investigación donde se analizan los potenciales temas a investigar.Cadaunodeestosambientes funciona como aula o taller, donde el encargado de cada módulo: historia, cultura, ciencia, restauración; tiene dos ayudantes o practicantes que complementan la búsqueda. El espacio se desarrolla en 30 m2 donde cada persona ocupa 10m2, según R.N.E. A su vez, cuenta con estanterías, sillas, mesas,recursostecnológicos,etc.

Usuario:Investigadores3máx. U.E.F.:10.00m2(R.N.E.)

Módulo:30.00m2

Altura:Mín3.00m.

Iluminación:Artificialynatural Controlasoleamiento

APROXIMACIÓN CONCEPTUAL, CONTEXTUAL, FUNCIONAL Y VOLUMÉTRICA AL PROBLEMA

CÁTEDRA

●Msc. Arq. Robinson Ortiz Agama ● Arq. Alexey Carrasco

●Arq. Carmen Cárdenas Flores ●Arq. Luis Morales

●Arq. Juan Palacios Rojas

ALUMNOS

L25
APA107B TALLER DE DISEÑO 5B 2022-2
03
Aquise Luque Luz Deysi Cuadros Claro Marko Padilla Suazo Virginia Quispe Palomino Adiel Venero Lobatón Irving G1.2

CONDICIONES DE DISEÑO

Los procesos de gerencia, coordinación y dirección del funcionamiento del centro de interpretación se dan a través de oficinas administrativas. La unidad espacio funcional es 10.00m2 (R.N.E.) por persona, las oficinas principales cuentan con 1 secretaría. En otros casos como el de recursos

de trabajo con máquinasdeoficinaenelextremodelamesa

6.Reglabásica: P=1.5H —Texto 2. Puesto de trabajo con máquina deescribirymesaauxiliar. 3. Puesto doble con formatos normales 4. Separación entre ejes de paredes según medidas normales —p.57

6.Reglabásica: P=1.5H —Texto

ALUMNOS

L26
Arq. Alexey Carrasco
03
Aquise Luque Luz Deysi Cuadros Claro Marko Padilla Suazo Virginia Quispe Palomino Adiel Venero Lobatón Irving
5. SECCIÓN DE UNA OFICINA COMBINADA, SALA INDIVIDUAL Y SALA DE USO COMÚN 9. Tabla de potencias lumínicas
edificiosdeoficinas 10. Tabla de las normas de ventilación VDIyASRE 8.
7.
en
Medidas mínimas de una oficina para 2personas.
Ejemplos de puestos

SEGÚN

03
CONDICIONES DE DISEÑO 3.2 CONDICIONANTES
EL SITIO: TAMAÑO Y FORMA DEBE DE CONTINUAR CON EL ZÓCALO DE LAPLAZA

●Arq. Carmen Cárdenas Flores ●Arq. Luis Morales

●Arq. Juan Palacios Rojas

Desde años atrás el territorio cuenta con edificaciones Prehispánicas, estas están ubicadas a pocos metros del Río, teniendo un paisaje cultural y paisajístico muy completo. Sin embargo , actualmente este paisaje viene siendo intimidado por los nuevos asentamientos de viviendas sin planificación

Frente al área de intervención se encuentra el valle Chillón , donde se desarrolla agricultura local en los Huertos Ex Fundo Chuquitanta, esto es gracias al buen suelo fértil que brindan

Cuadros Claro Marko Padilla Suazo Virginia

Quispe Palomino Adiel Venero Lobatón Irving

APA107B TALLER DE DISEÑO 5B 2022-2 L29
FUNCIONAL Y VOLUMÉTRICA AL PROBLEMA
03
DISEÑO
CONDICIONES DE
2 3 4 1 2 3 4 1
APA107B TALLER DE DISEÑO 5B 2022-2 L30 APROXIMACIÓN CONCEPTUAL, CONTEXTUAL, FUNCIONAL Y VOLUMÉTRICA AL PROBLEMA CÁTEDRA ●Msc. Arq. Robinson Ortiz Agama ● Arq. Alexey Carrasco ●Arq. Carmen Cárdenas Flores ●Arq. Luis Morales ●Arq. Juan Palacios Rojas ALUMNOS Aquise Luque Luz Deysi Cuadros Claro Marko Padilla Suazo Virginia Quispe Palomino Adiel Venero Lobatón Irving G1.2 04 MAQUETA VOLUMÉTRICA 4.1 MAQUETA VIRTUAL

FÍSICA

04
MAQUETA VOLUMÉTRICA 4.1 MAQUETA
DE DISEÑO 2022-2 PROBLEMA
TALLER
●Arq. Juan Palacios Rojas
04 MAQUETA VOLUMÉTRICA 4.1 MAQUETA
Padilla Suazo Virginia
FÍSICA
04 MAQUETA VOLUMÉTRICA
TALLER DE DISEÑO PROBLEMA ●
Arq. Juan Palacios Rojas

APROXIMACIÓN CONCEPTUAL, CONTEXTUAL, FUNCIONAL Y VOLUMÉTRICA AL PROBLEMA

CÁTEDRA

●Msc. Arq. Robinson Ortiz Agama ● Arq. Alexey Carrasco

●Arq. Carmen Cárdenas Flores ●Arq. Luis Morales

●Arq. Juan Palacios Rojas

ALUMNOS

Aquise Luque Luz Deysi

APA107B TALLER DE
L34
DISEÑO 5B 2022-2
05 PLANIMETRÍA 5.1
Cuadros Claro Marko Padilla Suazo Virginia Quispe Palomino Adiel Venero Lobatón Irving G1.2
PLOT PLAN 1/500

Venero Lobatón 5.3 CORTES ESQUEMÁTICOS

CONTEXTUAL, FUNCIONAL Y VOLUMÉTRICA AL PROBLEMA

●Msc. Arq. Robinson Ortiz Agama ● Arq. Alexey Carrasco

●Arq. Carmen Cárdenas Flores ●Arq. Luis Morales

Cuadros Claro Marko Padilla Suazo Virginia 05 PLANIMETRÍA

APA107B TALLER DE
5B
L35
DISEÑO
2022-2
●Arq. Juan Palacios Rojas Irving

CÁTEDRA

APA107B TALLER DE DISEÑO 5B 2022-2 L36
APROXIMACIÓN CONCEPTUAL, CONTEXTUAL, FUNCIONAL Y VOLUMÉTRICA AL PROBLEMA
Msc. Arq. Robinson Ortiz Agama ● Arq. Alexey Carrasco
Arq. Carmen Cárdenas Flores ●Arq. Luis Morales
G1.2 05 PLANIMETRÍA 5.2 PLANOS NIVEL
RESTAURANTE / CAFETERÍA
Arq. Juan Palacios Rojas ALUMNOS Aquise Luque Luz Deysi Cuadros Claro Marko Padilla Suazo Virginia Quispe Palomino Adiel Venero Lobatón Irving
-1 AUDITORIO
COMERCIO ANFITEATRO

TALLERES

APROXIMACIÓN CONCEPTUAL, CONTEXTUAL, FUNCIONAL Y VOLUMÉTRICA AL PROBLEMA

CÁTEDRA

ALUMNOS

Aquise Luque Luz Deysi

●Msc. Arq. Robinson Ortiz Agama ● Arq. Alexey Carrasco

Quispe Palomino Adiel Venero Lobatón Irving G1.2

●Arq. Carmen Cárdenas Flores ●Arq. Luis Morales

●Arq. Juan Palacios Rojas

Cuadros Claro Marko

Padilla Suazo Virginia

L37
APA107B TALLER DE DISEÑO 5B 2022-2
05 PLANIMETRÍA
5.2 PLANOS
PRIMER PISO SALAS DE EXPOSICIONES ADMINISTRACIÓN
AUDITORIO SUM BIBLIOTECA

SEGUNDO PISO MUSEO

TALLERES

APROXIMACIÓN CONCEPTUAL, CONTEXTUAL, FUNCIONAL Y VOLUMÉTRICA AL PROBLEMA

CÁTEDRA

ALUMNOS

Aquise Luque Luz Deysi

●Msc. Arq. Robinson Ortiz Agama ● Arq. Alexey Carrasco

Quispe Palomino Adiel Venero Lobatón Irving G1.2

●Arq. Carmen Cárdenas Flores ●Arq. Luis Morales

●Arq. Juan Palacios Rojas

Cuadros Claro Marko

Padilla Suazo Virginia

L38
APA107B TALLER DE DISEÑO 5B 2022-2
05 PLANIMETRÍA 5.2
PLANOS
ZONA
INVESTIGACION
DE
SUM
06
APUNTES

CÁTEDRA

●Msc. Arq. Robinson Ortiz Agama ● Arq. Alexey Carrasco

●Arq. Carmen Cárdenas Flores ●Arq. Luis Morales

●Arq. Juan Palacios Rojas

ALUMNOS

APA107B TALLER DE DISEÑO 5B
L41
2022-2
APROXIMACIÓN CONCEPTUAL, CONTEXTUAL, FUNCIONAL Y VOLUMÉTRICA AL PROBLEMA
07 ARCHIVO ISSUU ACUMULADO Link : ISSUU
Aquise Luque Luz Deysi Cuadros Claro Marko Padilla Suazo Virginia Quispe Palomino Adiel Venero Lobatón Irving G1.2
ACUMULADO

Turn static files into dynamic content formats.

Create a flipbook
Issuu converts static files into: digital portfolios, online yearbooks, online catalogs, digital photo albums and more. Sign up and create your flipbook.