DJB_CoastalConcepts

Page 1

COASTAL CONCEPTS

LET’S BUILD YOUR LEGACY .

Welcome

I’d like to personally thank you for considering a partnership with Dillard-Jones to design and build your custom home in the Carolinas! Before you begin this journey, I invite you to learn more about our luxurious homes, experienced team and signature all-inclusive process.

With a degree in mechanical engineering from Clemson University, I chose to establish Dillard-Jones Builders, where I could share my expertise in construction, management and business leadership while perfecting an all-inclusive process for our clients.

As a family-owned and operated business for over two decades, our team has grown to include some of the most talented architects, designers and building professionals in the Carolina’s. I hope you can sense the commitment and passion of our Design-Build-Dwell process and understand why it truly sets us apart from other builders.

I’m always available to answer questions and look forward to welcoming you to our Dillard-Jones family soon. Let’s create something amazing together!

Our All-Inclusive Process

DESIGN. Let’s start by designing your ideal home. Our team of architects/designers, builders and interior designers will translate your ideas into conceptual plans and work with you to perfect them. Once this is all set, we conduct a ‘Fit and Finish’ interview to help set quality, style and costs. After that, we are able to create a very accurate budget locked in with detailed specifications and a design-parti to literally put us all on the same page before entering a design-build contract. From there, we complete the 3D renderings and bring in a host of other experts from our team to work through all critical planning and details before building.

BUILD. We’ll break ground on your new home and keep you updated on the construction progress through frequent communications as well as through our building app with a live weekly schedule. You’ll work closely with our interior design team on cabinetry, lighting and all other selections, while our construction team manages the extensive quality control process.

DWELL. Most clients take advantage of our team’s expertise and specific knowledge about their home to use Tribus Interior Design to completely furnish and accessorize their home.

MAINTAIN. Once you move in, our build team professionally takes care of all punch or warranty issues. Our ResEasy Service team then offers their turn-key maintenance services. From changing air filters, painting or filling the fridge with your favorite foods, our team is prepared to build a life-long relationship by taking care of your needs beyond your finished home.

DESIGN BUILD DWELL MAINTAIN

Our Collaborative Approach

Our collection of coastal concepts were developed by some of the top local design teams to help our clients visualize Lowcountry living.

In collaboration with our own West 84 Architecture, we’ve partnered with MHK Architecture, Chris Phelps Architecture, Court Atkins Architecture, Pierce Scott Architects, and Wayne Wyndham Architect, to create a foundation for our growing coastal portfolio.

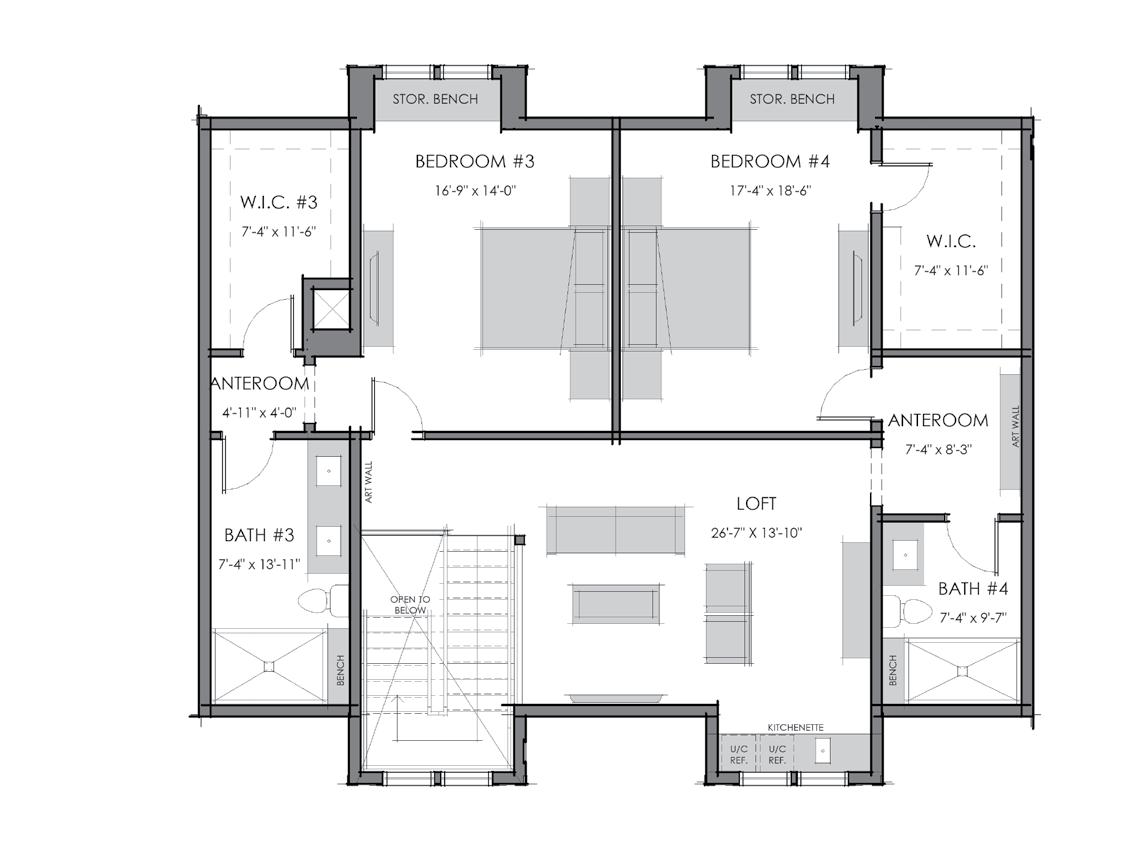
The Magnolia

2,500 – 3,000 HEATED SQ FT 4 BEDROOMS | 4 BATHROOMS | 1 HALF BATH
SECOND LEVEL
The Magnolia

The Palmetto

3,500 – 4,000
HEATED SQ FT
4 BEDROOMS | 4 BATHROOMS | 1 HALF BATH
MAIN LEVEL
The Palmetto

Arelie Hall

4,500 – 5,000 HEATED SQ FT 4 BEDROOMS | 4 BATHROOMS | 2 HALF BATHS
MAIN LEVEL
Arelie Hall SECOND LEVEL

Camden Hall

4,000 – 4,500 HEATED SQ
4
4 BATHROOMS
FT
BEDROOMS |
| 2 HALF BATHS
MAIN LEVEL
SECOND LEVEL
Camden Hall

Crosswinds Retreat

4,500 – 5,000 HEATED SQ FT 4 BEDROOMS | 4 BATHROOMS | 1 HALF BATH
MAIN LEVEL
SECOND LEVEL Crosswinds Retreat

Heron Point

4,500 – 5,000 HEATED SQ FT 4 BEDROOMS | 4 BATHROOMS | 1 HALF BATH
MAIN LEVEL
SECOND LEVEL Heron Point

Langston Hall

4,500 – 5,000 HEATED SQ FT 4 BEDROOMS | 4 BATHROOMS | 2 HALF BATHS
MAIN LEVEL
SECOND LEVEL
Langston Hall

Rawlston Court

4,000 – 4,500 HEATED
4
SQ FT
BEDROOMS | 4 BATHROOMS | 1 HALF BATH
MAIN LEVEL
Rawlston Court
5,000 – 5,500 HEATED SQ FT 4 BEDROOMS | 5 BATHROOMS | 2 HALF BATH
Hartford Court
MAIN LEVEL
Hartford Court

The Cyrus

4,000 – 4,500 HEATED SQ FT
5 BEDROOMS | 5 BATHROOMS | 1 HALF BATH
1'-0" FRONT ELEVATION
MAIN LEVEL
SECOND LEVEL The Cyrus

The Hayward

6,500 – 7,000 HEATED SQ FT
5 BEDROOMS | 5 BATHROOMS | 1 HALF BATH
FRONT ELEVATION
MAIN LEVEL

The Hayward

The Tillman

5,000 – 5,500 HEATED
SQ FT 5 BEDROOMS | 5 BATHROOMS | 1 HALF BATH
3/16" = 1'-0" 1 FRONT ELEVATION
MAIN LEVEL
The Tillman

Broadspring Court

3,000 – 3,500 HEATED SQ FT 3 BEDROOMS | 3 BATHROOMS | 1 HALF BATH
Private Residence Oldfield
MAIN LEVEL Pearce@pscottarch.com First Floor Plan // 1/8” = 1’-0” Area Calculations Conditioned Space: First Floor Second Floor Total Conditioned Unconditioned Space: Porches Garage Total Unconditioned Overall Total Master Bath 14 x 15 Master Bedroom 14 x 16 Living Room 22 x 18 Screened Porch 34 x 13 Breakfast 11 x 8 Kitchen 16 x 16 Pantry 6 x 6 Stoop 7 x 8 Laundry 8 x 9 Mudroom 6 x 8 Pdr. 5 x 5 Dining 14 x 13 Foyer 8 x 16 Entry Porch 37 x 10 Master WIC 14 x 13 Hall 32 x 5
SECOND LEVEL Pearce@pscottarch.com Second Floor Plan // 1/8” = 1’-0” Area Calculations Conditioned Space: First Floor Second Floor Total Conditioned Unconditioned Space: Porches Garage Total Unconditioned Overall Total 2,256 853 3,109 915 809 1,724 4,833 Mechanical 35 x 14 Bedroom 3 15 x 13 Bedroom 2 16 x 15 Bath 2 9 x 10 Hall 18 x 6 Bath 3 9 x 12 Private Residence // Oldfield 6 State Garage Floor Plan // 1/8” = 1’-0” Garage 24 x 24 Golf Cart 15 x 8 Storage 7 x 8 Broadspring Court

The Waverly

4,500 – 5,000 HEATED SQ FT 3 BEDROOMS | 3 BATHROOMS | 1 HALF BATH

Private Residence Palmetto Bluff

RIGHT & LEFT ELEVATION

Private Residence // Palmetto Bluff Pearce@pscottarch.com 6 State of Mind St., Suite 200, Bluffton, SC 843.837.5700 Rear Elevation // 1/8” = 1’-0” Left Elevation Right Elevation Left Elevation
MAIN LEVEL The Waverly Pearce@pscottarch.com 6 State of Mind St., Suite 200, Bluffton, SC First Floor Plan // N.T.S. Area Calculations Conditioned Space: First Floor Total Conditioned Unconditioned Space: Porches Garage Total Unconditioned Overall Total 4,300 4,300 1,603 5,903 Rear Screened Porch 16 x 14 Rear Porch 16 x 11 Grill Porch 16 x 15 Great Room 18 x 20 Dining Room 11 x 20 Kitchen 12 x 20 Sunroom 17 x 19 Master Bedroom 17 x 17 Den 15 x 9 Foyer 9 x 10 Pdr. 4 x 8 Office 7 x 6 Bar 4 x 9 Bedroom 3 13 x 19 Bedroom 2 13 x 19 Owner Entry Porch 9 x 6 Hall 5 x 18 Master Bathroom 17 x 19 Master WIC 12 x 15 Service Yard 10 x 17 Garage 24 x 27 Mud Room 9 x 7 Bath 2 9 x 5 Hall 13 x 4 Bath 3 5 x 12 Entry Porch 21 x 7 Laun dry 7 x 9 Hall 13 x 4 Hall 5 x 18

Cedarview Point

3,500 – 4,000 HEATED SQ FT 4 BEDROOMS | 4 BATHROOMS
MAIN LEVEL PEARCE SC OT T ARCHITECT Private Residence // Statesville, NC Pearce@pscottarch.com 6 State of Mind St., Suite 200, Bluffton, SC 843.837.5700 First Floor Plan // 1/8” = 1’-0” Entry Porch 8 x 37 Area Calculations Conditioned Space: First Floor Second Floor Total Conditioned Unconditioned Space: Entry Porch Rear / Dining Porch Unheated Storage Total Unconditioned Overall Total 2,546 3,450 1,582 5,032 Foyer 17 x 8 Bedroom 2 17 x 11 Bath 2 12 x 7 W.I.C. 11 x 7 Owner’s Bedroom 17 x 15 Owner’s Bath 10 x 17 Dining Porch 16 x 13 Keeping Room 16 x 12 Kitchen 16 x 16 Great Room 18 x 25 Mudroom 18 x 12 Laundry 5 x 10 W D Rear Porch 10 x 36 Screened Porch 19 x 14
SECOND LEVEL Cedarview Point Area Calculations Conditioned Space: First Floor Second Floor Total Conditioned Unconditioned Space: Entry Porch Rear / Dining Porch Unheated Storage Total Unconditioned Overall Total 2,546 904 3,450 348 868 366 1,582 5,032 Bedroom 3 17 x 14 Bath 3 11 x 6 Loft 17 x 17 Unheated Storage 16 x 21 Bedroom 4 17 x 12 Bath 4 10 x 6

The Brierbranch

3,000 – 3,500 HEATED SQ FT 3 BEDROOMS | 3 BATHROOMS | 1 HALF BATH
Pearce@pscottarch.com 6 State of Mind St., Suite 200, Bluffton, SC
Front Elevation // 1/8” = 1’-0”
MAIN LEVEL Area Calculations Conditioned Space: First Floor Second Floor Total Conditioned Unconditioned Space: Porches Garage Total Unconditioned Overall Total 2,232 828 3,060 759 888 1,647 4,707 Screened Porch 35 x 12 Bedroom 2 16 x 14 Great Room 29 x 17 Owner Bedroom 16 x 14 Entry Porch 27 x 10 Bath 2 16 x 13 Owner Bath 14 x 13 Study 11 x 12 Kitchen 12 x 12 WIC 12 x 5 Foyer 6 x 12 WIC 5 x 7 WIC 5 x 6 Hall 16 x 4 Laundry 9 x 9 Side Porch 10 x 7 Pdr. 5 x 9 Service Yard 16 x 6 Garage 25 x 36
LEVEL The Brierbranch Attic 18 x 19 Bedroom 3 20 x 12 Bedroom 4 17 x 12 Loft 23 x 12 Storage 16 x 23 Bath 4 10 x 5 Bath 3 10 x 5 Area Conditioned First Second Total Unconditioned Porches Garage Total
SECOND

Nationally Recognized for Quality

Nothing makes us happier than serving our clients in an exceptional fashion. We take pride in setting the standard for quality homes and unbeatable client relationships. When these pieces are our top focus, awards naturally follow.

We’re proud that our attention to detail and depth of experience has earned us a stellar reputation as one of the nation’s leading luxury home builders.

dillardjones.com
Explore Your Possibilities. dillardjones.com

Turn static files into dynamic content formats.

Create a flipbook
Issuu converts static files into: digital portfolios, online yearbooks, online catalogs, digital photo albums and more. Sign up and create your flipbook.
DJB_CoastalConcepts by luxebrandsco - Issuu