Portfólio 2024 - Luísa Garcia

Page 1

PORT FOLIO

LUISA GARCIA
URBANISMO URBANISM LUISA GARCIA
GARCIA 2024 2024
LUISA GARCIA ARQUITETURA ARCHITECTURE
LUISA
2024 2024

so bre mim

Me chamo Luísa Melo Garcia, tenho 24 anos e me formei em arquitetura e urbanismo na Universidade Federal de Minas Gerais - UFMG. Esse portifólio tem como objetivo apresentar de forma sucinta alguns projetos feitos por mim durante a graduação, tanto dentro como fora da faculdade.

ABOUT ME

My name is Luísa Melo Garcia, I’m 24 years old and I graduated in Architeture andd Urbanism at Federal University of Minas Gerais (UFMG) . This portfolio is presenting succinctly some of my projects done during my graduation, inside and outside tha school.

inglês espanhol português

photoshop

sketchup

archicad

autocad

pacote office

2022 2023 2020 2019

Estagiária na Balsa Arquitetura - Março a Setembro

Intern at Balsa Arquitetura - March to September

Estagiária na Oficina.cc - Março a Março de 2023

Intern at Oficina.cc - March to March 2023

Estagiária no escritório SNF Arquitetura - Outubro até dezembro de 2021

Intern at SNF Architecture office - Octuber to December 2021

Bolsista PIBIC/CNPq da UFMG - Observatório de Conflitos Urbanos de BHSetembro até setembro de 2021

PIBIC/CNPq Scholarship at UFMG - Observatory of Urban Conflicts of BHSetember to setember 2021

Bolsista Voluntária da UFMG - Observatório de Conflitos Urbanos de BH - Março até março de 2020

Volunteer Scholarship at UFMG - Observatory of Urban Conflicts of BH

illustrator
luisam139@gmail.com (31)991528770 @luisssas2

su má rio

trabalho de conclusão de curso projeto e execução de quartos concurso ibirapuera dandara biblioteca pindura saia

final paper project and execution of bedrooms ibirapuera competition dandara pindura saia library

AJC 1400

06 08 12
16 18 20

tcc

Esse trabalho tem como foco estudar a indústria moveleira no Brasil no período do modernismo e contemporâneo para que possa retirar inspiração para a produção de um sistema de autoconstrução de mobiliários que seja acessível. Ao mesmo tempo pode-se utilizar desse sistema para fazer uma crítica a produção em massa que dita os gostos e desejos da população. Tem como foco maior ainda estudantes de universidades públicas que saem de casa para estudar e precisam mobiliar sua casa gastando pouco.

Foi feito então uma cartilha (próxima página) e um curso ministrado por mim em que cada aluno projetou, maquetou e construiu seu próprio móvel, usando o sistema pensado nesse trabalho. Por fim, desenhei minha própria poltrona a partir do sistema e construí-la.v This work focuses on studying the furniture industry in Brazil in the modern and contemporary period so that it can draw inspiration for the production of an affordable selfconstruction furniture system. At the same time, this system can be used to criticize mass production, which dictates the tastes and desires of the population. Its main focus is on students from public universities who leave home to study and need to furnish their homes while spending little. A booklet was then created (next page) and a course taught by me in which each student designed, modeled and built their own piece of furniture, using the system designed in this work. Finally, I designed my own armchair from the system and built it.

06

Essa cartilha foi pensada para explicar o sistema pensado de forma simples e acessível. A partir dela você pode projetar e construir seu próprio móvel gastando pouco.

O sistema consiste na utilização de porcas borboletas, sarrafos de pinus e cinta para estofado para criar móveis de forma fácil, rápida e barata.

This booklet was designed to explain the system in a simple and accessible way. From there you can design and build your own furniture for little money. The system consists of using wing nuts, pine battens and upholstery straps to create furniture easily, quickly and cheaply.

07

quarto

Esse foi um projeto feito e executado durante a pandemia. A ideia era criar um ambiente mais leve e descontraído. O uso de cores tons pasteis e madeira foram essenciais para trazer essa leveza. Além disso, todos os móveis são soltos ou podem ser facilmente retirados para mudar a disposição sempre que for necessário. Por fim, foi criado uma parede com gradil para apoiar diversas coisas como livros, plantas, canetas... This was a project created and executed during the pandemic. The idea was to create a lighter and more relaxed environment. The use of pastel colors and wood were essential to bring this lightness. Furthermore, all furniture is loose or can be easily removed to change the arrangement whenever necessary. Finally, a wall was created with a railing to support various things such as books, plants, pens...

08

Esse foi um projeto feito e executado em 2022. A ideia era criar um ambiente mais funcional mas ao mesmo tempo descontraído. O verde foi escolhido como cor principal, ainda trabalhando com formas orgânicas nas paredes. Os móveis dessa vez foram todos planejados e executados por mim em compensado naval (escrivaninha, cama e mesinha lateral) para aproveitar o máximo de espaço possível. Todo o processo pode ser visto no TikTok.

This was a project created and executed in 2022. The idea was to create a more functional but at the same time relaxed environment. Green was chosen as the main color, still working with organic shapes on the walls. The furniture this time was all planned and created by me in marine plywood (desk, bed and side table) to make the most of the space possible. The hole process can be seen at TikTok

09
quarto

concurso ibira puera

Concurso do plataforma

Projetar.org realizado em 2020. O objetivo era projetar um novo mobiliário para o Parque Ibirapuera, em São Paulo, nosso conceito então partiu da ideia de tentar integrar ao máximo esse mobiliário, de forma a quase sumir na paisagem. Além disso, pensamos também em fazer do parque o local de ensino sobre sustentabilidade e ecología e de modo que, futuramente, o parque pudesse se integrar cada vez mais à cidade.

Projetar.org platform competition held in 2020. The objective was to design new furniture for Ibirapuera Park, in São Paulo, our concept then came from the idea of trying to integrate this furniture as much as possible, so that it almost disappears into the landscape. Furthermore, we also thought about making the park a place to teach about sustainability and ecology and so that, in the future, the park could be increasingly integrated into the city.

10 10 9a 8 7 9 7a 6 5 3a 3 4 1 2 Cultural Esporte e Recreação Esporte Lazer Educação ambiental Lago - Núcleo

banheiros bathroom

portaria ordinance

bilheteria e central de informações com espaço para funcionários banheiros

mobiliário equipment

11 7 3a 7a 2 3 4 5 6 1 7 8 3a 7a 2 3 4 5 6 1 10 7 8 9a 3a 7a 7a 9 2 3 4 5 6 1 10 7 8 9a 3a 7a 7a 9 2 3 4 5 6 1 10
Novo Percurso da Horta
Mapa de Percursos
Mapa de Setorização
Espaços
Proposta de
da Cidade cultural esporte educação ambiental esporte e recreação lazer lago - núcleo cobertura de garrafas plásticas A B C A B C
1
2
3
4
Verdes 5
Parquificação

dandara

Em dois momentos distintos (final de 2020 e início de 2021), em disciplinas continuadas, foram realizadas uma análise urbana da subbacia do córrego Olhos D’água e um exercício prático de projeto urbano de regularização fundiária

da ocupação Dandara localizada no local de estudo.

exercise of an urban project for land regularization of the Dandara occupation located at the site of study..

At two different times (end of 2020 and beginning of 2021), in continuous disciplines, an urban analysis of the Olhos D’água stream sub-basin and a practical

13
14 Seção D - Espaço Compartilhado 1:375 6,5m Espaço compartilhado Seção C - Via Local 1:375 2m Rua 9 Seção B - Via coletora secundária 1:375 Av. Dandara Espaço compartilhado 8m 2m Av. Dandara 1:2.000 11 12 13 30 31 32 33 34 21 22 B B Av. 9 deAbril/Av. Dandara 1:2.000 15 16 39 40 2 3 A A Seção A - Ponte 1:375
15
9m 2m Ciclovia Estacionamento
Abril Rua Nelson Mandela 1:2.000 6 9 10 11 12 D D Rua 9 de Abril - Parque 1:2.000 40 41 42 3 4 38 C C
Legenda: Drenagem Interceptor Esgoto
de
16 1:200 1:4000 01 23 45 7 68 9 15 17 16 18 19 20 22 21 23 1011 121314 25 24 27 26 28 30 31 32333435 3637 38 3940 414243 44 45 46 47 48 49 50 51 52 53 54 55 56 29 824 825 826 827 828 829 830 831 832 833 834 835 836 837 838 839 840 841 842 843 844 845 846 847 848 849 850 851 852 853 854 855 856 857 858 859 860 861 862 863 864 865 866 867 868 869 870 871 872 i = 5,8% i = 6,3% i = 2,9% i = 12,0% i = 5,0% i = 2,3% Terreno original Terreno modificado Aterro Corte Legenda:
17 i = 5% i = 5% = 2% est.30 i = 2% 853 854 Seção Est.30 1:200 9m = 5% i = 2% i = 5% i = 2% est.43 841 842 Seção Est.43 1:200 9m = 5% i = 2% i = 5% i = 2% est.53 830 831 Seção Est.53 1:200 12m 845 840 835 830 870 855 860 865 850 1 2 3 4 5 6 7 8 9 10 11 12 13 14 151617181920212223 24 25 26 27 28 29 30 31 32 33 34 35 36 37 38 39 40 41 42 43 44 45 46 47 48 49 50 51 52 53 54 55 56 0 Estaqueamento - Av. Dandara 1:6.000 Terreno original Terreno modificado Aterro Corte Legenda:

biblioteca pindura saia

Esse projeto foi feito no meio de 2022 e tinha como foco a interação das crianças com a arquitetura e o urbanismo. Localizado no Mercado do Cruzeiro da cidade de Belo Horizonte o projeto possui proximidade com a vila Pindura Saia, antiga da região e foco de pesquisa do professor Samy Lansky. A biblioteca criada seria voltada para pessoas de todas as idades mas principalmente crianças de 0 a 6 anos. Esse trabalho foi realizado em dupla.

This project was carried out in the middle of 2022 and focused on children’s interaction with architecture and urbanism. Located in the Mercado do Cruzeiro in the city of Belo Horizonte, the project is close to the village of Pindura Saia, an old village in the region and the focus of research by Professor Samy Lansky. The library created would be aimed at people of all ages, but mainly children aged 0 to 6. This work was carried out in pairs.

18 estacionamento subterraneo
piso intertravado elevado novo acesso de pedestre
biblioteca
mercado do cruzeiro vila pindura saia pracinha playgroud

ANDAR TERREO

AREA DE 6-10 ANOS

legenda

área de trab. / merc. do cruzeiro

área de interesse

vilas e favelas

AV. AFONSO PENA

AV. DO CONTORNO

VILA PINDURA SAIA

19
N
fraldario banheiro
deposito e dml
CAIXA D’AGUA COWORKING LANCHONETE AREA TEEN banheiro adulto administracao
AREA DE 0-3 ANOS banheiro infantil
adulto AREA DE 3-6 ANOS
PRIMEIRO ANDAR

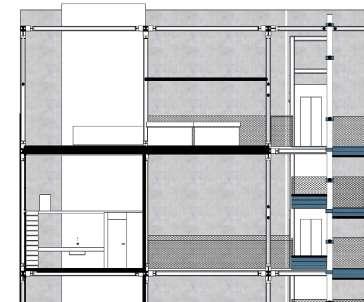
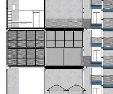
Ainda no meio de 2022 surgiu o projeto AJC 1400 (Anjel Justiniano Carranza 1400) na matéria “Ateliê Americas: Argentina”. Essa disciplina consiste na análise de um edifício já existente e a partir de tal a criação do seu próprio edifício. Esse trabalho foi feito em grupo de 4 pessoas, aqui só será apresentado o edifício projetado por nós.

20
AJC 1400

Still in the middle of 2022, the AJC 1400 project (Anjel Justiniano Carranza 1400) appeared in the lesson “Ateliê Americas: Argentina”. This discipline consists of analyzing an existing building and then creating your own building. This work was done in a group of 4 people, here only the building designed by us will be presented.

21
el ev ador
escada passei o

cober tu ra re stau ra nt e

ap ar tamentos 6 de 37,5m ²

22
té rr eo fe ir a
23

Turn static files into dynamic content formats.

Create a flipbook
Issuu converts static files into: digital portfolios, online yearbooks, online catalogs, digital photo albums and more. Sign up and create your flipbook.