Photos taken 8. 26. 2025
Floor to ceiling tile now sparkles in all the bathrooms
Floor tiles are laid and are exquisite ... come and see
Windows and doors are in place
Base cabinets are in place
Hardwood floors are covered & protected
The trim is on-site and ready to install
A wall of glass leads to the expansive porch that features stone floors, skylights, phantom screens, and heating for cool weather.
A true 3 season room.
Note the expansive yard with greenspace behind.
ACRES
PRELIMINARY PLAT
THE MEADOW AT FOX HILL FARMS SHEET
Scott Daves Superior Standards
High-end Windsor Pinnacle windows:
-All Exterior aluminum clad (no rot and never paint)
- Easy and smooth operation
- Most energy efficient
Smart Home Wi-Fi Package includes: (control all from phone)
Garage Door Openers
Honeywell Smart Thermostats
Honeywell Alarm system
OnQ structured wiring package throughout house
Wireless Router w/a wireless access point
Energy Star Certified Home by 3 rd party Southern Energy Management
All LED recessed can light bulbs
92% efficient gas furnaces with 14 SEER rating
Exterior fresh air exchange unit
Custom made kitchen cabinets by Cabinet Tree with quartz or natural stone countertop
Kitchen backsplash with custom tiles
White Oak character grade hardwood floors
Interior doors are solid core (8’ tall first floor) with lever hardware
Extensive interior trim package with paneled walls and unique moldings.
16’ (8’ tall) retractable door to outdoor living per plan
Primary shower has 3 valves for rain head, handheld and standard shower head
Heated tile floor in the primary bath
Freestanding bathtub per plan
Double glass and mahogany front doors 8 ft tall and insulated
Steel Garage Doors (8’ tall) with glass panels
Extensive primary closet:
storage in primary closet
Natural light
Extra wide doorways throughout the house Zero entry master shower
All spray foam insulation
Sealed conditioned crawlspace
Tankless hot water
Recirculating hot water loop for fast hot water
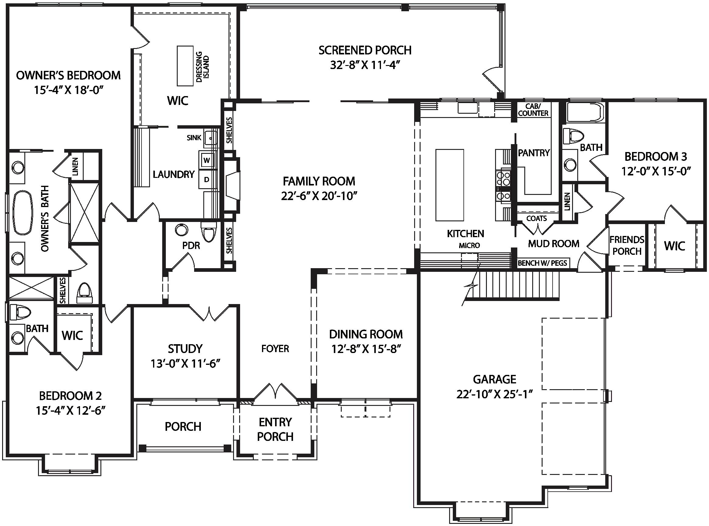
Unique to2172 Belfield Interior:
Floor Plan:
All living area on the main level
Huge walk-in Pantry with countertop
Beverage Center/Butler’s Center
Open floorplan large well-sited rooms
Walk-in storage
Walnut book shelves in Family room
Walnut powder room vanity cabinet
Laundry room has extensive cabinetry
Kitchen:
36” Wolf gas range
36” Thermador Pro Hood
30” KitchenAid convection oven
24” KitchenAid microwave
Sub-Zero 48” built in refrigerator
KitchenAid dishwasher
Kohler 33” Undermount Single-Bowl Workstation Kitchen Sink
Walnut island in kitchen
Offered for #1,430,000
Exterior:
Covered outdoor living area with overhead heating for cool days. Wired for outdoor TV Phantom screens and skylights on the rear porch
Exterior gas grill
Pennsylvania bluestone slate on front porch
Lavish landscaping package that includes irrigation system & site lighting system
11 miles to Duke University
12 miles to UNC Chapel Hill home to a UNC Hospital Campus
Colonial Era
Hillsborough was a center of political activity during the colonial and Revolutionary periods. Royal and elected governors lived here, as did William Hooper, a signer of the Declaration of Independence. Hillsborough hosted the North Carolina Constitutional Convention of 1788 which demanded a Bill of Rights be added to the Constitution.
Historic Hillsborough
In the historical records in 1650, the first inhabitants of the Hillsborough area are mentioned. Those inhabitants were the native Occaneechi tribe who established a community at the crossing of ancient trails and the Eno River. The Occaneechi were successful middlemen in the fur and deerskin trade that flourished between the Virginians and the Piedmont Indians during the 1660s and 1670s. A replica of their ancient village is a source of pride in downtown Hillsborough.




The many famous residents of Hillsborough include William Hooper, signer of the Declaration of Independence; Elizabeth Keckly, the former slave who became Mary Todd Lincoln’s dressmaker; John Lawson, the explorer who visited the Occaneechi Village in 1701; Edmund Fanning, Yale graduate and judge who lived in Hillsborough prior to the Revolutionary War and a Royalist and whose home was destroyed by Regulators; Billy Strayhorn, jazz musician; and today many nationally revered authors and artists. Will the next famous resident be you?
Participate in recreation at the Sports Plex which includes ice skating, an aquatic center, basketball, pickleball, summer camps, and organized leagues. Take a walk on the Riverwalk, a two-mile trail that stretches along the Eno River. Peruse the visitor’s center to learn more about the history of Hillsborough. And be sure to come to the Hog Day Festival for the best barbecue you ever tasted! A cosmopolitan, historic village awaits.