2023 Architecture Work Sample

Page 1

LUKA JOVANOVIC ARCHITECTURE PORTFOLIO

2023

RESUME

LUKA JOVANOVIC

ARCHITECTURE STUDENT

Phone:

US: 914-441-2762

Italy: +39 346-358-4152

E-mail: lukajovanov01@gmail.com

SKILLS

SOFTWARE

Rhinoceros 3D

AutoCAD

Revit

V-Ray

Adobe Illustrator

Adobe Photoshop

Adobe Indesign

FABRICATION

Woodworking

3D printing

Laser cutting

LANGUAGES

English (native)

Serbian (conversational)

Croatian (conversational)

SOFT SKILLS

Collaborative Worker

Active Listener

Detail-Oriented

2019-2024

2022

2022

2021-2022

2020

2022

Pennsylvania State University State College, Pennsylvania

• Honors: Deans List (Fall 2019 - Fall 2022)

3.73 GPA

Involvement/Clubs:

• American Institute of Architecture Students

• Student representative- 4th Year Architecture

EXPERIENCE/ INVOLVEMENT

Intern | The Port Authority of New York & New Jersey New York City, New York

• Designed schematics for relocation of construction trailers in World Trade Center site.

• Consulted building code and performed occupancy calculations on the WTC PATH station to determine feasibility of altering means of egress.

Research Assisstant | Pennsylvania State University State College, Pennsylvania

• Produced drawings of 100 untitled sculptures designed by Donald Judd and worked with professor on analyzing how they were built.

Resident Assisstant | Pennsylvania State University State College, Pennsylvania

Enforce campus residence policies, and provided counseling and information to first year students.

Project Assisstant | The Living Chapel Project State College, Pennsylvania

EDUCATION RECOGNITION

Aided in dismantling and packing of chapel building components to be shipped to Italy.

The 21st Annual Hajjar Memorial Competition Honorable Mention

• One of 14 finalists in a class of 67 students.

TABLE OF CONTENTS 01 p.4-11 p.12-19 p.20-27 p.28-33 02 JOURNEY Spring 2021 Spring 2021 Fall 2021 THE SANCTUARY LEARNER’S WHARF 03 04 Fall 2020 SWITCHBACK HOUSE

LEARNER’S WHARF

PHILADELPHIA, PENNSYLVANIA

Fall 2022/ Academic Project

ARCH 431 Architectural Design V

DURATION/ 14 Weeks

INSTRUCTOR/ Rahman Azari

PARTNER/ John T. Martin

Designed as a library on a pier to serve the Old City neighborhood of Philadelphia, the Learner’s Wharf is designed to be as efficient as possible while also paying homage to it’s industrial past.

From performing embodied carbon analysis in the use of materials to studies of passive methods of heating and cooling, the goal of the project is to minimize the environmental impact of the building in its construction and day to day maintenance. In addition to being environmentally sustainable, the Learner’s Wharf also has the goal of serving the community through analysis of demographics and transit options to the site to see how best the library can serve the city.

As part of a two-person group, my main focus within the project concerned water management and analysis on the building’s interaction with the community.

01.
04/ Jovanovic
/05

Design for Equitable Communities

The library reaches out to the community from the moment you come across the property. The library is failry easy to access with several public transit routes in the vincinity. In addition, the library expands on the existing Delaware River Waterfront, providing bike racks and seating areas for pedestrians visiting the library or just passing by. Inside the library, there are various resources provided on the ground floor that will assist the most vulnerable memebers of the community like people with disabilities.

Design for Equitable Communities

Martin & Luka Jovanovic

library reaches out to the community from the moment come across the property. The library is failry easy to with several public transit routes in the vincinity. addition, the library expands on the existing Delaware Waterfront, providing bike racks and seating areas for pedestrians visiting the library or just passing by. Inside the there are various resources provided on the ground that will assist the most vulnerable memebers of the community like people with disabilities.

Building program is broken into three segments with community-related and stacks are divided by a atrium in the center.

Building segments are shifted to create public space in front of the library. Segments further altered to meet code and enhance program arrangements.

Extensive research was done to asses the demography and accessibility of the neighborhood the site is located in. By making these assessments, it helped inform the amenities that will be of use to visitors to the library and create a welcoming addition to the community.

BOULEVARD EXT. CONCRETE AND STONE WALL DEPRESSED CURB BULK HEAD LINE APPROVED BY SECRETARY OF WAR 10 SEP 40 BULK HEAD LINE APPROVED BY SECRETARY OF WAR 10 SEP 40 CHRISTOPHER COLUMBUS STAFF BREAK ROOM STORAGE OFFICE + 15' 5" 1:20 + 15' 5" + 11' 5" + 15' 5" + 11' 5" OFFICE OFFICE RECEPTION AREA OFFICE DISABILITY INFORMATION CENTER OFFICE LOADING DOCK 1:28 1:20 FAMILY RESOURCES CENTER INFO CENTER LIBRARY STORE MEETING ROOM MEETING SPACE MECHANICAL OFFICE + 11' 5" MECHANICAL MEETING ROOM BOULEVARD DEPRESSED HEAD APPROVED SECRETARY WAR LINESECRETARY CHRISTOPHER COLUMBUS STORAGE 1:16 1:20 + 15' 5" STORAGE OFFICE STORAGE OFFICE GALLERY OFFICE DISABILITY INFORMATION CENTER LOADING DOCK BREAK ROOM 1:20 + 15' 5" INFO CENTER MEETING ROOM +13' 11' 5" MECHANICAL
Walk Score Walking 83 Transit 80 Biking 89 Community Services Transit Routes Bus Routes Unprotected Subway Route Dedicated Bike Paths Economy Demographics Median $77,111 Poverty 16% Bike Racks/ Rest Area Green Space/Benches Additional Walk Trail Acessibility Resources Family Resources Race White 71% Family Resources Walking Infrastructure Green Space Bike Infrastructure Accesibility Resources African American 71% Asian 7% 2 or More 2% Hispanic 11% INEETARY SECRETARY RIVER DELAWARE BULK STAFF BREAK ROOM 1:16 1:20 + STORAGE STORAGE STORAGE OFFICE OFFICE LOADING DOCK BREAK ROOM 1:28 1:20 15' FAMILY RESOURCES CENTER MEETING ROOM MEETING SPACE +13' MECHANICAL + 11' 5" ARTIST PRIVATE STUDIO MEETING ROOM FIRST FLOOR PLAN - ELEV. 15'-6"
Score Walking
Transit
Biking
Community Services Transit Routes Bus Routes Unprotected Bike Lane Subway Route Dedicated Bike Lane Bike Paths Economy Demographics Median Household Income $77,111 Poverty Rate 16% Bike Racks/ Rest Area Green Space/Benches Additional Walk Trail Acessibility Resources Family Resources Race White 71% Family Resources Walking Infrastructure Green Space Bike Infrastructure Accesibility Resources African American 71% Asian 7% 2 or More 2% Hispanic 11% 06/ Jovanovic GROUND FLOOR/ SITE PLAN
83
80
89
BOOK STACKS/ STUDY BOOK STACKS/ STUDY & BOOK STACKS/ STUDY BOOK STACKS/ STUDY ATRIUM ATRIUM ATRIUM COMMUNITY/ CREATIVE SPACE COMMUNITY/ CREATIVE SPACE COMMUNITY/ CREATIVE SPACE COMMUNITY/ CREATIVE SPACE CONCEPT

ATRIUM VIEW

As visitors enter the library, they will first come across the library’s atrium. This is the main space where they will ascend through the library and branch off into different program spaces.

HALLWAY VIEW

Coming out of the stairs or elevators, visitors will be able to use touchscreen info screens for wayfinding through the library and searching for specific library collections.

Credit: John T Martin

ER HEAD LINE APPROVED BY SECRETARY OF WAR 10 SEP 40 RIVER DELAWARE DN UP 1:16 STORAGE STORAGE STORAGE +3'5" MULTIPURPOSE SPACE OFFICE GALLERY PREP ROOM ART STUDIO/CLASSROOM BREAK ROOM + 15' 5" +13' 5" ARTIST PRIVATE STUDIO MEETING ROOM FIRST FLOOR PLAN - ELEV. 15'-6" SCALE: 1/8" = 1' 0" 1:16 OFFICE +3'5" MULTIPURPOSE SPACE GALLERY PREP ROOM 15' 5" FAMILY RESOURCES CENTER 5" MECHANICAL OFFICE FIRST FLOOR PLAN ELEV. 15'-6" Transit Routes Bus Routes Unprotected Bike Lane Subway Route Dedicated Bike Lane Bike Paths White 71% Family Resources Walking Infrastructure EXT. CONCRETE AND STONE WALL OFFICE 1:20 + 11' 5" MULTIPURPOSE SPACE GALLERY DOCK BREAK ROOM 1:28 1:20 FAMILY RESOURCES LIBRARY STORE MECHANICAL OFFICE MECHANICAL MEETING ROOM Transit Routes Bus Routes Unprotected Bike Lane Subway Route Dedicated Bike Lane Bike Paths Bike Racks/ Rest Area Green Space/Benches Additional Walk Trail Acessibility Resources Family Resources Family Resources Green Space Infrastructure Accesibility Resources APPR SECRETARY RIVER DELAWARE 1:16 STORAGE STORAGE FIRST FLOOR PLAN ELEV. 15'-6" Communities Unprotected Bike Lane Dedicated Bike Lane Bike Paths Economy Median Household Income $77,111 Poverty Rate 16% White 71% Walking Infrastructure HEADSECRETARY RIVER DELAWARE 1:16 +3'5" MULTIPURPOSE SPACE 15' 5" +13' 5" FIRST FLOOR PLAN ELEV. 15'-6" Communities Routes Bus Routes Unprotected Bike Lane Subway Route Dedicated Bike Lane Bike Paths Economy Demographics Median Household Income $77,111 Poverty Rate 16% Race White 71% Walking Infrastructure More 2% Hispanic 11% Learner’s Wharf /07
BIKE PATHS
TRANSIT ROUTES

SECOND FLOOR PLAN

THIRD FLOOR PLAN

DN UP READING AREA MULITPURPOSE/STUDY SPACE COMPUTER LAB READING/STUDY SPACE ADULT COLLECTION SPECIAL COLLECTIONS GREENHOUSE GREENHOUSE DN TEEN AREA BALCONY CHILDREN'S COLLECTION TEEN STUDY /READING AREA 08/ Jovanovic

Credit: John T Martin

Credit: John T Martin

DN UP READING AREA/STUDY AREA STORAGE STORAGE FABRICATION LAB FABRICATION LAB ADULT COLLECTION ROBOT LAB SECOND FLOOR PLAN - ELEV. 31'-6" 0' 2' 4' 8' 16' 32' SCALE: 1/8" = 1' 0" GREENHOUSE GREENHOUSE DN GREENHOUSE DN BALCONY READING SPACE TEACHING SPACE THIRD FLOOR PLAN - ELEV. 47'-6" Learner’s Wharf /09

It is crucial for a high performing building to have an efficient water management system. The main water management strategies used in the building features stacked bathrooms to reduce plumbing runs in the building. Furthermore, a rainwater collection system is being implemented to recycle rain water for use in watering the building landscaping and for providing water for select plumbing fixtures.

RAINWATER COLLECTION SYSTEM

Design for Ecosystem

The design of the library supports and improves the ecological health of the site by utilizing the landscapign around the building. The lansdscaping is populated with plant species native to Philadelphia region and are selected for their ability to take in a lot of water in the event of heavy downpour or flash flooding. In addition to water management, the chocie of vegetation will contribute to to the creation of pleasant outdoor spaces for the library’s users.

WATER MANAGEMENT - VEGETATION SELECTION

Swamp White Oak (Quercus bicolor)

• Height: 60 to 80 ft tall

• Water Need: Moist

• Hardiness Zone: 3-9

• Sun: Direct sun, partial shade

Maidenhair (adiantum pedatum)

• Height: 4-8 ft

• Water Need: Moist

• Hardiness Zone: 3-9

• Sun: Partial shade, full shade

Summersweet (clethra alnifolia)

• Height: 1-3 ft

• Water Need: Weekly

• Hardiness Zone: 3-8

• Sun: Direct sun, partial shade

GREENHOUSE MULTIPURPOSE/READING SPACE FAMILY RESOURCE CENTER CHILDREN'S COLLECTION +47.5' - F3 +11.5' - EXT. SITE +0' - SEA LEVEL +31.5' - F2 +15.5' - F1 ADULT COLLECTION ADMIN. OFFICE SECTION THROUGH COMMUNITY CENTER/COLLECTIONS 0' 2' 4' 8' 16' 32' SCALE: 1/8" = 1' 0" PLANTER FILTRATION ROOF RAIN WATER FILTERS RUNOFF PRIOR TO ENTERING FILTRATION SYSTEM SEDIMENT TANK STORAGE TANK UV / FILTER STORM OVERFLOW GREENHOUSE IRRIGATION BUILDING WATER USAGE DECREASES WITH FILTERED GREY WATER USAGE FOR PLANTS PLUMBING FIXTURES FILTERED GREY WATER USED FOR PLUMBING APPLIANCES DECREASES BUILDING WATER USAGE GREENHOUSE MULTIPURPOSE/READING SPACE FAMILY RESOURCE CENTER CHILDREN'S COLLECTION ADULT COLLECTION ADMIN. OFFICE SECTION SEDIMENT TANK STORAGE TANK UV / FILTER STORM OVERFLOW GREENHOUSE IRRIGATION BUILDING WATER USAGE DECREASES WITH FILTERED GREY WATER USAGE FOR PLANTS
10/ Jovanovic

Design for Well Being

& Luka Jovanovic Level 1 ASE: 47% Sunlight Analysis sDA: 62% Level 1 Level 2 Level 2 Level 3 Level 3 +0' - SEA LEVEL FAMILY RESOURCE +31.5' - F2 +15.5' - F1 ADULT COLLECTION CHILDREN'S COLLECTION +47.5' - F3 +11.5' - EXT. SITE SECTION THROUGH COMMUNITY CENTER/COLLECTIONS 0' 2' 4' 8' 16' 32' SCALE: 1/8" = 1' 0" Level 1 Level 1 Level 2 Level 2 Level 3 Level 3 SECTION THROUGH COMMUNITY CENTER/COLLECTIONS 0' 2' 4' 8' 16' 32' SCALE: 1/8" = 1' 0" Learner’s Wharf /11
1’ = 1/16” SUNLIGHT DIAGRAM sDA ANALYSIS ASE: 47% sDA: 62%
BUILDING REAR VIEW BUILDING MODEL,

Fall 2021/ Academic Project

ARCH 331 Architectural Design I DURATION/ 7 Weeks INSTRUCTOR/ Malcolm Woolen

Designed as a space for scientists to further their study and archive of fossils in the nearby Freisenhahn Cave, this proposed research center seeks to take the occupants of the site on a journey consisting of a long switchback path which zig-zags down the slope of the site. As visitors arrive at the site, they are enveloped into a wooded area which serves as a transition from the urban loacale they came from into a more natural environment. As visitors proceed down the path, their views of the site are limited by the trees around them with the exception of the buildings in front of them. At the each turn of the path as it moves down the slope, visitors will come across the buildings of the site which serve as the axial loci where the path switches back. The buildings and the structures on the site reflect the nature of the path conforming to wedge-shaped floor plans and slanted roofs which slope down either to the switchback or reflect the sloping down of the path through the site.

JOURNEY SAN ANTONIO, TEXAS
02.
12/ Jovanovic
/13

CONCEPT/ DESIGN DEVELOPMENT

Zigzag path adopted to allow gradual descent through slope of site

Buildings act as axial loci at the turning point of each switchback

Buildings adopt wedge shape in relation to the shape of the path moving through the site

Roofs are slanted to slope down either down to loci or relate to sloping down of path

SITE PLAN 0 SCALE 1’ = 1/16” 50 100 200 1172 1170 1170 1168 1166 1164 1162 1162 1162 1162 1160 1160 1160 1158 1156 1154 1152 1174 11781176 1. 2. 3. 1. FIELD HOUSE 2. RESEARCH CENTER 3. LIBRARY & OUTDOOR CLASSROOM A A B B C C D D F G G F E E 14/ Jovanovic
Journey /15
BEGINNING OF SWITCHBACK PATH REAR VIEW OF CLASSROOM/ LIBRARY
FIELD HOUSE PLAN 0 10 20 30 40 SCALE: 1’=1/8” COMMUNAL BEDROOM/ KITCHEN W/C OVERSEER BEDROOM W/C STORAGE LIBRARY/ CLASSROOM PLAN 0 10 20 30 40 SCALE: 1’=1/8” LIBRARY OUTDOOR CLASSROOM 16/ Jovanovic

All of the buildings in the site feature cross-ventilation consisting of larger windows oriented towards the direction where wind is most prevalent, and smaller windows on the opposite side to allow air to pass through as well as create a stack effect.

RESEARCH CENTER PLAN 0 10 20 30 40 SCALE: 1’=1/8” ARCHIVE SUPPORT OFFICE/ STORAGE LAB W/C STORAGE 0 10 5 20 15 Journey /17
RESEARCH CENTER SECTION

ROOF FINISH

STEEL I-BEAM ROOF FRAMING

STEEL I-BEAM COLUMNS

WALL AND WINDOW FINISH

CONCRETE SLAB

STEEL I BEAM FLOOR FRAMING W/ CONCRETE PILONS

FIELD HOUSE AXON

ROOF FINISH

STEEL I-BEAM ROOF STRUCTURE

STEEL I-BEAM COLUMNS

WALL AND WINDOW FINISH

CONCRETE FOUNDATION

RESEARCH CENTER AND LIBRARY AXON

18/ Jovanovic
Journey/19
FIELD HOUSE INTERIOR RESEARCH CENTER INTERIOR

THE SANCTUARY

NEW YORK CITY, NEW YORK

Spring 2020/ Academic Project

ARCH 232/ Architectural Design II

DURATION/ 8 Weeks

INSTRUCTOR/ Heather Ligler

Located in the Lower East Side, the new Chinatown YMCA is based on the concept of creating a sense of sanctuary. While it looks simplistic and seemingly impenetrable on the exterior, the building becomes more dynamic and open as one enters inside. Many of the building’s activities are situated along the perimeter, which leaves an open central circulatory space which opens out to an outdoor courtyard.

Regardless if people come to the YMCA for exercise, housing, or community events, the organization of space provides many opportunities for different groups to come across and interact with one another in an enclosed space.

03.
20/ Jovanovic
/21
Program Organization Program Spaces Open Spaces Open Air Spaces DESIGN DEVELOPMENT SECTION A 22/ Jovanovic
SECTION B The Sanctuary /23
LEVEL B1 0 10 20 40 Scale: 1’= 1/16” N Eldridge St LEVEL L1 0 10 20 40 Scale: 1’= 1/16” N LEVEL L4 0 10 20 40 Scale: 1’= 1/16” N LEVEL L7-L8 0 10 20 40 Scale: 1’= 1/16” N 24/ Jovanovic
GYM VIEW The Sanctuary /25
ATRIUM VIEW

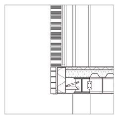
ARCH 204/ NCMA WALL SECTION DRAWING

LUKA JOVANOVIC

CHINATOWN YMCA, 41 ELDRIDGE ST, NEW YORK, NY

CONSTRUCTION DETAILS

PARAPET CAP

BRICK VENEER

1” CAVITY

AIR BARRIER

6” GLASS FIBER INSULATION

W/ STEEL STUDS

VAPOR RETARDER

WIRE MASONRY TIE

STEEL SHELF ANGLE

ALUMINUM MULLION

DOUBLE-PANED WINDOW

SETBACK ROOF DETAIL

SCALE: 1/2” = 1’-0”

1’x1’ TILE FLOOR FINISH

WATERPROOF ROOF MEMBRANE

2” RIGID INSULATION

6” CORRUGATED CONCRETE SLAB

STIFFENER PLATE

W12 STEEL GIRDER

CEILING STRUCTURE

GYPSUM BOARD

COLUMN

2ND FLOOR DETAIL

SCALE: 1/2” = 1’-0”

WALL SECTION SCALE: 3/16” = 1’-0”

MORTAR

UNREINFORCED CUSTOM SCREEN BLOCK

DOUBLE-PANED WINDOW

ALUMINUM MULLION

6” GLASS FIBER INSULATION AND STEEL STUDS

STIFFENER PLATE

W12 STEEL GIRDER

BRICK VENEER

1” CAVITY

AIR BARRIER

STEEL SHELF ANGLE

FOUNDATION DETAIL

SCALE: 1/2” = 1’-0”

COLUMN

FLOOR FINISH

2” RIGID INSULATION

6” CORRUGATED CONCRETE SLAB

CEILING STRUCTURE

GYPSUM BOARD

FILTER LAYER

WATERPROOFING MEMBRANE

PEBBLE FILL W/ GEOTEXTILE MAT

PERFORATED DRAINAGE PIPE

CONCRETE FOOTING

FLOOR FINISH

2” RIGID INSULATION

4” CONCRETE SLAB

MAY
2021
26/ Jovanovic

The building features a custom CMU screen block which complements the concept by providing the visual appearnace of impenetrability from afar while providing porosity to those who work in the spaces within.

CUSTOM CMU BLOCK The Sanctuary /27

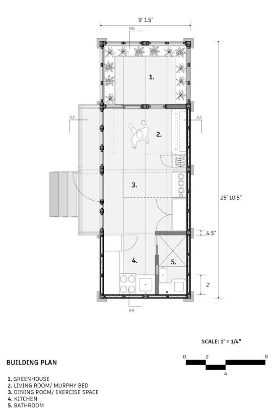
FLEXHOME

Spring 2020/ Academic Project

ARCH 232 Architectural Design II

DURATION/ 5 Weeks

INSTRUCTOR/ Jamie Cooper

Good living can be defined as living in a space that is large enough to provide comfort and facilitate the desires and needs of its inhabitant. In the context of this hypothetical client, who is a fitness instructor who likes to grow their own food and have large groups of friends over for meals, the need for large spaces cannot be understated. While the task may seem impossible to facilitate in a tiny house with conventional furniture, the FlexHome may provide a possible solution. Featuring a flexible space with reconfigurable, custom furniture and components, the FlexHome folds, slides, pulls down, and pulls out to accommodate the activities of the client while being contained within a rigid rectangular space.

PORTABLE
04.
28/ Jovanovic
/29

SPATIAL ORGANIZATION

The spatial arrangements of the tiny home are broken down proportionally according to the prefabricated 2’x6’ floor panels. The placement of furniture and programs can take up from half a panel to 4 panels in a row.

30/ Jovanovic
Flexhome /31

BASIC WALL SETUP

PULL DOWN DINING SET

MURPHY BED CONFIGURATIONS

AIR CIRCULATION

PASSIVE HEATING/ COOLING

32/ Jovanovic
Flexhome /33
THANK YOU lukajovanov01@gmail.com USA: +1 914-441-2762 Italy: +39 346-358-4152

Turn static files into dynamic content formats.

Create a flipbook
Issuu converts static files into: digital portfolios, online yearbooks, online catalogs, digital photo albums and more. Sign up and create your flipbook.