Luka Jovanovic Architecture Portfolio 2024

Page 1

LUKA JOVANOVIC

ARCHITECTURE PORTFOLIO

SELECTED WORKS 2021-2024

LUKA JOVANOVIC

ARCHITECTURE

STUDENT

Phone: 914-441-2762

E-mail: lukajovanov01@gmail.com

SKILLS

SOFTWARE

Rhinoceros 3D

AutoCAD

Revit

V-Ray

Lumion

Adobe Illustrator

Adobe Photoshop

Adobe Indesign

Cove.tool

Sefaira

FABRICATION

Woodworking

3D printing

Laser cutting

LANGUAGES

English (native)

Serbian (conversational)

Croatian (conversational)

SOFT SKILLS

Collaborative Worker

Active Listener

Detail-Oriented

2019-2024

EDUCATION

The Pennsylvania State University University Park, Pennsylvania

Bachelor of Architecture

Involvement/Clubs:

American Institute of Architecture Students

Student representative- 4th Year Architecture (Fall 2022)

EXPERIENCE/ INVOLVEMENT

May-Aug 2023

May-Sept 2022

Intern | Dahn & Krieger Architects Planners PC Rochelle Park, New Jersey

Produced schematic and construction drawing sets with aid of supervising architect.

• Performed site surveys on commercial and office units. Shadowed construction site visits.

Research Assisstant | Pennsylvania State University University Park, Pennsylvania

Produced study drawings of 100 untitled sculptures designed by Donald Judd and worked with professor on analysis of construction methods used.

Jun-Aug 2022

Intern | The Port Authority of New York & New Jersey

New York City, New York

Shadowed daily site visits to World Trade Center Site.

• Designed proposals for trailer relocations within WTC site. Consulted building code and performed occupancy calculations on the WTC PATH station to determine feasibility of temporarily altering means of egress.

Aug 2021Dec 2022

2022 2023

Resident Assisstant | Pennsylvania State University

University Park, Pennsylvania

Enforced campus residence policies, and provided counseling and information to first year students.

RECOGNITION

The 21st Annual Hajjar Memorial Competition

Honorable Mention

One of 14 finalists in a class of 67 students.

Buildner “House of the Future” Design Competition

Top 40 Shortlisted Project

One of 40 shortlisted design submissions in the world.

RESUME

HAMPDEN ONCOLOGY CENTER

LEARNER’S WHARF

TABLE OF CONTENTS 02 01 p.11-18 p.3-10 p.19-26 p.27-32 03 04
Civic Medical Science Residential JOURNEY FLEX-HOME
Fall 2021 Spring 2021 Fall 2022 Spring 2024

HAMPDEN ONCOLOGY CENTER

ENOLA, PENNSYLVANIA

SPRING 2024/ Academic Project

DURATION/ 15 Weeks

TEAM/ Luka Jovanovic (Architecture)

Marisa Calbi (Architecture)

Melanie Zhang (Landscape Arch.)

Adam Deemer (Landscape Arch.)

Steven Borgia (Structural Eng./ CM)

Noah Waldinger (Structural Eng./ CM)

Sophia Carter (Mechanical Eng.)

Madison Plesh (Electrical Eng.)

PROGRAMS/ Rhino, Revit, AutoCAD, Lumion, V-Ray, Photoshop, Illustrator

An extensive project done in collaboration with student peers from landscape architecture, and architectural engineering, the Hampden Oncology Center is a proposed extension to the existing Hampden Medical Center operated by Penn State Health.

Our team’s intent for the project is to design an oncology center that provides a welcoming atmosphere to patients and staff through the implementation of biophilia in the building, as well as creating connections to the existing hospital and surrounding community.

As part of this multi-disciplinary team, I co-led the design of the oncology center and collaborated with my team members to integrate our various systems and features into a cohesive design.

01.
03/ Jovanovic
/04
FRONT ENTRANCE

SKYBRIDGE (230 FT)

HAMPDEN MEDICAL CENTER

Massing and Landscape Made in Collaboration with A. Deemer, M. Zhang, M. Calbi. Diagram by Luka Jovanovic

Conceptually, the Hampden Ocology Center aims to reach out and connect to the existing medical center campus and surrounding community.

Extensive work was done in collaboration with our landcape architects to create a seamless transition where biophilia is brought into the building from the outside.

05/ Jovanovic 1.
2.
CONCEPT
ALIGN
REDUCE/ OPEN
3. EXTEND/ CONNECT
HAMPDEN ONCOLOGY CENTER ONCOLOGY PARKING

LONGITUDINAL SECTION

Hampden Oncology Center /06
SITE PLAN SITE SECTION Created by Adam Deemer and Melanie Zhang Created by Adam Deemer

FIRST FLOOR PLAN

Programmatically, the various medical wings of the Oncology Center are arranged around a central corridor. In the middle of this corridor is a central atrium which acts as a large waiting room as well as a means for vertical circulation.

PROGRAM LEGEND

MEDICAL ONCOLOGY

RADIATION ONCOLOGY

INFUSION PHARMACY

MEDICAL CLINIC

STAFF/ MEP

COMMUNITY

07/ Jovanovic

SECOND FLOOR PLAN

TRANSVERSE SECTION

Hampden Oncology Center /08
Floor Plans Made in Collaboration with M. Calbi Structure Made in Collaboration with S. Borgia and N. Waldinger

WEST | EAST

ATRIUM CALL-OUT SECTION HVAC COOL

OPEN INFUSION STATIONS ROOF DECK RADIATION TREATMENT INTAKE
CLINIC INTAKE JUN. 21, 4PM (36 ) o 0 1 2 4 8 16 09/
ATRIUM
Jovanovic
AIR
SUNLIGHT
AIR
CIRCULATION
REFLECTION
1ST FLOOR OPEN INFUSION - 2ND FLOOR 01
SIGHT LINES ATRIUM -

01/ ATRIUM LOUVER DETAIL

TYPICAL WALL SECTION

TPO ROOF MEMBRANE

WATERPROOFING MEMBRANE

8" BATT INSULATION

3.5 VLI DECK

ALUMINUM FLASHING

ALUMINUM RAIN SCREEN PANEL

WATERPROOFING MEMBRANE

4" BATT INSULATION W/

STEEL STUD 16" O.C.

2X2 GYP. CEILING GRID

GYP. WALL

WOOD PANELING

ALUMINUM WINDOW COVER W14 X 22 STEEL BEAM

JUN. 21, 12 PM

DEC. 21, 12 PM

4" BRICK FINISH

WATERPROOFING MEMBRANE

6" BATT INSULATION W/

STEEL STUD 16" O.C.

GYP. WALL

Atrium Section Made in Collaboration with M. Calbi Structure Made in Collaboration with S. Borgia and N. Waldinger HVAC by S. Carter

L2 15' - 0" 3 Hampden Oncology Center /10
LOUVER SHADING STUDY

LEARNER’S WHARF

PHILADELPHIA, PENNSYLVANIA

FALL 2022/ Academic Project DURATION/ 14 Weeks TEAM/ Luka Jovanovic

John Martin

PROGRAMS/ Rhino, V-Ray, Photoshop, cove.tool, Sefaira

Designed as a library on a pier to serve the Old City neighborhood of Philadelphia, the Learner’s Wharf is designed to be as efficient as possible while also paying homage to it’s industrial past.

From performing embodied carbon analyses of materials to studies of passive design methods, the project aims to minimize the environmental impact of the building in its construction and daily operations. In addition to being environmentally sustainable, the Learner’s Wharf aims to serve the community through analysis of demographics and the surrounding urban fabric to see how best the library can serve the city.

As part of a two-person group, my main focus within the project concerned passive design analyses into solar heating and water management, as well as assesments into community impact. In addition, my responsibilities included model construction and renderings of the library and its site.

03.
11/ Jovanovic

BUILDING STREET VIEW

/12

The library serves the dual purpose of a community center in addition to providing literature.

The building program is broken into three segments with community and reading spaces are divided by circulatory atrium.

Building segments are shifted to define public space in front of the library.

Segments further altered to meet code and enhance program arrangements.

BUILDING MODEL, 1’ = 1/16”

BOULEVARD EXT. CONCRETE AND STONE WALL DEPRESSED CURB BULK HEAD LINE APPROVED BY SECRETARY OF WAR 10 SEP 40 BULK HEAD LINE APPROVED BY SECRETARY OF WAR 10 SEP 40 CHRISTOPHER COLUMBUS STAFF BREAK ROOM STORAGE OFFICE + 15' 5" 1:20 + 15' 5" + 11' 5" + 15' 5" + 11' 5" OFFICE OFFICE RECEPTION AREA OFFICE DISABILITY INFORMATION CENTER OFFICE LOADING DOCK 1:28 1:20 FAMILY RESOURCES CENTER INFO CENTER LIBRARY STORE MEETING ROOM MEETING SPACE MECHANICAL OFFICE + 11' 5" MECHANICAL MEETING ROOM 13/ Jovanovic GROUND
FLOOR/ SITE PLAN
CONCEPT
BOOK STACKS/ STUDY BOOK STACKS/ STUDY & BOOK STACKS/ STUDY BOOK STACKS/ STUDY ATRIUM ATRIUM ATRIUM COMMUNITY/ CREATIVE SPACE COMMUNITY/ CREATIVE SPACE COMMUNITY/ CREATIVE SPACE COMMUNITY/ CREATIVE SPACE

TRANSIT ROUTES

NEIGHBORHOOD MAP

BIKE PATHS

Extensive research was done to asses the demography and accessibility of the neighborhood the site is located in. By making these assessments, it helped inform the amenities that will be of use to visitors to the library and create a welcoming addition to the community.

Floor Plans Made in Collaboration with John Martin

P HE LI PPROVED BY SECRE TARY O WAR 10 SE RIVER DELAWARE 1:16 STORAGE STORAGE STORAGE +3'5" MULTIPURPOSE SPACE OFFICE GALLERY PREP ROOM ART STUDIO/CLASSROOM BREAK ROOM + 15' 5" +13' 5" ARTIST PRIVATE STUDIO MEETING ROOM PIER APPR SECRETARY OF RIVER DELAWARE STAFF BREAK ROOM 1:16 STORAGE STORAGE STORAGE CENTER OFFICE BREAK ROOM 1:28 LIBRARY STORE MEETING ROOM MEETING ROOM MEETING ROOM FIRST FLOOR PLAN ELEV. 15'-6" Transit Routes Bus Routes Unprotected Bike Lane Subway Route Dedicated Bike Lane Bike Paths ea enches es White 71% Family Resources Walking Infrastructure esibility es PIERHEADSECRETAR RIVER DELAWARE STORAGE 1:16 1:20 15' 5" 15' 5" + 11' 5" OFFICE +3'5" OFFICE RECEPTION AREA OFFICE ART STUDIO/CLASSROOM 1:20 + 15' CENTER +13' 5" 11' 5" MEETING ROOM FIRST FLOOR PLAN - ELEV. 15'-6" Transit Routes Bus Routes Unprotected Bike Lane Subway Route Dedicated Bike Lane Bike Paths Bike Racks/ Rest Area Green Space/Benches Acessibility Resources Family Resources Family Resources Walking Infrastructure Green Space astructure Accesibility Resources HEADLINE APPROVED SECRETARY WA RIVER DELAWARE 1:16 STORAGE PREP ROOM ART STUDIO/CLASSROOM 15' 5" 5" FIRST FLOOR PLAN - ELEV. 15'-6"
Unprotected Bike Lane Dedicated Bike Lane Bike Paths Economy Median Household Income $77,111 PovertyRate 16% White 71% Walking Infrastructure PIER HEADLINE APPROVED SECRETARYSEP RIVER DELAWARE 1:16 +3'5" PREP ROOM FIRST FLOOR PLAN ELEV. 15'-6" Communities Routes Routes Unprotected Bike Lane bwayRoute Dedicated Bike Lane Bike Paths Economy Demographics Median Household Income $77,111 PovertyRate 16% Race White 71% Walking Infrastructure orMore Hispanic 11% Learner’s Wharf /14
Communities
LIBRARY BRANCH UNIVERSITY HIGH SCHOOL MIDDLE SCHOOL ELEMENTARY SCHOOL
SITE

SECOND FLOOR PLAN

THIRD FLOOR PLAN

DN UP DN UP READING AREA MULITPURPOSE/STUDY SPACE COMPUTER LAB READING/STUDY SPACE ADULT COLLECTION SPECIAL COLLECTIONS GREENHOUSE GREENHOUSE TEEN AREA BALCONY CHILDREN'S COLLECTION TEEN STUDY /READING AREA 15/ Jovanovic

ATRIUM VIEW

The atrium acts as a central circulatory space where visitors ascend and branch off into different spaces.

HALLWAY VIEW

Coming out of the stairs or elevator, visitors will be able to use touchscreen kiosks for wayfinding and searching for books.

Floor Plans Made in Collaboration with John Martin

DN UP DN UP UP READING AREA/STUDY AREA STORAGE STORAGE FABRICATION LAB FABRICATION LAB ADULT COLLECTION ROBOT LAB SECOND FLOOR PLAN - ELEV. 31'-6" 0' 2' 4' 8' 16' 32' SCALE: 1/8" = 1' 0" GREENHOUSE GREENHOUSE GREENHOUSE DN BALCONY READING SPACE TEACHING SPACE THIRD FLOOR PLAN - ELEV. 47'-6" 0' 2' 4' 8' 16' 32' SCALE: 1/8" = 1' 0" Learner’s Wharf /16

RAINWATER COLLECTION SYSTEM

It is crucial for a high performing building to have an efficient water management system. The main water management strategies used in the building features stacked bathrooms to reduce plumbing runs in the building. Furthermore, a rainwater collection system is being implemented to recycle rain water for use in watering the building landscaping and for providing water for select plumbing fixtures.

Design for Ecosystem

The design of the library supports and improves the ecological health of the site by utilizing the landscapign around the building. The lansdscaping is populated with plant species native to Philadelphia region and are selected for their ability to take in a lot of water in the event of heavy downpour or flash flooding. In addition to water management, the chocie of vegetation will contribute to to the creation of pleasant outdoor spaces for the library’s users.

Total Water Use (gal/yr)

Section Made in Collaboration with John Martin. Water Diagram by Luka Jovanovic.

LEED Pts. - WEc1-c2 Credit

Indoor WUI (gal/ft sq./yr)

Stormwater Managed Onsite %

WATER MANAGEMENT - VEGETATION SELECTION

• Height: 60 to 80 ft tall

• Water Need: Moist

• Hardiness Zone: 3-9

• Sun: Direct sun, partial shade

• Height: 4-8 ft

• Water Need: Moist

• Hardiness Zone: 3-9

• Sun: Partial shade, full shade

• Height: 1-3 ft

• Water Need: Weekly

• Hardiness Zone: 3-8

• Sun: Direct sun, partial shade

Swamp White Oak (Quercus bicolor) Summersweet (clethra alnifolia) Maidenhair (adiantum pedatum)
17/ Jovanovic
GREENHOUSE MULTIPURPOSE/READING SPACE FAMILY RESOURCE CENTER CHILDREN'S COLLECTION +47.5' - F3 +11.5' - EXT. SITE +0' - SEA LEVEL +31.5' - F2 +15.5' - F1 ADULT COLLECTION ADMIN. OFFICE SECTION THROUGH COMMUNITY CENTER/COLLECTIONS 0' 2' 4' 8' 16' 32' SCALE: 1/8" = 1' 0" PLANTER FILTRATION ROOF RAIN WATER FILTERS RUNOFF PRIOR TO ENTERING FILTRATION SYSTEM SEDIMENT TANK STORAGE TANK UV / FILTER STORM OVERFLOW GREENHOUSE IRRIGATION BUILDING WATER USAGE DECREASES WITH FILTERED GREY WATER USAGE FOR PLANTS PLUMBING FIXTURES FILTERED GREY WATER USED FOR PLUMBING APPLIANCES DECREASES BUILDING WATER USAGE

SUNLIGHTING STUDIES

Section Made in Collaboration with John Martin. Sun

To reduce thermal loads on the building, the library features a series of operable shading panels on its south facade to help limit thermal loads during the summer months.

In addition, digital models were created to study water management within the building and site to reduce waste and enhance the resiliency of the site.

PIER GARDEN VIEW

& Luka
Level 1 ASE: 47% Sunlight Analysis sDA: 62% Level 1 Level 2 Level 2 Level 3 Level 3 ADMIN. OFFICE MULTIPURPOSE/READING SPACE +0' - SEA LEVEL FAMILY RESOURCE +31.5' - F2 +15.5' - F1 ADULT COLLECTION CHILDREN'S COLLECTION +47.5' - F3 +11.5' - EXT. SITE SECTION THROUGH COMMUNITY CENTER/COLLECTIONS Level 1 Level 1 Level 2 Level 2 Level 3 Level 3 SECTION THROUGH COMMUNITY CENTER/COLLECTIONS 0' 2' 4' 8' 16' 32' SCALE: 1/8" = 1' 0" Learner’s Wharf /18
Design for Well Being
Jovanovic
SHADING STUDY MODEL sDA: 62% Diagram by Luka Jovanovic.

JOURNEY

SAN ANTONIO, TEXAS

FALL 2021/ Academic Project DURATION/ 7 Weeks

TEAM/ Luka Jovanovic PROGRAMS/ Rhino, V-Ray, Photoshop, Illustrator

Designed as a space for scientists to further their study and archive of fossils in the nearby Freisenhahn Cave, this proposed research center seeks to take the occupants of the site on a journey consisting of a long switchback path which zig-zags down the slope of the site.

As visitors arrive at the site, they are enveloped into a wooded area which serves as a transition from the urban loacale they came from into a more natural environment. As visitors proceed down the path, their views of the site are limited by the trees around them with the exception of the buildings in front of them. At the each turn of the path as it moves down the slope, visitors will come across the buildings of the site which serve as the axial loci where the path switches back.

The buildings and the structures on the site reflect the nature of the path conforming to wedge-shaped floor plans and slanted roofs which slope down either to the switchback or reflect the sloping down of the path through the site.

03.
19/ Jovanovic
/20
SITE MODEL, 1’ = 1/16”

CONCEPT/ DESIGN DEVELOPMENT

Zigzag path adopted to allow gradual descent through slope of site

Buildings act as axial loci at the turning point of each switchback

Buildings adopt wedge shape in relation to the shape of the path moving through the site

Roofs are slanted to slope down either down to loci or relate to sloping down of path

SITE PLAN 0 SCALE 1’ = 1/16” 50 100 200 1172 1170 1170 1168 1166 1164 1162 1162 1162 1162 1160 1160 1160 1158 1156 1154 1152 1174 11781176 1. 2. 3. 1. FIELD HOUSE 2. RESEARCH CENTER 3. LIBRARY & OUTDOOR CLASSROOM A A B B C C D D F G G F E E 21/ Jovanovic

BEGINNING OF SWITCHBACK PATH

REAR VIEW OF CLASSROOM/ LIBRARY

Journey /22
FIELD HOUSE PLAN 0 10 20 30 40 SCALE: 1’=1/8” COMMUNAL BEDROOM/ KITCHEN W/C OVERSEER BEDROOM W/C STORAGE LIBRARY/ CLASSROOM PLAN 0 10 20 30 40 SCALE: 1’=1/8” LIBRARY OUTDOOR CLASSROOM 23/
Jovanovic

All of the buildings in the site feature cross-ventilation consisting of larger windows oriented towards the direction where wind is most prevalent, and smaller windows on the opposite side to allow air to pass through as well as create a stack effect.

RESEARCH CENTER PLAN 0 10 20 30 40 SCALE: 1’=1/8” ARCHIVE SUPPORT OFFICE/ STORAGE LAB W/C STORAGE Journey /24
RESEARCH CENTER SECTION

ROOF FINISH

STEEL I-BEAM ROOF FRAMING

STEEL I-BEAM COLUMNS

WALL AND WINDOW FINISH

ROOF FINISH

STEEL I-BEAM ROOF STRUCTURE

STEEL I-BEAM COLUMNS

WALL AND WINDOW FINISH

CONCRETE SLAB

STEEL I BEAM FLOOR FRAMING W/ CONCRETE PILONS

CONCRETE FOUNDATION

25/ Jovanovic
FIELD HOUSE AXON RESEARCH CENTER AND LIBRARY AXON

FIELD HOUSE INTERIOR

RESEARCH CENTER INTERIOR

Journey/26

FLEX-HOME

PORTABLE

SPRING 2021/ Academic Project

DURATION/ 5 Weeks TEAM/ Luka Jovanovic PROGRAMS/ Rhino, Photoshop, Illustrator

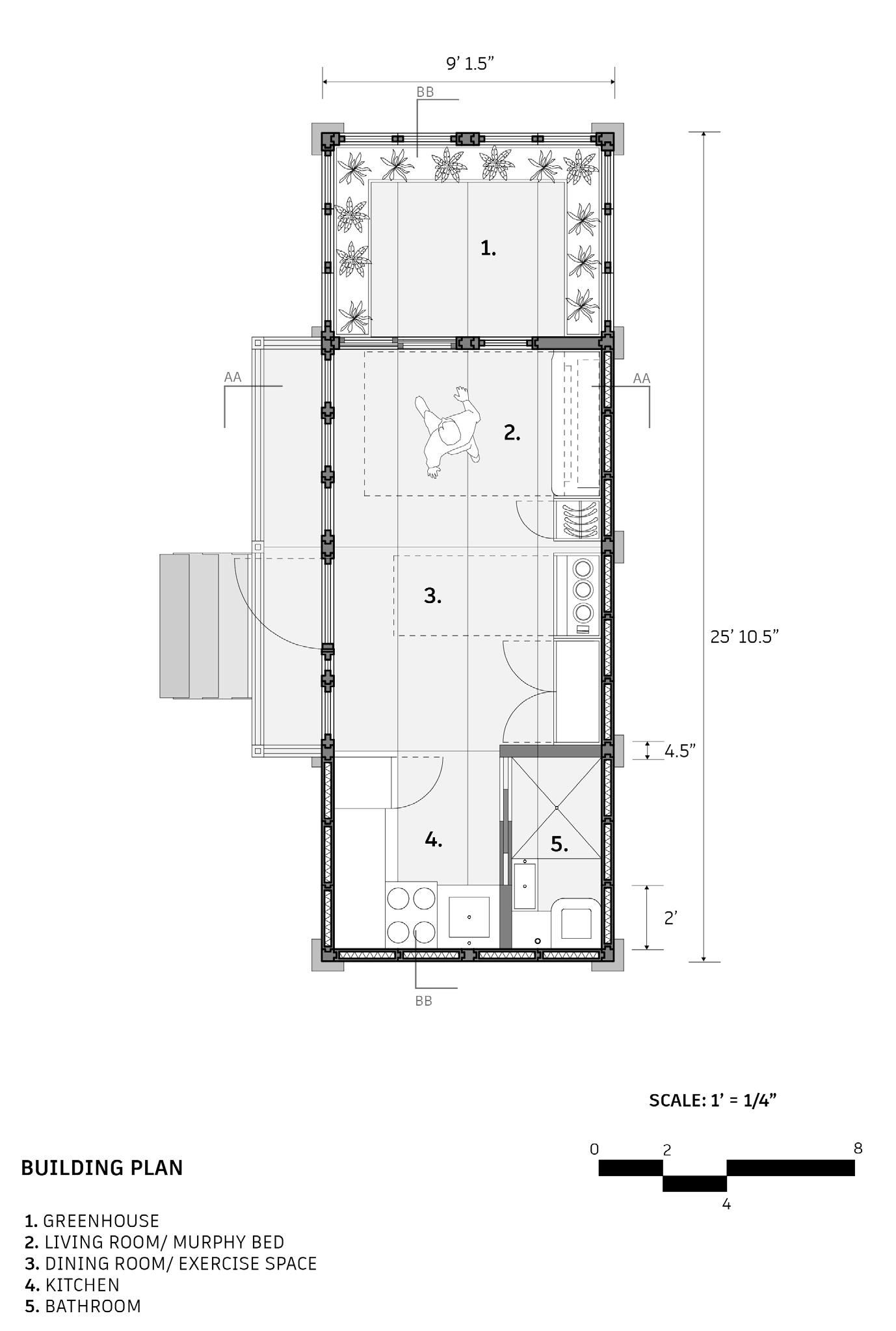
Good living can be defined as living in a space that is large enough to provide comfort and facilitate the desires and needs of its inhabitant.

In the context of this hypothetical client, who is a fitness instructor who likes to grow their own food and have large groups of friends over for meals, the need for space cannot be understated.

Featuring a flexible space with reconfigurable, custom furniture and components, the Flex-Home folds, slides, pulls down, and pulls out to accommodate the activities of the occupant while being contained within a rigid rectangular space.

Through its use of custom furniture, Flex-Home explores what is considered “comfortable space” and how such a space can be most efficiently used.

04.
27/ Jovanovic
/28

The spatial arrangements of the tiny home are broken down proportionally according to the prefabricated 2’x6’ floor panels. The placement of furniture and programs can take up from half a panel to 4 panels in a row.

SPATIAL ORGANIZATION 29/ Jovanovic
Flexhome /30

PULL DOWN DINING SET

MURPHY BED CONFIGURATIONS

OPEN SPACE

LIVING ROOM

BEDROOM

AIR CIRCULATION

PASSIVE HEATING/ COOLING

BASIC WALL SETUP
31/ Jovanovic

PV PANELS

EXPLODED AXONOMETRIC

PRE-FABRICATED ROOF PANELS

ROOF FRAMING

CLERESTORY WINDOWS

PRE-FABRICATED WALL AND FLOOR PANELS

Flexhome /32
lukajovanov01@gmail.com Mobile: +1 914-441-2762

Turn static files into dynamic content formats.

Create a flipbook
Issuu converts static files into: digital portfolios, online yearbooks, online catalogs, digital photo albums and more. Sign up and create your flipbook.