Olivia Marriott 2023 Portfolio

Page 1

Olivia Marriott 2023 Portfolio

About Me

I am an architecture graduate from Liverpool John Moores University. I have spent 18 months in practice, and have taken some time to see the world also.

Once I begun to understand architecture as a collaboration of environment,problem-solving and people, I realised it was the discipline I wanted to follow. I am an eager consumer of design and enjoy visiting great buildings and galleries in my free time.

I love to travel, and try to absorb influences from all over the world, from dramatic statements in form, function and scale, to tiny nuances in the details.

Outside of architecture, I enjoy cooking for friends and family, spending time in the Peak District, and trying to master Photoshop.

Living Art Gallery BA Level 6 Youlgreave Housing Project Practice Work The Harbour - Adaptive Architecture BA Level 5 Practice Work Plan Drawings Practice Work Independent Project Practice Work Visualisations Practice Work Details 3-10 11-14 15-18 19-20 21-22 23-24 25-26 @livm_arch livmarriott@gmail.com Olivia Marriott
Contents

Situated on Wapping Dock, Liverpool. you must design and build an art gallery that will be home to 12 visiting artists for a two year period. There should be gallery, studio, living and visitor spaces.

Thematic Idea

The journey through the site should maximise user experience. Light is to be a major factor in the form of the building - using steady north light as the priority for the studios and gallery.

The notion that art is a reactive force has changed how we consume it; we are able to form our own opinions and perpetuate the cycle of creating and reacting. This is seen in the increase of ‘user-led’ gallery space. Looking to the future, creating a away of combining both a successful gallery typology with an artistic focus on the whole creative journey could be the most successful way to increase public consumption of art.

How has public perception and consumption of art changed post-war? 6111AR Research Essay

migration traffic heights culture LEVEL 6BA Brief
“ ” The Living Art Gallery Site Analysis/Programme 3 4

I found the form of the gallery easy to rationalise once I’d considered the way the user would travel optimally through the site, and how north/ south light would influence the use of the space. The artists will need steady north light whilst working, and the dynamic south light can be enjoyed by the visitors, and the artists in their recreation time.

LEVEL 6BA The Living Art Gallery Resolved DesignFloor Plans N 50m
ground floor first floor
5 6
second floor
20m 8

The fundamental part of this project is the user experience and how the visitor is able to observe the creation of art from its initial concept, through its creation, and to its finished position in one of the galleries.

The idea is that the exhibition hall is the finale of the user experienceits dramatic proportions complement the art produced by the artists, as well as being a multi-purpose space.

The Living Art Gallery Resolved DesignKey Visuals LEVEL 6BA
entry view from corridor into artist’s studios arriving to central circulation flexible working space for artists view into exhibition hall from circulation upstairs gallery
9 10

This project was a conceptual exploration into the use of a piece of land in Youlgreave, Derbyshire. The area is in the Peak District, and is engulfed in a rich landscape.

The traditional architecture in this area uses WhitePeak limestone and undertakes traditional farmhouse forms. I have tried to keep an essence of this in the conceptual design stage, whilst opting for more modern materiality.

These houses were slightly more luxurious in form and scale, and whilst the project did not progress past RIBA stage 2 I enjoyed producing some conceptual imagery that could be to portray our ideas.

residential non-residential woodland reservoir viewpoints

PRACTICE WORK Youlgreave Housing Project
N site
11 12

I created a masterplan and 3 prototype houses as a basis for the project. The aim was to create family homes with plenty of outside space that would inspire a community feel. The curtain walling and large windows are to maximise the connection to the outdoors given the location of the project. The space on site, amount of light in the houses, and size of the garden means that the orientation of the house does not affect the availability of light or enjoyment of the surroundings.

I chose timber, corten steel and corrugated steel as cladding materials for these houses. I think this gave a rustic, country feel to the site, despite not using the traditional Derbyshire limestone. This keeps the site modern and different to the surrounding houses, but a connection with the area, with their traditional pitched shape.

Youlgreave Housing Project
2 bed semi-detached house
4 bedroom house 13 14 PRACTICE WORK
3 bedroom house

ple face is the lack of an address and no privacy. I wanted to create a solution that could give people facing homelessness some individual space, and could give an old Georgian townhouse a new lease of life.

Outcome

The outcome was a prefabricated system that could erect quickly to make individual rooms for homeless people, within a larger space. My prototype model shows how this might work, by using a lightweight steel frame and 14 translucent, recycled plastic panels that could attach to the frame. The pods are then retrofitted with a mattress, and a ply shelf and desk, a clothes rail, and a curtain for privacy

The HarbourRevitalising an existing building LEVEL 5 BA
15 16

Creating a wider plan

After creating a prototype model and exploring how this system could be used to dress urgent issues like homelessness, I began to explore how it could be used to address wider issues.

The Harbour gains its name through the bright orange colour of the units. Now, not only is the area inside the abandoned townhouse utilised, the outside space holds these modular structures, which can be used as flexible community spaces. These might be used to help the community learn about addiction and financial literacy, or be used as a food bank, meeting centre, or childcare.

17 18 The HarbourRevitalising an existing building LEVEL 5 BA
19 20

Existing Elevations

Existing Site

This project was to regenerate and revitalise an existing residential building, that had 3 commercial spaces on the ground floor. The site needed uplifting, whilst gently discouraging people from loitering around the front of the site and being easy to maintain. Option 1 focused less on the ground work, but did involve a dramatic recladding of the front facade of the building to cover the problem areas. The main feature of Option 2 was creating raised low-maintenance wild-flower beds, but the building facade remained minimal.

I worked independently on the majority of this project, from surveying and assessing the site internally and externally, creating a full set of existing drawings, and then two options as a basis for redevelopment. I then presented these options to the housing group and a representative of the council. All drawings were created in Revit, and my visualisations were made in a combination of Enscape and Photoshop.

Fir RoadIndependent Project Practical Work
Existing Site Plan Option 1 - Site Proposal Option 2 - Site Proposal Option 1 - Front Elevation Option 1 - Visualisation Option 2 - Front Elevation Option 2 - Visualisation
21 22

My work on this project involved creating a series of images that would support a planning application.

A concern for this project was that the proposed apartments would be too invasive in the surrounding environment - there is a major drive for controlled development and clean air zones in Sheffield currently. For this project, it was important to convey how the building would suit the family feel of the area, so showing the usage, greenery, and existing buildings was vital.

I used Enscape for Revit and Photoshop for these images. During my time in practice I have spent a lot of time creating visualisations and imagery.

Practical Work Visualisations 24 23
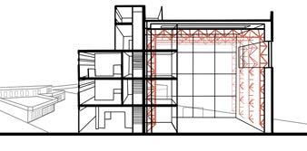
Practical Work Details 26 25

Turn static files into dynamic content formats.

Create a flipbook
Issuu converts static files into: digital portfolios, online yearbooks, online catalogs, digital photo albums and more. Sign up and create your flipbook.
Olivia Marriott 2023 Portfolio by Liv Marriott - Issuu