


![]()
























Technische Spezifikation
PRODUKT 0 GRUPPE






3.2
3.5
Изделия, описанные в данном каталоге –
Стандартные опоры 2020
– полностью соответствуют
новейшим разработкам в
технологии производства
опор и удовлетворяют
общим требованиям к
установке оборудования
на предприятиях самого высокого уровня.
Существуют общие
правила проектирования опор LISEGA. Они
описаны в настоящем разделе Технические
характеристики и являются общими для остальных разделов.
Характеристики отдельных
компонентов описаны в
соответствующих разделах,
посвященных группам
изделий, а также в таблицах
технических характеристик
компонентов.
Если не согласовано иное, условия, описанные в
каталоге “Стандартные
опоры 2020”, относятся
ко всем отгружаемым
изделиям.
1.
1.1 Требования Использование
1.2 Определение Стандартные опоры должны соответствовать следующим критериям:
компоненты унифицированы
разработаны так, что обеспечивается
оптимальное использование материала
все компоненты совместимы
несущей способности
все компоненты каталогизированы и легко идентифицируются с помощью системы
обозначений
серийное производство
компоненты соответствуют
2.3
множества альтернативных вариантов.
Это не только облегчает применение, но и повышает безопасность. Кроме того, это является предпосылкой для логической реализации стандартной
Процедура монтажа трубопроводов также может быть упрощена путем предварительного
3. Модульная система LISEGA
3.1 Преимущества для
3.3
и задачами (см. таблицу стандартных компонентов на стр. 0.3 и схему на стр. 0.4).
3.4 Группы нагрузок Чтобы обеспечить совместимость по нагрузке для всех компонентов


















































































































Всекомпонентыможноидентифицироватьпокоду
Системаобозначениятиповупрощаетприменениесовременныхинформационныхтехнологий ипредоставляетнеограниченныевозможности повнедрениюмодульнойсистемывпрограммы САПР.
ОбозначениятиповLISEGAможнорасшифровать спомощьюследующихтаблиц.
Первая цифра описывает группу продуктов (PG)
PG1=подвескииопорыпостоянногоусилия
PG2=пружинныеподвескииопоры
PG3=динамическиекомпоненты
PG4=присоединяемыектрубамкомпоненты
PG5=катковые,седловидныеи низкотемпературныеопоры
PG6=резьбовыесоединительныекомпоненты
PG7=компонентыкреплениякметаллоконструкциям
Цифры2-6обозначаютдополнительныехарактеристикивсоответствиисоследующимитаблицами.Конструкциядляповышенныхтребований (5-яи6-яцифра)описананастр.0.18.
01=21.302=26.9
03=33.704=42.4
05=48.306=60.3
07=73.008=76.1
09=88.910=108.0
11=114.313=133.0
14=139.716=159.0
17=168.319=193.7
22=219.124=244.5
26=267.027=273.0
32=323.936=355.6
37=368.041=406.4
42=419.046=457.2
51=508.056=558.8
61=609.666=660.4
71=711.276=762.0
81=812.886=863.6
91=914.497=965.2
T0=1016T1=1067
T2=1118T3=1168
T4=1219
4= седловидные
6= низкотемп.
изолиро-
ванная
опора
01=21.302=26.9
03=33.704=42.4
05=48.306=60.3
07=73.008=76.1
09=88.910=108.0
11=114.313=133.0
14=139.716=159.0
17=168.319=193.7
22=219.124=244.5
26=267.027=273.0
32=323.936=355.6
37=368.041=406.4
42=419.046=457.2
51=508.056=558.8
61=609.666=660.4
71=711.276=762.0
81=812.886=863.6
91=914.497=965.2
T0=1016T1= 1067
T2=1118T3= 1168
T4=1219
общепром. 1=до 350°C
2=до 500°C
3=до 560°C 4=до 600°C 5=до 650°C
повышенные требования 6=до 350°C
7=до 500°C 8=до 560°C
01= 21.3мм
02= 26.9мм
03= 33.7мм
05= 48.3мм
06= 60.3мм
07= 73.0мм
08= 76.1мм
09= 88.9мм
10=108.0мм
11=114.3мм
13=133.0мм
14=139.7мм
16=159.0мм
17=168.3мм
19=193.7мм
22=219.1мм
24=244.5мм
26=267.0мм
27=273.0мм
32=323.9мм
36=355.6мм
37=368.0мм
41=406.4мм
42=419.0мм
46=457.2мм
51=508.0мм
56=558.8мм
61=609.6мм
66=660.4мм
71=711.2мм
76=762.0мм
81=812.8мм
91=914.4мм
97=965.2мм
D9= M10-0.62кН
29= M12-2.50кН
39= M16-5.00кН
49= M20-10.0кН
59= M24-20.0кН
69= M30-40.0кН
79= M36-60.0кН
89= M42-80.0кН
99= M48-100кН
10= M56x4-160кН
20= M64x4-200кН
30= M68x4-240кН
40= M72x4-300кН
50= M80x4-400кН
1 2 3 4 5 6
перемещением ролика 9=1989
1= приварная 2= с труб. хомутами 3= трубный лоток
0=25 1=40 2=50 3=80 4= 100 5= 130 6= 150 7= 180 8= 200 9= 250
Производ. серия/перем-е/доп. пар-р Область применения/перем-е Диап.перемещ./Ø трубы/функция
Группа нагр./Ø трубы/Ø резьбы
Конструкция Группа продуктов (PG)
1985
Станд.констр. Диапазонперем.3/0-300мм Гр.нагрузки5/FN =20кН Односекционная Подвескапост.усил.
DIN EN 13480-T3Металлические
VGB-R 510 LСтандартные
KTA 3205.1/2/3Стандарты для атомной промышленностиГермания
AD-MerkblätterСтандарты для сосудов работающих
RCC-MТехнические условия
MSS SP-58Опоры
ANSI ASME B31.1 / B31.3Трубопроводы
ASME section III Div. I - NFОпоры
JSME S NC1Нормы
JEAG 4601Нормы
SPIR-O-2008Свод
7. Материалы Используются
DIN-ENASTMCN-Steel350450500530560600650 S235JRA 36Q235B x S235JRA 516 Gr.
204(Q345R)/15CrMoR xxx
13CrMo4-5A 387 Gr. 12 Cl.215CrMoR xxxxx 10CrMo9-10A 387 Gr. 22 Cl.212Cr1MoVR/12Cr2Mo1R xxxxxx X10CrMoVNb9-1+NT/QTA 387 Gr. 91 Cl.2
X5CrNi18-10A 240 TP 30406Cr19Ni10 xxxx
42CrMo4+QTA 193 B742CrMo x A 193 B8
X10CrMoVNb9-1+NT/QTA 182 F91
21CrMoV5-7+QT25Cr2MoVA xxxxx
25CrMo4+QTA 194 Gr. 2H25Cr2MoVA xxxxx
Все сварочные работы производятся методом свар-
металлическим электродом в среде защитного
в соответствии с DIN EN ISO 4063.
MAG/GMAW (= сварка металлическим электродом в среде защитного газа), процедура №135
MAG/FCAW (= дуговая сварка порошковой проволокой), процедура №136
WIG/GTAW (= сварка вольфрамовым электродом в среде защитного газа), процедура №141
Технические требования к технологии сварки (WPS) сертифицированы на основе стандартов EN ISO 15614-1 и/или ASME, раздел IX (WPQR).
Сварщики аттестуются в соответствии с EN 287-1 и ASME, разделом IX на соответствующие процедуры и классы материалов, а персонал по обслуживанию сварочного оборудования по EN 1418 и ASME, раздел IX.
LISEGA проводит сертификацию в соответствии с:
DIN 18800-T7 Kl. E, повторная сертификация в соответствии с EN1090-1 - EXE 4, сертификация соответствия для компонентов опор и Технические нормы EN 1090-2 для изготовления стальной конструкции ASME, раздел III, часть I, подразд. NCA 4000 - NPT и штамп NS EN ISO 3834-2
TRD 201/AD 2000 Брошюра HPO Технические условия для паровых котлов / Производство
Испытания неразрушающими методами (визуальный контроль, цветная дефектоскопия, MПД, УЗК и радиографический контроль) производятся персоналом, квалифицированным в соответствии со стандартами ISO 9712, уровень II и SNT-TC-1A, уровень III.
Испытания проводятся согласно стандартам:
EN ISO 5817, Группа оценки C EN ISO 17635 (ISO 10836)
с соответствующими условиями
для различных процедур ZfP
RCC-M, подразд. H 4000 с MC 3000 - MC 70000
ASME, раздел
Когда это технически
осуществимо, LISEGA использует экологически
безвредные покрытия на водной основе с низким со-
держанием растворителя.
Данные о нормативной толщине покрытия соответствуют NDFT (номинальной толщине сухой пленки) в соответствии с DIN EN ISO 12944, измеренной в соответствии с DIN EN ISO 2808.
(CED)
Высококачественные цилиндрические
9.1.4
9.1.5
[3. .. 2./4. .. 2.]
[3. .. 3./4. .. 3.]
[3. .. 4./4. .. 4.]
[3. .. 5./4. .. 5.]
[3. .. 7./4.






9.3.3
9.3.4
компоненты наносится цинковое
покрытие толщиной приблизительно 60-80 мкм.
Внутренние функциональные компоненты, резьба, небольшие детали и пр. горячеоцинкованы слоем толщиной приблизительно 40 мкм.
Для компонентов, не пригодных для горячего
цинкования из-за используемого материала или
области применения, возможной альтернативой является вариант «Усиленная защита
C4», соответствующая пункту 9.2.
9.3.1 Подвески и опоры постоянного
усилия, группа продуктов
9.3.5

изделиях. Регулиров-
ка нагрузки выполняется с точностью 2%.
10.1.2 Пружинные подвески / опоры
В случае с пружинными подвесками и пружинными опорами из группы продуктов 2 нагрузка изменяется линейно в соответствии с ходом пружины. Отклонение от теоретических значений, являюще-
10.1.3 Ударные стопоры
Ударные стопоры рассчитаны на создание
в разделе 3, стр. 3.7.
10.1.4 Вязкоупругие демпферы Вязкоупругие
вибраций от машин или
оборудования до безопасного уровня с помощью демпфирования в широком спектре частот. При демпфировании кинетическая энергия преобразуется
сопротивление для всех степе-
свободы является определяюим
постоянного усилия типа 11 150мм для
11.2.2
29 монтажная высота может регулироваться с помощью резьбовой опорной трубы, сконструированной в виде шпинделя, при любой уста-
нагрузке. Необходимая нагрузка настраи
качества) . Система учитывает общепризнанные стандарты



на странице 0.18.
12.1 Управление качеством Наша система управления качеством



В соответствии с международными нормами и
качеством (РУК). РУК учитывает все признанные
европейские и другие международные стандарты, в частности, DIN EN ISO 9001 и ASME, раздел III, часть 1, подраздел NCA 4000, включая подраздел NF и KTA 1401, RCC-M H.
РУК охватывает всю организацию LISEGA и
применяется как в общепромышленном секторе, так и в отраслях с повышенными требованиями,
например, в атомной промышленности. Существует возможность
постоянного контроля качества в соответствии с РУК. В частности, для применения в атомной промышленности обеспечивается соответствие
стандартам качества международного уровня в соответствии с кодексами ASME, раздел III NF / NCA 4000 (США), RCCM
H (FR), KTA (DE), DIN EN 13480-T5
RCC-M
KTA
VGB-R
14.
так
требованиями, например,
условий
не отличаются по конструкции и технологии производства. Однако в связи с допол-
нительными требованиями к качеству и материалам, а также из-за необходимости дополнительной сертификации для этих отраслей может потребоваться отдельный производственный процесс.
Для областей с повышенными требованиями долж-
на быть предусмотрена возможность прослежива-
уровень требований указан в 5-й цифре, а для жестких
ственного заказа.
Компоненты общепромышленного исполнения в настоящем каталоге идентифицируются по обозначениям типа. В связи с тем что функциональные данные и размеры идентичны и при
производстве компонентов с повышенными требованиями, во всех случаях продукты можно выбрать с помощью каталога. Однако в процессе
проектирования и заказа важно проверить правильность номера детали, в соответствии
ISO 9001
TÜV Nord BSI TÜV Rheinland AFAQ LRQA TÜV Nord
78 100 034445
FS 557331 01 100 038965 1996 / 5030.4
MEA6011026/1 07 100 010963
EN 1090-1:2009/A1:2011TÜV Nord0045-CPR-1090-1.00151 TÜVNORD.2013.003
Cl. E; DIN 18800-7:2008-11, DIN 18801TÜV NordDIN 18800-7 / 0513-EW /13/0
AD 2000 Leaflet-HP0TÜV Nord07-203-1282-HP-0513/13
DIN EN ISO 3834-2TÜV Nord07-204-1280-HS-0513/15
BS OHSAS 18001:2007
„Safety management“ TÜV Nord AFAQ
DIN EN ISO 14001:2009
78 116 034445 2010/38940.1
„Environmental“TÜV Nord78 104 034445
SCCTÜV Nord78 106 034445
ASME section III Div. I NCA 4000
NS - Certificate for supportsASMEN 3092 N 3025
ASME section III Div. I NCA 4000
NPT - Stamp for supportsASMEN 3169 N 2951
KTA 1401VGB, EnBW Kernkraft, RWE, E.ON, Vattenfall
NNSA Designing
NNSA Manufacturing China National Nuclear Safety Administration 1405 1406
TN VED / Rostechnazor Federal Service for Ecological, Technological and Atomic Supervision PPC 00-043746 GOST RRST Expert
SPIR-O-2008ATT=Atomic Techno Test
SSMFS
RU.0001.01AЭ00.00.10.2849
16. Гарантия
определяется его опорами.
Если необходимо долго
временное хранение, может быть предоставлена другая упаковка.
Специальные требования, при наличии, изложены
на листах технических данных или в















Чтобы не допустить
Подвески постоянного усилия,
типы 11–14,
опоры постоянного усилия, тип 16
Небольшое тепловое расширение трубо-
проводов в вертикальном направлении
может компенсироваться пружинными
опорами или пружинными подвесками.
Из-за результирующего, пропорционально
возрастающего изменения силы в соответствии с коэффициентом жесткости пружины, их использование ограничено диапазоном перемещения, установленным проектировщиком (см. группу продуктов 2, стр. 2.5 и 2.6).
В случае более значительного вертикального перемещения необходимо




Подвеска постоянного
усилия типа 18
Как правило, проектировщики
опор для трубопровода
предусматривают достаточное
пространство для установки
требуемых опор. Однако иногда, если есть пространственные

ограничения, монтажная высота может быть недостаточна для стандартного решения с
использованием типа 11.
Это случается, как правило, при реконструкции
существующих объектов. Чтобы обеспечить опти-
мальное решение в таких случаях, в ассортименте
подвесок LISEGA, помимо основной серии типа 11, имеется компактная конструкция типа 18.
Принцип функционирования этой конструкции основан на принципе рычага. В отличие от обычных
смещение нагрузки здесь линейное и постоянное, в соответствии с принципом
LISEGA (см. принцип функционирования, стр. 1.6). Подвески
близко к нулевой отметке, то может быть целесообразным использование постоянных опор.
Опора постоянного
усилия типа 19
заменяет модель из предыдущей сериитип 16. Тип 16 продолжает поставляться как стандартный только в случае повышенной нагрузки (диапазон нагрузок 100–400 кН) в многосекционном исполнении.
Благодаря своей конструкции и особым принципам функционирования подвески и опоры постоянного усилия LISEGA за последние










Схемы расположения трубопроводов обычно
очень сложны, а пространство ограничено. Для
оптимального использования в различных пространственных условиях предлагаются различные стандартные конструкции. Все компоненты могут
быть либо поставлены со склада, либо изготовлены в короткий срок.
Подвеска постоянного усилия, типы с 11 C3 19 до 11 96 15
Стандартная конструкция для использования в
качестве подвески до группы нагрузок 9 (100 кН) и диапазона перемещения 6 (750 мм). По запросу
доступен диапазон перемещения 7 (900 мм). Этот
продукт следует выбирать, когда нет каких-либо пространственных
требований.
Подвеска постоянного усилия типа 11 с опорными стойками типов с 71 C3 .1 до 71 96 .1
Стандартная конструкция с опорными стойками, собранная на
LISEGA.
Подвеска постоянного усилия, типы с 18 D3 17 до 18 93 17
Стандартная серийная конструкция в специальном, компактном
в качестве альтернативы подвеске типа 11 в случае ограниченной монтажной высоты.
Опора постоянного усилия, типы с 19 D3 17 до 19 93 17
Стандартная серийная конструкция для использования в качестве опоры постоянного усилия. Примечание: Этот вариант заменяет более высокую односекционную опору постоянного усилия типа 16 (см. «Каталог стандартных опор 2010 г.») и
















Принцип функционирования для подвесок
Два плеча рычага A , симметрично расположенные под углом друг к другу, действуют как
одна система с предварительно нагруженными
пружинами B . При вертикальном изменении
положения груза F , смещение передается через ролики C на опорные

под стандартные соединения.
Возможности соединения
Соединительная резьба соответствует группам
нагрузок LISEGA. Длина резьбы верхнего соеди-
нения (для типа 11) соответствует необходимой
глубине ввинчивания, а нижнее соединение обору-
довано регулировочной гайкой для регулирования
длины нагрузочной цепи.









Универсальная адап-
монтажа
системы.
Автоматическое проектирование

Подвески постоянного усилия Типы с 11 C3 19 до 11 96 15

12 15385130140106M1212M103752652852513540861515 11 13 15415130140106M1212M1064544528520270165861525
11 14 15435130140106M1212M1093561528525325225861534
11 15 15465135150108M1212M10122579529525450350861552
11 22 15445160180132M1212M103852703502014045861521
11 23 15460160185132M1212M1065045536045270195861535
11 24 15480160185132M1212M1094563536045320245861548
11 25 15530165195136M1212M10121581037025460365861575
11 32 15445170190132M1612M1039027536010165301122027
11 33 15490170190132M1612M10675470360702601801102043
11 34 13545185210150M1612M10960645370403702601102066
11 35 13615190220155M1612M1012408203704046536011020105
11 42 15500185220150M2016M12440315400252601351052544
11 43 15570185220150M2016M127404954101102502101052566
11 44 13610185220150M2016M121040675410553702751052586
11 45 13665190240155M2016M1212858554206554045510525145
11 52 15590230270190M2420M1647034549030210701153073
11 53 15710230270190M2420M1677051549010528521512630115
11 54 15745230285190M2420M1611057054907541031012630159
11 55 15845230285190M2420M1614058804906053041513530212
11 62 15725275335230M3025M16555420580402408514535134
11 63 15815275335230M3025M1690056558016030026014535183
11 64 15845275345230M3025M16128575060015035531014935264
11 65 15885275345230M3025M16163092560012046038014935337
11 66 151145280345232M3025M162030133060015565060014935495
11 72 15780300380252M3635M206104556505028511017045195
11 73 15850300380252M3635M2094563565014030020517045262
11 74 151000300400252M3635M20137578565019540036017945378
11 75 151160305400256M3635M2017109756606566549018445550
11 76 151275305400256M3635M202150142566021071067518445690
11 82 15815320390256M4235M207055856505033011520050263 11 83 15945320390256M4235M20114071565021534028020050364
11 84 151110320400256M4235M20164592567030539042020050509
11 85 151200320420256M4235M202085111569012574059520050731
11 86 151260325420260M4235M202585162569025085082520050965 11 92 15865350435276M4835M247606307505035013519560336
11 93 151095350435276M4835M24119078575025035532519560475
11 94 151240350455276M4835M24173596077038038048019560677
11 95 151255355455280M4835M242160109077025058557019560862 11 96 151305355455280M4835M2427001620770290800820195601130

11 C3 1971 C3 .142070150265408103552506601335
11 D2 1971 D2 .137070155145405102602306601335
11 D3 1971 D3 .148070170265408253802606601338
11 12 1571 12 .149511514014560535270285810017312
11 13 1571 13 .152511514026560925480285810017317
11 14 1571 14 .1545115140385601335720285810017325
11 15 1571 15 .1575115150505601745950295810017331
11 22 1571 22 .157514018014575545275350812017315
11 23 1571 23 .159014018526575930475360812017321
11 24 1571 24 .1610140185385751345710360812017331
11 25 1571 25 .1660140195505751735925370812017338
11 32 1571 32 .1575140190150755602853601012025316
11 33 1571 33 .1620140190270759654953601012025323
11 34 1371 34 .16751402104007513807353701012025332
11 35 1371 35 .17451402205207517809603701012025340
11 42 1571 42 .1640160220155806203054001014025318
11 43 1571 43 .17101602202758010405454101014025329
11 44 1371 44 .17501602204258014908154101014025341
11 45 1371 45 .180516024060080191010554201014025349
11 52 1571 52 .1750200270160906603154901218025330
11 53 1571 53 .18702002702809010805654901218025342
11 54 1571 54 .19052002854009015358304901218025358
11 55 1571 55 .1100520028552090195510754901218025372
11 62 1571 62 .19152503351651107553355801222025445
11 63 1571 63 .1100525033528511012206555801222025462
11 64 1571 64 .1103525034540511017259756001222025490
11 65 1571 65 .110752503455251102190126560012220254112
11 66 1571 66 .113352503453451102410108060012220254112
11 72 1571 72 .19802703801751158303756501524025456
11 73 1571 73 .1105027038029511512856506501524025480
11 74 1571 74 .112002704004151151835105065015240254106
11 75 1571 75 .113602704005351152290131566015240254128
11 76 1571 76 .114752704002801152475105066015240254128
11 82 1571 82 .110252803901801209353506501524040565
11 83 1571 83 .1115528039030012014907756501524040591
11 84 1571 84 .113203004004201202115119067015260405139
11 85 1571 85 .114103204205401202675156069015280405184
11 86 1571 86 .114703204202701202905128069015280405184
11 92 1571 92 .1110530043519014010103807502026040582
11 93 1571 93 .11335300435310140156077575020260405109
11 94 1571 94 .114803204554301402225126577020280405162
11 95 1571 95 .114953404555501402770168077020320405273
11 96 1571 96 .115453404552601403020140077020320405273

12 82 358676353905556012055858054030050330909530160615
12 83 3599763539055560164071580540300215340909530160820
12 84 351162635400555602145925805403003053909095301601110
12 85 3512526354205556025851115805403001257409095301601555
12 86 3513126454205656030851625805453042508509095301602020
12 92 35917695435605701310630905903305035010511035175785
12 93 35114769543560570174078590590330250355105110351751070
12 94 35129269545560570228596090590330380380105110351751475
12 95 351307705455615702710109090595334250585105110351751845
12 96 351357705455615703250162090595334290800105110351752380
13 82 35867935390855701305585808402x3005033010512535210955
13 83 35997935390855701740715808402x300215340105125352101265
13 84 351162935400855702245925808402x300305390105125352101700
13 85 3512529354208557026851115808402x300125740105125352102370
13 86 3513129504208707031851625808502x304250850105125352103070
13 92 359171025435935801420630909202x33050350120140352301215
13 93 3511471025435935801850785909202x330250355120140352301640
13 94 3512921025455935802395960909202x330380380120140352302245
13 95 35130710404559508028201090909302x334250585120140352302810
13 96 35135710404559508033601620909302x334290800120140352303615
14 82 35867123539011558013855858011403x30050330120180352501305
14 83 35997123539011558018207158011403x300215340120180352501715
14 84 351162123540011558023259258011403x300305390120180352502300
14 85 3512521235420115580276511158011403x300125740120180352503190
14 86 3513121250420117080326516258011503x304250850120180352504125
14 92 35917135543512659014606309012503x33050350135180402501665 14 93 351147135543512659018907859012503x330250355135180402502230 14 94 351292135545512659024359609012503x330380380135180402503040


45110563043519014010701190380330202603305907
12 93 451335630435310140161516207753302026033051242
12 94 4514806504554301402285217012653302028033051752
12 95 4514956754555501402830259516803342032033452356
12 96 4515456754552601403080313514003342032033452892
13 82 45102588039018012098511453503001524060041087
13 83 451155880390300120155015857753001524060041464
13 84 4513209004004201202175209011903001526060042044
13 85 4514109204205401202730253015603001528060042848
13 86 4514709204202701202960303012803041528060843555
13 92 451105960435190140107012453803302026066051378
13 93 451335960435310140162016807753302026066051883
13 94 4514809804554301402285222512653302028066052647
13 95 45149510104555501402830265016803342032066853551
13 96 45154510104552601403080319014003342032066854344
14 82 451025118039018012099011903503001524090041465
14 83 4511551180390300120155016257753001524090041970
14 84 45132012004004201202175213011903001526090042745
14 85 45141012204205401202730257015603001528090043817
14 86 45147012304202701202960307012803041528091244756
14 92 4511051290435190140107512703803302026099051866
14 93 4513351290435310140162017007753302026099052540
14 94 45148013104554301402285224512653302028099053559
14 95 451495134045555014028302670168033420320100254766
14 96 451545134045526014030803210140033420320100255841

21 171.253.075610205M12172672342510241532 18 22 171.253.0150664205M12173042702510241540 18 23 171.253.0300973205M12174644302510241559
18 21 272.24.075610205M12172672342510241532
18 22 272.24.0150664205M12173042702510241540
18 23 272.24.0300973205M12174644302510241559
18 31 172.85.1575652205M16212822443010362038
18 32 172.85.15150837233M16213362933010362076
18 33 172.85.153001099233M162148344030103620100
18 31 273.86.875652205M16212822443010362038
18 32 273.86.8150837233M16213362933010362076
18 33 273.86.83001099233M162148344030103620101
18 41 175.09.375755233M20213282863010362572
18 42 175.09.3150934261M202135130230103625105
18 43 175.09.33001099233M202148244030103625107
18 41 276.912.475755233M20253312864015322572
18 42 276.912.4150934261M202535430240153225117
18 43 276.912.43001288261M202550045540153225158
18 51 179.216.275755233M24253302864015323073
18 52 179.216.2150934261M242535330240153230118
18 53 179.216.23001288261M242549945540153230159
18 51 2711.921.975812261M24253342904015323099
18 52 2711.921.91501055276M242537231540153430166
18 53 2711.921.93001426276M242550846040153430221
18 61 1716.1529.975878261M303435831550183435119
18 62 1716.1529.91501140291M303438033350183435201
18 63 1716.1529.93001592291M303451446750183435273
18 61 2722.140.575878261M304136831565204435123
18 62 2722.140.51501302278M304139233565204435205
18 63 2722.140.53001720302M304152747265204435343
18 71 1729.847.075976276M364139534065204445164
18 72 1729.847.01501446291M364139834365204445242 18 73 1729.847.03001720302M364157847265204445357 18 71 2735.060.0751072291M364141736265224445201

19 23 171.253.030097324520516314.59134308018510366
19 21 272.24.07561024520516314.54902348018510338
19 22 272.24.015066424520516314.56002708018510347
19 23 272.24.030097324520516314.59134308018510367
19 31 172.85.157565224520516314.54992448018510343
19 32 172.85.1515083730023318918.563929310021012485
19 33 172.85.15300109930023318918.5969440100210124112
19 31 273.86.87565224520516314.54992448018510343
19 32 273.86.815083730023318918.563929310021012485
19 33 273.86.8300109930023318918.5969440100210124113
19 41 175.09.37575530023318918.556528610021012480
19 42 175.09.315093430026120518.5667302100210140116
19 43 175.09.3300109930023318918.5969440100210124118
19 41 276.912.47575530023318918.556528610021012480
19 42 276.912.415093430026120518.5667302100210140127
19 43 276.912.4300128830026120518.5987455100210140176
19 51 179.216.27575530023318918.557728610021012484
19 52 179.216.215093430026120518.5668302100210140131
19 53 179.216.2300128830026120518.5987455100210140176
19 51 2711.921.97581230026120518.5581290100210140111
19 52 2711.921.9150105540027622022.5713315120280150183
19 53 2711.921.9300142640027622022.51016460120280150241
19 61 1716.1529.97587830026120518.5607315100210140130
19 62 1716.1529.9150114040029123322.5718333120280163219
19 63 1716.1529.9300159240029123322.51021467120280163294
19 61 2722.140.57587830026120518.5607315100210140134
19 62 2722.140.5150130240027822022.5717335120280150221
19 63 2722.140.5300172040030224022.51041472120280170370
19 71 1729.847.07597640027622022.5655340120280150182
19 72 1729.847.0150144640029123322.5728343120280163263
19 73 1729.847.0300172040030224022.51041472120280170384
19 71 2735.060.075107240029123322.5672362120280163218
19 72 2735.060.0150157040030224022.5757370120280170333
19 73 2735.060.0300193540036230022.51111513120280230565
19 81 1744.280.075125140030224022.5744390120280170303
19 82 1744.280.0150180540036230022.5829413120280230552
19 83 1744.280.0300196540034728522.51186547120280215774
19 91 1759.0100.075152040030224022.5739385120280170352
19 92 1759.0100.0150180540036230022.5829413120280230553
19 93 1759.0100.0300196540034728522.51186547120280215804
Шарнирные соединения сконструированы для крепления к приварной скобе типа 35
блокировки E уменьшается соответствующим образом. Предусмотрена возможность регулировки до + 200 мм
Возможности по соединению: См. диаметр штифта приварных скоб типа 35 или динамических трубных хомутов (группа продуктов 3).
Макс. допустимые нагрузки:
• экстремальная (C) при 80°C
= нагрузка блокировки x 1.33
• аварийная (D) при 150°C = нагрузка блокировки x 1.66.
• макс. допустимая нагрузка в состоянии блокировки при 80°C
= нагрузка блокировки x 1.5.

19 23 472.24.03009732452051631291353430342566
19 31 372.85.15756522452051631551259244363042
19 32 372.85.151508373002331891563259293363083
19 33 372.85.15300109930023318915965594403630110
19 31 473.86.8756522452051631551259244363043
19 32 473.86.81508373002331891563259293363083
19 33 473.86.8300109930023318915965594403630111
19 41 375.09.3757553002331891556159286363078
19 42 375.09.315093429026120515663593023630114
19 43 375.09.3300109930023318915965594403630117
19 41 476.912.4757553002331891556159286363079
19 42 476.912.415093429026120515663593023630125
19 43 476.912.4300128829026120515982594553630175
19 51 379.216.2757553002331892060980286604086
19 52 379.216.215093429026120520700803026040133
19 53 379.216.23001288290261205201020804556040178
19 51 4711.921.97581229026120520613802906040112
19 52 4711.921.9150105540027622020727803156040184
19 53 4711.921.93001426400276220201030804606040242
19 61 3716.1529.97587830026120520641803156040133
19 62 3716.1529.9150114040029122020732803336040220
19 63 3716.1529.93001592400291220201035804676040295
19 61 4722.140.57587830026120520641803156040136
19 62 4722.140.5150130240027822020731803356040222
19 63 4722.140.53001720400302220201058804726040372
19 71 3729.847.07597640027622030708933406060186
19 72 3729.847.0150144640029123330781933436060267
19 73 3729.847.03001720380302240301094934726060389
19 71 4735.060.075107239829123330725933626060222
19 72 4735.060.0150157040030224030810933706060338
19 73 4735.060.03001935400362300301156935136060569
19 81 3744.280.075125140030224030789933906060305

79 D3 170.421.023001700973205175692510801401191.7
79 D1 270.421.4475170061020517372251080140811.7
79 D2 270.421.44150170066420517409251080140891.7
79 D3 270.741.443001700973205175692510801401231.7
79 11 271.083.4275170061020517393251080140811.7
79 12 271.083.42150170066420517430251080140891.7
79 13 271.083.423001700973205175902510801401351.7
79 21 172.56.075170061020517393251080140791.7
79 22 172.56.0150170066420517430251080140951.7
79 23 172.56.03001700973205175902510801401351.7
79 21 274.48.075170061020517393251080140791.7
79 22 274.48.0150170066420517430251080140951.7
79 23 274.48.03001700973205175902510801401351.7
79 31 175.610.37518006522052141030101201901042.7
79 32 175.610.315018008372332146430101201901802.7
79 33 175.610.3300180010992332161130101201902282.7
79 31 277.613.67518006522052141030101201901042.7
79 32 277.613.615018008372332146430101201901802.7
79 33 277.613.6300180010992332161130101201902302.7
79 41 171018.67518007552332147230101402001783.2
79 42 171018.615018009342612148830101402002443.2
79 43 171018.6300180010992332162630101402002483.2
79 41 2713.824.87518007552332547540151402001783.2
79 42 2713.824.815018009342612549140151402002683.2
79 43 2713.824.8300180012882612564440151402003503.2
79 51 1718.432.47518007552332548940151802301944.4
79 52 1718.432.415018009342612551240151802302844.4
79 53 1718.432.4300180012882612565840151802303664.4
79 51 2723.843.87518008122612549340151802302464.4
79 52 2723.843.8150180010552762552140151802303804.4
79 53 2723.843.8300180014262762566740151802304904.4
79 61 1732.359.87524008782613452150182603103207.6
79 62 1732.359.8150240011402913454450182603104827.6
79 63 1732.359.8300240015922913467850182603106287.6
79 61 2744.2817524008782614153165202603103287.6
79 62 2744.281150240013022784155665202603104927.6
79 63 2744.281300240017203024169065202603107707.6
79 71 1759.6947524009762764158665203003504309.2
79 72 1759.694150240014462914158965203003505869.2
79 73 1759.694300240017203024176965203003508129.2
79 71 277012075240010722914160765223003505049.2
79 72 2770120150240015703024161765223003507289.2
79 73 27701203002400193536241762652230035011709.2
79 81 1788.416075180012513025167780253003506729.2
79 82 1788.41601501800180536251702802530035011429.2
79 83 1788.41603001800196534751836802530035015549.2
79 91 1711820075180015203025169480253003507629.2
79 92 171182001501800180536251725802530035011389.2
79 93 171182003001800196534751859802530035016129.2
усилия
с 79 D2 15 до 79 96 15 Эта конструкция трапеции
используется, если стан-

79 42 1521856404651851905520002515344.0
79 43 1521857107651854155520002519944.0
79 44 13218575010401856255520002525344.0
79 45 13219080512851906855520002537044.0
79 52 1523307405002302756521003023050.6
79 53 1523308608002304206521003031850.6
79 54 15233089511352306606521003040850.6
79 55 152330100514352308456521003052858.8
79 62 1523758955902753157021003538466.4
79 63 1523759859352754807021003548666.4
79 64 152375101513202758157021003565066.4
79 65 1523751055166527510857021003579866.4
79 66 15238013152065280126570210035112066.4
79 72 1524009706553003208521004554983.6
79 73 15240010409903005608521004568883.6
79 74 152400120014203008208521004594192.4
79 75 15240513601755305102085210045129692.4
79 76 15240514752195305127585210045160092.4
79 82 152420101575532038095210050746119.0
79 83 1524201145119032065095210050959119.0
79 84 152420131016953201015952100501263119.0
79


16 83 29997640635580500555185518671207157552004903002153401515300920
16 82 3986764093588080085511201132120585300200490300503301515600965
16 83 399976409358808008551855186712071575520049030021534015156001395
16 92 399177401025960900935119012021406303202405703305035020206601220
16 93 39114774010259609009351915192714078574524057033025035520206601765
16 82 498676401235118011001155112011321205853002004903005033015159001295
16 83 4999764012351180110011551855186712071575520049030021534015159001865
16 92 499177401355129012301265119012021406303202405703305035020209901635
16 93 49114774013551290123012651915192714078574524057033025035520209902365
В определенных условиях температурному расширению трубопроводов
или других компонентов
препятствует трение или
другие факторы, несмотря
на использование пружинных подвесок, подвесок
постоянного усилия или опор
отклонений может превысить допустимый уровень и значительно уменьшить срок службы трубопровода или присоединенного

значения, управление автоматически выключается.
Ручное


стопор
индикатор перемещения заводская табличка
красная маркировка для
горячего положения крепежный болт с шайбой
для стопора (после
разблокировки)
шкала перемещения зубчатая полоса для
блокировки
указатель установленной
нагрузки
шкала нагрузки
насадка для регулировки
1









Соединения типа 11 C3 .. – 11 96 ..
(односекционные подвески)
Верхнее соединение сконструировано как внутрен-
няя резьба с ограниченной глубиной ввинчивания.
Нижнее соединение сконструировано в виде сфе-
рической гайки, отклоняемой от вертикали во всех
направлениях минимум на 4°. Соединительная резьба смазывается и герметично закрывается
пластмассовыми колпачками.
При соединении с резьбовыми стержнями
необходимо действовать осторожно, чтобы нижний
стержень ввинчивался в соединительную гайку по
меньшей мере до смотрового отверстия.
по ввиничиванию на нижнем соединении составляет по меньшей мере 300 мм.
Соединения типов
плиты опорных стоек могут привариваться к поверхности, на которую они устанавливаются. По запросу могут быть
поставлены
Соединения типа 18
Верхнее соединение спроектировано в виде проушины, а нижнее — в виде сферической регулировочной гайки, отклоняемой от вертикали во всех направлениях минимум на 4°. Соединительная резьба покрыта смазкой и герметично


Транспортный
что и стопоры. При натяжении нижнего соединения необходимо внимательно проверить, что нижние резьбовые тяги,
равновесие достигнуто. Блокировочные стопоры можно легко снять.
На практике, однако, почти никогда не удастся избежать небольших механических напряжений в трубопроводе, и происходящего вследствие этого смещения нагрузки.
Также возможны большие допуски для нагрузок,
определенных теоретически. В результате этого,
отклонения могут привести (в соответствии с недогрузкой или перегрузкой) к соответствующему прижатию индикатора перемещения к нижней или
части стопора.
устройства удаляются только
плены на боковых сторонах подвески постоянного усилия для


точке вызывает небольшое смещение в другой точке, процедуру
необходимо повторить, если необходимо в разных точках. Для полной уверенности в правильности настройки, стопоры рекомендуется удалять только тогда, когда все индикаторы перемещения свободны.
5 Коррекция нагрузки для типов 11, 12-14
Коррекция нагрузки необходима, если нагрузка блокировки (установленная на предприятии LISEGA) отклоняется от фактического веса. В этом случае корректировка нагрузки на подвесках LISEGA может



Процедура
когда индикатор перемещения больше не упирается
верхнюю или нижнюю часть стопора. Если необходимые усилия для регулировки слишком велики, и ручная регулировка невозможна (как в случае с подвесками постоянного усилия для высоких групп нагрузок), то необходимо использовать вспомогательные устройства (см.
3) Затяните контргайки болтов регулировки нагрузки. Теперь


Federstützen







Во

диапазоне перемещений. Возникающие в результате работы пружин изменения
женно-деформированное состояние трубопровода
должны быть проверены расчетом на прочность.
Основные положения, касающиеся функционирования пружинных компонентов, описаны в дей
стр. 0.5). Пружинные подвески и опоры LISEGA

Применяя


Отсутствие сварных швов (типы 20, 21, 27).
Поверхности полностью гальванически оцинкованы. В конструкциях для больших нагрузок поверхности окрашены.
Горячее и холодное положения отмечены на шкале перемещения (красная и белая метки соответственно). Регулируемая
блокировки.
На пружинных подвесках установленные значения указаны на приклепанной заводской табличке.
Специальные предварительно релаксированные
пружины, окрашенные методом катодно-электрофорезного погружения, предотвращают потерю несущей способности.
Интегрированные соединительные элементы.
Разнообразные способы соединения компонентов внутри выбранной группы нагрузок и возможность дальнейшей регулировки нагрузки.
Теоретическое горячее положение (рабочее поло-
жение) отмечено на шкале перемещения (красная стрелка). Пять диапазонов перемещения от 0 до 400 мм,
групп нагрузок от С до 9 Три диапазона перемещения, от 0









и сопрягаемым компонентом (например, хомутовой опорой), используется скользящий материал PTFE (до 180°C) или специальный материал для более высоких
температур (до 350°C). В этом случае поверхность сопрягаемого компонента должна быть выполнена
представлен на стр. 2.11.




Удлинитель для пружинной
типа
рабочее перемещение
Чтобы исключить нестабильность
LISEGA разделены на 5 диапазонов перемещения с соответствующими
рабочее перемещение [мм] 000000.040.120.410.831.663.336.6613.3320.0026.6633.33 2.551015200.050.140.450.911.833.667.3314.6622.0029.3336.66 5.0102030400.060.160.501.002.004.008.0016.0024.0032.0040.00 7.5153045600.070.180.541.082.164.338.6617.3326.0034.6643.33 10.0204060800.080.200.581.162.334.669.3318.6628.0037.3346.66 12.52550751000.090.220.621.252.505.0010.0020.0030.0040.0050.00 15.03060901200.100.240.661.332.665.3310.6621.3332.0042.6653.33 17.535701051400.110.260.701.412.835.6611.3322.6634.0045.3356.66 20.040801201600.120.280.751.503.006.0012.0024.0036.0048.0060.00 22.545901351800.130.300.791.583.166.3312.6625.3338.0050.6663.33 25.0501001502000.140.320.831.663.336.6613.3326.6640.0053.3366.66 27.5551101652200.160.340.871.753.507.0014.0028.0042.0056.0070.00 30.0601201802400.170.360.911.833.667.3314.6629.3344.0058.6673.33 32.5651301952600.180.380.951.913.837.6615.3330.6646.0061.3376.66 35.0701402102800.190.401.002.004.008.0016.0032.0048.0064.0080.00 37.5751502253000.200.421.042.084.168.3316.6633.3350.0066.6683.33 40.0801602403200.210.441.082.164.338.6617.3334.6652.0069.3386.66 42.5851702553400.220.461.122.254.509.0018.0036.0054.0072.0090.0
45.0901802703600.230.481.162.334.669.3318.6637.3356.0074.6693.3
Пример:
Рабочая нагрузка F = 6000Н
Допустимое измен. нагрузки p 25%
Перемещение (вверх) s = 15мм
нагрузка) (рабочее перемещение) c 0.25 6000Н = 100Н/мм 15мм
Выбранный тип 25 42 18
Жесткость пружины c = 66.6Н/мм
Холодная нагрузка FK= 7000Н
нагрузки (в процентах)
Пример:
рабочая нагрузка 6000Н, рабочее перемещение
2.551058.6673.3388.00110.00146.66 5.0102064.0080.0096.00120.00160.00 7.5153069.3386.66104.00130.00173.33 10.0204074.6693.33112.00140.00186.66 12.5255080.00100.00120.00150.00200.00 15.0306085.33106.66128.00160.00213.33 17.5357090.66113.33136.00170.00226.66 20.0408096.00120.00144.00180.00240.00 22.54590101.33126.66152.00190.00253.33 25.050100106.66133.33160.00200.00266.66 27.555110112.00140.00168.00210.00280.00 30.060120117.33146.66176.00220.00293.33 32.565130122.66153.33184.00230.00306.66 35.070140128.00160.00192.00240.00320.00 37.575150133.33166.66200.00250.00333.33 40.080160138.66173.33208.00260.00346.66 42.585170144.00180.00216.00270.00360.00 45.090180149.33186.66224.00280.00373.33

21 41 1815517M2018518030259.2
42 1815517M20290290302512.8
43 1815517M20525525302520.0 21 44 1815517M20920800302529.0
21 51 1818021M24215215363016.5
21 52 1818021M24305305363020.5
21 53 1818021M24540540363032.0
21 54 1818021M241035825363046.0
21 55 1818021M2412751065363057.0
21 61 1822024M30245245463531.0
21 62 1822024M30360360463540.0
21 63 1822024M30640640463562.0
21 64 1822024M301205980463590.0
65 1822024M30149012654635114.0
71 1824530M36280285554548.0
72 1824530M36405410554563.0
73 1824530M36675680554589.0 21

22 31 195909575M68x472490385105301004680360
22 32 195909575M68x472610505105301004680405
22 33 195909575M68x472890785105301004680510
22 41 1962511580M72x482555430120351055585455
22 42 1962511580M72x482685560120351055585515
22 43 1962511580M72x482955830120351055585625
22 51 1964514090M80x492630480135351156595550
22 52 1964514090M80x492800650135351156595655
22 53 1964514090M80x49211751025135351156595865




тип B C d6 E[кг]
72 D9 28125951281.0
72 19 28125951281.0
72 29 2815011514101.6
72 39 2815011514121.8
72 49 2819014018123.0
72 59 2822017018124.0
72 69 2826020023156.9
72 79 28290215232010.9
72 89 28290215272010.9
72 99 28340255332518.2




Пружинные опоры,
с 29 C2 19 до 29 93 18
склада Опорная

29 C2 1729 C2 1640
29 D. 1729 D. 1640
29 1. 1729 1. 1640
29 2. 1729 2. 1640
29 3. 1729 3. 1640
29 4. 1729 4. 1665
29 5. 1729 5. 1665
29 6. 1729 6. 16110
29 7. 1729 7. 16110
29 8. 1729 8. 16150
29 9. 1729 9. 16150
1811515011514550364701001213.0
29 41 1815519014018240481801201211.9
29 42 1815519014018360482901201216.0
29 43 1815519014018615485251201225.0
29 51 1818022017018270502101501220.0
29 52 1818022017018370503001501224.3
29 53 1818022017018625505351501237.0
29 61 1822026020023305502451701534.0
29 62 1822026020023430503601701544.0
29 63 1822026020023730506401701568.0
29 71 1824529021523360523002002053.0
29 72 1824529021523500524252002068.0






79 D.191.04M101700 – 385610809014015 – 26301.7
79 1. 192.5M1217002903856108090140152426311.7
79 2. 195M12170029039061080115140152831371.7
79 3. 1910M1690031541063080115140202932391.7
79 3. 1910M161800300395615120115190204145522.7
79 4. 1920M201400345450685120155190255360742.7
79 4. 1920M201800345450685140155200256168823.2
79 5. 1940M2412504054957301401802003077851083.2
79 5. 1940M24180039048071518018023030931011244.4
79 6. 1980M301250445560840200220250351381562005.1
79 6. 1980M302400435550830260220310351741922367.6
79 7. 19120M361800505630900260245310452142442967.6
79 7. 19120M362400500625895300245350452452753279.2
79 8. 19160M4212005607251100260245310502422863787.6
79 8. 19160M4218005557201095300245350502733174109.2
79 9. 19200M4818006107851150300275350603353904959.2




Пружинные опоры телескопические, типы с 29 D1 27 до 29 93 27
Существуют специальные конструкции типа 29, телескопические пружинные опоры, которые используются для небольших
размеров E.
Скользящие поверхности сопряженных с опорой компонентов
из
стали. На это ука-

из PTFE (до 180°C)
6 - конструкцию соскользящей подложкой для высоких температур (до 350°C)
Коэффициент трения скользящих компонентов указан в таблице на стр. 7.11
29 21 2.1551801451001440102151751.162.533.38.0
29 22 2.1551801451001440103152351.162.516.610.5
29 23 2.1551801451001440105253651.162.58.315.0
29 31 2.1551801451001440122201802.33566.68.5
29 32 2.1551801451001440123202402.33533.311.0
29 33 2.1551801451001440125403802.33516.616.5
29 41 2.1952201801201865122351954.6610133.315.0
29 42 2.1952201801201865123352554.661066.620.0
29 43 2.1952201801201865125604004.661033.329.0
29 51 2.2202452001501865122602209.3320266.624.0
29 52 2.2202452001501865123702909.3320133.330.0
29 53 2.2202452001501865125904309.332066.643.0
29 61 2.275305245170231101830026018.6640533.344.0
29 62 2.275305245170231101841033018.6640266.653.0
29 63 2.275305245170231101867551518.6640133.380.0
29 71 2.300330265200231102032529536.006080063.0
29 72 2.300330265200231102043537536.006040076.0
29 73 2.300330265200231102067555536.0060200105.0
29 81 2.300330270200271502236033553.33801066.671.0
29 82 2.300330270200271502250045053.3380533.391.0
29 83 2.300330270200271502283573553.3380266.6142.0
29 91 2.325370295245331502540037566.661001333.396.0
29 92 2.325370295245331502555550566.66100666.6124.0
29 93 2.325370295245331502587577566.66100333.3181.0



21, 22, 25, 26, 29, 28, 20, 27
1
Пруж.подвеска тип 21 тип 22
Пруж.подвеска тип 25 тип 26


Пруж.подвеска типа 21 (заблокирована)

Пруж.подвеска типа 25 (заблокирована)

Пруж.подвеска типа 22 (заблокирована)

Пруж.подвеска типа 26 (заблокирована)




A)
Следует
подхода
тяг для всего предприятия.
Тяги в узлах соединения должны быть прочно затянуты гайками. Необходимо внимательно сле-
дить за тем, чтобы обеспечивалась минимальная глубина ввинчивания для резьбовых компонентов.
Монтаж типов 21, 22 Прочное соединение для типа 21 получают путем
вкручивания резьбовых тяг в верхнее и нижнее резьбовое соединение. Нижнее резьбовое соединение выполнено в виде винтовой




Тип


поглотители энергии,
феры, динамические
Stoßbremsen, Gelenkstreben, Energieabsorber, viskoelastische Dämpfer, Wechsellastschellen
PRODUKT 3 GRUPPE





Чтобы избежать нежелательных напряжений и моментов в трубопроводах, необходимо предотвратить
внештатные перемещения
трубопроводов или других
компонентов промышленного предприятия. Тем не менее, температурные перемещения не должны ограничиваться!


труб, тип 3R
скобы типа 35
защищаемым компонентом и прилегающей
конструкцией. Таким образом, энергия внезапного
динамического воздействия мгновенно передается
и рассеивается без причинения ущерба. В штатном
режиме медленные температурные перемещения
не ограничиваются.
Жесткие распорки типа 39
Если необходимо ограничить рабочие перемещения, например, в точках с нулевыми расчетными перемещениями, используются жесткие распорки. Эти
Компоненты группы продуктов 3 подвергаются динамическому нагружению. Для эффективного функционирования этих компонентов необходимо учитывать следующие требования:
1. При рассмотрении конструкции динамически фиксируемых узлов необходимо учитывать жесткость всей системы, т. е. всех компонентов опорной цепи.
2. При выборе используемых типоразмеров необходимо учитывать сумму всех возникающих нагрузок.
3. Для заданных нагрузок необходимо четко определить, какому уровню расчетной нагрузки (H, HZ, HS и/или Уровень A, B, C, D) они соответствуют. Необходимо свериться с «таблицей
допустимых нагрузок» на стр. 0.6 «Технических характеристик».
4. Длина хода ударных стопоров не должна использоваться полностью. Следует
запас хода, равный 10 мм.
5. При компоновке компонентов
6.
параллельной установке ударных стопоров следует учитывать запас
нагрузке. Вместо 50% для каждого рекомендуется, чтобы каждый из ударных стопоров был рассчитан на восприятие
признанных повсеместно и занимающих лидирующие позиции на мировом рынке.
Доступ к ударным стопорам после установки
почти всегда бывает затруднен и, из-за возможной
опасности облучения персонала при использовании
на атомных станциях, требует соблюдения строгих
норм безопасности. Поэтому наиболее строгие тре-
бования предъявляются к надёжной непрерывной работе, не требующей технического обслуживания.
Для надежной эксплуатационной безопасности ударных стопоров, наряду с принципом работы и
конструкцией
направляющие поршня и стержня
материалы
коррозионностойкие внутренние
поверхности
управляющие клапаны
Наиболее распространенными причинами отказа ударных стопоров обычно являются преждевременный износ и коррозия. В связи с этим ударные сто-
того, благодаря использованию
специальных направляющих

Ударные стопоры типа 30
Уплотнения, направляющие элементы и гидравли ческая жидкость LISEGA
в блоке.
характеристикам:
коррозионностойкие материалы специальные уплотнительные системы специальные вибростойкие направляющие
гидравлические системы под давлением функционирование при динамических
нагрузках
заменяемые клапаны (тип 31)
проверенная и доказанная эксплуатация в течение 23 лет без технического обслуживания расчетный срок службы — 60 лет сертификация по результатам испытаний
на соответствие техническим условиям в соответствии с KTA 3205.3
разрешительные документы в соответствии с ASME-NCA 3800





Принцип работы
Управляющие клапаны
Главный управляющий клапан (B), расположенный
аксиально
остается в открытом положении благодаря силе сжатия
пружины, и гидравлическая жидкость может свободно
перетекать из одной камеры цилиндра в другую. При быстром перемещении поршня, превышающем максимально допустимую скорость (прибл. >



максимальноесопротивлениепридвижении (усилиетяги)




допустимаядлительность нагружениявзависимостиот температурыокружающеговоздуха
непрерывныйрежимработымакс.80°C кратковременнаямакс.1ч/врем.цикл макс.40ч/год макс.150°C
относительнаявлажностьвоздухапри10-150°C100%
атмосферанасыщенногопарадомакс.150°CX=1 дозапоглощенногоизлучениянакопленноезначение10
давлениеокружающейсреды
непрерывныйрежимработы0.5-1бар краткосрочныйпериодизбыточноедавлениев5бар

вибрации.

Задачи
трубопровода Обеспечение устойчивости

Режим
Перемещения в случае динамического нагружения
ограничиваются посредством упоров. Возникающие усилия передаются на конструкцию здания вплоть до значения предусмотренной номинальной нагрузки, а при превышении этой нагрузки
преобразуются в энергию деформации. Тем
самым присоединенные компоненты контролируемым способом защищаются от перегрузки. Поэтому поглотители энергии являются идеаль-

(G). Для дальнейшего использования поглотителя энергии необходимо лишь заново



Динамические нагрузки,
возникающие из-за механических, гидродинами-
ческих и других внешних причин, могут серьёзно
повредить трубопроводы
и другие компоненты электростанции. Вязкоупругие демпферы могут значительно уменьшить такие вибрации. Конструкция
ограничивать лишь минимально. Вязкоупругие демпферы на практике





соединительные плиты заводская табличка
индикатор положения пылезащитный кожух, не требующий технического обслуживания
транспортные скобы
внутренняя резьба M16 для транспортировки диапазон нагрузок от 2.5кН до 100кН
диапазон частот до 35Гц диапазон температур от – 10°C до 80°C диапазон






трубного хомута.
Несмотря на исправное функ-
ционирование
(жестких распорок,
стопоров, поглотите-
энергии), функционирова-
всей







допустимые нагрузки (в таблицах выбора на стр. с 3.29 до 3.43) рассчитаны на эксплуатацию
при динамических нагрузках для ударных





трубопровода
толщина изоляции расстояние между тягами




Ударные стопоры
Типы от 30 18 16 до 30 03 12
Серийная стандартная
конструкция. Поставка со склада.
Используются только корро-
зионностойкие материалы.
Соединительные ушки, с соединительной резьбой (материалы P250GH, C45E+QT, S355J2, A668Cl. C/F, SA299),
гальванически оцинкованы.






Монтажные удлинители
Типы от 33 18 18 до 33 03 12 Серийная стандартная
конструкция.
Монтажные удлинители типа
Монтажные удлинители

соединитель-
ушек к монтажным
Это относится также к специальным соединениям, которые особенно удобны при замене изделий
других производителей, так
как таким образом можно
продолжать использовать
существующие соединения
на площадке. Более подроб-
ную информацию о способах
соединения см. на стр. 3.6.
Необходимо избегать
превышения максимального
поперечного углового откло-
нения, равного 6°.
Материал:
труба P355NH
шарнирные P250GH
соединения C45E+QT S355J2 42CrMo4+QT

35 19 13325321210309.542130.2
35 29 13425321210309.542130.2
35 39 138303712123410.546150.3
35 49 1318354313154012.552180.5
35 59 1946545415205016.565271.0 35
35
в пределах 6° . Следует избегать неправильного расположения




3D .. 44-D
Вязкоупругий демпфер, типы от 3D 03 44-D до 3D H1 44-D
Дополнительная информация о продуктах, снижающих вибрацию, есть в каталоге продукции VICODA.
Внутренняя резьба для транспортировки.
3D
3D
3D
3D
…
…мм, y: …мм, z: …мм рабочая температура: …°C

3D
3D

Выбор размера демпфера зависит от номинальной нагрузки.
смещение
горизонтальном и вертикальном направлениях. Для демпферов LISEGA в сериях 33-L и 55-L оно составляет соответственно ± 30 мм и ± 50 мм в
горизонтальном/ вертикальном направлениях.
Необходимо

1.
2.
39
39 .0 74600 - 9007502.43.44.98.8132239 .1 131100 - 12501175182
39 .0 84750 - 9008254039 .1 231200 - 13501275192
39 .1 04850 - 115010003.34.56.51117284739 .1 331300 - 14501375231
39 .1 241100 - 140012504.15.58.01321345739 .1 231100 - 1400125088
39 .1 541350 - 165015004.96.6101425406739 .1 531350 - 16501500121247
39 .1 741600 - 19001750(5.8)7.6111629467739 .1 731600 - 19001750139270
39 .2 041850 - 21502000(6.6)12.5131833528639 .2 031850 - 21502000157294
39 .2 242100 - 24002250(7.4)14.1152037589639 .2 232100 - 24002250175350
39 .2 542350 - 2650250015.71622416510639 .2 532350 - 26502500193379
39 .2 742600 - 29002750(18)24457111539 .2 732600 - 29002750211409
39 .3 042850 - 31503000(19)(26)497712539 .3 032850 - 31503000229438
39 .3 243100 - 34003250(21)(28)538313539 .3 233100 - 34003250247467
39 .3 543350 - 36503500(23)(30)578914439 .3 533350 - 36503500265497
39 .3 743600 - 39003750(31)619515439 .3 733600 - 39003750283526
39 .4 043850 - 41504000(65)10116439 .4 033850 - 41504000301555
39 .4 244100 - 44004250(69)10717439 .4
39 .4 544350 - 46504500(73)11318339 .4 534350 - 46504500337614
39 .4 744600 - 49004750(77)(119)19339
36 24 3595938354304203301009016644.3
36 24 4118141015395315504011413.7
36 24 4224181320395330504513517.9
36 24 44443426304203151008016636.6 36 24 45665238304203301009016644.3
36 37 1144413720400445604011522
36 37 1265595630400455604513626
36 37 131001009930400475606013636
36 37 14166151139504154551209016757
36 37 152792561816044047512012016888
36 37 2131272420485445604011523
36 37 2248423930485455604513631
36 37 2389767230485475606013642
36 37 2412110597505004551209016767
36 37 251861681595050047512012021794
36 37 311818181315480445604011422
36 37 323837312020500455604513528
36 37 337069593830500475606013642
36 37 3497968153305004551209016662
36 37 35200200178167165143935051547512012021792
36 37 4117141115480445604011423
36 37 4223181420500455604513527
36 37 4349392930500475606013642
36 37 44685541305004551209016662
368.0 (Dу 350) Dн 406.4 (Dу 400)
36 41 2389777130510515606013646
36 41 2412010597505254951209016773
36 41 2518617216550525515120120217104
37 41 2735033829024422960580490310230218187
36 41 311818181315510485604011424
36 41 323736312020530495604513530
36 41 336968583730530515606013646
36 41 3496948052305304951209016667
36
37 51 118262453051559517013013643
37 51 12133101735053062017013613766
37 51 1318214210860560640230180168105
37 51 1426920615370600660330260219187
37 51 1736529421370600590320230219213
37 51 216958543059557514010413641
37 51 229580755062059017013013766
37 51 231311101045062060518013616790
37 51 2421317916860650625240180218150
37 51 2523519718460650635240190218181
37 51 2635031426922721260650670250190218200
37 51 2855052044637535270650605340250269298
37 51 31535245313062558014010413642
37 51 32757471493062560017013013663
37 51 3310210195725064060018013616792
37 51 3416616415610960665640230180218148
37 51 3518318017013260665640240190268182
37 51 3834033631922270710605340250269318
37 51 413124183062558014510413642
37 51 425039293062560017013013663
37 51 437458433062560018014016692
37 51 44110846250640640235180217138
37 51 451341057750640640240190267173
37 51 4855053548844743042739427521515870710625395290269397
37 56 118162443055064517013013647
37 56 12133100725056567017013613770
37 56 1318114210860595690230180168111
37 56 1426920615370635705330260219195
37 56 1736529521370635645320230219228
37 56 216757533064063014010413645
37 56 229479745065564017013013770
37 56 231311101035065565518013616796
37 56 2421217816760680675240180218157
37 56 2523419718460680685240190218190
37 56 2635031326922621160680720250190218210
37 56 2855050443336434270725655340250269337
37 56 31535245313065063014010413646
37 56 32757472493065065017013013667
37 56 3310210195725066565018013616796
37 56 3416616415510860695690230180218154
37 56 3518218017013260695690240190218191
61 118262453057570017013016650 37 61 12128101735059072018013616773
37 61 1318214310860620740230180168115
37 61 1427220615570660760330260169199 37 61 1736829721470660695320230219239
61 1854341229770660705335250219299 37 61 216757533067068014010416649
37 61 229479755068569017013016775
37 61 2313111010350685705180136167101
37 61 2421117716760715725240180218166
37 61 2523319618360715735240190218199
37 61 2626822521160715770250190218220 37 61 2855050143036234070760705340250269359
37 61 31525245303068568014010416650
37 61 32757471493068570017013016672
37 61 33102100957250700700180136167101
37 61 3416416315410860730740230180218163 37 61 3518117917013160730740240190218201
61 413124183068568014510416650
66 1427220615570690810330260169207
66 1736929821570690745320230219252 37 66 1854541329870690755335250219316 37 66 216958553070073014511016656 37 66 229681765071574517513616786 37 66 2313111010350715760180136167105 37 66 2421117716660750775240180218175
66 2523319618360750785240190218209
66 2626722521060750820250190218231 37 66 2855050042936133970790755340250269382
37 71 118262453063580017013016654
37 71 12126101735065082519013616783
37 71 1318214310960680840230180168127
37 71 1427220615670720860330260169213
37 71 1532825318670720880355260219245
37 71 1854641429970720810335250219331
37 71 216958553072578014511016659
37 71 229681765074579517513616787
37 71 2313111010350745810180136167111
37 71 2421317916860770830240180218178
37 71 2523519818560770840240190218217
37 71 2627022721360770875250190218240
37 71 2855050343236334170815810340250269396
37 71 31545346313074078014511016659
37 71 32767573503074080517513616689
37 71 33102101957350755805180136167112
37 71 3416716515610960780845230180218175
37 71 3518318117013360780845240190218217
37 71 3833833431722170825810340250269394
37 71 3955055048440738137635527570825820400290269483
37
81 117659423070090517013016660 37 81 12126100725071592518513616790 37 81 1318314310860745950235180168135 37 81 1428421515570785960330260169235
81 1532824818670785985345260219258
81 1639930723370785985370260219286 37 81 1854541329870785910335250219372 37 81 216958543079088514511016667
37 81 2296817650805895175136167101
37 81 2313111010350805910180136167123 37 81 2421418016960830930240180218195 37 81 2627122821360830975250190218261 37 81 2855050543436534370875910340250269440 37 81 31545446323079088514511016666
37 81 32777674513079090517513616698 37 81 33103102957150805905180136167121 37 81 3416916715810760830945230180218191 37 81 3518618317013460830945240190218234 37 81 3834333832122470875910340250269432
37 81 3955055049041238538136027970875920400290269523 37 81 413225193079088514511016666
81 4374584350805905180140167127
81 44110846260830945250180218193 37 81 451341057760830945270190218236
86 14277216156708101015295260169243
86 15317248187708101035295260219273
37 86 16387307233708151040305260219304
37 86 1851841530070810965335250219393 37 86 216958553081593514511016672
37 86 2296817650830950180136167113
86 2313211110450830965200136167136
86 26273229214608551030240190218286
86 2855050943736734570900965340250269474
86 34170168159110608551000235180218207 37 86 35187184170135608551000235190218255 37 86 3834534132322570900965340250269465 37 86 3955055049341538838336028170900975400290269564
86 413225193081593514511016670
86 441118462608551000250180218207
86 4513510578608551000270190218255
914.4 (Dу
37 91 1175614330760100518013016669
37 91 1212110072507751030185136167100
37 91 13181143108608051045250180168146
37 91 14285216156708451065330260169245
37 91 15329248186708451085365260219275
37 91 16400301233708451090390260219306
37 91 18544413299708451015335250219394
37 91 216958553084098514511016672
37 91 22978177508551000175136167112
37 91 23132111104508551015220136167137
37 91 24216181170608801035240180218213
37 91 26274230215608801080250190218288
37 91 28550511438368346709251015340250269478
37 91 29550550495416390709251025400290269574
37 91 31545346323085098514511016673
37 91 3277767451308501010175136166110
37 91 331031029568508651010180136167134
37 91 3417016815697608801050230180218206
37 91 35187185170135608801050240190218258
37 91 38343339322225709351015340250269475
37 91 39387382360280709351025400290269579
37 91 413225183085098514511016673
37 91 42524030308501010180140166117
37 91 43745843508651010180140167141
37 91 441118462608801050260180218208
37 91 4513510678608801050320190218264
37 91 48550544479449443402280219161709351025400290269579
37 91 49427416353274214709351040435340269680
(Dу 950)
37 97 13181146111608301090230195168163
37 97 14277216156708701115295260169262
37 97 16387324234708701140295260219353 37 97 18518415300708701065335250219430
37 97 2169595530865104014511016681
37 97 23144119113508801080225186167152
37 97 24225186177609051090250205218231 37
Dн 1016 (Dу
37 T0 1177594230810111016513016676
37 T0 1212010274508251130180150167111
37 T0 13182142111608551140230195168166
37 T0 14281217157708951165295260169267
37 T0 15323250188708951185295260219298
37 T0 16387328237708951190305270219359
37 T0 18518416301708951115335250219435
37 T0 2170595530890109014511016682
37 T0 221008479509051110180146167117
37 T0 23141117111509051130225186167155
37 T0 24225187177609301140250205218236
37 T0 26290240228609301180300250218324
37 T0 28550515442371349709751115340250269519
37 T0 29550550499420393709751125400290269606
37 T0 315251483330900109014512016681
37 T0 3279787652309001110180146166113
37 T0 3311511410666509151130225186167154
37 T0 34171169167103609301155240205218226
37 T0 35203200185137609301175295250218295
37 T0 38346342325226709851115340250269513
37 T0 39550514433405400380293709851125440330269620
37 T0 4133261930900109014512016681
37 T0 42534231309001130180150166122
37 T0 43826448509151130225190167159
37 T0 441168865609301150240205218225
37 T0 4514711484609301170295250218288
37 T0 48550548484452447405282220163709851125400290269614
37 T0 49427416356276216709851140435340269726
37 T1 1176594230835116016513016686
37 T1 14281218157709201220295260169282
37 T1 15323254187709301240295260219318
37 T1 16387327236709301245305270219362
37 T1 18518417302709201170335250219470
37 T1 2170595530915114014511016688
37 T1 221008479509301165180146167127
37 T1 23144119113509301185225186167166
37 T1 24226187177609551195250205218251
37 T1 26289239227609551235300250218342
37 T1 285505164433733507010001170340250269559
37 T1 295505505014213947010001180400290269655
37 T1 315251483330925114014512016688
37 T1 3280797653309251165180146166123
37 T1 3311511410566509401185225186167165
37 T1 3417116916898609551210240205218243
37 T1 35203201186137609551230295250218317
37 T1 383483433262277010101170340250269550
Dн 1118 (Dу 1100)
37 T2 1177594230860121016513016686
37 T2 1212010075508751235180150167127
37 T2 13186138109609051240235195168180
37 T2 14281217158709451270295260169290
37 T2 15323254188709551290295260219321
37 T2 16387326239709551295310280219403
37 T2 18518414303709451220335250219472
37 T2 2170595530940119014511016687
37 T2 221008278509551215180146167126
37 T2 23148121114509551235230190167174
37 T2 24227191179609801245250205218256
37 T2 26294243231609801285300250218347
37 T2 285505184453743517010251220340250269557
37 T2 295505505034233957010251230400290269656
37 T2 315251483330950119014512016686
37 T2 3280797652309501215180146166122
37 T2 3311611410667509651235225186167169
37 T2 3417217016898609801260240205218247
37 T2 35204201185139609801280295250218323
37 T2 383493443272287010351220340250269553
37 T2 395505184364084023822937010351230440330269668
37 T2 4134261930950119014512016688
37 T2 42544231309501235180150166131
37 T2 43806247509651235225190167169
37 T2 441168965609801255240205218243
37 T2 4514811585609801275295250218312
37
Dн 1168 (Dу 1150)
37 T3 2170595630965124014511016694
37 T3 221018580509801265180146167138
37 T3 23149121114509801285230190167186
37 T3 242271891796010051295250205218272
37 T3 262932422306010051335300250218369
37 T3 285505194463753527010501270340250269563
37 T3 295505505044243977010501280400290269654
37 T3 315251483330975124014512016694
37 T3 3280797753309751265180146166133
37 T3 3311611510766509901285225186167180
37 T3 34172170169986010051310240205218264
37 T3 352052021861386010051330295250218342
37 T3 485504884574514092852221647010601280400290269661 37 T3 494274163592792187010601295435340269831
1219 (Dу
37 T4 1174564030910131516513016693
37 T4 121229975509251335180150167136
37 T4 13183137108609551345235195168195
37 T4 14281217159709951370295260169310
37 T4 153232541897010051390295265219362
37 T4 163873222407010051395310280219415
37 T4 18518415304709951320335250219530
37 T4 2167555230990129514511016694
37 T4 2210184805010051315180146167139
37 T4 231471211155010051335230190167186
37 T4 242281891796010301345250205218275
37 T4 262932422306010301385300250218373
37 T4 285505214473763537010751320340250269607
37 T4 295505054253987010751330400290269708
37 T4 3152514931301000129514512016692
37 T4 32807977523010001315180146166134
37 T4 33116115107665010151335225186167183
37 T4 34173171169986010301360240205218267
37 T4 352062041881396010301380295255218364
37 T4 383503463292297010851320340250269596
37 T4 395505214384104053852937010851330440330269718
37 T4 41342619301000129514512016694
37 T4 425442323010001335180150166142
37 T4 437860455010151335225190167183
37 T4 4411789666010301355240205218263
37 T4 45148116856010301375295250218337
37 T4 485504904584524102862231657010851330400290269712
37 T4 494274163612802187010851345435340269831



безопасности. Соответ-
ственно, при работе с ними
нужно быть особенно внимательными. Вниматель-
инструкции
заводскаятабличка
кожухсостороны поршневогоштока
смотровоестекло
индикаторперемещения
соединительноеушко



ударный стопор. После сборки всей системы


Ударные стопоры являются
критически важными
компонентами для обеспе-
чения безопасности на
электростанции. Они служат
для защиты трубопроводов
и других компонентов от
динамической перегрузки,
возникающей при внештат-
ных случаях нагружения.
Поскольку такие случаи
происходят неожиданно, ударные стопоры должны
гарантированно и постоянно функционировать и
обеспечивать безопасность.



Процедура
штифты с приварной скобы.
2. Предварительно нагрейте приварную
3.
35
35
35
35
35 59 195.57.08.0
35 69 197.59.511.0
35 79 1910.513.515.5
35 89 1914.518.021.0
35 99 1115.020.023.0
35 09 1314.017.019.0
35 20 1923.0––
Schweißfolge Typ 35
1
в холодное состояние (предваритель-
смещение). Это обеспечивается за счет транспортных скоб, которые фиксируют взаимное расположение верхней и нижней частей демпфера. Если начальное
до места установки в вертикальном положении. Присоединение верхней и нижней соединительных плит к трубопроводу и металлоконструкции должно производиться с надежной затяжкой болтов. Для этого необходимо удалить транспортные


расчеты.
5 Проверка и техническое обслуживание Как

Rohrschellen, Rohrlager, Rohranschlüsse Трубные хомуты,
соединительные
PRODUKT 4 GRUPPE









В высокотемпературных
трубопроводах в трубных
хомутах и хомутовых
опорах возникают самые
большие напряжения и,
следовательно, они явля-
ются наиболее уязвимыми
компонентами в опорной
цепи из-за воздейстия
этих высоких температур.
Однако проверка трубных
хомутов проводится редко, так как доступ к ним после
ввода в эксплуатацию затруднен из-за окружающей хомут изоляции.
Стандартизация
компонентов. Динамические хомуты группы продуктов 3 в принципе также относятся к этой группе. Конструкция как для горизонтальных, так и для вертикальных трубопроводов
определяется следующими параметрами:
диаметры нагрузки
температура среды толщина изоляции Для охвата всего спектра требований
надежных компонентов, LISEGA предлагает полный ассортимент стандартных
случаев применения. В соответствии с особыми требованиями




Эти стандартизированные компоненты являются
модульной системы LISEGA, таким обра-
зом, гарантирована совместимость по нагрузкам и

В связи с тем, что сфера применения компонентов, присоединяемым к трубам, является
конструкция требует особого внимания.
В принципе, опорам трубопроводов должно
уделяться такое же внимание, как и самим трубо
своих
Оптимальное соотношение несущая способность/собственный вес, простые в установке конструкции и совместимость соединений компонентов LISEGA обеспечивает простоту монтажа.
конструирование в соответствии с действующими нормами обеспечивает максимальную эксплуатационную безопасность.
использование
нагрузок LISEGA.
При
1)
2)

36:
Для типа 37:
Пластина из
Для типа 42:
Пластина из
Для типа 43:
стали 37 .. ..-IP
стали 42 .. 09-IP
Пластина из нержавеющей стали 43 .. ..-IP
Для типа 44:
Пластина из
Для типа 45:
Пластина из
Для типа 46/48:
Пластина из
Для типа 49 .. 11/12:


стали 44 .. ..-IP
стали 45 .. ..-IP
стали 46/48 .. ..-IP
Пластина из нержавеющей стали 49 .. .. -IP
Для типа 49 .. 13/14/25/35/45/55:
Пластина из нержавеющей стали 2x 42 .. 09-IP
Примеры: для
типа 44 27 13
типа 44 27 13-IP.
хомутовой опоры типа 49 11 25 2 x прокладка типа 42 11 09-IP.
Толщина материала: 0.5мм

4
Пример для типа 43:
77 09 39 для хомутов 43 01 19 – 43 09 59
77 17 39 для хомутов 43 10 19 – 43 17 59
77 19 39
Пример для
43 19 19 – 43 19 59
44: 77 66 38 для типа 44 66 38 Необходимо
(тип 60). 5

00 08b=8042 00 20b=200
00 09b=9042 00 22b=220
00 10b=100
Применение стандартных
компонентов в области
опор трубопроводов давно
доказало свою эффектив-
ность, принося огромную
экономию времени и
затрат, связанных с про-
ектированием, доставкой
и установкой. В частности, это относится к трубным
хомутам и хомутовым опорам.
Однако чрезвычайно ши-
рокий диапазон примене-
ния этих компонентов, обусловленный сложностью трубопроводов, в особых случаях требует исполь-
зования специальных конструкций. Для принятия технически грамотного
чить наилучшее решение. Среди прочего, специальные конструкции наиболее часто требуются для следующих специальных

опоры, выполненные на заказ
исключительно высокие требования


и размещения точного заказа.
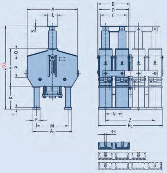
2 Геометрические параметры соединений совместимы с геометрическими параметрами соединительных компонентов LISEGA. Вследствие широты возникающих на практике нагрузок предусмотрена возможность присоединять компоненты для нескольких групп нагрузок LISEGA. Размеры и форма конструкции, приведенные в таблицах выбора,
3 Проушины сконструированы так, чтобы точки крепления
4 Все трубные хомуты и хомутовые опоры могут
LISEGA можно проверить соответствие соединения требуемому для нагрузочной цепи.
5.8
6
5
5.1 Определение страницы, соответствующей наружному диаметру (Dн) трубопровода, который необходимо закрепить. Учтены стандартные допуски на изготовление труб.
5.2 Определение подходящего диапазона температур в колонке для
5.3
:
Значения высот (размеры H) и длин (размеры А) являются стандартными
распространенные случаи применения. В случае необходимости
7 Трубные хомуты и хомутовые опоры могут поставляться в специальном
8 При разработке и конструировании трубных хомутов и хомутовых опор LISEGA также учи
111.91.41.01225506004.4C-4
45 01 319.07.66.55.64.94.02.61.31225703004.2C-4
45 01 316.65.64.84.13.63.01.91.01225704005.3C-4
45 01 315.24.43.83.32.82.31.50.81225705006.4C-4
45 01 314.33.73.12.72.31.91.20.61225706007.5C-4
45 01 418.77.87.36.44.94.33.22.01.51.11225703004.2C-4
45 01 416.45.85.44.73.63.22.41.51.10.81225704005.3C-4
45 01 415.04.54.23.72.82.51.91.20.80.61225705006.4C-4
45 01 414.23.73.53.02.32.01.51.00.70.51225706007.5C-4
45 02 319.37.86.75.85.04.12.71.41225703004.2C-4
45 02 316.85.74.94.23.73.02.01.01225704005.3C-4
45 02 315.34.53.83.32.92.41.50.81225705006.4C-4
45 02 314.43.73.22.72.42.01.20.61225706007.5C-4
45 02 418.98.17.56.55.04.43.32.11.51.11225703004.2C-4
45 02 416.55.95.54.83.73.22.41.51.10.81225704005.3C-4
45 02 415.14.64.33.72.92.51.91.20.90.61225705006.4C-4
45 02 414.23.83.53.12.42.11.61.00.70.51225706007.5C-4
03 112.62.21.51225605004.5C-4
45 03 112.21.81.31225606005.3C-4
45 03 319.68.16.96.05.24.32.81.41225703004.2C-4
45 03 3210109.89.39.09.08.97.312259030010.2C-4
45 03 316.95.95.04.33.73.12.01.01225704005.3C-4
45 03 3210109.89.39.09.08.95.312259040013.0C-4
45 03 315.44.63.93.42.92.41.60.81225705006.4C-4
45 03 3210109.89.39.09.08.24.212259050015.8C-4
45 03 314.53.83.22.82.42.01.30.61225706007.5C-4
45 03 3210109.89.39.09.06.83.512259060018.7C-4
45 03 419.38.37.86.85.24.63.52.21.61.21225703004.2C-4
45 03 428.98.78.26.112259030010.2C-4
45 03 416.76.05.64.93.83.32.51.61.10.81225704005.3C-4
45 03 428.98.16.04.512259040013.0C-4
45 03 415.24.74.43.83.02.61.91.20.90.61225705006.4C-4
45 03 429.08.96.44.73.512259050015.8C-4
45 03 414.33.93.63.12.42.11.61.00.70.51225706007.5C-4
45 03 429.08.45.33.92.912259060018.7C-4
45 04 119.07.25.11225703004.3C-4
45 04 116.55.23.71225704005.4C-4
45 04 115.14.02.91225705006.5C-4 45 04 114.13.32.41225706007.6C-4
45 04 395.02.81225703507.2C-D
45 04 3118151311108.45.52.81630703507.21-4
45 04 32242423222221137.1163010035013.41-4
45 04 395.04.12.11225704508.9C-D
45 04 311412108.87.66.34.12.11630704508.91-4
45 04 32242423211916105.4163010045016.51-4
45 04 395.03.31.712257055010.5C-D
45 04 31119.68.27.16.15.13.31.716307055010.51-4
45 04 322423201715138.54.3163010055019.71-4
45 04 395.04.32.81.412257065012.2C-D
45 04 319.58.06.95.95.14.32.81.416307065012.21-4
45 04 322319171413107.13.6163010065022.81-4
45 04 419.99.06.84.33.22.41225703507.0C-4
45 04 42222217108.16.0163010035013.41-4
45 04 4110107.76.85.13.22.41.81225704508.6C-4
45 04 4223221917138.36.14.6163010045016.51-4
45 04 41109.99.28.06.25.44.12.61.91.412257055010.3C-4
45 04 42242422191513106.64.93.7163010055019.71-4
45 04 419.18.37.76.75.24.53.42.21.61.212257065011.9C-4
45 04 422220191613118.85.54.13.1163010065022.81-4
05 114.93.72.71225806008.7C-4
45 05 395.03.31225803508.3C-D
45 05 3122181613129.96.53.31630803508.31-4
45 05 32242423222222178.9163012035016.11-4
45 05 395.04.92.512258045010.1C-D
45 05 31161412109.07.54.92.516308045010.11-4
45 05 32242423222219136.7163012045019.91-4
45 05 395.03.92.012258055012.0C-D
45 05 3113119.68.37.26.03.92.016308055012.01-4
45 05 32242423211916105.3163012055023.61-4
45 05 395.04.93.21.612258065013.9C-D
45 05 31119.38.06.96.04.93.21.616308065013.91-4
45 05 322424201716138.74.4163012065027.41-4
45 05 419.88.05.03.72.81225803508.0C-4
45 05 42222113107.5163012035016.11-4
45 05 41109.18.06.03.82.82.11225804509.9C-4
45 05 42222116107.55.6163012045019.91-4
45 05 4111109.47.26.44.83.02.21.712258055011.7C-4
45 05 4223221917128.26.04.5163012055023.61-4
45 05 41109.68.97.86.05.34.02.51.81.412258065013.6C-4
45 05 422423201614106.85.03.7163012065027.41-4
45 06 1213107.416308050011.21-4
45 06 114.13.12.21225706007.7C-4
45 06 12118.56.116308060013.11-4
45 06 395.03.7122510040011.6C-D
45 06 312420171513117.43.7163010040011.61-4
45 06 32242423222222158.0163012040018.11-4
45 06 395.02.9122510050013.9C-D
45 06 3118161311108.65.62.9163010050013.91-4
45 06 32242423222218126.2163012050021.91-4
45 06 395.04.52.3122510060016.3C-D
45 06 311513119.68.47.04.52.3163010060016.31-4
45 06 322424232018159.85.0163012060025.71-4
45 06 395.03.81.9122510070018.6C-D
45 06 3112119.48.17.15.93.81.9163010070018.61-4
45 06 322422191715128.24.2163012070029.41-4
45 06 419.89.15.74.23.2122510040011.2C-4
45 06 422219129.06.7163012040018.11-4
45 06 419.99.27.04.43.22.4122510050013.6C-4
45 06 422219149.47.05.2163012050021.91-4
45 06 4110108.57.55.63.52.62.0122510060015.9C-4
45 06 4223221816127.65.64.2163012060025.71-4
45 06 4111109.27.16.34.73.02.21.6122510070018.3C-4
45 06 42242321191513106.44.73.5163012070029.41-4
45
45 08 11118.36.01630705009.91-4
45 08 1217129.1163010050014.11-4
45 08 195.04.712257060011.6C-D
45 08 119.06.64.716307060011.61-4 45 08 1213107.3163010060016.41-4
45
4.
43 19 182.52.52.512270504.7C
1124191421450950151529801026C
4. 19 12383122254609502018419013333-5
4. 19 21252523162146010001517391001232C-
4. 19 22424140372625460100030245111016423
4. 19 311515116.02155011502519411101532C
4. 19 322825191025550115030275411019423
4. 19 33464342403935261325550115040346413024523
4. 19 34918381787064482541550115050489816037794
4. 19 41108.05.92155011502520421151737C
4. 19 4217131025550115030285813021503
4. 19 4324181325550115040367714026613
4. 19 446058463424415501150505310816039894
4.
4. 24 34122117113109968666354655013506072156180511245
4. 24 4337362720415501350505312316036984
4. 24 44646146344655013506077178190541425
4. 36 2235332434660140040589914035794
4. 36 2380777671494177014004084144155601175-7
4. 36 241009695 88 625179014004595166160681316
4. 36 312524181025700150040529113532743
4. 36 3232322513347001500506311716040904-6
4. 36 3374676046244171015006089158180601254-7
4. 36 34134129125120112102794146720150060118226205821735
4. 36 3519518618017416714911561517901500701762872301042186-9
4. 36 41181310257001500405610315537863
4. 36 422519143470015005068129170461064
4. 36 4343322341800150060104183190691414-7
4. 36 4473725440468001500601362522401021965
4. 36 451391381078058518001500701863352451192566
34137129125121112102794146740150060124229220851775
37 41181310257501500405910415539863
4. 37 422519133475015005072131170491064
4. 37 4343322341750150060100180190671424
4. 37 447972544046750150060135255240981975
41 125949405144092266
4.411144362634780140030609515543874
4. 41 127555434178014004073131160561115
4. 41 13109856746780140055109150175731326
4. 41 2129282025780150040599514540853
4. 41 224139283478015004077123150491024
4. 41 23959190845841820150050109185180791495
4. 41 241181141121047346820150060121213180851726
4. 41 3130282112258001600457011616044993
4. 41 32474435204180016005098163180641324
4. 41 33837871552946800160070120205200801595
4. 41 34141129125121112100774146800160070148250220972035
4. 41 3523623222521019317413471518701600802213752601492866
4. 41 412116112580016004576135175511143
4. 41 4236272041800160050107188205731534
4. 41 4351382746800160070131234225851875
4. 41 4477725440468001600701642902251062325
4. 41 451421411259469519001600802474222651593226
42 241171141131047346830150060125214180871736
4. 42 4236272041800160050106185205731544
42 4350382846800160070134237225861875
4. 42 4477725440469001600701752932251162245
Трубные хомуты, хомутовые
4.4611453626347701450357111215047974
4. 46 126046354182014504076125155591095
4. 46 13120927346850145050131173170861436
4. 46 141511128951850145060138214185861566
4. 46 213634243480016004581131160501074
4. 46 2259554041800160050103170170691415
4. 46 2313913313211985469301600551602621851132106
4. 46 2415615215013898519301600551722982001232327
4. 46 315046352041900170050117184180751474-7
4. 46 325853422246900170050132206190811585
4. 46 331231121017841469001700601842872251162245
4. 46 3427525224423622720315683519301700702984562451753316-9
4. 46 3529828527626725723318194619801700853335132502043667-10
4. 46 4136272041900170050128211195861714-7
4. 46 4241312246900170050142242210921855-8
4. 46 43725440469001700601973262351252545
4. 46 44157145109805110001700703185282952053876
4. 46 45201199163123906110001700853575772952284167-
51 2142402934920165050104153170671304
4. 51 2260554041920165060122192180771515
4. 51 23136130129117834610001650601822952001292316
4. 51 241681621601471036110501650602353352201482597
51 3145453520411000180060139208200851624
4. 51 3259544223461000180070154234200971815
51 34268250242234227205158845110301800803245122651993756
51 41362720411000180060151238210971884
56 17101846761530162607
4.56114434253482015504084130170611174
4. 56 1267523941880155050111162185761285
4. 56 131319877519201550601642271951011776-9
4. 56 14202155123519301550652062832051182377
4. 56 2143413034960170055117171180741404
4. 56 2257554041960170060137203190831595
4. 56 23133131118865111001700652333232051472476
4. 56 242082001941821285111001700652824052401823067
4. 56 31535341224111001900601682542001071914-7
4. 56 32717054304611001900602043242301302355
4. 56 33959070404611001900702393602401482715
4. 56 34276252245237227205158835111001900903685632702244226
4. 56 3540236435234334030623612661118019001005067463203215537-10
4. 56 414029214111001900601862892251222244-7
4. 56 425440304611001900602293482201402655
4. 56 437254404611001900702664192601713185
4. 56 44172145109805111001900904116542852464706
4. 56 4523121716312061120019001005678603603596237
4. 61 242452362332171526111101800703815402652313978
4. 61 31555341224112002000601912662201252174
4. 61 32939070404612002000702743982351722995
4. 61 3312712396534612002000903244692802023475
4. 61 34263247239231220198152805112102000904176132852644676
4. 61 3539836134934033730623512561124020001105658203253576097
61 3649447245844241937528815671126020001106779623604337188
4. 61 413930224112002000602113162301352424
4. 61 427154404612002000703024632751973505
4. 61 439672534612002000903655412802334095
4. 61 44141106785113002000904867082952985156
66 1558473651610113486
4. 66 152571961556110501650703033952351853038
4. 66 216663454111201900651882672201332374-7
4. 66 22118111805112501900652943902451913126
4. 66 231951921761255112501900703564912602323857
4. 66 242562462432231586112801900804085912702814538
4. 66 31616047254112502050652283312251502604
4. 66 32919070404612502050653014292451903285
4. 66 33155139107574612502050903645272902334015-8
4. 66 34273250242234225202155825112502050904676663052965046-9
4. 66 3539936235034033730823712561132020501006218853153916437-10
4. 66 36488474460439421378291155711320205011073510443554677598
4. 66 414533244112502050652433642351682954-7
4. 66 427254404612502050653324912852213865-8
4. 66 4310074544612502050904015882952634615-8
4. 66 44146110805112502050905107693153345626-9
4. 66 45262218164120611350205010069810113504337267-10
4. 66 46329321272204150711350205011082711983605188348-30
71 31636046274113002100702563642351632784
4. 71 32949070404613002100703334592502033425
4. 71 331801751581216451130021001004476382852684416
4. 71 342732502422342252021558251131021001005197193053135246
4. 71 3539936235034033730723612561139021001006819493354326767
4. 71 36533488473457440394303162711450210013084911463455227808
Трубные хомуты, хомутовые
4.76117457434111201750451862312151452185
4. 76 1212092734611201750552323002151612576
4. 76 131831371085111501750652973642451873147
4. 76 142361821445111501750803594462602163437
4. 76 153082371886111501750904515092552563948-10
4. 76 217469504614002200702703782501903165-8
4. 76 22117111805114002200703695002502424036
4. 76 232062011901325114202200804746833003165167-9
4. 76 243012892852621846114902200906027753003966218-10
4. 76 31716953304115002300803244502602103424-7
4. 76 32949070404615002300803935312702544025-8
4. 76 331491401096051150023001005126973103135026-9
4. 76 342372252021558351150023001005978113303866166
4. 76 35397365352343340306236125611500230011080210843604957967-10
4. 76 3660355253551750646135418871158023001401146144340069510238-30
4. 76 415441304115002300803594952752433934-7
4. 76 427254404615002300804276052852864695-8
4. 76 43108826051150023001005717983353615906
4. 76 441451098051150023001006679373404377066-9
4. 76 45253219163120611500230011088012313655388817-10
4. 76 4638538232624617971160023001401187161343075111528
4. 81 217470504615002300802964192502093385
4. 81 22117111805115002300804055452502714386
4. 81 232262192071456115602300905867623203865977
4. 81 2433231931528920471156023001007509713204497178
4. 81 31818062344616002400903965202802613985
4. 81 3210410280464616002400904666353002954615
4. 81 331491401096051160024001005637553303435376
4. 81 342282201981528151160024001106659033504206546
4. 81 35400363351341338306236125611600240012088111663705408547
4. 81 3666260658756855650238620771160024001501341177141577311538
4. 81 416045344616002400904335982952824475
4. 81 428262464616002400905237093003355325
44 86 15 88 705951735162866
4.86119070554612301850452382862151762965
4. 86 12135101805112301850602843522401983106
4. 86 132021561246112501850703774582552353767
4. 86 142732081656112501850905085722452604378
4. 86 1531924819671125018501005636412652834669
4. 86 217370504615502350803364512502253665
4. 86 22116110805115502350804435922502954696
4. 86 232262181811466115502350905958073203765967
4. 86 24331318314262204711550235010076910133204697458
4. 86 31838062344616502450903955302802704175
4. 86 3210110080464616502450904766433003174905
4. 86 331531401096051165024501005587463303715766
4. 86 342242181971528051165024501106789143504506956
4. 86 35397361349340337306235124611650245012089612183705809037
4. 86 3666160558656755550438820671165024501501354180041578612148
4. 86 416045344616502450904616292953034775
4. 86 428161464616502450905567493003515565-8
4. 86 43106806051165024501006458843404226656
4. 86 4414310880511650245011076910423504867706
4. 86 45212211162120611650245012097713443706259967
4. 86 4637335927220071165024501501398192346587213758
91 2321520819714061160024001006668613004146397
4. 91 24317305301275200711600240010086211053254827568
4. 91 25387371367332240711600240011093012783455628769
4. 91 319190704046170025001005006453003144795
4. 91 321401391096046170025001106368283303905945
4. 91 3320318514580511700250011077110213504697186
4. 91 3444442441039939536027714761170025001301152150038569110357
4. 91 3568063061059057651839821471176025001301532194545591312918
4. 91 3668068068068067660846825271178025001601750211644099814479
4. 91 4172544046170025001005477373003425375
1614911987617852031307
44 97 461078361619002763077-10
44 97 4714310678719002763498-30
4. 97 132161601276114002000704375463153044507
4. 97 1538328722771140020001007458253304066029
4. 97 16492370293811400200010086399537045569010
4. 97 218380604616502450804175543053124425-8
4. 97 22118114855116502450905236963453515466- 9
4. 97 232081811436116502450100703 888 3754386707-10
4. 97 24304295250200711650245010085811144055408318-30
4. 97 2543542741934528071165024501101037139945067010199
4. 97 26575556542441360811700245011012441647460813120310
4. 97 319089704046175025501005116593303365095-8
4. 97 321391391096046175025501106398423454296475-8
4. 97 3320118514580511750255011076410023955197776- 9
4. 97 3438338035927614761175025501301174153943076110977-10
4. 97 35680626606586574520400213711770255013015562000465102213778-30
4. 97 36680680680680673612471250711770255016018052257485106015429-30
4. 97 377607607427156896845703108117702550160189725065201164173310-40
4. 97 4171534046175025501005867773003735895-8
4. 97 42106806046175025501107469903454717275-8
4. 97 4314010680511750255011087511663705528586- 9
4. 97 4425218914061175025501301249167944581512497-10
4. 97 4538536827020071175025501301599215244597015008-30
4. 97 46472422318239711750255016018072433490112117349-30
4. 97 47586581557419310711780255016021662914490129019669-30
4. T0 218681604618002600804626193053385315
4. T0 22119114845118002600905837583453885886
4. T0 23208181141611800260010078210023754877437
4. T0 243032532007118002600100101612324056049038
4. T0 2543642736028571180026001101176153745079811239
4. T0 26562541512416390811820260011013381730460865122210
4. T0 319190704046190027001005617283303915675
4. T0 321411401096046190027001107109163454746995
4. T0 3318818514580511900270011085211073955778506
4. T0 3438835927614761190027001301338165543080211927
4. T0 35680627608588574520400213711900270013016882156465109714928
4. T0 36680680680680676611470250711900270016019112444485114316799
4. T0 377607607607607607425813108119802700160214027365201370188910
4. T0 4171534046190027001006638543004256335
4. T0 421078060461900270011082810823455227945
44 T1 14927361518351621046
44 T1 1515111887618352031447-
44 T1 16208172125718752221958
44
4.T1119772574615002250503364172953124235
4. T1 12134102815116402250604074983003454936-
4. T1 132131591266116502250705276463153745527-10
4. T1 143172341866116502250907028653304366638-
4. T1 15464353280711650225010093511393305658009-
4. T1 1659545836481165022501001124130037063590010-40
4. T1 218481604618502650805046423053655605-8
4. T1 22118114845118502650906277903454046076-9
4. T1 23208182140611850265010083210663755077677-10
4. T1 242952562007118502650100103412904056319308-30
4. T1 2543542236428671185026501101251162445078911649-30
4. T1 26594544508413390811870265011014241824460903126510-40
4. T1 319390704046195027501006037633304076025-8
4. T1 321411401096046195027501107579693454937215-8
4. T1 3318818514580511950275011090411643955998766-9
4. T1 3438835927714761195027501301417172243083612357-10
4. T1 35680627608588574520400213711950275013018652256465112115438-30
4. T1 36680680680680676614473250711950275016020262557485119017359-30
4. T1 377607607607607607415803108119502750160226528595201387196910-40
4. T1 4171544046195027501007088963004416705-8
4. T1 421078160461950275011087311383455468385-8
4. T1 43147108805119502750110105213723706459646-9
4. T1 4425318914061195027501301481192644594313987-10
4. T1 45358356270200711950275013018772462445112616888-30
4. T1 46479431324240711950275016021392842490129918769-30
4. T1 475825805704193108119502750160260133574901490221610-40
4. T2 219081604619002700805326773054156375
4. T2 22119116855119002700906648333454966676
4. T2 23208178142611900270010086911183755468177
4. T2 243002522007119002700100109713554056799928
4. T2 2543542936628571190027001101385171345084312389
4. T2 26539524508419390811970270011015451965460983133510
4. T2 319290704046200028001006428073304366615
4. T2 3214114010960462000280011080610203455367745
4. T2 3318618514480512000280011095812263956068946
4. T2 3438936027714661200028001301491180943089313007
4. T2 35680629610590576518399213712030280013019632377465115916348
4. T2 36680680680680673612471250712030280016021342691485128018289
4. T2 377607607607607607415803108120302800160238230005201482211110
T2 421078060462000280011092611873456008905
44 T3 14957563518851621136-
44 T3 1515211687618852031567-10
44 T3 16208168125719252222118
44 T3 283022372218198527636510-
44 T3 293803803462742568198528341910-
44 T3 36146144140837110052253088-
44 T3 37188185170917110052703488-30
44 T3 382001971921067110052764039-30
44 T3 392312312251567110202865399-30
44 T3 4610783616110052763547-10
44 T3 47144106797110052764028-30 44 T3 483403403343293011981481097110052985329-
4.T3119572574616302350503894822953734935
4. T3 12135101805116502350604595773003915886-9
4. T3 132131591266117202350705987303154946587-10
4. T3 143182341866117202350907619693305317568
4. T3 154713552827117502350100105012713306398919
4. T3 16592460365811750235010012631443370714102910-40
4. T3 218780604619502750805657073054286515-8
4. T3 22124116855119502750907048763455116936-9
4. T3 23209179143611950275010090711713756078797-10
4. T3 2430125220171195027501001160142240570410218-30
4. T3 2543442236628571195027501101424179545087812749-30
4. T3 26580531514421390812060275011016372060460983138010-40
4. T3 319390704046205028501006788493304536755-8
4. T3 3214113910760462050285011085910703455557975-8
4. T3 33184183145805120502850110101312873956329266-9
4. T3 3439839435727514761205028501301576190443092813437-10
4. T3 35665617602589576522402213712050285013021192497465116716888-30
4. T3 36680680680680673608468250712100285016022642798485133918859-30
4. T3 377607607607607597425803108121002850160252432095201548218010-40
4. T3 4171544046205028501007989923005127415-8
4. T3 421068060462050285011099512573456219165-8
4. T3 431471088051205028501101188150837071610546-9
4. T3 44258189140612050285013016622131445100514767-10
4. T3 45410367271200712050285013021042700445124918388-30
4. T3 46480424319240712120285016024713158490141720449-30
4. T3 475885835714203098121202850160294136844901672239910-40
4. T4 23208179141612000280010097612303756299117
4. T4 2429725220071200028001001216150440573410578
4. T4 2543542736728571203028001101521189245092313179
4. T4 265805405054103908121202800110172521564601026142510
4. T4 319290704046210029001007268963304736905
4. T4 3214114010960462100290011091111163455808175
4. T4 33189185144805121002900110107313483956549526
4. T4 3439639236027714661210029001301651199243096714157
4. T4 35656609594581574522402213712170290013021992587465124117338
4. T4 36680680680680675613472250712180290016024092915485140219429
T4 377607607607597517415803108121802900160270133835201571223810
T4 41715440462100290010084610493005337615
48 42 551371251109683735114423090016001292556
48 42 561961861651441251096114423090016001783497
48 71 5156494338332941224230130021001682804
48 71 5277726456484246224230130021002013335
48 71 531271129987756651224280130021002474166
48 71 54154141125109958351224310140021002924716
48 71 5522821819417014712961224335140021003836407
48 71 5631628225021818916671224355145021004957598
48 71 57469427379330286251712243551450210060010169
5161544842363241250260150023002143454
54144143127110968451250340150023003445586
76 57507485430375325285712504101600230079812149
T0 563293272882522171808199036532093010
44 T0 57422419385338290240911000370320115120
48 T0 51100897968595246330300180026003885915
48 T0 52155137121106928046330330180026004707105
48 T0 531711591411241079451330350180026005077696-9
48 T0 54301280248216187164613303851800260073011007-
48 T0 55426410363319276242713304701900260098014058-30
48 T0 565104864313763262867133045019002600109015609-
48 T0 5776673565257049443381330450190026001380198710-
T1 51757464564840519502953203336
48 T1 5199877768595146330300185026504046055
48 T1 52151139123107938146330330185026504937425

40 01 .821.33070M6x65110.05
40 02 .826.93570M6x65130.05
40 03 .833.74070M6x65170.05
40 04 .842.45375M10x65210.15
40 05 .848.36075M10x65240.16
40 06 .860.37285M10x70300.18
40 07 .873.08795M12x75370.30
40 08 .876.19195M12x75380.31
40 09 .888.9103100M12x75440.32
40 10 .8108.0123115M12x75540.36
40 11 .8114.3130115M12x75570.37
40 14 .8139.7155130M12x75700.42
40 17 .8168.3188155M16x95840.91
40 22 .8219.1238180M16x951101.08
40 27 .8273.0295215M20x1101372.07
40 32 .8323.9350245M20x1101622.35
40 36 .8355.6381260M20x1101782.55
40 41 .8406.4432285M20x1102032.80
40 46 .8457.2485320M24x1252294.55
40 51 .8508.0537345M24x1252544.90
40 56 .8558.8587370M24x1252795.35
40 61 .8609.6638395M24x1253055.70
40 66 .8660.4689425M24x1253306.15
40 71 .8711.2740450M24x1253566.50
40 76 .8762.0790475M24x1253816.90
40 81 .8812.8843501M24x1254067.30
40 86 .8864.0895526M24x1254327.70
40 91 .8914.4943550M24x1254578.00


Приварные
Smax = 10мм
41 06 13353.00.13
41 07 13303.00.13
41 08 13353.00.13
41 09 13303.00.13
41 09 14353.00.24
41 10 13303.00.13
41 10 14353.00.25
41 11 13303.00.14
41 11 14353.00.25
41 13 13253.00.14
41 13 14303.00.25
41 14 13253.00.14
41 14 14404.50.62
41 16 13253.00.14
41 16 14404.50.62
41 17 13253.00.25
41 17 14405.50.87
41 19 13203.00.25
41 19 14355.50.88
41 22 13203.00.25
41 22 14355.50.90
41 24 13153.00.25
41 24 14305.50.90
41 26 13103.00.25
41 26 14255.50.90
41 27 13153.00.26
41 27 14255.50.90
41 32 13154.50.62
41 32 14256.51.40
41 36 13-104.50.62
41 36 1456.51.50
41 37 1304.50.62
41 37 14156.51.50
41 41 13-154.50.65
41 41 14-56.51.50
41 42 13-104.50.65
41 42 1456.51.50
41 46 13-205.50.90
41 46 1406.53.40
41 51 13-305.50.90
41 51 14-106.53.40
41 56 13-405.50.90
41 56 14-206.53.40
41 61 13-455.50.90
41 61 14-306.53.40
41 66 13-555.50.90
41 66 14-356.53.40
41 71 13-655.50.90
41 71 14-456.53.40
41 76 13-755.50.90
41 76 14-556.53.40 S
41 06 151353.00.44
41 07 151353.00.44
41 08 151353.00.44
41 09 151353.00.44
41 09 161404.50.75
41 10 151353.00.44
41 10 161404.50.75
41 11 151353.00.45
41 11 161404.50.75
41 13 151353.00.46
41 13 161404.50.77
41 14 151353.00.47
41 14 161454.51.60
41 16 151353.00.47
41 16 161454.51.70
41 17 151404.50.78
41 17 161505.52.30
41 19 151354.50.78
41 19 161455.52.30
41 22 151354.50.80
41 22 161455.52.30
41 24 151304.50.80
41 24 161455.52.40
41 26 151254.50.80
41 26 161405.52.40
41 27 151304.50.80
41 27 161455.52.40
41 32 151304.51.70
41 32 161456.53.70
41 36 151154.51.70
41 36 161256.53.70
41 37 151204.51.80
41 37 161306.53.70
41 41 151054.51.80
41 41 161156.53.70
41 42 151154.51.80
41 42 161256.53.80
41 46 151005.52.40
41 46 161206.57.10
41 51 15955.52.50
41 51 161106.57.10
41 56 15855.52.50
41 56 161056.57.10
41 61 15805.52.50
41 61 16956.57.10
41 66 15705.52.50
41 66 16856.57.10
41 71 15605.52.50
41 71 16806.57.20
41 76 15505.52.50
41 76 16706.57.20 группа
60.3C-22217.5 8 12.5
73.0C-22217.5 8 12.5
76.1C-22217.5 8 12.5
88.9C-22217.5 8 12.5 88.92-32822.51016.5 108.0C-22217.5 8 12.5 108.02-32822.51016.5
114.3C-22217.5 8 12.5 114.32-32822.51016.5 133.0C-22217.5 8 12.5 133.02-32822.51016.5 139.7C-22217.5 8 12.5
139.73-43730.01520.5 159.0C-22217.5 8 12.5 159.03-43730.01520.5 168.32-32822.51016.5 168.34-54032.51824.5 193.72-32822.51016.5 193.74-54032.51824.5 219.12-32822.51016.5 219.14-54032.51824.5 244.52-32822.51016.5 244.54-54032.51824.5 267.02-32822.51016.5 267.04-54032.51824.5 273.02-32822.51016.5 273.04-54032.51824.5 323.93-43730.01520.5 323.95-65040.02034.0 355.63-43730.01520.5 355.65-65040.02034.0 368.03-43730.01520.5 368.05-65040.02034.0 406.43-43730.01520.5 406.45-65040.02034.0 419.03-43730.01520.5 419.05-65040.02034.0 457.24-54032.51824.5 457.26-76550.02541.0 508.04-54032.51824.5 508.06-76550.02541.0 558.84-54032.51824.5 558.86-76550.02541.0 609.64-54032.51824.5 609.66-76550.02541.0 660.44-54032.51824.5 660.46-76550.02541.0 711.24-54032.51824.5 711.26-76550.02541.0 762.04-54032.51824.5 762.06-76550.02541.0
быть удвоена.
Данные заказа: соединительная пластина
77 .. 39
Соединительные пластины для объединения
трубных хомутов типа 44
до 600°C
типы с 77 22 .. до 77 T4 ..
Обозначение типа соединительных пластин: цифры 44
в обозначении типа объединяемых хомутов необходимо
заменить цифрами 77.
Пример: соединительная пластина
типа 44 66 38 77 66 38.
49 00 0249 16 14 до 49 32 145532351712124.00.3
49
49
49
49 00 0349 36 13 до 49 51 458045552215255.00.7
49 00 0449 56 13 до 49 91 4511050802220507.01.5
49 00 0549 97 13 до 49 T4 4511550852225608.01.9

1
2
Тип
ры, используются разные конструкции. При этом необходимо



Rollenlager, Rohrsättel und kälteisolierte Rohrlager
PRODUKT 5 GRUPPE








Трубопроводы, проло-
женные горизонтально
на большие расстояния,
фиксируются с помощью
подвижных и неподвижных
опор. Чтобы трение при
перемещении, вызванном
температурным расшире-
нием, было небольшим,
опорные узлы конструи-
руются в виде роликовых
или скользящих опор.
Оптимальным решением
для трубопроводов с
большими диаметрами и, особенно, подвержен-
ным высоким нагрузкам, вызванным массой жидкой среды и весом изоляции, являются катковые


и качество производства обеспечивают следующие преимущества
при использовании:
поддержание минимального сопротивления качению (макс. 4%)
фактическое восприятие поперечной на-
грузки катковыми опорами с двухконусным
и двумя цилиндрическими роликами (35%
от нагрузки на опору)
вся нагрузка на опору может восприниматься одним роликом в катковой опоре с двумя цилиндрическими роликами восприятие
точ-
размеров и достаточную затяжку хомутов. Ограничители отрыва При установке ограничителей отрыва необходимо
седловидные опоры улучшают
роликом
от 52 04 19 до 52 35 19
Поверхность: горячеоцинкованная
типы от 52 04 29 до 52 35 29

Приварные седловидные
опоры
типы от 54 06 19 до 54 81 19
Материал:
лист s ≤ 15мм: S235JR
лист s ≥ 20мм: S355J2
Поверхность:

сварке
Данные заказа:
54 .. 19
Седловидные опоры с
хомутами
типы от 54 06 29 до 54 81 29
Поверхность:
горячеоцинкованная
54 61 1965609.6375 – 4655.01212–21
54 71 19100711.2430 – 5206.01516–26
54 81 19120812.8480 – 5706.02019–33
54 ..
54 06 291.460.380 – 1804032.5–4.8








контроля качества LISEGA применяется как при производстве,







Приварные башмаки, изготовленные из Т/U-образных профилей, типы 57 .. 11 и 57 .. 12
Для использования при небольших нагрузках и температурах ≤ 80°C
Материал: S235JR
Поверхность: не препятствующая сварке грунтовка
Обозначение типа:
57 .. 11 (T-образный башмак) 57 .. 12 (U-образный башмак)
57 .. 1.
58 05 .148.333.7 x 4.5 a 3.0242501000
58 06 .160.333.7 x 4.5 a 3.0302501000
58 06 .260.348.3 x 5.0 b 3.0302501100
58 07 .173.033.7 x 4.5 a 3.0372501000
58 07 .273.048.3 x 5.0 b 3.0372501100
58 08 .176.133.7 x 4.5 a 3.0382501000
58 08 .276.148.3 x 5.0 b 3.0382501100
58 09 .188.933.7 x 4.5 a 3.0442501000
58 09 .288.948.3 x 5.0 b 3.0442501100
58 10 .1108.048.3 x 5.0 b 3.0543001150
58 10 .2108.073.0 x 7.0 c 3.0543001150
58 11 .1114.348.3 x 5.0 b 3.0573001150
58 11 .2114.373.0 x 7.0 c 3.0573001150
58 13 .1133.048.3x5.0 b 3.0673001150
58 13 .2133.073.0 x 7.0 c 3.0673001150
58 14 .1139.773.0x7.0 c 3.0703001150
58 14 .2139.788.9 x 5.6 d 3.0703001150
58 16 .1159.073.0x7.0 c 3.0803001150
58 16 .2159.088.9 x 5.6 d 3.0803001150
58 17 .1168.373.0 x 7.0 c 3.0843001150
58 17 .2168.388.9x5.6 d 3.0843001150
58 19 .1193.788.9 x 5.6 d 3.0973501150
58 19 .2193.7114.3 x 8.8 e 5.0973501150
58 22 .1219.188.9 x 5.6 d 3.01103501200
58 22 .2219.1114.3 x 8.8 e 5.01103501200
58 24 .1244.588.9 x 5.6 d 3.01223501200
58 24 .2244.5114.3 x 8.8 e 5.01223501200
58 26 .1267.0114.3x8.8 e 5.01343501200
58 26 .2267.0139.7 x 10 f 7.01343501200
58 27 .1273.0114.3 x 8.8 e 5.01373501200
58 27 .2273.0139.7 x 10 f 7.01373501200
58 32 .1323.9139.7 x 10 f 7.01624001250
58 32 .2323.9219.1 x 8.0 g 5.01624001250
58 36 .1355.6139.7 x 10 f 7.01784001250
58 36 .2355.6219.1 x 8.0 g 5.01784001250
58 37 .1368.0139.7x10 f 7.01844001250
58 37 .2368.0219.1 x 8.0 g 5.01844001250
58 41 .1406.4139.7 x 10 f 7.02034501300
58 41 .2406.4219.1 x 8.0 g 5.02034501300
58 42 .1419.0139.7 x 10 f 7.02104501300
58 42 .2419.0219.1 x 8.0 g 5.02104501300
58 46 .1457.2219.1 x 8.0 g 5.02295001300
58 46 .2457.2323.9 x 10 h 7.02295001300
58 51 .1508.0219.1 x 8.0 g 5.02545001350
58 51 .2508.0323.9 x 10 h 7.02545001350
58 56 .1558.8219.1x8.0 g 5.02795501350
58 56 .2558.8323.9 x 10 h 7.02795501350
58 61 .1609.6323.9 x 10 h 7.03055501400
58 66 .1660.4323.9 x 10 h 7.03306001400
58 71 .1711.2323.9 x 10 h 7.03566001450
58 76 .1762.0323.9 x 10 h 7.03816501450
58 81 .1812.8323.9
13 .3133.048.3x5.0
14 .3139.773.0x7.0
14 .4139.788.9 x
16 .3159.073.0x7.0 c 3.0253001100 58 16 .4159.088.9 x 5.6 d 3.0253001100
58 17 .3168.373.0 x 7.0 c 3.0303001100 58 17 .4168.388.9x5.6 d 3.0303001100 58 19 .3193.788.9 x 5.6 d 3.0303001100 58 19 .4193.7114.3 x 8.8 e 5.0303001100 58 22 .3219.188.9 x 5.6 d 3.0353001100
58 22 .4219.1114.3 x 8.8 e 5.0353001100
58 24 .3244.588.9 x 5.6 d 3.0353001100
58 24 .4244.5114.3 x 8.8 e 5.0353001100
58 26 .3267.0114.3x8.8 e 5.0403001100
58 26 .4267.0139.7 x 10 f 7.0403001100
58 27 .3273.0114.3 x 8.8 e 5.0453501100 58 27 .4273.0139.7 x
32 .4323.9219.1 x 8.0
5.0503501100 58 36 .3355.6139.7 x 10 f 7.0403501100 58 36 .4355.6219.1 x 8.0 g 5.0403501100 58 37 .3368.0139.7x10 f 7.0453501100 58 37 .4368.0219.1
46 .4457.2323.9
58 05 .548.333.7 x 4.5 a 3.002001000
58 06 .560.333.7 x 4.5 a 3.002501000
58 06 .660.348.3 x 5.0 b 3.002501050
58 07 .573.033.7 x 4.5 a 3.052501000
58 07 .673.048.3 x 5.0 b 3.052501050
58 08 .576.133.7 x 4.5 a 3.002501000
58 08 .676.148.3 x 5.0 b 3.002501050
58 09 .588.933.7 x 4.5 a 3.052501000
58 09 .688.948.3 x 5.0 b 3.052501050
58 10 .5108.048.3 x 5.0 b 3.052501050
58 10 .6108.073.0 x 7.0 c 3.052501050
58 11 .5114.348.3 x 5.0 b 3.0102501050
58 11 .6114.373.0 x 7.0 c 3.0102501050
58 13 .5133.048.3x5.0 b 3.0102501050
58 13 .6133.073.0 x 7.0 c 3.0102501050
58 14 .5139.773.0x7.0 c 3.0152501050
58 14 .6139.788.9 x 5.6 d 3.0152501050
58 16 .5159.073.0x7.0 c 3.0152501050
58 16 .6159.088.9 x 5.6 d 3.0152501050
58 17 .5168.373.0 x 7.0 c 3.0152501050
58 17 .6168.388.9x5.6 d 3.0152501050
58 19 .5193.788.9 x 5.6 d 3.0202501050
58 19 .6193.7114.3 x 8.8 e 5.0202501050
58 22 .5219.188.9 x 5.6 d 3.0252501050
58 22 .6219.1114.3 x 8.8 e 5.0252501050
58 24 .5244.588.9 x 5.6 d 3.0252501050
58 24 .6244.5114.3 x 8.8 e 5.0252501050
58 26 .5267.0114.3x8.8 e 5.0302501050
58 26 .6267.0139.7 x 10 f 7.0302501050
58 27 .5273.0114.3 x 8.8 e 5.0302501050
58 27 .6273.0139.7 x 10 f 7.0302501050
58 32 .5323.9139.7 x 10 f 7.0403001050
58 32 .6323.9219.1 x 8.0 g 5.0403001050
58 36 .5355.6139.7 x 10 f 7.0652501000
58 36 .6355.6219.1 x 8.0 g 5.0652501000
58 37 .5368.0139.7x10 f 7.0652501000
58 37 .6368.0219.1 x 8.0 g 5.0652501000
58 41 .5406.4139.7 x 10 f 7.0703001000
58 41 .6406.4219.1 x 8.0 g 5.0703001000
58 42 .5419.0139.7 x 10 f 7.0753001000
58 42 .6419.0219.1 x 8.0 g 5.0753001000
58 46 .5457.2219.1 x 8.0 g 5.0803001000
58 46 .6457.2323.9 x 10 h 7.0803001000
58 51 .5508.0219.1 x 8.0 g 5.0903501000
58 51 .6508.0323.9 x 10 h 7.0903501000
58 56 .5558.8219.1x8.0 g 5.01003501000
58 56 .6558.8323.9 x 10 h 7.01003501000
58 61 .5609.6323.9 x 10 h 7.0110400950
58 66 .5660.4323.9 x 10 h 7.0115400950
58 71 .5711.2323.9 x 10 h 7.0125450950
58 76 .5762.0323.9
58
58















преимуществами: универсальность применения совместимость по

60
60
60
60
60
60
60


Материал: S235JR
штамповка.

таблицам нагрузок


Соединительные стержни
левой/правой резьбой
от 65 D1 19 до 65 50 13
Материал: от M10 до M16: S235JR
от M20: S355J2.
Резьбовые стержни
Данные заказа:
стержень
типа 65..1. Шестигранные гайки
от 63 D9 29 до 63 50 28
Материал:


Резьбовые шпильки, типы с 67 D1 19 до 67 91 13
Материал: от M10 до M16: S235JR от M20: S355J2. Резьбовые стержни LISEGA



Bauanschlüsse, Traversen, Spannklammern, Gleitplatten Компоненты
трапеции,
PRODUKT 7 GRUPPE











серег типа 73 - хорошо подходящих для подсоединения
учитывать заданные минимальные значения толщины сварного
на площадке. Они доступны
для всех значений ширины балки

73
73
73
73


74 71 13M3613068503737703250304.0
74 72 13M3617068503737703250306.8
74 81 13M4213078594339903758304.0
74 82 13M4217078594339903758306.8
74 91 13M48130926650461204167354.5
74 92 13M48170926650411204167306.8
74 10 13M56x422510376584714050793513.9
74 20 13M64x425012089665415059934019.6
74 30 13M68x4250128957061160641004522.0
74 40 13M72x4300136987561160701074531.8
74 50 13M80x43501521108364180781204543.3



с 79 23 39 до 79 93 39






76 D2 11 – 065M10 x 650.06
76 D2 11 – 080M10 x 800.07
76 D2
76
76
76






На этапе проектирования чрезвычайно
нагрузкам, как правило, они воздействуют на несущую
Путем









Информация о конструкции и сборке скользящих подложек
Требуется
Сопряженные








с 70 11 1. до 70 48 1.
Материал: S235JR
Поверхность: не препятствующая сварке грунтовка
Скользящая подложка для приварки (круглой формы)
типы с 70 05 1. до 70 20 1.
Материал: S235JR Поверхность: не препятствую






(поперечные, прямоугольной формы)
типы с 70 12 3. до 70 48 3.
Поверхность: горячеоцинкованная
Значение 6-й цифры зависит
70 .. 3.
Материал: S235JR
Поверхность:





















программ проектирования
металлоконструкций.
Это помогает выгодно
использовать ресурсы и
значительно экономить
время при проектировании трубопроводных систем!










AutoCAD®, Autodesk
AutoCAD® Plant 3D, Autodesk
MicroStation®, Bentley Systems
SmartPlant ® 3D /Smart™ 3D, Intergraph®
PDS ®, Intergraph®
SUPPORT MODELER ®, Intergraph®






AutoCAD®, Autodesk
AutoCAD® Plant 3D, Autodesk
MicroStation®, Bentley Systems
SmartPlant ® 3D / Smart™ 3D, Intergraph®
PDS ®, Intergraph®
PDMS™, AVEVA™
SUPPORT MODELER ®, Intergraph®
TEKLA Structures, TEKLA®





Плагин LICAD® для TEKLA Structures Простота


Zusatzleistungen und Service

Программа продукции LISEGA, представленная в каталоге «СТАНДАРТНЫЕ ОПОРЫ 2020», соответствует современным технологическим разработкам в области опор для трубопроводных систем, используемых при строительстве промышленных предприятий.
Все соответствующие международные положения строго соблюдаются.

9.2.3
9.2.5

9.2.6 Акты приемочных испытаний DIN EN 10204-3.1
Компоненты,
9.2.7 Полная прослеживаемость через акты приемочных испытаний DIN EN 10204-3.1
За счет
материалов для всех компонентов, указанных в каталоге,
9.2.8



9.5.1
9.4 Предварительная сборка
9.5.3
9.4.1
9.6 Упаковка

9.6.1 Упаковка для транспортировки
по суше
Для автомобильных или железнодорожных перевозок
предлагаются прочные деревянные ящики или поддоны, оснащенные полозьями для погрузки/разгрузки с помощью вилочных погрузчиков.
9.6.2 Упаковка для морских перевозок
Для морских перевозок используются специальные
деревянные ящики, с полозьями для погрузки/разгруз-
ки с помощью вилочных погрузчиков и с усиленными
стенками для любой транспортировки
благодаря нашему статусу «известный грузоотправитель» позволяют изделиям LISEGA проходить беспро


9.7 Транспортировка

Надлежащая функциональная интеграция трубопроводных опор в
существующую компоновку трубопроводов и
промышленного предприятия оказывает решающее влияние на рабочие характеристики трубопроводов
в долгосрочной перспективе. Поэтому с конструкцией опоры необходимо
обращаться не менее осторожно и внимательно, чем с самим трубопроводом.
В этом отношении выбор
компонентов, доступность
новейшего программного
обеспечения для проектирования и, особенно, большой опыт проектировщиков оказывают решающее влияние на качество конструкции.
STAAD.Pro
SmartPlant ® review Navisworks® ROHR2 ® CAESAR II ®


1.
2.
3.
4. Испытательные нагрузки
На основе этих условий и полученных данных, с помощью программы проектирования LICAD® ком-
пании LISEGA, из стандартных опор формируются
готовые к монтажу нагрузочные цепи, начиная от
компонентами, прилегающими
трубе.
расчетов обычно используются нормы ASME B31.1, ASME B31.3 и DIN EN 13480. При


DXF или DGN (MicroStation®). На нем представлена вся информация, необходимая
расположения отверстий и т.д.
Штамп чертежа проектируется индивидуально.




Обслуживание
Дополнительные







Надзор за ходом строительства, монтаж и ввод в эксплуатацию
приемка и контроль материалов
организация и управление складскими запасами
предварительная сборка и комплектация
готовых опор
монтаж опор в указанных точках контроль за монтажом трубопровода на

имеющимися техническими условиями повторная установка ударных стопоров на промышленном предприятии
предоставление полной и окончательной документации
Широкий спектр комплекса услуг LISEGA касается, в частности, опор трубопровода
применения. При правильной реализации


LISEGA SE - Германия
Gerhard-Liesegang-Straße 1
27404 Zeven
Postfach 1357
27393 Zeven
Tel.:+49 (0) 42 81-713-0
Fax:+49 (0) 42 81-713-214
E-Mail: info@de.lisega.com www.lisega.de
LISEGA SAS - Франция
Z.I. La Marinière 21, Rue Gutenberg 91919 Bondoufle, Cedex
Tel.:+33 (0)1 60 86 40 21
Fax:+33 (0)1 60 86 48 28
E-Mail: info@fr.lisega.com www.lisega.fr
LISEGA Inc. - США 370 East Dumplin Valley Rd. Kodak, TN 37764
Tel.:+1 (0) 865 940 5200
Fax:+1 (0) 865 940 5140
E-Mail: info@us.lisega.com www.lisega.com
LISEGA Ltd. - Англия Unit 3, Washington Centre Halesowen Road Netherton West Midlands, DY2 9RE
Tel.:+44 (0) 13 84 458 660
Fax:+44 (0) 13 84 213 301
E-Mail: info@uk.lisega.com www.lisega.co.uk
LISEGA PST Co. Ltd. - Китай
LISEGA Pipe Support Technologies (Shanghai) Co., Ltd. 7800 Songze Av., Qingpu Industrial Zone Shanghai, ZIP 201700, PR China
Tel.:+86 (0) 21 69 21 2888
Fax:+86 (0) 21 69 21 2999
E-Mail: info@cn.lisega.com www.lisega.com.cn
LISEGA India Private Limited - India Plot. No.: 111, GIDC Halol -2, Halol Maswad Industrial Estate, Halol, Panchmahal - 389350
Tel.:+91 (0) 26 76 227 010
Email: info@in.lisega.com www.lisega.co.in