


![]()



2018年6月版
LISEGAの製品群は、配管システムの最先端のサポート概念を実現す るために必要なすべての製品をカバーしています。
これらの製品はLISEGAの標準化方針に基づいて、荷重と付属品の互 換性があるモジュールシステムとして体系化されています。
このカタログはすべての製品を含み、LISEGAのパイプサポート設計 プログラムLICADに完全に従っています。
カタログとLICADはホームページ www.lisega.de からダウンロー ドできます。
LISEGAは一層の技術開発により改正する権利を有します。

ドイツ ツェーフェン 本社




中国 上海


総 目 次
詳細な内容は個々のセクションにあります


技術仕様
Plug-in and Libraries
配管接続部品
ローラーベアリング、パイプサドル、 極低温用クランプベース
ねじ接続部品
構造物への取付け部品、トラピーズ、 クランプ、スライドプレート
LISEGAソフトウェア 計画及び設計用

製品グループ 1
コンスタントハンガー、コンスタントサポート
タイプ 11-14, 16-19

製品グループ 3
スナバー、エネルギーアブソーバー、リジッドストラット、 粘弾性ダンパー、ダイナミッククランプ タイプ 30-39

製品グループ 5
ローラーベアリング、パイプサドル、
極低温用クランプベース タイプ 51-58

製品グループ 7
構造物への取付け部品、トラピーズ、クランプ、 スライドプレート タイプ 73-79


製品グループ 2
スプリングハンガー、スプリングサポート タイプ 20-22, 25-29

製品グループ 4 パイプクランプ、クランプベース、配管接続部品 タイプ 41-46, 48-49

製品グループ 6
ねじ接続部品 タイプ 60-67

製品グループ 8
LISEGAソフトウェア 計画及び設計用



製品グループ 9
追加サービス、エンジニアリング、現地でのサービス
PRODUKT 0 GRUPPE






目 次 ページ
1. 標準サポート、要求事項と定義 ..........................0.1
2. LISEGA 標準サポート ................................0.1
3. LISEGA モジュールシステム ...........................0.2
3.1 ユーザーの利益 ......................................0.2
3.2 機能 ..............................................0.2
3.3 製品グループ ......................................0.2
3.4 荷重グループ ........................................0.2
3.5 トラベルレンジ ......................................0.3
3.6 標準部品 ...........................................0.3
3.7 荷重と接続互換性に関するモジュールシステム ...............0.4
4. 許容荷重 ...........................................0.5
4.1 静的及び動的荷重部品 .................................0.5
4.2
4.3 製品グループ 5 ......................................0.5
4.4 荷重表 .............................................0.6
5. タイプ番号システム
6. 基準及び規格 ........................................0.9
7. 材料 ..............................................0.9
8. 溶接
9.
9.1 標準腐食防止 .......................................0.11
9.2 特別仕様の腐食防止
9.3 溶融亜鉛めっき仕様
10. 作動特性 ..........................................0.14
1 2 3 4 5 6 7 8 9
カタログ - STANDARD SUPPORTS 2020に記載されている製品 は、最新のサポート技術 開発により、プラント据 付けの一般的な要求を最 高レベルで満たしていま す。LISEGA標準サポー トの一般的な設計には標 準化された評価基準が適 用されます。これは以下 の「技術仕様」に記載さ れ、このカタログの内容 にも適用されます。各製 品の特徴は対応する製品 グループのセクションと 製品データシートで説明 されています。
明確に別の方法で同意さ れない限り、カタログ STANDARD SUPPORTS 2020に記載されている事 項はすべての製品に適用 されます。
1. 標準サポート、要求事項と定義
1.1 要求事項
産業用配管システムに、標準サポートを使 用することは、十分に立証された最新の技 術であると見なされています。
高い技術レベルで標準化されたサポート部品は 高品質であると同時に経済的な製品を供給する ことができます。近代的なパイプサポートに要 求される条件は以下の通りです:
信頼できる機能 メンテナンスフリー
迅速な出荷
低価格 コンピューター化された設計システム
簡単な据付け
好ましい性能/製品重量比
1.2 定義
標準サポートは以下の評価基準を満たしています:
部品形状は一定で最適な材料で設計さ れています。
各部品は接続寸法と荷重容量に関して互 換性があります。
各部品はカタログに記載され、識別シス テムによって明確に指定されます。
部品は量産されます。
部品は関連基準及び国際的な規格に従っ ています。
部品の機能的な容量、適合性及び耐久性 は十分に立証されています。
部品は使用することが独立検査機関によ って公認され、承認されています。
ドイツとヨーロッパのプラント建設(発電所) 用パイプサポートのための関連規格 DIN EN 13480-T3 及び VGBガイドライン R 510 L は、標準サポートの優先的な使用を要求し、以 下の評価基準を定義しています:
「標準サポートとは、形状、寸法及び荷重に 関連する設計データが指定され、証明され、 カタログに記載され、確立された再現可能な 手順(例えば、量産)に従って製造されるパ イプサポートの部品です。」
2.1 範囲
LISEGAの標準サポートは総合的なパフォーマン スパッケージの基礎となります。
12,000種類以 上の標準化された部品により、産業プラント建設 の配管システムで一般的に使用される運転荷重、 温度及びトラベルレンジをカバーしています: パイプクランプ及びクランプベースの 最高使用温度 650℃
静的荷重部品の最大定格荷重 400kN リジッドストラット及び標準スナバ ーの最大定格荷重 1000kN 大荷重用スナバーの最大設計荷重 5000kN コンスタントハンガーの最大トラベル レンジ 900mm スプリングハンガーの最大トラベルレ ンジ 400mm
特別に開発された部品は多様なサポート機能に 利用可能です。部品の設計と構造には、以下の 基本的な設計方針が考慮されています:
左右対称の製品形状 コンパクトな据付け寸法 信頼できる作動原理 格段に広い調整範囲 互換性のある荷重範囲と接続寸法 据付けの容易性
LISEGA のハンガーは上部構造物との取合いは1 ヶ所のみです。その結果、コンパクトで左右対 称の製品形状により、接続構造物へはモーメン トが作用せずに荷重が伝達され、簡単な据付け が可能になります。可動製品(ハンガー、サポ ート及びスナバー)の運転時の位置は直接トラ ベルスケールから読むことができます。
コンスタントハンガー及びサポートは、荷重が 作用している状態でいつでも荷重調整すること ができます。どのトラベル位置でもハンガー及 びサポートを固定することができます。
2.3 最適な設計の原則 サポート部品の設計と配列において、特定のサ ポート機能の最適な分布は重要です。要求され た機能を満足するためにただひとつの部品が選 択されます。さまざまな選択肢に悩ませられる ことはありません。
これは広範囲に適用できるだけでなく、安全性 をも増加させます。それはモジュールシステム の原則により標準化された構造を論理的に実現 するための前提条件です。
最良の解決策はひとつだけです!
3.1 ユーザーの利益 パイプサポートのコストは配管システムの総コ ストにおける重要な要素です。サポートのコス トは以下のコストの総合計になります:
設計とエンジニアリング業務 使用材料(部品) 据付け組立作業
さらに、パイプサポートは試運転期限に対しほ とんどいつもクリティカルであり、出荷の遅れ により無数の余分なコストが発生する場合があ ります。
LISEGA 製品戦略の目的は、経済原理に従い最 小限のコストで最大のユーザー利益を実現する ことです。
LISEGA モジュールシステムがこれの基本にな ります。以下の条件を満たすように製品の標準 化が図られています:
合理的な量産 好ましい性能/製品重量比 高品質の維持 在庫からの即納 特別な LICAD® 設計ソフトウェア
これによる累積的な利益は、競争力のある価格 と優れた製品品質で信頼できるプロジェクトの 進行をもたらします。さらに、ユーザーはサポ ート設計や現地での据付けといった労働集約型 の分野でもコスト低減による利益を得ます。サ ポートをまず取付け、それから配管を直接そこ へ載せることにより、配管システムの組立て手 順を合理化することができます。
LISEGA 製品の標準化は、サポート形状として 体系的な相互作用を目指しています。この結 果、荷重やトラベルレンジ、接続部の形状が調 和しています。LISEGA 標準サポートは、機能 的で効果的なモジュールシステムとして開発さ れています。個々の製品はモジュールを形成し て、荷重の互換性があります。これは、要求さ れるさまざまなサポート構成を実現するため広 範囲の組合せを可能にします。部品の総合的な 選択により多様なサポートと適用状況に広く対 応が可能です。
標準化された製品はそれらの機能に応じて、7つ の製品グループに分類されています(0.3ページ の表及び0.4ページの図を参照してください)。
製品の組合せにおける一様の荷重負荷を保証す るために、製品群は静的及び動的に区分された 荷重グループにしたがって配列されています 0.5ページ、0.6ページを参照してください 。
経済原則:
=最小の努力で最大の利 益を得ること = 総コストの最小化/ TCM
製品グループ + 荷重グループ + トラベルレンジ + 接続互換性 = モジュールシステム サポートをまず取付け、 それから配管をそこへ載 せる! モジュールシステム + CAD 設計 + IT ロジスティック = 高度な運用
適用地域により、メートルまた はUNCとなります
スプリングハンガー及びサポート (製品グループ2)のばねは、初 期荷重として定格荷重の約1/3ま で圧縮されています。
荷重グループ(定格荷重)の中では、すべての 部品は統一された許容荷重と安全余裕を持ちま す。荷重グループの中では、製品の接続部寸法 ねじ 又はピン径)は統一されていて他の製品グ ループの部品との互換性があります。
種々の部品は同一荷重グループの中だけで接続 することができるので、荷重チェーンでの応力 は全体として一様です。さらに、クランプは配 管システムの温度と荷重、保温厚さにより選定 されます。
異なった荷重グループとの間違った組合せはで きません。
3.5 トラベルレンジ
3.5.1 コンスタント及びスプリングハ ンガーのトラベルレンジ
コンスタント及びスプリングハンガーなどの可 動製品は、使われているばねの使用可能な範囲 に応じたトラベルレンジにより細分されていま す。トラベルレンジは下の表のように、タイプ 番号の4桁目で示されます。
[mm] タイプ番号
0- 75 1. .1 ..
0-1501. .2 ..
0-3001. .3 ..
0-4501. .4 ..
0-6001. .5 ..
0-7501. .6 .. 0-9001. .7 ..
0- 50 2. .1 .. 0-1002. .2 .. 0-2002. .3 .. 0-3002. .4 .. 0-4002. .5 ..
3.5.2 スナバーのトラベルレンジ
LISEGA スナバーはストロークレンジにより細 分されていて、下の表のように、タイプ番号の4 桁目で示されます。
ストローク [mm] タイプタイプ番号 150303 .. 2. . 300303 .. 3. . 400303 .. 4. . 500303 .. 5. . 600303 .. 6. . 750303 .. 7. . 10030/313 .. 8. . 20030/313 .. 9. .
3.6 標準部品
タイプ 製品名称 1 コンスタ ントハン ガー・サポ ート 11 コンスタントハンガー 12-14 コンスタントハンガー、多重セル 16 コンスタントサポート、多重セル 17 サーボハンガー 18 コンスタントハンガー、フラット形 19 コンスタントサポート、フラット形 19 アンギュレーティングCS、フラット形 71 コンスタントハンガー用ブラケット 79 コンスタントハンガートラピーズ
2 スプリング ハンガー・ サポート 20 アンギュレートスプリングサポート 21 スプリングハンガー
22 大荷重用スプリングハンガー 25 スプリングハンガー(置き型)
26 大荷重用スプリングハンガー(置き型) 27 スウェイブレース 28 大荷重用スプリングサポート
スプリングサポート
3 動的荷重 製品
5 パイプベアリ ング及びサ ドル、極低温 用クランプベ ース
3R パイプホイップレストレント
4 配管接続部品 40 Uボルト 41 溶接ラグ 42-44 水平クランプ 45,46,48 ライザークランプ
49 クランプベース、浮き上がり防止金具 77 接続プレート
51 シリンダーローラーベアリング
52 Wテーパーローラーベアリング
53 Wシリンダーローラーベアリング
54 溶接パイプサドル
54 クランプ式パイプサドル
55 浮き上がり防止金具
56 極低温用クランプベース
57 極低温用サポート、軸方向拘束用
57 溶接パイプシュー
58 スタンション
6 ねじ接続部品 60 アイナット
61 クレビス
62 ターンバックル
63 六角ナット
75 溶接アイプレート 76 ビームアダプター 78 ビームクランプ 79 トラピーズ コンスタントハンガー
64 ロッドカップリング
65 タイロッド L/R
66 タイロッド
67 ねじロッド/スタッドボルト 7 構造物への 取付け部品
球面座金付溶接プレート


















































































































冷間時荷重:
配管システムの計算により決定した、 停止状態でのサポート点の荷重。
設定荷重:
スプリングあるいはコンスタントハン ガーがセットされ固定されたときの荷 重。設定荷重は冷間時荷重に、ばねで 支持される部品の重量を加えたもの。 保温の重量は冷間時荷重に含まれま す。これらはハンガー配置を設計する 際に考慮する必要があります。
運転時荷重:
通常運転時にサポート点に作用する 荷重。スプリングハンガーでは、設 定荷重にトラベル×ばね定数で計算 される荷重を加えたもの。コンスタ ントハンガーでは、運転時荷重は設 定荷重と同じです。
水圧試験荷重:
水圧試験時にサポート点に作用する 荷重。通常80℃とします。
酸洗荷重:
配管システムの酸洗時にサポート点に 作用する荷重。通常200℃とします。
4. 許容荷重
4.1 静的及び動的荷重部品
許容荷重は、静的と動的荷重部品で区分されます。
製品グループ 1, 2, 4, 5, 6 及び 7の製品は、その 機能に従って、荷重は一方向のみに作用し(静的、 または準静的)、静的荷重部品とみなされます。
製品グループ 3の製品及び付属品は、動的荷重部品 とみなされます。
4.1.1 静的荷重に対応する部品
定格荷重は荷重グループの決定に使用されます。
製品グループ 1, 2, 6, 7 の静的荷重部品では、
定格荷重はスプリンハンガーなどのばねを使用す る部品の最大設定荷重に対応しています。部品が リジッドハンガーとして使用されるときは、最大 運転荷重(荷重ケースH)が接続ねじの荷重容量 となり、定格荷重よりも高く設定されています。
また、ロックされたスプリングハンガー及びコン スタントハンガーは、水圧試験(短い持続時間) における冷間時荷重に対しては緊急時荷重(荷重 ケ-スHZ)を適用することができます。
製品グループ 4(配管接続部品)は、部品の許 容荷重が配管温度に関連して変動するため複数 の荷重グループに接続できるようになっていま す。配管接続部品の運転温度における許容荷重 は個々の選定表に設定されています。
ここには、長期の通常運転状態(荷重ケースH、レ ベルA)における許容荷重が記載されています。水 圧試験などの短期荷重でも永久変形は生じません。 荷重ケースHZ(運転時に生じる緊急状態、レベ ルC)及びHS(損傷状態、レベルD)の許容荷重 は適用規格によります。
許容荷重計算例
規格
動的荷重に対応する部品 製品グループ 3
荷重 グループ 定格 荷重[kN] ピン径
1 3 10
2 4 10
3 8 12
4 1815 5 4620
6 10030
7 20050
8 35060
9 550 70
20 2000 120
30 3000 140
40 4000 160
50 5000 180
4.1.2 動的荷重に対応する部品 動的荷重部品では、定格荷重は荷重ケースH 通常時 、あるいはレベルA/B (ASME III / RCC-M)での運転荷重に対応します。
一般的にこれらの部品は緊急時の安全装置として 使用されるので、通常、荷重ケースHZ、あるい はレベルC (ASME III / RCC-M)が最大計画荷重 条件として採用されます。いずれの場合でも、プ ロジェクト設計者の指示が適用されます。
荷重ケース HZ (緊急時)
荷重ケース HS (損傷時)
ASMEsectionIII,NF Hx1.5 Hx1.6 RCC-M Hx1.33 Hx1.6
MSSSP-58 Hx1.2 規定なし DINEN13480 Hx1.2 規定なし VGB-R510L Hx1.15Hx1.5 KTA3205.3 Hx1.15Hx1.5
KTA 3205により認証試験された製品では、次式を適用します: HZ = H x 1.5; HS = H x 1.7
製品グループ 5の部品(極低温配管システム用ク ランプベース、ローラーベアリング及びパイプサ ドル)は静的荷重に分類されますが、荷重グルー プについてはモジュールシステムの適用を受けま せん。これらは荷重負荷に関しては鉄鋼品に相当 するため特別なグループを構成します。定格荷重 は荷重ケースH(通常運転時 レベル A/B)での最 大運転荷重に対応しています。
製品グループ 5の許容荷重は、0.6ページの4.4.3項 を参照してください。
4.4 荷重表
各部品の許容荷重は、荷重グループと荷重ケースに 対応したLISEGA荷重表に示されています。荷重ケ ースの定義はDIN EN 13480-T3、VGB-R 510 L、 ASME B31.1、MSS SP-58、 ASME section III Div.1、Subsection NF及びKTA 3205によります。
荷重表はLISEGA モジュールシステムのすべての部 品と、その他の特殊設計のLISEGA製品に一様に適用 されます。
スプリング及びコンスタントハンガ ーの最大運転荷重で、メインスプリ ングの最大荷重に対応しています。 タイプ18,19には適用しません。
米国の基準MSS SP-58 (ASME B31.1/B31.3) の設計評価に従った 許容荷重
起動、停止、重量の公差及び水圧試 験を含むプラントの通常の運転で生 じるすべての荷重がここに分類され ます。
通常の運転以外の荷重がここに分類 されます。規定によっては水圧試験 荷重も含むことがあります。この状 態が生じた場合は全体のサポートの 点検を推奨します。
この荷重において、サポート部品は 降伏応力に達します。この状態が生 じた場合は、交換を推奨します。
バルブ操作あるいは運転時基礎地震 (OBE)による圧力衝撃力を含む プラント運転で生じるすべての動的 荷重がここに分類されます。
通常の運転以外や安全停止 地震(SSE)のようなすべて の動的荷重がここに分類され ます。この状態が生じた場合は全 体のサポートの点検を推奨します。
この動的荷重において、サポート 部品は降伏応力に達します。この状 態が生じた場合は、交換を推奨しま す。
荷重グループ1と2は接続部品が 同じです。荷重グループ1はスナバ ーに、荷重グループ2はリジッドスト ラットと溶接ブラケットに適用され ます。
4.4.3 製品グループ5 ローラーベアリン グの最大許容荷重
緊急時 5.511224780160
すべての製品はタイプ番号により識別するこ とができます。6桁の数字には標準設計品を 指定するのに必要なすべての情報が含まれて います。
タイプ番号システムは最新のITの使用に不可 欠のもので、LISEGAモジュールシステムと CADプログラムの制限のない統合が可能にな っています。
LISEGAタイプ番号は以下の表により識別でき ます。
1桁目は製品グループ(PG)を示します
PG 1 = コンスタントハンガー/サポート
PG 2 = スプリングハンガー/サポート
PG 3 = 動的荷重用製品
PG 4 = 配管接続製品
PG 5 = パイプベアリング、パイプサドル、 極低温配管用クランプベース
PG 6 = ねじ接続部品
PG 7 = 構造物への取付部品
2~6桁目は以下の表により詳細な特性を示 します。特別な仕様に対する設計(5又は6桁 目)は0.18ページに記載されています。
2桁目 3桁目4桁目 5桁目 6桁目 デザイン 荷重 グループ トラベル レンジ[mm]適用範囲 製品 シリーズ
1= コンスタン トハンガー C=M10 D=M10 1=M12 2=M12 3=M16 4=M20 5=M24
6=M30 7=M36 8=M42 9=M48 2=150 3=300 4=450 5=600 6=750 7=900
2= CH 2セル 連結型 8 LG10 9 LG20
3= CH 3セル 連
結型 8 LG30 9 LG40
4= CH 4セル
連結型 8 LG40 9 LG50
6= 大荷重用コ ンスタント サポート 8 160kN 9 200kN 2=150 3=300
1= 標準品 5= 標準品 <特別仕様 対応品> 3=2013 5=1985 9=1999
9= コンスタント サポート、フ ラット形
1,2=標準品 5,6=<特別仕様 対応品> 7=2007
1,2=標準品コンスタ ントサポート
3,4=標準品アンギュ レーティングコ ンスタントサ ポート
6=高温用 SE*付き 7=PTFE SE*付き
9= アンギュレー ティングコン スタントサポ ート、フラッ ト形
2桁目3 + 4桁目5桁目
T0=1016
T1=1067
T2=1118
T3=1168
T4=1219
5,6=サポート<特別仕 様対応品>コンス タントサポート
7=2007
7,8=<特別仕様対応品> アンギュレーテ ィングコンスタン トサポート
1=スプリングハ ンガー吊型
0=アンギューテ ィングスプリ ングサポート
0=タイプ20用エ クステンション
5=置き型
7=スウェイブ レース 7=タイプ27用エ クステンション 9=スプリング サポート
2=大荷重用スプリ ングハンガー 吊型
6=大荷重用スプリ ングハンガー置 き型
8=大荷重用スプリ ングサポート
C=M10
D=M10
6= <特別仕様 対応品>
1=LG
1=1991 4=1994 8=1978 9=1999 1=1991 4=1994
6=高温用 SE*付き 7=PTFE SE*付き 8=1978 9=1999
1= 標準品
5= 標準品
<特別仕様
対応品>
2= 標準品
6= 標準品
<特別仕様 対応品> 9=1999
6=高温用 SE*付き 7=PTFESE*付き
PG 3 動的荷重用製品
3= 標準品 4= 標準品 ブラケット付き 7= 標準品 <特別仕様 対応品> 8= 標準品 ブラケット付き <特別仕様 対応品> 5=1985
2= 2セル連結型 6=高温用SE* 付き
8 240kN 9 300kN 3= 3セル連結型 8 320kN 9 400kN 4= 4セル連結型
7= サーボハン
1=350°Cまで 2=500°Cまで 3=560°Cまで 4=600°Cまで 標準品 <特別仕様 対応品> 6=350°Cまで 7=500°Cまで 8=560°Cまで
2桁目3 + 4桁目5桁目6桁目 デザイン荷重グループ[kN]
2桁目3+4桁目5桁目 6桁目
1=溶接ラグD9=LGD 29=LG2
39=LG3
49=LG4
59=LG5 69=LG6 79=LG7 1=標準品直線配管の 最大保温厚 さ(mm) 1=10 2=100
01= 21.3 02= 26.9 03= 33.7 04= 42.4
05= 48.3 06= 60.3
07= 73.0 08= 76.1
09= 88.9 10= 108.0 11= 114.3 13= 133.0 14= 139.7 16= 159.0 17= 168.3 19= 193.7 22= 219.1 24= 244.5
26= 267.0 27= 273.0
1=標準品ロングエ ルボ
7=PTFE-SE* 付き 9=SE*なし
5=M24 6=M30 7=M36 8=M42 9=M48 2=150 3=300 1= 標準品 5= 標準品 <特別仕様 対応品> 5=1985
1=大荷重用油
49= 1809=1000
59= 4620=2000 69=100
32= 323.9 36= 355.6
T2= 1118 T3= 1168 T4= 1219
2桁目3+4桁目5桁目 6桁目 デザイン配管径[mm]適用範囲 製品 シリーズ
9= クランプベー ス 01= 21.3 02= 26.9
03= 33.7 04= 42.4
05= 48.3 06= 60.3
07= 73.0 08= 76.1
09= 88.9 10= 108.0
11= 114.3 13= 133.0
14= 139.7 16= 159.0
17= 168.3 19= 193.7
22= 219.1 24= 244.5
26= 267.0 27= 273.0
32= 323.9 36= 355.6
37= 368.0 41= 406.4
42= 419.0 46= 457.2
51= 508.0 56= 558.8
61= 609.6 66= 660.4
標準品
1=350°Cまで 2=500°Cまで 3=560°Cまで 4=600°Cまで 5=650°Cまで
標準品
<特別仕様対応品> 6=350°Cまで 7=500°Cまで 8=560°Cまで
1=小荷重用
2=中荷重用
3=小荷重用
溶接型
4=中荷重用 溶接型
5=大荷重用 溶接型
0=アイナット
1=クレビス
2=ターンバックル
D9=M10-0.62kN
29=M12-2.50kN
39=M16-5.00kN
4=ロッドカップ リング
3= 六角ナット
49=M20-10.0kN
59=M24-20.0kN
69=M30-40.0kN
79=M36-60.0kN
89=M42-80.0kN
99=M48-100kN
10=M56x4-160kN
20=M64x4-200kN
30=M68x4-240kN
40=M72x4-300kN
50=M80x4-400kN
5=タイロッドL/R
D=M10
長さ:
1= 標準品
5= 標準品
<特別仕様対 応品>
2= 標準品
3=25CrMo4
5= 標準品
<特別仕様 対応品>
1= 標準品
2=1982 5=1995 8=1978 9=1999
3=1993 8=1978 9=1999
溶融亜鉛 めっき 3= ボルト式、 溶融亜鉛 めっき
1=長方形、 180°C まで
0=Uボルト
71= 711.2 76= 762.0
81= 812.8 86= 863.6
91= 914.4 97= 965.2
T0=1016 T1=1067
T2=1118 T3=1168
T4=1219
9=クランプベー
ス浮き上がり防 止金具
00= 浮き上がり防 止金具
1=S235JR
3=1.4301
<特別仕様 対応品>
6=S235JR 8=1.4301
8=標準品
6=タイロッドR/R
7=スタッドボル ト,ねじロッド
0=浮き上がり防 止金具 1–5= 部品サイズ
PG 5 ローラーベアリング、パイプサドル、 極低温配管用クランプベース
2桁目3+4桁目5桁目6桁目
デザイン 荷重グループ[kN] 適用範囲 製品 シリーズ 配管径
1=シリンダーローラ ーベアリング
2= Wテーパーロー ラーベアリング
3= Wシリンダーロー ラーベアリング
5= ローラーベアリ ング用浮き上が り防止金具
4= クランプ式パイプ サドル、溶接サド ル、パイプトレイ
6= 極低温用
04= 4kN
08= 8kN
12= 120kN
16= 16kN
35= 35kN
60= 60kN 1= 標準品 2= 可動型 9=1989
01=21.3mm
02=26.9mm
03=33.7mm
05=48.3mm
06=60.3mm
07=73.0mm
08=76.1mm
09=88.9mm
10=108.0mm
11=114.3mm
13=133.0mm
14=139.7mm
16=159.0mm
17=168.3mm
19=193.7mm
22=219.1mm
24=244.5mm
26=267.0mm
27=273.0mm
1=溶接型 2=クランプ式 3=パイプトレイ
長さ: 3=150mm 5=300mm
7=500mm 8=750mm
保温厚さ [mm] 0= 25 1= 40 2= 50 3= 80 4= 100 5= 130 6= 150 7= 180 8= 200 9= 250
2=M12
3=M16
4=M20
5=M24
6=M30
7=M36
8=M42
9=M48
10=M56x4
20=M64x4
30=M68x4
40=M72x4
50=M80x4
0=LG10LG50
1=スタッドボ ルト
2= 500mm
3=1000mm
4=1500mm
5=2000mm
6=2500mm
7=3000mm
長さは標 準化さ れてい ません
5= 標準品
<特別仕様対
応品>
9=200kN
8=240kN 9=300kN
2=スプリングハ ンガー用ベー スプレート D…9=荷重 グループ 1,2,3,9= デザインによ ります 2= 標準品 7= 標準品 <特別仕様 対応品> 8=1978 3=溶接クレビス D…50= 荷重グル ープ 0 荷重グル ープ9 1= 標準品 2= 浮き上がり防 止金具 5= 標準品 <特別仕様 対応品> 2=1982 3=1993 9=1989 4=溶接プレート
適用範囲/トラベル トラベルレンジ/配管径/機能 荷重グループ/配管径/ねじサイズ デザイン
製品グループ (PG)
5=溶接アイプ レート 6=ビームアダプ ター、組み合 わせ品
D…4= サイズ 2=ビームア ダプター、 ボルト 1=2001 C…2= サイズ 1=カンチ レバー 6=垂直接続 7=水平接続 00=ガイド 1...4=サイズ 8=ビームクラ ンプ 2..7=荷重グ ループ 1=標準品1=1991 9=コンスタン トハンガー トラピーズ
標準品 トラベルレンジ=3/0~300mm 荷重グループ5/FN =20kN 単数セル コンスタントハンガー
4 9 5 1 8 5
32=323.9mm
7= 溶接パイプシュー 1= 標準品1=T形鋼
36=355.6mm
37=368.0mm
41=406.4mm
42=419.0mm
46=457.2mm
51=508.0mm
56=558.8mm
61=609.6mm
66=660.4mm
71=711.2mm
76=762.0mm
81=812.8mm
91=914.4mm
97=965.2mm
3 9 6 2 5 4
大荷重用、溶接型 13CrMo4-5、特別仕様対応品 配管径508mm クランプベース 配管接続部品
標準品 取付長さ2500mm
荷重グループ6/FN
3~5桁目はコンスタントハンガーに対応 (製品グループ1参照) 3=2013 5=1985 7=2007 9=スプリング ハンガート ラピーズ
3~5桁目はスプリングハンガーに対応 (製品グループ2参照) 1=溶接型 9=単体ハ ンガー
9=リジッドト ラピーズ C…4= 荷重グル ープ 2,3= デザインによ ります
0 LG9
3=標準品
8=標準品 <特別仕様 対応品>
7= L形鋼 2…9= 荷重グル ープ
4= C形鋼
9= C形鋼、 中央接 続可 2…20= 荷 重グループ
7=接続プレート3~6桁目は接続するクランプに対応
4 4 6 1 4 8
材質10CrMo9-10標準品
世界的に公認された基準 を網羅します
設計、応力と荷重計算及び製造には、関連するヨー ロッパ及び国際的な基準が考慮されています。
すべての設計計算の基礎となる材料の特性値は関連 基準と技術的な規格によります。
以下の規格が適用されます:
DIN EN 13480-T3Metallic industrial pipe systems ヨーロッパ
VGB-R 510 LStandard supports ドイツ
KTA 3205.1/2/3Nuclear regulations ドイツ0
AD-MerkblätterPressure vessels working group ドイツ
RCC-MSpecifications for pipe supports フランス
MSS SP-58Pipe supports – material and design アメリカ
ANSI ASME B31.1 / B31.3Pressure piping systems アメリカ
ASME section III Div. I - NFSupports for nuclear components アメリカ
JSME S NC1 発電用原子力設備規格 日本
JEAG 4601 原子力発電所耐震設計技術指針 日本
SPIR-O-2008Supports for nuclear plants for AES-2006
DIN-EN、ASTMあるいはCN規格の要求に適合する 材料が独占的に使用されます。
強度特性が保証された材料だけがサポート部品に使 用されます。
炭素鋼と高温用材料の標 準化された選択!
ご要望により、さらに高 い温度で使用する材料 や、– 60°Cまでの低温靭 性材料も使用可能です
配管接続部品に使用される材料
S235JRA 36Q235Bx
S235JRA 516 Gr. 60x
S235JRA 675 Gr. 55x
S355J2A 675 Gr. 70Q345B/Q345Rx
S355J2A 299Q345B/Q345Rx
S355J2A 516 Gr. 70Q345B/Q345Rx
P235TR1A 53 S Gr. A20Gx
P235GHA 53 S Gr. A20Gx
P355NHA 106 Gr. C20Gx
流体温度 (℃)
16Mo3A 204(Q345R)/15CrMoRxxx
13CrMo4-5A 387 Gr. 12 Cl.215CrMoRxxxxx
10CrMo9-10A 387 Gr. 22 Cl.212Cr1MoVR/12Cr2Mo1Rxxxxxx
X10CrMoVNb9-1+NT/QTA 387 Gr. 91 Cl.2xxxxxxx
X5CrNi18-10A 240 TP 30406Cr19Ni10xxxx
42CrMo4+QTA 193 B742CrMox A 193 B8xxxxxxx
X10CrMoVNb9-1+NT/QTA 182 F91xxxxxxx 21CrMoV5-7+QT25Cr2MoVAxxxxx
25CrMo4+QTA 194 Gr. 2H25Cr2MoVAxxxxx
8. 溶接
すべての溶接は、DIN EN ISO 4063に従ってシー ルドガスを使ったガスメタルアーク溶接で施工さ れます。
MAG/GMAW (ガスメタルアーク溶 接)手順番号135
MAG/FCAW (フラックスコアアー ク溶接)手順番号136
WIG/GTAW (ガスタングステンアー ク溶接)手順番号141
EN ISO 15614-1あるいはASME section IX(WPQR)により認証されたこれらの溶接施工要 領書(WPS)を保持しています。
溶接士はEN 287-1及びASME section IXに従っ て、関連する溶接法、材料クラスの資格を保持し ています。また、溶接オペレーターはEN 1418 及びASME section IXに従った資格を保持してい ます。
LISEGAは以下の証明書を保持しています:
DIN 18800-T7 Kl.E、 EN 1090-1-EXE 4
サポート部品適合証明書及び
EN 1090-2 鋼構造物の技術規制
ASME section III Div.I Subsection NCA 4000 - NPT及びNSスタンプ
EN ISO 3834-2
TRD 201/AD 2000 Leaflet HPO
蒸気ボイラー技術規制/圧力容器の製造 及び検査(ドイツ TÜV)
溶接検査員は以下の資格を保持しています:
EN ISO 14731、IWE及びEWEの溶 接エンジニア、IWSの溶接エキスパート AWS 1.1 による認定溶接検査員
ASME section III Div. I Subs. NF-5500
SNT-TC-1A
VT,PT,MT,UT及びRT(外部委託)の非破壊検査 はISO 9712 レベルII及びSNT-TC-1A レベルII の資格を持った検査員によって行われます。さら に、ISO 9712 レベルIII及びSNT-TC-1A レベル IIIの資格を持った検査員により監督されます。
検査は規制に基づき行われます:
EN ISO 5817 アセスメントグループC EN ISO 17635 (ISO 10836) 非破壊
検査手順の関連規定
RCC-M Subsection H4000
及びMC 3000~MC 7000
ASME section V(subsection NFの要求)
原則として、LISEGA製品はプラント全体の長期 間の運転と機能信頼性のために設計されていま す。保守作業を少なくするためには特に腐食に 対する保護に注意することが必要です。適用環 境に対する表面処理のタイプを指定することが 重要です。LISEGAはEN ISO 12944の腐食カテ ゴリーと耐久程度に基づいた適切な腐食防止シ ステムを提供します:
標準表面保護 (9.1)
特別仕様の表面保護 (9.2)
溶融亜鉛めっき仕様 (9.3)
特別な適用のための表面保護 (9.4)
技術的に可能な限り、 LISEGAは環境にやさし い水溶性の塗料を使用し ています。
指定の膜厚データは DIN EN ISO 12944と DIN EN ISO 2808によ る乾燥膜厚(NDFT)です。
9.1 標準腐食防止
LISEGA製品の表面は高品質の保護システムに よって腐食の影響から保護されます。標準の腐 食防止は、EN ISO 12944の腐食カテゴリー C3、耐久程度 中(M)に対応しています。こ れは、中程度の産業環境での使用に適していま す。主な適用場所は湿度やほこりの多い生産工 場の屋内、一般的な環境の屋外です。
9.1.1 標準仕上げ塗装
露出部の炭素鋼の金属表面は、SA 2 1/2 (ASTM SP10)に従ったショットブラストのあと、亜鉛 末プライマーで下塗され(膜厚60µm)、その 上に仕上げ塗装(膜厚60µm)が施工されます。
仕上げ塗装後の総乾燥膜厚は約120µmになりま す。仕上げ色はRAL 5012ライトブルーです。
コンスタントハンガー・サポート、大荷重用ス プリングハンガー・サポート、トラピーズ、ス ナバー用エクステンション、リジッドストラッ トのチューブ及び粘弾性ダンパーなどにこの仕 様が適用されます。
9.1.2 ばねの静電塗装 (CED)
高品質のコイルばねはLISEGAのコンスタント及 びスプリングハンガーにとって非常に重要な部 品です。高い機能を維持するために、すべての ばねは静電塗装(CED)処理が加えられていま す。ばねの表面はショットブラストして、燐酸 亜鉛処理されています。さらに、二液性のエポ キシ樹脂がコーティングされ、約200℃で焼き付 けられます。
9.1.3 電気亜鉛めっき
スプリングハンガー・サポート、ビームクラン プ及びすべてのねじ部品と、コンスタントハン ガー・サポートの内部構成部品は電気亜鉛めっ きされます。めっき厚さは約12~15µmです。
9.1.4 溶融亜鉛めっき
ローラーベアリング、パイプサドル及び極低温 用クランプベースは標準として溶融亜鉛めっき されます。めっき厚さは約60~80µmです。
9.1.5 プライマーコーティング
パイプクランプやクランプベースなどの配管接 続部品、溶接ブラケット、溶接アイプレート、 溶接クレビス、溶接ベアリング、溶接パイプ サポート(スタンション)などは、保温の中 にほとんど入る部品や、構造物に溶接される部 品であるため、輸送時の保護用として、ショッ トブラストした表面に高品質の溶接可能な赤錆 色のプライマーで塗装されます。塗装膜厚は約 30µmです。
スナバーは完全に防食性の材料で製造されるた め塗装は必要ありません。
タイプ30の接続ラグは炭素鋼で、9.1.7の処理が 施工されます。
接続ラグは9.1.3に従って電気めっきが施工さ れ、球面軸受と組み立てられます。エクステン ションは9.1.1による標準塗装が施工されます。 溶接ブラケットは9.1.5によるプライマーが施工 されます。取付けピンはステンレス鋼です。
リジッドストラットのチューブは9.1.1による標 準塗装が施工されます。接続ジョイントは9.1.3 による電気めっきが施工され球面軸受と組み立 てられます。溶接ブラケットは9.1.5によるプラ イマーが施工されます。取付けピンはステンレ ス鋼です。
9.2 特別仕様の腐食防止
工業地帯の屋外や塩分の多い沿岸部、化学プラ ントの屋内などの苛酷な環境で使用されるもの は、EN ISO 12944の腐食カテゴリーC4、耐 久程度 中(M)に対応した特別仕様の腐食防止 が適しています。
特別仕様の腐食防止は、標準仕様の上に9.2.1か ら9.2.5の表面処理が追加されます。
9.2.1 炭素鋼表面への特別仕様の腐食 防止
コンスタントハンガー・サポート、サポートブ ラケット、トラピーズ、スナバー用エクステン ション、リジッドストラットのチューブ及び粘 弾性ダンパーは9.1.1の標準仕様塗装120µmに さらに上塗り60µmが施工され、合計180µm となります。仕上げ色はRAL 5012ライトブル ーです。
コンスタントハンガー本体内部の構成部品もEN ISO 12944の腐食カテゴリーC4、耐久程度 中(M)に対応します。
9.2.2 電気めっき表面への特別仕様の 腐食防止
スプリングハンガー・サポートなどは9.1.3によ る標準電気めっきに付着性のよい下塗り塗料 厚さ40µm を施工し、さらに上塗り塗料 厚さ60µm を施工し合計約115µmとなります 仕上げ色はRAL 5012ライトブルーです。
製品グループ6のねじ部品は追加塗装ができない ため、必要な場合は溶融亜鉛めっきされます。
9.2.3 球面軸受への特別仕様の腐食防止 リジッドストラットとスナバーの接続要素には 亜鉛とアルミニウムの薄膜と有機上塗り塗装 厚さ約20~25µm が施工されます。
9.2.4 LISEGAコイルばねへの特別仕 様の腐食防止
9.1.2の標準CED塗装の上に厚さ60µmの追加塗 装が施工されます。
9.2.5 製品グループ3、4のパイプクラ ンプ、クランプベースへの特別仕様の 腐食防止
350℃までで使用されるパイプクランプ及びクラ ンプベースはご要望により溶融亜鉛めっきで出 荷できます。
適用範囲 [タイプ]
350°Cまで
[3. .. 1./4. .. 1.]
[3. .. 6./4. .. 6.]
特別仕様の腐食防止
溶融亜鉛めっき
350℃を超えて使用されるパイプクランプ及びク ランプベースは、以下の表のように最大運転温 度での安定性に適した塗装が適用されます。
適用範囲 [タイプ]
350°C超
[3. .. 2./4. .. 2.]
[3. .. 3./4. .. 3.]
[3. .. 4./4. .. 4.]
[3. .. 5./4. .. 5.]
[3. .. 7./4. .. 7.]
[3. .. 8./4. .. 8.]
保温の外: エチルシリコン
塗装
特別仕様の腐食防止
保温の中: プライマー(輸送時の保護用) 塗装膜厚は約30µm
保温の外: エチルシリコン塗装
塗装膜厚は約80µm




保温

パイプクランプの塗装施工例 温度350℃超 保温有り
保温の中: プライマー

特別仕様の腐食防止で は、350℃を超える配管の接 続部品のねじ部品、ボルト、 ストラップ、プレート、Uボ ルトは、据付指示に従って保 温の中に納まるようにしてく ださい。
パイプクランプ、LISEGAラ イザークランプのエンドプレ ートと製品グループ6の部品 とのピン接続部は保温の外に なるようにしてください。
9.3 溶融亜鉛めっき仕様
9.2の代替案として、LISEGAのすべての製品は 溶融亜鉛めっき仕様で供給可能です。技術的な 理由で適用できない場合は防食性の材料で製造 することも可能です。部品のめっき厚さは約60 ~80µmで、内部構成部品やねじ、小さい部品 などは約40µmです。
使用材料や適用場所により溶融亜鉛めっきが適 さない部品は、9.2の特別仕様の腐食防止C4と なります。
9.3.1 コンスタントハンガー・サポー ト、製品グループ1
ご要望によりコンスタントハンガー・サポート は溶融亜鉛めっきで供給可能です。内部構成部 品の追加処理が異なるため、ご注文の際には、 腐食防止として9.1のC3で十分か、9.2のC4が要 求されるかをご指定ください。
9.3.2 製品グループ2の製品 溶融亜鉛めっき仕様のスプリングハンガー・サ ポートは在庫からの供給が可能です。
9.3.3 パイプクランプ及びクランプベ ース、製品グループ3及び4 9.2.5を参照してください。
9.3.4 製品グループ5の製品 ローラーベアリング、パイプサドル及び極低温 用クランプベースは標準として溶融亜鉛めっき されます。
9.3.5 製品グループ6の製品
接続ロッド、タイロッド、ねじロッド、クレビ ス、アイナット、ターンバックル及びカップリ ングは溶融亜鉛めっき仕様のものが在庫から供 給可能です。
9.4 非常に苛酷な環境における表面 保護
沿岸地域、海洋あるいは化学性気体などの特に 苛酷な環境下で使用される部品についても、い ろいろな状況に適した特殊な腐食防止システム や防食性材料が供給可能です。

10.1 機能
10.1.1 コンスタントハンガー ・サポート
製品グループ1のコンスタントハンガー・サポー トは、全体の作動レンジにわたって荷重変動が 理論上最小になるように設計されています。ば ね、ベアリング摩擦及び製作公差から生じる変 動差は、量産品で±5%以内に保たれます。荷重 調整は2%の精度で行えます。
10.1.2 スプリングハンガー・サポート
製品グループ2のスプリングハンガー・サポート では、荷重はスプリングトラベルに対応して直 線的に変化します。ばねのヒステリシス及び製 作公差から生じる理論値からのスプリング力の 変動は運転トラベルの範囲内で±5%以下におさ えられます。
10.1.3 スナバー
スナバーは、衝撃荷重が発生したときに保護し ようとする機器と建築物の間を即座に剛体化す るように設計されています。熱膨張によるゆっ くりとした変位は拘束しません。機器をロック する機構は速度に反応します。個々の性能デー タは3章の3.7ページにあります。
F
10.1.4 粘弾性ダンパー
粘弾性ダンパーは、機械またはプラント機器か らの運転振動を危険のないレベルまで減少させ るために使用されます。運動エネルギーは、粘 性質量により熱へと変換されます。減衰抵抗は すべての方向に有効に作用します。個々の性能 データは3章の3.13ページにあります。
粘弾性ダンパー
許容公差範囲
F
トラベル s 1.05 FN FN 0.95 FN
FN = 定格荷重
Fmin = 最小荷重 (上向き移動)
Fmax = 最大荷重 (下向き移動)
sN = 定格トラベル (余裕を含む)
FN = 定格荷重
sN = 定格トラベル (余裕を含む)
FH = 運転時荷重 運転トラベルが 下向きの場合 FC = 冷間時荷重 s = 運転トラベル sa = ロストモーション sb = ピストンロッドトラベル sb = 運転ストローク
10.1.5 スライドプレート スライドプレートはスライドするサポートの位 置が変化するときに生じる横方向の荷重を減少 させるために使用されます。LISEGAスライドプ レートには、自己給油性により最高350℃で2/3 まで摩擦力を低減できる低摩擦材料が使用され ています。個々の設計データは7章の7.10ページ にあります。
消失エネル ギー スライドプレート
トラベル s sb 荷重 F
F
スライドプレートを使用した場 合の配管システムの反力の減少
トラベル s µ=0.3 µ=0.1
E寸法による取付け可否 の簡単なチェック方法!
10.2 ばねのへたり
荷重が作用している通常の圧縮コイルばねは時 間と温度に依存するへたり(セトリングロス) によって支持力の一部を失います。適切な対策 が実施されないならば、長期の運転においてコ ンスタントあるいはスプリングハンガーの10% 以上の荷重低下をもたらします。
一般的なものと比べて、LISEGAは特別な処理を 行うことにより実質的にへたりのないばねだけ を使用しています。
こらのばねは通常予想されるセトリングロスを 見越して、熱間設定の過程を通して特別な処理 がされます。
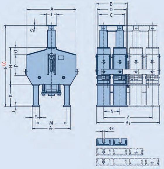
11.1 取付け寸法 E
タイプ 75
タイプ 61
タイプ 66
タイプ 67
タイプ 60
タイプ 42
必要なロッド長さを簡単に算出するために、タ イロッドとねじロッド(製品グループ6)を除い たすべての部品について取付け寸法Eが規定され ています。
このE寸法は部品の長さから接続ロッドのねじ込み 長さ X寸法 を引いた取付け長さを示します。
必要なロッドの長さは、取付け高さ(配管中心 から構造物との接続点まで)から接続する部品 のE寸法の合計を引いて算出します。
X = ねじ込み長さ Et = 取付け高さ (Et=Etotal) = 個々の取付け状態に 適応する長さ
荷重チェーンにおけるロッドの全長を決定する ために、すべてのE寸法を足して、この合計を総 取付け長さと比較します。結果の差がねじ込み 長さ(X寸法)の合計より大きければ、選択され たチェーンは総取付け長さに対し適切です。
ピン接続だけからなる荷重チェーンに関しては、最 小取付け寸法はすべてのE寸法の合計になります。
製品に関連する詳細は選定表を参照して下さい。
[N/mm2]
せん断応力
コイルばねのへたりの挙動 冷間設定のコイルばね (DIN 2089 にほぼ基づく値)
LISEGA熱間設定のコイルばね (KTAの認証テスト及びVGBのタイプテストによる)
• 指針上限位置(ゼロの位置)
• 指針位置が異なる場合は補正
部品名(抜粋)取付け寸法Eの基準値 製品グループ 1 コンスタントハンガー コンスタントサポート サーボハンガー
製品グループ 2 スプリングハンガー スプリングサポート (タイプ 29..2.以外)
製品グループ 3 スナバー
粘弾性ダンパー
製品グループ 4
• 指針上限位置(ゼロの位置)
• 指針位置が異なる場合は補正
• 指針上限位置(ゼロの位置)
• サポートチューブで調整するため、 指針位置に係わらず一定
• トラベルによりEminからEmax を規定
• 据付指示により、計画指針位置はト ラベル余裕を考慮
• 中間位置
パイプクランプ • 配管中心からピン接続部まで、ある いはクランプベースの底面まで 製品グループ 6
ねじ接続部品 • ピンの中心あるいは下側のねじロッド端 部から上側のねじロッド端部まで
製品グループ 7
構造物への取付け部品 • ピンの中心から構造物の端面まで
11.2 総取付け長さの調整
11.2.1 接続ねじのターンバックルの機能
取付け状態における長さの調整(配管据付け位 置の設定、荷重の負荷)のために、コンスタン ト及びスプリングハンガーの下側の接続部はタ ーンバックルの機能を有します。これにより、 据付後に十分な範囲の取付け長さ(接続ロッ ド)の調整が可能です。長さの調整量は以下の ようになっています:
コンスタントハンガー タイプ11では 300mmまで
コンスタントハンガー タイプ18では 150mmまで
スプリングハンガー タイプ21ではタ ーンバックル タイプ62の調整可能量 まで
スプリングハンガー タイプ22では最 小140mmまで スプリングハンガー タイプ25及び26 では、ロッドはサポートチューブの中を 通り、調整ナットで固定されます。ロッ ドの有効なねじ長さの範囲内で調整する ことができます。
すべての接続ねじは右ねじです。
11.2.2 コンスタント及びスプリングサ ポート
タイプ19、16、28及び29では、調整機能を持つ サポートチューブによりプリセット位置に係わら ず取付け高さの調整が可能です。必要な荷重は、 取付け時にサポートチューブを本体から出てくる 方向に廻すことによって、負荷されます。
11.2.3 ターンバックル タイプ62、 タイロッドL/R タイプ65
取付け長さが短いリジッドハンガーでは、接続 部品タイプ60及び61のねじ部で長さの調整が可 能です。取付け長さが長いときは調整を簡単に するために、ターンバックルL/R タイプ62と タイロッドL/R タイプ65との組合せが適切で す。このとき近接しやすいようターンバックル はできれば配管側に配置してください。
11.2.4 リジッドストラット タイプ39 リジッドストラット タイプ39の接続部は取付 け状態で長さ調整ができるように左と右のねじ になっています。リジッドストラットの本体に ある平坦な部分はレンチで調整する時に使用し ます。 詳細については、据付要領を参照してく ださい。
組織の効果的なマネジメントと監視 企業統治) のために、統合マネジメントシステム IMS)
に、中央集中構造の中で主要業務の要求の観察 のために確立された手順と規制が定められてい ます。
IMSは次の領域を含みます:
会社の基本方針 品質マネジメント 環境の保護 作業と健康の保護 組織的な手順 国際的な輸出証明
資源の相乗効果と一元管理によって、無駄が なく活力のあるマネジメントが可能になりま す。IMSでは、さまざまなシステムからのデータ が集められ、最新のCAQ(コンピューター支援 の品質)の要求に従って集中的に分析、評価さ れます。システムは認知された基準やガイドラ インを考慮しています。権威機関からの関連す る証明書は0.18ページの表にあります。
品質マネジメント QM は、会社でのすべての 品質に影響する活動を監視し規制しています。 独立しているQM部門はIMSで主導するシステム で、IMSに統合されたプロセスの明確に目標の ある機能の監視と、ルールや規制の観察を行い ます。
LISEGAの基本的な理念の中で、優れた製品品質 は特に重要な位置付けがなされています。これ は我々の活動やビジネスパートナーとの密接な 協力にかかわっています。会社の組織と活動は この目的に調和されています。
QMが受け持つ、品質を確保するための特定の手 法は品質マネジメントプログラム QMP にまと められており、組織全体をカバーします。品質 を推進するこの手法と活動は、生産活動の統合 された要素で、要領の基本となります。






QMPは統合された要素 として生産活動と実体を 構成します! 内部機構により取付長さ の調整が可能です! コンスタントハンガー タイプ 11 スプリングサポート タイプ 29 ターンバックル タイプ 62 リジッドストラット タイプ 39 max min
QMPは、国際的な規格と基準に従って品質マネ ジメントマニュアル QMM として詳細に編集 されています。QMMには、DIN EN ISO 9001 ASME section III Div.1 subsection NCA 4000 subsection NFを含む 及び KTA 1401 RCC-M Hなどの主要なヨーロッパ及び国際基準 が考慮されています。
QMMはLISEGAグループの組織全体をカバー し、一般的な分野及び原子力産業などの特別な 要求がある分野の両方に適用されます。さまざ まな認証レベルを指定することによって、材料 のトレーサビリティや関連する試験文書の範囲 は、特別な要求にも正確に適用できます。原子 力分野を含め、国際的な要求はすべてQMMによ りカバーされています。対応する承認は定期的 に更新されます。
12.2 原材料と部品の受入
使用されるすべての材料は品質マネジメント部 門により技術仕様と適合しているか受入検査さ れます。使用される材料は要求に対応してASME 及びDIN EN 10204に従って材料試験し証明さ れます。
12.3 製作の監視
製作の監視はQMMに従って、一定の品質管理を 通して実行されます。特に原子力適用品におい ては、ASME section III NF/NCA 4000 アメリ カ 、RCC-M Section H フランス 、KTA ドイ ツ 、DIN EN 13480-T5及びNNSA(中国)に従 った国際的な品質規制が満たされます。
12.4 最終検査
出荷前に、コンスタントハンガー及びスプリング ハンガー、スナバー、ダンパーは品質マネジメン トの責任で特別な試験装置により性能試験が実施 されます。計測と試験は正しく校正された試験・ 計測機器により行われます。測定された値は記録 され、ご要求に応じ文書化されます。すべての試 験装置はEN ISO 7500-1に従い認定された検査 員による定期的な検査を受けます。
12.5 出荷時の文書
ご要求により、使用された材料の材料試験証明 書はASME 及びDIN EN 10204に従って作成さ れます。さらに、ご要求により、独立検査機関 による承認テスト証明書の発行により性能試験 の結果を確認することができます。
特別な要求や特別な品質に関連する文書に従っ た評価は、お客様、製造者及び監督機関の間で 協議するこができます。
産業用配管設備やより厳しい要求のある原子力 発電所などで使用される量産品標準サポート は、特別な適合テストやタイプテストが世界的 に要求されます。指定されるテストプログラム は主に以下のステップからなります:
品質マネジメントプログラムの検査 使用される材料の検査 設計図書の検査 コンピューターによる引張応力計 算の検証 実証テスト
• 性能 • 過荷重容量 • 連続した荷重容量
良好な試験結果により、適合性が証明され、産 業用配管設備用に一般の承認が発行できます。 主要なLISEGA製品に対しタイプテスト及び適合 テストがドイツや国際的な独立機関によって行 われました。これは最新のヨーロッパ規格の要 求に従っています。
DIN EN 13480–T3 Section 13
RCC-M H5300, H5400
KTA 3205.3
VGB-R 510 L
証明書はご要望により提出することができます。
14. 標準仕様品と特別仕様対応品
標準サポートは、設計及び機能において、一般 市場用と原子力分野などのように特別な要求 があるものとで完全に同一です。よって、設計 及び構造の違いはありません。しかし、追加の 品質保証要求や特別な証明書付きの材料のため に、別工程での製造が必要な場合があります。
特別な要求がある領域では、すべての部品は完 成品となるまでヒートナンバーの再刻印によっ てトレーサビリティが保たれ、KTA及びASME規 格にしたがって、部品自体の識別が可能になっ ています。特別要求のレベルはタイプ番号の5桁 目(リジッドストラットでは6桁目)で区別され ます。部品の関連文書はこの番号と、製作指示 番号を参照します。
このカタログでは、一般用の標準品のタイプ番 号で表示しています。特別仕様対応品も性能デ ータ及び製品寸法は同じであるため、このカタ ログで選定することができますが、計画や注文 の際には、要求レベルに応じてタイプ番号を区 別することが重要です。
各製品のデータシートにある注文要領の例をご 覧ください。5項(0.7、0.8ページ)のタイプ番 号の表が活用できます。 LISEGAグループの主要な証明書
証明書付き材料のトレー サビリティの特別仕様が ある製品は別工程で製造 します!
ISO 9001
TÜV Nord BSI TÜV Rheinland AFAQ LRQA TÜV Nord
78 100 034445 FS 557331 01 100 038965 1996 / 5030.4 MEA6011026/1 07 100 010963
EN 1090-1:2009/A1:2011TÜV Nord0045-CPR-1090-1.00151 TÜVNORD.2013.003
Cl. E; DIN 18800-7:2008-11, DIN 18801TÜV NordDIN 18800-7 / 0513-EW /13/0
AD 2000 Leaflet-HP0TÜV Nord07-203-1282-HP-0513/13
DIN EN ISO 3834-2TÜV Nord07-204-1280-HS-0513/15
BS OHSAS 18001:2007
„Safety management“ TÜV Nord AFAQ
DIN EN ISO 14001:2009
78 116 034445 2010/38940.1
„Environmental“TÜV Nord78 104 034445
SCCTÜV Nord78 106 034445
ASME section III Div. I NCA 4000
NS - Certificate for supportsASMEN 3092 N 3025
ASME section III Div. I NCA 4000
NPT - Stamp for supportsASMEN 3169 N 2951
KTA 1401VGB, EnBW Kernkraft, RWE, E.ON, Vattenfall
NNSA Designing
NNSA Manufacturing China National Nuclear Safety Administration 1405 1406
TN VED / Rostechnazor Federal Service for Ecological, Technological and Atomic Supervision
GOST RRST Expert
DE.AΓ80.H02052
DE.AΓ80.H02053
DE.AΓ80.H02054
SPIR-O-2008ATT=Atomic Techno Test POCC RU.0001.01AЭ00.00.10.2849
SSMFS 2008:13INSPECTA NUCLEAR AB5477
ASME section III Div. I, Subs. NF
Class 1, 2, 3, MC, ASME section XITractebel Belgium3365
発行時点でのものです。最新の証明 書はホームページからダウンロード できます。
配管はサポート以上には 良くなりません!
特に指定がない場合、すべての製品は製品タイプごとに 区分けされ、輸送及び短期的な保管に適した梱包で出荷 されます。それらは明確にマークされて、必要なら、 特別な措置により腐食に対して保護されます。長期間の 保管が必要な場合は、用途に応じて異なった梱包も協 議可能です。
特別な注意事項はデータシートまたは据付け要領に記載 されています。ご要望により、複数部品からなるパイプ サポート一式は仮組み、結束して、識別用のラベルが取 付けられます。
すべてのLISEGA製品は、運転開始から2年間保証され ます。ただし、所有権の移転から3年後までに制限され ます。
LISEGAは一層の技術開発や技術的な理由による選定表 の寸法、荷重、重量などの内容を変更する権利を有しま す。寸法は干渉回避のための最大値を示しています。ご 要望により正確な寸法を提示できます。







Konstantstützen








配管システムの荷重とモーメ ントが許容域を超えるのを避 けるため、配管の熱膨張は制 限してはいけません。
コンスタントハンガー
タイプ 11~14
コンスタントサポート
タイプ 16
配管システムの上下方向の小さい熱移動 はスプリングサポート又はスプリングハン ガーにより吸収できます。しかし、ばね定 数に比例して支持荷重の変動量が増加する ため、設計者が指定する移動範囲内だけに使用が 制限されます。 製品グループ2の2.5~2.6ページ
参照)
上下方向の移動が大きい場合はコンスタントハン ガーあるいはコンスタントサポートの使用が必要 になります。特別な設計により、ばね反力はトラ ベルレンジ全体にわたり一定の力になります。

コンスタントハンガー タイプ 11

石炭焚発電所での コンスタントハンガー
作動原理1.5ページ参照)
配管システムの荷重はトラベルレンジ全体にわ たり一定に支持されます。LISEGAコンスタント ハンガー タイプ 11は10万回以上試験されてお り、標準的な解決策となっています。

作動原理は、力の平行四辺形に従い配置された3 つのばねを基本としています。このデザインは 高い作動精度と広い荷重調整範囲が特徴です。
製品重量が小さく、コンパクトで左右対称の設 計により容易な据付が可能になります。さまざ まな利点の詳細は1.3ページをご覧ください。

コンスタントハンガーの最終組立コンスタントハンガーの据付検査

コンスタントハンガー タイプ 18 一般的に、配管サポートの設 計では十分なサポート取付け 寸法を必要とします。しかし、 スペースの制限から最も標準 的なタイプ 11では十分な取付け 寸法が確保できないこともよくあります。
これは既設のハンガーを更新するときにも時々 発生します。このような場合、最適な解決策と してタイプ 18(フラットタイプ)が一般的なタ イプ 11シリーズの代わりとして使用可能です。
このタイプの作動原理はレバー式の原理に基づ いています。しかし、通常のレバーアーム式の ハンガーとは異なり、荷重と変位は線形となり 原理的に正確で一定です。(作動原理 1.6ペー ジ参照)
コンスタントハンガーの場合、配管システムは 上方の構造物から吊り下げられます。配管が床 面近くに配置される場合はコンスタントサポー トにより下方から荷重を支持します。
コンスタントサポート タイプ 19 これまでのタイプ 16に代わって、コンパクトな 形状のコンスタントサポート タイプ 19が標準 品となります。タイプ 16は本体を組み合わせた
大荷重用(荷重範囲100~400kN)としてのみ の標準品となります。
コンスタントハンガー タイプ 18
特別な設計の作動原理によりLISEGAコンスタン トハンガー・サポートは50年にわたり運転にお ける安全性と信頼性を証明してきています。作 動原理の詳細は1.6ページに、設計の特徴は1.7 ページにあります。

コンスタントサポート タイプ 19

従来からあるレバーアーム式のハンガーと比較して、 スペースをとらないタイプ 18
配管システムやプラント全 体の運転における安全性や 長寿命のために、コンスタ ントハンガーの機能の精度 の維持は最も重要です。
従来からあるレバーアー ム式のハンガーと比較し て、LISEGAタイプ 18は コンパクトな形状でより小 さなスペースでもサポート 取付けができます。



LISEGAのコンスタントハンガーが持つ様々な 特別な利点から利益が得られます。
特に計画、据付及び運転などの労力集約型の補 助的なサポートコストにおいて大きな節約が可 能です。
特別な作動原理による支持荷重の一定性 特殊処理されたばねによる荷重支持能力損 失の防止
接触部分の最少化による摩擦力の低減 格段に広い荷重調整範囲により、運転荷重が 変更になってもハンガーの取替えが不要 ターンバックル機能により配管の据付位置の 大きな調整が可能 単一の支持点によるモーメントフリー の荷重負荷 ロック装置はどのトラベル位置にでも 取付可能
銘板にすべての技術仕様を表示 直接読み取り可能なトラベルスケールに運転 時/冷間時位置をマーキング 設定荷重をマークした荷重スケール 左右対称の設計により対称軸に沿った直接の 力の伝達を保証 好ましい性能-製品重量比
選定を簡単にする荷重グループとトラベルレ ンジの配列(モジュールシステム) 高品質の腐食防止とメンテナンスフリーのニ ッケル処理により持続する作動特性 据付状況に適した設計と標準化された付属部 品による汎用性
横荷重伝達に対するコンスタントサポートの ダブルロードチューブガイド
荷重及び接続互換性のあるモジュール製品に よる荷重チェーンの確実な接続
配管システムを支持する要素としてパイプサポ ートは配管システムと周囲の構造物を機能的に 接続し、スムーズに作動しなければなりません。





一般的に、配管システムは限られたスペースの中に 非常に複雑に配置されます。いろいろな空間的条件 の中で最適なものが使用できるように、様々な形状 の標準製品が用意されています。すべての製品は在 庫からあるいは短納期での提供が可能です。
コンスタントハンガー タイプ 11 C3 19 ~ 11 96 15 荷重グループ 9 (100kN)、トラベルレンジ 6 (750mm)までの吊下げ形標準設計品です。トラ ベルレンジ 7 (900mm)はご要望により供給で きます。スペースの制限や他の仕様を考慮しな い場合はこれが最もよく使用される製品です。
コンスタントハンガー タイプ 11
サポートブラケット付き タイプ 71 C3 .1 ~ 71 96 .1
上置き型として使用される標準設計品です。サ ポートブラケットはLISEGAの工場でボルト止め されます。
コンスタントハンガー タイプ 18 D3 17 ~ 18 93 17
取付け高さが限られている場合、タイプ 11の代 わりとして使用する吊下げ形のコンパクトな形 状の標準設計品です。
コンスタントサポート タイプ 19 D3 17 ~ 19 93 17
下方から支持するコンスタントサポートが必要 な場合の標準設計品です。
ご注意:このタイプは、従来の背の高い単一セル 型コンスタントサポート タイプ 16(カタログ スタンダードサポート2010参照)の代わりとな る製品で、特に限られたスペースでの使用に適し ています。タイプ 16はご要望により引き続き供 給できます。
大荷重用 コンスタントサポート タイプ 16
大きな荷重が作用する場合の多重セル型コンス タントサポートの特別設計品です。
サーボハンガー タイプ 17 52 15 ~ 17 93 15 サーボハンガーは、能動的荷重制御装置を追加 することで配管システムの過負荷を許容できる レベルまで減少させることができる製品です。



タイプ 11, 12, 13, 14, 16, 79



LISEGA の作動原理
LISEGA の作動原理は1つのメインスプリングの 力と2つのバランススプリングの合成力の相互作 用により支持力を一定にするものです。予備圧縮 されたバランススプリングの力は、力の平行四辺 形において相対する方向に向いています。
上端位置



中間位置
支持荷重 F は荷重チューブ A を通してメイン スプリング B に直接作用します。予備圧縮され たバランススプリング C はカム D とローラー E を介して合力 F2 として荷重チューブにさらに 作用します。メインスプリングの力 F1 とバラン ススプリングの合力 F2 は、ばね定数、カムの軌 道、カムの角度位置に従ってトラベルレンジに わたってそれぞれ変化します。
合成力の変化はメインスプリングの特性に対応す るようになっており、メインスプリングの力を補 正して一定の支持力になるようになっています。




下端位置
LISEGA の作動原理は理論的に証明できる 絶対不変性があります。
LISEGA の作動原理は定格荷重の40%~ 100%の広い範囲の荷重調整を可能にします。
荷重調整はメインスプリングの圧縮量を変える ことにより行います。合成バランス力とメイン スプリングの特性は変わらないので、初期力の 直線的な変化のみが F1 に生じ、変更後の力は移 動のどの位置でも同じで、支持荷重はそれぞれ の荷重設定において一定に保たれます。
使用可能なトラベルレンジは荷重の変更に比例 して変化します。
18, 19



LISEGA コンスタントハンガー タイプ 18 及びコンスタントサポート タイプ 19 の 作動原理
作動原理は変動するばね反力を、レバー機構を 用いて一定の支持力に変換する てこの原理に 基づいています。
対称に配置された2つのレバーアーム A は予備 圧縮されたスプリング B と共に1つの機構とし て作動します。荷重 F の上下方向の位置の変化 はローラー C を介してレバー機構に伝達されま す。レバーが対に配置されているため変位は対 称軸に沿って直線的になります。レバー機構は スプリングの圧縮力の変化に対応してアーム長 さを変えながら回転し、設定荷重はどのトラベ ル位置でも一定になります。
弧状のレバーの動きにより生じる凹型の荷重変 動は機械加工されたカムの形状により補正さ れ、荷重分布はどの位置でも数学的な精度で一 定に保たれます。
荷重調整
調整ボルト D によりレバーアームの長さを変化 させることにより、設定荷重はハンガーの最大 荷重の約50%~100%の間で調整可能です。
荷重設定を変更しても使用可能なトラベルレン ジは変わりません。全作動トラベルレンジが常 に使用できます。

LISEGA コンスタントハンガー
タイプ 11 標準設計品
LISEGA コンスタントハンガー
タイプ 18 小型化された設計品
設計構造
ばねやカムなどの可動部品は鋼製のケースに収納さ れ、個々の部品をコンパクトに配置することにより 外形寸法の小型化が図られています。ケースは荷重 に耐えるよう設計され、標準化された接続部品を取 付けられるようにして大量生産されています。
接続の可能性
接続ねじはそれぞれのLISEGA荷重グループに対 応します。上部の接続ねじ部(タイプ 11)は規 定のねじ込み深さを持ち、下部のねじ部は長さ 調整用のナットとして設計されています。
タイプ 11コンスタントハンガーは付属部品を使 わずに適当な支持部材の上に直接置くことがで きます。さらに、標準として装備しているタッ プ穴を使用して特殊なサポートブラケットをボ ルト止めすることができます。荷重グループ9を 超えるタイプ 11コンスタントハンガー(大荷重 用)と、タイプ 18コンスタントハンガーは上部 の接続ねじの代わりにピン接続用のヨークプレ ートが取付けられています。
量産部品の接続方法

製品供給範囲
荷重グループ C から 9 のコンスタントハンガ ー及びサポートは標準化された単一セルハン ガーとして生産されます。さらにサイズ 8 及 び 9 のタイプ 11コンスタントハンガーを組み 合わせて、大荷重用のハンガーとして使用され ます。これにより標準品の製品供給範囲として 0.13kNから500kNまでをカバーします。コン スタントハンガーは7つの標準トラベルレンジ (75/150/300/450/600/750/900mm)の製品 を、コンスタントサポートは300mmまでの製品 を製作しています。
製品の設計と構成は、荷重容量、機能及び寿命に 関して、適用される国内及び国際的な規格と認知 された技術仕様に適合しています。これは使用 する材料、溶接技術及び他のプロセスにも適用さ れます。詳細は技術仕様0.9ページに記載されて います。
タイプ 79 トラピーズ
タイプ 71 サポートブラケット
タイプ 11 コンスタ ント ハンガー
タイプ 66 タイロッド
タイプ 61 ピン付きクレビス
タイプ 60 アイナット
タイプ 67 スタッドボルト
ばねはコンスタントハンガー・サポートの作動 において最も重要な部品です。ばねの長期の作 動性能はハンガー・サポートの運転上の安全性 に不可欠です。LISEGAコイルばねの設計は関連 する規格によっています。詳細は技術仕様 0章 に記載されています。
ある期間、荷重と温度にさらされると通常のコ イルばねはへたりにより支持力の一部を失いま す セトリングロス 。コンスタント及びスプリ ングハンガーでは、長期間では設定荷重の10% 以上の減少をもたらします。 計算例参照)
LISEGA は特別な処理を行うことによりへたり の少ないばねだけを使用します。ばねのへたり は使用時間と温度に依存して可塑性が生じるこ とにより起こります。
お客様 手配の 支持構造物
計画時の 状態 10%低下した状態 接続点 / ハンガー点 ハンガーの
(kN) 配管の z- 方向 移動量 (mm) 接続点の z-方向の 荷重増加 (kN)
ハンガーのへたりによる累積された 増加荷重の計算例 配管システム(配管径=525mm、 肉厚=27mm、温度=540℃、圧力 =50bar)において、ハンガー支持 力の10%低下を想定した場合、こ の支持力低下により配管は36.4mm 変位する。
最大の一次応力はボイラー接続部の 近くに発生し、その値は計画時の応 力よりも93%高く、ボイラー接続 部の許容応力を9%超える。
ASME B31.1に従った計算)
腐食防止
コンスタントハンガーは、上質な下地処理と、 高い安定性があり優れた防食性を持つLISEGAの 標準塗装で仕上げられます。コンスタントハン ガーのベアリングとベアリングボルトは電気め っきあるいは非腐食性材料です。ねじ部品とカ ムは電気めっきです。
ばねの表面は特殊な仕上げ処理をしています。
技術仕様 0.11ページ)
標準の腐食防止をされたコンスタントハンガー は、屋内や風雨から保護されている場所では保 守を必要としません。屋外や特別な状況での運 転では特別な腐食防止を適用できます。
技術仕様の腐食防止 0.10ページを参照)

塗装場

材料受入時のばねの試験

性能上の特性
LISEGA コンスタントハンガーは特有の作動原 理によりトラベルレンジ全体にわたっての荷重 不変性を保証します。これは荷重を調整した場 合でも影響されません。公差と摺動部の摩擦に よりわずかな荷重差が生じますが、この荷重差 は設計原理と最先端の生産技術によってきわめ て狭い範囲内に抑えられています。
量産品のLISEGAコンスタントハンガーでは、通 常の荷重設定では、設定荷重の荷重差は実績で 3%以内に保たれます。
選定の過程により荷重とトラベルレンジ次第で はさらに小さくすることが可能です。

500kN 試験装置を使用した、コンスタントハンガー タイプ12 の 荷重設定、試験及びロック装置取付
一般的に許容される荷重差は以下の国際規格に 定められています:
MSS SP-58 (アメリカ), 運転時荷重に対し最 大 6%
VGB-R510L 及び KTA 3205.3 (ドイツ)
運転時荷重に対し最大 5% 。荷重設定値 (中央値)に対しては 2%以内。
DIN EN 13480-T3 運転時荷重に対し最大 5%
性能試験
出荷の前に、コンスタントハンガー・サポート は正常に作動するか試験を行った後、要求荷重 値に設定されます。試験結果は記録されます。
設定荷重値は銘板に刻印されます。さらに設定 荷重値は荷重スケールにマークされます。運転 時及び冷間時の位置はトラベルスケール上にそ れぞれ赤と白のラベルで表示されます。
トラベルの位置はmmあるいはインチで表示され るトラベルスケールから直接読み取ります。

コンスタントハンガーの承認試験
設定荷重値はkNあるいはlbsで表示される荷重 スケールから直接読み取ります。性能試験で は、1,000kNの容量を持つ静的試験装置が使用 されます。試験装置は第三者機関により定期的 に検査されます。
LISEGAの試験技術は常に改良さ れ、最高レベルの技術を維持してい ます。これらの改良はコンスタント ハンガー・サポート、スプリングハ ンガー・サポート及びスナバー用の 試験装置に適用されています。
試験設備はLISEGAグループのすべ ての生産工場で稼動しており、ま た、可搬式のユニットはお客様の指 定場所での使用が可能です。
コンスタントハンガー・サポート 及びスプリングハンガー・サポー ト用として、荷重範囲が1kNから 1000kNまで、32台の試験装置があ ります。すべてのLISEGA試験装置 は校正されたロードセルと計測用 アンプと共にDIN EN ISO 7500に したがって定期的な間隔で試験さ れます。
すべての製品は据付状態に調整して 試験されます。
標準の検査要領による試験成績書の例



取付けスペースに応じ た多様な適用性 コンスタントハンガーの取付 けは、モジュールシステムの 多彩な標準部品を使用するこ とによりプラントのどんな状 況にも適用できます。
自動設計
すべてのサポート形状は、 LICAD 設計用ソフトウェア に6つのパラメーターを入力 することによりわずかな時間 で部品リストと図面を作成す ることができます。
75
61
67
11
63
67
49
63
61

コンスタントサポート タイプ 16の選定はタイプ 11の荷重グループとトラベルレンジによります。
荷重が0.25kNあるいは0.13kN以下のものはご要望によります。
この範囲は工場でのみ設定可能です。
最大トラベル。トラベルレンジ 7 (900mm)はご要望によります。
この範囲は大荷重用コンスタントサポート タイプ 16にも適用します。
タイプ 11に基づきます。
タイプ 11 C3 19 ~ 11 96 15 標準量産品 在庫品があります。

取付け寸法Eは上限位置での長 さです。他のセット位置ではE 寸法が長くなります。
X = 最小ねじ込み長さ 下側接続部の最大ねじ込み長さ = X + 300mm
注文要領:
コンスタントハンガー
タイプ 11 .. ..
ハンガー番号: ...
設定荷重: ...kN トラベル: ...mm 上向/下向
セット位置
(必要な場合): ...mm
C3 19350130150105M109Ø
11 D2 1930011015586M1011Ø113502502300195125431510 11 D3 19410130170106M1011Ø1154544526045280255431519
11 12 15385130140106M1212M103752652852513540861515
11 13 15415130140106M1212M1064544528520270165861525
11 14 15435130140106M1212M1093561528525325225861534
11 15 15465135150108M1212M10122579529525450350861552
11 22 15445160180132M1212M103852703502014045861521
11 23 15460160185132M1212M1065045536045270195861535
11 24 15480160185132M1212M1094563536045320245861548
11 25 15530165195136M1212M10121581037025460365861575
11 32 15445170190132M1612M1039027536010165301122027
11 33 15490170190132M1612M10675470360702601801102043
11 34 13545185210150M1612M10960645370403702601102073
11 35 13615190220155M1612M1012408203704046536011020110
11 42 15500185220150M2016M12440315400252601351052544
11 43 15570185220150M2016M127404954101102502101052566
11 44 13610185220150M2016M121040675410553702751052591
11 45 13665190240155M2016M1212858554206554045510525147
11 52 15590230270190M2420M1647034549030210701153073
11 53 15710230270190M2420M1677051549010528521512630115
11 54 15745230285190M2420M1611057054907541031012630159
11 55 15845230285190M2420M1614058804906053041513530212
11 62 15725275335230M3025M16555420580402408514535134
11 63 15815275335230M3025M1690056558016030026014535183
11 64 15845275345230M3025M16128575060015035531014935264
11 65 15885275345230M3025M16163092560012046038014935337
11 66 151145280345232M3025M162030133060015565060014935495 11 72 15780300380252M3635M206104556505028511017045195
11 73 15850300380252M3635M2094563565014030020517045262
11 74 151000300400252M3635M20137578565019540036017945378
11 75 151160305400256M3635M2017109756606566549018445550
11 76 151275305400256M3635M202150142566021071067518445690
11 82 15815320390256M4235M207055856505033011520050263
11 83 15945320390256M4235M20114071565021534028020050364
11 84 151110320400256M4235M20164592567030539042020050509
11 85 151200320420256M4235M202085111569012574059520050731 11 86 151260325420260M4235M202585162569025085082520050965
11 92 15865350435276M4835M247606307505035013519560336
11 93 151095350435276M4835M24119078575025035532519560475
11 94 151240350455276M4835M24173596077038038048019560677
11 95 151255355455280M4835M242160109077025058557019560862
11 96 151305355455280M4835M2427001620770290800820195601130

11 C3 1971 C3 .142070150265408103552506601335
11 D2 1971 D2 .137070155145405102602306601335
11 D3 1971 D3 .148070170265408253802606601338
11 12 1571 12 .149511514014560535270285810017312
11 13 1571 13 .152511514026560925480285810017317
11 14 1571 14 .1545115140385601335720285810017325
11 15 1571 15 .1575115150505601745950295810017331
11 22 1571 22 .157514018014575545275350812017315
11 23 1571 23 .159014018526575930475360812017321
11 24 1571 24 .1610140185385751345710360812017331
11 25 1571 25 .1660140195505751735925370812017338
11 32 1571 32 .1575140190150755602853601012025316
11 33 1571 33 .1620140190270759654953601012025323
11 34 1371 34 .16751402104007513807353701012025332
11 35 1371 35 .17451402205207517809603701012025340
11 42 1571 42 .1640160220155806203054001014025318
11 43 1571 43 .17101602202758010405454101014025329
11 44 1371 44 .17501602204258014908154101014025341
11 45 1371 45 .180516024060080191010554201014025349
11 52 1571 52 .1750200270160906603154901218025330
11 53 1571 53 .18702002702809010805654901218025342
11 54 1571 54 .19052002854009015358304901218025358
11 55 1571 55 .1100520028552090195510754901218025372
11 62 1571 62 .19152503351651107553355801222025445
11 63 1571 63 .1100525033528511012206555801222025462
11 64 1571 64 .1103525034540511017259756001222025490
11 65 1571 65 .110752503455251102190126560012220254112
11 66 1571 66 .113352503453451102410108060012220254112
11 72 1571 72 .19802703801751158303756501524025456
11 73 1571 73 .1105027038029511512856506501524025480
11 74 1571 74 .112002704004151151835105065015240254106
11 75 1571 75 .113602704005351152290131566015240254128
11 76 1571 76 .114752704002801152475105066015240254128
11 82 1571 82 .110252803901801209353506501524040565
11 83 1571 83 .1115528039030012014907756501524040591
11 84 1571 84 .113203004004201202115119067015260405139
11 85 1571 85 .114103204205401202675156069015280405184
11 86 1571 86 .114703204202701202905128069015280405184
11 92 1571 92 .1110530043519014010103807502026040582
11 93 1571 93 .11335300435310140156077575020260405109
11 94 1571 94 .114803204554301402225126577020280405162
11 95 1571 95 .114953404555501402770168077020320405273
11 96 1571 96 .115453404552601403020140077020320405273
サポートブラケット コンスタントハンガー
タイプ 11 用
タイプ 71 C3 .1 ~ 71 96 .1 標準量産品 在庫品があります。
材質: ベースプレート:
板厚 t 15mm : S235JR
板厚 t 20mm : S355J2
タイプ番号の5桁目は仕様を示 します。
6 標準設計品 8 特別仕様対応品
取付け寸法Eは上限位置での長 さです。他のセット位置ではE 寸法が変化します。
コンスタントハンガーは構造物 の上に直接置いて溶接取付けが できますが、この場合、調整ボ ルトとロックナットに接近でき るよう配慮してください。接近 できない場合はサポートブラケ ット タイプ 71を使用してく ださい。
最小溶接のど厚寸法 さらに長いサポートブラケットもご 要望により供給可能です。
注文要領: コンスタントハンガー タイプ 11 .. .. サポートブラケット付き タイプ 71 .. .. ハンガー番号: ... 設定荷重: ...kN トラベル: ...mm 上向/下向 セット位置 (必要な場合): ...mm
コンスタントハンガー
タイプ 12 82 35 ~ 14 96 35 標準品、多重セル型 在庫品があります。

取付け寸法Eは上限位置での長 さです。他のセット位置ではE 寸法が変化します。
注文要領:
コンスタントハンガー
タイプ 1. .. 35
ハンガー番号: ...
設定荷重: ...kN
トラベル: ...mm 上向/下向
セット位置
必要な場合: ...mm
12 82 358676353905556012055858054030050330909530160615
12 83 3599763539055560164071580540300215340909530160820
12 84 351162635400555602145925805403003053909095301601110
12 85 3512526354205556025851115805403001257409095301601555
12 86 3513126454205656030851625805453042508509095301602020
12 92 35917695435605701310630905903305035010511035175785
12 93 35114769543560570174078590590330250355105110351751070
12 94 35129269545560570228596090590330380380105110351751475
12 95 351307705455615702710109090595334250585105110351751845
12 96 351357705455615703250162090595334290800105110351752380
13 82 35867935390855701305585808402x3005033010512535210955
13 83 35997935390855701740715808402x300215340105125352101265
13 84 351162935400855702245925808402x300305390105125352101700
13 85 3512529354208557026851115808402x300125740105125352102370
13 86 3513129504208707031851625808502x304250850105125352103070
13 92 359171025435935801420630909202x33050350120140352301215
13 93 3511471025435935801850785909202x330250355120140352301640
13 94 3512921025455935802395960909202x330380380120140352302245
13 95 35130710404559508028201090909302x334250585120140352302810
13 96 35135710404559508033601620909302x334290800120140352303615
14 82 35867123539011558013855858011403x30050330120180352501305
14 83 35997123539011558018207158011403x300215340120180352501715
14 84 351162123540011558023259258011403x300305390120180352502300
14 85 3512521235420115580276511158011403x300125740120180352503190
14 86 3513121250420117080326516258011503x304250850120180352504125
14 92 35917135543512659014606309012503x33050350135180402501665
14 93 351147135543512659018907859012503x330250355135180402502230
94 351292135545512659024359609012503x330380380135180402503040 14 95 3513071375455128090286010909012603x334250585135180402503790 14 96 3513571375455128090340016209012603x334290800135180402504870
輸送用ラグ


12 82 4510255803901801209851095350300152403004707
12 83 45115558039030012015401530775300152403004964
12 84 4513206004004201202175204011903001526030041380
12 85 4514106204205401202730248015603001528030041901
12 86 4514706204202701202960298012803041528030442356
12 92 45110563043519014010701190380330202603305907
12 93 451335630435310140161516207753302026033051242
12 94 4514806504554301402285217012653302028033051752
12 95 4514956754555501402830259516803342032033452356
12 96 4515456754552601403080313514003342032033452892
13 82 45102588039018012098511453503001524060041087
13 83 451155880390300120155015857753001524060041464
13 84 4513209004004201202175209011903001526060042044
13 85 4514109204205401202730253015603001528060042848
13 86 4514709204202701202960303012803041528060843555
13 92 451105960435190140107012453803302026066051378
13 93 451335960435310140162016807753302026066051883
13 94 4514809804554301402285222512653302028066052647
13 95 45149510104555501402830265016803342032066853551
13 96 45154510104552601403080319014003342032066854344
14 82 451025118039018012099011903503001524090041465
14 83 4511551180390300120155016257753001524090041970
14 84 45132012004004201202175213011903001526090042745
14 85 45141012204205401202730257015603001528090043817
14 86 45147012304202701202960307012803041528091244756
14 92 4511051290435190140107512703803302026099051866
14 93 4513351290435310140162017007753302026099052540
14 94 45148013104554301402285224512653302028099053559
14 95 451495134045555014028302670168033420320100254766
14 96 451545134045526014030803210140033420320100255841
コンスタントハンガー タイプ 12~14 サポートブラケット付き タイプ 12 82 45 ~ 14 96 45 標準品 在庫品があります。
材質: ベースプレート:
板厚 t 15mm : S235JR 板厚 t 20mm : S355J2
取付け寸法EとG2は上限位置で の長さです。他のセット位置で はEとG2寸法が変化します。
最小溶接のど厚寸法
長さの違うサポートブラケットも ご要望により供給可能です。
注文要領: コンスタントハンガー サポートブラケット付き タイプ 1. .. .. ハンガー番号: ... 設定荷重: ...kN トラベル: ...mm 上向/下向 セット位置 必要な場合 : ...mm
タイプ 18 D3 17 ~ 18 93 17 標準品 在庫品があります。

取付け寸法Eは上限位置での長 さです。他のセット位置ではE 寸法が長くなります。
X = 最小ねじ込み長さ 下側接続部の最大ねじ込み長さ = X + 150mm.
最大許容荷重:
緊急時 (C) at 80°C = 設定荷重 x 1.33
損傷時 (D) at 150°C = 設定荷重 x 1.66
ロック時最大荷重 at 80°C = 設定荷重 x 1.5
11 270.541.7175610205M12172672342510241532 18 12 270.541.71150664205M12173042702510241536 18 13 270.541.71300973205M12174644302510241559 18 21 171.253.075610205M12172672342510241532 18 22 171.253.0150664205M12173042702510241540 18 23 171.253.0300973205M12174644302510241559 18 21 272.24.075610205M12172672342510241532
18 22 272.24.0150664205M12173042702510241540
18 23 272.24.0300973205M12174644302510241559
18 31 172.85.1575652205M16212822443010362038
18 32 172.85.15150837233M16213362933010362076
18 33 172.85.153001099233M162148344030103620100
18 31 273.86.875652205M16212822443010362038
18 32 273.86.8150837233M16213362933010362076
18 33 273.86.83001099233M162148344030103620101
18 41 175.09.375755233M20213282863010362572
18 42 175.09.3150934261M202135130230103625105
18 43 175.09.33001099233M202148244030103625107
18 41 276.912.475755233M20253312864015322572
18 42 276.912.4150934261M202535430240153225117
18 43 276.912.43001288261M202550045540153225158
18 51 179.216.275755233M24253302864015323073
18 52 179.216.2150934261M242535330240153230118
18 53 179.216.23001288261M242549945540153230159
18 51 2711.921.975812261M24253342904015323099
18 52 2711.921.91501055276M242537231540153430166
18 53 2711.921.93001426276M242550846040153430221
18 61 1716.1529.975878261M303435831550183435119
18 62 1716.1529.91501140291M303438033350183435201
18 63 1716.1529.93001592291M303451446750183435273
18 61 2722.140.575878261M304136831565204435123
18 62 2722.140.51501302278M304139233565204435205
18 63 2722.140.53001720302M304152747265204435343
18 71 1729.847.075976276M364139534065204445164
18 72 1729.847.01501446291M364139834365204445242
注文要領:
コンスタントハンガー
タイプ 18 .. ..
ハンガー番号: ...
設定荷重: ...kN トラベル: ...mm 上向/下向
セット位置 (必要な場合): ...mm
18 73 1729.847.03001720302M364157847265204445357
18 71 2735.060.0751072291M364141736265224445201
18 72 2735.060.01501570302M364142537065224445313
18 73 2735.060.03001935362M364157151365224445534
18 81 1744.280.0751251302M425146239080256450283
18 92 1759.0100.01501805362M485148641380256460520 18 93 1759.0100.03001965347M485162154780256460756

19 D3 170.210.5130097324520516314.59134308018510359 19 D1 270.210.727561024520516314.54902348018510337 19 D2 270.210.7215066424520516314.56002708018510342 19 D3 270.370.7230097324520516314.59134308018510360 19 11 270.541.717561024520516314.54902348018510338 19 12 270.541.7115066424520516314.56002708018510343 19 13 270.541.7130097324520516314.59134308018510366
19 21 171.253.07561024520516314.54902348018510338
19 22 171.253.015066424520516314.56002708018510347
19 23 171.253.030097324520516314.59134308018510366
19 21 272.24.07561024520516314.54902348018510338
19 22 272.24.015066424520516314.56002708018510347
19 23 272.24.030097324520516314.59134308018510367
19 31 172.85.157565224520516314.54992448018510343
19 32 172.85.1515083730023318918.563929310021012485
19 33 172.85.15300109930023318918.5969440100210124112
19 31 273.86.87565224520516314.54992448018510343
19 32 273.86.815083730023318918.563929310021012485
19 33 273.86.8300109930023318918.5969440100210124113
19 41 175.09.37575530023318918.556528610021012480
19 42 175.09.315093430026120518.5667302100210140116
19 43 175.09.3300109930023318918.5969440100210124118
19 41 276.912.47575530023318918.556528610021012480
19 42 276.912.415093430026120518.5667302100210140127
19 43 276.912.4300128830026120518.5987455100210140176
19 51 179.216.27575530023318918.557728610021012484
19 52 179.216.215093430026120518.5668302100210140131
19 53 179.216.2300128830026120518.5987455100210140176
19 51 2711.921.97581230026120518.5581290100210140111
19 52 2711.921.9150105540027622022.5713315120280150183
19 53 2711.921.9300142640027622022.51016460120280150241
19 61 1716.1529.97587830026120518.5607315100210140130
19 62 1716.1529.9150114040029123322.5718333120280163219
19 63 1716.1529.9300159240029123322.51021467120280163294
19 61 2722.140.57587830026120518.5607315100210140134
19 62 2722.140.5150130240027822022.5717335120280150221
19 63 2722.140.5300172040030224022.51041472120280170370
19 71 1729.847.07597640027622022.5655340120280150182
19 72 1729.847.0150144640029123322.5728343120280163263
19 73 1729.847.0300172040030224022.51041472120280170384
19 71 2735.060.075107240029123322.5672362120280163218
19 72 2735.060.0150157040030224022.5757370120280170333
19 73 2735.060.0300193540036230022.51111513120280230565
19 81 1744.280.075125140030224022.5744390120280170303
19 82 1744.280.0150180540036230022.5829413120280230552
19 83 1744.280.0300196540034728522.51186547120280215774
19 91 1759.0100.075152040030224022.5739385120280170352
19 92 1759.0100.0150180540036230022.5829413120280230553
19 93 1759.0100.0300196540034728522.51186547120280215804
相手方製品のスライド面にはステンレス鋼のプレートを取付けてください。これはタイプ番号の後ろに「SP」の 記号をつけて指示します。 例:クランプベース タイプ 49 22 25-SP)
注文要領:コンスタントサポート タイプ 19 .. ..、ハンガー番号: ...、設定荷重:...kN、 トラベル: ...mm 上向/下向、セット位置:(必要な場合): ...mm
コンスタントサポート タイプ 19 D3 17 ~ 19 93 17 標準品 在庫品があります。
スライドプレート付きロードプレー ト。クランプベース選定時に考慮し てください。
取付け寸法Eは上限位置での長 さです。他のセット位置ではE 寸法は短くなります。
+60mmの調整が可能です。
タイプ 19 .. .7 はPTFEスライド プレートが標準として付属して います。高温度用のスライドプ レートが必要な場合はタイプ 19 .. .6となります。
下表参照 サポートブラケットの寸法Kは 変更が可能です。ただし、荷重 調整ボルトに近接できることの 確認が必要です。
スライドプレート付きタイプ 19* ØL
* スライドプレートの摩擦係数は 7.11ページの表を参照
最大許容荷重:
緊急時 (C) at 80°C = 設定荷重 x 1.33
損傷時 (D) at 150°C = 設定荷重 x 1.66
ロック時最大荷重 at 80°C = 設定荷重 x 1.5
アンギュレーティング
コンスタントサポート
タイプ 19 D3 37 ~ 19 93 37 標準品 在庫品があります。
配管システムの大きな水平移 動に対応して、コンスタント サポートに球面軸受付きのジ ョイントが取付けできます。

接続部の球面軸受ジョイントは溶接 ブラケット タイプ 35に適合するよ う設計されています。
取付け寸法Eは上限位置での 長さです。他のセット位置 ではE寸法は短くなります。 +200mmの調整が可能です。
接続の可能性:溶接ブラケット タイプ 35及びダイナミッククラ ンプ(製品グループ 3)のピン サイズを参照。
最大許容荷重:
緊急時 (C) at 80°C = 設定荷重 x 1.33
損傷時 (D) at 150°C = 設定荷重 x 1.66
ロック時最大荷重 at 80°C = 設定荷重 x 1.5
19 21 371.253.0756102452051631249053234342537
19 22 371.253.01506642452051631260053270342545
19 23 371.253.03009732452051631291353430342565
19 21 472.24.0756102452051631249053234342537
19 22 472.24.01506642452051631260053270342545
19 23 472.24.03009732452051631291353430342566
19 31 372.85.15756522452051631551259244363042
19 32 372.85.151508373002331891563259293363083
19 33 372.85.15300109930023318915965594403630110
19 31 473.86.8756522452051631551259244363043
19 32 473.86.81508373002331891563259293363083
19 33 473.86.8300109930023318915965594403630111
19 41 375.09.3757553002331891556159286363078
19 42 375.09.315093429026120515663593023630114
19 43 375.09.3300109930023318915965594403630117
19 41 476.912.4757553002331891556159286363079
19 42 476.912.415093429026120515663593023630125
19 43 476.912.4300128829026120515982594553630175
19 51 379.216.2757553002331892060980286604086
19 52 379.216.215093429026120520700803026040133
19 53 379.216.23001288290261205201020804556040178
19 51 4711.921.97581229026120520613802906040112
19 52 4711.921.9150105540027622020727803156040184
19 53 4711.921.93001426400276220201030804606040242
19 61 3716.1529.97587830026120520641803156040133
19 62 3716.1529.9150114040029122020732803336040220
19 63 3716.1529.93001592400291220201035804676040295
19 61 4722.140.57587830026120520641803156040136
19 62 4722.140.5150130240027822020731803356040222
19 63 4722.140.53001720400302220201058804726040372
19 71 3729.847.07597640027622030708933406060186
19 72 3729.847.0150144640029123330781933436060267
19 73 3729.847.03001720380302240301094934726060389
注文要領: アンギュレーティング コンスタントサポート
タイプ 19 .. .. ハンガー番号: ...
設定荷重: ...kN トラベル: ...mm 上向/下向 セット位置 (必要な場合): ...mm
1.21
19 71 4735.060.075107239829123330725933626060222
19 72 4735.060.0150157040030224030810933706060338
19 73

79 D3 170.421.023001700973205175692510801401191.7
79 D1 270.421.4475170061020517372251080140811.7
79 D2 270.421.44150170066420517409251080140891.7
79 D3 270.741.443001700973205175692510801401231.7
79 11 271.083.4275170061020517393251080140811.7
79 12 271.083.42150170066420517430251080140891.7
79 13 271.083.423001700973205175902510801401351.7
79 21 172.56.075170061020517393251080140791.7
79 22 172.56.0150170066420517430251080140951.7
79 23 172.56.03001700973205175902510801401351.7
79 21 274.48.075170061020517393251080140791.7
79 22 274.48.0150170066420517430251080140951.7
79 23 274.48.03001700973205175902510801401351.7
79 31 175.610.37518006522052141030101201901042.7
79 32 175.610.315018008372332146430101201901802.7
79 33 175.610.3300180010992332161130101201902282.7
79 31 277.613.67518006522052141030101201901042.7
79 32 277.613.615018008372332146430101201901802.7
79 33 277.613.6300180010992332161130101201902302.7
79 41 171018.67518007552332147230101402001783.2
79 42 171018.615018009342612148830101402002443.2
79 43 171018.6300180010992332162630101402002483.2
79 41 2713.824.87518007552332547540151402001783.2
79 42 2713.824.815018009342612549140151402002683.2
79 43 2713.824.8300180012882612564440151402003503.2
79 51 1718.432.47518007552332548940151802301944.4
79 52 1718.432.415018009342612551240151802302844.4
79 53 1718.432.4300180012882612565840151802303664.4
79 51 2723.843.87518008122612549340151802302464.4
79 52 2723.843.8150180010552762552140151802303804.4
79 53 2723.843.8300180014262762566740151802304904.4
79 61 1732.359.87524008782613452150182603103207.6
79 62 1732.359.8150240011402913454450182603104827.6
79 63 1732.359.8300240015922913467850182603106287.6
79 61 2744.2817524008782614153165202603103287.6
79 62 2744.281150240013022784155665202603104927.6
79 63 2744.281300240017203024169065202603107707.6
79 71 1759.6947524009762764158665203003504309.2
79 72 1759.694150240014462914158965203003505869.2
79 73 1759.694300240017203024176965203003508129.2
79 71 277012075240010722914160765223003505049.2
79 72 2770120150240015703024161765223003507289.2
79 73 27701203002400193536241762652230035011709.2
79 81 1788.416075180012513025167780253003506729.2
79 82 1788.41601501800180536251702802530035011429.2
79 83 1788.41603001800196534751836802530035015549.2
79 91 1711820075180015203025169480253003507629.2
79 92 171182001501800180536251725802530035011389.2
79 93 171182003001800196534751859802530035016129.2
取付け寸法Eは上限位置での長さで す。他のセット位置ではE寸法は長 くなります。
Lmax寸法は2400mmまで長くする ことができます。この場合、許容 荷重は100mm長くなるごとに5% 減少します。
コンスタントハンガートラピーズ を選定するときは、チャンネル鋼 とクランプベースの重量を運転時 荷重に加算してください。
最大許容荷重: 緊急時 (C) at 80°C = 設定荷重 x 1.33 損傷時 (D) at 150°C = 設定荷重 x 1.66 ロック時最大荷重 at 80°C = 設定荷重 x 1.5
注文要領: トラピーズ タイプ 79 .. .. L = ...mm ハンガー番号: ... サポート点の設定荷重: ...kN トラベル: ...mm 上向/下向 セット位置 必要な場合 : ...mm
コンスタントハンガー トラピーズ
タイプ 79 D2 15 ~ 79 96 15 このタイプは、取付けスペース
が狭く標準タイプ 79 .2 34 が 適さないところに使用されま す。トラピーズは工場で取付け て出荷されます。

X = 最小ねじ込み長さ +300mmの寸法調整ができます。
注文の際、寸法L及びZを指定し てください。
取付け寸法E及びCは目盛位置 =0mmでの長さです。他のセッ ト位置ではE及びC寸法は長くな ります。
コンスタントハンガートラピー ズを選定するときは、その重量 とクランプベースの重量を運転 時荷重に加算してください。
Lmax寸法は2400mmまで長くす ることができます。この場合、 許容荷重は100mm長くなるご とに5%減少します。
注文要領:
トラピーズ タイプ 79 .. ..
L = ...mm
Z = ...mm
ハンガー番号: ...
サポート点の設定荷重: ...kN
トラベル: ...mm 上向/下向
セット位置
必要な場合 : ...mm
79 D2 15121032536511018015110015306.6
79 D3 15123043556013024515110015486.6
79 12 151930515390130235301800156123.8 79 13 151930545660130380301800158123.8 79 22 151960575400160240301800157423.8
79 23 1519605906651603553018001510323.8
79 32 1521706054101702354520002010436.4
79 33 1521706506951703704520002013736.4
79 34 1321707009601855604520002017436.4
79 35 13217077512401907354520002025536.4
79 42 1521856404651851905520002515344.0
79 43 1521857107651854155520002519944.0
79 44 13218575010401856255520002525344.0
79 45 13219080512851906855520002537044.0
79 52 1523307405002302756521003023050.6
79 53 1523308608002304206521003031850.6
79 54 15233089511352306606521003040850.6
79 55 152330100514352308456521003052858.8
79 62 1523758955902753157021003538466.4
79 63 1523759859352754807021003548666.4
79 64 152375101513202758157021003565066.4
79 65 1523751055166527510857021003579866.4
79 66 15238013152065280126570210035112066.4
79 72 1524009706553003208521004554983.6
79 73 15240010409903005608521004568883.6
79 74 152400120014203008208521004594192.4
79 75 15240513601755305102085210045129692.4
79 76 15240514752195305127585210045160092.4
79 82 152420101575532038095210050746119.0
79 83 1524201145119032065095210050959119.0
79 84 152420131016953201015952100501263119.0
79 85 152420140021353201275952100501715119.0
79 86 152425146026353251545952100502190119.0
79 92 1524501065820350430100210060908119.0
79 93 152450129512503506651002100601207119.0
79 94 1524501440179535010551002100601625119.0
79 95 1524551455222035513951002100601997119.0
79 96 1524551505276035516801002100602530119.0


16 82 2986764063558050055511201132120585300200490300503301515300635
16 83 29997640635580500555185518671207157552004903002153401515300920
16 92 2991774069563057060511901202140630320240570330503502020330805
16 93 2911477406956305706051915192714078574524057033025035520203301165
16 82 3986764093588080085511201132120585300200490300503301515600965
16 83 399976409358808008551855186712071575520049030021534015156001395
16 92 399177401025960900935119012021406303202405703305035020206601220
16 93 39114774010259609009351915192714078574524057033025035520206601765
16 82 498676401235118011001155112011321205853002004903005033015159001295
16 83 4999764012351180110011551855186712071575520049030021534015159001865
16 92 499177401355129012301265119012021406303202405703305035020209901635
16 93 49114774013551290123012651915192714078574524057033025035520209902365
取付け寸法Eは上限位置での長さです。 他のセット位置ではE寸法は短くなりま す。+60mmの調整が可能です。
スライドプレートを取り付ける場合、取 付け寸法は E に対応してこの欄にな ります。
タイプ 16 .. .9は標準品で、スライドプ レートがないロードプレート付です。水 平移動がある場合は、スライドプレート の使用をお奨めします。タイプ番号は右 の表をご覧ください。
スライドプレートを使用する場 合、相手方製品のスライド面には ステンレス鋼のプレートを取付け てください。
これはタイプ番号の後ろに「SP」の 記号をつけて指示します。(例:クラ ンプベース タイプ49 22 25-SP)
Ø L1
スライドプレート付きのロードプレート
ハンガー番号: ... 設定荷重: ...kN トラベル: ...mm 上向/下向 セット位置 必要な場合 :
スプリングやコンスタント ハンガー・サポートを使用 しているにもかかわらず、
ある条件では配管システム や他の機器の熱移動は摩擦 や他の影響によって拘束さ れます。このような場合に はサーボハンガーが能動的 に拘束を解消します。
適用
標準的なケースでは、配管システムの重量はコ ンスタントハンガー・サポートの設定荷重と実 用上平衡します。発生する誤差の合計とこれに より配管に働く追加の応力は許容範囲内におさ まります。
いくつかのケースでは、発生する誤差の合計は 許容レベルを超え、二次応力の形で配管システ ムやその接続部の寿命を相当減少させます。(ク リープ強度の領域)
誤差は以下により生じます:
配管の径や肉厚公差による重量差
事前に決定できない保温の重量差 コンスタントハンガーの機械的な摩擦と製 造公差(許容値±5%) ばねのへたりによる支持力低下
容易には決定できない配管静力学上の差 理論的な計画荷重分配と実際の荷重分配 の誤差
誤差の組合せは累積して重大なレベルに達する ことがあります。この誤差はフレキシブルな やわらかい」配管システムで特に負の影響を持 ちます。比較的小さな誤差でも上下方向の移動 は妨害され、さらには完全に抑制されます。
追加荷重以外にも、許容できないたわみは高圧配 管のスプリングヒステリシスにより逆勾配を生じ ます。経年変化に加えて、逆勾配による危険なウ ォーターハンマー現象を引き起こしかねません。
そのような場合、受動的に作動するコンスタン トハンガーを能動的に作動するLISEGAサーボハ ンガーで補完することをお奨めします。
LISEGAサーボハンガーの 適用例
本来の冷間時位置
運転時位置
新しい冷間時位置
サーボハンガーなし(左図) 配管システムは運転時位置にとどま っている
サーボハンガーあり(右図) 配管システムは規定の位置に移動 する

油圧サーボのサポートを使用することにより、配 管システムは所定のレベルに再設定されます。
設計と作動モード
サーボハンガーはタイプ 11コンスタントハンガ ーをベースとして、荷重差を打消すために両方
理論上(温度)と実測(トラベル)の差の許容範 囲を設定することができます。この値の範囲外に なると、制御装置は自動的にオフになります。
システムあるいはボイラーの保守作業の際には サーボ補助は手動で起動停止ができます。

標準的には、支持する配管システムの温度を制 御パラメーターとして使用します。この温度は 対応するトラベル位置へ電子的に変換されます 理論値と実測値の比較によって実際のレベル位
置に対して移動を制御します。
電気油圧制御
油圧ユニットと制御装置はサーボハンガーの近 くに設けられたスイッチキャビネットの中にそ れぞれ配置されます 最大距離16m 。
移動制御用の油圧ピストンはコンスタントハン ガーの荷重チューブの中に配置されています。
電気油圧制御装置は、運転時に停電などが起こ った場合サーボ補助のみが失われ、ユニットは コンスタントハンガーとして有効に作動を続け
るよう設計されています。
製品サイズ
荷重グループ 5 (FN 20kN)から 9 (FN100kN)、ト ラベルレンジ 2 (150mm)と 3 (300mm)が標 準です。特別設計品を供給することも可能です。
取扱説明
据付、取扱説明、保守要領書は供給範囲に含ま れています。

FN [kN] 荷重範囲 [kN]
コンスタントハンガーの容量選定
レンジ2 レンジ3 [mm] [mm]
17 5. 15208 – 2075 – 150150 – 3008
17 6. 154016 – 4075 – 150150 – 30020
17 7. 156024 – 6075 – 150150 – 30020
17 8. 158032 – 8075 – 150150 – 30020
17 9. 1510040 – 10075 – 150150 – 30020
据付及び取扱要領 タイプ 11, 12~14, 18, 19
1 輸送と保管
輸送中は接続ねじ、ロック装置、荷重調整ボルトな どが損傷しないよう注意してください。屋外に保管 する場合は、汚れと水分から保護してください。
2 出荷状態
LISEGAコンスタントハンガーは指定の冷間時荷 重とトラベル位置にセットして固定されます。
ロック装置 ガイドピン
銘板
運転時位置の赤ラベル 取外したロック装置の取 付け用ねじ
トラベルスケール
ロック用プレート
荷重インジケーター
荷重スケール
荷重調整フード
荷重調整ボルト 荷重チューブ
最小ねじ込み深さ確認穴 調整ナット(球面座付き)

冷間時/運転時位置ラベルを貼った トラベルスケール

調整した値は荷重スケール及びトラベルスケー ル、銘板から読み取れます。

荷重スケールとインジケーター 連結型コンスタントハンガー タイプ 12~14 コンスタントハンガー タイプ 11

理論上の運転時位置は赤いラベルで、理論上の 冷間時位置は白いラベルでトラベルスケール上 に表示されます。指定の荷重値は最終検査時に 荷重スケール上にX印で刻印されます。読み取り の基準位置はガイドピンの中心です。

フラット形コンスタントハンガー タイプ 18
調整用 スピンドル

コンスタントサポート タイプ 19

球面軸受付きラグ
調整用スピンドル
球面軸受 付きラグ
サポートブラケット アンギュレーティングコンスタントサポート タイプ 19

設計データを刻印した銘板
タイプ番号
製造番号
LISEGA 管理番号
設定荷重
検査員
設計トラベル ハンガー番号

タイプ 79 トラピーズ
タイプ 71
サポート ブラケット
タイプ 11 コンスタント ハンガー
タイプ 66 タイロッド
タイプ 61 ピン付きクレビス
タイプ 60 アイナット
タイプ 67 スタッドボルト

上側接続部の最小ねじ込み深さX タイプ 11の選定表1.15ページ 参照
確認穴 銘板には以下の項目が刻印されます:
タイプ 11 C3 .. ~ 11 96 .. (単一セル型)
の接続部
上側の接続部は規定のねじ込み深さを持つめね じになっています。下側の接続部はすべての方 向に4°まで傾くことができる球面の調整ナット になっています。接続ねじ部はグリースが充填 され、プラスチックキャップで封をされます。
ロッドと接続する場合、ロッドは少なくとも調整 ナットの確認穴の位置までねじ込んでください。 ここからさらに300mmねじ込むことが可能です。
タイプ 12 82 ..~ 14 96 .. (大荷重用) の接続部
上側の接続部はヨークプレートになっていま す。下側の接続部はそれぞれのコンスタントハ ンガーセルの球面の調整ナットをヨークプレー トでつないでおり、4°まで傾くことが可能で す。接続ねじ部はグリースが充填され、プラス チックキャップで封をされます。
コンスタントハンガー タイプ 11 (置き型)
すべてのサイズのコンスタントハンガーは直接 設置する ことができます。また、量産品のサ ポートブラケット タ イプ 71とともに使用で
支持構造物 (ボルト止めまたは溶接)
きます。ブラケットはご指定により工場または 現地で取付けることができます。サポートブラ ケットのベースプレートは取付け面に溶接しま す。ご要望により、ボルトで取付けられるよう スロット穴を加工したサポートブラケットも供 給可能です。
タイプ 18 の接続部
上側の接続部はヨークプレートになっていま す。下側の接続部はすべての方向に4°まで傾 くことができる球面の調整ナットになっていま す。接続ねじ部はグリースが充填され、プラス チックキャップで封をされます。
タイプ
コンスタントサポートの上側の接続部は、ロー ドプレートまたは水平移動による摩擦力低減 のためのスライドプレートが取付けられていま す。また、アンギュレーティングコンスタント サポートは球面軸受付きのラグが取付けられて います。下側の接続部はそれぞれ台座あるいは ラグになっています。台座を溶接する場合はコ ンスタントサポートの内部部品を保護してくだ さい。

荷重チューブの最小ねじ込み深さ
冷間時位置
運転時位置
ロッドは運転時に垂直
タイプ 12 82 .. ~ 14 96 .. (大荷重用) の輸送用固定装置
連結型のコンスタントハンガーは輸送用の固定 装置(保持棒、座金、ナット)をつけて供給さ れます。(赤着色部)
冷間時位置 運転時位置
ロッドは据付時に垂直
輸送用固定装置 タイプ 12 82 .. – 14 96 .. 1 保持棒
輸送用固定装置は、ハンガーの据付が完了しロ ック装置を取外してから緩めてください。
赤く塗られたナットと座金を、ソケットレンチを 使用して下側から取外します。保持棒とナットは ロック装置と同じ場所に保管してください。荷重 を負荷させるときは下側のねじロッドは少なくと も調整ナットの確認穴の位置までねじ込んでくだ さい。下側のヨークプレートの取付け寸法は、調 整ナットにより+250mm、-70mmまで調整す ることが可能です。
3 コンスタントハンガーの据付 据付に当たっては、配管システムの据付指示に従 ってください。ハンガーロッドの取付け位置につ いては特に注意が必要です。次の2つの方法があ ります:
A) ハンガーロッドが運転時に垂直になるよう、 配管システムの水平方向移動量に対応する傾斜 角度をつけて取付ける。
B) 点検を容易にするために、ハンガーロッドを 垂直に取付ける。運転時にはロッドの傾斜角度 が限度内で許容される。
いずれにするかはプラント全体で統一された仕 様を適用してください。
ハンガーロッドは負荷をかけた状態で接続して ください。
タイプ 11 C3 .. ~ 11 96 .. (単一セル型) 輸送用ラグあるいは他の組立用装置は側面にあ るねじ穴に取り付けることができます。ハンガ ーロック装置を取外した後(4項参照)、ロッ ク装置はここにボルト止めして保管してくださ い。サポートブラケット タイプ71付きのコン スタントハンガーでは上側の接続ねじ部に輸送 用ラグが付いており、ここにロック装置を保管 します。
タイプ 12 82 .. ~ 14 96 ..
ハンガーを据付する際の吊上げ用として、上側ヨ ークプレートの横の開口を使用できます。サポー トブラケット付きのハンガーでは、上側ヨークプ レートの代わりに輸送用ラグが付きます。
4 ロック装置の取外し
要求事項
コンスタントハンガーの正しいロック解除は、 配管システムを正常に運転させるために不可欠 です。以下の指示は必ず守ってください。
ロック装置はできるだけ試運転の直前に取外し てください。
ロック装置の取外しは固定点あるいは接続点か ら順番に計画的に行ってください。
この前に、据付要領の3項に従いシステム全体を 点検してください。
実際の状態と理論状態 すべての接続点が荷重を負荷していることが確認 できれば、支持重量はコンスタントハンガーまた はサポートによって完全に負担されています。
自重が設定荷重と一致し配管システムが異常な兆候 を示さないときは計画された平衡状態が得られてお り、ロック装置は容易に取外すことができます。
しかし実際には配管システムのわずかな荷重差 は避けることができません。
また、理論的に決定された荷重は大きな許容差 が有り、その結果、過大荷重または過小荷重に なることによってロック装置の下側あるいは上 側をガイドピンが押し付けます。
取外し要領
ロック装置はガイドピンがフリーになれば取外せ ます。設定荷重は冷間時荷重にハンガーの部品重 量を加えたものです。ガイドピンが上側または下 側に寄っている場合はロック装置を取外す前に荷 重調整が必要です 5項 荷重調整を参照 。
ロック装置を取外すときは外側のロックリング のみを緩めてください。

ロックされた状態
外側のロックリングと ロック装置の取外し

外側のロック リングの取付け
ロック装置の取外し完了
必要なときには、ハンガー・サポートはどの位 置ででも再度ロックできます。ロック装置をガ イドピンに取付け固定します。ロック装置は使 わないときはコンスタントハンガー タイプ11 ~14の本体側面にねじで取付けて保管します。
荷重の負荷 ロック装置は決して無理やり取外さないで ください!
コンスタントハンガーでは調整ナットを少し回 転させ接続ロッドを緩めるか締めることによ り、また、コンスタントサポートではサポート チューブの同様の調整により、配管システムへ の作用力を微調整すれば、ガイドピンはフリー になります。
力のバランスを取るとき、配管システムの位置 は変えないでください!
ある場所の調整により他の場所の状態が変化す ることがあるので、必要によりこの調整を異な った場所で繰り返してください。原則としてす べてのガイドピンがフリーになった時点でロッ ク装置を取外してください。
5 荷重調整 タイプ 11, 12~14
LISEGA工場で設定された荷重が実際に作用する 重量と相違する場合は荷重調整が必要です。こ
の場合、LISEGAハンガーは据付状態で設定荷重 の調整が可能です。
荷重が増加すれば許容トラベルは小さくなるの で注意が必要です。多くは、トラベルと荷重 の余裕代があるためあまり問題にはなりません が、安全のため、カタログデータにより確認し てください。荷重調整により取付け寸法を変更 した場合は部品の調整を行ってください。
調整要領:
1) 荷重調整ボルトのロックナットを緩めてくだ さい。 2ヶ所)
a)ガイドピンはフリーの状態: コンスタントハンガーの設定荷重は 作用重量と一致しています。ロック 装置は取外すことができます。
b)ガイドピンが下側に押し付けら れている場合:
コンスタントハンガーの設定荷重は 作用重量より小さい。接続ロッドを 緩めるか、設定荷重を増やします。
c)ガイドピンが上側に押し付けら れている場合: コンスタントハンガーの設定荷重は 作用重量より大きい。接続ロッドを 締めるか、設定荷重を減らします。



2) 荷重調整ボルト(2ヶ所)を交互に¼回転 ずつ、状況により締めるか緩めるかしてく ださい。荷重調整フードのベースプレート とコンスタントハンガー本体の下端は平行 になるようにしてください。
この手順はガイドピンがロック装置の上側ま たは下側から離れるとすぐに終えてくださ い。荷重の大きなコンスタントハンガーでは 調整する力も大きくなり、人力では調整でき ない場合は補助装置を使用してください 6項 補助装置参照 。
3) 荷重調整ボルトのロックナットを締めて廻り 止めを行ってください。
荷重調整 タイプ 18, 19
左側と右側にある荷重調整ボルト によりレバ ーアームの長さを変えます。
荷重調整しても許容トラベルは変わりません。
6 補助装置
接続ロッドを締めたり緩めたりすることや、荷 重調整はすべてのハンガーで人力で行えます。
荷重の大きなハンガーでは大きな力がいるため この作業は大きな労力を必要とします。
この作業を容易にするため、手動ポンプを使った 油圧ユニットによる補助装置が使用できます。
この作業はLISEGAの作業者により行います。
荷重調整ボルトの負荷軽減に 使用する据付用装置

側部にボルトで止められた ロック装置

調整要領:
1) 舌付き座金を緩めます。
2) 両側にある荷重調整ボルトをガイドピンが フリーになるまで等分に締めるか緩めるか してください。
3) 舌付き座金をロックして荷重調整ボルトの 廻り止めを行います。
調整ナットの負荷軽減に 使用する据付用装置
コンスタントハンガー及びサポートの正常な機能 は、ガイドピンの位置を点検することによりいろ いろな運転状態で確認することができます。
通常の運転条件の下では、特別な保守は必要あ りません。







目 次 ページ
適用範囲 ..............................................2.1 LISEGA スプリングハンガーの特別な利点 .....................2.2
スプリングハンガー、スプリングサポート概要..................2.3
容量選定の概要、スプリング製品............................2.5
選定表 ...............................................2.7
スプリングハンガー タイプ 21 ............................2.7
大荷重用スプリングハンガー タイプ 22 ......................2.8
スプリングハンガー タイプ 25 ............................2.9
大荷重用スプリングハンガー タイプ 26 .....................2.10
スプリングサポート タイプ 29 ...........................2.11
大荷重用スプリングサポート タイプ 28 .....................2.12 アンギュレーティングスプリングサポート タイプ 20 ...........2.13
スプリングハンガートラピーズ タイプ 79 ...................2.14
スウェイブレース タイプ 27 .............................2.15
テレスコーピングスプリングサポート タイプ 29 ..............2.17
据付及び取扱要領 ......................................2.19
システムの拘束を避けるた め、高温配管の熱膨張は妨 げてはいけません。そのた め配管は弾性的な方法で支 持しなければなりません。

配管システムの小さい上下方向の移動を吸収す るため、ばねを使ったサポート製品が使用され ます。これはヘリカルコイルばねを基本としてお り、ばねの特性に従って移動量に比例して支持荷 重が変動します。この荷重変動は応力解析計算を 行う際に配管の感受性に応じて制限されます。
スプリング製品の機能に関連する基本はガイドライ ンに規定されています。
技術仕様0.5ページ参照
LISEGA スプリングハンガー及びサポート さまざまな設置条件に適したスプリング製品が広 い範囲から使用できます。据付の状況により理想 的な選定ができます。
スプリングハンガー・サポートは冷間時での配管重 量とばねの力が同じになるよう設定されます(0.5ペ ージ参照)。運転時の荷重と位置は配管の設計移動 量(トラベル)とばね定数から計算されます。
運転時と冷間時の荷重の差は配管システムに反力 として作用し、関連設計仕様により制限されま す。詳細は0.5ページを参照してください。

一般的な仕様として、冷間時と運転時の許容荷 重差は運転時荷重に対して25%以下となってい ます。
これを超える場合は、全トラベルレンジにわたっ て一定の支持力を保つコンスタントハンガー・サ ポートが使用されます。
スプリングハンガーの選定
反力は個々のコイルばねのばね定数により決まり ます。冷間時から運転時への力の変化は変位によ り引き起こされます。ばね定数が大きくなるにつ れて荷重の変化は大きくなり、配管システムへの 反力も大きくなります。スプリングハンガー・サ ポートの最適な選定のために、LISEGAは荷重レン ジごとに5つのトラベルレンジに細分しています。
適用の詳細は選定表(2.5~2.6ページ)、据付及 び取扱要領(2.19ページ)と技術仕様(0.3ペー ジ)にあります。
荷重設定とブロッキング
スプリングハンガー・サポートは工場で冷間時荷重 に設定され、上下方向の移動を固定します。これに より、わずらわしい寸法調整なしに設計どおりの寸 法でのサポートの取付けが可能になります。
さらに、酸洗い、フラッシングあるいは水圧試験 時の重量増加もロック装置により支持できます。
冷間時及び運転時の目盛位置はトラベルスケ ールに白及び赤のラベルで表示されます。
ロック装置はセット時に自由に設定でき、ま たどの位置にでも再取付けできます。
特別な利点
対称軸

スプリングハンガー
21 スプリングハンガー
対称軸

LISEGA のスプリングハンガーにより広い範囲 にわたって特別な利益が得られます。
特に計画、据付及び運転などの労力集約型の補 助的なサポートコストにおいて大きな節約が可 能です。
溶接のない構造(タイプ20,21,27)
全面に電気めっきを適用 大荷重用は塗装施工
冷間時の位置はトラベルスケール上にマー ク(白ラベル)
調節可能なロック装置
設定荷重値は本体の銘板に記載
ばねは荷重負荷損失を防ぐために特殊処理され、
静電塗装(CED)を施工
接続用部品を内蔵
同じ荷重グループの他の部品との接続互換性と荷 重調整が可能
運転時の位置はトラベルスケール上にマーク 赤ラベル)
荷重グループ C~9では 0~400mmの5つのトラ ベルレンジ
荷重グループ 10~50では 0~200mmの3つのト ラベルレンジ
荷重を対称軸で支持するためモーメントフリー 軽量化による好ましい性能-製品重量比 モジュールシステムによる簡単な選定 荷重グループとトラベルレンジ)
標準化された部品による自在な取付け形状 システム部品の荷重と接続互換性による確かな 荷重チェーン
スプリングハンガー タイプ 25


0.04 – 100kN
このタイプは最もよく使用される もので、上側の接続点から吊下げ て取付けます。周囲の場所に適当 な接続点と十分な取付けスペース があるところで使用されます。標 準化された接続部品を使用するこ とによって上部の接続をどのよう な状況にも対応させることができ ます。
このタイプは十分なスペースが ないためタイプ 21が取付けられ ない場合に使用されます。ハン ガー本体の中を通っているロッ ドによって接続します。


スプリングサポート タイプ 29
スプリングハンガー及びスプリングサポート スプリングハンガー タイプ 21 アンギュレーティングスプリング
スプリングハンガー
このタイプは機能的にはタイ プ 21と同じで、荷重が400 kNまでのものに適用します。
スプリングハンガー タイプ 26
このタイプは機能的にはタ イプ 25と同じで、荷重が 400 kNまでのものに適用し ます。

設置スペースにより吊下げタイ プが使用できないとき、このタ イプが使用されます。水平移動 が大きいところや、スライド面が 鋼同士の場合にはある条件下で はサポートは水平力による影響を 受けます。このリスクを避けるた め、LISEGAスライドプレートの 使用をお奨めします。この場合、相手方製品のスラ イド面にはステンレス鋼のプレートを取付けてくだ さい。

このタイプは機能的にはタ イプ 29と同じで、荷重が 400 kNまでのものに適用 します。LISEGAスライド プレートもオプションで使 用可能です。

アンギュレーティングスプリングサポート タイプ 20 このタイプでは、スプリングサポート タイプ 29とは対照的に、水平方向の変位は 実質的に摩擦力なしとして吸収されます。すべての平面において、上下及び水平方向 の移動に起因する力はほぼ完全に無視できます。
アンギュレーティングスプリングサポートは片側に荷重チューブと寸法調整可能な球 面軸受付きジョイントが、反対側に寸法固定の球面軸受付きジョイントが取付けられ ています。ジョイントはタイプ 35溶接ブラケットと製品グループ 3のダイナミック クランプに接続できます。
スウェイブレース タイプ 27
この製品は圧縮と引張の両方向で作動し、配管シ ステムや他のプラント機器を安定させるのに使用 します。製品グループ 3(動的荷重製品)の部品 に接続できます。
LISEGAスウェイブレース タイプ 27は次の設定 をすることができます:
荷重のプリセット 取付け寸法 フリーストローク

スプリングハンガートラピーズタイプ 79 この製品は取付けの簡単なスプリングハンガーと 溶接不要のトラピーズの双方の利点を持っている ためよく使われます。限られたスペースへの取付 けには溶接形のスプリングハンガートラピーズが 供給可能です。

テレスコーピングスプリングサポート タイプ 29 .. 2.
タイプ 29の特殊設計品として、E寸法が小さいテ レスコーピングスプリングサポートが使用されま す。標準としてPTFEスライドプレートが取付けら れています。


スライドプレート:スプリング サポート タイプ 29/28用 ロードプレートと相手方製品 ク ランプベースなど)との間の摩 擦力を減らすため、PTFEスライ ドプレート(180℃まで)または高温用の適切な 材料(350℃まで)が使われます。相手方製品のス ライド面にはステンレス鋼のプレートを取付けて ください。スライドプレートの選定方法は2.11 ページにあります。


エクステンション:スプリング サポート タイプ 29用 大きな取付け高さが必要な場 合、エクステンションが注文可 能です。 2.11ページ参照)
スプリングサポート タイプ 29 .. 2. テレスコーピング)
ベースプレート:スプリング ハンガー タイプ 25用 ご要望によりタイプ 25はベース プレート タイプ 72と共に供給 可能です。選定方法は2.9ページ にあります。
スウェイブレース タイプ 27 角度を持った配置
標準スプリングサポート タイプ 29 .. 1.
テレスコーピングスプリング サポート タイプ 29 .. 2.
スウェイブレース タイプ 27 一般的な配置
荷重
容量選定の概要 スプリング製品
スプリングハンガー及び スプリングサポートの選定基準
許容荷重変化率
許容荷重変化率(運転時荷重に対する冷 間時荷重と運転時荷重の差の割合)は国 際的に一般的な仕様として最大25%に制 限されています。ただし、これは配管シ ステムの許容応力に依存します。
最大トラベル トラベルが長いばねは不安定性により性 能変動が生じるため、原則として最大ト ラベルは50mmとしてください。
設計の仕様を満たしながら、広範囲の用 途に応じたものを提供するため、LISEGA スプリング製品は異なったばね定数を持 つ5つのトラベルレンジに細分されてい ます。
特別に長いスプリング トラベルレンジ 4と 5は特別に長いスプ リングトラベルの製品で、特に敏感な配 管システムにおいてはトラベルと荷重変 化を十分考慮して使用してください。
サポート構成あるいは取付け状況により 適切なタイプを選択します。
最も経済的な製品サイズを選定するため に次の手順を適用します:
2.551015200.050.140.450.911.833.667.3314.6622.0029.3336.66
7.5153045600.070.180.541.082.164.338.6617.3326.0034.6643.33 10.0204060800.080.200.581.162.334.669.3318.6628.0037.3346.66 12.52550751000.090.220.621.252.505.0010.0020.0030.0040.0050.00 15.03060901200.100.240.661.332.665.3310.6621.3332.0042.6653.33 17.535701051400.110.260.701.412.835.6611.3322.6634.0045.3356.66 20.040801201600.120.280.751.503.006.0012.0024.0036.0048.0060.00 22.545901351800.130.300.791.583.166.3312.6625.3338.0050.6663.33 25.0501001502000.140.320.831.663.336.6613.3326.6640.0053.3366.66 27.5551101652200.160.340.871.753.507.0014.0028.0042.0056.0070.00 30.0601201802400.170.360.911.833.667.3314.6629.3344.0058.6673.33 32.5651301952600.180.380.951.913.837.6615.3330.6646.0061.3376.66 35.0701402102800.190.401.002.004.008.0016.0032.0048.0064.0080.00
37.5751502253000.200.421.042.084.168.3316.6633.3350.0066.6683.33
40.0801602403200.210.441.082.164.338.6617.3334.6652.0069.3386.66
42.5851702553400.220.461.122.254.509.0018.0036.0054.0072.0090.00 45.0901802703600.230.481.162.334.669.3318.6637.3356.0074.6693.33 47.5951902853800.240.501.202.414.839.6619.3338.6658.0077.3396.66 50.01002003004000.250.521.252.505.0010.0020.0040.0060.0080.00100.00
1. 最適なスプリングハンガー ・サポートの選定
例:
運転時荷重 F = 6000N
許容荷重変化率 p 25% トラベル(上向き) s = 15mm
許容ばね定数の算出:
ばね定数 (許容荷重変化率) (運転時荷重) (トラベル)
c 0.25 6000N = 100N/mm 15mm
選定タイプ 25 42 18
ばね定数 c = 66.6N/mm
冷間時荷重 FK= 7000N
例:
運転時荷重 6000N トラベル 15mm (上向き)
選定されたスプリングハンガーの タイプ番号 25 42 18
ばね定数 c = 66.6 N/mm
荷重変化率 = (トラベル) (ばね定数) (運転時荷重)
F = 15mm 66.6N/mm = 0.1665 6000N
F [%] = 16.65%
スプリングハンガー タイプ 22、タイプ 26(置き型)、スプリングサポート タイプ 28
指針位置 [mm] 荷重 [kN] 00053.3366.6680.00100.00133.33 2.551058.6673.3388.00110.00146.66 5.0102064.0080.0096.00120.00160.00 7.5153069.3386.66104.00130.00173.33 10.0204074.6693.33112.00140.00186.66 12.5255080.00100.00120.00150.00200.00 15.0306085.33106.66128.00160.00213.33 17.5357090.66113.33136.00170.00226.66 20.0408096.00120.00144.00180.00240.00 22.54590101.33126.66152.00190.00253.33 25.050100106.66133.33160.00200.00266.66 27.555110112.00140.00168.00210.00280.00 30.060120117.33146.66176.00220.00293.33 32.565130122.66153.33184.00230.00306.66 35.070140128.00160.00192.00240.00320.00 37.575150133.33166.66200.00250.00333.33 40.080160138.66173.33208.00260.00346.66 42.585170144.00180.00216.00270.00360.00 45.090180149.33186.66224.00280.00373.33 47.595190154.66193.33232.00290.00386.66 50.0100200160.00200.00240.00300.00400.00
c [N/mm] 533.3666.680010001333.3 1066.61333.3160020002666.6 2133.32666.6320040005333.3
トラベルレンジ=タイプ番号の 4桁目
利用できるトラベルレンジは2.7 ~2.17ページの表を参照。
トラベルの長いスプリングは、 スプリングヒステリシスが比較 的大きいため十分考慮の上使用 してください。
実際の指針位置は製造公差のた め理論位置と異なることがあり ます。
スプリングハンガー
タイプ 21 C2 19 ~ 21 95 18 標準品 在庫品があります。

E寸法は指針位置に応じて大き くなります。
2.5ページの荷重表参照)
限られたスペースでは、スプリング ハンガーはタイプ 79 トラピーズ 付として使用できます。 2.14ペー ジ参照)
21 1811512M1215515019153.8
23 1811512M1247546019158.6
31 1811513M1616015524204.3 21 32 1811513M1625525024206.0
21 33 1811513M1647547024209.7
21 34 1811513M16840725242014.0
21 41 1815517M2018518030259.2
21 42 1815517M20290290302512.8
21 43 1815517M20525525302520.0 21 44 1815517M20920800302529.0 21 51 1818021M24215215363016.5 21 52 1818021M24305305363020.5
21 53 1818021M24540540363032.0
21 54 1818021M241035825363046.0
21 55 1818021M2412751065363057.0
21 61 1822024M30245245463531.0
21 62 1822024M30360360463540.0
21 63 1822024M30640640463562.0 21 64 1822024M301205980463590.0 21 65 1822024M30149012654635114.0 21 71 1824530M36280285554548.0
21 72 1824530M36405410554563.0

195459570M64x47287577010530954675410
22 31 195909575M68x472490385105301004680360
22 32 195909575M68x472610505105301004680405
22 33 195909575M68x472890785105301004680510
22 41 1962511580M72x482555430120351055585455
22 42 1962511580M72x482685560120351055585515
22 43 1962511580M72x482955830120351055585625
22 51 1964514090M80x492630480135351156595550
22 52 1964514090M80x492800650135351156595655
22 53 1964514090M80x49211751025135351156595865


スプリングハンガー(置き型) タイプ 25 D2 19 ~ 25 93 18
標準品 在庫品があります。


D2
D3
25 11 1890200M12131452302.1 25 12 1890350M12132453803.1
25 13 1890675M12134707055.5 25 21 18115205M12131502353.5 25 22 18115355M12132503855.1 25 23 18115665M12134606958.4

タイプ BCd6 E[kg]
72 D9 28 125951281.0
72 19 28 125951281.0
72 29 28 15011514101.6
72 39 28 15011514121.8
72 49 28 19014018123.0
72 59 28 22017018124.0
72 69 28 26020023156.9
72 79 28 290215232010.9
72 89 28 290215272010.9
72 99 28 340255332518.2
タイプ 25にはベースプレート タイ プ 72を取付けて使用することをお奨 めします。 注文要領: スプリングハンガー タイプ 25 .. .. ハンガー番号:... 設定荷重:...kN
25 31 18115210M16181552503.7
25 32 18115355M16182503955.3
25 33 18115675M16184707158.9
25 41 18155230M20251802808.0
25 42 18155395M202529044511.5
25 43 18155730M202552578018.6
25 51 18180265M242821532514.5
25 52 18180405M242830546518.0
25 53 18180740M242854080029.0
25 61 18220300M303424537526.0
25 62 18220465M303436054035.0
25 63 18220845M303464092056.0
25 71 18245350M364030044040.0
25 72 18245530M364043062053.0
25 73 18245900M364070099079.0



B及びX寸法は指針位置に応じて
2.6ページの荷重表参照)
スプリングサポート
タイプ 29 C2 19 ~ 29 93 18 標準品 在庫品があります。
Ø L1

スライドプレート付きロードプレート
スライドプレートを使用す る場合は、相手方製品のスラ イド面にステンレス鋼のプ レートを取付けてください。
これはタイプ番号の後ろに 「SP」の記号をつけて指示 します。 例:クランプベー ス タイプ 49 22 25-SP 。
スライドプレート付き
タイプ 29*
180°C まで350°C まで Ø L1
29 C2 1729 C2 1640
29 D. 1729 D. 1640
29 1. 1729 1. 1640
29 2. 1729 2. 1640
29 3. 1729 3. 1640
29 4. 1729 4. 1665
29 5. 1729 5. 1665
29 6. 1729 6. 16110
29 7. 1729 7. 16110
29 8. 1729 8. 16150
29 9. 1729 9. 16150
* スライドプレートの摩擦係数につ いては7.11ページの表を参照
水平方向の移動が大きい場 合は、スライドプレートの 使用に加えてねじれ防止付 きのクランプベースを使用 することをお奨めします。
注文要領: スプリングサポート タイプ 29 .. .. ハンガー番号:...
設定荷重:...kN
トラベル:...mm(上向/下向
29 11 18901259512195361458083.4 29 12 18901259512305362458084.6
13 18901259512550364708087.2
21 181151501151420036150100105.6
29 22 181151501151431036250100107.6
29 23 1811515011514540364601001011.1
29 31 181151501151420536155100126.3
29 32 181151501151431036250100128.4
29 33 1811515011514550364701001213.0
29 41 1815519014018240481801201211.9
29 42 1815519014018360482901201216.0
29 43 1815519014018615485251201225.0
29 51 1818022017018270502101501220.0
29 52 1818022017018370503001501224.3
29 53 1818022017018625505351501237.0
29 61 1822026020023305502451701534.0
29 62 1822026020023430503601701544.0
29 63 1822026020023730506401701568.0
29 71 1824529021523360523002002053.0
29 72 1824529021523500524252002068.0
29 73 1824529021523790526952002097.0
29 81 1824529021527400553352002060.0
29 82 1824529021527575555002002084.0
29 83 18245290215279655587020020133.0
29 91 1827534025533440603702402591.0
29 92 18275340255336256054524025118.0
29 93 182753402553310106091024025173.0
E寸法は荷重設定値に係わらず一定で す。指針位置は荷重値により変化しま す。 2.5ページの荷重表参照) 寸法調整量+30mm。
タイプ 29 .. 1. は、電気めっきされ たロードプレートが付いており、スラ イドプレートなしが標準です。スライ ドプレートを使用する場合、E寸法は 2.5mm加算して下さい。7.12ページ の表を参照してください。
タイプ 29 .9 15-E... E
荷重グループ E = .... mm

取付け高さが大きい場 合、エクステンションを 注文できます。
大荷重用スプリングサポート
スプリングサポート
タイプ 28 11 19 ~ 28 53 19

スライドプレートを使用する 場合は、相手方製品のスラ イド面にステンレス鋼のプレ ートを取付けてください。
これはタイプ番号の後ろに 「SP」の記号をつけて指示 します。 例:クランプベー ス タイプ 49 97 14-SP
E寸法は荷重設定値に係わらず 一定です。指針位置は荷重値に より変化します。 2.6ページの 荷重表参照)
寸法調整量 +30mm
タイプ 28は塗装されたロードプ レートが付いており、スライドプ レートなしが標準です。スライド プレートを使用する場合、E寸法 は2mm加算して下さい。 以下の 表を参照してください。


* スライドプレートの摩擦係数につ いては7.11ページの表を参照
注文要領: スプリングサポート
アンギュレーティング スプリングサポート
タイプ 20 D2 19 ~ 20 93 14
標準品 在庫品があります。
E寸法は荷重設定値に係わらず 一定です。指針位置は荷重値に より変化します。 2.5ページの 荷重表参照 寸法調整量 +50mm。
接続の可能性:溶接ブラケット タイプ 35及びダイナミッククラ ンプ(製品グループ 3)のピン 径を参照。
注文要領: アンギュレーティング スプリングサポート
タイプ 20 .. ..
ハンガー番号:...
設定荷重:...kN
トラベル:...mm(上向/下向
アンギュレーティングスプリング サポート用エクステンション
タイプ 20 D9 19 ~ 20 99 14

荷重を減少させることにより Emaxより大きい寸法も供給可能 です。L寸法が短いものも供給可 能ですが、この場合 37.5mm の調整はできなくなります。
注文要領:
アンギュレーティングスプリング サポート用エクステンション

79 D.191.04M101700–385610809014015–26301.7
79 1. 192.5M1217002903856108090140152426311.7
79 2. 195M12170029039061080115140152831371.7
79 3. 1910M1690031541063080115140202932391.7
79 3. 1910M161800300395615120115190204145522.7
79 4. 1920M201400345450685120155190255360742.7
79 4. 1920M201800345450685140155200256168823.2
79 5. 1940M2412504054957301401802003077851083.2
79 5. 1940M24180039048071518018023030931011244.4
79 6. 1980M301250445560840200220250351381562005.1
79 6. 1980M302400435550830260220310351741922367.6
79 7. 19120M361800505630900260245310452142442967.6
79 7. 19120M362400500625895300245350452452753279.2
79 8. 19160M4212005607251100260245310502422863787.6
79 8. 19160M4218005557201095300245350502733174109.2
79 9. 19200M4818006107851150300275350603353904959.2
スプリングハンガートラピーズ ボルト取付け式)
タイプ 79 D. 19 ~ 79 9. 19
タイプ番号の4桁目はスプリング ハンガーのトラベルレンジを示 します。 1=50mm, 2=100mm, 3=200mm。
他の荷重ケースでの中央部作用荷重 の許容値は0.6ページの表4.4.1を 参照。荷重グループ 9は定格荷重 120kNとなります 。
E寸法は指針位置に応じて大きくな ります。2.5ページの荷重表参照) Lmax寸法は2400mmまで長くする ことができます。この場合、許容荷 重は100mm長くなるごとに5%減 少します。
スプリングハンガートラピーズを選 定するときは、チャンネル鋼とクラ ンプベースの重量を運転時荷重に加 算してください。
スプリングハンガートラピーズを選 定するときは、トラピーズ全体とク ランプベースの重量を運転時荷重に 加算してください。
注文要領: スプリングハンガートラピーズ タイプ 79 .. 19 L=...mm、ハンガー番号:... 設定荷重:...kN トラベル:...mm(上向/下向
スプリングハンガートラピーズ 溶接取付け式) タイプ 79 D. 11 ~ 79 9. 11

D.111.04M10140080–16201.1
1. 112.5M1214001001921261.6 79 2. 115M1216001002629352.0 79 3. 1110M1616001002730382.0
79 4. 1120M2017501204148632.7
79 5. 1140M2421001606876994.3
79 6. 1180M3021002001101281726.1
79 7. 11120M3621002401591892418.3
79 8. 11160M4221502601862303229.3
79 9. 11200M48220028024329740310.3
限られたスペースでは、このタ イプが特殊設計品として供給で きます。
注文要領: スプリングハンガートラピーズ タイプ 79 .. 11 L = ...mm、ハンガー番号:... 設定荷重:...kN トラベル:...mm(上向/下向
スウェイブレース
タイプ 27 D2 19 ~ 27 62 19
タイプ ~
最大作動トラベルはフリースト ロークを含み 25mmです
最大作動トラベルはフリー ストロークを含み 25mm です
荷重調整はお客様の仕様に基づき工 場にて設定されます。
荷重調整はお客様の仕様に基づ き工場にて設定されます。
E寸法は荷重設定に係わらず一定で す。寸法調整量 37.5mm。
E寸法は荷重設定に係わらず一定 です。寸法調整量 37.5mm
接続の可能性:溶接ブラケットタイ プ 35及びダイナミッククランプ 製品グループ 3 のピン径を参照。
接続の可能性:溶接ブラケット タイプ 35及びダイナミッククラン プ(製品グループ 3)のピン径を 参照。

フリーストローク 調整
荷重調整
注文要領:
注文要領:
スウェイブレース
スウェイブレースタイプ
タイプ 27 .2 19 ハンガー番号:... 設定荷重:...kN
ハンガー番号: 設定荷重:
トラベル:...mm(正/負)
トラベル:(正/負)
スウェイブレース用
エクステンション
タイプ 27 D9 19 ~ 27 69 19
スウェイブレース用 エクステンション タイプ ~
ご要望により、スウェイブレー スは工場でエクステンションを
取付けて納入可能です。
ご要望により、スウェイブレー スは工場でエクステンションを 取付けて納入可能です。
水平移動による角度は 6° を 超えないようにしてください。
水平移動による角度は6°を 超えないようにしてください。

荷重を減少させることによりEmax より大きい寸法も供給可能です。 L寸法が短いものも供給可能です が、この場合 37.5mmの調整は できなくなります。
荷重を減少させることによりEmax より大きい寸法も供給可能です。 L寸法が短いものも供給可能です が、この場合 37.5mmの調整は できなくなります。
注文要領:
注文要領:
スウェイブレース用
スウェイブレース用
エクステンション
エクステンション
タイプ
タイプ27
L寸法:
性能線図
圧縮
最大調整可能荷重
最小荷重
圧縮力
引張
トラベル [mm]

上部ジョイント
球面軸受付き) ロックナット
ロックナット ガイドパイプ
ねじ加工パイプ ロックナット ガイドロッド
トラベルスケール付銘板 トラベルスケール
下部ジョイント
球面軸受付き) スプリングプレート
ばね
荷重と取付け長さは対応する仕 様に調整可能です。据付及び取 扱要領参照)
LISEGAスウェイブレースは 0 ~25mmのフリーストロークの 設定が可能です。トラベルは設 定されたフリーストロークに伴 い、圧縮、引張方向において減 少します。
力の方向が交替する ときの荷重伝達 フリーストローク
荷重設定
テレスコーピング スプリングサポート
タイプ 29 D1 27 ~ 29 93 27
タイプ 29の特殊設計品とし て、取付け寸法Eが小さいとこ ろに使用されます。
相手方製品のスライド面にはス テンレス鋼のプレートを取付け てください。これはタイプ番号 の後ろに「SP」の記号をつけて 指示します。例:クランプベー ス タイプ 49 22 25-SP。

テレスコーピングスプリングサポー トはPTFEスライドプレートが標準と して付属しています。高温度用のス ライドプレートの供給も可能です。
タイプ番号の6桁目により区分 します:
7 180℃までの標準PTFEスライド プレート付き
6 350℃までの高温度用スライド プレート付き
スライドプレートの摩擦係数については 7.11ページの表を参照。
E寸法は荷重設定値により変わりま す。指針位置は荷重値により変化し ます。寸法調整量 +20mm。
[kN] – 最小荷重 [kN] x 1000 ばね定数 [N/mm]
注文要領: スプリングサポート タイプ 29 .. 2.
ハンガー番号:...
設定荷重:...kN トラベル:...mm(上向/下向
29 12 2.13015512580124083102300.581.258.37.0
29 13 2.13015512580124085303700.581.254.110.0
29 21 2.1551801451001440102151751.162.533.38.0
29 22 2.1551801451001440103152351.162.516.610.5
29 23 2.1551801451001440105253651.162.58.315.0
29 31 2.1551801451001440122201802.33566.68.5
29 32 2.1551801451001440123202402.33533.311.0
29 33 2.1551801451001440125403802.33516.616.5
29 41 2.1952201801201865122351954.6610133.315.0
29 42 2.1952201801201865123352554.661066.620.0
29 43 2.1952201801201865125604004.661033.329.0
29 51 2.2202452001501865122602209.3320266.624.0
29 52 2.2202452001501865123702909.3320133.330.0
29 53 2.2202452001501865125904309.332066.643.0
29 61 2.275305245170231101830026018.6640533.344.0
29 62 2.275305245170231101841033018.6640266.653.0
29 63 2.275305245170231101867551518.6640133.380.0
29 71 2.300330265200231102032529536.006080063.0
29 72 2.300330265200231102043537536.006040076.0
29 73 2.300330265200231102067555536.0060200105.0
29 81 2.300330270200271502236033553.33801066.671.0
29 82 2.300330270200271502250045053.3380533.391.0
29 83 2.300330270200271502283573553.3380266.6142.0
29 91 2.325370295245331502540037566.661001333.396.0
29 92 2.325370295245331502555550566.66100666.6124.0
29 93 2.325370295245331502587577566.66100333.3181.0



上部接続部
トラベルスケール ロック装置
銘板
下部接続部
スプリングプレート カバープレート
脱落防止バンド
サポートチューブ
21, 22, 25, 26, 29, 28, 20, 27
1 輸送と保管
輸送中は接続ねじ、ロック装置などが損傷しないよ う注意してください。屋外に保管する場合は、汚れ と水分から保護してください。
2 出荷状態
LISEGAスプリングハンガーは指定の冷間時トラベル 位置にセットして固定されます。ロック装置により スプリングプレートを上下両方向に固定します。調整 した値はトラベルスケール、銘板から読み取れます。
銘板には以下の項目が刻印されます:
タイプ番号と製造番号(必要な場合) 設定荷重とばね定数 運転時荷重と設計トラベル ハンガー番号とLISEGA管理番号 検査員
スプリングハンガー タイプ 21 タイプ 22
スプリングハンガー タイプ 25 タイプ 26
理論上の運転時位置は赤いラベルで、理論上の冷間 時位置は白いラベルでトラベルスケール上に表示さ れます。また、スプリングプレートの位置はトラベ ルスケール上にX印で刻印されます。目盛の位置はス プリングプレートの下端で読み取ります。(トラピー ズ タイプ 79 .. 11では上端になります) 製造番号 はスプリングハンガーの本体にも刻印されます。
スプリングハンガーの上部接続部は右めねじ、接続 ラグあるいはサポートチューブとなっています。接 続ねじ部はグリースが充填され、プラスチックキャ ップで封をされます。タイプ 21, 22の下部接続部 は右ねじのターンバックルですが、タイプ 25, 26 は接続ロッドを取り付けるサポートチューブです。

スプリングハンガーの銘板
スプリングサポート タイプ 28, 29は調整可能 なサポートチューブとロードプレートが取付けられ ています。出荷時にはサポートチューブはねじ込ま れ、ねじ部にはグリースが塗られています。
配管システムの据付指示に従っ てください。ハンガーロッドの取付け位置について は特に注意が必要です。次の2つの方法があります:

スプリングハンガー タイプ 21 ロックされた状態)

スプリングハンガー タイプ 25 ロックされた状態)

スプリングハンガー タイプ 22 ロックされた状態)

スプリングハンガー タイプ 26 ロックされた状態)

スプリングサポート タイプ 29 ロックされた状態)

スプリングサポート タイプ 28 ロックされた状態)

アンギュレーティングスプリング サポートタイプ 20 ロックされた状態)
スウェイブレース タイプ 27

A) ハンガーロッドが運転時に垂直になるよう、配管 システムの水平方向移動量に対応する傾斜角度をつ けて取付ける。
冷間時位置
運転時位置
ロッドは運転時に垂直
B) 点検を容易にするために、ハンガーロッドを垂直 に取付ける。運転時にはロッドの傾斜角度が限度内 で許容される。
運転時位置
ロッドは据付時に垂直
冷間時位置
いずれにするかはプラント全体で統一された仕様を 適用してください。
ハンガーロッドは負荷をかけた状態で接続してくださ い。ねじ部品の最小ねじ込み長さに注意してください。
タイプ 21,22の据付
タイプ 21はハンガーロッドを上部と下部の接続ねじ に取付けて荷重を負荷させます。下部の接続部はタ ーンバックルになっています。タイプ 22の上部接続 部はラグです。荷重と取付け長さの調整はスプリン グハンガーのターンバックルを使用します。
タイプ 25,26の据付
スプリングハンガー タイプ 25, 26は鋼構造物の 上に設置し、配管の水平移動も考慮して位置決めしま す。サポートチューブの中を通っているハンガーロッ ドにより荷重を負荷し、ダブルナットで固定します。
ロードプレートまたは球 面軸受付きジョイント トラベルスケール ロック装置
銘板
ベースプレートまたは球 面軸受付きジョイント スプリングプレート カバープレート
脱落防止バンド ロックナット ロックナット ガイドチューブ
ねじ加工チューブ ロックナット ガイドロッド
スプリングサポート タイプ 29
スプリングサポート タイプ 28
アンギュレーティング スプリングサポート タイプ 20
スウェイブレース タイプ 27 角度を持った配置
スウェイブレース タイプ 27
一般的な配置
最小ねじ込み 長さ
最小ねじ込み 長さ
タイプ 21の例によるねじロッドの最小 ねじ込み長さ

スプリングハンガー・サポート タイプ 21,25,29,20のロック装置は、どの 位置にでも固定できる鋼製の薄板で構成 されています。3枚までスプリングハン ガーに挿入できます。
タイプ 28,29の据付
スプリングサポート タイプ 28, 29は位置決めし たあとベースプレートを構造物に溶接またはボルト 止めで取付けます。荷重はロードプレートと調整可 能なサポートチューブ(タイプ 29では1個、タイプ 28では複数個)を通して伝達されます。据付の誤差 を補正するためサポートチューブは最大30mm伸ば せます。スライドプレートの取付けについては7.12 ページの指示を守ってください。
タイプ 20の据付
アンギュレーティングスプリングサポートは上側に 寸法調整可能な球面軸受付きジョイント、下側に寸 法固定の球面軸受付きジョイントまたはエクステン ションがあり、溶接ブラケット タイプ 35または ダイナミッククランプ タイプ 36, 37と接続しま す。アンギュレーティングスプリングサポートを位 置決めした後、下側の溶接ブラケットを構造物に取 付けます(溶接ブラケット タイプ 35の据付要領参 照)。荷重は上側の溶接ブラケットまたはダイナミ ッククランプのピン接続部を寸法調整可能なサポー トチューブに接続することにより伝達されます。取 付け長さの誤差を補正するためサポートチューブは 最大50mm伸ばせます。
タイプ 27の据付
スウェイブレースは上側に寸法調整可能な球面軸受 付きジョイント、下側に寸法固定の球面軸受付きジ ョイントまたはエクステンションがあり、溶接ブラ ケット タイプ 35またはダイナミッククランプ タイプ 36,37と接続します。荷重のプリセットとフ リーストロークはお客様の仕様にしたがって工場で 調整されます。接続点を位置決めしたあと溶接ブラ ケットの溶接と、ブラケットまたはダイナミックク ランプ タイプ 36,37の接続ピンと接続します。 調整可能な球面軸受付きジョイントは取付け長さの ±37.5mmの調整が可能です。
4 ロック装置の取り外し スプリングハンガー・サポートのロック装置は、シ ステムを構成するすべてのサポートが完全に荷重を 支持している状態で取外してください。自重が設定 荷重と一致していればロック装置は容易に取外す ことができます。もしロック装置を取外せない場合 は、作用している荷重は設定値と一致していませ ん。(5項 荷重調整を参照)
タイプ 21,25,29,20の要領
脱落防止バンドの取外し:
脱落防止バンドを適切な工具を用いて取外してくだ さい。その際、金属端部が想定外にはねる恐れがあ るので十分注意してください。
ロック装置の取外し:
ロック装置をケーシングから取外します。
ロック装置の取外しは固定点あるいは接続点から順 番に計画的に行ってください。決して無理やり取外 さないでください!
ロック装置の保管:

ロック装置を取付けた状態のタイプ 29
取外したロック装置は別の場所に保管するか、オプ ションのLISEGA保管用部品を使って本体に取り付け てください。
固定クランプ取付けねじ
ロックが再度必要になったときに、ロック装置を紛失 した場合はLISEGAより短期間での納入が可能です。
タイプ 22, 26, 28の要領
ロック装置の取外し:
ロック装置をケーシングから取外します。
ロック装置の保管:
取外したロック装置は別の場所に保管するか、スペ ースに余裕がありスプリングプレートの動きに支障 がなければカバープレートにねじでとめることがで きます。

5 荷重調整

荷重調整を行う場合には責任技術部門との協議が必 要です。
タイプ 21, 22
荷重調整はターンバックルを緩めるか締めることに よって可能です。
タイプ 25, 26
荷重調整はロードナットを緩めるか締めることによ って可能です。
タイプ 20, 28, 29
荷重調整はサポートチューブを緩めるか締めること によって可能です。
タイプ 27の荷重とフリーストロークの調整
荷重調整は外側のねじ加工チューブ(A)を回転さ せることによって可能です。まず、大きいロックナ ット(B)を緩めます。E寸法を保つためガイドチュ ーブ(C)を調整することによってギャップを一定 にします。
LISEGAスウェイブレースではフリーストロークを設 定することができます。まず、内側のガイドロッド D)の反対側にあるガイドチューブ(C)を緩めま す(中央のロックナット(E)を緩める)。作動トラ ベルはフリーストローク設定量に伴い圧縮方向に減 少します。

大きな荷重グループでは、荷重調整あるいはロック 装置の取外しを容易にするため、油圧ポンプによる 補助装置が使用できます。この作業はLISEGAの作業 者により行います。
スプリングハンガーの正常な機能は、スプリングプ レートの位置を点検することによりいろいろな運転 状態で確認することができます。
通常の運転条件の下では、特別な保守は必要ありま せん。

タイプ 22, 26, 28のロック装置 は、どの位置にでも固定できるス タッドボルトとナットで構成されて います。
油圧シリンダー(2組)
油圧シリンダー
油圧シリンダー
PRODUKT 3 GRUPPE





目 次 ページ
適用範囲 .............................................3.1
主要な製品 ..........................................3.2
使用上の注意事項 .....................................3.3 スナバー タイプ 30,31...................................3.4 設計の特徴 ............................................3.5 作動モード ..........................................3.7 性能試験 ..............................................3.8
許容荷重条件 .........................................3.10
リジッドストラット タイプ 39.............................3.11 作動モード ...........................................3.11
エネルギーアブソーバー タイプ 32 .........................3.12 作動モード ...........................................3.12
粘弾性ダンパー タイプ 3D................................3.13
作動モード ...........................................3.13
パイプホイップレストレント タイプ 3R.....................3.14 ダイナミッククランプ タイプ 34,36,37.....................3.15 作動モード ...........................................3.15 ダイナミッククランプ タイプ 34 ...........................3.17 選定表 ..............................................3.19 スナバー タイプ 30 ....................................3.19 スナバー タイプ 31 ....................................3.20
エクステンション タイプ 33 ..............................3.21
溶接ブラケット タイプ 35 ................................3.22 エネルギーアブソーバー タイプ 32.........................3.23 粘弾性ダンパー タイプ 3D ...............................3.25 リジッドストラット タイプ 39 ............................3.27 ダイナミッククランプ タイプ 36, 37 ........................3.29
シアラグ タイプ 3L .....................................3.44
据付及び取扱要領 ......................................3.45
配管システムの容認できない 応力やモーメントを避けるた め、配管やプラント機器の想 定外の変位は防がなければな りません。しかし、熱移動を 妨げてはいけません!
動的荷重事象
想定外の動的事象が発生したとき、LISEGA製品 グループ 3のサポート製品は配管やその他の影響 を受ける機器を損傷から保護します。
プラント機器の望ましくない揺れによる変位は以 下によって引き起こされます:
A. 内部的な要因:


起動/停止 バルブ操作による圧力衝撃 ウォーターハンマー ボイラー爆発 配管破断
B. 外部からの要因:
風荷重 地震 航空機の衝突 爆発
影響を受ける機器には以下のものがあります: 配管システム ポンプ
バルブ類 圧力容器 蒸気発生器 ボイラー、熱交換器
製品グループ 3の製品
動的な荷重の吸収、転移のため、特別に設計され たサポートが必要です。LISEGAは製品グループ 3の理想的な製品によりすべての適用分野がカバ ーできる完全なシステムを提供します。ユーザー は最適な解決法を得ることができます。
LISEGA製品グループ 3に含まれる主要な製品は 以下のとおりです:
スナバー(ショックアブソーバー) タイプ 30 , 31 リジッドストラット タイプ 39 エネルギーアブソーバー タイプ 32
粘弾性ダンパー タイプ 3D パイプホイップレストレント タイプ 3R
主要製品を適切に取付けるために広範囲の接続部 品が準備されています:
エクステンション タイプ 33
溶接ブラケット タイプ 35 ダイナミッククランプ タイプ 36、 37 ダイナミックライザークランプ タイプ 34
接続部品はLISEGAモジュールシステムでの互換 性があるように設計されており、一定の計算評価 基準に従っています。許容荷重表は技術仕様の 0.6ページにあります。
基本的な計算手順は国際的な指針と規格に従い、 さらに実機試験で確認されています。
ASME III NF及びRCC-Mに従ったデザインレポ ートサマリーが利用可能です。
運転基準地震波形(O.B.E)
スナバー タイプ 30, 31
スナバー(ショックアブソーバー)は高温で運転さ れるプラント機器での使用に適しています。動的 荷重に対しては、スナバーは即座に機器と構造物 の間で剛体化します。この結果、突然の変位によ る動的エネルギーはただちに構造物に伝達され、 無害に放散されます。通常運転における熱変位は 制限されません。
リジッドストラット タイプ 39
運転時の変位を制限したいところにはリジッドス トラットが使用されます。これは接続点から接続 点までの間を剛体結合し、軸方向の移動を許しま せん。球面軸受を使用しているので、ラテラル方 向のわずかな変位は許容します。
エネルギーアブソーバー タイプ 32 運転時にわずかな変位だけが想定される場合はエ ネルギーアブソーバーを使用することができま す。この製品は端部の調整可能なギャップによっ て限られた範囲の移動が可能になっています。作 用する動的エネルギーはエネルギーアブソーバー の塑性変形に変換されることにより、影響を受け る機器は過荷重から保護されます。
粘弾性ダンパー タイプ 3D 機械的、流体力学的または他の外部要因による動 的荷重はプラント機器や配管システムに深刻なダ メージを与えます。粘弾性ダンパーはこれらの振 動やピーク荷重を吸収します。高粘度の流体が運 動エネルギーを吸収し振動を抑制します。
パイプホイップレストレント タイプ 3R パイプホイップレストレントは特別に設計されたパ イプレストレントの一種です。配管システムの破裂 事象で、突然解放された運動エネルギーを塑性変 形に転換し、配管を安全な位置に保ちます。その結 果鋼構造物への過荷重が防げます。
製品グループ 3の製品は動的な荷重を受けます。
有効に機能させるため、使用に当たっては以下の 項目を考慮してください:
1. 拘束点のサポートではシステム全体すなわちサ ポートチェーンのすべての部品の剛性を考慮する ことが必要です。
2. 使用するサイズの選定はすべての発生荷重の合 計を考慮する必要があります。
3. 作用する荷重がどの設計レベル(H,HZ,HSある いはレベル A,B,C,D)に対応するのかが明確にされ なければなりません。許容荷重表は技術仕様の0.6 ページにあります。
4. スナバーのストローク長さは全域を使用するの ではなく、各端に10mmの余裕をとることを推奨 します。
5. 部品を配置するとき、接続ラグ部での接触がな いようにラテラル方向の十分な自由度を確保して ください。
6. スナバーを平行に配置する場合は荷重の余裕を 考えて1台のスナバーに作用する荷重は全作用荷 重の50%ではなく70%とすることを推奨します。
7. 据付図面には部品の可動角度を明示してくだ さい。
8. 構造物へのねじ締結部は必要なトルク値を明示 してください。
9. プラントの試運転前にすべてのサポートを目視 により点検してください。
10. 試運転、点検及び保守要領を守ってください。
LISEGAスナバーは40年間以上にわたって使用さ れており、その優れた信頼性を立証しています。
また、たゆまぬ開発と広範囲の運転実績により、 世界中で完成度の高い製品としての評価を得て、 世界市場をリードしています。
据付後のスナバーへのアクセスは一般に難しく、 原子力発電所に据付された場合には放射線の人体 への危険性のために厳しい安全規制があります。
このため、信頼性、メンテナンスフリー、継続的 な機能に対して最も高い要求があります。
スナバーの運転時の安全性を信頼できるものとす るためには、機能原理と全体設計に加えて、構成 部品の高い品質がきわめて重要です:
シール機構 ピストンとロッドガイド 作動油 摺動面 耐食性材料
腐食のない内部部品 制御バルブ
スナバーで最も多いトラブルの原因は急速な摩耗 や傷と腐食です。このためLISEGAスナバーは耐 食性の材料で製造されています。さらに、内部に は特別なガイドバンドを使用しているため金属同 士の接触はありません。

LISEGAのシール機構、ガイド及び作動油は、通 常の運転状態の原子力発電所で少なくとも23年間 支障なく機能することが信頼できる認証方法によ り証明されています。
以下の品質特性によりLISEGAスナバーの優れた 機能と長寿命が保証されています:
耐食性の材料
特別なシール機構 特別な耐振動ガイド 与圧式油圧システム
動的機能特性
交換可能なバルブ(タイプ 31) 試験により承認された最小23年間メンテナン スフリーの運転
60年の設計寿命
KTA 3205.3 による適合性試験の認証 ASME-NCA 3800 に従った承認

設計の特徴
スナバーは外部に取付ける圧力部材を持たない密 閉式の油圧システムです。ユニットの個々の部品 は溶接がなく、高精度のねじ接続で組み立てられ 機械的に固定されます。

腐食に対する保護としてLISEGAスナバーはすべ て耐食性の材料で製造されています。
接続ラグは炭素鋼で電気めっきされています。
ピストンロッドとピストンのガイドは摩擦に対し て強い特殊な非金属材料で作られています。
リザーバーはばねで負荷されたピストンにより外 気から遮断され、油圧システムはわずかな与圧状 態に保たれています。これにより、据付の向きに かかわらずシールの密封性と作動油のシリンダー への送り込みを確実にしています。
制御バルブは動的な機能に対して最も重要な部品 です。高い精度を得るためにバルブのパラメータ ーは広範囲の試験や特別な計算モデルにより最適 化されています。
シール材
長期間の機能維持において決定的な設計の特徴は シール機構です。作動油やガイドバンドと同様に シール材も非金属材料であるため経年劣化や摩耗 は避けられません。
シール効果を長期間維持するために最も重要な要件 は適正なシール材料の選択です。決定的な要素はシ ール材の復元性(形状記憶)や低い劣化性です。
材料特性を最も有効に利用するには、シール材の 特別な形状も重要です。一方、機能を効果的に働 かせるには以下の特性を最適に組合せることが重 要です:
耐熱性
耐放射線性
高周波振動での耐摩耗性 形状の復元性
乾燥時の走行特性 シール面への低拡散性
静止からすべり摩擦への転移(スティックス リップ現象)
これらに対して、特別なフッ素エラストマー VITON化合物が最適な解決を提供することを立 証しました。さらに、特性を十分に生かすために 以下の必要条件が考慮されています:
特別なシール材形状 合成材料
最適な混合比率 最適な硬度 摺動面の精度 シール材取付け部の設計
通常のシール材ではスナバーのこれらの要件を満 たしていないため早期の性能低下につながってい ました。このため、早くも1984年にLISEGAは主 要なシール材メーカーと提携して特別なシール機 構の開発を開始し、その安定した性能は実績によ り証明されています。
1992年、ヨーロッパの原子力発電所運営者に代 わって人工的なエージングと長期試験による認証 が実施され、その結果、原子力発電所での少なく とも23年間のメンテナンスフリー期間が確認さ れました。

タイプ 30
多様な接続部品
製品の交換を行う際、既存の接続部品を再利用できるように様々な部品やア ダプターが使用できます。
既存のエクステンション への接続用フランジ
接続部
特殊ラグ
短いエクステンション (長さ調整できません
標準エクステンション (長さ調整ができます)
接続部
接続可能な部品:溶接ブラケット タイプ 35、または製品グループ 3のダイナミッククランプのピン径参照 A A A
タイプ 33

タイプ 31
大容量の機能的精度を得るための制御バルブ (タイプ 30は内蔵されています)
技術データを記載した銘板
トラベルインジケーター。スナバーのピスト ン位置はスナバーのケースに刻まれたスケー ルリングによりどの方向からでも読み取れま す。ピストンロッドに接続されたケーシング はインジケーターとして使われると同時にピ ストンロッドを機械的な損傷や汚染、輻射熱 から保護します。
電気めっきされた炭素鋼製の接続ラグ (タイプ 30)
リザーバー部ののぞき窓/インジケーターバ ー。リザーバー内の油量はリザーバーピスト ンの位置により示されます。タイプ 30では のぞき窓から油量がチェックできます。タイ プ 31では外部のリザーバーの端部にインジ ケーターバーがあります。
リザーバーはばねで負荷されたピストンによ り外気から遮断され、油圧システムのわずか な与圧によりシール性を一定に保ちます。 タイプ 30は内蔵されています)
耐食性材料
耐放射性、耐摩耗性のシール材

設計と材料の詳細は技術仕様 0.1ページ参照。
衝撃が機器に作用したとき、 機器と構造物の固定点との間 は瞬時に剛体化します。
機能
制御バルブ
LISEGA油圧スナバー タイプ 30の機能は油圧ピ ストン(A)の中に軸方向に取付けられたメインバ ルブ(B)により制御されます。ピストンのゆっく りとした移動(2mm/s以下)では、バルブは内 部のスプリングの力によって開いていて作動油 はシリンダーの片方の部屋から他方の部屋へ 抵抗なく流れます。速度限度(約2mm/s) を超える急速なピストン移動時には内圧が 高まりバルブの面へ力がかかることによっ てバルブが閉じ、作動油の流れは遮断され、 変位が拘束されます。作動油の圧縮性により損傷 を与える荷重のピークも予防されます。
(C)により調整されます。リザーバーとシリンダー の接続部は代償バルブ(D)により制御されます。

スナバー タイプ 31の 内部構造図
タイプ 35
圧縮方向への移動では代償バルブ(D)もメインバ ルブとほぼ同時に閉じます。
変位の方向が反転すると、バルブを閉じていた圧 力が減少しバルブは自動的に開きます。

タイプ 30
タイプ
特殊設計品
スナバー タイプ 30の 内部構造図
バルブが閉じたままの状態になることを防ぐため に、バイパス機構が設けられています。これによ り、力が作用している状態でも作動油はわずかに 流れ、両方のシリンダー室の圧力がバランスする ことによってバルブが確実に開きます。同様に、 代償バルブもメインバルブと同時に機能します。
ピストンロッド位置の移動や温度変化による作 動油の体積変化は、同軸に配置されたリザーバ
大容量スナバー タイプ 31 LISEGA油圧スナバー タイプ 31の機能はタイプ 30と基本的に同じです。サイズとの関係からリザ ーバー(C)とバルブの配置が異なります。バルブ (B)はタイプ 30と同様に作動します。速度限度を 超えたときは、動きの方向にそれぞれ対応するバ ルブが閉じて作動油の流れは遮断さ れます。2つのバルブは間接的にリ ザーバーに接続されるよう配置さ れているので追加の代償バルブは 必要ありません。
スナバー タイプ 31は定期的な性能試験のために 取り外さなくてすむように、バルブシステムは交 換できるように設計されています。再試験時には あらかじめ調整されたバルブユニットに交換しま す。作動油の流出は特別な遮断装置により防止さ れます。取り外されたバルブはテストスナバで試 験され、将来の使用品として保管されます。この 設計はASME OMコードのサブセクションISTDに よる部品試験の目的に合致しています。
原子力分野では特に厳しい安全性の要求が あり、スナバーの性能に関して瑕疵のない 証明が要求されます。これは納入前の検査 と使用中の試験にも適用されます。
LISEGAの試験技術は常に改良され、最新 の技術標準に従っています。試験装置は Hydropuls®ユニットに荷重制御とトラベ ル制御による加振機能を加えたものです。 周波数レンジは 0.5~30Hz、試験荷重は
0.5~8600kNです。LISEGAの工場には様 々なサイズの試験装置があります。可搬式 試験ユニットはお客様のご要望により、頻 繁に現場で使用されます。今日では、試験 装置は世界中で使用されお客様の人員によ って操作されています。
可変式の試験プログラムによりすべてのメ ーカーのスナバーの試験が可能です。
LISEGAの試験装置はお客様向けに製造も できます。
すべてのLISEGA試験装置は校正された ロードセルと計測用アンプと共にDIN EN ISO 7500に基づいて定期的に校正されて います。

検査成績書(1ページ目)
静的性能試験
摩擦抵抗 [kN]
閉弁速度 [mm/s] バイパス速度 [mm/s]
荷重と変位振幅 検査成績書(2ページ目)
動的性能試験
作動特性
動的荷重に対しては、LISEGAスナバーは荷重条件 に応じて安定した予測できる作動特性を示します
標準性能値
LISEGAスナバーの標準性能値は下の表に記載さ れているとおりです。数値は交番荷重あるいは動 的荷重に対するものです。
記載データは国際基準や実用上の要求に対応して います。性能値は工場での試験により確認し記録 されます。
設計方法や特別な作動油の使用により、特殊なパ ラメーターを考慮することができます。
タイプ 30 タイプ 31 トラベルレンジ 8, 2, 9 トラベルレンジ 3 (ストローク 300) トラベルレンジ 8 (ストローク 100) トラベルレンジ 9 (ストローク 200)
FN,、Rt 、1~35Hzでのピストンロッドトラベル sb 6mm 8mm 10mm 12mm
ロストモーション sa 0.5mm 荷重の方向が変わるときに荷重が発生するまで
Rt での閉弁速度 2-6mm/s
FN 、Rt でのバイパス速度 0.2-2mm/s
FN 8kNのとき、 2.5%FN
最大摩擦抵抗
トラベルレンジ 8 100mm、トラベルレンジ 2 150mm、 トラベルレンジ 9 200mm
Rt = 室温 (20°C 4°C)。
周囲温度 150°C (短期、最大 1h) では、作動油の粘度低下のた めピストンロッドトラベルは約50%増加する可能性があります。
荷重 FF ピストンロッドトラベル s F 損傷時
緊急時

FN 8kNのとき、 200N または 1%FN の大きい方
300N または 1.5%FNの大きい方 1%FN
約0.3mm/sのピストンロッド速度での値。移動開始時の抵抗力は規定値の 1.5倍まで。FN = 定格荷重
要求により、sa は 0.5mm 以上に増加することができます。(KTA3205.3) ご要望により、バイパス速度を0.2mm/s以下にできます。


力 - トラベル ダイヤグラム力とトラベルの振幅

許容荷重条件
運転時の要求
LISEGA油圧スナバーは標準として以下の運転時 の要求に対応して設計されています。規定値は KTAの適合性試験により認証されています。特殊
連続運転
周囲温度条件
な設計条件の場合、他の数値に変更することがで きます。
短期 最大 1h/温度サイクル
最大 40h/年
最高 80°C
最高 150°C
相対湿度 10~150°C100%
蒸気環境
最高 150°CX=1
放射線量累積値 105J/kg=105gray(=107rad)
周囲気圧

連続運転 0.5~1bar 短期 5bar 加圧
数値はシール材と作動油を含むスナバー全体につ いて適用されます。作動油のデータは以下のとお りです:
作動油 (シリコンオイル)
疲労強度
凝固点 –50°C 引火点 300°C
発火点 500°C
運転時の耐久性の証明は以下の累積荷重変動回数 を基準としています:
定格荷重 FN 荷重変動回数 10% 2,000,000
(レベル A/B)
(レベル C)
(レベル D)
荷重変動回数は40年間の多様な負荷事例から得ら れた想定最大動的荷重容量に相当します。また、 これはKTAの適合性試験プログラムの要求を満足 しています。これらの試験結果は、スナバーは運 転性能を維持しながら負荷に耐えることを証明し ています。
特別なガイドにより、スナバーは常時の運転振動 に対しきわめて高い回復力があります。これは使 用実績により確認されています。
周波数、振幅、振動波形、作用方向及びその相互 作用といった多くの要因があるため、長期の運転 時振動を一律に定義することはできません。

31の試験 試験荷重=最大8600kN
現代のサポート概念では、 リジッドストラットは配管 システムの安全な誘導装置 として重要な役割を果たし ます。信頼できる配管の位 置決めはシステム全体の運 転時の安全性と長期の寿命 において重要な要素です。
役割
LISEGAリジッドストラット タイプ 39は配管シ ステムの運転時の安全性において重要な役割を果 たしています:
想定外の荷重事象(3.1ページ参照)からの変 位の伝達 配管システムの計画熱移動方向をコントロー ルするための誘導機能 フレキシブルな配管システムのゼロ点固定に よる安定化 軸方向固定としての設計
作動モード
リジッドストラットは配管システムと構造物をヒ ンジ付きで剛接続する部品です。リジッドストラ ットの回転方向の配管システムのわずかな移動で は抵抗力が生じません。リジッドストラットの軸 方向の移動は拘束します。
構造
特殊設計品
35
リジッドストラットは両端の接続部に球面軸受を 取付けたジョイントと、剛性の高い本体からなり ます。構造物への取付けは溶接ブラケット タイ プ 35を使用し、配管との接続は製品グループ 3 のダイナミッククランプを使用します。接続部品 の選定表は3.22ページ及び3.29~3.43ページに あります。
荷重グループ 8までの本体は端部を細くしたチュ ーブで作られています。(異なる形状のものもあ ります。)
形状は力の伝達に対応していて、優れた性能/製 品重量比になっています。接続部は球面軸受の付 いたジョイントで、右と左のねじにより150mm または300mmの範囲で長さ調整ができるターン バックルの機能があります。チューブ本体に加工 されている平坦部は据付時にレンチをかけて長さ 調整をするときに使用します。
接続ジョイントには締結を確実にするため細目ね じが使用されています。
本体は標準長さで製造され、在庫品から利用可能 です。LISEGAリジッドストラットはKTA 3205.3 による適合性試験を実施し、ASME-BPV規格に従 って設計されています。
39
39
36
36

標準塗装仕様の外面 簡単に調整ができるスパナがけ 長さ調整ができる右-左ねじ構成 本体 荷重グループ 8までは溶接がありません 電気めっきされた接続ジョイント ロックナット(電気めっき) による接続ジョイントの廻り止め
作動モード
エネルギーアブソーバーには熱移動を吸収する ためのフリーストロークが設けられています。
中間サイズの製品の場合、±25mmの範囲でフ リーストロークの調整が可能です。この範囲内 では配管システムは抵抗なしに自由に移動する ことができます。
しかし、動的事象により生じる移動はストッパ ーによって制限されます。発生した力は、定格 荷重までは構造物に伝達され、それを超えると 変形エネルギーに変換されます。接続機器はこ のように制御された方法によって過荷重から保 護されます。
このためエネルギーアブソーバーは保護装置とし て理想的です:
ウォーターハンマーに対して 複雑なフレーム構造の代わりとして ホイップレストレントとして

エネルギーアブソーバーは 動的な移動を制限し、定格 荷重を超える力を変形エネ ルギーに変換して構造物を 保護します。
フリーストローク (圧縮側)
テーパーディスク B
このような事象が発生した場合、ディスクの移動 量はインジケーターバー(G)の位置により読みと れます。
エネルギーアブソーバーをさらに使用する場合 は、調整装置(H)によりフリーストロークを新し い位置に再調整することが必要です。同様の手順 は最大変形トラベルに達するまで繰り返すことが できます。詳細は3.23ページにあります。
取付け
エネルギーアブソーバーは製品グループ 3(動的 部品)の荷重グループに従って設計されており、 この製品グループの接続部品と荷重及び接続に対 して互換性があります。3.1ページの記載を参照 してください。
フリーストローク (引張側)

長さ調整 フリーストローク調整 H 変形(吸収)エネルギーのインジケーター G
構造は、外径が部分的に細くなっているオーステ ナイト鋼製のケーシングチューブ(A)と、そこに はめ込まれているテーパーディスク(B)からなり ます。チューブは接続ラグ(D)の付いた固定ベー ス(C)でふさがれます。ユニット全体の力の伝達 はストッパー(E)とプッシュロッド(F)を介してな されます。
動的事象による荷重がテーパーディスクの圧縮力 を超えるとテーパーディスクは前方に動き、チュ ーブを押し広げます。こうして接続部品からの過 大な力は変形エネルギーへ変換されます。
LISEGAエネルギーアブソーバーは機能の信頼性 を証明するために様々なテストプログラムを実施 しています。多数の動的及び静的荷重試験と荷重 容量試験により安全性が実証されています。
エネルギーアブソーバーは運転中メンテナンスフ リーで、使用中試験は必要ありません。

定格荷重を超える交番荷重による 荷重-トラベルの軌跡計測 ダブルガイドの代わりとして使用さ れるエネルギーアブソーバー。フレ ーム構造を省くことができます。
機械的、流体圧力変動ある いは外部からの要因による 動的荷重は配管システムや プラント機器に深刻な危険 をもたらします。粘弾性ダ ンパーはこれらの振動を大 幅に減少させます。
振動は、機械的、流体圧力変動などの内部要因あ るいは風荷重、交通振動、地震などの外部要因に よって生じます。
許容レベルを超える振動は配管システムへの深刻 なダメージの原因となります。そのため特別な製 品による配管の保護が必要です。システムの拘束 を避けるため、配管システムの熱膨張による移動 時の抵抗は最小限にする必要があります。
粘弾性ダンパーは配管システムや設備を保護する のに信頼できる製品であることを立証していま す。特に、突然のピーク荷重による振動はダンパ ーによって許容できるレベルまで低減できます。

LISEGA粘弾性ダンパー のケーシングには粘性流 体が満たされており、 この粘性流体が上下の接 続プレートの相対変位を許 容しつつ、運動エネルギー を熱へ変換して消費し、 全方向の振動を弱めます。
粘弾性ダンパーは動的荷重のみを転換し、静的荷 重は負荷しません。ダンパーの反力は振動の速 度と周波数に比例します。LISEGAは適用温度と 周波数に応じて様々な低減特性を持つ流体を提供 します。
LISEGA粘弾性ダンパーの構造
消失エネ ルギー
荷重 トラベル sb s F
(移動範囲)
粘弾性ダンパーのヒステリシス

輸送用ブラケットをオフセッ トなしで取付けた粘弾性ダンパー

輸送用ブラケットをオフ セットして取付けた粘弾性ダンパー


接続プレート 銘板 インジケーター 保護カバー 輸送用ブラケット 輸送用接続ねじ(M16)
荷重範囲 2.5kN ~ 100kN 周波数範囲 35Hzまで 温度範囲 – 10°C ~ 80°C トラベル範囲 50mmまで

パイプホイップレストレント
動的なパイプサポート製品の特殊な設計品がパイ プホイップレストレントです。エネルギーアブソ ーバー タイプ 32のほかに、特に大きい荷重用と してUボルトを使った製品が広く使われます。
パイプホイップレストレントは原子力設備で使用 され、配管システム破断時の運動エネルギーを即 座に吸収します。これには配管を囲むUボルトの 伸びを利用しており、想定される動的荷重に合わ せて設計されます。
パイプホイップレストレントはお客様の設計要件 に従って設計されLISEGAの特殊製品として製造 されます。
パイプホイップレストレントは安全性に係わるも のとして重要で、設計・製造に関して非常に厳し い品質要求を受けます。LISEGAは原子力設備へ 多数納入しており、この製品の供給能力の高さを 証明しています。





動的荷重用サポートにおい て、パイプクランプの設計は 細心の注意を払う必要があり ます。主要な製品(リジッド ストラット、スナバー、エネ ルギーアブソーバー)が正し く機能しても、パイプクラン プが不完全であればシステム 全体の機能は十分発揮するこ とができません。
機能
高温度下で長期間使用される場合、材料のクリー プ特性のためボルトの締め付けを大きくしたとし ても摩擦接合のクランプでは動的荷重を安全に保 持できません。ボルトサイズを大きくしても、配 管を締め付けるだけで問題を解決しません。
典型的な欠点は変形が大きくて必要な剛性が 得られないクランプ設計です。
クランプの接続部は遊びがないことが必要です 拘束を防ぐため、配管システムのラテラル方 向の移動に対して十分な自由度があることが 必要です。
選定表は配管径に従って配列されています。クラ ンプのタイプ番号は使用温度と許容荷重により選 択します。その後、据付寸法を図面によりチェッ クします。リジッドストラット、スナバー、エネ ルギーアブソーバーのラグ接続部は特に注意が必 要です。標準のピン径d1が合わないときには別 の溶接ブラケット タイプ 35を提供することがで きます。クランプのE寸法は下の表に従って変化 します。
特にご指定がない場合は、溶接ブラケットは主な角 度範囲が配管の軸方向になるよう取付けられます。
摩擦接合によるクランプ(静的荷重用)
形状接合のクランプ(動的荷重用)


動的荷重を伝達するために、動的な力を吸収しさ らに伝達するためのクランプが必要です。動的な 力は交番荷重として発生し、偏心して作用する力 のために回転変位が生じます。ダイナミッククラ ンプは回転変位を防ぐためシアラグを使用するよ うになっています。これにより定義検証が可能な 状態が生まれます。検定は配管システム設計者の 責任です。
シアラグはダイナミッククランプを所定の力の方 向に保持するだけで、大きな負荷はかかりませ ん。動的荷重が作用した場合でも配管とクランプ の間の摩擦力がしっかりと締め付けているので、 ラテラル方向の力は発生しません。
シアラグは小さな寸法ですが、作用する力が小さ いため溶接部の応力は最小になっています。一般 に、ASMEあるいはDINの許容値に従い、荷重ケ ースH(レベル A/B)の場合は降伏応力の35%以 下となっています。シアラグは3.44ページの表で 選定できます。
技術面及び経済面から最も合理的なものが選択で きるように、LISEGAは4種類の標準形状を用意し ています。




オーステナイト系の配管システムのクランプには ステンレス鋼製(材質 1.4301, X5CrNi18-10) のインレイプレートを取付けることができます。
この部品は4.7ページにしたがって別個に注文し てください。
静的荷重用としてのダイナミッククランプ 許容荷重(選定表3.29~3.43ページ)は、3.10ペ ージの荷重条件でスナバーまたはリジッドストラ ットと共に動的に使用する場合の値です。
ダイナミッククランプは持続的な静的荷重に対し ても使用できます。この場合、許容荷重は以下の 表にしたがって減少します:
設計温度 許容荷重 低減係数
350°Cまで 100%
351°C–450°C 100%
451°C–500°C 80%
501°C–510°C 80%
511°C–530°C 65%
531°C–560°C 55%
561°C–580°C 65%
581°C–600°C 60% この数値は200,000時間、450℃以上でのクリープ強度に基づ いています。
場合によっては、ダイナミッククランプ タイプ 36,37に加えて特殊な設計品が提案できます。
特に、平行な配置あるいは角度を持つ配置では標 準化された構造と計算方法が活用できます。

角度を持つ配置用の特殊クランプ


衝撃や振動による動的荷重 は配管の軸方向にも作用し ます。この荷重を吸収する ために特別なダイナミック クランプ タイプ 34が開発さ れました。
垂直あるいは水平に走る配管システムで、配管 の軸方向の配管システムの位置決めや動的荷重 の吸収のために特殊なクランプの使用が増えてき ています。この場合、荷重は配管に取付けられ たトラニオンにより伝達されます。この用途のた め、LISEGAはダイナミッククランプ タイプ 34を 開発しました。
管軸方向拘束用の タイプ 34
タイプ 34

この設計のベースは長年使用されてきたボックス フレーム構造のクランプ タイプ 46,48です。ダ イナミッククランプ タイプ 34の荷重伝達は、動 的荷重用製品 タイプ 30,32,39と接続するため の溶接ブラケット タイプ 35を取付けた補強され たクロスビームによります。
設計
ダイナミッククランプ タイプ 34の設計には以下 の条件が必要です:

スナバーに接続した 位置決め装置付きのタイプ 34
位置決め
位置決め装置はクランプが配管のトラニオンの周 りを回転しないようにします。位置決め装置は動 的な荷重を受けません。トラニオン受けの穴にリ セスを設けるか、追加プレートによります。
スナバー タイプ 30に接続した ねじれ防止付き タイプ 34

スナバー タイプ 30に接続した、 トラニオン穴の方向を変えた タイプ 34
荷重(動的、静的) 配管システムの温度 保温厚さ 接続点のスパン 溶接ブラケット タイプ 35のサイズと取 付け向き トラニオンのサイズ トラニオンの公差 配置(水平、垂直) 接続される製品(タイプ 30, 39, 32) ねじれ防止用のリセス寸法(必要な場合) スペーサー(必要な場合)
製品組合せと設計条件の多様性のため、ダイナミ ッククランプ タイプ 34の設計はご要望により個 々に行います。

リセス式の タイプ 34

追加プレート式の タイプ 34

リジッドストラット タイプ 39とパイプクランプ タイプ 34を使用した水平配管の軸方向ストップ

スナバー タイプ 30とダイナミッククランプ タイプ 36を取付けた配管
スナバー
タイプ 30 18 16 ~ 30 03 12 量産標準品 在庫品があります。
耐食性の材料が使用されて います。
ねじ取付け式の接続ラグは 電気めっきです。
材質 P250GH, C45E+QT, S355J2, A668Cl. C/F, SA299


注文要領:
スナバー タイプ 30 .. ..
溶接ブラケット
タイプ 35 .. .. 2個付き ハンガー番号: ...
30 18 1634.01005410220320181591.9
30 38 16810.610070123154155020104.3
30 39 16810.620070124106105020105.7
30 42 161823.915085153955455822.5128.3
30 43 161823.930085155458455822.51212
30 52 1346611501352044559565301620
30 53 1346613001352059589565301629
30 62 1610014115017030535685100452237
30 63 1610014130017030685985100452251
30 72 1620026715020050615765130603561
30 73 16200267300200507651065130603578
30 82 16350472150270607308801657544122
30 83 163504723002706088011801657544147
30 92 135507351503007076091016510549175
30 93 1355073530030070910121016510549207
30 02 1210001335150390100935108524014770390 30 03 12100013353003901001085138524014770460
技術仕様 0.6ページの許容荷重表、
及び3.22ページの溶接ブラケットの溶接を参照。
地震などの荷重ケースの設計荷重。
技術仕様 0.6ページを参照。
Emin = ピストンロッド押し込み状態 Emax = ピストンロッド引き出し状態 取付け長さが大きい場合、エクステンション タイプ 33(3.21ページ)が使用できます。
他社の製品を取り替える場合、ピン径やラグの長さなどの 接続寸法を既設の寸法に合わせることができます。
ご要求により、よりストロークの長いスナバー を供給できます。
接続の可能性:溶接ブラケット タイプ 35または製品グル ープ 3のダイナミッククランプのピン径参照。

スナバー タイプ 31 98 16 ~ 31 58 16
スナバー タイプ 31はきわめ て大きい荷重の吸収用とし て特別に開発されました。 これは、主に原子力発電所 の蒸気発生器や大型ポンプ を保護するために使用され ます。通常非常に狭い取付 けスペースのため、これは 与えられた条件に合わせて 特注されます。このページ の表は初期計画段階での一 般的な参考データとしてご 利用ください。
本体と接続ラグは高強度のス テンレス鋼で製作されます。
タイプ
定格荷重 [kN]
31 98 1655073510024070620720959031011510549152
31 28 162000266010044012087097016015545015016085648
31 38 16300040001005401401020112019018062010020090968
31 48 1640005320100580160105011502052005852552451051300
31 58 1650006650100630180114012402302206702052901051750
技術仕様 0.6ページの許容荷重表 及び3.22ページの溶接ブ ラケットの溶接を参照。
地震などの荷重ケースの設計荷重。 技術仕様 0.6ページを参照。

Emin = ピストンロッド押し込み状態 Emax = ピストンロッド引き出し状態
Lmax は 80˚Cでの長さ トラベルレンジ 8(ストローク100mm) 用トラベルインジケーター


注文要領: スナバー タイプ 31 .. .. 溶接ブラケット タイプ 35 .. .. 2個付き ハンガー番号: ...
接続の可能性:溶接ブラケット タイプ 35または製品グループ 3のダイナミッククランプのピ ン径参照。
LISEGAスナバー タイプ 31は現場 での使用中試験のために交換可能な バルブが取付けられています。
エクステンション
タイプ 33 18 18 ~ 33 03 12 量産標準品
エクステンション タイプ 33 は長い取付け寸法が必要な 場合に使用します。
エクステンションはスナバ ーまたはエネルギーアブソ ーバーのシリンダーベース に接続されます。量産品の ねじ接続部を使って、標準 の接続ラグからエクステン ションへ容易に付け替えで きます。特殊な接続に対し ても適用でき、他社の製品 を取り替えるときに既設の 接続部を再使用する場合に 特に有効です。その他の接 続品については3.6ページを 参照してください。
ラテラル方向の移動による 角度は 6° を超えないよう にしてください。

材質: チューブ P355NH
球面軸受 P250GH 付き C45E+QT ジョイント S355J2 42CrMo4+QT
33 18 18310024010254457602055200.800.39
注文要領: エクステンション
タイプ 33 .. .. L = ...mm スナバー用、または エネルギーアブソーバー用
33 52 1346150455204972014052659503.700.73
33 53 1346300680204994511802655003.700.73
33 62 181001505103064780190027013906.002.00
33 63 181003007353064100517002709656.002.00
ピストン位置中央での長さ Emaxよりも大きい取付け長さは荷重を減少することで対応 可能です。短いL寸法も供給できますが寸法調整はできなく なります。
接続の可能性:溶接ブラケット タイプ 35または製品グル ープ 3のダイナミッククランプのピン径参照。
タイプ
d 3 c

定格荷重 [kN] ABC Ød3 EFLR 重量 [kg]
35 19 13325321210309.542130.2
35 29 13425321210309.542130.2
35 39 138303712123410.546150.3
35 49 1318354313154012.552180.5
35 59 1946545415205016.565271.0
35 69 19100907923307522.595453.7
35 79 1920011010025509035.5115557.9
35 89 193501501303460115451607517.0
35 99 115501802304070155502208041.0
35 09 1310003903105810021272305100132.0
35 20 1920005203206512024587320135215.0
技術仕様 0.6ページの許容荷重表及び下記の溶接ブラケットの溶接を参照。
はめあい: H7 f8
ご要望により、さらに大きな溶接式/ボルト式ブラケットの供給も可能です。
溶接ブラケットは、運転時の熱膨張により移動す る角度が最大になる方向へ配置してください 。ラテラル方向の変位角度は 6° に制 限されています。熱移動に対して適切な自由度が あることを確認してください。
溶接ブラケット
タイプ 35 19 13 ~ 35 20 19 量産標準品
この部品はスナバー タイプ 30,31、エネルギーアブソ ーバー タイプ 32、リジッド ストラット タイプ 39及びタ イプ 16,20,27と接続し て、構造物へ取付けます。
ブラケットは溶接性のよい 炭素鋼 S355J2で、高精度の 接続ピンはステンレス鋼で 作られています。
注文要領: 溶接ブラケット タイプ 35 .. ..
35
35
35 89 1914.518.021.0
35 99 1115.020.023.0
35 09 1314.017.019.0
35 20 1923.0––
溶接ブラケット タイプ 35の最小溶接サイズ ‘ ’ は角度 と によって決まります。 計算条件と して荷重ケースH(レベルA/B)での許容応力を 90N/mm2 としています。
角度 を 90°まで大きくする場合は、 = 45°で の が同じとき許容荷重は約15%減少します。
許容荷重に関しては、技術仕様 0.6ページの荷重 表を参照してください。
タイプ
タイプ 32 18 16
量産標準品

定格荷重を超えると、増加する 力と移動は変形エネルギーに変 換されます。
引張と圧縮方向の最大変形トラ ベル。
フリーストローク t1/t2 及び長さ調整A寸法の中央値に おけるE寸法。t2 を変えるとそ れに応じてE寸法も減少または 増加します。
接続の可能性:溶接ブラケット タイプ 35または製品グループ 3のダイナミッククランプのピ ン径参照。
注文要領:
エネルギーアブソーバー
タイプ 32 .. 16
t1 = …mm, t2 = …mm
ハンガー番号:
フリーストローク(圧縮側)
タイプ
32 52 16465.00-250-25115204901507565301611.5
32 62 161006.50-250-251303057516575100452218.5 32 72 162009.50-280-281955071517575130603547.0
32 82 1635012.50-300-3025060945225751657544105.0
32 92 16550 ご要望によります
個々の適用
上の表に示された標準設計品は供給可能な範囲の みを表わしています。
製品はLISEGAによりお客様の特定の要求に合わせ ることができます。
これは特に荷重やストロークが標準値を超える場 合に適用されます。



粘弾性ダンパー
タイプ 3D 03 44-D
~ 3D H1 44-D
選定及び寸法
粘弾性ダンパーを選定する際には、現場での温度に 注意が必要です。ダンパーは、温度範囲20℃から 80℃に適用でき、さまざまな減衰媒体が10℃ごと にカバーします。このため、適用温度での正しい選 定が重要です。
ダンパーサイズの選定は定格荷重によります。水 平方向及び上下方向のオフセットを冷間時位置で 考慮する必要があります。LISEGAダンパー 44-D シリーズでは、この量は水平方向/上下方向に ±40mmです。

= 中央位置と作動範囲
振動低減装置についてさら に詳しくお知りになりたい
方はVICODAの製品カタロ グをご覧ください。
輸送用ボルト取付け用ねじ穴
注文要領:
粘弾性ダンパー
タイプ 3D .. 44-D
ハンガー番号:
定格荷重: …kN
オフセット: …
x:…mm, y:…mm, z:…mm, 作動温度: …°C
ダンパーは中央位置付近で作動する必要がありま す。必要な減衰抵抗を得るために、粘弾性ダンパ ーは中央位置から±20mmの範囲で作動させてくだ さい。起動前にダンパーを作動温度まで予熱して ください。
荷重レンジ:2.5kN ~ 100kN 周波数レンジ:35Hzまで 温度範囲:20°C から 80°C (10°C ごと)
中央位置に対するオフセット量: 40mmまで 水平方向/上下方向)
表の数値は、注文時の作動温度での最小値です。 低い温度では減衰抵抗は増加します。ご要求によ り、上下方向と水平方向で同等の剛性(kN/mm)を 与えられます。
3D 03 44-D2.524027021583414–16
3D 05 44-D524029023083414–19
3D 10 44-D10240340270103818M1631
3D 20 44-D20280390320124222M1651
3D 30 44-D30320440350154626M1684
3D 40 44-D40335470380184626M16109
3D 60 44-D60350510410205333M16149
3D 80 44-D80390535430255939M16191 3D H1 44-D100405580460305939M16246
3D
3D
3D
3D 20 44-D2089.367.957.951.647.344.041.494.072.557.847.540.636.334.2
3D
3D
3D
3D
3D
選定及び寸法
粘弾性ダンパーを選定する際には、現場での温度 に注意が必要です。3D .. ..-L シリーズは、温度範 囲-10℃から+40℃に使用できるよう設計されて います。この温度範囲では、ダンパーは比較的一 定の特性で機能します。数値は20℃で決定されて います。
ダンパーサイズの選定は定格荷重によります。水 平方向及び上下方向のオフセットを冷間時位置で 考慮する必要があります。LISEGAダンパー 33-L 及び 55-L シリーズでは、この量は水平方向/上 下方向にそれぞれ±30mm及び±50mmです。
ダンパーは中央位置付近で作動する必要がありま す。必要な減衰抵抗を得るために、粘弾性ダンパ ーは中央位置から±20mmの範囲で作動させてく ださい。起動前にダンパーを作動温度まで予熱す る必要はありません。
表の数値は、20℃での最小値です。低い温度では 減衰抵抗は増加します。ご要求により、上下方向と 水平方向で同等の剛性(kN/mm)を与えられます。
荷重レンジ: 2.5 kN ~ 50 kN 周波数レンジ:35 Hzまで 温度範囲: – 10°C から + 40°C

中央位置に対するオフセット量: 30 mmまで (タイプ 3D .. 33-L) 50 mmまで (タイプ 3D .. 55-L) (水平方向/上下方向)
中央位置と作動範囲
振動低減装置についてさら に詳しくお知りになりたい 方はVICODAの製品カタロ グをご覧ください。

選定
下の表からリジッドストラットを選定 するときは、以下の点に注意してくだ さい:
1. 指定された運転時荷重をカバー する定格荷重を選んでください。
2. 荷重グループは定格荷重により決 まります。
3. 指定された取付け長さに対応す る調整範囲のものを選定してくだ さい。
4. 製品重量は荷重グループと調整範囲が交差す る場所に示されます。交差位置が赤の境界線 より下にある場合は取付け長さが長いため許容 荷重が減少します。設計荷重が適合している か、3.28ページのダイヤグラムによりチェック してください。
5. 注文する際、タイプ番号の3桁目に荷重 グループの番号を入れてください。 許容荷重及び重量
定格荷重 [kN]
荷重グループ
重量 [kg]
定格荷重 [kN]
荷重グループ
重量 [kg]
39 .0 32300 -4503751.42.12.339 .0 83800 -95087571
39 .0 42400 -5504751.92.83.07.07.639 .0 93900 - 105097577162
39 .0 52500 -6505752.33.53.78.59.115.939 .1 031000 - 1150107582172
39 .0 74600 -9007502.43.44.98.8132239 .1 131100 - 12501175182
39 .0 84750 -9008254039 .1 231200 - 13501275192
39 .1 04850 - 115010003.34.56.51117284739 .1 331300 - 14501375231
39 .1 241100 - 140012504.15.58.01321345739 .1 231100 - 1400125088
39 .1 541350 - 165015004.96.6101425406739 .1 531350 - 16501500121247
39 .1 741600 - 19001750(5.8)7.6111629467739 .1 731600 - 19001750139270
39 .2 041850 - 21502000(6.6)12.5131833528639 .2 031850 - 21502000157294
39 .2 242100 - 24002250(7.4)14.1152037589639 .2 232100 - 24002250175350
39 .2 542350 - 2650250015.71622416510639 .2 532350 - 26502500193379
39 .2 742600 - 29002750(18)24457111539 .2 732600 - 29002750211409
39 .3 042850 - 31503000(19)(26)497712539 .3 032850 - 31503000229438
39 .3 243100 - 34003250(21)(28)538313539 .3 233100 - 34003250247467
39 .3 543350 - 36503500(23)(30)578914439 .3 533350 - 36503500265497
39 .3 743600 - 39003750(31)619515439 .3 733600 - 39003750283526
39 .4 043850 - 41504000(65)10116439 .4 033850 - 41504000301555
39 .4 244100 - 44004250(69)10717439 .4 234100 - 44004250319585
39 .4 544350 - 46504500(73)11318339 .4 534350 - 46504500337614
39 .4 744600 - 49004750(77)(119)19339 .4 734600 - 49004750355644
39 .5 044850 - 51505000(126)20339 .5 034850 - 51505000372673 39 .5 235100 - 54005250390702
取付け長さが長い(赤の境界線より下)ときの荷重減少は、3.28ページのダイヤグラムを参照 39 .5 535350 - 56505500(408)732 細長比は 150です。重量が( )で囲まれている長さのものは、 39 .5 735600 - 59005750(426)761 細長比が150~200になっているものを示します。 39 .6 035850 - 61506000790 タイプ番号の3桁目に荷重グループの番号を入れてください。
取付け長さが長いときの荷重ダイヤグラム
破線:細長比: 150200
球面軸受付きジョイント
最小ねじ込み長さ
左ねじ
39 2. ..430(30) 3810300190027(27) 329
39 3. ..838(38/40) 43/5712300215032(32) 36/4610
39 4. ..1845(38/40) 5715300240036(32) 4612
39 5. ..4660(57/60) 61204002150605016
39 6. ..10082(57/60) 8330400290060(50) 7022
39 7. ..200120(70/75) 10250500315070/75(60) 8535
39 8. .43501501156075029009510044
39 9. .3550210115/127708003400110100/11049
39 0. .31000293159/16910010003650155135/14570
リジッドストラット
タイプ 39 20 32 ~ 39 06 03
このダイヤグラムは、取付 け長さが長いときの減少許 容荷重値を示します。
材質:
本体 P235GH P355NH
球面軸受 P250GH 付き C45E+QT ジョイント S355J2 42CrMo4+QT
ラテラル方向の移動による 角度は6°を超えないように してください。
最小ねじ込み長さ。ジョイント端 部に溝が加工されています。
球面軸受の幅
タイプ番号の4桁目と5桁目に長 さの記号が入ります。(3.27ペ ージの表参照)
リジッドストラットのロッドは 右ねじと左ねじがあり、ターン バックルと同じように取付け長 さを調整できます。表よりさら に短い製品も特殊設計により製 作可能です。
接続の可能性:溶接ブラケット タイプ 3 5または製品グループ 3 のダイナミッククランプ タイプ 36,37のピン径参照。
(…) 内の数値: Emax =650mmまで
荷重グループと長さによっては、ス トラットは本図と若干異なるものと なる場合があります。
注文要領: リジッドストラット タイプ 39 .. ..
中間の値の算出:直線補間
接続する荷重グループを発注 時に指示してください。最大 荷重グループより小さい荷重 グループを選定したときは、 クランプのE寸法は小さくなり ます。 3.15ページの表参照) はめあい:H7 f8
シアラグの寸法:
F マイナス 1mm 、 B1 プラス 2mm 3.44ページ参照)
荷重作用角度 6°
OD 108.0 (ND 100)
タイプ
36 10 211818181526516550351146.2
36 10 311616149.11527016550301145.3
36 10 41119.36.81527016550301145.3
OD 114.3 (ND 100)
タイプ 許容荷重
36 11 211818181527017550351146.5
36 11 244646464642202801751006013512.3
36 11 311616139.01528017550301145.5
36 11 3441413522202901751006013512.4
中間の値の算出:直線補間
接続する荷重グループを発注時に指示してください。最大荷重グループより小さい荷重グループを選定したときは、クラン プのE寸法は小さくなります。(3.15ページの表参照) はめあい:H7 f8
19 4225201520350275504513515.5
244.5 (ND 225)
36 24 1149454130320315504511615.3 36 24 1265595330320330504513617.0 36 24 2132282620400315504011515.3
36 24 2250444030400330504513621.6
36 24 24 10092857468304003151008013636.0
36 24 25 149137125109100504153301009016749.2
36 24 311818181415395315504011413.7
36 24 323737332220395330504513517.9
36 24 3463625536304203151008016636.6
36 24 3595938354304203301009016644.3
36 24 4118141015395315504011413.7
36 24 4224181320395330504513517.9
36 24 44443426304203151008016636.6
36 2389747130480465606013642 36 36 2412110597504954451209016766
36 36 251861721655049546512012021793
36 36 311818181315475435604011421
36 36 323837312020495445604513527
36 36 337069593830495465606013641 36 36 3497968153304954451209016661
中間の値の算出:直線補間
接続する荷重グループを発注時に指示してください。最大荷重グループより小さい荷重グループを選定したときは、クラン プのE寸法は小さくなります。(3.15ページの表参照) はめあい:
36 37 14 165151139504154551209016757
36 37 15 2782561816044047512012016888
36 37 2131272420485445604011523
36 37 2248423930485455604513631
36 37 2389767230485475606013642
36 37 2412110597505004551209016767
36 37 251861681595050047512012021794
36 37 311818181315480445604011422
36 37 323837312020500455604513528
36 37 337069593830500475606013642
36 37 3497968153305004551209016662
36 37 35200200178167165143935051547512012021792
36 37 4223181420500455604513527
36 37 4349392930500475606013642
36 37 44685541305004551209016662
36
36 41 323736312020530495604513530
36 41 336968583730530515606013646
36 41 3496948052305304951209016667
36 41 35164162142925054551512012021799
37 41 3722622321516160600490310230218191 36
36 41 45118967250545515120120217101
37 41 473072912662502472311611269460600490310230218191
中間の値の算出:直線補間 接続する荷重グループを発注時に指示してください。最大荷重グループより小さい荷重グループを選定したときは、クラン プのE寸法は小さくなります。(3.15ページの表参照) はめあい:H7 f8 シアラグの寸法:
46 336866563730570565606013652
46 3493927851305755451209016674
46 351661631399050590565120120217114
46 3722522221416060635540310230218208
46 38 55050443336434233732122370675550340250269294
46 4347382930570565606013652
46 44655340305755451209016675
選定表 OD 508.0 - OD 558.8
OD 508.0 (ND 500)
[kN]
37 51 118262453051559517013013643
37 51 12 133101735053062017013613766
37 51 13 18214210860560640230180168105
37 51 14 26920615370600660330260219187
37 51 17 36529421370600590320230219213
37 51 216958543059557514010413641
37 51 229580755062059017013013766
37 51 231311101045062060518013616790
37 51 2421317916860650625240180218150
37 51 2523519718460650635240190218181
37 51 26 35031426922721260650670250190218200
37 51 28 55052044637535270650605340250269298
37 51 31535245313062558014010413642
37 51 32757471493062560017013013663
37 51 3310210195725064060018013616792
37 51 3416616415610960665640230180218148
37 51 3518318017013260665640240190268182
37 51 3834033631922270710605340250269318
37 51 413124183062558014510413642
37 51 425039293062560017013013663
37 51 437458433062560018014016692
37 51 44110846250640640235180217138
37 51 451341057750640640240190267173
37 51 48 55053548844743042739427521515870710625395290269397
OD 558.8 (ND 550)
37 56 118162443055064517013013647
37 56 12 133100725056567017013613770
37 56 13 18114210860595690230180168111
37 56 14 26920615370635705330260219195
37 56 17 36529521370635645320230219228
37 56 216757533064063014010413645
37 56 229479745065564017013013770
37 56 231311101035065565518013616796
37 56 2421217816760680675240180218157
37 56 2523419718460680685240190218190
37 56 26 35031326922621160680720250190218210
37 56 28 55050443336434270725655340250269337
37 56 31535245313065063014010413646
37 56 32757472493065065017013013667
37 56 3310210195725066565018013616796
37 56 3416616415510860695690230180218154
37 56 3518218017013260695690240190218191
37 56 3834033631922270735655340250269334 37
接続する荷重グループを発注 時に指示してください。最大 荷重グループより小さい荷重 グループを選定したときは、 クランプのE寸法は小さくなり ます。 3.15ページの表参照) はめあい:
シアラグの寸法: F マイナス 1mm 、 B1 プラス 2mm 3.44ページ参照)
37
609.6 (ND 600)
37 61 12 128101735059072018013616773 37 61 13 18214310860620740230180168115 37 61 14 27220615570660760330260169199 37 61 17 36829721470660695320230219239 37 61 18 54341229770660705335250219299
37 61 216757533067068014010416649
37 61 229479755068569017013016775
37 61 2313111010350685705180136167101
37 61 2421117716760715725240180218166
37 61 2523319618360715735240190218199
37 61 2626822521160715770250190218220
37 .. .1/2/3/4/5/6
中間の値の算出:直線補間 接続する荷重グループを発注 時に指示してください。最大 荷重グループより小さい荷重 グループを選定したときは、 クランプのE寸法は小さくなり ます。 3.15ページの表参照) はめあい:H7 f8 シアラグの寸法: F マイナス 1mm 、 B1 プラス 2mm 3.44ページ参照) 6° 6° 6° 6°
荷重作用角度 6° タイプ 37 .. .7/8/9
37 61 28 55050143036234070760705340250269359 37 61 31525245303068568014010416650
37 61 32757471493068570017013016672
37 61 33102100957250700700180136167101
37 61 3416416315410860730740230180218163
61 425039293068570017013016672
61 4372564250700700180136167106
61 44108826060730740235180218163
61 451311027560730740240190218201
37 66 39 55055048340638037535527570795770400290269460 37 66 413225183071573014511016657 37 66 425139303071575518013616689 37 66 4372564250730755180136167111 37 66 44108826160755790235180218171
37 66 451321037660755790240190218209
37 66 4853548844743042739427521515870795770400290269460
37 66 4942741634626820970795780435340269536
OD 711.2 (ND 700)
37 71 13 18214310960680840230180168127
37 71 14 27220615670720860330260169213
37 71 15 32825318670720880355260219245
37 71 18 54641429970720810335250219331
37 71 216958553072578014511016659
37 71 229681765074579517513616787
37 71 2313111010350745810180136167111
37 71 2421317916860770830240180218178
37 71 2523519818560770840240190218217
37 71 2627022721360770875250190218240
37 71 28 55050343236334170815810340250269396
37 71 31545346313074078014511016659
37 71 32767573503074080517513616689
37 71 33102101957350755805180136167112
37 71 3416716515610960780845230180218175
37
中間の値の算出:直線補間 接続する荷重グループを発注 時に指示してください。最大 荷重グループより小さい荷重 グループを選定したときは、 クランプのE寸法は小さくなり ます。 3.15ページの表参照) はめあい:H7 f8 シアラグの寸法: F マイナス 1mm 、 B1 プラス 2mm 3.44ページ参照)
タイプ 37 .. .1/2/3/4/5/6
中間の値の算出:直線補間 接続する荷重グループを発注 時に指示してください。最大 荷重グループより小さい荷重 グループを選定したときは、 クランプのE寸法は小さくなり ます。 3.15ページの表参照) はめあい:H7 f8 シアラグの寸法:
F マイナス 1mm 、 B1 プラス 2mm 3.44ページ参照) 6° 6° 6° 6°
タイプ 37 .. .8/9
1
81 2627122821360830975250190218261
81 28 55050543436534370875910340250269440 37 81 31545446323079088514511016666
37 81 32777674513079090517513616698 37 81 33103102957150805905180136167121 37 81 3416916715810760830945230180218191 37 81 3518618317013460830945240190218234 37 81 3834333832122470875910340250269432
37 81 39 55055049041238538136027970875920400290269523 37 81 413225193079088514511016666
81 4252403030790905180140166104
81 4374584350805905180140167127
81 44110846260830945250180218193 37 81 451341057760830945270190218236
荷重作用角度 6°
86 14 277216156708101015295260169243
86 15 317248187708101035295260219273
86 16 387307233708151040305260219304
37 86 18 51841530070810965335250219393
37 86 216958553081593514511016672
37 86 2296817650830950180136167113
37 86 2313211110450830965200136167136
37 86 2421518117060855985260180218211 37 86 26273229214608551030240190218286
37 86 28 55050943736734570900965340250269474
37 86 31555447323081593514511016670
37 86 327776745130815960180136166109 37 86 33104103957250830960180136167133 37 86 34170168159110608551000235180218207 37 86 35187184170135608551000235190218255
37 86 3834534132322570900965340250269465
37 86 39 55055049341538838336028170900975400290269564
37 86 413225193081593514511016670 37 86 4252413130815960180140166116
37 86 4374584450830960180140167140
37 86 441118462608551000250180218207
37 86 4513510578608551000270190218255
37 86 4855054548145044440328121916270900975400290269566
37 86 4942741635327421470900990435340269659
OD 914.4 (ND 900)
37 91 1175614330760100518013016669
37 91 1212110072507751030185136167100
37 91 13181143108608051045250180168146
37 91 14285216156708451065330260169245
37 91 15329248186708451085365260219275
37 91 16400301233708451090390260219306
37 91 18544413299708451015335250219394
37 91 216958553084098514511016672
37 91 22978177508551000175136167112
37 91 23132111104508551015220136167137
37 91 24216181170608801035240180218213
37 91 26274230215608801080250190218288
37 91 28 550511438368346709251015340250269478
37 91 29 550550495416390709251025400290269574
37 91 31545346323085098514511016673
37 91 3277767451308501010175136166110
37 91 331031029568508651010180136167134
37 91 3417016815697608801050230180218206
37 91 35187185170135608801050240190218258
37 91 38343339322225709351015340250269475
37 91 39387382360280709351025400290269579
37 91 413225183085098514511016673
37 91 42524030308501010180140166117
37 91 43745843508651010180140167141
37 91 441118462608801050260180218208
37 91 4513510678608801050320190218264
37 91 48550544479449443402280219161709351025400290269579
37 91 49427416353274214709351040435340269680
OD 965.2 (ND 950)
37 97 15328249187708701135290260219296
37 97 16387324234708701140295260219353
37 97 18518415300708701065335250219430
37 97 2169595530865104014511016681
37
37
37 97 29 550550498418391709501075400290269603
37 97 315151483330875104014512016681 37 97 3279787652308751060180146166115
37 97
37
中間の値の算出:直線補間 接続する荷重グループを発注 時に指示してください。最大 荷重グループより小さい荷重 グループを選定したときは、 クランプのE寸法は小さくなり ます。 3.15ページの表参照) はめあい:H7 f8 シアラグの寸法: F マイナス 1mm 、 B1 プラス 2mm 3.44ページ参照) 6° 6° 6° 6° 荷重作用角度 6°
OD 1016 (ND 1000)
37 T0 1177594230810111016513016676
37 T0 1212010274508251130180150167111
37 T0 13182142111608551140230195168166
37 T0 14281217157708951165295260169267
37 T0 15323250188708951185295260219298
37 T0 16387328237708951190305270219359
37 T0 18518416301708951115335250219435
37 T0 2170595530890109014511016682
37 T0 221008479509051110180146167117
37 T0 23141117111509051130225186167155
37 T0 24225187177609301140250205218236
37 T0 26290240228609301180300250218324
37 .. .1/2/3/4/5/6
中間の値の算出:直線補間 接続する荷重グループを発注 時に指示してください。最大 荷重グループより小さい荷重 グループを選定したときは、 クランプのE寸法は小さくなり ます。 3.15ページの表参照)
はめあい:H7 f8 シアラグの寸法:
F マイナス 1mm 、 B1 プラス 2mm 3.44ページ参照)
37 T0 28 550515442371349709751115340250269519
37 T0 29 550550499420393709751125400290269606
37 T0 315251483330900109014512016681
37 T0 3279787652309001110180146166113
37 T0 3311511410666509151130225186167154
37 T0 34171169167103609301155240205218226
37 T0 35203200185137609301175295250218295
37 T0 38346342325226709851115340250269513
37 T0 39550514433405400380293709851125440330269620
37 T0 4133261930900109014512016681
37 T0 42534231309001130180150166122
37 T0 43826448509151130225190167159
37 T0 441168865609301150240205218225
37 T0 4514711484609301170295250218288
37 T0 48550548484452447405282220163709851125400290269614
37 T0 49427416356276216709851140435340269726
OD 1067 (ND 1050)
荷重作用角度
T1 1212010075508501185180150167121
37 T1 13182141111608801190230195168179
37 T1 14281218157709201220295260169282
37 T1 15323254187709301240295260219318
37 T1 16387327236709301245305270219362
37 T1 18518417302709201170335250219470
37 T1 2170595530915114014511016688
37 T1 221008479509301165180146167127
37 T1 23144119113509301185225186167166
37 T1 24226187177609551195250205218251
37 T1 26289239227609551235300250218342
37 T1 28 5505164433733507010001170340250269559
37 T1 29 5505505014213947010001180400290269655
37 T1 315251483330925114014512016688
37 T1 3280797653309251165180146166123
37 T1 3311511410566509401185225186167165
37 T1 3417116916898609551210240205218243
37 T1 35203201186137609551230295250218317
37 T1 383483433262277010101170340250269550
37 T1 395505164344064013822937010101180440330269664
37 T1 4133261930925114014512016688
37 T1 42534231309251185180150166134
37 T1 43826448509401185225190167170
37 T1 441168965609551205240205218240
37 T1 4514711585609551225290250218308
37 T1 485504854544484072832211637010101180400290269659
37 T1 494274163572772167010101195435340269770
OD 1118 (ND 1100)
37 T2 1177594230860121016513016686
37 T2 1212010075508751235180150167127
37 T2 13186138109609051240235195168180
37 T2 14281217158709451270295260169290
37 T2 15323254188709551290295260219321
37 T2 16387326239709551295310280219403
37 T2 18518414303709451220335250219472
37 T2 2170595530940119014511016687
37 T2 221008278509551215180146167126
37 T2 23148121114509551235230190167174
37 T2 24227191179609801245250205218256
37 T2 26294243231609801285300250218347
37 T2 28 5505184453743517010251220340250269557
37 T2 29 5505505034233957010251230400290269656
37 T2 315251483330950119014512016686
37 T2 3280797652309501215180146166122
37 T2 3311611410667509651235225186167169
37 T2 3417217016898609801260240205218247
37 T2 35204201185139609801280295250218323
37 T2 383493443272287010351220340250269553
37 T2 395505184364084023822937010351230440330269668
37 T2 4134261930950119014512016688
37 T2 42544231309501235180150166131
37 T2 43806247509651235225190167169
37 T2 441168965609801255240205218243
37 T2 4514811585609801275295250218312
37 T2 485504874564504082842221647010351230400290269664
37 T2 494274163582782177010351245435340269773
OD 1168 (ND 1150)
37 T3 1175584130885126016513016693
37 T3 121209875509001285180150167127
37 T3 13181139111609301295235195168194
37 T3 14279219158709701320295260169295
37 T3 15323254188709801340295260219342
37 T3 16387326239709801345310280219414 37 T3 18518420303709701270335250219495
37 T3 2170595630965124014511016694
37 T3 221018580509801265180146167138
37 T3 23149121114509801285230190167186
37 T3 242271891796010051295250205218272
37 T3 262932422306010051335300250218369
37 T3 28 5505194463753527010501270340250269563
37 T3 29 5505505044243977010501280400290269654
37 T3 315251483330975124014512016694
37 T3 3280797753309751265180146166133
37 T3 3311611510766509901285225186167180
37 T3 395505204374094043832937010601280440330269667
37 T3 4134261930975124014512016694
37 T3 42544232309751285180150166144 37 T3 43806247509901285225190167182 37
37 T3 494274163592792187010601295435340269831
中間の値の算出:直線補間 接続する荷重グループを発注 時に指示してください。最大 荷重グループより小さい荷重 グループを選定したときは、 クランプのE寸法は小さくなり ます。 3.15ページの表参照) はめあい:H7 f8 シアラグの寸法: F マイナス 1mm 、 B1 プラス 2mm 3.44ページ参照)
1219 (ND 1200)
37 T4 1174564030910131516513016693
37 T4 121229975509251335180150167136
37 T4 13183137108609551345235195168195
37 T4 14281217159709951370295260169310
37 T4 153232541897010051390295265219362
37 T4 163873222407010051395310280219415
37 T4 18518415304709951320335250219530
37 T4 2167555230990129514511016694
37 T4 2210184805010051315180146167139
37 T4 231471211155010051335230190167186
37 T4 242281891796010301345250205218275
37 T4 262932422306010301385300250218373
37 T4 28 5505214473763537010751320340250269607
37 T4 295505054253987010751330400290269708
37 T4 3152514931301000129514512016692
37 T4 32807977523010001315180146166134
37 T4 33116115107665010151335225186167183
37 T4 34173171169986010301360240205218267
37 T4 352062041881396010301380295255218364
37 T4 383503463292297010851320340250269596
37 T4 395505214384104053852937010851330440330269718
37 T4 41342619301000129514512016694
37 T4 425442323010001335180150166142
37 T4 437860455010151335225190167183
37 T4 4411789666010301355240205218263
37 T4 45148116856010301375295250218337
37 T4 485504904584524102862231657010851330400290269712
37 T4 494274163612802187010851345435340269831
中間の値の算出:直線補間
接続する荷重グループを発注時に指示してください。最大荷重グループより小さい荷重グループを選定したときは、クラン プのE寸法は小さくなります。(3.15ページの表参照) はめあい:H7 f8 シアラグの寸法: F マイナス
シアラグはダイナミッククランプを所定の力の方 向に保持するだけで、大きな負荷はかかりませ ん。動的荷重が作用した場合でも配管とクランプ の間の摩擦力がしっかりと締め付けているので、 ラテラル方向の力はほとんど発生しません。
シアラグは小さな寸法ですが、作用する力が小さ いため溶接部の応力は最小になっています。一般 に、ASMEあるいはDINの許容値に従い、荷重ケ ースH(レベルA/B)の場合は降伏応力の35%以 下となっています。
選定
シアラグの選定は、3.29~3.43ページのダイナミ ッククランプ選定表に従ってダイナミッククラン プと関連寸法 F 及び B1 を決めてから行います。
カタログ寸法 B1 プラス 2mm シアラグの寸法 N = カタログ寸法 F マイナス 1mm N1.5 x N 0N2xN –2mm

(摩擦係数)
圧縮応力と偏心して作用す る荷重に対してダイナミッ ククランプ タイプ 36,37 を保持するためLISEGAは 標準化されたシアラグを提 供します。


シアラグを使用したときのダイナミッククランプの力の分布
標準材質のシアラグは在庫しており、短期間で出 荷が可能です。配管材質との適合性及び溶接のサ イズについてはお客様の責任範囲です。
タイプ番号
1桁目2 桁目3 桁目4 桁目5 桁目6 桁目7 桁目8 桁目材質 3L.... – 01S235JR – 02S355J2
3 ~ 6 桁目はパイプクランプの – 0316Mo3 タイプ番号と同じ 例: 36 22 31 – 0413CrMo4-5 2231 – 0510CrMo9-10 – 06X10CrMoVNb9-1 ご要望により他の材質も供給可能です。
注文の例
パイプクランプ タイプ 36 22 31
配管材質 13CrMo4-5の場合のシアラグ:
注文品のタイプは 3L 22 31-04 となります
注文要領: シアラグ タイプ 3L .. .. - ..
スナバーは精密に作られて いる、重要な安全性関連機 器です。したがって、取り 扱いには十分な注意が必要 です。スナバーの機能を損 なわないために、以下の注 意事項を守ってください。
1 輸送と保管
LISEGAスナバーはきわめて精密に作られてい る、重要な安全性関連機器です。したがって、輸 送、保管、開梱及び据付前後の取り扱いには十分 な注意が必要です。周囲温度は-20℃以下になら ないようにしてください。
スナバー及び付属部品は屋内に保管し、汚れと損 傷から保護してください。据付直前まで納入時の 梱包のままで保管することをお奨めします。輸送 時や据付での取り扱い時の損傷が認められた場合 は直ちにメーカーに連絡してください。
タイプ 36
タイプ 30
タイプ 35
タイプ 30の取付け例
銘板
ピストンロッドカバー のぞき窓 トラベルインジケーター 接続ラグ

スナバー タイプ 30と位置決め装置 付きのダイナミッククランプ タイ プ 34を使用したハンガー
スナバーは決して踏み台やはしごの代わりにしな いでください。スナバーの近くでサンドブラスト や溶接、塗装などの作業を行う場合はスナバーを 取外して保護してください。

2 出荷状態
スナバーは作動油が充填され、完全に作動可能な 状態で供給されます。タイプ 30の接続ラグは一 方をスナバーの底面に、他方をピストンロッドに ボルト止めされ、ロックボルトで固定されます。
LISEGAスナバーは非腐食性の材料で製造されて いるので、更なる表面処理は必要ありません。ね じ式の接続ラグは電気めっきでクロメート処理さ れています。
溶接ブラケット タイプ 35は取付けピンと分けて 供給されます。表面は溶接可能なプライマーで保 護されています。
輸送時には、スナバー タイプ 30はピストンを完 全に押し込んだ状態で専用の箱にひとつずつ梱包 されます。

タイプ 30の銘板
銘板には以下の項目が刻印されます:
タイプ番号
定格荷重 ストローク 作動油の種類と油量 製造番号 オーダー番号 サポート番号
3 取付け
取付け前にスナバーに損傷がないか点検してくだ さい。また接続ラグは確実に取付けられているか 確認してください。溶接ブラケットは構造物に完 全に溶接してください。
溶接ブラケットの配置は、最大旋回角度が運転中 の最も大きい熱膨張の方向になるようにしてくだ さい。ラテラル方向の許容変位角度は最大±6°で す。溶接ブラケットの取付け向きの調整不良は配 管移動を制限することになるので十分注意してく ださい。
接続部あるいは周辺の溶接はスナバーの取付け前 に行ってください。
スナバー タイプ 30は据付時に必要な取付け長さ (接続ピンから接続ピンまでの寸法)までピスト ンロッドを引き出してください。
スナバーがロックしてしまわないよう、ピストン ロッドは閉弁速度以下のゆっくりした速度で引き 出してください。小型のスナバーのピストンロッ ドは手で引き出すことができます。大型のスナバ ーでは、ピストンロッド側の接続ラグで吊るすこ とにより本体の自重を利用して引き出すことがで きます。
スナバーはどんな向きにも取り付けることができ ます。配管からの放射熱が発散しやすいようピス トンロッド側を配管側にして接続してください。
スナバーエクステンションを使用する場合は、エ クステンションを配管側に接続してください。
スナバーの据付では、のぞき窓が点検歩廊などか ら見やすい方向になるようにしてください。
各接続部は、しっかりと結合してください。力が 伝達されるところは十分に締め付けてください。
スナバーの据付後、溶接作業を行う場合は溶接 電流がスナバーを通って流れないよう注意して ください。
システム全体の据付後、以下の点検をしてくだ さい:
A. 各接続部の点検。 接続ラグの止めねじ、接続部 のピン、ボルトの脱落防止 。
B. 熱移動に対して適切な自由度があるかの点検。
接続ラグが接続ブラケットの中で自由に動ける か、また、ピストンがストロークエンドに達する ことがないかの確認 。
トラベル余裕として、エンド位置まで最小10mm とるのが適切です。ピストン位置はトラベルイン ジケーターで読み取ることができます。
プラントの試運転前に、すべてのスナバーの据付 状況を目視で点検してください。

銘板
ピストンロッドカバー トラベルインジケーター
のぞき窓 (作動油点検用)
接続ラグ
トラベル余裕範囲 (エンド位置まで)
有効作動範囲 タイプ 30
通常の運転条件の下では、スナバーはプラントの 最大寿命においてトラブルなしに機能するよう設 計されています。ただ、スナバーの機能を常に維 持するための予防保守を推奨します。3.47ページ の保守要領を参照してください。

垂直配管にスナバー タイプ 30とエクステンション タイプ 33 ダイナミッククランプ タイプ 34を使用したサポート
トラベル余裕範囲 (エンド位置まで)
据付及び取扱要領
スナバーはプラントの安全 にとって非常に重要な装置 です。スナバーは配管シス テムや他の機器を想定外の 過大な動的荷重から保護し ます。このような事象の発 生は予期できないため、ス ナバーは常に正常に機能す ることを要求されます。
通常の運転状態では、スナバーの耐用年数はプラ ントの最大運転期間(60年)に見合うよう設計さ れています。ただし、シール材と作動油は遅くと も23年後までに交換してください。
極端な荷重条件の下では、急速な劣化や機械的な 摩耗の増加を排除できません。信頼性に関する厳 しい要求にしたがって、予防保守が必要です。保 守作業の実行はプラント運営者の責任です。
方法
1. 定期点検 –1年に一度の目視検査
2. 拡大点検 –
遅くとも運転開始から12年後の性能試験
実施要領
点検と保守作業は特別に教育を受けた担当員によ り実施してください。
必要により、特別に教育を受けたLISEGAのサー ビス担当員により実施することができます。動的 性能試験については、プラントへ持ち込みができ る可搬式試験装置も利用可能です。
1 定期点検
定期的な点検として、据付されているすべての製 品に対して1年に一度目視検査を行ってください。
最初の点検は試運転の直前に行ってください。
この点検では、スナバーだけでなく取付け状態や 周囲の状況も確認してください。以下のチェック 項目により点検を行ってください:
取付け位置と状態 運転時の移動量 特別な周囲状況または運転条件 これまでに実施された保守作業

以下の項目を点検してください: チェックリストと銘板のデータの照合 結合点との接続部 運転時の熱移動に対するスナバーの自由度 トラベル余裕(最小10mm)を考慮したピス トンロッドの位置 損傷や油洩れなどの外観状況 異常な運転状態(温度上昇など)の形跡 作動油の油量(のぞき窓から) のぞき窓からリザーバーピストンが見えない限 り、リザーバーの中には十分な作動油がありま す。リザーバーピストンが見えたら、油洩れが生 じていると考えられます。
点検結果はチェックリストに記録するとともに、 必要に応じ保修方法を記載します。
2 拡大点検 拡大点検は運転開始から12年後に実施し、1タイプ あたり最低2台のスナバーの性能試験を行います。
試験結果が良好であればスナバーを再取付けしま す。なんらかの異常が見つかった場合は、そのス ナバーは分解して、機能に関連する部品を点検し ます。プラント運営者は必要な保修作業を行い記 録に残す責任があります。
点検の範囲と対象スナバーの選択は、様々な負荷 要因(温度、放射線、荷重、運転時振動など)を 考慮して、プラント運営者とサービス技術員によ って取り決めます。
次回の拡大点検の時期と範囲は点検時の結果に基 づいて決定されます。
遅くとも運転期間が23年経過したものは、シール 材と作動油の交換が必要です。専門の作業員によ りLISEGAの正規部品に交換し、性能試験に合格 したスナバーはさらに23年使用することができ ます。

スナバー タイプ 30による 配管の安全対策

タイプ 35の荷重作用角度 タイプ
35 19 133.03.03.0
35 29 133.03.03.0
35 39 133.03.03.0
35 49 133.04.05.0
35 59 195.57.08.0
35 69 197.59.511.0
35 79 1910.513.515.5
35 89 1914.518.021.0
35 99 1115.020.023.0
35 09 1314.017.019.0
35 20 1923.0––
溶接記号の説明: =
の単位 mm
1 出荷状態
LISEGA溶接ブラケットタイプ 35は、塗装して取 付けピンと共に納入されます。塗装は特に指定が ない場合溶接可能なプライマーです。
2 取付け
溶接ブラケットと構造物は完全に溶接してく ださい。
溶接ブラケットは、運転時の熱膨張による移動角 度が最大になる方向へ配置してください 。
ラテラル方向の変位角度は±6°以下に制限されて います 。 熱移動に対して適切な自由度があ ることを確認してください。
接続部または周辺の溶接はスナバーやリジッドス トラットの取付け前に行ってください。
溶接ブラケットの溶接に関する推奨事項は以下の とおりです:
溶接ブラケット タイプ 35の最小溶接サイズ‘ ’は 角度 と によって決まります。計算条件として 荷重ケースH(レベルA/B)での許容応力を 90N/ mm2 としています。
角度 が 90°となる場合は、溶接サイズが同じと したとき = 45°での許容荷重より約15%減少し ます。
許容荷重に関しては 技術仕様の0.6ページを参照 してください。
溶接手順
1. 溶接ブラケットからピンを取外してください
2. タイプ 35 79 19以上のサイズの溶接ブラケ ットは約100℃で予熱してください。
3. ベース電極を使用してください。
4. 溶接ひずみを避けるために多層溶接してくだ さい。
溶接順序は下図を参照)
5. 各層の溶接後に溶接ブラケットを100℃まで 冷却してください。
Schweißfolge Typ 35
注意事項:溶接は資格を持った人により施工し、 技術部門が監督してください。立て向きで溶接す る場合は、上進溶接としてください。
部品の取付け後、溶接ブラケットのプライマー面 は塗装できます。これはスナバーの取付け前に施 工してください。
1 輸送と保管
輸送中は、作動流体の漏洩を防ぐため粘弾性ダ ンパー タイプ3Dは常に直立状態にしてくださ い。屋外に保管する場合は、汚れと水分から保護 してください。
2 出荷状態
LISEGA粘弾性ダンパーは、冷間時の位置(オフ セット)にセットした状態で、輸送用ブラケット によりダンパーの上部と下部の部材を結合して出 荷されます。指定がない場合はオフセットなし x=0, y=0, z=0)として固定されます。
重量が20kgを超えるものには、上部の接続プレ ートに吊上げ用のM16のねじ穴が加工されてい ます。

下部接続プレート ケーシング
インジケーター
輸送用ブラケット 上部接続プレート 吊上げ用接続ねじM16 銘板
銘板には以下の項目が刻印されます:
タイプ番号
製造番号と管理番号
定格荷重
作動温度 ハンガー番号
3 取付け
取付けに当たっては、配管システムの据付指示に従 ってください。LISEGA粘弾性ダンパーは納入時の セット状態のまま、直立状態で取付け場所に運んで ください。上部と下部の接続プレートをそれぞれ配 管システムと構造物にしっかりと接続します。この とき、輸送用ブラケットは取外してください。ねじ の締め付けトルクは右の表にあります。
4 試運転
タイプ 3D .. ..-Dを使用する場合、ダンパーの作動 温度に調整できるようプラントはゆっくりと起動 させてください。そうでないと規定の定格荷重を 超える強い反力が発生する恐れがあります。必要 であれば、ダンパーを作動温度まで加熱します。
試運転中、上部と下部の接続プレートの相対位置 が事前に計算された運転時の位置へ変化します。
運転中は、ダンパーがほぼ中央位置で作動するよ う計画してください。大きく外れるとダンパーの 動的な特性が変化します。もし中央位置が許容領 域に入らない場合、計算を見直しします。
LISEGA粘弾性ダンパーは基本的に特別な保守は 必要ありませんが、定期的な目視点検を行ってく ださい。変更が生じた場合は輸送用ブラケットを 再度取付けることができます。

タイプ 3Dの銘板

輸送用ブラケットの取外し
122939
167195
20138184 M 24235315 M 30475635
M 3610801440
* VDI 2230 Appendix Aによる。 摩擦係数 µ = 0.14
= 中央位置でのタイプ 3Dの 作動範囲
据付及び取扱要領 タイプ 36, 37
1 輸送と保管
輸送中はダイナミッククランプが損傷しないよう 注意してください。製品は乾燥した屋内で保管し てください。やむを得ず屋外に保管する場合は、 汚れと水分から保護してください。
2 出荷状態
LISEGAダイナミッククランプは据付に必要なす べてのボルト類と共に納入されます。輸送の効率 化のためにクランプは部分的に組み立てて発送す ることがあります。
シアラグ
クランプのねじれを防止するために、シアラグの 取付けをお奨めします。
3.44ページを参照してください。
シアラグ取付け用の溝の寸法はダイナミッククラ ンプの選定表3.29~3.43ページにあります。
3 取付け
タイプ 36
この製品は、接続ブラケットと一体化した鋼材製 の上側部分と、荷重レンジにより1本または2本の 当板つきUボルトで構成されます。
取付け前に、仮組みされたUボルトを取外しま す。上側部分をシアラグにあわせて置いてくだ さい。Uボルトと当板を反対側から挿入し、最初 は軽く締めてください。クランプの位置をチェ ックしてから、ボルトを締めて廻り止めしてく ださい。
タイプ 37
この製品は大口径、大荷重用のクランプです。
通常、荷重に見合った溶接ブラケット タイプ 35 が溶接取付けされています。ご要求によりブラケ ットを別々に納入する場合は、3.49ページの溶接 指示に従って溶接してください。
クランプの下側部分は荷重レンジにより1枚また は2枚の鋼板製ストラップです。ストラップは 輸送時には上側部分にボルトで取付けられてい ます。
取付け前に、接続ピンを緩めてストラップを取外 します。上側部分をシアラグにあわせて置いてく ださい。反対側からストラップをクレビスに挿入 し、ピンで接続したあと割りピンで脱落防止処置 をします。
クランプの位置をチェックしてから、ボルトをし っかり締めたあと、舌付き座金でナットの廻り止 め処置をします。
Rohrschellen, Rohrlager, Rohranschlüsse
PRODUKT 4 GRUPPE









配管接続部品
高温の配管システムでは、パイ プクランプ及びクランプベース は高温にさらされ最も高い応力 が作用するため、サポートの中 で最も損傷しやすい部品です。 しかし、保温で覆われていて接 近しにくいためパイプクランプ は運転開始後に点検されること はあまりありません。
標準化
配管接続部品として、パイプクランプ、クランプベー ス、配管用溶接ラグ及びUボルトがあります。これらの 製品は、配管システムの設計基準が多岐にわたるため、 特に多くの種類が必要となります。製品グループ3のダ イナミッククランプもこのグループに含まれます。水平 及び垂直配管の設計は以下により決定されます:
配管径 荷重 流体温度 保温厚さ
LISEGAはすべての適用分野において広範囲に使用でき るように標準化された多種の製品を用意しています。
適用分野での特別な要求に沿って、理想的な製品が開 発されています。
配管サイズは、外径21.3から外径1219まで、温度範 囲は650℃までに対応し、 許容荷重は経済的なサイ ズをそろえて、実用上必要な最高レベルをカバーして います。




これらの標準化された製品はLISEGAモジュールシス テムの一部を構成し、荷重と接続部の互換性を保証し ています。
品質
適用範囲が高度であるため、配管接続部品の設計と構 造には特別な注意が必要です。
パイプサポートには配管自体と同程度の注意が払われ るべきです。なぜなら、配管システムはそのサポート より良いはずがないからです!
製品品質を信頼できるものにするために最も重要なこ とは広範囲にわたる標準化です。
適切な製品を選定するときには、品質が立証された製 品に信頼を置くべきです。
最高水準の技術による標準化により、プラントの設計 者、建設者、運営者は、全体の適用範囲にわたって利 益を得ることができます:

完成度が高く明確に表現されたデータ表により計 画業務を簡素化できます
単独のソースから包括的なサポートプログラ ムへの統合によりすべての部品を供給します LISEGAモジュールシステム)
合理的な量産と先進技術の設計により優れた品質 と競争力のある価格となっています
徹底した標準化により短納期にも対応できます
軽量化され据付のしやすい構造と接続の互換性 を持つLISEGA製品は効率的な据付が可能にな ります
最新の規格による設計は運転時の安全性を確実 にします
コンパクトな製品寸法により熱損失を低減します
独立検査機関による証明書を提出できます 高い温度範囲で使用されるパイプクランプは EN 10204-3.1により証明された材料が使わ れます
製品説明
水平クランプ タイプ 41, 42, 43, 44
1 溶接ラグ タイプ 41
このタイプは、主に80℃以下の水平配管またはパイプ エルボ部の配管接続用として使用されます。
2.1 水平クランプ タイプ 42 .. 17
このクランプは、温度の低い配管システムの建築用ク ランプまたはハンガークランプとして使用されます。
適用範囲は比較的小さな配管に限られます。
2.2 水平クランプ タイプ 42 .. .9
このクランプは比較的大きな配管に使用されます。
3 水平クランプ タイプ 43
このハンガークランプは、平板から製作される一般的 な製品です。その使用は製品重量が約25kgまでの経 済的な範囲に制限されます。LISEGAアイナット タイ プ 60に接続ピンで連結します。
許容荷重は材料の温度特性に依存するため、パイプク ランプは何種類かのLISEGA荷重グループに対応する ようになっています。このため、アイナットは少なく とも3種類のピン径に対応できるように設計されてい ます。
同じ機能 重量を軽減
当板付きのUボルトで受けた荷重をリジッドヨークで支 持します。配管径、温度あるいは荷重範囲によってUボ ルトの代わりに鋼板製のストラップが使用されます。
個々の部品は溶接を使わず、はめ込み形状とボルトで 組み立てられます。(特許番号DE 3817059)
水平クランプ タイプ 44はタイプ 43が経済的である 範囲を超えたときに使用されます。これは実質的には 大きな荷重となる、高温で大きい配管径用です。
クランプのラグをLISEGAクレビス タイプ 61に連結 してロッドと接続します。接続ラグは、何種類かの LISEGA荷重グループの接続ピンと対応するように設 計されています。 タイプ 44による軽量化: 同じ評価基準(荷重
製品説明
1
ライザークランプ タイプ 45
ライザークランプ タイプ 45は比較的低い荷重と温度 の範囲で使用されます。この範囲内では特に経済的な 製品です。
配管にシアラグを溶接し、垂直配管と接続します。 シアラグの設計と取付けは配管メーカーの責任範囲 です。
クランプの接続ピンをLISEGAアイナット タイプ 60 に連結してロッドと接続します。接続ラグは、少なく とも3種類のLISEGA荷重グループに対応できるように なっています。
注文時には、必要なスパン(L寸法)を指定してくだ さい。
このライザークランプは、材料を最も経済的に利用で きる箱形の形状をしています。
個々の部品は溶接を使わずに組み立てられ、固定され ます。(特許番号 DE 3817015)
垂直配管との接続は2つの方法があり、異なった形状 になっています:
タイプ 46は配管に溶接された4つのシアラグを使 用して荷重を支持します。150A以下の配管では ラグを2個にすることができます。この場合、ラ グはサイドプレートの真上に配置してください
タイプ 48は配管に溶接されたトラニオンを使用 して荷重を支持します。
トラニオン用の穴の大きさは、ASME Code Case N3923及びDIN EN 13480-3にしたがって配管径のお よそ1/3 となっています。
クランプのラグをLISEGAクレビス タイプ 61に連結し てロッドと接続します。
接続ラグは、何種類かのLISEGA荷重グループに対応 できるようになっています。
トラニオンの寸法決定に必要となる箱の内側寸法(N 寸法)は、配管径ODにより右下の表で決まります。
パイプクランプ及びクランプベースの材質
クランプ 材質
タイプ S235JRS355J216Mo313CrMo4-521CrMoV5-710CrMo9-10X10CrMoVNb9-1
水平クランプ
タイプ 41xx
タイプ 42xxxxx
タイプ 43xxxxx
タイプ 44xxxxxxx
ライザークランプ
タイプ 45xxxx
タイプ 46xxxxx
タイプ 48xxxxxx
クランプベース
タイプ 49 .. .1x
タイプ 49 .. .2x
タイプ 49 .. .3x
タイプ 49 .. .4x
タイプ 49 .. .5xxxx
ライザークランプ タイプ 45の接続状態
ライザークランプ タイプ 46の接続状態
ライザークランプ タイプ 48の接続状態
ライザークランプ タイプ 46,48の内側寸法(N寸法)
配管径N寸法
OD 100OD + 12mm
OD 100OD 400OD + 22mm
OD 400OD + 32mm
クランプベースは、水平配管システムのスライド用部 品として使用されます。
パイプクランプと同様に、配管サイズは、外径21.3か ら外径1219まで、温度範囲は600℃まで(80A以下は 650℃まで)をカバーしています。
クランプベースの設計では、支持荷重に加えて、配管 システムの運転温度が重要です。使用する材質は温度 により決まります。取付け高さは保温の厚さを基に決 められています。
サイズの数を合理的な範囲に収めるために、温度範囲 によって固定の取付け高さが割り当てられています。
固定の取付け高さは、すべての配管径において配管 の下側から50mmあるいは100mm毎の寸法になっ ています。
配管のサポート高さとスライドベースの長さの標準寸 法は大部分の状況をカバーします。
温度と荷重によっては異なったクランプベースを設計 する必要があります。
ご要望により、特殊な寸法の製品を供給できま す。4.9ページの特殊設計品を参照してください。
クランプベースに作用する荷重
μ = 摩擦係数
材料 µ
鋼 / 鋼 ~0.3
鋼 / PTFE~0.1
鋼 / 高温度用材料 280°Cまで ~0.1…0.18
鋼 / 高温度用材料 280°C~350°C ~0.25
詳細については7.11ページ参照
流体温度と配管径によるクランプベースの高さ
まで
500°Cまで H
配管径 21.3–26.933.7–76.188.9–193.7219.1–457.2508–1219
560°Cまで H
600°C (650°C) まで H 150 (200)200 (250)250300
配管径 21.3–76.188.9–168.3193.7–323.9355.6–1219
1 温度が低く小さい配管径用のクランプ ベース
この範囲の製品(形状例1)は、2つのΩの形をした部 品で構成されています。配管への据付の時には下側の 部分をボルトでしっかり結合し、スライドベースを形 成します。
上側の部分のボルトを締めて配管を保持します。
この形状により生まれる配管の下の空間により換気が 可能な構造になっているため、湿気による配管の腐食 が防止でき、これは温度が低い配管システムには不可 欠です。このクランプベースは、標準として電気めっ きされています。
この製品(形状例2)は、2個のパイプクランプとそれ に溶接される下側の受け台で構成されています。設計 荷重によっては、下側の受け台に補強板が取付けられ ています。
クランプベースはいろいろな使い方が可能です。受け 台を二つ使用すれば、容易にダブルガイドにすること ができます(図. 2)。横方向にガイドを追加すること によって、多方向のガイドを構成できます。
ベースプレート部には、浮き上がり防止金具を簡単に 取付けることができます(図. 1)。受け台は、スラ イド用部品の摺動面としてのステンレス鋼板を取付け ることができます。4.7ページの付属部品を参照して ください。
ご要望により、特殊な長さあるいは高さの製品 も製作できます。特に大きな熱移動に対して は、長いスライド面を持つクランプベースが好 都合です。
選定表にない特殊な配管径となる中間的なサイズ が供給可能です。あるいは、配管径差がわずかな 場合はインレイプレートを使用します。
ご要望により、標準のクランプベースを組み合わ せることにより、2方向以上のガイドの供給が可 能です。4.8ページを参照してください。
形状例 1: 150A までの小さい配管径用 クランプベース タイプ 49 .. .1, 49 .. .2
使用例:

ダブルガイドとしてのクランプベース タイプ 49 .. .. G2P ガイドとしてのクランプベース タイプ 49 .. .. G2A (図. 2) (図. 1)
浮き上がり防止金具付きのクランプベ ース タイプ 49。 許容荷重及び寸法は 4.68ページ参照。
形状例 2: 中・高温度用クランプベース タイプ 49 .. .3, 49 .. .4, 49 .. .5
パイプクランプ及びクランプベ ースには、特別な用途に合わせ た部品を取付けることができま す。LISEGAは目的に応じた様 々な部品を提供します。
1 ステンレス鋼製インレイプレート
オーステナイト系の配管システムのサポートには、す べてのLISEGAパイプクランプ及びクランプベースに
ステンレス鋼製(材質 1.4301, X5CrNi18-10)のイン レイプレートを取付けることができます。この部品は 以下のタイプ番号で別個に注文してください:
タイプ 36用:ステンレス鋼板 36 .. ..-IP
タイプ 37用:ステンレス鋼板 37 .. ..-IP
タイプ 42用:ステンレス鋼板 42 .. 09-IP
タイプ 43用:ステンレス鋼板 43 .. ..-IP
タイプ 44用:ステンレス鋼板 44 .. ..-IP
タイプ 45用:ステンレス鋼板 45 .. ..-IP
タイプ 46/48用:ステンレス鋼板 46/48 .. ..-IP
タイプ 49 .. 11/12用:
ステンレス鋼板 49 .. .. -IP
タイプ 49 .. 13/14/25/35/45/55用:
ステンレス鋼板 2x 42 .. 09-IP
例: パイプクランプ タイプ 44 27 13 インレイプレート タイプ 44 27 13-IP クランプベース タイプ 49 11 25
2 x インレイプレート タイプ 42 11 09-IP
材料の厚さ:0.5mm

クランプベース タイプ 49の下面に取付 けられたステンレス鋼製のスライドプレ ートと高温度用スライドプレート付きの スプリングサポート タイプ 29

浮き上がり防止金具
摩擦抵抗を減らすため、すべてのクランプベースにス テンレス鋼製(材質 1.4301, X5CrNi18-10)のスライ ドプレートを取付けることができます。このスライド プレートとPTFEスライドプレート タイプ 70(180℃ まで)または新しいLISEGA高温度用スライド材 350℃まで)を一緒に使用することにより、摩擦力を サポート荷重の約10~20%まで減少させることがで きます。7.10ページのスライドプレートも参照してく ださい。この部品はクランプベースのタイプ番号の末 尾に「SP」の記号をつけて注文してください:
表示例: 49 22 14-SP 49 27 14-G2A-SP
クランプベースの取付け高さは、約3mm大きくな ります。
3 浮き上がり防止金具 タイプ 49 00 01~ 49 00 05
クランプベースには浮き上がり防止金具を取付けるこ とができます。この金具は、支持荷重が小さいときや クランプベースを溶接できないときにクランプベース を所定の位置に保持するのに使用します。4.68ページ の選定表により注文できます。

インレイプレート付きのタイプ 43インレイプレート付きのタイプ 44
4 接続プレート タイプ 77
パイプクランプ タイプ 43及び 44は接続プレートを 使って2個を組み合わせることができます。これによ り支持荷重を2倍にできます。選定方法は4.67ページ にあります。
注文するときは、クランプのタイプ番号部分を 77に 置き換えます。
タイプ 43の場合の例:
77 09 39 :クランプ 43 01 19 – 43 09 59 用
77 17 39 :クランプ 43 10 19 – 43 17 59 用
77 19 39 :クランプ 43 19 19 – 43 19 59 用
タイプ 44の場合の例:
77 66 38 :タイプ 44 66 38 用
タイプ 44用では、上部接続品(タイプ 60)の荷重グ ループを指定してください。
5 防食用分離テープ 分離テープは、配管とパイプサポートが異種金属で接 触する場合、局部腐食を防止するために電気的に分離 するために使用されます。これにより、配管は経済的 なマルテンサイト系材料のサポートに取付けられ、効 果的に保護されます。
粘着性の分離テープは、温度範囲が-35℃から +210℃までに適用でき、酸や塩基、溶剤に対する抵 抗力があります。このテープは、パイプクランプの本 体が配管に接する場所に配管の油分を除去してから貼 り付けます。材料の厚さは0.5mmです。
テープの幅は、クランプの幅に合わせて数種類のもの が用意されています。メートル単位の長さでの注文に なります。
配管の水平方向、垂直方向または双方向の移動を制限 することはよくあります。タイプ 49の標準品(形状
例 2)を使って、多様な形状と荷重容量を持つパイプ ガイドを提供できます。注文時は、標準品のタイプ番 号に要求形状の記号をつけます。
例:
タイプ 49 標準品: 49 .. .. タイプ 49 ダブルガイド(平行): 49 .. .. G2P タイプ 49 ダブルガイド(直角): 49 .. .. G2A
タイプ 49 三方向ガイド: 49 .. .. G3
タイプ 49 四方向ガイド: 49 .. .. G4
この製品に、さらにスライドプレートを取付けること ができます。

パイプクランプ タイプ 43/44に 取付けた接続プレート タイプ 77
注文要領: 防食用分離テープ タイプ 42 00 .. L
42 00 04b=4042 00 11b=110
42 00 05b=5042 00 12b=120
42 00 06b=6042 00 15b=150
42 00 07b=7042 00 17b=170
42 00 08b=8042 00 20b=200
42 00 09b=9042 00 22b=220
42 00 10b=100
特殊設計品
パイプサポートでは、標準化さ れた製品を使用することにより 設計、輸送、据付に関する時間 とコストの莫大な節約をもたら しています。これはパイプクラ ンプとクランプベースにも当て はまります。
しかし、配管システムの複雑さ により製品は非常に広い範囲の 適用が要求され、時には特殊な 設計品が必要となります。
技術的に正しい解決を得るため には、さまざまな設計計算能力 を持つ経験豊かな専門家に頼る ことが必要です。

特殊設計のタイプ 45を使った 垂直配管用のサポート
特殊設計品
標準化されたLISEGA配管接続部品はほぼすべての領 域での適用をカバーしていますが、問題を解決するた めに特殊な設計が必要になる複雑なケースはしばしば 生じます。中でも以下の状況において特殊な設計が要 求されます:
非常に制限されたスペース 干渉の回避 特別な仕様のアンカー 特に大きな作用荷重
特殊な配管径 特に高い温度 (1000°Cまで) 特に大きな保温厚さ 通常ではない配管の角度 特殊なトラニオン径 ねじれ防止 / シアラグ
LISEGAはこのような特殊な問題に対して、迅速に柔 軟に、また適切に対応できるように経験豊かな技術者 を有しています。これは社内で開発された種々のコン ピュータープログラムで支援されています。これに加 えて、検証された設計の広いレパートリーが利用でき ます。
解決できない問題はない - この確信がLISEGAの専門 家の原動力です。私たちはお客様にいつでも解決策を 示すことができます!

LISEGAトリプルジョイント(特殊設計品)

特殊設計品 タイプ 40
特殊設計品 タイプ 48(受け型用)
特殊設計品 タイプ 48(傾斜配管用)
特殊設計品 タイプ 38
特殊設計品 タイプ 49(移動拘束用)
適用に当たっては以下の項目が重要です:
1 適正な部品の決定に必要なすべてのデータは順 序だてて選定表に記載されています。
2 接続部の形状はLISEGA接続部品のものと互換性 があります。適用できる荷重範囲が広いため、い くつかのLISEGA荷重グループの接続部品が取付 けられるようになっています。
選定表の寸法及び形状は構造によって若干異なる 場合があります。許容荷重は記載どおりです。
3 接続ラグの長さは、接続点が一般的な保温厚さの 外側になるように設計されています。
4 オーステナイト系の配管システム用に、すべての パイプクランプ及びクランプベースにステンレス 鋼製のインレイプレートを取付けることができま す。製品の詳細は4.7ページにあります。
5 適切なパイプクランプを選定するために、 以下の手順に従ってください:
5.1 支持される配管システムの外径(OD)に対応す るページを決定します。一般的な配管公差が考慮 されています。
5.2 要求されるサポートタイプ(水平または垂直) の欄の対応する温度範囲を決定します。
5.3 支持荷重より大きな許容荷重を決定します。選定 表の運転温度の許容荷重を超えてはいけません。 中間の温度での許容荷重は直線補間で算出できます
5.4 据付条件に適合するか取付け寸法Eと幅Bをチェッ クします。寸法は選定表に記載されています。
5.5 ライザークランプの場合、スパン(L寸法)をチ ェックします。
5.6 ライザークランプの場合、トラニオンまたはシア ラグのどちらを使用するかにより、タイプ(46 /48)を決めます。
5.7 クランプが接続できるLISEGA荷重グループの範 囲と、要求される荷重チェーンとが適合するかチ ェックします。
5.8 選定された部品のLISEGAタイプ番号を指定します
6 クランプベースを選定する場合は、5.1~5.4項 に従ってください。
保温の厚さに見合った適正な高さ(H寸法)が選 定されているか注意してください。
6.1 サポートの高さ(H寸法)とスライドベース長さ A寸法)は標準寸法で、大部分の適用をカバーし ます(選定表参照)。ご要望により、特殊な寸法 の製品を供給できます。
7 パイプクランプ及びクランプベースは、特別な 適用条件に対して特殊設計品が供給可能です。 4.6~4.9ページ参照)
8 LISEGAパイプクランプ及びクランプベースの設 計及び構造について、特別仕様への対応も考慮さ れています。これはLISEGAの品質マネジメント システムにしたがって、別工程での製造が必要に なります。そのためタイプ番号は5桁目に5を加え たものとなります。(0.7及び0.8ページ参照)
次ページからの選定表は、適用 範囲の概容を示します。表は配 管径の順に編集されており、計 画する配管システムに必要な すべてのパイプクランプとクラ ンプベースがひとつのページ に記載されています。高い温度 (600℃~650℃)用はその 後のページにあります。
LISEGAパイプクランプの表示 荷重は4°の傾斜による力を考 慮しています。
2個のパイプクランプを、接続プレート タイプ 77を使って連結することにより 支持荷重を2倍にできます。選定方法は 4.67ページにあります。
流体温度が600℃を超えるときは4.52 ページ以降をご覧ください。 タイプ 77を使用して荷重を2倍にできま す。4.67ページ参照
45 01 112.11.71.21225505003.8C-4
45 01 111.91.41.01225506004.4C-4
45 01 319.07.66.55.64.94.02.61.31225703004.2C-4
45 01 316.65.64.84.13.63.01.91.01225704005.3C-4
45 01 315.24.43.83.32.82.31.50.81225705006.4C-4
45 01 314.33.73.12.72.31.91.20.61225706007.5C-4
45 01 418.77.87.36.44.94.33.22.01.51.11225703004.2C-4
45 01 416.45.85.44.73.63.22.41.51.10.81225704005.3C-4
45 01 415.04.54.23.72.82.51.91.20.80.61225705006.4C-4
45 01 414.23.73.53.02.32.01.51.00.70.51225706007.5C-4
流体温度が600℃を超えるときは4.52 ページ以降をご覧ください。 タイプ 77を使用して荷重を2倍にできま す。4.67ページ参照
45 02 111.81.41.01225506004.4C-4
45 02 319.37.86.75.85.04.12.71.41225703004.2C-4
45 02 316.85.74.94.23.73.02.01.01225704005.3C-4
45 02 315.34.53.83.32.92.41.50.81225705006.4C-4
45 02 314.43.73.22.72.42.01.20.61225706007.5C-4
45 02 418.98.17.56.55.04.43.32.11.51.11225703004.2C-4
45 02 416.55.95.54.83.73.22.41.51.10.81225704005.3C-4
45 02 415.14.64.33.72.92.51.91.20.90.61225705006.4C-4
45 02 414.23.83.53.12.42.11.61.00.70.51225706007.5C-4
流体温度が600℃を超えるときは4.52 ページ以降をご覧ください。 タイプ 77を使用して荷重を2倍にできま す。4.67ページ参照
45 03 112.62.21.51225605004.5C-4
45 03 112.21.81.31225606005.3C-4
45 03 319.68.16.96.05.24.32.81.41225703004.2C-4
45 03 3210109.89.39.09.08.97.312259030010.2C-4
45 03 316.95.95.04.33.73.12.01.01225704005.3C-4
45 03 3210109.89.39.09.08.95.312259040013.0C-4
45 03 315.44.63.93.42.92.41.60.81225705006.4C-4
45 03 3210109.89.39.09.08.24.212259050015.8C-4
45 03 314.53.83.22.82.42.01.30.61225706007.5C-4
45 03 3210109.89.39.09.06.83.512259060018.7C-4
45 03 419.38.37.86.85.24.63.52.21.61.21225703004.2C-4
45 03 428.98.78.26.112259030010.2C-4
45 03 416.76.05.64.93.83.32.51.61.10.81225704005.3C-4
45 03 428.98.16.04.512259040013.0C-4
45 03 415.24.74.43.83.02.61.91.20.90.61225705006.4C-4
45 03 429.08.96.44.73.512259050015.8C-4
45 03 414.33.93.63.12.42.11.61.00.70.51225706007.5C-4
45 03 429.08.45.33.92.912259060018.7C-4
流体温度が600℃を超えるときは4.52 ページ以降をご覧ください。 タイプ 77を使用して荷重を2倍にできま す。4.67ページ参照
45 04 119.07.25.11225703004.3C-4
45 04 116.55.23.71225704005.4C-4
45 04 115.14.02.91225705006.5C-4
45 04 114.13.32.41225706007.6C-4
45 04 395.02.81225703507.2C-D
45 04 3118151311108.45.52.81630703507.21-4
45 04 32242423222221137.1163010035013.41-4
45 04 395.04.12.11225704508.9C-D
45 04 311412108.87.66.34.12.11630704508.91-4
45 04 32242423211916105.4163010045016.51-4
45 04 395.03.31.712257055010.5C-D
45 04 31119.68.27.16.15.13.31.716307055010.51-4
45 04 322423201715138.54.3163010055019.71-4
45 04 395.04.32.81.412257065012.2C-D
45 04 319.58.06.95.95.14.32.81.416307065012.21-4
45 04 322319171413107.13.6163010065022.81-4
45 04 419.99.06.84.33.22.41225703507.0C-4
45 04 42222217108.16.0163010035013.41-4
45 04 4110107.76.85.13.22.41.81225704508.6C-4
45 04 4223221917138.36.14.6163010045016.51-4
45 04 41109.99.28.06.25.44.12.61.91.412257055010.3C-4
45 04 42242422191513106.64.93.7163010055019.71-4
45 04 419.18.37.76.75.24.53.42.21.61.212257065011.9C-4
45 04 422220191613118.85.54.13.1163010065022.81-4
流体温度が600℃を超えるときは4.52 ページ以降をご覧ください。 タイプ 77を使用して荷重を2倍にできま す。4.67ページ参照
45 05 117.75.94.21225804006.2C-4
45 05 115.94.63.31225805007.4C-4 45 05 114.93.72.71225806008.7C-4
45 05 395.03.31225803508.3C-D
45 05 3122181613129.96.53.31630803508.31-4
45 05 32242423222222178.9163012035016.11-4
45 05 395.04.92.512258045010.1C-D
45 05 31161412109.07.54.92.516308045010.11-4
45 05 32242423222219136.7163012045019.91-4
45 05 395.03.92.012258055012.0C-D
45 05 3113119.68.37.26.03.92.016308055012.01-4
45 05 32242423211916105.3163012055023.61-4
45 05 395.04.93.21.612258065013.9C-D
45 05 31119.38.06.96.04.93.21.616308065013.91-4
45 05 322424201716138.74.4163012065027.41-4
45 05 419.88.05.03.72.81225803508.0C-4
45 05 42222113107.5163012035016.11-4
45 05 41109.18.06.03.82.82.11225804509.9C-4
45 05 42222116107.55.6163012045019.91-4
45 05 4111109.47.26.44.83.02.21.712258055011.7C-4
45 05 4223221917128.26.04.5163012055023.61-4
45 05 41109.68.97.86.05.34.02.51.81.412258065013.6C-4
45 05 422423201614106.85.03.7163012065027.41-4
流体温度が600℃を超えるときは4.52 ページ以降をご覧ください。
タイプ 77を使用して荷重を2倍にできま す。4.67ページ参照
45 06 119.06.74.81225703004.4C-4
45 06 122418131630803007.41-4
45 06 116.54.83.41225704005.5C-4
45 06 1217139.41630804009.31-4
45 06 115.13.82.71225705006.6C-4
45 06 1213107.416308050011.21-4
45 06 114.13.12.21225706007.7C-4
45 06 12118.56.116308060013.11-4
45 06 395.03.7122510040011.6C-D
45 06 312420171513117.43.7163010040011.61-4
45 06 32242423222222158.0163012040018.11-4
45 06 395.02.9122510050013.9C-D
45 06 3118161311108.65.62.9163010050013.91-4
45 06 32242423222218126.2163012050021.91-4
45 06 395.04.52.3122510060016.3C-D
45 06 311513119.68.47.04.52.3163010060016.31-4
45 06 322424232018159.85.0163012060025.71-4
45 06 395.03.81.9122510070018.6C-D
45 06 3112119.48.17.15.93.81.9163010070018.61-4
45 06 322422191715128.24.2163012070029.41-4
45 06 419.89.15.74.23.2122510040011.2C-4
45 06 422219129.06.7163012040018.11-4
45 06 419.99.27.04.43.22.4122510050013.6C-4
45 06 422219149.47.05.2163012050021.91-4
45 06 4110108.57.55.63.52.62.0122510060015.9C-4
45 06 4223221816127.65.64.2163012060025.71-4
45 06 4111109.27.16.34.73.02.21.6122510070018.3C-4
45 06 42242321191513106.44.73.5163012070029.41-4
流体温度が600℃を超えるときは4.52 ページ以降をご覧ください。 タイプ
43 08 197.55.74.112165401.2C-4
43 08 399.28.68.27.76.35.23.41.812215501.8C-4
45 08 1117139.21630703006.61-4
45 08 1227231616301003009.41-4
45 08 195.01225704008.3C-D
45 08 1114107.51630704008.31-4
45 08 12221611163010040011.71-4
45 08 195.01225705009.9C-D
45 08 11118.36.01630705009.91-4
45 08 1217129.1163010050014.11-4
45 08 195.04.712257060011.6C-D
45 08 119.06.64.716307060011.61-4
45 08 1213107.3163010060016.41-4
45 09 1117139.51630703006.71-4
45 09 1227231616301003009.51-4
45 09 119.06.64.716307060011.61-4
45 09 1213107.3163010060016.51-4
45 09 195.03.712257075014.1C-D
45 09 117.15.23.716307075014.11-4 45
流体温度が600℃を超えるときは4.52 ページ以降をご覧ください。
タイプ 77を使用して荷重を2倍にできま す。4.67ページ参照
耐熱用の材料は0.9及び4.4ページ参照
10 41108.15.9213509501510281008.026C-4 4. 10 4214107.92535095025143611010313-5 4. 10 43272620153435095035185213015443-6
耐熱用の材料は0.9及び4.4ページ参照
45
45
45
4.131223191325370850101223708.0203-5
4. 13 41129.27.02140010001513341051131C-4
4. 13 422518131025400100030184511513383-5
4. 13 43333331231734400100040266614520534-6
流体温度が600℃を超えるときは4.52 ページ以降をご覧ください。
タイプ 77を使用して荷重を2倍にできま す。4.67ページ参照
流体温度が600℃を超えるときは4.52 ページ以降をご覧ください。
タイプ 77を使用して荷重を2倍にできま す。4.67ページ参照
43 19 182.52.52.512270504.7C-
43 19 1912107.216270504.71-5
43 19 282.52.52.512335504.2C
43 19 296.85.54.216335504.21
43 19 3810109.69.49.39.27.5163557010.81-
43 19 39232120191919147.5203557010.83
4.191124191421450950151529801026C
4. 19 12383122254609502018419013333
4. 19 21252523162146010001517391001232C
4. 19 22424140372625460100030245111016423
4. 19 311515116.02155011502519411101532C
4. 19 322825191025550115030275411019423-5
4. 19 33464342403935261325550115040346413024523
4. 19 34918381787064482541550115050489816037794
4. 19 41108.05.92155011502520421151737C
4. 19 4217131025550115030285813021503-5
4. 19 4324181325550115040367714026613
4. 19 446058463424415501150505310816039894
流体温度が600℃を超えるときは4.52 ページ以降をご覧ください。
タイプ 77を使用して荷重を2倍にできま す。4.67ページ参照
4. 24 1250423034500110035336312021524
4. 24 22575554493434520120045398015028704
4. 24 311816137.025550135030255611017473
4. 24 32414036271425550135045408615028743-5
4. 24 336664625956503820415501350505011016034884
4. 24 34122117113109968666354655013506072156180511245
4. 24 41129.26.925550135030266112020543
4. 24 42241813255501350454310015029803
流体温度が600℃を超えるときは4.52 ページ以降をご覧ください。 タイプ 77を使用して荷重を2倍にできま す。4.67ページ参照
4. 27 312020158.025600140030356712022553
4. 27 32424137281525600140050489715033793
4. 27 337367656258534021416001400505812116042984
4. 27 341341221191151008969364660014007088173185571375
4. 27 4114107.925600140030377514025643
4. 27 42272014256001400505111117535903
32 1254433134570120040427714030694
4. 32 13856249415901200556310113539905
4. 32 2128272025620130030417212027643
4. 32 2262615639346501300305611115042934
4. 32 2388858477554670013003076132160581095
4. 32 312927211225620140050498915032763
4. 32 3268635643224165014005076135180511114
4. 32 3399969389857558314667014005089164195611315
32 3412512412211511098754046670140050106190205711545
32 41211611257001400505510616539883
流体温度が600℃を超えるときは4.52 ページ以降をご覧ください。
タイプ 77を使用して荷重を2倍にできま す。4.67ページ参照
1137302134660130035457412030664
12645040346601300405710613041924
4. 36 13937255466601300607713114548966-8
4. 36 2125241725660140030387611529663-5
4. 36 2235332434660140040589914035794
4. 36 2380777671494177014004084144155601175
4. 36 24100969588625179014004595166160681316-9
4. 36 312524181025700150040529113532743-5
4. 36 3232322513347001500506311716040904
4. 36 3374676046244171015006089158180601254
4. 36 34134129125120112102794146720150060118226205821735-8
4. 36 3519518618017416714911561517901500701762872301042186
4. 36 41181310257001500405610315537863
4. 36 422519143470015005068129170461064-6
4. 36 4343322341800150060104183190691414
4. 36 4473725440468001500601362522401021965
4. 36 451391381078058518001500701863352451192566
37 41181310257501500405910415539863
4. 37 422519133475015005072131170491064
流体温度が600℃を超えるときは4.52 ページ以降をご覧ください。 タイプ 77を使用して荷重を2倍にできま す。4.67ページ参照
44 41 125949405144092266-9
44 41 1393756361450135357-10
44 41 2236282641500117255-7
44 41 2361484451500135386-9
44 41 311817151125520110233-5
44 41 353837362446520144445
4.411144362634780140030609515543874
4. 41 127555434178014004073131160561115
4. 41 13109856746780140055109150175731326
4. 41 2129282025780150040599514540853
4. 41 224139283478015004077123150491024
4. 41 23959190845841820150050109185180791495
4. 41 241181141121047346820150060121213180851726
4. 41 3130282112258001600457011616044993-
4. 41 32474435204180016005098163180641324
4. 41 33837871552946800160070120205200801595
4. 41 34141129125121112100774146800160070148250220972035
4. 41 3523623222521019317413471518701600802213752601492866
4. 41 412116112580016004576135175511143
4. 41 4236272041800160050107188205731534
4. 41 4351382746800160070131234225851875
4. 41 4477725440468001600701642902251062325-8
4. 41 451421411259469519001600802474222651593226
流体温度が600℃を超えるときは4.52 ページ以降をご覧ください。
タイプ 77を使用して荷重を2倍にできま す。4.67ページ参照
44 46 1259503951470112306-9
44 46 1381665151470113367-9
44 46 151501178461480162627-
4.4611453626347701450357111215047974
4. 46 126046354182014504076125155591095
4. 46 13120927346850145050131173170861436
4. 46 141511128951850145060138214185861566
4. 46 213634243480016004581131160501074
4. 46 2259554041800160050103170170691415
4. 46 2313913313211985469301600551602621851132106
4. 46 2415615215013898519301600551722982001232327
4. 46 315046352041900170050117184180751474
4. 46 325853422246900170050132206190811585
4. 46 331231121017841469001700601842872251162245
4. 46 3427525224423622720315683519301700702984562451753316
4. 46 3529828527626725723318194619801700853335132502043667-10 4. 46 4136272041900170050128211195861714-7
4. 46 4241312246900170050142242210921855-8
4. 46 43725440469001700601973262351252545-8
4. 46 44157145109805110001700703185282952053876
45201199163123906110001700853575772952284167
51 3145453520411000180060139208200851624
4. 51 3259544223461000180070154234200971815
4. 51 3312311310279414610001800802083272301362525
51 34268250242234227205158845110301800803245122651993756
51 353353082982882822541951046110301800903936013002484567
51 41362720411000180060151238210971884
流体温度が600℃を超えるときは4.52 ページ以降をご覧ください。
タイプ 77を使用して荷重を2倍にできま す。4.67ページ参照
44 56 142017153453085313-6
44 56 1545382946530107365-8
44 56 1675604551530113446
114434253482015504084130170611174
4. 56 1267523941880155050111162185761285-7
4. 56 131319877519201550601642271951011776-9
4. 56 14202155123519301550652062832051182377-9
4. 56 2143413034960170055117171180741404-6
4. 56 2257554041960170060137203190831595-7
4. 56 23133131118865111001700652333232051472476-9
4. 56 242082001941821285111001700652824052401823067-9
4. 56 31535341224111001900601682542001071914-7
4. 56 32717054304611001900602043242301302355-8
4. 56 33959070404611001900702393602401482715-8
4. 56 34276252245237227205158835111001900903685632702244226-9
4. 56 3540236435234334030623612661118019001005067463203215537-10
4. 56 414029214111001900601862892251222244-7
4. 56 425440304611001900602293482201402655-8
4. 56 437254404611001900702664192601713185-8
4. 56 44172145109805111001900904116542852464706
4523121716312061120019001005678603603596237
61 1312797775110001600501762441901151916
4. 61 141861411125110001600552172932051302427
4. 61 152241671326110001600652753402301422807
4. 61 216057424110101800601552311901051904
61 22117112805110601800602523622201502736
4. 61 231931861841711205110901800603104772351883367
4. 61 242452362332171526111101800703815402652313978
4. 61 31555341224112002000601912662201252174
4. 61 32939070404612002000702743982351722995
4. 61 3312712396534612002000903244692802023475
4. 61 34263247239231220198152805112102000904176132852644676
4. 61 3539836134934033730623512561124020001105658203253576097
61 3649447245844241937528815671126020001106779623604337188
61 413930224112002000602113162301352424
4. 61 427154404612002000703024632751973505
流体温度が600℃を超えるときは4.52 ページ以降をご覧ください。 タイプ 77を使用して荷重を2倍にできま す。4.67ページ参照
66 1434282441610115414-7
44 66 1558473651610113486
44 66 1686715751610162666-9
44 66 171301068561610162797-10
44 66 18183145116716102101188-30
44 66 19306241174716352291729
44 66 354039382546700164655
0.9及び 4.4ページ参照
116046364110301650401331772001031735
4. 66 129071564610501650501702162151272106-8
4. 66 13136102815110501650552122702001372186-9
4. 66 142171591266110501650602713552451702917-10
4. 66 152571961556110501650703033952351853038-10
4. 66 216663454111201900651882672201332374
4. 66 22118111805112501900652943902451913126-9
4. 66 231951921761255112501900703564912602323857-9
4. 66 242562462432231586112801900804085912702814538-10
4. 66 31616047254112502050652283312251502604-7
4. 66 32919070404612502050653014292451903285
4. 66 33155139107574612502050903645272902334015
4. 66 34273250242234225202155825112502050904676663052965046-9
4. 66 3539936235034033730823712561132020501006218853153916437-10
4. 66 36488474460439421378291155711320205011073510443554677598-30
4. 66 414533244112502050652433642351682954-7
4. 66 427254404612502050653324912852213865-8
4. 66 4310074544612502050904015882952634615-8
4. 66 44146110805112502050905107693153345626
45262218164120611350205010069810113504337267
66 46329321272204150711350205011082711983605188348-30
71 242552452422231586113502000904876482803094888
71 31636046274113002100702563642351632784
71 32949070404613002100703334592502033425
4. 71 331801751581216451130021001004476382852684416
4. 71 342732502422342252021558251131021001005197193053135246
4. 71 3539936235034033730723612561139021001006819493354326767
4. 71 36533488473457440394303162711450210013084911463455227808
4. 71 414937274113002100702844092401863174
流体温度が600℃を超えるときは4.52 ページ以降をご覧ください。
タイプ 77を使用して荷重を2倍にできま す。4.67ページ参照
4. 76 1212092734611201750552323002151612576
4. 76 131831371085111501750652973642451873147
4. 76 142361821445111501750803594462602163437
4. 76 153082371886111501750904515092552563948
4. 76 217469504614002200702703782501903165
4. 76 22117111805114002200703695002502424036
4. 76 232062011901325114202200804746833003165167
4. 76 243012892852621846114902200906027753003966218
4. 76 31716953304115002300803244502602103424-7
4. 76 32949070404615002300803935312702544025
4. 76 331491401096051150023001005126973103135026-9
4. 76 342372252021558351150023001005978113303866166-9
4. 76 35397365352343340306236125611500230011080210843604957967
4. 76 3660355253551750646135418871158023001401146144340069510238
4. 76 415441304115002300803594952752433934
4. 76 427254404615002300804276052852864695
4. 76 43108826051150023001005717983353615906-9
4. 76 441451098051150023001006679373404377066
4. 76 45253219163120611500230011088012313655388817-10 4. 76 4638538232624617971160023001401187161343075111528-30
81 132101561236112001800703604462552243387
4. 81 142712081656112001800904475592452573928
1532325019871120018001005446152652814489
4. 81 22117111805115002300804055452502714386
4. 81 232262192071456115602300905867623203865977
4. 81 2433231931528920471156023001007509713204497178
4. 81 31818062344616002400903965202802613985
4. 81 3210410280464616002400904666353002954615
4. 81 331491401096051160024001005637553303435376
4. 81 342282201981528151160024001106659033504206546
4. 81 35400363351341338306236125611600240012088111663705408547
4. 81 3666260658756855650238620771160024001501341177141577311538
流体温度が600℃を超えるときは4.52 ページ以降をご覧ください。 タイプ 77を使用して荷重を2倍にできま す。4.67ページ参照
4.86119070554612301850452382862151762965
4. 86 12135101805112301850602843522401983106
4. 86 132021561246112501850703774582552353767
4. 86 142732081656112501850905085722452604378
4. 86 1531924819671125018501005636412652834669
4. 86 217370504615502350803364512502253665
4. 86 22116110805115502350804435922502954696
4. 86 232262181811466115502350905958073203765967
4. 86 24331318314262204711550235010076910133204697458
4. 86 31838062344616502450903955302802704175
4. 86 3210110080464616502450904766433003174905
4. 86 331531401096051165024501005587463303715766
4. 86 342242181971528051165024501106789143504506956
4. 86 35397361349340337306235124611650245012089612183705809037
4. 86 3666160558656755550438820671165024501501354180041578612148-30
4. 86 416045344616502450904616292953034775
4. 86 428161464616502450905567493003515565
4. 86 43106806051165024501006458843404226656
4. 86 4414310880511650245011076910423504867706
4. 91 142802101676113001900905566182653054718
4. 91 1533224919771130019001006167042953395379
4. 91 2321520819714061160024001006668613004146397
4. 91 24317305301275200711600240010086211053254827568
4. 91 25387371367332240711600240011093012783455628769
4. 91 319190704046170025001005006453003144795
4. 91 321401391096046170025001106368283303905945
4. 91 3320318514580511700250011077110213504697186
4. 91 3444442441039939536027714761170025001301152150038569110357
4. 91 3568063061059057651839821471176025001301532194545591312918
4. 91 3668068068068067660846825271178025001601750211644099814479
4. 91 4172544046170025001005477373003425375
4. 91 42109816046170025001106929423454436945
4.
流体温度が600℃を超えるときは4.52 ページ以降をご覧ください。 タイプ 77を使用して荷重を2倍にできま す。4.67ページ参照
44 97 1589716051785162946
44 97 1614911987617852031307-10
44 97 17208173126718002221798-30
44 97 18299233175718002482419-30
193662952158182027630910
2585518651821187
44 97 2612310397718651891448-30
44 97 27171137126718652101938
44 97 28246193178718652182469
44 97 35101998552619002102007-10
44 97 3614814614083719002252658-30
44 97 3718818517091719002703048-30
44 97 38201199192105719002763529-30
44 97 39340311259241238232155719002864649-30
44 97 461078361619002763077-10
44 97 4714310678719002763498-
119672574613502000502853472952673635
4. 97 12134101805114002000603384193003003896
4. 97 132161601276114002000704375463153044507-
4. 97 142782091666114002000905426433303495368-10
4. 97 1538328722771140020001007458253304066029
4. 97 16492370293811400200010086399537045569010
4. 97 218380604616502450804175543053124425-8
4. 97 22118114855116502450905236963453515466- 9
4. 97 2320818114361165024501007038883754386707-10
4. 97 24304295250200711650245010085811144055408318
4. 97 2543542741934528071165024501101037139945067010199
4. 97 26575556542441360811700245011012441647460813120310-40
4. 97 319089704046175025501005116593303365095
4. 97 321391391096046175025501106398423454296475-8
4. 97 3320118514580511750255011076410023955197776- 9
4. 97 3438338035927614761175025501301174153943076110977-10
4. 97 35680626606586574520400213711770255013015562000465102213778-30
4. 97 36680680680680673612471250711770255016018052257485106015429-30
4. 97 377607607427156896845703108117702550160189725065201164173310-40
4. 97 4171534046175025501005867773003735895-8
4. 97 42106806046175025501107469903454717275-8
4. 97 4314010680511750255011087511663705528586- 9
4. 97 4425218914061175025501301249167944581512497-10
4. 97 4538536827020071175025501301599215244597015008-30
4. 97 46472422318239711750255016018072433490112117349-30
4. 97 47586581557419310711780255016021662914490129019669-30
4. T0 1660645936481160022001001195126737060987010
4. T0 218681604618002600804626193053385315
4. T0 22119114845118002600905837583453885886
4. T0 23208181141611800260010078210023754877437
4. T0 243032532007118002600100101612324056049038
4. T0 2543642736028571180026001101176153745079811239
4. T0 26562541512416390811820260011013381730460865122210
4. T0 319190704046190027001005617283303915675
4. T0 321411401096046190027001107109163454746995
4. T0 3318818514580511900270011085211073955778506
4. T0 3438835927614761190027001301338165543080211927
4. T0 35680627608588574520400213711900270013016882156465109714928
4. T0 36680680680680676611470250711900270016019112444485114316799
4. T0 377607607607607607425813108119802700160214027365201370188910
4. T0 4171534046190027001006638543004256335
4. T0 421078060461900270011082810823455227945
4. T0 4313910880511900270011098012753706179316
4. T0 4425318913961190027001301382184144591013527
流体温度が600℃を超えるときは4.52 ページ以降をご覧ください。 タイプ 77を使用して荷重を2倍にできま す。4.67ページ参照
44 T1 2512310497719151891578
44 T1 3599988452619552102157-10
44 T1 3614614413983719552252878-30
44 T1 3718818517091719552703268-30
44 T1 38199197191106719552763779-30
44 T1 39242239233157719552865019-30
44 T1 461078361619552763317-10
44 T1 4714310679719552763768-30
44 T1 48340340334329304199146108719552864999
119772574615002250503364172953124235
4. T1 12134102815116402250604074983003454936-
4. T1 132131591266116502250705276463153745527-
4. T1 143172341866116502250907028653304366638-
4. T1 15464353280711650225010093511393305658009-30
4. T1 1659545836481165022501001124130037063590010-40
4. T1 218481604618502650805046423053655605-8
4. T1 22118114845118502650906277903454046076-9
4. T1 23208182140611850265010083210663755077677-10
4. T1 242952562007118502650100103412904056319308-30
4. T1 2543542236428671185026501101251162445078911649
4. T1 26594544508413390811870265011014241824460903126510
4. T1 319390704046195027501006037633304076025-8
4. T1 321411401096046195027501107579693454937215-8
4. T1 3318818514580511950275011090411643955998766-9
4. T1 3438835927714761195027501301417172243083612357-10
4. T1 35680627608588574520400213711950275013018652256465112115438-30
4. T1 36680680680680676614473250711950275016020262557485119017359-30
4. T1 377607607607607607415803108119502750160226528595201387196910-40
4. T1 4171544046195027501007088963004416705-8
4. T1 421078160461950275011087311383455468385-8
4. T1 43147108805119502750110105213723706459646-9
4. T1 4425318914061195027501301481192644594313987-10
4. T1 45358356270200711950275013018772462445112616888-30
4. T1 46479431324240711950275016021392842490129918769-30
4. T1 475825805704193108119502750160260133574901490221610-40
4. T2 1659845936481169023001001230140937068098410
4. T2 219081604619002700805326773054156375
4. T2 22119116855119002700906648333454966676
4. T2 23208178142611900270010086911183755468177
4. T2 243002522007119002700100109713554056799928
4. T2 2543542936628571190027001101385171345084312389
4. T2 26539524508419390811970270011015451965460983133510-40
4. T2 319290704046200028001006428073304366615
4. T2 3214114010960462000280011080610203455367745
4. T2 3318618514480512000280011095812263956068946
4. T2 3438936027714661200028001301491180943089313007
4. T2 35680629610590576518399213712030280013019632377465115916348-
4. T2 36680680680680673612471250712030280016021342691485128018289
4. T2 377607607607607607415803108120302800160238230005201482211110
4. T2 4172544046200028001007549563004977195
流体温度が600℃を超えるときは4.52 ページ以降をご覧ください。
タイプ 77を使用して荷重を2倍にできま す。4.67ページ参照
44 T3 14957563518851621136
1515211687618852031567
44 T3 16208168125719252222118-30
44 T3 17302240174719252482889-
44 T3 183602902108198527636810-
44 T3 1940535725891100027641420-50
44 T3 24876863519651821387-9
44 T3 2512410498719651891698-30
44 T3 26173137125719652102238-30
44 T3 27251199182719652253079
44 T3 283022372218198527636510-40
44 T3 293803803462742568198528341910-40
44 T3 351009884526110052102317-10
44 T3 36146144140837110052253088-30
44 T3 37188185170917110052703488-30
44 T3 382001971921067110052764039-30
44 T3 392312312251567110202865399-30
44 T3 4610783616110052763547-10
44 T3 47144106797110052764028-30
44 T3 483403403343293011981481097110052985329-
4.T3119572574616302350503894822953734935-
4. T3 12135101805116502350604595773003915886-9
4. T3 132131591266117202350705987303154946587-10
4. T3 143182341866117202350907619693305317568-10
4. T3 154713552827117502350100105012713306398919-30
4. T3 16592460365811750235010012631443370714102910-40
4. T3 218780604619502750805657073054286515-8
4. T3 22124116855119502750907048763455116936-9
4. T3 23209179143611950275010090711713756078797-10
4. T3 2430125220171195027501001160142240570410218-30
4. T3 2543442236628571195027501101424179545087812749
4. T3 26580531514421390812060275011016372060460983138010
4. T3 319390704046205028501006788493304536755-8
4. T3 3214113910760462050285011085910703455557975-8
4. T3 33184183145805120502850110101312873956329266-9
4. T3 3439839435727514761205028501301576190443092813437-10
4. T3 35665617602589576522402213712050285013021192497465116716888-30
4. T3 36680680680680673608468250712100285016022642798485133918859-30
4. T3 377607607607607597425803108121002850160252432095201548218010-40
4. T3 4171544046205028501007989923005127415-8
4. T3 421068060462050285011099512573456219165-8
4. T3 431471088051205028501101188150837071610546-9
4. T3 44258189140612050285013016622131445100514767-10
4. T3 45410367271200712050285013021042700445124918388-30
4. T3 46480424319240712120285016024713158490141720449-30
4. T3 475885835714203098121202850160294136844901672239910-40
耐熱用の材料は 0.9及び 4.4ページ参照
流体温度が600℃を超えるときは4.52 ページ以降をご覧ください。 タイプ 77を使用して荷重を2倍にできま す。4.67ページ参照
4. T4 22122116855120002800907579233455277096
4. T4 23208179141612000280010097612303756299117
4. T4 2429725220071200028001001216150440573410578
4. T4 2543542736728571203028001101521189245092313179
4. T4 265805405054103908121202800110172521564601026142510
4. T4 319290704046210029001007268963304736905
4. T4 3214114010960462100290011091111163455808175
4. T4 33189185144805121002900110107313483956549526
4. T4 3439639236027714661210029001301651199243096714157
4. T4 35656609594581574522402213712170290013021992587465124117338
4. T4 36680680680680675613472250712180290016024092915485140219429
4. T4 377607607607597517415803108121802900160270133835201571223810
T4 41715440462100290010084610493005337615
4. T4 4210580604621002900110105513283456479485
4. T4 431461088051210029001101245157437074110886
T4 44247189140612100290013017612240445103915157
4. T4 46473426321240712230290016026303277490150021089-30 4. T4 475685654203108122302900160314238614901770253110
パイプクランプ、 OD 244.5 (ND 225)、タイプ 44, 48 タイプ 許容荷重 [kN]
48
48 26 522926232017152592150600140029753
OD 273 (ND 250)、タイプ 44, 48
44 42 5118181816141225565115300453
44 42 5246454438332846585140300875
44 42 53777671625345515852103001276
42 5410510494826957515951953001406
48 42 5123211816141225144160800160043973
48 42 52413632282421411441808001600621284
48 42 53544943383329461442008001600731505
48 42 548272645648424614424090016001031965
42 551371251109683735114423090016001292556
48 42 561961861651441251096114423090016001783497
パイプクランプ、 OD 711.2 (ND 700)、タイプ 44, 48
タイプ
44 71 51505045393428467401653101465
44 71 52757472635445517602703102176
44 71 5311611299857260617702553102867-10
44 71 5414814714212310386617852173103267-10
44 71 55206203187161136113717952873104498-30
44 71 56265262248218186155718102653105429
48 71 5156494338332941224230130021001682804
48 71 5277726456484246224230130021002013335
48 71 531271129987756651224280130021002474166
48 71 54154141125109958351224310140021002924716
48 71 5522821819417014712961224335140021003836407
48 71 5631628225021818916671224355145021004957598
48 71 57469427379330286251712243551450210060010169
5161544842363241250260150023002143454
48 76 5282726456484246250260150023002523935
48 76 531211079483726351250310150023003004806
48 76 54144143127110968451250340150023003445586
48 76 5523021619216814512761250330150023004257137
48 76 5636432228625021719071250410160023006329608
48 76 57507485430375325285712504101600230079812149
選定表 OD 1016 - 1118
パイプクランプ、 OD 1016 (ND 1000)、タイプ 44, 48
許容荷重 [kN]
タイプ
44 T0 51737265574940519202903203146-9
44 T0 5211411196857360619502553203967-10
44 T0 5316415913812110285719602553205138-30
44 T0 54193187162142120100719703033205878-30
44 T0 55234223193170146119719703403207159-30
44 T0 563293272882522171808199036532093010-40
44 T0 57422419385338290240911000370320115120-50
タイプ
48 T0 51100897968595246330300180026003885915-8
48 T0 52155137121106928046330330180026004707105-8
48 T0 531711591411241079451330350180026005077696-9
48 T0 54301280248216187164613303851800260073011007
48 T0 55426410363319276242713304701900260098014058-30
48 T0 565104864313763262867133045019002600109015609-30
48 T0 5776673565257049443381330450190026001380198710-40
パイプクランプ、
T1 5316416014012110285719852613205468
T1 5633833529225622018081102038232099110
48 T1 5199877768595146330300185026504046055
48 T1 52151139123107938146330330185026504937425
48 T1 565164844293753252857133045019502650113516159
5776673365056649143081330450195026501435205010
44 T2 53164157136120102857110152683205668
44 T2 552322211911681441197110303553207929
48 T4 565234854303753252857137445021002800125518309
48 T4 5774073364956849243281374450210028001635228710

40 01 .821.33070M6x65110.05
40 02 .826.93570M6x65130.05
40 03 .833.74070M6x65170.05
40 04 .842.45375M10x65210.15
40 05 .848.36075M10x65240.16
40 06 .860.37285M10x70300.18
40 07 .873.08795M12x75370.30
40 08 .876.19195M12x75380.31
40 09 .888.9103100M12x75440.32
40 10 .8108.0123115M12x75540.36
40 11 .8114.3130115M12x75570.37
40 14 .8139.7155130M12x75700.42
40 17 .8168.3188155M16x95840.91
40 22 .8219.1238180M16x951101.08
40 27 .8273.0295215M20x1101372.07
40 32 .8323.9350245M20x1101622.35
40 36 .8355.6381260M20x1101782.55
40 41 .8406.4432285M20x1102032.80
40 46 .8457.2485320M24x1252294.55
40 51 .8508.0537345M24x1252544.90
40 56 .8558.8587370M24x1252795.35
40 61 .8609.6638395M24x1253055.70
40 66 .8660.4689425M24x1253306.15
40 71 .8711.2740450M24x1253566.50
40 76 .8762.0790475M24x1253816.90
40 81 .8812.8843501M24x1254067.30
40 86 .8864.0895526M24x1254327.70
40 91 .8914.4943550M24x1254578.00


タイプ40は、主に配管を補助 鋼材に固定するために使用し ます。
注文要領: Uボルト
タイプ 40 .. .8
供給範囲: ナット4個を含みます
配管用溶接ラグ
タイプ 41 D9 11 ~ 41 79 12
80℃での許容荷重=対応する荷重 グループ(タイプ番号の3桁目) の通常運転状態(荷重ケースH、 レベルA/B)の値。静的部品の最 大許容荷重0.6ページを参照。
荷重角度4°での溶接部応力 50 N/mm2
材質:炭素鋼
タイプ 41 .. 11 smax = 10mm
タイプ 41 .. 12 smax = 100mm
注文要領:
配管用溶接ラグ
タイプ 41
高温度での許容荷重低減係数:
Smax = 10mm 重量 タイプ Ea[kg]
41 06 13353.00.13
41 07 13303.00.13
41 08 13353.00.13
41 09 13303.00.13
41 09 14353.00.24
41 10 13303.00.13
41 10 14353.00.25
41 11 13303.00.14
41 11 14353.00.25
41 13 13253.00.14
41 13 14303.00.25
41 14 13253.00.14
41 14 14404.50.62
41 16 13253.00.14
41 16 14404.50.62
41 17 13253.00.25
41 17 14405.50.87
41 19 13203.00.25
41 19 14355.50.88
41 22 13203.00.25
41 22 14355.50.90
41 24 13153.00.25
41 24 14305.50.90
41 26 13103.00.25
41 26 14255.50.90
41 27 13153.00.26
41 27 14255.50.90
41 32 13154.50.62
41 32 14256.51.40
41 36 13-104.50.62
41 36 1456.51.50
41 37 1304.50.62
41 37 14156.51.50
41 41 13-154.50.65
41 41 14-56.51.50
41 42 13-104.50.65
41 42 1456.51.50
41 46 13-205.50.90
41 46 1406.53.40
41 51 13-305.50.90
41 51 14-106.53.40
41 56 13-405.50.90
41 56 14-206.53.40
41 61 13-455.50.90
41 61 14-306.53.40
41 66 13-555.50.90
41 66 14-356.53.40
41 71 13-655.50.90
41 71 14-456.53.40
41 76 13-755.50.90
Ea[kg]
41 06 151353.00.44
41 07 151353.00.44
41 08 151353.00.44
41 09 151353.00.44
41 09 161404.50.75
41 10 151353.00.44
41 10 161404.50.75
41 11 151353.00.45
41 11 161404.50.75
41 13 151353.00.46
41 13 161404.50.77
41 14 151353.00.47
41 14 161454.51.60
41 16 151353.00.47
41 16 161454.51.70
41 17 151404.50.78
41 17 161505.52.30
41 19 151354.50.78
41 19 161455.52.30
41 22 151354.50.80
41 22 161455.52.30
41 24 151304.50.80
41 24 161455.52.40
41 26 151254.50.80
41 26 161405.52.40
41 27 151304.50.80
41 27 161455.52.40
41 32 151304.51.70
41 32 161456.53.70
41 36 151154.51.70
41 36 161256.53.70
41 37 151204.51.80
41 37 161306.53.70
41 41 151054.51.80
41 41 161156.53.70
41 42 151154.51.80
41 42 161256.53.80
41 46 151005.52.40
41 46 161206.57.10
41 51 15955.52.50
41 51 161106.57.10
41 56 15855.52.50
41 56 161056.57.10
41 61 15805.52.50
41 61 16956.57.10
41 66 15705.52.50
41 66 16856.57.10
41 71 15605.52.50
41 71 16806.57.20
41 76 15505.52.50
41 76 16706.57.20
41 76 14-556.53.40 Smax = 100mm 重量
80℃での許容荷重=指定荷重グループの通常運転状態 荷重ケースH、レベルA/B)の値。静的部品の最大許容荷重 0.6ページを参照。
荷重 OD グループ CR1 td3
60.3C-22217.5812.5 73.0C-22217.5812.5 76.1C-22217.5812.5 88.9C-22217.5812.5 88.92-32822.51016.5 108.0C-22217.5812.5 108.02-32822.51016.5 114.3C-22217.5812.5 114.32-32822.51016.5 133.0C-22217.5812.5 133.02-32822.51016.5 139.7C-22217.5812.5 139.73-43730.01520.5 159.0C-22217.5812.5 159.03-43730.01520.5 168.32-32822.51016.5 168.34-54032.51824.5 193.72-32822.51016.5 193.74-54032.51824.5 219.12-32822.51016.5 219.14-54032.51824.5 244.52-32822.51016.5 244.54-54032.51824.5 267.02-32822.51016.5 267.04-54032.51824.5 273.02-32822.51016.5 273.04-54032.51824.5 323.93-43730.01520.5 323.95-65040.02034.0 355.63-43730.01520.5 355.65-65040.02034.0 368.03-43730.01520.5 368.05-65040.02034.0 406.43-43730.01520.5 406.45-65040.02034.0 419.03-43730.01520.5 419.05-65040.02034.0 457.24-54032.51824.5 457.26-76550.02541.0 508.04-54032.51824.5 508.06-76550.02541.0 558.84-54032.51824.5 558.86-76550.02541.0 609.64-54032.51824.5 609.66-76550.02541.0 660.44-54032.51824.5 660.46-76550.02541.0 711.24-54032.51824.5 711.26-76550.02541.0 762.04-54032.51824.5 762.06-76550.02541.0
荷重角度4°での溶接部応力 50 N/mm2
エルボ用溶接ラグ (R 1.5 OD) タイプ 41 06 13 ~ 41 76 16
材質:炭素鋼
高温度での許容荷重低減係数:
注文要領: エルボ用溶接ラグ R 1.5 OD タイプ 41 .. 1.
接続プレート
パイプクランプ タイプ 43の 連結用
タイプ 77 09 39 ~ 77 19 39
2個のパイプクランプを、接続 プレート タイプ 77を使って連 結することにより荷重を2倍に できます。
注文要領:
接続プレート
タイプ 77.. 39
接続プレート
パイプクランプ タイプ 44の連 結用(600℃まで)
タイプ 77 22 .. ~ 77 T4 ..
接続プレートのタイプ番号:
接続するクランプの型番44を 77に代えてください。例:
クランプ 44 66 38 用
接続プレート 77 66 38 上側の接続品(タイプ60)の荷重 グループを指定してください。
09 3943 01 19 ~ 43 09
17 3943 10 19 ~ 43 17 593-63470901.2 77 19 3943 19 19 ~ 43 19 594-746901052.4
注文要領:
接続プレート
タイプ 77.. ..
荷重グループ ...
クランプベース用浮き上がり防止金具 タイプ 49
49 00 0149 01 11 ~ 49 17 113515238863.00.1
49 00 0149
49 00 0149 01 35 ~ 49 06 353515238863.00.1 49 00 0149 01 45 ~ 49 11 453515238863.00.1
49 00 0149 01 55 ~ 49 09 553515238863.00.1
49 00 0249 19 13 ~ 49 32 135532351712124.00.3
49 00 0249 16 14 ~ 49 32 145532351712124.00.3
49 00 0249 13 25 ~ 49 32 255532351712124.00.3
49 00 0249 07 35 ~ 49 32 355532351712124.00.3
49 00 0249 13 45 ~ 49 32 455532351712124.00.3
49 00 0349 36 13 ~ 49 51 458045552215255.00.7
49 00 0449 56 13 ~ 49 91 4511050802220507.01.5
49 00 0549 97 13 ~ 49 T4 4511550852225608.01.9
ご要望により、タイプ 49 .. .. -SP 用の浮き上がり防止金具も納入可能です。

クランプベース タイプ 49用 浮き上がり防止金具 タイプ 49 00 01 ~ 49 00 05
材質: 板厚 t 15mm : S235JR 板厚 t 20mm : S355J2
クランプベースの短期の許容浮き上 がり荷重は以下によります: カタログ荷重に対して、 タイプ 4901..~4976.. では10% タイプ 4981..~49T4.. では 7%
ガイドとして使用する場合は、サポ ートは配管軸方向に回転しないよう 注意する必要があります。FX は、 荷重ケースH(レベルA/B) で溶接 部の応力が 50 N/mm2 のときの最 大荷重です。
浮き上がり力が同時に作用する場合 はその考慮も必要です。
注文要領: 浮き上がり防止金具 タイプ 49 00 ..
据付及び取扱要領
42, 43, 44, 45, 46, 48
1 輸送及び保管
輸送中はクランプの部品が損傷しないよう注意してく ださい。屋外に保管する場合は、汚れと水分から保護 してください。
タイプ 42 .. 17
タイプ 43
タイプ 42 .. .9
タイプ 44 Uボルト式
2 出荷状態
LISEGAパイプクランプは必要なボルト類と一緒に据 付可能な状態で出荷されます。輸送を効率的に行うた め、クランプは部分的に組み立てて納入することもで きます。
3 据付
3.1 水平クランプ
タイプ 42
このクランプは水平クランプとしてアイナット タイプ 60と共に使用します。左右のクランプ板が互いに平行 になるようにボルトで締め付けてください。ボルトは ロックナットで廻り止めを行ってください。
タイプ 43
このクランプは水平クランプとして上端の接続ピンを アイナット タイプ 60に接続します。接続ピンを取付 け後、付属の割りピンを取付けてください。その他は タイプ 42と同様です。
タイプ 44、Uボルト式/ストラップ式
600℃まで
このクランプは、接続ラグのある上部部品と、荷重あ るいは温度範囲により当板付きのUボルトまたはストラ ップの下部部品で構成されます。据付時には、ロック ナットを緩めるか、接続ボルトを取外して仮組されて いる下部部品を分解してください。上部部品を配管に 乗せてから下部部品を挿入し、Uボルトまたはストラッ プで締め付けて固定します。クランプ位置の調整後、 ボルトをしっかりと締め付けてください。Uボルトはロ ックナットで、ストラップはナットと舌付き座金で廻 り止めします。
タイプ 44、600℃以上
このクランプは、接続ラグと保持金具のある上部部品 と、ストラップの下部部品で構成されます。
据付時には、外側のねじロッドと接続ピンを取外して 保持金具とストラップを分解してください。上部部品 を吊ロッドに取付けてから保持金具とストラップを再 び接続します。
その後、接続ピンとねじロッドを取付けてください。 すべての部品をしっかりと締め付けてください。
タイプ 44 600℃以上用の取付け要領
据付時に、左右のクランプ板の接続用ボルトにスペー サーを必ず装着してください。その後ボルトの締め付 けと廻り止めを行ってください。外側の接続ピンをロ ッドにつないでクランプを吊るし、接続ピンに座金と 割りピンを取付けます。吊ロッドを吊り上げてクラン プを所定の高さに設定し、シアラグに荷重が負荷され ていることを確認してください。
ライザークランプ タイプ 45の接続状態
タイプ
タイプ 46
このライザークランプは組み立て前の部品をプラスチ ックシートに包んで納入されます。
据付時には、まず、フロントプレート を吊ロッド に取付けます。この時、部品は所定のレベルより低い 高さに設定しておきます。その後、両方のサイドプレ ート を組み立てます。大きなクランプでは、反対 側を一時的に支えてください。
据付時には、両方のサイドプレートをトラニオンに取 付け、ねじロッドで接続します。ナットはこの段階で は軽く締めておいてください。大きなクランプでは、 部品を一時的に支えてください。
フロントプレート を下側からスロットにはめ込ん でから、吊ロッドに接続します。フロントプレートと サイドプレートの接続部は、位置を調整しながらロッ クプレート を取付けて、ナットで固定します。吊 ロッドを吊り上げてクランプを所定の高さに設定し、 トラニオンに荷重が負荷されていることを確認してく ださい。
ライザークランプ タイプ 46の接続状態
タイプ 46
次に、シアラグ用のトッププレート を取付け、ボ ルトで固定します。フロントプレートとサイドプレー トの接続部は、位置を調整しながらロックプレート を取り付けて、ナットで固定します。
吊ロッドを吊り上げてクランプを所定の高さに設定 し、シアラグに荷重が負荷されていることを確認して ください。
タイプ 48
このライザークランプは組み立て前の部品をプラスチ ックシートに包んで納入されます。最初にサイドプレ ート とねじロッド を準備します。
タイプ 48
クランプは、ボルト類にガタがない場合どんな運転状 態でも正常に機能します。通常の運転条件の下では、 特別な保守は必要ありません。
ライザークランプ タイプ 48の接続状態
Aまでの小さい配管径用
クランプベース
タイプ 49 .. .1, 49 .. .2
1 輸送及び保管
輸送中はクランプベースの部品が損傷しないよう注意 してください。屋外に保管する場合は、汚れと水分か ら保護してください。
2 出荷状態
LISEGAクランプベースは特に指示のない場合、仮組 みし据付可能な状態で出荷されます。輸送を効率的に 行うため、クランプベースは部分的に組み立てて納入 することもできます。クランプベースは必要なボルト 類と一緒に供給されます。
3 据付
タイプ 49
LISEGAクランプベースは、配管システムにクランプ で取付けるスライド可能なサポート部品です。据付時 には、構造物の上で抵抗なくスライドできるようにク ランプベースの底部は平坦にする必要があります。
通常の運転条件の下では、特別な保守は必 要ありません。

タイプ 49 .. .1 及び 49 .. .2
中・高温度用クランプベース
タイプ 49 .. .3, 49 .. .4, 49 .. .5
スライドプレートを使用した クランプベース タイプ 49
必要な場合、ベース部は支持構造物に溶接できます。
サポート高さ、配管径、支持荷重及び運転温度などに より異なった形状の製品が使用されます。各形状の特 徴は以下のとおりです:
タイプ 49 .. .1 及び 49 .. .2
このクランプベースは、配管に側面から取付ける2つ の部品からなります。曲げ加工された下端部はベース プレートになります。クランプベースの2つの部品を 下半部にあるボルトで固定します。上半部にあるボル トで配管を締め付け固定します。
タイプ 49 .. .3, 49 .. .4 及び 49 .. .5
クランプベースの下側の受け台で配管をしっかりと支 持します。上側のクランプで配管を締め付けボルトで 固定します。

タイプ 49 .. .3 及び 49 .. .4

タイプ 49 .. .3, 49 .. .4 及び 49 .. .5
Rollenlager, Rohrsättel und kälteisolierte Rohrlager
PRODUKT








水平に配置される長い配管シス テムは、移動可能なサポートと 固定点で支持されます。熱膨張 による移動時の摩擦を小さく抑 えるために、支持点はローラー またはスライドとして設計さ れます。
大口径の配管システムで流体や 保温重量により特に大きな荷重 が生じる場所では、大きな耐荷 重容量と信頼性、きわめて低い 摩擦抵抗を持つローラーベアリ ングが最適です。
LISEGA標準ローラーベアリング 及びパイプサドル
これらの製品は、広範囲の使用条件に適用できるよう に、製品グループ5として標準化されています。
標準範囲外となる使用条件でも、特別に設計した製品 を供給できます。
設計の特徴と適用
標準ローラーベアリングの開発に当たっては、実用的 な要求に適合することが考慮されています。
ローラーベアリングは、最適な腐食防止として溶融亜 鉛めっきが施工されます。
ベアリングの車軸は、表面を研磨したオーステナイ ト材料で作られています。ローラー用のベアリングに は、テフロンと青銅の焼結合成材料製のブッシュが取 付けられています。これはメンテナンスフリーで、ス ムーズな作動特性を保証します。ブッシュの成型され たカラーにより、横方向の荷重に対し初期摩擦を最小 にします。
ダブルシリンダーローラーベアリングの車軸は、ベー スの中央部に接続されます。側部ブラケットの特別な 固定装置は必要ありません。
ローラーは高張力炭素鋼で作られています。作動面は 機械加工されています。
現地でのアンカーボルトの管直方向のオフセットを調 整できるように、ベースの穴は長穴になっています。 ローラーベアリングの取付け高さ(E寸法)は、同一 の荷重グループでは管直方向固定型、可動型とも同じ になっています。
材質、規格、計算及び溶接についてのデータは技術仕 様 0.9及び 0.10ページにあります。
製品の標準化により、ほとんどの製品は効率的な量産 と在庫が可能になっています。少量の製作に対しても 近代的な注文処理システムにより迅速な生産と出荷が 可能です。
ローラーベアリングの技術データ:
ローラーの回転抵抗は最大4% 管直方向の移動での回転抵抗は最大4% 定格荷重での温度範囲は-30℃から+80℃ 管直方向の許容荷重は定格荷重の35% 浮き上がり力の許容荷重は定格荷重の10%


ローラーベアリングは支持構造物にボルト接続または 溶接により固定します。いずれの場合でもベースプレ ートは支持面に対し平行に設置してください。
管直方向の小さな誤差は、長穴を使うことにより簡単 にローラーベアリングの取付け位置を調整できます。
溶接パイプサドルは、腐食防止として溶接可能なプラ イマーを塗布して納入されます (技術仕様0.10及び 0.11ページ参照)
クランプ式パイプサドルは、直ちに取付けできる形で 納入されます。サイズが正しく十分に締め付けできる ことを確認してください。
浮き上がり防止金具
浮き上がり防止金具を取付ける場合は、正常に移動が できるようローラーと金具の間にすべての範囲で十分 なすきまがあることを確認してください。
特別な設計と製造品質により、 以下の利点があります:
最小回転抵抗(最大4%)の維持
ダブルテーパー型とダブルシリンダー型のローラ ーベアリングの現実的な軸直方向荷重の負担(支 持荷重の35%)
ダブルシリンダーローラーベアリングは、 ひとつのローラーで全体の支持荷重を負担
可動型は軸直方向の移動の吸収が可能 安全で簡単な浮き上がり防止金具の設計
パイプサドルによる配管壁への容易な荷重伝達 熱伝達を最小にするパイプサドルの構造
すべてのローラーベアリングは腐食防止として溶 融亜鉛めっき施工
メンテナンスフリー
非腐食性材料のローラー車軸
テフロンと青銅の合成ブッシュ
広範囲の配管径に対応 外径60mmから1350mm)
大荷重に対応(最大支持荷重120kN)
小さい取付け高さ(選定表のE寸法を参照)
注文要領:
51 .. 19
E = 1.064 x R + x
注文要領: ダブルテーパーローラー
タイプ 52 .. 19
ダブルテーパーローラー
タイプ 52 04 29 ~ 52 35 29
表面:
溶融亜鉛めっき
E = 1.064 x R + x
注文要領:
タイプ 52 .. 29

[kg]
53 08 19830 – 1902101908065722421406020105402.5
53 16 191685 – 310310285100901353752307524126455.5
53 35 1935175 – 440420370130110240520320902614105314.0
53 60 1960250 – 5204904301501353296153701003118126323.0
53 12 19120400 – 6756205251801654957854601153122187048.0
53 08 19 ~ 53 12 19
53 08 29830 – 190260210501072242145165656054060.6
53 16 291685 – 31035030050121353751601859075545100.6
53 35 2935175 – 4404754106014240520215245110100653231.0
53 60 2960250 – 5205304657018329615250290130120863351.0
53 12 29120400 – 67570063580234957853153601601451070701.7
注文要領: ダブルシリンダー ローラーベアリング タイプ 53 .. 19
溶融亜鉛めっき ダブルシリンダーローラー ベアリング(可動型) タイプ 53 08 29 ~ 53 12 29
トラベル s = 管直方向の配管移動量 表面: 溶融亜鉛めっき
注文要領:
トラベル s = ...mm E = 1.064 x R + x E = 1.064 x R + x
トラベル s = 100...600mm. トラベル s = 300mm 以上の場合中央部固定
ダブルシリンダーローラー ベアリング(可動型) タイプ 53 .. 29
溶接パイプサドル
タイプ 54 06 19 ~ 54 81 19
材質:
板厚 s ≤ 15mm: S235JR
板厚 s ≥ 20mm: S355J2
表面:
溶接可能プライマー
配管温度150℃以下の荷重
最小溶接サイズ
注文要領:
溶接パイプサドル
タイプ 54 .. 19 R = ...mm
クランプ式パイプサドル
タイプ 54 06 29 ~ 54 81 29
表面:
溶融亜鉛めっき

54 06 191.460.380
54 08 191.476.190
54 14 194.0139.7120
54 22 198.0219.1160 – 2604.064.0–8.0
54
54 32 1920323.9215 – 3154.0129.6–18
54 36 1920355.6230 – 3304.01210–18
54 41 1938406.4255 – 3555.01513–25
54 51 1950508.0325 – 4155.01010–16
54 61 1965609.6375 – 4655.01212–21
54 71 19100711.2430 – 5206.01516–26
54 81 19120812.8480 – 5706.02019–33
配管温度150℃以下の荷重
注文要領:
クランプ式パイプサドル
タイプ 54 .. 29 R = ...mm
54 06 291.460.380 – 1804032.5–4.8
54 08 291.476.190
54
54

極低温配管用 パイプサポート
LISEGAはあらゆる種類の低温配管システム
用断熱パイプサポートの製品群一式を提供しま す。通常、これらの製品はプロパン及びブタン (LPG)、メタン(LNG)、エチレン、窒素、アンモ ニアなどの液化ガスの生産、輸送及び配送の工業プロ セスで使用されます。

断熱材の厚さが80mm から100mmの場合 は、片側のみ段付きの1 層構造です。断熱材の厚さ が130mm以上のタイプ56では 段が二つある2層構造です。管軸方向の荷重を伝達で きるタイプ57のHD-PUF断熱材は1層構造です。

成型断熱材倉庫 仮組み立てされた断熱サポート

外径1625.6mmの特殊設計品
LISEGAの断熱パイプサポートは、認知された国際 的な技術規格や基準に従って設計し標準化されてい ます。サポートは配管サイズが外径21.3mmから 965.2mmまで、断熱材厚さが25mmから250mmま での範囲をカバーしています。サポートは指定の荷重 と温度に適した材料で製造されます。(流体の温度は 最低-196℃です)
断熱材料
標準の断熱パイプサポートの材料は、難燃性の高密度 発泡ポリウレタン(HD-PUF)を使用しており、配管の 断熱材の一部を構成します。
HD-PUF断熱材は、温度と湿度を慎重に制御した状態 で頑丈な金型によって成型されます。これによって、 現地で隣接する断熱材とぴったり合う寸法的な安定性 と正確な形状が得られます。
HD-PUF断熱材は、1層及び2層構造とも長手方向に段 付きジョイントがあります。据付時には、断熱パイプ サポートの締め付け力を確実にするためジョイントサ イズを指定されたギャップ寸法に調整してください。
据付後、長手方向のギャップは断熱充填材でふさいで ください。皿ばね付きのボルトの締め付け力によりパ イプサポートと配管の相対的な移動を防ぎます。
アルミニウムとポリエステルを貼り合わせたベーパー バリアがHD-PUF断熱材の外面に接着されています。
ベーパーバリアは長手ジョイントに重なり、現地で特 殊な粘着テープでシールされます。断熱パイプサポー トの据付後、直ちに露出しているすべてのHD-PUF表 面を湿気から保護する必要があります。これには極低 温用エラストマーコーティングがベーパーバリアとし て使用されます。
HD-PUF断熱材はいろいろな荷重条件に対応できるよ う3種類の密度のものがあり、区別するために色分け されています。
断熱材 厚さ [mm] 各層の 厚さ [mm]
8040/40 10050/50
13050/40/40
15050/50/50
18050/80/50
20050/100/50
25075/100/75
形状の安定性を確実にするために、成型品は乾燥のた めに一定時間保持されます。断熱材厚さが大きい場 合、隣接する部分の断熱材の層と合わせた段付きジョ イントが使用されます。この方法により各層が確実に 接続され、断熱材の表面から配管の表面への熱の通過 を防ぎます。
段付きジョイントは25mmの長さですが、ご要望によ り50mmの長さのものも供給可能です。断熱材の厚さ が50mmまでは1層構造で、段はありません。
160kg/m3 – 黄色 224kg/m3 – 赤色 320kg/m3 – 緑色


断熱パイプサポートベース
LISEGAの標準化された断熱パイプサポートは、皿ば ね付きのボルトで機械的に配管に締め付けるよう設計 されています。HD-PUF断熱材を収めるクレードルは 炭素鋼製で、標準として溶融亜鉛めっきされます。
材料、溶接及び表面処理はLISEGAの標準仕様に従 います。パイプサポートの製作及び仮組み立てには LISEGAの品質保証システムが適用されます。試験検 査要領に従って要求仕様への適合を確認します。
長手方向と端面に段付きジョイントがある HD-PUF断熱材 クレードル
保護シールド
皿ばね付きのボルト ベーパーバリア

特殊設計品の有限要素法による解析

LISEGA標準断熱パイプサポートは詳細な据付要領書 と共に納入されます。個々のサポートはLISEGAのタ イプ番号システムに従い明確にマーキングされます。
断熱充填材、ベーパーバリアシールテープも供給範囲 に含まれます。ご要望により現地での据付用に、極低 温用の接着剤、マスチックなどの材料を追加で納入す ることも可能です。
LISEGA断熱パイプサポートは、完全に組み立てて、 輸送と保管時の表面の損傷と湿気から保護するために 適切に梱包されて供給されます。
標準断熱パイプサポート タイプ 57

56 .. .. G3
設計
タイプ 56は一般的な断熱パイプサポートで、スライ ドまたはガイドサポートとして機能します。タイプ
57はタイプ 56と同様ですが、スラストリングにより 管軸方向の荷重を吸収する管軸方向のストップとして 機能します。スラストリングは2分割されたリングを 現地で溶接して一体化します。リングは配管に溶接さ れたシアラグにより固定されます。
この設計は特許を取得しており、断熱パイプサポート を最終的な位置決め後に配管に固定できる利点があり ます。既存あるいは取付け済みの構造物を分解する必 要はありません。スラストリングとシアラグはステン レス鋼製で、部品供給範囲に含まれます。
複数のクランプベース付き パイプサポート
上下方向または管直方向に大きな荷重が作用する場合、 ダブルクランプベースあるいはガイドサポートが必要 になります。用途に応じて、LISEGA断熱パイプサポー トは構成形状を変えることができます。それぞれの形 状は、6桁の数字の後に要求形状の記号をつけて表しま す。以下の形状のパイプサポートが注文可能です:

G2A ダブルクランプベース パイプサポート (直角)
G2P ダブルクランプベース パイプサポート (平行)
56 .. .. G4
G3: 三方向クランプベースパイプサポート
G4: 四方向クランプベースパイプサポート
タイプ 56及びタイプ 57ともガイド付きのオプション が注文可能です。タイプ 57は垂直配管の四方向パイ プサポートとしても使用できます。
特殊設計品 LISEGAはどのような要求に対しても解決策を提案し てお客様を支援します。
特殊な配管径でも対応できます。
管軸方向の移動量が大きい場 合、特殊な長さのものを提供 できます。
断熱パイプサポー トをハンガーとし て使用できます スプリングハンガ ー、コンスタントハ ンガーと組み合わせられま

す)。この場合、クランプベースのシューは特 殊パイプクランプ タイプ43に変わります。ク ランプはそれぞれの条件に応じて設計されます。
標準の密度以外のHD-PUF、たとえば、大荷重用 の密度 500kg/m3 のものなどが供給できます。
スライドプレートと組み合わせて使用できます。 この場合、ステンレス鋼板がシューの底面に付き ます。
特に大きな荷重が作用する場合、木製ブロックが 使用できます。
取付け寸法Eも変更できますが、この場合設計と 許容荷重への影響の検討が必要です。そのため、 注文時には実際の作用荷重をご指定ください。
製品の詳細については、HIPAC® カタログをご覧 ください。

極低温用パイプクランプを使ったハンガー

極低温用サポートで支持された配管

極低温用クランプベース タイプ 56

極低温用クランプベースの最終検査
溶接パイプシュー
T形、U形
タイプ 57 .. 11 及び 57 .. 12
小荷重用、 温度80℃以下
材質: S235JR
表面:溶接可能プライマー
タイプ番号:
57 .. 11 (T形シュー)
57 .. 12 (U形シュー)
現地溶接 - 指定の溶接サイズ及 び許容荷重では、溶接部応力は 50N/mm2 以下です。
注文要領:
溶接パイプシュー
タイプ 57 .. 1. 5-T-16
58 05 .148.333.7x4.5a3.0242501000
58 06 .160.333.7x4.5a3.0302501000
58 06 .260.348.3x5.0b3.0302501100
58 07 .173.033.7x4.5a3.0372501000
58 07 .273.048.3x5.0b3.0372501100
58 08 .176.133.7x4.5a3.0382501000
58 08 .276.148.3x5.0b3.0382501100
58 09 .188.933.7x4.5a3.0442501000
58 09 .288.948.3x5.0b3.0442501100
58 10 .1108.048.3x5.0b3.0543001150
58 10 .2108.073.0x7.0c3.0543001150
58 11 .1114.348.3x5.0b3.0573001150
58 11 .2114.373.0x7.0c3.0573001150
58 13 .1133.048.3x5.0b3.0673001150
58 13 .2133.073.0x7.0c3.0673001150
58 14 .1139.773.0x7.0c3.0703001150
58 14 .2139.788.9x5.6d3.0703001150
58 16 .1159.073.0x7.0c3.0803001150
58 16 .2159.088.9x5.6d3.0803001150
58 17 .1168.373.0x7.0c3.0843001150
58 17 .2168.388.9x5.6d3.0843001150
58 19 .1193.788.9x5.6d3.0973501150
58 19 .2193.7114.3x8.8e5.0973501150
58 22 .1219.188.9x5.6d3.01103501200
58 22 .2219.1114.3x8.8e5.01103501200
58 24 .1244.588.9x5.6d3.01223501200
58 24 .2244.5114.3x8.8e5.01223501200
58 26 .1267.0114.3x8.8e5.01343501200
58 26 .2267.0139.7x10f7.01343501200
58 27 .1273.0114.3x8.8e5.01373501200
58 27 .2273.0139.7x10f7.01373501200
58 32 .1323.9139.7x10f7.01624001250
58 32 .2323.9219.1x8.0g5.01624001250
58 36 .1355.6139.7x10f7.01784001250
58 36 .2355.6219.1x8.0g5.01784001250
58 37 .1368.0139.7x10f7.01844001250
58 37 .2368.0219.1x8.0g5.01844001250
58 41 .1406.4139.7x10f7.02034501300
58 41 .2406.4219.1x8.0g5.02034501300
58 42 .1419.0139.7x10f7.02104501300
58 42 .2419.0219.1x8.0g5.02104501300
58 46 .1457.2219.1x8.0g5.02295001300
58 46 .2457.2323.9x10h7.02295001300
58 51 .1508.0219.1x8.0g5.02545001350
58 51 .2508.0323.9x10h7.02545001350
58 56 .1558.8219.1x8.0g5.02795501350
58 56 .2558.8323.9x10h7.02795501350
58 61 .1609.6323.9x10h7.03055501400
58 66 .1660.4323.9x10h7.03306001400
58 71 .1711.2323.9x10h7.03566001450
58 76 .1762.0323.9x10h7.03816501450
58 81 .1812.8323.9x10h7.04066501500
58 91 .1914.4323.9x10h7.04577001550
スタンションの選定については、5.15ページの表と 線図によります。
タイプ 58 .. 11 タイプ 58 .. 12
タイプ 58 .. 21 タイプ 58 .. 22
... 5.15ページ参照
選定例: 調節型スタンション OD = 244.5mm, E = 800mm (スライドシューとして使用) スタンション長さ: L = E - N 選定表より、 L = 800mm – 122mm = 678mm. スタンションの径 D = 88.9 mm (タイプ ‘d’).
許容荷重 = 0.36 x 11 kN
5.15ページの表参照) = 3.96 kN
注文要領: 水平配管用スタンション タイプ 58 .. .., E = ...mm
タイプ 58 .. 13
タイプ 58 .. 14
タイプ 58 .. 23
タイプ 58 .. 24
... 5.15ページ参照
選定例: ショートエルボ用スタンション R OD, OD = 419mm, E = 750mm (アンカーとして使用)
スタンション長さ: L = E - N
選定表より、 L = 750mm – 50mm = 700mm.
スタンションの径 D = 139.7mm (タイプ ‘f’).
許容荷重 = 0.41 x 22.5 kN (5.15ページの表参照) = 9.2 kN
注文要領:
ショートエルボ用スタンション R OD
タイプ 58 .. .., E = ...mm
58 05 .348.333.7x4.5a3.0102501000
58 06 .360.333.7x4.5a3.0102501000
58 06 .460.348.3x5.0b3.0102501100
58 07 .373.033.7x4.5a3.0152501000
58 07 .473.048.3x5.0b3.0152501100
58 08 .376.133.7x4.5a3.0152501000
58 08 .476.148.3x5.0b3.0152501100
58 09 .388.933.7x4.5a3.0152501000
58 09 .488.948.3x5.0b3.0152501100
58 10 .3108.048.3x5.0b3.0152501100
58 10 .4108.073.0x7.0c3.0152501100
58 11 .3114.348.3x5.0b3.0202501100
58 11 .4114.373.0x7.0c3.0202501100
58 13 .3133.048.3x5.0b3.0202501100
58 13 .4133.073.0x7.0c3.0202501100
58 14 .3139.773.0x7.0c3.0253001100
58 14 .4139.788.9x5.6d3.0253001100
58 16 .3159.073.0x7.0c3.0253001100
58 16 .4159.088.9x5.6d3.0253001100
58 17 .3168.373.0x7.0c3.0303001100
58 17 .4168.388.9x5.6d3.0303001100
58 19 .3193.788.9x5.6d3.0303001100
58 19 .4193.7114.3x8.8e5.0303001100
58 22 .3219.188.9x5.6d3.0353001100
58 22 .4219.1114.3x8.8e5.0353001100
58 24 .3244.588.9x5.6d3.0353001100
58 24 .4244.5114.3x8.8e5.0353001100
58 26 .3267.0114.3x8.8e5.0403001100
58 26 .4267.0139.7x10f7.0403001100
58 27 .3273.0114.3x8.8e5.0453501100
58 27 .4273.0139.7x10f7.0453501100
58 32 .3323.9139.7x10f7.0503501100
58 32 .4323.9219.1x8.0g5.0503501100
58 36 .3355.6139.7x10f7.0403501100
58 36 .4355.6219.1x8.0g5.0403501100
58 37 .3368.0139.7x10f7.0453501100
58 37 .4368.0219.1x8.0g5.0453501100
58 41 .3406.4139.7x10f7.0503501100
58 41 .4406.4219.1x8.0g5.0503501100
58 42 .3419.0139.7x10f7.0503501100
58 42 .4419.0219.1x8.0g5.0503501100
58 46 .3457.2219.1x8.0g5.0554001150
58 46 .4457.2323.9x10h7.0554001150
58 51 .3508.0219.1x8.0g5.0604001150
58 51 .4508.0323.9x10h7.0604001150
58 56 .3558.8219.1x8.0g5.0654501150
58 56 .4558.8323.9x10h7.0654501150
58 61 .3609.6323.9x10h7.0704501150
58 66 .3660.4323.9x10h7.0804501150
58 71 .3711.2323.9x10h7.0854501150
58 76 .3762.0323.9x10h7.0904501150
58 81 .3812.8323.9x10h7.0955001150
58 91 .3914.4323.9x10h7.01105501200
スタンションの選定については、5.15ページの表と 線図によります。
58 05 .548.333.7x4.5a3.002001000
58 06 .560.333.7x4.5a3.002501000
58 06 .660.348.3x5.0b3.002501050
58 07 .573.033.7x4.5a3.052501000
58 07 .673.048.3x5.0b3.052501050
58 08 .576.133.7x4.5a3.002501000
58 08 .676.148.3x5.0b3.002501050
58 09 .588.933.7x4.5a3.052501000
58 09 .688.948.3x5.0b3.052501050
58 10 .5108.048.3x5.0b3.052501050
58 10 .6108.073.0x7.0c3.052501050
58 11 .5114.348.3x5.0b3.0102501050
58 11 .6114.373.0x7.0c3.0102501050
58 13 .5133.048.3x5.0b3.0102501050
58 13 .6133.073.0x7.0c3.0102501050
58 14 .5139.773.0x7.0c3.0152501050
58 14 .6139.788.9x5.6d3.0152501050
58 16 .5159.073.0x7.0c3.0152501050
58 16 .6159.088.9x5.6d3.0152501050
58 17 .5168.373.0x7.0c3.0152501050
58 17 .6168.388.9x5.6d3.0152501050
58 19 .5193.788.9x5.6d3.0202501050
58 19 .6193.7114.3x8.8e5.0202501050
58 22 .5219.188.9x5.6d3.0252501050
58 22 .6219.1114.3x8.8e5.0252501050
58 24 .5244.588.9x5.6d3.0252501050
58 24 .6244.5114.3x8.8e5.0252501050
58 26 .5267.0114.3x8.8e5.0302501050
58 26 .6267.0139.7x10f7.0302501050
58 27 .5273.0114.3x8.8e5.0302501050
58 27 .6273.0139.7x10f7.0302501050
58 32 .5323.9139.7x10f7.0403001050
58 32 .6323.9219.1x8.0g5.0403001050
58 36 .5355.6139.7x10f7.0652501000
58 36 .6355.6219.1x8.0g5.0652501000
58 37 .5368.0139.7x10f7.0652501000
58 37 .6368.0219.1x8.0g5.0652501000
58 41 .5406.4139.7x10f7.0703001000
58 41 .6406.4219.1x8.0g5.0703001000
58 42 .5419.0139.7x10f7.0753001000
58 42 .6419.0219.1x8.0g5.0753001000
58 46 .5457.2219.1x8.0g5.0803001000
58 46 .6457.2323.9x10h7.0803001000
58 51 .5508.0219.1x8.0g5.0903501000
58 51 .6508.0323.9x10h7.0903501000
58 56 .5558.8219.1x8.0g5.01003501000
58 56 .6558.8323.9x10h7.01003501000
58 61 .5609.6323.9x10h7.0110400950
58 66 .5660.4323.9x10h7.0115400950
58 71 .5711.2323.9x10h7.0125450950
58 76 .5762.0323.9x10h7.0135450950
58 81 .5812.8323.9x10h7.0145500950
58 91 .5914.4323.9x10h7.0160550900
スタンションの選定については、5.15ページの表と 線図によります。
タイプ 58 .. 15 タイプ 58 .. 16
タイプ 58 .. 25 タイプ 58 .. 26
... 5.15ページ参照
選定例: ロングエルボ用スタンション R 1.5 OD, OD = 419mm, E = 750mm (アンカーとして使用) スタンション長さ: L = E + N 選定表より、 L = 750mm +75mm = 825mm.
スタンションの径 D = 139.7mm (タイプ ‘f’). 許容荷重 = 0.37 x 22.5 kN (5.15ページの表参照) = 8.3 kN
注文要領: ロングエルボ用スタンション R 1.5 OD
タイプ 58 .. .., E = ...mm
現地溶接
指定の溶接サイズ及び許容荷重 では、溶接部応力は 50N/mm2 以下です。
タイプ番号: 58 .. 1. スタンション 58 .. 2. 調節型スタンション
表の寸法 A x t
スタンション長さに対する許容荷 重比を線図より算出します。
横方向の最大荷重は垂直方向荷 重の100%
溶接部の設計については、配管 への荷重伝達及び配管の許容 応力はユーザーにて確認してく ださい。
材質: ベースプレート S235JR S355J2 スタンション P235GH
表面処理: 溶接可能プライマー

エルボ用スタンション タイプ 58 X-Y方向のモーメントフリーのストップとしてタイプ 29スプリングサポートと一緒に使用 スタンション タイプ 58 水平配管のガイドとしてタイプ 29スプリングサポートと一緒に使用 スライドまたはアンカー用スタンションの長さによる許容荷重

Anschlusskomponenten ねじ接続部品
PRODUKT 6 GRUPPE









精度のよいねじ、信頼でき る材料特性と十分な荷重の 余裕がある設計が荷重チェ ーン全体の信頼性の前提条 件です。



製品グループ 6の接続部品は、接続ロッドを他の サポート部品に接続するため特に設計されたねじ 製品です。荷重チェーンにおいては、ラグやクレ ビス、アイプレートなどの部品と接続されます。
製品グループ 6の接続部品は、モジュールシステ ムの中で独立したグループを構成し、パイプサポ ート部品として最適に使用できるよう特別に設計 されています。
部品は主に型鍛造で製造され、ターンバックル タ イプ62以外でも、限られた取付け高さの場合少し の寸法調整ならできるよう設計されています。
許容荷重は、技術仕様0.6ページの静的部品用荷 重表に対応しています。
アイナット タイプ 60はロッドと接続ピンを連結す るときに使われ、ピン付きクレビス タイプ 61はロ ッドと接続ラグを連結するときに使われます。
ターンバックル タイプ 62は、一方が右ねじ、他 方が左ねじに加工されています。タイロッド タ イプ 65と共に使用して、長さの調整や荷重を負 荷するのに使用されます。
ロッドカップリング タイプ 64は、ロッドの長さ が3m以上必要な場合に使用されます。
ターンバックル タイプ 62以外は、すべてのねじ は右ねじで、メートルねじあるいはUNCねじで 製造されます。
腐食に対する保護として、部品は電気めっきされ、厚 みは標準で約12~15μmです。特に過酷な環境での 使用には、溶融亜鉛めっきした部品を供給可能です。
LISEGA接続部品には特別な利点があります:
広範囲な適用の可能性
LISEGAモジュールシステムによる荷重と接続 の互換性 型鍛造と熱処理
標準の電気めっきと、必要な場合溶融亜鉛めっき 特別なタイプテストによる承認
ロッドカップリング

ご要望により、部品の材料証明書を提供できます。
温度が高い場所などのように、標準的な適用範囲を 超えたところでの接続部品が必要になることがあり ます。
このため、LISEGAは特殊設計品 4.9ページ参照 とし て合金鋼材料 10CrMo9-10 で製造した部品を提案しま す。500℃までの使用における上限荷重はそれぞれの荷 重グループの定格荷重 0.5ページの4.1.1項参照 に対応 します。タイプ番号は以下のように表示されます: アイナット :60 .9 04-HT; (60 D9 04-HT ~ 60 99 04-HT) ピン付きクレビス :61 .9 04-HT; (61 D9 04-HT ~ 61 99 04-HT) ターンバックル :62 .9 04-HT; (62 D9 04-HT ~ 62 99 04-HT) ロッドカップリング :64 .9 04-HT; (64 D9 04-HT ~ 64 99 04-HT)

60 D9 1924401117M101325515150.05
60 29 1233601524M121740619200.10
60 39 1244752030M1625451026300.20
60 49 1259902535M2029551035350.40
60 59 12721103044M2435651544450.80
60 69 12881273750M3042751754521.20
60 79 121001404560M3647752062652.00
60 89 121101575270M4252852572722.90
60 99 121201806080M4862853078954.70
60 10 121352006595M56x4621054080957.70
60 20 1215023070105M64x47213040851008.80
60 30 1216023070110M68x47213040901009.30
60 40 12220250120125M72x4821005011015027.00
60 50 12250280140140M80x4921206012516045.00

61 D9 192350111710M1035115025215x9–150.1 61 29 123370152512M1250126034248x12–200.2
61 39 124280203316M16501770443211x15–300.4
61 49 125590254020M20552090574616x21–351.0
61 59 1265110304624M246522105685319x25–451.6
61 69 1272130355133M308027125806419x29–502.7
61 79 1285150406140M369032140938022x36–604.4
61 89 12100170507245M42100371651109027x40–707.2
61 99 12120180608350M48954218513010033x44–8510.4
61 10 12130215659060M56x41205021015012030x45–9514.8
61 20 121552307011070M64x41306024517515035x55–10024.4
61 30 121552307011070M68x41256024517515035x55–10524.4
61 40 1215024080–80M72x413056230150150–9011042.0
61 50 1216526090–90M80x414064240165180–11012060.0
タイプ
材質: P250GH
型鍛造品
荷重グループ40以上は 溶接構造
材質: S355J2
注文要領: アイナット タイプ 60..1.
ピン付きクレビス タイプ 61 D9 19 ~ 61 50 12
材質: P250GH
荷重グループ10以上は 材質: S355J2
型鍛造品
荷重グループ40以上は 鋼板製
材質: S355J2
ピン C35E+QT
割りピン DIN EN ISO 1234 座金 DIN 1441
荷重グループ40以上は 材質: S355J2
注文要領: ピン付きクレビス タイプ 61..1.
ターンバックル
タイプ 62 D9 19 ~ 62 50 15
材質: S235JR
型鍛造品
荷重グループ10以上は
鋼板製
材質: S355J2
一方は右ねじ、他方は左ねじ
ねじロッドの端部同士が接触し ないこと
注文要領:
ターンバックル
タイプ 62..1.
ロッドカップリング
タイプ 64 D9 19 ~ 64 50 15
材質: S235JR
型鍛造品
荷重グループ10以上は
鋼板製
材質: S355J2
注文要領:
ロッドカップリング
タイプ 64 .. 1.


適用
ねじロッドやタイロッドとサポート部品を互いに接続す ることで、必要な取付け高さを構成します。部品を接続 してリジッドハンガーとして使用されるほか、熱移動に 追随するスプリングやコンスタントハンガーに接続して 使用することができます。
材料と荷重
良好な均質性と十分な衝撃値特性などの機械的性質が保 証された材料だけが使用されます。許容荷重は、技術仕 様0.6ページの静的部品用荷重表に対応しています。
転造ねじ
すべてのねじは、転造加工によって製造され、切削加 工はしません。ねじ山は転造加工によって塑性的に形 成されるため、表面はノッチのない高い品質の強度が与 えられます。
これによって摩擦抵抗は小さくなるため、荷重がかかっ た状態でもロッドの調整が容易に行えます。さらに、設 計仕様の要求を上回る安全性の余裕が生じます。
設計
M48までの全ねじロッド タイプ 67と、M20からのタ イロッド タイプ 66は、500mmから3,000mmまで 500mm刻みの長さで供給されます。タイロッドは、片 方に300mm、他方に600mmのねじが加工されていま す。短い方のねじ部は、スプリングハンガーやコンスタ ントハンガーなどに接続して長さ調整に使用します。長 い方のねじ部は、必要な取付け長さに合わせて現地で 切断します。
標準長さ
建築構造物の公差はかなり大きいため、ロッドの長さを 固定した場合据付は容易になりますが、その代わりにロ ッドが短かったといった問題が起きやすくなります。標 準長さの使用はこれに柔軟に対応できるため、ますます 一般的になっています。寸法決めはロッドを上端から吊 り下げることにより容易に行えます。
間違いのリスクがある手間のかかる計測が避けられ、構 造物の公差もうまく吸収できます。
長さ調整
タイロッドL/R タイプ 65は右ねじと左ねじを持ち、常 にターンバックル タイプ 62と組み合わせて使用しま す。これらの部品は荷重チェーンでの長さ調整と荷重負 荷用として設計されています。
その他のねじ部品はすべて右ねじで、取付け時には六角 ナット タイプ 63で廻り止めを行います。
腐食防止
腐食に対する保護として、すべてのロッドは電気めっき され、厚みは約12~15μmです。ご要望により、溶融亜 鉛めっきした部品も供給可能です。
溶融亜鉛めっきのロッドM10/M12の長さは1,000mm までで、それより長い場合はロッドカップリングで接 続します。
証明書
ご注文があれば、すべての部品はDIN EN 10204-2.2ま たは3.1に従った証明書付きで納入できます。
特別な性質:
証明された特性を持つ材料 転造ねじ ノッチのない表面 電気めっきされた表面 標準長さ 工場内での製造
温度が高い場所などのように、標準的な適用範囲を超え たところでの接続部品が必要になることがあります。こ のため、LISEGAは特殊設計品(4.9ページ参照)として 合金鋼材料(21CrMoV5-7、ナットは25CrMo4)で製造 した部品を提案します。500℃までの使用における上限荷 重はそれぞれの荷重グループの定格荷重に対応します。
タイプ番号は以下のように表示されます:
タイロッド L/R: 65 .1 03-HT; (65 D1 03-HT ~ 65 91 03-HT)
スタッドボルト: 67 .1 03-HT; (67 D1 03-HT ~ 67 91 03-HT)
ねじロッド : 67 .. 03-HT; (67 D2 03-HT ~ 67 95 03-HT)
タイロッド : 66 .. 03-HT; (66 46 03-HT ~ 66 97 03-HT)
六角ナット : 63 .9 3. ; (63 D9 39 及び 63 19 38 ~ 63 99 38)
配管システムを支持する荷重 チェーンでは、接続ロッドは 重要な要素です。この外観上 単純な部品がチェーンの中で 最も弱い結合部にならないよ う、選定時には大きな注意を 払わなければなりません。 荷重負荷容量の決定的な要因 は、適切な寸法設定に加え、 規格に従った材料の品質と設 計です。


ねじ部品の製造
転造加工されたねじの繊維の流れ
タイロッドL/R
タイプ 65 D1 19 ~ 65 50 13
材質:
M10~M16 S235JR
M20から S355J2
LISEGAのねじロッドは必ず
同材質のもので置き換えてく ださい。
注文要領:
タイロッドL/R
タイプ 65..1.
六角ナット
タイプ 63 D9 29 ~ 63 50 28
材質:grade 8 六角ナット
DIN EN ISO 4032
ねじロッド M10 ~ M80×4用 ロックナットとして使用
注文要領:
六角ナット
タイプ 63..2.

65 D1 198.75M10250801300.1
65 21 1310.74M12250801300.2
65 31 1314.54M16250801300.3
65 41 1318.20M20250801300.5
65 51 1321.85M243501201901.0
65 61 1327.55M303501201901.6
65 71 1333.15M363501201902.4
65 81 1338.91M424501602204.2
65
65
65
65 30 1365.20M68x455020027014.4
65 40 1369.20M72x460022030017.7
65 50 1377.20M80x460022030022.1
スタッドボルト
タイプ 67 D1 19 ~ 67 91 13

材質
M10~M16 S235JR
M20から S355J2
LISEGAのねじロッ ドは必ず同材質のも ので置き換えてください。

63
63 10 28M56x41.40
63 20 28M64x41.90
63 30 28M68x42.25
63 40 28M72x42.60
63
注文要領: スタッドボルト タイプ 67..1.
ねじロッド タイプ 67

タイロッド タイプ 66
ねじロッド タイプ 67
タイロッド タイプ 66 L=最大6,000mm これより長いものはご要望によります

ねじロッド/タイロッド タイプ 67 D2 19 ~ 67 50 13 / タイプ 66 46 13 ~ 66 50 13
材質: M10~M16 S235JR M20から S355J2
LISEGAのねじロッドは必ず 同材質のもので置き換えてく ださい。
据付状況にあわせ標準長さから 必要寸法に現地で切断すること により、取付け品の長さが短い という問題が避けられ柔軟に適 応できます。
注文要領: ねじロッド/タイロッド タイプ 6. .. ..
M56×4以上の接続ロッドは、 ねじロッド タイプ 67または個 々のねじ長さを指定したタイ ロッド タイプ 66として供給可 能です。
注文要領: M56×4以上: ねじロッド/タイロッド タイプ 6. .. ..
L = ...mm
L1 = ...mm
L2 = ...mm
Bauanschlüsse, Traversen, Spannklammern, Gleitplatten 構造物への取付け部品、トラピーズ、
PRODUKT 7 GRUPPE











構造物への取付け部品、トラピーズ
目 次
構造物への取付け部品、トラピーズ
パイプサポートを支持構造 物へ取付けるには溶接また はクランプ止めによる特別 な部品を使用します。安全 性の要求を満たすため、接 続部は適切でなければなり ません。
構造物に直接取付ける接続部品とトラピーズが製品 グループ 7に含まれます。
部品の許容荷重は技術仕様0.6ページの静的荷重部 品荷重表に対応しています。
溶接クレビス タイプ 73と溶接アイプレート タイプ 75においては、指定された最小溶接サイズを守って ください。これは通常の運転状態(荷重ケースH、 レベルA/B)で溶接部の最大応力が 75N/mm2 を超 えないように計算されています。計算では、6°まで の角度で作用する荷重を考慮しています。
溶接プレート タイプ 74は、接続点を貫通式にする ことにより限られたスペースでもロッドの取付けを 可能にします。ここでも6°までの角度で作用する荷 重を考慮しています。
ビームアダプター タイプ 76は溶融亜鉛めっきされ ており、溶接ではなくクランプ式で接続し、配管シ ステムを延長するときや既設プラントの構造物へ取 り付けるときに使用されます。
ビームクランプ タイプ 78は、現地で溶接をしない で接続できるよう設計されています。すべてのビー ム幅とフランジ勾配に適用できます。注文時にはビ ーム幅とフランジ厚さを指定してください。
腐食に対する保護として、部品は溶接可能プライ マー(30μm)または電気亜鉛めっき(膜厚12 ~15μm)が施工されます。
トラピーズ タイプ 79は、リジッドハンガーやスプ リングハンガーまたはコンスタントハンガーと組み 合わせて、クランプベース タイプ 49やタイプ 56を 取付けて使用することができます。
トラピーズの形鋼は腐食防止としてLISEGA標準塗装 が施工されます。(0.10ページ参照)
ご要望により、すべての部品は材料証明をつけて供 給することができます。
タイプ 73
タイプ 74
タイプ 75
タイプ 76
タイプ 78
標準化された接続部品

73 29 1340123512603424–3.00.3
73 39 1350164017704432–3.00.4
73 49 1365205020905746–3.01.1
73 59 13752460221056853–3.02.1
73 69 12953390271258064–3.53.8
73 79 1212040110321409380–4.06.8
73 89 12120451203716511090–5.59.2
73 99 121205013042185120100–7.511.1
73 10 121506014050210150120–8.518.5
73 20 12170x1757015060245165170759.037.0
73 30 12170x17570150602451651707510.537.0
73 40 12150x19080170562301501509012.538.0
73 50 12180x220901956424016518011013.558.0

D1 193010.5401863.00.10
21 123512.5452284.00.13 75 31 124516.55028104.50.24
75 41 126020.55537126.00.45
75 51 126524.56040157.00.65
75 61 1280347050208.51.25
75 71 12100418065259.52.35
75 81 121204690753010.53.9
75 91 1213051100803013.54.6
75 10 1215061110904015.57.7
75 20 12170711201004518.010.6
75 30 12180711301104520.512.6
75 40 12220811401205018.518.5
75 50 12250911501356020.027.5
溶接クレビス タイプ 73 29 13 ~ 73 50 12
材質:S355J2 型鍛造品 荷重グループ 20以上は 鋼板製 材質:S355J2 ピン:C35E+QT
溶接サイズは荷重ケースH(レベル A/B)の許容応力 75N/mm2 で計算 されています。
注文要領: 溶接クレビス タイプ 73 .. 1.
溶接アイプレート タイプ 75 D1 19 ~ 75 50 12
材質:S235JR 荷重グループ 6以上は: S355J2
溶接サイズは荷重ケースH レベルA/B の許容応力 75N/mm2 で計算されています。
注文要領: 溶接アイプレート タイプ 75 .. 1.
球面座金付溶接プレート
タイプ 74 D1 19 ~ 74 50 13
材質
球面座金:
表面硬化鋼
荷重グループ 5以上: C15
溶接プレート:S235JR
板厚 s 20: S355J2

溶接プレートの位置決めのときは指 示によりタック溶接または全周溶接 を推奨します。
注文要領:
球面座金付溶接プレート タイプ 74 .. 1.
43 13M2013036302123501827202.7
74 51 13M249544352524552132201.4
74 52 13M2413044352524552132202.7
74 61 13M3013056453135602741304.0
74 62 13M3017056453135602741306.8
74 71 13M3613068503737703250304.0
74 72 13M3617068503737703250306.8
74 81 13M4213078594339903758304.0
74 82 13M4217078594339903758306.8
74 91 13M48130926650461204167354.5
74 92 13M48170926650411204167306.8
74 10 13M56x422510376584714050793513.9
74 20 13M64x425012089665415059934019.6
74 30 13M68x4250128957061160641004522.0
74 40 13M72x4300136987561160701074531.8
74 50 13M80x43501521108364180781204543.3
78

ビームクランプ タイプ 78 21 11 ~ 78 71 11
表面:電気めっき


荷重グループ8、9も接続できま す。許容荷重は荷重ケースH(レ ベルA/B)で100kNです。
t’寸法が大きい場合、ご要望によ り E0 寸法を大きくできます。注 文時にビーム幅‘b’とフランジ厚 さ‘t’を指定してください。
注文要領: ビームクランプ
タイプ 78 .1 11
ビーム幅 b = ...mm フランジ厚さ t = ...mm
小荷重用トラピーズ 温度80℃以下
許容中央荷重はトラピーズの荷 重グループ(タイプ番号の3桁 目)により決まります。
注文要領: トラピーズ タイプ 79 .2 37, L = ...mm タイプ d
トラピーズ
タイプ 79 22 34 ~ 79 20 34
許容中央荷重はトラピーズの荷 重グループ(タイプ番号の3桁目 あるいは3桁目と4桁目)により 決まります。
Lmax 寸法は100mm長くなるご とに許容荷重を5%減少させるこ とにより2400mmまで長くする ことができます。
記載の荷重グループに接続でき ます。
注文要領:
トラピーズ
タイプ 79 .. 34, L = ...mm
トラピーズ
タイプ 79 23 39 ~ 79 93 39
中央接続部の許容荷重はトラピ ズの荷重グループ(タイプ番 号の3桁目)により決まります。
タイプ 79 23 39 ~ 79 73 39 の Lmax 寸法は100mm長くなる ごとに許容荷重を5%減少させる ことにより2400mmまで長くす ることができます。
記載の荷重グループに接続でき ます。
注文要領: トラピーズ
既設のプラントで配管システムあるいは構造物の 変更や追加がある場合、溶接による接続よりクラ ンプによる接続が好まれます。安全上の理由で 溶接接続ができないときはクランプ接続が指定さ れます。
この接続方法のクランプ力の安全性は既存の接触 面の状態と作用する力によります。クランプ部品 の設計は信頼できる接続にとって決定的です。
安全で信頼できるクランプ部品としてLISEGAはビ ームアダプターシステム タイプ76を提供します。
この部品により、様々な部品を既設の構造物へ溶 接や穴あけなしで取付けられます。
取付けは簡単で時間はかかりません。締付時には LISEGAビームアダプターは既設のビームの厚さに 合わせ独自に調整されます。

指定の締付トルクを守れば接続部の恒久的な安全 性が保証されます。溶融亜鉛めっきや塗装などの 既存の腐食防止の損傷はおきません。
LISEGAビームアダプターの主な特徴は特殊なサポ ートセグメントにあります。その形状によりどん な位置や既設梁の角度にも自動的に適応します。

材質:鋳鉄、溶融亜鉛めっき

荷重は荷重ケースH(レベル A/B)の場合です。他の荷重ケー スは0.6ページの最大許容荷重表 を参照してください。
摩擦係数 µ = 0.14
注文要領:
部材の厚さが異なる場合の ビームクランプの適用例

注文要領: ビームアダプター用ボルト タイプ 76 .2 11- ...
硬化処理されたサポートセグメントは締付時に接 触面を押し付ける半円形の突起があります。これ によりどんな方向にもずれないしっかりとした接 続が生まれます。

使用例: クランプベースをビームに取り付けたもの
ボルト タイプ寸法重量 [kg]
76 D2 11 – 065M10 x 650.06
76 D2 11 – 080M10 x 800.07
76 D2 11 – 100M10 x 1000.08
76 22 11 – 070M12 x 700.09
76 22 11 – 090M12 x 900.10
76 22 11 – 120M12 x 1200.12
76 32 11 – 090M16 x 900.19
76 32 11 – 120M16 x 1200.23
76 32 11 – 150M16 x 1500.27
76 42 11 – 120M20 x 1200.39
76 42 11 – 150M20 x 1500.45
76 42 11 – 180M20 x 1800.51
六角ボルト DIN EN ISO 4017, 全ねじ, grade 8.8, 溶融亜鉛めっき 六角ナット付き
DIN EN ISO 4032, grade 8, 溶融亜鉛めっき
ビームアダプターによる接続例 交差接続

8個のLISEGAビームアダプターと中間プレートを 使って、ビーム同士の接続が簡単にできます。交 差接続の荷重容量は下の表にあります。
LISEGAビームアダプターによる交差接続の荷重 容量
タイプ 荷重容量 [kN] ボルト4本 (8.8) 中間プレート 厚さ 76 D2 111010 76 22 112412 76 32 113415 76 42 116018
平行接続

ビーム同士は直接、または中間プレートを使用し て接続できます。

必要な場合、浮き上がり防止金具(幅80mm)をガイドに追加できます。(注文の際、クランプベースのタイプ番号を指定してください) Fz:短期の許容浮き上がり力はクランプベースの許容浮き上がり力により制限されます。4.68ページ参照
摩擦係数 µ=0.14
76 00 11 ~ 76 00 14
材質:ガイド S235JR
注文要領: ラテラルガイド タイプ 76 00 1., b = ...mm
注文要領: ラテラルガイド 浮き上がり防止金具付き タイプ 76 00 2. – 49 .. .. クランプベースのタイプ番号, b = ...mm

S235JR
76 .1 16 b = ...mm, L = ...mm
ビームアダプター付き
カンチレバー
タイプ 76 C1 17 ~ 76 21 17
材質:カンチレバー S235JR

摩擦係数 µ=0.14
注文要領:


適用範囲
配管システムは熱膨張により配管支持物の上で移動しま す。配管システムの損傷につながる大きな応力が発生し ないようにするため、この移動は許容されなければなり ません。移動時に生じる摩擦力はクランプベースと支持 構造物の間にスライドプレートを挿入することにより低 減できます。
計画段階での摩擦力の低減対策は非常に重要です。摩擦 力は考慮すべき力として運転荷重に追加され、低摩擦の スライドプレートを介して支持構造物(建屋または二次 鋼材)に作用します。
摩擦力を低下させることにより、建屋や二次鋼材の寸法 や配管への反力を小さくできるのでコストを下げること につながります。
スライドプレートは、工業用プロセスや化学プラント、 発電所、液化ガス輸送用、地域暖房配管システムなど あらゆる配管システムにおいて一般的に使用されてい ます。
スライドプレートを使用することにより、摩擦力は約 60%低減できます。鋼材同士のスライド面の摩擦係数 は µ 0.3ですが、スライドプレートとクランプベース の底面に取り付けるステンレス鋼板を使用することに より摩擦係数は µ 0.1 (乾燥状態)程度まで小さく できます。
LISEGAスライドプレートは温度範囲により異なった低 摩擦材料を使用しています。180℃(クランプベースの 底面で)までの使用には標準のPTFEスライドプレート が適しています。180℃を超えて350℃までの範囲では 特別な高温用材料が使用されます。
低摩擦材料の利点
高い機械的な耐摩耗性
350℃までの耐熱性 化学的な耐久性があり苛酷な環境条件で使用可能 自己潤滑性
永久的なメンテナンスフリー 長い寿命 優れた荷重負荷容量

クランプベースの下側に取り付けたスライドプレートの使用例
スライドプレートの上に置かれ たクランプベースは小さい摩擦 力で移動できます。このため配 管システムは熱膨張中拘束を受 けずに移動できます。






LISEGAスライドプレートは大きな荷重で水平方向に移 動するところにも使用されます。スライドプレートを 使用することにより、移動に必要な力は最大60%まで 低減できます。スライドプレートの使用は配管システ ム全体の配置に好ましい効果があります。
180℃までのLISEGAスライドプレートは低摩擦材料の PTFEを使用しています。180℃を超えて350℃までの 範囲では特別な高温用材料を使用しており、耐熱性を 高めるだけでなく機械的性質も最適化しています。
溶接式のLISEGAスライドプレートは、基本的には溶 接可能プライマーで塗装した炭素鋼のサポートプレー トと、それに埋め込まれた低摩擦材料で構成されてい ます。
オプションとして、サポートプレートは溶融亜鉛めっ きしたものが供給可能です。
ボルト式のLISEGAスライドプレートは溶融亜鉛めっき したものが標準です。
相手方の面はステンレス鋼板にします。ステンレス鋼 板は別個の注文になります。この板は炭素鋼の支持材 に溶接できます。あるいはクランプベースの底面に工 場で取付けることもでき、この場合はそのまますぐに 使用できます。
パイプガイド タイプ49 .. .. G.. 用の スライドプレートの使用方法 垂直状態の取付け用として特別に開発されたスライドプ レートは、パイプガイド タイプ49 .. .. Gの例にあるよ うに、サポートプレートにボルト止めされています。
タイプ 70 .. ..-MB

クランプベース タイプ 49 .. .. G3-SPとスライド プレートを使用したスライドベアリング/ガイド

クランプベース タイプ 49 .. .. G4-SPとスライド プレートを使用したX-ZストップのY方向ガイド
運転温度における摩擦係数 μ
スライドプレートの構成と組み立ての 注意点
スライドプレートと相手方の面は平行に取付けて ください。
スライドプレートは考えられるすべての移動状態 において完全に相手方の面に覆われるようにして ください。
スライドプレートや相手方の面の曲がりがないよ うにして取付けてください。

支持構造物にクランプ接続されたスライドプレートの 上に設置されたクランプベース タイプ 49

クランプベース タイプ 49とスライドプレートを 使用したスプリングサポート タイプ 28






タイプ 70 .. 1.を基準位置にタック溶接します。全 周溶接が必要な場合は、PTFE部の温度が260℃を 超えないようにしてください。溶接時には、PTFE やサポートプレートの支持表面が汚れないよう保 護してください。
スライドプレートは水平状態のみで取付けてく ださい。垂直状態での取付けには、タイプ 70 .. ..-MBを使用します。相手方の面が常にPTFEと 接触していることが確実な場合は標準品のタイプ 70 .. ..も使用できます。
タイプ 70 .. 2.及びタイプ 70 .. 3.はM10または M12のボルトにより支持構造物にボルト止めしま す。このボルトは供給範囲に含まれません。
ご要望により、特別なサイズも供給可能です。
スプリングサポート タイプ 29 .. 1. 用 スライドプレートの使用推奨範囲
溶接式スライドプレート
長方形)
タイプ 70 11 1. ~ 70 48 1.
材質:S235JR
表面:溶接可能プライマー
6桁目には運転温度による数字が入 ります。
スライドプレートの摩擦係数は7.11 ページの表を参照。
溶接式スライドプレート
円形)
タイプ 70 05 1. ~ 70 20 1.
材質:S235JR
表面:溶接可能プライマー
6桁目には運転温度による数字が入 ります。
スライドプレートの摩擦係数は7.11 ページの表を参照。



70


x 1802502251504146.1 70 46 2.498300100020030022180 x 2802502252504149.0 70 47 2.6453841280200390222 x 180 x 18025022530041411.7 70 48 2.8254921640200490222 x

70 08 2.331965851252265105121.2
70 10 2.50301001001502280125141.6
70 13 2.905719013018022110155142.5
長方形、長辺部取付) タイプ 70 11 2. ~ 70 48 2.
表面:溶融亜鉛めっき
6桁目には運転温度による数字が入 ります。
スライドプレートの摩擦係数は7.11 ページの表を参照。
ボルト式スライドプレート 円形) タイプ 70 05 2. ~ 70 20 2.
表面:溶融亜鉛めっき
6桁目には運転温度による数字が入 ります。
スライドプレートの摩擦係数は7.11 ページの表を参照。
ボルト式スライドプレート
長方形、短辺部取付)
タイプ 70 12 3. ~ 70 48 3.
表面:溶融亜鉛めっき


6桁目には運転温度による数字が入 ります。
スライドプレートの摩擦係数は7.11 ページの表を参照。
注文要領:
ボルト式スライドプレート タイプ 70 .. 3.
材質:S235JR
表面:溶接可能プライマー
注文要領補足: スライドプレート 70 .. ..-MB

スライドプレート タイプ 70 .. ..-MB 垂直状態または頭上状態での取付け用
8 CT GROUP








サポート設計のための 高度な解決方法
LISEGA独自のモジュールシステムを前提として、高度 に洗練された設計用ソフトウェアが開発されました。
これにより設計効率の向上、品質の改善とプロジェク トにかかわる時間の大幅な短縮が可能になりました。
プラントのモデル設計はCADやCAEシステムにより実 施されます。 LICAD® から種々のCADシステムへの統 合機能により、配管システムを配置する際の効率が驚 異的に改善されています。
LICAD® プログラムはこの分野に新しい規範を取り 入れました。これまで何時間もかかっていたサポート 図面や材料表の作成作業が数分間でできるようになり ました。 LICAD® は高度なフロントエンドプログラ ムで、ひとつのソースから現在使われているすべての CADプログラムへ必要なインターフェースデータを供 給します。
設計品質の点からもこの単一ソースの機能は特に重 要です。
LICAD® のユーザーがさらに広い範囲で適用できるよ う、LISEGAは追加ソフトウェアを開発しました。全体 のパッケージには次のものが含まれます:

LICAD® は LISEGA SE社の登 録商標です。
他のすべての製品、字体、会社 名はそれぞれの会社の商標また は登録商標です。
エクスポート機能によりサポートモデ ルを複雑な3Dモデルに統合することが できます。
応力 解析 3D 計画

鋼構造物 パイプ サポート LICAD
プラントの計画
パイプサポートの計画及び設計用プロ グラムLICAD®
表とデータベースのインポート及びエクス ポート用インターフェース
3D-CADコンポーネントとのインターフェース さまざまなCADプログラム用の2D/3Dライ ブラリー
最新版プログラムのダウンロードや、図面や注文 などのプロジェクト情報伝達のためのインターネ ット接続システム
応力解析や鉄構構造物用ソフトウェアとのインタ ーフェース

必要性は最初 – 設計作業は最後
複雑な配管システムの計画を最適なものにしていくた めに多数の段階があります。パイプサポートの設計は 全体工程の最終段階で行われるため、必然的に、その 着手が遅すぎる場合がよくあります。現地での配管 システムの最適な据付のためにはサポートは前もって 必要になりますが、これはまさに一連の計画工程の最 後になっています。不必要な遅れを避けることは重要 で、時間の要素は決定的です。
LICAD® は計画作業を加速します LISEGAのパイプサポート設計プログラムである LICAD®は、効率において最高の水準にあります。手間 をかけてカタログを熟読したり、苦心して材料表を作成 することはLICADにより過去のものとなりました。サポ ート一式の設計で、多大な費用と労力をかけて人力で計 画し図面化する必要はもはやありません。何時間もかけ て作成していたものが、マウスをクリックするだけでコ ンピューターにより数分間ででき上がります!

効率的なパイプサポート 設計ソフトウェア
最新のバージョンではメニュー 画面及び印刷において以下の言 語が利用可能です: 中国語、ドイツ語、英語、フラ ンス語、イタリア語、日本語、 ポーランド語、ポルトガル語、 ロシア語、スペイン語、ハンガ リー語
LICAD®により、計画から出荷までのすべての過程 で大きな時間削減が可能になります。たとえば、LICAD® のデータはコンピューター化された注文リスト として電子メールにより直接送ることができ、その日 のうちに処理されます。これは注文納期が切迫してい るときに特に効果的です。
LICAD® は無料でダウンロードして利用できます。
LICAD® から作成した AutoCAD® の図面

自由な座標軸の設定
LICAD® の操作は簡単です
個々のサポート点の関連データは、プログラムコントロ ールメニューを使用して入力します。最適な製品の組合 せを見つけるのに必要なパラメーターは6つだけです。
配管径 流体温度 運転時荷重 移動量 取付け高さ サポート形状
この入力値から、適切なサポート部品構成が自動的に作 成されます。スプリングハンガーやコンスタントハンガ ーの最適な選定も自動的に行われます。

図面編集のいろいろなオプション項目
LICAD® 図面
この時、ASME B31.1、VGB-R 510 L、DIN EN 13480に従ったトラベル余裕代や荷重余裕代などのお 客様の特定要求や、その他の最適なパラメーターを考慮 することができます。これは関係するオプションメニュ ーに入力することにより対応します。
この情報を考慮しながら、LICADにプログラムされたア ルゴリズムは最も経済的な製品を選定します。
作成されたサポート構成は完全なアセンブリーとして自 動的に保存され、いつでも図面として印刷したり変更し たりできます。図面は正尺度で、部品リスト、重量、材 質などすべての関連する詳細を含んでいます。また、ロ ケーションプランやその他の自由に編集可能な情報など を持たせることもできます。
LISEGAモジュールシステムが基本です プログラムの基本はデータベースシステムで、その中に すべてのLISEGA標準製品が絶対的な機能性を持つモジ ュールシステムとして保存されています。荷重と接続方 法について完全に互換性のある12,000以上の標準製品 と、100種類以上の標準形状で実用上ほとんどすべての 一般的な取付け状態をカバーしています。

一目でわかるすべての基本機能

わかりやすく配置された、サポートの基本データ入力画面

設計されたサポートと詳細な部品リスト
補助鋼材の設計
LICAD® は構造物への接続部品から配管接続部品まで
の一連の部品を標準サポート部品の組合せによって作成 します。場合によっては、既存の構造物へつなぐ補助的 な鋼材が必要になります。(二次鋼材)
特別なインターフェースによって、LICAD® の設計デ ータは他のCADプログラム( AutoCAD® 、MicroStation®など)にエクスポートでき、必要に応じて補足で きます。
干渉チェック
大規模なプラントでは、建屋や鋼構造物、主要機器や 配管システムなどの設計は3D CADプログラムによって 行われます。
たとえば、Smart™ 3D (Intergraph)、PlantSpace (Bentley Systems)、Plant 3D (Auto DESK) あるいは PDMS™ (AVEVA)などです。計画
過程においての干渉を避けるためには、すべてのパイ プサポートを含むことが必要になります。

LICAD® は計画のコストを 50%削減します
LICAD® はどんなPC上でもWindowsでスムーズに作動 し、簡単に操作できます。優れた有効性により、LICAD® はサポートの計画において多くのエンジニアリ ング会社で不可欠のツールになっています。50%に達 する潜在的なコスト削減は簡単に無視することはでき ません!
TC(全コスト) LABを使用しない場合のコスト
LABによるコスト削減の可能性 (LAB = LISEGA Application Benefits:LISEGA製品の適用により得られる利益) 通りの記号と寸法が記入されたロケーションプラン
TCM(全コスト最小値) LABを使用した場合のコスト
計画
発送
LICAD® はよく知られた CAE、CADや鋼構造プログラ ム用に、広い範囲のインターフ ェース及びコンポーネントライ ブラリーを有しています。
これは配管システムを設計する ときに、資源を活用して大きな 時間短縮をもたらします!
インターフェース及びCAEシステム
広い範囲のインターフェースがCADやCAEシステム とのデータのインポート及びエクスポートを可能に します。
サポート部品の選定は、配管システムの配管計算から の設計データにより行われます。CAEシステムのひと
つに ROHR2 ® プログラム(Sigma Co.)がありま す。これは複雑な配管システムや一般的な骨組み構造 物の静的あるいは動的な解析に使用されています。


ROHR2®による配管応力解析


CAESAR II®による配管応力解析
AutoPIPE ® (Bentley systems) または CAESAR II ® (Intergraph Co.) からのデータは連続的に転送 され適切なサポート選定に使用することができます。 サポートの作成後、CAEシステムからのデータは直接 CADプログラムに送ることができます。
この手順により、複雑な配管システムの設計におい て、大きな効率向上と時間短縮が可能になります。
これらのCAEシステムとのインターフェースは LICAD® の基本パッケージに含まれます。オプション のインターフェースはLISEGAホームページからダウ ンロードできます。

設計データのインポート

CAESAR II®からLICAD®への設計データのエクスポート
CADプログラムへのインターフェース 定義されたインターフェースを通して、LICAD® の サポート設計データを主なCADプログラムへ特別 な作業なしに正尺度で変換できます。LICAD® は DXF、LOF、L3D及びITMのエクスポートフォーマッ トに対応しています。データはグラフィック情報と設 計データの変換に使用されます。データのインポート 用に関連する追加のアプリケーションがCADシステム で利用できます。

AutoPIPE®での配管システム
DXFエクスポートファイルにより、寸法決定されたサ ポート設計データは部品リスト、ロケーションプラ ン、タイトル欄などと共にCADプログラム(AutoCAD® 、MicroStation®など)へエクスポートでき ます。このインターフェースはLICAD® の基本パ ッケージに含まれます。エクスポートでは、材料表 (STL)及び設計データ(TEC)のファイルも作成さ れ、いろいろな用途に使えます。
3D CADプログラムへのエクスポート
コンポーネントライブラリーを使用して、LICAD® で作成された図面をいろいろなCADプログラムのアド オンで3D図面へ変換できます。可能なプログラムは 以下のとおりです:
AutoCAD®, Autodesk
AutoCAD® Plant 3D, Autodesk
MicroStation®, Bentley Systems
SmartPlant ® 3D /Smart™ 3D, Intergraph®
PDS ®, Intergraph® SUPPORT MODELER ®, Intergraph® 上記のプログラムでは、関連するモジュールのアップ ロードとインストールが必要です。
AVEVAのソフトウェア PDMS™ ではアドオンが登録 されていません。データのインポートとエクスポート ができる拡張メニューが利用可能です。

AutoPIPE®のハンガー選定の設定
さまざまなシステム用のLICAD® プラグインも利用可 能です。これらは、サポートを3Dモデル上で対話型 で設計する場合に使用します。プラグインの利点は、 サポート接続点と配管径、取付け高さの幾何データ と、必要により設計データが直接プログラムへエクス ポートされることです。すなわちモデル上で計測する 必要がありません。サポート一式は自動的に3Dモデ ル上に表示されます。

LICAD®からデータをインポートしたPDMS™上のモデル
システムによっては、材料表の属性もインポートされ ます。
重要:プラグインを有効にするにはLICAD® をそれぞ れのワークステーションにインストールする必要があ ります。







コンポーネントライブラリー
2Dや3Dモデルでの設計用として、以下の主要なCADプ ログラムで包括的なLISEGAコンポーネントライブラリ ーが利用できます:
AutoCAD®, Autodesk AutoCAD® Plant 3D, Autodesk MicroStation®, Bentley Systems SmartPlant ® 3D / Smart™ 3D, Intergraph® PDS ®, Intergraph® PDMS™, AVEVA™
SUPPORT MODELER ®, Intergraph® TEKLA Structures, TEKLA®


鋼構造物用プログラムへの インターフェース
LICAD®により、いろいろなケースでの最適な標準サ ポートの形状が決定でき、これにより関連する個々の 部品を含む荷重チェーンが指定されます。
プラントの建設において、標準サポートは配管システ ムと構造物を接続する部材です。理想的な場合、それ らはプラントの構造物に直接接続できますが、次のス テップが必要になる場合も多くあります。すなわち、 接続要素として追加される鋼構造物部材(二次鋼材) の使用です。そのため、構造物のプログラムに標準 サポートを表示できることは大きな意味があります。 このため、LICAD® は鋼構造物プログラム(TEKLA Structuresなど)へのインターフェースを提供しま す。プラグインの機能により、LICAD® は構造物プロ グラムに統合され、サポートはモデルの要求事項に従 って直接計画できます。

TEKLA Structures用のLICAD® プラグイン
3Dモデルの簡単なモデリングと 迅速な変更 モデル上の他のすべてのプラント構成機器との干渉チ ェックの実行が可能で、これは複雑なプラントの計画 になくてはならないものです。

TEKLA Structuresでの対話型で設計されたサポート

構造物とのイ ンターフェースの開発により、LISEGA は莫大な時間投資の減少と計画過程の品質向上ができ るツールを提供します 。

Tekla® で参照された一次構造物と配管システム及びサポート
LICAD® や他のソフトウェアパッケージは常に更新さ れ拡張されています。適用できるプログラムのバージ ョンやインターフェースはLISEGAのホームページで 確認して、ダウンロードできます。
LICAD ® のソフトウェアは無料で利用できます。

必要なライセンス番号は、自動的に電子メールでユー ザーに発行されます。ライセンス番号がさらに必要な 場合は電話でも入手できます。
Zusatzleistungen und Service
追加サービス 、 エンジニアリング、現地でのサービス
PRODUKT 9 GRUPPE
製品 グループ

エンジニアリング、現地でのサービス
目 次 ページ
追加サービス
現地でのサービス
カタログ STANDARD SUPPORTS に記載されて いるLISEGA製品群は、工
業用プラントの配管システ ムを適正に支持できるよう 最新の技術開発を具体化さ せています。
関連する国際的な規定を広 い範囲で満たしています。
特別な適用分野
記載されている標準品は、一般的な適用分野をカバー します。一方、原子力や海洋上の設備などの特定分野 では、材料の品質や腐食防止に対する追加対策が必要 になる場合があります。お客様の特別な仕様の実行は 総合的な品質マネジメントシステムによって保証され ます。必要な証明書はご注文に応じて提供されます。
サービスの範囲
LISGEAが提供するサービスは製品に係わるものだけ でなく、製品の適用に係わる範囲のサービスを含みま す。エンジニアリングの分野では、配管システムの設 計からサポートの計画までの一連の過程を最新の3D設 計環境で行います。サービスの分野では、試運転での 通常のサポートの点検と評価を行います。特別に開発 されたサポート設計用のソフトウェアにより、3D CAD 上で極めて効率的なサポート設計が利用できます。
LISEGAの標準プログラムは、目的を明確にした追加 サービスにより特定の要求に対応できるようになっ ています。これにより、幅広い製品の適用分野におい て、LISEGAは最適なサービスを提供します。主要な追 加サービスはLISEGAのモジュールシステムの中で標準 化され、製品グループ 9としてまとめられています。
9.1 指定荷重への設定
コンスタント及びスプリングハンガー・サポートは、 コンピューター制御により荷重とトラベルを測定する 油圧式試験装置により冷間時荷重に設定して、ロック されます。
9.1.1 ロック装置の保管用金具
ご要望により、スプリングハンガー・サポートの本体 にロック解除後のロック装置を保管する金具を取付け ることができます。コンスタントハンガーには標準装 備されています。

9.2 品質保証
9.2.1 検査記録
ご要求により、コンスタントハンガー、スプリングハ ンガー及びスナバーの機能証明として、数値を記録し た検査記録を提出することができます。
9.2.2 使用中試験
LISEGAの工場あるいは可搬式試験装置により直接プ ラント内で、すべてのメーカーの機械的に作動する製 品の使用中試験を実施することができます。
9.2.3 材料証明書
ご要望により以下の材料証明書を提出することが可 能です。
9.2.4 供給者証明書
製造及び発送が注文どおりであることを、DIN EN 10204-2.1に従った供給者証明書で確認できます。
9.2.5 材料証明書
DIN EN 10204-2.2
カタログ製品の使用材料を、DIN EN 10204-2.2に従 った材料証明書で確認できます。

製品の図書の編集
9.2.6 試験証明書
DIN EN 10204-3.1
コンスタントハンガーやスプリングハンガーのばねな ど直接的な力を受ける部品は、DIN EN 10204-3.1に 従った証明書を提出できます。
9.2.7 完全な材料追跡性のある
試験証明書
DIN EN 10204-3.1
製作を別工程で行うことにより、完全な材料追跡性を 持つカタログ製品の、DIN EN 10204-3.1に従った証 明書を提出できます。
9.2.8 事前審査図書
標準化された製品は、KTA 3265.3及びVGB-R 510 L に従った適合試験及びタイプテストにより、独立検査 機関により幅広く認証されています。
非標準製品などの特殊な設計や、他の規格による設計 においては、設計図面、部品リスト、計算書、試験手 順、溶接計画などの事前審査図書の作成が可能です。
9.2.9 さらに厳しい品質要求
原子力設備のようにさらに厳しい安全性と品質の要求 がある分野では、最も高いレベルの品質保証プログラ ムが適用されます。製造過程のすべての段階で、KTA やASME Section III、NCA及びNFの規格の品質規定 に適合する定められた手順が適用されます。
特に以下の項目が考慮されます:
承認された供給者からの材料入手 完全な材料追跡性 厳格な製造監督
すべての範囲は完全に文書化されます。

電気泳動塗装
標準の表面保護処理に加え、技術仕様0.10ページ以降 の特別な腐食防止を提供できます。


ハンガー部品の仮組み立て 特別な処理
標準仕様の在庫品に加えて、協議により特別な腐食防 止を適用することができます。この場合、別工程での 製造が要求されることがあります。
9.4 仮組み立て
特に指定がない場合、製品は供給の単位でタイプごと にまとめて梱包されます。
9.4.1 ハンガー部品の仮組み立て
現地での簡単な取り扱いと組み立て時間短縮のため に、それぞれの部品はサポート図面に従って仮組み立 てして梱包、マーキングされます。
コンスタント及びスプリングハンガー・サポート、大 型のパイプクランプ(かさの高い製品)はより簡単な 取り扱いのため組み立てずに、適切にマーキングされ ます。
9.4.2 パイプクランプ及びクランプベース の仮組み立て パイプクランプ及びクランプベースはボルト止めさ れ、完全なユニットとして供給されます。
特に指定がない場合、製品はタイプごとに分類して梱 包され、数量、タイプ番号及び注文番号がマーキング されます。ご要求により、追加のラベルとマーキング を適用できます。
9.5.1 個々の部品のマーキング
ご要求により、すべての製品はタイプ、サポート番 号、あるいは注文番号を個々にマーキングすることが 可能です。
9.5.2 2枚目の銘板
ご要求により、スプリングハンガー及びコンスタント ハンガーに2枚目の銘板を取り付けることができます。
9.5.3 2枚目の荷重及びトラベルスケール
ご要求により、コンスタント及びスプリングハンガ ー・サポートに2枚目のトラベルスケールを取付ける ことができます。また、コンスタントハンガー・サ ポートに2枚目の荷重スケールを取付けることができ ます。
種々の要求に対し、適切な梱包形態が提供できます。

仮組み立てして梱包、マーキングされたハンガー部品
9.6.1 内陸輸送梱包
道路あるいは鉄道輸送用には、フォークリフト用のス キッド付きの頑丈な木製のすかし箱またはパレットを 使用します。
9.6.2 海上輸送梱包
海上輸送用には、フォークリフト用のスキッド付きで クレーンでの搬送用に側板を補強した特別な木箱を使 用します。箱の内側は湿気を防ぐためプラスチックシ ートで覆われます。
その他の特別な梱包形態は詳細協議により ます。
9.6.3 輸出の管理と輸送手続き
世界的に活動する輸出企業として、LISEGAとその子 会社はすべての通関業務と輸出規制を満たすことに完 全な責任を持ちます。
輸出管理を確実に、そして適切に実行するために LISEGAは法的要求に対応しつつスムーズで効果的に 作業が流れるような体制を構築しました。
LISEGAは“AEO-F(Authorized Economic Operator, Full)”の認定を2009年に、“特定荷主(Known Consignor)”の認定を2012年3月に取得し、サポートを確実に 供給するための必要条件をすべて満たしています。
AEOの証明により認められた商品輸出の迅速化と特恵 の独自申告による通関業務の簡素化、さらに、“特定 荷主”の認定による航空輸送での梱包の管理当局の承 認が不要になったことは、LISEGA製品の間違いのな い特恵輸出手続きに大いに寄与しています。
輸出部門の人員は輸送手続きに関する総合的で常に最 新の専門知識を有しています。
出荷の条件によりLISEGAが通関に責任がない場合で も、お客様のご要望により税関の代理権利を受けて、 直接代理人の形でこの業務をお受けできます。
輸送手続きの優れた能力は、LISEGAでの梱包とマー キングの高い標準ともあいまって、内陸、海上及び航 空輸送の分野におけるすべての国際的な標準化された 規制をカバーします。このことは多くのお客様から賞 賛を受けています。
ご要望により、製品を建設現地またはご指定の場所へ 輸送する手続きをお受けできます。

プロジェクト関連のオーダー処理


海上輸送梱包 出荷部門の一部
パイプサポートを配管及び プラント計画へ適切で機能 的に統合することは、配管 システムの長期的な挙動に 決定的な影響を持っていま す。よって、サポート設計に は配管自体と同等の注意を 払わなければなりません。 この点で、製品の選定、最 新の設計ソフトウェアの利 用と計画するエンジニアの 長い経験は設計品質に決定 的な影響を持ちます。
エンジニアリングとサポート設計
サポート計画において、品質に関する厳しい要求に加 えて、余裕のないスケジュールと経済的な目標の厳し い要求を満たすことは重要です。プロジェクト全体の 予算と進捗の管理を危険にさらさないために、計画段 階全体をその業務を専門的に行うエンジニアリング会 社に外部委託することがあります。
LISEGAはサポート技術で50年以上にわたる経験と知 識を持つ専門家として、複雑な計画作業の実施に携わ ってきました。高度に教育され経験豊富な技術者やエ ンジニアをすべてのLISEGA所在地に配置しています。 国際的にまたがるプロジェクトでは、必要に応じてそ れぞれの場所の技術部門が連携して働いています。
LISEGAの計画作業の専門知識を活用することによ り、お客様に以下の利益がもたらされます:
自身の人員展開の経済的な制限
経験豊富な技術者による高度な安全性と専門 的な仕事の実行
“単一ソースからすべて”の原則による、発注 から出荷までのプロジェクト全体の迅速で柔 軟な処理
素早い処理による短期間での出荷 完全にコンピューター化された図書 高度に訓練された専門家がフォローアップサ ービスに待機
プラント全体の二次鋼材を含むパイプサポートが、立 案・計画され、図面化されます。LISEGAモジュールシ ステムと数十年間の経験に基づいて、構造物への取付 け部品から配管接続部品までの一連の部品がすぐに取 付けできる状態で標準のサポートから構成されます。
LISEGAの標準品にない製品(アンカーなど)が必要 な場合でも、LISEGAは適切な解決策を提供します。
国際的に認知されている技術規格や基準と、お客様の 仕様が考慮されます。
関連する配管応力解析データと配管システムの詳細な 配置計画、建屋の状況を参照してサポートの形状と寸 法が決められます。
LISEGAのLICAD® プログラムに加えて、サポート情 報の2Dまたは3Dモデルへの効率的な変換と図面の経 済的な作成に最新のソフトウェアが適用されます。現 在、以下の標準的なプログラムが使用されています:
LICAD® AutoCAD® MicroStation® PDMS™ STAAD.Pro® 二次鋼材の静的/動的計算) SmartPlant ® review Navisworks® ROHR2 ® CAESAR II ®


以下に一例として、適切なLISEGAサポートを設計す る7段階の計画手順を示します。必要性と仕様によ り、エンジニアリングのサービスは個々に提示が可能 です。
配管システムの計算
新設あるいは既設プラントのサポート点について、以 下の荷重ケースが一般的に計算されます:
1. 一次荷重
– 自重及び内圧
2. 二次荷重(熱膨張)
– 運転荷重
– 設計条件
– ボイラー停止時
– (ポンプのAB並列運転)
3. 短期荷重
– 地震
– 風圧
– 圧力衝撃荷重
4. 試験荷重
– 水圧試験
– 酸洗
規定条件と設計情報に基づいて、構造物への取付け 部品から配管接続部品までの一連の部品構成が、す ぐに取付けできる状態でLISEGAの設計プログラム LICAD® により作成されます。
計算には通常ASME B31.1、ASME B31.3、DIN EN 13480の規格が適用されます。注文時には、要求され る規格の発行年度をご指定ください。
既設のプラントでは、運転上の安全性の理由から配管 システムとサポートを最新の技術的な要求にあわせ更 新することがよくあります。オリジナルの配置設計 の計算書類が十分そろっていないこともよくあります が、ご要望により、こういった場合の配管システムの 応力解析も提供可能です。
計算結果とお客様の仕様にしたがって、構造物への取 付け部品から配管接続部品までの一連の部品構成が設 計プログラム LICAD® により標準のサポートから作成 されます。
変位量+回転 荷重とモーメント サポート点
ステップ1:配管応力解析 (ROHR 2 ®):変位量/回転/荷重/モーメント (反復計算による配管応力解析)
ステップ2:LICAD ® によるパイプサポート選定

ステップ3:3Dモデル上での技術データと周囲環境のチェック (PDMS™, PDS ®, SmartPlant ®など)

ステップ4:LICAD ® のサポートを3Dモデルに統合して干渉チェックし、二次鋼材を追加
3Dでのサポート設計
3Dでのパイプサポート設計では、配管システム、鋼 構造物、建屋、機器などのモデル全体と必要なデータ ベースをお客様に提供していただきます。さらに、パ イプサポート設計のための特定の要求事項があれば指 示してください。
サポート設計は、必要な二次鋼材と共に3D (PDMS、SmartPlant)の中で直接計画され、配置され ます。 LICAD® で作成した一連のサポート部品はイ ンターフェースにより3Dモデルへインポートされま す。必要な二次鋼材はPDMSの中で直接追加します。
最後に、干渉チェックを行います。お客様は干渉のな いことをチェックしたサポート設計品の3Dモデルデ ータベースを受け取ります。
他のほとんどの3Dプログラムでも、LISEGAはビューワ ーを使ってサポート設計に必要な特性を編集できます。
MicroStation® による PDS ® 用3Dモデルの作成
MicroStation® での3Dモデルの作成では、まずスケ ッチからパイプサポートの2D表示を作成します。2Dデ ータは LICAD® により3Dデータに変換され、インタ ーフェースにより MicroStation® の3Dモデルへエク スポートされます。必要な二次鋼材は3Dモデルで追加 します。PDS ® では完成した3Dモデルを干渉チェック に使用できます。
図面の作成
2Dの図面は直接 PDMS™ のモデルから各断面の図が DXFフォーマットで作成されます。部品リスト、ロケ ーションプランやすべての技術仕様がデータとして保 存され、その後も編集ができます。必要があれば、図 面にサポートのアイソメトリック表示が可能です。
ステップ5で自動的に作成された図面から、DWG (AutoCAD®)、 DXF または DGN (MicroStation®) フォーマットの製作用図面が作成されます。
ここには、溶接指示や穴あけ位置など据付に必要なす べての情報が記入されます。
タイトル欄は個別に設定できます。
ステップ5:3Dモデルからの、部品リスト、荷重、移動量、ロケーションプランを含む2D図面 ステップ6:断面や部分詳細図を追加した詳細図面(据付用図面)の作成
接続部の荷重を含む二次鋼材の 静的強度計算
LISEGAはAISC規格またはEurocode 3に従っ た二次鋼材の寸法決定についてのデザインレ ポートサマリーを提出できます。このサマリ ーは、 STAAD.Pro® プログラムから提供さ れます。

ステップ7: 強度確認書の作成(オプション) ・ 構造物への接続部を含む二次鋼材(静的) ・ アンカー ・ 溶接部
アンカーの強度確認書
ほとんどのメーカーのアンカーについて、設計 プログラムによる確認書を提出できます。経済 的な計画のために、個々の確認書を廃止できる 標準が開発されました。ご要望により、必要な 図書を作成できます。
溶接部の強度確認書
指定された規格に従って、個々の構造物への 取付け溶接部の確認書を提出できます。



3Dモデル上の複雑な二次鋼材の設計を含むパイプサポート
プラントでのサービス
欠陥が生じたパイプサポートにより発生する応力やひ ずみは、プラント運転中に故障や破損のリスクを増加 させ、プラントに損害を与えることがあります。
パイプサポートによく生じる欠陥には以下のものがあ ります:
不十分なサポート設計 不適切な据付 正しくない荷重設定 不適切な配置
不十分なサポート部品の品質
建設後長期間経過したプラントでは、スプリング及び コンスタントハンガーの特殊処理されていないばねは 問題を生じることがあります(1.15ページ参照)。時 間と共にへたりが増加することにより支持力が低下し ていき、生じた荷重差により、配管接続部などに過大 な応力が生じることもあります。適切な時期に点検す ることにより、危険な応力を素早く特定し排除するこ とが可能になります。

建設現場でのLISEGAサービスチーム
この特別なサービスのために、LISEGAはグループのす べての所在地に訓練され経験豊富な専門家を擁し、国際 市場におけるリーダーとしてのサービスを提供します。
専門家は配管の熱移動をチェックし、サポートシステ ムを点検します。特別なソフトウェアを使用して点検 結果を文書化し、詳細な報告書を作成して適切な解決 策を提案します。
サービスチームはパイプサポートのサービスを実行す るために特別に訓練されており、品質管理規制と安全 指針に従って作業します。
配管システムの運転時の安全性 とプラントの長期間の寿命は、 使用されているサポートの状態 と機能性に大きく依存します。
特に古いプラントでは、費用 のかかる損傷や故障を避ける ため、配管の熱移動とサポー トの状態の定期的な点検が必 要です!

ハンガーの点検記録

パイプサポートの点検

可搬式試験装置による現地での コンスタントハンガーの性能試験
サービスの提供範囲は以下のとおりです: パイプサポートの点検
パイプサポートの一般的な状態の点検 スプリングハンガーの荷重とトラベルのチェック コンスタント及びスプリングハンガーの性能試 験。試験は現地での可搬式試験装置またはLISEGA工場での固定式試験装置により行います。
配管自体の一般的な状態や必要により幾何学的な 位置の点検
配管システムの3平面での移動の自由度の点検 すべてのサポート点の上下移動量と、配管シス テム接続部及び選択された個所の3平面の移動量 の計測
古いプラントでのパイプサポートの更新や改造の 設計と配置
プラントでの計測作業
空間での拘束で生じた問題の解決策の確立

配管システムの移動量のグラフ
LICAD® 及びAutoCADを使用したパイプ サポートの設計
部品リスト及び材料表の作成

配管システムの点検による検出項目の協議

配管システムのcold/hot位置
据付、試運転時の工事指導
材料の受け取りと管理
倉庫保管品の整理と管理 サポート部品の組み立てと配置 指定された場所へのサポートの据付 据付されたサポートへの配管据付の指導 図面と据付及び取扱説明書に従ったサポー ト据付状況の点検
要領書に従ったサポートのロック解除と試運 転準備
試運転後の荷重とトラベルのチェック 3平面での配管システムの移動の自由度の点検 荷重の差異があった場合のハンガーの再調整
すべてのメーカー品のスナバーの試験と保 守点検
異常な兆候に対する目視点検
要求事項に従ったスナバーの取り外しと 外観や周囲状況の文書化
現地での可搬式試験装置またはLISEGA 工場の固定式試験装置による性能試験 スナバーの分解と個々の部品の摩耗や損 傷の点検

シール材、作動油及び摩耗のひどい部品 の交換
試験要領及び仕様書に従った性能試験 現地でのスナバーの再取付け 試験記録の作成
LISEGAのサービスは特にパイプサポートとその使用 状況に幅広く適用されます。LISEGAのサービスを活 用することにより、複雑な配管システムの機能上の安 全性と長寿命に大きく貢献します。


現地での可搬式試験装置による他メーカー製スナバーの試験
LISEGA SE - Germany
Gerhard-Liesegang-Straße 1
27404 Zeven
Postfach 1357
27393 Zeven
Tel.: +49 (0) 42 81-713-0
Fax: +49 (0) 42 81-713-214
E-Mail: info@de.lisega.com www.lisega.de
LISEGA SAS - France
Z.I. La Marinière 21, Rue Gutenberg 91919 Bondoufle, Cedex
Tel.: +33 (0)1 60 86 40 21
Fax: +33 (0)1 60 86 48 28
E-Mail: info@fr.lisega.com www.lisega.fr
LISEGA Inc. - USA
370 East Dumplin Valley Rd. Kodak, TN 37764
Tel.: +1 (0) 865 940 5200
Fax: +1 (0) 865 940 5140
E-Mail: info@us.lisega.com www.lisega.com
LISEGA Ltd. - England
Unit 3, Washington Centre Halesowen Road Netherton
West Midlands, DY2 9RE
Tel.: +44 (0) 13 84 458 660
Fax: +44 (0) 13 84 213 301
E-Mail: info@uk.lisega.com www.lisega.co.uk
LISEGA PST Co. Ltd. - China
LISEGA Pipe Support Technologies (Shanghai) Co., Ltd.
7800 Songze Av., Qingpu Industrial Zone
Shanghai, ZIP 201700, PR China
Tel.: +86 (0) 21 69 21 2888
Fax: +86 (0) 21 69 21 2999
E-Mail: info@cn.lisega.com www.lisega.com.cn
LISEGA India Private Limited - India
Plot. No.: 111, GIDC Halol -2, Halol Maswad Industrial Estate, Halol, Panchmahal - 389350
Tel.: +91 (0) 26 76 227 010
Email: info@in.lisega.com www.lisega.co.in