GRUPO 3_PROPUESTAS EN SIETE TECHOS

Page 1

UNIVERSIDAD NACIONAL PEDRO RUIZ GALLO

FACULTAD DE INGENIERÍA CIVIL, SISTEMAS Y ARQUITECTURA

ESCUELA PROFESIONAL DE ARQUITECTURA

GRUPO 3

PROPUESTAS SIETE TECHOS

ACONDICIONAMIENTO AMBIENTAL II

ARQ. DANIEL SAMILLAN RODRIGUEZ

INTEGRANTES

ACOSTA CAJUSOL LILIAN AZUCENA

COLLAZOS BARRANTES CRISTINA ISABEL

HERNANDEZ DAZA ADRIANA

REGALADO MÍREZ ADRIANA LISSETH

VENTURA AQUINO PAUL CESAR

YPANAQUE IBAÑEZ SHEYLA JARUMI

PROPUESTA

PROPUESTA N° 1

PROBLEMÁTICA

Una casa cultural es una de las mayores iniciativas en mostrar la riqueza cultural de un lugar, sin embargo el distrito de Reque no cuenta con una infraestructura que contenga el equipamiento, ni espacios necesarios para las practicas , presentaciones de las diversas actividades artísticas que se desarrollan , por lo cual es de suma importancia conseguir un espacio óptimo en el que se pueda brindar

CENTRO CULTURAL DE INTERACCIÓN EN SITIO

ARQUEOLÓGICO 7 TECHOS

OBJETIVO GENERAL

Contar con una infraestructura adecuada para la realización de las actividades culturales y artísticas del distrito reforzando así la identidad de la población recana .

OBJETIVOS ESPECÍFICOS

• Fomentar y sensibilizar a la población sobre la riqueza cultural que posee, para un mejor mantenimiento de esta.

• Que la ciudad de Reque sea un centro para actividades socioculturales a nivel local y nacional.

• Conservar las festividades y tradiciones culturales de la ciudad.

• Promover las manifestaciones artísticas y culturales a través de la difusión y fomento de la enseñanza y actividades que impulsen la libre expresión cultural.

PROPUESTA N°1

FORTALEZAS

• Incentiva e informa el conocimiento de la historia y cultura que sostiene el sitio arqueológico Siete techos tanto para las personas de la localidad como de la región.

• Disponibilidad de zonas para el uso de areas verdes

OPORTUNIDADES

• Se promueve la generación de empleos en donde permita un mejoramiento de la calidad de vida de las personas.

• Infraestructuras tecnológicas nuevas al servicio de la sociedad

AMENAZAS DEBILIDADES

• La poca disponibilidad de vehiculos de transporte hacia la ubicación de las instalaciones del centro cultural

• Carencia de arborizacion en la zona lo cual no permite una amortiguacion sonora para el Proyecto.

- Descoordinaciones en gestión de gobierno entre autoridades del sector público.

-La aparicion de fenomenos naturales (Fenómeno del Niño y Sismos)

ANÁLISIS FODA F O D A
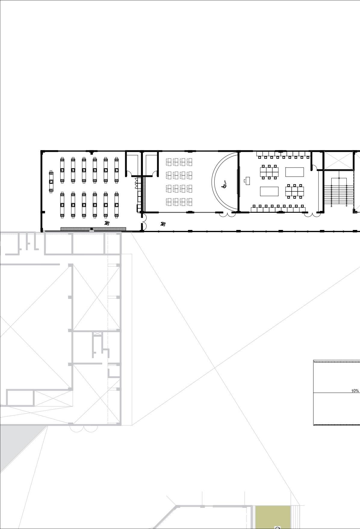
MODULOS DE TIENDA CAFETERIA SERVICIO 4 6 7 8 9 1 0 1 1 1 3 1 4
ZONIFICACION BLOQUE 1 PLA

Los espacios que llegan a encontrarse en los bloques se distribuyen en :

Stand de comidas

Stand de artesanía

Stand de libros

Stand de tejidos

Stand de coctel

Cafetería

SS.HH públicos

SERVICIOS GENERALES

Cuarto de limpieza

Cuarto de vigilancia

Cuarto de control

Cuarto de bombas

Cuarto de Electrogeno

Cuarto de Aire acondi cionado

Patio de maniobras

Plataforma de carga y descarga

NTA ESPACIOS
1 2 3
4 5 6 7 8 9 1 0 1 1 1 2 1 3 1 4 1 2 5 3

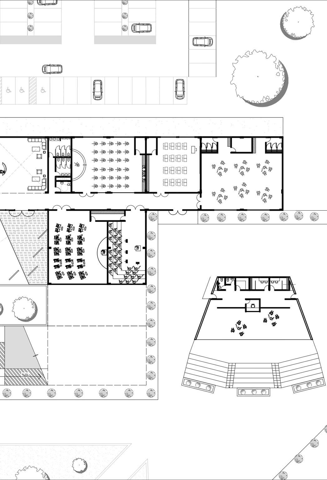
BLOQUE 2

PRIMERA PLANTA 6 6 7

PLAZA RECEPTIVA

HALL RECEPTIVO

ADMINISTRACIÓN

o Dirección General

o Oficina Administrativa

o Sala de espera

o Secretaria

o Of. de atención al cliente

o Oficina Múltiple

o ss.hh

PLAZA CENTRAL

PLAZA DE EXPOSICIÓN

o Expo virtual

SALAS DE EXPOSICIÓN

PERMANENTE

o Expo multisensorial

o Expo Arte

PLAZA DE SOCIALIZACIÓN OBSERVATORIO

AMBIENTES 3 4 5 1 2 1 2 3 4 5
7
6
ADMINISTRACIÓN AMBIENTES 1 2 2 1 SEGUNDA PLANTA SALON DE EXPOSICIÓN PERMANENTE 2 o Of. de imagen institucional o sala de reuniones o Ss.hh 3 3 TERRAZAS VERDES 3
ZONIFICACIÓN
DE EXPOSICIÓN TEMPORAL 1
1 2 2
1
SALAS
TERRAZAS VERDES 2
AMBIENTES TERCERA PLANTA

BLOQUE 3

PRIMERA PLANTA 1 2 3 4 5
MODULOS DE TALLERES MODULOS DE TALLERES
6 7 8 9 10 TALLER GASTRONOMÍA
AMBIENTES
TALLER DE
10 11 ANFITEATRO 11
1 2 TALLER ALFARERÍA
3 TALLER TEXTILERÍA 4 PLAZA DE EXPOSICIÓN - TEXTIL 5 PLAZA DE EXPOSICIÓN - ALFARERÍA 6 SALA DE ESPERA 7 TALLER DE PINTURA 8 TALLER DE LENGUA MUCHIK 9 TALLER DE DANZAS
MÚSICA

MODULOS DE TALLERES

MODULOS DE TALLERES

BLOQUE 3 SEGUNDA PLANTA
1 2 3

1 2 TALLER TEATRO

TALLER GASTRONOMÍA

3 TALLER ORFEBRERIA

4 TECHO VERDE

5 TERRAZA

6 TECHO VERDE

7 OBSERVATORIO ELEVADO

AMBIENTES
4 5 6 7

ZONIFICACIÓN ELEVACIONES

PROPUESTA

PROPUESTA N° 2

PROPUESTA N°2

CENTRO DE DIFUSION DE INFORMACION AGRICOLA

OBJETIVO GENERAL OBJETIVO ESPECIFICO

PROBLEMATICA

Un centro de información agrícola es fundamental en una ciudad para lograr que una población aumente en productividad de sus cosechas, sin embargo la ciudad de Reque tiene una deficiencia de una infraestructura de este tipo que sería de suma importancia para el desarrollo de los pobladores.

Difundir información de nuevos métodos agrícolas que va a difundir a la población, en su mayoría de la zona, con terrenos agrícolas.

Diseñar espacios de difusión e información y capacitación agrícola que beneficie, tanto a la población de Siete techos, como a Reque.

ANALISIS FODA

FORTALEZAS DEBILIDADES

Existe una riqueza en el sector agrícola y pecuario en toda la zona de 7 techos.

Existe una amplia zona pre urbana que nos permite trabajar proyectos de difusión e información para que así pueda repotenciar el sector de 7 techos

Existe poca difusión de información sobre nuevas técnicas agrícolas que ayuden a mejorar la calidad y productividad de nuestros productos propios de la región

Además de generar empleo, se incrementara la especialización en las áreas agrícolas, generando así, personal capacitado, y mayor efectividad en su producción

OPORTUNIDADES AMENAZAS

Los centros de difusión debe ir de la mano con factores de concientización a la población, para que puedan trabajar de la mano, y muchas veces los pobladores no toman en cuenta estos proyectos.

PROGRAMA

NECESIDADES PROGRAMA ARQUITECTÓNICO

ZONA ADMNISTRATIVA

ZONA EDUCATIVA

ZONA DE PARCELAS

ZONA DE COMERCIAL

ZONA DE RECREACIÓN

ZONA DE COMPLEMENTARIA

ÁREA RECEPTIVA

SECRETARÍA

DIRECCIÓN GENERAL (SS.HH. Y ARCHIVO)

SALA DE REUNIONES

ÁREA DE DIRECCIÓN

TALLERES HALL DE ESPERA ÁREA DE ESTARES

ÁREAS DE PARCELAS

BIOHUERTOS

ÁREA DE CAPACITACIÓN

CAFETERÍA ÁREA DE CONSUMO

ESPACIOS PÚBLICOS

ÁREAS VERDES

ZONAS DE ESPARCIMIENTO

ÁREA DE ESPACIOS PÚBLICOS

ESTACIONAMIENTOS

CASETA DE VIGILANCIA

ALMACÉN

CUARTO DE LIMPIEZA

SS.HH. PARA DAMAS

SS.HH. PARA HOMBRES

SS.HH. PARA DISCAPACITADOS

ÁREA DE SERVICIOS

ÁREA TOTAL: 92.80 m2 ÁREA TOTAL: 387.80 m2 ÁREA TOTAL: 4 000 m2 ÁREA TOTAL: 74.40 m2 ÁREA TOTAL: 850.60 m2 ÁREA TOTAL: 1 523.20 m2

EMPLAZAMIENTO DEL PROYECTO

El proyecto del CENTRO DE DIFUSION E INFORMACION

AGRICOLA se encuentra emplazado entre una avenida asfalta con rumbo a la bocatoma y con acceso al cerro 7 techos y una trocha carrozable con acceso al Rio Reque, este terreno actualmente es de uso agrícola

Los biohuertos se emplazan alrededor de una gran área actualmente de zona agrícola, con la finalidad que puedan tener acceso usuarios alejados del sitio actual de 7 techos

Estos biohuertos pueden ser expandidos en cantidad de acuerdo a las necesidades a futuro de los pobladores, tanto de 7 techos como de Reque

CONSTRUIR VINCULOS DE CIUDAD Y CAMPO

PERU

CENTRO DE DIFUSION E INFORMACION AGRICOLA

CAPACITACION GENERANDO CULTURA DE BIOHUETOS

LAMBAYEQUE

PROPOSITO DEL PROYECTO

BIOHUERTOS

REPOTENCIAR LA INDUSTRIA AGROPECUARI A EN EL SECTOR

GENERAR EMPLEOS, ADEMAS DE TENER

PERSONAL CALIFICADO PARA LA CAPACITACION

REN

DERS

BIOHUERTOS

UNIVERSIDAD NACIONAL PEDRO RUIZ GALLO

FACULTAD DE INGENIERÍA CIVIL, SISTEMAS Y ARQUITECTURA

ESCUELA PROFESIONAL DE ARQUITECTURA

Turn static files into dynamic content formats.

Create a flipbook
Issuu converts static files into: digital portfolios, online yearbooks, online catalogs, digital photo albums and more. Sign up and create your flipbook.