RESILIENCE AND EQUITY IN COASTAL COMMUNITIES 2/2

Page 1


RESILIENCE AND EQUITY IN COASTAL COMMUNITIES:

a case study of Ada, Ghana at the intersection of social dynamics, environmental health, and architectural design

KU Leuven Faculty of Architecture

Leyla Abou Chedid

09. Formal settlements

In Ada, we can find a good number of wealthy weekenders primarily coming from the capital city Accra, seeking rest in a different setting. Along the coastline, several chalets dot the landscape, facing the Volta River. Here, architectural diversity reigns supreme, with no discernible pattern or uniformity. Residents design and construct their abodes according to personal preferences and material choices, resulting in a somewhat chaotic aesthetic. While some structures exude a sense of individuality and charm, the lack of architectural cohesion reflects a disconnect from the surrounding natural environment and climate. This divergence from traditional design principles may detract from the overall harmony of the landscape, emphasizing the need for a more holistic approach to development and urban planning in Ada.

I find the most intriguing aspect of these weekenders' chalets to be their boat decks. These decks become the heart of their weekends, providing a shaded outdoor area. for recreation and relaxation, offering occupants a place to enjoy outdoor activities and take in scenic views. Also, it provides direct access to the water, facilitating activities such as swimming, fishing, or boating, which are often central to the weekend experience. The boat deck enhances the chalet's functionality and adds to the overall enjoyment of the weekend retreat. Typically, they hire local villagers from the area to construct them, resulting in a uniform construction process and design, mostly using wood. While some choose imported materials, others embrace local resources like thatch and palm leaves for their roofs.

Photo by author, 2024
(a) A house of a wealthy weekender. (b) Photos of boat docks found in front of the weekenders houses.

Roofing is usually in wood, thatch or even asphalt shingles.

Drawing by author, boat dock typologies in Ada. We usually find these two types, one with a shelter and one only for boat parking purposes.
Wood beam structure
Wood beam structure
Wood Frame
Wood Structure
Wood Frame Wood Structure

10. Informal Settlements

In African urban areas, informal settlements epitomize spaces and socio-economic dynamics characterized by a lack of planning, often occupying hazardous zones overlooked by formal urban planning systems (Grant 2006; Grant and Yankson 2003). Additionally, these settlements encompass activities extending onto the streets of these cities. They are essential components of African cities, profoundly influencing their economic, social, environmental, and aesthetic dimensions. Dovey and King (2011, p. 11) assert that the "proliferation and resilience" of these informal urban areas have endured numerous challenges, including threats of eviction and harsh socio-economic conditions, and persist in expanding. Thus, informal settlements in African cities can be seen as symbolic of underdevelopment, yet they demonstrate remarkable adaptability and resilience, embodying the capacity to "survive and thrive" (Roy 2011, p. 224).

Informal settlements are also prevalent in Ada. Here, local villagers and fishermen reside, deeply intertwined with the river and ocean that sustain their livelihoods. Fishing not only provides sustenance but also serves as their primary source of income. Some inhabit the inland areas, while others dwell along the coast, their lives intimately connected to the waterways.

Living conditions in these settlements are challenging, lacking basic amenities like electricity and a water system. As a result, residents resort to using the river for bathing and sanitation, with open rivers serving as makeshift toilets due to the absence of drainage systems. Housing structures vary, with some constructed from mud, primarily clay, while others utilize wood, thatch, and palm materials, all locally sourced. While this approach offers advantages such as local resilience and affordability, it also presents maintenance challenges.

Photo by author, 2024. Informal settlements found in Ada.
Sketch by author, mud house
Photo
Mud House Magic: Building from the Earth

Mud Houses

Mud houses are traditional structures made primarily from a mixture of mud, water, and sometimes straw or other fibrous materials. In Ghanaian villages, mud houses are commonly built using locally available materials and traditional building techniques. The construction process typically involves forming the mud mixture into bricks or applying it directly to a frame made of wood or bamboo. Once dried, the mud becomes hard and durable, providing insulation against both heat and cold. Typically, men are responsible for building the mud houses and the roof, while women handle the cow dung insulation afterward. This collaborative effort reflects their belief that men should do the hard work and women should contribute to the finishing touches.

Mud houses serve various purposes in Ghanaian villages, including residential dwellings, community buildings, and storage facilities. They offer an affordable and environmentally friendly housing solution, as the materials are often sourced locally, and the construction techniques have been passed down through generations. Additionally, mud houses play a significant role in maintaining cultural identity and heritage, reflecting traditional architectural styles and building methods. They contribute to sustainable living practices by utilizing natural materials and promoting a connection to the local environment.

Prepare the Foundation, by using stones, gravel, or compacted earth to provide stability and protect the walls from moisture.

Make the Mud Mixture: Mix mud with water and straw or other fibrous materials to create a strong, cohesive building material.

Shape the mud mixture into a block and start stacking it layer by layer to build a wall.

When it is done drying, build the roof structure with wood and add the thatch roofing material. Then women typically apply cow dung mixed with water to the dried walls for additional insulation and protection.

Note to ensure the longevity of the house, regularly inspect and repair any cracks or damage.

Photo by author, 2024. Old mud house, with a unusual layer of cement.

wooden roof structure with a rope running along each beam to secure the thatch layer on top

grid format placement of

wood structure
thatch roof
wood structure
Photo by author, 2024. Wood structure before the palm and thatch layers.
Photo by author, 2024. Palm and thatch houses.
Photo by author, 2024. Palm fence.

Palm Houses

Palm houses and thatched roofs are traditional architectural features found in many villages in Ghana. They are typically constructed using materials derived from the palm tree, such as palm fronds for roofing and palm stems for walls. These houses provide shelter and protection from the elements, while also serving as a symbol of local craftsmanship and cultural identity. Palm leaves are also used to build walls, creating a sense of privacy and helping to trace each one's land limits.

Thatched roofs are made from dried grasses or reeds tightly bundled together. They are lightweight, durable, and provide good insulation against heat and rain. Thatched roofs are commonly used in rural areas due to their affordability and availability of materials. Both palm houses and thatched roofs play a crucial role in village life in Ghana by providing affordable housing options that are well-suited to the local climate and environment. They also contribute to sustainable living practices by utilizing natural materials that are renewable and locally sourced.

Photo by author, 2024. Palm wall that needs maintenance.

11. Site location

With the help of my research, I believe it is crucial to ensure safe water for the everyday lives of the people of Ada. Opting for an architecture project with functions that could assist in that sector would be crucial. Creating a bath hub space with sanitary functions would contribute to breaking the cycle of the bilharzia. Pushing the people to restrain from using the rivers’ water is not easy but creating different hubs with safe water could have an impact on their current lifestyle. Having them shower, use the toilet and do their laundry all in safe and clean water at the place of using the river could already have a significant impact.

I find the idea intriguing to explore a site where formal and informal settlements converge, creating a unique intersection ripe for examination. This convergence presents an opportunity to establish a bridge between these communities, fostering connections and understanding. Moreover, situated at the meeting point of land and water, particularly along the coastline, this site holds significant potential.

A pivotal aspect of such a project would revolve around water. By creating a communal space where contaminated water can be filtered and purified, we can address issues like bilharzia while simultaneously educating the communities about waterborne diseases. This initiative aims to break the cycle of infection and mitigate its impact.

Given that informal settlements often lack proper water infrastructure, relying heavily on rivers for various needs such as sanitation and hygiene, this endeavor could mark the inception of a new water system for these communities, offering improved access and sustainability.

Water treatment
Reduce bilharzia contamination

Site

Upon examining the site, we observe an existing wall delineating the boundaries of the formal settlements. In contrast, there is a cluster of informal settlements characterized by a more chaotic layout. The site is bordered by a road to the south and a river to the north, providing access from all sides, whether by walking, biking, boating, or driving. It is important to note the sloped landscape, which presents opportunities for our design. This terrain should be considered alongside the potential impact on the water system, which could be significantly affected by our interventions.

MARKETSTALLS

The Water Sanctuary

As mentioned, to encourage the people of Ada to refrain from using river water, it is crucial to create various hubs offering safe water, which could significantly impact their current lifestyle. These hubs should include showers, toilets, laundry facilities, rainwater collection systems, a recreational pool area, and a water treatment system. These essential programs must be integrated into the architecture project. The water system on the site operates as a continuous cycle. Water is pumped from the river, filtered, and distributed for use. The resulting wastewater is then collected and returned to the filtration system, where it is cleaned and recycled, maintaining a constant flow and ensuring ongoing purification.

SANITATIONHUB

12. Atriums & Roof

The traditional architecture of the Jola people, found in the coastal rainforests of the Casamance Region in Senegal, is an example of sustainable design that has persisted since ancient times. These dwellings, constructed with mud bricks, feature a distinctive circular layout. The structure comprises a series of rooms encircling a central courtyard known as the impluvium, which is accessible through external passages (D.R. Holloway, 2009). The unique roofing design slopes both outward and inward towards the impluvium. This inward-sloping section, called the compluvium, allows rainwater to be collected in a central, low-walled cistern for drinking. This system also utilizes the principle of evaporative cooling: as water in the cistern evaporates, it absorbs heat from the surrounding air, thereby cooling the interior of the house.

The thick mud walls and thatched roof contribute to this cooling effect by shading the structure and reducing heat absorption. Access to the surrounding rooms is gained through the central courtyard, which helps maintain the cool temperature inside the house. This innovative approach demonstrates a high level of environmental adaptation and sustainable living practices.

Similar architectural techniques, known as compluvial and impluvial architecture, are found among the Yoruba cultures in southern Nigeria, as well as in ancient Greek and Roman designs. These atriums characterize the roof design as well as rainwater management.

The impluviate atrium is the most common type of atrium in Roman architecture. It features a sloped roof that directs rainwater inward toward an open central area called the impluvium, a shallow pool that collects water. The impluvium is usually positioned directly under the compluvium, which is an opening in the roof, allowing rainwater to be gathered for household use. This design provides natural light and ventilation while managing rainwater effectively.

In contrast, the displuviate atrium has a roof that slopes outward, directing rainwater away from the central open area. Instead of collecting water in an impluvium, the water is channeled to the edges of the roof and directed into external drains or cisterns. This design is less common and is often seen in areas where managing excess water away from the house is necessary.

Source: Dennis R. Holloway Architect, 2009
Functioning compluvium roof in the 1865 lavoir (public laundry-house), Baigneux-les-Juifs, France
Diagrams by author.. (a) Impluviate atrium (b) Displuviate atrium
(a)
(b)
Photo of Casamance Region in Senegal by Marie Passa, 2019

In exploring suitable roof shapes for the design, which effectively manage rainwater while maintaining adequate natural light, it may be essential to integrate both impluviate and displuviate aspects. This approach allows for optimal rainwater collection by channeling water towards the center of the roof while also facilitating drainage when necessary. The traditional roof styles observed in the Ashanti period and compound houses provide an ideal model for achieving this balance.

Diagrams testing the roof for the project.
Diagrams testing the shape of baths and relation to roof.

13. Plants in Ada

In Ada, a diverse array of greenery contributes to the local ecosystem, each with unique characteristics and benefits. The Tropical almond tree (Terminalia catappa), which grows up to 35 meters tall, provides ample shade and nutritious nuts. The Coconut palm tree (Cocos nucifera), reaching heights of 30 meters, offers versatile coconuts for food, drink, and materials.

Coconut Palm Tree (Cocos nucifera L.)
Tropical almond tree (Terminalia catappa)

The Neem tree (Azadirachta indica), growing up to 20 meters, is valued for its medicinal properties and natural pest control. Common bushweed (Flaveria trinervia), typically 90-30 centimeters tall, thrives in disturbed soils and grows rapidly. Bayhops (Ipomoea pes-caprae), a low creeping vine, stabilize coastal sands and protect against erosion. Lastly, the Water hyacinth (Eichhornia crassipes), floating on water surfaces, plays a role in water purification and provides habitat for aquatic life. Together, these plants support biodiversity, ecological stability, and the livelihoods of local communities in Ada.

Neem Tree (Azadirachta indica)
Common bushweed (Flueggea virosa) Bayhops (Ipomoaea pescaprae)
Water hyacinth (Eichhornia crassipes)

Plans

On the ground floor, all programs have access to the courtyard, which features a smaller rainwater collection pool. The layout follows a logical flow: for instance, if you want to go to the baths, you will need to pass by the lockers and changing room first to get changed. Cafeteria / Waiting Area

On this lower level, there is an informal space where people can host an open weekend fish market, fostering a sense of community. This setting allows wealthy weekend visitors and the local residents of Ada to buy fish directly from fishermen, creating exchanges and connections that promote social harmony. Additionally, there is a recreational pool, encouraging locals to enjoy safe swimming instead of swimming in the river. The pool is designed to be shallow, accommodating the fact that many locals are not strong swimmers and prefer shallower water.

Plans

This section houses the water treatment system. It is located below to allow the aerator to pump water from the river for filtration and use throughout the project. The resulting wastewater is then collected and returned to the filtration system, where it is cleaned and recycled, maintaining a constant flow and ensuring ongoing purification.

SUB-LEVEL 2

Water treatment elements

Here the water treatment process begins with an aerator pumping water from the Volta River. Then the process begins with coagulation, this is where chemicals are added to the water to destabilize and cluster together suspended particles. After that we have flocculation, where gentle mixing helps the formation of large particles. From there, the water undergoes sedimentation, allowing the heavier flocs to settle to the bottom. Following sedimentation, the water passes through filtration, where it moves through layers of sand, gravel, and

other materials to remove remaining particles and impurities. Disinfection is the final step, where chemicals such as chlorine or ultraviolet light are used to kill any remaining bacteria, viruses, and other harmful microorganisms.

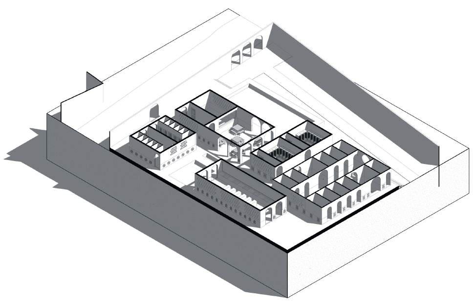
The sanitation hub is a project comprised of various blocks encircling a central courtyard. These blocks are separated by corridors and pathways extending from the walls of each block. While each block serves a distinct function, some share the same roof, providing shelter for the pathways in between.

CAFETERIA TOILETS

LAUNDRY LOCKERS

Drawings by author. In these axonometric diagrams, it is demonstrated how the different functions are repatriated and the links between them are depicted.

BATHS

15. Project details: Rammed Earth Walls

Minimizing energy usage in the construction industry emerges as a critical concern in the contemporary era. This sector stands out as the largest consumer of energy, responsible for approximately 40 % of global energy consumption. Enhancing the efficiency of building envelopes appears as a key, cost-effective strategy in reducing energy consumption within this domain. Presently, there's a notable inclination towards harnessing the potential of bio-based materials for both construction and thermal insulation. Utilizing such materials not only offers a promising avenue for sustainable development but also extends its benefits to urban as well as rural settings (Bouferra et al.,2022).

Rammed earth construction is an ancient building technique that involves compacting a mixture of soil, sand, gravel, clay, and stabilizers like cement or lime into a formwork to create solid structural walls. This method has been utilized for thousands of years across various cultures due to its numerous advantages. It utilizes natural and locally available materials, significantly reducing the environmental impact associated with the transportation and manufacturing of building materials. This makes rammed earth an eco-friendly alternative to conventional building techniques. These walls provide excellent thermal mass, which helps regulate indoor temperatures by absorbing heat during the day and releasing it at night. This thermal stability can lead to reduced energy consumption for heating and cooling, contributing to the sustainability of the building. They are inherently resistant to fire, pests, and weathering, offering long-lasting building solution.

The natural appearance of rammed earth is aesthetically pleasing, offering unique textures and colors that blend seamlessly with the surrounding environment. This aesthetic appeal is usually an important factor in the choice of rammed earth for sustainable and architecturally distinctive projects.

Using concrete, help provide a stable and level foundation for rammed earth walls. It ensuring proper support and reduces the likelihood shifting over time. This stability is crucial for maintaining the structural integrity of the building. Having a concrete, this could act as an effective barrier against ground moisture into the rammed earth walls. This barrier helps mitigate issues related to erosion and degradation, thereby extending the lifespan of the structure. Concrete base enhances the overall structural integrity of the building, particularly in areas susceptible to ground movements.

Overall, the integration of concrete bases with rammed earth construction represents a harmonious blend of modern engineering and traditional building practices. This method leverages the strengths of both materials to create structures that are stable, durable, sustainable, and aesthetically pleasing, making it a popular choice for contemporary sustainable building projects.

Section detail of rammed earth wall in connection to the roof

Roofing

Counter Battens 4x10 cm

Battens

Rafters

Locally sourced wood truss

Ceiling joist

Drainage system

concrete bond beam

Steel reinforced concrete beam

Steel reinforcement

Rammed earth wall

wall

15. Project Details

The connection of the roof to the rammed earth wall is made possible by the reinforced concrete bond beam, which provides sufficient solidity and support. Beneath the roofing, there are counter battens, battens, and rafters, all supported by the wooden truss and ceiling joists. These elements are securely linked to the reinforced concrete bond beam.

The rammed earth walls are constructed with intentional voids to facilitate good ventilation. However, given the tropical climate, it is essential to install a net frame to prevent insects from entering.

Reinforced
Concrete
Adinkra symbol
Wood frame with net to block insects from coming inside.
Breathing rammed earth walls.
Help with ventilation

Rain chains are a functional and decorative alternative to traditional downspouts, guiding rainwater from the roof to the ground or a water collection area. They enhance a home's aesthetic appeal with various designs, produce soothing sounds, and are easier to install and maintain. Rain chains are also effective for water harvesting. However, their performance may be less effective in heavy rain, strong winds, or freezing conditions. Despite these considerations, rain chains can be a charming and practical addition to homes, particularly in moderate climates.

Gutter
V-clip Bar
Skirt
[helps channel water flow]
Rain chain

16. Imagined Environments

Seating area

Courtyard
Metal
Wood beam structure
Howe wood truss
Wood frame beams

The bathrooms are designed as semi-public spaces, where each person or group has their own corner along with a shared area. The concept was inspired by local bathing practices, where people typically bathe on the riverbanks in shallow water during sunset. I wanted to preserve the cultural experience of river bathing rather than adopting a more conventional Western style. Therefore, the bathrooms are designed like shallow pools, where the water continuously changes and refreshes to maintain cleanliness. Preserving cultural practices is always crucial.

Bath space
Laundry room
Toilets

The laundry space was designed to preserve cultural practices while also emphasizing sustainability. Locals typically use plastic bowls to wash clothes by hand, often bending down or sitting in chairs. To make this process easier and more ergonomic, I recreated the traditional method but elevated the washing area to allow people to stand with their backs straight, reducing fatigue.

room

Laundry
Toilets

The main goal of the project was to create a space that raises awareness about the importance and preciousness of safe water. Instead of using basic concrete cylindrical rainwater tanks, we opted to install pool tanks for rainwater. This design choice encourages people to visibly see the water collection process and become more aware of the dangers of Bilharzia and its impact on their health.

Designing an informal space for locals to use every day was an obvious choice. It provides them with an opportunity to socialize and even sell the freshly caught fish from local fishermen. This project is truly for the people.

17. Conclusion

In conclusion, through my research and findings, I have come to realize the paramount importance of understanding one's culture to comprehend how systems operate and effectively adapt to them. Generous architecture embodies this concept, with its primary aim being to foster connections between people, spaces, and time. This project was designed to seamlessly integrate local cultural practices with sustainable design solutions. Recognizing the significance of respecting and comprehending a culture while introducing innovative solutions, this project stands as a testament to the commitment to serving the needs of the community while promoting awareness, sustainability, and cultural preservation. Though the scale of the project may not directly impact the entire Ada community, I believe it serves as a promising starting point. Bringing data to a village that lacks maps or public information presents significant challenges. By translating globally available knowledge into locally accessible resources and skills, the project achieves low-impact, low-tech building solutions.

18. Bibliography

Afram, S. O., and David Korboe. "Continuity, Utility and Change: The Urban Compound House in Ghana." Open House International 34, no. 4 (December 45–36 :(2009 ,1 https://doi.org/10.1108/ohi-2009-04-b0005

Al Jazeera English. 2015. "From Lebanon to Africa | Al Jazeera World." YouTube. October 28 https://www.youtube.com/watch?v=6p9KMLOjvhc.

Amoako, Clifford, and Emmanuel Frimpong Boamah. "Build as You Earn and Learn: Informal Urbanism and Incremental Housing Financing in Kumasi, Ghana." Journal of Housing and the Built Environment 32, no. 48–429 :(2017) 3 http://www.jstor.org/stable/44983804

Armitage, CH, and Montanaro AF. The Ashanti Campaign of 1900 Cambridge University Press, 2011

Bouferra, Rachid, Amal Hachimi, Amine Zoubir, Abdelouahab Knidiri, Said El Hasri, Lahcen Essaleh, and Mohamed Waqif. "Mechanical, Electrical Properties and Impedance Spectroscopy Characterization of Rammed Earth." Arabian Journal of Geosciences 15, no. 2022) 17). doi:10.1007/s3-10758-022-12517

Haney, Gina, Emily Williamson, and Sébastien Moriset. 2014. Asante Traditional Buildings: Survey and Condition Assessment. New York: World Monuments Fund. https://doi.org/10.58079/nai8

Holloway, Dennis. “Jola Compluvium / Impluvium House.” (2009) n.d. https://www.dennisrhollowayarchitect.com/JolaImpluvium.html.

Manful, Kuukuwa. “The Ghana Compound House Typology.” Kuukuwa, 2010. https://kuukuwa.com/blog/34ys6tmnpnkdpmedifv5c5aj45ziv4.

Micots, C. "Status and Mimicry: African Colonial Period Architecture in Coastal Ghana." Journal of the Society of Architectural Historians 74, no. 62–41 :(2015) 1. https://doi.org/10.1525/jsah.2015.74.1.41

Oyedokun, O. D. “The Rise and Fall of the Ancient Asante Empire.” Africa Rebirth, October 2023 ,29 https://www.africarebirth.com/the-rise-and-fall-of-the-ancient-asan te-empire/.

Quintana, M. “Ashanti Empire/ Asante Kingdom (18th to Late 19th Century).” BlackPast, January 2023 ,9 https://www.blackpast.org/global-african-history/ashanti-empire-as ante-kingdom18-th-late19-th-century/.

Rapoport, Amos. "The Nature of the Courtyard House: A Conceptual Analysis." Traditional Dwellings and Settlements Review 18, no. 2 72–57 :(2007). http://www.jstor.org/stable/41758328

RUTTER, A.F.,1971, “Ashanti Vernacular Architecture” in Shelter in Africa, Oliver, P. (ed.). Barrie and Jenkins, London.

UNESCO World Heritage Centre. "World Heritage and Tourism in a Changing Climate." 2021 https://whc.unesco.org/uploads/news/documents/news2-2348-.pdf

Uduku, Ola. "Modernist Architecture and 'the Tropical' in West Africa: The Tropical Architecture Movement in West Africa, 1970–1948." Habitat International 30, no. 411–396 :(2006) 3 https://doi.org/10.1016/j.habitatint.2004.11.001

Venkatarama Reddy, B. V. 2022. Compressed Earth Block & Rammed Earth Structures. Springer.

Welman, C. W. Native States of the Gold Coast: History and Constitution. London, Dawsons of Pall Mall.

Winder, R. Bayly. “The Lebanese in West Africa.” Comparative Studies in Society and History 4, no. 333–296 :(1962) 3 http://www.jstor.org/stable/177524

"Asante Traditional Buildings: World Heritage, 2021 Edition: Bâtiment Traditionnel Asante: Patrimoine Mondial, Édition 2021." Ghana Museums and Monuments Board, CRAterre. Internet Archive. January 1970 ,1 https://archive.org/details/-18017asante-traditional-buildings2021-

To the youth of Ghana, the future of our nation rests in your hands. With your energy and dedication, we can build a better, healthier, and more equitable future for all.

KU Leuven, Faculty of Architecture Campus Sint-Lucas Ghent, www.arc.kuleuven.com

www.internationalmasterofarchitecture.be

Turn static files into dynamic content formats.

Create a flipbook
Issuu converts static files into: digital portfolios, online yearbooks, online catalogs, digital photo albums and more. Sign up and create your flipbook.