Leyla A. Chedid Architecture
Portfolio
This portfolio represents a compilation of concept-driven design projects that collectively form a body of diverse architectural explorations. Each project is centered around a unique architectural theme, with each drawing serving a distinct purpose within the overall composition. This collection delves into themes such as design processes, graphic experimentation, theoretical investigations, and unconventional executions, all working harmoniously to address architectural questions across various programs and scales. As I continue to advance in the field of architecture and design, my aspiration is to enrich this portfolio further. I aim to build upon the introduced themes, while also uncovering new ones in the process.
THE ACTIVE CONDENSER
In a circular economy, a productive city is an active city. Cities that make physical activity a priority, and design environments for people to be active will create a culture and legacy of physical wellbeing. My project identifies such potential for Beirut along the former Fouad Boutros Highway, and converts it to a cultural artery of physical activity. The active artery starts with a strategic projecta social condenser of sports and communal activities. Organized as a vertical arrangement of sport stadiums and open spaces, the project allows porosity of circulation to become the link between the informal/flexible areas and the mixed/ formal sport typologies. Multiple entrances are located at the different corners of the project, integrating an outdoor circulation within its first three levels to allow passer-bys to use the project as a shortcut. The project’s cascading ground elevates to upper levels in a serie of training platforms and terrains.
HIGHSCHOOL
USERS: WORKERS (20-65 YRS OLD)
USERS: ELDERLY (+ 65 YRS OLD)
There are lots of shops, malls, offices factories, schools and hospitals that are surrounding the site. Thus, there are plenty of groups of workers in the site.
A large number of elderly people live in this district mostly near the Jesuite Garden and the Hospital, they usually enjoy walking around when it is not too hot.
USERS: VISITORS
USERS: STUDENTS (6-18 YRS OLD)
There are lots of shops, malls, offices factories, schools and hospitals that are surrounding the site. Thus, there are plenty of groups of workers in the site.
Different ages of visitors are visiting this district because of the mall near by, the different
There are different schools, so lots of students are living within this district. They need more community and open spaces for them to gather after school time.
USERS: STUDENTS (18-25 YRS OLD)
There are lots of shops, malls, offices factories, schools and hospitals that are surrounding the site. Thus, there are plenty of groups of workers in the site.
CHARLES HELOU
CHARLES MALEK
GROUND FLOOR
Leyla
RESILIENCE AND EQUITY IN COASTAL COMMUNITIES
02 The purpose of this research is to honor the people of Ghana by exploring the rich history and architecture throughout the years and addressing the critical issue of access to clean water in rural Africa, focusing specifically on Ada, Ghana. In Ada, the river water is contaminated with Bilharzia, a tropical disease, and the informal settlements built with local materials lack proper water systems, forcing residents to rely on contaminated river water for daily needs. This study examines the complex environmental, social, and infrastructural factors contributing to the water problem in Ada. Through field surveys, community consultations, and technical assessments, this research identifies the specific challenges residents face in accessing safe and reliable water sources. Key findings highlight the urgent need for a comprehensive approach that addresses both water quality and accessibility while considering the community's socio-economic context. In addition, this research delves into the history of Ashanti traditional buildings and the compound houses of the mid 20th century. With insights gained from these studies, we were able to design solutions for the people of Ada. The design proposal presents a multifaceted strategy for providing sustainable water solutions tailored to Ada's needs. This includes implementing water treatment facilities to mitigate waterborne diseases like Bilharzia and developing community-managed water distribution systems to ensure equitable access for all residents.













BATHS LAUNDRY
LOCKERS
CAFETERIA
TOILETS
Plans
On the ground floor, all programs have access to the courtyard, which features a smaller rainwater collection pool. The layout follows a logical flow: for instance, if you want to go to the baths, you will need to pass by the lockers and changing room first to get changed. Cafeteria / Waiting Area
Leyla
On this lower level, there is an informal space where people can host an open weekend fish market, fostering a sense of community. This setting allows wealthy weekend visitors and the local residents of Ada to buy fish directly from fishermen, creating exchanges and connections that promote social harmony. Additionally, there is a recreational pool, encouraging locals to enjoy safe swimming instead of swimming in the river. The pool is designed to be shallow, accommodating the fact that many locals are not strong swimmers and prefer shallower water.
Plans
This section houses the water treatment system. It is located below to allow the aerator to pump water from the river for filtration and use throughout the project. The resulting wastewater is then collected and returned to the filtration system, where it is cleaned and recycled, maintaining a constant flow and ensuring ongoing purification.
SUB-LEVEL 2
Water Filter System Boat dock 14 15
Water treatment elements
The water treatment process begins with an aerator drawing water from the Volta River. Coagulation follows, where chemicals are added to destabilize and cluster suspended particles. Next, flocculation involves gentle mixing to encourage the formation of larger particles known as flocs. These flocs settle during sedimentation, allowing heavier particles to settle at the bottom. The water then undergoes filtration, passing through layers of sand, gravel, and other materials to remove remaining impurities. Disinfection is the final step, where chemicals like chlorine or ultraviolet light are used to eliminate any remaining bacteria, viruses, and other harmful microorganisms, ensuring safe water for consumption.
Water Pump Filter
Clean water tank
A. Chedid
Cafeteria space
Leyla
Laundry Room
roofing sheets
Metal
Wood beam structure
Howe wood truss
Wood frame beams
03
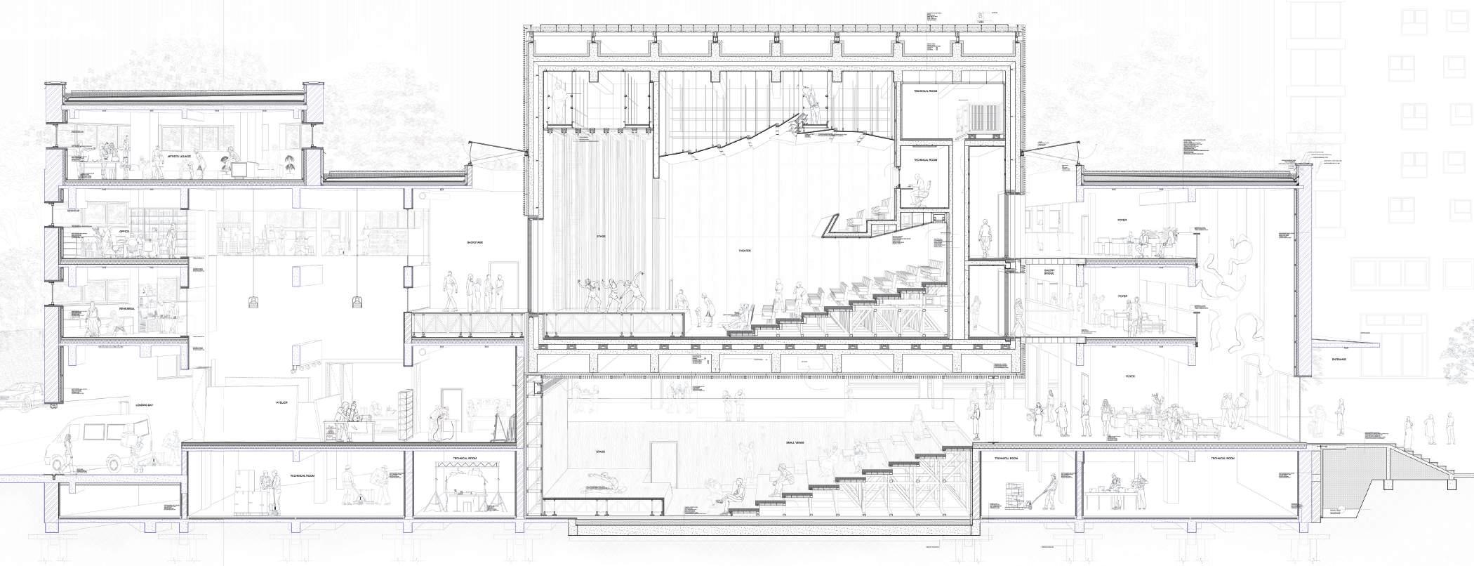
LEUVEN- FUTURE OPEK
with Andre-Laeticia Keri, Duvitri Rajapakse, Akif Bin Khairuddin & Gabriel
The OPEK building underwent a comprehensive renovation, which involved seamlessly integrating various spaces to cater to different user groups. Accessible to the public were welcoming areas like the reception, café, restaurant, foyer, exhibition space, a spacious venue (theatre), and meeting rooms. Simultaneously, spaces were integrated for artists, encompassing dressing rooms, a bar, lounges, and rehearsal areas. Lastly, discrete, private spaces were integrated, inaccessible to the public, including backstage facilities, an atelier, and offices. The overarching design concept revolved around a "box within a box" approach, aimed at optimizing space utilization while preserving the building's original structure. The primary event space was contained within this inner box. To maintain segregation between public and private realms, the east side of the building was allocated for private use and in contrast, the west side catered to public needs.This strategic design facilitated distinct entrances and access points to the building based on whether it was open to the public or reserved for private use.



04
REBUILDING RESILIENCE: THE RISE OF THE BEIRUT MEDIA
HUB
The aftermath of the Beirut explosion revealed a shift in the way people think and view various aspects of their country. The design of this architecture project deliberately incorporates a central void within the building, symbolizing the emotional void that the people of Beirut have experienced since the devastating explosion. This void serves as a powerful metaphor for the emptiness and loss felt by the community in the aftermath of the explosion. It's a poignant reminder of the impact of the event on people's lives.
Additionally, the creation of holes in the building's facade with trees growing from them represents resilience. These openings signify the ability to adapt and thrive despite adversity. The trees emerging from these openings symbolize hope, growth, and renewal, as they showcase nature's ability to flourish even in challenging conditions. This architectural element conveys a message of strength and optimism, reflecting the city's determination to rebuild and recover in the face of adversity.
OFFICES
05
INDUSTRIAL CHARM:
REIMAGINING
A CANAL-SIDE PARK
Dok Noord in Ghent, Belgium, is a vibrant urban redevelopment that transforms a former industrial area into a mixed-use neighborhood, blending industrial heritage with contemporary design along the Ghent-Terneuzen Canal. The project repurposes original buildings while integrating modern elements. Some areas remain underutilized due to accessibility issues, but the new Verapaz Bridge offers revitalization opportunities. A proposed shorter bicycle route would improve cycling infrastructure, promote sustainable transportation, and connect to the canal, enhancing accessibility and offering leisure and commercial activities. Unexpected greenery thriving amidst the concrete landscape highlights nature's resilience and potential for site revitalization. Preserving key industrial elements like old docks, concrete walls, graffiti, and railway tracks maintains the neighborhood's unique identity and honors its industrial past.


Dok Noord in Ghent, Belgium, is a dynamic urban redevelopment that transformed a former industrial area into a mixed-use neighborhood. It uniquely blends industrial heritage with contemporary design along the Ghent-Terneuzen Canal. The project repurposes original buildings, maintaining their industrial character while integrating modern elements. Some areas remain underutilized due to accessibility and organizational issues. The new Verapaz Bridge offers a chance to revitalize these spaces. Active intervention is essential to prevent neglect and enhance the region.




Intervening in this area benefits cyclists by creating a shorter, more convenient route to Oude Dokken, promoting sustainable transportation and enhancing cycling infrastructure. Additionally, it offers the opportunity to establish a connection to the canal, addressing the area's general lack of such connections. This integration would improve accessibility, encourage waterway use, and create a cohesive urban environment. The canal connection would add aesthetic value and provide opportunities for leisure, recreation, and commercial activities along the waterfront.
“It is
through the tension between these two elements (site & program) that the design can be established, that the program can construct the site, and the site can construct the program”.
Georges Descombes
Multiple visits to the site revealed unexpected greenery thriving amidst the concrete landscape. Plants and flowers emerged in surprising places, such as between old train rails, along concrete walls, and on abandoned staircases. This resilience of nature in an otherwise neglected space was remarkable, highlighting nature's power to reclaim urban environments. The contrast of lush greenery against urban decay created a striking visual, emphasizing the potential for revitalization and the integration of nature into the urban fabric. This inspired efforts to preserve and enhance the site's inherent beauty.
A new, shorter bicycle route is proposed to replace the current longer path around the Verapaz Bridge. This route will offer a direct, pleasant ride through green spaces and alongside the canal, enhancing the cycling experience and promoting sustainable transportation.
Key industrial elements such as old docks, concrete walls, graffiti, and railway tracks should be preserved to maintain the neighborhood's unique identity and historical significance. This approach honors the area's industrial past while enriching its cultural fabric.
MEDS WORKSHOP- SILESIA // WABI SABI
The project invites people to visit the Wabi Sabi tunnel near the City Point shopping center in Tychy, Poland. where they can explore Silesian legends. The tunnel features experiences inspired by folklore figures like Melusine, Polewnik, and the Treasurer. This immersive attraction was created using recycled materials, giving new life to discarded items and transforming them into a unique storytelling environment.
07
COMPETITIONS [solo]
A.
To commemorate the school's (LFA), in Ghana, 50th anniversary in 2014, a competition was held to design a logo, and I was fortunate enough to secure the first prize with my winning entry.
B.
I took part in the In Studio: Photo Competition (International) as a member of AIAS. We were invited to showcase our photography skills. This competition welcomed participants of all levels and years of experience. I was honoured to win first prize.
B.
07
COMPETITIONS [group]
International Competition for the Development Plan of the Old HANGLAS Site: The objective of this competition is to select a specialized enterprise to develop innovative and creative ideas for the old HANGLAS site. This site, previously occupied by the HANGLAS factory, is being prepared for a district unit plan that aims to transform it from a manufacturing area into a quasi-residential and commercial space, creating a tourism-focused cultural complex in the eastern Busan region. The competition, initiated by the Busan Urban Planning Committee, aims to discover the best district unit plan for this purpose. The site's location is favorable, with accessibility to downtown Busan and Ilgwang Beach, making it a potential hub for marine cultural tourism and housing complexes. The competition seeks designs for the site, including the development concept, zoning, marine culture tourism facilities, building arrangements, public spaces, and integration with other areas, with an emphasis on innovation and in-depth case studies of similar projects.

with Dyala Skaff, Nour Assaf, Soummar Al Kamand, Adib Huseini & Maroun