AR5F-GRUPO 3, P14 SÍLICO CALCÁREO UPC

Page 1

AR5FALBAÑILERÍA

SISTEMA:P14SílicoCalcáreo

GRUPO:3

INTEGRANTES:

LeandraMonserratBazán

JeniffeVanesaSoplaPisc

KevinDorianChavezBurgos

AndreaAlexiaOsorioJara

NicoleAndreaLuzaHuaita

SECCIÓN:AR5F

CICLO2023-1

2023

LOCALIZACIÓN Competencias:SC1

El terreno se encuentra en el distrito de Miraflores, Lima y este colinda con:

CC.JoséToribioPolo

.ContraAlmiranteVillar

Este proyecto se sitúa en Lima, Perú; distrito de Miraflores. Sus coordenadas son:

ESTACIONAMIENTOS

Para los estscionamientos se contó con una cantidad de 6 estacionamientos según el numero de habitaciones

USO PERMITIBLE PARA USO RECIDENCIAL Y COMERCIAL (CAFETERÍA)

RESUMEN DE ZONIFICACIÓN

A B C D 10 422 483N 552 922E 10 422 467N 552 904E 10 422 467N 552 937E 10 422 467N 652 921E
ORIENTACIÓN Competencias:SC1

Según el norte del proyecto...

Mayorasoleamiento,carasexternas

Mayorvientoencaraposterior

UASUALMENTE existe una cantidad de viento de 19 km/h a 38 km/hcondirecciónalOeste

Humedaddel77% La precipitación media anuales979mm

La temperatura anual es de 15 gradosamás.

Predominaelcomercio.

Retiro de 3m ,posible uso para localcomercial.

ORIENTACIÓNYCLIMA C t i SC1
011
Ruido 018 011

ANÁLISISDELASVARIABLESCLIMÁTICAS

Asoleamiento

Análisis de precipitación y lluvia

Solsticio de verano

Equinoccio de otoño

De acuerdo a la posición de nuestra edificación, los rayos solares se aprovecharian mejor durante los atardeceres.

El mes con más días mojados es Enero, con un promedio de 13.3 días

El mes con menos días mojados es Agosto, con un promedio de 2.8 días

El mes con más días con solo lluvias es Enero, con un promedio de 13.3 días.

La humedad percibida varía mucho. El período más húmedo dura 3.7 meses, del 24 de diciembre al 16 de abril, siendo bochornoso e incómodo al menos el 17% del tiempo. Febrero es el mes más bochornoso y Septiembre el menos

Solsticio de invierno

Equinoccio de primavera

De acuerdo a la posición de nuestra edificación, los rayos solares se aprovecharían mejor durante los atardeceres.

Llueve durante el año en Miraflores. El mes con más lluvia es Febrero, con un promedio de 102 milímetros de lluvia.

El mes con menos lluvia es Agosto, con un promedio de 14 milímetros de lluvia.

Los veranos son cálidos, húmedos, áridos y nublados, mientras que los inviernos son largos, frescos, secos, ventosos y mayormente despejados. Las temperaturas oscilan entre 15 °C y 27 °C. La mejor época es de principios de abril a mediados de octubre.

P R E C I P I T A C I Ó N L L U V I A
H U M E D A D A N U A L T I E M P O A N U A L
Competencias:SC1
5 2 4 3 1

DESCRIPCIÓNDELATIPOLOGÍADEUS EDIFICACIÓN

PRIMERPISO VIVIENDA

Ocupación: Condición:

Jubilados

AlbertoM:Discapacidad motora y dolores crónicos (espaldacuello)

SEGUNDOPISO VIVIENDA

Miembros:2

Futurospropietarios:

Alberto Morales (67 a RosaGarcía(62años)

Características

-Espaciosamplios, incluyen pasadizos,noesnecesario cocinaampliayaquelamay vecescomenencasadesu

Miembros:4

-AntonioRodriguez(37

-IsabelTorres(32años)

-JuliaRodriguez(7años)

-TonyRodriguez(6años)

Ocupación:

-LuisV.:Empresario

-PatyP.:Profesora

-KendraV.:Estudiante

Ocupación:

-AntonioR :Administrador

-IsabelM :Pintora

-JuliaR :Estudiante

-TonyR :Estudiante

Características

AIsabellegustapintarasíquedebedeteneruna terrazaconvistaalexterior,loshijosnecesitanun pequeñoestudioparahacertareasdelaescuelay loscuartosdebenseramplios paracuandocrezcan

Características

-Alahijalegustatocarelpiano,porloquelegustaríatener unahabitaciónendondeellapuedahacersuspracticas. -Muchasvisitas,losespaciospúblicosdebenseramplios.

ELECCIÓNDE COMERCIO

CAFETERÍACON ZONADEDELIVERY

Esta cafetería contará con una zona de mesas y una zona de delivery, además tendrá estacionamiento para una moto y su propia entrada de serviciodondenointerrumpirálacirculacióndellpúblico.

ESTRATEGIASBIOCLIMÁTICASYFUNCIONALESPOREL USUARIO

PROPUESTAAMBIENTAL

JARDÍN VERTICAL

Al tener un sistema constructivo con poca capacidad de vanos en los muros, decidimos colocar los cuartos mucho más pegados a las ventanas para aprovechar la iluminación

El departamento tiene en tod la circulación espacio suficiente para que una persona en silla de ruedas de una vuelta completa.

Cada departamento está asociado a las necesidades del usuario, por ejemplo el cuarto de música y la zona de estudio. En el local comercial colocamos una zona de mesas al exterior para aprovechar el retiro y agrandar la zona pública

Tipo de planta: Boa

Nuestro jardín vertical fue estratégicamente colocado cerca a los balcones ya que en esa esquina se llega a concentrar luz solar y crea un confort bioclimático al entrar en contacto con el jardín.

Además de esto usaremos una planta característica por estar en climas húmedos como es Miraflores. Esto nos ayudará también a evitar la producción de moho ya que la planta no se necesita constante riego y se limpia fácilmente al estarposicionadocercaalosbalcones.

Ingresoa departamento discapacitado IngresoaHallde departamentos
Ingresoaárea comercial
Competencias:SC1

BASE TEÓRICA DEL SISTEMA CONSTRUCTIVO Competencias: SC4

CONOCIMIENTOS TECNICOS

DIMENSIONES

Porestándarlasdimensionesson:

Ancho:14cm

Alto:24cm

Largo:50cm

También es posible encontrar bloques de silico calcáreo en dimensiones personalizadas según las necesidades del proyecto.

NORMAE.070-ALBAÑILERÍA

CAPÍTULO 3 - COMPONENTES DE LA ALBAÑILERÍA

6.3 CLASIFICACIÓN PARA FINES ESTRUCTURALES Los morteros se clasifican en: tipo P, empleado en la construcción de los muros portantes; y NP, utilizado en los muros no portantes (ver Tabla 4).

6.4 PROPORCIONES Los componentes del mortero tendrán las proporciones volumétricas (en estado suelto) indicadas en la Tabla 4.

CARACTERISTICAS

Bloques P-14 - Compuesto por Arena de sílice: 70-80% + Cemento: 10-20% + Cal:

5-15% + Agua: 5-10%

Refuerzo Vertical - Cuenta con 4 perforaciones, cada una de 6 cm de diametro. Refuerzo Horizontal - El canal horizontal cuenta con 11 cm de ancho x 2 cm de profundidad.

Cada bloque P-14 de silico-calcáreo cuenta con 12 perforaciones de 2.5 cm de diámetro.

Los muros de silico-calcáreo son construidos por apilamiento de las placas P-14, las cuales se unen mediante mortero y refuerzos de acero en las esquinas y alrededor de las aberturas de las puertas y ventanas.

La placa P-14 califica como bloque con clase de unidad de albañilería "P", los bloques o ladrillos de clase P se caracterizan por tener una resistencia a la compresión mínima de 35 kg/cm² (3.43 MPa) y una absorción de agua máxima del 15%.

VENTAJASYDESVENTAJAS

DESVENTAJAS

La construcción de muros de carga es menos flexible y no permite realizar modificaciones después de su construcción.

Requiere un mayor control de calidad durante su construcción para garantizar la resistencia y durabilidad de la estructura.

El diseño de los planos debe ser modular para adaptarse a las unidades de construcción, lo que puede limitar las posibilidades de diseño.

CAPÍTULO 4 - PROCEDIMIENTO DE CONSTRUCCION

10.1 Los muros se construirán a plomo y en línea. No se atentará contra la integridad del muro recién asentado.

10.6 No se asentará más de 1,30 m de altura de muro en una jornada de trabajo

10.7 Las juntas de construcción entre jornadas de trabajos estarán limpias de partículas sueltas y serán previamente humedecidas.

10.9 El procedimiento de colocación y consolidación del concreto líquido dentro de las celdas de las unidades, como en los elementos de concreto armado, deberá garantizar la ocupación total del espacio y la ausencia de cangrejeras.

VENTAJAS

Mejora el aislamiento acústico y térmico del edificio

Ofrece mayor resistencia al fuego y a los terremotos gracias a su alta densidad y la inclusión de refuerzos de acero.

Permite construir muros más altos en menor tiempo, lo que reduce el tiempo de construcción.

Por sus materiales empleados el costo de construcción disminuye. Es un material sostenible y respetuoso con el medio ambiente, ya que se fabrica con materiales naturales y no tóxicos.

ANÁLISISDEDENSIDADDEMUROS

RNE-NormatécnicaE.030DiseñoSismorresistente:

Competencias: SC1

Competencias:SC6
DISEÑOARQUITECTURA:PLANTANIVEL1 Planta1 Escala1/50

DISEÑOARQUITECTURA:PLANTANIVEL2y3

Planta2y3

Escala1/50

Competencias:SC6

CUADRODEVALORESUNITARIOS

Competencias:SC6

ESTIMACIÓNDELCOSTOTOTALDELPROYECTO

Competencias:SC6

DISEÑOARQUITECTURA: PLANTAS

C.JOSETORIBIOPOLO

AMBIENTE ÁREA(m2) VENTANAS PUERTAS
PISO CUADRODEVANOSPLANTAPRIMER PISO SSHHHOMBRES SSHHMUJERES BARRADEATENCIÓN ABASTECIMENTO ZONADEESTACIONAMIENTO ZONADEMESAS LAVANDERÍA SSHH COMEDOR DORMTOROPRINCPAL HALL SALA COCINA Nro Anch Nro Anch At At A Al 380 600 722 695 695 2500 344 1526 1000 597 745 656 1127210 090 P-11210 P-10 120 P-9 V-9110 040 210 100 120210 P-8 V-8 110 090 100 080 P-7120 210 080 110 100 V-6 V-7 P-6 120 110 100120 210 V-5 P-5 120 110 100120 210120 210 120 110 100P-3 P-4 120 210 080 110 100 V-2 V-3 V-4 080 110 100120 210 V-1 080 110 100 P-1 P-2210 120 A A B B ZONAESTACIONAMIENTO ESTACIONAMIENTO DE DISCAPACIDAD 1 0 9 8 7 6 5 4 3 2 1 SSHH LAVANDERIA SSHH HOMBRES NPT-105 SSHH MUJERES DORMITORIO PRINCIPAL COCINA COMEDOR NPT-050 BARRA DE ATENCIÓN ZONADEMESAS NPT-105 SALA HALL ABASTECMIENTO NPT-105 ZONADEMESAS V-7 V-8 P-7 P-6 P-9 P-10 P-11 V-6 P-8 V-5 P-5 V-4 P-2 P-3 P-1 V-1 P-4 V-9 V-3 V-2 -050 -105 NPT-050 N T-050 NP -105 NP -050 NPT-050 NPT+-000 NPT-105 NPT /-000 NPT-0 0 NP -075 NPT-050 NPT-075 NPT-10 NP +- 00 NPT- 05 6 5 2 B C G A D E F 1 V E R E D A C C O N T R A A D M I R A N T E V I L L A R PRIMERAPLANTA 1/50 VEREDA NP +- 00
CUADRODEÁREASPLANTAPRIMER
4 3 1 V N L C N M CÁ C
Competencias:SC6

DISEÑOARQUITECTURA: PLANTAS

SEGUNDAPLANTA TERRAZA COCINA COMEDOR NPT+ 25 CUARTODELAVADO SALA SSHH ESTUDIO HALL DORMITORIO1 DORMITORIO2 WC SSHH DORMTORIO PRINCIPAL A B 1/50 A B 9 8 7 6 5 4 3 2 1 1 0 3 5 1 6 A B C D E F G 4 2 NPT+2 5 NPT+225 NPT+2 5 NPT+225 NPT+2 5 NPT+225 NP +225 NP +225 NPT+2 5 NPT+2 5 NPT+2 5 NPT+ 25 V-5 V-6 V-7 P-3 P-2 V-1 P-4 P-1 V-2 V-8 V-9 P-5 V-3 P-7 P-6 V-4 P-8 VENTANAS AMBIENTE PUERTAS ÁREA(m2) CUADRODEVANOSPLANTA SEGUNDOPISO CUADRODEÁREASPLANTA SEGUNDOPISO No Anch SALA COCNA LAVANDERA SSHH COMEDOR TERRAZA DORMITORIO1 DORMITORIOPRINCIPAL WC SSHH DORMITORIO2 HALL A Af No Anch At A V-1 V-2 V-3 V-4 V-5 V-6 V-7 V-8 V-9 080 080 080 120 120 120 080 080 120 110 110 110 110 110 110 110 110 110 100 100 100 100 100 100 100 100 100 P-1 P-2 P-3 P-4 P-5 P-6 P-7 P-8 090 090 100 120 100 100 080 090 1127 904 581 597 1000 390 1320 1327 569 720 1262 344 210 210 210 210 210 210 210 210----TABIQUE 280m
Competencias:SC6

DISEÑOARQUITECTURA: PLANTAS Competencias:SC6

LAVANDERIA SSHH SSHH COCINA CUARTO DE MÚSICA NPT+489 WC COMEDOR NP +489 DORMITORIO1 NPT+489 SALA TERRAZA DORMITORIO PRINCIPAL HALL A A B B V-7 V-9 P-3 P-8 P-4 V-6 V-8 P-2 P-5 P-6 V-5 P-7 P-1 V-2 V-1 V-3 V-4 6 5 4 3 2 1 B C A D E F NPT+489 NPT+489 NPT+489 NPT+ 89 NPT+489 NPT 489 NP +489 NPT+4 9 NPT+489 1 1 1 2 1 3 1 4 1 5 1 6 1 7 G TABIQUE 280m

DISEÑOARQUITECTURA: PLANTAS

PLANODETECHOS 1/50 A A B B 1 TECHO NO UTILIZABLE NPT+7.82 2
Competencias:SC6

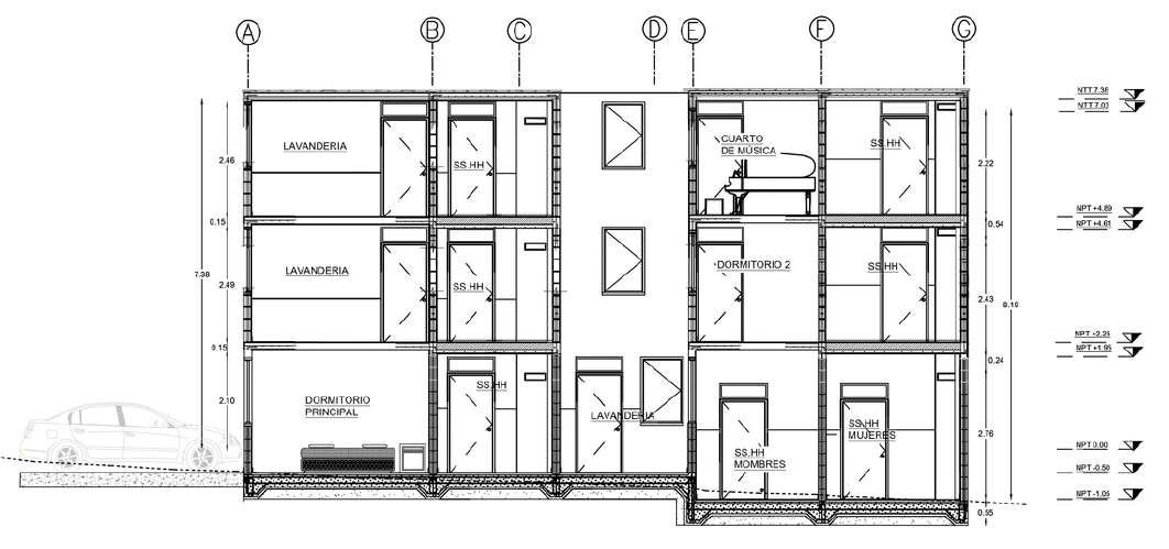
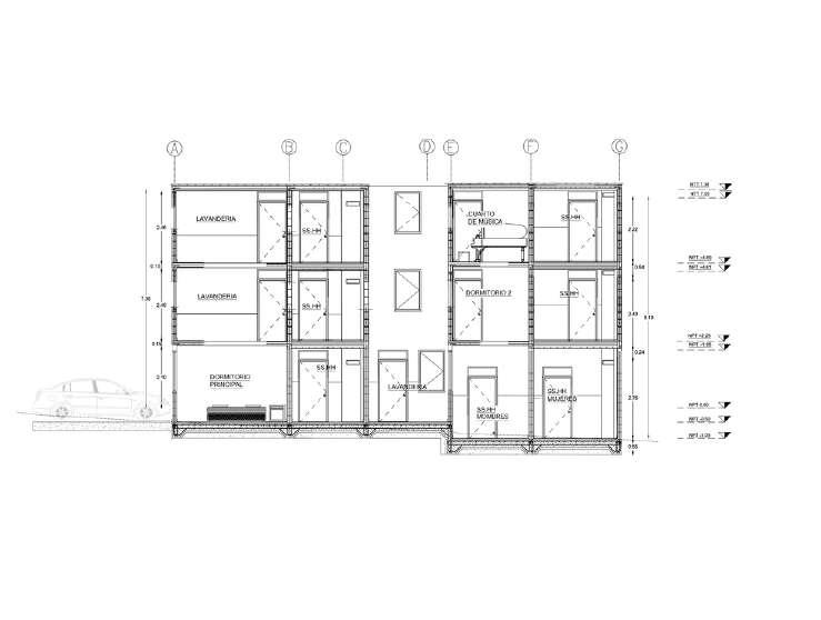
DISEÑOARQUITECTURA: CORTES

Competencias:SC6 CORTE 1 CORTE 2
NTT782 NTT762 786 oéT rbo ELEVACIÓN2 ELEVACIÓN1 1/50 1/50 NTT782 NTT762 NPT000 NPT-050 NPT-075 NPT-105 NPT+225 NPT+195 NPT+489 NPT+461 NPT000 NPT-050 NPT-075 NPT-105 NPT+225 NPT+195 NPT+489 NPT+461
Competencias:SC6
DISEÑOARQUITECTURA: ELEVACIÒNES
PLANTAS

DISEÑOARQUITECTURA:VISTAS3D

Competencias:SC1

DISEÑOARQUITECTURA:VISTAS3D

Competencias:SC1

DISEÑOARQUITECTURA:VISTAS3D

Competencias:SC1

RA:VISTAS3D

DETALLESCONSTRUCTIVOS:MURO

Segun la norma E-070 (albañileria armada)

55.6 La cimentación debe constituir el primer diafragma rígido en la base de los muros para lo cual deberá ser diseñada de acuerdo a las propiedades mecánicas del suelo de cimentación.

50.2 Para el asentado de la primera hilada, la superficie de concreto que servirá de asiento (losa o sobrecimiento según sea el caso), se preparará con anterioridad de forma que quede rugosa; luego se limpiará de polvo u otro material suelto y se la humedecerá, antes de asentar la primera hilada.

Competencias:SC1

DETALLESCONSTRUCTIVOS:ESCALERA

Segun la norma A-010

A) Escalera Integrada. Escalera que no esta aislada de la circulación horizontal y cuyo objetivo es satisfacer las necesidades de tránsito de las personas entre pisos de manera fluida y visible.

Las escaleras tendrán un ancho mínimo de 1,20 m.

Competencias:SC1

DETALLESCONSTRUCTIVOS:MURO-ESCALERA

Según la norma A-010

La dimensión de los descansos deberá tener un mínimo de 0.90 m de longitud para escaleras lineales; para otro tipo de escaleras se considerará que el ancho del descanso no será menor al del tramo de la escalera. En cada tramo de escalera, los pasos y los contrapasos serán uniformes, debiendo cumplir con la regla de 2 contrapasos + 1 paso, debe tener entre 0.60 m. y 0.64 m., con un mínimo de 0.25 m para los pasos en viviendas, (...) y un máximo de 0.18 m para los contrapasos, medido entre las proyecciones verticales de dos bordes contiguos.

Competencias:SC1

DETALLESCONSTRUCTIVOS:MUROYLOSA

otro material suelto y se la humedecerá, antes de asentar la primera hilada.

Competencias:SC1

DETALLESCONSTRUCTIVOS:MUROYLOSA

Segun la norma E-070 (albañileria armada)

51.2 El refuerzo horizontal debe ser continuo y anclado en los extremos con doblez vertical de 100 mm en la celda extrema.

51.3 Las varillas verticales deberán penetrar, sin doblarlas, en el interior de los alvéolos de las unidades correspondientes.

51.14El refuerzo horizontal en los muros no será traslapado dentro de los 600 mm o 0,2L del extremo del muro. La longitud de traslape será la requerida por tracción y los extremos de las barras en el traslape deberán amarrarse entre sí.

Competencias:SC1

DETALLESCONSTRUCTIVOS:MUROYLOSA BANDEJA

traslapado dentro de los 600 mm o 0,2L del extremo del muro. La longitud de traslape será la requerida por tracción y los extremos de las barras en el traslape deberán amarrarse entre sí.

Competencias:SC1

PROCESOCONSTRUCTIVO

EPP, Equipo de Protección Personal

Guantes

Lentes

Casco

Botas

Mascarilla

Ropagruesaoresistente

Botasdeseguridadcon

puntadeacero

Protectoresdeoído

Casco

Protocolos de Bioseguridad

Competencias:SC1

BIBLIOGRAFÍA

Competencias:SC1

IMÁGENES TEXTO

12345-

AndrewMarsh"Sunpath3D"2015

MeteoBlue"TiempoenMiraflores"2021

WeatherSpark"Miraflores"2021

Weatherspark"Miraflores2021

Weatherspark"Miraflores2021

Análisisdevientos

Meteoblue "Miraflores" 2021 https://wwwmeteobluecom/es/tiempo/hstoryclimate/climatemodelled/distrito-demiraflores per%c3%ba 6941793 https://eswndfindercom/windstatistics/miraflores

Aseolamiento

Sunpath "Miraflores" 2021 https://wwwsunearthtoolscom/dp/tools/pos sunphp? lang es#top http://andrewmarshcom/apps/staging/sunpath3dhtml

Análisisdelluvia

Weather spark "Miraflores" 2021 https://esweathersparkcom/y/21379/Clima-promedio-enMiraflores-Per%C3%BA-durante-todo-el-a%C3%B1o

Análisisdehumedadytemperatura

Weather spark "Miraflores" 2021- https://esweatherspark.com/y/20441/Clima-promedio-en-LimaPer%C3%BA-durante-todo-el-a%C3%B1o

Meteoblue "Miraflores"https://wwwmeteobluecom/es/tiempo/historyclimate/weatherarchive/lima per%C3%BA 3936456 Municipalidad de Miraflores 2023- https://wwwmirafloresperucom/turismo-miraflores-lima-peru/climageografia-poblacion.php

MIEXPERIENCIAENELCURSO

LeandraBazánEgúsquiza

En el curso de albañilería se aprendió bastantes cosas tanto en la parte teórica como la parte del taller. En arquitectura creo que es bastante importante saber sobre los sistemas constructivos ya que la mayoría se podría decidir a estar en obra y debemos comenzar a familiarizarnos con el tema.Una dificultad que tuve fue que se me complicaba al momento de aprenderme especificaciones o cosas puntuales pero seguro mejorará mientras más este en contacto con los temas.Algo por mejorar sería hacer más didáctica la claseteóricayaqueesbastanteinformación:)

KevinDorianChavezBurgos

Mi experiencia en el curso de Albañilería como estudiante de arquitectura ha sido una experiencia altamente beneficiosa. El programa, abarcando componentes tanto teóricos como prácticos, proporcionóunentendimientocompletodelosmétodos de construcción, una habilidad crucial dado que muchos estudiantes podrían decidir involucrarse en los sitios de construcción directamente. Pese a los desafíos que surgieron, especialmente en la memorización de detallesyelementosespecíficos,estoysegurodequemi comprensión se fortalecerá a medida que continúe mi inmersión en estos temas. Aunque la cantidad de información puede ser abrumadora, considero que un enfoque más interactivo y didáctico podría hacer las clases teóricas más accesibles y atractivas. Sin embargo, a pesar de estos desafíos, el valor y enriquecimiento que he obtenido de este curso de construcciónhasidoinmensurable.

NicoleAndreaLuzaHuaita

Quiero expresar mi alegría y gratitud por todo lo que he aprendido en mi curso de construcción. Ha sido una experiencia increíble que ha ampliado mis conocimientos y habilidades en este fascinante campo. Desde los fundamentos básicos hasta las técnicas más avanzadas, cada lección ha sido un paso hacia adelante enmicaminocomoprofesionaldelaconstrucción.

Durante el curso, he adquirido un profundo conocimiento sobre los diferentes materiales de construcción, su resistencia y durabilidad, así como su aplicación adecuada en distintos proyectos. También he aprendido sobre los principios de diseño arquitectónico ycómotraducirlosenplanosyestruturasconcretas.

AndreaAlexiaOsorioJara

El curso de Albañileria me brindó una valiosa experiencia y un aprendizaje significativo. Adquirir conocimientos sobre los diferentes sistemas constructivos, incluyendo la albañilería confinada, armada y los muros de ductibilidad, me ha permitido acercarme aún más a mi carrera y comprender mejor el trabajo en una obra de construcción. Ahora me siento preparada para enfrentarlosdesafíosquesurjanenelámbitodela construcción y aplicar los conocimientos adquiridosenfuturosproyectos.

JeniffeVanesaSoplaPisco

El curso de Albañilería me ayudó a entender a mayor profundidad los sistemas constructivos, con respecto a sus procedimientos y a nivel estructural. Aprender sobre los sistemas constructivos, su proceso, metrados y demás siento que me servirá bastante en un futuro así que fue una experiencia realmente buena y sobre todo provechosa. Ademas me ayudó a mejorar mi criterio al momento de plantear un diseño para que no solo quede perfecto estéticamente sino tambiénfuncionalmente

Competencias:SC1

Turn static files into dynamic content formats.

Create a flipbook
Issuu converts static files into: digital portfolios, online yearbooks, online catalogs, digital photo albums and more. Sign up and create your flipbook.
AR5F-GRUPO 3, P14 SÍLICO CALCÁREO UPC by Leandra Baz - Issuu