VILA BOÊMIA - TFG

Page 1

OBJETIVO

Desenvolver o projeto arquitetônico e paisagístico de uma

Vila Boêmia através da valorização do Patrimônio Arquitetônico de Santa Maria

● Revisar bibliografias e referências relacionadas a história da arte de espaços boêmios e culturais e da valorização do Patrimônio Arquitetônico

● Realizar o levantamento e análise da área de intervenção para desenvolver uma proposta de acordo com a memória arquitetônica local;

● Realizar diagnóstico social com os possíveis usuários deste empreendimento e também com os moradores da localidade

● Elaborar proposta de Partido Arquitetônico e Paisagístico;

● Desenvolver Anteprojeto Arquitetônico

Realizar

ESCALA MICRO Realizar intervenção arquitetônica Mabi propondo uso de musical JANEIRO CASA GABBI, SANTA MARIA CASA DE FRANCISCA, SÃO PAULO Logradouro ESCALA MESO Rio Branco ESCALA MACRO Edifício Mabi ESCALA MICRO DE INTERVENÇÃO escala gráfica
VILA BOÊMIA VALORIZAÇÃO DO PATRIMÔNIO HISTÓRICO DE SANTA MARIA APRESENTAÇÃO TEMÁTICA Proposta de um espaço boêmio e cultural voltado para o lazer e entretenimento a partir da valorização e reutilização do Patrimônio Arquitetônico de Santa Maria ● Vida Boêmia perdendo espaço em Santa Maria; ● Santa Maria possui numerosa população jovem; ● Há carência de opções e espaços de lazer seguros, acessíveis e de qualidade ● Uso de espaços inseguros e sem infraestrutura em busca de lazer e socialização ● Santa Maria possui grande acervo de Patrimônio Arquitetônico, Histórico e Cultural ● A Avenida Rio Branco abriga um grande acervo em Art Déco ● O Patrimônio Arquitetônico da cidade encontra se desvalorizado, invisibilizado e apagado do imaginário santamariense ● Os moradores não conhecem a sua própria história; ● Dar novos usos a edifícios históricos é uma forma de atrair a população e valorizar esse patrimônio JUSTIFICATIVA
ESCALA MACRO Lançar diretrizes para a Avenida Rio Branco, com espaços de lazer e de manifestações culturais e políticas
no Edifício
bar e de produção
Trazer a Boemia novamente para Santa Maria Propor espaços de debate de ideias e manifestações políticas Proporcionar espaços de lazer acessíveis, seguros e de qualidade ao público jovem e universitário de Santa Maria Criar espaços para manifestações culturais Projetar um espaço atrativo que traga vida ao local à noite e também durante o dia Valorizar e preservar o Patrimônio Arquitetônico da cidade ao trazer atividades ao local
intervenção arquitetônica no Edifício Mabi que se adapte ao novo uso e que respeite e preserve elementos importantes de sua arquitetura em Art Déco, ao mesmo tempo que permita a clara distinção entre o antigo e o novo, entre o que é original e o que foi modificado COISA MAIS LINDA Mulheres que lutam contra as limitações das convenções sociais para poderem realizar seus sonhos: abrir um bar, cantar, ser escritora e locutora. Tudo isso em meio a um ambiente boêmio, com muita música, bebida, diversão e arte. RUA COR DE ROSA, LISBOA RIO SCENARIUM, RIO DE
REFERÊNCIAS CONCEITO
Avenida
ÁREA
ÁREA DE INTERVENÇÃO A área de intervenção corresponde a Avenida Rio Branco, avenida de grande importância histórica para a cidade de Santa Maria DIRETRIZES PROJETUAIS ESCALA MESO Propor diretrizes e desenho esquemático do logradouro em frente ao Edifício Mabi RIO GRANDE DO SUL SANTA MARIA CENTRO HISTÓRICO 01 | 18

USOS

Rio Branco

Praça Saldanha Marinho

Gare

Patrimônio histórico cultural

Patrimônio

Bares

Bares (intervenção

DIRETRIZES PROPOSTAS

Valorizar os Centro Histórico através da requalificação dos edifícios de valor histórico cultural e destinação de usos voltados a economia criativa como gastronomia, música, dança, teatro, arte, moda, design, arquitetura o que se alinha a proposta do distrito criativo que vem sendo desenvolvida pela prefeitura

Incentivar o uso residencial junto com os outros usos, trazendo maior movimentação nessa área em horários não comerciais

Realocar feiras que já acontecem no centro para o Canteiro Central como as feiras de hortifrúti que ocorrem nas ruas Daudt e Treze de Maio

A proposta divide a Avenida Rio Branco em duas áreas a Boemia e a Economia Criativa As zonas são fluidas e se fundem entre si

A Boemia, mais ao norte, é a zona mais noturna, volta aos bares, à música, ao lazer, onde a infraestrutura e o mobiliário são mais voltados à esse fim, com palcos e mesinhas

A zona da Economia Criativa fica mais ao sul, envolvendo também a Praça Saldanha Marinho e o Calçadão, uma área mais próxima ao comercio e outras atividades econômicas mais diurnas Nessa zona a infraestrutura o mobiliário permitem que o usuário possa trabalhar no espaço público e assim explorar sua criatividade

PATRIMÔNIO HISTÓRICO CULTURAL escala gráfica

Gare

Vila Belga Edifícios em Art Déco

Praça Saldanha Marinho

Patrimônio Histórico Cultural

Transformar algumas vagas de estacionamento em espaços destinados a parklets, food trucks e outras instalações efêmeras que tragam atividades e público à Avenida

Transferir algumas vagas de estacionamento para a Gare dando prioridade ao pedestre na vila boêmia

Instalar travessias elevadas entre as frações do Canteiro Central, unindo as entre si e, trazendo mais segurança e acessibilidade para o espaço Investir em mobiliário urbano mais dinâmico e flexível que permita a interação entre as pessoas, possa ser usado como palcos, bancos, espaços para exposições

Requalificar infraestrutura do Canteiro Central e Avenida (iluminação, lixeiras, bebedouros, tomadas elétricas, banheiros), possibilitando que as pessoas se apropriem do canteiro para a realização de diferentes atividades

Requalificar arborização urbana e demais vegetação da Avenida Rio Branco, trazendo qualidade biofílica para o espaço público

Aplicar os programas Caminhe Legal e Anuncie Legal propostos pela Prefeitura de Santa Maria, bem como implantar rede elétrica subterrânea na Avenida Rio Branco e no entorno, evitando a poluição visual, trazendo maior harmonia ao espaço e proporcionando maior visibilidade ao Patrimônio Histórico Cultural

ZONEAMENTO escala gráfica

Criativa

Boemia
VILA BOÊMIA ESCALA MACRO AVENIDA RIO BRANCO
Avenida
MAPAS DE DIAGNÓSTICO E ANÁLISE ÁREA DE INTERVENÇÃO escala gráfica
Ponto de Táxi Corredor de ônibus Estacionamento MOBILIDADE escala gráfica Instituições de Ensino Superior Economia Criativa
Histórico Cultural
em Patrimônio)
SIMILARES escala gráfica
Economia
02 | 18

DIRETRIZES

PLANTA DE SITUAÇÃO escala gráfica Requalificação da vegetação urbana Arborização adequada para passeio público Food trucks ao longo do Canteiro Central atraindo público em diferentes Parklets a serem instalados ao longo do Canteiro Central e em frente aos bares dando apoio às atividades boêmias Apropriação do Canteiro Central Travessia elevada do Canteiro Central Aplicação do programa Anuncie Legal, visual Mobiliários dinâmicos a serem utilizados como mesas, palcos, bancos Requalificação das paradas de ônibus, utilizando mobiliário mais dinâmico
VILA BOÊMIA ESCALA MESO LOGRADOURO
LOGRADOURO EM FRENTE AO EDIFÍCIO MABI
horários, mas principalmente à noite
e dos mobiliários por músicos e outros artistas
unindo as frações
proposto pela prefeitura, evitando a poluição
e proporcionando visibilidade aos edifícios históricos, contribuindo para a valorização do Centro Histórico Aplicação do programa Caminhe Legal, proposto pela prefeitura, proporcionando a padronização das calçadas e assim trazendo maior acessibilidade e organização do espaço público Padrão a ser utilizado na Avenida Rio Branco, a qual faz parte do Centro Histórico de Santa Maria
DIRETRIZES A escala meso compreende o logradouro em frente ao Edifício Mabi o qual corresponde à porção norte da Avenida Rio Branco situada entre a Rua Manuel Ribas e a Rua Coronel Ernesto Becker Esta área fax parte da zona Boemia do zoneamento proposto na escala macro
03 | 18

LEVANTAMENTO

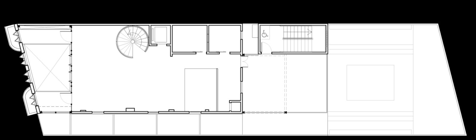
PLANTA BAIXA TÉRREO

ESC: 1/200

“Talvez o edifício que soma o maior número de características do

Pode

Por

empreendimentos

parecidas

PLANTA DE LOCALIZAÇÃO E COBERTURA

ESC: 1/200

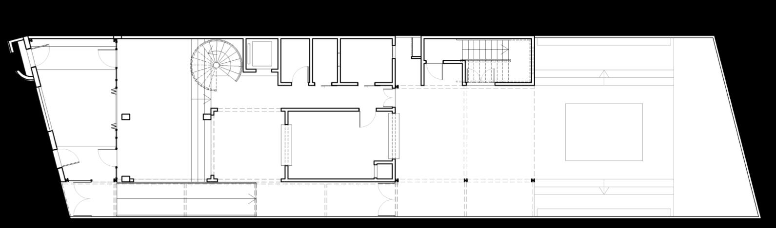
PLANTA BAIXA SEGUNDO PAVIMENTO ESC: 1/200

Ladrilho localizado na área comercial do edifício, na parte frontal do térreo

Vedação da edificação: Paredes de alvenaria

Revestimento de fachada fachada voltada para a Av Rio Branco em MICA cirocreto (a qual foi sobreposta por pintura) e demais paredes com reboco e pintura a base de cal Soleira As soleiras seguem os materiais de cada ambiente

Peitoril O peitoril das sacadas é feito de alvenaria revestido de mica e internamente na escadaria de alvenaria com madeira

Escada Granitina

Guarda corpo: alvenaria

Pintura: paredes externas com tinta na cor cinza, internas em cores variadas; Na lateral e nos fundos o muro é feito de alvenaria com reboco e pintura

Fundações diretas em alvenaria de pedra e tijolos

Alvenarias fachada de 25cm todas as demais de 15cm

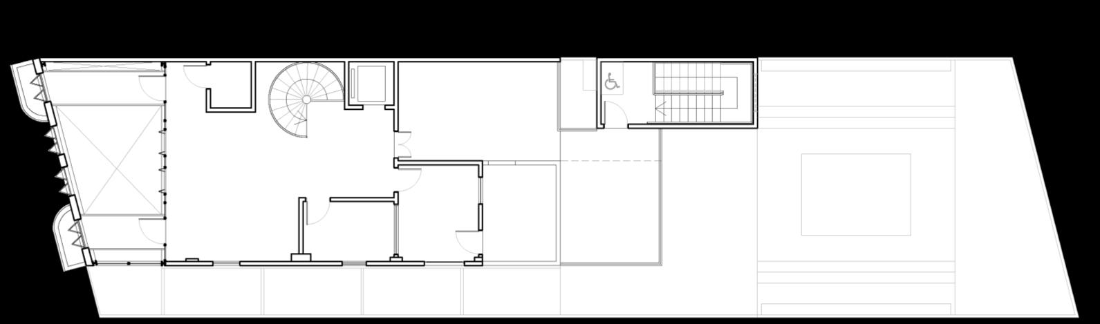
PLANTA BAIXA TERCEIRO PAVIMENTO ESC: 1/200

Entrepiso tijolo armada esquadrias: madeira de lei

CORTE AA’ ESC: 1/200

CORTE BB’ ESC: 1/200

VILA BOÊMIA ESCALA MICRO EDIFÍCIO MABI
Cobertura Telha de barro do tipo marselha assentadas sobre tesouras de madeira de pinus Piso ladrilho no pavimento térreo, nos demais pavimentos nos banheiros, cozinha, área aberta e circulação Granitina nas escadas Cimento queimado nas áreas de serviço, terraço e poço de luz Soalho de madeira de pinus com ripas de 13cm, em todas as demais dependências (o qual foi substituído por piso laminado)
Art Déco na cidade” schlee
ser usado como modelo e referência para intervenções nos prédios vizinhos e de toda avenida rio branco, principalmente os do acervo em Art Déco
ser pequeno, exige menor investimento, permitindo que empreendedores privados invistam nesse projeto e em outros semelhantes
existem outros
de sucesso com propostas
na cidade O ordinário também precisa ser valorizado POR QUE O MABI? MABI ILUSTRAÇÃO ESQUEMÁTICA DO EDIFÍCIO MBI E SEU ENTORNO PROJETO ORIGINAL (COMPHIC SM) A A’ B B’ A A’ B B’ A A’ B B’ O Edifício pertence ao conjunto de edificações com Arquitetura Art Déco talvez seja um dos exemplares que mais possui características na cidade, sendo significativo para o contexto histórico de Santa Maria Alguns elementos ornamentais na fachada da edificação mostram de fato suas características Art Déco como as sacadas arredondadas que dão ideia de aerodinamismo as linhas retas e elementos geométricos, o letreiro significativo para a época, a busca pela simetria O edifício é composto por três pavimentos, o térreo sendo ocupado por uso comercial e os dois seguintes uso residência 04 | 18
PLANTA DE COBERTURA Tipo: arbórea Porte: médio Altura: 3 a 9m Sazonalidade: perene Cores: verde Informações gerais: meia sombra/sol pleno Dypsis lutescens Palmeira família Tipo: arbusto Porte: médio Altura: 0,9 a 2,4m Sazonalidade: perene Cores: verde Informações gerais: meia sombra/sol pleno Colocasia esculenta Taro Tipo: arbusto/trepadeira Porte: pequeno Altura: 6 a 12m Sazonalidade: perene Cores: verde com flores brancas ou levemente rosadas Informações gerais: meia sombra/sol pleno; alimentícia; ornamental Pereskia aculeata Ora pro nobis Tipo: arbusto Porte: pequeno Altura: 0,3 a 0,8m Sazonalidade: perene Cores: verde com flores brancas Informações gerais: meia sombra/sol pleno; ornamental; olfativo Zantedeschia aethiopica Copo de leite Tipo: arbusto Porte: pequeno Altura: 0,1 a 0,4m Sazonalidade: perene Cores: verde com flores brancas Informações gerais: luz difusa/meia sombra; ornamental Maranta leuconeura Maranta pena de pavão PLANTA DE COBERTURA ESC: 1/100 LUOS: ZONA 2 ÁREA TOTAL DO TERRENO: 344,22 m² ÍNDICE EXIGIDO ÁREA EXIGIDA m² ÍNDICE DO PROJETO ÁREA DO PROJETO m² ÍNDICE DE OCUPAÇÃO máx. 0.6 206,53 0,59 204,01 ÍNDICE DE APROVEITAMENTO máx. 3 1032,66 1,39 479,95 ÍNDICE VERDE mín. 0,18 61,96 0,23 78,97 PAISAGISMO - QUADRO DE ESPÉCIESQUADRO DE REGIME URBANÍSTICO PLANTA DE SITUAÇÃO escala gráfica EDIFÍCIO MABI 05 | 18

ESQUEMA DE PAVIMENTAÇÃO

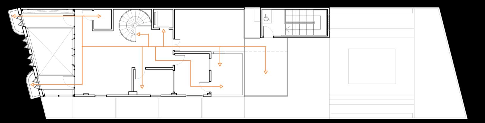
ESQUEMA DE FLUXOS

PLANTAS BAIXAS MOBILIADAS TÉRREO ESC: 1/100 PLANTA BAIXA TÉRREO ESC: 1/200 Acessos Fluxo restrito (funcionários) Fluxo público em geral Boemia Apoio ESQUEMA DE ZONEAMENTO
PLANTA BAIXA TÉRREO ESC: 1/200
A pavimentação do térreo está distribuída de forma espelhada as pavimentações da parte edificada (vegetação, ladrilho, cimento queimado) se repetem no jardim de forma inversa (cimento queimado, ladrilho, vegetação) O ladrilho é conservado na maior parte do longe, e a parte removida para a criação do jardim interno é realocada no jardim, conformando uma delimitação para palco Os demais ambientes foram padronizados em cimento queimado pelo fato de alguns pisos originais já terem sido alterados e outros ficarem danificados ou incompletos em decorrência das reformas a serem realizadas Paredes de alvenaria Paredes de concreto Elevador monta cargas a ser instalado na cozinha com o objetivo de carregar os pedidos até o segundo pavimento As esquadrias de madeira originais da fachada principal (oeste) e da fachada lateral (sul) foram preservadas, enquanto as demais foram substituídas por esquadrias metálicas pretas As portas internas foram padronizadas em esquadrias metálicas 90x210cm e as portas externas em esquadria metálica preta com vidro temperado seguindo as dimensões indicadas nas plantas técnicas 06 | 18

SEGUNDO

ESQUEMA

PLANTA BAIXA

Como estratégia de conforto acústico os mobiliários são compostos de materiais com capacidade de absorção sonora As mesas são d e madeira com espuma revestida de tecido colorido na parte inferior e as cadeiras e banquetas são estofadas O palco é de madeira tendo painel ripado como fundo, que, além de trazer as características da fachada em Art Déco do Edifício Mabi para sua decoração interior, também contribui com o conforto acústico O guarda corpo da escada também é de madeira

Boemia

PLANTA
PLANTAS BAIXAS MOBILIADAS
PAVIMENTO ESC: 1/100
BAIXA SEGUNDO PAVIMENTO ESC: 1/200 Fluxo público em geral Fluxo restrito (funcionários)
Apoio
DE ZONEAMENTOESQUEMA DE FLUXOS
SEGUNDO PAVIMENTO ESC: 1/200
Paredes de alvenaria Paredes de concreto A pavimentação foi padronizado em cimento queimado pelo fato de alguns pisos originais já terem sido alterados e outros ficarem danificados ou incompletos em decorrência das reformas a serem realizadas As esquadrias de madeira originais da fachada principal (oeste) e da fachada lateral (sul) foram preservadas, enquanto as demais foram substituídas por esquadrias metálicas pretas As portas internas foram padronizadas em esquadrias metálicas 90x210cm e as portas externas em esquadria metálica preta com vidro temperado seguindo as dimensões indicadas nas plantas técnicas 07 | 18

ESC: 1/200

TERCEIRO PAVIMENTO ESC: 1/100

PLANTA BAIXA TERCEIRO Boemia PLANTA BAIXA TERCEIRO PAVIMENTO ESC: 1/200 ESQUEMA
PLANTAS BAIXAS MOBILIADAS
PAVIMENTO
Fluxo público em geral
Apoio
DE ZONEAMENTOESQUEMA DE FLUXOS Painel de revestimento para tratamento acústico em madeira a ser instalado no forro e nas paredes da sala de gravação Paredes de alvenaria Paredes de concreto 08 | 18 A pavimentação foi padronizado em cimento queimado pelo fato de alguns pisos originais já terem sido alterados e outros ficarem danificados ou incompletos em decorrência das reformas a serem realizadas As esquadrias de madeira originais da fachada principal (oeste) e da fachada lateral (sul) foram preservadas, enquanto as demais foram substituídas por esquadrias metálicas pretas As portas internas foram padronizadas em esquadrias metálicas 90x210cm e as portas externas em esquadria metálica preta com vidro temperado seguindo as dimensões indicadas nas plantas técnicas
PLANTA
PLANTAS BAIXAS TÉCNICAS TÉRREO ESC: 1/100
BAIXA TÉRREO ESC: 1/200 Conservar Construir ESQUEMA DEMOLIR, CONSTUIR E CONSERVAR Demolir AMBIENTE ÁREA (m²) Jardim interno 27,25 Lounge 61,02 Cozinha e Bar 19,30 Depósito de Lixo 3,45 WC 2,53 WC Universal 6,21 Circulação 13,98 Circulação 28,84 TOTAL térreo: 162,58 Jardim 151,27 27,25m² Paredes de alvenaria Paredes de concreto 09 | 18
PLANTAS BAIXAS TÉCNICAS SEGUNDO PAVIMENTO ESC: 1/100 PLANTA BAIXA SEGUNDO PAVIMENTO ESC: 1/200 Conservar Construir ESQUEMA DEMOLIR, CONSTUIR E CONSERVAR Demolir AMBIENTE ÁREA (m²) Área de mesas 81,05 WC Universal 6,79 WC Universal 6,21 Terraço 36,61 TOTAL segundo pavimento: 130,66 PALCO APOIO Paredes de alvenaria Paredes de concreto 10 | 18

TERCEIRO

PLANTAS BAIXAS TÉCNICAS
PAVIMENTO ESC: 1/100 PLANTA BAIXA TERCEIRO PAVIMENTO ESC: 1/200 Conservar Construir ESQUEMA DEMOLIR, CONSTUIR E CONSERVAR Demolir AMBIENTE ÁREA (m²) Coworking 40,32 Sala de Edição 7,27 Sala de Gravação 10,43 WC 2,55 Terraço 22,61 Terraço 9,59 Terraço 18,88 TOTAL terceiro pavimento: 111,65 Paredes de alvenaria Paredes de concreto 11 | 18
FACHADA MADEIRA TINTA PERSPECTIVA FRONTAL PERSPECTIVA “NOVA” FACHADA INTERNA PERSPECTIVA FACHADA
FACHADAS FACHADA POSTERIOR (LESTE) ESC: 1/100
LATERAL (SUL) ESC: 1/100 CONCRETO APARENTE
PINTADA DE CINZA (ESQUADRIAS ORIGINAIS) VIDRO TEMPERADO METAL PRETO FOSCO
AZUL CLARA A BASE DE CAL
POSTERIOR
FRONTAL (OESTE) ESC: 1/100 12 | 18

CORTE AA’

ESC: 1/100

CORTE BB’

ESC: 1/100

ESQUEMA ESTRUTURAL ORIGINAL X NOVO

Caixa do elevador em concreto

Cobertura de telha sanduíche metálica termoacústica com estrutura metálica

Passarela em chapa metálica corrugada apoiada sobre as vigas

Vigas metálicas pintadas de preto

Pilar metálico pintado de preto

Laje de concreto para apoio das passarelas inferiores

Micro estaca de concreto

Edificação original pré existente em alvenaria

Caixa de escadas e reservatório em concreto

Cobertura em chapa metálica corrugada estruturada por perfis metálicos pretos

Varanda em chapa metálica corrugada estruturada por vigas e pilares metálicos pretos

Cobertura em vidro estruturada por perfis metálicos pretos

Micro estaca de concreto

Janela tipo camarão de vidro temperado

ESTRATÉGIAS DE SUSTENTABILIDADE

REAPROVEITAMENTO DE EDIFICAÇÃO ANTIGA

Aproveitamento de estrutura existente reduz consideravelmente o uso de novos materiais e a geração de resíduos comum em obras de construção civil.

VENTILAÇÃO NATURAL

A criação do pátio interno traz maior ventilação para o interior do edifício, bem como a remoção das paredes internas permite que o ar circule pelo ambiente e gere ventilação cruzada Além disso, foi mantido o corredor lateral permitindo a ventilação também pela fachada sul.

Nova fachada interna Pele de vidro fixa por esquadria metálica preta

PAINÉIS SOLARES

Instalação de painéis solares na cobertura com total de 4 kWp, os quais geram 489,6 kWh/mês de energia, o que se estima ser de 20% a 30% do consumo do edifício.

Porta tipo camarão de vidro temperado

AVENIDA RIO BRANCO
CORTES E ESQUEMAS
A A’ B’B
A nova estrutura é composta por vigas e pilares metálicos e paredes de concreto, além de elementos complementares como passarelas e varandas em chapa corrugada, laje de concreto, cobertura em vidro temperado e micro estacas de concreto A nova estrutura de cor escura “abraça” a edificação existente de cor clara, permitindo a distinção original x novo 13 | 18
CORTE DE PELE E DETALHAMENTOS 14 | 18
1 VISTA DA FACHADA PRINCIPAL 3 VISTA DO BAR EM DIREÇÃO AO JARDIM 5 VISTA DO PAISAGISMO VISTA DO JARIDM
PERSPECTIVAS EXTERNAS 1 2 3 6
5 4
4 VISTA DO BAR COBERTO NO JARDIM 6
E FACHADA POSTERIOR2 VISTA ESQUEMÁTICA DA “NOVA” FACHADA INTERNA TÉRREO 16 | 18
1 VISTA AO ENTRAR PELO JARDIM INTERNO 3 VISTA DA CIRCULAÇÃO LATERAL EM DIREÇÃO AO LOUNGE 4 VISTA DO BAR EM DIREÇÃO AO LOUNGE E JARDIM INTERNO
PERSPECTIVAS TÉRREO 1 TÉRREO 2 4 3 2 VISTA DO LOUNGE EM DIREÇÃO AO BAR E CIRCULAÇÃO
17 | 18
1 VISTA DA ÁREA DE MESAS 3 VISTA DO COWORKING VISTA DO COWORKING
PERSPECTIVAS SEGUNDO E TERCEIRO PAVIMENTO TERCEIRO PAVIMENTO 3 2 VISTA DO PALCO
4
EM DIREÇÃO AO PÁTIO INTERNO SEGUNDO PAVIMENTO 2 18 | 18 4 1

Turn static files into dynamic content formats.

Create a flipbook
Issuu converts static files into: digital portfolios, online yearbooks, online catalogs, digital photo albums and more. Sign up and create your flipbook.
VILA BOÊMIA - TFG by Laura Thomas - Issuu