Edifício Pátio - projeto acadêmico

Page 1

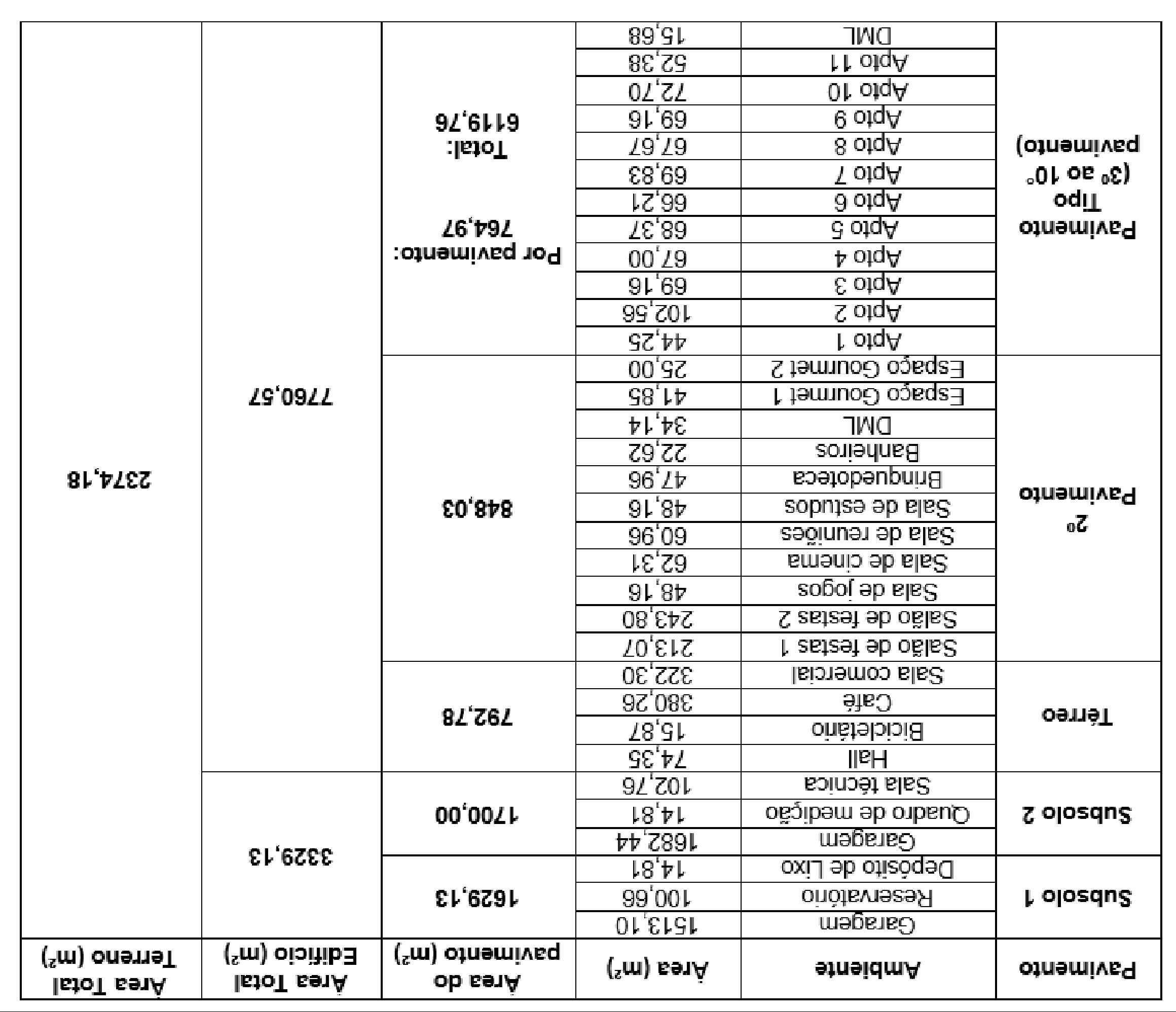
QUADRODEÁREAS

MALHAESTRUTURAL Aestruturaserámetálica,comvigasde40 cmdealturaparavencervãosdeaté10m.

ROTASDEFUGA Oedifíciocontacomduasescadasenclausuradaslocalizada napartecentraldospavimentosparagarantirasnormas segundoodecretoN53280/2016,comantecâmaraedutosde ventilaçãoeportascortafoto.Oedificiodispõedeumsistema desprinklers,portantoadistanciamáximaaserpercorridaéde 45m.

TÉRREO-ESC.1/500

2ºPAVIMENTO-ESC.1/500

PAVIMENTOTIPO-ESC.1/500

SUBSOLO1-ESC.1/500

SUBSOLO2-ESC.1/500

53,47 62,3 37,6 8,16 6,53 45,74
TRIUNFO RUATUIUTI AJARDINAMENTO (4m) -1,00 -0.05 A A B B AJARDINAMENTO(4m) gradeparaventilaçãodosubsolo 56,28 -0,50 -0,50 -1,58 -1,43 31,65 1,40 -0,50 2,90 laje impermeabilizada i=2% telhasanduíche i=15% RECUO(3,82m) RECUO (3,82m) acesso 2,50 -0,07 telhasanduíche i=15% telhasanduíche i=15% telhasanduíche i=15% telhasanduíche i=15% telhasanduíche i=15% laje impermeabilizada i=2% juntadedilatação 946 890 1000 842 1000 492 880 956 880 973 442 34,49m 30,87m 40,09m 38,96m 32,90m 37,48m 41,81m 41,96m 25,90m 21,85m 3,70m 3,92m UniversidadeFederaldeSantaMariaCursodeArquiteturaeUrbanismo ProjetodeArquiteturaeUrbanismo5 Acadêmica:LauraLuizaThomas 14 Professora:VanessaG.Dorneles 01 Anteprojeto PLANTADESITUAÇÃO PLANTADELOCALIZAÇÃO ESC.1/200 ESQUEMADAMALHAESTRUTURAL ESC.1/500
RUA BARÃO DO
ANTEPROJETO-EDIFÍCIORESIDENCIAL
QUADRODEÍNDICESURBANÍSTICOS

gradeparaventilaçãodosubsolo

AJARDINAMENTO(4m)

RECUO(3,82m)

TÉRREO 150x115/100 150x115/100 150x115/100 150x115/100 930x100/360 150x115/100 150x115/100 150x115/100 150x115/100 150x115/100 150x115/100 150x115/100 150x115/100 150x115/230 150x115/230 150x115/230 150x115/230 150x230 80x60/400 80x210 -0,03 -1,58
215437613111098 12 15 14 161719182022 212324 28252627 28degraus 1234 8567 910111214 13 19171615 18282726252423222120 28degraus b=28cm h=18cm 90x210 90x210 90x210 90x210 grade para ventilação do subsolo 140x210 90x210 140x210 150x115/230 150x220 140x220 1,40 2,50 2,90 grade para ventilação do subsolo -1,43 -1,00 -0,50 -0,50 -0,50 -0,00 -0,00 -0.05 A A B B -1,43 AJARDINAMENTO (4m)
RECUO (3,82m) Hall pisocimentoqueimado A=74,35m² banheiro PCD banheiro PCD banheiro PCD elevador elevador àtorre subsolo 0,00 90x210 90x210 90x210 90x210 Bicicletário pisocimentoqueimado A=15,87m² Salacomercial pisocimentoqueimado A=322,30m² -0,03 -0,03 0,00 0,00 0,00 0,00 portaria despensa cozinha Café pisocimentoqueimado A=380,26m² DML/apoio banheiro PCD pisocimentoqueimado pisocimentoqueimado concreto permeável concreto permeável concreto permeável concreto permeável grama grama grama grama grama grama grama grama grama grama grama -0,10 -0,07 -1,13 banco banco banco banco banco banco concreto permeável concreto permeável concreto permeável concreto permeável concreto permeável grama projeção da marquise projeção da marquise projeçãodamarquise projeçãodamarquise 713 10 1401 15 700 95 577 400 150 100 150 53 100 150 150 150 600 2035 600 150 589 616 530 150 1885 150 1889 10 225 15 172 15 483 15510 15 182 15 182 15 186 15 207 15 323 15 690 15 150 15 245 15 1010 15 713 10 2086 15510 1718 10 660 10 606 10 529 10 1752 10 0,00 0,00 0,00 2,52 2,52 0,00 àtorre 120 120 1,44 1234 8567 degraus b=30cm h=18cm 0,47 1,44 0,95 projeçãodutode entradadear projeçãodutode entradadear 240 150 150 150 150 616 150 120 90x210 2139 735 2142 735 5325 5305 juntadedilatação pele shaft shaft shaft shaft shaft shaft shaft shaft shaft shaft UniversidadeFederaldeSantaMariaCursodeArquiteturaeUrbanismo ProjetodeArquiteturaeUrbanismo5 Acadêmica:LauraLuizaThomas 14 Professora:VanessaG.Dorneles 02 Anteprojeto PLANTABAIXA-TÉRREO ESC.1/100
2ºPAVIMENTO-ÁREASCOMUNS 20degraus b=30cm h=16cm 12345678910 20191817161514131211 120degraus 1098765432 11121314151617181920 cozinha cozinha 90x210 80x60/220 80x60/220 80x60/220 300x230 300x230 300x230 300x230 95x95/95 95x95/95 95x95/95 95x95/95 95x95/95 95x95/95 95x95/95 95x95/95 95x95/95 95x95/95 95x95/95 95x95/95 95x95/95 95x95/95 95x95/95 95x95/95 95x95/95 95x95/95 95x95/95 95x95/95 95x95/95 95x95/95 95x95/95 95x95/95 95x95/95 95x95/95 95x95/95 95x95/95 95x95/95 95x95/95 95x95/95 95x95/95 95x95/95 95x95/95 95x95/95 95x95/95 95x95/95 95x95/95 95x95/95 95x95/95 95x95/95 95x95/95 95x95/95 95x95/95 95x95/95 95x95/95 95x95/95 95x95/95 95x95/95 95x95/95 95x95/95 95x95/95 95x95/95 95x95/95 95x95/95 95x95/95 95x95/95 5,04 A A B B 5,04 EspaçoGourmet1 pisocimentoqueimado A=41,85m² EspaçoGourmet2 pisocimentoqueimado A=34,14m² DML pisocimentoqueimado A=25,00m² Banheiros pisocimentoqueimado A=22,62m² 5,01 5,01 4,96 4,96 4,96 4,96 4,96 4,96 4,96 pisocimentoqueimado 5,01 pisocimento queimado 5,01 pisocimento queimado Brinquedoteca pisocimentoqueimado A=47,96m² Saladeestudos pisocimentoqueimado A=48,16m² 5,04 5,04 5,04 5,04 banco banco banco banco banco banco banco canteiro canteiro canteiro canteiro grama grama grama grama projeçãosacada Saladejogos pisocimentoqueimado A=48,16m² 5,04 Saladecinema pisocimentoqueimado A=62,31m² 5,04 Saladereuniões pisocimentoqueimado A=60,96m² 5,04 Salãodefestas1 pisocimentoqueimado A=213,07m² 5,04 banheiro PCD banheiro PCD banheiro banheiro PCD PCD elevador elevador antecâmara dutode saídade ar dutode entrada dear antecâmara dutode saídade dutode entrada dear 5,04 5,04 6,64 6,64 Salãodefestas2 pisocimentoqueimado A=243,80m² 5,04 churrasqueira churrasqueira churrasqueirachurrasqueira banco blocosdeconcreto permeável 685 15 690 15 651 15 685 180 180 685 15 678 15 663 15 1 25 150 15 150 15 150 15 150 170 1356 916 690 15 900 15 826 15 323 15 207 15 25 2209 15 205 15 205 15 250 15 250 153 15 150 15 150 15 172 15 170 105 15 2705 690 15 170 15 150 15 429 180 180 2799 3165 5625 5265 2808 3170 5241 5598 3738 916 220 220 230 456 230 marquise marquise marquise marquise 150 150 juntadedilatação cortede pele shaft shaft shaft shaft shaft shaft shaft shaft shaft shaft Pátiointerno UniversidadeFederaldeSantaMariaCursodeArquiteturaeUrbanismo ProjetodeArquiteturaeUrbanismo5 Acadêmica:LauraLuizaThomas 14 Professora:VanessaG.Dorneles 03 Anteprojeto PLANTABAIXA-2ºPAVIMENTO ESC.1/100
TIPO1 80x60/245 150x60/245 90x210 250x60/245 80x60/245 150x220 150x120/100 150x220 130x220 130x220 150x120/100 150x120/100 150x220 150x120/100 150x120/100 80x60/245 150x220 150x220 150x220 250x60/245 150x120/100 150x220 150x220 250x60/245 70x210 70x210 70x210 80x210 90x210 90x210 80x210 80x210 80x210 90x210 90x210 90x210 90x210 70x210 80x210 70x210 130x220 dormitório A=10,62m² pisode queimado A=3,42m² saladeestar A=14,42m² cozinhaeserviço A=10,25m² 90x210 90x210 90x210 90x210 80x60/220 80x60/220 80x60/220 condicionado condicionado 120degraus b=30cm h=16cm 2345678910 20191817161514131211 120degraus b=30cm h=16cm 1098765432 11121314151617181920 70x210 150x220 150x220 150x220 150x220 130x220 90x210 80x210 150x220 130x220 150x220 150x220 A A B B condicionado condicionado condicionado condicionado ar condicionado condicionado 8,24 DML pisocimentoqueimado A=15,68m² antecâmara dutode saídade ar dutode entrada dear antecâmara dutode saídade dutode entrada dear 8,24 8,24 9,84 9,84 8,21 8,24 APTO1 pisolaminado A=44,25m² pisocimentoqueimado 8,21 churrasqueira sacada sacada sacada APTO2 pisolaminado A=102,56m² dormitório A=12,48m² dormitório A=9,50m² dormitório A=10,64m² banheiro pisodecimentoqueimado A=3,34m² banheiro pisodecimentoqueimado A=4,33m² lavabo A=1,82m² saladeestarejantar A=25,92m² cozinha A=13,38m² serviço A=4,51m² churrasqueira APTO3 pisolaminado A=69,16m² dormitório A=17,62m² pisodecimento queimado A=3,60m² dormitório A=12,00m² serviço A=3,60m² A=14,06m² cozinha A=8,12m² dormitório A=17,62m² dormitório A=12,00m² APTO4 pisolaminado A=67,00m² A=14,06m² banheiro pisodecimento queimado A=3,60m² cozinha A=8,12m² serviço A=3,60m² 8,21 pisocimentoqueimado floreira floreira floreira floreira juntadedilatação juntadedilatação elevador elevador APTO5 pisolaminado A=68,37m² A=20,57m² APTO6 pisolaminado A=66,21m² A=20,57m² dormitório A=17,62m² pisodecimento queimado A=3,60m² A=12,00m² serviço A=3,60m² dormitório A=17,62m² dormitório A=12,00m² pisodecimento queimado A=3,60m² serviço A=3,60m² APTO7 pisolaminado A=69,83m² dormitório A=17,89m² banheiro pisodecimento queimado A=3,60m² dormitório A=12,00m² saladeestar A=14,25m² cozinha A=8,12m² serviço A=3,60m² APTO8 pisolaminado A=67,67m² dormitório A=17,89m² banheiro pisodecimento queimado A=3,37m² A=12,00m² saladeestar A=14,25m² cozinha A=8,12m² serviço A=3,60m² banheiro pisodecimento queimado A=3,60m² dormitório A=12,00m² cozinha A=8,12m² serviço A=3,60m² dormitório A=17,62m² A=14,06m² APTO9 pisolaminado A=69,16m² APTO10 pisolaminado A=72,70m² cozinha A=8,12m² saladeestar A=14,06m² A=13,80m² dormitório A=19,98m² banheiro pisodecimento queimado A=3,90m² serviço A=3,60m² pisodecimento queimado A=3,25m² dormitório A=12,21m² saladeestarejantar A=22,28m² APTO11 pisolaminado A=52,38m² cozinhaeserviço A=11,41m² 8,24 8,24 8,24 8,24 8,24 8,24 8,24 8,24 8,24 8,24 8,21 8,21 sacada 8,21 sacada 8,21 sacada 8,21 sacada cortede pele 8,21 sacada 8,21 sacada 8,21 sacada 8,21 sacada 8,21 sacada 8,21 8,21 sacada sacada sacada sacada sacada sacada sacada 670 15 1356 15 670 15 120 7015 150 400 165 90 150 400 165 90 483 172 150 250 205 190 68 255 180 195 670 670 400 670 150 165 90 670 400 150 670 250 365 568 15 385 678 670 230 40 816 40 230 284 15 345 15 370 15 305 15 300 15 375 15 255 15 445 15 300 15 300 15 370 15 300 15 300 15 540 15 212 400 150 165 90 670 405 40 3685 40 230 260 145 150 165 90 240 150 190 205 250 150 120 15 120 68 400 483 172 207 400 150240 670 400 150240 340 285 140 233 355 395 180 360 360 150 150 155 250 150 415 360 360 150 150 120 360 150 150 415 70 360 70 220 469 270 334 140 130 337 339 285 341 655 540 184 290 305 340 376 240 300 300 150 370 300 240 240 300 445 255 375 207 240 300 305 370 300 300 240 150 130 371 445 337 237 25 chaminé shaft shaft shaft shaft shaft shaft shaft shaft shaft shaft UniversidadeFederaldeSantaMariaCursodeArquiteturaeUrbanismo ProjetodeArquiteturaeUrbanismo5 Acadêmica:LauraLuizaThomas 14 Professora:VanessaG.Dorneles 04 Anteprojeto PLANTABAIXA-PAVIMENTOTIPO(3ºAO10°PAVIMENTO) ESC.1/100
SUBSOLO1 Garagem (40vagas,sendo4paraPCD) pisocimentoqueimado A=1513,10m² 116degraus h=16,25cm 8765432 910111213141516 90x210 90x210 projeçãopoço h=1,20m A A B B 600 600 596 600 15 53 15 905 500 250 150 73 575 620 500 500 600 562 15 87 15 905 600 1735 500 600 500 610 1300 15 53 15 1635 15 25 15 607 863 15 1878 475 378 3410 5820 2173 942 685 1000 499 1300 709 Depósitodelixo pisocimentoqueimado A=14,81m² Reservatórioinferior pisocimentoqueimado A=100,66m² Elevador -2,60 -2,60 -2,60 -1,30 -2,60 rampa rampa ventilação ventilação ventilação 3659 juntadedilatação UniversidadeFederaldeSantaMariaCursodeArquiteturaeUrbanismo ProjetodeArquiteturaeUrbanismo5 Acadêmica:LauraLuizaThomas 14 Professora:VanessaG.Dorneles 05 Anteprojeto PLANTABAIXA-SUBSOLO1 ESC.1/100
SUBSOLO2 116degraus h=16,25cm 8765432 910111213141516 90x210 90x210 A A B B -5,20 -3,90 -5,20 -5,20 -5,20 Quadrodemedição pisocimentoqueimado A=14,81m² Salatécnica pisocimentoqueimado A=102,67m² Garagem (48vagasparacarros,sendo5para PCD,e8vagasparamotos) pisocimentoqueimado A=1682,44m² rampa 5820 3357 5782 3410 3285 15 15 973 600 596 600 521 150 250 500 607 739 73 575 620 500 500 600 667 15 1021 658 1637 500 600 500 610 1300 607 867 15 784 479 1626 juntadedilatação UniversidadeFederaldeSantaMariaCursodeArquiteturaeUrbanismo ProjetodeArquiteturaeUrbanismo5 Acadêmica:LauraLuizaThomas 14 Professora:VanessaG.Dorneles 06 Anteprojeto PLANTABAIXA-SUBSOLO2 ESC.1/100

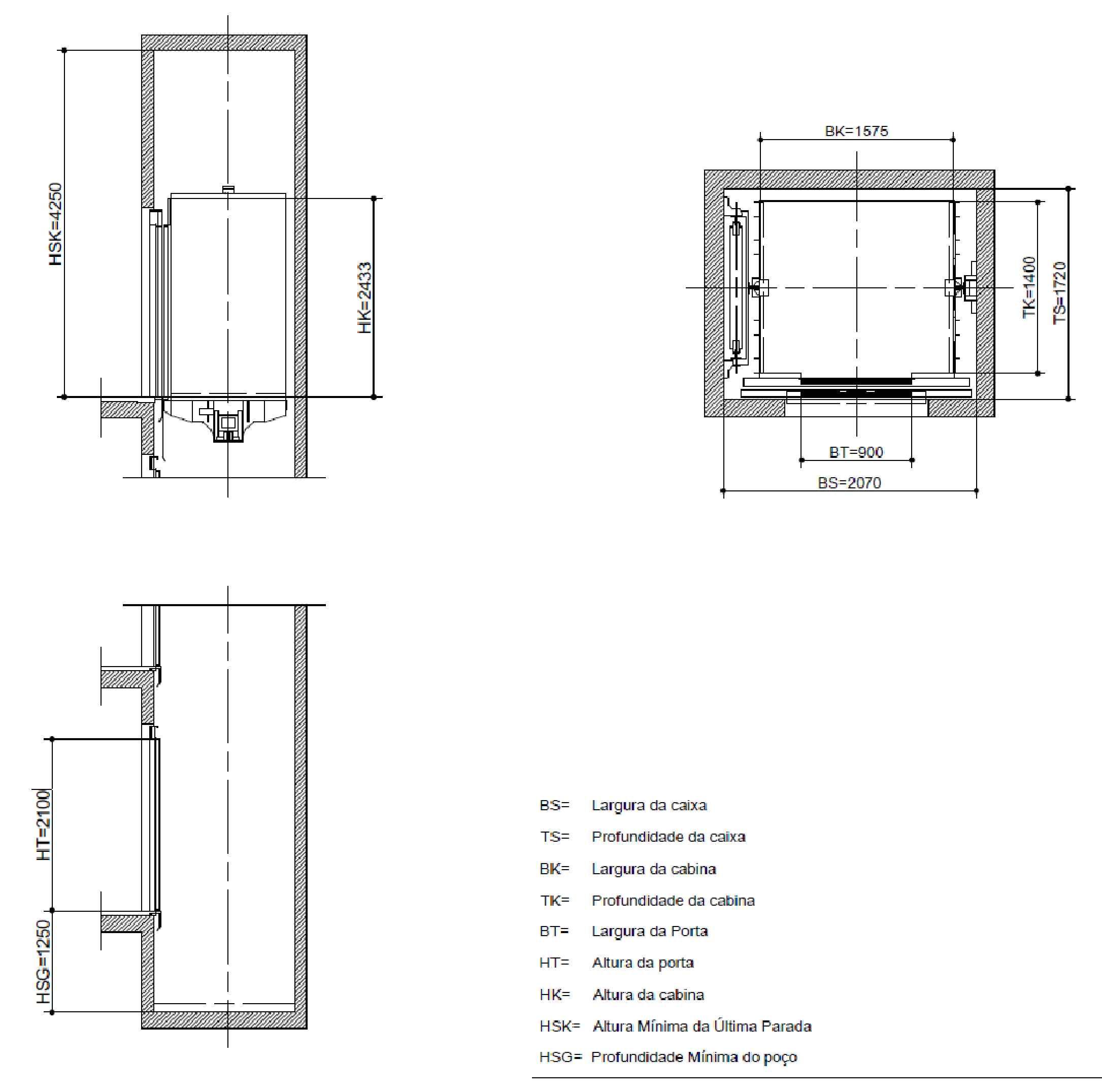
ELEVADOR

27,41

saladeestar jantar sacada 27,44 dormitório

saladeestar jantar sacada 24,24 dormitório 24,21 banheiro serviço cozinha dormitório banheiro saladeestare cozinha serviço circulação cozinha/ saladeestar serviço banheiro dormitório cozinha/ saladeestar serviço banheiro dormitório

sacada

saladeestar jantar sacada 21,04 dormitório 21,01 banheiro serviço cozinha dormitório banheiro saladeestare cozinha serviço circulação cozinha/ saladeestar serviço banheiro dormitório cozinha/ saladeestar serviço banheiro dormitório

sacada

dormitório

banheiro serviço cozinha dormitório banheiro saladeestare cozinha serviço circulação cozinha/ saladeestar serviço banheiro dormitório cozinha/ saladeestar serviço banheiro dormitório

sacada

dormitório

banheiro serviço cozinha dormitório banheiro saladeestare cozinha serviço circulação cozinha/ saladeestar serviço banheiro dormitório cozinha/ saladeestar serviço banheiro dormitório

dormitório

banheiro serviço cozinha dormitório banheiro saladeestare cozinha serviço circulação cozinha/ saladeestar serviço banheiro dormitório cozinha/ saladeestar serviço banheiro dormitório

sacada

banheiro serviço cozinha dormitório banheiro saladeestare cozinha serviço circulação cozinha/ saladeestar serviço banheiro dormitório cozinha/ saladeestar serviço banheiro dormitório sacada saladeestar jantar sacada 30,64 dormitório 30,61 banheiro serviço cozinha dormitório banheiro saladeestare cozinha serviço circulação cozinha/ saladeestar serviço banheiro dormitório cozinha/ saladeestar serviço banheiro dormitório sacada 8,21 11,41 14,61 17,81 21,01 24,21 27,41 30,61 0,00 -1,43 -1,43 -5,20 -2,60 poçodoelevador 1,44 0,47 cozinha banheiro banheiro banheiro banheiro DML/apoio salacomercial salãodefestas marquise marquise marquise circulação circulação garagem garagem reservatórioinferior salatécnica ventilação shaft reservatóriosuperior saladeestudos brinquedoteca banheiro DML marquise marquise marquise marquise telhasanduíche telhasanduíche 5,01 5,01 33,84 35,04 corredor 25 15 280 25 15 280 25 15 280 25 15 280 25 15 280 25 15 280 25 15 280 25 15 280 25 15 280 25 15 350 464 15 25 220 15 25 220 15 100 254 3614 425 125 junta de dilatação Universidade Federal de Santa Maria Curso de Arquitetura e Urbanismo Projeto de Arquitetura e Urbanismo 5 Acadêmica: Laura Luiza Thomas 14 Professora: Vanessa G. Dorneles 07 Anteprojeto CORTEAA' ESC.1/100

saladeestar jantar sacada 8,24 5,04
8,21
saladeestar jantar
11,44
11,41
saladeestar jantar sacada 14,64
14,61
2,20 saladeestar jantar
dormitório 17,84
banheiro serviço cozinha dormitório banheiro saladeestare cozinha serviço circulação cozinha/ saladeestar serviço banheiro dormitório cozinha/ saladeestar serviço banheiro dormitório 17,81
sacada
sacada
sacada
sacada
Oedifíciocontacomdoiselevadorescomcapacidadepara13pessoascada,para atenderapopulaçãoestimadade336moradores.
rampa -1,00 8,21 11,41 14,61 17,81 21,01 24,21 27,41 30,61 8,21 11,41 14,61 17,81 21,01 24,21 27,41 30,61 8,24 5,04 11,44 14,64 17,84 21,04 24,24 27,44 30,64 8,24 5,04 11,44 14,64 17,84 21,04 24,24 27,44 30,64 8,21 11,41 14,61 17,81 21,01 24,21 27,41 30,61 8,21 11,41 14,61 17,81 21,01 24,21 27,41 30,61 5,01 5,01 5,01 4,96 5,01 5,01 0,00 1,40 2,60 -5,20 garagem garagem ventilação -0,03 cozinha banheiro corredor salãodefestas2 salãodefestas1 lajejardim canteiro floreira floreira dormitório serviço serviço dormitório circulação circulação circulação circulação dormitório serviço serviço dormitório sacada sacada circulação circulação dormitório serviço serviço dormitório sacada sacada circulação circulação dormitório serviço serviço dormitório sacada sacada circulação circulação dormitório serviço serviço dormitório sacada sacada circulação circulação dormitório serviço serviço dormitório sacada sacada circulação circulação dormitório serviço serviço dormitório sacada sacada circulação circulação dormitório serviço serviço dormitório sacada sacada circulação circulação reservatóriosuperior reservatóriosuperior dutode saídadear dutode saídadear marquise marquise marquise marquise floreira floreira floreira floreira floreira floreira floreira floreira floreira floreira banco banco banco 15 280 25 15 280 25 15 280 25 15 280 25 15 280 25 15 280 25 15 280 25 15 280 25 15 280 25 15 315 15 lajeimpermeanilizada lajeimpermeanilizada 300 100 100 100 100 100 100 100 100 80 492 2512 220 15 25 220 15 100 40 Pátiointerno UniversidadeFederaldeSantaMariaCursodeArquiteturaeUrbanismo ProjetodeArquiteturaeUrbanismo5 Acadêmica:LauraLuizaThomas 14 Professora:VanessaG.Dorneles 08 Anteprojeto CORTEBB' ESC.1/100 PERSPECTIVADOPÁTIOINTERNOAPARTIRDACIRCULAÇÃODAÁREARESIDENCIAL PERSPECTIVADOPÁTIOINTERNOEÁREASCOMUNS

BrisesverticaisemplacasACM comtexturametálica

Marquiserevestidacomplaca cimentíciaimpermeabilizada

Acabamentoempinturacomtinta branca

BrisesverticaisemplacasACM comtexturademadeira

Molduradasacadaemconcreto aparente

Universidade Federal de Santa Maria Curso de Arquitetura e Urbanismo Projeto de Arquitetura e Urbanismo 5 Acadêmica: Laura Luiza Thomas 14 Professora: Vanessa G. Dorneles 09 Anteprojeto FACHADAOESTE ESC.1/100

Marquiserevestidacomplaca cimentíciaimpermeabilizada

Acabamentoempinturacomtinta branca

BrisesverticaisemplacasACM comtexturademadeira

Molduradasacadaemconcreto aparente

BrisesverticaisemplacasACM comtexturametálica

UniversidadeFederaldeSantaMariaCursodeArquiteturaeUrbanismo ProjetodeArquiteturaeUrbanismo5 Acadêmica:LauraLuizaThomas 14 Professora:VanessaG.Dorneles 10 Anteprojeto
FACHADANORTE ESC.1/100

Marquiserevestidacomplaca cimentíciaimpermeabilizada

Acabamentoempinturacomtinta branca

BrisesverticaisemplacasACM comtexturademadeira

Molduradasacadaemconcreto aparente

BrisesverticaisemplacasACM comtexturametálica

Universidade Federal de Santa Maria Curso de Arquitetura e Urbanismo Projeto de Arquitetura e Urbanismo 5 Acadêmica: Laura Luiza Thomas 14 Professora: Vanessa G. Dorneles 11 Anteprojeto FACHADALESTE ESC.1/100

BrisesverticaisemplacasACM comtexturametálica

Marquiserevestidacomplaca cimentíciaimpermeabilizada

Acabamentoempinturacomtinta branca

BrisesverticaisemplacasACM comtexturademadeira

Molduradasacadaemconcreto aparente

UniversidadeFederaldeSantaMariaCursodeArquiteturaeUrbanismo ProjetodeArquiteturaeUrbanismo5 Acadêmica:LauraLuizaThomas 14 Professora:VanessaG.Dorneles 12 Anteprojeto
FACHADASUL ESC.1/100

PERSPECTIVAAPARTIRDAVISTADAESQUINADARUATUIUTIEDARUABARÃODOTRIUNFO

UniversidadeFederaldeSantaMariaCursodeArquiteturaeUrbanismo ProjetodeArquiteturaeUrbanismo5 Acadêmica:LauraLuizaThomas 14 Professora:VanessaG.Dorneles 13 Anteprojeto PERSPECTIVAAPARTIRDAVISTADARUABARÃODOTRIUNFO

marquise:estruturaemaçochumbadonaviga;fechamento placacimentíciaimpermeabilizadaaparentefixapor espaçadoreschumbadosàestrutura

chapametalicaparafixaçãodobrise

vigametálicah=40cm

forrodegesso

briseverticalemplacadeACMcomtexturademadeira, parafusadoemchapametálicafixanaestrutura

forrodegesso

parededasacadacomfechamentoemplacacimentícia

chapametálicaparafixaçãodobrise

briseverticalemplacadeACMcomtexturametálica parafusadoemchapametálicafixanaestrutura

esquadriafixadealumíniocomvidrotemperado

lajeemconcretoarmado 5,04 8,24 11,44 -1,71 vigametálicah=40cm marquise:estruturaemaçochumbadonaviga;fechamento placacimentíciaimpermeabilizadaaparentefixapor espaçadoreschumbadosàestrutura janelamaxim-ar vigametálica fechamentoemplacacimentíciaimpermeabilizadaaparente fixaporespaçadoreschumbadosàestrutura vigametálicah=40cm lajeemconcretoarmado pisoemcimentoqueimado contrapiso guarda-corpodevidrotermeradofixoemsuportedeaçoinox portadecorrer150x220cmemesquadriadealumínio pretofoscoevidro lajeemconcretoarmado vigametálica fechamentoemplacacimentíciaimpermeabilizadaaparente fixaporespaçadoreschumbadosàestrutura lajeemconcretoarmado contrapiso pisoemcimentoqueimado guarda-corpodevidrotemperadofixoemsuportedeaçoinox
fechamentoemplacacimentíciaimpermeabilizada,fixadaemestrutura steelframecomacabamentoempinturacomtintabranca fechamentoemplacacimentíciaimpermeabilizada,fixadaemestrutura steelframecomacabamentoempinturacomtintabranca lajeemconcretoarmado 0,00 contrapiso pisolaminado contrapiso pisolaminado lajeemconcretoarmado saladeestar salãodefestas café saladeestar vigametálicah=40cm lajeemconcretoarmado vigaemvista contrapiso pisocimentoqueimado vigaaparente vigametálicah=40cm vigaemvista pisocimentoqueimado contrapiso garagem chapametálicaparafixaçãodobrise 5,01 8,21 11,41 peledevidrotemperadofixaporperfildealumíniopretofosco 40 180 91 91 91 41 110 40 25 15 4 461 25 15 276 25 15 4 274 2 25 15 2 274 2 25 15 4 5 24 5 2 1 1 15 21 180 41 41 180 110 31 soleiradepedracompingadeira portadecorrer150x220cmemesquadriadealumínio pretofoscoevidro soleiradepedracompingadeira marquise:estruturaemaçochumbadonaviga;fechamento placacimentíciaimpermeabilizadaaparentefixapor espaçadoreschumbadosàestrutura
platibandaemconcretoarmado 33,81 telhasanduíche calhametálica 40 310 40 UniversidadeFederaldeSantaMariaCursodeArquiteturaeUrbanismo ProjetodeArquiteturaeUrbanismo5 Acadêmica:LauraLuizaThomas 14 Professora:VanessaG.Dorneles 14 Anteprojeto SEÇÃODAFACHADA ESC.1/20 CORTEDEPELE ESC.1/20

Turn static files into dynamic content formats.

Create a flipbook
Issuu converts static files into: digital portfolios, online yearbooks, online catalogs, digital photo albums and more. Sign up and create your flipbook.
Edifício Pátio - projeto acadêmico by Laura Thomas - Issuu