

Ocean Pines

THE AZALEA
The Cypress
The Dogwood
THE AZALEA | UNIT 1313

2 Bedroom, 3 Bath with Den
THE AZALEA | UNIT 1315

2 Bedroom, 3 Bath with Den
THE AZALEA | UNIT 1317
1,932 sq. ft.

FLOOR
THE AZALEA | UNIT 1323

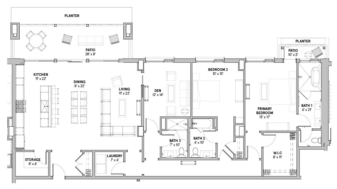
2 Bedroom, 3 Bath with Den 2,215 sq. ft.

Bedroom, 3 Bath with Den
sq. ft.
THE AZALEA | UNIT 1327

THE AZALEA | UNIT 1333

2 Bedroom, 3 Bath with Den 2,215 sq. ft.
THE AZALEA | UNIT 1335

2,552 sq. ft.
THE AZALEA | UNIT 1337

Bedroom, 2.5 Bath with Den
THE AZALEA | UNIT 1311

2,655 sq. ft.
3 Bedroom, 4 Bath with Den
THE AZALEA | UNIT 1321

2,626 sq. ft.
3 Bedroom, 4 Bath with Den
THE AZALEA | UNIT 1331
Bedroom, 4 Bath with Den & Loft
3,144 sq. ft.

THE AZALEA | UNIT 1341

