TUGAS 1_212000630_KEISHIA

Page 1

ASD3011 STUDIO DESAIN 5

CALVIN INSTITUTE OF TECHNOLOGY

2021

WATERFRONT

PENGEMBANGAN KAWASAN TERINTEGRASI

KEISHIA SARIDEVI SUGIARTA KAREN WIJAYA, M.P.W.K, DOSEN PENGAMPU
TABLE OF CONTENTS 01 02 04 03 05 CASE STUDY CASE STUDY CASE STUDY OCT OH BAY RETAIL PARK HAOXIANG LAKE PARK HUNTERS POINT LIBRARY DOCKLANDS LIBRARY BUS STATION TILBURG WATERFRONT / CULTRAL PARK WATERFRONT / CULTURAL PARK LIBRARY LIBRARY SHELTER CASE STUDY CASE STUDY
06 07 08 09 10 DESIGN SCENARIO V ision, Theme, Design Criteria, & Programming Structure Design & Utility System SUSTAINABLE ASPECT SITE ANALYSIS Urban Analysis & Site Inventory TO BE CONTINUED Landscape Design & Building Aesthetic Disadvantages & Advantages DESIGN CONCEPT CONCLUSION

OCT OH BAY RETAIL PARK

PUBLIC SPACE, COMMERCIAL ARCHITECTURE, URBAN & LAND USE PLANNING

LOCATION : SHENZHEN, CHINA

ARCHITECTS: LAGUARDA.LOW ARCHITECTS

AREA: 430000 M²

YEAR: 2021

TUJUAN :

Merepresentasikan pertumbuhan dengan menggabungkan perdagangan dan fasilitas budaya kelas dunia.

OCT OH BAY RETAIL PARK juga merupakan penghubung antara Bandara Internasional Shenzhen yang baru, kantor pusat pemerintahan baru, dan fasilitas kebudayaan kelas dunia. Dan semua ini di koneksi dengan jalur pejalan kaki yang bergelombang

128 Hektar dibagi menjadi 4 zona :

West Waterfront Retail Park East Waterfront Retail Park

Taman Budaya Tepi Laut Pusat Bisnis

01 04 AERIAL VIEW // ARCHDAILY TOP VIEW // ARCHDAILY

BENTUK BANGUNAN :

RAMPING DAN MELENGKUNG

Kedua kombinasi bentuk ini akan banyak ditemukan

dalam bangunan karena berdasarkan tujuan yang ingin dicapai adalah menyatukan dan memadukan antara kebutuhan ruang pertemuan publik yang layak secara komersial dan pengembangan kawasan budaya dalam skala yang besar.

KONSEP :

SELIMUT EKOLOGIS

Hal ini dikarenakan lanskap alam yang telah menyeliputi lokasi dan keselarasan antara bentuk-bentuk organik dengan alam dan juga penyesuaian dengan konteks kota.

Untuk menarik perhatian pengunjung desain pada bangunan dibuat bersifat yang terbuka dan terintegrasi. Selain itu, bangunan ini memiliki elemen kunci yaitu air. Air yang difungsikan sebagai pendekatan masyarakat dengan alam ( Menjelajahi tepi laut dengan perahu ).

ASPEK KEBERLANJUTAN

• Jalur Hijau Ekologi yang melintasi blok-blok ritel bagian dalam dan luar (pendekatan fitur air dan tanaman).

• Lanskap dan Arsitektur yang terintegrasi secara alami (Balkon Hijau, Tenda Hijau, Atap Ekologis) yang telah memberikan bentukan saluran udara dan penyerapan air

• Memperhatikan orientasi bangunan dan bentuk untuk meningkatkan tekanan angin dan termal yang baik.

CONCEPT DIAGRAM // ARCHDAILY 05
CENTRAL PLAZA // ARCHDAILY PEDESTRIAN BRIDGE // ARCHDAILY CONCEPT DIAGRAM // ARCHDAILY

AFTER VIEW // ARCHDAILY

HAOXIANG LAKE PARK

PUBLIC SPACE, PARK

LOCATION : SHENZHEN, CHINA

ARCHITECTS: ELANDSCRIPT STUDIO

AREA: 130000 M²

YEAR: 2021

TUJUAN :

Sebagai kolam retensi air hujan yang penting karena lokasinya yang berdekatan dengan 4 sungai sehingga menjadi pengendalian banjir lokal dan pencegahan polusi.

ISU :

Kualitas air semakin memburuk dan didekat danau sudah menjadi lokasi sekitar pabrik maka lokasi mulai terlupakan dan tidak terurus oleh warga lokal.

TEMA :

REGENERASI YANG FLEKSIBEL

Dengan cara mengelola ekologis yang dapat meningkatkan kualitas air secara menyeluruh dan pembaruan perkotaan dengan memposisikan ulang ruang disekitar danau menjadi taman tepi terbuka. Sehingga dapat menjadikan lingkungan positif dan menyelesaikan masalah pesatnya perkembangan kota.

BEFORE VIEW // ARCHDAILY WATER TREATMENT SOLUTION // ARCHDAILY

02
06

BENTUK DESAIN :

Bentuk desain yang dihasilkan adalah dari pertimbangan dari hubungan antara Jalur pejalan kaki sepanjang 850 meter dengan 4 ruang tepi sungai yang bertabrakan dengan lokasi di area berbeda.

Dihubungkan melalui Jembatan Pelangi, Pintu AIr, dan Kafe Flora Trellis. Sehingga masing-masing area ini dikenal dengan taman rekreasi yang cukup populer bagi warga

ASPEK KEBERLANJUTAN

• Menggeneresasikan Ketahanan, Dengan menarik perhatian warga melalui fasilitas yang diperlukan di tepi laut dan dari tepi laut yang fleksibel untuk dijadikan sebagai pendekatan dan pengenalan alam serta memahami betapa pentingnya perlindungan lingkungan perairan.

(Elevated Reedbank Promenade, dan kawasan pejalan kaki berbatu yang dapat terendam banjir)

• Peningkatan Budaya

Mengubah fungsi lahan yang berawal dari bangunan pembangkit listrik menjadi ruang pameran budaya dan kreatif. Yang menjadikan atribut budaya warisan perkotaan

(Labirin Air Kerang Tiram dan Education Wetland, acara pertemuan halaman rumput yang megah dan pertunjukan budaya.)

EDUCATION WETLAND // ARCHDAILY
07
RAINBOW BRIDGE // ARCHDAILY RAINBOW BRIDGE // ARCHDAILY REEDBANK PROMENADE // ARCHDAILY RAINBOW BRIDGE // ARCHDAILY OYSTER SHELL // ARCHDAILY RAINBOW BRIDGE // ARCHDAILY WIND TRELLIS // ARCHDAILY

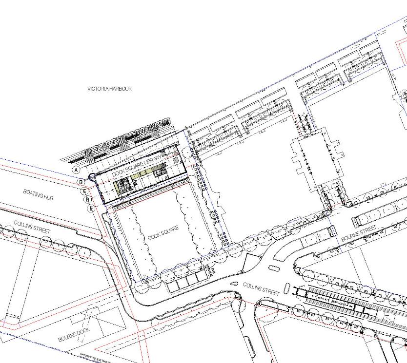
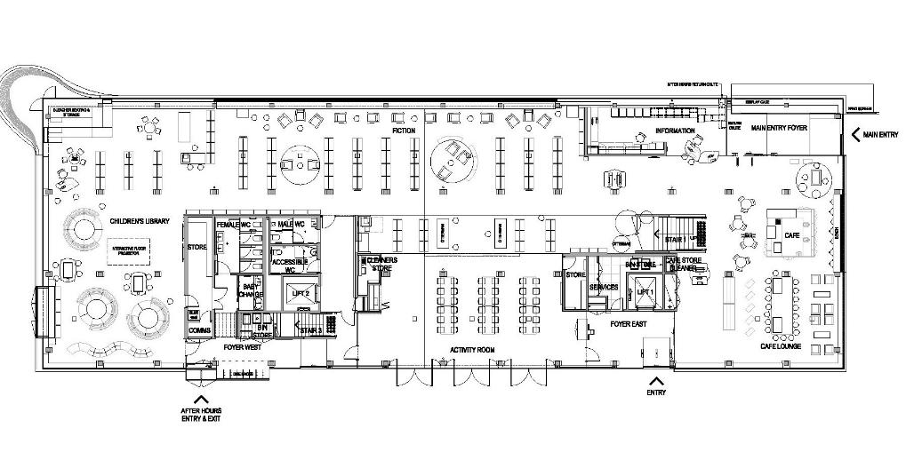
DOCKLANDS LIBRARY PUBLIC LIBRARY

LOCATION : CITY OF MELBOURNE, AUSTRALIA

ARCHITECTS: CLARE DESIGN

AREA: 3000 M²

YEAR: 2014

TUJUAN :

Menjadikan perpustakaan yang memiliki kapasitas untuk memperkuat lingkungan dan komunitas sehingga dapat menjadi bagian dari kontribusi arsitek terhadap generasi kota dan masyarakat.

TEMA :

RUANG TAMU PUBLIK

Tema ini diangkat karena keinginannya arsitek untuk mendobrak pandangan yang mengkritik bahwa kawasan Docklands merupakan kumpulan bangunan yang terpisah tanpa adanya fokus komunitas dan sosial.

Sehingga diharapkan dengan adanya perpustakaan ini dapat menjadi jantung sosial yang dapat memberikan pengembangan dan ekploratif minat bersama.

FASILITAS RUANG :

• Ruang Pertunjukan

• Pusat Media

• Ruang membaca

• Ruang Pertemuan Komunitas

• Ruang Pameran Budaya

• Ruang Seni

• Area Belajar Informal dan Formal

08
03
DOCKLAND LIBRARY // ARCHELLO SOCIAL SPACE // ARCHELLO

BENTUK DESAIN :

Dirancang diatas dermaga yang struktur bangunannya ingin dipertahankan sebagai warisan budaya sehingga bentuk dari bangunan yaitu 3 lantai yang menggunakan kayu ringan.

Teknik yang digunakan adalah teknik CLT (cross laminasi kayu) pada bagian pelat, atap, kolom, balok, dan dinding. Hasil dari teknik ini dapat berupaya untuk netralisasi karbon & optimalisasi sistem lingkungan pasif.

ASPEK KEBERLANJUTAN

• Teknik CLT, metode prefabrikasi yang menghasikan pembangunan yang cepat dan konstruksi tidak menggangu kegiatan masyarakat

• Dengan material kayu dapat menghasilkan rasa hangat bagi penghuni dan memiliki banyak manfaat keberlanjutan

• Bangunan ini mencakup ventilasi pasif, ruang dalam / luar ruangan di lantai tiga dengan fasad yang dapat dioperasikan dan atap panel surya 85kw di atap, pemanenan air, dan pencahayaan alami.

• Skylight sentral membawa cahaya ke tengah denah

• Perpustakaan memaksimalkan pemandangan dari taman hingga air dan sebaliknya pada 3 tingkat dan bertindak sebagai cerobong ventilasi melalui efek tumpukan (dibangun 8 meter ditepi air)

• Fasad - layar hujan kayu talow dan kulit besi daur

• Pemanas hidrolik diletakkan di pelat wafel beton lantai dasar ulang

09 DESIGN PROCESS // ARCHELLO
BOOKSHELFT // CLARE DESIGN STAIRCASE // CLARE DESIGN DOCKLANDS LIBRARY // CLARE DESIGN SITEPLAN // CLARE DESIGN FLOORPLAN // CLARE DESIGN FLOORPLAN // CLARE DESIGN PREFABRIKASI // CLARE DESIGN

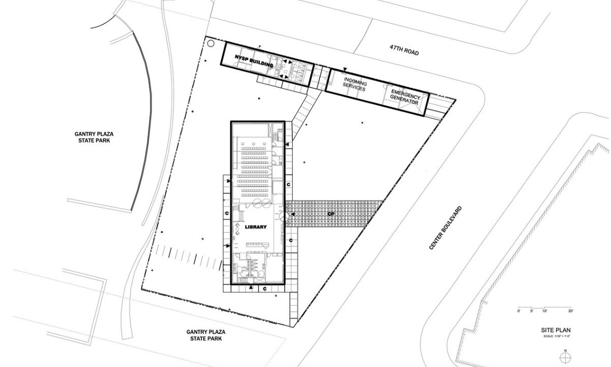
HUNTERS POINT LIBRARY

PUBLIC LIBRARY

LOCATION : QUEENS, UNITED STATES

ARCHITECTS: STEVEN HOLL ARCHITECTS

AREA: 22000 FT²

YEAR: 2019

TUJUAN :

Perpustakaan Umum Queens seluas 22.000 kaki persegi di Hunters Point berdiri sebagai bangunan publik dan taman umum, menghadirkan ruang khusus komunitas ke tepi laut Long Island City.

Menawarkan ruang hijau secara maksimal kepada komunitas lokal agar lebih ramah lingkungan, dengan cara mendirikan perpustakaan yang bersifat mandiri (terpisah).

Sehingga diharapkan perpusatakaan ini dapat memadukan antara bangunan, ruang hijau dan tepi sungai.

FASILITAS RUANG :

• Ruang membaca sesuai dengan kalangan umur

• Area buku yang sesuai dengan kalangan umur

• Kantor

• Lounge

• Ruang teknologi

• Teras

• Restoran dan Kafe

11
04
DOCKLAND LIBRARY // ARCHELLO SITEPLAN // ARCHELLO

BENTUK DESAIN :

Pembangunan dengan bentuk persegi panjang, dengan bagian teras di atap bangunan dibuat melengkung dengan jendela besar berbentuk persegi panjang dikeempat sisinya.

Pemasangan bentuk kaca yang geometris, berbentung miring dengan ujung bulat di bagian luar yang tepat menghadap manhattan. Sedangkan tiga lainnya menggunakan sudut melengkung disisi belakang.

KONSEP:

TERBUKA DENGAN PENCAHAYAAN ALAMI

Menyediakan beragam ruang dari area membaca yang akrab hingga ruang berkumpul yang aktif dengan perpaduan jendela yang besar dari berbagai arah dan sisi untuk menghadirkan cahaya alami.

Untuk bagian dalam bangunan, ruang membaca dipisah sesuai dengan kalangan umur yang dapat terlihat pada pahatan potongan bagian timur bangunan, satu bukaan fasad untuk setiap area.

Di dalamnya, bambu hangat menciptakan ruang sosial yang menarik, terbuka untuk komunitas dan menawarkan ruang menarik untuk segala usia

ASPEK KEBERLANJUTAN

Dengan bentuk bangunan yang memungkin

adanya bukaan sebesar ini, bangunan ternilai cukup mendukung upaya hemat energi dan ruang hijau publik terbesar. Namun, dengan menggunakan kriteria bangunan bertangga menjadi ternilai kurang khususnya untuk masyarakat yang berkebutuhan khusus

12
CONCEPT SKETCHES // ARCHDAILY CONCEPT SKETCHES // ARCHDAILY CONCEPT SKETCHES // ARCHDAILY ADULT
ARCHDAILY CHILDREN’S
// ARCHDAILY
ROOM //
ROOM
TEEN AREA // ARCHELLO

BUS STATION TILBURG

BUS STATION, SUSTAINABILITY

LOCATION : TILBURG, THE NETHERLANDS

ARCHITECTS: ARCHITECTENBUREAU CEPEZED

YEAR: 2019

TUJUAN :

Terminal bus merupakan bagian dari revitalisasi pusat transportasi umum Tilburg. Tujuan dari revitalisasi adalah untuk menyesuaikan arah orientasi dan arus lalu lintas yang jelas.

Terdapat 4 Kriteria Desain yang digunakan

• Sirkuit Minimalis

• Tenda dengan pv dan etfe

• Perwujudan dan perincian integral

• Inklusif, perawatan rendah, dan bukti masa depan

Desain keseluruhan tanpa hiasan dengan tepi dan sudut minimal mengurangi biaya pembersihan. Selain itu, ke depannya terminal bus juga sudah dipersiapkan untuk penempatan peralatan listrik tambahan yang dapat mengisi daya bus listrik dengan cepat.

05 13
TILBURG STATION // ARCHDAILY TILBURG GARDEN // ARCHDAILY CORNER VIEW // ARCHDAILY

BENTUK BANGUNAN :

SERANGKAIAN KOLOM TIPIS DENGAN TENDA

Bentuk shelter yang menyesuaikan konteks dengan mengatur posisi bus mengelilingi sisi luar sehingga dapat menghasilkan ruang terbuka di bagian tengah.

KONSEP :

ELEGAN DAN MINIMALIS

Fokus utama yang cukup diperhatikan dalam desain stasiun bis ini adalah fungsionalnya dan selaras dengan konteks perkotaan, namun secara visual, mereka juga selaras secara elegan dengan struktur atap monumental stasiun kereta.

Ini juga memiliki struktur yang diartikulasikan dan bahkan tampak mengambang, seperti tenda terminal bus.

ASPEK KEBERLANJUTAN

• Panel surya seluas 250 m2 terletak di atas tenda. Di siang hari yang terik, hal ini memberikan pola bayangan pada ETFE.

• Memperhatian penataan dan materialisasi serta detail yang sesederhana mungkin.

• Kejelasan sistem yang digunakan untuk terminal bus dan merekayasanya dengan cermat.

SITEPLAN // ARCHDAILY 14
PANEL SURYA // ARCHDAILY TILBURG STATION // ARCHDAILY ROOF VIEW // ARCHDAILY SITTING DESIGN // ARCHDAILY

Turn static files into dynamic content formats.

Create a flipbook
Issuu converts static files into: digital portfolios, online yearbooks, online catalogs, digital photo albums and more. Sign up and create your flipbook.