

![]()


2715 Turnberry Park Lane, St. Louis, MO
(314)562-8958 / kate.fesler@ku.edu
LinkedIn: Kathryn N. Fesler
Education
University of Kansas School of Arch/Design Junior Master of Architecture GPA: 3.7
3rd Year M. Arch Representative Mentorship Collaborative Program
- an active resource for freshman arc/d students
- design skill-set, software help, peer mentor in reviews - active leadership role representing arc/d class of 2027
AIAS Member at University of Kansas
Kate Fesler Photography
- custom photography sessions catering to client needs - experience with headshots, senior photos, family portaits, club/interfraternal groups, etc.
Pi Beta Phi Fraternity New Member Member Sisterhood Committee Leader
Head Lifeguard at Missouri Athletic Club
- managed the pool and directly communicated with upper management to better experiences with members
Academic Chancellor’s Scholarship
Dean’s List
National Honor Society Skills

2022 - 2027
2024 - Present
2023 - Present
2023 - Present
2022 - Present
2021 - 2023






pages: 6 - 13
pages: 14 - 21
pages: 22 - 29
pages: 30 - 35
pages: 36 - 39

East 3rd & Main Street
River Market Kansas City, MO
23,000 SF
The River Light Library is a place gathering for the growing population where knowledge meets community, a light nestled in a bustling urban surrounding. The library merges modern aesthetics with sustainability, featuring expansive windows for natural light, louvers for passive design, spaces for events, an interactive art studio and greenroof deck. The River Light Library is a hub for art, literature, technology, history, and gathering for the community of the River Market neighborhood.






























































































Riverfront Park, 1594 N 3rd St.
Lawrence, KS
1000 SF
The Hide is a structure that pays homage to two scenes: the Kansas riverfront and the forest. This structure is a bridge for two different natureThe site links trails and sets a framework for visitors to enjoy the scenery. In Robin Wall Kimmerer’s novel, “Braiding Sweetgrass”, the narrarator touches on the relationship bewtween humans and the Earth. The Hide pays respect to the sacred ground, while framing the Earth’s natural beauty.





























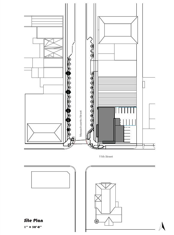
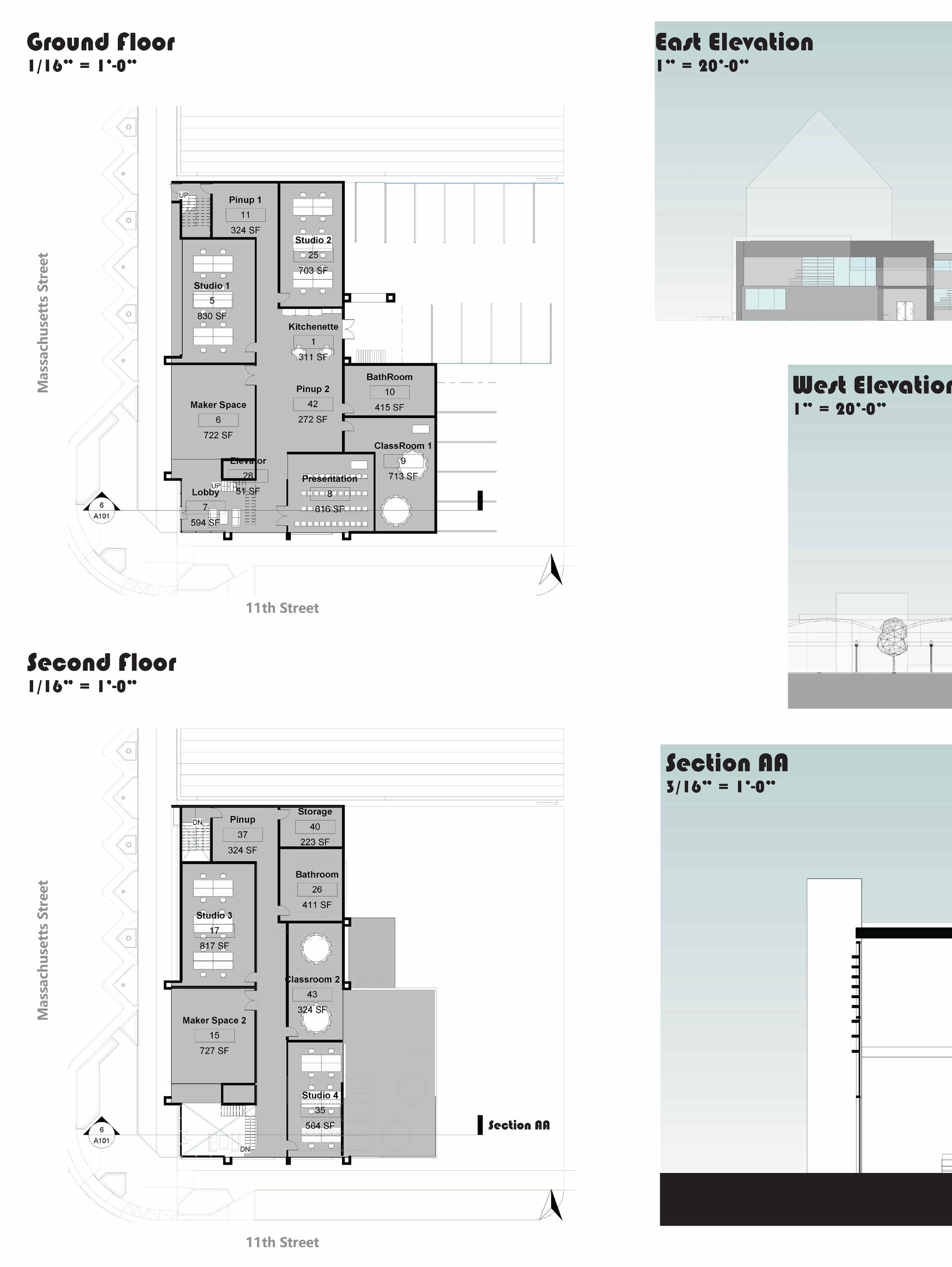
14th St. & Massachussetts St.
Lawrence, KS
13,000 SF
ARCHway to Architecture is a place of learning for the community of Lawrence and is a direct connection to the University of Kansas School of Architecture. It is a place of gathering, a makers space, and a multifuntional gallery space. Paying homage to the rich history of Massachussetts street, while maintaining the urban edge. The building is equipped with studio spaces and classrooms to help promote a safe learning enviornment for KU ArcD students and Lawrence locals.










Burcham Park
Lawrence, KS
1000 SF
The KUbes is an explorative system of contemplstive pavillions positioned on the bank of the Kaw River in Lawrence, Kansas. Located in Burcham Park, the flood plain site serves as an oportunity for an elevated structure paying homage to the natural beauty of the undisturbed land. The structures are a contemplative journey through a series of cubes. The pathway carries the user into each cube while honoring each KUbe’s functionality.








The series of light studies designed, constructed, and photographed test the shadows and how light bounces within a structure. The materiality and value of light varied with each structure. The methods of bending and folding paper were used in addition to wood for structural support. These light structures provide a deeper understanding of natural light and materiality.








