Design Portfolio Kareem McLeggon M.ARCH

Page 1

Portfolio design

A Study of Social Equity in Public Spaces:

Facade / University
ARCH401
BSc. Architecture
Kareem-Khori McLeggon
of Maryland /
:

Portfolio design

A STUDY OF SOCIAL EQUITY IN PUBLIC SPACES

CV

KAREEM-KHORI MCLEGGON

Education

12600 GREY EAGLE COURT

GERMANTOWN, MD 20874

MCLEGGON.KAREEM@YAHOO.COM

240-917-5047

WWW.LINKEDIN.COM/IN/KMCLEGGON

What is Social Equity in architecture

EQUITY IS DEFINED AS THE QUALITY OF BEING FAIR AND IMPARTIAL. ACCORDING TO THE UNITED WAY OF THE NATIONAL CAPITAL AREA, SOCIAL EQUITY IS IMPARTIALITY, FAIRNESS AND JUSTICE FOR ALL PEOPLE IN SOCIAL POLICY. EQUITABLE ARCHITECTURE EMPLOYS SOCIALLY RESPONSIBLE ARCHITECTURAL PRACTICES BY DESIGNING BUILDINGS AND SPACES THAT ACCORDS ALL USERS EQUALITY WHILE CONSIDERING THEIR DEVERSITY.

Masters of architecture / Catholic University of America

CURRENT (ANTICIPATED GRADUATION DATE MAY 2024)

Bachelors of Science, architecture / University of Maryland

CUM LAUDE / TAU SIGMA MEMBER / DEAN'S LIST

Associate of Arts, Business - Honors / Montgomery college

RENAISSANCE SCHOLAR / PHI THETA KAPPA MEMBER / DEAN'S LIST

Experience

Architectural designer & project manager / bethel Regency

JULY 2023 - AUG. 2023 (TEMPORARY PROJECT)

Junior Architect & Job Captain / OLBN, Inc.

MAR. 2022 - JAN. 2023

Assistant Project Manager & cad Tech. / Digitronics, Inc.

FEB. 2021 - MAR. 2022

Part-Time Project Architect. / jk design, inc. (freelance work)

FEB. 2019 - JAN. 2023

Research Analyst / Westat Reseach Corp.

(STUDY OF CITY PLANNING AND ENERGY USAGE BASED ON BUILDING ENVELOPE)

JUN. 2017 - JUN. 2019

Certificate

Revit: Architecture & M.E.P (lvl 1)

CAD MICROSYSTEMS - 2022

Skills

Digital

ADOBE ACROBAT ADOBE INDESIGN

AUTOCAD

ENSCAPE

REVIT

RHINO

ADOBE ILLUSTRATOR

ADOBE PHOTOSHOP

Hand Drawing

LUMION

REVU

MICROSOFT OFFICE

POTRIATE LANDSCAPE DIAGRAMS PARTI

STILL LIFE

IMAGINATIVE

Professional MENTOR

TEAM LEAD REPORT WRITING PRESENTIONS

2 3

SITE PLAN................................8

SITE CONTEXT......................10

SITE ANALYSIS....................12

N.E. PERSPECTIVE.............14

N.W. PERSPECTIVE.............16

FEATURES & LAYOUT.......18

NORTH ELEVATION.............22

CROSS-SECTION....................24

WALL DETAIL.........................26

CURTAIN WALL DETAIL..28

MUSIC HALL-RENDER........30

STREET VIEW-RENDER...32

WILD CONTOURS........................36

MY INSPIRATION........................38

SPACIAL RELATIONSHIPS...40

RESIDENTIAL ELEMENTS.....42

contents Page 8 - 29
Page 20 - 25
National Library of Congress. Hand Drawn Artwork
4 5

National Library of Congress

7 National Library of Congress / Catholic University / ARPL632 : IBDS / M.Arch 6

Library of Congress

8 9

Site Context

THE NATIONAL BUILDING MUSEUM IS LOCATED AT 401 F STREET NW IN WASHINGTON, D.C. IT IS A MUSEUM OF ARCHITECTURE, DESIGN, ENGINEERING, CONSTRUCTION, AND URBAN PLANNING.IT WAS CREATED BY AN ACT OF CONGRESS IN 1980, AND IS A PRIVATE NON-PROFIT INSTITUTION; IT IS ADJACENT TO THE NATIONAL LAW ENFORCEMENT OFFICERS MEMORIAL AND THE JUDICIARY SQUARE METRO STATION

SITUATED IN THE PENN QUARTER NEIGHBORHOOD OF CHINATOWN IN DOWNTOWN WASHINGTON, D.C., THE CAPITAL ONE ARENA IS HOME TO THE WASHINGTON WIZARDS, WASHINGTON CAPITALS, WASHINGTON MYSTICS , AND GEORGETOWN HOYAS

JUDICIARY SQUARE IS A NEIGHBORHOOD IN NORTHWEST WASHINGTON, D.C., THE VAST MAJORITY OF WHICH IS OCCUPIED BY VARIOUS FEDERAL AND MUNICIPAL COURTHOUSES AND OFFICE BUILDINGS

CURRENTLY OCCUPIED BY THE DCFD - ENGINE 2 AND RESCUE SQUAD 1 ADJACENT TO THE MARIAN KOSHLAND SCIENCE MUSEUM (SHARES THE SAME LOT)

NATIONAL BUILDING MUSEUM Capital 1 Arena Judiciary Square 500 F STREET NW, WASHINGTON DC 20001
11 National Library of Congress / Catholic University / ARPL632 : IBDS / M.Arch 10

Site Analysis

SCOPE OF WORK:

THE LIBRARY OF CONGRESS, WHILE OPEN TO PRE-QUALIFIED INDIVIDUALS, PRIMARILY SERVES AS THE LIBRARY OF THE ELECTED MEMBERS OF THE US CONGRESS. CONSEQUENTLY, VISITOR PREQUALIFICATION, SECURTY CHECK POINTS, AND MEMBER PRIVILEGED ACCESS TO THE COLLECTION RESTRICTS ITS USE BY LOCALS FOR COMMON STUDY OR EVEN AS A PLACE OF REFUGE. SITUATED IN THE NATION'S CAPITAL, WASHINGTON DC., THE NEW LIBRARY LOCATION WILL BE NEIGHBORS WITH MANY HISTORIC BUILDINGS AND MINUTES AWAY FROM CAPITOL HILL.

THE UNITY LIBRARY IS DESIGNED TO BREAK THE STATUS QUO. THE LIBRARY OF CONGRESS HAS DECIDED TO CHAMPION INCLUSION FACTORS SUCH AS SOCIAL JUSTICE, BY USING OF ARCHITECTURE. ALTHOUGH SECURITY CHECKPOINT AND MEMBER ACCESS WILL STILL EXIST, THE BUILDING WILL BE OPEN TO THE REGULAR PUBLIC AT CERTAIN LEVELS.

THE AIM IS TO INVITE THE GENERAL PUBLIC BACK INTO THE GOVERNING PROCESS, BY PROVIDING A SECURE LOCATION FOR DISCUSSION BETWEEN MEMBERS OF PARLIAMENT AND THE RESIDENTS OF WASHINGTON, DC.

National Building Museum Capital 1 Arena Judiciary Square Gov. Accountability Office National Acadamy of Science Shakespare Theatre Old City Hall 5th St. NW 6th St. NW G St. NW F St. NW E St. NW Indiana Ave. NW IndianaAve.NW 5th St. NW 4th St. NW
KEYPLAN
FIGURE GROUND INVERSE FIGURE GROUND
13 National Library of Congress / Catholic University / ARPL632 : IBDS / M.Arch 12

N.E. Perspective

PROJECT REQUIREMENTS:

MAXIMIZE BUILDING SIZE OR SITE SHOULD STRICTLY FOLLOW DC ZONING REGULATIONS, CODES AND STANDARDS. COMPORT TO MASSING,

INCLUDE LIBRARY COLLECTION CATALOGUES VIA CLOUD, SEARCH STATIONS, AND STAFF-ASSISTED CATALOGUE LOCATIONS.

SETBACK AND HEIGHT CONTEXTS ESTABLISHED BY EXISTING BUILDING SURROUNDING (JUDICIARY SQUARE IN ACCORDANCE WITH NATIONAL BUILDING MUSEUM AS WELL AS THE CAPITAL ONE ARENA).

INCLUDE A LECTURE HALL ACCOMMODATING 100 PEOPLE. INCLUDE A CHAMBER MUSIC HALL FOR PERFORMANCE OF EXTENSIVE MUSIC COLLECTION,

INCLUDE TWO UNDERGROUND LEVELS PARKING IS EXCLUDED INCLUDE A VARIETY OF READING ROOMS (SIZE, CHARACTER, ETC.)

INCLUDE STACKS FOR THE LIBRARY S COLLECTIONS INCLUDE A GIFT STORE AND BUILDING SECURITY UNDER US CAPITOL POLICE.

15 National Library of Congress / Catholic University / ARPL632 : IBDS / M.Arch 14

N.W. Perspective

HISTORIC DISTRICT

NATIONAL REGISTER HISTORIC DISTRICTS. A DISTRICT POSSESSES A SIGNIFICANT CONCENTRATION OF SITES, BUILDINGS, STRUCTURES OR OBJECTS UNITED HISTORICALLY OR AESTHETICALLY BY PLAN OR PHYSICAL DEVELOPMENT. THE IMPORTANCE OF A DISTRICT LIES IN THE COLLECTION OF BUILDINGS THAT REFLECTS THE SOCIAL AND ARCHITECTURAL HISTORY OF THE AREA.

THIS BUILDING WILL BE THE LOCAL CENTER FOR COMMUNITY ACTIVISM AND A BRIDGE BETWEEN FORMAL GOVERNANCE AND PRACTICAL LIVING, INTEGRATING SEAMLESSLY INTO THE HISTORIC DISTRICT YET PUSHING THE ENVELOPE FOR CIVIC BUILDINGS OF TOMORROW.

17 National Library of Congress / Catholic University / ARPL632 : IBDS / M.Arch 16

Features & Layout

MULTIPLE OUTDOOR GATHERING SPACES

CURVED ROOFING & SUN SHADE DEVISE

INTENTIONALLY DESIGNED TO KEEP THE INDENTITY OF THE URBAN CONTEXT

INCREASE OUTDOOR SPACES FOR ACCESS TO FRESH AIR AND SULIGHT. CONTRIBUTING TO HEALTHY GATERING CONDITIONS GIVEN THE RISE OF COVID

PROXIMITY TO PUBLIC TRANSPORTATION

THE PROMISE TO PROMOTE SOCIAL EQUALITY IS EVIDENT IN THE ALLOCATION OF BUS STOPS ON THE LIBRARY GROUNDS FOR EASE OF ACCESS TO ALL.

PHENOMENOLOGICAL DESIGN

VISUAL ILLUSION OF HAVING ONE SECTION OF THE BUILDING APPEARING TO PIERCE THROUGH ANOTHER SEGMENT. THE MESSAGE IT HOPES TO CONVEY IS THE JOINING OF DIFFERENT ELEMENTS TO CREATE SOMETHING NEW.

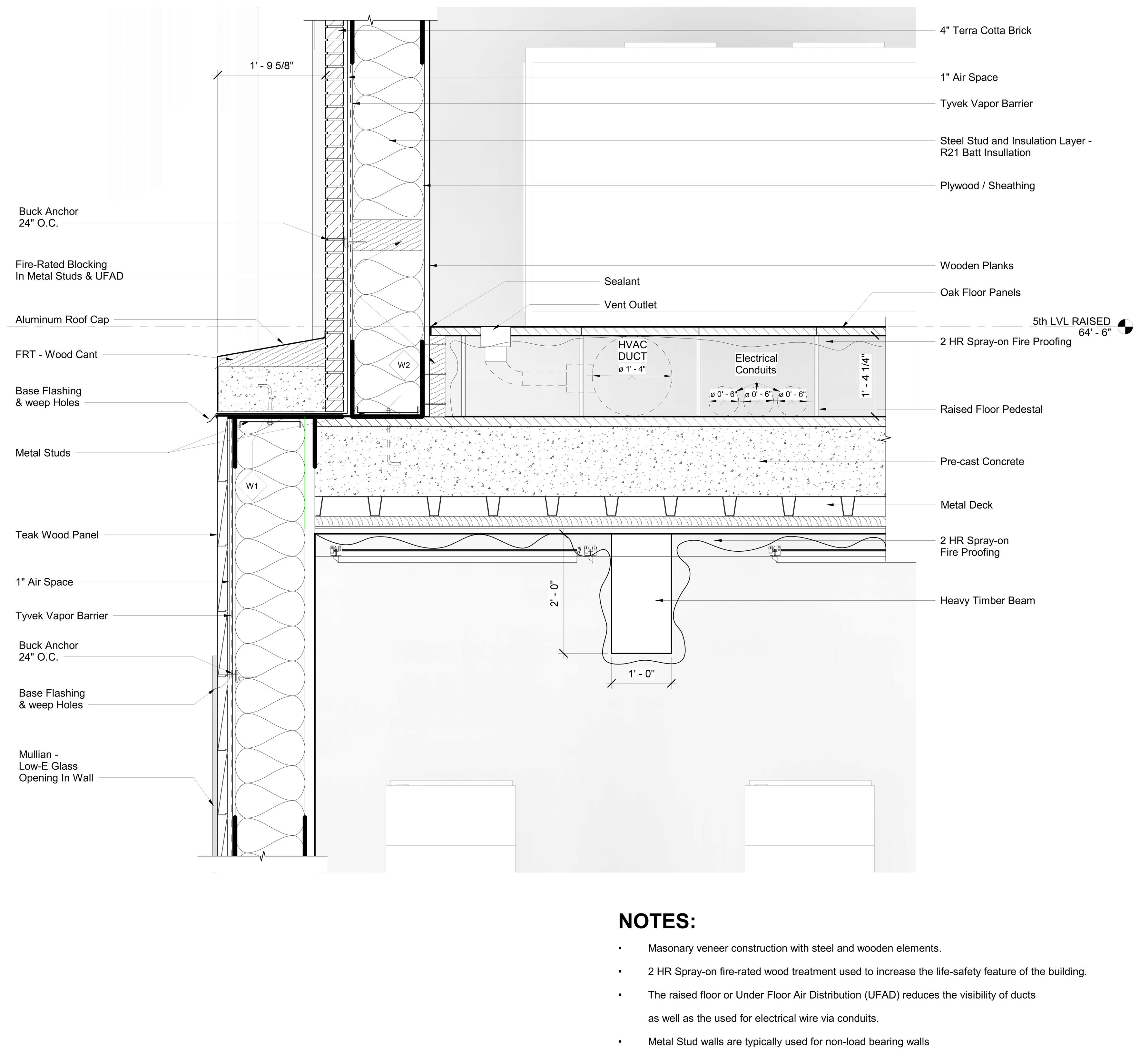
FIRE RATED - HEAVY TIMBER

A MORE INTIMATE MATERIAL WITH NOW HIGHER STRUCTURAL CAPABILITIES DUE TO ENGINEERED WOOD. BREAK FROM THE STATUS QUO OF CONCRETE ON BOTH EXTERIOR AND INTERIOR OF MOST CIVIC BUILDING IN WASHINGTON, DC.

LOW-E, INSULATED GLASS PANELS

ENERGY SAVING, AND INCREASE NATURAL LIGHT AS WELL AS BETTER VISIBILITY TO REDUCE THE CHANCE OF CRIME.

BASEMENT LEVEL CELLAR LEVEL GROUND LEVEL SECOND LEVEL THIRD LEVEL FOURTH LEVEL FIFTH LEVEL SIXTH LEVEL ROOF LEVEL
19 National Library of Congress / Catholic University / ARPL632 : IBDS / M.Arch 18

Underfloor Air Distribution

THE UNITY LIBRARY

THE LIBRARY OF CONGRESS IS A NON-LENDING LIBRARY THIS BUILDING WILL BE AN ANNEX OF THE LIBRARY OF CONGRESS WHICH WILL BE CLASSIFIED AS A NATIONAL, CIVIC, AND CONGRESSIONAL BUILDING OF SIGNIFICANCE LOCATED IN THE DOWN TOWN REGION OF WARD 2 WASHINGTON, DC.

Photovoltaic Solar Panels
Geothermal Energy
Green Wall
National Library of Congress / Catholic University / ARPL632 : IBDS / M.Arch 21
System

Elevation

23 National Library of Congress / Catholic University / ARPL632 : IBDS / M.Arch 22

Section

25 National Library of Congress / Catholic University / ARPL632 : IBDS / M.Arch 24

Detailing

27 National Library of Congress / Catholic University / ARPL632 : IBDS / M.Arch 26

Detailing

29 National Library of Congress / Catholic University / ARPL632 : IBDS / M.Arch 28

music Hall

31 National Library of Congress / Catholic University / ARPL632 : IBDS / M.Arch 30

Street Perspective

33 National Library of Congress / Catholic University / ARPL632 : IBDS / M.Arch 32

Hand Drawings

35 Multiple Solutions / Montgomery College / ARTT102 / Associate of Arts 34

Wild Contours

Architecture vs Landscape

ARCHITECTURE TACKLES THE WILD CONTOURS OF EARTH'S EVER CHANGING LANDSCAPE AND ATTEMPTS TO SUBDUE ITS MORE UNDESIRABLE TRAITS.

37 Value Abbreviations / Montgomery College / ARTT102 / Associate of Arts 36

Hand with Reflective sphere

MY INSPIRATION

I HAVE ALWAYS BEEN ATTRACTED TO STRANGE ART, THE MIND BOGGLEING, MATHEMATICAL TYPE THAT LEAVES ONE MESMERIZED. I INTRODUCED TO THE WORKS OF M.C. ESCHER, EARLY IN MY YEARS OF PRACTICING ART AND HAVE BEEN FACINATED WITH HIS STYLE OF ART EVER SINCE.

ESHERS ATTENTION TO DETAIL IS EXTRAORDINARY AND HIS SEAMLESS TRANSITIONING IMAGERY IS SIMILAR TO AN ILLUSION ON PAPER. THE LITOGRAPH HAND WITH REFLECTING SPHERE, ALSO KNOWN AS "SELF PORTRAIT IN SPHERICAL MIRROR", DEPICTS A HAND HOLDING A REFLECTIVE SPHERE WHERE THE ARTIST AND HIS IMMIDIATE SURROUNDINGS ARE VISIBLY IMPACTED BY THE OBJECTS SHAPE.

IN THIS PIECE, ESCHER DOES THE UNUSUAL AND SHOWS THE MEANS BY WHICH ALL SELF-PORTRAITS MUST BE CREATED. HE MAKES THE MIRROR THE SUBJECT OF HIS PIECE. LESS ATTENTION IS GIVEN TO HIS OWN REFLECTION BUT RATHER, TO THE WAY THE SPACE DISTORTS BY A CONVEX REFLECTIVE SURFACE.

39 Inspiration / University of Maryland / ARTT110 / BSc. Architecture 38

Space

Value Abbreviations

Relationships

ANALYZING AN IMAGE OF EARTH FROM THE MOON, THE RELATIONSHIP BETWEEN THE ELEMENTS WITHIN OUR SOLAR SYSTEM REMAINS VISIBLY STRIKING EVEN THOUGH THEY ARE MILLIONS OF MILES AWAY.

SIMPLIFYING THE FULL SPECTRUM OF COLORS INTO CONTINUOUS TONES OF GREY, THEN PARTITIONING THE VARIOUS SHADES INTO ONLY 3-4 "ZONES" OF VALUE: WHITE, BLACK AND ONE MIDDLE GRAY.

THE RESULT WILL BE A VERSION OF THE ORIGINAL IMAGE IN ABBREVIATED VALUES, AS WELL AS AN INTERESTING, COHERENT ORCHESTRATION OF SHAPES.

41 Value Abbreviations / Montgomery College / ARTT102 / Associate of Arts 40

Home

CHIAROSCURO ART

Light vs dark

CHIAROSCURO ART IS THE USE OF STRONG CONTRAST BETWEEN LIGHT AND DARK, USUALLY AFFECTING A WHOLE COMPOSITION, TO CREATE A SENSE OF VOLUME AND DRAMA.

43 Chiaroscuro / University of Maryland / ARTT110 / BSc. Architecture 42

Portfolio design

A Study of Social Equity in Public Spaces

44 Freedom Market / University of Maryland / ARCH401 / BSc. Architecture
Kareem-Khori McLeggon

Turn static files into dynamic content formats.

Create a flipbook
Issuu converts static files into: digital portfolios, online yearbooks, online catalogs, digital photo albums and more. Sign up and create your flipbook.
Design Portfolio Kareem McLeggon M.ARCH by Kareem McLeggon - Issuu