Update to elevator and stairs in parking garage at NIH

Page 1

STEVE O'REILLY

PHONE: 215-681-2191

EMAIL: SO@NEWAGEDEVELOPMENT.COM

OLBN, INC.

RUOKE CHEN

PHONE: 301-728-8737

EMAIL: RUOKE.CHEN@OLBN.COM

5. REMOVE EXISTING ELEVATOR EQUIPMENT IN MACHINE ROOMS, LEVEL 1 & 2.

6. PROVIDE NEW STOREFRONT DOORS AT EAST & WEST 7TH LEVEL LOBBIES ONLY.

7. PROVIDE EMERGENCY POWER.

CALL BUTTONS & FLOOR INDICATORS AT EACH LOBBY.

OLBN, INC.

JEREMY MCGONIGLE

PHONE: 571-432-8972

EMAIL: JEREMY.MCGONIGLE@OLBN.COM

AREA OF WORK

KENCOR

TAMILE DARDEN

PHONE: 610-430-2110

EMAIL: TDARDEN@KENCORELEVATOR.COM

MLP-8

WEST CEDAR LANE DRVE D R I V E DR VE EAST S T A T E R O U T E 1 8 7 DRVE O L D G E O R G E T O W N R O AD AVENUE S T A T E R O U T E 3 5 5 R O C K V I L L E P I K E CENTER DR VE C E N T E R D R V E WILSON SOUTH C E N T E R D R I V E 15D 15E 15G 15C 15F 15I 15H 15B 15K 31 6B 6 4 8 5 9 21 17 10 10A 60 49 37 30 29 29 MLP 6 MLP 34 46 13 12A 12 11 22 16 16A 14 25 T-46 28 32 18 41 38 38A MLP 6 CENTER SOUTH DR VE W E S T 45 TNOMDOOW DR VE NORTH DR VE EVIRD E A S T CENTER DRIVE NCOLN 2 D R V E NIH 270 270 FRIENDSHIP HEIGHTS METRO M BETHESDA METRO M M MEDICAL CENTER METRO CEDARLN OLD GEORGETOWN RD 495 495 495 355 410 EAST-WESTHWY MD DCWESTERNAVE CHEVY CHASE C R W SCONS I N AVE JONESBRIDGERD RIVERRD 187 355 DEMOCRACY BLVD ROCKVILLE PIKE STRATHMOREAVE 547 185 C O N N E C T I C U T A V E EX T 36 EX T 4 M GROSVENOR METRO N N WEST BUILDING ELEVATORS #1 & EAST BUILDING ELEVATORS #3 & 4 25 50 100 AREA OF WORK N PROPERTY OF THE UNITED STATES GOVERNMENT FOR OFFICIAL USE ONLY DO NOT REMOVE THIS NOTICE PROPERLY DESTROY DOCUMENTS WHEN NO LONGER NEEDED DRAWING NO. DESIGNED BY DRAWN BY CHECKED BY DRAWING PROJECTBUILDING CONTRACTORS A/E CON. NO. A/E TASK NO. CONS. CONTR. CONS. WORK PRIME A/E SUB A/E CONSTR. CON. FACILITY CODE BUILDING NO. NAME STREET CITY STATE/ZIP OTHER BUILDING NO. SPB TASK NO. PROJ. OFFICER PROJ. MGR. SUBMISSION SUB. DATE WRK REQ. NO. A/E Name and LOGO SEAL GRAPHIC SCALE KEYPLAN PROJECT TITLE DRAWING TITLE OFFICE OF RESEARCH FACILTIES MARK DATEDESCRIPTION REVISIONS ARCHITECT/ENGINEER TRUE NORTH PROJECT NORTH 9 8 7 6 5 4 3 2 1 10 9 8 7 6 5 4 3 2 1 10 A B C D E F G H A B C D E F G H D/B PRIME
DEPARTMENT OF HEALTH HUMAN SERVICES, BETHESDA, MARYLAND 20892 VICINITY MAP Office Of Research Facilities (ORF) PROJECT DESCRIPTION CONTRACTOR ARCHITECTURE M.P.E LOCATION MAP KEY PLAN DRAWING LIST PROJECT SITE ELEVATOR CONSULTANT PROJECT LOCATION C:\Users\kmcleggon\Documents\NAD-004 Arch_kareem.mc leggon.rvt SHEET 1 OF 55 TOTAL SHEET G-001 Checker Author Designer 100% SUBMISSION 10/19/2022 MLP-8 NIH 9000 ROCKVILLE PIKE BETHESDA MD 20814 MLP-8 C103469 NAD-004 NEW AGE DEVELOPMENT OLBN, INC. SEG NEW AGE DEVELOPMENT, LLC. MLP -8-ELEVATORS REPLACMENT COVER SHEET OLBN, INC.
100%
OCT. 19, 2022
THE NATIONAL INSTITUTE OF HEALTH
WR# C103469 MLP -8-ELEVATORS REPLACMENT
SUBMISSION
NEW AGE DEVELOPMENT, LLC.
MLP-8 MLP-8 1. REPLACE 4 ELEVATORS WITH NEW OVERHEAD TRACTION ELEVATORS. 2. PROVIDE ADDITIONAL VERTICAL OVERRUN AND MACHINE ROOMS 3. EXTEND EXISTING STAIR TO MACHINE ROOMS 4. PROVIDE NEW ELEVATOR DOORS,
9000 ROCKVILLE PIKE BETHESDA, MD 20814
DRAWING INDEX LIST DWG.NO SHEET TITLE SHEET NO. 01 G GENERAL G-001COVER SHEET 1 of 55 G-002PROJECT INFORMATION, SYMBOL & ABBREVIATION INDEX FOR EAST & WEST BUILDINGS2 of 55 G-003CODE REVIEW FOR EAST & WEST BUILDINGS 3 of 55 02 A ARCHITECTURAL A-001LOCATION PLANS FOR EAST & WEST BUILDINGS 4 of 55 AD-101DEMOLITION FLOOR PLAN FOR EAST & WEST BUILDINGS 5 of 55 A-101TYPICAL ELEVATOR LOBBY FLOOR PLAN AND RCP FOR LEVEL 7 EAST & WEST BUILDINGS6 of 55 A-102TYPICAL MACHINE ROOM FLOOR PLAN, RCP, ROOF PLAN EAST & WEST BLDGS7 of 55 A-201ELEVATIONS FOR EAST & WEST BUILDINGS 8 of 55 A-301SECTIONS FOR EAST & WEST BUILDINGS 9 of 55 A-302WALL SECTIONS AND DETAILS FOR EAST & WEST BUILDINGS 10 of 55 A-303THERMALSAFE FIRE RESISTANT PANEL DETAILS 11 of 55 A-304SECTIONS & DETAILS 12 of 55 A-305ROOF DETAILS 13 of 55 A-601PARTITION TYPES 14 of 55 A-602DOOR ELEVATIONS, HARDWARE & DOOR & FRAME SCHEDULE FOR EAST & WEST BUILDINGS15 of 55 A-901ISOMETRIC VIEWS AND PERSPECTIVES 16 of 55 03 S STRUCTURAL S-001GENERAL STRUCTURAL NOTES 17 of 55 S-101FOUNDATION AND FLOOR FRAMING PLAN 18 of 55 S-102FLOOR AND ROOF FRAMING PLAN 19 of 55 S-103ISOMETRIC 3D VIEWS 20 of 55 S-201TYPICAL DETAILS 21 of 55 S-301WALL AND FLOOR SECTIONS 22 of 55 S-302PARAPET AND STAIR SECTIONS 23 of 55 04 MECHANICAL M-001GENERAL NOTES, SYMBOLS AND ABBREVIATIONS 24 of 55 M-101FLOOR PLAN MECHANICAL DEMOLITION 25 of 55 M-102FLOOR PLAN-NEW WORK 26 of 55 M-601MECHANICAL SCHEDULES AND DETAILS 27 of 55 05 PLUMBING P-001GENERAL NOTES, SYMBOLS AND ABBREVIATIONS 28 of 55 P-101FLOOR PLAN PLUMBING NEW WORK 29 of 55 P-102FLOOR PLAN-PLUMBING NEW WORK 30 of 55 P-601SCHEDULES 31 of 55 06 ELECTRICAL E-001ELECTRICAL GENERAL NOTES, ABBREV. & SYMBOLS 32 of 55 E-101FIRST FLOOR OVERALL POWER PLAN 33 of 55 E-102FLOOR PLAN POWER DEMOLITION 34 of 55 E-103FLOOR PLAN LIGHTING DEMOLITION 35 of 55 E-104OVERALL PLAN NEW WORK 36 of 55 E-105FLOOR PLAN POWER & LIGHTING NEW WORK 37 of 55 E-106NEW WORK LIGHTING 7TH AND 8TH LIGHTING 38 of 55 E-1078TH FLOOR POWER AND ROOF PLAN 39 of 55 E-501SINGLE LINE DIAGRAMS 40 of 55 E-502LIGHTING CALCS 41 of 55 E-503EMERG LIGHTING CALCS 42 of 55 E-504FIRE ALARM MATRIX & RISERS 43 of 55 E-601PANEL SCHEDULES 42 of 55 Q ELEVATOR Q-001GENERAL DATA ELEV. 1 & 2 43 of 55 Q-002GENERAL DATA ELEV. 3 & 4 44 of 55 Q-101TYPICAL PIT PLAN ELEV. 1 & 2 45 of 55 Q-102TYPICAL PIT PLAN ELEV. 3 & 4 46 of 55 Q-103TYPICAL MACHINE ROOM PLAN ELEV. 1 & 2 47 of 55 Q-104TYPICAL MACHINE ROOM PLAN ELEV. 3 & 4 48 of 55 Q-105TYPICAL HOISTWAY PLAN ELEV. 1 & 2 49 of 55 Q-106TYPICAL HOISTWAY PLAN ELEV. 3 & 4 50 of 55 Q-201TYPICAL GT31 MACHINE EQUIPMENT - ELEV. 1 & 2 51 of 55 Q-202TYPICAL GT31 MACHINE EQUIPMENT - ELEV. 3 & 4 52 of 55 Q-301TYPICAL HOISTWAY SECTION ELEV. 1 & 2 53 of 55 Q-302TYPICAL HOISTWAY SECTION ELEV. 3 & 4 54 of 55

APPLICABLE CODES AND STANDARDS

KEY NOTES:

FIRE-RESISTANCE RATING REQUIREMENTS FOR BUILDING ELEMENTS

NOTES

1 A-301 --4 A-201 2 A-301 HOIST MACHINE HOIST MACHINE CTRLR MAINLINE CAR LIGHTING GOVERNOR GOVERNOR 20'-5 13/16" 17'-5 13/16" CONTINUOUS RAILS SHIPS LADDER STAIRS UPPER MACHINE ROOM LOWER MACHINE ROOM NEW STAIRS WALL RAILS 4'-0" 42" GUARD RAIL 1'-0" W1 W1 W1 W1 3 2 7 7 8 42" GUARD RAIL V.I.F V.I.F 3'-10 15/32" 3'-0" 1'-9 13/16" 802 801 803 4'-2" 4'-2" 9'-2" 8'-3" / 10 R @ 6.857" 9 T @ 11" = / 11 R @ 6.857" 10 T @ 11" = 17'-6" V.I.F 1'-0" 2'-0" DN DN UP 48" 3-0" W01 V.I.F 3 A-201 5 A-201 4'-8 11/32" / 2 A-201 8'-6" 31'-4" 10'-8" 9'-6" 4 4'-0" E01 1 34" 4 4 4 5 6 15' 8' 8' 8' 10' 1 A-3049 9 DRAWING LEGEND # TRAVEL DISTANCE # COMMON PATH OF TRAVEL DISTANCE END OF COMMON PATH OF TRAVEL BEGINNING & END OF TRAVEL PATH 2 HR RATED WALL 3 HR RATED WALL OCCUPANCY USE X MACHINE ROOM = 52, ORDINARY HAZARD STORAGE KEY NOTES 34" EXIT UNITS OF EGRESS PROPERTY OF THE UNITED STATES GOVERNMENT FOR OFFICIAL USE ONLY DO NOT REMOVE THIS NOTICE PROPERLY DESTROY DOCUMENTS WHEN NO LONGER NEEDED DRAWING NO. DESIGNED BY DRAWN BY CHECKED BY DRAWING PROJECTBUILDING CONTRACTORS A/E CON. NO. A/E TASK NO. CONS. CONTR. CONS. WORK PRIME A/E SUB A/E CONSTR. CON. FACILITY CODE BUILDING NO. NAME STREET CITY STATE/ZIP OTHER BUILDING NO. SPB TASK NO. PROJ. OFFICER PROJ. MGR. SUBMISSION SUB. DATE WRK REQ. NO. A/E Name and LOGO SEAL GRAPHIC SCALE KEYPLAN PROJECT TITLE DRAWING TITLE OFFICE OF RESEARCH FACILTIES MARK DATEDESCRIPTION REVISIONS ARCHITECT/ENGINEER TRUE NORTH PROJECT NORTH 9 8 7 6 5 4 3 2 1 10 9 8 7 6 5 4 3 2 1 10 A B C D E F G H A B C D E F G H D/B PRIME PROJECT SITE C:\Users\kmcleggon\Documents\NAD-004 Arch_kareem.mc leggon.rvt 10/12/2022 2:13:33 PM SHEET 3 OF 49 TOTAL SHEET G-003 Checker Author Designer 100% SUBMISSION 09/13/2022 MLP-8 NIH 9000 ROCKVILLE PIKE BETHESDA MD 20814 MLP-8 C103469 NAD-004 NEW AGE DEVELOPMENT OLBN, INC. SEG NEW AGE DEVELOPMENT, LLC. MLP -8-ELEVATORS REPLACMENT CODE REVIEW FOR EAST & WEST BUILDINGS OLBN, INC.
INFORMATION OWNER: OFFICE OF RESEARCH FACILITIES DIVISION OF PROPERTY MANAGEMENT NATIONAL INSTITUTE OF HEALTH ADDRESS: BETHESDA, MD 20892 MONTGOMERY COUNTY G-003 1/4" = 1'-0" 1 TYPICAL ELEVATOR MACHINE ROOM-FLOOR PLAN -CODE ANALYSIS -EAST & WEST BLDG. 0 2' 4' 8' N
GENERAL PROJECT
1. FIRE-RATED WALL BETWEEN STAIR & MACHINE ROOM IS 2 HR RATED PER UL#U411. SEE W2 & W3. 2. 90 MINUTE FIRE-RATED DOOR, FRAME & PANIC HARDWARE. 3. EXTEND EXISTING STANDPIPE TO TOP LANDING. 4. 3 HR FIRE-RATED EXTERIOR WALL. 5. UPPER LEVEL MACHINE ROOM IS AN OPEN MEZZANINE 4'-0" ABOVE LOWER MACHINE ROOM SEPARATED BY AN OPEN GUARD RAIL. 6. CODE APPROVED SHIPS LADDER STAIR. 7. FLOOR ASSEMBLY = 2 HR RATED. ROOF ASSEMBLY 2 HR RATED. 8. NON-COMBUSTIBLE STEEL FIRE STAIR. 44" UNITS OF EGRESS MINIMUM. 9. WALL MOUNTED FIRE EXTINGUISHER. EXISTING BUILDING INFORMATION CODE ANALYSIS IS FOR LEVEL 8 MACHINE ROOM AND STAIR ALL OTHER PORTIONS OF THE BUILDING ARE EXISTING WITH NO MODIFICATIONS TO CODE REQUIREMENTS. OCCUPANCY CLASSIFICATION L.S. 42.8 - PARKING STRUCTURE, OPEN, ORDINARY HAZARD.
TYPE NON-COMBUSTIBLE - TYPE 1A
CONSTRUCTION
PRIMARY STRUCTURAL FRAME 3 HR (2 HR IF SUPPORTING ROOF ONLY) BEARING WALLS - EXTERIOR 3 HR BEARING WALLS - INTERIOR 3 HR NON-BEARING WALLS 0 HR FLOOR CONSTRUCTION 2 HR ROOF CONSTRUCTION 2 HR AREA-OF-WORK INFORMATION AREA OF WORK 65,000 SQ. FT., EACH PARKING LEVEL = EXISTING. NO MODIFICATION TO THE CODE. AREA OF WORK OCCUPANCY CLASSIFICATION AREA OF WORK IS L.S. 42.8 PARKING STRUCTURE, OPEN ORDINARY HAZARD, FOR LEVEL 8 MACHINE ROOM, EAST AND WEST BUILDINGS - 2 OCCUPANTS FOR 353 SF. DEAD END CORRIDOR (NFPA 101 LSC TABLE 42.2.5) A. ALLOWABLE = 50 FEET. ACTUAL = 0. COMMON PATH OF TRAVEL (NFPA 101 LSC TABLE 42.2.5) A. ALLOWABLE = 50FEET. ACTUAL = 33 FEET TO FIRE STAIR. MAX. EXIT ACCESS TRAVEL DISTANCE (NFPA 101 LSC TABLE 42.2.6) A. ALLOWABLE = 300 FEET. ACTUAL = 33 FEET TO FIRE STAIR. EGRESS CAPACITY AT DOOR REQUIRED = 4". ACTUAL = 34" EGRESS CAPACITY AT STAIR: REQUIRED = 44" MIN. ACTUAL = 48". ELEVATOR & STAIR SHAFTS 2 HR
THIS BUILDING IS NOT SPRINKLERED. UPON COMPLETION, ELEVATORS MUST BE CAPABLE OF PASSING AN INDEPENDENT THIRD PARTY ELEVATOR INSPECTION (TPEI) 353 N.S.F W3 BELOW W3 BELOW W2
NATIONAL INSTITUTE OF HEALTH FACILITIES DEVELOPMENT MANUAL - 2021 EDITION NATIONAL INSTITUTE OF HEALTH DESIGN REQUIREMENTS MANUAL - 2021 EDITION. SPECIFICALLY, SECTION 4.7 VERTICAL TRANSPORTATION INTERNATIONAL BUILDING CODE - 2021 EDITION INTERNATIONAL MECHANICAL CODE - 2021 EDITION INTERNATIONAL PLUMBING CODE - 2021 EDITION NFPA STANDARD 1, FIRE PREVENTION CODE - 2021 EDITION NFPA STANDARD 9, 2022 EDITION NFPA STANDARD 10, PORTABLE FIRE EXTINGUISHERS - 2022 EDITION NFPA STANDARD 14, INSTALLATION OF STANDPIPE AND HOSE SYSTEMS - 2022 EDITION NFPA STANDARD 24, INSTALLATION OF PRIVATE FIRE SERVICE MAINS AND THEIR APPURTENANCES - 2019 EDITION NFPA STANDARD 70, NATIONAL ELECTRICAL CODE - 2023 EDITION NFPA STANDARD 72, NATIONAL FIRE ALARM AND SIGNALING CODE - 2022 EDITION NFPA STANDARD 80, FIRE DOORS AND OTHER OPENING PROTECTIVE - 2022 EDITION NFPA STANDARD 90A, INSTALLATION OF AIR CONDITIONING AND VENTILATING SYSTEMS - 2021 EDITION NFPA STANDARD 92, RECOMMENDED PRACTICE FOR SMOKE CONTROL SYSTEMS - 2021 EDITION NFPA STANDARD 101, LIFE SAFETY CODE - 2021 EDITION NFPA STANDARD 110, STANDARD FOR EMERGENCY AND STANDBY POWER SYSTEMS - 2022 EDITION NFPA STANDARD 241, STANDARD FOR SAFEGUARDING CONSTRUCTION, ALTERATION, AND DEMOLITION OPERATIONS - 2022 EDITION AMERICANS WITH DISABILITIES ACT AND ARCHITECTURAL BARRIERS ACT ACCESSIBILITY GUIDELINES - 2014 EDITION (ADA-ABA) ENERGY POLICY ACT - 2005 EDITION EXECUTIVE ORDER (EO) 13693 ASME A17.1 - SAFETY CODE FOR ELEVATORS AND ESCALATORS

PROJECT GENERAL NOTES

A.DO NOT SCALE DRAWINGS. USE DIMENSIONS. DIMENSIONS NOTED "AS REQUIRED", "VERIFY", "VERIFY IN FIELD", "MATCH EXISTING" OR OTHER SIMILAR TERMS ARE TO BE VERIFIED BY THE CONTRACTOR. NOTIFY ARCHITECT OF DISCREPANCIES AND OBTAIN CLARIFICATION BEFORE PROCEEDING.

B.EXISTING CONDITIONS SHOWN ARE APPROXIMATE BASED ON INFORMATION FURNISHED. FIELD VERIFY BEFORE COMMENCEMENT OF ANY WORK. NOTIFY ARCHITECT OF DISCREPANCIES AND OBTAIN CLARIFICATION BEFORE PROCEEDING.

C.PATCH AND REPAIR IN KIND EXISTING CONSTRUCTION ADJACENT TO NEW.

D.LOCATE DOOR OPENINGS 4" (102MM) TO BACK OF FRAME FROM NEAREST PERPENDICULAR WALL, UNLESS NOTED OTHERWISE.

E.INTERIOR DIMENSIONS SHOWN ARE FROM FACE OF FINISH WALL AND CENTERLINES OF COLUMNS, UNLESS NOTED OTHERWISE.

F.FIRE AND SOUND RATED WALLS/ PARTITIONS TO BE CONSTRUCTED TIGHT TO STRUCTURE, PIPING, DUCTWORK AND OTHER PENETRATIONS. ALL WORK IS TO BE BRACED TO STRUCTURE ABOVE.

G.WHERE PARTITIONS OF DIFFERENT FIRE RATINGS INTERSECT. THE HIGHEST RATED PARTITION SHALL CONTINUE THROUGH.

H.PROVIDE ACCESS DOORS FOR ALL PLUMBING, ELECTRICAL AND MECHANICAL LOCATIONS THAT REQUIRE ACCESS. COORDINATE WITH ARCHITECT.

I.MAINTAIN PARTITION FIRE RATING BEHIND WALL MOUNTED ACCESSORIES.

J.PATCH & REPAIR ALL EXISTING SLAB & SUBFLOORS IN AREAS OF WORK TO A CONDITION SUITABLE TO RECEIVE NEW FLOORING FINISHES. COORDINATE REQUIREMENTS W/ FLOOR FINISH MANUFACTURER(S) RECOMMENDATIONS.

K.PROVIDE STRAPPING IN PARTITIONS FOR CASEWORK, WALL MOUNTED EQUIPMENT. TRIM AND RELATED WALL MOUNTED CONSTRUCTION.

L.SEE FLOOR PLANS FOR REQUIRED FIRE SEPARATION WALLS.

M.SEE SHEET A-601 FOR WALL TYPES.

N.SEE ELECTRICAL SHEETS FOR RACEWAY AND OUTLET LOCATIONS.

O.PATCH ALL EXISTING SPRAYED-OR TROWELED-ON FIREPROOFING WHERE MISSING, OR WHERE DAMAGED OR DISTURBED BY DEMOLITION AND/OR CONSTRUCTION OPERATIONS. PATCHES SHALL BE SECURELY BONDED TO SUBSTRATE AND ADJACENT FIREPROOFING, AND SHALL MATCH OR EXCEED THE FIRE RATING OF THE EXISTING FIREPROOFING.

P.SEE STRUCTURAL DRAWINGS FOR ROOF MODIFICATIONS.

Q.WALLS ARE DIMENSIONED TO FACE OF GYPSUM BOARD OR MASONRY, UNO. REFER TO WALL SCHEDULE FOR WALL WIDTH.

R.MASONRY UNIT SIZE AND DIMENSION ARE NOMINAL, UNO.

SB 1 2 3 4 5 6 78 9 10 11 12 13 14 A B C D EXISTING MACHINE ROOM ELEVATOR 4 ELEVATOR 3 STAIR 2 EAST BUILDING 1 2 3 4 5 6 78 9 10 11 12 13 14 A B C D ELEVATOR 1 ELEVATOR 2 ELEVATOR 4 ELEVATOR 3 STAIR 2 STAIR 1 WEST BUILDING EAST BUILDING EXISTING MACHINE ROOM 1 2 3 4 5 6 78 9 10 11 12 13 14 A B C D ELEVATOR 1 ELEVATOR 2 ELEVATOR 4 ELEVATOR 3 STAIR 2 STAIR 1 WEST BUILDING EAST BUILDING
PROPERTY OF THE UNITED STATES GOVERNMENT FOR OFFICIAL USE ONLY DO NOT REMOVE THIS NOTICE PROPERLY DESTROY DOCUMENTS WHEN NO LONGER NEEDED DRAWING NO. DESIGNED BY DRAWN BY CHECKED BY DRAWING PROJECTBUILDING CONTRACTORS A/E CON. NO. A/E TASK NO. CONS. CONTR. CONS. WORK PRIME A/E SUB A/E CONSTR. CON. FACILITY CODE BUILDING NO. NAME STREET CITY STATE/ZIP OTHER BUILDING NO. SPB TASK NO. PROJ. OFFICER PROJ. MGR. SUBMISSION SUB. DATE WRK REQ. NO. A/E Name and LOGO SEAL GRAPHIC SCALE KEYPLAN PROJECT TITLE DRAWING TITLE OFFICE OF RESEARCH FACILTIES MARK DATEDESCRIPTION REVISIONS ARCHITECT/ENGINEER TRUE NORTH PROJECT NORTH 9 8 7 6 5 4 3 2 1 10 9 8 7 6 5 4 3 2 1 10 A B C D E F G H A B C D E F G H D/B PRIME PROJECT SITE C:\Users\kmcleggon\Documents\NAD-004 Arch_kareem.mc leggon.rvt SHEET 4 OF 55 TOTAL SHEET A-001 Checker Author Designer 100% SUBMISSION 10/19/2022 MLP-8 NIH 9000 ROCKVILLE PIKE BETHESDA MD 20814 MLP-8 C103469 NAD-004 NEW AGE DEVELOPMENT OLBN, INC. SEG NEW AGE DEVELOPMENT, LLC. MLP -8-ELEVATORS REPLACMENT LOCATION PLANS FOR EAST & WEST BUILDINGS OLBN, INC. A-001 1" = 30'-0" 1 LEVEL 1 LOCATION PLAN A-001 1" = 30'-0" 2 LEVEL 2 LOCATION PLAN A-001 1" = 30'-0" 3 TYPICAL PARKING LEVEL PLAN 0 25' 50' 100' 0 25' 50' 100' 0 25' 50' 100' N N N

FLOOR

TYPICAL AT EAST & WEST BUILDING

TYPICAL AT EAST & WEST BUILDING

3. NEW STORE FRONT DOORS, FRAMES, THRESHOLD, HARDWARE, LEVEL 7 ONLY.

4. NEW METAL STAIRS AND PAINTED H.M. RAILINGS FROM LEVEL 7 TO LEVEL 8.

5. CLEAN EXISTING S.S. ELEVATOR FRAMES, ALL LEVELS.

6. EXISTING LIGHTS, SEE ELECTRICAL DRAWINGS.

7. REPLACE ROOF HATCH WITH DOWNSWING ACCESS PANEL.

8. REMOVE DRAIN GRATE. PROVIDE NEW GRATE TO COORDINATE WITH NEW DOOR FRAME & THRESHOLD, AT LEVEL

7 ONLY.

9. PAINT EXISTING METAL RAILINGS, POSTS, COLUMNS, BEAMS, GUTTERS & DOWN SPOUTS AT LEVEL 7 ONLY.

10. BACKFILL EXISTING ELEVATOR WELL HOLES WITH CONCRETE

11. REPLACE COMPLETE OR PATCH & FINISH CEILING TO MATCH EXISTING CEILING, AT LEVEL 7 ONLY.

TYPICAL

0 2' 4' 8' 0 2' 4' 8' 0 2' 4' 8'

12. EXISTING WINDOW, DOOR OR OPENING TO REMAIN.

13. EXISTING STANDPIPE EXTEND TO LEVEL 8 - PAINT.

14. NEW EXPOSED STEEL JOISTS & DECK ABOVE - PAINT.

15. EXISTING ROOF DRAIN.

NEW WORK KEYNOTES

N N N A. PATCH AND REPAIR FINISHES AND CONSTRUCTION DAMAGED BY DEMOLITION. PATCH AND REPAIR TO MATCH EXISTING ADJACENT CONSTRUCTION. B. CONSTRUCTION SITE SHALL BE SEPARATED FROM OCCUPIED PORTION OF BUILDING WITH 1 HOUR OR 2-HOUR FIRE-RATED PARTITIONS. CONFIRM REQUIRED PARTITION RATING WITH NIH DFM. COORDINATE REMOVAL OF DOORS IN EXISTING FIRE-RATED PARTITIONS WITH NIH DFM. C. DIMENSIONS SHOWN ARE TO THE FACE OF WALL OR PARTITION UNLESS INDICATED OTHERWISE. D. LOCATE HINGE SIDE OF DOOR JAMBS 4" FROM INTERSECTING OR CENTER DOOR IN WALL (WHERE SHOWN) UNLESS NOTED OTHERWISE. E. REMOVE EXISTING GWB WHERE EVER PIPES ARE TO BE INSTALLED IN THE WALLS FOR UTILITIES (SEE MEP DRAWINGS FOR PIPE LOCATIONS IN EXISTING WALLS) REINSTALL GWB AND REFINISH WALL. F. FIELD VERIFY ALL ROOM DIMENSIONS PRIOR TO FINAL SHOP DRAWING COMPILATION. IDENTIFY ANY CONFLICTS TO THE PROJECT OFFICER FOR RESOLUTION. G. THIS DRAWING INDICATES LOCATION OF CEILING MOUNTED AND CEILING PENETRATING ITEMS, FOR ADDITIONAL INFORMATION SEE MECHANICAL, PLUMBING, AND ELECTRICAL DRAWINGS. H. SUPPORT CEILING SUSPENSION SYSTEM FROM STRUCTURE ABOVE, NOT FROM DUCTWORK, METAL DECK, EQUIPMENT OR PIPING. SPACE HANGERS NOT MORE THAN 6" FROM END AND NOT MORE THAN 4'-0" ON CENTERS ON RUNNERS. I. SEE MEP DRAWINGS FOR WORK OUTSIDE "LIMITS OF CONSTRUCTION" SHOWN. J. REFER TO THE ELEVATOR MANUFACTURER'S DRAWINGS & SPECIFICATIONS FOR ELEVATOR DETAILED INFORMATION. 1. NEW ELEVATORS 1,2,3,4: 6 OR 7 STOPS, PLATFORM SIZE 84" W x 78" D x 96" CAB HEIGHT WITH 3'-6" x 7'-0" CENTER OPENING S.S. DOORS. TYPICAL ALL LEVELS. INSIDE DIMENSIONS: 80" W x 65" D. 2. NEW ELEVATOR S.S. DOORS, CALL BUTTONS, LANTERNS/POSITION INDICATORS. TYPICAL ON ALL LEVELS, ELEVATORS 1,2,3,4.

NOTE:

ALL PLANS ARE TYPICAL AT EAST AND WEST BUILDINGS

UP 19'-8" 17'-6" 4" 8'-7" 8'-7" 8'-6" NEW ELEVATOR SUMP PIT COVER REFER TO PLUMBING DWGS FOR DETAILS EXISTING CONCRETE SLAB: REFER TO STRUCTURAL DWGS NEW ELEVATOR ABOVE NEW RAIL BUFFER NEW STEEL LADDER 3 WAY LIGHT SWITCH SEE ELECTRICAL 3 WAY LIGHT SWITCH SEE ELECTRICAL EXISTING STEEL LADDER NEW PIT GRATE HOISTWAY HOISTWAY ELEVATORS 1 & 3 ELEVATORS 2 & 4 1 A-301 V.I.F V.I.F V.I.F 10 10 EXISTING SUMP PIT EXISTING SUMP PIT NEW PIT GRATE NEW ELEVATOR SUMP PIT COVER -REFER TO PLUMBING DWGS FOR PUMP SYSTEM DETAILS 3'-6" 2'-0" 9'-11 1/2" 2'-0" 31'-4" 8'-6" 8'-6" 6'-0" 3'-9 1/2" 19'-8" 4" 17'-6" LOBBY STAIRS 1 & 2 ELEVATORS 1 & 3 ELEVATORS 2 & 4 1 A-301 13 11 7 6 6 1 1 2 A-301 14 V.I.F V.I.F V.I.F V.I.F V.I.F 2'-0" 11 15 16 14 19'-8" 17'-6" 4" 31'-4" 8'-6" 8'-6" 10'-0" 4'-2" HOISTWAY HOISTWAY HOISTWAY NEW LANDING ABOVE STAIRS 1 & 2 EXISTING STAIR RUN TYPICAL ELEVATOR LOBBY AT LEVEL 7 ELEVATOR 1 & 3 ELEVATOR 2 & 4 1 A-301 8'-7" 8'-7" V.I.F V.I.F V.I.F V.I.F M.O. V.I.F V.I.F V.I.F --4 A-602 V.I.F 801 -NEW STAIRS 1 & 2 NEW 13 12 12 1 1 12 5 2 2 4 A-201 EXISTING DN SHAFT V.I.F EXISTING PARKING DECK 15 8 3 6'-8" M.O. V.I.F 9 9 2 A-301 A-201 1 E02 WO2 5'-1" 2'-0"3 A-201 2 A-201 / 5 A-201 2 16 4 1'-7" 1'-7" V.I.F V.I.F 8'-3" 17'-6" 1'-0" WALL RAILING 3'-10" W01 EO1 3'-10" EQUIPMENT AS NOTED EXISTING WALL TO REMAIN EXISTING DR. & FR. TO REMAIN NEW WALL TYPE LIGHT FIXTURES; REFER TO ELECTRICAL DRAWINGS NEW DOOR & DOOR TAG 101 NEW WORK KEYNOTE X PROPERTY OF THE UNITED STATES GOVERNMENT FOR OFFICIAL USE ONLY DO NOT REMOVE THIS NOTICE PROPERLY DESTROY DOCUMENTS WHEN NO LONGER NEEDED DRAWING NO. DESIGNED BY DRAWN BY CHECKED BY DRAWING PROJECTBUILDING CONTRACTORS A/E CON. NO. A/E TASK NO. CONS. CONTR. CONS. WORK PRIME A/E SUB A/E CONSTR. CON. FACILITY CODE BUILDING NO. NAME STREET CITY STATE/ZIP OTHER BUILDING NO. SPB TASK NO. PROJ. OFFICER PROJ. MGR. SUBMISSION SUB. DATE WRK REQ. NO. A/E Name and LOGO SEAL GRAPHIC SCALE KEYPLAN PROJECT TITLE DRAWING TITLE OFFICE OF RESEARCH FACILTIES MARK DATEDESCRIPTION REVISIONS ARCHITECT/ENGINEER TRUE NORTH PROJECT NORTH 9 8 7 6 5 4 3 2 1 10 9 8 7 6 5 4 3 2 1 10 A B C D E F G H A B C D E F G H D/B PRIME PROJECT SITE C:\Users\kmcleggon\Documents\NAD-004 Arch_kareem.mc leggon.rvt 10/18/2022 1:24:42 PM SHEET 6 OF 54 TOTAL SHEET A-101 Checker Author Designer 100% SUBMISSION 10/18/2022 MLP-8 NIH 9000 ROCKVILLE PIKE BETHESDA MD 20814 MLP-8 C103469 NAD-004 NEW AGE DEVELOPMENT OLBN, INC. SEG NEW AGE DEVELOPMENT, LLC. MLP -8-ELEVATORS REPLACMENT TYPICAL ELEVATOR LOBBY FLOOR PLAN AND RCP FOR LEVEL 7 EAST & WEST BUILDINGS OLBN, INC. A-101 1/4" = 1'-0" 1 TYPICAL ELEVATOR
BLDG A-101 1/4" = 1'-0" 3 TYPICAL
A-101 1/4" = 1'-0" 2
PIT PLAN -EAST & WEST PLAN GENERAL NOTES PLAN LEGEND
ELEVATOR LOBBY -REFLECTED CEILING PLAN AT LEVEL 7 -EAST & WEST BLDGS.
ELEVATOR LOBBY FLOOR PLAN AT LEVEL 7 -EAST & WEST BLDG
KEY NOTES
3'-6" x 7'-0". - SEE ELEVATOR DRAWINGS.
16. NEW ROOF DRAIN FROM ABOVE, PAINT - SEE PLUMBING.

DEMOLITION GENERAL NOTES

LOCATED AT THE NIH BUILDING 10 B2 LEVEL LOADING DOCK.

I. STORE SALVAGE MATERIALS INTENDED FOR REUSE IN PROJECT AREA AND PROTECT SAME FROM DAMAGE.

J. MAINTAIN CLEAR ACCESS CORRIDORS TO BUILDING EXITS SERVING OCCUPIED AREAS OUTSIDE AREA OF DEMOLITION AT ALL TIMES.

K. IF ANY KNOWN OR SUSPECTED ASBESTOS OR HAZARDOUS MATERIAL IS ENCOUNTERED IN PROJECT AREA, CONTRACTOR SHALL REPORT SAME TO PROJECT OFFICER AND STOP WORK IN THE AFFECTED AREA UNTIL THE MATERIAL(S) IS (ARE) ASSESSED AND/OR ABATED BY NIH.

L. FIRE ALARM EQUIPMENT TO REMAIN.

DEMOLITION KEY NOTES

1. REMOVE ELEVATORS COMPLETELY INCLUDING, CAB, BEAMS, EQUIPMENT OR OTHER ITEMS IN THE ELEVATOR SHAFT BACK TO MASONRY WALLS.

2. AT EVERY LEVEL: REMOVE ELEVATOR DOORS, CONTROLS, LIGHTS, WALL LANTERN/POSITION INDICATORS, CALL BOXES AND OTHER ACCESSORIES AS REQUIRED FOR NEW WORK.

3. REMOVE LOW CONCRETE WALL AT LEVEL 7 ONLY.

4. REMOVE AND ALTER GRATE AT LEVEL 7 ONLY AS REQUIRED FOR NEW STOREFRONT ENTRY. 5. REMOVE EQUIPMENT AS SHOWN. SEE MECHANICAL AND ELECTRICAL DRAWINGS. 6. REMOVE ROOFING & STRUCTURE COMPLETELY. SALVAGE ANY ROOF TOP EQUIPMENT FOR RE-USE. 7. REMOVE ROOFING DOWN TO ROOF CONCRETE DECK. PATCH REPAIR & LEVEL CONCRETE AS REQUIRED FOR NEW WORK.

REMOVE ROOF HATCH.

REMOVE PARAPET COPING & PRECAST CAP DOWN TO EXISTING BRICK & CONCRETE WALL. PATCH & LEVEL AS REQUIRED FOR NEW WORK.

10. REMOVE & SALVAGE T.V. CAMERAS AS REQUIRED BY NEW WORK AT LEVEL 7 ONLY -SEE ELECTRICAL.

11. REMOVE CEILING AS REQUIRED FOR NEW WORK AT LEVEL 7 ONLY.

12. FIRE ALARM EQUIPMENT TO REMAIN.

UP 19'-8" 10'-0" 31'-10" 3'-10" 23/64" 6'-8" 5'-6 1/32" 5'-0" 17'-6" 4" ELEVATOR LOBBY STAIR #2 RETAINING WALL MECHANICAL ROOM LEVEL 01 PORTABLE A/C UNIT TO BE REMOVED AND TURNED OVER TO NIH PUMP UNIT & CTRL FOR ELEV #3 TO BE REMOVED PUMP UNIT & CTRL FOR ELEV #4 TO BE REMOVED CABINET TO BE REMOVED AND TURNED OVER TO NIH FIRE ALARM EQUIP A/C UNIT FE ELEVATOR SHAFT #3 ELEVATOR SHAFT #4 TYPICAL AT ALL LEVELS STANDPIPE V.I.F V.I.F V.I.F V.I.F V.I.F V.I.F V.I.F M.O. V.I.F V.I.F M.O. V.I.F 8'-6" 1 5 1 2 2 2 4 3 FIRE EXTINGUISHER TO REMAIN 10 11 10 11 10 11 17'-6" 8'-6" 12 8'-6" 17'-6" 19'-8" 6'-8" 3'-10" 3'-10" 31'-4" 4" 4'-6" 4'-1" 5'-0" ELEVATOR LOBBY TYPICAL AT ALL LEVELS FIRE ALARM EQUIP A/C UNIT PUMP UNIT & CTRL FOR ELEV #2 TO BE REMOVED PUMP UNIT & CTRL FOR ELEV #1 TO BE REMOVED ELEVATOR SHAFT #1 ELEVATOR SHAFT #2 STAIRS #1 STANDPIPE V.I.F V.I.F V.I.F V.I.F V.I.F V.I.F V.I.F 1 1 2 2 2 4 3 5 17'-6" M.O. V.I.F M.O. V.I.F M.O. V.I.F DN 10 11 10 11 10 11 8'-6" 10'-0" 12 6 6 9 9 10 9 9 8 10 10 7 V.I.F V.I.F V.I.F 10'-0" 31'-4" V.I.F 8'-6" 17'-6" 19'-8" X DEMOLITION KEYNOTE EXISTING TO REMAIN EXISTING WALL, DR. & FR. TO REMAIN EXISTING WALL, DR. & FR. TO BE REMOVED EXISTING TO BE REMOVED FIRE EXTINGUISHER EXISTING CONCRETE WALL TO REMAIN EXISTING MASONRY WALL TO REMAIN PROPERTY OF THE UNITED STATES GOVERNMENT FOR OFFICIAL USE ONLY DO NOT REMOVE THIS NOTICE PROPERLY DESTROY DOCUMENTS WHEN NO LONGER NEEDED DRAWING NO. DESIGNED BY DRAWN BY CHECKED BY DRAWING PROJECTBUILDING CONTRACTORS A/E CON. NO. A/E TASK NO. CONS. CONTR. CONS. WORK PRIME A/E SUB A/E CONSTR. CON. FACILITY CODE BUILDING NO. NAME STREET CITY STATE/ZIP OTHER BUILDING NO. SPB TASK NO. PROJ. OFFICER PROJ. MGR. SUBMISSION SUB. DATE WRK REQ. NO. A/E Name and LOGO SEAL GRAPHIC SCALE KEYPLAN PROJECT TITLE DRAWING TITLE OFFICE OF RESEARCH FACILTIES MARK DATEDESCRIPTION REVISIONS ARCHITECT/ENGINEER TRUE NORTH PROJECT NORTH 9 8 7 6 5 4 3 2 1 10 9 8 7 6 5 4 3 2 1 10 A B C D E F G H A B C D E F G H D/B PRIME PROJECT SITE C:\Users\kmcleggon\Documents\NAD-004 Arch_kareem.mc leggon.rvt 10/18/2022 1:05:01 PM SHEET 5 OF 54 TOTAL SHEET AD-101 Checker Author Designer 100% SUBMISSION 10/18/2022 MLP-8 NIH 9000 ROCKVILLE PIKE BETHESDA MD 20814 MLP-8 C103469 NAD-004 NEW AGE DEVELOPMENT OLBN, INC. SEG NEW AGE DEVELOPMENT, LLC. MLP -8-ELEVATORS REPLACMENT DEMOLITION FLOOR PLAN FOR EAST & WEST BUILDINGS OLBN, INC. A. DEMOLITION DRAWING SHOWS GENERAL EXTENT OF REQUIRED WORK. REMOVE FIXTURES, FITTINGS, DEVICES, ETC. REQUIRED TO PREPARE THE PROJECT SIRE TO RECEIVE NEW WORK. COORDINATE ARCHITECTURAL DEMOLITION W/ENGINEERING SYSTEMS DEMOLITION. SEE NEW WORK DRAWINGS FOR ADDITIONAL INFORMATION. B. WHERE NO EXISTING CEILING FINISH IS INDICATED WITHIN THE PROJECT LIMIT LINE, CEILING IS OPEN TO STRUCTURE. C. CONSTRUCTION SITE SHALL BE SEPARATED FROM OCCUPIED PORTIONS OF BUILDING WITH 1-HOUR OR 2-HOUR FIRE-RATED PARTITIONS. CONFIRM REQUIRED PARTITION RATING WITH NIH DFM. COORDINATE REMOVAL OF DOORS IN EXISTING FIRE-RATED PARTITIONS WITH NIH DFM. D. COORDINATE EXTENT OF DEMOLITION OF EXISTING PARTITIONS WITH NEW WORK. E. RESTORE FIRE SEPARATION CONSTRUCTION TO FULL CAPACITY AS SOON AS POSSIBLE AFTER DEMOLITION ACTIVITIES THAT COMPROMISE THEIR INTEGRITY. F. PROVIDE TEMPORARY BRACING REQUIRED TO SUPPORT BUILDING ELEMENTS TO REMAIN AND REQUIRED TO MAINTAIN THE PROJECT SITE IN A SAFE CONDITION. G. WHERE REMOVAL OF FINISHES IS REQUIRED FROM SURFACES TO REMAIN AS SUBSTRATE FOR NEW FINISHES, USE REMOVAL METHODS WHICH RESULT IN SUBSTRATE SUITABLE FOR NEW FINISHES. H. ALL CONSTRUCTION DEBRIS (THIS INCLUDES RECYCLABLE AND NON RECYCLABLE) ARE TO BE CYCLED THROUGH NIH'S CONSTRUCTION DEBRIS AND MONTGOMERY'S SCRAP METAL DUMPSTER
AD-101 1/4" = 1'-0" 2 PARTIAL DEMOLITION PLAN -EAST BLDG LEVEL 01 AD-101 1/4" = 1'-0" 1 PARTIAL DEMOLITION PLAN -WEST BLDG LEVEL 02
8.
9.
AD-101 1/4" = 1'-0" 3 PARTIAL DEMOLITION PLAN -EAST & WEST ELEVATOR TOWER
DEMOLITION
N N N 0 2' 4' 8' 0 2' 4' 8' 0 2' 4' 8' EXISTING ROOF EXISTING STAIR TYPICAL AT EAST & WEST BUILDINGS TYPICAL AT EAST & WEST BUILDINGS WALL BELOW
LEGEND

TYPICAL MACHINE ROOM PLAN -AT LEVEL 7 -EAST & WEST BLDG.

FLOOR PLAN GENERAL NOTES

TYPICAL ELEVATOR MACHINE ROOM -REFLECTED CEILING PLAN -AT LEVEL 7 EAST & WEST BLDGS

UNLESS NOTED OTHERWISE.

E.REMOVE EXISTING GWB WHEREVER PIPES ARE TO BE INSTALLED IN THE WALLS FOR UTILITIES (SEE MEP DRAWINGS FOR PIPE LOCATIONS IN EXISTING WALLS). REINSTALL GWB AND REFINISH WALL.

F.FIELD VERIFY ALL ROOM DIMENSIONS PRIOR TO FINAL SHOP DRAWING COMPLETION. IDENTIFY ANY CONFLICTS TO THE PROJECT OFFICER FOR RESOLUTION.

G.THIS DRAWING INDICATES LOCATION OF CEILING MOUNTED AND CEILING PENETRATING ITEMS, FOR ADDITIONAL INFORMATION SEE MECHANICAL PLUMBING AND ELECTRICAL DRAWINGS.

H.SUPPORT CEILING SUSPENSION SYSTEM FROM STRUCTURE ABOVE, NOT FROM DUCTWORK, METAL DECK, EQUIPMENT OR PIPING. SPACE HANGERS NOT MORE THAN 6" FROM ENDS AND NOT MORE THAN 4'-0" ON CENTERS ON RUNNERS.

I.SEE M.E.P DRAWINGS FOR WORK OUTSIDE "LIMITS OF CONSTRUCTION" SHOWN.

J.SEE STRUCTURAL DRAWINGS FOR SUPPORT AND FRAMING OF WALLS, STAIRS AND ROOF.

KEY NOTES

TYPICAL AT EAST & WEST BUILDINGS

DRAWINGS.

4. NEW STEEL LADDER, BOLTED TO CONCRETE FLOOR AND ROOF SLAB - PAINT. SEE D A-302.

5. NEW ROOF HATCH - SEE D A-302

6. NEW LIGHTS. SEE ELECTRICAL.

7. NEW ROOF DRAINS - PAINT. SEE PLUMBING 3 A-305

8. NEW ROOF SCUPPER, (6" x 12"). - SEE C A-302

9. NEW ALUMINUM ROOF PARAPET.

10. NEW MODIFIED BITUMEN ROOFING SYSTEM, SEE 1 A-305. SLOPE INSULATION AT 1/4"/FT MINIMUM.

11. EXTEND EXISTING STANDPIPE - PAINT.

12. PARTIAL WALL BELOW - SEE STRUCTURAL.

13. NEW STEEL BEAMS, JOISTS, METAL DECK ABOVE - PAINT.

14. NEW HVAC UNIT, SEE MECHANICAL DRAWINGS.

15. PROVIDE CRICKET AT HATCH AS REQUIRED BY SLOPE.

16. PROVIDE GUARDRAIL, SEE 1 A-304.

17. PROVIDE WALL MOUNTED FIRE EXTINGUISHER.

PLAN LEGEND

NOTE:

ALL PLANS ARE TYPICAL AT EAST AND WEST BUILDINGS

HOIST MACHINE HOIST MACHINE CTRLR DISCONNECTS DISCONNECTS GOVERNOR GOVERNOR 1 A-301 20'-5 13/16" 17'-5 13/16" CONTINUOUS RAILS SHIPS LADDER STAIRS UPPER MACHINE ROOM LOWER MACHINE ROOM NEW STAIRS WALL RAILS --4 A-201 2 A-301 4'-0" 42" GUARD RAIL 1'-0" W1 W1 W1 W1 11 7 2 3 4 1 12 42" GUARD RAIL SEE 3601 V.I.F V.I.F 3'-10 15/32" 3'-0" 1'-9 13/16" 802 801 803 4'-2" 4'-2" 9'-2" 8'-3" / 10 R @ 6.7" 9 T @ 11" = 11 R @ 7" 10 T @ 11" = 17'-6" V.I.F 20'-5 13/16"V.I.F 1'-0" 2'-0" DN DN UP 48" 3 3'-0" W01 V.I.F V.I.F 3 A-201 5 A-201 4'-8 11/32" 14 / 2 A-201 8'-6" V.I.F 31'-4" 4'-0" W2. EO1 W3 BELOW W3 BELOW 10'-0" 8'-6" 1 A-30417 17UPPER MACHINE ROOM LOWER MACHINE ROOM NEW STAIRS 802 803 W1 W1 W1 W1 7 6 5 4 6 6 / 1 A-301 / 2 A-301 6 801
A.PATCH AND REPAIR FINISHES AND CONSTRUCTION DAMAGED BY DEMOLITION. PATCH AND REPAIR TO MATCH ADJACENT CONSTRUCTION. B.CONSTRUCTION SITE SHALL BE SEPARATED FROM OCCUPIED PORTIONS OF BUILDING WITH 1-HOUR
2-HOUR FIRE-RATED PARTITIONS. CONFIRM REQUIRED PARTITION RATING WITH NIH DFM. COORDINATE REMOVAL OF DOORS IN EXISTING FIRE-RATED PARTITIONS WITH NIH DFM.
SHOWN ARE TO THE FACE OF WALL
PARTITION UNLESS INDICATED OTHERWISE.
OR
C.DIMENSIONS
OR
D.LOCATE HINGE SIDE OF DOOR JAMBS 4" (102MM) FROM INTERSECTING OR CENTER DOOR IN WALL (WHERE SHOWN)
TYPICAL AT EAST & WEST BUILDINGS EQUIPMENT AS NOTED EXISTING WALL TO REMAIN EXISTING DR TO REMAIN NEW WALL TYPE NEW DOOR & DOOR TAG 101 SMOKE DETECTOR (REFER TO FIRE PROTECTION DWG) S H HEAT DETECTOR (REFER TO ELEC DWG) ROOF HATCH WITH GUARDRAIL; COORDINATE LOCATION WITH STRUCTURAL & MECHANICAL NEW WORK KEYNOTE X 1 A-301ROOF DRAIN, TYP -SEE -E A302 METAL SCUPPER, TYP -SEE -C A-302 SLOPE SLOPE SLOPE ALUMINUM COPPING ON NEW PARAPET SEE A A302 9 10 9 8 10 9 7 V.I.F. V.I.F. 5 9 2 A-301 SLOPE VALLEY 15 15 11'-0" 16 3'-0" 3'-0" EQUIP. WIDTH V.I.F VALLEY 19'-8" 1 A-304 9'-0" VIF MIN. MIN. 31'-4" 10/ D A-302 SLOPE SLOPE PROPERTY OF THE UNITED STATES GOVERNMENT FOR OFFICIAL USE ONLY DO NOT REMOVE THIS NOTICE PROPERLY DESTROY DOCUMENTS WHEN NO LONGER NEEDED DRAWING NO. DESIGNED BY DRAWN BY CHECKED BY DRAWING PROJECTBUILDING CONTRACTORS A/E CON. NO. A/E TASK NO. CONS. CONTR. CONS. WORK PRIME A/E SUB A/E CONSTR. CON. FACILITY CODE BUILDING NO. NAME STREET CITY STATE/ZIP OTHER BUILDING NO. SPB TASK NO. PROJ. OFFICER PROJ. MGR. SUBMISSION SUB. DATE WRK REQ. NO. A/E Name and LOGO SEAL GRAPHIC SCALE KEYPLAN PROJECT TITLE DRAWING TITLE OFFICE OF RESEARCH FACILTIES MARK DATEDESCRIPTION REVISIONS ARCHITECT/ENGINEER TRUE NORTH PROJECT NORTH 9 8 7 6 5 4 3 2 1 10 9 8 7 6 5 4 3 2 1 10 A B C D E F G H A B C D E F G H D/B PRIME PROJECT SITE C:\Users\kmcleggon\Documents\NAD-004 Arch_kareem.mc leggon.rvt 10/18/2022 1:56:55 PM SHEET 7 OF 54 TOTAL SHEET A-102 Checker Author Designer 100% SUBMISSION 10/18/2022 MLP-8 NIH 9000 ROCKVILLE PIKE BETHESDA MD 20814 MLP-8 C103469 NAD-004 NEW AGE DEVELOPMENT OLBN, INC. SEG NEW AGE DEVELOPMENT, LLC. MLP -8-ELEVATORS REPLACMENT TYPICAL MACHINE ROOM FLOOR PLAN, RCP, ROOF PLAN EAST & WEST BLDGS OLBN, INC. A-102 1/4" = 1'-0" 1
A-102 1/4" = 1'-0" 3
1. NEW METAL STAIRS, LANDING, AND PAINTED H.M. RAILINGS - SEE 4 A-301. 2. NEW DOORS, FRAMES, & HARDWARE - SEE A-602. 3. ELEVATOR EQUIPMENT, SEE MECHANICAL, ELECTRICAL AND ELEVATOR
N N N 0 2' 4' 8' 0 2' 4' 8' 0 2' 4' 8'
13 13 13 14 A-102 1/4" = 1'-0" 2 ROOF PLAN -TYPICAL -LVL 7 -EAST & WEST BLDGS

EXTERIOR GENERAL NOTES

TYP. ELEVATOR LOBBY - EXISTING LEVEL 7 60'-0" NEW LEVEL 8UPPER MACHINE ROOM 76'-0" TOP OF PARAPET 88'-6" LOWER MACHINE ROOM 72'-0" TOP OF ROOF DECK 86'-3" EXISTING CONCRETE WALL IN FOREGROUND ALUMINUM, ROOF SCUPPER 6"x12" ROOF HATCH SEE 8'-2" NEW ALUMINUM COPING EXISTING BRICK 16'-0" 10'-3" 2'-3" EXISTING LOUVER TO REMAIN NEW METAL PANEL BASE & FLASHING NEW LEVEL 8 12'-6" 10'-3" 2'-3" 3'-6" 3'-6" 3'-6" 3'-6" 3'-5" 3'-6" 3'-6" 3'-6" 3'-5" NEW CORRUGATED METAL PANELS MITER & SEAL CORNERS TYPICAL ALL SIDES 6'-8" M.O. VIF M.O. VIF 16'-0" PAINT EXISTING CANOPY, SUPPORTS, DOWNSPOUTS & HANDRAILS. NEW ALUMINUM & GLASS STOREFRONT 6'-8" 6'-0" TYP. ALL SIDES 12'-0" 4'-0" D A-302 8" 3'-0" 3'-0" GUARDRAIL - SEE 2 A-304 EQUIP. WIDTH V.I.F. 3 A-602 TYP. ELEVATOR LOBBY - EXISTING LEVEL 7 60'-0" 3'-6" 3'-10" 3'-10" NEW ELEVATOR DOORS - 42" 84" 7'-0" M.O. V.I.F. EXISTING OUTLET CALL BUTTON, TYP. - REPLACE WITH NEW EXISTING BRICK HALL LANTERN, TYP. - REPLACE WITH NEW REFINISH EXISTING S.S. FRAME - TYP. M.O. V.I.F. M.O. V.I.F. TYP. ELEVATOR LOBBY - EXISTING LEVEL 7 60'-0" NEW LEVEL 8UPPER MACHINE ROOM 76'-0" TOP OF PARAPET 88'-6" TOP OF ROOF DECK 86'-3" 3'-5" 3'-5" 3'-6" 3'-6" 3'-6" 3'-6" 3'-6" 3'-6" 3'-6" EXISTING BRICK NEW ALUMINUM COPING 2'-3" 10'-3" 16'-0" 12'-6" NEW METAL PANEL BASE & FLASHING V.I.F NEW METAL PANELS EXISTING OPENING ROOF HATCH SEE 8" D A-302 4" TYP. ELEVATOR LOBBY - EXISTING LEVEL 7 60'-0" NEW LEVEL 8UPPER MACHINE ROOM 76'-0" TOP OF PARAPET 88'-6" TOP OF ROOF DECK 86'-3" 2'-3" 10'-3" 12'-6" 16'-0" EXISTING WINDOW EXISTING BRICK NEW METAL PANEL BASE & FLASHING NEW ALUMINUM COPING NEW METAL PANEL - CORRUGATED 8" ROOF HATCH SEE D A-302 2" TYP. ELEVATOR LOBBY - EXISTING LEVEL 7 60'-0" NEW LEVEL 8UPPER MACHINE ROOM 76'-0" TOP OF PARAPET 88'-6" TOP OF ROOF DECK 86'-3" NEW ALUMINUM COPING EXISTING BRICK PAINT EXISTING CANOPY, SUPPORTS, DOWNSPOUTS, & RAILING. 10'-3" 2'-3" 8" ROOF HATCH SEE D A-302 2" PROPERTY OF THE UNITED STATES GOVERNMENT FOR OFFICIAL USE ONLY DO NOT REMOVE THIS NOTICE PROPERLY DESTROY DOCUMENTS WHEN NO LONGER NEEDED DRAWING NO. DESIGNED BY DRAWN BY CHECKED BY DRAWING PROJECTBUILDING CONTRACTORS A/E CON. NO. A/E TASK NO. CONS. CONTR. CONS. WORK PRIME A/E SUB A/E CONSTR. CON. FACILITY CODE BUILDING NO. NAME STREET CITY STATE/ZIP OTHER BUILDING NO. SPB TASK NO. PROJ. OFFICER PROJ. MGR. SUBMISSION SUB. DATE WRK REQ. NO. A/E Name and LOGO SEAL GRAPHIC SCALE KEYPLAN PROJECT TITLE DRAWING TITLE OFFICE OF RESEARCH FACILTIES MARK DATEDESCRIPTION REVISIONS ARCHITECT/ENGINEER TRUE NORTH PROJECT NORTH 9 8 7 6 5 4 3 2 1 10 9 8 7 6 5 4 3 2 1 10 A B C D E F G H A B C D E F G H D/B PRIME PROJECT SITE C:\Users\kmcleggon\Documents\NAD-004 Arch_kareem.mc leggon.rvt SHEET 8 OF 55 TOTAL SHEET A-201 Checker Author Designer 100% SUBMISSION 10/19/2022 MLP-8 NIH 9000 ROCKVILLE PIKE BETHESDA MD 20814 MLP-8 C103469 NAD-004 NEW AGE DEVELOPMENT OLBN, INC. SEG NEW AGE DEVELOPMENT, LLC. MLP -8-ELEVATORS REPLACMENT ELEVATIONS FOR EAST & WEST BUILDINGS OLBN, INC. A-201 1/4" = 1'-0" 2 S. ELEVATION FROM PARKING LOT -EAST & WEST BLDG N A-201 3/8" = 1'-0" 1 TYP. ELEVATOR LOBBY AT LEVEL 1 -7, EAST & WEST BLDG A-201 1/4" = 1'-0" 4 N. ELEVATION -EAST & WEST BLDG. N A-201 1/4" = 1'-0" 3 E. ELEVATION -EAST & WEST BLDG N A-201 1/4" = 1'-0" 5 W. ELEVATION -EAST & WEST BLDG ft N N
1. PROTECT BRICK & ALL EXISTING CONSTRUCTION. REPAIR OR REPLACE ANY EXISTING CONSTRUCTION DAMAGED OR ALTERED DURING CONSTRUCTION. 2. FIELD VERIFY ALL ELEVATIONS, DIMENSIONS & OVERALL CONSTRUCTION PRIOR TO PURCHASE, FABRICATION OR INSTALLATION. 3. NEW METAL PANEL BASIS OF DESIGN: METL SPAN THERMAL SAFE FIRE-RATED INSULATED METAL WALL PANELS. SEE W1/A601 AS WELL AS SPECIFICATIONS & DETAILS ON A-303. 4. UNLESS NOTED OTHERWISE, CENTER METAL PANELS ON EACH ELEVATION SO END PANELS ARE EQUAL DIMENSION. MITER & SEAL ALL CORNERS & JOINTS PER MANUFACTURERS DETAILS & INSTRUCTIONS. 0 2' 4' 8' 0 2' 4' 8' TYPICAL AT EAST & WEST BUILDINGS 0 2' 4' 8' 0 2' 4' 8' 0 2' 4' 8' NOTES: REFINISH STAINLESS STEEL FRAMESCONTRACTOR SHALL CLEAN & POLISH ALL EXISTING ELEVATOR DOOR FRAMES.

AT METAL STAIRS -TYPICAL AT EAST & WEST BUILDINGS.

STAIR SIGNAGE:

SHALL INDICATE THE IDENTIFICATION OF THE STAIR ENCLOSURE.

E. THE SIGNAGE SHALL INDICATE THE FLOOR LEVEL OF, AND THE DIRECTION TO, EXIT DISCHARGE.

F. THE SIGNAGE SHALL BE LOCATED INSIDE THE STAIR ENCLOSURE.

G. THE BOTTOM OF THE SIGNAGE SHALL BE LOCATED A MINIMUM OF 48 IN.(1220 MM) ABOVE THE FLOOR LANDING, AND THE TOP OF THE SIGNAGE SHALL BE LOCATED A MAXIMUM OF 84 IN. (2135 MM) ABOVE THE FLOOR LANDING.

H. THE SIGNAGE SHALL BE IN A POSITION THAT IS VISIBLE FROM WITHIN THE STAIR ENCLOSURE WHEN THE DOOR IS IN THE OPEN OR CLOSED POSITION.

I. THE SIGNAGE SHALL HAVE SUFFICIENT ILLUMINATION TO BE READ AT CLOSE PROXIMITY & WITH TACTILE SURFACE.

J. THE FLOOR LEVEL DESIGNATION SHALL ALSO BE TACTILE N ACCORDANCE WITH ICC A117.1, ACCESSIBLE AND USABLE BUILDINGS AND FACILITIES.

K. THE SIGNAGE SHALL BE PAINTED OR STENCILED ON THE WALL OR ON A SEPARATE SIGN SECURELY ATTACHES TO THE WALL.

L. THE STAIRWAY IDENTIFICATION SHALL BE LOCATED AT THE TOP OF THE SIGN IN MINIMUM 1 IN. (25 MM) HEIGHT LETTERING WITH TACTILE SURFACE.

M. SIGNAGE THAT READS NO ROOF ACCESS SHALL DESIGNATE STAIRWAYS THAT DO NOT PROVIDE ROOF ACCESS. LETTERING SHALL BE A MINIMUM OF 1 IN. (25 MM) HIGH WITH TACTILE SURFACE.

N. THE FLOOR LEVEL NUMBER SHALL BE LOCATED BELOW THE STAIRWAY IDENTIFIER IN MINIMUM 5 IN. (125 MM) HIGH NUMBERS WITH TACTILE SURFACE.

MEZZANINE LEVELS SHALL HAVE THE LETTER "M" OR OTHER APPROPRIATE IDENTIFICATION LETTER PRECEDING THE FLOOR NUMBER, WHILE BASEMENT LEVELS SHALL HAVE THE LETTER "B" OR OTHER APPROPRIATE IDENTIFICATION LETTER PRECEDING THE FLOOR LEVEL NUMBER.

O. IDENTIFICATION OF THE LOWER AND UPPER TERMINUS OF THE STAIRWAY SHALL BE ON THE SIGN IN MINIMUM 1 IN. (25 MM) HIGH LETTERS OR NUMBERS.

NOTE:

ALL SECTIONS & DETAILS ARE TYPICAL AT EAST AND WEST BUILDINGS.

PROVIDE STAIR SIGNAGE AT THE NEW & EXISTING STAIRS PER NFPA101SECTION 7.2.2.5.4

Level 1 0" Level 2 10'-0" TYP. ELEVATOR LOBBY - EXISTING LEVEL 7 60'-0" NEW LEVEL 8UPPER MACHINE ROOM 76'-0" TOP OF PARAPET 88'-6" LOWER MACHINE ROOM 72'-0" TOP OF ROOF DECK 86'-3" 2 A-301 ELEVATOR PIT -5'-9" LEVEL 3 20'-0"NEW ALUMINUM COPING AND PARAPET NEW METAL PANEL WALL B A-302 EXISTING BRICK & CONCRETE NEW ROOF DECK ROOF HATCH & LADDER BEYOND NEW ELEVATOR NEW ROOFING & INSULATION NEW WALL GUARDRAIL CONTINUOUS RAIL NEW ROOF JOISTS 7'-0" 8'-0" NEW & EXISTING STEEL PIT LADDER - PAINT CAB HEIGHT EXISTING PIT 5'-9" 4'-0" EXISTING ELEVATOR PIT & NEW METAL GRATE BEYOND 24"x24"x24" - V.I.F 2'-0" 2'-0" 10'-0" 10'-0" 5'-9" EXISTING PIT EXISTING STAIR EXISTING STAIR 40'-0" EXISTING STAIR 8'-6" STAIR SHAFT ELEVATOR LOBBY 10'-0" ELEVATOR SHAFT 8'-6" V.I.F V.I.F V.I.F 84" x 78" PLATFORM 8'-0" CAB NEW SLAB & BEAMS CLEAR 6" 14'-0" V.I.F NEW CAB EXISTING LOBBY 10'-0" 9'-2" V.I.F 7'-5" EXISTING M.O. V.I.F EXISTING CONCRETE SLAB EXISTING CONCRETE WALL RAISED FLOOR LIGHTING FIXTURES CEILING 1'-10" 4'-0" NEW GUARDRAIL SEE 3/A601 NEW SHIP LADDER STAIR LOWER MACHINE ROOM NEW ROOF DECK SEE STRUCTURAL DRAWINGS UPPER MACHINE ROOM GALVANIZED SLEEVES 4" 3'-0" 3'-6" STEEL LANDING STEEL STAIR EXISTING LANDING STEEL LANDING EXISTING STAIR12'-0" 4'-0" 16'-0" 12'-6" 10'-3" 2'-3" V.I.F EXISTING ELEVATOR SHAFT EXISTING BRICK & CONCRETE 5'-7" 10R @ 6.7" 6'-5" 11R @ 7" 4'-0" 10'-3" 2'-3" A A-302 D A-302 B A-302 / 4 A-301 15'-0" CAB 80" 65" 2'-0" W3 W3 LADDER TO ROOF SEE D/A302 12'-0" NEW STAIR NEW METAL PANEL WALL W1 W2. 1 A-304 W1 METAL PLATE TYP. ELEVATOR LOBBY - EXISTING LEVEL 7 60'-0" NEW LEVEL 8UPPER MACHINE ROOM 76'-0" TOP OF PARAPET 88'-6" LOWER MACHINE ROOM 72'-0" TOP OF ROOF DECK 86'-3"E A-302 EXISTING WINDOW TO REMAIN WALL RAIL BEYOND SEE 3 A-301 EXISTING BRICK & CONCRETE WALL EXISTING STAIR & LANDING HANDRAILS TO MATCH EXISTING METAL STAIRS & LANDING NEW METAL PANEL WALL GUARDRAIL WALL RAIL BEYOND CONTINUOUS CENTER RAIL 3'-0" 5'-0" 5'-7" 6'-5" 4'-0" 2'-3" 10'-3" 12'-6" W1 SEE STRUCTURAL DRAWINGS 2'-0" EXISTING STAIR 12'-0" NEW STAIR 10R @ 6.7" 11R @ 7" EXISTING BRICK & CONCRETE WALL METAL PANEL BASE FLASHING 16'-0" V.I.F. NEW METAL PANEL WALL NEW ROOF JOISTS & DECK 17'-6" V.I.F. 4 A-301 1'-0" B A-302 W1 7'-0" 8" 2" 4TYP 1'-0" 3'-0" 3'-6" 3'-0" 1" NOSE 11" 3'-0" V.I.F TYP. RISER 2'-0" 1'-0" / 3 A-301 3 A-301 1'-0" 2'-0" 2 1/4" 2 1/4" 3'-0" PROPERTY OF THE UNITED STATES GOVERNMENT FOR OFFICIAL USE ONLY DO NOT REMOVE THIS NOTICE PROPERLY DESTROY DOCUMENTS WHEN NO LONGER NEEDED DRAWING NO. DESIGNED BY DRAWN BY CHECKED BY DRAWING PROJECTBUILDING CONTRACTORS A/E CON. NO. A/E TASK NO. CONS. CONTR. CONS. WORK PRIME A/E SUB A/E CONSTR. CON. FACILITY CODE BUILDING NO. NAME STREET CITY STATE/ZIP OTHER BUILDING NO. SPB TASK NO. PROJ. OFFICER PROJ. MGR. SUBMISSION SUB. DATE WRK REQ. NO. A/E Name and LOGO SEAL GRAPHIC SCALE KEYPLAN PROJECT TITLE DRAWING TITLE OFFICE OF RESEARCH FACILTIES MARK DATEDESCRIPTION REVISIONS ARCHITECT/ENGINEER TRUE NORTH PROJECT NORTH 9 8 7 6 5 4 3 2 1 10 9 8 7 6 5 4 3 2 1 10 A B C D E F G H A B C D E F G H D/B PRIME PROJECT SITE C:\Users\kmcleggon\Documents\NAD-004 Arch_kareem.mc leggon.rvt 10/18/2022 2:35:10 PM SHEET 9 OF 54 TOTAL SHEET A-301 Checker Author Designer 100% SUBMISSION 10/18/2022 MLP-8 NIH 9000 ROCKVILLE PIKE BETHESDA MD 20814 MLP-8 C103469 NAD-004 NEW AGE DEVELOPMENT OLBN, INC. SEG NEW AGE DEVELOPMENT, LLC. MLP -8-ELEVATORS REPLACMENT SECTIONS FOR EAST & WEST BUILDINGS OLBN, INC. A-301 1/4" = 1'-0" 1 MACH. RM & ELEVATOR SECTION -TYP. @ E. & W. BLDGS A-301 1/4" = 1'-0" 2 STAIR
A-301 3/4" = 1'-0" 4
A-301 3" = 1'-0" 3 DETAILS AT
RAIL NEW OR EXISTING WALL 1 1/2 DIA. H.M. WALL RAIL - PAINT METAL BLOCKING AT NEW CONSTRUCTION. PROVIDE LAG BOLTS WITH NONSHRINK GROUT AT EXISTING CONCRETE OR CMU TYPICAL. ESCUTCHEON PLATE - TYP. AT TOP OF STAIR AT BOTTOM OF STAIR A.F.F. PLAN SECTION NEW ALUMINUM COPING & PARAPET NEW ROOFING & INSULATION
NOTE: CONTRACTOR SHALL APPLY SPRAY-ON FIRE PROOFING AT UNDERSIDE OF NEW FLOOR & ROOF DECKS, STEEL BEAMS & JOISTS: SEE 4 / A-601 FLOOR ASSEMBLY: 2 HOURS. (NOT SHOWN) ROOF ASSEMBLY: 2 HOURS (NOT SHOWN) N N N N TYPICAL @ INTERIOR RAILS 1 1/2 " DIA. H.M. TOP RAIL & POSTS @ 4'-0" O.C. MAX. 1" DIA. H.M. INTERMEDIATE RAILS, WITH SPACES LESS THAN 4" TYP. - PAINT GUARDRAIL AT TOP OF STAIR WALL RAIL BEYOND - PAINT SEE NEW METAL PLATE STAIR & LANDING - PAINT. SEE STRUCTURAL DRAWINGS FOR SUPPORT DETAILS NEW OR EXISTING BUILDING WALL WALL RAIL BEYOND 1/4" MINIMUM METAL TREADS WITH NON-SLIP RAISED DIAMOND PATTERN - PAINT METAL RISERS - PAINT METAL STRINGER - BOTH SIDES - PAINT NEW OR EXISTING BUILDING WALL TREAD 0 2' 4' 8' 0 2' 4' 8' 0 6" 24" 1'2" 0 2" 4" 8" TLESS HAN CONTRACTOR SHALL APPLY SPRAY-ON FIRE PROOFING AT UNDERSIDE OF NEW FLOOR & ROOF DECKS, STEEL BEAMS & JOISTS: - SEE 4 A-601 FLOOR ASSEMBLY: 2 HOURS. (NOT SHOWN) ROOF ASSEMBLY: 2 HOURS (NOT SHOWN)
SECTION -TYP. AT EAST & WEST BLDG.
DETAIL
WALL
NOTE:
A. THE STAIRS SHALL BE PROVIDED WITH SPECIAL SIGNAGE WITHIN THE ENCLOSURE AT EACH FLOOR LANDING. B. THE SIGNAGE SHALL INDICATE THE FLOOR LEVEL. C. THE SIGNAGE SHALL INDICATE THE TERMINUS
THE TOP AND BOTTOM
THE STAIR ENCLOSURE.
SIGNAGE
OF
OF
D. THE

PARAPET DETAIL -TRANSVERSE SECTION -TYPICAL

NOTE:

ROOFING R1

• STYRENE BUTADIENE STYRENE (SBS) MODIFIED BITUMEN MEMBRANE ROOFING.

POLYISOCYANURATE TAPERED FOAM INSULATION (R 5.7 PER INCH MINIMUM)

NOTES

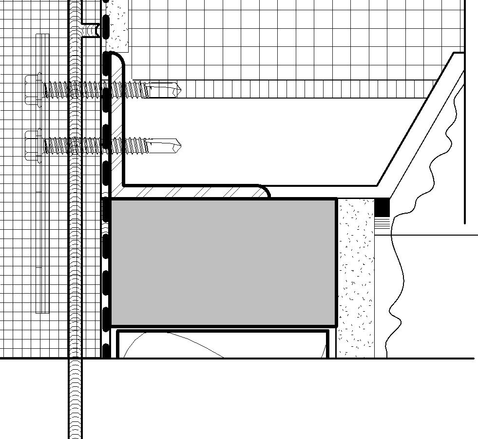
TOP OF ROOF DECK 86'-3" 4" ROOF LEVEL 86'-11 61/256" W1 3/4" 8" 6" 5/8"5/8"5/8" 9 3/4" SEALANT FASTENER SEALANT 5/8"5/8"5/8" NEW LEVEL 8UPPER MACHINE ROOM 76'-0" 2 HR SPRAY-ON FIRE-PROOFING AT METAL DECK & STEEL BEAM - SEE 4 A-601 STEEL BEAM SEE STRUCTURAL DWG ADD OR REMOVE CONCRETE AS REQUIRED BY DECK OR BEAM BEARING - SEE STRUCTURAL DWG ANCHOR STUDS TO CONCRETE SLAB ON METAL DECK. SEE STRUCTURAL DWG CONTINUOUS BASE FLASHING WITH WEEP HOLES @ 24" O.C. VAPOR BARRIER MEMBRANE (DASHED) 6" LT. GA. STEEL STUDS @ 16" O.C.SEE STRUCTURAL DWG INSULATED METAL WALL PANELS - ATTACH TO STEEL STUDS PER MGFR STANDARD DETAILS ON SHEET A 303 2" 8" CONTINUOUS PROJECTED METAL PANEL BASESEE 1 A601 EXISTING BRICK EXISTING CONCRETE WALL 1 A-601 8" 9 3/4" TOP OF PARAPET 88'-6" TOP OF ROOF DECK 86'-3" 8 " SLOPE PAINTED HOLLOW METAL 1 1/2 " DIA. GUARDRAIL ON 3 SIDES OF HATCH BOLT CURB WITH ANGLE TO CONTINUOUS 8 X 12 WOOD BLOCKING - FRT INSULATED INTEGRAL ALUMINUM CURB WITH FLASHING LEGS ON 4 SIDES
ROOF HATCH - AS PER BILCO BIL. GUARD 2.0 HATCH RAILING SYSTEM - RL-2-5 36" 36" FOR FLASHING DETAILS - SEE 5 A-305 FOR TYPICAL ROOF DETAILS, SEE 1 A-305 2 HR SPRAY-ON FIRE PROOFING AT DECK & JOISTS - SEE 4 A-601 W2 36" 30" ALUMINUM ROOF HATCH WITH CLOSER & HOLD-OPEN ARM BOLT LADDER TO FRT BLOCKING IN METAL STUDS SEE A 601 PAINTED STEEL LADDER LT. GA. STUDSATTACH TO BLOCKING METAL ROOF DECK STEEL JOIST - SEE STRUCTURAL DWGS. 6 1/8" V.I.F 3' -0" 3' -0" SEALANT MODIFIED BITUMEN ROOFING R-1 -SEE 1 / A-305 FLASHING SEALANT SLOPING CRICKET 9" MODIFIED BITUMEN ROOFING R-1. -SEE 1 / A-305 SOLID TOP STEP SEE STRUCTURAL DRAWINGS MODIFIED BITUMEN MEMBRANE PER ROOF MANUFACTURER REQUIREMENTS - SEE 1 A-305 TERMINATION BAR & ELASTOMERIC SEALANT - SEE 2 A-305 3/4" METAL FLANGE WOOD NAILER -FRT FASTENER 2" 6" SEALANT SEALANT MODIFIED BITUMEN FLASHING & COUNTER FLASHING PRIME FLANGE TO RECEIVE BITUMEN SHEET SET IN PS-304 & FASTEN. -ABRADE FLANGE TO RECEIVE PARAPRO FASTENER & SEALANT ROOF DRAIN BEYOND -SEE 3 A-305 NOTE THE DRAWING IS GENERAL INSTALLATION ONLY, A SHOP DRAWING SHALL BE PROVIDED & APPROVED BY ARCHITECT. OVERLAP AS REQ. BY MANUFACTURER TOP OF PARAPET 88'-6" TOP OF ROOF DECK 86'-3" ALUMINUM COPING CAP - SEE 5 A-303 PARAPET FLASHING & ROOFING R1 - SEE 2 A-305 CONTINUOUS WOOD BLOCKING - FRT METAL PANEL CAP & FASTENER VAPOR BARRIER MEMBRANE (DASHED) METAL DECK STEEL JOISTS 2 HR SPRAY ON FIRE PROOFING AT DECK AND JOISTS. - SEE 4 A-601 3/4" FRT PLYWOOD TERMINATION BAR WITH ELASTOMERIC SEALANT - SEE 2 A-305 WOOD CANT - FRT SLOPE 1/4" FT MIN. TAPERED RIGID INSULATION SEE STRUCTURAL DRAWING STEEL HEADER SEE STRUCTURAL DRAWING 6" LT. GA STEEL STUDS @ 16" O.C. SEE STRUCTURAL DRAWING W1 1 A-601 SEE 9 3/4" 5/8" 5/8" 6" 5/8" 3/4" 5/8"5/8"5/8" SEALANT & FASTENER SEALANT FIRE-RATED GWB & SHEATHING VAPOR BARRIER -MEMBRANE (DASHED) 4" MODIFIED BITUMEN ROOFING & FLASHING R1 - SEE 1 A-305 PROPERTY OF THE UNITED STATES GOVERNMENT FOR OFFICIAL USE ONLY DO NOT REMOVE THIS NOTICE PROPERLY DESTROY DOCUMENTS WHEN NO LONGER NEEDED DRAWING NO. DESIGNED BY DRAWN BY CHECKED BY DRAWING PROJECTBUILDING CONTRACTORS A/E CON. NO. A/E TASK NO. CONS. CONTR. CONS. WORK PRIME A/E SUB A/E CONSTR. CON. FACILITY CODE BUILDING NO. NAME STREET CITY STATE/ZIP OTHER BUILDING NO. SPB TASK NO. PROJ. OFFICER PROJ. MGR. SUBMISSION SUB. DATE WRK REQ. NO. A/E Name and LOGO SEAL GRAPHIC SCALE KEYPLAN PROJECT TITLE DRAWING TITLE OFFICE OF RESEARCH FACILTIES MARK DATEDESCRIPTION REVISIONS ARCHITECT/ENGINEER TRUE NORTH PROJECT NORTH 9 8 7 6 5 4 3 2 1 10 9 8 7 6 5 4 3 2 1 10 A B C D E F G H A B C D E F G H D/B PRIME PROJECT SITE C:\Users\kmcleggon\Documents\NAD-004 Arch_kareem.mc leggon.rvt 10/18/2022 3:11:35 PM SHEET 10 OF 54 TOTAL SHEET A-302 Checker Author Designer 100% SUBMISSION 10/18/2022 MLP-8 NIH 9000 ROCKVILLE PIKE BETHESDA MD 20814 MLP-8 C103469 NAD-004 NEW AGE DEVELOPMENT OLBN, INC. SEG NEW AGE DEVELOPMENT, LLC. MLP -8-ELEVATORS REPLACMENT WALL SECTIONS AND DETAILS FOR EAST & WEST BUILDINGS OLBN, INC. A-302 3" = 1'-0" A PARAPET DETAIL -TYPICAL A-302 1 1/2" = 1'-0" B METAL PANEL AT FLOOR SLAB -TYPICAL A-302 1 1/2" = 1'-0" D DETAIL AT ROOF HATCH & LADDER A-302 3" = 1'-0" C DETAIL AT ROOF OVERFLOW SCUPPER -TYPICAL ALUMINUM COPING CAP SEE 5 A-303 PARAPET FLASHING & ROOFING - SEE 2 A305 CONTINUOUS WOOD BLOCKING - FRT. MODIFIED BITUMEN ROOFING R-1 & FLASHING - SEE 1 A-305 WOOD CANT - FRT. SLOPE 1/4" MIN 2 HOUR SPRAY-ON FIRE PROOFING AT DECK AND JOISTS - SEE A A-601 6" LT. GA STEEL STUDS @ 16" O.C.SEE STRUCTURAL DWG. METAL PANELS ATTACHED TO STEEL STUDS PER MFGR. STANDARD DETAILS - SEE 1 A-303 VAPOR BARRIER MEMBRANE (DASHED) TAPERED RIGID INSULATION METAL DECK SEE STRUCTURAL DWG. 3/4" FRT. PLYWOOD METAL PANEL CAP 6" x 12" ALUMINUM FRAMED SCUPPER & FLASHING METAL PANEL W1 W1 0 3" 12" 6" 0 3" 12" 6" 0 2" 4" 8" 0 2" 4" 8"
• ALL SECTIONS
DETAILS
EAST
WEST BUILDINGS SEE A-302 3" = 1'-0" E
SEALANT & FASTENER SEALANT
&
ARE TYPICAL AT
AND
R30 MINIMUM AT LOW POINT SLOPED 1/4" PER FOOT TO HIGH POINT • SEE DETAIL 1 A-305 COVERBOARD BASEBOARD FIRE-RATED GWB & SHEATHING -SEE A-601 SEALANT TERMINATION BAR & ELASTOMERIC SEALANT -SEE 2 A-305 PARADIENE 20 PARADIENE FLASHING MEMBRANE (FULLY ADHERE)

NOTES:

MALE END CF-42" FLUTE / MESA FEMALE END 8" -VERIFY WITH MANUFACTURER 14 GA. CLIP 1/4" HWH FASTENERS INTERIOR SURFACE METAL PANEL EXTERIOR SURFACE 6" STRUCTURAL STEEL LIGHT GAUGE STUD @ 16" O.C. MIN. 14 GA. PANEL CLIP 14 GA. PANEL CLIP @ EACH WALL SUPPORT 6" STRUCTURAL STEEL LIGHT GAUGE STUD @ 16" O.C. MIN. ATTACH PANEL CLIP THROUGH GYPSUM BOARD & LT. GA. STUD. -SEE 1 / A-601 METAL PANEL W1 SEE 1 A 601 METAL PANEL FINISH FLOOR 14 GA. PANEL CLIP 1/4" HWH FASTENERS BASE TRIM 1/8" ∅RIVETS @ 12" O.C. BASE FLASHING WITH WEEP HOLES AT 24" O.C. CONTINUOUS BASE ATTACHMENT BUTYL SEALANT CONC. FASTENERS #12 PANCAKE STITCH FASTENER CONTINUOUS BUTYL SEALANT WITH MARRIAGE BEAD TO VERTICAL PANEL JOINT SEALANT CONTINUOUS BUTYL SEALANT WITH MARRIAGE BEAD TO VERTICAL PANEL JOINT SEALANT ALTERNATE PLACEMENT OF SEALANT URETHANE SEALANT BASE ATTACHMENT SET IN CONTINUOUS BEAD OF URETHANE SEALANT BUTYL SEALANT 2" 8" METAL PANEL W1 SEE 1 A-601 BUTYL SEALANT WIPER GASKET MALE CORNER EXTRUSION BUTYL SEALANT SUPPORTS 1/4" PANCAKE FASTENER @ EACH SUPPORT FEMALE CORNER EXTRUSION FIELD MITER PANEL #12 PANCAKE STITCH FASTENER @ EACH SUPPORT METAL PANEL METAL PANEL W1 W1 LT. GA. STUDS OR TUBE SEE A A-601 SEE A A-601 16" LT. GA. STUDS 1/4" HWH FASTENERS CONTINUOUS BUTYL SEALANT WITH MARRIAGE BEAD TO VERTICAL PANEL JOINT SEALANT FLUTE PLUG STRIP (1) PER PANEL SET IN URETHANE SEALANT FLASHING SEALANT TAPE METAL CLEAT & FASTENER MODIFIED BITUMEN ROOFING & FLASHING R1 -SEE 1 A-305 PARAPET BLOCKING -FRT -SEE A / A-302 14 GA. PANEL CLIP SUPPORT FASTENER METAL PANEL ALUMINUM COPING CAP METAL PANEL CAP SEALANT VAPOR BARRIER MEMBRANE (DASHED) 3/4" FRT PLYWOOD WOOD CANT -FRT MODIFIED BITUMEN ROOFING & FLASHING R1 -SEE 1 A-305 7" 14" 14" 7" PROPERTY OF THE UNITED STATES GOVERNMENT FOR OFFICIAL USE ONLY DO NOT REMOVE THIS NOTICE PROPERLY DESTROY DOCUMENTS WHEN NO LONGER NEEDED DRAWING NO. DESIGNED BY DRAWN BY CHECKED BY DRAWING PROJECTBUILDING CONTRACTORS A/E CON. NO. A/E TASK NO. CONS. CONTR. CONS. WORK PRIME A/E SUB A/E CONSTR. CON. FACILITY CODE BUILDING NO. NAME STREET CITY STATE/ZIP OTHER BUILDING NO. SPB TASK NO. PROJ. OFFICER PROJ. MGR. SUBMISSION SUB. DATE WRK REQ. NO. A/E Name and LOGO SEAL GRAPHIC SCALE KEYPLAN PROJECT TITLE DRAWING TITLE OFFICE OF RESEARCH FACILTIES MARK DATEDESCRIPTION REVISIONS ARCHITECT/ENGINEER TRUE NORTH PROJECT NORTH 9 8 7 6 5 4 3 2 1 10 9 8 7 6 5 4 3 2 1 10 A B C D E F G H A B C D E F G H D/B PRIME PROJECT SITE C:\Users\kmcleggon\Documents\NAD-004 Arch_kareem.mc leggon.rvt SHEET 11 OF 55 TOTAL SHEET A-303 Checker Author Designer 100% SUBMISSION 10/19/2022 MLP-8 NIH 9000 ROCKVILLE PIKE BETHESDA MD 20814 MLP-8 C103469 NAD-004 NEW AGE DEVELOPMENT OLBN, INC. SEG NEW AGE DEVELOPMENT, LLC. MLP -8-ELEVATORS REPLACMENT THERMALSAFE -FIRE RESISTANT PANEL -DETAILS OLBN, INC. NTS A-303 1 METAL WALL PANEL PROFILE -FLUTED MESA
BASIS OF DESIGNMETL SPAN THERMALSAFE INSULATED FIRE RESISTANT METAL WALL PANEL. NTS A-303 2 METAL WALL PANEL -SIDEJOINT
SUPPORT NTS A-303 3 METAL WALL PANEL -BASE OVERHANG W/DRIP TRIM NTS A-303 4 METAL WALL PANEL -OUTSIDE CORNER W/FLUSH TRIM NTS A-303 5 METAL WALL PANEL -PARAPET DETAIL CONNECTION NTS A-303 6 METL SPAN -HORIZONTAL PANEL / TYP. CONNECTIONDETAILS THRU-PANEL FASTENERS CONNECT TO LT. GA. STUDS FOR BACKUP WALL & LT. GA. STUDS SEE 1 A-601 BASE CHANNEL BASE FLASHING BASE FLASHING BASE CHANNEL MASONRY ANCHORS TYP. SET BASE CHANNEL 1/4" FROM BASE FLASHING 1/4" SPACE 1. THESE DETAILS ARE BASED ON INDUSTRY ACCEPTED PRACTICES AND PROVIDE A GUIDELINE FOR PROPER INSULATED METAL PANEL AND COMPONENT INSTALLATION. COORDINATE THESE DETAILS WITH PROJECT SPECIFIC SECTIONS & DETAILS. 2. SEE PROJECT SPECIFICATIONS AND MANUFACTURER'S WRITTEN INSTRUCTIONS FOR INSTALLATION. INCLUDE ALL NECESSARY MANUFACTURER'S ANCHORS, ACCESSORIES, TRIM FLASHING & OTHER COMPONENTS FOR A COMPLETE INSTALLATION PER CODE & MANUFACTURER'S WRITTEN INSTRUCTIONS. 3. ALL DETAILS ARE TYPICAL AT EAST AND WEST BUILDINGS. METAL PANEL
/ PRE-ENGINEERED
NEW LEVEL 8UPPER MACHINE ROOM 76'-0" TOP OF PARAPET 88'-6" TOP OF ROOF DECK 86'-3" D A-302 1 A-301 2 A-304 METAL PANEL WALL W1 ROOF HATCH HVAC UNIT GUARDRAIL -SEE 3 / A-601 SHIPS LADDER STAIR LADDER -SEE D / A-302 NEW ROOF & INSULATION ROOF DRAIN BEYOND -SEE 3 / A-305 W1 NEW 3 HOUR WALL -SEE 1 / A-601 3'-6" 2 HOUR SPRAY-ON FIREPROOFING -SEE 4 / A-601 DRAIN PIPE BEYOND -SEE PLUMBING DRAWINGS 1" 1 1/2" 1'-0" 3'-6" 1'-5" 1'-4 1/2" 6" 1" COLD PIPE < 180°F (82 °C) W1 PROPERTY OF THE UNITED STATES GOVERNMENT FOR OFFICIAL USE ONLY DO NOT REMOVE THIS NOTICE PROPERLY DESTROY DOCUMENTS WHEN NO LONGER NEEDED DRAWING NO. DESIGNED BY DRAWN BY CHECKED BY DRAWING PROJECTBUILDING CONTRACTORS A/E CON. NO. A/E TASK NO. CONS. CONTR. CONS. WORK PRIME A/E SUB A/E CONSTR. CON. FACILITY CODE BUILDING NO. NAME STREET CITY STATE/ZIP OTHER BUILDING NO. SPB TASK NO. PROJ. OFFICER PROJ. MGR. SUBMISSION SUB. DATE WRK REQ. NO. A/E Name and LOGO SEAL GRAPHIC SCALE KEYPLAN PROJECT TITLE DRAWING TITLE OFFICE OF RESEARCH FACILTIES MARK DATEDESCRIPTION REVISIONS ARCHITECT/ENGINEER TRUE NORTH PROJECT NORTH 9 8 7 6 5 4 3 2 1 10 9 8 7 6 5 4 3 2 1 10 A B C D E F G H A B C D E F G H D/B PRIME PROJECT SITE C:\Users\kmcleggon\Documents\NAD-004 Arch_kareem.mc leggon.rvt SHEET 12 OF 55 TOTAL SHEET A-304 Checker Author Designer 100% SUBMISSION 10/19/2022 MLP-8 NIH 9000 ROCKVILLE PIKE BETHESDA MD 20814 MLP-8 C103469 NAD-004 NEW AGE DEVELOPMENT OLBN, INC. SEG NEW AGE DEVELOPMENT, LLC. MLP -8-ELEVATORS REPLACMENT SECTIONS & DETAILS OLBN, INC. A-304 3/4" = 1'-0" 1 SECTION UPPER MACHINE ROOM & ROOF A-304 3" = 1'-0" 2 SECTION AT ROOF GUARDRAIL EQUAL SPACING LESS THAN 21" FIRST RAIL 6" ABOVE ROOF ABOVE ROOF 1 1/2" DIA. H.M. TOP RAIL -PAINT 1 1/2" DIA. H.M. POSTS AT 4'-0" O.C. MAXIMUM SPACING. -PAINT 1" DIA. H.M INTERMEDIATE RAILS -PAINT PARAPET -SEE A A-302 0 2" 4" 8" N MODIFIED BITUMEN ROOFING & FLASHING R-1. -SEE 1 / A-305 -SEE 2 / A-305 METAL DECK WATER CUT-OFF MASTIC PRE-MOLDED PRESSURE SENSITIVE PIPE SEAL STAINLESS STEEL CLAMPING RING
• ALL SECTIONS & ELEVATIONS ARE TYPICAL AT EAST AND WEST BUILDINGS. 0 6" 24" 1'2" N EXISTING BRICK AND CONCRETE WALL EXISTING BRICK AND CONCRETE WALL SEE 4 A-305 FOR PIPE DETAILS. METAL PANEL WALL WELD METAL PLATE TO PIPE RAIL TO SUPPORT 50 PLF AT TOP WITH 200 LB CONCENTRATED FORCE. -SEE STRUCTURAL DRAWINGS
NOTES

ROOFING R1

NOTE:

SBS MODIFIED BITUMEN CAP SHEET EXPANDED POLYISOCYANURATE INSULATION TAPERED 1/2" COVERBOARD ROOF DECK 2-PLIES COMPOSITE BUILT-UP ROOF SELF-ADHESIVE VAPOR BARRIER SLOPE 1/4" PER FOOT TO VALLEY 1/2" BASEBOARD 4 MIN 5"1"4" NOTE: DIMENSIONS ARE MINIMUM. CONTRACTOR TO VERIFY DIMENSIONS WITH MANUFACTURER EXPANDED POLYISOCYANURATE INSULATION TAPERED 1/2" COVERBOARD TERMINATION BAR WITH SEALANT METAL DECK FIBER OR FRT WOOD CANT ELASTOMERIC SEALANT BASE FLASHING 2 PLIES SBS MODIFIED BITUMEN BASE SHEETS SBS MODIFIED BITUMEN CAP SHEET TWO-PLY STRIPPING ALUMINUM COPING CAP PARAPET. -SEE A / 302 FOR ADDITIONAL DETAILS NEW METAL PANEL WALL METAL PANEL CONNECTION POINT -SEE 2 / A-303 1/2" BASEBOARD METAL PANEL WALL W1 -SEE 1 / A-601 CUT REINFORCEMENT INTO TRIANGLES AND OVERLAP INTO BOWL. POLYISOCYANURATE INSULATION TAPERED ROOF DECK CLAMPING RING DRAIN STRAINER SBS MODIFIED BITUMEN CAP SHEET FLUID APPLIED REINFORCED BASE COAT 2-PLIES SBS MODIFIED BITUMEN BASE SHEETS FLUID APPLIED TOP COAT -STOP AT THE TOP OF SUMP/TAPER 1/2" COVERBOARD & 1/2" BASEBOARD 1/2" COVERBOARD 1/2" BASEBOARD 4 MIN 2-PLIES SBS MODIFIED BITUMEN BASE SHEETS SBS MODIFIED BITUMEN CAP SHEET POLYISOCYANURATE INSULATION TAPERED ROOF DECK 1/2" COVERBOARD TWO-PLY STRIPPING BASE SHEET COUNTERFLASHING ROOF HATCH -SEE 2 / A-302 FOR ADDITIONAL DETAIL WOOD NAILER -FRT 1/2" BASEBOARD FIBER OR FRT WOOD CANT TERMINATION BAR WITH SEALANT ELASTOMERIC SEALANT FLASHING HEIGHT 8" MINIMUM EXPANDED POLYISOCYANURATE INSULATION TAPERED 1/2" COVERBOARD METAL ROOF DECK 2-PLIES SBS MODIFIED BITUMEN BASE SHEETS SBS MODIFIED BITUMEN CAP SHEET REINFORCED BASE COAT COLLAR FLASHING FLUID APPLIED TOP COAT -STOP AT THE TOP OF SUMP/TAPER FLUID APPLIED REINFORCED BASE COAT PRE-MOLDED PIPE SEAL -SEE 2 / A-304 FOR ADDITIONAL DETAIL 1/2" BASEBOARD PROPERTY OF THE UNITED STATES GOVERNMENT FOR OFFICIAL USE ONLY DO NOT REMOVE THIS NOTICE PROPERLY DESTROY DOCUMENTS WHEN NO LONGER NEEDED DRAWING NO. DESIGNED BY DRAWN BY CHECKED BY DRAWING PROJECTBUILDING CONTRACTORS A/E CON. NO. A/E TASK NO. CONS. CONTR. CONS. WORK PRIME A/E SUB A/E CONSTR. CON. FACILITY CODE BUILDING NO. NAME STREET CITY STATE/ZIP OTHER BUILDING NO. SPB TASK NO. PROJ. OFFICER PROJ. MGR. SUBMISSION SUB. DATE WRK REQ. NO. A/E Name and LOGO SEAL GRAPHIC SCALE KEYPLAN PROJECT TITLE DRAWING TITLE OFFICE OF RESEARCH FACILTIES MARK DATEDESCRIPTION REVISIONS ARCHITECT/ENGINEER TRUE NORTH PROJECT NORTH 9 8 7 6 5 4 3 2 1 10 9 8 7 6 5 4 3 2 1 10 A B C D E F G H A B C D E F G H D/B PRIME PROJECT SITE C:\Users\kmcleggon\Documents\NAD-004 Arch_kareem.mc leggon.rvt 10/8/2022 12:57:44 PM SHEET 13 OF 49 TOTAL SHEET A-305 Checker Author Designer 100% SUBMISSION 09/13/2022 MLP-8 NIH 9000 ROCKVILLE PIKE BETHESDA MD 20814 MLP-8 C103469 NAD-004 NEW AGE DEVELOPMENT OLBN, INC. SEG NEW AGE DEVELOPMENT, LLC. MLP -8-ELEVATORS REPLACMENT ROOF DETAILS OLBN, INC. A-305 3" = 1'-0" 1 B.U.R ROOF SYSTEM DETAIL -MODIFIED BITUMEN A-305 1 1/2" = 1'-0" 2 B.U.R FLASHING DETAIL AT PARAPET A-305 1 1/2" = 1'-0" 3 CROSS SECTION OF B.U.R ROOF DRAIN A-305 1 1/2" = 1'-0" 5 CROSS SECTION OF B.U.R ROOF HATCH A-305 1 1/2" = 1'-0" 4 B.U.R PIPE DETAIL
STYRENE BUTADIENE STYRENE (SBS) MODIFIED BITUMEN MEMBRANE ROOFING COLD APPLIED. POLYISOCYANURATE TAPERED FOAM INSULATION (R 5.7 PER INCH MINIMUM) R30 MINIMUM AT LOW POINT SLOPED 1/4" PER FOOT TO HIGH POINT.
ALL SECTIONS AND DETAILS ARE TYPICAL AT EAST AND WEST BUILDINGS.

EXTERIOR: 3 HR RATED METAL WALL PANEL PER UL#U050 INTERIOR PARTITION: 3 HR RATED PER UL#U435

FIRE-RATED INSULATED METAL WALL PANEL: BASIS OF DESIGN: METL SPAN THERMAL SAFE EXTERIOR FIRE-RESISTANT PANEL.

• UL FIRE RATING -3 HR. -PER UL#U050

• THICKNESS -8", R 25 MINIMUM MINERAL WOOLCORE

• WIDTH -42"

• EXTERIOR GAUGE -26"

• EXTERIOR FINISH -STUCCO EMBOSSED

• ORIENTATION -VERTICAL

• LENGTH -SEE ELEVATION DRAWINGS

• COLOR -TO BE SELECTED BY N.I.H

• MITER & SEAL CORNERS

• ATTACH TO STEEL STUDS PER MFGR STANDARD COMPONENTS & DETAILS. SEE A / 303

• TYVEK COMMERCIAL VAPOR BARRIER.

• 3HR RATED LT. GA. STUD WALL BACK UP.

PARTITION SCHEDULE

TYP. ELEVATOR LOBBY - EXISTING LEVEL 7 60'-0" NEW LEVEL 8UPPER MACHINE ROOM 76'-0" 3'-6" 2'-0" 14'-0" EXISTING CONCRETE WALL TWO LAYERS 3/4" FIRE RATED GYP. BD. SEALANT STEEL BEAMS EXISTING BRICK WALL V.I.F V.I.F 2 HR SPRAY-ON FIRE-PROOFING & SAFING @ DECK & BEAMS - SEE 4 A-601 CONCRETE SLAB ON METAL DECK OR METAL PLATESEE STRUCTURAL DRAWING BOLT OR WELD TO STEEL ANGLE @ EDGE OF DECK 1" DIA. H.M. INTERMEDIATE HORIZONTAL RAILS GUARDRAIL 1 1/2" DIA. H.M. TOP RAIL & POSTS W3 TYPICAL 3/4" 1" 1'-7" 1" 1 1/2" 1 1/2" 3/4" 2 1/2" J -RUNNER ONE LAYER 1" FIRE RATED GYP. BD. 2 1/2" CH. STUDS 2 HR RATED SHAFT WALL BATT INSULATION -R8 J -RUNNER 5" NEW LEVEL 8UPPER MACHINE ROOM 76'-0" TOP OF ROOF DECK 86'-3" METAL WALL PANEL - ATTACHED TO STEEL STUDS PER MFGR STANDARD DETAILS. - SEE SHEET A-303 VAPOR BARRIER MEMBRANE - DASHED CONTINUOUS METAL FLASHING WITH WEEP HOLES @ 24" O.C. CONTINUOUS METAL PANEL BASE METAL WALL PANEL FOR PARAPET & ROOF SEE / A A-302 2 HR SPRAY-ON FIREPROOFING AT UNDERSIDE OF ROOF DECK & STRUCTURE -SEE 4 A-601 DEEP LEG DEFLECTION TRACK STUD ANCHOR TO NEW OR EXISTING CONCRETE -SEE STRUCTURAL DRAWINGS 6" LT. GA. STUDS @ 16" O.C. DEEP LEG DEFLECTION TRACK STUD ANCHOR TO ANGLE. DECK CLOSURE ANGLE: SEE STRUCTURAL DRAWINGS 5/8" FIRE RATED GYPSUM BOARD -3 LAYERS 2" HR FIRE RATED SAFING FIRMLY PACKED INTO FLUTES OF STEEL DECK R19 UL RATED BATT INSULATION 5/8" FIRE RATED GYPSUM BOARD -2 LAYERS W1 W1 5/8" 6" 8" 5/8" 8" 1'-6" CONTINUOUS METAL PANEL BASE CAP EXISTING CONCRETE & BRICK WALL V.I.F. 1'-1"V.I.F. CONTINUOUS METAL PANEL TOP CAP 5/8" 5/8"5/8"5/8" 2" 9 3/4" 5/8" FIRE RATED GLASS-MAT SHEATHING -1 LAYER LOWER MACHINE ROOM 72'-0" TOP OF ROOF DECK 86'-3" A A-302 3 5/8" W2. W2. 5/8" 5/8" 6 1/8" 5/8" 5/8" METAL PLATE FLOOR -SEE STRUCTURAL DRAWINGS BOTTOM TRACK ATTACH TO STRUCTURE BELOW -SEE STRUCTURAL DRAWINGS 1 2 3 3 2 1. MASTIC OR CEMENTITIOUS COATING WITH A UL LISTING FOR 2 HOUR RATING. 2. GLASS FIBER GAUZE 3. STEEL BEAM, JOIST, OR DECK 4. CONTRACTOR SHALL SUBMIT SHOP DRAWINGS INDICATING CONFORMANCE FOR REVIEW & APPROVAL BY ARCHITECT. 2 HOUR RATED PER UL# X601 OR UL CLASSIFIED SUBSTIUTE AS APPROVED BY ARCHITECT. -SEE NOTE #4 PROPERTY OF THE UNITED STATES GOVERNMENT FOR OFFICIAL USE ONLY DO NOT REMOVE THIS NOTICE PROPERLY DESTROY DOCUMENTS WHEN NO LONGER NEEDED DRAWING NO. DESIGNED BY DRAWN BY CHECKED BY DRAWING PROJECTBUILDING CONTRACTORS A/E CON. NO. A/E TASK NO. CONS. CONTR. CONS. WORK PRIME A/E SUB A/E CONSTR. CON. FACILITY CODE BUILDING NO. NAME STREET CITY STATE/ZIP OTHER BUILDING NO. SPB TASK NO. PROJ. OFFICER PROJ. MGR. SUBMISSION SUB. DATE WRK REQ. NO. A/E Name and LOGO SEAL GRAPHIC SCALE KEYPLAN PROJECT TITLE DRAWING TITLE OFFICE OF RESEARCH FACILTIES MARK DATEDESCRIPTION REVISIONS ARCHITECT/ENGINEER TRUE NORTH PROJECT NORTH 9 8 7 6 5 4 3 2 1 10 9 8 7 6 5 4 3 2 1 10 A B C D E F G H A B C D E F G H D/B PRIME PROJECT SITE C:\Users\kmcleggon\Documents\NAD-004 Arch_kareem.mc leggon.rvt SHEET 14 OF 55 TOTAL SHEET A-601 Checker Author Designer 100% SUBMISSION 10/19/2022 MLP-8 NIH 9000 ROCKVILLE PIKE BETHESDA MD 20814 MLP-8 C103469 NAD-004 NEW AGE DEVELOPMENT OLBN, INC. SEG NEW AGE DEVELOPMENT, LLC. MLP -8-ELEVATORS REPLACMENT PARTITION TYPES OLBN, INC. A-601 3" = 1'-0" 3 WALL TYPE W3 INFILL WALL AT MACHINE ROOM A-601 3" = 1'-0" 1 WALL TYPE -W1 A-601 3" = 1'-0" 2 WALL TYPE -W2 2 HR SPRAY-ON FIRE PROOFING AT DECK, BEAMS AND JOISTS -SEE 4 A-601 FOR PARAPET AND ROOF SEE COMPLETELY FILL GAPS WITH SHEETROCK SEALANT -2 HR RATED 2 HR FIRE RATED SAFING FIRMLY PACKED INTO FLUTES OF STEEL DECK DEEP LEG DEFLECTION TRACK STUD -ATTACH TO METAL DECK 2 LAYERS 5/8" FIRE-RATED GYPSUM BOARD R13 UL RATED BATT INSULATION R13 UL RATED BATT INSULATION 3 5/8" 18 GAUGE METAL STUDS @ 16" O.C.
0 2" 4" 8" 0 2" 4" 8" 0 2" 4" 8" 2 HR RATED PER UL#U411
ALL DETAILS AND SECTIONS ARE TYPICAL AT EAST AND WEST BUILDINGS
NOTE:
TYPEWIDTHSTUD WIDTHMAX. STUD SPACINGFIRE RATINGINSULATION DESCRIPTION W1.9 3/4"6"16"3 HR UL#U435R19 BATT INSULATIONFIRE-RATED INSULATED METAL WALL PANEL ATTACHED TO 3 HR RATED STEEL STUD WALL W2.6 1/8"3 5/8"16"2 HR UL#U411R13 BATT INSULATION 2 X 5/8" GYP. BD. BOTH SIDES OF STEEL STUD WALL W3.5"2 1/2"16"2 HR UL#U415R8 BATT INSULATIONSHAFT WALL: 2 LAYERS 3/4" GYP. BD., 2 1/2" CH. STUDS, 1 LAYER 1" GYP. BD. 2 HR RATED SHAFT WALL PER UL#U415 A-601 1/4" = 1'-0" 4 SPRAY-ON FIREPROOFING SYSTEMS

TYPICAL MACHINE ROOM FINISH PLAN -AT LEVEL 8 -EAST & WEST BLDG.

Door Schedule

FINISH SCHEDULE(SEE FINISH PLAN & ELEVATIONS FOR LOCATIONS)

ELEVATOR DOOR EXISTING BRICK WALLS 10'-0"V.I.F 6'-8" 6'-0" M.O. V.I.F DRILL FRAME JAMB TO ALLOW EXISTING CONDUIT TO PASS. SEAL TO MATCH DOOR FRAME ALUMINUM ADA THRESHOLD ALUMINUM & GLASS DOORS AND TRANSOM ALUMINUM FRAME EXISTING DRAIN NEW STEEL GRATE TO MATCH EXISTING EXISTING RAILING - PAINT EXISTING METAL POST & DOWNSPOUT - PAINT EXISTING LOW CONCRETE WALL EXISTING LOW CONCRETE WALL SEALANT - ALL SIDES OF FRAME EXISTING CONCRETE SLAB EXISTING PARKING SLAB - SEE 3 A602 4" 4" E02 W02 & DOORS DRAIN PIPE 1 A-301 4 A-201 2 A-301 HOIST MACHINE HOIST MACHINE TRANS TRANS CTRLR GRP CTRLR MAINLINE DISCONNECTS CAR LIGHTING DISCONNECTS CTRLR GOVERNOR GOVERNOR CONTINUOUS RAILS UPPER MACHINE ROOM LOWER MACHINE ROOM NEW STAIRS WALL RAILS 4'-0" 42" GUARD RAIL W1 W1 W1 W1 42" GUARD RAIL 1'-9 13/16" 802 801 803 20'-5 13/16"V.I.F DN DN UP 48" W01 V.I.F V.I.F 4'-0" HOISTWAY HOISTWAY 31'-4" 8'-6" HOISTWAY V.I.F W1 W1 W1 W1 1 A-304 E01-W2. W3 BELOW & F1 2" 3'-0" 2" 4" 7'-0" H W 6'-8" 6'-0" 2" 6'-8" M.O. V.I.F M.O. V.I.F TEMPERED SAFETY GLASS TRANSOM ALUMINUM FRAME F2 4"x4" NOMINAL 2"x2" NOMINAL ALUMINUM DOOR WITH TEMPERED SAFETY GLASS & PANIC HARDWARE AL-1 4" 4" 4 A-602 SEE 1'-0" 8'-2" 4" WIDE STILE ALUMINUM DOOR HEAVY WALL STOREFRONT FRAME 6'-0" M.O. V.I.F M.O. V.I.F F2 6'-8" 4" 4" 4" 4" 2" 6'-8" 8'-2" PROPERTY OF THE UNITED STATES GOVERNMENT FOR OFFICIAL USE ONLY DO NOT REMOVE THIS NOTICE PROPERLY DESTROY DOCUMENTS WHEN NO LONGER NEEDED DRAWING NO. DESIGNED BY DRAWN BY CHECKED BY DRAWING PROJECTBUILDING CONTRACTORS A/E CON. NO. A/E TASK NO. CONS. CONTR. CONS. WORK PRIME A/E SUB A/E CONSTR. CON. FACILITY CODE BUILDING NO. NAME STREET CITY STATE/ZIP OTHER BUILDING NO. SPB TASK NO. PROJ. OFFICER PROJ. MGR. SUBMISSION SUB. DATE WRK REQ. NO. A/E Name and LOGO SEAL GRAPHIC SCALE KEYPLAN PROJECT TITLE DRAWING TITLE OFFICE OF RESEARCH FACILTIES MARK DATEDESCRIPTION REVISIONS ARCHITECT/ENGINEER TRUE NORTH PROJECT NORTH 9 8 7 6 5 4 3 2 1 10 9 8 7 6 5 4 3 2 1 10 A B C D E F G H A B C D E F G H D/B PRIME PROJECT SITE C:\Users\kmcleggon\Documents\NAD-004 Arch_kareem.mc leggon.rvt SHEET 15 OF 55 TOTAL SHEET A-602 Checker Author Designer 100% SUBMISSION 10/19/2022 MLP-8 NIH 9000 ROCKVILLE PIKE BETHESDA MD 20814 MLP-8 C103469 NAD-004 NEW AGE DEVELOPMENT OLBN, INC. SEG NEW AGE DEVELOPMENT, LLC. MLP -8-ELEVATORS REPLACMENT DOOR ELEVATIONS, HARDWARE & DOOR & FRAME SCHEDULE FOR EAST & WEST BUILDINGS OLBN, INC. 1 2 1 4 4 5 1 1 5 3 1 4 1 4 3 6 3 A-602 1/2" = 1'-0" 4 PLAN DETAIL @ NEW STOREFRONT DOOR -LVL 7 A-602 1/4" = 1'-0" 5
CODEDESCRIPTIONMANUFACTURERSTYLESTYLE/ITEM NUMBERCOLOR NAMEFinishSIZENOTES F1ELEVATOR FLOORARMSTRONG FLOORINGEXCELON VCT --12" x 12"WALLS & CEILINGS BY ELEVATOR COMPANY P1WATER BASED LATEX PAINTSHERWIN WILLIAMS-HC-170STONINGTON GREYSEMI-GLOSS-SEE NOTES #1 & #2 P2WATER BASED LATEX PAINTSHERWIN WILLIAMS-OC-56MOONSHINESEMI-GLOSS-SEE NOTES #3 P3WATER BASED LATEX PAINTSHERWIN WILLIAMS-SWBLACKSEMI-GLOSS-SEE NOTE #4 & #5
Mark Construction Type Door Panel Material HeightWidthThickness Frame Type Frame Material Fire Rating Hardware Group Note W02AL1Glass & Aluminum 6'-8"6'-0"2"F2Aluminum02Aluminum & Glass Doors and Transom W01SFHollow Metal7'-0"3'-0"1 3/4"F1Hollow Metal90 Minute0190 Minute Door & Frame E02AL1Glass & Aluminum 6'-8"6'-0"2"F2Aluminum02Aluminum & Glass Doors and Transom E01SFHollow Metal7'-0"3'-0"1 3/4"F1Hollow Metal90 Minute0190 Minute Door & Frame
GENERAL NOTES A. FIELD VERIFY ALL EXISTING MASONRY OPENINGS PRIOR TO FABRICATION B. SEMI-GLOSS PAINT H.M. DOORS & FRAMES TO MATCH EXISTING C. BRUSHED ALUMINUM MFGRS FINISH AT STOREFRONT DOORS & FRAMES. COLOR TO MATCH EXISTING PROJECT ALUMINUM WINDOW FRAMES, LOUVERS, ETC. D. BASIS OF DESIGN: KAWNEER 350 HEAVY WALL STOREFRONT ENTRANCE WITH WIDE STILE DOORS AND WITH KYNAR 500 PVDF FINISH. HARDWARE SETS: INSTALL THREE GRAY COLOR SILENCERS, SR64, FROM IVES ON ALL H.M. DOOR FRAME, TYP. SF SINGLE FLUSH NEW WORK KEYNOTES 1. PAINT ALL WALLS P1 2. PAINT FOR METAL DOORS & FRAMES P1. 3. PAINT UNDERSIDE OF DECK & ALL EXPOSED METAL JOISTS, BEAM, DUCTS, PIPING & CONDUIT. P2. 4. PAINT ALL RAILINGS & LADDER. P3. 5. PAINT ALL METAL FLOORS, STAIRS & LANDINGS. - P3 6. BROOM FINISH & SEAL ALL CONCRETE FLOORS WITH CONCRETE SEALANT. A-602 1/4" = 1'-0" 1 FRAME ELEVATION A-602 1/4" = 1'-0" 2 DOOR ELEVATION 1 DUST PROOF STRIKEDP2626IVES 3 SILENCERSR64GREYIVES 1 MECHANICAL MORTISE LOCKSET (MECH/STORAGE FUNCTION) ML 2053 LWA C6626 CORBIN RUSSWIN 3 HINGE5BB1 4.5 x 4.5652IVES QTYDESCRIPTIONCATALOG #FINISHMFR HARDWARE SET GROUP # 01 SINGLE, SWINGING... FINISH MANUFACTURER'S BRUSHED CLEAR ALUMINUM FOR EACH DOOR PROVIDE STOREFRONT MFGR'S HEAVY DUTY HARDWARE INCLUDING: 2 PAIR HINGES, LEVER LOCK SET ON ONE SIDE, PANIC HARDWARE ON ONE SIDE, AUTOMATIC DOOR CLOSER, STOPS, WEATHER STRIPS, ALUMINUM THRESHOLD. QTYDESCRIPTION HARDWARE SET GROUP # 02 STOREFRONT DOORS NOTE: ALL DETAILS AND SECTIONS ARE TYPICAL AT EAST AND WEST BUILDINGS 0 2' 4' 8' 0 1' 2' 4' N N X A-602 1/4" = 1'-0" 3 STOREFRONT ELEVATION DOOR & FRAME 2 A 201
DOOR SCHEDULE

EXISTING WEST BUILDING

EXISTING EAST BUILDING

2

DETAIL -7TH PARKING LEVEL ENTRANCE -TYPICAL AT EAST & WEST BUILDINGS

DEVELOPED WEST BUILDING

A-901

DEVELOPED EAST BUILDING

SECTION PERSPECTIVE -TYPICAL AT EAST & WEST BUILDING

PROPERTY OF THE UNITED STATES GOVERNMENT FOR OFFICIAL USE ONLY DO NOT REMOVE THIS NOTICE PROPERLY DESTROY DOCUMENTS WHEN NO LONGER NEEDED DRAWING NO. DESIGNED BY DRAWN BY CHECKED BY DRAWING PROJECTBUILDING CONTRACTORS A/E CON. NO. A/E TASK NO. CONS. CONTR. CONS. WORK PRIME A/E SUB A/E CONSTR. CON. FACILITY CODE BUILDING NO. NAME STREET CITY STATE/ZIP OTHER BUILDING NO. SPB TASK NO. PROJ. OFFICER PROJ. MGR. SUBMISSION SUB. DATE WRK REQ. NO. A/E Name and LOGO SEAL GRAPHIC SCALE KEYPLAN PROJECT TITLE DRAWING TITLE OFFICE OF RESEARCH FACILTIES MARK DATEDESCRIPTION REVISIONS ARCHITECT/ENGINEER TRUE NORTH PROJECT NORTH 9 8 7 6 5 4 3 2 1 10 9 8 7 6 5 4 3 2 1 10 A B C D E F G H A B C D E F G H D/B PRIME PROJECT SITE C:\Users\kmcleggon\Documents\NAD-004 Arch_kareem.mc leggon.rvt SHEET 16 OF 55 TOTAL SHEET A-901 Checker Author Designer 100% SUBMISSION 10/19/2022 MLP-8 NIH 9000 ROCKVILLE PIKE BETHESDA MD 20814 MLP-8 C103469 NAD-004 NEW AGE DEVELOPMENT OLBN, INC. SEG NEW AGE DEVELOPMENT, LLC. MLP -8-ELEVATORS REPLACMENT ISOMETRIC VIEWS AND PERSPECTIVES OLBN, INC. A-901 1
EXISTING -ISOMETRIC VIEW OF EAST & WEST BUILDINGS FROM THE SOUTH EAST
A-901 5
A-901 3
PROPOSED -ISOMETRIC VIEW OF EAST & WEST BUILDINGS FROM THE NORTH EAST

Turn static files into dynamic content formats.

Create a flipbook
Issuu converts static files into: digital portfolios, online yearbooks, online catalogs, digital photo albums and more. Sign up and create your flipbook.