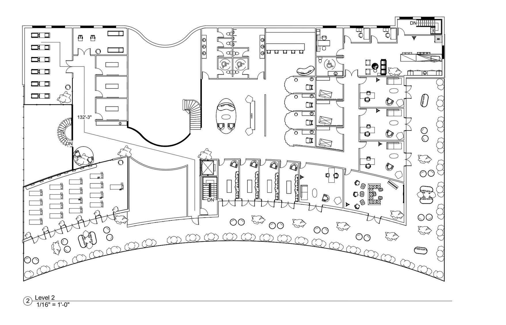
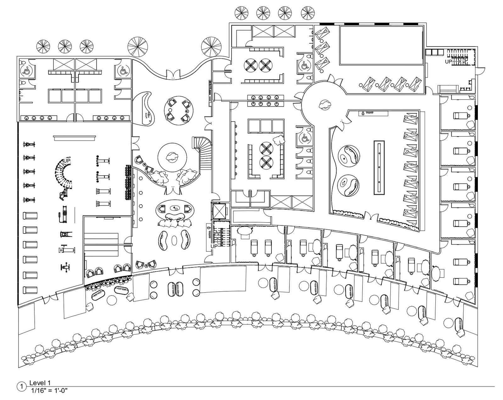
The purpose of this design is to create a space that promotes health and wellbeing to its clients. It is a 30,000 square foot wellness center that is a combination of a spa, with therapy services and a fitness center in the Highland Park neighborhood of Dallas, Texas. The wellness center will offer massage therapy, facial treatments, therapy sessions, and fitness classes including yoga and Pilates. It will also have a full gym with equipment like treadmills, bikes, and weights. There will also be individual workout rooms, meditation spaces, saunas, and light therapy rooms. The main goal is to create a space that allows the clients to find peace and calmness, not just while visiting, but to also help them create serenity in their everyday lives.