Kaitlyn English - Senior Collaboration Project

Page 1


C O L L A B O R A T I O N S T U D I O

HUCKABEE COLLEGE OF ARCHITECTURE

The journey through college is one that consists of many decisions, changes, and growth of each individual. The HCOA has guided thousands of students through this journey, and our design intends to enhance the built environment to better support this experience. Creating a building that moves and adapts to the needs of its users seamlessly, is one of our main goals. By considering the effects of each design decision, the site will transform into a space that provides an inspirational learning environment for the future, while still honoring the path of the HCOA.

INSPIRATION

Lankuaikei Arg culture Development
New Acropolis Museum
Austin E Knowlton School of Arch tecture

PROBLEM STATEMENT

The Huckabee College of Architecture renovation aims to revitalize the existing facility while enhancing its functionality and overall appeal for both faculty and students. The primary objectives of this renovation project include integrating modern materials and technology, adding new classrooms, offices, restrooms, a lecture hall, shower/locker rooms, and student collaboration spaces. Our goal is to create an inviting, open, and flexible learning environment that fosters socialization, teamwork, and student engagement while prioritizing safety and security. The design of the renovated college centers on promoting the well-being of its occupants' evolving needs. To achieve this, the renovation will focus on incorporating elements that support physical and mental health, such as natural lighting, ergonomic furnishings, and restorative environments. The additions will result in a significant expansion of 43,562 square feet to accommodate the growing program and student body. We aim to create a memorable experience for all users, ensuring that they can effortlessly locate their destinations while enjoying the aesthetic appeal of the building.

PROCESS WORK

LEVEL 1

ANNOTATIONS

A-CAFEISPOSITIONEDOFFOFFLINTAVE.TOBE ACCESSIBLEANDINVITINGTOSTUDENTSON CAMPUS.*

B-VARIOUSTYPESOFLOUNGEANDTASKSEATINGARE CONSIDEREDTOPROVIDEOPTIONSFORUSERS.*

C- DIRECTACCESSTOTHESECONDFLOORFROMTHE LOUNGE,ANDVISUALACCESSTOTHEENTRY, EXHIBITIONSPACE,FABRICATIONLAB,ANDTHE COREOFTHEBUILDING*

D- ACOUSTICSOLUTIONSINTHECEILINGBAFFLEFOR MITIGATINGNOISESTHROUGHOUTTHELARGE OPENSPACE. *

E-DRAPERY&RETRACTABLESHADESAREREMOTELY CONTROLLEDFORCOMFORTOFUSERS.*

F-THEDOUBLE-TONTHEEASTWALLOFTHELOUNGE ISALANDMARKFORGUESTS.*

G-ATMAINDECISIONPOINTS,FEATURESIGNAGEIS POSITIONEDTOALLOWTHEUSERTOHAVECLEAR CHOICESOFWHERETOHEADNEXT.*

H-AMPLEDAYLIGHTINTHELOUNGEFROMTHEWARM WESTERNSUNPROVIDESPOSITIVE PHYCHOLOGICALWELLBEING.*

I-OPENTOBASEMENTLEVEL.

J-COLUMNSFROMEXISTINGBUILDING.

K-STAIRSGUIDETHEPATHTOTHESECONDFLOOR WHEREALLMAINCLASSROOMSARE.*

L-INCLUSIONOFGREENERYFORBIOPHILIC PROPERTIES.*

*WAYFINDING:REDANNOTATIONLETTER*

*HUMANCENTEREDDESIGN:BLUEANNOTATIONLETTER*

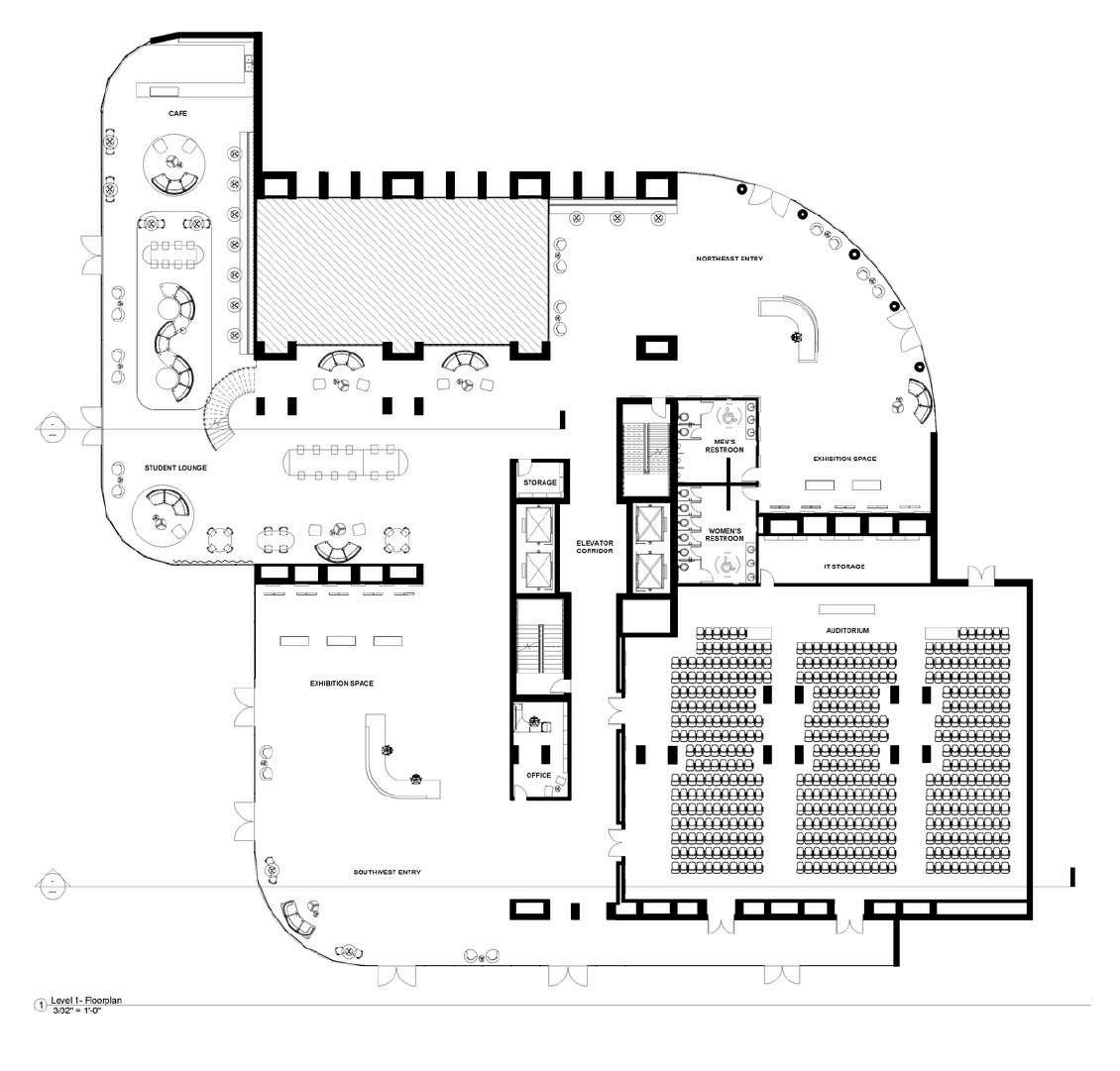
LEVEL 1

383 SOLID WH TE OAK FLEXIBLE WOOD TAMBOURSURFACING SOLUT ON

HIGH PRESSURE LAMINATE “ARBORITE”VERSAILLES MARBLE

CARPET “DAPPLED DAYLIGHT”- FLOR
TERRAZZO “AGGLO DUCA”- NASCO STONE
TEXTILE “ENZOPOPPY”- MOMENTUM
WOOD VENEER “ELM” - ALTYNO

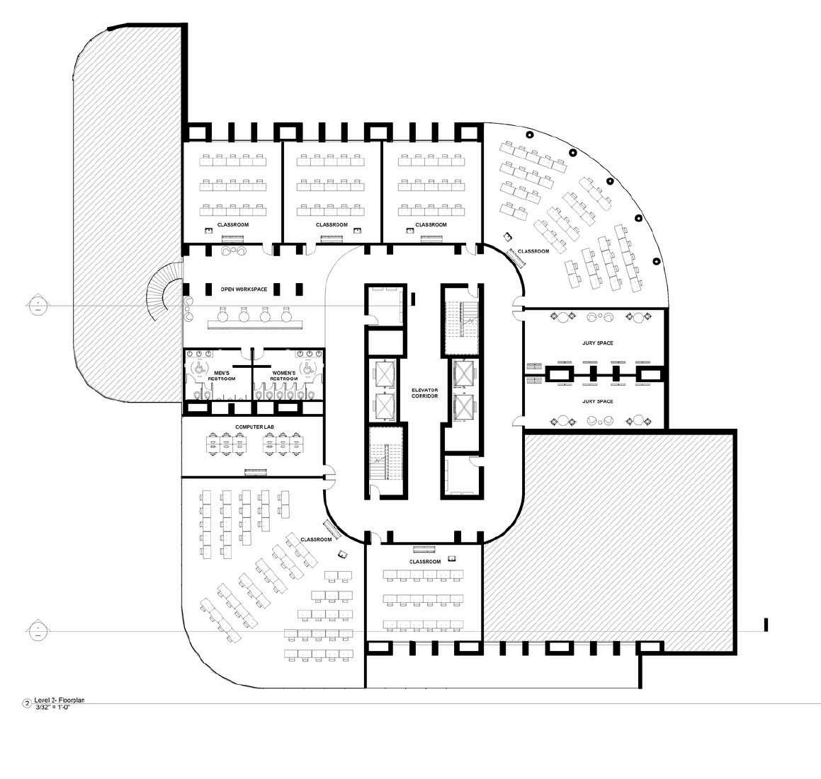
LEVEL 2

ANNOTATIONS

A-DIRECTACCESSFORFIRSTFLOORLOUNGETO ENCOURAGESTUDENTSTOUSESTAIRS.*

B-RESTROOMSINPROXEITIYTOCLASSROOMSAND FIRSTFLOORLONUGE.*

C-VARIOUSSIZECLASSROOMSWITHCOSTOMIZABLE FURNITUREARRANGEMENTSTOACCOMIDATE DIFFERENTPRACTICESANDTEACHINGSTYLES.*

D-ADJUSTABLEERGONOMICFURNITUREFOR COMFORTOFUSERS.*

D-PRIVATEJURYSPACEFORSTUDENTSAND INSTRUCTORS.

E-ELEVATORCORRIDORHASLARGESINGAGE INDICATINGLEVELANDNAVIGATION.*

F-COMPUTERLABFORTECHNICALCLASSESAND STUDENTUSE.

G-ROUNDEDHALLWAYTHATCONNECTSALLOFTHE ROOMSTOCREATEEASEOFTRAVELAROUNDTHE FLOOR.*

H-SLATTEDWALLFORPRIVACYINTOTHE RESTROOMS.*

I-OPENTOFIRSTFLOORLOUNGE.

J-OPENTOFIRSTFLOORAUDITORIUM.

K-STRIPLIGHTINGONCEILINGAROUNDHALLWAYS.

*WAYFINDING:REDANNOTATIONLETTER*

*HUMANCENTEREDDESIGN:BLUEANNOTATIONLETTER*

LEVEL 2

ACOUSTICAL COVERING SOFTRACK “HUNTER”- WOLF GORDON

TERRAZZO “AGGLO DUCA”- NASCO STONE
TEXT LE “SANYA CVFLAX”- MOMENTUM
WOOD VENEER “ELM” - ALTYNO
383 SOLID WHITE OAK FLEXIBLE WOOD TAMBOURSURFAC NG SOLUTION
METAL CHAIR LEGS IN COLOR “FLAX”

LEVEL 3

ANNOTATIONS

A-ADJUSTABLEFOLDINGWALLSWITHACOUSTIC MATERIALFORNOISECONTROLANDPRIVACYIN STUDIOS.*

B-HALLWAYSEATINGNOOKSWITHSOUND DAMPENINGMATERIALSTOMITIGATENOISEIN HALLWAYSANDCREATEQUIETSPACESFOR INDIVIDUALSTOREST.*

C-ELEVATORCORRIDORHASLARGESIGNAGE INDICATINGLEVELANDNAVIGATION.*

D-PRIVATEANDSEMI-PRIVATEJURYSPACEFOR PROFESSORSANDSTUDENTS.*

E-STUDENTLOUNGEWITHVARIOUSSEATINGTYPES FORFLEXIBILITY.*

F-KITCHENETTEINLOUNGEACCESSIBLEFORSTUDENT USE.*

G-ACCESSIBLEELECTRICALOUTLETS-FIXEDAND INTEGRATEDINTOALLFURNITURE.*

H-LARGESTUDENTCLASSROOMFLEXIBLEFOR VARYINGUSE.*

I-PROMINENTSIGNAGEDENOTINGCLASSROOM LOCATION.*

*WAYFINDING:REDANNONATIONLETTER*

*HUMANCENTEREDDESIGN:BLUEANNOTATIONLETTER*

SOFTRACK

TERRAZZO “AGGLO DUCA”- NASCO STONE
ACOUSTICAL COVERING
“HUNTER”- WOLF GORDON
ECOUSTIC FELT “CHARCOAL” - UNIKA VAEV
TEXTILE “SANYA CVFLAX”- MOMENTUM
WOOD VENEER “ELM” - ALTYNO
383 SOLID WHITE OAK FLEXIBLE WOOD TAMBOURSURFAC NG SOLUTION
METAL CHA R LEGS IN COLOR “FLAX”

LEVEL 4

ANNOTATIONS

A-ADJUSTABLEFOLDINGWALLSWITHACOUSTIC MATERIALFORNOISECONTROLANDPRIVACYIN STUDIOS.*

B-HALLWAYSEATINGNOOKSWITHSOUND DAMPENINGMATERIALSTOMITIGATENOISEIN HALLWAYSANDCREATEQUIETSPACESFOR INDIVIDUALSTOREST.*

C-ELEVATORCORRIDORHASLARGESIGNAGE INDICATINGLEVELANDNAVIGATION.*

D-PRIVATEANDSEMI-PRIVATEJURYSPACEFOR PROFESSORSANDSTUDENTS.*

E-STUDENTLOUNGEWITHVARIOUSSEATINGTYPES FORFLEXIBILITY.*

F-KITCHENETTEINLOUNGEACCESSIBLEFORSTUDENT USE.*

G-ACCESSIBLEELECTRICALOUTLETS-FIXEDAND INTEGRATEDINTOALLFURNITURE.*

H-LARGESTUDENTCLASSROOMFLEXIBLEFOR VARYINGUSE.*

I-PROMINENTSIGNAGEDENOTINGCLASSROOM LOCATION.*

*WAYFINDING:REDANNONATIONLETTER*

*HUMANCENTEREDDESIGN:BLUEANNOTATIONLETTER*

TERRAZZO “AGGLO DUCA”- NASCO STONE
ECOUSTIC FELT “NATURAL” - UNIKA VAEV
TEXTILE “ENZOPOPPY”- MOMENTUM
WOOD VENEER “ELM” - ALTYNO
TILE “BOTTEGA”PORCELANOSA
METAL CHAIR LEGS IN COLOR “POPPY”

LEVEL 5

ANNOTATIONS

A-ADJUSTABLEFOLDINGWALLSWITHACOUSTIC MATERIALFORNOISECONTROLANDPRIVACYIN STUDIOS.*

B-HALLWAYSEATINGNOOKSWITHSOUND DAMPENINGMATERIALSTOMITIGATENOISEIN HALLWAYSANDCREATEQUIETSPACESFOR INDIVIDUALSTOREST.*

C-ELEVATORCORRIDORHASLARGESIGNAGE INDICATINGLEVELANDNAVIGATION.*

D-PRIVATEANDSEMI-PRIVATEJURYSPACEFOR PROFESSORSANDSTUDENTS.*

E-STUDENTLOUNGEWITHVARIOUSSEATINGTYPES FORFLEXIBILITY.*

F-KITCHENETTEINLOUNGEACCESSIBLEFORSTUDENT USE.*

G-ACCESSIBLEELECTRICALOUTLETS-FIXEDAND INTEGRATEDINTOALLFURNITURE.*

H-LARGESTUDENTCLASSROOMFLEXIBLEFOR VARYINGUSE.*

I-PROMINENTSIGNAGEDENOTINGCLASSROOM LOCATION.*

*WAYFINDING:REDANNONATIONLETTER*

*HUMANCENTEREDDESIGN:BLUEANNOTATIONLETTER*

LEVEL 5

TERRAZZO “AGGLO DUCA”- NASCO STONE
TEXTILE “BALTIC HORSERAD SH” BRENTANO
ECOUSTIC FELT “CHARCOAL” - UNIKA VAEV
ECOUSTIC FELT “BALTIC” - UNIKA VAEV
TEXT LE “SANYA CVDUSK”- MOMENTUM
WOOD VENEER “ELM” - ALTYNO
383 SOL D WHITE OAK FLEXIBLE WOOD TAMBOURSURFACING SOLUTION
METAL CHAIR LEGS N COLOR “FLAX”

LEVEL 6

ANNOTATIONS

A-ADJUSTABLEFOLDINGWALLSWITHACOUSTIC MATERIALFORNOISECONTROLANDPRIVACYIN STUDIOS.*

B-HALLWAYSEATINGNOOKSWITHSOUND DAMPENINGMATERIALSTOMITIGATENOISEIN HALLWAYSANDCREATEQUIETSPACESFOR INDIVIDUALSTOREST.*

C-ELEVATORCORRIDORHASLARGESIGNAGE INDICATINGLEVELANDNAVIGATION.*

D-PRIVATEANDSEMI-PRIVATEJURYSPACEFOR PROFESSORSANDSTUDENTS.*

E-STUDENTLOUNGEWITHVARIOUSSEATINGTYPES FORFLEXIBILITY.*

F-KITCHENETTEINLOUNGEACCESSIBLEFORSTUDENT USE.*

G-ACCESSIBLEELECTRICALOUTLETS-FIXEDAND INTEGRATEDINTOALLFURNITURE.*

H-LARGESTUDENTCLASSROOMFLEXIBLEFOR VARYINGUSE.*

I-PROMINENTSIGNAGEDENOTINGCLASSROOM LOCATION.*

*WAYFINDING:REDANNONATIONLETTER*

*HUMANCENTEREDDESIGN:BLUEANNOTATIONLETTER*

LEVEL 7

ANNOTATIONS

A-ADJUSTABLEFOLDINGWALLSWITHACOUSTIC MATERIALFORNOISECONTROLANDPRIVACYIN STUDIOS.*

B-HALLWAYSEATINGNOOKSWITHSOUND DAMPENINGMATERIALSTOMITIGATENOISEIN HALLWAYSANDCREATEQUIETSPACESFOR INDIVIDUALSTOREST.*

C-ELEVATORCORRIDORHASLARGESIGNAGE INDICATINGLEVELANDNAVIGATION.*

D-PRIVATEANDSEMI-PRIVATEJURYSPACEFOR PROFESSORSANDSTUDENTS.*

E-STUDENTLOUNGEWITHVARIOUSSEATINGTYPES FORFLEXIBILITY.*

F-KITCHENETTEINLOUNGEACCESSIBLEFORSTUDENT USE.*

G-ACCESSIBLEELECTRICALOUTLETS-FIXEDAND INTEGRATEDINTOALLFURNITURE.*

H-LARGESTUDENTCLASSROOMFLEXIBLEFOR VARYINGUSE.*

I-PROMINENTSIGNAGEDENOTINGCLASSROOM LOCATION.*

J-FLEXIBLESEATINGINTEGRATEDWITHCUBICLESTO ALLOWFOROPTIONSANDCOMFORT.*

*WAYFINDING:REDANNONATIONLETTER*

*HUMANCENTEREDDESIGN:BLUEANNOTATIONLETTER*

LEVEL 8

ANNOTATIONS

A-LIBRARYENTRYADJACENTTORECEPTIONDESK FORSECURITYANDDIRECTIONS.*

B-COLLABORATIVETABLES,LOUNGESEATING,AND INDIVIDUALWORKSTATIONS.*

C-BANQUTTESEATINGFEATURESACCOUSTIC WALLCOVERINGFORNOISEMITIGATION.*

D-TABLESFORLECTURESANDVIDEOSCREENINGS.

E-LIBRARIANOFFICESANDLARGESTORAGESPACE.

F-ADJUSTABLEBOOKSHELFSFORVARIOUS RESOURCES.

G-SOCICALSTAIRSLEADINGTONINTHFLOOR-WITH ROOMTOSIT,WORK,ORSOCIALIZE.*

H-ELEVATORCORRIDORHASLARGESIGNAGE INDICATINGLEVELANDNAVIGATION.*

I-LARGETWOSTORYWINDOWSCONNECTINGTHE 8THAND9THFLOORS,PROVIDINGAMPLE DAYLIGHTTOTHELIBRARY.*

J-SOCIALSTAIRSSERVEASALANDMARKFOREASE OFWAYFINDING.*

K-SOCIALSTAIRSPROMOTEUSEOFSTAIRSINSTEAD OFTHEELEVATOR.*

*WAYFINDING:REDANNOTATIONLETTER*

*HUMANCENTEREDDESIGN:BLUEANNOTATIONLETTER*

LEVEL 8

ACOUSTICAL COVERING

CARPET “DAPPLED
GHT”- FLOR
GORDON
TEXT LE “BALTIC HORSERADISH” BRENTANO
TEXTILE “ENZOPOPPY”- MOMENTUM
WOOD VENEER “ELM” - ALTYNO
383 SOLID WH TE OAK
FLEXIBLE WOOD TAMBOURSURFACING SOLUT ON

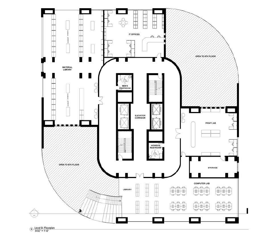
LEVEL 9

ANNOTATIONS

A- MATERIAL LIBRARY ENTRY ADJACENT TO RECEPTION DESK FOR SECURITY AND DIRECTIONS.*

B- ADJUSTABLE BOOK SHELFS FOR VARIOUS RESOURCES.

C- SOCICAL STAIRS LEADING TO EIGHTH FLOOR- WITH ROOM TO SIT, WORK, OR SOCIALIZE. *

D- ELEVATOR CORRIDOR HAS LARGE SIGNAGE INDICATING LEVEL AND NAVIGATION. *

E- LARGE TWO STORY WINDOWS CONNECTING THE 8TH AND 9TH FLOORS, PROVIDING AMPLE DAYLIGHT TO THE LIBRARY.*

F- SOCIAL STAIRS SERVE AS A LANDMARK FOR EASE OF WAYFINDING.*

G- SOCIAL STAIRS PROMOTE USE OF STAIRS INSTEAD OF THE ELEVATOR TO ACCESS THE COMPUTER LAB.*

H- MORE WINDOWS HAVE BEEN ADDED TO THE COMPUTER LAB TO INCREASE NATURAL DAYLIGHTING.*

*WAYFINDING: RED ANNOTATION LETTER*

*HUMAN CENTERED DESIGN: BLUE ANNOTATION LETTER*

TERRAZZO “AGGLO DUCA”- NASCO STONE
WOOD VENEER
“ELM” - ALTYNO
BLACK MARBLENASCO STONE

ANNOTATIONS

A-PRIVATEOFFICESFORFACULTYANDSTAFF. *

B-INTERIORCURTAINWALLSTHATALLOWSFOR NATURALLIGHTTOSTREAMINTOCORESPACES. *

C-ADJUSTABLEWINDOWSHADESFORUSERSINEACH OFFICE. *

D-LOUNGESPACEFORFACULTYANDSTAFFINCLUDINGKITCHENANDLOUNGESEATING. *

E-DIRECTSTAIRACCESSTOELEVENTHFLOORTO ADDITIONALOFFICES. *

F-SMALLBREAKOUTTABLESANDSEATINGFOR IMPROMPTUMEETINGSANDFLEXIBLE WORKSPACE.*

G-WELLSTRUCTUREDPATHSTOCREATEEASEOF LOCATINGOFFICES.*

*WAYFINDING: REDANNONATIONLETTER*

*HUMANCENTEREDDESIGN: BLUEANNOTATIONLETTER*

CARPET “DAPPLED DAYL GHT”- FLOR
WALL PA NT “TARRAGON”SHERWIN-WILLIAMS
WOOD VENEER “ELM” - ALTYNO
BROWN BRICK

LEVEL 11

ANNOTATIONS

A-RECEPTIONDESKFORVISITORS.*

B-LARGEDEAN’SSUITEPERREQUIREMENTS.

C-DEANSCONFERENCEROOMWHICHSEATS TWENTY-TWOPERREQUIREMENTS.

D-PRIVATEOFFICESFORFACULTYANDSTAFF.

E-INTERIORCURTAINWALLSTHATALLOWSFOR NATURALLIGHTTOSTREAMINTOCORESPACES.*

F-ADJUSTABLEWINDOWSHADESFORUSERSINEACH OFFICE.*

G-LOUNGESPACEFORFACULTYANDSTAFFINCLUDINGKITCHENANDLOUNGESEATING.

H-DIRECTSTAIRACCESSTOTENTHFLOORTO ADDITIONALOFFICES.*

I-SMALLBREAKOUTTABLESANDSEATINGFOR IMPROMPTUMEETINGSANDFLEXIBLE WORKSPACE.*

J-WELLSTRUCTUREDPATHSTOCREATEEASEOF LOCATINGOFFICES.*

*WAYFINDING: REDANNONATIONLETTER*

*HUMANCENTEREDDESIGN: BLUEANNOTATIONLETTER*

LEVEL 11

LEATHER “DARK CARBON, 2119”- HERMAN MILLER
CARPET “DAPPLED DAYLIGHT”- FLOR
TEXTILE “BALTIC HORSERADISH” BRENTANO
LEATHER “ALPINE, 2115”-HERMAN M LLER
WOOD VENEER “CHERRY” - ALTYNO

LEVEL 12

ANNOTATIONS

A-ELEVATORCORRIDORHASLARGESIGNAGE INDICATINGLEVELANDNAVIGATION.*

B-LARGETWOSTORYWINDOWSCONNECTINGTHE 12THAND13THFLOORS,PROVIDINGAMPLE DAYLIGHTTOTHEVENUE.*

C-STAGESAVAILABLEFORDIFFERENTEVENT ENTERTAINMENT.

D-WELLSTRUCTUREDPATHSTOCREATEEASE MOVEMENTAROUNDTHESPACE.*

E-BUFFETCONSOLESFORSERVINGFOODAND BEVERAGES.

F-ROUNDBANQUETTABLESFOREVENTS.

G-FLEXIBLESEATINGWITHTHEBESTVIEWSINTHE BUILDING.*

H-ACOUSTICPIN-UPBOARDSTOPRESENTSTUDENT WORKDURINGEVENTS.

*WAYFINDING: REDANNONATIONLETTER*

*HUMANCENTEREDDESIGN: BLUEANNOTATIONLETTER*

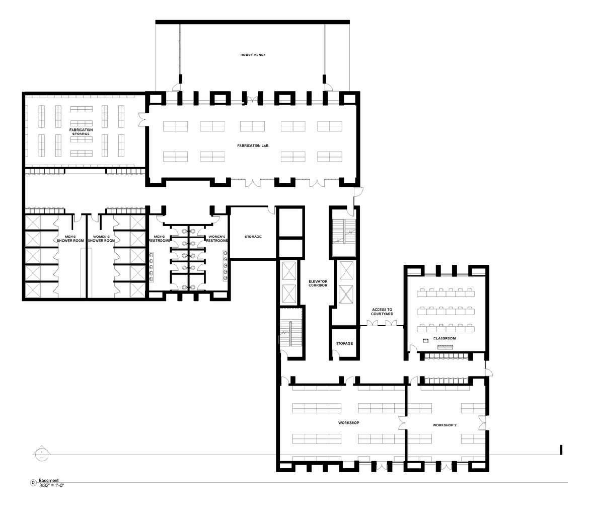
BASEMENT

ANNOTATIONS

A- ADDITIONAL SPACEFORFABRICATION

LABSTORAGEAND EQUIPMENT

B- LOCKERS FORSTUDENTUSE

ADJACENTTOSHOWERROOMS

C- SPEREATEBATHROOM SPACE

D-ADA ACCESSIBLESHOWERROOMS WITH PRIVATESTALLS*

E- LARGEJANITORIAL CLOSETIN

PROXIMITY TOBOTHROOMS AND SHOWERS

F- LARGEWOODSHOP WITH ACCESS TO SERVICEENTRY.

*WAYFINDING:REDANNONATIONLETTER*

*HUMANCENTEREDDESIGN:BLUEANNOTATION LETTER*

Material Board

FURNITURE SELECTIONS

LOUNGE SPACES

GUEST SEATSTYLEX, DELA CHAIR

MODULAR SEATINGSTYLEX, CHANNEL

TASK SEATINGDAVIS, ARIEL

LOUNGE SEATSTYLEX, DELA CHAIR

PENDANT LIGHTINGLURALINE, CORDX

ACCENT TABLESTYLEX, UMO

(VARIOUS SIZES)

TABLEDAVIS, VIDA

CLASS ROOMS

TASK CHAIRSTYLEX, DELA CHAIR

PRESENTATION SCREENOFS, KALEID

LECTERNOFS, LO-48

DESKS- ACTIU, TALENT TABLE

STUDIOS

STUDIO CHAIRHERMAN MILLER, VERUS WORK CHAIR

TRI-FLEX POLYMER BACK

PRESENTATION SCREENOFS, KALEID

WORK TABLEKI, STOUT TABLE

JURY TABLEDAVIS, VIDA

JURY SPACE SEATINGDAVIS, ARIEL

GUEST SEATSTYLEX, DELA CHAIR

MODULAR SEATINGSTYLEX, CHANNEL

LOUNGE SEATSTYLEX, DELA CHAIR

LIBRARY TABLEHERMAN MILLER, LAYOUT STUDIO PROJECT TBALE

EQUIPPED WITH POWER OUTLETS

PENDANT LIGHTINGLURALINE, CORDX

LAMP-HERMAN MILLER, THRIVE

ACCENT TABLESTYLEX, UMO

DEAN’S OFFICE AND CONFERENCE ROOM

EAMES LOUNGE CHAIR & OTTOMAN- HERMAN MILLER

EAMES SOFT PAD CHAIRSHERMAN MILLER

EAMES MOLDED PLYWOOD CHAIRSHERMAN MILLER

CONFERENCE TABLEHERMAN MILLER, LAYOUT STUDIO PROJECT TBALE

EQUIPPED WITH POWER OUTLETS

FULL LOOP LOUNGE CHAIRHERMAN MILLER

TABLEDAVIS, VIDA

LISPENARD SOFA GROUPHERMAN MILLER

PENDANTLUCEPLAN, MALAMATA LIGHT

Turn static files into dynamic content formats.

Create a flipbook
Issuu converts static files into: digital portfolios, online yearbooks, online catalogs, digital photo albums and more. Sign up and create your flipbook.