Portfólio de Projeto 3 - Júlia Nogueira

Page 1

PORTFÓLIO projeto 3 Júlia Nogueira

Universidade Federal de Goiás Projeto 3 Profª Adriana Vaz Profº Frederico Rabelo W. Leão Ogawa Goiânia, Setembro de 2022 Júlia Nogueira de Oliveira

SUM ÁRIO Trabalhando com uma casa existente A casa p. 02 p. 14 p. 46 p. 18Análises iniciais Reforma Estudo Preliminar Uma casa nova para a cidade 01 040302

A CASA 01 Jd N o v a Es p 2 Trabalhando com uma casa existente

03

CASAcasa (substantivo feminino) É o ambiente construído. Lugar de proteção, onde todas as relações podem florescer. ser.

LOCALIZAÇÃO 28 / 0 4 /2 0 2 1 SIGGO V su a l za d o r W e b 0 330 1660 65 m 0 0, 3 0, 06 , 15 km 1: 8 .0 0 0 qd 1 3 4 lt 0 6 Qd. 134 Lt. 06 N Goiânia Jardim EsperançaNova Jardim EsperançaNova 04

05

1: 2 0 0 0 06

PERFIL DOS MORADORES C g ta d e G o iâ n a su a li za d o r W e b

Filha -Gosta de espaços intimistas e de privacidade; -Almeja o contato com a natureza e culturas; -Gosta de fazer festas e recebe visitas em maior número.

Pai -Gosta de natureza; -Pratica mountain bike; -Raramente gosta de receber visitas.

Mãe -Prefere ambientes calmos; -Gosta de organização e limpeza; -Organiza eventos para poucas pessoas.

07

HÁBITOS DIÁRIOS 08

HÁBITOS FINAIS DE SEMANA 09

intimistasEspaçosVentilação

HabitantesBiofilia

Simplicidade IluminaçãoEspaços deAconchegoencontroHabitantes 10

PROBLEMAS DETECTADOS 11

DEMANDA DOS MORADORES LUGARES ILUMINADOS E FRESCOS LUGAR ESPECÍFICO PARA PASSAR ROUPA E GUARDAR EQUIPAMENTOS E PRODUTOS DE LIMPEZA LUGAR PARA EQUIPAMENTOSGUARDARDETRILHAAMPLIARACADEMIA AMPLIAR GARAGEM NÃO PEGAR SOL DA TARDE NOS QUARTOS LOCAIS DE ENCONTRO CONTATO COM A NATUREZA 12

13

REFORMA02Trabalhandocomuma casa existente

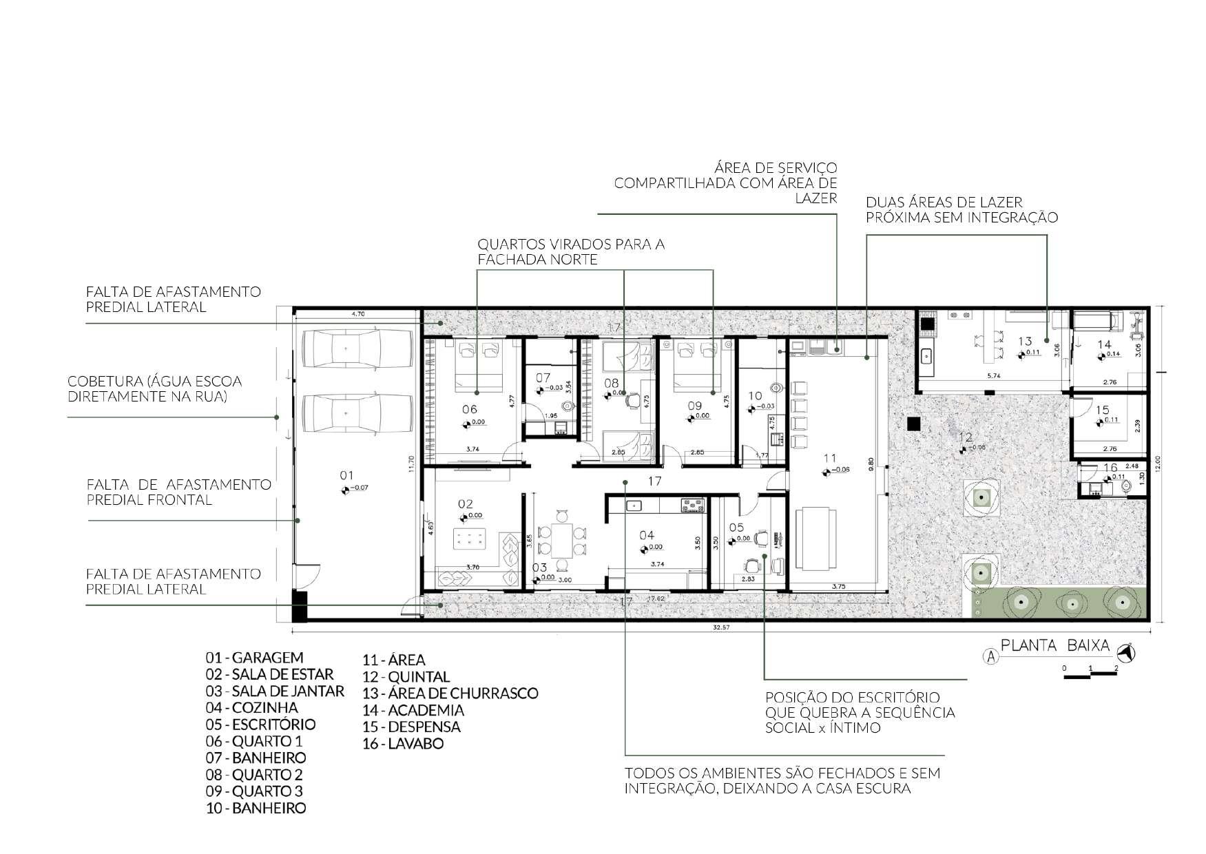
NDEMOLIRDemolirPermanecer 01 - GARAGEM 02 - SALA DE ESTAR 03 - SALA DE JANTAR 04 - COZINHA 05 - ESCRITÓRIO 06- QUARTO 1 07 - BANHEIRO 08 - QUARTO 2 09 - QUARTO 3 10 - BANHEIRO 11 - ÁREA 12 - QUINTAL 13 - ÁREA DE CHURRASCO 14 - ACADEMIA 15 - DESPENSA 16 - LAVABO 15

NCONSTRUIRConstruirPermanecer 01 - GARAGEM 02 - ENTRADA 03 - SALA DE ESTAR 04 - SALA DE JANTAR 05 - COZINHA 06- JARDIM INTERNO 07 - ÁREA DE SERVIÇO 08 - JARDIM INTERNO 09 - BANHEIRO 10 - QUARTO 1 11 - QUARTO 1 12 - BANHEIRO 13 - ESCRITÓRIO E QUARTO 14 - ÁREA DE CHURRASCO 15 - QUINTAL 16 - ACADEMIA 17 - DESPENSA 18 - LAVABO 16

RESULTADO 17

ANÁLISES INICIAIS03Umacasanovaparaa cidade

PONTOS DE INTERESSE E CENTRALIDADES Pontos de Interesse:Centralidades:3min1,4km3min20min(Linha270)6min17min8min7min30min(Linha725+105)15min51min8min7min27min(Linha270)13min54min14min12min1h10min(Linha263+280)29min1h43min Fav Lote do projeto Raio de 2,35 km Atacadão Polo Estudantil Polo Industrial Polo Religioso Polo Comercial Passeio das ShoppingÁguas Aeroporto (ForaGoiâniadedaáreadomapa) 4,4 km 4,5 km 8,7 km

Fontes: Google Maps e Google Earth. N A proximidade com o local de trabalho permitirá o deslo camento por meios de transportes alternativos, trazendo uma necessidade de uma garagem coberta e segura que manterá o carro por períodos mais longos. Além disso, os polos existentes não irão interferir no movi mento local, assim, trânsitos, seus ruídos e outros tipos de som não serão uma preocupação no projeto.

19

Legenda:BancoEstacionamentoClubeMercado/MerceariaParques/BosquesBar/DistribuidoraAtividadeFarmáciaHotel/MotelPostoTeatro/AuditórioPostoInstituiçãoBibliotecaServiçoServiçoComércioRestaurante/LanchoneteHospitalar/OdontológicoReligiosadeCombustívelPolicialEsportivaPredominantementeIndustrial

PredominantementeEscolar

A partir dos estudos de usos, centralida des e pontos de interesse, é possível perceber que a região imediatamente próxima ao lote do projeto não possui comércio local, exigindo um transporte por meios automotivos e portanto uma necessidade de um espaço e mobiliário amplo destinado à guardar produtos e equipamentos e, assim, evitar os desloca mentos frequentes do usuário até os comércios.

Predominantemente Institucional Predominantemente

Instituição Residencial Serviço Vazio Urbano

USOS 20

Lote do projeto Entorno

Fontes: Google Maps, MapBox, Mapa Digital Fácil.

Predominantemente

MOBILIDADE E TRANSPORTE 21

O estudo das vias permite identificar que o trânsito próximo ao lote do projeto é reduzido, porém, o acesso a vias rápidas é fácil, o que permite o deslocamento rápido por meios de transporte auto motivos. Já os pontos de ônibus ficam a uma distância um pouco maior para ir a pé, sendo, portan to, mais provável o deslo camento do usuário por outros transportes, como carro e bicicleta, que deve rão ter um local apropriado para sua manutenção no projeto da residência. Além disso, a consideração das vias locais infere em um trânsito calmo na região e consequente redução de ruídos.

Vias

Fontes: Google Maps, Google Earth, RMTC.

Vias

N

Legenda:Rota Arteriais Coletoras Locais

Pontos270de ônibus Rota 302 Rota 174 Rota 105 Rota 933 Vias

Lote do projeto Raio de 2,35 km

22

O mapa de cheios demonstra que região entorno do lote do projeto, apesar de urbana, predomina vazio, aspéctos que devem ser considerados na elaboração do projeto.

e vazios

rurais

o

CHEIOS E VAZIOS 0 0,15 km 0,3 kmLote do projetoCheios N Legenda: Fontes: Google Maps, Google Earth e MapBox.

a

do

gerando

Lote do projeto Raio de 2,35 km arbórea Hidrografia Nascente do Rio Meia Meia Ponte Córrego

Legenda:Massa

Ponte Rio

SamambaiaRibeirãoCaveiras

Fontes: Google Maps, Google Earth, Mapa Digital Fácil. N Os aspectos ambientais são importan tes para destacar o contato próximo do lote do projeto a massas arbóreas, além de uma hidrografia não tão distante, que trazem para o ambiente características de temperatura mais amena e manutenção da umidade, além, é claro, de ser um aspecto que vale a pena ser explorado e evidenciado no projeto.

Unidades de Conservação

ASPECTOS AMBIENTAIS

23

1 N N 24

internaRua Ruainterna

A partir da análise do terreno é possível perceber que apesar de quase plano, ele possui uma pequena declivida de no sentido Oeste-Leste e no sentido Sul-Norte. A facha da norte faz fronteira com uma edificação já construída, o que a protege parcialmente da insolação, enquanto a fachada oeste é a de acesso a edificação e deve receber algum mecanismo de proteção solar. Já quanto ao uso do solo, pelo programa proposto, não há a necessidade de mais de dois pavimentos, devendo ter afastamento frontal de 5 m e, caso haja aberturas, afastamento laterais e no fundo de 2 m, resultando em uma ocupação de 327,60 m2 Pav. Térreo Pav.

TERRENO 8,48 28,00 1,87 10,85 19,60 28,00327,60 m2 327,60 m 5,00 2,00 28,00 2,002,00 5,00 2,002,002,00 14,555,05

ModernaArquiteturaNaturezaGeometria dosLiberdademateriais queEspaçosPermeabilidadeEspaçosdeencontroacolhemHabitante 25

26

27

28

29

ESTUDO DE SIMILARES headornowithhouseThe tail Local: ISFAHAN, IRAN Arquitetos: Experience Studio Área : 180 m² Ano : 2020 30

The House With No Head or Tail / Experience Studio Archdaily

A casa foi projetada com a intenção de ser uma casa de finais de semana e, por esse motivo, possui um progra ma reduzido, mas as dimensões do lote e a possibilida de de extensão em um segundo pavimento a permitem contemplar um programa maior.

FUNÇÃO Planta Térreo 1. Garagem 2. Circulação 3. Piscina 4. Sala de Estar 5. Cozinha 6. Banho 7. Lavabo 8. Quarto 9. Escadas para o 10.terraçoPlaygroudÍntimoServiçoSocialCirculação Vertical AcessoCirculação

A casa privilegia o setor social, com ambientes integra dos e bastante permeabilidade.

31

Fontes:

Piscina

Caminho interno para o espaço aberto da

coberturaCaminho através das caixas privadas Caixas de espaço privado

Caminho externo para o espaço aberto da cobertura

O setor íntimo foi possibilitado através de “caixas” menores no interior da grande “caixa” que envolve toda a edificação, de forma a priorizar, ao longo de toda a residência, a permeabilidade e a vista ao ambiente externo. A cobertura possui um rasgo, com acesso por meio de uma escada próxima a fachada leste, na qual os usuários podem contemplar a vista. Os percursos são livres por toda a edificação a fim de promover diferentes experiências.

Fontes: The House With No Head or Tail / Experience Studio Archdaily

Entrada Garagem Acesso

32

33

LUGAR

Fontes: House With No Head or Tail / A relação com o entorno é um aspec to fundamental do projeto, que busca garantir o desejo dos clientes pela vista ao jardim, mantendo ao máximo a forma do terreno e as árvores já existentes. O projeto foi pensado “sem frente, nem fundos” e com diversos rasgos a fim de trazer o exter no para dentro da edificação.

The

1. 2. 3. 4. 5. Lote cheio de árvores A caixa principal foi colocada no lugar das árvores jovens Moveu-se a caixa para a esquerda para evitar a luz do lado oeste Foi colocada as caixas privadas dentro da caixa principal Criou-se semi-abertosespaços

Experience Studio Archdaily

Fontes:

Estrutura autoportante

Fachada Leste Corte Estrutura autoportante

TECNOLOGIA

34

Fachada Sul Fachada Norte

The House With No Head or Tail / Experience Studio Archdaily

Quanto a tecnologia, a edificação possui uma estrutura autoportante, sem pilares e vigas, de concreto apa rente, que configura os aspéctos materiais juntamente com a madeira dos mobiliários e da vedação dos ambientes íntimos, e o vidro das esquadrias, os quais são trabalhados de forma a manter a honestidade e a verdade dos materiais.

Fontes: The House With No Head or Tail

/ Experience Studio Archdaily

Limite entre “fora” e “dentro” linear, flexível e transparente Limite da caixa

FORMA

A estrutura de concreto aparente vazada de uma fachada a outra, com rasgos distribuídos em sua superfície, a transparência capaz de conectar o inte rior ao exterior, a honestidade dos materiais e a coê rencia espacial dão forma ao projeto.

35

Aberturas que promo vem a conexão espacial e visual entre o interior e o exterior Caixa sólida com espaços privados Espaço aberto com vista - acesso para o terraço

Espaço Semi-aberto -

Jardim

Fontes: The House With No Head or Tail Studio Archdaily

O projeto busca uma forma capaz de promover dife rentes experiências ao usuário ao longo de todo o percurso executado, trazendo a dualidade do aberto -fechado, exterior-interior e transparente-fosco.

Diferente tipos de experiência ao longo do projeto 1. 2. 3. 4. 5.Jardim - Jardim Jardim - Piscina Espaço Semi-abertoPiscina Espaço Semi-abertoCaixa privada 6.Espaço Semi-aberto cercado pelas caixas privas 7.Vista Principal

O espaço principal do projeto contém uma superfície transparente móvel capaz de transfor mar o espaço completa mente fechado em uma área aberta, ao lado de um espaço semi-aberto.

36

/ Experience

Assim, The House With No Head or Tail, do Experience Studio, foi escolhida como estudo de caso para o projeto da casa do professor por apresentar questões fundamentais que pretende-se trazer para o projeto: a prioridade dada ao entorno, aspecto importante pela localização do lote em meio ao ambiente natural e pelo desejo do cliente por manter uma conexão com a natureza; a ênfase na permea bilidade, também defendida pelo futuro usuário; a integração de ambientes e consequentemente dos usuários; e por fim, a liberdade dos materiais, que não recebem nenhum revestimento. “Entre privacidade e permeabilidade, opto pela permeabilidade”

37

Bráulio Vinícius

CONCLUSÃO

ESTUDO DE SIMILARES BetonCasa Local: FLORIANÓPOLIS, BRASIL Arquitetos: Marchetti Bonetti+ Área : 323 m² Ano : 2020 38

Casa Beton / Marchetti Bonetti+ Archdaily Planta Térreo 1. Garagem 2. Estar/Jantar 3. Cozinha 4. Depósito 5. Lavabo 6. Louceiro 7. Lavandeiria 8. Banheiro Serviço 9. Dormitório Serviço 10. Varanda 11. Piscina 12. Sacada 13. Suíte 01 14.

21. Banheiro 22.

17.

Reversível 23. Banheiro Planta Pav. Superior 1 2 56 7 891010 12 12 13 1415 16 17 18 2019 21 22 23 1111 ÍntimoServiçoSocialCirculação Vertical AcessoCirculação 4 3

15. Banheiro 16.

A casa foi projetada para uma família de um casal e dois filhos adultos que moram em São Paulo, mas vão para Florianópolis a passeio. Para atender às suas necessidades, o programa foi dividido em dois pavimentos, sendo o térreo destinado ao social e serviço, de modo que o social seja todo integrado entre si e com a área externa; e o primei ro pavimento reservado para os espaços íntimos, havendo, ainda, uma área comum que pode se tornar uma quarta suíte para hóspedes.

FUNÇÃO

39

18. Banheiro 19.

Fontes: Closet Suíte 02 Closet Suíte Closet Suíte

Master 20.

PasseioLoteRua Situação

Implantação e Cobertura

Área

Fontes:

Casa Beton / Marchetti Bonetti+ Archdaily

Máscara de Impermeabilização Permeável Área Impermeável

LUGAR 40

A relação com o entor no acontece de forma simples. O lote se situa entre outros residen ciais e, por isso, as laterais apresentam apenas as janelas dos banheiros, de forma que as aberturas dos quartos fiquem volta das para a frente e para o quintal da casa e são vedadas por portas janela. Além disso, a residência é contornada por uma área permeá vel e apresenta um pequeno jardim.

Quanto à tecnologia, a casa parece ser composta de algumas alvenarias estrutu rais e outras de vedação e são executadas em concreto aparente, além de apre sentar, como materialidade, o vidro e as esquadrias na cor preta. A cobertura, que aparenta ser de laje plana, na verdade, apresenta apenas os beirais nessa confor mação, com uma pequena inclinação, de forma que eles e a telha termoacustica escorra a água para as mesmas calhas. Casa Beton

Corte A Corte B

Laje EstruturaTelhaplanatermoacustica

TECNOLOGIA

/ Marchetti Bonetti+ Archdaily 41

Fontes:

Fachada

FORMA

Pavimento Superior Pavimento Inferior Frontal Fachada Lateral Esquerda

A forma resulta do desejo do cliente de traba lhar com o conceito das casas modernas brasileiras, realizando, portanto, uma leitura da arquitetura brutalista. O resultado foi de uma “caixa” inferior de vidro, que traz um sensação de leveza, suportando outra maior de concreto, que traz a sensação de pesado.

Fontes: Casa Beton / Marchetti Bonetti+ Archdaily 42

43

CONCLUSÃO

Assim, a Casa Beton, do escritório Marchetti Bonetti+, foi escolhida como estudo de caso para o projeto da casa do Bráulio Vinicius por sua distribuição espacial, que equilibra o programa em dois pavimentos, respeitando a permeabilidade das áreas sociais e garantindo a privacidade dos setores íntimos, que também será um fator a se considerar no projeto do professor, devido a relação do lote do projeto com o entorno que já apresenta um vizinho e poderá ainda ganhar um segundo; e por sua solução tecnológica, que além de utilizar o concreto de maneira aparente, consegue configurar a cobertura de modo a trazer a expressão de uma laje plana, desejável pelo futuro usuário, mas com a tecnologia da telha termoacustica, mais fácil de realizar a manutenção. Quanto a forma, pretende-se manter a expressividade dos materiais, mas diferente da pro posta da Casa beton, trabalha-los a fim de manter a leveza.

REFERÊNCIAS Residência MJE - Jacobsen Arquitetura Residência CMLaranjeiras - Bernardes Arquitetura Residência CMLaranjeiras - Bernardes Arquitetura Residência AMB - Bernardes + Jacobesen Arquitetura44

Residência RN - Jacobsen Arquitetura 45

ESTUDO PRELIMINAR04Umacasanovaparaa cidade

Os espaços íntimos foram pensados para preservar a privacidade dos usuários, mantendo o sossego almeja do e o contato com o ambien te externo.

DIRETRIZES

47

PermeabilidadeEncontrosBiofilia Sossego

O contato com a natureza é um dos aspectos principais do projeto, valorizando o local de inserção do lote, o qual apre senta características rurais.

Os espaços foram pensados para que houvesse integração dos ambientes e permitisse o encontro entre os usuários. Para que as duas primeiras diretrizes fossem garantidas, o projeto apresenta diversas aberturas, permitindo a vista para o exterior e a integração entre os meios.

Setor íntimo Setor de serviço Setor Piscinasocial

48

A casa do professor teve como princípio norteador a importância dos espa ços sociais e de encontro. Nesse sentido, considerando o perfil do usuário, os espaços de cozinha e garagem foram atrelados ao setor social, garantin do a integração dos ambientes. Esse bloco se tornou completamente permeável e foi posicionado na fachada sul ao lado da piscina para que se aproveitasse o melhor sol, sem que sofresse com excesso de iluminação. Já o setor íntimo foi posicionado na fachada norte, de forma que o beiral da edificação a proteja da irradiação solar. Ele também apresenta amplas aberturas para manter o contato com o exterior. Por fim, o bloco de serviços assumiu a posição central, garantindo a proximidade necessária com o espaço da cozinha e uma área externa privada com iluminação natural.

IDEOGRAMA

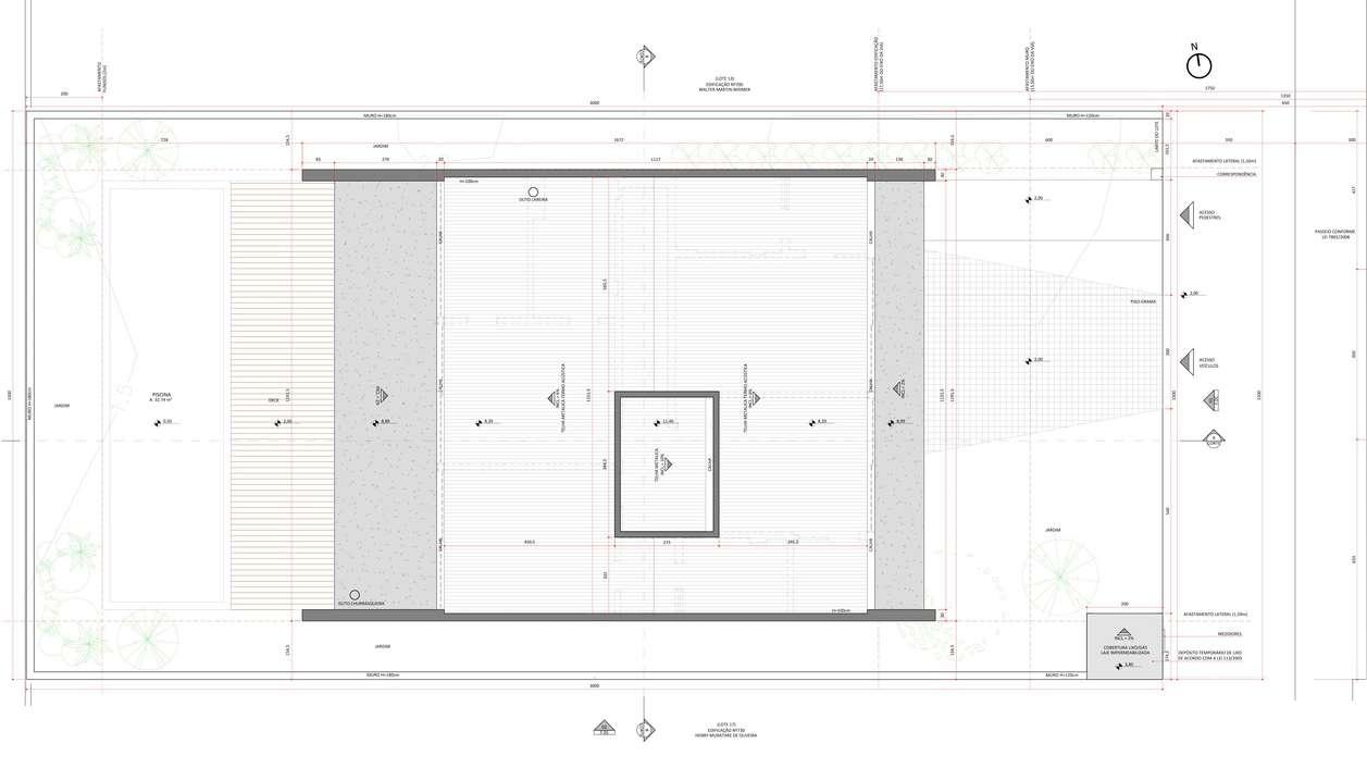
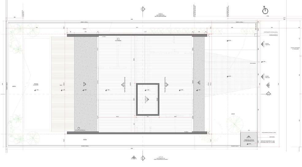
IMPLANTAÇÃO 0 1 2 m 49

VISTA FRONTAL 50

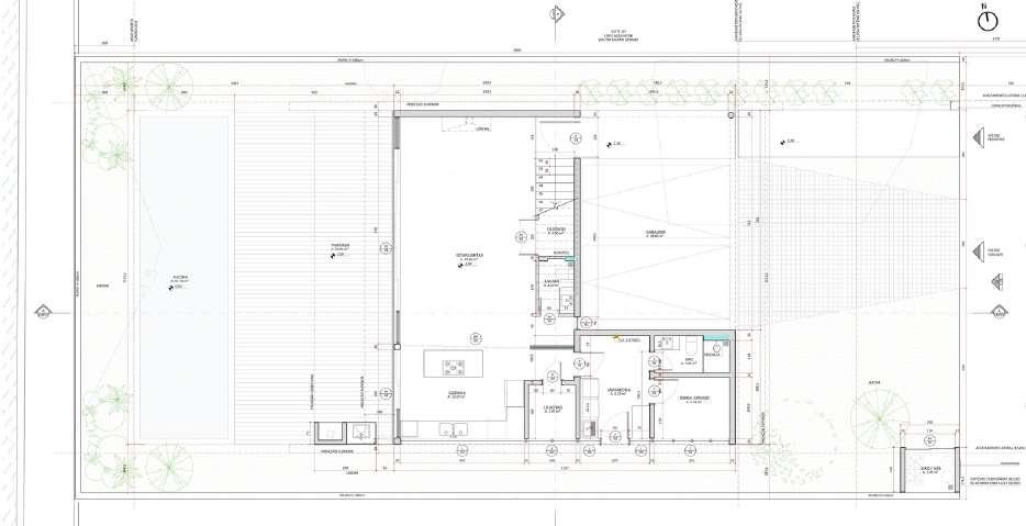
PLANTA BAIXA 0 1 2 m 51

CORTES 0 1 2 m 0 1 2 m p. 53 52

0 1m0,5 53

PERSPECTIVA ISOMÉTRICA 54

55

FACHADAS 0 1 2 m 0 1 2 m 56

0 1 2 m 0 1 2 m 57

IMAGENS INTERNAS 58

TECNOLOGIA Cobertura caixa d’águaLajede apoio caixa d’água Argila expandidalajesteel deck laje steel deck Viga perfil metálico I Pilar de aço perfil I Pilar de aço perfil circular Pilar de concretoPisopiscina 59

60

61

Turn static files into dynamic content formats.

Create a flipbook
Issuu converts static files into: digital portfolios, online yearbooks, online catalogs, digital photo albums and more. Sign up and create your flipbook.